Sonja Czeranski Portfolio

Page 1

PORTFOLIO

Sonja Czeranski

PORTFOLIO

Sonja Czeranski

02

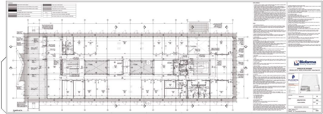
2019 - 2020 ZENTRALE VERWALTUNGSBÜROS Biofarma. Cordoba, Argentinien.

2021

VERWALTUNGSBÜROS FILIALE Biofarma. Jesus Maria, Cordoba, Argentinien.

BERUFLICHER WERDEGANG INHALT
01

2020 ABSCHLUSSARBEIT | Botanical Volkspark “Paisajes productivos del Este” 04 05

03 06 2017 SCHULE “Escuela PROA”

2018

BESUCHERZENTRUM

“Centro de Interpretación Reserva San Martin” Architektenwettbewerb 2016 MEHRFAMILIENHAUS “PH”

AKADEMISCHER WERDEGANG

BERUFLICHER WERDEGANG

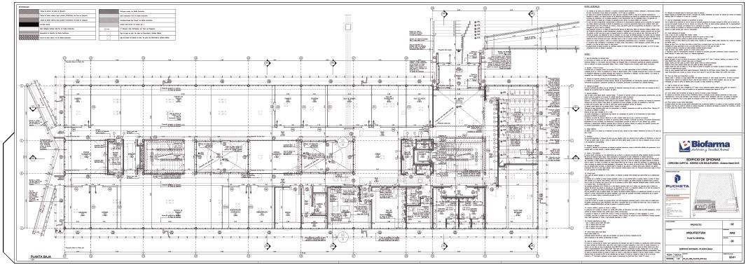
ZENTRALE VERWALTUNGSBÜROS

FLÄCHE

DES TEAMS

MEINE AUFGABEN

Fertigung von Grundrisse, Bau- und Ausführungszeichnungen, Bauansichten und Detailzeichnungen. Entwicklung von 3d-Modell

RENDER | Arch. Tito M. Gonza

01 JAHR 2019 - 2020
6
GRÖßE
BERUFLICHER WERDEGANG | ZENTRALE VERWALTUNGSBÜROS GRUNDRISS 1:50
RENDER INNEN | Arch. Tito M. Gonza
01
LÄNGSSCHNITT ANSICHT 1:50 1:50
RENDER INNEN | Arch. Tito M. Gonza
FENSTER- UND TÜRDETAILS 1:50
BERUFLICHER WERDEGANG | ZENTRALE VERWALTUNGSBÜROS

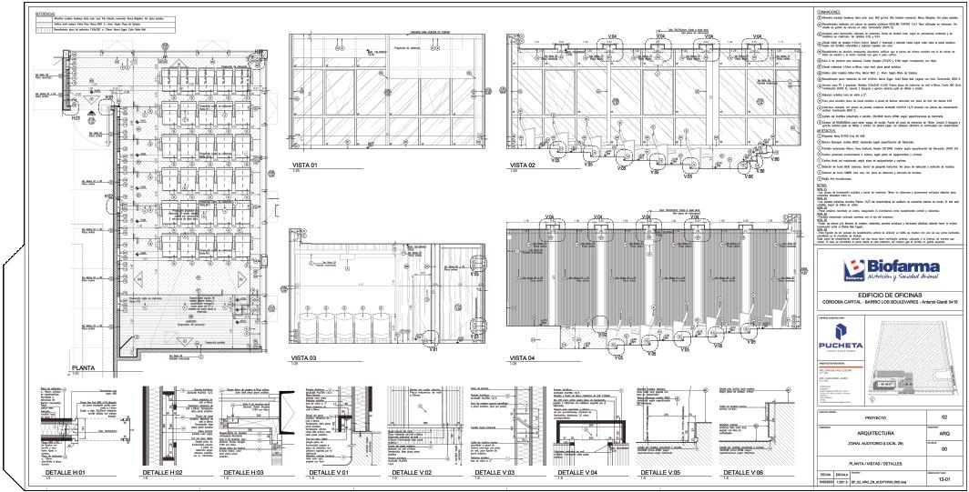
FOYER 1:25 | 1:5

01
HÖRSAAL 1:25 | 1:5

BERUFLICHER WERDEGANG | ZENTRALE VERWALTUNGSBÜROS

TREPPE

1:20 | 1:5 | 1:2

EXPLOSIONZEICHNUNG
FASSADE
01
DETAIL | Schnitte Arch. Sonja Czeranski + Render Arch. Tito M. Gonza

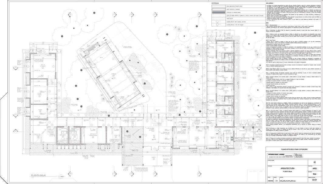
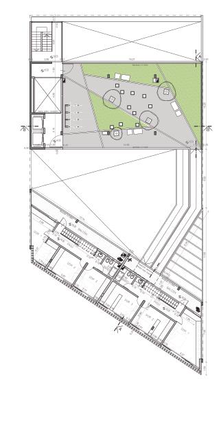
VERWALTUNGSBÜROS FILIALE

FLÄCHE 790m2

ENTWURFSSTADIUM Gebaut

PROJEKTSTANDORT

Jesus Maria, Cordoba, Argentinien

GRÖßE DES TEAMS

MEINE AUFGABEN

Fertigung von Grundrisse, Bau- und Ausführungszeichnungen, Bauansichten und Detailzeichnungen. Entwicklung von 3d-Modell

JAHR 2021
4
02
RENDER | Arch. Tito M. Gonza
GRUNDRISS 1:75
WERDEGANG | VERWALTUNGSBÜROS FILIALE
RENDER INNEN | Arch. Tito M. Gonza
BERUFLICHER
ANSICHT 1:75 02
RENDER AUSSEN | Arch. Tito M. Gonza
FOTO AUSSEN SCHNITTE 1:75 BERUFLICHER WERDEGANG | VERWALTUNGSBÜROS FILIALE
FOTO INNEN DETAIL 1:10 02

AKADEMISCHER WERDEGANG

ABSCHLUSSARBEIT | Botanical Volkspark

“Paisajes productivos del Este”

FLÄCHE 2.770.100m2

PROJEKTSTANDORT Córdoba, Argentinien

JAHR 2020
2 03
GRÖßE DES TEAMS

AKADEMISCHER WERDEGANG | ABSCHLUSSARBEIT

GRUNDRISS

RENDER
EBENE ANALYSE RENDER 03 1987 28.000has 2009 11.000has 2017 3.100has 2012 5.500has Disminución de la superficie productiva
Mancha urbana Cinturon verde cultivo frutihortícola Avance de la mancha urbana Río Suquía Malvinas Argentinas Colonia Caroya Lago San Roque Canal Maestro Norte CanalMaestroSur Actividades extractivas canteras Uso industrial Cultivo intensivo (soja, alfalfa, maíz, papa) Cinturon verde cultivo frutihortícola Río Suquía Malvinas Argentinas Colonia Caroya Lago San Roque Canal Maestro Norte CanalMaestroSur Actividades incompatibles Valores de desmonte anuales Perdida de biodiversidad en el ultimo siglo 7.000 ha 2015 2016 2017 2018 6.951 ha 14.427 ha ha Años 7.413 ha Perdida del 40% al 60% Parque agrario del este Estrategia de organización territorial Area de proyecto
GRUNDRISS
frutihortícola

AKADEMISCHER WERDEGANG | ABSCHLUSSARBEIT

AXONOMETRIE

03

BESUCHERZENTRUM

PROJEKTSTANDORT Córdoba, Argentinien

“Centro de Interpretación Reserva General San Martin” ARCHITEKTENWETTBEWERB Erster Preis FLÄCHE 142,5m2
JAHR 2018
5 04
GRÖßE DES TEAMS

AXONOMETRIE

RENDER INNEN
AKADEMISCHER WERDEGANG | BESUCHERZENTRUM
RENDER INNEN
04
ERDGESCHOSS 1. OBERGESCHOSS SCHNITTEN

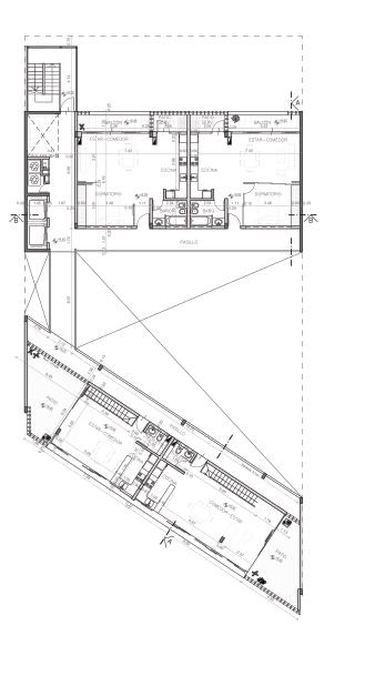
MEHRFAMILIENHAUS

“PH” FLÄCHE 3.906m2

PROJEKTSTANDORT Córdoba, Argentinien

JAHR 2016
4 05
GRÖßE DES TEAMS
AXONOMETRIE
AKADEMISCHER WERDEGANG | MEHRFAMILIENHAUS ERGESCHOSS 2.OBERGESCHOSS 1.OBERGESCHOSS

Criba de ladrillo armado

Baranda de ladrillo comun

Mortero de asiento (1/4;1;3)

Embudo pluvial 10x10

Hormigon de pendiente (1;1/4;3;5)

Cielorraso de ladrillo armado

Zingueria de chapa Abulonada

Baldosa ceramica 40x40

Membrana liquida aplicada

Carpeta de concreto (1;3;3)

Hormigon de pendiente (1;1/4;3;5)

Loseta premoldeada Criba abierta de ladrillo comun

Espuma de poliuretano

Losa nervurada (1;3;3)

Pgc 3cm

Placa de yeso durlock

Carpinteria de aluminio Corrediza dos hojas

DETAIL WOHNUNGEN 68m2 90m2 118m2 05
Dintel
SCHULE “Escuela PROA” FLÄCHE 6.079m2 PROJEKTSTANDORT Córdoba, Argentinien
JAHR 2017
2 06
GRÖßE DES TEAMS
AKADEMISCHER WERDEGANG | SCHULE A B B C C AUDITORIO BIBLIOTECA AULA TALLER AULA AULA TALLER TALLER TALLER CLUB DE ARTE CLUB DE DEPORTES CLUB DE CIENCIAS GIMNASIO 1 2 3 4 5 6 7 8 9 10 11 12 13 14 15 B A C D E F G H 16 17 18 19 COMEDOR TALLER TALLER TALLER TALLER AULA AULA AULA TALLER BAÑOS SALA DE MAQUINAS OFFICE MAESTRANZA PORTERIA DEP. GRAL. HALL S.U.M. DEPOSITO VESTUARIO VESTUARIO AREA DE GOBIERNO KIOSCO SARACHAGA INGRESO PATIO PATIO 2 3 4 5 6 7 8 9 10 11 12 13 14 15 B A C D E F G H I 16 17 18 19 A A B B C C
1 2 3 4 5 6 7 8 9 10 11 12 13 14 15 16 17 18 19 L.M. L.M. COMEDOR/CLUBS PATIO AULAS/TALLERES PATIO SUM B A C D E F G H L.E.M. L.E.M. L.E.I. AULAS/TALLERES BAÑOS/BIBLIOTECA CIRC. PASAJE G H I L.E.M. L.E.M. L.E.I. S.U.M. PASAJE CIRC. GOBIERNO/AUDITORIO SCHNITT BB AXONOMETISCHE DETAILS SCHNITT CC SCHNITT AA 06 1PROCESO 2 PROCESO 3 PROCESO 4 PROCESO CHAPA TRAPEZOIDAL ESTRUCTURA •RECUBRIMIENTO DE INSERTO •COLUMNAS CON PLANCHUELAS SOLDADAS •VIGAS ABULADAS •LOSAS HUECAS •MALLA SIMA •CARPETA COMPRESION • • •VIGA RIOSTRA •INSERTO CARPETA DE CONCRETO ALISADO 1:3 LOSA HUECA ASTORI ESP.25CM CONTRAPISO 1/4:1:3 CARPETA DE COMPRESION CON MALLA SIMA CONTRAPISO 1/4:1:3 CARPETA DE CONCRETO ALISADO 1:3 FIBRA DE VIDRIO CON POLIESTER NO TEJIDO PERFIL TECHSTYLE PLACA BASE CON PERNOS DE ANCLAJE CABEZAL DE HORMIGON ARMADO 1:3:3 VIGA RIOSTRA 20x40CM PIEZA DE APOYO PGU VARIEDAD DE TAMAÑOS PARA PEND. ZINGUERIA DE CHAPA BLANCA 1PROCESO 2 PROCESO 3 PROCESO 4 PROCESO 5 PROCESO ESTRUCTURA •CABEZAL •PILOTE IN SITU •VIGA RIOSTRA •INSERTO •RECUBRIMIENTO DE INSERTO • • • DE TRES TRAMOS PERFILES RIGIDIZANTES TENSORES PANEL METALICO FOILROOF PARA GRANDES LUCES TORNILLO AUTOPERFORANTE Y CAPELOTO CONTRAPISO 1/4:1:3 TENSORES DE TUBO CIRCULAR CARPETA DE CONCRETO ALISADO 1:3 VIGA RETICULADA DE ACERO h:2M DISTANCIADOR DE ANGULOS DE ACERO CONFORMADOS EN FRIO UNION EMPOTRADA DE VIGA RETICULADA DISTANCIADORES ZINGUERIA DE CHAPA BLANCA PLACA BASE CON PERNOS DE ANCLAJE PIEZA DE APOYO CUMBRERA METALICA BLANCA TENSOR DE TUBO CIRCULAR UNION MECANICA PLETINA DE FIJACION PRESOLDADA EN COLUMNA MALLA METALICA INDUSTRIAL REJILLA 50x50 CLIPS DE AGARRE MECANICO PERFILES TUBO SUBESTRUCTURA PANEL FOILROOF DISTANCIADORES CHAPA LISA PLEGADA SUBESTRUCTURA METALICA PARA BARANDA VIGA PERFIL SOLDADO 20x40CM PLANCHUELA METALICA PERFIL U DE 20 VIGA PERFIL SOLDADO 20x40CM PIEZA DE APOYO PERNOS DE ANCLAJE PLACA BASE CABEZAL DE HORMIGON 1:3:3 CON INSERTO VIGA RIOSTRA 20x40CM CABEZAL 80X80CM PILOTE IN SITU HORMIGON 1:3:3 Ø60CM COLUMNA PERFIL SOLDADO 20x40CM COLUMNA PERFIL SOLDADO 20x40CM VIGA PERFIL SOLDADO 20x40CM PLANCHUELAS METALICAS UNIONES MECANICAS
arq.sonja +49 1783223760 Sonja Czeranski

Turn static files into dynamic content formats.

Create a flipbook
Issuu converts static files into: digital portfolios, online yearbooks, online catalogs, digital photo albums and more. Sign up and create your flipbook.
Sonja Czeranski Portfolio by Sonja Czeranski - Issuu