PART 2 ARCHITECTURE PORTFOLIO

Page 1

SONAL VEERABHADRA

ARCHITECTURE PORTFOLIO 2022 PART II ARCHITECTURAL ASSISTANT

INCAN DRY STONE MASONRY - GEOMETRY AND INTERLOCKING

DIGITAL TRANSLATION OF THE INCAN GEOMETRY AND INTERLOCKING LOGIC

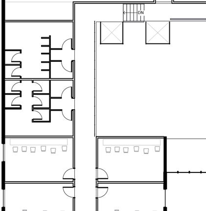
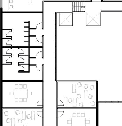
BUS BAY CORRIDOR 1.62 M WIDE PRINCIPAL CABIN 3.90 x 4.64 12'-9" X 15'-3" ACCOUNTS ROOM 3.90 x 2.42 12'-10" X 7'-11" DOUBLE HEIGHT RECEPTION & WAITING 3.83 x 6.78 12'-7" X 22'-3" TOILET ENTRANCE LOBBY TOILET 1 2 R= 160 MM. T= 300 MM. GARDEN AREA GARDEN AREA DOUBLE HEIGHT PARKING AREA 3 ENTRANCE LOBBY TOILET CH. ROOM DRINKING WATER LOBBY 3.97 x 3.10 13'-0" X 10'-2" OPEN CH. ROOM S.SLAB STORE ROOM C' C' A' B' B' D' D' F' F' E' E' A' G' G' D0 D3 V D3 D3 D3 W5 W6 V D3 D7 D7 D8 D3 FD D5 D6 W8 V D0 MH MH Ug.Domestic Tank Of 10.0 Cum With Ht.3m+0.3m Ug.Flushing Tank Of 8.0 Cum With Ht.3m+0.3m FD ED FD ED LIFT 1.80M x 2.50M SPEECH THERAPY ROOM 3.50 x 2.82 11'-6" X 9'-3" H. TOILET TOILET ADMIN 4.27 x 5.16 14'-0" X 17'-0" CORRIDOR 1.2 M WIDE DOUBLE HEIGHT RECEPTION & WAITING BELOW LOBBY DN OCCUPATIONAL THERAPY ROOM 4.27 x 2.82 14'-0" X 9'-3" PANTRY 4.27 x 2.14 14'-0" X 7'-0" DOUBLE HEIGHT PARKING BELOW C' C' A' B' B' D' D' F' F' E' E' A' G' G' D1 D3 HD V V W1 D6 D6 D6 D6 D3 FD ED FD ED LIFT 1.80M x 2.50M GROUND FLOOR PLAN FIRST FLOOR PLAN

HITEN SETHI

STAGE - MUNICIPAL APPROVAL

ASMITA SCHOOL FOR SPECIAL KIDS

THE ASMITA SPECIAL SCHOOL IS A SCHOOL FOR KIDS WITH SPECIAL NEEDS, AND HAD RECENTLY BEEN APPROVED BY TE MUNICIPAL CORPORATION. IT WAS THEN IN THE CONSTRUCTION DRAWING STAGE. I HAD BEEN A PART OF THE PROJECT SINCE ITS VERY FIRST DESIGN STAGE, TO THE CONSTRUCTION DRAWINGS AND COORDINATION WITH MEP CONSULTANTS AND THE CLIENT.

ASMITA SPECIAL SCHOOL IS A SCHOOL FOR KIDS WITH SPECIAL NEEDS, AND HAD RECENTLY BEEN APPROVED BY THE MUNICIPAL CORPORATION. THEN IN THE CONSTRUCTION STAGE, MY CONTRIBUTION TO THE PROJECT INVOLVED SINCE THE VERY FIRST STAGES OF BRIEF DEVELOPMENT UNTIL CO ORDINATING WITH THE MEP CONSULTANTS AND STRUCTURAL ENGINEERS.

ARCHITECTS
CLASSROOM 2 3.16 x 6.05 10'-6" X 19'-11" CLASSROOM 1 3.16 x 6.05 10'-6" X 19'-11" DOUBLE HEIGHT 7.72 x 3.01 25'-6" X 9'-11" CORRIDOR 1.2 M WIDE CLASSROOM 3 3.81 x 6.15 12'-6" X 20'-3" CLASSROOM 4 3.81 x 6.15 12'-6" X 20'-3" LOBBY DRINKING WATER H. TOILET TOILET C' C' A' B' B' D' D' F' F' E' E' A' G' G' D1 D3 HD D2 D2 D4 D4 V V W1 W2 W3 W2 W3 LIFT 1.80M x 2.50M FD ED FD ED DOUBLE HEIGHT DOUBLE HEIGHT LOBBY CORRIDOR 1.2 M WIDE CLASSROOM 6 3.16 x 6.05 10'-6" X 19'-11" CLASSROOM 5 3.16 x 6.05 10'-6" X 19'-11" CLASSROOM 7 3.81 x 6.15 12'-6" X 20'-3" CLASSROOM 8 3.81 x 6.15 12'-6" X 20'-3" H. TOILET TOILET C' C' A' B' B' D' D' F' F' E' E' A' G' G' D1 D3 HD D2 D2 D4 D4 V V W1 W2a W3a W2a W3a DRINKING WATER LIFT 1.80M x 2.50M FD ED FD ED SECOND FLOOR PLAN THIRD FLOOR PLAN THE
IN OUT 1200 DOOR JAMB IN GRANITE FRAME AS APPROVED (EDGES TO BE CHAMFERED) FIRE RETARDANT DOOR WITH ALUMINUM FRAME 300 2150 PLAN ELEVATION 2450 800 135 100 135 DOOR TYPE FIRE RATING DOOR SIZE DOOR FRAME SPECS IRON MONG / HARD DOOR HANDLE, HINGES, LOCK FIRE RETARDANT DOOR WITH ALUMINUM FRAME IN OUT SECTION XX 50 FINISHED FLOOR LEVEL. 300 450 1050 300 50 2450 1200 DOOR JAMB IN MARBLE AS APPROVED FIRE RETARDANT DOOR WITH ALUMINUM FRAME TYPE- D2 1200 X2450 ALLAN KEY LOCK D2 1200 MM X 2450 MM 19MM THK GRANITE FRAME AS APPROVED (EDGES TO BE CHAMFERED) X X ELEVATION SECTION DD TYPE- D1 PLAN D D S.S.HANDLE AS APPROVED SS 304 BALL BEARING HINGES 125MM X 75MM X 3MM OUT IN (EDGES TO BE CHAMFERED) PANIC BAR TWO HOUR FIRE RATED G.I. DOOR SHUTTERS AS PER VENDOR SHOP DWG. DOOR TYPE D1 FIRE RATING DOOR SIZE DOOR FRAME 1200 MM X 2450MM SPECS IRON MONG / HARD DOOR HANDLE, HINGES, LOCK 1200 MM X 2450 MM 2HRS FIRE RATING GALVANIZED IRON. G.I. DOOR FRAME. IN OUT PANIC BAR S.S.HANDLE AS APPROVED 6MM GROVE FINISHED FLOOR LEVEL. TWO HOUR FIRE RATED G.I. DOOR SHUTTERS AS PER VENDOR SHOP DWG. DOOR TYPE D5 FIRE RATING DOOR SIZE DOOR FRAME SPECS IRON MONG HARD 1800 MM X 2450 MM 900 2450 100 100 1000 TYPE- D5 1800 X 2450 PLAN IN OUT ELEVATION 2400 50 1800 6MM THICK TWO HOUR FIRE RATED WIRED GLASS G.I.DOOR FRAME AS PER VENDOR SHOP DWG. 6MM THICK TWO HOUR FIRE RATED WIRED GLASS G.I.DOOR FRAME AS PER VENDOR SHOP DWG. SECTION Type 2 5 1 4 3 D4 D2 6 750 D5 7 8 Door Schedule 1200 S. No.Width D3 D6 9 D7 10 D8 HD D1 1200 1200 1800 1050 1500 1050 1200 FD 830 11 1330 D0 ED 670 12 Lvl. ± 00 Mts. Lvl. + 00.450 Mts. R= 160 MM. T= 300 MM. No. Of Riser = 18 Nos. Plinth Entrance Lobby Road Lvl. Lvl. -3.200 Mts. Basement Floor Lift Pit Lvl. + 3.350 Mts. First Floor Lvl. + 6.250 Mts. Second Floor No. Of Riser = 18 Nos. Lvl. + 12.050 Mts. Third Floor No. Of Riser = 18 Nos. Lvl. + 13.030 Mts. Fourth Floor No. Of Riser = 18 Nos. Lvl. + 14.950 Mts. Terrace Floor R= 180 MM. T= 300 MM. MULTIPURPOSE HALL/ STORAGE ROOM TERRACE LIBRARY DOUBLE HEIGHT CLASSROOM SPEECH THERAPY ROOM DOUBLE HEIGHT PARKING ENTRANCE LOBBY CLASSROOM CLASSROOM CLASSROOM CLASSROOM OPEN TERRACE Duct Lvl. + 17.850 Mts. OH Tank Top Of Bottom Slab Level Top Level Lvl. + 19.250 Mts. No. Of Riser = 20 Nos. PERGOLA 0.3M SUNK SLAB 0.3M SUNK SLAB
IN OUT 830 (EDGES TO BE CHAMFERED) FIRE RETARDANT DOOR WITH ALUMINUM FRAME 750 1700 PLAN ELEVATION 2450 TYPE- FD 395 150 100 100 150 DOOR TYPE FD FIRE RATING DOOR SIZE DOOR FRAME SPECS IRON MONG / HARD DOOR HANDLE, HINGES, LOCK FIRE RETARDANT DOOR WITH ALUMINUM FRAME IN OUT SECTION XX 50 FINISHED FLOOR LEVEL. DOOR JAMB IN GRANITE FRAME AS APPROVED DOOR JAMB IN MARBLE AS APPROVED FIRE RETARDANT DOOR WITH ALUMINUM FRAME 830 X1700 ALLAN KEY LOCK 830 MM X 1700 MM 19MM THK GRANITE FRAME AS APPROVED (EDGES TO BE CHAMFERED) X X 1000 1000 ELEVATION SECTION DD 35MM THK MARINE BB DOOR FINISHED IN APPD. LAMINATE FROM BOTH SIDES DOOR TYPE FIRE RATING DOOR SIZE DOOR FRAME SPECS IRON MONG HARD DOOR HANDLE, HINGES, LOCK WOODEN 1200 PLAN BALL CATCH MAGNET AS APPROVED 19MM THK GRANITE FRAME AS APPROVED 35MM THK MARINE BB DOOR FINISHED IN APPD. LAMINATE FROM BOTH SIDES IN OUT 100 DEAD LOCK D D 19MM THK GRANITE FRAME AS APPROVED 2450 50 FINISHED FLOOR LEVEL. TYPE- HD 1200X2450 HD 1200 MM X 2450 MM DOOR JAMB IN MARBLE AS APPROVED 6MM GROVE RATING MONG / FULLY GLAZED DOOR DOOR HANDLE, HINGES, LOCK, FLOOR SPRING 1000 900 12MM THK TOUGHNED GLASS GLASS FIXED ON PATCH FITTING S.S.HANDLE AS APPROVED S.S.HANDLE AS APPROVED DOOR ON FLOOR SPRING 12MM THK TOUGHNED GLASS SECTION JJ J J BOTTOM LOCK DOOR ON FLOOR SPRING FINISHED FLOOR LEVEL. FRONT ELEVATION SIDE ELEVATION 04 00 Height 750 000 000 000 1200 Quantity Description Sill Height No.Width Lintel Height Ground 00 01 06 00 01 02 01 00 1st.Fl. 00 02 00 00 00 01 02 01 02 00 00 00 00 01 01 02 00 02 00 00 01 4th.Fl. 04 01 04 00 00 00 00 01 00 00 00 00 00 00 00 00 Terrace. Fire Retardant With Vision Panel Door Location 04 12 12 08 01 06 02 01 05 Reception 000 1200 000 1200 000 1800 1050 000 1500 000 Fully Glass Door In Glazing 1050 Solid Flush Door With Granite Frame 000 1200 Staircase Principal&Account 02 01 00 0101 01 Fire Retardant With Vision Panel door 2450 750 830 2450 2450 2450 2450 2450 2450 2450 2450 2450 000 1330 01 01 Staircase 00 00 0000 00 2450 Fully Glass Door In Glazing Fully Glass Door In Glazing Flush Door With Vision Panel Fully Glass Door In
Fully
Door In
Solid
Door With
03
00 00
1700 2450 2450 2450 2450 2450 2450 2450 2450 2450 2450
750 670
1700
Plinth Entrance Lobby Lvl. + 00.450 Mts. Lvl. ± 00 Mts. Road Lvl. Lvl. -3.200 Mts. Basement Floor Lvl. + 3.350 Mts. First Floor Lvl. + 6.250 Mts. Second Floor Lvl. + 12.050 Mts. Third Floor Lvl. + 13.030 Mts. Fourth Floor Lvl. + 14.950 Mts. Terrace Floor Lvl. + 17.850 Mts. OH Tank Top Of Bottom Slab Level Top Level Lvl. + 19.250 Mts.
Glazing
Glass
Glazing
Flush
Granite Frame Base. 00
01 00
00 01 00 2nd.Fl.3rd.Fl. Class Room Class Room Toilet Area Class Room Reception H.Toilet 01010101010107 01 Staircase
Fire Retardant With Vision Panel door 2450
01010101010107 01 Staircase
Flush Door With Vision Panel 0000
FLOOR- REFUGE
FLOOR
FLOOR
93.60 TERRACE FLOOR 74.40
FLOOR 77.40 80.40
FLOOR 83.40 86.40 6TH FLOOR 53.40 7TH FLOOR 56.40 8TH FLOOR 59.40 62.40 LOWER GROUND FLOOR LVL 21.00 PART LOWER BASEMENT/ PART UPPER GROUND LVL 24.30 LVL 27.60 PART MIDDLE BASEMENT/ PART 1ST PODIUM LVL 30.90 PART UPPER BASEMENT/ PART 2ND PODIUM LVL 34.20 STILT FLOOR LEVEL LVL 17.70 BASEMENT 2 FLOOR LVL 14.40 BASEMENT 1 FLOOR TERMINATION LEVEL 5TH FLOOR 9TH FLOOR 11TH FLOOR- REFUGE 13TH FLOOR 15TH FLOOR 17TH FLOOR BEDROOM TOILET BEDROOM BEDROOM TOILET BEDROOM BEDROOM TOILET BEDROOM BEDROOM TOILET BEDROOM BEDROOM TOILET BEDROOM BEDROOM TOILET BEDROOM BEDROOM TOILET BEDROOM BEDROOM TOILET BEDROOM BEDROOM TOILET BEDROOM BEDROOM TOILET BEDROOM BEDROOM TOILET BEDROOM BEDROOM TOILET BEDROOM BEDROOM TOILET BEDROOM BEDROOM TOILET BEDROOM BEDROOM TOILET BEDROOM BEDROOM TOILET REFUGE BEDROOM TOILET REFUGE AMENITIES BEDROOM FILLING SERVICES BEDROOM METER ROOM 3.60 3.30 PANEL/FTTH ROOM 4.20 3.00 3.00 3.00 3.00 1.20 95.48 0.00 95.48 14.40 HEIGHT AMSL 59.40 3.00 3.00 3.00 3.00 3.00 3.00 3.00 3.00 3.00 3.00 3.00 3.00 3.00 3.30 3.30 3.30 1.88 6.08 SECTION THROUGH TOWER 11A (SKETCH FOR FACADE DESIGNER) TYPICAL SECTION FOR OD AND ELEVATION AND SECTION SKETCHES OUTDOOR UNIT 800(W) X 300(D) X 600(H) 600 100 0.85 0.10
1ST FLOOR 38.40 2ND FLOOR 41.40 3RD FLOOR 44.40 4TH
47.40 50.40 10TH
65.40 68.40 12TH
71.40 89.40
14TH
16TH

TERMINATION LEVEL 93.60

TERRACE 89.40

17TH FLOOR 86.40

16TH FLOOR 83.40

15TH FLOOR 80.40

14TH FLOOR 77.40

13TH FLOOR 74.40

12TH FLOOR 71.40

11TH FLOOR REFUGE 68.40

10TH FLOOR 65.40

9TH FLOOR 62.40

8TH FLOOR 59.40

7TH FLOOR 56.40

6TH FLOOR 53.40

5TH FLOOR 50.40

4TH FLOOR - REFUGE 47.40

3RD FLOOR 44.40

2ND FLOOR 41.40

1ST FLOOR 38.40

STILT FLOOR LOBBY LEVEL 35.10

STILT FLOOR 34.20

PODIUM P2 LOBBY LEVEL 31.50

AND ID UNITS LOCATION DETAILS SKETCHES FOR OD AND ID UNIT LOCATIONS ELEVATION FOR TOWER 11A (SKETCH FOR FACADE DESIGNER) IDU ODU 2850 INDOOR UNIT 300 100 600(H) Ø100 SLEEVE FOR REF. PIPING 150 TOC 750 300 550 BEAM LIVING ROOM 0.75 BED ROOM 0.30 0.75 0.20 1.20 0.75 0.30

HITEN SETHI ARCHITECTS STAGE - DESIGN DEVELOPMENT

SAI WORLD DREAM

THIS PROJECT WAS IN ITS DESIGN DEVELOPMENT STAGE FOR 5 RESIDENTIAL + COMMERCIAL TOWERS IN DOMBIVALI, MUMBAI. THE ELEVATION DRAWINGS ARE ONE OF MANY PROPOSED VARIATIONS DESIGNED BY ME IN CO ORDINATION WITH MY PROJECT ARCHITECT.

THIS PROJECT WAS IN IT’S DESIGN DEVELOPMENT STAGE FOR 5 RESIDENTIAL+ COMMERCIAL TOWERS IN DOMBIVALI, MUMBAI. THE ELEVATION DRAWINGS ARE ONE OF THE MANY PROPOSED VARIATIONS DESIGNED BY ME IN CO ORDINATION WITH A SENIOR ARCHITECT.

29TH
TERRACE FLOOR LIVING/ DINING 11'0''X18'6" 3.35X5.65 BED ROOM 10'0'' 12'0'' 3.05X3.65 BED ROOM 10'0'' 12'60'' 3.05 3.08 TOILET 8'0" X 5'0" 2.45X1.50 C.B. 0.75 M WIDE CHAJJA 1.50 M WIDE TERRACE 2.90 0.60 TOILET 5'0"X8'0" 1.5 X 2.45 LIVING/ DINING 11'0''X18'6" 3.35X5.65 BED ROOM 10'0'' 12'0'' 3.05X3.65 BED ROOM 10'0'' 12'60'' 3.05 3.08 TOILET 8'0" X 5'0" 2.45X1.50 2.26 X 0.60 C.B. 0.75 M WIDE CHAJJA 1.50 M WIDE TERRACE 2.90 0.60 TOILET 5'0"X8'0" 1.5 X 2.45
3150 3150 3150 3150 26TH FLOOR 27TH FLOOR 28TH FLOOR (Refuge)
FLOOR 3150
ELEVATION SAI WORLD DREAM OPTION 2 (27 ACRES) TOWER T1 ELEVATION SAI WORLD DREAM OPTION 2 (27 ACRES) Refer Separate drawing FOURTH (Garden FIFTH SIXTH TENTH 11TH 15TH 19TH 20TH 21ST 25TH 26TH 3900 3900 3900 4200 29TH Refer Separate drawing for podium elevation
PRODUCED BY AN AUTODESK STUDENT VERSION ELEVATION A ELEVATION B CLIENT’S
INITIAL SKETCH MODELS ELEVATIONAL FEATURES
TYPICAL EVEN FLOOR PLAN - T1
PRODUCED BY AN
DESIGN INSPIRATION
- INITIAL DEVELOPMENT
ELEVATION SAI WORLD DREAM OPTION 2 (27 ACRES) TOWER T1 ELEVATION SAI WORLD DREAM 3150 3150 3150 3150 3150 3150 3150 3150 3150 3150 3150 3150 3150 3150 3150 3150 3150 3150 3150 3150 3150 3900 3900 3900 4200 900 GROUND FLOOR GROUND LEVEL FIRST FLOOR PODIUM SECOND FLOOR PODIUM THIRD FLOOR PODIUM FIFTH FLOOR SIXTH FLOOR SEVENTH FLOOR EIGHTH FLOOR NINTH FLOOR TENTH FLOOR 11TH FLOOR 12TH FLOOR 13TH FLOOR 14TH FLOOR 15TH FLOOR 16TH FLOOR 17TH FLOOR 20TH FLOOR 21ST FLOOR 23RD FLOOR 27TH FLOOR 28TH FLOOR 1200 25TH FLOOR 26TH FLOOR 24TH FLOOR 3150 3150 3150 3150 96750 FOURTH FLOOR (Garden Level) (Refuge) (Refuge) (Refuge) (Refuge) (Refuge) 29TH FLOOR 3150 Refer Separate drawing for podium elevation Refer for DEVELOPED ELEVATION A DEVELOPED ELEVATION
DREAM OPTION 2 (27 ACRES) TOWER T1 3150 3150 3150 3150 3150 3150 3150 3150 3150 3150 3150 3150 3150 3150 3150 3150 3150 3150 3150 3150 3150 3900 3900 3900 4200 900 FOURTH FLOOR (Garden Level) FIFTH FLOOR SIXTH FLOOR SEVENTH FLOOR EIGHTH FLOOR NINTH FLOOR TENTH FLOOR 11TH FLOOR 12TH FLOOR 13TH FLOOR 14TH FLOOR 15TH FLOOR 16TH FLOOR 17TH FLOOR 20TH FLOOR 21ST FLOOR 23RD FLOOR 24TH FLOOR 25TH FLOOR 3150 3150 3150 26TH FLOOR 27TH FLOOR 1200 (Refuge) (Refuge) (Refuge) (Refuge) (Refuge) 3900 3900 3900 4200 900 GROUND FLOOR GROUND LEVEL FIRST FLOOR PODIUM THIRD FLOOR PODIUM SECOND FLOOR PODIUM 3150 28TH FLOOR 29TH FLOOR 3150 Refer Separate drawing for podium elevation ELEVATION B

INTERLOCKING STONES

THE AGE-OLD CRAFT OF STONEMASONRY IS AN ART, THAT FITS WELL EVEN IN THE MODERN INDUSTRY. THE SKILLS OF STONEMASONS HAVE PRODUCED MARVELOUS STRUCTURES SINCE THE ANCIENT TIMES, MOST OF THEM STANDING STILL EVEN TODAY.

THE STONE CRAFT OF DRY MASONRY INVOLVES PERFECT CUTTING AND FIXING, OF STONE PIECES TO BUILD WALL OR STRUCTURAL UNITS WITHOUT THE USE OF MORTAR. THE INCANS WERE PROFICIENT MASONS WHO CREATED COMPLEX CONFIGURATIONS AND INTERLOCKING TECHNIQUES BY PICKING AT INDIVIDUAL PIECES OF STONE, HAMMERING, AND CARVING THEM CAREFULLY INTO PRECISE ALIGNMENTS, TO BUILD THE SYSTEMS.

THIS STUDY FOCUSES ON THE CORE PRINCIPLES OF INTERLOCKING STONES IN DRY MASONRY, AND THE GEOMETRY OF THESE STONES, THAT ALLOW THEIR INTERLOCKING AND STABILITY.

THE FINAL OBJECTIVE OF THIS STUDY IS TO CREATE A DIGITAL LANGUAGE, BY APPLYING THESE PRINCIPLES OF INTERLOCKING STONES TO DESIGN LONG LASTING STRUCTURES WITH MINIMUM SKILLS AND MATERIALS.

Layer 1 Layer 2

Layer 3 FINAL

MOVEMENT AND LIMITATION

Limitation

Movement

Type A Type B

Every point within a given region is closer to the “seed” inside that region than it is to any other point outside that region. Each point along a region’s edge is equidistant from the two nearest seeds.

The voronoi 3D potrays similar movement and limitation rules as the Incan geometry rules.

Type C Type D

DESIGN EXPLORATION

DESIGN EXPLORATION

LOCATIONS
SUN
SUN
SUNRISE
W E E W E W
FOR
RISE AND
SET POINTS SUNSET - JANUARY
- JANUARY SUNSET SUNRISE
SOLAR AND WIND RESPONSE DEVELOPED FORM AND ORIENTATION
ORIENTATION 1 ORIENTATION 2 WIND PRESSURE ON STRUCTURE
SUNSET - JULY SUNRISE - JULY SUNSET - MARCH SUNRISE - MARCH SUNSET -SEPTEMBER SUNRISE -SEPTEMBER SUNSET - MAY SUNRISE - MAY SUNSET - NOVEMBER SUNRISE - NOVEMBER W E W W E W E W E E W E W E W E W E ORIENTATION INCAN PLUS WIND AFFECTIVE STONE LAYOUT INCAN STONE LAYOUT STONE LAYOUT AS PER WIND INTENSITY STONE LAYOUT AS PER WIND INTENSITY 15
3D LAYOUT - EXPOSED FINISH 3D LAYOUT - SMOOTH FINISH 2D LAYOUT TAXANOMY TAXANOMY - SPATIAL AND
INDIVIDUAL SPACES MAIN WALLS EXTERNAL WALLS WALKTHROUGH COLUMNS SUNRISE/SUNSET SPACES GROUP SESSIONS/CAMPFIRE SPACE ENTRANCE AND SYSTEM

THE PROGRAMME FOR THE PROJECT IS A FABRICATION SCHOOL AND FACTORY, WHERE KNOWLEDGE CONSTANTLY TRANSFERED THROUGH VISION AND INTERACTION AMONG DIFFERENT FUNCTIONS. NATURE OF THE PROGRAMME AND THEIR FUNCTIONS ARE DYNAMIC AND REQUIRE SPACE FOR AUGMENTATION, SERVED BY THE VARIOUS ABILITIES OF THE NEW BRICK........

THE AGE-OLD CRAFT OF STONEMASONRY IS AN ART, THAT FITS WELL EVEN IN THE MODERN INDUSTRY. DRY STONE MASONRY INVOLVES PRECISE CUTTING AND PLACEMENT OF STONE PIECES TO BUILD STRUCTURAL UNITS, WITHOUT THE USE OF ANY MORTAR. THE INCANS CREATED COMPLEX COFIGURATIONS AND INTERLOCKING TECHNIQUES BY PICKING AT INDIVIDUAL PIECES OF STONE, HAMMERING AND CARVING THEM CAREFULLY, INTO PRECISE GEOMETRICAL FORMS AND ALIGNMENTS, TO BUILD THEIR SYSTEMS THAT ARE EARTHQUAKE

RECENT DECADE HAS NOTED DRY STONE MASONRY AS A DYING CRAFT, THE KNOWLEDGE OF STONE MASONRY BEING TACIT HAS ONLY BEEN TRANSFERED THROUGH GENERATIONS IE FATHER TO SON AND SO ON. THE CRAFT MAJORLY BEING ABLE TO BE LEARNT THROUGH EXPERIENCE, IN ORDER TO RETAIN IT, THE LATEST POPULARITY OF DIY COULD BE A GREAT WAY TO EDUCATE FUTURE GENERATION , ALONG WITH

THE PROJECT LOOKS AT CONVENING THE TECHNIQUE OF DRY MASONRY INTO A MODIFIED CONTEMPORARY WAY, DEVELOPING COMPONENTS THAT CAN BE CONVENIENTLY MANUFACTURED, ASSEMBLED AND DISASSEMBLED, WITH ROOM FOR CONFIGURATIONS AND CUSTOMISATION. THESE COMPONENTS - TURNED BRICKS - HAVE THE FLEXIBILITY TO RANGE IN - SCALE, MATERIAL AND METHODS OF MANUFACTURING, CAN

BRICK DEVELOPMENT

this be expanding, downsizing, moving or even becoming a completely new structure. Through open source design, these components can be replicated across the globe – empowering more people with the knowledge and confidence to build their own structures and the adaptability to truly make them their own.

THE PROGRAMME FOR THE PROJECT IS A FABRICATION SCHOOL AND FACTORY, WHERE KNOWLEDGE IS CONSTANTLY TRANSFERED THROUGH VISION AND INTERACTION AMONG DIFFERENT FUNCTIONS. THE NATURE OF THE PROGRAMME AND THEIR FUNCTIONS ARE DYNAMIC AND REQUIRE SPACE FOR CONSTANT AUGMENTATION, SERVED BY THE VARIOUS ABILITIES OF THE NEW BRICK........

The Soma Cube is a 3x3x3 dissection puzzle, split into 7 unique pieces, made of 27 cubes. The object of the puzzle is to organize in each piece can’t exceed 4, with each piece being irregular, with a nook or turn.

INITIAL APPROACH MAKING | Making and Testing |

SOMA CUBE COMPONENTS

INITIAL APPROACH TESTING | Making and Testing |

The Soma Cube is a 3x3x3 dissection The object of the puzzle is to organize in each piece can’t exceed 4, with

PROTOTYPES FOR TESTING

A second system of mortise and tennon (Tabs and selected components to create a more stable and

BRICK - A - BILITY
FORM STACK MANIFESTO &
32
22

dissection puzzle, split into 7 unique pieces, made of 27 cubes. organize these pieces into a solid cube. The number of cubes with each piece being irregular, with a nook or turn.

Weight Weight Weight Weight

Stability Stability Fragility Fragility

Connections Connections Connections Connections

organize these pieces into a solid cube. The number of cubes and Blanks) was implemented onto the and independant interlocking system.

Based on the physical properties and the effect of the Tabs and Blanks on the components, a set of rubrics was created to define and rate the experience of the Tabs and Blanks on the components. The common factors being weight and connections, the tabs system were tested for their stability while the blanks system were tested for fragility

KNOWLEDGE IS FUNCTIONS. THE CONSTANT
NEW DIGITAL VERNACULARS | Project Title
BRICK FABRICATION

DESIGN APPROACH AND STRATEGIES

The site Grymsdyke Farm is located in Lacey Green, a quite village in Princes Risborough, which falls on the Chilterns Green Belt. The available locally in abundance. The village and the planning council give high priorities to the visual aesthetics (inclusive of views These parameters formulate my design approaches and strategies, allowing me to propose a structure sympathetic and sensitive Other important factors include means of Transfer of Knowledge in the programme; and to propose a more resolved and refined

GREEN BELT

VIEWS TO BUILD - RATIO

VISUAL FAMILIARTY

SITE VEGETATION

DESIGN STRATEGIES

INTERCONNECTION NATURE PASSIVE DESIGN STRATEGY INSIDE - OUTSIDE INTERACTION
EXHIBITION OF FUNCTION DESIGN MANIFESTO

The structures in the village are mostly 2 stories high with pitched or angled rooves, with Majority of the facades made of Clay bricks, stone and flint, views into the green stretches of surrounding land) and contextual familiarity of its residents, thus encouraging new evelopments to adopt the same. sensitive to the Village, its residents as well as the Green belt. refined design, learning from the existing.

HIERARCHY OF PRIVACY

KNOWLEDGE THROUGH OBSERVATION AND INTERACTION

INTERCONNECTION WITH NATURE

10 USER EXPERIENCE
EMBEDDING INTO EXISTING CONTEXT

-LOCATION OF THE PROGRMME

- UTILIZE VIEWS - COUNCIL PLANNING

- GREEN BELT STRATEGY - BUILD ON EXISITING BUILD AREA ( ALREADY PASSED BY PLANNING)

- MINIMIZE CUTTING EXISITING TREES ON SITE.

DESIGN DEVELOPMENT
N
VISUAL COMMUNICATION ACCROSS PROGRAMME ALLOW NATURAL LIGHT INTO ALL SPACES 126 PROJECT | Concept Development | SUN SHADING STRATEGIES SOUTH FACING OPENINGS - SUMMERS HAVE A HIGH ANGE ITH DIRECT LIGHT - WINTERS HAVE A LOW ANGLE AND DEEPER PENETRATION OF HARSH DIRECT LIGHT. - HIGHEST DISCOMFORTING GLARE. SHADING STRATEGIES- OVERHANGING EAVES, CLERESTORY WINDOWS AND LIGHT SHELVES REDUCES HEAT GAIN AND DICOMFORTING GLARE. IS LESS DIRECTIONAL WITH DEEPER PENETRATION OF DAY LIGHT. SHADING STRATEGIES AND SOLUTIONS LIGHT THROUGH OPENING TYPOLOGY STUDY FORM DEVELOPMENT DAYLIGHTING STRATEGY

- HIGHEST DISCOMFORTING GLARE.

ALLOW VIEWS FROM ALL SPACES LIGHT SHELVES CLERESTORIES SOUTH FACING OPENINGS - SUMMERS HAVE A HIGH ANGE ITH DIRECT LIGHT
- WINTERS HAVE A LOW ANGLE AND DEEPER PENETRATION OF HARSH DIRECT LIGHT.
LIGHT
LIGHT
LIGHT
LIGHT THROUGH RIBBED SKYLGIHT EFFECT OF LIGHT BY OVERHANGING EAVES LIGHT THROUGH CLERESTORIES LIGHT
OVER HANGING EAVES CLERESTORIES SKYLIGHTS - RIBBED NEW DIGITAL VERNACULARS | BRICK-A-BILITY | OSA DS2 129
SHELVES
THROUGH OPENING
THROUGH OPENING
THROUGH LIGHT SHELF
11000 2900 2100 150 1650 2900 7700 3700 1100 LIBRARY STUDIO INTERACTIVE STUDIO MAIN WORKSHOP PARAPET SEMI OPEN MEZANINE LEVEL MZANINE COMMUNITY SPACE DISPLAY SPACE 2 TERRACED COMMUNITY SPACE SECTION C SCALE - 1:200 SECTIONAL PERSPECTIVE B SECTIONAL ELEVATION (PERSPECTIVE) A N DESIGN PROPOSAL -WORKSHOPS / STUDIOS/ LIBRARY -LIVING -DISPLAY SPACES -WORKSHOPS / STUDIOS/ LIBRARY -LIVING -DISPLAY SPACES EXISTING LAYOUT
1600 400 LEVEL +206.6 M LEVEL +210.6 M LEVEL +214.6 M LEVEL +217.6 M 4000 4000 3000 LIBRARY STUDIO GENERAL MACHINERY ENCLOSED MZANINE LEVEL A B C GROUND FLOOR - KEY PLAN LIBRARY LEVEL 2 ACCOMMODATIONS LEVELS1&2 KITCHENLEVEL1 STUDIOS LEVEL 1 WORKSHOPS AND DISPLAY AREAS LEVEL 0 PROPOSED LAYOUT LIFT 0.00 6000.00 7000.00 7000.00 6000.00 10500.00 6000.00 9500.00 6000.00 8300.00 3800.00 4600.00 16250.00 9000.00 16000.00 9000.00 4800.00 10200.00 8600.00 10700.00 9000.00 8500.00 5000.00 6000.00 22500.00 20100.00 11300.00 2000.00 3200.00 1800.00 5500.00 13100.00 LEVEL+206.0 1325.00 UP ROBOTIC ARM CNC + VERTICAL PANEL SAW GENERAL MACHINERY KILN +WET WORKSHOP LASER + 3D PRINT MAIN WORKSHOP DOUBLEHEIGHT BLEHEIGHT DOUBLEHEIGHT TOILETSAND GING WASHING SPACE WORKSHOP 2 WORKSHOP 1 IDIA DOUBLE STAIRSTOOFFICE FROMWITHIN WORKSHOP EXHIBITION SPACE DISPLAY SPACE EGRESS ENTRANCE LOBBY EGRESS LOBBY EGRESS AREA MM AREA 49000 SQ AREA MM AREA 49800 AREA 17480 AREA S 26400MM LEVEL+206.6 LE LEVEL+206.6 LEVEL+206.6 +206.6 LEVEL+206.6 LEVEL+206.6 LEVEL+206.6 +206.6 +206.6 LEVEL+206.6 LEVEL+206.6 LEVEL+206.6 LEVEL+206.6 LEVEL PLASTERWORKS LIFT LOUVRES LEVE 206.
ADAPTABILITY TIMELINE AND CONSTRUCTION 1 WEEK RATE OF CHANGE
SPACE
SPACE
1 MONTH 6 MONTHS
EXHIBITION
EVENT
WORKSHOP INTERIORS
PUTTING UP A SHOW FOR SPECIFIC REASONS OR EVENTS. ADDITION OF DISPLAY ITEMS ADDITION OF FABRICATION EXPERIMENTS AND RESEARCH.
A BRICKS INTERNALS / DISPLAY ELEMENTS / FURNITURE 300 MM 200 MM MATERIAL SWATCH -
PUTTING UP A SHOW FOR SPECIFIC REASONS OR EVENTS. FLEXIBLE FOR CHANGING FUNCTIONS SPACE WHEN HIRED, MIGHT NEED SPECIFIC ARRANGEMENTS AS PER THE TENANTS REQUIREMENTS AND PROCESSES. TYPE
LOGIC AND ITERATIONS
LIVING EXPANSION
WORKSHOP EXPANSION 1 YEAR 5 YEARS EXPANSION OF WORKSHOP PROGRAMME FOR UPGRADATION OF TECHNOLOGY OR GROWING COMMUNITY. UPGRADATION OF TECHNOLOGY AND MACHINERY. LONG STUDENT PROGRAMME SPECIFIC ALTERATION. EXPANSION OF COMMUNITY TYPE B BRICKS PARTITION WALLS TYPE C BRICKS EXTENSIONS / ADDITIONS 450 MM 600 MM 300 MM 400 MM 13
FACTORY INTERIORS

BRICK SELECTION AND APPLICATION

THE BRICK TYPOLOGIES RANGE IN SCALE, MATERIALITY AND FUNCTIONALITY, AND CAN BE SPECIFIC TO THE DESIGN, FUNCTION AND TIMESPAN OF THE BUILDING ELEMENT OR PRODUCT.

THE 3 MAIN CATAGORIES BEING PERMANENT, SEMI PERMANENT AND TEMPORARY STRUCTURES, ALONG WITH THE SIZE AND MATERIALITY OF THE BRICKS, THE FUNCTION AND NATURE OF THE STRUCTURE AS WELL AS THE SPACE ARE VITAL TO DETERMINE THE SELECTION OF THE BRICKS.

THE BRICK ITERATION

POROUS SYSTEM

-USED MAINLY FOR SEMI TEMPARORY ELEMENTS LIKE THE PARAPET WALLS AND DISPLAY TABLES. THE BRICKS USED ARE SMALLER IN SCALE AND ARE MADE OF LIGHTER MATRIALS LIKE CAST STONE.

SOLID + POROUS SYSTEM

- USED AS PARTITIONS FOR SPACES THAT ARE SEMI PRIVATE AND CAN BE SEEN INTO. THE BRICKS USED CONSIST OF TWO SCALESBIGGER AND HEAVIER FOR THE SOLID SYSTEM; SMALLER AND LIGHTER FOR THE POROUS SYSTEM. AND CAN VARY IN MATERIAL AND HEAVINESS.

SOLID SYSTEM

-USED FOR PERMANENT BUILDING ELEMENTS SUCH AS THE EXTERNAL WALLS AND CERTAIN PARTITIONS THAT HOUSE DISPLAYS, OR FLINT AND OPENINGS IN CASE OF EXTERNAL WALLS. THE BRICKS USED ARE USUALLY OF THE BIGGER SCALE AND MATERIALS USED ARE HEAVIER IN COMPARISION SUCH AS CLAY

ENVIRONMENT - MATERIAL SUSTAINABILITY

THE MATERIALS CONSIDERED FOR THE SCHOOL ARE SYMPATHETICALLY CHOSEN DEPENDING ON THEIR LOCAL AVAILABILITY, MANUFACTURING PROCESS , ENVIRONMENTAL IMPACT AND RESUSABILITY.

THE MATERIAL COMBINATIONS ARE A RESULT OF PROTOTYPE TESTING, UNDERSTANDING THE DIFFERENT TOLERENCES AND MANUFACTURING STYLES. MATERIAL RE USABLE FLEXIBLE AND LOCALLY AVAILABLE

AGGREGATE MIXED WITH FLINT

CLAY NEW BRICKS

AGGREGRATE

REUSING FOR PRODUCTS IN THE SCHOOL

PRECAST

CORK

AGGREGATE FOR LANDSCAPE AGGREGATE MIXED WITH FLINT TIMBER

AGGREGATE MIXED WITH FLINT

AGGREGATE FOR LANDSCAPE

GLASS NEW BRICKS OTHER PRODUCTS
R
C
M O
E U S A B L E
N C
U L D
FLINT
CORK BRICK MATERIALITY
TIMBER
STONE CAST CLAY CLAY + FLINT CLAY + CORK + TIMBER + STONE CAST TIMBER + STONE CAST + GLASS GLASS TIMBER
TECHNICAL DETAILS
CAST STONE CORK CLAY BRICK VAPOUR BARRIER CAST STONE CORK AIR GAP CLAY BRICK VAPOUR BARRIER INSIDE OUTSIDE

CORK - INSULATION PROPERTIES

Thermal conductivity/ λ (lambda) W / m . K = 0.038

Thermal resistance at 100mm K m2/W = 2.5

Specific Heat Capacity J / (kg K)= 2100

Density kg / m3 = 160

Thermal diffusivity m2/s = n/a

Embodied energy MJ/kg = n/a

Vapour permeable: Yes

HARMONY OF HIERARCHY - SKYSCRAPER

THE DESIGN PROJECT INTRODUCES THE CHALLENGES AND ISSUES ASSOCIATED WITH THE ARCHITECTURE AND URBANISATION, PARTICULARLY THE LIVING AND WORKING ENVIRONMENTS OF HIGH RISE TOWER. IT ALSO ADDRESSES THE ECONOMIC, ENVIRONMENTAL, POLITICAL, REGULATORY, SOCIO - CULTURAL AND TECHNICAL CONTENTS OF HIGH RISE DESIGNS IN A CITY. THE PROJECT ANTICIPATES TO DEVELOP ARCHITECTURAL THEORIES AND STRATEGIES THAT RESPOND TO THE CONNECTING CONTEXTUAL AND ENVIRONMENTAL CONSTRAINTS ON THE DESIGN.

THE AIM OF THE PROJECT IS TO- THINK ABOUT THE URBAN CONTEXT IN WHICH ARCHITECTS OPERATE. - CONSIDER AND UNDERSTAND THE GOVERNING AND LEGISLATIVE CONTROLS THAT ARCHITECTS SHOULD WORK WITHIN.

- TO CREATE A DESIGN PROPOSAL, WITHING THE ABOVE PARAMETERS, COMPRISING OF A CONCEPTUAL, SCHEMATIC AND TECHNICAL SET OF REPRESENTATIONS FOR THE SITE, WHICH ALSO EXPLORES THE 3 DIMENSIONAL POTENTIALS OF THE SITE AND RESOLVES THE URBAN AND ARCHITETCURAL ASPECTS, AS WELL AS THE FINANCIAL REALITIES.

THE PROJECT EXPECTS US TO PROVIDE THE FOLLOWING -

- PROVIDE APPROXIMATELY 200 - 250 RESIDENCES ON THE SITE.

- DESIGN WITHNG THE PRESCRIBED ENVELOPE FOR THE SITE, RESPECTING THE SETBACKS AND HEIGHT LIMITS.

- EXPLORE THE OPPORTUNITIES FOR MIXED USE DEVELOPMENT AND LOOK FOR MUTUAL BENEFITS.

-RELATIONSHIPS BETWEEN THE RESIDENTIAL AND COMMERCIAL FUNCTIONS BOTH AT THE GROUND AND HIGHER LEVEL.

- ENSURE ALL THE BEDROOMS, LIVING ROOMS AND KITCHENS COMPLY WITH THE GUIDELINES OF THE BUIIDNG RESEARCH GROUP AND THE LONDON HOUSING STRATEGY (MAYOR OF LONDON 2017).

- MAXIMISE VIEWS AND SUNLIGHT TO APARTMENTS ON THE SITE AS WELL AS NEIGHBOURING SITES.

- CREATE VIBRANT AND MEANINGFUL URBAN SPACES AT THE GROUND LEVEL WHICH MAKE THE MOST OF THE STRATEGIC POSITION OF THE SITE AND PROVIDE OPPORTUNITIES FOR PASSING ACROSS THE SITE.

- PROVIDE SUSTAINABLE SOCIAL AND CULTURAL ACTIVITIES AT THE PODIUM LEVEL THAT MIGHT SUPPORT AND COMPLEMENT THE RESIDENCES. THESE SHOULD BE IN KEEPING WITH THE COMMERCIAL AND RETAIL CHARACTER OF THE GROUND PLAN OF THE CITY.

- DEVELOP A STRATEGY FOR THE SKIN OF THE BUILDING (ADVANCED DESIGN SKILLS ) AND AN UNDERSTANDING OF THE MATERIALILTY AND DETAILING OF HIGH RISE TOWERS.

HIGH RISE - SITE RESPONSE AND PROPOSAL HIGH RISE - SITE RESPONSE AND PROPOSAL
FORM DEVELOPMENT, STRUCTURE AND PROGRAMME

MOST OF THE HEAVY WINDS TOWARDS THE TOWER FROM THE SOUTH WEST.

THE SHARP SHAPE AND ITS TAPERING TOP ALLOWS A FREE MOVEMENT OF WINDS THROUGH IT.

THE MIXED USE HIGH RISE CONSISTS OF RESIDENCES, OFFICES, RESTAURANTS, FOOD SHOPS, LIBRARY AND SOCIAL SPACES, AND OTHER SIMILAR PUBLIC FACILITIES.

DESIGN DEVELOPMENT Studio Apartment/ Co living SOCIAL SPACE UTILITY AND STORAGE ATRIUM SLIT AREA 6000 x 7000 7000 x 9000 3500 x 4000 6000 x 8000 2 Bedroom 1 Bedroom Shared _ Co Living Kitchen Living/ Study Bedroom Minimalist and Su cient Apartment Designs 1 bedroom and studio apartments Vertical Dysfunctional UTILITY AND STORAGE ATRIUM SPACES FOR VERTICAL INTERACTION 3500 x 4000 8000 1 Bedroom Shared _ Co Living LEVEL 30 Residential Floor Plate. bedroom and studio apartments Residential Floor Plate. 2 bedrooms and 1 3 bedroom apartments LEVEL 5 SOCIAL SPACE UTILITY AND STORAGE Avoid Cramping Breathable space Vertical Communication Privacy Dysfunctional Spaces 31400.8 6327.2 12343.5 2083.8 10549.2 ROOM AREA ROOM AREA D2 A1 D1 RA RB
10023.8 9907.2 10001.6 9512.3 8848.1 41577.5 49504.2 9416.2 6905.0 6877.5 6905.0 6905.0 6905.0 5000.0 9409.2 9952.5 9952.5 6905.0 6905.0 6905.0 6905.0 6905.0 5000.0 9952.5 9952.5 9952.5 9952.5 10500.4 9472 8748 6216 4825 8787 + 25200.00 + 25200.00 + 25200.00 + 25200.00 + 25200.00 + 25200.00 + 25200.00 + 25200.00 + 25200.00 + 25200.00 + 25200.00 + 25200.00 + 25200.00 + 25200.00 +25200.00 +25200.00 + 21900.00 + 21900.00 UTILITY, STORAGE AND SOCIAL SPACE AREA - 140 MM2 ROOM 9 AREA - 65 mm2 SOCIAL AREA ROOM 10 AREA - 60 mm2 ROOM 11 AREA - 60 mm2 ROOM 12 AREA - 60 mm2 ROOM 13 AREA - 70 MM2 ROOM 1 AREA -70 MM2 ROOM 2 AREA - 70 MM2 ROOM 3 AREA - 70 MM2 ROOM 4 AREA - 70 MM2 ROOM 5 AREA - 70 MM2 ROOM 6 AREA - 70 MM2 ROOM 7 AREA - 77 MM2 ROOM 9 AREA - 80 MM2 WINTER GARDEN CORRIDOR CORRIDOR 1800MMWIDE A2 A3 A4 B1 C7 C2 C1 D1 D1 D1 D1 D1 D1 D1 D1 D1 D1 D1 D1 D1 D2 D2 D2 D2 D2 D2 D2 D2 D2 D2 D2 D2 D2 D2 D3 D3 D3 D3 D3 D3 D3 D3 D3 D3 D3 D3 D3 D3 D3 D3 D3 D3 D3 D3 D4 D2 D2 B3 R1 R2 LOOK DOWN LEVEL 5 LOOK DOWN LEVEL 5 5950

STRUCTURE ANALYSIS - SUPER AND SUB STRUCTURE

SUPER STRUCTURE

A HYBRID STRUCTURE COMPRISING OF A CENTRAL CORE AND A STEEL EXO SKELETON.

A COMBINATION OF THE RAFT AND PILE FOUNDATION FOR THE TOWER AND RAFT FOUNDATION FOR THE PODIUM.

SUB STRUCTURE RAFT + RETAINING WALL RAFT FOR CORE PILES RETAINING WALL

CORE + EXTERNAL RAFT + PILE

LOADS

EXOSKELETON CENTRAL CORE RETAINING WALL COLUMNS PILES

SOFT + STIFFNESS AND VERTICAL LOADS SOFT + STIFFNESS AND WIND SHEAR LOADS VERTICAL, WIND AND HORIZONTAL STEEL +

POLICY Q14 DEVELOPMENT IN GARDENS AND ON BACKLAND SITES

(C) Development i rear gardens has the potential to erode the amenity value and habitat of rear gardens generally. For these reasons new buildings will only be supported where:

(iii) it is set back atleast 1m from all site boundaries (to allow for access for the maintenance of boundary enclosures, the maintenance of the garden structure and to provide gaps between buildings)

10.59 The use of front gardens as the only private amenity space for new development will be resisted. This is because the open semipublic nature of front gardens is incompatible with the privacy and quitude required by residents. High boundaries, retrofitted screening and other privacy measures, garden sheds, permanent play equipment and similar structures will not generally be supported in front garden locations.

SITE OFFSETS FROM THE BOUNDARY LINE ON ALL SIDES

THE STRUCTURE IS SURROUNDED BY 3 M OF PAVED SPACE FOR FIRE TRUCK ACCESS

POLICY T7 PARKING

(a) Development should: (ii) be car-free, including permit-free and permit-capped schemes, particularly in areas where alternative modes of transport are available and where public transport accessibility is high- in such areas, the council will require clear evidence and justification for any proposed parking, and parking provision should not discriminate against any occupiers of the development.

(b) In all new developments where on-site parking is provided, development should ensure that disabled-accessible parking is prioritised for those who need it throughout the lifetime of the development. Disabledaccessible parking bays should be a proportion of the overall parking provision, (as calculated using London plan/Housing SPG guidance) and not addedseparately.

CAR PARK NO 28 RAMPS DISABLED CAR PARK NO 6

CORE FOR THE TOWER

PARKING LOCATION

- LOWER GROUND FLOOR PARKING DETAILS

- GENERAL PARKING 5000 x 2700

- DISABLED PARKING 5000 x 2700 WITH A GAP OF 1200 BETWEEN EACH SLOT

THE NUMBER OF PARKINGS ARE PROVIDED AS - 1 PARKING FOR EVERY 10 UNITS FOR GENERAL - 1 PARKING FOR EVERY 50 UNITS FOR DISABLED

*number of parkings as per brief*

UK DEVELOPMENT AND PLANNING CONTROL
LAMBETH LOCAL PLAN 2015

POLICY Q6

URBAN DESIGN: PUBLIC REALM

The coucil supports development (new build and conversions) that provide:

(i) the most effective use of the site (in the context of the proposed use) and does not prejudice the potential development of, or access to, adjoining plots.

(iii) iproved legibility, permeability and convinient access via direct routes for all users (but avoiding alleways and back lanes).

(v) new or enhanced open space (including gaps between buildings) and landscaping/ trees.

(x) pedestrian and cycle-priority environments which re not dominated by vehicles whether moving or parked.

THE DESIGN OF THE PODIUM AND LANDSCAPING ALLOW EASY ACCESS THROUGH AND FRO THE SITE.

THE GROUND FLOOR OF THE PODIUM IS A SEMI-OPEN STILT AREA, WHICH IS NATURALLY LIT THROUGH THE CENTRAL COURTYARD.

THE SITE IS MAJORLY PEDESTRIANISED WITH LIMITED ACCESS ONLY TO RESIDENT PARKING INTO THE BASEMENT WITH A PATH LOCATED AT THE SOUTH WET CORNER OF THE SITE AND A SERVICE ACCESS FOR LOADING AND UNLOADING AT THE SOUTH WEST END AS WELL.

A PAVED SPACE IS ALSO PROVIDED THROUGHOUT THE SITE SURROUNDING THE TOWER, ALLOWING FIRE TRUCKS TO ACCESS IN CASE OF AN EMERGENCY.

Lobby for O ces and restaurants in the tower

Lobby for residents

Drop o Ramp -1 Waste room for garbage

Small Water Treatment Plant Approx 500 p - 4 tanks.

Stilt Social area

Access to the shops and cafes in the lower ground oors.

Truck movement when accessing the service areas

LAMBETH LOCAL PLAN 2015
PLANNING PORTAL - BUILDING CONTROL (ENGLAND) 5153 4110 9362 1010 1010 1000 1000 1810 1000 800 735 3781 4183 2000 2124 5934 1619 3434 2000 2900 3000 1329 2892 1572 3731 9386 1428 2989 4874 9995 + 25200.00 + 21900.00 + 25200.00 UTILITY AND STORAGE + SOCIAL SPACE WINTER GARDEN CORRIDOR 1800 MM WIDE ROOM 12 LAUNDRY STORAGE SPACE WALK IN WARDROBE BATHROOM KITCHEN LIVING AREA SOCIAL SOCIAL BEDROOM A4 5153 4110 9362 1010 1010 1000 1000 1810 1000 800 735 3781 4183 2000 2124 5934 1619 3434 2000 2900 3000 1329 2892 1572 3731 9386 1428 2989 4874 9995 + 25200.00 + 21900.00 + 25200.00 UTILITY AND STORAGE + SOCIAL SPACE WINTER GARDEN CORRIDOR 1800 MM WIDE ROOM 12 LAUNDRY STORAGE SPACE WALK IN WARDROBE BATHROOM KITCHEN LIVING AREA SOCIAL SOCIAL BEDROOM A4

PROS

- LIGHT WEIGHT

- LESS MATERIAL, LESS EXPENSIVE - EASY TO FIX

2D SURFACE

CONS

- CANNOT CONTROL WIND INTENSITY - COVERS LESSER VOLUME OF AIR PASSING THROUH THE FILTER

COUNT - 500 SEED - 200

COUNT - 350 SEED - 200

COUNT - 350 SEED - 600

PROS

- LESS MATERIAL AND MORE DENSE

- DENSE MESH CAN CONTROL WIND INTENSITY

- EASY TO FIX

MORE MATERIAL LESS THICKNESS

MORE MATERIAL MORE THICKNESS

3D SURFACE

- LESS WEIGHT DUE TO LESS MATERIAL ( HOLLOW WITHIN ) - LESS EXPENSIVE - COVERS MORE VOLUME OF AIR PASSING THROUH THE FILTER

LESS MATERIAL LESS THICKNESS

LESS MATERIAL MORE THICKNESS

FACADE DEVELOPMENT

RAILING

STEEL BARS TO CONNECT THE BEAM TO THE STEEL FRAME

STEEL FRAME TO HOLD THE MESH

SLAB + BEAM
MESH
PROVIDE NATURAL AND OPEN INTERACTIVE SPACES. THE PROPOSAL FOLLOWS SUSTAINABILITY AND FUNCIONALITY.

GREEN SALUS - OXFORD UNIVERSITY EARTH SCIENCE BUILDING AND MASTERPLAN

THE OBJECTIVES OF THE UNIVERSITY OF OXFORD SCIENCE AREA MASTERPLAN ARE: -PROVIDE OXFORD’S SCIENTIC COMMUNITY WITH HIGH QUALITY. -OPTIMISE CAPACITY BY RETAINING THE BEST BUILDINGS, WHILST REDEVELOPING OTHER EXISTING BUILDINGS

-CREATE SAFE, ACCESSIBLE, PERMEABLE ROUTES OVER THE AREA -CREATE ACCESSIBLE LINKAGES WITH OTHER ACADEMIC AREAS AND THE UNIVERSITY PARKS

-CONTROL VEHICLES AND IMPROVE OTHER TRANSPORTATION METHODS -ENHANCE THE AREA’S AESTHETIC ENVIRONMENT AND PUBLIC REALM -CELEBRATE THE HERITAGE OF THE SCIENCE AREA AND ITS HISTORICAL ROLE AS THE HOME OF SCIENCE IN OXFORD -MAXIMISE FUTURE SUSTAINABILITY -PROVIDE A FRAMEWORK FOR FUTURE DEVELOPMENT

THE AIM OF MY PROPOSAL IS TO BRING ABOUT SOME OPENNESS IN THE AREA AND PROVIDE NATURAL AND OPEN INTERACTIVE SPACES. THE PROPOSAL FOLLOWS SUSTAINABILITY AND FUNCTIONALITY.

FUNCIONALITY.
SCIENCE AREA MASTERPLAN - PROPOSAL

LIST

A

KEEP DEMOLISH

LIST OF DEMOLISHED STRUCTURES 1 - THOM BUILDING (ENGINEERING) - THOM BUILDING (ENGINEERING SCIENCE) - HUME ROTHERY BUILDING (MATERIALS) 2 - NEW BIOCHEMISTRY BUILDING (BIOCHEMISTRY) 3 - LE GROS PARK (PHYSIOLOGY, ANATOMY AND GENETICS) 4 - CENTRAL CHEMISTRY LABORATORY 5 - DEPARTMENT OF EARTH SCIENCES

OF KEPT STRUCTURES

D

- INORGANIC CHEMISTRY - ATMOSPHERIC PHYSICS - RADCLIFF SCIENCE LIBRARY - UNIVERSITY MUSEUM OF E

- BURDON SANDERSON CARDIAC - SHERRINGTON BUILDING - HENRY WELLCOME BUILDING F

- RODNEY PORTNER BUILDING G - MEDICAL SCIENCES TEACHING

- ENGINEERING AND TECHNOLOGY BUILDING - INFORMATION ENGINEERING BUILDING - JENKING BUILDING (ENGINEERING) B - COMPUTING LABORATORY -DENIS WILKINSON (PHYSICS) - THEORETICAL PHYSICS - PARKS ROAD (MATEERIAL) -ENGINEERING SCIENCE C - CLARENDON LABORATORY (PHYSICS) - MARTIN WOOD LECTURE THEATRE (PHYSICS) 6 - SCHOOL OF GEOGRAPHY 7 - RHODES TRUST 8 - DEPARTMENT OF PLANT SCIENCES 9 - SIR WILLIAM DUNN SCHOOL

D
G
3 4
A B C
E F
1
5 6 7 8
SCIENCE AREA MASTERPLAN - PHASING

LIBRARY NATURAL HISTORY

CARDIAC SCIENCE CENTRE (PHYSIOLOGY, ANATOMY AND GENETICS) BUILDING OF GENE FUNCTION BUILDING (BIOCHEMISTRY)

TEACHING CENTRE

AND ENVIRONMENT

COMPLETE ADDITION OF ROAD FIRST AND SHIFT LECTURES TO THE MAIN SCIENCE AREA

CREATE NEW TEMPORARY STRUCTURE TO ACCOMMODATE LECTURES MEANWHILE AND MOVE REMAINING LECTURES TO KEBLE COLLEGE.

FINAL PHASE - CONTRUTION OF COURTYARD AND THE CYCLE PARK AS IT TAKES MORE TIME AND SPACE.

REMAINING STRUCTURES WOULD BE COMPLETED BY THEN FOR LECTURES TO RESUME NORMALLY.

SCIENCES SCHOOL OF PATHOLOGY

9

THE OBJECTIVE OF THE PROJECT IS TO : -DEVELOP A COHERENT SITE STRATEGY WHICH IMPROVES THE PUBLIC REALM, CREATES LEGIBLE ENTRY POINTS AND TIES IN TO THE WIDER MASTERPLAN -DESIGN A ‘NEW’ BUILDING WHICH RELATES TO ITS SURROUNDING CONTEXT AND DO YOU RETAIN ANY OF THE EXISTING STRUCTURE DESIGN A COHERENT, COMPLIMENTARY SERIES OF SPACES, WHICH MEET THE REQUIREMENTS OF THE CLIENT AND THE BRIEF.

THE CONCEPT OF MY PROPOSAL IS SUSTAINABILITY AND WELL BEING. CONSIDERING THE FACT THAT THE USERS OF THE BUILDING ARE UNIVERSITY STUDENTS MOST OF THEM BEING PHD AND MASTERS , WHO SPEND LONG HOURS IN THE BUILDING TO STUDY, AND ALSO RESEARCHERS AND SCIENTISTS WHO SPEND DAYS AND NIGHTS IN THE LABORATORIES , THE DESIGN STRATEGY REVOLVED AROUND THE WELL-BEING OF THESE USERS . THE MAIN AIM OF THE DESIGN IS TO PROVIDE A POSITIVE IMPACT ON THE STUDENTS AND RESEARCHERS AND BOOST THEIR FOCUS, PSYCHOLOGY AND MENTAL HEALTH. ( IS VERY IMPORTANT AS STUDENT LIFE CAN BE VERY STRESSFUL AT TIMES AND THIS EFFECTS THEIR MENTAL AND PHYSICAL HEALTH )

THE OTHER AIMS OF THE DESIGN ARE TO REDUCE THE NEGATIVE ENVIRONMENTAL IMPACTS. HENCE THE BUILDING FOLLOWS CERTAIN SUSTAINABLE DESIGN STRATEGIES. THE NEW BUILDING DESIGN ALSO STRIVES TO RESPOND TO THE SURROUNDING CONTEXT AND BLEND IN WITH THE OVERALL VISUAL OF OXFORD AND ITS ARCHITECTURE STYLE.

SITE PLAN
EARTH SCIENCE BUILDING - PROGRAMME CONCEPT
PLANNING AND DEVELOPMENT LOWER GROUND FLOOR GROUND FLOOR SCALE - 1:250 LEVEL -3000 MM SCALE - 1:250 LEVEL 0.00 MM ENTRANCE BIOCHEMISTRY ROCK CUTTING FIRST FARADAY NEW EQUIPMENT SEMINAR/MEETING ATRIUM ATRIUM P O S T D O C T O R A L RECEPTION LOBBY HOD ACADMIC ADMIN CAFE ADMIN SUPPORT TECH SUPPORT EMIRITI STORAGE WORKSHOP RESEARCH CENTRAL COMPUTERS ENTRANCE N SERVICE CORE / TOILET BLOCK ACCESS INTERNAL STAIRCASE BLOCKS ATRIUM SPACE INTERNAL ACCESS SERVICE CORE/ TOILET BLOCK STAIRCASES CONNECTION OF BOTH THE BLOCKS
P N P L A N S FIRST FLOOR SECOND FLOOR N SCALE - 1:250 LEVEL +3000 / +4000 MM SCALE - 1:250 LEVEL +6000/ +8000 MM HIGH PRESSURE CULTURING S E M HIGH TEMPERATURE MICROPALEO PALEOMAG SURF CHEM MACRO FAUNA OPTICAL ATRIUM ATRIUM METAL FREE LABS COMPUTERS MIN RESEARCH G R A D U A T I O N A C A D E M I C S CIRCULATION EXTERNAL PEDESTRIAN CIRCULATION HORIZONTAL CONNECTOR VERTICAL INTERACTIONS INTERNAL CIRCULATION STAIRCASES ATRIUM SPACE VERTICAL INTERACTION EXTERNAL,PEDESTRIAN CIRCULATION C O N C E P T

EARTH SCIENCE BUILDING - SECTIONS

EARTH SCIENCE BUILDING - SECTIONS

LONG SECTIONAL ELEVATION RENDER LONG SECTION LONG SECTIONAL ELEVATION RENDER LONG SECTION

Roof 17000

Fourth Floor 14000

Third Floor B 11000

Third Floor 10000

Second Floor B 8000 First Floor B 4000

Second Floor 6000

First Floor A 3000

Ground Floor 0

Lower Ground Floor -3000

SCIENCE
EARTH
EARTH
BUILDING - EXTERNAL RENDERS
SCIENCE BUILDING - EXTERNAL RENDERS

THE BENCH AND SCREEN WAS MADE OF RECYCLED BOTTLES USEFUL ITEMS CAN BE MADE OUT OF DISCARDED

THE SCREEN IS DESIGNED TO BE FILLED WITH PLASTIC BOTTLES ARE USED IN AN AFTERNOON IN A SMALL AREA ENJOY THE BENCH OF UPCYCLED TIMBER, AND PAUSE ON ENVIRONMENT - ALSO INVITING THEM TO INTERACT

THIS PROJECT IS A PART OF THE LONDON FESTIVAL OF AND INTERIOR STUDENTS, A WELL AS THE STAFF OF UNIVERSITY BY TEXTURE STUDIO ARCHITECTURE WITH CONTRIBUTIONS STUDIO, THE CANADA-UK FOUNDATION

LOCATION - POTTERS DATE - 2ND

PAUSE - LONDON ARCHITECTURE

BOTTLES AND TIMBER, TO SHOW HOW DECORATIVE AND DISCARDED MATERIALS - AND EXTEND THEIR LIFE. PLASTIC BOTTLES - IT IS A MEASURING DEVICE OF HOW MANY AREA IN LONDON. MEMBERS OF THE PUBLIC ARE INVITED TO PAUSE TO THINK ABOUT HOW WE ALL CAN REDUCE THE IMPACT INTERACT WITH ONE ANOTHER BREAKING BOUNDARIES..

ARCHITECTURE. IT HAS BEEN MADE BY THE ARCHITECTURE UNIVERSITY OF HERTFORDSHIRE. IT HAS BEEN GENERATED CONTRIBUTIONS FROM STUDIO SCHUBERT, MURPHY GROUP, CAUKIN FOUNDATION AND THE UNIVERSITY OF PLYMOUTH.

POTTERS FIELD PARK, LONDON 2ND JUNE, 2019

LONDON FESTIVAL OF ARCHITECTURE 2019

FOR MORE DETAILED WORK PLEASE VISIT - https://sonalveerabhadra.myportfolio.com/

THANK YOU !!

Turn static files into dynamic content formats.

Create a flipbook
Issuu converts static files into: digital portfolios, online yearbooks, online catalogs, digital photo albums and more. Sign up and create your flipbook.