Revista Geotecnica - SMIG - 265

Page 1

ÓRGANO OFICIAL DE LA SOCIEDAD MEXICANA DE INGENIERÍA GEOTÉCNICA, A. C. WWW.SMIG.ORG.MX

ANÁLISIS DE RIESGOS EN LA CONSTRUCCIÓN DE UNA LUMBRERA CON EL PROCEDIMIENTO DE FLOTACIÓN

EXCAVACIÓN PROFUNDA EN LA ZONA URBANA DE MONTERREY

CENTRO URBANO PRESIDENTE ALEMÁN, 75 AÑOS DESPUÉS

ISSN: 2594-1542
SEPTIEMBRENOVIEMBRE 2022 265

Mesa Directiva 2021-2022

Presidente

Roberto Avelar Cajiga

Vicepresidente

Ricardo Enrique Ortiz Hermosillo

Secretario

Raúl Fernando Verduzco Murillo

Tesorero

Francisco Alonso Flores López

Vocales

Miguel Castillo Cruz

Miguel Ángel Mánica Malcom

Daniel Martínez Oviedo

Blanca Esther Meza Vega

Gerente

Brenda Aguilar Silis

Delegaciones regionales

Michoacán

Occidente

Puebla

Querétaro

Tabasco

Veracruz

Representaciones

Chiapas

Ciudad Juárez

Irapuato

Mérida

Monterrey Tijuana

Métodos numéricos; invitación a la reflexión

Hoy en día, los métodos numéricos (como el de elementos finitos o el de diferencias finitas) aparecen en muchas áreas de la ingeniería, y la geotecnia no es la excepción. Estos nos permiten superar gran parte de las limitaciones de las soluciones analíticas (u otras metodologías tradicionales), al hacer posible la incorporación a nuestros análisis de geometrías más parecidas a la realidad, intrincados programas de construcción, comportamientos complejos de los materiales, variaciones espaciales y temporales de las propiedades, entre muchos otros aspectos. Los análisis numéricos se utilizan ya de forma rutinaria en la mayoría de los despachos de consultoría, y gradualmente comienzan a figurar en los reglamentos y códigos de diseño. Junto con el incesante progreso de la industria de microprocesadores, los métodos numéricos nos permiten aproximar, cada vez con mayor precisión, el comportamiento de nuestras estructuras y los geomateriales con los que estas interactúan. La transición al uso generalizado de herramientas numéricas no ocurrió de forma repentina. Por ejemplo, han pasado ya más de 60 años desde las primeras aplicaciones del método de elementos finitos a problemas de ingeniería. Sin embargo, en cierta medida nos ha tomado por sorpresa. Con excesiva frecuencia, los métodos numéricos se aplican de forma deficiente, o incluso incorrecta, al análisis de problemas en la práctica, lo cual reduce considerablemente nuestra certidumbre respecto al comportamiento esperado de las obras. En demasiadas ocasiones se utilizan programas de cálculo comerciales sin suficiente conocimiento de las bases teóricas, tanto de la formulación matemática del método como de los modelos de comportamiento adoptados. Asimismo, no somos lo suficientemente rigurosos con la inspección de los resultados. Estos tienen que obedecer al sentido común, y deberíamos tener una cierta sensibilidad respecto al orden de magnitud de estos con el fin de identificar situaciones inusuales que requieran mayor atención.

La solución a los problemas planteados podría ser bastante simple: disminuir la relevancia de los resultados de análisis numéricos en el diseño, en favor de soluciones tradicionales más robustas y conservadoras. Sin embargo, si hay algo que nos ha enseñado la historia es que el progreso y el desarrollo tecnológico no se detienen para nadie, y aquellos individuos o naciones renuentes a acoger dichos cambios están destinados al rezago. Por lo tanto, la única alternativa que tenemos es redoblar esfuerzos, en todos los ámbitos de nuestra disciplina (docencia, práctica profesional e investigación), para hacer de los métodos numéricos una herramienta habitual, con mayor certidumbre, y que nos ayude a generar diseños más eficientes y amigables con el medio ambiente.

Geotecnia, año 12, núm. 265, septiembre - noviembre 2022, es una publicación trimestral editada por la Sociedad Mexicana de Ingeniería Geotécnica, A.C. Valle de Bravo 19, colonia Vergel de Coyoacán, alcaldía Tlalpan, CP 14340, teléfono (55) 5677 3730 · www.smig.org.mx. Editor responsable: Carlos Roberto Torres Álvarez. Reserva de Derechos al Uso Exclusivo núm. 04-2017-060819470900-102, otorgada por el Instituto Nacional del Derecho de Autor. ISSN: en trámite. Responsable de la última actualización de este número: Ediciones de la Sierra Madre, S.A. de C.V., 8 de Septiembre 42-2, colonia Daniel Garza, alcaldía Miguel Hidalgo, CP 11830, Ciudad de México. Fecha de última modificación: 31 de agosto de 2022.

Los artículos firmados son responsabilidad de los autores y no reflejan necesariamente la opinión de la SMIG. Los textos publicados, no así los materiales gráficos, pueden reproducirse total o parcialmente siempre y cuando se cite la revista Geotecnia como fuente. Para todo asunto relacionado con la revista Geotecnia, dirigirse a geotecnia@heliosmx.org.

❘ Núm. 265 Septiembre - Noviembre 2022
Síguenos en @smiggeotecnia Sociedad Mexicana de Ingeniería Geotécnica inggeotec
Ir a TexTo CorrIdo

CONVOCATORIA

Además de comentarios y sugerencias de sus lectores sobre los contenidos, Geotecnia está abierta a las colaboraciones de los profesionales vinculados a la especialidad. De igual forma se invita a presentar artículos que permitan inaugurar una nueva sección en la que se haga prospectiva o se aborden casos insólitos en el ejercicio de la especialidad. Quien desee proponer trabajos debe comunicarse a través de geotecnia@heliosmx.org para ser informado de los requisitos para recibir materiales. Los textos serán puestos a consideración del Consejo Editorial para su eventual publicación.

Contenido

3 Conversando con… Práctica y análisis, fundamentales para tener ingenieros geotecnistas completos

Héctor Manuel Valverde Landeros

7 CALENDARIO

8 Semblanza

Pasión y acción por la geología y la ingeniería

RESEÑAS

38 Libros

38 Tesis

13 Anecdotario

Con Tamez y otros grandes, un transporte al cielo Federico Mooser

14 La geotecnia en la historia Centro Urbano Presidente Alemán, 75 años después

Walter I. Paniagua

18

40 Reunión de los consejos de Honor y Consultivo

40 Día Nacional del Minero y Segundo Congreso de Ciencias de la Tierra

41 Bienvenidos, nuevos socios

42 “Modelado hidroquímico-mecánico multiescala del intemperismo en rocas carbonatadas para evaluar la resiliencia estructural en áreas costeras”

42 Curso-taller “Laboratorio de Mecánica de Suelos”

43 Se reúne de manera presencial el Consejo Editorial de Geotecnia

Dirección general

Roberto Avelar Cajiga

Dirección ejecutiva

José Francisco González Valencia

Consejo Editorial

Juan de Dios Alemán Velásquez

Gabriel Yves Armand Auvinet Guichard

Jorge E. Castilla Camacho

Francisco Alonso Flores López

Moisés Juárez Camarena

Germán López Rincón

Raúl López Roldán

Héctor Moreno Alfaro

Rodrigo Murillo Fernández

Ricardo Enrique Ortiz Hermosillo

Alexandra Ossa López

Walter Iván Paniagua Zavala

Natalia del Pilar Parra Piedrahita

Margarita Puebla Cadena

Luis Bernardo Rodríguez González

Juan Jacobo Schmitter M. del C.

Guillermo Springall Cáram

Carlos Roberto Torres Álvarez

Ángel Trejo Moedano

Raúl Fernando Verduzco Murillo

Comercialización

Brenda Aguilar Silis

Tema de portada / Artículo técnico Análisis de riesgos en la construcción de una lumbrera con el procedimiento de flotación

Mario A. Aguilar Téllez y Enrique Farjeat Páramo

DELEGACIONES REGIONALES

44 Conferencia “Cimentaciones en suelos expansivos”

44 Nueva delegación de la SMIG en Baja California

CAPÍTULOS ESTUDIANTILES

29 Artículo técnico Excavación profunda en la zona urbana de Monterrey

Ubaldo A. Fuentes M. y Juan J. Schmitter M.

36

Ámbito académico

Promoción de la educación continua de la Sociedad Internacional de Mecánica de Suelos e Ingeniería Geotécnica

Walter I. Paniagua

45 Posgrado Benemérita Universidad Autónoma de Puebla

46 Caracterización de espectros de carga en la red mexicana de carreteras 48 CULTURA PORTADA:

Dirección ejecutiva

Daniel N. Moser da Silva

Dirección editorial

Alicia Martínez Bravo

Coordinación de contenidos

Teresa Martínez Bravo

Diseño

Diego Meza Segura

Dirección comercial

Daniel N. Moser da Silva

Comercialización

Laura Torres Cobos

Victoria García Frade Martínez

Dirección operativa

Alicia Martínez Bravo

de Suelos. Profesor de Comportamiento de los Suelos y de Mecánica de Suelos Teórica de 1978 a 1988 en la FI-UNAM. Trabajó en la Superintendencia General de Geotecnia de Pemex, donde desarrolló diversos proyectos para la industria petrolera. Es director general de Ingenieros Especialistas en Cimentaciones, S.C., y de Cimentec HV, S.A. de C.V. Coordinador del Comité de Peritos en Geotecnia del CICM de 2010 a 2021.

Práctica y análisis, fundamentales para tener ingenieros geotecnistas completos

Ha habido una evolución enorme en nuestro ámbito; el uso de la computadora ha revolucionado la forma de calcular. La tecnología es un instrumento muy valioso en este proceso de evolución, pero no se debe depender de ella a ciegas. Se ha perdido la sensibilidad sobre el comportamiento de un fenómeno geotécnico: ahora se ingresa información a una caja negra y se recibe un resultado sin el análisis ingenieril, sin aplicarse el criterio de un ingeniero que analice y verifique lo que las aplicaciones tecnológicas ofrecen. Debe complementarse la parte técnica con la práctica para tener un ingeniero geotécnico completo.

Cuando estaba en la preparatoria, Héctor Valverde Landeros en su momento tuvo la duda respecto a qué le convenía más estudiar como carrera profesional. Nos cuenta que “en el entorno familiar influyó un tío que era constructor, me inspiró mucho para hacer la carrera de Ingeniería. Ya cursándola en la Facultad de Ingeniería de la UNAM, fue allí que me di cuenta de mi particular interés por los temas de geotecnia, gracias a Ricardo Fernández del Olmo y a Jorge Castilla Camacho, y especialmente a Gabriel Moreno Pecero cuando tomé clases con él”.

Por ese entonces se dio la influencia de su tío Enrique Landeros. No dejó de contar con el respaldo de su familia directa, aunque su padre,

En la década de 1980: a la izquierda, Héctor Valverde Arciniega; al centro, Héctor Manuel Valverde Landeros; a la derecha, Rafael Morales y Monroy.

❘ Núm. 265 Septiembre - Noviembre 2022 3 29 36 38 40 44 48 45 Ir a TexTo CorrIdo 1 2 3 7 8 13 18 14
Realización HELIOS comunicación +52 (55) 29 76 12 22
LUMBRERA EN EL TÚNEL CHURUBUSCOXOCHIACA FOTO: MARIO ARTURO AGUILAR TÉLLEZ CONVERSANDO CON...
Héctor Manuel Valverde Landeros Ingeniero civil con maestría en Mecánica
@

Héctor Valverde Arciniega, no estaba vinculado a la ingeniería; era empleado de Ferrocarriles Nacionales.

“A pesar de ello –apunta Héctor Valverde–, había mucho impulso por parte de mi familia para que yo estudiara en la universidad, y respetaban mis decisiones”.

Siendo originario de Querétaro, Héctor Valverde se mudó con su familia a la Ciudad de México, con motivo del trabajo de su padre. Ese cambio le permitió ingresar a la UNAM.

Sobre la preferencia por la especialidad de geotecnia, nuestro interlocutor abunda: “Las clases con el profesor Gabriel Moreno Pecero fueron determinantes: fue el mejor impulsor. Gabriel Moreno Pecero motivaba a indagar, a explorar, a conocer. Él tenía una forma bondadosa de acercarse al alumno, como amigo. Cuando debí elegir a mi sinodal para hacer mi tesis, se lo propuse y aceptó”.

Relata: “Cuando terminé la carrera, el ingeniero Francisco Zamora Millán me invitó a dar clases en la Facultad de Ingeniería. Él era, a su estilo, como Gabriel Moreno Pecero, muy cercano a los alumnos; era un excelente profesor.

Con frecuencia nos invitaba a su casa a confraternizar. Platicábamos de varios temas, siempre relacionados con la geotecnia, y esa experiencia reafirmó mi interés en la especialidad.

”Durante el tiempo que estábamos en la Facultad de Ingeniería se hacían visitas a obras; esto lo organizaban las áreas de geotecnia y de construcción”.

Estaba seguro de que tenía que hacer una maestría, y al darle el ingeniero Zamora la oportunidad de dar clases, pudo tener un ingreso económico para realizar simultáneamente la maestría. Le pedimos a nuestro entrevistado que abundara en su experiencia con el profesor Zamora Millán.

“Con don Paco tuvimos muy buena relación. Él fue muy querido por todos sus alumnos, era un maestro ejemplar, amigo de cada uno de nosotros. Nos apoyaba, nos daba consejos; tuve la oportunidad de tener mucho contacto con él”. Le preguntamos respecto a la relación con sus compañeros de estudio, si hubo alguna en particular que trascendiera la etapa de estudiantes. “Desde que coincidimos en varias materias en el cuarto semestre –relata–, nos encontramos Alberto Menache Varela y yo. Tuvimos tan buena relación que decidimos coincidir en las siguientes materias, hasta terminar la carrera. Pude conocer a su familia, pues nos poníamos a

En aquel entonces nos dedicábamos a calcular, por ejemplo, un talud y había varios métodos manuales para calcular los factores de seguridad; sin embargo, el uso de la computadora ha revolucionado la forma de calcular, aunque algunos jóvenes ingenieros han perdido la sensibilidad sobre el comportamiento de un fenómeno geotécnico: ahora se ingresa información a una caja negra y se recibe un resultado sin el análisis ingenieril.

estudiar incluso los fines de semana. Realmente Alberto era muy estudioso y fue una influencia importante para mí”.

Hubo otro compañero con quien hizo buena relación: Rigoberto Rivera Constantino, que ha sido profesor de toda la vida. “En realidad no recuerdo a muchos compañeros de generación que se dediquen a la geotecnia; fundamentalmente Rigoberto y Alberto –este último, desgraciadamente, se nos fue muy joven”.

Quisimos conocer su opinión sobre la evolución de la geotecnia en el tiempo en que se ha ocupado de ella. Héctor Valverde respondió: “Ha cambiado. Cuando yo estudié, después del año 1973, había materias que no se impartían; por ejemplo, se tocaba poco el tema sísmico; a raíz de los sismos, sobre todo después de 1985, el interés por la dinámica de suelos se ha incrementado de manera muy importante.

”Recuerdo que en aquel entonces nos dedicábamos a calcular, por ejemplo, un talud y había varios métodos manuales para calcular los factores de seguridad; sin embargo, el uso de la computadora ha revolucionado la forma de calcular, aunque algunos jóvenes ingenieros han perdido la sensibilidad sobre el comportamiento de un fenómeno geotécnico: ahora se ingresa información a una caja negra y se recibe un resultado sin el análisis ingenieril”.

Nuestro interlocutor no desprecia las nuevas tecnologías, aunque advierte que puede haber riesgos si se depende de ellas sin reflexión, sin aplicar criterios desde la perspectiva humana. Le pedimos a Héctor Valverde que nos hable de uno o más hitos, algunos momentos claves de cambio en el lapso desde que empezó a involucrarse en la geotecnia hasta el día de hoy.

“Todo ha cambiado muchísimo: muchas novedades han surgido, entre ellas la caracterización de los suelos para lograr una mayor precisión respecto a las características de los materiales en sitio, así como las técnicas de construcción, por señalar algunos más.

”Obviamente, la tecnología es un instrumento muy valioso en este proceso de evolución, pero no se debe depender de ella a ciegas, sino aplicarse el criterio de un ingeniero que analice y verifique lo que las aplicaciones tecnológicas ofrecen, antes de dar dichos resultados por buenos”.

Héctor Valverde ha tenido particular experiencia con la certificación de peritos en geotecnia. “En el Comité de Peritos requeríamos que el ingeniero que se certificara como perito tuviera fundamentalmente la práctica profesional. Desde 2010 hasta principios de 2021 estuve coordinando el Comité de Peritos en Geotecnia en el Colegio de Ingenieros Civiles de México. En aquel entonces, 2010, teníamos una lista de alrededor de 25 peritos, y en 11 años logramos triplicar el número, pero no fue sencillo. Lo que hicimos fue invitar a ingenieros de trayectoria reconocida para que fueran parte del grupo de peritos; sin embargo, muchos de los ingenieros nos decían: ‘¿Para qué?, ¿para tener un nombramiento más?’. Ante estas inquietudes, con-

Siendo yo profesor, intentaba que el joven sintiera la ingeniería, que no quisiera sentirse solamente el técnico; trataba de que entendiera el fenómeno y que modelara el comportamiento de alguna estructura o del suelo; era común que el estudiante quisiera solo aplicar fórmulas, pero considero necesario que un alumno conozca de hipótesis, y es necesario hacer un desglose: ¿por qué se llega a esta expresión?, ¿cuáles son las consideraciones que se deben tomar?, ¿cuáles son las limitaciones y las ventajas que se tienen?

tactamos al doctor Renato Berrón Ruiz, titular del Instituto para la Seguridad de las Construcciones en el gobierno de la CDMX, con objeto de que se contemple la figura de ingeniero corresponsable en seguridad geotécnica; según me indicó, se considerará al geotécnico en el nuevo Reglamento de Construcciones para la Ciudad de México”.

Le consultamos a Valverde si la certificación de perito en geotecnia se entrega directamente a ingenieros reconocidos por su experiencia, conocimientos y trayectoria, y los demás debían completar un curso o examen.

“En el comité de peritos del CICM se realizaban las invitaciones por medio de convocatorias; los candidatos se ponían a consideración del comité, y si alguno de ellos tenía los méritos por su trayectoria, se le otorgaba directamente la certificación. De no ser así, se indicaba a los candidatos que presentaran un examen, a criterio del comité; en casos de duda, se les solicitaba que presentaran en forma oral un trabajo que ellos consideraran”.

Ya nos contaba nuestro entrevistado que terminando sus estudios lo invitaron a dar clases, así que quisimos que nos resumiera su desarrollo profesional desde ese momento hasta la actualidad, y relata: “Estuve dando clases casi 11 años en la Facultad de Ingeniería. Simultáneamente, me invitaron a trabajar en Petróleos Mexicanos que, desde luego, fue una escuela para mí: hacíamos por igual la geotecnia de un edificio que plantas industriales del sector, lo cual me dio oportunidad de conocer el medio: supervisión en costa, pilotes para plataformas, condición geofísica para ductos. Fue una experiencia importante durante siete años. Luego formé una empresa, que continúa hasta la actualidad”.

Sobre su experiencia docente, le pedimos que abundara respecto a la evolución del proceso de enseñanza-aprendizaje desde su época de estudiante hasta ahora, en su calidad de profesor.

“Siendo yo profesor, intentaba que el joven sintiera la ingeniería, que no quisiera sentirse solamente el técnico; trataba de que entendiera el fenómeno y que modelara el comportamiento de alguna estructura o del suelo; era común que el estudiante quisiera solo aplicar fórmulas, pero considero necesario que un alumno conozca de hipótesis, y es necesario hacer un desglose: ¿por qué se llega a esta expresión?, ¿cuáles son las consideraciones que se deben tomar?, ¿cuáles son las limitaciones y las ven-

❘ Núm. 265 Septiembre - Noviembre 2022 4 5 29 36 38 40 44 48 45 1 2 3 7 8 13 18 14
Visita al socavón que se creó en el Paso Exprés de Cuernavaca, Morelos, con objeto de hacer un dictamen.
CONVERSANDO CON... Práctica y análisis, fundamentales para tener ingenieros geotecnistas completos
Supervisión de un proceso constructivo de una excavación.

CONVERSANDO CON... Práctica y análisis, fundamentales para tener ingenieros geotecnistas completos

tajas que se tienen? Les hablaba a los alumnos de obras en las que yo estaba trabajando y les describía los problemas a los que nos enfrentábamos y la manera en que los resolvíamos. Buscaba involucrarlos de forma tal que, además de las clases teóricas, la experiencia profesional fuera importante. Creo que también la facultad cambió en ese aspecto. Cuando yo era estudiante había muchas visitas a obra: varias dependencias del gobierno pagaban para que pudiéramos ir de manera gratuita a visitar la obra. Sin embargo, por los cambios políticos e ideológicos que hubo en el gobierno federal, y el uso distinto de los gastos correspondientes a las dependencias, se impidió que se hicieran visitas como antes”.

Siguió su participación en Pemex. Le pedimos a Héctor Valverde que ahondara sobre la experiencia que él destacó en la empresa del Estado. “Cuando estuve en Petróleos Mexicanos, mi jefe, el ingeniero Eduardo Soto Yáñez, me indicó que ocupara la jefatura del Laboratorio de Mecánica de Suelos durante medio año; el laboratorio tenía como 50 personas, y yo tenía en ese momento 25 años de edad. Desde el primer día traté de hacer más eficiente al personal, hablé mucho con la gente; sin embargo, había serias resistencias al cambio. Creo que el problema fundamental eran los vicios del sindicato que había en el sitio, y sí, cambiaron algunas cosas, pero no me fue posible modificar todo lo que yo quería durante esos seis meses. Con toda la fuerza que tenía el sindicato, resultó muy difícil hacer los cambios que yo quería”.

A sus 25 años tenía muchas inquietudes, especialmente de frente a la oportunidad de tomar decisiones. “Siempre quería aprender algo más –nos cuenta–; mi jefe, el ingeniero Soto, sabiendo de mis inquietudes, me dio la oportunidad de conocer los aspectos geotécnicos de la industria petrolera: visitaba sistemas que se usaban poco en aquellas épocas, nuevos para mí, como el de compactación dinámica. Cuando invitaban al ingeniero Soto y él no podía asistir, me solicitaban visitas a obras, y para mí era un placer ir a lugares y conocer más. Pemex fue una escuela muy importante en lo profesional; el estar en obra sumó mucho para complementar mi conocimiento. Así pues, estuve en la docencia, en el gobierno y en el sector privado, en el que continúo desde 1986”. Desde esa época se dedicó a la consultoría, pero después de 2004 creó una empresa especializada en ingeniería de construcción de

El ingeniero Soto, sabiendo de mis inquietudes, me dio la oportunidad de conocer los aspectos geotécnicos de la industria petrolera: visitaba sistemas que se usaban poco en aquellas épocas, nuevos para mí, como el de compactación dinámica. Cuando invitaban al ingeniero Soto y él no podía asistir, me solicitaban visitas a obras, y para mí era un placer ir a lugares y conocer más. Pemex fue una escuela muy importante en lo profesional; el estar en obra sumó mucho para complementar mi conocimiento.

cimentaciones. Ha sido un desafío competir –tanto en México como en otros países– con empresas extranjeras que vienen en condiciones de privilegio, en ocasiones por beneficios que les dan sus propios gobiernos. Quisimos saber qué experiencia ha tenido con respecto a esto. Se habla, por ejemplo, de las empresas coreanas, que traían armadas las estructuras en barcos.

“Tuve la oportunidad de trabajar con una empresa coreana; ellos nos invitaron a realizar la geotecnia para la reconfiguración de la refinería en Ciudad Madero. Trataban de hacer prácticamente todo; traían un grupo completo que instalaron ahí mismo, en la refinería. Trajeron hasta a su cocinero. Fue muy difícil el trato con ellos, para empezar, por el idioma, y los ingenieros consultores mexicanos no pudimos competir en términos equitativos. Yo creo que las empresas que estén en México deben contratar a ingenieros y empresas mexicanos”.

Héctor Valverde nos ofrece una reflexión final sobre el estado actual de la geotecnia en México. “Creo que vamos bien, que la Sociedad Mexicana de Ingeniería Geotécnica ha crecido mucho, con cursos, con tener al día a socios y colegas. Considero que lo que aportaría en esta mejora es que todos los ingenieros que se dedican a esto complementen la parte práctica con la parte analítica. De esta manera podremos tener un ingeniero geotécnico completo.”

Entrevista de Daniel N. Moser

Apreciamos su opinión e información sobre el tema de este artículo. Escríbanos a geotecnia@heliosmx.org

Septiembre Simposio México a través de los sismos Ciudad de México www.smig.org.mx

19-20

20-23

Septiembre

11th International Conference on Stress Wave Theory and Design and Testing Methods for Deep Foundation

Rotterdam, Países Bajos sw2022.org

6-7 Octubre II Seminario Reparación y Restauración de Taludes y II Seminario Carreteras de Montaña San José, Costa Rica www.geotecniacr.com/seminario/index.html

16-19

Octubre Latin American Rock Mechanics Symposium Asunción, Paraguay larms2022.com

20-21

Octubre Simposio Internacional de Suelos no Saturados En línea www.smig.org.mx

Noviembre XXXI Reunión Nacional de Ingeniería Geotécnica y XXII Reunión Nacional de Profesores de Ingeniería Geotécnica Guadalajara, México www.smig.org.mx

16-19

❘ Núm. 265 Septiembre - Noviembre 2022 6 7 29 36 38 40 44 48 45 1 2 3 7 8 13 18 14
Miembros de la Mesa Directiva de la Sociedad Mexicana de Mecánica de Suelos que presidió en el periodo 2003-2004, hoy Sociedad Mexicana de Ingeniería Geotécnica. De pie: Eugenio Ramírez R., Alejandrina Guerrero S., Gabriel Dimas J. y Gerardo Silva G. P. Sentados: Luis Chávez R., Walter I. Paniagua Z., Héctor Valverde L. y Alberto Cuevas R.
2022
CALENDARIO @

Pasión y acción por la geología y la ingeniería

Federico Mooser abandonó mansamente su cuerpo una madrugada de octubre de 2021, a los casi 98 años de edad, pero su legado profesional, su intensa personalidad, siguen presentes entre quienes tuvimos el placer y el honor de gozar de su amistad, de sus visitas inesperadas, sus llamadas en horarios insólitos, su risa estruendosa, su conversación informada, culta y entretenida, luego de la cual uno siempre se quedaba con un conocimiento nuevo.

De México a Suiza, de allí al Congo Belga, luego a Nueva York para, finalmente, retornar a México. Su breve paso por Pemex, la rica experiencia junto a reconocidos ingenieros civiles, el Drenaje Profundo de la Ciudad de México, el sismo de 1960 en Chile, sus largos años en la CFE, la experiencia con la energía nuclear, la amenaza del Popocatépetl, el agua del subsuelo del Valle de México… Federico Mooser conoció la geología del Valle de México como la palma de su mano, al igual que la de gran parte del territorio nacional. A sus casi 98 años se calzaba sus botas y su casco, echaba mano de los planos y plumas que eran parte de su indumentaria y, cuando resultaba necesario, cargaba una pala y un pico.

Participó en su tiempo en casi todas las obras de infraestructura de todos los tamaños que se construyeron en el Valle de México –los monumentales túneles del Sistema del Drenaje Profundo y las líneas del metro son algunos ejemplos–, pero también en el resto del país: la ubicación de Laguna Verde fue elegida por él para construir allí la central nuclear.

A lo largo de su trayectoria interactuó con destacados personajes que han construido el México moderno. Fue ingeniero geólogo y también un intelectual; culto, muy ameno, divertido y didáctico conversador con quien podía uno pasarse horas… por cierto, también fue un aplicado horticultor en los jardines de su casa.

Sus padres se conocieron en México. Su papá vino de Suiza como bacteriólogo y su mamá de Inglaterra, pasando

Caricatura publicada en una de las entrevistas que se le hicieron a Federico. Le encantó y fue exhibida en la fiesta sorpresa con que su hija Genny lo homenajeó a sus 95 años, con la asistencia de infinidad de amigos y colaboradores.

por Canadá, como enfermera. Federico Mooser nació y vivió en México hasta los 12 años. En ese tiempo a su padre le ofrecieron ser profesor en Zúrich y se mudaron a esa ciudad; hasta los 27 años estuvo en Suiza.

Estudió Geología de Ingeniería Civil en Zúrich. Antes de regresar a México, primero fue a África y estuvo buscando oro, diamantes y estaño, bajo las órdenes de geólogos rusos que eran la élite de veteranos de la revolución rusa. Poco o nada de ingeniería practicó allí: se introducían en la selva y cada geólogo estaba separado del otro por unos 10 kilómetros… así recorrían la selva virgen.

Allá estuvo dos años. Después regresó a Zúrich, estuvo poco tiempo y decidió irse a Nueva York. Estando en esa ciudad le ofrecieron ser geólogo de exploración de petróleo en Riad. Era junio y hacía un calor tremendo en Nueva York, así que la idea de ir al desierto, después de que se había acostumbrado a la selva, no le gustaba mucho; decidió entonces que en agosto o septiembre regresaría a su país natal.

“SOY VULCANÓLOGO”

Llegó a México e ingresó a trabajar en Pemex, donde estuvo dos años, pero no estaba muy a gusto y se retiró. En 1954 viajó de Tampico a la Ciudad de México; en ese tiempo se preparaba en el Instituto de Geología de la UNAM el Congreso Geológico Internacional, que se realizaría durante 1956, e ingresó a ese instituto porque necesitaban un vulcanólogo, por más que Federico les dijo que no era vulcanólogo, sino ingeniero geólogo. “Bueno –le contestaron–, si quiere chamba tiene que ser vulcanólogo”. Con el humor que lo caracterizaba, contestó: “Muy bien, soy vulcanólogo”, y así comenzó a estudiar rocas volcánicas. A raíz del gran sismo de 1960 en Chile, país al que asistió para investigar dicho fenómeno con Enrique Tamez y Nabor Carrillo, ya no se desligó de la ingeniería civil. Desde entonces siempre lo requerían cuando había geología ligada a la ingeniería civil. Así fue que comenzó a ver edificios, perforaciones en el suelo de la Ciudad de México, cimentaciones y túneles.

“APRENDÍ CON ESTOS TIPOS DE PRIMERA”

En ese tiempo ocurrió que lo llamaron al Departamento Central (hoy gobierno de la Ciudad de México) para ser geólogo. El regente de entonces era Ernesto Uruchurtu. En su equipo de trabajo participaban destacados ingenieros, Fernando Hiriart y Raúl Ochoa, con quienes rápidamente Mooser se identificó y trabó una relación profesional y amistosa. Desde el viaje a Chile también se vinculó con Nabor Carrillo, y recurrentemente con Raúl Marsal y Enrique Tamez, los tres discípulos de Karl von Terzaghi.

“Común a todos ellos –decía Federico– era la muy elevada inteligencia”. Consideraba a Nabor Carrillo increíblemente talentoso y diversificado; lo definía como un ingeniero excelente, “muy original y artístico, cantaba, coqueteaba con las mujeres exitosamente, contaba chistes increíbles”; para

Mooser, “el hombre era fuera de serie, podía estar una noche entera divirtiendo a toda la gente”.

Mooser siempre reconoció lo mucho que había aprendido de tantos ingenieros civiles; “aprendí con estos tipos de primera”, decía, y se acostumbró a pensar en cimentaciones y en ingeniería geológica. Regresó a México a sus funciones en el Departamento Central y, a pedido del titular del Instituto de Geofísica, siguió como investigador de la universidad, siendo su principal aporte lo que aprendía de su experiencia en las obras.

Al poco tiempo dejó el Departamento Central, pues Fernando Hiriart lo invitó a la Comisión Federal de Electricidad. A los tres meses lo nombraron jefe de geólogos.

Esto sucedió entre 1957 y 1960. Tan ocupado en la CFE y como consultor del Departamento Central, Federico no consideró honesto seguir en la UNAM, a la que apenas tenía oportunidad de asistir, y presentó su renuncia. Su vinculación con los temas del agua comenzó cuando en 1954, en el Instituto de Geología de la UNAM, le encargaron hacer el mapa geológico del Valle de México: un trabajo que nunca se detuvo, y que él, permanentemente, lo actualizaba y ampliaba. Un día de 1956, estando en el Instituto de Geología, Nabor Carrillo le dijo: “¡Corre con Hiriart, necesita un geólogo que sepa algo de agua en el Valle de México!” Mooser para entonces sabía algo, porque ya había hecho sus primeras exploraciones con Raúl Ochoa en la cuenca.

EL “DIPLOMÁTICO”

Por su carácter de hombre franco, directo, de decir sin filtro lo que pensaba, Federico fue calificado por Nabor Carrillo como “el diplomático”, con ironía, y temía que Federico dijera algo conflictivo. Enrique Tamez –contó más de una vez Mooser– le insistía muy a menudo con que “a nadie le digas ‘pendejo’, mucho menos se lo compruebes, te ganas un enemigo; mejor explícale el error y cómo resolverlo”. En 2006 le tocó estar al frente del equipo de geólogos que realizaron los estudios previos a la construcción del

❘ Núm. 265 Septiembre - Noviembre 2022 8 9 29 36 38 40 44 48 45 1 2 3 7 8 13 18 14
SEMBLANZA Ir a TexTo CorrIdo
Las visitas a campo, una de las tareas preferidas de Federico Mooser.

SEMBLANZA Pasión y acción por la geología y la ingeniería

Túnel Emisor Poniente (TEP) que construyó Raúl Ochoa. Ese fue el primer gran túnel en el que Mooser participó intensamente. En esa época –recordaba– “éramos todavía bastante novatos en tecnología de túneles, pero avanzamos sin máquinas perforadoras; todo se hacía a base de dinamita y excavación con pico, pala y retroexcavadora”.

Federico describió el trabajo en esa época como muy duro. Enrique Tamez era el director técnico de la obra del TEP. Aprendieron a excavar túneles en distintos tipos de formación volcánica, en nubes ardientes, en aglomerados, en río, en depósitos de ríos… fue una gran experiencia. En la construcción del TEP, Mooser se formó igual que muchos ingenieros mexicanos que luego habrían de participar en otras grandes obras de infraestructura subterránea.

Con muchos de los más destacados ingenieros, Federico consolidó una relación profesional fructífera, y también una amistad, principalmente con Raúl Ochoa, quien dirigía la obra, y con Enrique Tamez, que era el ingeniero especialista en suelos de ICA. Mooser se formó con ellos. Solía decir que “un ingeniero sirve por su experiencia; una cosa es lo que se aprende en la escuela y otra cosa es lo que se aprende en la práctica, cuando está ahí abajo en el agua, en el lodo y viendo cómo tienen que avanzar”.

LAGUNA VERDE

En la CFE, Federico Mooser trabajó muy de cerca con Raúl Marsal en las presas Santa Rosa, El Infiernillo, Angostura, Malpaso, Chicoasén y La Villita. Fue en esta última presa que conoció personalmente al general Lázaro Cárdenas; cada vez que llegaban los consultores él estaba, montado en su caballo, esperando que bajaran del avión; “nos saludaba cordialmente y quería estar al tanto de los avances de la obra”.

Una de las obras más significativas para Federico, no la única, fue la Central Nuclear Laguna Verde; le encargaron localizar el mejor cimiento donde instalarla. Recorrió la costa del Golfo de México, espacio tectónicamente estable, y propuso la zona de Laguna Verde por ser la primera lava grande que fluyó al mar, 70 kilómetros al norte de Veracruz, pegado al mar, lo cual permite tomar agua de él para enfriar los reactores sin mayor conflicto y en abundancia.

Una vez que se aprobó su propuesta del lugar, tuvo que explorar en un área de 500 kilómetros alrededor de Laguna Verde para asegurar que las condiciones del terreno no fueran propicias para las afectaciones de un terremoto. Fue en esa oportunidad que conoció a Emilio Rosenblueth, a quien ponía a la altura de los más destacados ingenieros con los que trató.

Para esta tarea realizó el mapa geológico desde el Nevado de Toluca hasta Laguna Verde. La Central Nuclear de Laguna Verde generó mucha polémica; el ingeniero y militante de izquierda Heberto Castillo al principio estaba contra el proyecto, por ello Hiriart y Rosenblueth, que lo estimaban, le encargaron a Federico que lo invitara a Laguna Verde para convencerlo de sus bondades. Mooser hizo buena relación con él, finalmente lo convenció de la bondad de Laguna Verde y Castillo ya no habló mal de esa gran obra.

LA BOLSA DE VALORES Y SU HUERTO Luego de Laguna Verde, Federico participó en la planeación de todos los túneles que se han construido en el Valle de México, incluido el Túnel Emisor Oriente (TEO) y el de la línea 12 del metro.

Al jubilarse en 1976 –que no dejar de trabajar– Federico se planteó dedicarse a invertir en la bolsa de valores y a cultivar su huerto que tenía en casa. En la bolsa, contó en una ocasión, “comencé con 20 mil dólares, pasé a 30 mil, 40 mil, 50 mil y cuando estaba en 63 mil le telefoneé a un amigo mío que sabía mucho de inversiones y me dijo: ‘aguanta un poco más, unos dos días más’… y ¡pum!, se cayó la pinche bolsa y salí de ella con tan sólo 4 mil dólares”. Decidió entonces sólo dedicarse al huerto, donde cultivaba café, papaya, maíz, calabazas, jitomates, mameyes, alcachofas, frijoles… y hasta tabaco.

Federico analizó los estudios de reflexión sísmica que hicieron las brigadas de Pemex después del gran sismo de 1985 y, con base en esos estudios, elaboró su famoso modelo litológico de la Cuenca de México, que no dejó en paz nunca, pues lo revisaba siempre que disponía de nuevos datos.

LA MARSALADA Y LA NEGRA DURAZO

Su análisis de los tendidos de reflexión sísmica dio luz a sismólogos para comprender por qué se amplifican las ondas sísmicas a su paso por las rocas que se encuentran en la base de la Cuenca de México, antes de incidir sobre las arcillas lacustres blandas que conforman los estratos más superficiales y en las cuales las ondas sísmicas se amplifican todavía más, en forma verdaderamente dramática.

Esas arcillas que tanto preocupan a los geotecnistas de la ciudad, esos materiales Mooser los nombró “la marsalada”, es decir, los materiales con los que, según él y con toda justicia y precisión, Marsal se regodeaba: la marsalada. También reveló que “la negra Durazo” era un estrato de arena negra, muy dura, que se localiza a una profundidad de entre 7 y 10 m a lo largo y ancho de la antigua zona lacustre de la Cuenca de México.

Federico estaba convencido de que la dichosa negra Durazo era producto de alguna muy violenta erupción del Popocatépetl. También nominó Formación Cuquita a una parte de la famosa formación también conocida como Tacubaya y que se encuentra en las lomas del poniente de la ciudad. La Formación Cuquita recibió ese nombre porque Federico la ubicó debajo de la casa de la mamá del presidente López Portillo. La señora se llamaba Refugio, Cuquita de cariño.

Junto a Enrique Santoyo Villa, Elvira León y Efraín Ovando Shelley, Federico Mooser participó en la elaboración del “Libro Negro”, el Esquema Geotécnico de la Cuenca de México. A Federico le tocó escribir el capítulo sobre la geología de la cuenca y ahí, de acuerdo con lo que ya había encontrado con su modelo litológico, escribió que el fondo del graben que se forma en las calizas que constituyen la

roca basal era un depósito natural de agua en cantidades que aún no se determinan.

En 1989 Mooser contaba con 66 años de edad, hombre de mediana edad, que imponía por su porte altivo, su mirada inquisitiva y su voz de mando, que combinaba inconscientemente con su pasión por la geología, su dominio de varios idiomas, su amplia cultura, su interés perenne por aprender cada día algo nuevo y su generosidad.

SUS GIGANTESCOS MAPAS

Por fortuna, y con la ayuda del ingeniero Fernando Hiriart, Mooser consiguió que se financiara la elaboración del Nuevo Mapa de las Cuencas de México, Toluca y Puebla. Un enorme trabajo estaba detrás de este mapa: la base del trabajo constaba de 36 cartas topográficas escala 1:50000 editadas por el Instituto Nacional de Estadística, Geología e Informática, INEGI. Una vez conseguidas, había que remarcar todo el drenaje natural, es decir, se acentuaban en azul las líneas de los arroyos para destacar al mismo tiempo la morfología; después se procedía a realizar la interpretación de las fotos aéreas de las cartas correspondientes vaciando posteriormente lo interpretado en dichas cartas. Por supuesto, se realizaron también infinidad de recorridos de campo por tierra y por aire para verificar puntos de control o duda. El resultado de todo este trabajo fue el Nuevo Mapa de las Cuencas de México, Toluca y Puebla editado por la CFE en conmemoración del LIX aniversario de dicha dependencia: un gran mapa formado por 35 mapas individuales que se pueden unir como un gran atlas que cubre una extensión algo menor a los 35,000 km2; el nivel que se logró con este trabajo es de semidetalle y es un referente

❘ Núm. 265 Septiembre - Noviembre 2022 10 11 29 36 38 40 44 48 45 1 2 3 7 8 13 18 14
En visita a Efraín Ovando Shelley en el II-UNAM. En una de sus habituales visitas a Daniel Moser, analizando los temas que podrían ser motivo de artículos en revistas técnicas. Cuatro geólogos y cinco ingenieros sobre un montón de material Reynosa para la presa El Cuchillo. Luis Ramírez de Arellano, Froylán Torres, Víctor Guerra, Mooser, Joel Rojas, Don Deere, Eugenio Ramírez, Porfirio Carrizales y Claudio Molina.

Geología de la Cuenca de México en tres dimensiones. El tiempo está representado por las eras geológicas señaladas. En el esquema conceptual de la tercera dimensión el autor muestra en color verde las formaciones marinas que contienen los acuíferos profundos (Mezcala y Morelos). Mooser transmitía su conocimiento geológico mediante dibujos que rozaban el arte. Esta figura, continuamente revisada y actualizada por él, resume decenios de sus investigaciones en la Cuenca de México.

para la geología de esta región, importante para las ciudades que cubre.

Además de los aspectos estratigráficos y de tectónica regional relevantes, los geólogos señalaron un número de sitios propuestos para efectuar exploraciones geotérmicas mediante perforaciones profundas que eventualmente permitirían diversificar fuentes energéticas limpias. Estos trabajos, junto con la revelación de la estructura del subsuelo profundo en el Valle de México, permitirían luego proponer perforaciones con equipo petrolero para demostrar la factibilidad de la explotación del acuífero profundo para abastecimiento urbano de la Ciudad de México.

Al terminar el trabajo del Nuevo Mapa de las Cuencas de México, Toluca y Puebla siguió con una inercia que lo condujo a la exploración de otras regiones: en Puebla, Oriental, la sierra Orizaba-Perote y las cuencas de los ríos Pánuco, Tuxpan, Cazones, Tecolutla, Bobos-Nautla y Actopan, entre los más importantes. Así comenzó un nuevo mapa de la cuenca de Oriental, la Sierra Orizaba-Perote que llegaba prácticamente hasta las costas de Veracruz, incluyendo, por supuesto, el sitio de Laguna Verde. Asimismo, incursionó en la región al poniente de Toluca y al sur del Nevado, casi en los límites con Michoacán y Guerrero.

La geología y su huerto no eran las únicas inquietudes de Federico. Asistía cada semana, con sus colaboradores como invitados, a tomar clases de economía, filosofía, arte, religio-

nes… con Ruth Tröeller, de nacionalidad belga, amiga y profesora de él por muchos años.

AGUA A MÁS DE 2,000 m DE PROFUNDIDAD

En 2008, las autoridades del Sistema de Aguas de la Ciudad de México perforaron un pozo profundo donde Federico les indicó y, efectivamente, encontraron agua y a Mooser le dieron la oportunidad de ser el primero en beber esa agua fósil –y también fue el primero en sobrevivir a tal ingesta–. Ahí está el agua que Mooser nos dejó; falta cuantificar el volumen de ese líquido potencialmente utilizable y luego falta ver si por su costo vale la pena sacarla de más de 2,000 m de profundidad.

Durante los últimos años, con el patrocinio de varias empresas de construcción y del Colegio de Ingenieros Civiles de México (CICM), Mooser y un equipo de nueve colaboradores publicaron en 2018 dos volúmenes sobre geología del Valle de México y otras regiones del país con información de diversos estudios geológicos elaborados para el diseño y construcción de obras de infraestructura en el Valle de México y otras regiones. El volumen I incluye: Línea 12 del metro de la CDMX, Ampliación de la línea 12 a MixcoacObservatorio y los túneles de drenaje Canal General, Dren General del Valle, Túnel Emisor Oriente original, Túnel Emisor Oriente modificado y Túnel Emisor Poniente II. El volumen II comprende: Nueva sección geológica del Sistema de Drenaje Profundo, Geología del Tren Interurbano Toluca-México (Zinacantepec-Observatorio), Bitúnel Sierra de las Cruces y Sección Sur de la Cuenca de México (Observatorio-Chapultepec-Peñón de los Baños-Texcoco).

Federico Mooser abandonó mansamente su cuerpo una madrugada de octubre de 2021, a casi 98 años, pero su legado profesional, su intensa personalidad, siguen presentes entre quienes tuvimos el placer y el honor de gozar de su amistad, de sus visitas inesperadas, sus llamadas en horarios insólitos, su risa estruendosa, su conversación informada, culta y entretenida, luego de la cual uno siempre se quedaba con un conocimiento nuevo

Con Tamez y otros grandes, un transporte al cielo

Se me ocurre al final de este escrito algo que recientemente oí decir a Enrique Santoyo: “Cuando Tamez, mi maestro, se vaya al cielo, como allá tendrá que ir seguramente por excelente y bueno que es, basta con que sea yo la chancla sujeta a uno de sus pies; así iré derechito al cielo”. ¡Coincido con Santoyo! Con que sea yo la chancla colgada del otro pie de Tamez, subiré al cielo y a la inmortalidad también.

Si leyendo lo anterior alguien de la SMMS se inspira metafísicamente y decide ser chancla también de uno de los

grandes arriba mencionados para transportarse al cielo, que lo haga con cautela, pues sería posible que con uno de ellos se la juegue.

No obstante, más vale ir al cielo o al otro lado, que quedarse como mecánico bajo el suelo.

Federico Mooser

Publicado en: Enrique Tamez González, ejemplo a seguir, SMMS, 2005.

❘ Núm. 265 Septiembre - Noviembre 2022 12 13 29 36 38 40 44 48 45 1 2 3 7 8 13 18 14
Apreciamos su opinión e información sobre el tema de este artículo. Escríbanos a geotecnia@heliosmx.org Texto elaborado por Daniel Moser con base en información propia y aportes de Efraín Ovando Shelley, Ángel Ramón Zúñiga Arista y Eugenio Ramírez R.
SEMBLANZA Pasión y acción por la geología y la ingeniería
ANECDOTARIO
Ir a TexTo CorrIdo @

Centro Urbano Presidente Alemán, 75 años después

Con motivo del 75 aniversario de la fundación de Ingenieros Civiles Asociados (ICA), se presenta un breve resumen de la construcción del Centro Urbano Presidente Alemán, en la que la solución de cimentación tuvo un papel fundamental.

ANTECEDENTES

En 1947, la entonces Dirección General de Pensiones Civiles para el Retiro de México (hoy Instituto de Seguridad y Servicios Sociales de los Trabajadores del Estado, ISSSTE) buscó al joven arquitecto Mario Pani para solicitarle que proyectara, en un terreno recientemente adquirido en la entonces lejana Colonia del Valle de la Ciudad de México, 200 casas para los trabajadores al servicio del Estado. En su lugar, Pani propuso construir una unidad compacta de gran altura con grandes extensiones de áreas verdes y más de mil departamentos. Pani tomó el modelo paradigmático funcionalista que Le Corbusier defendió con la Cité Radieuse (villa radiante), hecha en Marsella, aunque agregó nuevos modelos de circulación interna para tener una ventilación adecuada de las cocinas y los baños de cada departamento mediante puentes al aire libre.

La idea fue aceptada por el gobierno mexicano. El diseño y proyecto fue realizado por el arquitecto Mario Pani Darqui en colaboración con el arquitecto Salvador Ortega Flores y el ingeniero Bernardo Quintana Arrioja. Fue así que en 1949 se concluyó la construcción de este emblemático conjunto arquitectónico. La ruta crítica de la obra abarcó 24 meses a partir del 1º de septiembre de 1947, día en que iniciaron los trabajos. Además de la propuesta de diseño, el “multifamiliar” se erigió con minuciosos estudios de instalaciones, cimbras y estructuras, y materiales como tabique de barro

recocido y bloques con alma de tepezil. El Centro Urbano Presidente Alemán (CUPA) fue promovido por el primer presidente civil de México, el licenciado Miguel Alemán Valdés, y construido por Ingenieros Civiles Asociados (ICA).

El CUPA fue el primer centro urbano con infraestructura y servicios para una nueva forma de habitar; “una proposición en concreto”, como versaba la campaña presidencial del presidente Alemán. Representó un cambio de paradigma para vivir la modernidad, con diversidad habitacional (48, 57, 61, 70 y 76 m2), densidad y un vasto equipamiento urbano: dispensario, zona comercial, lavandería, supermercado, club deportivo, teatro, biblioteca, alberca, administración, iglesia, jardín de niños, guardería y hospital.

El proyecto fue sometido a concurso luego de una convocatoria en la que se analizó el tipo arquitectónico y constructivo, el aprovechamiento del terreno, la capacidad de población, las condiciones de amplitud, confort y comodidad de las viviendas, y los costos más bajos a partir de la adopción de un sistema urbanístico-arquitectónico de edificios altos, distribuidos de manera que se dejaba una superficie considerable de terreno libre para utilizarse en jardines; establecimiento de locales para comercios, lavandería, guardería infantil, dispensario médico y centro escolar.

La duración de la obra se estimó en 24 meses y se terminó dos semanas antes de lo solicitado; fueron 12 meses para la excavación y construcción de la estructura de concreto, y el resto para instalaciones y acabados interiores y exteriores. Se trató de uno de los primeros ejemplos de funcionalismo a gran escala, tanto por los materiales como por la optimización de recursos. Trabajaron más de 1,800 colaboradores diariamente e implicó el desarrollo de capacidades constructivas y estructuras desafiantes.

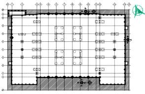
EL PROYECTO

El conjunto está formado por seis unidades principales de 17 × 65 m, cuatro de ellas ligadas mediante tres cuerpos secundarios de 8.5 × 28 m, y las dos restantes, aisladas. La disposición en planta se muestra en la figura 1. Todas las construcciones principales y los cuerpos secundarios constan de 13 pisos, poseen estructuras de concreto reforzado y se destinan a viviendas; el terreno en que se desarrolló el proyecto tiene una superficie total de 40,000 m2 Cada edificio tiene su propio acceso en el nivel de la calle, en una planta que se encuentra rodeada de servicios comunes como locales comerciales y áreas verdes. De los nueve edificios altos, siete se hallan ligados en zigzag y les corresponden los números romanos I, I’, II, II’, III, III’ y IV. Siguiendo una de las diagonales del terreno que los anteriores dejan libres, se encuentran los dos restantes, paralelos a cada último edificio que compone el zigzag; a estos edificios les corresponden los números romanos V y VI.

En los edificios altos, de 13 pisos, las escaleras tienen un acceso cada tres niveles, mientras que los elevadores hacen una parada cada cinco niveles. Esto permite que los recursos sean menos y sigue siendo práctico a la vez, aunque varios de los elevadores están fuera de servicio por falta de mantenimiento. En los edificios chicos, de tres pisos, solo hay acceso por escaleras que llegan directamente a los departamentos.

El área total construida es del 20% únicamente, y el resto está destinado al área libre que se conforma de jardines, locales comerciales como lavandería, carnicería, abarrotes,

❘ Núm. 265 Septiembre - Noviembre 2022 14 15 29 36 38 40 44 48 45 1 2 3 7 8 13 18 14
LA GEOTECNIA EN LA HISTORIA
Figura 1. Disposición en planta del CUPA. Figura 2. Planta y corte de zapatas de cimentación (Marsal y Mazari,1959) y vista durante su construcción. Marsal y Mazari, 1959.
Ir a TexTo CorrIdo

etc., y áreas de servicio a la comunidad como guardería, dispensario médico, un centro escolar, piscina semiolímpica con vestidores y baños individuales y un edificio administrativo con oficinas, correo, telégrafo y una unidad sanitaria. El conjunto proporcionaba todos los servicios básicos a la comunidad.

INFORMACIÓN GEOTÉCNICA

Y DISEÑO DE LA CIMENTACIÓN

Mediante un sondeo de más de 100 m de profundidad, se comprobó que el suelo en este lugar está compuesto por depósitos de grava y arena con mantos de limo compacto o arenas limpias de diferente granulometría, cubiertos en la superficie por una serie de estratos de arcillas volcánicas, limos arcillosos y arenosos, que en total suman un espesor del orden de 10 m. Las variaciones de esta formación superior compresible se observaron en varios pozos a cielo abierto. Los contenidos de agua en la formación superficial fluctúan entre 30 y 200%, siendo particularmente blandos los estratos localizados a 5 y 8 m bajo la superficie; las resistencias a la compresión no confinada, muy variables con

la profundidad, resultaron mayores de 0.5 kg/cm2; el nivel freático se localizó a 7.5 m de profundidad.

El material encontrado entre 0 y 4 m de profundidad es arcilla arenosa café, relativamente homogénea, con humedad natural comprendida entre 30 y 70%, límite líquido de 37 a 55%, límite plástico de 14 a 25% y resistencia a la compresión simple de 0.5 a 1.3 kg/cm2

El proyecto original de cimentación para los edificios de 13 pisos era mediante pilotes hincados. Sin embargo, la recién formada empresa ICA de Bernardo Quintana Arrioja y asociados, gracias al conocimiento geotécnico generado en su Laboratorio de Mecánica de Suelos integrado por un creativo grupo de ingenieros, entre los que destacaban Fernando Hiriart Balderrama, Raúl J. Marsal Córdoba y Raúl Sandoval Landázuri, analizó y concluyó que era factible realizar la cimentación de los edificios del CUPA mediante una cimentación superficial, con lo cual se logró una reducción sustancial en el monto de la propuesta y les permitió ganar la construcción del proyecto.

Se realizó una estimación preliminar de asentamientos y, por la circunstancia de no haber interferencia con otras construcciones, se cimentaron las estructuras sobre zapatas corridas en el sentido transversal de cada cuerpo.

Con tal motivo se efectuaron pruebas de compresión triaxial rápida o no drenada con el material en su condición natural; no se saturaron las probetas, pues el nivel freático está abatido en esta zona de la ciudad; por otra parte, su grado de saturación era de 80% o mayor.

Con estos datos se estimó que la capacidad admisible para carga estática era de 22 t/m2, resultando un factor de seguridad mínimo de 3 al considerar la acción combinada de sismo y peso propio. Las dimensiones generales, corte y planta de las cimentaciones se muestran en la figura 2.

Los asentamientos totales se obtuvieron a partir de los valores medios de compresibilidad de la formación superficial (10 m de profundidad) y la estimación de esfuerzos inducidos en el terreno hasta una profundidad de 60 m. Los cálculos se hicieron empleando la fórmula de Boussinesq. De acuerdo con esta información, los asentamientos totales estaban comprendidos entre 19 y 29 cm en el grupo de edificios I a IV, y de 18 a 26 cm en los V y VI. Los asentamientos diferenciales máximos resultaban de 10 cm. Debe notarse que, por la acción de las cargas correspondientes a los cuer-

pos secundarios, la distribución de las curvas de igual asentamiento no era simétrica y que las estructuras principales iban a estar sometidas a efectos de una torsión que se consideró compatible con el tipo de construcción proyectado. Se efectuaron nivelaciones periódicas de varias columnas de cada edificio, una vez acabada la cimentación, a fin de observar la evolución de los asentamientos respectivos. Desgraciadamente, durante la construcción hubo problemas para mantener intactos los bancos de referencia localizados en la proximidad de la obra, y por esa razón las mediciones no tienen la precisión deseada. En la figura 3 se presenta la configuración de asentamientos correspondiente al conjunto, registrados de diciembre de 1947 a febrero de 1956.

Tanto los edificios principales (I a VI) como los cuerpos secundarios (I´ a III´) acusan un comportamiento diferente al predicho, por lo que se refiere a la distribución de las curvas de igual asentamiento, pero los valores son muy parecidos en promedio. Por otra parte, entre los edificios V y VI que ocupan las esquinas opuestas del predio, las discrepancias son apreciables, lo que pone en evidencia las variaciones estratigráficas. El resultado pone de manifiesto la dificultad para predecir la evolución de asentamientos en la Zona de Transición.

En la figura 4 se muestran algunos aspectos del conjunto terminado, y en la figura 5, una visita histórica durante la construcción de la obra.

A principios del decenio de 1990, el ISSSTE solicitó a ICA una intervención en las columnas exteriores de los nueve edificios altos, que sufrieron pérdida del recubrimiento por efecto de la intemperización en el acabado martelinado del concreto. Se llevó a cabo un zunchado con elementos metálicos y resinas para proteger el acero de refuerzo. La cimentación se mantiene sin cambios, con un comportamiento adecuado después de 75 años de su construcción; tuvo un desempeño satisfactorio durante los sismos de 1957, 1985 y 2017

Elaborado con base en las siguientes fuentes: Chávez, A. (2022). Comunicación personal. es.wikipedia.org/wiki/Multifamiliar_Presidente_Alemán Garay, G. (2000). Rumores y retratos de un lugar de la modernidad, historia oral del Multifamiliar Miguel Alemán 1949-1999 México: Instituto Mora, Facultad de Arquitectura, UNAM.

Kochen, J. J. (2017). CUPA: El conjunto urbano mejor logrado del siglo XX en México. Centro Urbano Presidente Alemán, el primer multifamiliar moderno. México: Fundación ICA, Fundación Miguel Alemán.

Marsal, R. J., y M. Mazari (1959). El subsuelo de la Ciudad de México Universidad Nacional Autónoma de México.

Schmitter, J. J. (2022). Comunicación personal.

Apreciamos su opinión e información sobre el tema de este artículo. Escríbanos a geotecnia@heliosmx.org

❘ Núm. 265 Septiembre - Noviembre 2022 16 17 29 36 38 40 44 48 45 1 2 3 7 8 13 18 14
LA GEOTECNIA EN LA HISTORIA Centro Urbano Presidente Alemán, 75 años después
Figura 4. Vista aérea y perspectiva del CUPA. Figura 5. Visita al sitio de la obra. Al centro, Miguel Alemán Valdés y Bernardo Quintana Arrioja.
FUNDACIÓN ICA. FUNDACIÓN ICA.
Figura 3. Curvas de igual asentamiento, de diciembre 1947 a febrero 1956. Marsal y Mazari, 1959.
@

Análisis de riesgos en la construcción de una lumbrera con el procedimiento de flotación

Una práctica poco común en el medio de la construcción en México es realizar un análisis de riesgos enfocado en la definición de las posibles actividades, eventualidades administrativas, problemas sociales, problemas laborales, problemas técnicos y diversos factores que podrían estar asociados al diseño y construcción de una estructura subterránea; los factores indicados pueden derivar en varios riesgos para la ejecución de la estructura. En este documento se presenta como ejemplo el análisis de riesgos de una lumbrera construida con el procedimiento de flotación.

1. ANTECEDENTES

El diseño y construcción de una lumbrera mediante la técnica de flotación se puede considerar un procedimiento constructivo ingenioso pero completamente “artesanal”, ya que existen diversos factores técnicos y administrativos, e incluso eventualidades de carácter ambiental, que pueden poner en riesgo la estabilidad de la estructura y en algunos casos provocar una falla generalizada que cause daños materiales y pérdidas humanas, además de afectar las construcciones vecinas. Un riesgo es un evento o condición incierta que, de presentarse, tiene un efecto negativo en el desarrollo de un proyecto y origina incertidumbre. De igual forma, una opor-

tunidad es un evento o condición que, si se produce, causa un efecto positivo en la fase de un proyecto y brinda las posibilidades de éxito al gestionarse oportunamente. La planificación de la gestión de riesgos consiste en decidir cómo enfocar, planificar y ejecutar las actividades de gestión de riesgos para un proyecto; en ello, uno de los aspectos más importantes es la identificación de los riesgos para cada uno de los componentes que integran el proyecto; determinar qué riesgos pueden afectar al proyecto y documentar sus características. La identificación de riesgos es un proceso iterativo porque se pueden descubrir nuevos riesgos a medida que el proyecto avanza; sin embargo, es importante que el ingeniero

Probabilidad

Impacto

Riesgo inicial Riesgo residual Probabilidad

R: Riesgo

P: Probabilidad

I: Impacto

R = P × 1

o el encargado de desarrollar el análisis de riesgos conozca y domine el procedimiento constructivo, así como los aspectos técnicos de análisis y diseño. El conocimiento de los aspectos técnicos y constructivos del proceso de construcción de la estructura permitirá identificar con mayor claridad los riesgos asociados. La segunda fase del proceso al elaborar un análisis de riesgos es determinar la probabilidad de que suceda dicho riesgo, así como el impacto que podría representar en tiempo y costo la ocurrencia de dicho evento. Y la tercera fase de este proceso es determinar las medidas de mitigación por implementar, las cuales deben estar enfocadas en reducir el riesgo inicial, para obtener así un riesgo residual.

En este documento se presenta un ejemplo teórico-práctico del análisis de riesgos de una obra subterránea conocida como lumbrera. El análisis se realiza considerando la técnica de flotación o “lumbrera flotada” en suelos blandos, tomando en cuenta las recomendaciones emitidas por la ITA-Guidelines for Tunnelling Risk Assessment, de la International Tunnelling Association.

Impacto Probabilidad

Inaceptable

Potencialmente aceptable Aceptable

Guglielmetti

Calificación Descripción Probabilidad

1 Improbable 1 en 1000

2 Remoto 1 en 100

3 Ocasional 1 en 10

4 Probable Mayor frecuencia de ocurrencia

5 Frecuente Se espera que suceda el evento

2. DEFINICIONES GENERALES

A partir de Guglielmetti et al. (2007), se pueden definir los principales conceptos de un análisis de riesgos: Peligro. Situación o condición potencial que puede generar daños o lesiones al ser humano, daños a la propiedad, daños al medio ambiente, daños económicos o pérdida o retraso en la ejecución del proyecto.

Riesgo. Medida de la pérdida económica o de daños para la vida humana, resultante de la combinación entre la frecuencia de la ocurrencia y la magnitud de las pérdidas o daños (consecuencias). El riesgo está siempre asociado a la posibilidad de que ocurra un evento no deseado. Por ello, debe entenderse que el peligro es una propiedad intrínseca de una situación (persona u objeto) y que no puede controlarse o reducirse totalmente. Por lo general, el riesgo puede ser administrado actuando en la frecuencia de ocurrencia, en las consecuencias o en ambas. De esta forma, se puede expresar el riesgo como una función de esos factores.

Criterio de medición de riesgos. Expresiones cualitativas y cuantitativas para definir los niveles máximos de riesgos aceptables o tolerables para un sistema dado.

❘ Núm. 265 Septiembre - Noviembre 2022 18 19 29 36 38 40 44 48 45 1 2 3 7 8 13 18 14
del Consejo de la AMITOS. Figura 1. La pérdida en la verticalidad durante el proceso de inmersión del tramo construido de lumbrera es uno de los principales riesgos del procedimiento constructivo de flotación.
FOTO: TÚNEL CHURUBUSCO-XOCHIACA. MARIO ARTURO AGUILAR TÉLLEZ.
Figura 2. Análisis y manejo del riesgo (ITA-AITES). et al. 2007. Tabla 1. Criterio cualitativo de calificación de la probabilidad de ocurrencia de un evento
TEMA DE PORTADA ARTÍCULO TÉCNICO Ir a TexTo Corr do

Tabla 2. Criterio cualitativo de calificación del impacto de en la ocurrencia de un evento

Calificación Riesgo de seguridad, salud y medio ambiente (C1) durante la construcción

1 Menores daños. Los daños no provocan paros en los trabajos de construcción. Daños locales.

2 Daños menores. Los daños provocan paros en los trabajos de construcción.

3 Daños considerables. Tiempo considerable para su atención. Daño medio.

4 Daños mayores. Lesión grave o daño con efectos a largo plazo.

Riesgo administrativo (C2). Tiempo de implementación o atención en reparar las afectaciones o daños

Tiempo estimado de implementación o atención: entre 7 y 15 días.

Tiempo estimado de implementación o atención: entre 15 y 30 días.

Retrasos de varios meses en el proyecto. Tiempo estimado de implementación o atención: entre 30 y 60 días.

Retrasos en el proyecto de varios meses. Tiempo estimado de implementación o atención: entre 60 y 120 días.

Riesgo de seguridad, salud y medio ambiente (C3) durante la operación

Menores daños. Los daños no provocan paros en los trabajos de construcción. Daños locales.

Daños menores. Los daños provocan paros en los trabajos de operación.

Daños considerables. Tiempo considerable para su atención. Daño medio.

Daños medios a permanentes en la operación del proyecto. Cierre por lo menos de 24 h.

5 Fatalidades. Daños permanentes. Potencial paro del proyecto. Fallecimientos. Daños permanentes en los trabajos ejecutados.

5 0-15 20-30 35-45 50-60 65-75

4 0-12 16-24 28-26 40-48 52-60

3 0-9 12 -18 21-27 30 -36 39-45

2 0-6 8.-12 14-18 20-24 26-30

1 0-3 4 -6 7 -9 10 -12 13-15

Análisis de riesgos. Es la actividad dirigida a la elaboración de una estimación (cualitativa o cuantitativa) del riesgo, basada en procesos estructurados para promover la combinación de las frecuencias y consecuencias de un accidente/incidente. El análisis de riesgos incluye la iden-

tificación de los peligros y la descripción de los riesgos, los cuales pueden ser cualitativos o cuantitativos. Evaluación de riesgos. Análisis integrado de riesgos inherentes a un sistema o un proyecto y su importancia en un contexto apropiado. Es decir, análisis de riesgos más evaluación de riesgos.

Eliminación de riesgos. Acción o acciones para prevenir que el riesgo se presente. Reporte de riesgos (Evaluación). Comparación de los resultados del análisis de riesgos, con un criterio de aceptación de riesgos u otro criterio de decisión. Medidas de mitigación del riesgo. Acción o acciones para reducir las consecuencias o frecuencia de ocurrencia de un riesgo.

Las acciones que deben tomarse para cada riesgo dependen en gran parte de cómo se clasifiquen los riesgos. A continuación, un ejemplo de dichas acciones: Inaceptable: El riesgo deberá reducirse por lo menos a “Potencialmente aceptable” (no deseado) haciendo caso omiso de los costos que represente la mitigación del riesgo.

Potencialmente aceptable: Las medidas de mitigación del riesgo serán identificadas. Las medidas se implementarán siempre que los costos no sean desproporcionados en relación con la reducción obtenida.

Aceptable: El riesgo se manejará a lo largo del proyecto. No se requiere considerar mitigación del riesgo.

En la práctica, el grado de riesgo asociado con una probabilidad (P) de impacto (I) está valuado, y este valor puede calcularse como el producto de la probabilidad y el índice

de severidad (o impacto) como un porcentaje del valor máximo convencional, definiendo el “nivel de riesgo inicial” (véase figura 2). De manera cualitativa, la escala de calificación de probabilidad e impacto del evento es la siguiente: Por definición, el riesgo (R) es definido por el producto de la probabilidad (P) y el impacto (I), R = (P) (I). De acuerdo con lo indicado en la tabla 2, el impacto total se obtiene mediante la suma I = I (C1) + I (C2) + I (C3). En la figura 3 se presenta la matriz de riesgo y el criterio de aceptación.

3. DEFINICIONES GENERALES

Una lumbrera o pozo de acceso, como también se le conoce en América Latina, es una obra subterránea que permite tener acceso al túnel; sus funciones principales durante la construcción del túnel pueden ser el armado de un equipo tunelador o ser una estructura de servicio por medio de la cual se suministre al túnel ventilación, agua, materiales,

dovelas, energía eléctrica, etc. Durante la operación del túnel, las lumbreras pueden servir para realizar inspecciones o mantenimiento al túnel. Existen diversos procedimientos constructivos que pueden emplearse en la construcción de una lumbrera; la selección del procedimiento constructivo está en función principalmente de las condiciones geotécnicas-geológicas del sitio de la obra, y puede ser materia de otro documento. Sin embargo, en el Valle de México, un procedimiento constructivo recurrente para la construcción de lumbreras en suelos blandos en la denominada Zona del Lago, integrada principalmente por arcillas blandas con un contenido de agua alto (w >300%), baja resistencia al corte (Su<0.02 Mpa) y alta compresibilidad es el conocido como “lumbrera flotada o de flotación”. La técnica de lumbrera flotada fue desarrollada por los ingenieros mexicanos Jorge Cravioto y Abel Villareal en el decenio de 1960 (AMITOS, 1986).

El procedimiento constructivo toma como base el principio de Arquímedes, el cual indica que “todo cuerpo sumergido dentro de un fluido experimenta una fuerza ascendente llamada empuje, equivalente al peso del fluido desalojado por el cuerpo”. Por ello, esta técnica constructiva considera realizar como primera etapa la excavación total para alojar la estructura de concreto que será construida por etapas en superficie. La excavación previa se estabiliza con un fluido estabilizador, por ejemplo lodo bentonítico, que permita estabilizar las paredes y el fondo de la excavación (Moreno, 1991).

❘ Núm. 265 Septiembre - Noviembre 2022 20 21 29 36 38 40 44 48 45 1 2 3 7 8 13 18 14 TEMA DE PORTADA ARTÍCULO TÉCNICO Análisis de riesgos en la construcción de una lumbrera con el procedimiento...
1 2 3 4 5 Impacto Probabilidad
Figura 3. Matriz de riesgos y criterio de aceptación para I=I(C1) + I(C2) + I(C3). Figura 4. Vista general del proceso de estabilización de la excavación previa. Figura 5. Vista en superficie del tanque metálico de flotación. Figura 6. Inmersión del tanque de flotación en el interior de la excavación. Figura 7. Etapa de habilitado de acero de tramo de construcción de lumbrera: inicio de construcción de losa de fondo y muros.

inyección debe colocarse iniciando en la parte inferior de la excavación hacia la superficie, y deberá hacerse de manera uniforme para evitar excentricidades no deseadas.

6. Construcción de brocal definitivo.

En la tabla 3 se presenta un resumen de los principales riesgos asociados a cada una de las actividades descritas.

El análisis de riesgos de cualquier estructura debe llevarse a cabo con la intervención de todas las áreas que participan en la obra: ingeniería, construcción, supervisión, control de calidad, fletes, jurídica, maquinaria, procuración, etc., con la finalidad de identificar la mayor cantidad de riesgos asociados con el proceso constructivo. Los riesgos que se indican en la tabla 3 son referenciales y tienen como principal objetivo ejemplificar los principales riesgos asociados al proceso constructivo de una lumbrera flotada.

4. EJEMPLO: ANÁLISIS DE RIESGOS EN EL DISEÑO Y CONSTRUCCIÓN DE UNA LUMBRERA CON EL PROCEDIMIENTO CONSTRUCTIVO DE FLOTACIÓN En las tablas 4 a 6 se presenta, a manera de ejemplo teóricopráctico, un análisis de riesgos asociado al procedimiento constructivo de lumbreras flotadas, considerando tanto aspectos de diseño como constructivos.

5. CONCLUSIONES

a. El análisis de riesgos de cualquier obra subterránea por diseñar o construir debe ser realizado de manera oportuna, previa al inicio de la construcción, preferentemente durante la etapa de planeación del proyecto, con objeto de iden-

Tabla 3. Resumen de las principales actividades constructivas y los riesgos asociados al procedimiento de lumbrera flotada Actividad Riesgo asociado

a. Pérdida en la verticalidad de la excavación.

b. Desconocimiento previo de las condiciones de comportamiento topográfico de la zona del proyecto y áreas vecinas.

c. Falta de control y seguimiento en la verticalidad de la estructura durante la etapa de inmersión y flotación.

Levantamiento topográfico de detalle

d. Falta de seguimiento continuo y control de los niveles del fluido estabilizador en el interior de la excavación, principalmente durante las fases de inmersión y flotación de la estructura.

e. Falta de monitores topográficos: banco de nivel profundo y bancos de nivelación flotante que permitan monitorear los asentamientos derivados del proceso de excavación.

f. Falta de supervisión en la fabricación del lodo bentonítico: no llevar un control estricto de la densidad, viscosidad y contenido de arena del fluido estabilizador.

g. Falta de control y registro estricto del volumen realmente excavado contra el volumen teórico de la excavación.

h. Desconocimiento de las condiciones geotécnicas del sitio de la obra.

Excavación previa y estabilización con la colocación del fluido estabilizador en su interior

Alcanzado el nivel máximo de excavación, se procede a colocar en superficie un tanque metálico que servirá de cimbra para la construcción de la lumbrera por etapas; el proceso inicia con la construcción de la losa de fondo y posteriormente se continúa con la construcción de los muros. El análisis de inmersión y flotación debe considerar el peso del tramo de la estructura construida de la lumbrera y compararlo con el volumen de fluido por extraer (ecuación 1, Tamez et al., 2007).

H = We A γ (1)

donde:

We = peso de la estructura, kN

A = área de flotación, m2

γf = peso volumétrico del fluido estabilizador, kN/m3

En resumen, el proceso constructivo de una lumbrera flotada se puede plantear en las siguientes actividades:

1. Levantamiento topográfico de detalle.

2. Excavación previa y estabilización con la colocación simultánea del fluido estabilizador en su interior.

3. Fabricación, habilitado y colocación de tanque metálico.

4. Construcción de losa de fondo y muros de concreto de la lumbrera por tramos, proceso de inmersión y flotación de la estructura. Por lo general, los avances de construcción se ejecutan en tramos con longitud de 2.40 m.

5. Una vez alcanzado el nivel de excavación que indica el proyecto, se procede a inyectar con lechada cementoarena el espacio anular que se presenta entre el perímetro de la excavación y la cara exterior de la estructura de concreto, incluyendo el tanque metálico de flotación. Esta

Fabricación y habilitado del tanque metálico

Construcción de losa de fondo y muros de concreto de la lumbrera por tramos, proceso de inmersión y flotación de la estructura

Inyección del espacio anular que se presenta entre el perímetro de la excavación y la cara exterior de la estructura de concreto.

i. Desconocimiento de las condiciones piezométricas del sitio de la obra.

j. Desconocimiento de las condiciones geológicas del sitio de la obra.

k. Falta de bancos aprobados y autorizados de disposición final del material producto de la excavación.

l. Falta de camiones suficientes para el retiro del material producto de la excavación.

m. Falta de personal técnico con experiencia en la ejecución del procedimiento constructivo de lumbrera de flotación. n. Fallas mecánicas del equipo de excavación.

o. Falta de control de calidad y supervisión en el proceso de fabricación del tanque metálico.

p. Falta de certificados de calidad de los materiales empleados en la fabricación del tanque metálico. q. Falta de certificación técnica del personal que construye el tanque metálico.

r. Falta del análisis del proceso de inmersión / flotación de los tramos de estructura por construir.

s. Análisis de inmersión / flotación mal realizado.

t. Excentricidades en los tramos por construir, por la presencia de trabes de borde, refuerzos de acero especiales, etc.

u. No contar con el equipo adecuado para la colocación y vibrado del concreto.

v. Falta de control de calidad de la mezcla de inyección a colocar en el espacio anular existente entre el perímetro de la excavación y la cara externa de concreto de la estructura construida.

w. Falta en el seguimiento del volumen y presión de inyección aplicada en el relleno del espacio anular.

x. Falta de control en la colocación uniforme durante el ascenso de la inyección.

Construcción de brocal definitivo y. Falta de supervisión en el habilitado del acero de refuerzo del brocal definitivo para asegurar la conexión correcta con el acero de los muros de concreto.

❘ Núm. 265 Septiembre - Noviembre 2022 22 23 29 36 38 40 44 48 45 1 2 3 7 8 13 18 14
Figura 12. Vista área de lumbrera concluida. Figura 8. Etapa de habilitado de acero de tramo de construcción de muros de la lumbrera. Figura 9. Vista de la sección construida de muros, etapa de flotación. Figura 10. Proceso de inmersión del tramo construido de lumbrera. Figura 11. Proceso de atraque de la estructura durante la fase de flotación.
TEMA DE PORTADA
ARTÍCULO TÉCNICO
Análisis de riesgos en la construcción de una lumbrera con el procedimiento...

TEMA DE PORTADA ARTÍCULO

TÉCNICO

Análisis de riesgos en la construcción de una lumbrera con el procedimiento...

Tabla 4. Análisis de riesgos del proceso constructivo de lumbrera flotada. Actividad: levantamiento topográfico de detalle

Núm. Actividad Riesgo Causa/Consecuencia

1 Control topográfico a) Pérdida en la verticalidad de la excavación.

Impacto Probabilidad Riesgo Medida de mitigación

Impacto Probabilidad Riesgo Rr

C1 C2 C3 P C1 C2 C3 P EVALUACIÓN DEL RIESGO INICIAL. PROCEDIMIENTO CONSTRUCTIVO LUMBRERA FLOTADA

Causa. Falta de personal del área de topografía, especializado en obra subterránea y túneles. Consecuencia. Riesgo de desplazamientos o volteo de la estructura durante las etapas de inmersión o flotación.

b) Desconocimiento previo de las condiciones de comportamiento topográfico de la zona del proyecto y áreas vecinas.

Causa. Falta de información histórica y actualizada de la condiciones de desplazamientos verticales de la zona del proyecto. Consecuencia. Dificultad para llevar a cabo un control topográfico adecuado.

5 5 2 5 60

Reclutamiento de personal del área de topografía con experiencia en seguimiento topográfico de obras subterráneas y túneles. Capacitación continua del personal.

Tabla 5. Análisis de riesgos del proceso constructivo de lumbrera flotada. Actividad: excavación previa y estabilización con la colocación del fluido estabilizador en su interior

Núm. Actividad Riesgo Causa/Consecuencia

Impacto Probabilidad Riesgo Medida de mitigación Impacto Probabilidad Ries-

EVALUACIÓN DEL RIESGO INICIAL. PROCEDIMIENTO CONSTRUCTIVO LUMBRERA FLOTADA

3 3 3 5 45

Recopilación de información histórica de los bancos de nivel profundo y flotantes existentes en el área de la obra y cercanas a ésta. Nivelación topográfica previa al inicio de la construcción. Colocación de banco de nivel profundo, instalación de bancos flotantes referenciados al banco de nivel profundo. Seguimiento continuo de los trabajos de topografía. Instalación de instrumentación: extensómetros en los estratos compresibles.

5 5 2 2 24

2 Excavación previa y estabilización mediante la colocación del fluido estabilizador en el interior de la lumbrera.

f) Falta de supervisión en la fabricación del lodo bentonítico: no llevar un control estricto de la densidad, viscosidad y contenido de arena del fluido estabilizador.

Causa. Falta de laboratorio técnico de control de calidad establecido en el sitio que se encargue de dar seguimiento y monitoreo de las propiedades del lodo bentonítico o del fluido estabilizador que se emplea en la obra para asegurar la estabilidad de la excavación. Consecuencia. Problemas de inestabilidad de la excavación, provocando asentamientos en superficie; falla generalizada de la excavación.

5 5 1 4 44

Contar con los datos y especificaciones que debe cumplir el lodo estabilizador previo al inicio de la construcción. Contar con un plan de inspección y pruebas. Contar en obra con un laboratorio de control de calidad acreditado. Dar seguimiento y monitoreo continuo a la calidad del lodo bentonítico. Tener en el sitio de la obra un equipo de hidrociclones.

5 5 1 1 11

c) Falta de control y seguimiento en la verticalidad de la estructura durante la etapa de inmersión y flotación.

d) Falta de seguimiento continuo y control de los niveles del fluido estabilizador en el interior de la excavación, principalmente durante las fases de inmersión y flotación de la estructura.

e) Falta de monitores topográficos: banco de nivel profundo y bancos de nivelación flotante que permitan monitorear los asentamientos derivados del proceso de excavación

Causa. Falta de personal del área de topografía, especializado en obra subterránea y túneles. Seguimiento topográfico inadecuado. Consecuencia. Riesgo de desplazamientos o volteo de la estructura durante las etapas de inmersión o flotación.

Causa. Falta de personal del área de topografía, especializado en obra subterránea y túneles. Falta de supervisión técnica en obra. Seguimiento topográfico inadecuado. Consecuencia. Riesgo de desplazamientos, volteo o falla generalizada de la estructura durante las etapas de inmersión o flotación.

Causa. Falta de información histórica y actualizada de la condiciones de desplazamientos verticales de la zona de estudio. Consecuencia. Desconocimiento de la velocidad de asentamiento y desplazamientos asociados al procedimiento constructivo.

5 5 2 5 60

3 3 3 2 18

g) Falta de control y registro estricto del volumen realmente excavado contra el volumen teórico de la excavación.

5 5 2 5 60

Seguimiento topográfico continuo y preciso durante la fase de construcción de la lumbrera. 5 5 2 1 12

Causa. Falta de personal de topografía en el sitio que permita dar seguimiento continuo a los niveles de excavación. Falta de personal encargado en el sitio para llevar el control de los volúmenes realmente excavados y compararlos contra los volúmenes teóricos de excavación. Consecuencia. Sobreexcavación o subexcavación de material, lo que provoca no cumplir con los niveles de desplante de la estructura y el nivel de arrastre hidráulico del túnel, además de tener un mayor consumo de material para inyección o que no pueda descender la estructura.

Causa. Falta de información geotécnica del sitio, desconocimiento de la estratigrafía, clasificación y propiedades índice/mecánicas del suelo.

4 4 3 4 44

Contar en el sitio con una brigada de topografía para monitorear continuamente los niveles de excavación. Contar en el sitio con personal técnico encargado específicamente a dar seguimiento al proceso de excavación de la lumbrera. Capacitación continua del personal.

4 4 3 2 22

3 3 3 5 45

Presencia en obra de supervisión técnica continua. Seguimiento topográfico continuo en el sitio. Presencia de personal de control de calidad durante toda la fase de construcción.

Recopilación de información histórica de los bancos de nivel profundo y flotantes del área de la obra y cercanas a ésta. Nivelación topográfica previa al inicio de la construcción. Colocación de banco de nivel profundo, instalación de bancos flotantes referenciados al banco de nivel profundo. Seguimiento continuo de los trabajos de topografía. Instalación de instrumentación: extensómetros en los estratos compresibles.

5 5 2 2 24

h) Desconocimiento de las condiciones geotécnicas del sitio de la obra.

Consecuencia. Desconocimiento de la presencia de estratos duros o firmes que compliquen el proceso de excavación del núcleo. Sin la información de geotecnia no sería posible realizar los análisis geotécnicos de estabilidad de la lumbrera: falla de fondo, falla por subpresión, definición de empuje de suelos, etc. Análisis de inmersión y flotación.

4 4 2 5 50

Ejecución de campaña de exploración geotécnica y ensayes de laboratorio, con el objetivo de realizar la caracterización geotécnica del sitio de construcción; definición de modelo geotécnico de análisis. Ejecución de ensayes de piezocono con medición de presión de poro y ensayes de disipación de presión de poro.

Impacto: 1 = muy bajo; 5 = crítico. Probabilidad: 1 = muy baja; 5 = crítica. Riesgo: = (C1 + C2 + C3)*P.

Rr: Riesgo residual.

tificar los riesgos asociados al proceso constructivo por aplicar y de esta forma definir las acciones de mitigación por implementar y disminuir el riesgo tanto durante la fase de construcción como en la fase de operación del proyecto.

3 3 3 1 9

i) Desconocimiento de las condiciones piezométricas del sitio de la obra.

Causa. Falta de información piezométrica del sitio, desconocimiento de la fuerza de subpresión al nivel máximo de excavación; presencia de estratos drenantes.

Consecuencia. Falta de información para el análisis de flotación/inmersión de la lumbrera; falta de información para el diseño de la losa de fondo; falta de información para la revisión de falla por subpresión de la lumbrera.

4 4 4 5 60

4

Rr: Riesgo residual.

j) Desconocimiento de las condiciones geológicas del sitio de la obra.

Causa. Falta de información de las condiciones geológicas del sitio de la obra y su entorno. Consecuencia. Sin la geología del sitio de la obra no se puede definir el modelo geológico de la lumbrera y se tendría desconocimiento de las formaciones y estructuras geológicas presentes

2 2 2 5 30

2 2 2 1 6

❘ Núm. 265 Septiembre - Noviembre 2022 24 25 29 36 38 40 44 48 45 1 2 3 7 8 13 18 14
Rr C1 C2 C3 P C1 C2 C3 P
go
4 2 2 20
4
Ejecución de ensayes de disipación de presión de poro en estratos definidos previamente y clasificados con consistencia dura o firme, o estratos granulares. Colocación de piezómetros a diferentes profundidades. Definición de la posición del nivel freático (NAF). 4 4 2 24
Recopilación de la información técnica disponible: cartas geológicas, informes geológicos relacionados o cercanos al sitio de la obra. Realización de recorridos y levantamientos geológicos. Clasificación geológica de los testigos de muestras recuperados en la campaña de exploración. Elaboración del modelo geológico. Elaboración de especificaciones, procedimiento constructivo y proyecto estructural.
b. Como se aprecia en las tablas 4 a 6, el proceso constructivo de una lumbrera con la técnica de lumbrera flotada Calificación Calificación
representa un procedimiento de riesgo alto, toda vez que su ejecución requiere personal altamente calificado con experiencia en el diseño y ejecución de este tipo de proceso constructivo, así como contar de manera continua con apoyo de topografía especializada y control de calidad que permitan garantizar la seguridad y calidad de las
Impacto: 1 = muy bajo; 5 = crítico. Probabilidad: 1 = muy baja; 5 = crítica. Riesgo: I = (C1 + C2 + C3)*P.

TÉCNICO Análisis de riesgos en la construcción de una lumbrera con el procedimiento...

Tabla 5. Análisis de riesgos del proceso constructivo de lumbrera flotada. Actividad: excavación previa y estabilización con la colocación del fluido estabilizador en su interior (continuación)

Núm. Actividad Riesgo Causa/Consecuencia Impacto Probabilidad Riesgo Medida de mitigación Impacto Probabilidad Riesgo Rr C1 C2 C3 P C1 C2 C3 P

k) Falta de bancos de disposición final del material producto de la excavación.

Calificación

EVALUACIÓN DEL RIESGO INICIAL. PROCEDIMIENTO CONSTRUCTIVO LUMBRERA FLOTADA

Causa. Falta de bancos de tiro autorizados para la disposición final del material producto de la excavación, ya que el lodo bentonítico es contaminante Consecuencia. Acumulación de material en la zona de trabajo de la lumbrera que se traduzca en sobrecargas adicionales. Problemas de estabilidad de la excavación de la lumbrera.

3 3 3 3 27

Previo al inicio de la excavación se debe contar con un banco o bancos de tiro autorizados y con su documentación ambiental en orden.

Tabla 6. Análisis de riesgos del proceso constructivo de lumbrera flotada. Actividades: fabricación, habilitado y flotación de tanque metálico; construcción de losa de fondo y muros de concreto de la lumbrera por tramos, proceso de inmersión y flotación de la estructura, inyección del espacio anular; construcción de brocal definitivo

Núm. Actividad Riesgo Causa/Consecuencia

l) Falta de camiones suficientes para el retiro del material producto de la excavación.

Causa. Falta de camiones para realizar el retiro de la obra del material producto de la excavación. Consecuencia. Acumulación de material en la zona de trabajo de la lumbrera que se traduzca en sobrecargas adicionales. Problemas de estabilidad de la excavación de la lumbrera. Afectación al rendimiento de la excavación.

3 3 3 3 27

3 3 3 1 9

3 Excavación previa y estabilización mediante la colocación del fluido estabilizador en el interior de la lumbrera.

o) Falta de control de calidad y supervisión en el proceso de fabricación del tanque metálico.

m) Falta de personal técnico con experiencia en la ejecución del procedimiento constructivo de lumbrera de flotación.

Causa. Generación de accidentes y atrasos en el proceso constructivo. Consecuencia. Paros continuos en el proceso de construcción. Atrasos en el programa de obra. Incremento en la prima del seguro de la obra. Mala calidad en la ejecución de los trabajos.

Causa. Uso de equipos de excavación antiguos, en mal estado mecánico o mal seleccionados. Falta de mantenimiento preventivo o correctivo.

n) Fallas mecánicas del equipo de excavación.

Consecuencia. Paros continuos en el proceso de construcción, provocando tener abierta la excavación mayor tiempo del planeado originalmente. Atrasos en el programa de obra. Incremento en la prima del seguro de la obra.

4 4 2 4 40

Antes del inicio de la excavación, los departamentos jurídico y procuración de la obra deben generar los contratos de servicios correspondientes con los sindicatos encargados de enviar oportunamente los camiones a la obra. El ingeniero encargado del frente de excavación debe programar oportunamente el número de camiones suficientes para realizar el retiro del material.

Por tratarse de un tipo de obra muy especializada, debe contarse con personal con amplia experiencia. Capacitación continua del personal técnico-administrativo-obrero. Implementación de pláticas de seguridad y medio ambiente diarias, principalmente con el personal obrero, con el objetivo de identificar los riesgos asociados con sus actividades.

3 3 3 1 9

p) Falta de certificados de calidad de los materiales empleados en la fabricación del tanque metálico.

4 4 2 1 10

q) Falta de certificación técnica del personal que construye el tanque metálico.

4 4 2 4 40

Impacto: 1 = muy bajo; 5 = crítico. Probabilidad: 1 = muy baja; 5 = crítica. Riesgo: = (C1 + C2 + C3)*P.

Rr: Riesgo residual.

Selección por parte del área de maquinaria de la obra del equipo adecuado, elaboración del programa de mantenimiento preventivo y correctivo de los equipos y maquinaria de excavación. Uso de equipos en buen estado, de preferencia de años recientes y adecuados para este tipo de trabajo.

distintas etapas constructivas. El contar con información de geotecnia, geología y piezometría del sitio será una valiosa herramienta para mitigar los riesgos constructivos.

c. De acuerdo con los resultados del análisis de riesgos presentado en las tablas 4 a 6 de este documento, existen algunos casos donde el riesgo inicial obtenido es “Inaceptable” (casilla indicada en color rojo), pero aplicando las medidas de mitigación se obtiene un riesgo residual “Potencialmente aceptable” (casilla indicada en color amarillo); esto significa que, aun cuando se apliquen las medidas de mitigación, no se alcanza a obtener un riesgo “Aceptable” (casilla indicada en color verde); esta condición no pone en riesgo la estabilidad ni la seguridad de la estructura, ni significa que la aplicación del procedimiento

4 4 2 1 10

no sea posible; la interpretación de estos escenarios puede enfocarse en tomar en cuenta en el análisis y gestión de riesgos que dicha actividad conlleva un nivel de riesgo que amerita atención, seguimiento y monitoreo especial durante la ejecución de los trabajos.

d. En los casos donde se reportó un nivel de riesgos “Inaceptable”, y luego de la implementación de las medidas de mitigación se obtiene un nivel de riesgos “Aceptable”, significa que las medidas de mitigación son las adecuadas y necesarias para asegurar la seguridad y calidad de la obra. Hay que aceptar siempre la existencia de un riesgo residual, cuya desaparición hace necesario un análisis costo-beneficio, con la finalidad de decidir si desde el punto de vista económico se justifica la inversión.

4 Construcción de losa de fondo y muros de concreto de la lumbrera por tramos, proceso de inmersión y flotación de la estructura.

r) Falta del análisis del proceso de inmersión flotación de los tramos de estructura por construir.

t) Excentricidades en los tramos por construir, por la presencia de trabes de borde, refuerzos de acero especiales, etc.

Rr: Riesgo residual.

Impacto Probabilidad Riesgo Medida de mitigación

Calificación

Impacto Probabilidad Riesgo Rr

C1 C2 C3 P C1 C2 C3 P EVALUACIÓN DEL RIESGO INICIAL. PROCEDIMIENTO CONSTRUCTIVO LUMBRERA FLOTADA

Causa. Falta de supervisión y control de calidad durante la fabricación del tanque. Consecuencia. Problemas de estanqueidad del tanque metálico, por ejemplo: porosidad de la soldadura. La falta de estanqueidad genera problemas de estabilidad durante el proceso de flotación o inmersión de la estructura.

Causa. Falta de certificados de calidad del personal involucrado en la fabricación del tanque. Consecuencia. Problemas en la calidad y estanqueidad del tanque metálico. La falta de calidad y estanqueidad compromete el comportamiento estructural del tanque, principalmente durante la fase constructiva.

Causa. Falta de certificación técnica del personal que fabrica el tanque. Consecuencia. Problemas en la calidad y estanqueidad del tanque metálico. La falta de calidad y estanqueidad compromete el comportamiento estructural del tanque, principalmente durante la fase constructiva. En particular, la actividad de soldadura debe ser ejecutada por personal calificado y certificado por una entidad confiable.

Causa. Falta de personal de ingeniería en el sitio de construcción. Consecuencia. Problemas de estabilidad, tanto de la excavación como de la estructura de concreto, principalmente durante la fase de construcción.

Causa. Falta de personal de ingeniería con experiencia en el procedimiento de lumbrera flotada. Consecuencia. Problemas de estabilidad, tanto de la excavación como de la estructura de concreto, principalmente durante la fase de construcción.

Causa. Concentración de acero en zonas puntuales de la estructura. Consecuencia. Problemas de excentricidad, generando volteos o rotaciones de la estructura durante el proceso de inmersión o flotación.

5 5 1 4 44

Contratación de un laboratorio de control de calidad, especializado en estructuras metálicas y soldadura que permita dar seguimiento continuo y adecuado a la fabricación del tanque metálico. Aseguramiento de calidad de los materiales y especificaciones indicadas en el proyecto ejecutivo.

5 5 1 1 11

5 5 1 4 44

Contratación de un servicio de control de calidad, especializado en estructuras metálicas y soldadura que permita dar seguimiento continuo y adecuado a la fabricación del tanque metálico. Aseguramiento de calidad de los materiales y especificaciones indicadas en el proyecto ejecutivo.

5 5 1 4 44

Contratación de un laboratorio de control de calidad, especializado en estructuras metálicas y soldadura que permita dar seguimiento continuo a la fabricación del tanque metálico. Aseguramiento de calidad de los materiales y especificaciones indicadas en el proyecto ejecutivo.

5 5 1 1 11

5 5 2 5 60

5

5 2

5 5 2 5 60

Contar con asesor técnico con experiencia en el diseño y construcción de lumbreras flotadas. 5 5 2 1 12

5 5 2 5 60

Contar con personal de ingeniería especializado en la obra permitirá realizar de manera oportuna y ágil las revisiones geotécnicas de estabilidad correspondientes. Contratación de ingeniero estructurista, establecido en el sitio de construcción. Verificación de los armados previo al colado de la sección.

1 12

❘ Núm. 265 Septiembre - Noviembre 2022 26 27 29 36 38 40 44 48 45 1 2 3 7 8 13 18 14
TEMA DE PORTADA
ARTÍCULO
1 1 11
5 5
Contar con personal de ingeniería especializado en la obra permitirá realizar de manera oportuna y ágil las revisiones geotécnicas de estabilidad correspondientes. Contratación de ingeniero geotecnista, establecido en el sitio de construcción. Elaboración del programa de inmersión y flotación de la estructura. 1 12
s) Análisis de inmersión / flotación mal realizado.
5 5 2
Impacto: 1 = muy bajo; 5 = crítico. Probabilidad: 1 = muy baja; 5 = crítica. Riesgo: I = (C1 + C2 + C3)*P.

TEMA DE PORTADA ARTÍCULO TÉCNICO Análisis de riesgos en la construcción de una lumbrera con el procedimiento...

Tabla 6. Análisis de riesgos del proceso constructivo de lumbrera flotada. Actividades: fabricación, habilitado y flotación de tanque metálico; construcción de losa de fondo y muros de concreto de la lumbrera por tramos, proceso de inmersión y flotación de la estructura, inyección del espacio anular; construcción de brocal definitivo (continuación)

Núm. Actividad Riesgo Causa/Consecuencia Impacto Probabilidad Riesgo Medida de mitigación Impacto Probabilidad Riesgo Rr

C1 C2 C3 P C1 C2 C3 P EVALUACIÓN DEL RIESGO INICIAL. PROCEDIMIENTO CONSTRUCTIVO LUMBRERA FLOTADA

5 Inyección del espacio anular que se presenta entre el perímetro de la excavación y la cara exterior de la estructura de concreto.

u) Falta de control de calidad de la mezcla de inyección a colocar en el espacio anular existente entre el perímetro de la excavación y la cara externa de concreto de la estructura construida.

v) Falta en el seguimiento del volumen y presión de inyección aplicada en el relleno del espacio anular.

Causa. Falta supervisión y control de calidad en obra.

Consecuencia. Problemas en la calidad y colocación de la mezcla de inyección anular pueden provocar problemas de asentamientos o bufamientos diferenciales, principalmente en el fondo de la lumbrera pero también en superficie.

Causa. Falta de personal técnico en obra que se encargue de dar seguimiento al monitoreo y registro de los volúmenes y presiones realmente inyectados en el sitio, comparando esta información con los datos teóricos.

Consecuencia. Mala calidad en el relleno del espacio anular. Presencia de oquedades entre la línea de excavación y la cara exterior de concreto y generación de presiones no deseadas.

2 2 5 5 45

Contratación de un laboratorio de control de calidad certificado que permita verificar y corroborar que se cumplan con las especificaciones técnicas del proyecto.

2 2 5 1 9

Excavación profunda en la zona urbana de Monterrey

2 2 5 5 45

Contratación de un laboratorio de control de calidad certificado, establecido en el sitio del proyecto, que permita verificar y corroborar de manera oportuna se cumplan con las especificaciones técnicas del proyecto.

2 2 5 1 9

w) Falta de control en la colocación uniforme durante el ascenso de la inyección.

6 Construcción de brocal definitivo.

Causa. Falta de personal técnico en obra que se encargue de dar seguimiento al monitoreo y registro de los volúmenes y presiones realmente inyectados en el sitio, comparando esta información con los datos teóricos.

Consecuencia. Mala calidad en el relleno del espacio anular. Presencia de oquedades entre la línea de excavación y la cara exterior de concreto y generación de presiones no deseadas.

x) Falta de supervisión en el habilitado del acero de refuerzo del brocal definitivo, para asegurar la conexión correcta con el acero de los muros de concreto.

Causa. Falta de personal técnico en el sitio que supervise los trabajos de habilitado del acero de refuerzo. Consecuencia. Deficiencias en el habilitado del acero de refuerzo.

2 2 5 5 45

Contratación de un laboratorio de control de calidad certificado, establecido en el sitio del proyecto que permita verificar y corroborar de manera oportuna que se cumpla con las especificaciones técnicas del proyecto.

2 2 5 1 9

En el número 411 de la Av. Constitución, en Monterrey, sobre la margen izquierda del río Santa Catarina y al poniente de su cruce con la Av. José M. Pino Suárez, se construye un edificio de 26 niveles (casi 100 m), con cuatro niveles de sótanos para estacionamiento. La excavación de 14 m de profundidad se realizó a cielo abierto en una secuencia de suelos aluviales gruesos que sobreyacen en dos estratos de arcilla residual y un basamento de roca lutita. El sistema de retención fue mediante una pantalla discontinua de pilas de concreto apuntaladas con dos niveles de anclas de tensión. En este artículo se comentan los detalles técnicos del sistema de retención, los resultados de los análisis del comportamiento teórico, el procedimiento seguido para llevar a cabo la excavación y los resultados de la instrumentación colocada.

ANTECEDENTES

Usos del espacio subterráneo

• Normas, reglamentos y restricciones sociales aplicables.

3 3 3 3 27

Impacto: 1 = muy bajo; 5 = crítico. Probabilidad: 1 = muy baja; 5 = crítica. Riesgo: = (C1 + C2 + C3)*P.

Rr: Riesgo residual.

e. Una cuarta fase del análisis de riesgos puede estar enfocada en definir la valorización de cada una de las medidas de mitigación identificadas. Esta valoración debe realizarse para obtener el importe total de la implementación de las medidas de mitigación, así como el tiempo necesario para su implementación.

f. El análisis de riesgos es una herramienta de ingeniería sumamente importante, pero se recomienda que sea desarrollada en todas las áreas que participan en el proyecto por personal calificado y con experiencia, tanto en diseño como en el procedimiento constructivo por aplicar

Contratación de personal de ingeniería, encargado de revisar el proceso de habilitado de acero de refuerzo. Contar con supervisión técnica de obra.

3 3 3 1 9

Referencias

Asociación Mexicana de Ingeniería de Túneles y Obras Subterráneas, AMITOS (1986). Los túneles perforados en las arcillas blandas de la Ciudad de México. Mesa Redonda.

Guglielmetti, V., et al. (2007). Mechanized tunnelling in urban areas, design methodology and construction control.

Moreno, A. (1991). Lumbreras y túneles en suelos. Experiencias innovadoras en la ingeniería mexicana (Shaft and tunnels in soils. Innovative experiences in Mexican engineering). Trabajo de admisión ante la Academia Mexicana de Ingeniería.

Apreciamos su opinión e información sobre el tema de este artículo. Escríbanos a geotecnia@heliosmx.org

El aprovechamiento de espacios subterráneos en los grandes centros urbanos del mundo ha recibido un notable respaldo de organizaciones internacionales como ITACUS (uno de los comités permanentes de la Asociación Internacional de Túneles, ITA), que los promueve para usos relacionados con transporte, drenaje, almacenaje, infraestructura, estacionamientos, etc. Sobre el particular, cabe comentar que a partir del año 2009 la ciudad de Monterrey inicia la construcción de grandes edificios con 100 o más metros de altura, los cuales requieren espacios subterráneos para estacionamiento y para sus propias instalaciones operacionales.

Riesgos asociados a las excavaciones en zonas urbanas

Los riesgos que se tienen cuando se realiza una excavación en una zona urbana están asociados principalmente al entorno en el que aquella se ejecuta; para evaluarlos deben tomarse en cuenta, entre otros, los siguientes factores:

• Dimensiones, disposición arquitectónica y estructural de los edificios y construcciones vecinas, incluyendo su cimentación. Características y flujo vehicular de las vialidades colindantes. Ubicación detallada y características de las instalaciones urbanas circundantes.

• Estratigrafía y propiedades geotécnicas del subsuelo, presencia de agua subterránea o en cuerpos de agua vecinos.

• Condiciones climáticas durante el tiempo en que se realice la excavación.

El desconocimiento y consecuente desatención de alguno de los factores mencionados puede dar lugar a desafortunados contratiempos durante la ejecución de la obra. En el mejor de los escenarios, tales contratiempos pueden ocasionar pequeños derrumbes de material hacia el interior de la excavación y desplazamientos poco relevantes del entorno, sin mayores afectaciones a la estabilidad e integridad de las estructuras e instalaciones vecinas. Por el contrario, en casos extremos, los efectos pueden ser devastadores, con eventual pérdida de vidas humanas y cuantiosos daños económicos.

❘ Núm. 265 Septiembre - Noviembre 2022 28 29 29 36 38 40 44 48 45 1 2 3 7 8 13 18 14
Calificación
Ubaldo A. Fuentes M. Euro Estudios S.A de C.V., Departamento de Geotecnia. Juan J. Schmitter M. Asesor geotecnista.
ARTÍCULO TÉCNICO Ir a TexTo CorrIdo @

DATOS GENERALES DEL PROYECTO

Ubicación

El predio en el que se realizó la excavación se localiza en el número 411 de la Av. Constitución, en la ciudad de Monterrey (véase figura 1).

Descripción

El edificio que se construye alcanzará una altura máxima de 106 m con respecto al nivel de banqueta (véase figura 2); tendrá 10 niveles de estacionamiento –cuatro subterráneos y seis por arriba del nivel de banqueta–, encima de los cuales tendrá un nivel de área comercial, nueve niveles para uso como hotel, seguidos de otros 10 niveles para oficinas.

Edificios, vialidades y río vecino

El predio donde se construye la Torre 411 colinda al norte con la calle Ponciano Arriaga, de poco movimiento vehicular, y al sur con los carriles laterales de la Av. Constitución, con intenso movimiento vehicular, ubicados sobre la margen izquierda del río Santa Catarina. La colindancia oriente es

una estación central de bomberos con planta baja y primer piso, sin sótano, cimentada sobre zapatas; la del poniente es un edificio de oficinas de ocho pisos (casi 20 m) y dos niveles de sótanos, desplantados a una profundidad de casi 5 m, la cual tiene una amplia plaza frontal sobreelevada cerca de 3 m sobre el nivel de banqueta y con tres niveles de sótanos, desplantados a casi 7 m de profundidad. Cabe mencionar que, por disposiciones reglamentarias, se han dejado dos franjas libres de construcción, de aproximadamente 2 m de ancho, en las colindancias al oriente y al poniente.

CARACTERÍSTICAS GEOTÉCNICAS DEL SUBSUELO

Estratigrafía y propiedades

La estratigrafía se inicia con una secuencia de suelos aluviales constituidos por gravas y boleos empacados en limo arenoso y arena gruesa, desde el nivel de banqueta hasta una profundidad media de 13.2 m. Le subyacen dos estratos de origen residual, el primero desde los 13.2 m hasta los 18.5 m, que corresponde a una arcilla de baja plasticidad de consistencia media a firme, seguido de un estrato de gravas mal graduadas que se extiende hasta 21.0 m de profundidad.

Finalmente, aparece roca lutita alterada desde los 21.0 m, que mejora su calidad hasta la profundidad máxima explorada de 39.5 m. El nivel freático se detectó a una profundidad promedio de 10.0 m.

En la tabla 1 se muestran las propiedades índices y porcentajes granulométricos de los materiales encontrados.

Estratigrafía

Las propiedades mecánicas que fueron utilizadas en los análisis del proceso constructivo de la excavación se muestran en la tabla 2.

Las propiedades mecánicas del suelo φ y c mostradas en la tabla 2 se determinaron tanto en campo mediante un phicómetro como en laboratorio mediante cámara triaxial. El módulo de elasticidad considerado para el estrato E-01 fue de 387 kg/cm2 y para el estrato E-02 de 110 kg/cm 2 . Estos valores fueron determinados en campo mediante un presiómetro Menard.

Concepto de cimentación

Tomando en cuenta tanto la estratigrafía y propiedades geotécnicas del subsuelo del sitio como las características arquitectónicas y estructurales de la Torre 411, se consideró

Estrato (m) SUCS w (%) G (%) S (%) F (%)

E-01 (00.00 a 13.2) GP-GM < 10 85 5 10

E-02 (13.2 a 18.5) CL 30 17 19 64

E-03 (18.5 a 21.0) GP < 10 97 2 1

E-04 (21.0 a 30.0) Lutita, RQD 50 a 80% – – – –

razonable procurarle una cimentación mediante pilas empotradas en el estrato rocoso de lutita, que se inicia aproximadamente a los 21 metros de profundidad.

EXCAVACIÓN

Dimensiones

En planta, la excavación realizada se inscribe en un rectángulo de 71 m de largo por 36 de ancho, y su profundidad promedio es del orden de 14 m (véase figura 3). Se aprecia que en su lado sur tiene un leve ajuste geométrico que le genera burdamente una forma de “C”. En la figura 4 se presenta un corte arquitectónico de los cuatro niveles de sótanos para estacionamiento del inmueble.

Sistema de retención Descripción

Con el requerimiento de excavar con el método más rápido y seguro, se seleccionó un sistema de retención perimetral mediante una pantalla discontinua (jaula) de pilas de concreto reforzado coladas in situ de diámetro variable –predominantemente de 1.0 m– desplantadas a una profundidad media de 23.0 m. Las pilas perimetrales de las colindancias norte, sur y oriente se retuvieron mediante dos niveles de anclaje a tensión: el primero a una profundidad promedio de 3.50 m y el segundo a una profundidad de 7.50 m, ambos respecto al nivel de banqueta. Para el caso de las pilas del lindero poniente, se instalaron las anclas a 6.0 m y 9.0 m de profundidad. Las anclas fueron diseñadas para una capacidad a tensión de entre 90 y 100 t. El diseño del primer nivel de anclaje requirió una longitud de anclaje de 18 m, y el segundo una longitud de 23 m. La longitud libre en ambos niveles de anclas fue de 10 m. Adicionalmente, en el espacio entre pilas se consideró un soporte inicial mediante concreto lanzado y posteriormente se construyó el muro perimetral definitivo mediante la misma técnica. En la figura 5 se muestra el sistema de retención aplicado a la excavación.

Análisis geotécnicos

Los análisis del proceso de excavación se realizaron con ayuda de los programas de cómputo PLAXIS 2D y PLAXIS 3D, basados en elementos finitos. En el modelo 2D, se simuló el comportamiento del suelo mediante el modelo constitutivo Mohr-Coulomb; las pilas de concreto se simularon mediante elementos placa y las anclas con elementos anchor node to node y anchor fixed extreme. Para el caso del modelo 3D, se utilizaron las mismas características, con la variante de que las pilas se simularon mediante elementos embeded beam

Instrumentación de control

Con el objetivo de registrar los desplazamientos horizontales durante la ejecución de la excavación y construcción de la estructura de retención, se instaló un sistema de instrumen-

❘ Núm. 265 Septiembre - Noviembre 2022 30 31 29 36 38 40 44 48 45 1 2 3 7 8 13 18 14
MODIFICADO DE GOOGLE EARTH POR EURO ESTUDIOS, 2018. N Av. Melchor Ocampo Av. Constitución Av. Ponciano Arriaga Av. José Ma. Pino Suárez Zona de
Río
Figura 1. Ubicación del predio.
excavación
Santa Catarina
MARHNOS, 2017.
Figura 2. Imagen virtual del edificio en construcción, Torre 411. GRUPO Tabla 1. Secuencia estratigráfica, clasificación SUCS, contenido de agua (w), % de gravas (G), arena (S) y finos (F)
ARTÍCULO TÉCNICO ❘ Excavación profunda en la zona urbana de Monterrey
Estrato (m) SUCS γ (t/m3) φ (°) c (kg/cm2) E-01 (00.00 a 13.2) GP-GM 2.0 36 0.4 E-02 (13.2 a 18.5) CL 1.8 22 0.5 E-03 (18.5 a 21.0) GP 1.8 28 0.8 E-04 (21.0 a 30.0) Lutita, RQD 50 a 80% 2.4 – –
Tabla 2. Modelo geotécnico, clasificación SUCS, peso volumétrico γ (t/m3), ángulo de fricción φ (°) y cohesión c (kg/cm2)
7100 3600 1400
Figura 3. Dimensiones de la excavación.
Fuente:
Euro Estudios, 2018.
Lateral Av. Constitución N
Figura 4. Corte arquitectónico de los cuatro niveles de sótanos para estacionamiento.
E-1 Estacionamiento 1 (520.356) E-2 Estacionamiento 2 (517.290)
13.58 4.8 3.06 3.06 3.06
E-3 Estacionamiento 3 (514.230) E-4 Estacionamiento 4 (511.170)
Fuente: Grupo Marhnos, 2018.

ARTÍCULO TÉCNICO Excavación profunda en la zona urbana de Monterrey

se ubicó a 6.0 m respecto al nivel de terreno natural, y el segundo a 9.0 m de profundidad. El desplazamiento teórico se obtuvo del modelo numérico 3D y el desplazamiento real se midió directamente en el INC-Poniente. En las gráficas comparativas se observa una similitud en las deformaciones y magnitudes de desplazamientos a partir de los 9.0 m de profundidad. Sin embargo, desde el nivel del terreno natural hasta 6.0 m de profundidad existen diferencias importantes. Se debe comentar que, en el modelo numérico, los desplazamientos negativos se producen por efecto de la tensión aplicada sobre las anclas. Este comportamiento se observó durante el tensado de las anclas; sin embargo, conforme Figura

tación mediante cuatro inclinómetros INC, dos piezómetros abiertos tipo Casagrande PZA (véase figura 6) y un sensor de verticalidad biaxial instalado en una de las columnas del edificio que colinda con el poniente de la excavación. Las mediciones comenzaron desde el inicio de la excavación y finalizaron al término del colado de la losa del segundo nivel de estacionamiento.

Como era de esperarse, en las cuatro colindancias los desplazamientos de mayor magnitud se presentaron en el fondo de la excavación, y justamente ocurrieron toda vez que ésta alcanzó los niveles de proyecto establecidos. A manera de ejemplo, en la figura 7 se presentan los desplazamientos registrados en el inclinómetro INC-Poniente, que por cierto quedó embebido en una de las pilas del sistema de retención.

Comportamiento teórico esperado

De los distintos modelos realizados para la zona poniente del sistema de retención, se obtuvieron los desplazamientos horizontales teóricos. Del modelo 2D se obtuvieron los desplazamientos en el elemento placa, mientras que del modelo 3D se obtuvieron de uno de los elementos embeded beam En ambos modelos se obtuvo el desplazamiento máximo al nivel máximo de excavación, aproximadamente a 14.0 m de profundidad; sin embargo, se observa una dispersión importante, mientras que en el modelo 3D se obtiene un desplazamiento máximo de 12.0 mm, y en el modelo 2D se obtuvo un desplazamiento de 38.0 mm. En la figura 8 se presentan las gráficas comparativas de los desplazamientos. Las abreviaturas indican lo siguiente: 2D es la gráfica de desplazamientos horizontales obtenida del modelo en dos dimensiones y 3D del modelo en tres dimensiones; NME es el nivel máximo de excavación y NDCE es el nivel de desplante del cajón de cimentación del edificio colindante al poniente.

Comparativa de desplazamientos

En la figura 9 se presentan las gráficas comparativas de los desplazamientos horizontales teóricos vs. medidos en campo sobre una de las pilas del sistema de retención del lindero poniente. La pila es de 1.0 m de diámetro y está desplantada a 23.0 m de profundidad. El primer nivel de anclas

Gravas bien graduadas con limo inorgánico color café claro Arcilla arenosa con intercalaciones de gravas gruesas Boleos y gravas gruesas bien graduadas Lutita color gris de mala calidad

Lutita color gris de buena calidad

Fuente: Euro Estudios, 2018.

INC-Poniente Eje A Ancla tensada

Ancla tensada

avanzó la excavación, los desplazamientos reales indican que posiblemente existió una pérdida de tensión en las anclas que produjo un “efecto de relajamiento” en el terreno, por lo cual los desplazamientos se producen en el sentido positivo (hacia la excavación). Debido a lo anterior, es importante tener en cuenta este efecto durante el análisis y modelado numérico.

Aspectos constructivos Pilas

Tanto las pilas del sistema de retención (diámetros 100, 120, 160 y 200 cm) como las de cimentación (diámetros 100, 120, 160 y 180 cm) fueron preexcavadas, con ayuda de una máquina perforadora, hasta una profundidad que garantizase que quedaran empotradas, por lo menos dos diámetros de pila, dentro del estrato de roca que se inicia en promedio a 21 m de profundidad. Como la mayor parte de las pilas tuvieron 100 cm de diámetro, la profundidad predominante fue de 23 m. Para estabilizar las paredes de las perforaciones se utilizaron ademes metálicos recuperables y adicionalmente, en casos puntuales de la colindancia sur, se realizaron inyecciones previas para estabilizar los suelos granulares

sueltos superficiales. Al final de la perforación se colocaba el acero de refuerzo y se efectuaba el colado en sitio de la pila correspondiente.

Las pilas del sistema de retención (casi un centenar), ubicadas en la periferia de la excavación, fueron perforadas desde la superficie original del terreno, y su nivel del colado llegó prácticamente hasta ahí. Cabe añadir que varias de aquellas, además de formar parte del sistema de retención, también formaron parte de las pilas de cimentación. Por su parte, las pilas de cimentación (algo más de medio centenar) ubicadas en el núcleo central de la excavación fueron construidas cuando aquella se encontraba a casi 8 metros de profundidad con respecto al nivel de banqueta, es decir, a casi 2 metros por arriba del nivel freático.

Excavación

Con el objetivo de controlar el alivio de esfuerzos durante la ejecución de la excavación, se limitaron los avances mediante módulos. El primer paso fue formar la rampa de acceso para vehículos y maquinaria (véase figura 10), y conforme se avanzó, se realizaba simultáneamente la construcción de las anclas y el muro perimetral de concreto

Lecho superior de trabe perimetral NAF

Máximo desplazamiento Nivel máximo de excavación

Hacia el lado poniente (–)

Hacia excavación (+)

Fuente: Euro Estudios, 2018.

❘ Núm. 265 Septiembre - Noviembre 2022 32 33 29 36 38 40 44 48 45 1 2 3 7 8 13 18 14
5. Esquema del sistema de retención.
Pilas de retención Anclas de tensión Anclas de tensión
Fuente: Euro Estudios, 2018. Figura 6. Ubicación de inclinómetros (INC) y piezómetros (PZA). Figura 7. Desplazamientos registrados en el INC-Poniente.
INC-Poniente PZA-Norte INC-Norte PZA-Sur INC-Sur INC-Oriente Profundidad (m) 0.00 –1.00 –2.00 –3.00 –4.00 –5.00 –6.00 –7.00 –8.00 –9.00 –10.00 –11.00 –12.00 –13.00 –14.00 –15.00 –16.00 –17.00 –18.00 –19.00 –20.00 –21.00 –22.00 –23.00 –24.00 –25.00 –26.00 –27.00 –28.00 –20.00 –15.00 –10.00 –5.00 0.0 5.0 10.0 15.0 20.0
Desplazamiento (mm)
lanzado. Figura 8. Desplazamientos teóricos horizontales obtenidos de los modelos 2D y 3D. Figura 9. Comparativa de desplazamientos horizontales teóricos (modelo numérico) y reales (INC-Poniente).
Cajón de cimentación edificio colindante al poniente 14 t/m Profundidad (m) Profundidad (m) 0.00 –1.00 –2.00 –3.00 –4.00 –5.00 –6.00 –7.00 –8.00 –9.00 –10.00 –11.00 –12.00 –13.00 –14.00 –15.00 –16.00 –17.00 –18.00 –19.00 –20.00 –21.00 –22.00 –23.00 –20 –15 –10 –5 0 5 10 15 20 25 30 35 40 Desplazamiento horizontal Ux (mm)
Fuente: Euro Estudios, 2018. Fuente: Euro Estudios, 2018.
2D 3D Pila NME NDCE Ancla 90 t Ancla 100 NME
desplante pilas 0.00 –1.00 –2.00 –3.00 –4.00 –5.00 –6.00 –7.00 –8.00 –9.00 –10.00 –11.00 –12.00 –13.00 –14.00 –15.00 –16.00 –17.00 –18.00 –19.00 –20.00 –21.00 –22.00 –23.00 –8 –6 –4 –2 0 2 4 6 8 10 12 14 Ux (mm)
Ancla
t Ancla 100 NME
Lecho superior viga perimetral
Nivel
Modelo numérico INC-Poniente
90

ARTÍCULO TÉCNICO Excavación profunda en la zona urbana de Monterrey

Incremento de desplazamientos por excavación de cisterna

Posteriormente, se realizó el avance de la excavación de poniente a oriente y de la misma forma se construyó el sistema de retención. El último paso de la secuencia de las excavaciones consistió en retirar el material del frente oriente (véase figura 11). El proceso constructivo de este lindero fue similar al de las otras colindancias; se limitaron los avances de la excavación, y posteriormente se procedió con la construcción de las anclas y el muro perimetral de concreto lanzado. En la figura 12 se observa un aspecto de la excavación, cuando ya se había llegado al fondo en el lado poniente.

Soporte inicial entre pilas

Esta parte del sistema de retención se resolvió mediante una capa de concreto lanzado de 7.0 cm de espesor, colocada en el espacio entre pilas, el cual tuvo un papel preponderante en el adecuado control de caídos locales del suelo granular y actuó como soporte inicial complementario, para dar el tiempo suficiente de construir el muro perimetral definitivo.

Manejo de percances

Muy pocos fueron los percances que se presentaron durante la instalación de las casi 150 anclas del sistema de retención para

contrarrestar los empujes del terreno y estructuras vecinas, durante la ejecución de la excavación. Entre los más notorios se cuenta el de un ancla del paredón sur que atravesó accidentalmente un colector de la Av. Constituyentes, el que tuvo que ser reparado y se tuvo que instalar una nueva ancla de reemplazo ajustando su inclinación para librar el citado colector. En otra ancla del paredón poniente se alcanzó a tocar un elemento estructural de la cimentación profunda del edificio vecino, lo cual obligó a detener el proceso y cambiar la inclinación horizontal de su ancla de reemplazo, para evitarlo. En el proceso de excavación, uno de los eventos más preocupantes se suscitó sobre la colindancia poniente, durante la conformación de un espacio para construir una cisterna en esa colindancia. Para tal fin, se procedió a excavar un área de aproximadamente 80 m2 a paño de la pared poniente con una profundidad promedio de 2.70 m por debajo del nivel máximo de excavación contemplado en el proyecto. Estas excavaciones provocaron un incremento súbito en los desplazamientos registrados en el INC-Poniente (véase figura 13) en un periodo de aproximadamente 15 días. Al percatarse de este comportamiento, se procedió a revisar la integridad del sistema de retención y a verificar la existencia de desplazamientos en superficie. Debido a la celeridad con la que se presentaban los desplazamientos medidos, se tomó la decisión de rellenar la excavación realizada para alojar la citada cisterna poniente y buscar un procedimiento alterno seguro para su construcción. A partir de que se rellenó la excavación para alojar la cisterna poniente, la gráfica de desplazamientos vs. tiempo acusó estabilidad. Congruentemente se modificó el proyecto arquitectónico-estructural para la construcción tanto de la citada cisterna poniente como de la oriente.

CONCLUSIONES

La utilización del espacio subterráneo para fines de estacionamiento es un recurso que ha sido aprovechado en las grandes ciudades del mundo y de México, especialmente bajo edificios de regular o gran altura.

Con los avances de la tecnología, es ahora posible tener un acceso seguro al subsuelo conservando la estabilidad de las instalaciones urbanas, vialidades y edificios vecinos.

En el ejemplo de excavación segura en suelos granulares que aquí se presenta, se ha utilizado una ataguía discontinua formada por pilas de concreto reforzado (jaula), cada una de las cuales fue anclada al terreno vecino conforme se iba profundizando la excavación. De manera complementaria, los espacios libres entre pilas fueron soportados temporal y definitivamente mediante muros de concreto lanzado.

Parte importante del proceso constructivo fue el seguimiento del comportamiento de la ataguía perimetral, me-

diante mediciones continuas del desplazamiento horizontal del terreno, realizado con inclinómetros instalados para tal fin. Ello permitió en su momento realizar acciones correctivas que ayudaron a conservar la estabilidad de la ataguía y por ende de las estructuras vecinas.

Cabe mencionar que, gracias a los métodos computacionales de análisis basados en el elemento finito, fue posible modelar con razonable certeza el comportamiento esperado de la excavación, y ajustar o añadir los elementos de construcción necesarios para evitar desagradables sorpresas. Conviene señalar que para este problema los modelos numéricos en 3D reprodujeron de forma apropiada y más aproximada el comportamiento esfuerzo-deformación de la masa de suelo y de los elementos estructurales que conforman el sistema de retención. No obstante, hay efectos en el sistema que no fueron determinados de forma acertada en los modelos realizados.

Finalmente, como una relevante conclusión de la experiencia relatada, se destaca que además de los avanzados procedimientos de construcción ahora disponibles, el racional uso del trinomio diseño, construcción y observación permite realizar obras con menor porcentaje de riesgo

Este trabajo, con el título “Excavación en suelos granulares gruesos de la ciudad de Monterrey para alojar cuatro niveles de sótanos bajo una torre de 26 pisos” fue presentado en la XXX Reunión Nacional de Ingeniería Geotécnica, del 16 al 19 de marzo de 2021 en la Ciudad de México.

Agradecimientos

Se agradece a los ingenieros José Purón Mier y Terán y Alejando Abia Guerrero el apoyo recibido para la elaboración del presente artículo. El pasado 18 de febrero de 2022, los directivos de las empresas propietarias del edificio inauguraron su magno proyecto Torre 411. Desde su concepción formal, el proyecto en cuestión tardó seis años en materializarse; el 38% de ese lapso se requirió para su diseño, el 17% para la excavación de su infraestructura, el 10% para la construcción de ésta y el 35% para su superestructura.

Apreciamos su opinión e información sobre el tema de este artículo. Escríbanos a geotecnia@heliosmx.org

❘ Núm. 265 Septiembre - Noviembre 2022 34 35 29 36 38 40 44 48 45 1 2 3 7 8 13 18 14
Figura 10. Inicio de la excavación. Figura 11. Último paso de la excavación. Figura 12. Último paso de la excavación. Pilas de retención Anclas de tensión Anclas de tensión Anclas de tensión Pilas de retención Anclas de tensión Fuente: Euro Estudios, 2018. Fuente: Euro Estudios, 2018. EURO ESTUDIOS, 2018. Figura 13. Gráfica de desplazamientos vs. tiempo del INC-Poniente. Fuente: Euro Estudios, 2018. Figura 14. Edificio terminado.
Desplazamiento (mm) Desplazamientos
A 10.00 9.00 8.00 7.00 6.00 5.00 4.00 3.00 2.00 1.00 0.00 –1.00 –2.00 29sep18 06oct18 13oct18 20oct18 27oct18 03nov18 10nov18 17nov18 24nov18 01dic18 08dic18 15dic18 22dic18 29dic18 05ene19 12ene19 19ene19 26ene19 02feb19 09feb19 16feb19 23feb19 02mar19 09mar19 16mar19 23mar19 30mar19 06abr19 13abr19 20abr19 27abr19 04may19 11may19 18may19 25may19 01jun19 08jun19 15jun19 22jun19 29jun19 06jul19 13jul19 20jul19 27jul19 03ago19 10ago19 17ago19 24ago19 31ago19 07sep19 14sep19 –13 Relleno cisterna Excavación cisterna Última medición
horizontales eje
@

Promoción de la educación continua de la

Sociedad Internacional de Mecánica de Suelos e Ingeniería Geotécnica

Conscientes de que la educación continua forma parte importante del desarrollo profesional, la Sociedad Internacional de Mecánica de Suelos e Ingeniería Geotécnica (ISSMGE) ha publicado en su sitio web un número extenso de publicaciones y herramientas, con acceso libre. En esta nota se busca dar a conocer la existencia de este material, para beneficio de nuestros lectores.

Desde el punto de vista educativo, el concepto general está englobado en la universidad virtual (www. virtualuniversity.issmge.org), que contiene:

• Cursos cortos. Divididos en siete temas: Mitigación de riesgo, monitoreo y métodos observacionales (4 cursos); Pruebas in situ (4); Ingeniería sísmica (3); Cimentaciones (4); Caracterización de suelos (5); Educación de geoingeniería (3); Mecánica de suelos no saturados (6). En la figura 1 se muestran algunos ejemplos.

• Seminarios en línea (webinars) pregrabados. Contiene 50 seminarios, impartidos entre 2012-2020, que tratan una gama muy amplia de temas. Incluye el impartido por Gabriel Auvinet “Retos geotécnicos de la arcilla de la Ciudad de México”.

• Conferencias honoríficas. Seis conferencias impartidas entre 2012-2018, con expositores como M. Jamiolkowski y N. Morgenstern, entre otros.

• Charlas técnicas interactivas. Se incluye una mesa redonda sobre depósitos y residuos mineros.

• Presentaciones. Contiene tres conferencias de temas diversos.

• Además, se pueden consultar, con acceso libre, diversas publicaciones de interés (www.issmge.org):

• Revista de casos históricos (International Journal of Geoengineering Case Histories). Una de las revistas oficiales de la ISSMGE, que abarca un área muy amplia de la práctica de la ingeniería geotécnica (suelos y rocas), incluyendo ingeniería geotécnica sísmica, ambiental, geología y geoconstrucción energética. Es una revista arbitrada con énfasis en

los casos históricos, con mediciones y observaciones durante y después de la construcción del proyecto. En la figura 2 se muestra el mapa interactivo con la localización de los casos reportados.

• Biblioteca en línea. Contiene las memorias de todos los congresos internacionales (desde 1936) y regionales (Panamericano, Europeo, etc.), así como de eventos organizados por diversos comités técnicos de la ISSMGE. La herramienta de búsqueda es amigable, al permitir filtrar los resultados de acuerdo con la base de datos seleccionada, autor o palabras clave.

Con estas aportaciones, la ISSMGE busca contribuir a la educación de los ingenieros geotécnicos alrededor del mundo. Cabe señalar que se puede acceder a esta información a través del sitio web de la ISSMGE, o bien utilizando una aplicación gratuita para teléfono inteligente o tableta

❘ Núm. 265 Septiembre - Noviembre 2022 36 37 29 36 38 40 44 48 45 1 2 3 7 8 13 18 14
ÁMBITO ACADÉMICO
Vicepresidente por Norteamérica, ISSMGE. Figura 1. Ejemplo de cursos cortos en la plataforma educativa de la ISSMGE.
Ir a TexTo Corr do @
Figura 2. Mapa interactivo de casos históricos. Apreciamos su opinión e información sobre el tema de este artículo. Escríbanos a geotecnia@heliosmx.org

LIBROS

PILOTES DE CONTROL, FUNCIONAMIENTO, DISEÑO Y APLICACIÓN

En el ámbito de las cimentaciones profundas para soportar edificios en el suelo blando del Valle de México, surge el problema de la emersión aparente de las estructuras piloteadas ante el fenómeno continuo de la subsidencia. Para resolverlo, los ingenieros mexicanos han propuesto diversos e ingeniosos tipos de pilotes, entre los que destacan los pilotes de control propuestos por Manuel González Flores en 1948, que han sido utilizados en más de 700 edificaciones. Sin embargo, no existen lineamientos reglamentarios para el diseño de cimentaciones con pilotes de control ni criterios formales para su mantenimiento, y pueden surgir problemas de comportamiento de la cimentación, ya que es necesario ajustar o reemplazar periódicamente la celda de deformación. En esta magnífica publicación se presentan los resultados de una detallada y completa investigación, con numerosas fotografías y figuras, que tuvo como objetivo contribuir

TESIS

Modelo elastoviscoplástico anisótropo de consolidación y su implementación en Plaxis

Tesis de Renata Alejandra González Rodríguez para obtener el grado de doctora en Ingeniería Programa de Maestría y Doctorado en Ingeniería Civil – Geotecnia

Universidad Nacional Autónoma de México

Asesor: Efraín Ovando Shelley

Apartir de modelos ya existentes en la bibliografía, se desarrolló un modelo constitutivo enfocado en suelos blandos de comportamiento elastoviscoplástico y que toma en cuenta la anisotropía del suelo. El modelo resultante se implementó en el programa de elemento finito Plaxis como un User Defined Soil Model. El modelo constitutivo implementado corresponde a la unión del EVP y el SCLAY-1. Dicha combinación de formulaciones dio como resultado un modelo capaz de reproducir las características del comportamiento de la arcilla del Valle de México. Para la implementación numérica se empleó un esquema Eüler Forward de primer orden y se incorporó un esquema de substepping para el control del error según lo establecido por Sloan.

La validación del modelo propuesto se hizo a través de la modelación numérica del comportamiento en campo del terraplén

a un mejor entendimiento del sistema de pilotes de control, explicando con detalle los elementos que lo componen, el funcionamiento del sistema en conjunto y el del dispositivo de control.

La investigación aborda con amplitud los criterios de diseño y revisión de los pilotes de control, al igual que procedimientos de cimentación y recimentación con este tipo de pilotes, o la transformación de pilotes existentes en pilotes de control. De importancia son los capítulos de mantenimiento y evaluación de celdas de deformación a partir de pruebas de laboratorio para evaluar el comportamiento mecánico de los materiales utilizados como celda de deformación, que aportan información útil para normar los criterios de diseño y mantenimiento de estos pilotes. En otro capítulo se presenta el comportamiento y vulnerabilidad de pilotes de control ante sismos y la posible necesidad de acciones correctivas inmediatas después de sismos intensos. Esta publicación constituye una referencia esencial para favorecer el buen comportamiento de los edificios cimentados con este tipo de dispositivos.

* Las series del Instituto de Ingeniería pueden consultarse gratuitamente desde la siguiente dirección: http://aplicaciones.iingen.unam.mx/ ConsultasSPII/Buscarpublicación.aspx

¡PRESENTACIÓN INTERACTIVA!

1. Enlaces en PORTADA a artículos destacados,

2. Enlace para FÁCIL ENVÍO DE CORREOS de consultas y comentarios,

3. Enlaces en CONTENIDO a artículos y secciones,

4. Enlace para leer los artículos en TEXTO CORRIDO, 5. MENÚ DE NAVEGACIÓN en la parte inferior de la página

6. Enlaces en el CALENDARIO a sitios de actividades,

7. Enlaces desde anuncios a PÁGINAS DE PATROCINADORES.

de referencia, el cual forma parte del conjunto de terraplenes de prueba construidos para optimizar el diseño de las pistas de lo que sería el NAIM, proyectado para construirse sobre la arcilla blanda del ex Lago de Texcoco. Este terraplén de referencia corresponde al caso para el que no se construyó ningún tipo de cimentación, ni se hizo ningún tipo de mejoramiento al subsuelo.

El terraplén elegido para la validación del modelo cuenta con una vasta información instrumental que incluye el registro de asentamientos y de cambios en la presión de poro, desde el inicio de su construcción hasta 1,462 días después de ella.

A partir de la comparación de los resultados obtenidos con las observaciones de campo en términos de la evolución de asentamientos y la respuesta de la presión de poro, se concluye que la simulación pudo reproducir satisfactoriamente el comportamiento observado. Un análisis adicional, efectuado con la versión isótropa del modelo, mostró que integrar la superficie de fluencia anisótropa, para el caso específico del terraplén de referencia, tuvo una influencia moderada en los resultados. Sin embargo, esto es sólo válido para el caso de estudio considerado en este trabajo, en el cual los incrementos de esfuerzo transmitidos al suelo estuvieron lejos de la condición de falla.

Finalmente, se concluye que el modelo implementado representa una alternativa atractiva para caracterizar el comportamiento de la arcilla blanda de la CDMX en los cálculos de la práctica de la ingeniería.

❘ Núm. 265 Septiembre - Noviembre 2022 38 39 29 36 38 40 44 48 45 1 2 3 7 8 13 18 14
RESEÑAS
1 5 2 3 7 4 6 Ir a TexTo Corr do Ir a TexTo Corr do

Reunión de los consejos de Honor y Consultivo

Los consejos de Honor y Consultivo y la Mesa Directiva de la Sociedad Mexicana de Ingeniería Geotécnica (SMIG) se reunieron el pasado 22 de junio en las instalaciones del Colegio de Ingenieros Civiles de México. Durante la reunión se trataron temas que atañen a las diferentes actividades que la SMIG ha llevado a cabo, así como las que próximamente se realizarán; destacan las relacionadas con la situación financiera, cursos, eventos, conferencias y en especial la XXXI Reunión Nacional de Ingeniería Geotécnica y la XXII Reunión Nacional de Profesores de Ingeniería Geotécnica, que se celebrarán en la ciudad de Guadalajara, Jalisco, del 16 al 19 de noviembre de este 2022.

Asimismo, se revisó el avance de los diferentes libros que serán presentados este año con motivo del 65 aniversario de la SMIG. Como tema relevante, se acordó que la presente edición de la revista Geotecnia será el último número impreso y se continuará con formato digital, luego de haberse analizado ampliamente las ventajas y desventajas de cada una de las opciones. La reunión se desarrolló en un ambiente de cordialidad y buenos deseos para que nuestra querida Sociedad Mexicana de

Ingeniería Geotécnica continúe difundiendo eficientemente el conocimiento y siga siendo referencia nacional e internacional en los temas relacionados con la ingeniería geotécnica

Día Nacional del Minero y Segundo Congreso de Ciencias de la Tierra

Con la organización de la Universidad de Guanajuato, la Cámara Minera de México y la Asociación de Ingenieros de Minas, Metalurgistas y Geólogos de México, del 7 a 9 de julio de 2022 se celebraron en la Escuela de Minas de la Universidad de Guanajuato el Día Nacional del Minero, el Segundo Congreso de Ciencias de la Tierra de la Universidad de Guanajuato y la conmemoración del 195 aniversario de la fundación de la carrera de Ingeniería en Minas. En el evento se presentaron ponencias con temas varios relacionadas con geología, minas y metalurgia.

En representación de la SMIG y del II-UNAM participó Osvaldo Flores Cas -

trellón con un tema en torno a la caracterización mecánica e hidráulica de jales, en campo y laboratorio. Como parte de la charla, se definió el objetivo de la exploración geotécnica y la ejecución de pruebas en campo y laboratorio, y se puso énfasis en la importancia de obtener parámetros mecánicos e hidráulicos confiables y suficientes para generar un

modelo geotécnico que represente las condiciones de sitio. Se mostraron las técnicas más comunes para la caracterización geotécnica del jal en campo y laboratorio, los resultados que se obtienen y cómo se integran estos al modelo geotécnico con el que se realizan los análisis de estabilidad de un depósito de jales.

Bienvenidos, nuevos socios

Se mencionó la importancia de complementar esta información con la proveniente de instrumentación del depósito y la histórica del depósito, así como las condiciones hidrometeorológicas, sísmicas y geológicas, entre otras, para complementar el análisis en las etapas de diseño, operación y cierre del depósito

❘ Núm. 265 Septiembre - Noviembre 2022 40 1 2 3 7 8 13 18 14
• Hiram Arroyo Chávez • María del Carmen Cano Ibarra • Pamela García Ramírez • Daniel Gómez Corzo • José Medina Mendoza
+(52)(55) 9150-1208 , 9150-1209, 9150-1210 www.pilotec.com.mx pilotec@prodigy.net.mx Pilas Muros Milán Tablestacas
de carga estáticas
Flexoimpermeables
de anclaje
de integridad
y diseño geotécnico
Profundas r a TexTo Corr do I r a T ex T o C orr I do
Pruebas
Pilotes Anclas Pantallas
Sistemas
Pruebas
Consultoría
Cimentaciones

El día 11 de julio se llevó a cabo el seminario “Modelado hidroquímico-mecánico multiescala del intemperismo en rocas carbonatadas para evaluar la resiliencia estructural en áreas costeras”; fue impartido por Matteo Oryem Ciantia, profesor titular en la Escuela de Ciencias e Ingeniería de la Universidad de Dundee, Escocia, y destacado investigador especialista en geomecánica experimental y computacional, modelado constitutivo avanzado, caracterización experimental de suelos y rocas, y en métodos numéricos de partículas, como el método de elementos discretos y el de elemento finito de partículas. El seminario se ofreció gratuitamente a través de la plataforma Zoom y fue muy bien recibido por nuestra comunidad geotécnica, con un total de 87 asistentes de países como Bolivia, Canadá, Chile, Colombia, Ecuador, España, Guatemala y Perú. Este seminario fue organizado como parte de las actividades del Comité Técnico en Modelación Numérica de la SMIG, y también se encuentra disponible para su consulta en la videoteca de nuestra sociedad. En la charla, el doctor Ciantia habló de la caracterización y simulación de rocas carbonatadas susceptibles a procesos de intemperismo. Explicó el desarrollo de un marco teórico para la descripción del comportamiento de estos materiales, basado en pruebas de laboratorio, el cual distingue tres procesos de degradación: 1) la desestructuración a corto plazo ocasionada por la saturación del material, 2) la desestructuración a largo plazo como consecuen-

cia de un proceso de disolución de los agentes cementantes entre partículas y 3) la disolución a largo plazo de los granos de la roca. Mientras que el primer proceso es hidromecánico, el segundo y el tercero involucran un acoplamiento hidroquímico-mecánico.

Con base en este marco teórico, el doctor Ciantia también describió el desarrollo de un modelo constitutivo para la simulación numérica de estos materiales calcáreos, así como su aplicación al análisis de problemas prácticos en el sur de Italia, que involucran la presencia de cavidades en estos materiales. Demostró el uso de este tipo de análisis para caracterizar estos procesos de intemperismo y estudiar la evolución de las condiciones de estabilidad de problemas geotécnicos en presencia de rocas carbonatadas

Curso-taller “Laboratorio de Mecánica de Suelos”

Durante el mes de agosto se llevó a cabo el curso-taller “Laboratorio de Mecánica de Suelos”, organizado de forma conjunta por la SMIG y la Facultad de Ingeniería de la UNAM (FI-UNAM). El curso se realizó de forma presencial, en el Laboratorio de Geotecnia “Francisco Zamora Millán” de la División de Ingenierías Civil y Geomática, Departamen-

to de Geotecnia, de esa facultad. Debido al gran interés por parte de nuestra comunidad, se realizaron dos ediciones, una del 1º al 5 de agosto y otra del 8 al 12 de agosto, cada una con una duración total de 40 horas y la participación de 36 asistentes. En el curso se abordaron las principales pruebas de laboratorio, tanto índice como mecáni-

cas, empleadas en la práctica para clasificar y caracterizar el comportamiento de materiales geotécnicos. El curso comprende la ejecución de dichas pruebas por parte de los asistentes, así como toda la teoría involucrada en la correcta interpretación de los resultados. Este curso se imparte por profesores y técnicos de laboratorio de

la FI-UNAM, a los que la SMIG les expresa su agradecimiento. Los temas relacionados con la ejecución e interpretación de pruebas de laboratorio son particularmente difíciles de abordar en un formato remoto, por lo que la organización de este tipo de actividades presenciales genera gran entusiasmo en nuestra sociedad

Se reúne de manera presencial el Consejo Editorial de Geotecnia

Luego de un largo periodo en que las reuniones del Consejo Editorial de la revista Geotecnia se realizaron de manera virtual por motivo de la pandemia de COVID-19, el jueves

18 de agosto se llevó a cabo la primera reunión presencial de dicho consejo, en una sesión desayuno llevada a cabo en las instalaciones del Colegio de Ingenieros Civiles de México

❘ Núm. 265 Septiembre - Noviembre 2022 42 43 29 36 38 40 44 48 45 1 2 3 7 8 13 18 14
De pie: Daniel N. Moser, Raúl López Roldán, Walter I. Paniagua Zavala, Germán López Rincón, Rodrigo Murillo Fernández, Juan Jacobo Schmitter Martín del Campo, Jorge E. Castilla Camacho y Juan de Dios Alemán Velásquez. Sentados: Ricardo Ortiz Hermosillo, Alexandra Ossa López, Margarita Puebla Cadena, Roberto Avelar Cajiga y José Francisco González Valencia.
“Modelado hidroquímico-mecánico multiescala del intemperismo en rocas carbonatadas para evaluar la resiliencia estructural en áreas costeras”
I r a T ex T o C orr I do I r a T ex T o C orr I do
r a TexTo Corr do

Delegaciones Regionales

Conferencia

El 1º de julio pasado se llevó a cabo la conferencia “Cimentaciones en suelos expansivos”, organizada por la Delegación Querétaro de la SMIG y dictada por José Alfredo Zepeda Garrido.

El evento estuvo presidido por el presidente y el vicepresidente de la SMIG.

Miguel Castillo Cruz, vocal de la mesa directiva, fue el moderador.

Durante la conferencia se abordaron temas como la evolución en la investigación sobre los suelos expansivos en México, y especialmente en la Universidad Autónoma de Querétaro. Además,

Nueva

se trató la problemática de las cimentaciones en zonas con presencia de suelos expansivos, una de las más significativas en la mecánica de suelos no saturados.

El maestro Zepeda expuso también avances en el conocimiento de suelos expansivos y las limitaciones en la aplicación práctica de estos; además, planteó algunas alternativas para analizar y diseñar cimentaciones. También mencionó

delegación

de la SMIG en Baja California

El 21 de julio pasado se llevó a cabo de manera virtual la toma de protesta a la nueva Mesa Directiva de la Delegación Regional de la SMIG en Baja California, de nueva creación. El evento fue transmitido desde tres lugares distintos: la Ciudad de México, Tijuana y Oviedo, en España.

brevemente algunos estudios de caso y cuestionó sobre lo que todo ingeniero civil, especialmente el geotecnista, debe saber sobre suelos expansivos y acerca de la reglamentación en construcción relativa a cimentaciones sobre estos tipos de suelos.

Atendieron de manera virtual la conferencia más de 300 personas de México, Centroamérica, Sudamérica y España

En el marco de la toma de protesta, se dictó la conferencia “Inestabilidad de laderas urbanas. Análisis y evaluación del riesgo de deslizamientos en la ciudad de Tijuana-México, a cargo de Aldo Onel Oliva González, de manera remota desde la ciudad de Oviedo.

En la conferencia, el doctor Oliva analizó conceptos, definiciones y aspectos básicos relacionados con la inestabilidad geotécnica de laderas urbanas en general, y en particular con el riesgo de deslizamientos en función de la amenaza y la vulnerabilidad. Describió la problemática de los deslizamientos de laderas en la ciudad de Tijuana y se presentó una metodología general para analizar y evaluar cuantitativamente el riesgo y sus

componentes, a partir de la caracterización del medio físico del área objeto de estudio. La amenaza se estima con base en la susceptibilidad del terreno a la inestabilidad, y calculando la probabilidad de ocurrencia de deslizamientos mediante métodos determinísticos y probabilísticos; la vulnerabilidad es analizada considerando la ubicación de los elementos expuestos respecto a los deslizamientos esperados, las características y costos de las edificaciones. Por último, se aplica la metodología a un barrio de la ciudad, se emiten observaciones y criterios sobre la factibilidad y viabilidad del procedi-

miento propuesto, y se aportan datos y parámetros que facilitan la evaluación de la aceptabilidad del riesgo, así como la toma de medidas para su control y mitigación por parte de las autoridades. La nueva Mesa Directiva quedó integrada de la siguiente manera:

• Ismael Martínez Gómez, vicepresidente

• Luis Fernando González Vergara, secretario

• Juan Carlos Coronado Fararoni, tesorero

• Marco Antonio Berumen Rodríguez y David Mascareño Jiménez, vocales

Capítulos Estudiantiles

Posgrado Benemérita Universidad Autónoma de Puebla

Epasado 3 de marzo se llevó a cabo en línea la renovación de la mesa directiva del Capítulo Estudiantil de la Benemérita Universidad Autónoma de Puebla ante la SMIG. En este marco, Raúl Aguilar Becerril impartió la conferencia “Análisis geotécnico y geosísmico integral para un proyecto en la Ciudad de México” y compartió con los asistentes su amplia experiencia en suelos tropicales.

Actualmente, el doctor Aguilar es director general de la empresa Sísmica de Suelos, S. A. de C. V., que se especializa en estudios relacionados con la dinámica de suelos y la respuesta sísmica del terreno. Fue presidente de la SMIG durante el bienio 2015-2016 y actualmente forma parte de su Consejo Consultivo y preside el Comité Técnico de Ingeniería Geotécnica Sísmica.

En la conferencia abordó el desarrollo de un estudio geotécnico-geosísmico para un proyecto en la zona de la avenida Reforma en la Ciudad de México. Aguilar describió el proceso ingenieril, que abarca el comportamiento del suelo y su interacción con la estructura para lograr un diseño eficiente y con las garantías de seguridad que indica la normativa vigente.

La estructura en estudio contará con un área de 3,200 m 2 , aproximadamente, 17 niveles sobre nivel de calle y tres niveles subterráneos. Las necesidades geotécnicas del proyecto fueron

las siguientes: caracterización geotécnica y geodinámica del terreno, diseño de cimentación, comportamiento del sistema suelo-cimentación, diseño de contención en colindancias, procedimiento constructivo, respuesta sísmica del sitio, espectro de diseño y pares de acelerogramas.

❘ Núm. 265 Septiembre - Noviembre 2022 44 45 29 36 38 40 44 48 45 1 2 3 7 8 13 18 14
“Cimentaciones en suelos expansivos”
I r a T ex T o C orr I do Ir a TexTo Corr do r a TexTo Corr do

Poder visualizar a manera de resumen el trabajo hecho en un estudio integral geotécnico y geosísmico es fundamental para que las nuevas generaciones de ingenieros puedan conocer el nivel de ingeniería que se requiere y así atender las necesidades

reales de los proyectos. Al culminar la conferencia, la SMIG entregó un reconocimiento al ponente por su destacada exposición y a la nueva dirección del capítulo estudiantil, a la que recordó su compromiso ante nuestra sociedad

Epasado 15 de julio, en el marco de las actividades de la mesa directiva del Capítulo Estudiantil 2022-2023 de la Sección de Estudios de Posgrado e Investigación de la ESIA

Unidad Zacatenco del IPN, se celebró la primera conferencia con el tema “Caracterización de espectros de carga en la red mexicana de carreteras”, impartida por Paul Garnica Anguas.

El doctor Garnica es ingeniero civil egresado de la UNAM, con maestría en la misma universidad y doctorado en Geomecánica por la Universidad Joseph Fourier en Francia. Actualmente es director general del Centro de Investigación e Innovación y Desarrollo (CIID) y profesor de

Mecánica de Suelos en el Tecnológico de Monterrey campus Querétaro.

En el presídium se encontraban el presidente de la SMIG y el vocal y coordinador de los Capítulos Estudiantiles; por parte de la SEPI ESIA UZ, la coordinadora de la Maestría de Ingeniería Civil del posgrado y el jefe del área de Geotecnia; por la Mesa Directiva del Capítulo Estudiantil de la SEPI ESIA UZ, el tutor y la presidenta del capítulo.

En la conferencia se abordaron algunos antecedentes y conceptos, como la estructura del pavimento, la importancia de una red de camino y el concepto de espectro de carga de un tipo de eje dado (sencillo, dual, tándem, trídem). Posterior-

mente se habló sobre la modelación de la sección estructural de un pavimento, concepto principal de la conferencia. En seguida se explicó el concepto de espectros de daño, que consiste en cómo se transforma el espectro de carga inicial en un espectro de daño; se vieron algunos ejemplos de cálculo, como el número de repeticiones esperado para cada tipo de eje: se propone una sección de análisis, se obtiene el espectro de daño por fatiga y la distribución acumulada de daño por deformación permanente.

Finalmente, el doctor Garnica Anguas atendió algunas dudas de los participantes y al culminar la conferencia la SMIG le entregó un reconocimiento

❘ Núm. 265 Septiembre - Noviembre 2022 46 47 29 36 38 40 44 48 45 1 2 3 7 8 13 18 14
Roberto Avelar Cajiga, Miguel Castillo, Osvaldo Flores Castrellón, Paul Garnica Anguas, Miguel Ángel Mánica Malcom y Daniel Martínez Oviedo
I r a T ex T o C orr I do
Caracterización de espectros de carga en la red mexicana de carreteras

Cultura

El hombre en busca de sentido

ban una huida hacia el interior de sí mismos, de la pérdida de los principios morales, de la felicidad negativa (vista como ausencia de dolor, según Schopenhauer). Menciona que nadie tiene el derecho a juzgar a otro, a menos que pueda asegurar con absoluta certeza que no habría hecho lo mismo en una situación semejante.

Otros aspectos que toca el autor son los relativos a “morir con sentido” e incluso al humor en los campos de concentración.

E

l hombre en busca de sentido es un libro que marca, que influye poderosamente en el lector. Su autor, Viktor Frankl, era psiquiatra de profesión y, como muchos judíos, fue llevado a varios campos de concentración, donde sufrió todo tipo de horrores y estuvo muchas veces a punto de ser ejecutado por los nazis. En el libro narra sus vivencias, por lo que éste constituye un testimonio sobre lo que sucedía en los campos de concentración. Sin embargo, el autor va mucho más allá de narrar las espantosas circunstancias del holocausto, pues se dedica a estudiar psicológicamente a los seres humanos, desde los prisioneros, los kapos (internos que ayudaban a los nazis en la función de controlar a los otros internos) y los directores del lager (el campo de concentración).

Viktor Frankl aprovechó su formación psicológica para investigar, aun en las peores condiciones, qué es lo que permitía a algunos prisioneros sobrevivir; es decir, que realizó un trabajo que en la etnografía se conoce como “observación participante” y encontró la enorme importancia del “sentido de la vida“ en las personas. A lo largo del texto, Frankl nos habla de cómo los internos realiza-

Si bien el testimonio es aterrador, Frankl encuentra cosas sumamente importantes: que la salvación del hombre consiste en el amor y pasa por el amor; que los supervivientes constituyen una demostración de que “al ser humano se le puede arrebatar todo, salvo la libertad para elegir su propio camino” y que la clave para la salvación está en “tener una meta para el futuro”. Encontró que si un prisionero perdía la fe en el futuro, entonces estaba condenado, porque ante un estado de ánimo decaído y sin esperanza, la capacidad de su sistema inmunológico disminuía y lo llevaba a la muerte. Así pues, lo importante era tener, aun en las peores condiciones, un sentido de la vida.

Finalmente el autor plantea a grandes rasgos su método clínico de psicoterapia, llamado logoterapia, que contribuye al bienestar de los seres humanos. No cabe duda de que Viktor Frankl logró, además de sobrevivir a los campos de concentración, utilizar sus experiencias en ellos, aunadas a su formación, para aportar a la humanidad

Viktor Emil Frankl (Viena, 26 de marzo de 1905-2 de septiembre de 1997)

Conocido como Viktor Frankl, fue un neurólogo, psiquiatra y filósofo austriaco, fundador de la logoterapia y el análisis existencial. Sobrevivió desde 1942 hasta 1945 en varios campos de concentración nazis, incluidos Auschwitz y Dachau. A partir de esa experiencia, escribió el exitoso libro El hombre en busca de sentido

❘ Núm. 265 Septiembre - Noviembre 2022 48 29 36 38 40 44 48 45 1 2 3 7 8 13 18 14
Ir a TexTo Corr do

Turn static files into dynamic content formats.

Create a flipbook
Issuu converts static files into: digital portfolios, online yearbooks, online catalogs, digital photo albums and more. Sign up and create your flipbook.