Kainių raj. sav. – Kėdainių muzikos namai

Page 1

STRUCTUM ,,IŠMANUSIS MIESTAS 10“

Minimalizmas architektūroje: Muzikos namai Kėdainiuose

Minimalism in Architecture: House of Music in Kėdainiai

Stud.: Monika Žuramskaitė

Darbo vadovas: doc. Donaldas Trainauskas

Vilnius, 2024

1 Turinys 1. ĮVADAS 8 1.1. Darbo tema............................................................................................................................ 8 1.2. Tyrimo objektas 8 1.3. Tyrimo problematika, aktualumas........................................................................................ 8 1.4. Darbo tikslas 9 1.5. Darbo uždaviniai................................................................................................................... 9 1.6. Darbo metodika 9 2. TIRIAMOJI DALIS.................................................................................................................... 10 2.1 MINIMALIZMO SUVOKIMAS RYTUOSE ..................................................................... 10 2.1.1. Haiku kaip architektūrinė priemonė 10 2.1.2. Dzenbudizmo filosofija architektūroje............................................................................. 11 2.1.3. Vabisabio principai 13 2.2. MINIMALIZMO SUVOKIMAS VAKARUOSE.................................................................. 15 2.2.1. Tarptautinis stilius 15 2.2.2. Bauhaus interpretacija Amerikoje.................................................................................... 16 2.2.3. Neominimalizmas 17 2.3. MINIMALIZMO SUVOKIMAS EUROPOJE ...................................................................... 18 2.3.1. De Stijl 18 2.3.2. Skandinavų minimalizmas............................................................................................... 19 2.3.3. Italijos Racionalizmas 20
Brutalizmas ...................................................................................................................... 22 2.4. MINIMALIZMAS LIETUVOJE 23 2.4.1. Minimalizmas Lietuvos muzikoje.................................................................................... 23 2.4.2. Minimalizmo raiškos elementų muzikoje sąsaja su architektūra 24 2.4.3. Lietuvos architektūros minimalizmas.............................................................................. 25 2.5. MINIMALIZMO SUVOKIMO SKIRTINGOSE KULTŪROSE APIBENDRINIMAS ...... 27 2.6 ANALOGŲ STUDIJA 28 2.6.1. Koncertų salė Vokietijoje................................................................................................. 29
2.3.4.
2 2.6.2. Koncertų salė Meksikoje 32 2.6.3. Filharmonija Lenkijoje..................................................................................................... 36 2.6.4. Kultūros namai Suomijoje 39 2.6.5. Koncertų salė Vengrijoje.................................................................................................. 41
Analogų studijos analizės apibendrinimas 43
Meninis tyrimas: kanklių minimalistinė raiška....................................................................... 44 2.7.1. Kanklių pirminiai modeliai 44 2.7.2. Kanklių tipai..................................................................................................................... 46 2.7.3. Kanklių istorinės raidos apibendrinimas 48
Kanklių formos geometrizavimas.................................................................................... 48 3. VIETOS TYRIMŲ ANALIZĖ 51 3.1. Vietos ir sklypo pasirinkimas ................................................................................................. 51 3.2. Teritorijos gamtos ir užstatymo santykis 52 3.3. Infrastruktūros ryšių schema................................................................................................... 53 3.4 Reljefas .................................................................................................................................... 55 3.5. Užstatymas 55 3.6. Teritorijos problematika ......................................................................................................... 56 3.7. Vietos tyrimų analizės išvados 57 4. PROJEKTINĖ DALIS............................................................................................................. 58 4.1. Variantinis projektavimas 58 4.2. projekto aiškinamasis raštas................................................................................................ 62 4.2.1. Bendri duomenys 62 4.2.2. Koncepcija................................................................................................................... 63 4.2.3. Sklypo ir teritorijos sprendiniai................................................................................... 65 4.2.4. Funkcija ir ryšiai.......................................................................................................... 67 4.2.5. Architektūriniai sprendiniai......................................................................................... 68 4.2.6. Fasadų sprendiniai....................................................................................................... 72 4.2.7. Vidaus erdvių ir interjero sprendiniai.......................................................................... 73 4.2.8. Statinio prieinamumas. Neįgaliųjų specifinių poreikių tenkinimo sprendiniai........... 76
2.6.6.
2.7.
2.7.4.
3 4.2.9. Gaisrinė sauga ir evakuacija 76 4.2.10. Detali pastato programa............................................................................................... 76 4.2.11. Pasirinktų rėmėjų siūlomų produktų panaudojimo projekte aprašymas 78 5. IŠVADOS ..................................................................................................................................... 82 Naudotos literatūros sąrašas 83 Lentelių sąrašas.............................................................................................................................. 84

1

pav. Palazzo della Civiltà Italiana, arch. Giovanni Guerrini, Ernesto la Padula, Mario Romano (Schwartz, 2020)................................................................................................................................

22 pav. Casa del Fascio, arch. Giuseppe Terragni (Lettkemann, n.d.)

23 pav. Barbican estate, Lauderdale bokštas (Souza, n.d.)

pav. Barbican estate, Defoe namas (Souza, n.d.)

25 pav. Pasikartojantys elementai sutartinės natose (Sudaryta autorės pagal Zenoną Slaviūną)

26 pav. Monotonija muzikoje (sudaryta autorės pagal Broniaus Kutavičiaus kūrinį ,,Paskutinės pagonių apeigas“)

27 pav. Kotryniečių vienuolynas, arch. E. Miliūnas ir D. Paulauskienė (archmap.lt, n.d.)

28 pav. Prokuratūra, arch. K. Lupeikis (prokuraturos.lt, 2020)

29 pav. M. Žilinskio dailės galerija Kaune, arch. K. Kisielius, E. Miliūnas, S. Juškis (ciurlionis.lt, n. d.).......................................................................................................................................................

4 Paveikslų sąrašas
pav. Tadao Ando gyvenamojo pastato Azuma planai (Furuyama, 2006)...................................... 10 2 pav. Tadao Ando gyvenamojo namo Azuma vidinis kiemas (Furuyama, 2006) 11
pav. Asimetrija langų rėmuose (interactiongreen.com, n.d.) ......................................................... 12
pav. Asketizmo pavyzdys interjere (home-designing.com, n.d.) ................................................... 12
pav. Yūgen principas Shigenori Uoya projektuotame name (zenvita.com, 2016) 12 6 pav. Objekto nykimas (zenvita.com, 2016).................................................................................... 13
pav. Grožio samprata nykstant objektui (zenvita.com, 2016) 13
pav. Tradicinis japoniškas interjeras (zenvita.com, 2016)............................................................ 14 9 pav. Ryški riba tarp architektūros ir gamtos, Tadao Ando (deavita.com, 2012).................................................................................................................................................. 14 10 pav. Lever House pastatas Niujorke 1952 (Ezra Stoller, n.d.) ..................................................... 15 11 pav. Johno C. Kluczynski federalinis pastatas, arch. Mies van der Rohe (Sieger, n.d.) 16 12 pav. Gropius namas, arch. Walter Gropius (savingplaces.org, n.a.) ............................................ 16 13 pav. Edith Farnsworth namas, arch. Mies van der Rohe (Mike Crews, n.d.) 17 14 pav. Mobius juostelės principu suprojektuoto objekto vizualizacija (Anthony Gibbons, n. d.) .. 17 15 pav. Parametrinės minimalistinės architektūros vizualizacija (Anthony Gibbons, n. d.)............. 17 16 pav. Paviljonas (artunlimited.com.br, n. d.) 18 17 pav. Schroderio namas, arch. Gerrit Rietveld (khanacademy.org, n.d.)....................................... 18 18 pav. Lagom architektūros pavyzdys (skandinavisktommerhus.no, n.d.) 19 19 pav. Hygge architektūros pavyzdys, arch. Norm Architects (Mairs, 2018) ................................. 20 20 pav. Hygge interjero pavyzdys, arch. Norm Architects (Mairs, 2018)......................................... 20
21
3
4
5
7
8
21
21
............................................................... 22 24
22
23
24
.............. 25
26
26

30 pav. Mo muziejus, arch. D. Libeskind (mo.lt, n.d.)

31 pav. Blaibach koncertų salės eksterjeras (NAARO, 2014) ..........................................................

32 pav. Blaibach koncertų salės urbanistinė aplinka (sudaryta autorės)

33 pav. Blaibach koncertų salės plano struktūra (sudaryta autorės pagal peter haimerl.architektur, 2014)

34 pav. Blaibach koncertų salės pjūvis (peter haimerl.architektur, 2014)

35 pav. Blaibach koncertų salės interjeras (peter haimerl.architektur, 2014) ...................................

36 pav. Blaibach koncertų salės interjero fragmentas (peter haimerl.architektur, 2014)

37 pav. Blaibach koncertų salės porėto betono fragmentas (peter haimerl.architektur, 2014) .........

38 pav. Meksikos koncertų salės eksterjeras (Navarro, 2017)

39 pav. Boca del Rio koncertų salės urbanistinis kontekstas (sudaryta autorės)

40 pav. Boca del Rio koncertų salės gen. planas (Rojkind arquitectos, 2017)..................................

41 pav. Boca del Rio pirmo aukšto plano struktūra (sudaryta autorės pagal Rojkind arquitectos, 2017)..................................................................................................................................................

42 pav. Boca del Rio koncertų salės vaizdas iš paukščio skrydžio (Dezeen, 2015)

43 pav. Boca del Rio koncertų salės interjero vizualizacija (Rivera, 2017)

44 pav. Szczecin filharmonijos fasadas (Barozzi/Veiga, 2014)........................................................

45

46 pav. Szczencin koncertų salės planinė struktūra (sudaryta autorės pagal

47 pav. Szczencin koncertų salės vaizdas iš paukščio skrydžio (Menges, 2014)

48

50

56

57

59

62 pav.

5
26
29
29
30
30
31
31
32
32
33
33
34
34
35
36
36
pav. Szczecin filharmonijos urbanistinis kontekstas (sudaryta autorės)
........... 37
Barozzi/Veiga)
37
pav. Szczecin filharmonijos fasado fragmentas (Barozzi/Veiga, 2014)....................................... 38 49 pav. Szczecin filharmonijos interjeras
2014)..................................................... 38
(Barozzi/Veiga,
pav. Suomijos kultūros namų eksterjeras 39
pav. Suomijos kultūros namų urbanistinis kontekstas (sudaryta autorės).................................... 39 52
kultūros namų planas (Archdaily.com, n.d.) 40
pav. Suomijos kultūros namų fasado fragmentas (Archdaily.com, n.d.)...................................... 40
Suomijos kultūros
fragmentas
n.d.) 41
n.d.) 41
51
pav. Suomijos
53
54 pav.
namų konstrukcinis
(archdaily.com,
55 pav. Vengrijos koncertų salės eksterjeras (Bujnovszky,
koncertų salės urbanistinis kontekstas (sudaryta autorės) ................................... 42
pav. Vengrijos
42
pav. Vengrijos koncertų salės funkcinis zonavimas (sudaryta autorės pagal Építész Stúdió)
2010)............................................. 43
58 pav. Vengrijos koncertų salės vizualizacija (Építész Stúdió,
Luoto modelio sąsaja su kanklėmis
Apanavičių) 44
pav. Luotas
.......................................................................................................... 45
Tradicinės
................................................................................. 45
pav.
(sudaryta autorės pagal
60
(Šulgienė, n.d.)
61 pav.
kanklės, (emokykla.lt, n.d.)
I
tipas
Apanavičių) 46
kanklių
(sudaryta autorės pagal

63

64

65 pav.

66

67

68 pav. Naudotos ornamentikos pavyzdžiai (sudaryta autorės pagal Apanavičių)

69 pav. Pasirinkti prototipai geometrizavimui (sudaryta autorės)

70 pav. I

71 pav.

72 pav. III tipo kanklių išskaidymas iki pagrindinių

73 pav. III tipo kanklių dalių neigiama erdvė (sudaryta autorės)

74 pav. Pasirinkto sklypo padėtis Lietuvos ir apskrities padėtyje (sudaryta autorės)

75 pav. Užstatymo ir gamtos santykio Kėdainių

76 pav. Artimos aplinkos užstatymo ir gamtos santykis (sudaryta

83

87 pav. Tradicinių ir modernių kanklių korpuso formos išryškinimas (sudaryta autorės)

89 pav.

6
v. I kanklių tipas (Virbašius, n.d.) 46
pa
III
tipas
1930).............................................................................................. 47
pav.
kanklių
(Rudis,
III
47
kanklių tipas (sudaryta autorės pagal Apanavičių)
Apanavičių) ........................................................... 47
pav. II kanklių tipas (sudaryta autorės pagal
pav. II kanklių tipas (Šuliokas, 1989) 47
47
..................................................... 48
tipo kanklių išskaidymas iki pagrindinių dalių (sudaryta autorės) 49
I tipo
erdvė
......................................................... 49
kanklių dalių neigiama
(sudaryta autorės)
dalių
autorės) 50
(sudaryta
50
51
.......................
mieste schema (sudaryta autorės) 52
autorės) ..................................... 53 77 pav. Infrastruktūros ryšių sistema Kėdainių mieste, schema (sudaryta autorės) 54 78 pav. Reljefo fragmentas (sudaryta autorės) 55
pav. Artimiausios aplinkos užstatymas, schema (sudaryta autorės)............................................. 55
intensyvumo schema (Registrų centras, 2019) 56 81 pav. Koncepto schema (sudaryta autorės).................................................................................... 58
pav. Varianto A funkcinis zonavimas (sudaryta autorės) 59
79
80 pav. Teritorijos užstatymo pastatais
82
Pastato tūrio Varianto A eskizas (sudaryta autorės)............................................................ 59 84
Pas
B schema
.............................................................. 60
pav.
pav.
tato tūrio varianto
(sudaryta autorės)
Pastato varianto B pjūvis (sudaryta autorės) 60
Pastato
B sklypo plano schema
................................................. 60
85 pav.
86 pav.
varianto
(sudaryta autorės)
61
61
88 pav. Luotelio koncepcijos stogo schema......................................................................................
Luotelio koncepcijos pagrindinių patalpų santykis su pastatu (sudaryta autorės) 61 90 pav. Patekimai į pagrindinę sklypo teritoriją (sudaryta autorės) 63 91 pav. Apversto luotelio motyvas kaip stogo forma (sudaryta autorės).......................................... 64 92 pav. Schema – vaizdas iš viršaus (sudaryta autorės) 64 93 pav. Situacijos planas (sudaryta autorės)...................................................................................... 65
pav. Sklypo vaizdas iš paukščio skrydžio (sudaryta autorės) 65 95 pav. Sklypo plano fragmentas (sudaryta autorės)......................................................................... 66 96 pav. Pirmo aukšto funkcinis zonavimas (sudaryta autorės) ......................................................... 67
pav. Pirmo aukšto funkcinis zonavimas (sudaryta autorės) 67
94
97

98

7
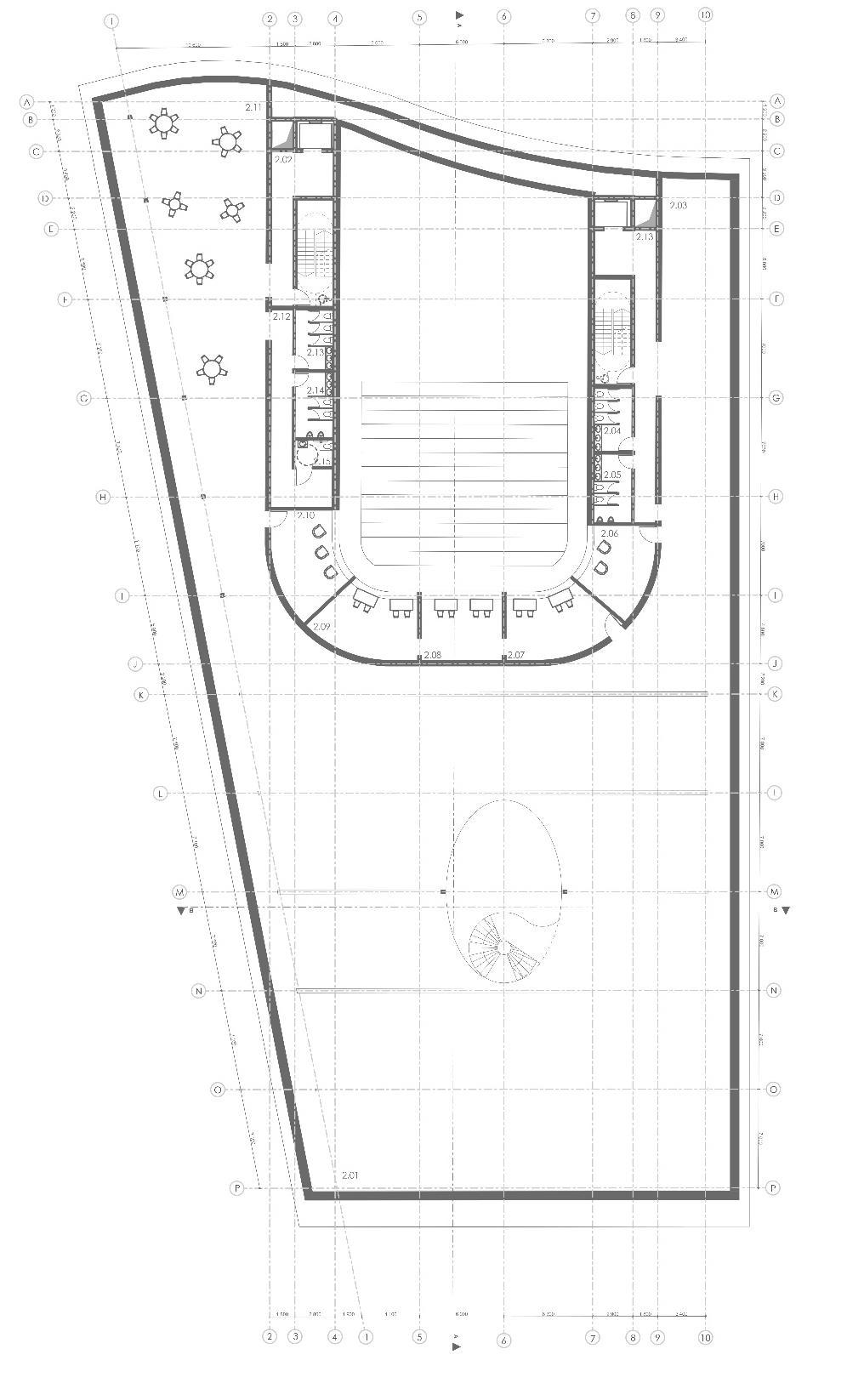
pav. Antro aukšto funkcinis zonavimas (sudaryta autorės) 67 99 pav. Pirmo aukšto planas (sudaryta autorės)................................................................................ 68
Rūsio planas (sudaryta autorės) 69
pav. Antro aukšto planas (sudaryta autorės)............................................................................... 70 102 pav. Pastato pjūvis (sudaryta autorės) 71 103 pav. Aksonometrinė pastato pagrindinių erdvių schema
autorės) 71 104 pav. Pastato vizualizacija
autorės).............................................................................. 72 105
autorės) 73 106 pav. Rytinis fasadas (sudaryta autorės) ...................................................................................... 73 107 pav. Vestibiulio interjero fragmentas (sudaryta autorės) 74 108
fragmentas
75 109
Koncertų salės interjero vizualizacija (sudaryta autorės)................................................... 75
100 pav.
101
(sudaryta
(sudaryta
pav. Stogo apdailos medžiagiškumas (sudaryta
pav. Antro aukšto ekspozicijos salės interjero
(sudaryta autorės)
pav.

1.

ĮVADAS

Apie minimalizmą G. Kuginys rašė: ,,Minimalizmas – minties ir formos asketiškumas, įpareigojantis kurti aiškią, suprantamą, koncentruotą architektūrą, kuri privalo būti paprasta. Minimalizme vietos tuščiažodžiavimui nėra“ (Kuginys, 2015). Pasitelkiant minimalistinę pastato raišką, išryškėja koncepto esmė pačiomis minimaliausiomis priemonėmis. Kitaip tariant, bandoma surasti būdą pasakyti viską, spaudžiant save į rėmus ir atsiribojant nuo nereikalingų elementų.

Nors šiuo metu architektai turi daugybę priemonių projektavimui, pradedant parametriniu modeliavimu ir baigiant dirbtinio intelekto sugebėjimais, jokia kompiuterinė priemonė kol kas negali suprojektuoti konceptualaus minimalizmo. Kompiuteris gali pasitelkti dažnai naudojamus bruožus ir sukurti kažką, kas galbūt panašu į minimalizmą, tačiau tai bus objektas, kuris neturi dvasios ar prasmingumo.

Taigi, šiuo darbu siekiama suprasti minimalizmo ištakas ir kaip skirtingos kultūros pasirenka vystyti minimalistinius objektus. Šiame darbe bus nagrinėjamas skirtingų kultūrų minimalizmo suvokimas, minimalizmo vaidmuo architektūroje ir išgryninti pagrindiniai minimalizmo principai.

1.1. DARBO TEMA

Minimalizmas architektūroje: muzikos namai Kėdainiuose

1.2.

TYRIMO OBJEKTAS

Minimalizmo, kaip meninio judėjimo suvokimas skirtingose kultūrose: Rytuose (Japonijoje), Vakaruose (Jungtinėse Amerikos Valstijose), Europoje (Italijoje, Skandinavų šalyse, Nyderlanduose) ir Lietuvoje.

1.3. TYRIMO PROBLEMATIKA, AKTUALUMAS

Pastaruoju metu jauni architektai projektuodami naujus objektus atsižvelgia tik į vizualinį architektūros aspektą, o konceptas sugalvojamas tik paskutiniame projektavimo etape. Minimalizmas išskirtinis tuo, kad be koncepto suprojektuoti objektą, turintį vertę yra neįmanoma, todėl itin lengva atskirti vertingą objektą nuo imitacijos. Kylant diskusijai, kad nieko naujo nebegalima atrasti, jauni architektai vis labiau pasikliauna matytais motyvais ir elementais tik dėl to, kad atrodo estetiškai, o ne dėl to, kad to reikia konceptui. Dėl šių priežasčių vis svarbiau yra atsitraukti nuo užduoties ir pagalvoti, koiš tiesų reikiaprojektuojamaivietai irkągalimasukurti vertingą,bet neišnaudojant daug nereikalingų resursų.

8

1.4. DARBO TIKSLAS

Atlikti minimalistinės raiškos analizę: suvokti, kokie yra naudojami elementai, jų sąsaja su konceptu, atrasti architektūrinės formos ypatumus ir erdvės formavimo metodus, atrastus principus pritaikyti projektiniam pasiūlymui.

Atlikus minimalizmo suvokimo skirtingose kultūrose analizę, analogų studiją ir meninį tyrimą suprojektuoti muzikos namus, remiantis kultūriškai svarbiais motyvais ir elementais.

1.5. DARBO UŽDAVINIAI

1. Apžvelgti minimalizmo, kaip meninio judėjimo, istorinę raidą;

2. Išnagrinėti minimalizmo raidą Lietuvoje;

3. Išsiaiškinti, kurioje srityje minimalizmas Lietuvoje buvo svarbiausias;

4. Atlikti analogų analizę;

5. Remiantis minimalizmo Lietuvoje analize, pasirinkti objektą, svarbų šiam meniniam judėjimui;

6. Atlikti meninį tyrimą, pasitelkiant formos analizę;

7. Apžvelgus tiriamosios dalies medžiagą, įvardinti kriterijus, kuriais remiantis bus projektuojami muzikos namai;

8. Parengti muzikos namų Kėdainiuose projektą, kuriame naudojami minimalizmo principai;

9. Pateikti viso baigiamojo darbo rezultatų apibendrinimą, išvadas.

1.6. DARBO METODIKA

1. Atliekama literatūros šaltinių, mokslinių darbų ir straipsnių apžvalga.

2. Atliekama daugiaaspektė analogų tyrimų studija.

3. Atliekamas meninis tyrimas.

4. Atliekami pasirinko sklypo empiriniai, faktų registracijos, fotofiksacijos tyrimai.

5. Atliekamas variantinis projektavimas.

9

2. TIRIAMOJI DALIS

Šioje dalyje aptariamas minimalizmo, kaip meno judėjimo architektūroje, suvokimas skirtingose kultūrose: Rytuose (Japonijoje), Vakaruose (Jungtinėse Amerikos Valstijose), Europoje ir Lietuvoje. Atsižvelgiant į kultūros ypatumus, iškeliamos skirtingos vertybės arba tos pačios vertybės įgauna visiškai kitą pavidalą architektūrine prasme.

2.1 MINIMALIZMO SUVOKIMAS RYTUOSE

Minimalizmas ir japonų kultūra yra du neatsiejami dalykai. Iš esmės, galima teigti, kad minimalizmas kilo iš japonų Dzenbudizmo filosofijos ir haiku eilėraščių. Iš čia paprastumo, estetikos ir įkvėpimų (pauzių) principai tiesiogiai perkeliami į architektūrą. Tačiau tiesiog tyla ar tuščia erdvė iš savęs nėra minimalizmas – viskas turi turėti savą prasmę. Japonų požiūris į minimalizmą ir yra išskirtinis tuo, kad svarbiausias elementas tampa ne erdvės, o tarpai tarp jų.

2.1.1. Haiku kaip architektūrinė priemonė

Haiku – trijų eilučių, septyniolikos skiemenų eilėraštis, su pauzėmis po penkto ir dvylikto skiemens. Šio eilėraščio esmė yra panaudojant kuo mažiau žodžių pasakyti kuo daugiau. Taigi, visas eilėraščio grožis kyla iš gana griežtų apribojimų. Didelį svorį turi ne tik pasakytas žodis, bet ir tarpas tarp jų: padarant pauzę sudaromas erdvės ar judesio efektas. Tai ryškiausiai matoma vieno garsiausių japonų poetų Matsuo Bashō eilėraštyje (versta pažodžiui):

Senas tvenkinys

Varlė įšoka į jį

Garsas iš vandens

Per tris trumpas eilutes žmogui duodama labai daug informacijos –tvenkinio vaizdas, jo amžius, gamtinė asociacija su ramybe, kurią sudrumsčia varlės įšokimas, vandens skleidžiamas garsas, raibuliavimas. Dėl haiku naudojamų pauzių žmogus turi laiko apmąstyt ir pamatyti daugiau, nei parašyta. Toks principas naudojamas ir architektūroje, ypač Japonijoje.

Vienas ryškiausių haiku elementų yra pauzė, o ji yra naudojama ir architektūroje.

1 pav. Tadao Ando gyvenamojo pastato Azuma planai (Furuyama, 2006)

10

2 pav. Tadao Ando gyvenamojo namo

Azuma vidinis kiemas (Furuyama, 2006)

Pavyzdžiui, japonų architekto Tadao Ando pastate Azuma pauze yra laikoma erdvė tarp pagrindinių patalpų. Taigi, žiūrint į aukštų planus pastebima, kad norint patekti iš vienos patalpos į kitą, reikia pereiti per vidinį kiemą (žr. 1 pav.). Norint iš miegamojo patekti į darbo kambarį arba iš darbo kambario patekti į san. mazgą reikia patirti pauzę – patekimą į neapdengtą stogu, nešildomą erdvę (žr. 2 pav.). Taip pat pauzė patiriama ir vizualiai: čia nėra jokių augalų ar apdailos ant sienų. Žmogus yra tiesiogiai priverstas bent akimirkai sustoti ir pamąstyti.

Pauzė gali būti išreikšta ir kitaip: fasade langų metrikojeatsirandatarpas, žmogaus lydėjimas pernelyg ankšta ar didele erdve, apdailos nebuvimas ir pan. Bet pauzė, fiziškai žmogų priversdama judėti ir ją patirti, įgauna prasmę.

2.1.2. Dzenbudizmo filosofija architektūroje

Nors dzenbudizmas kilo Kinijoje, tai vėliau išsivystė į atskirą mokyklą Japonijoje. Žodis „Zen“ yra kilęs iš japoniško kinų termino „Chán“ tarimo, kuris pats kilęs iš sanskrito žodžio „Dhyana“, reiškiančio meditaciją. Šalia meno, Japonijoje taip pat labai svarbi religija. Būtent iš budizmo kilo dzen filosofija. Budizme pasiekti nirvaną reiškia nebejusti žemiškų jausmų, o pagal dzen budizmąišaukštinama absoliuti tuštuma. Tai reiškia, kad reikia atsisakyti jau nusistovėjusių įsitikinimų ir privalo nieko nelikti.

Architektūroje dzen filosofija atsiskleidžia per keletą skirtingų aspektų. Pirmasis jų yra paprastumas, arba, kaip įvardina filosofas Shin‘ichi Hisamatsu, kanso. Atsisakoma nereikalingų elementų, todėl dažnai tokia architektūra yra monumentali, konceptuali, būdingas rimties jausmas.

Architektūriškai toks paprastumas gali būti išreiškiamas švariomis linijomis, neperpildytomis erdvėmis, minimalistiniu interjeru. Dažnai dizainą lemia ir praktiškumas – kaip minimaliomis priemonėmis pasiekti maksimalų rezultatą funkciškai. Kiti architektūriniai principai pagal zen filosofiją būtų: asimetrija (fukinsei), asketizmas (koko), natūralumas (shizen), laisvė nuo rutinos (daisuzoku), ramybė (sei-jaku) ir išmintingas grakštumas (yūgen).

11

3 pav. Asimetrija langų rėmuose (interactiongreen.com, n.d.)

Asimetrija ir netobulumas kuria priešpriešą gamtai. Pagal šį principą su gamta yra netiesiogiai kalbama – joje esanti simetrija ir tvarka yra lyg priešinama asimetrija ir nepabaigtu dizainu. Pagal dzen manoma, kad pusiausvyra gali būti kontroliuojama per netaisyklingumą, o asimetrija gali būti subalansuota.Tai ryškiausiai matomatapyboje –,,nešvarūs“, netaisyklingi teptuko potėpiai yra vertinami. Netobulumas pasireiškia ir Vabisabio filosofijoje – netikslumai ir netobulos formos yra labai vertinamos. Natūralumas, kaip kitas estetinis principas, veikia kartu su asimetrija ir netobulumu (žr. 3 pav.). Dabar įprasta nuolat matyti architektūrą, kuri susilieja kartu su gamta, bet shizen aspektas reiškia ne tai. Pagal šį aspektą reikia atrasti pusiausvyrą tarp buvimo gamtos dalimi ir kartu išsiskirti kaip atskiras nuo gamtos elementas. Tikslas – panaudoti kuo daugiau gamtinių elementųjųnepakeičiant (saulėsšviesa,topografija,medžiošaknųritmas)irsavoobjektuneapsimesti esant gamtos dalimi.

Asketizmas glaudžiai siejamas su paprastumu (žr. 4 pav.). Žmogui kokybiškai gyventi nereikia

daug daiktų – todėl svarbu atrinkti ir palikti tik tai, kas yrabūtina. Objektai, kurieneduoda erdvei jokios vertės neturėtų jos teršti. Taip yra vystomas susilaikymas, formuojama tikslinga, aiški erdvė.

Laisvė nuo rutinos ir išmintingo grakštumo principai dažnai veikia kartu. Dabar projektuojant tam tikrą tipologiją iškart susiduriama su išankstinėmis nuostatomis, stereotipais. Visos erdvės supanašėja, tas pats pastato tipas yra vienodas daugumoje šalių. Laisvės nuo rutinos principas siekia, kad erdvės būtų patiriamos naujai, žmogus galėtų nuolat mokytis, patirti kažką naujo. Todėl reikia, kad žmogus kurdamas patirtų erdvę kitaip, nei ją įprastai mato, pvz., projektuoti tamsią, užsklęstų langų virtuvę (žr. 5 pav.). Nuolat ieškant,

4 pav. Asketizmo pavyzdys interjere (homedesigning.com, n.d.)

5 pav. Yūgen principas Shigenori Uoya projektuotame name (zenvita.com, 2016)

12

kaip naujai patirti erdvę, architektas gali pilnai išnaudoti vietos potencialą, pasitelkiant nestandartiniais motyvais. Tuo tarpu išmintingas grakštumas reiškia tai, kad ne viską reikia ,,pasakyti“ žiūrovui. Reikia sukelti susidomėjimą ir norą tirti ne tik projektuotojui, bet ir žiūrovui. Todėl išeiti iš rutinos reiškia atrasti būdą, kaip priversti žmogų pamatyti ar patirti tai, ko lig šiol nėra matę.

Visi aptarti principai dera tarpusavyje ir, pagal dzen filosofiją, gerai suprojektuota erdvė vadovaujasi šiais principais. Didžioji dalisdėmesioteikiamanetiekišvaizdai,kiekpotyriui. Žmogaus savijautaturi stipriąįtaką architektūroskoncepcijai – tiekviešos erdvės, tiek privačios patalpos veikia tada, kai žmogus noriai ten eina ir ieško naujų potyrių.

2.1.3. Vabisabio principai

Japoniška architektūra daugumai siejasi su grakštumu, minimalizmu ir pusiausvyros išlaikymu. Vabisabio filosofija nėra apie šiuos principus, dėl to dažnai apie tai nebūna aprašyta architektūros žurnaluosear kituoseleidiniuose.Retkarčiais taiįvardinamakaip japonųkaimiškasstilius, bet ,,žodis ,,kaimiškas“ dažniau įvardintas kaip šiurkštumas ir rafinuotumo trūkumas, o vabisabis labiau atskleidžia žemiškumą, kas yra organiška elegancija“ (Crowley, 1959). Pagal šios filosofijos principus gali kurti tik tie, kurie neturi, ką įrodyti pasauliui, o nori patirti gamtos ramybę.

6 pav. Objekto nykimas (zenvita.com, 2016)

7 pav. Grožio samprata nykstant objektui (zenvita.com, 2016)

Skirtingai, nei mums yra įprasta, čia grožis yra suvokiamas ne vizualiai. Grožį reikia suprasti konceptualiu lygmeniu, tai reikia pajusti. Nagrinėjant architektūros estetikos principus matoma, kad visose kultūrose grožis yra ne tik matomas, bet ir jaučiamas. Bet nei Vakaruose, nei mūsų kultūroje tai nėra aptariama taip dažnai, kaip rytuose.

13

8 pav. Tradicinis japoniškas interjeras (zenvita.com, 2016)

Vabisabis apibūdinamas kaip menas rasti grožį gamtos netobulume ir gilumoje, priimti natūralų augimo, nykimo irmirties ciklą(Juniper,1967). Pastebima, kad jeigu objektas būna per daug estetiškai švarus, tai suteikia nejaukumo jausmą. Kai žmogus yra pernelyg sterilioje erdvėje, jis jaučiasi nejaukiai. Būtent tai Vabisabis ir paneigia – grožis atrandamas netikslumuose, netobulume (žr. 6, 7 pav.). Iš to kyla šios filosofijos pavadinimas: vabi reiškia nenumaldomą grožį, o sabi – šiurkščią patiną (apnašas, susidarantis ant bronzinių ar varinių objektų).

Ši filosofija glaudžiai siejama su architektūra. Nelygios trinkelės, dėmė ant fasado ar kiti netikslumai suteikia objektui charakterio, parodo, kad erdvė yra naudojama (žr. 8, 9 pav.). Visa tai galima įvardinti kaip nepastovumo, neamžinumo meną (Tanizaki, 1933). Netobulumai gali atsiskleisti ir kitokiu būdu: suprojektuota erdvė įgauna kitokią paskirtį, nei buvo numatyta. Taip gali būti dėl to, kad architektas neatsižvelgė į visus vietos ypatumus. Bet tai ir yra šios filosofijos pagrindinis principas – grožį atsiskleidžia nenumatyti atsitiktinumai, neidealūs scenarijai.

9 pav. Ryški riba tarp architektūros ir gamtos, Tadao Ando (deavita.com, 2012)

14

2.2. MINIMALIZMO SUVOKIMAS VAKARUOSE

Vakaruose, ypač Amerikos Jungtinėse Valstijose, minimalizmas nėra itin plačiai naudojamas stilius. Tai gali atliepti ir visuomenės individualizmas – čia yra svarbu palikti savą žymę, išsiskirti iš minios (Barlow, 2013). Sulyginus su rytais, architektūrinis minimalizmas turi panašumų, bet tos pačios vertybės įgauna kitokią architektūrinę formą.

2.2.1. Tarptautinis stilius

Turbūt pats pagrindinis minimalizmo bruožų turintis architektūrinis stilius Amerikoje yra tarptautinis stilius. Pradėjo formuotis XX amžiaus viduryje, po Antrojo Pasaulinio karo. Prasidedant Šaltajam karui svarbu buvo parodyti šalies ekonominę ir mokslinę pažangą, dėl to minimalistinė tarptautinio stiliaus architektūrinė raiška tai parodė aiškiausiai.

Švarios linijos, geometrinis paprastumas, asimetrija, pramoninės medžiagos – užtenka tik tiek, kad būtų tam laikui moderni ir universali, tinkanti bet kuriai tipologijai estetika. Medžiagos, tokios kaipstiklas,betonasirplienasparodėšalies ekonominępadėtį,taippatirmokslinępažangą.Šisstilius išskiriamasiškitostometoarchitektūrossuplokščiaisstogais,ilgomislangųeilėmis irvientisafasado plokštuma (žr. 10 pav.). Didesnis dėmesys teikiamas šviesai ir šešėliams, o ne spalvinei raiškai.

Iš tarptautinio stiliaus judėjimo kilo garsus pasakymas ,,forma seka funkciją“. Žymus to meto Amerikos architektas, Louis Sullivan, ,,Lippincott‘s“ žurnale rašė taip:

Nesvarbu, ar tai skrendantis erelis, ar atviras obelų žiedas, vargstantis darbinis arklys, švelni gulbė, besišakojantisąžuolas,vingiuojantisupelisjopapėdėje, slenkantysdebesys,pervisąbesislenkančiąsaulę,forma seka funkciją, ir tai yra įstatymas. Kur funkcija nesikeičia, forma nesikeičia. Granito uolos, nuolat besidriekiančioskalvosišliekaamžiams;žaibasgyvena, įgauna formą ir mirksi akimirksniu (Sullivan, 1986).

Vėliau pripažino, kad idėja kilo iš Romėnų architekto Vitruvijaus, kur knygoje ,,De Architectura“ įvardinama, kad objektas turi atitikti tris pagrindinius kriterijus: firmitas, utilitas, venustas (solidus, naudingas, gražus) Taigi, nors šis stilius išpopuliarėjo tik XX amžiuje, jo motyvai buvo naudojami jau daug anksčiau.

10 pav. Lever House pastatas Niujorke 1952 (Ezra Stoller, n.d.)

15

11 pav. Johno C. Kluczynski federalinis pastatas, arch. Mies van der Rohe (Sieger, n.d.)

12 pav. Gropius namas, arch. Walter Gropius (savingplaces.org, n.a.)

Tarptautinio stiliaus įtaka apėmė ne tik atskirus pastatus, bet ir miestų planavimą. Stiklo ir plieno biurų bokštai tapo šiuolaikinio verslo simboliu, simbolizuojančiu pažangą ir efektyvumą (žr. 11 pav.). Pasitelkę naujas statybos technologijas, pradėta naudoti užuolaidų sistema, kuri suteikė galimybes sukurti platų, nenutrūkstamą stiklo paviršių Tai vizualiai panaikino ribą tarp vidaus ir išorės.

2.2.2. Bauhaus interpretacija Amerikoje

Nors Bauhaus pradžia kilo Vokietijoje, Amerikos architektūros istorijoje tai irgi buvo svarbusstilius.1933m.dėlnacių režimopolitinio spaudimo uždarius originalųjį „Bauhaus“, daugelis jo dėstytojų ir studentų ieškojo prieglobsčio Jungtinėse Amerikos Valstijose. Emigruodami į Vakarus architektai toliau projektavo pagal savitą dizaino filosofiją (žr. 12, 13 pav.).

Šio laikotarpio architektai formavo Amerikos ateities architektūrą. Žymus architektas W. Gropius 1937 m. įkūrė Harvard universiteto dizaino mokyklą, kur perteikė Bauhaus idealus naujai Amerikos architektų kartai, paveikdamas pokario architektūrinio išsilavinimo eigą. Šis poveikis apėmė ne tik architektūrą, bet ir kitas menų

16

13 pav. Edith Farnsworth namas, arch. Mies van der Rohe (Mike Crews, n.d.)

disciplinas, įskaitant pramoninį dizainą, grafinį dizainą ir tipografiją. Bauhaus menininkų ir dizainerių antplūdis į JAV paskatino Bauhaus principus integruoti į Amerikos dizaino švietimą ir praktiką (Burns, 1996).

2.2.3. Neominimalizmas

Neominimalizmas – architektūrinis judėjimas, išsivystęs XX amžiaus pabaigoje pasiremiant, minimalistinių principų interpretaciją. Neo – minimalizmas, pagrįstas paprastumu ir funkcionalumu, Amerikos architektūroje reaguoja į šiuolaikinio gyvenimo sudėtingumą, apima pažangias technologijas ir daug dėmesio skiria tvarumui.

Neominimalizmas išlaiko pagrindines tradicinio minimalizmo ypatybes, tokias kaip švarios linijos ir elementų sumažinimas iki esminių formų, tačiau panaudojant tuometines naujas priemones. Neominimalistiniai architektai dažnai naudoja pažangiausias technologijas, tokias kaip skaičiavimo projektavimą, parametrinį modeliavimą ir skaitmeninę gamybą, kad sukurtų sudėtingas formas ir tikslias struktūras. Tvarumas yra šio judėjimo pagrindinis akcentas, todėl integruojamos energiją taupančios sistemos, perdirbtos medžiagos ir pasyvios projektavimo strategijos, kad sumažintų poveikį aplinkai (Barlow, 2013).

14 pav. Mobius juostelės principu suprojektuoto objekto vizualizacija (Anthony Gibbons, n. d.)

15 pav. Parametrinės minimalistinės architektūros vizualizacija (Anthony Gibbons, n. d.)

17

Neominimalizmas Amerikos architektūroje ieško įkvėpimo iš įvairių kultūrinių ir architektūrinių tradicijų. Pabrėžiama pusiausvyra tarp paprastumo, technologinių naujovių ir kultūrinių simbolių naudojimo (žr. 14, 15 pav.). Įtraukdami pažangias technologijas ir įsipareigoję siekti tvarumo, šio judėjimo architektai formuoja šiuolaikinę kalbą, kuri reaguoja į skaitmeninio amžiaus sudėtingumą ir aplinką tausojančio dizaino poreikį.

2.3. MINIMALIZMO SUVOKIMAS EUROPOJE

Sulyginus su Amerika, Europos šalys yra mažiau materialistinės, erdvės mažesnės, pastatai mažesnių mastelių. Iškeliamos žmogiškosios vertybės ir žmogaus savijauta erdvėje. Šioje dalyje aptariamos pagrindinės minimalizmo kryptys Europos šalyse.

2.3.1. De Stijl

16 pav. Paviljonas (artunlimited.com.br, n. d.)

17 pav. Schroderio namas, arch. Gerrit Rietveld (khanacademy.org, n.d.)

De Stijl – tai novatoriškas meninis judėjimas, atsiradęs Europoje XX amžiaus pradžioje. Tai kilo Nyderlanduose, menininkų grupės iniciatyva. Kaip ir dauguma meninių stilių, tai buvo skirta ne vienai meno rūšiai, todėl principai yra perteikiami kitokiomis priemonėmis, priklausomai nuo pasirinktos raiškos formos. Architektūroje De Stijl pasireiškė abstrakčiomis geometrinėmis formomis, pirminių spalvų naudojimu, ir nuolat susikertančių vertikalių ir horizontalių linijų struktūra. Tokia struktūra dažnai primena tinklelį (žr. 16 pav.). Taip pat būdingos modulinės konstrukcijos, transformuojamos pertvaros ir kt. Ryškiausias pavyzdys yra architekto G. Rietveldo suprojektuotas namas Utrechte (žr. 17 pav.).

Šios stilistikos architektūra siekė suderinti formą ir funkciją, atkartodama modernizmo judėjimą ir padėjo pagrindus

18

vėlesnėms minimalizmo ir abstrakčios architektūros raidoms. Skirtingai nei dažnas minimalizmo stereotipas, pirmu žvilgsniu tainet nebūtų suvokiamakaip minimalistinės raiškos objektas, tačiau visi naudojami elementai atitinka pagrindinius minimalizmo bruožus: abstrakčios formos, viena pagrindinė tekstūra ar medžiaga, naudojamos tik patys pagrindiniai ir paprasčiausi vizualiniai elementai, t.y. vertikalios ir horizontalios linijos (White, 2003)

Skirtingai nei kitos minimalistinės raiškos objektai, De Stijl architektūroje pasirenkama žaisti su neįprasta medžiaga – spalvotu stiklu. Taip įgaunama daugiau raiškos nei vien fizinėmis sienomis ar pertvaromis, bet pradeda veikti ir šviesa su šešėliais. Vienodi elementai gali įgauti visiškai kitą vizualinį kontekstą, priklausomai nuo pasirinktos spalvos naudojimo, o šviesa, einanti per spalvotą stiklą tampa svarbi kompozicijos priemonė, savotiška modeliuoja erdvę. Taigi, erdvės keičiasi ne tik fiziškai nuo transformuojamų pertvarų – keičiasi estetinis suvokimas, priklausomai nuo apšvietimo, šešėlio spalvos ir paros laiko.

2.3.2. Skandinavų minimalizmas

Pasibaigus Antrajam Pasauliniam karui, daugumai šalių kilo poreikis naujos statybos pastatų, Skandinavijos šalys – ne išimtis. Dėl ekonominių sunkumų iškilo architektūrinės raiškos klausimas, t.y. kaip už nedidelę sumą pastatyti objektą, kuris turėtų ir estetinę vertę. Taip pat itin didelę reikšmę architektūros raiškai turi ir šiuolaikinės problemos: kaip sukurti kažką, kas yra ne tik tvaru, bet ir konceptualu.

18 pav. Lagom architektūros pavyzdys (skandinavisktommerhus.no, n.d.)

Skandinaviškas minimalizmas architektūroje įkūnija dizaino filosofiją, kuriai būdingas paprastumas, funkcionalumas ir gilus ryšys su gamta. Šiam stiliui būdingos švarios linijos ir pagrindinė užduotis yra palikti tik pamatinius objekto koncepto principus (Griffiths, 2013). Pirmenybė teikiama funkcionalumui – kiekviena erdvė yra kruopščiai suprojektuota taip, kad tarnautų konkrečiam tikslui, atspindinti įsipareigojimą praktiškumui ir efektyvumui. Būdingi dideli, atviri langai ir atviri aukštų planai, nes tokiu būdu tapatinama erdvės tarp vidaus ir išorės – siekiama vienybė su gamta. Skirtingai nei Japonijos minimalizmo principuose, čia su gamta siekiama susilieti ir gyventi kartu, o ne išsiskirti ir aiškiai nubrėžti ribą tarp natūralaus ir sukurto žmogaus.

19

19 pav. Hygge architektūros pavyzdys, arch. Norm Architects (Mairs, 2018)

Neutrali spalvų paletė, kurioje dominuoja balta, pilka ir prislopinti tonai, sukuria ramybės jausmą. Natūralių medžiagų, ypač medienos, naudojimas ne tik sustiprina estetinę šilumą, bet ir atspindi gilų dėkingumą už gausius regiono išteklius. Tvarumo ir ekologiško dizaino principai dažnai tampa koncepto dalimi, kadangi Skandinavų šalyse šiuo metu tvarumas yra vienas svarbiausių aspektų

architektūroje. Nors architektūra kaip meno sritis yra nuolat besikeičianti, vis tiek galiausiai grįžtama prie minimalistinių objektų – visuomenėje tokia architektūra yra siejama su asketiškumu, paprastumu ir natūralumu.

Kaip rytuose pasakymas yra ,,žinoti, kada sustoti“, o Le Corbusier žymi citata ,,mažiau yra daugiau“, taip ir šios šalys turi savų pasakymų apie minimalistinę architektūrą. Pvz., Švedijoje tai geriausiai įvardina žodis lagom – tiesiogiai išvertus reikštų ,,tik reikiamą kiekį“, t.y. nei daugiau, nei mažiau (žr. 18 pav.). O Danijoje tai atitiktų hygge – jaukumo įkūnijimas erdvėje (žr. 19, 20 pav.). Šie žodžiai ne tik veikia kaip minimalizmo savotiškas įvietinimas specifinei šaliai, bet ir kaip koncepto pradas – nusistatant hygge kaip norimą rezultatą, nuo pat projekto pradžios kiekvienas sprendimas priimamas tam, kad tai būtų įgyvendinama (Griffiths, 2013). Iš esmės skandinavų minimalizmas geriausiai suvokiamas kaip pasislėpimu gamtoje ir gyvenant išvien su ja.

20 pav. Hygge interjero pavyzdys, arch. Norm Architects (Mairs, 2018)

2.3.3. Italijos Racionalizmas

Itališkas racionalizmas, reikšmingas XX amžiaus pradžios architektūrinis judėjimas, iškilo po Pirmojo pasaulinio karo, Italijai vykstant socialiniam ir politiniam perėjimui iš monarchijos į respubliką. Šis judėjimas, siekė iš naujo apibrėžti architektūrą, pabrėždamas paprastumą, geometrinį

20

21 pav. Palazzo della Civiltà Italiana, arch.

Giovanni Guerrini, Ernesto la Padula, Mario Romano (Schwartz, 2020)

aiškumą ir darnią formos ir funkcijos santykį. Šie motyvai matomi ir kitose jau aptartuose minimalizmo stiliuose.

Daugiausiai dėmesio vis dėlto teikiama funkcionalumui ir erdvės suvokimui. Atsisakoma įmantrių puošybos elementų, tokių kaip Rokoko stiliuje ir susitelkiama ties maksimalaus tūrio išnaudojimo. Šie motyvai naudojami iš Apšvietos laikotarpio filosofijos –erdvės humanizuojamos, propaguojamas aiškumas tiek funkcine, tiek vizualinės raiškos prasme. Viskas yra skirta žmogui ir paremta logika, empiriniais stebėjimais. Architektūrinė raiška tapoantraeilė– svarbesnis aspektas yrafunkcinis. Taip pat Apšvietoslaikotarpio idėjos buvo svarbios ne tik erdvių humanizacijai, buvo svarbu parodyti ir visuomenės ir specialistų išsilavinimą, mokslinę pažangą (Falcon, 2018).

22 pav. Casa del Fascio, arch. Giuseppe Terragni (Lettkemann, n.d.)

Pastebima, kad ir Italijos Racionalizmo minimalizmas yra paremtas aiškiomis geometrinėmis formomis, švariomis linijomis ir vientisu medžiagiškumu. Tačiau nors ir yra panašumų su kitomis stilistikomis, Racionalizmas lengvai identifikuojamas ryškia langų metrika (Etlin, 1983). Langų angos tampa pagrindiniu architektūrinės raiškos motyvu (žr. 21 pav.). Dažniausiai naudotos medžiagos tuo metu buvo naujoviškos – gelžbetonis ir plienas. Naudojant naujoviškas medžiagas, architektai siekė parodyti mokslinę ir ekonominę pažangą (Etlin, 1983).

Vienas ryškiausių šio laikotarpio pavyzdys yra G. Terragni Casa del Fascio pastatas (žr. 22 pav.) Pastatą užsakė vietos fašistų partija kaip savo būstinę, o jo dizainas turėjo atspindėti fašistų režimo, vadovaujamo Benito Mussolini, idealus. Tai yra reikšmingas objektas kaip architektūros ir politinės ideologijos sankirtos reprezentacija tarpukariu.

21

2.3.4. Brutalizmas

23 pav. Barbican estate, Lauderdale bokštas (Souza, n.d.)

24 pav. Barbican estate, Defoe namas (Souza, n.d.)

Kaip ir kitose Europos šalyse, Brutalizmo pirmieji bruožai formuojasi XX amžiuje, tarpukariu. Brutalizmas atsirado optimizmo ir socialinio idealizmo laikotarpiu. Tokio tipo pastatai dažnai apimdavo bendruomenines erdves ir viešąsias patalpas, atspindinčias įsipareigojimą bendruomenės gerovei.

Vienas iš labiausiai išskiriančių bruožų, sulyginus su kitais minimalistiniais stiliais yra tai, kad naudojamas neapdorotas, atviras betonas. Semantiškai tai tampa lyg rodiklis, kad neišbaigtas fasadas nesuteikia dirbtinio ar pagražinto vaizdo ir nurodo ilgaamžiškumą ir stiprumą (John, 2000). Toks medžiagos pasirinkimas taip pat atliepė to meto poreikį greitai gyvenamosios paskirties statybai, taip pat poreikį rekonstruoti didelę dalį pastatų.

Skirtingai nei kitose šalyse, paprastos formos nėra vizualiniam aiškumui ar kitoms jau aptartoms priežastims nurodyti. Brutalizme geometrinės formos nurodo monumentalumą, griežtumą. Dažnai didelio mastelio objektai suteikia drąsos įspūdį, aiškiai nurodomas vietos lokalus orientyras, savotiškai metantis iššūkį grožio architektūrinėje raiškoje stereotipams.

Brutalizmas kritikuojamas dėl savo atšiaurumo ir dekoratyvinių elementų trūkumo, tačiau yra ir įvertintas už autentiškumą ir indėlį į miesto tapatybę (John, 2000). Pavyzdžiui, Barbican Estate objektai (žr. 23, 24 pav.) dabar laikomas kultūros centru ir brutalistinės gyvenamosios architektūros pavyzdžiu.

Pastaraisiais metais buvo stengiamasi išsaugoti ir atkurti brutalistines struktūras, pripažįstant jų istorinę ir architektūrinę reikšmę.

22

Brutalizmo poveikis Europos architektūrai apima ne tik pačias fizines struktūras. Tai paveikė miestų planavimo principus ir paskatino diskusijas apie architektūros vaidmenį formuojant visuomenę. Sąjūdžio dėmesys bendruomeninėms erdvėms, funkcionalus dizainas ir ornamentikos atsisakymas atspindi platesnį įsipareigojimą socialiniams idealams, atkartojančius pokario eros rekonstrukcijos ir pažangos siekius.

2.4. MINIMALIZMAS LIETUVOJE

Pagal architektą Gintarą Kuginį: ,,Architektūros kūriniuose neretai įžvelgiami tam tikri archetipai – kolektyvinė pasąmonės vaizdiniai, bendrai suprantami universalūs simboliai, pasireiškiantys per pasakojimus, mitus, folklorą, stereotipus, kalbą“ (Kuginys, 2015). Jau anksčiau aptarta, kad minimalizmas reiškėsi ir kitose meno šakose, o Lietuvoje tai ryškiausiai atsispindėjo folklore ir muzikoje, o tai gali įgauti ir architektūrinę formą.

2.4.1. Minimalizmas Lietuvos muzikoje

Pirmosios užuomazgos yra kaip ir kitose šalyse – po Antrojo Pasaulinio karo, kaip atsakas į avangardinę ir eksperimentinį meną. Minimalistinė muzika yra gana abstrakti, nenaratyvi, struktūros požiūriu kintanti itin lėtai ir nuosekliai, kad visus įvykstančius pakitimus klausytojas pastebėtų ir spėtų įsiklausyti (Kasčiukaitė, Daunoravičienė, 2012). Būtent muzikoje pirmiausia pasirodė minimalizmas (taip pat ir preminimalizmas ir protominimalizmas) Lietuvos istorijoje.

Kalbant apie minimalizmą, žmogus dažniausiai turi galvoje paprastos konstrukcijos objektus, asketišką arba vienodų elementų sudarytą kompoziciją. Tie patys principai veikia ir muzikoje. Yra pasikartojantis elementas, kuris kaip pagrindinis motyvas išlieka visoje bendroje kompozicijoje, o pridėtiniai elementai yra neužgožiantys, tik paryškinantys pagrindinį motyvą. Tai ryškiausiai matoma (ir girdima) folkloro muzikoje, t.y. sutartinėse.

25 pav. Pasikartojantys elementai sutartinės natose (Sudaryta autorės pagal Zenoną Slaviūną)

23

Sutartinių muzika yra paprasto metro ir vieno pagrindinio, nuolat pasikartojančio motyvo. Tai galima įvardinti kaip protominimalistine muzika (Nakas, 2004). Žiūrint į natas, galima daryti prielaidą, kad minimalistinė raiška pasiekiama ir su monotonija: pasikartojantys motyvai sukelia monotoniškąjausmą,kurismomentuišsklaidomaskokiunorsįvykiu,irvėl grįžtamapriemonotonijos (pav. 25, 26)

26 pav. Monotonija muzikoje (sudaryta autorės pagal Broniaus Kutavičiaus kūrinį ,,Paskutinės pagonių apeigos“)

Minimalizmas muzikoje gali būti įvardintas ir kaip kontinuali forma, sluoksniuota faktūra, skaidri harmonija, rudimentinė melodija ir reguliarus, pulsuojantis ritmas (Johnson, 1994). Dažnai galima pamatyti, kad tai įvardinama kaip technika labiau nei kaip stilius, nes visa esmė yra iš esamos kompozicijos sumažinti apimtį iki esminių elementų. Šie motyvai naudojami ne tik muzikoje, bet ir architektūroje: pasikartojantys elementai, monotoniška faktūra ir apimties mažinimas iki svarbiausių aspektų sudaro konceptualų minimalizmą. Tokiu būdu minimalizmas nėra tiesiog paprasta forma, bet idėjos prado įrodymas.

2.4.2. Minimalizmo raiškos elementų muzikoje sąsaja su architektūra

Muzika, kaip ir architektūra, turi terminus. Tarp šių dviejų disciplinų yra daug bendrų bruožų, o žymus rašytojas Johanas Volfgangas fon Gėtė architektūrą įvardina kaip sustingusią muziką (Eckermann, 1836). Svarbu žinoti, kaip būtent šie terminai veikia kartu, kad būtų galima tiksliau analizuoti arba kurti objektus, inspiruotus muzikos.

Ritmas yra pamatinė muzikos priemonė. Juo galima išlaikyti rimtį, tvarką, arba sukurti triukšmą, tačiau tai visada turės ritmą. Metras veikia lyg savotiškas šablonas, kuris nurodo takto formą, natūraliai pabrėžia ar nuslopina tam tikras natas. Viskas apie natą sužinoma, atsižvelgiant į jos vietą takte. Ryškiausiai tai galima išgirsti bet kuriame valso kūrinyje – pirmoji takto nata visada yra pabrėžiama, o tai nurodo būtent metras. Architektūroje ritminiai elementai ne taip tiesiogiai paveikia žmogaus emocijas, kaip muzika, tačiau jos vis tiek gali būti valdomos. Tiesiogiai patekus iš plačios, erdvios patalpos į mažą, galima sukelti nepatogumą, ankštumo jausmą.

24

Instrumentacija nurodo instrumentų grupes, kurios yra numatytos aranžuotėje. Yra tipinės ir netipinės. Tipiniame styginių kvartete yra du smuikai, viola ir violončelė, o pianino kvartete yra pianinas, vienas smuikas, viola ir violončelė. Labai panaši instrumentacija, bet muzikos identitetas yra visiškai pasikeitęs. Taigi pakeičiant nors ir vieną elementą, kūrinio garsas gali kardinaliai pasikeisti. Architektūroje atitikmuo būtų medžiagiškumas. Atsižvelgiant į tai, kokios medžiagos yra naudojamos, apie pastatą pasakoma daug daugiau, nei tiesiog vizualinė estetika. Nuo jų priklauso ir šilumos insoliacija, tvarumas, energinis efektyvumas ir pan. Bet ir estetiškai tai yra svarbu. Pastatas nėra tik vizualiai suvokiamas, bet ir kvapu, pojūčiu. Svarbu, kad naudojamos medžiagos būtų saugios žmogui ir nekiltų pasibjaurėjimo paliečiant – rankomis, pirštų galais architektūrą patiria neįgalieji.

Kaip ir lyginant styginių kvartetą su pianino kvartetu, viena medžiaga pakeitus pastato fasado elementą, galima kardinaliai pakeisti jo įvaizdį.

Šie elementai yra tiek muzikos, tiek architektūros pamatinės priemonės. Be jų nebūtų aiškaus kūrinio. Šiuose elementuose nurodoma ir pagrindinė, esminė vystomo kūrinio idėja, veikia kaip koncepto pradas. Be šių priemonių galima gilintis ir toliau, prie spalvų/natų, šviesos/gamos, šešėlio/garso ryškumo ir panašiai, bet siekiama išgauti tik pačius esminius motyvus, be kurių nebūtų kūrinio.

2.4.3. Lietuvos architektūros minimalizmas

Lietuvoje minimalizmas nėra toks ryškus, kaip sulyginus su kitais stiliais. Tačiau nepaisant to, vis tiek yra ryškūs motyvai, kurie yra labiau akcentuojami būtent Lietuvos minimalizme. Pagal architektą K. Lupeikį, minimalizmas nėra tik achromatinės formos, bet savotiškas potyris, kur pagrindinį įspūdį sudaro spalva, šviesa, šešėlis ir medžiagos (Lupeikis, 2012).

27 pav. Kotryniečių vienuolynas, arch. E. Miliūnas ir D. Paulauskienė (archmap.lt, n.d.)

Nors vos pagalvojus apie minimalistinį objektą, mintyse kyla baltos spalvos paprasta forma, tai yra atšiauri ir vargana modernistinė paprastumo estetika, kuri dažnai kildinama iš Le Corbusier darbų (Conran, 2002: 158). Nors Lietuvoje nėra itin daug spalvotų objektų, šviesa ir spalva minimalistiniuose objektuose yra svarbesnis aspektas, nei kitose kultūrose (pvz., rytuose paliekama plika medžiaga, siekiant pajusti paprastumo, asketiškumo grožį). Pavyzdžiui, architektų E. Miliūno ir D. Paulauskienės kotryniečių

25

28 pav. Prokuratūra, arch. K. Lupeikis (prokuraturos.lt, 2020)

vienuolynasKaune(žr.27pav.) šįmotyvą įprasmina tiesiogiai – šviesa patenka į pastatą labai aukštais ir plonais langais, pabrėžiant sakralumo, metafizinės raiškos elementą. Kadangi objektas sakralios paskirties, nepasiduota baltai spalvai –kaip tik ryškiai išskiriamas iš aplinkos, semantiškai sudaromas svarbumo, vientisumo jausmas.

Kiti Lietuvos minimalistinės raiškos pastatai yra griežtų geometrinių formų, kurias dažnu atveju nulemti praktinių priežasčių – paprastas, logiškas susisiekimas, aiškiai suprantama ir naviguojama struktūra. Ryškesni tokio tipo pastatai būtų K. Lupeikio Vilniaus apygardos prokuratūra (žr. 28 pav.), K. Kisieliaus, E. Miliūno ir S. Juškio projektuota Mykolo Žilinsko dailės galerija Kaune (žr. 29 pav.) ir D. Libeskindo Mo muziejus Vilniaus senamiestyje (žr. 30 pav.). Pasitelkiant tik pirminėmis geometrinėmis formomis ir viena pagrindine medžiaga sukuriamas griežtumo, stabilumo jausmas, o monochrominė medžiaga ir tekstūra leidžia susitelkti į erdvę, suvokti objektą kaip vientisą darinį ar kompoziciją. Jaučiamos sąsajos ir su muzika – aiški struktūra, pasikartojantis vienas motyvas, vientisumas, vienodas metras tarp langų ar kolonų ir kt.

Minimalistinės raiškos pastatų Lietuvoje nėra itin daug, tačiau tai nėra neigiamas dalykas. Urbanistinėje aplinkoje, kur pernelyg daug įvairių architektūrinių stilių, spalvų, tekstūrų, ir pan., minimalistinės raiškos pastatai nepavirsta fonu. Kaip tik, tokio tipo objektai savo paprastumu išsiskiria iš aplinkos ir veikia kaip aiškūs orientyrai.

29 pav. M. Žilinskio dailės galerija Kaune, arch. K. Kisielius, E. Miliūnas, S. Juškis (ciurlionis.lt, n. d.)

30 pav. Mo muziejus, arch. D. Libeskind (mo.lt, n.d.)

26

2.5. MINIMALIZMO SUVOKIMO SKIRTINGOSE KULTŪROSE APIBENDRINIMAS

Atlikus minimalizmo suvokimo skirtingosekultūroseanalizę,matomi pagrindiniai naudojami elementai ir jų semiotinė reikšmė. Atlikus analizę paaiškėjo:

• Minimalizmas Rytuose prasideda su filosofijos atsiradimu, kitose kultūrose pradėta siekti minimalistinės raiškos XX a. viduryje;

• Labiausiai išsiskiria Rytų kultūra: svarbu ne tiek vienos medžiagos panaudojimas ar meninė raiška, kiek grožio suvokimo vystymas pagal ten populiarią filosofiją;

• Pauzėyravienas svarbiausiųelementųminimalizmetiektarpišanalizuotųkultūrų,tiek tarp atskirų meno disciplinų;

• Kuriama monotonija langų metrika būdinga daugumoje minimalizmo judėjimuose;

• Rytuose brėžiama ryški linija tarp gamtos ir žmogaus daryto objekto, o Europoje, ypač Skandinavų šalyse skatinamas susiliejimas su gamta ir pasislėpti joje;

• Lietuvos istorijoje minimalizmas ryškiausiai atsispindi muzikoje, tie patys elementai naudojami ir architektūroje: griežta struktūra, pasikartojantys, monotoniški elementai;

• Minimalizmas architektūroje nėra tik pirminės formos – konceptualios kompozicijos sukuriamos norint pačiais paprasčiausiais elementais emociškai perteikti idėją;

• Dažniausiai naudojami minimalistiniai elementai: griežta struktūra, viena dominuojanti medžiaga, vienoda langų metrika, aiški. simetrinė planinė struktūra.

27

2.6 ANALOGŲ STUDIJA

Šio tiriamojo darbo dalyje bus atlikta daugiaaspektė žiūrovinių objektų su minimalizmo

bruožais analogų tyrimų analizė. Pagrindiniai nagrinėjami aspektai yra šie:

Socialiniai aspektai:

• Pastato paskirtis;

• Socialinė svarba.

Urbanistiniai aspektai:

• Objekto vieta urbanistiniame kontekste (funkcinės organizacijos aspektas);

• Objekto ryšio su aplinka pobūdis.

Architektūriniai – meniniai aspektai:

• Objekto funkcinis sprendimas:

o Gen. planas;

o Pastato plano struktūra (zonavimas, ryšiai, srautai ir kt.).

• Objekto meninis sprendimas:

o Kompozicinio sprendimo ypatumai

o Stilistiniai ypatumai;

o Semantiškumo, psichologinio veikimo aspektai.

• Objekto materialinė struktūra:

o Medžiaginis – konstrukcinis sprendimas (pastato konstruktyvinė sistema, pagrindinės statybinės ir apdailos medžiagos);

o Inžinerinis – techninis aprūpinimas (įtakos architektūrinei kompozicijai aspektu).

28

Bendra charakteristika:

2.6.1. Koncertų salė Vokietijoje

Vieta Blaibach, Vokietija

Metai 2014

Autorius peter haimerl.architektur

Paskirtis Koncertų salė

Socialiniai aspektai:

• Socialinė svarba (reikšmingumas)

31 pav. Blaibach koncertų salės eksterjeras (NAARO, 2014)

Ši koncertų salė yra pastatyta šalia kitų miestui svarbių objektų: bendruomenės centro, bažnyčios ir pilies. Šioje vietoje taippat yra nauja miesto aikštė, taigi koncertų salė veikia kaip susibūrimų vieta, kompoziciškai apjungianti pagrindinius objektus miesto centre. Taip pat minimalistine raiška traukia ne tik vietinius gyventojus, bet ir turistus, todėl, nors objektas pastatytas sąlyginai neseniai, tai jau yra svarbus socialinis objektas miesto bendruomenei.

Urbanistiniai aspektai:

• Objekto vieta urbanistiniame kontekste

Objektas yra urbanizuotoje aplinkoje, gamtinių elementų nedaug (32 pav.) . Priešais objektą yra aikštė. Aikštė veikia kaip piltuvėlis –suburia žmones į vieną vietą, lydinčią į pastatą. Aplinkiniai objektai yra didelio mastelio, gyvenamųjų pastatų nedaug.

• Objekto ryšio su aplinka pobūdis

32 pav. Blaibach koncertų salės urbanistinė aplinka (sudaryta autorės)

Objektas yra minimalistinės raiškos, todėl nenukreipia dėmesio į save. Neišsiskiria ne tik forma, bet ir medžiagiškumas: granitinis fasadas susietas su Blaibacho miesto akmens skulptorių tradicijas, o pati medžiaga yra naudojama ir ant aplinkinių pastatų. Paprastas, vientisas tūris lyg

29

atsiveria iš žemės traukia žmones gilyn, skatina patirti tai, kas yra viduje, bet taip pat tūriu neužgožia jau esamos suformuotos erdvės – stogo nuolydis kaip tik pabrėžia ir taip ryškų sklypo nuolydį.

Architektūriniai – meniniai aspektai:

• Objekto funkcinis sprendimas:

33 pav. Blaibach koncertų salės plano struktūra (sudaryta autorės pagal peter haimerl.architektur, 2014)

34 pav. Blaibach koncertų salės pjūvis (peter haimerl.architektur, 2014)

o Pastato plano struktūra (zonavimas, ryšiai, srautai ir kt.)

Pastato plano struktūra paprasta – vieno aukšto (bet skirtingų lygių, nes tūris ,,įlenda“ po žeme). Techninės patalpos ir san. mazgai išdėstytos prie pat įėjimo – paprastas susisiekimas ir lengvai identifikuojamos erdvės svarbios ne tik pastato darbuotojams, bet ir lankytojams (žr. 33 pav.).

Nors objektas yra kelių lygių, visumoje yra suvokiamas kaip vieno aukšto pastatas. Patalpos yra didelės ir aukštos. Apšvietimas šiuo atveju nedaro jokios įtakos, nes nei viena patalpa negauna saulės šviesos – visas pagrindinis veiksmas vyksta po žeme.

• Objekto meninis sprendimas:

o Kompozicinio sprendimo ypatumai

Minimalistinė raiška atsiskleidžia ir per pjūvį (žr. 34 pav.) – iš išorės matoma tik pagrindinė pastato funkcija, t.y. koncertų salė. Po žeme paslėptos visos kitos neesminės funkcijos. Taip pat pjūvyje matoma kaip pagrindinio tūrio nuolydis atliepia topografiją – lyg objektas kiltų kartu su gamta. Tūris ant žemės, kaip ir aikštės dalis, veikia kaip savotiškas piltuvėlis: lankytojas yraskatinamasprieiti arčiauirištirti neeilinęvietą.

30

o Stilistiniai ypatumai

Minimalistinė objekto raiška parinkta ne atsitiktinai. Granitinis fasadas atliepia miesto istoriją: čia buvo didelė granitinių akmenų skulptorių bendruomenė, tai galiausiai tapo miesto tradicija. Taip pat medžiagiškumas dera su aplinka – akmenimis grįsta aikštė ir kelias veda į dideli monumentalų objektą. Forma minimalistinė, kad neišsišauktų iš aplinkos, kadangi aplinkiniai pastatai yra paprastų formų, be įmantrių apdailų. Akmuo kaip tekstūra čia tampa pagrindiniu akcentu: akmeniniai fasadai, aikštė ir panašių tekstūrų, aštrių formų interjeras.

35 pav. Blaibach koncertų salės interjeras (peter haimerl.architektur, 2014)

36 pav. Blaibach koncertų salės interjero fragmentas (peter haimerl.architektur, 2014)

o Semantiškumo, psichologinio veikimo aspektai

Objektas savo raiška pernelyg nenukreipia žmogaus dėmesio – nurodoma, kad dėmesį reikia telkti ne į interjero detales, o į vykstantį renginį. Interjero detalumo nebuvimas taip pat reiškia tai, kad daugiau susikaupimo reikia telkti ne žiūrėjimui, o klausymuisi. Minimalistinė raiška šiuo atveju leidžia žiūrovui susikaupti ir susitelkti, ko ir yra siekiama tokio tipo objektuose (žr. 35, 36 pav.).

Objektas iš šalies žiūrint nurodo tik savo pagrindinę funkciją – koncertų salę. Nors iškart tai nėra aišku, plyšys ir aplinka nurodo, kad į vidų yra kviečiami lankytojai, t.y. kad objektas nėra privatus ar užsitvėręs.

• Objekto materialinė struktūra:

o Medžiaginis – konstrukcinis sprendimas (pastato konstruktyvinė sistema, pagrindinės statybinės ir apdailos medžiagos);

31

Kaip jau buvo aptarta anksčiau, pastato apdaila yra granitinis akmuo, kuris atliepia miesto istoriją. Bet interjere naudojamas betonas, kuris yra sudėtais dideliais elementais, kiekvieną vis pakreipiant kitaip dėl akustikos. Tarpuose tarp betono elementų yra daugiau garso izoliacijos (kartu su apšvietimu). Betonas nėra impregnuojamas, o paliekamas toks, koks buvo nulietas, nes jo porėtas paviršius sugeria aukštus dažnius (žr. 37 pav.)

o Inžinerinis – techninis aprūpinimas (įtakos

architektūrinei kompozicijai aspektu):

Visos techninės ir kitos pagalbinės patalpos yra prie pat pastato įėjimo. Taip patekimas į šias patalpas yra patogus ne tik lankytojams, bet ir darbuotojams.

37 pav. Blaibach koncertų salės porėto betono fragmentas (peter haimerl.architektur, 2014)

2.6.2. Koncertų salė Meksikoje

Bendra charakteristika:

Vieta Boca del Río, Meksika

Metai 2017

Autorius Rojkind Arquitectos

Paskirtis Koncertų salė

Socialiniai aspektai:

• Socialinė svarba (reikšmingumas)

38 pav. Meksikos koncertų salės eksterjeras (Navarro, 2017)

Meksikoje muzika visada buvo dalis visuomenės kultūros. Todėl koncertų salės, muzikos mokyklos, muzikos namai ir kiti objektai yra labai vertinami. Ypač pastaruoju metu, Boca del Rio mieste muzikos bendruomenė pradėjo labai klestėti, todėl atsirado poreikis koncertų salėms, filharmonijoms, ir pan. Atsiradus šio miesto orkestrui prireikė patalpų, kuriose galėtų koncertuoti, taip paverčiant pastatą savotiška miesto širdimi.

32

Urbanistiniai aspektai:

• Objekto vieta urbanistiniame kontekste

Objektas yra pakrantėje, tankiai urbanizuotoje aplinkoje (žr. 39 pav.). Artimiausia aplinka yra gyvenamųjų namų kvartalai, užstatyti perimetriniu užstatymu grido struktūroje. Dėl pakrantės ši vieta labiau yra skirta turistams – greta yra pliažas, tinklinio aikštės, vandens sporto vietos ir kt.

• Objekto ryšio su aplinka pobūdis

Koncertų salė pastatyta teritorijos pakraštyje.

39 pav. Boca del Rio koncertų salės urbanistinis kontekstas (sudaryta autorės)

Artimiausia aplinka yra grido struktūros, kvartalai užstatyti perimetriniu užstatymu, o nagrinėjamas objektas yra projektuotas taškiniu užstatymo būdu sklype. Artimiausia aplinka žemo užstatymo (2 – 3 aukštai), todėl koncertų salė veikia kaip lokalus orientyras.

Architektūriniai – meniniai aspektai:

• Objekto funkcinis sprendimas

o Gen. planas

Pastatas užima beveik visą sklypo plotą, mažai ploto paliekama kitoms erdvėms, nes bendruomenės turi burtis pastato viduje. Pagrindinis įėjimas į pastatą orientuotas nuo pagrindinės gatvės – sklypo pietuose, taip užtikrinant patogų priėjimą lankytojams.

• Pastato plano struktūra (zonavimas, ryšiai, srautai ir kt.)

40 pav. Boca del Rio koncertų salės gen. planas (Rojkind arquitectos, 2017)

Pastatas skirtas ne tik koncertų salei, yra ir kitų patalpų, skirtų muzikantų bendruomenei Meksikoje. Pagrindinis tūris paslėpiamas kitų patalpų blokų – koncertų salė kaip prigimtinė pastato funkcija atsiranda pastato viduryje (žr. 40 pav.). Aplink ją išdėstytos kitos patalpos: pagalbinės, techninės (san. mazgai, valytojų patalpos, ryšių patalpos ir kt..) ir antraeilės patalpos (muzikantų repeticijų patalpos, persirengimo kambariai, barai ir pan.). Visas judėjimas vyksta ratu aplink

33

pagrindinę salę, svečiams ir muzikantams skiriamos priešingos pastato pusės. Yra du aukštai, funkciškai išdėlioti vienodai (žr. 41 pav.).

41 pav. Boca del Rio pirmo aukšto plano struktūra (sudaryta autorės pagal Rojkind arquitectos, 2017)

• Objekto meninis sprendimai:

o Kompozicinio sprendimo ypatumai

42 pav. Boca del Rio koncertų salės vaizdas iš paukščio skrydžio (Dezeen, 2015)

„Foro Boca“ vieta skirta išreikšti centrinės miesto dalies dinamiką su pakrantės prospektu, o jos tikslas – veikti kaip miesto pagrindinė erdvė, kuri skatina modernumą (žr. 42 pav.). Objektas suprojektuotas iš betono kubų, kurių deformacija paskatinta aplinkos – bangos lūžimo motyvų. Kuriama priešprieša tarp lengvų ir organiškų formų aplinkoje ir betono masyvių kubų. Tuo tarpu plano forma kuria sąsają su jūrų išplaunamais akmenimis. Minimalistinė raiška fasaduose padeda pagrindinę priešpriešą išryškinti, nes monumentalus ir masyvus tūris pradeda veikti kaip orientyras organiškoje aplinkoje. Kadangi tūris neturi langų, žiūrint iš tolo nėra aišku, koks pastato mastelis. Tik turint lengvai identifikuojamą objektą šalia galima numanyti objekto dydį.

34

o Stilistiniai ypatumai

Skirtingi kubai turi skirtingą aukštingumą, kurie skaido objektą į 4 skirtingus korpusus. Atskiriant pastatą skirtingomis dalimis, vizualiai sumažinamas tūris, taigi tokioje jautrioje vietoje objektas neatrodo pernelyg didelis. Taip pat fasadai gali būti suvokiami dvejopai – iš tolo tai yra kubų kompozicija, bet iš arčiau pastebima ir fasadų tekstūra. Betonas išdėstytas skirtingomis kryptimis ant kiekvienos sienos, kad bėgant laikui susidarytų patina. Taigi fasadai iš esmės nors ir minimalūs, yra nuolat besikeičiantys: minimalistiniai kvadratai, kurie bėgant laikui keičia savo spalvą ir pamažu ima panašėti į akmenis, nuplautus vandens. Dėl langų ir kitų paslėptų angų mastelio suvokimas keičiasi atitinkamai nuo to, kur žiūrovas stovi. Interjero sprendiniai minimalistiniai, dekoro elementus turi tik laiptai.

o Semantiškumo, psichologinio veikimo aspektai

Foro Boca koncertų salė pastatyta vietoje, kurioje kiekvienais metais vis mažėjo gyventojų skaičius, o pats miestas atrodė apleistas. Tokioje vietoje pastačius minimalistinį objektą, kuris tipologiškai yra svarbus miesto ir šalies kultūrai, gyventojams atsiranda noras stengtis susitvarkyti miestą, siekti naujovių. Taigi, nors kitos koncertų salės siekia susilaukti lankytojų iš kitų miestų ar šalių, šiuo atveju tai buvo paskata atgaivinti miestą ir skatinti giliau pasinerti į kūrybą, suteikiant patalpas ir nepasiturintiems, ir prestižiniams orkestrams.

• Objekto materialinė struktūra:

o Medžiaginis – konstrukcinis sprendimas (pastato konstruktyvinė sistema, pagrindinės statybinės ir apdailos medžiagos);

Kadangi pastatas yra minimalistinės raiškos, pasirinkta viena dominuojanti medžiaga – betonas (žr. 43 pav.). Kaip jau minėta anksčiau, ši medžiaga pasirinkta dėl pastato suvokimo keitimosi bėgant laikui. Vos pastačius tai yra konceptualus orientyras esamai bendruomenei, o einant laikui tai tampa vietą įprasminantis konceptas: ant fasado pasidengia patina, kuri panaši į esančius akmenis pliaže.

Interjeras atitinka eksterjerą, išlieka viena pagrindinė medžiaga su akcentinėmis detalėmis – mediniais turėklais. Laiptai tampa pagrindiniu elementu erdvėje.

43 pav. Boca del Rio koncertų salės interjero vizualizacija (Rivera, 2017)

35

2.6.3. Filharmonija Lenkijoje

Vieta Szczecin, Lenkija

Metai 2014

Autorius Estudio Barozzi Veiga

Paskirtis Koncertų salė

44 pav. Szczecin filharmonijos fasadas (Barozzi/Veiga, 2014)

Socialiniai aspektai

• Socialinė svarba (reikšmingumas):

Objekto vieta yra labai svarbi bendruomenei. Šiame sklype buvo Antro Pasaulinio karo architekto Franz Schwechten suprojektuota koncertų salė ir muzikos centras, bet galiausiai ji tapo apleista ir nebenaudojama. Kaip senamiesčio dalis, ši vieta visuomenei yra labai svarbi, o koncertų salę įveiklina ne tik bendruomenę, bet ir turistus.

Urbanistiniai aspektai

• Objekto vieta urbanistiniame kontekste

Objektas yra tankiai urbanizuotoje aplinkoje, lenkųistoriniamerajone Małopolska (liet. Mažojoje Lenkijoje) (žr. 45 pav.). Tame pačiame sklype buvo koncertų salė, kuri galiausiai tapo nebenaudojama, dėl to naujasprojektasatgaivinavietą,išlaikydamas esamą tipologiją.

45 pav. Szczecin filharmonijos urbanistinis kontekstas (sudaryta autorės)

• Objekto ryšio su aplinka pobūdis

Pastatas kyla iš urbanistinio konteksto, kuriam įtakos turi stačiai šlaitiniai stogai, neogotikinių bažnyčių stačių ornamentų monumentalumas ir sunkūs klasicistinių pastatų tūriai, pavieniai bokštai.

36

Architektūriniai – meniniai aspektai

• Objekto funkciniai sprendimai

o Pastato plano struktūra (zonavimas, ryšiai, srautai ir kt.)

46 pav. Szczencin koncertų salės planinė struktūra (sudaryta autorės pagal Barozzi/Veiga)

Pastatas yra keturių aukštų, du pirmieji aukštai yra skiriami objekto svečiams ir lankytojams: didelis, erdvus holas, dvi koncertų salės, baras. Trečias aukštas skirtas muzikantams ir kitiems atlikėjams – repeticijų, susikaupimo, persirengimo patalpos, o ketvirtas aukštas skirtas filharmonijos darbuotojams. Patalpos gali būti skirstomos į tris tipus: žiūrovinės (paž. raudonai 46 pav.), viešos (paž. mėlynai 46 pav.) ir privačios (paž. pilkai 46 pav.). Tarp dviejų salių yra didelis tarpas kuris veikia kaip garso buferio zona, privačios patalpos yra pastato kraštuose, jas pasiekti yra sudėtingiausia.

• Objekto meninis sprendimai:

o Kompozicinio sprendimo ypatumai

Atsižvelgiant į jautrią objekto lokaciją, pastato kompozicija yra itin svarbi. Dėl to pastato stogo linija atkartoja istorinio miesto specifiką: aukšti bokštai, gyvenamųjų namų šlaitiniai stogai ir pan. Stiklo kaip išorinės apdailos medžiagos naudojimas išryškina pastato kontrastą su jį supančios aplinkos sąlygomis (žr. 47 pav.). Tai sukuria šviesų, skaidrų objektą.

47 pav. Szczencin koncertų salės vaizdas iš paukščio skrydžio (Menges, 2014)

37

o Stilistiniai ypatumai

Nors objektas atkartojo istorinio miesto stogų linijas ir savotiškai bando prisitaikyti prie aplinkos, fasadine raiška jis labai išsiskiria. Minimalistinė raiška tarp neo – gotikinių bažnyčių išsiskiria kaip lokalus orientyras. Taip pat stilistiškai išsiskiria medžiagiškumas – ryškus, baltas fasadas matomas iš tolo tarp senų neutralių spalvų pastatų (žr. 48 pav.)

o Semantiškumo, psichologinio veikimo aspektai

Semantiškai objektas veikia kaip orientyras – tampa ženklu istorinėje erdvėje. Taip pat vien iš pavadinimo semantiškai sukuriamas svarbumo jausmas, filharmonija nurodo akademinę pastato reikšmę. Dėl pastato spalvos irgi yra traukiami lankytojai: balta spalva išsiskiria aplinkoje ir sudomina, todėl yra traukiami arčiau.

• Objekto materialinė struktūra:

48 pav. Szczecin filharmonijos fasado fragmentas (Barozzi/Veiga, 2014)

o Medžiaginis – konstrukcinis sprendimas (pastato konstruktyvinė sistema, pagrindinės statybinės ir apdailos medžiagos);

Medžiagiškumu pastatas suvokiamas kaip šviesos elementas: stiklinis fasadas, apšviestas iš vidaus, priklausomai nuo panaudojimo leidžia skirtingai suvokti. Išorinis griežtumas ir paprasta vidinių cirkuliacinių erdvių kompozicija kontrastuoja su pagrindinės salės išraiškingumu. Remiantis Vidurio Europos klasikinių koncertų salių tradicija, puošyba tampa ornamentu ir funkcija. Salė sukomponuota pagal Fibonačio seką, kurios fragmentiškumas didėja tolstant nuo scenos ir suteikia formą ornamentinei erdvei, kuri aukso lapų danga primena klasikines tradicijas (žr. 49 pav.)

49 pav. Szczecin filharmonijos interjeras (Barozzi/Veiga, 2014)

38

2.6.4. Kultūros namai Suomijoje

Vieta Helsinkis, Suomija

Metai 1958

Autorius Alvar Aalto

Paskirtis Kultūros namai

Socialiniai aspektai

• Socialinė svarba (reikšmingumas):

50 pav. Suomijos kultūros namų eksterjeras

Kultūrosnamai yraį rytusnuopagrindinioišvažiavimoišHelsinkiokelio, miestošiaurėje.1950 m. į valdžią atėjusi komunistų partija nusprendė investuoti į pastatą, kuris būtų jų būstinė, kultūros centras ir asociacijos patalpos (žr. 51 pav.).

Urbanistiniai aspektai

• Objekto vieta urbanistiniame kontekste

Pastatas yra istoriniame Alppila rajone. Rajone vyrauja perimetrinis užstatymas, yra žalių erdvių.

• Objekto ryšio su aplinka pobūdis

Objektas iš aplinkos išsiskiria su monumentaliu tūriu (žr. 50 pav.). Nors aplinkoje vyrauja perimetrinis užstatymas, objekto forma ne visai gali tai įgyvendinti, taigi šiek tiek atveriama viešos erdvės.

51 pav. Suomijos kultūros namų urbanistinis kontekstas (sudaryta autorės)

39

Architektūriniai – meniniai aspektai

• Objekto funkciniai sprendimai

o Pastato plano struktūra (zonavimas, ryšiai, srautai ir kt.)

52 pav. Suomijos kultūros namų planas (Archdaily.com, n.d.)

Būdamapolitinėspartijos būstine,įstaigaturėjo būti įrengta kasdieniam administraciniam ir biurokratiniam verslui, ypatingiems viešiems renginiams, laikantis politinių ideologijų, kurias jis turėjo atstovauti. Du pagrindiniai programos elementai atsirado kaip du pagrindiniai komplekso elementai, tarp jų esanti erdvė tarnauja kaip viešoji aikštė ir priėmimo erdvė (žr. 52 pav.) Pagrindinį korpusą sudaro asimetrinė auditorija ir koncertų salė, talpinanti 1500 žmonių, restoranas ir nedidelis rūsio kino teatras (dabar naudojamas kaip posėdžių salė). Biurų pastatas yra penkių aukštų, jame yra: konferencijų salė, biurai ir pramogų apartamentai. Jungiančiame korpuse yra prieškambaris ir rūbinė, auditorijakonferencijoms,trys salės,penkiposėdžiųkambariai,bibliotekairdidelėsportosalėrūsyje.

o Stilistiniai ypatumai

Asimetriškaauditorija pastatytaišplytų,kuriosatitiktųakustinęfunkciją,kartusuvariniustogu (žr. 53 pav.). Tiek formą, tiek medžiagas padiktuoja koncertų salės funkciniai poreikiai. Kita vertus, biurų pastatas ir mažesnis korpusas, kuriame bus konferencijų salė, būtų suprojektuoti iš gelžbetonio, apkalto variu ir medžiu.

o Semantiškumo, psichologinio veikimo aspektai

Semantiškai objektas monumentaliu tūriu ir minimalistine raiška dideliu masteliu nurodo svarbos motyvą. Suskirstant pastatą į tris atskiras dalis pagal paskirtį yra nurodomas griežtumas, oficialumas, lankytojai supranta, kad čia ne vieta pasibūti laisvalaikiu, kad norint patekti į šią vietą reikia būti pasiruošus iš anksto.

53 pav. Suomijos kultūros namų fasado fragmentas (Archdaily.com, n.d.)

40

• Objekto materialinė struktūra:

54 pav. Suomijos kultūros namų konstrukcinis fragmentas (archdaily.com, n.d.)

o Medžiaginis – konstrukcinis sprendimas (pastato konstruktyvinė sistema, pagrindinės statybinės ir apdailos medžiagos); Kultūros namų projektavimo iššūkis buvo pristatytas šiuolaikiniu laikotarpiu ir Suomijoje, kur vietinė architektūra paprastai buvo statoma iš vietinių medžiagų. Alvaras Aalto nusprendė pastatą suprojektuoti iš trijų dalių. Auditorijos konstrukciją jis padarė iš atkaitintų raudonų plytų ir gelžbetonio, o kabinetai ir mažasis sparnas – iš gelžbetonio, apkalto variu. Pastato stogas yra žalias varis, kaip ir takas, esantis priešais pagrindinį įėjimą arba kiemą. Aalto naudojo iš tuščiavidurių raudonų plytų sumūrytą trapecijos formos gabalą, kuris turi reikiamas akustines ir liejimo savybes, kad padarytų lenktas išorės sienas, taip pat suteikė reikiamas priemones jai formuoti (žr. 54 pav.). Vidinės sienos yra pagamintos iš medžio, leidžiančios skleisti garsą, taip pat sugerti. Priešingai, tenkinant darbus užsakiusios komunistų partijos poreikius, biurų pastatas buvo pagamintas iš variu dengto gelžbetonio.

2.6.5. Koncertų salė Vengrijoje

Vieta Pecs, Vengrija

Metai 2010

Autorius Építész Stúdió

Paskirtis Koncertų salė

Socialiniai aspektai

• Socialinė svarba (reikšmingumas):

55 pav. Vengrijos koncertų salės eksterjeras (Bujnovszky, n.d.)

Objekto reikšmė miestui – ne tik pritraukti lankytojus, bet ir sudominti lokalią bendruomenę klausytis klasikinės muzikos.

41

Urbanistiniai aspektai

• Objekto vieta urbanistiniame kontekste

Objektas yra netankiai urbanizuotoje aplinkoje, netoli yra gyvenamieji pastatai, komerciniai pastatai ir biblioteka (žr. 56 pav.). Valstybinės reikšmės pastatų nėra, gamtinių elementų nedaug.

• Objekto ryšio su aplinka pobūdis

56 pav. Vengrijos koncertų salės urbanistinis kontekstas (sudaryta autorės)

Objektas aplinkoje neišsiskiria pernelyg daug, kadangi yra visokio mastelio objektų. Priešais pagrindinę gatvę pastatai išdėstyti perimetriniu užstatymu, o didesni objektai išsidėstę vienoje kvartalų eilėje.

Architektūriniai – meniniai aspektai

• Objekto funkciniai sprendimai

o Pastato plano struktūra (zonavimas, ryšiai, srautai ir kt.)

Objekte srautų judėjimas vyksta ratu: svečiai ateina ir pasibūna lauko erdvėse, vestibiulyje, galiausiai nuvyksta į pagrindinę patalpą – salę (paž. raudonai 57 pav.). Muzikantai ratu keliauja aplink salę ir taip patenka į savas patalpas –persirengimo kambarius, repeticijų sales ir kt. (paž. mėlynai 57 pav.).

57 pav. Vengrijos koncertų salės funkcinis zonavimas (sudaryta autorės pagal Építész Stúdió)

o Stilistiniai ypatumai

Yra dvi tapatybės, sudarančios mūsų pasaulio vienetus: viduje ir išorėje. Objektas ir erdvė. Ekstravertas ir intravertas. Aktyvus ir pasyvus. Bendruomeninis gyvenimas ir vidinė tyla. Pastatas,

42

po kurį galime vaikščioti, ir salė, kurioje mus supa muzika. Pats pastatas yra ryškus, išjudintas dinamiškos aukso pjūvio simetrijos. Pati salė – tai ramybės ir simetrijos sintezė.

Visas pastatas yra suprojektuotas pagal Fibbonacci skaičių seką ir aukso pjūvio taisyklę –elementai, kurie aktyviai veikia ne tik architektūroje, bet ir randami klasikinėje muzikoje. Visas objektas yra projektuojamas priešpriešomis: vidus/išorė, architektūra/muzika, ramybė/veiksmas.

o Semantiškumo, psichologinio veikimo aspektai

Semantiškai pastatas dydžiu nusako svarbą. Tūrio raiška ir fasado raiška yra minimalistinė, o tai veikia

kaip vietinis orientyras. Langai nurodo skaidrumą, savotišką žvilgsnį gilyn į muzikantų gyvenimą, o architektūriškai veikia kaip plyšis, traukiantis žmones vidun (žr. 58 pav.).

58 pav. Vengrijos koncertų salės vizualizacija (Építész Stúdió, 2010)

• Objekto materialinė struktūra:

o Medžiaginis – konstrukcinis sprendimas (pastato konstruktyvinė sistema, pagrindinės statybinės ir apdailos medžiagos);

Pastato elementai: akmuo ir mediena. Kietas ir minkštas. Šalta ir šilta. Miriadų ir šimtmečių amžius. Patvarus ir intymus. Senovinė balta akmeninė sraigė lėtai apkabina gryna mediena išklotą koncertų salę. Tarsi klausytumėmės muzikos gigantiškos medinės formos ar instrumento viduje (Építész Stúdió, 2010).

2.6.6. Analogų studijos analizės apibendrinimas

• Atlikus analogų studijos analizę galima teigti, kad architektūros objekto aplinka gali būti tiek urbanistinėje, tiek gamtinėje aplinkoje. Minimalistinė pastato raiška abiejais atvejais tampa lyg lokalus orientyras;

• Minimalistinė raiška pasirenkama dėl dviejų priežasčių: norint padėti objekto lankytojams susikaupti arba išsiskirti iš aplinkos monumentaliu tūriu;

• Planinė struktūra yra griežta: aiškiai atskiriamos patalpų funkcijos ir prieinamumas lankytojams, muzikantams, o judėjimas dažnu atveju vyksta ratu aplink pagrindinę salę;

43

• Planinė struktūra taip pat yra dažnai uždara – prigimtinės funkcijos (žiūrovinės) patalpoms langų nereikia, taigi savotiškai užsidaroma ir atsiskiriama nuo aplinkos, langai atsiranda tik holuose, vestibiuliuose;

• Medžiagiškumas dažnai skiriasi viduje ir išorėje – kuriamas kontrastas tarp lauko ir vidaus erdvių, taip pat pasirenkama viena pagrindinė medžiaga ar vienas elementas, kuris kartojasi kaip bendras motyvas, jungiantis priešingybes tarp vidaus ir išorės;

• Objektų tipologija pasirinkta dėl trijų pagrindinių priežasčių – skatinti susidomėjimą muzika lokaliai bendruomenei, suteikti jau esamai bendruomenei patalpas arba pritraukti lankytojus iš kitų miestų ar šalių;

• Pagrindinis įėjimas akcentuojamas kaip plyšys, traukiantis lankytojus į vidų.

2.7. MENINIS TYRIMAS: KANKLIŲ MINIMALISTINĖ RAIŠKA

Atsižvelgiant į minimalistinės raiškos objektus skirtingose kultūrose ir analogų studijoje, dažnu atveju minimalistinė raiška pabrėžia tai, kas lokaliai bendruomenei yra svarbu kultūriškai. Lietuvos atveju, minimalizmas buvo ryškiausias muzikoje, ypač liaudies muzikoje. Dėl to objektu norima pabrėžti muzikos Lietuvoje svarbą ir reikšmę bendruomenei, o kanklės yra neatsiejama liaudies muzikos dalis.

2.7.1. Kanklių pirminiai modeliai

59 pav. Luoto modelio sąsaja su kanklėmis (sudaryta autorės pagal Apanavičių)

Įvairiose pasaulio dalyse, skirtingose kultūrose muzikos instrumentai turėjo realius prototipus ir buvo tų prototipų sudvasinti modeliai. Modeliuoti daiktai padarė neišdildomą įspūdį arba buvo nepamainomi pirmykštės visuomenės buityje. Modeliai pirmiausia naudoti senesniuose ritualuose, o tik vėliau pritaikyti estetiniams poreikiams. Pirminė muzikos instrumentų paskirtis buvo tokia reikšminga, kad daugumos jų estetinė funkcija liko neišryškinta iki pat XX a.

Pačios archajiškiausios pirmojo tipo kanklės yra skobtinio luotelio forma (žr. 59, 60 pav.). Iš esmės iki dabar forma išliko nedaug pakitusi. Pačio instrumento forma tiesiogiai

44

siejama su žmogaus mirtimi – pagal senąsias tradicijas jos buvo gaminamos mirus artimajam. Jam mirus, pradėta gaminti kankles: dažniausiai einama į girią, pasirenkamas medis ir iš jos viršūnės pradedama kurti. Kartais dėl artimojo amžiaus pradedama ruoštis iš anksto – šeimų kiemuose auginami medžiai būtent šiai paskirčiai. 1911 m. biržietis poetas Julius Janonis į užrašų knygelę parašė nugirstą tikėjimą, kad ,,Kanklėms medžius reikia kirsti motinai numirus, kad garsiau skambėtų“(Aleksynas, 1982).Aišku, tinkane bet koks atsitiktinis medis: rašoma,kaddažnai tai buvo liepa, bet kitur rašoma, kad kankles galima dirbti iš beržo arba uosio, o viršus privalo būti eglės (Apanavičius, 1990). Stygos – plieno arba vario, o jas derina sukant dantimis arba mediniu raktu. Tokios kanklės buvo laikomos geriausiai skambančios, jos perduotos iš kartos į kartą, kad grotų per apeigas ir vakarais, ,,kai žvirbliai tūpti eina“. Dažnai grojo vaikams, pradėjo kurti šokius ir dainas galiausiai ne tik mirties apeigoms, bet ir laisvalaikiui. Buvo tikėta, kad kuo senesnės kanklės, tuo jų garsas yra geresnis.

Iš esmės kanklės visose kultūrose turi sąsajas su mirtimi, bet Lietuvos istorijoje tai yra itin glaudžiai susieta, vis dėlto mūsų kultūroje mirtis nėra svetima – literatūroje personifikuojama, tautosakoje įgauna skirtingus pavidalus, apdainuojama sutartinėse ir t. t. Valtys buvo ir seniausios ritualinės priemonės. Iš čia kyla lietuviškųjų tradicinių kanklių istorija: mirus artimam žmogui, gaminamos kanklės, kuriomis apdainuodavo mirusįjį ir galiausiai išplukdydavo jo dvasią valtelėje. Taip pat yra skandinimo papročiai – luote įsodinti kūnai paleidžiami į marias ir skandinami, kad nepavogtų raganos ar kitos piktos dvasios. Šių papročių laikytasi iki XVIII a. Kitose šalyse (pvz., Latvijoje ir Rusijoje) kanklių formos siejamos su rogėmis, sakmėse ir legendose. Pvz., Kuršžems legendoje per Šiaurės karą siaučiant marui ir išmirus visai šeimai, liko tik du vaikai. Jie pasikeisdami ant kanklių kaip ant rogučių vienas kitą nutempė pas kaimynus ir išsigelbėjo.

Praėjus kuriam laikui pradėjo ryškėti ir estetinė kanklių funkcija: tradicinės kanklės tapo lankstesnių formų, jų gamyba tapo lyg atskira meno forma (žr. 61 pav.). Pradėta eksperimentuoti su skambesiu, t. y. stygų skaičiumi, dydžiu, galiausiai atsirado kankliavimo metodika.

60 pav. Luotas (Šulgienė, n.d.)

61 pav. Tradicinės kanklės, (emokykla.lt, n.d.)

45

2.7.2. Kanklių tipai

Nors visose kultūrose kanklės yra siejamos su mirties ritualais, atitinkamai pagal kultūrą ir vietą, skiriasi kanklių forma, stygų skaičius, raštai ir kt. Pačios archajiškiausios kanklės Lietuvoje yra šiaurės rytų Aukštaitijoje – Biržų, Rokiškio, Kupiškio rajonuose. Tokios kanklės taip pat yra sėlių teritorijoje Latvijoje. Pagal grojimo metodiką skiriasi stygų skaičius, bet dažnai tai irgi siejama su magiškaisiais skaičiais (5, 7, 9, 12). Bet tai nėra vienintelė jų prasmė: kadangi kanklės glaudžiai siejamos su valtimis, šie skaičiai nurodydavo irklininkų ir keleivių skaičių. Šie skaičiai dažnai naudojami ir tautosakoje, pagal J. Švedą užrašytoje dainoje yra žodžiai: ,,<...> degins juodą laivelį ant devynių kampų.“ (Švedas, 1952). Atsižvelgiant į tai, kur kanklės buvo gaminamos, taip pat atsiranda ir gyvūnų motyvų: žemaičių kanklės atkartoja žuvies pavidalą, rytų aukštaičių kanklės turi paukščių bruožų. Tokios kanklės gali būti laikomos ir savotiškais totemais.

Dabar kanklės skirstomos į tris pagrindinius tipus ir yra sudarytos iš šių elementų: korpuso, paskuigalio (dešinys šonas), drūtgalio (kairys šonas), dekoro elementų ir stygų. Pirmasis tipas laikomasarchajiškiausiu (žr.62pav.).Josbuvoišskobtosišvienomedžio gabalo,formaatitinkaluoto arba karsto modelį. Dėl tuometinių darbo priemonių, korpuso forma dažniausiai buvo šešiašonė, bet, kartais meistrai pagamindavo ir pusapvales. Dažniausiai korpusas dažomas juodai, ir beveik visada buvo penkios stygos. Juoda spalva galimai atsirado iš luotų gamybos specifikos: senovėje juos darydavo pasitelkus ugnį, apdeginant ąžuolą reikiama forma. Dekoruojamas tik dugnas, dažniausiai vienu ornamentikos simboliu (žr. 63, 68 pav.).

62 pav. I kanklių tipas (sudaryta autorės pagal

Apanavičių)

63 pav. I kanklių tipas (Virbašius, n.d.)

Antrojo tipo kanklės yra gerokai didesnės. Jų dugnas dažniausiai plokščias, rečiau – šešiašonis. Drūtgalis smailesnis, mažiau išsikišęs iš korpuso. (žr. 66 pav.) Stygų būna arba 9, arba 12, priklausomai nuo to, kur jos buvo gaminamos. Kaip ir pirmosios kanklės, dažnai dažomos juodai, bet yra rasta ir rudų instrumentų (žr. 67 pav.)

46

66 pav. II kanklių tipas (sudaryta autorės pagal

Apanavičių)

67 pav. II kanklių tipas (Šuliokas, 1989)

Trečiojo tipo kanklės turi daugiau dekoratyvių elementų: drūtgalis riestas arba užsuktas, suvalkiečių dažnai būna labai dideliu taisyklingu apskritimu. Plongalis išsiskiria – yra suapvalintas, įgauna grakštesnę formą (žr. 64, 65 pav.). Sulyginus su kitais tipais, skiriamas didesnis dėmesys išvaizdai, atsiranda organiškos formos. Stygų skaičius toks pat, kaip ir antrojo tipo – 5 arba 12.

65 pav. III kanklių tipas (sudaryta autorės pagal

Apanavičių)

64 pav. III kanklių tipas (Rudis, 1930)

Dekoro elementai visuose tipuose panašūs, naudoja tuos pačius ornamentikos simbolius. Pagrindinis kanklių ornamentas – viršutinės plokštės išpjova. Kaip ir kanklių forma, ji turi gilią prasmę. Svarbiausias elementas – apskritimas, nurodantis išbaigtumą, idealumą. Daugelio tautų tikėjimuose tai dažnai atliko magiškojo apsisaugojimo rato funkciją. Taigi kanklės ne tik mirusįjį apdainuoja, bet ir apsaugo nuo piktų dvasių. Lietuvoje tai dažniausiai būdavo raganos, kurios norėdavo pavogti velionių kūnus. Taip pat šie simboliai buvo piešiami ir ant karstų.

68 pav. Naudotos ornamentikos pavyzdžiai (sudaryta autorės pagal Apanavičių)

47

2.7.3. Kanklių istorinės raidos apibendrinimas

• Apžvelgus kanklių instrumento istorinę raidą, galima atrasti, kad skirtingose Lietuvos vietos kanklės įgavo vis kitokį pavidalą, bet principas ir tradicijos išlieka vienodos, išlieka stiprios sąsajos su vandeniu, valtimis, mirtimi.

• Formai didelę įtaką turėjo mirties apeigos, bet tai nėra neigiamas ar liūdnas aspektas. Kadangi lietuvių tautosakoje mirtis nėra baisi būtybė, kanklės taip pat nėra nelaimės ar gedėjimo ženklas – jų muzika skambėjo kiekvieną vakarą, pagal jų muziką šoko vaikai ir t.t.

• Medžiagiškumas visoje Lietuvoje buvo praktiškai vienodas: medinis korpusas (skyrėsi tik medžio tipas: liepa, uosis, ąžuolas), plieninės arba varinės stygos, mediniai stygų laikikliai.

• Organiškos formos atsiranda tik Suvalkijoje ir šiaurės vakarų Žemaitijoje, kitų kraštų instrumentai yra statiškų formų.

• Architektūrinės formos vystymui galimi variantai sietini su kanklių formos geometrizavimu, pasitelkiami kultūriniai simboliai (valtis, rogės, ornamentika), kanklių muzikos rašto ypatumai, tradicinės muzikos ritmikos struktūra.

1 lentelė. Kanklių tipų sulyginimo apibendrinimas

Tipas Korpusas Dekoro elementai Drūtgalis Paskuigalis Stygų skaičius

I Šešiašonis

II Plokščias

III Plokščias

Dugne viena ornamentikos detalė

Dugne viena ornamentikos detalė

Organiškos formos, išdeginta ornamentika

Daugiausiai išsikišęs nuo korpuso

Išsikišęs, aukštas 5

Išsikišęs nuo korpuso, bet nežymiai Plokščias 9 arba 12

Apvalių formų, išsikišęs

Išsikišęs, suapvalintas 5 arba 12

2.7.4. Kanklių formos geometrizavimas

Geometrizavimui ir formos analizei pasirinkti du prototipai – I ir III tipo kankles. Tarp jų vizualiai yra ryškiausi skirtumai (žr. 69 pav.)

69 pav. Pasirinkti prototipai geometrizavimui (sudaryta autorės)

48

I tipo formų analizė

Išskaidžius objektą į pagrindines dalis (70 pav.), gaunamos 5 atskiros dalys (4, jeigu neskaičiuojant pasikartojančių).

70 pav. I tipo kanklių išskaidymas iki pagrindinių dalių (sudaryta autorės)

71 pav. I tipo kanklių dalių neigiama erdvė (sudaryta autorės)

Pastebima, kad būdingos formos yra iškarpytos, nepilnos (žr. 71 pav.). Pirma forma yra drūtgalis – jis yra išsikišęs, o jo paskirtis yra stygoms pririšti. I tipo kanklėms nebūdingas puošnumas, bet minimaliomis priemonėmis jis traukia žiūrovo dėmesį – apkarpytas stačiakampis įgauna įstrižą formą, savotiškai sudrumsčia ramybę. Antroji forma yra korpusas, jis yra pagrindinis kanklių elementas. Jis gali būti atviras ir uždaras, bet viena jo siena būna išpjauta įstrižai, taip kuriama sąsaja su luoteliu. Trečioji forma funkciškai prilaiko metalinį rėmą, ant kurio rišamos visos stygos, bet vizualiai veikia kaip savotiškas piltuvėlis – visos stygos subėga į vieną liniją, vizualiai nurodoma korpuso riba. Ketvirtoji forma atitinka luotelio galą, kur irkluotojas prisėda pailsėti. Šiuo atveju supaprastinus tai atitinka pusę ritinio formos – jis neišsišoka, neatima dėmesio nuo svarbiausio elemento.

Supaprastinus iki tokių formų, matoma tiesioginė sąsaja su luotelio forma. I tipo kanklės yra paprastos, formos yra gana primityvios ir lengvai suprantamos, minimalistinės. Bet nors raiška ir minimalistinė, labai ryškiai atskleidžiama jų istorija.

49

72 pav. III tipo kanklių išskaidymas iki pagrindinių dalių (sudaryta autorės)

73 pav. III tipo kanklių dalių neigiama erdvė (sudaryta autorės)

Išskaidžius objektą į pagrindines dalis, gaunamos 4 atskiros dalys (žr. 72 pav.). Nors vizualiai III tipo kanklės atrodo grakštesnės ir vizualiai įdomesnės, jos turi mažiau elementų. Vienas didžiausių skirtumų tarp šių dviejų tipų

– analogiškų formų mastelis sulyginus su korpusu. Taip pat įstriži elementai yra ryškesni. Neigiama erdvė išlieka svarbiu aspektu kompoziciniu aspektu – svarbi ne tik pačių kanklių ir jų sudarančių formų siluetas, bet ir erdvė aplink jas (žr. 73 pav.).

Apibendrinant kanklės atitinka minimalizmo pagrindinius elementus: aiški struktūra, švarios linijos, panaudojant kuo mažiau elementų išreiškiama svarbi istorinė reikšmė. Taigi, neatsižvelgiant į tipą, vis tiek išlieka tokie patys principai, tik skiriasi formų mastelis.

50
III tipo formų analizė

3.

VIETOS TYRIMŲ ANALIZĖ

3.1. VIETOS IR SKLYPO PASIRINKIMAS

Pasirinktas sklypas yra Lietuvos viduryje, jis priklauso Kauno apskrityje esančiame Kėdainių mieste, Babėnuose (žr. 74 pav.). Babėnai yra Kėdainių miesto dalis, esanti į šiaurę nuo miesto centro, išsidėsčiusi į šiaurę nuo geležinkelio stoties, Nevėžio ir Dotnuvėlės tarpupyje.

74 pav. Pasirinkto sklypo padėtis Lietuvos ir apskrities padėtyje (sudaryta autorės)

Projektuojamas architektūrinis objektas yra visuomeninis pastatas – muzikos namai. Šiame objekte planuojama koncertų salė, muzikantų bendruomenei skirtos patalpos ir ekspozicijos salės tautinių instrumentų istorijai atminti. Pasirinktas sklypas šiam objektui yra Kėdainiuose, nes vieta priklauso vakarų Aukštaitijos regionui.Čiavystėsi atskirakankliavimometodika,kuri yra naudojama iki šiol. Sklype yra Babėnų tvenkinys, netoliese – Babėnų miškas, Nevėžio upė. Atsižvelgiant į kankliavimo istoriją, galima daryti prielaidą, kad šiose vietose galimai buvo kurtos kankliavimo tradicijos. Šiame rajone taip pat yra ir tautinių ansamblių, kuriems reikia patalpų.

51

3.2. TERITORIJOS GAMTOS IR UŽSTATYMO SANTYKIS

Miestas yra netankiai užstatytas, tankiausiai apstatyta centrinė ir vakarinė dalys. Miestą perpus skiria Nevėžio upė. Šiaurinėje miesto dalyje yra Babėnų miškas ir tvenkinys (karjeras). Vakarinėje miesto dalyje daugiausiai ploto yra miško teritorijos, daugiausiai želdynų yra susidariusių aplink upes (žr. 75 pav.)

75 pav. Užstatymo ir gamtos santykio Kėdainių mieste schema (sudaryta autorės)

52

76 pav. Artimos aplinkos užstatymo ir gamtos santykis (sudaryta autorės)

Sklypas yra Babėnų karjero teritorijoje, aplink yra daug želdynų, yra apžvalgos aikštelė.

Netoliese yra gyvenamieji namai, tačiau jų nėra daug, t.y. užstatymas nėra tankus (žr. 76 pav.). Babėnų miške yra mišrus, bet vyrauja lapuočiai (beržai, ąžuolai, klevai, beržai ir kt.). Yra įrengta sveikatingumo trasa, pažintinis – rekreacinis takas, šiose vietose taip pat yra tautodailininkų iš ąžuolo išdrožtos skulptūros.

3.3. INFRASTRUKTŪROS RYŠIŲ SCHEMA

Į miestą patenkama iš keturių pagrindinių pusių (krašto keliais iš Josvainių, Medininkų, Vilainių ir Sirutiškio). Miestą kerta geležinkelis, taigi yra lengvas susisiekimas tarp miestų. Prie pat sklypo yra krašto kelias į Sirutiškio pusę. Sklype infrastruktūra neišvystyta, yra tik žvyrkeliai. Nėra išvystytos pėsčiųjų takų ir dviračių takų sistemos (žr. 77 pav.).

53
54
77 pav. Infrastruktūros ryšių sistema Kėdainių mieste, schema (sudaryta autorės)

3.4 RELJEFAS

Sklypas yra apsuptas šlaitų, kurie pakyla maždaug iki 6 m (žr. 78 pav.). Pagrindinėje sklypo dalyje reljefas nėra itin išraiškingas, didžioji dalis yra plokščia, o sklypo rytinėje pusėje yra apžvalgos taškas, kuriame matomas karjeras.

78 pav. Reljefo fragmentas (sudaryta autorės)

Pasirinkto sklypo gretimose teritorijose vyrauja nedidelio aukštingumo pastatai, didžioji dauguma jų yra 2-3 aukštų gyvenamieji namai. Artimiausioje aplinkoje nėra kitos paskirties objektų (žr. 79, 80 pav.).

3.5. UŽSTATYMAS

79 pav. Artimiausios aplinkos užstatymas, schema (sudaryta autorės)

55

80 pav. Teritorijos užstatymo pastatais intensyvumo schema (Registrų centras, 2019)

3.6. TERITORIJOS PROBLEMATIKA

Ežero pakrantė nepritaikyta gyventojų ir miestelio svečių lankymui, nors yra populiari pasivaikščiojimų ir švenčių, kultūros ir sporto renginių vieta. Keliukas yra duobėtas, žvyro dangos. Žaslių slėnis (,,amfiteatras“) seniai betvarkytas, reikalingas atnaujinimas. Savivaldybė nori šią vietą sutvarkyti ir atnaujinti, paversti traukos tašku, pritaikyti patogesniam miestelio renginių organizavimui

56

3.7. VIETOS TYRIMŲ ANALIZĖS IŠVADOS

1. Atlikus analizę paaiškėjo, kad pasirinktoje teritorijoje trūksta funkcinių, ir infrastruktūros ryšių tarp Kėdainių centrinės miesto dalies ir sklypo, numatomas objektas gali veikti kaip traukos taškas ir dėl to gali būti vystoma infrastruktūros sistema;

2. Trūksta visuomeninės paskirties objektų, miesto bendruomenė neturi daug vietos, kur galėtų leisti laiką;

3. Pasirinktoje teritorijoje būdingas žemas aukštingumas, neintensyvus užstatymas. Panoramoje dominuoja želdiniai, ypač Babėnų miškas;

4. Reljefas nėra itin išraiškingas, tačiau yra apžvalgos aikštelė, kurioje matoma karjero panorama.

57

4. PROJEKTINĖ DALIS

4.1. VARIANTINIS PROJEKTAVIMAS

Variantinio projektavimo metu buvo atliekamos architektūrinės formos paieškos atliekant įvairaus detalumo eskizus ir 3D modeliavimą, pasitelkiant įvairias programas. Atmetimo būdu buvo pasirinkta viena koncepcija.

Koncepcija: prigimtis

Atsižvelgiant į meninį tyrimą, vieta artima kanklių istorijai. Gamtinė aplinka (miškas, vanduo) atitinka istorinius elementus ir yra teritorijoje, kur iki šiol palaikomos kankliavimo tradicijos. Todėl objektas įgauna kanklių pagrindinio elemento formą – kanklių korpuso. Ši forma išlieka daugmaž vienoda visuose kanklių tipuose, tiek tradicinių, tiek koncertinių, tiek modernių. Taip pat ši forma yra luotelio pagrindas, todėl tampa savotiška gamtos ir architektūros jungtimi.

Kadangi istoriškai su velioniais atsisveikinama buvo išplukdinant ir panardinant kūną tam, kad jo nerastų raganos, tūris dalinai yra ,,panardinamas“ į žemę ir atlieka saugojimo funkciją (žr. 81 pav.).

81 pav. Koncepto schema (sudaryta autorės)

Pirmasis variantas yra kanklių (luotelio) formos ir dalinai panardinamas į žemę (žr. 83 pav.). Į žemę ,,panardinta“ dalis yra prigimtinė pastato funkcija – koncertų salė. Įgaudamas tokią formą saugojimas atsiskleidžia keliais aspektais:

1. Į žemę ,,panardinant“ koncertų salę savotiškai atliepiama istorija – prigimtinė pastato funkcija yra saugojama nuo folklore esančių piktųjų dvasių;

2. Akcentuojamas įėjimas – einant taku aiškiai matomas pastato siluetas, kuris nyksta žiūrint iš kitų krantų pusių;

3. Šiame variante saugojamas elementas yra pastato gilumoje, paslėptas nuo visų akių.

58
59
83 pav. Pastato tūrio Varianto A eskizas (sudaryta autorės) 82 pav. Varianto A funkcinis zonavimas (sudaryta autorės)

Koncepcija: simboliai

Antruoju variantu išlaikoma tradicinių kanklių forma, bet daugiau dėmesio skiriama pagoniškiems simboliams. Pastato stogas išryškinamas, atskiriamos nuo gamtos, aiškiai matomas iš visų pusių. Stogo forma skaidoma į tris dalis, atitinkamai pagal magiškąjį skaičių, o kiekvienas skirsnis turi atskirą funkciją (žr. 84 pav.).

84 pav. Pastato tūrio varianto B schema (sudaryta autorės)

85 pav. Pastato varianto B pjūvis (sudaryta autorės)

86 pav. Pastato varianto B sklypo plano schema (sudaryta autorės)

Šiuo atveju pagrindiniai simboliai yra du – magiškieji skaičiai ir saugantis ratas, kuris raibuliuoja visu pusiasalio plotu. Semantiškai saugoma ne tik salė, bet ir jos lankytojai (žr. 85, 86 pav.)

60

Koncepcija: luotelis

87 pav. Tradicinių ir modernių kanklių korpuso formos išryškinimas (sudaryta autorės)

88 pav. Luotelio koncepcijos stogo schema (sudaryta autorės)

89 pav. Luotelio koncepcijos pagrindinių patalpų santykis su pastatu (sudaryta autorės)

Trečiuoju variantu svarbiausias pastato elementas yra stogas, kuris vizualiai primena apversto luotelio formą, o pastato plano forma atitinka ir tradicinių, ir modernių koncertinių kanklių formą (žr. 87 pav.).

Visos pagrindinės pastato funkcijos būtų sutalpintos į vieną pusę, tvarkingoje formoje, kad sudarytų skraidančios valties įspūdį. Apverstas luotelis (žr.88 pav.) taippat atlieptų ir istorinę prasmę: ,,paskandinta“ koncertų salė nors ir matoma, yra saugoma įstiklintų rėmų.

Pastato tūris išlieka vientisas, aiškios formos, su didelėmis ekspozicinėmis erdvėmis, išgryninant tik esmines objekto dalis – salė, stogas, atvira erdvė (žr. 89 pav.).

61

4.2.1. Bendri duomenys

Sklypas yra Babėnų g., sklypo kad. nr. 440007341895. Sklype yra Babėnų karjero apžvalgos aikštelė, Babėnų miško dalis ir Babėnų karjeras. Dalis miško veikia kaip parkas, yra pažintinis –rekreacinis takas, tautodailininkų iš ąžuolo drožtos skulptūros. Netoliese yra gyvenamųjų pastatų.

Kėdainių miesto bendrajame plane projektuojama teritorija įeina į miesto dalies rekreacinių miškų zoną.

Projektuojamas objektas yra kultūrinės paskirties. Numatomos vestibiulio, edukacines ir ekspozicines erdves, koncertų salę, muzikantų patalpas. Bendras pastato plotas: 6 430,19 m2

Apibendrinta projektuojamo objekto Kėdainių mieste programa – muzikos namai

Kėdainiuose:

I – Pagrindinės ekspozicijų salių erdvės: 2 155,44 m2

II – Laisvalaikio vestibiulis: 1019, 31 m2

III – Natų biblioteka: 233,99 m2

IV – Instrumentų saugykla: 287,26 m2

V – Muzikantų patalpos: 182,7 m2

VI – Koncertų salė: 532,24 m2

VII – Darbuotojų patalpos: 111,2 m2

VIII – Techninės patalpos: 88,83 m2

IX – Kavinė / baras (su personalo patalpomis): 69,96 m2

X – Pagalbinės patalpos: 1 574,01 m2

XI – Rūbinė: 175,25 m2

Iš viso: 6 430,19 m2

Pagrindiniai projektuojamo pastato rodikliai:

Sklypo plotas – 54 720 000 m2

Bendras plotas – 6 430,19 m2

Užstatymo plotas – 2 491 m2

Užstatymo tankumas – 0,0045 %

Užstatymo intensyvumas – 0,0001

Parkavimo vietų skaičius – 62 vnt.

62
4.2. PROJEKTO AIŠKINAMASIS RAŠTAS

4.2.2. Koncepcija

Pagrindinė pastato idėja – architektūriniais elementais parodyti kanklių ir lietuviškos muzikos tradicijų istoriją ir sukurti vietą, kur galėtų burtis Kėdainių miesto muzikantai. Koncertų salė projektuojama formuojant daugiausiai atviras ir pusiau atviras erdves, uždaroms erdvėms skiriant tik požeminę dalį ir pagalbines patalpas.

Projektuojamas pastatas išsiskiria iš gamtos masyvo, taip vizualiai lankytojams skatinantis eiti arčiau ir pasižiūrėti, kas yra giliau. Pamačius pastatą iš sklypo pietinės pusės – žmogus eina jau esamu pažintiniu taku, praeidamas įvairias iš ąžuolo drožtas skulptūras, informacinius stendus ir pan. Pasiekęs pusiasalio pradžią lankytojas turi pasirinkimą tarp lipimo ant kalnelio ir ėjimo ant apžvalgos taško arba eiti į koncertų salę ir tęsti judėjimą jau skulptūrų taku (žr. 90 pav.). Pastatas yra pusiasalio gilumoje, taip išskiriantis šią sklypo dalį kaip pagrindinę ir sumažinant sklypo dydį iki artimesnio žmogui.

90 pav. Patekimai į pagrindinę sklypo teritoriją (sudaryta autorės)

Pats objektas yra paprastų ir aiškių formų. Kadangi kanklių forma jau yra panaši į valtelę, sąsaja tarp šių dviejų objektų yra artima. Atsižvelgiant į jau aptartas tradicijas, yra svarbūs vandens, paskandinimo, saugojimo motyvai. Visataiatliepiamaryškiausiu elementu – stogu,kurisasocijuojasi su luoteliu, bet taip pat primena ir senus kluonų pastatus, o šlaitinis stogas reaguoja ir į aplinkinį vienbučių namų užstatymą (žr. 91 pav.).

63

91 pav. Apversto luotelio motyvas kaip stogo forma (sudaryta autorės)

Visos pagrindinės patalpos yra sutalpintos į vieną pusę, tvarkingoje formoje. Tokiu būdu siekiama suteikti ,,skraidančio“ stogo efektą, kuris būtų matomas iš tolimesnių sklypo kampų ar plaukiant valtimi Babėnų ežeru. Iš paukščio skrydžio pastato forma primintų koncertines kankles: smailūs kampai atliepia tradiciją, o banguota linija tampa tiek koncertinių kanklių aiškiu bruožu, tiek raibuliuojančio vandens bruožas (žr. 92 pav.). Iš esmės, objektas veikia kaip jau esamo pažintinio tako ir skulptūrų tako kulminacija.

92 pav. Schema – vaizdas iš viršaus (sudaryta autorės)

64

4.2.3. Sklypo ir teritorijos sprendiniai

Sklypas yra vizualiai sumažinamas iki mastelio, artimesniam lankytojui. Pagrindinė sklypo teritorija tampa pusiasalis, ji veikia kaip pažintinių takų kulminacija. Privažiavimas yra iš šiaurinės sklypo dalies, nuo Babėnų g. Neįgaliųjų ir aptarnaujančiam transportui skirtos vietos yra prie pat projektuojamo objekto, o likusios vietos šiaurinėje sklypo dalyje – iki nuo jų iki objekto yra apie 300 m. (žr. 93 pav.)

Svarbiausias sklypo plane esantis elementas – saugantis ratas, kuris prasideda projektuojamo pastato viduje ir ,,raibuliuoja“ per visą pusiasalį. (žr. 94 pav.) Taip pat yra svarbūs jauesantys medžiai –jaislydimas lankytojas nuo Babėnų miško iki pat projektuojamo pastato (žr. 95 pav.).

65
93 pav. Situacijos planas (sudaryta autorės) 94 pav. Sklypo vaizdas iš paukščio skrydžio (sudaryta autorės)
66
95 pav. Sklypo plano fragmentas (sudaryta autorės)

4.2.4. Funkcija ir ryšiai

96 pav. Pirmo aukšto funkcinis zonavimas (sudaryta autorės)

Koncertų salė projektuota atsižvelgiant į minimalistinius projektavimo principus, aplinką ir joje esančius vizualinius ryšius. Kadangi artimiausioje aplinkoje nėra jokių viešos paskirties objektų, koncertų salė veikia kaip traukos taškas tiek vietiniams lankytojams, tiek miesto svečiams.

Pastato aukštų funkcinės schemos yra gana paprastos, dominuoja didelės ir atviros erdvės (96, 97, 98 pav.). Yra dviejų tipų ekspozicijų salės – nuolatinė (edukacinė erdvė rūsyje) ir besikeičianti (antrame aukšte). Visos atviros erdvės yra apžvelgiamos per ,,ratą“ –skylę, esančią visuose aukštuose.

Svečių patalpos yra aiškiai matomos iš atvirų erdvių. Muzikantams skirtos patalpos yra uždaros – rūsyje. Rūsyje taip pat yra ir administracinės patalpos, natų biblioteka ir instrumentų saugykla.

Trečiame aukšte didžioji dalis patalpų yra atviros. Salės pagalbinės patalpos (vaizdo, garso ir apšvietimo) yra priešais salę, o šalia – VIP ložės. Jos yra pusiau atviros, patalpose yra tik keletas sėdimų vietų.

98 pav. Rūsio funkcinis zonavimas (sudaryta autorės)

97 pav. Antro aukšto funkcinis zonavimas (sudaryta autorės)

67

Pirmajame aukšte (99 pav.) yra pagrindinė fojė –vestibiulis, pagalbinės

patalpos, baras, jo patalpos ir pati koncertų salė. Patalpos yra didelės, atviros ir aukštos.

Iš pastato rytinės pusės yra automobiliams skirtos vietos, iš jų 2 yra neįgaliųjų ir 4 skirtos darbuotojams. Taip pat yra aikštelė skirta didelių automobilių apsisukimui

(gaisrinėms, šiukšlių išvežimui ir kt.).

Pagrindinis įėjimas yra matomas einant taku į pusiasalį. Įėjus į pastatą iškart matomi apvalūs laiptai, kurie

veikia kaip interjero detalė, baras ir pagrindiniai įėjimai į pačią salę.

4.2.5. Architektūriniai sprendiniai

99 pav. Pirmo aukšto planas (sudaryta autorės)

Salės dydis yra 532m2 , joje numatytos 362 sėdimos vietos, iš kurių 5 yra antro aukšto ložėse. Pagal tai skaičiuojamos automobilių vietos (1 automobilio vieta 10 m2 salės ploto pagal STR 2.06.04:2014 „Gatvės ir vietinės reikšmės keliai. Bendrieji reikalavimai“) ir sanitarinių mazgų skaičius (1 unitazas ne daugiau kaip 18 vyrų ir 1 unitazas ne daugiau kaip 18 moterų pagal STR 2.02.02:2004 "Visuomeninės paskirties statiniai"). Numatyta 62 vnt. automobilių vietų, iš kurių 1% turi būti neįgaliųjų (1 vieta A tipo, 1 vieta B tipo). Sanitariniai mazgai per visus aukštus atitinka keliamus reikalavimus – numatyta 12 unitazų ir 12 pisuarų skirtų vyrams, 18 unitazų skirtų moterims ir 3 sanitariniai mazgai skirti žmonėms su negalia.

68

100 pav. Rūsio planas (sudaryta autorės)

Į rūsį (100 pav.) patenkama keliais būdais: nusileisti laiptais iš vestibiulio, iš laiptinių esančių giliau holuose arba leidžiantis keleiviniais liftais. Nusileidus į rūsį pagrindinė atvira erdvė yra nesikeičianti – edukacinė erdvė apie kanklių ir kitų lietuviškų instrumentų istorijos ekspozicija.

Taip pat aiškiai matoma svečių rūbinė ir du koridoriai: administracinių patalpų vieta ir muzikantų vieta. Uždaros erdvės yra instrumentų saugykla (pasiekiama tik muzikantams ir administracijai) ir natų biblioteka (pasiekiama tiek muzikantams ir darbuotojams, tiek svečiams).

Natų bibliotekoje yra bendradarbiavimo erdvė, kur muzikantai gali kartu susėdę pasibandyti kelis kūrinius prieš juos pasiimant.

Muzikantų patalpos yra uždaros, jose laiko savo asmeninius daiktus, repetuoja, ruošiasi ateinančiam pasirodymui.

Muzikos įrašų studija yra rūsio gilumoje dėl privatumo. Priešais instrumentų saugyklą yra ir instrumentų taisykla – joje galima prisukti naujas stygas, pakeisti konkrečias dalis ir kt.

Administracinės ir darbuotojų patalpos išdėstytos vienoje rūsio pusėje – į tai įeina pirmosios pagalbos punktas, apsauga, kitos darbuotojų patalpos. Rūsyje taip pat yra garso ir vaizdo montavimui skirtos patalpos su tinkama įranga.

69

Užlipus (arba pakilus liftu) į antrą aukštą (žr. 101 pav.) yra didelė ekspozicinė erdvė skirta parodoms, kurios po tam tikro laiko vis pasikeičia. Lankytojai šioje erdvėje juda tarp santvarų kaip per labirintą.

Prie salės yra VIP ložės ir darbuotojų patalpos. Hole palikta erdvė kanklių dirbtuvėms – mokiniai, prižiūrimi mokytojų gauna galimybę pasigaminti savo instrumentą ir pagroti jau pagamintais instrumentais.

Per visus pastato aukštus yra skylė - ,,ratas“ (žr. 102 pav.). Lankytojas yra nuolat sekamas saulės šviesos iš didelio stoglangio antrame aukšte. Aksonometrinėje pastato schemoje ryškiau matomos pagrindinės erdvės santykis su tūriu (žr. 103 pav.).

101 pav. Antro aukšto planas (sudaryta autorės)

70
71
103 pav. Aksonometrinė pastato pagrindinių erdvių schema (sudaryta autorės) 102 pav. Pastato pjūvis (sudaryta autorės)

4.2.6. Fasadų sprendiniai

104 pav. Pastato vizualizacija (sudaryta autorės)

Fasadų medžiagiškumui atskirtos dvi pagrindinės medžiagos – medis ir stiklas (žr. 104 pav.). Atsižvelgiant į archajiškiausias tradicijas, kanklių formą išdegindavo iš didelio medienos gabalo, dėl to deginta ir tamsi mediena yra pagrindinė ir pati svarbiausia medžiaga. Fasadai mažiau išraiškingi, kad lankytojo dėmesys būtų pilnai sutelktas į stogą ir jo medžiagiškumą – ilgos ir aukštos vitrinos su storais mediniais rėmais, kurios paslepia kolonų konstrukciją viduje.

72

Kad projektuojamas pastatas pernelyg neišsiskirtų iš jau esamo užstatymo netoliese, stogo apdaila primena ne tik kanklių medžiagiškumą, bet ir senų kluonų. Nors stogo pagrindinė medžiaga yra deginta (tamsi) mediena, ji išskiriama į dvi dalis – degintos ilgos dailylentės ir medinė apdaila, imituojanti čerpeles (žr. 105, 106 pav.).

105 pav. Stogo apdailos medžiagiškumas (sudaryta autorės)

106 pav. Rytinis fasadas (sudaryta autorės)

4.2.7. Vidaus erdvių ir interjero sprendiniai

Kadangi Lietuvos klimatas dažnai yra niūrus ir tamsus – vidaus erdvės projektuojamos šiltų spalvų, beveik visi architektūriniai elementai yra mediniai. Pagrindinėse ekspozicijos salėse sraigtiniai apvalūs laiptai patys tampa interjero detale, todėl erdvės neapkrautos objektais ar baldais. Erdvės minimalistinės, neapkrautos detalėmis. Stengiamasi išvengti siūlių tarp dailylenčių, kolonos

73

ir kitos laikančios konstrukcijos yra paslepiamos vitrinose ir sienose (107 pav.). Antrame aukšte (stoge) pagrindinėje erdvėje konstrukcija (santvaros) tampa interjero detale (108 pav.), ant kurių kabinamos parodų paveikslai, tarp jų įkomponuojamos skulptūros ir kt.

Koncertų salė irgi yra medinė, bet joje naudojami kitokios apdailos (109 pav.). Sienos apdaila yra išdrožtos šviesios medienos, taip suteikiant švelnumo pojūtį lankytojams. Vandens raibuliavimas, atsispindintis nuo vitrinos, žaidžia kartu su išdrožtais fragmentais ir suteikia judėjimo, bangavimo įspūdi, kol klausomasi muzikos. Lubos – kesono, su aiškiu kontrastu tarp šviesios ir tamsios medienos. Šios apdailos taip pat veikia kaip garsą izoliuojančios medžiagos. Koncertų salės kėdės yra teleskopinės, kad salė būtų lengvai transformuojama atsižvelgiant į bendruomenės poreikius.

Sustūmus kėdes į vieną pusę atsilaisvina didelė erdvė, kurią galima naudoti šokiams ar kitiems bendruomenės renginiams.

107 pav. Vestibiulio interjero fragmentas (sudaryta autorės)

74

109 pav. Koncertų salės interjero vizualizacija (sudaryta autorės)

108 pav. Antro aukšto ekspozicijos salės interjero fragmentas (sudaryta autorės)

75

4.2.8. Statinio prieinamumas. Neįgaliųjų specifinių poreikių tenkinimo sprendiniai

Visas pastatas yra suprojektuotas taip, kad būtų prieinamas ir naudojamas žmonėms su negalia. Visuose aukštuose yra įrengiami liftai, projektuojami ne siauresni nei 1500 mm koridoriai, o evakuacinėse laiptinėse palikta 1200x850 mm dydžio saugos salelės neįgaliesiems. Kiekviename aukšte yra numatyti žmonėms su negalia pritaikyti C tipo san. mazgai (1700x2200 mm), kurių durys yra ne siauresnės nei 1 m pločio ir atsidaro į išorę. Koncertų salėje numatytos 3 prieinamos neįgaliųjų vietos. Lauko erdvėje, takų nuolydžiai yra ne didesni nei 2%. Sklype yra numatyta B tipo automobilio ir autobusiuko stovėjimo aikštelė, taip pat projektuojamos A tipo automobilių stovėjimo vietos žmonėms su negalia. Neįgaliųjų automobilių vietos yra numatytos prie pat pastato, šalia įėjimo durų.

4.2.9.

Gaisrinė sauga ir evakuacija

Koncertų salės gaisrinės saugos ir evakuacijos sprendiniai yra projektuojami pagal gaisrinės saugos pagrindinius reikalavimus. Kiekviename pastato korpuse yra numatyta po du evakuacijos kelius ir projektuojamos evakuacinės laiptinės su tiesioginiu išėjimu į lauką. Patalpų durys projektuojamos evakuacijos kryptimi. Evakuaciniuose keliuose esančios durys ir langai –priešgaisriniai. Laiptųmaršųplotis yranemažesnisnei1200mm,neįskaitantturėklų.Koridoriųplotis yra ne siauresnis nei 1500 mm. Žmonių su negalia evakuacijai, laiptinėse yra numatytos saugos salelės (1200x850 mm), esančios visuose pastato aukštuose. Saugos zona įrengiama taip, kad neblokuotų evakuacijos kelio ar durų varčios krypties.

4.2.10. Detali pastato programa

2 lentelė. Projektuojamo objekto programa

76
77

ARTECHNIKA

Projekte numatomos saugyklos, brangi technika, didelis instrumentų kiekis. Kad visa tai būtų apsaugota, naudojama

ARTECHNIKA produktai tiek viduje, tiek lauko erdvėse. DS939 serijos panoraminiai detektoriai gali būti pakabinami aukštose patalpose, todėl didelėsekspozicijųsalėsgalibūti apsaugotos.Taip patprojektenaudojamaARTECHNIKOSsiūloma gaisro apsaugos įranga VESDA-E VES. Šis įrenginys užtikrina projektuojamo pastato apsaugą nuo gaisro, greitai aptikdamas gaisro pradžią ir signalizuodamas.

Projektenumatytapanaudotitrinkeles(Forte natūralios spalvos, sendinta) iš BETONO MOZAIKOS. Sklype tai atrodytų kaip jau esanti danga, nepaneigianti pagoniškumo motyvų bendros stilistikos. Trinkelės būtų panaudojamos automobilių aikštelėms ir gatvei, skirtai nuvažiuoti iki pusiasalio.

BIPA

Lauko erdvėse naudojami BIPA gaminiai (City Design suoliukai), skirti ramiam pasisedėjimui tarp medžių ir skulptūrų. SEEDiA tipo suoliukai naudojami šiaurinėje sklypo dalyje prie automobilių aikštelių.

ENEFIT

Elektromobiliai automobilių aikštelėje kraunami su ENEFIT ElintaCharge CityCharge V2 krovimo stotele.

78
4.2.11. PASIRINKTŲ RĖMĖJŲ SIŪLOMŲ PRODUKTŲ PANAUDOJIMO PROJEKTE APRAŠYMAS

PERCUSSION PLAY

Pažintiniame take iki pusiasalio yra

PERCUSSION PLAY produktai, skatinantys vaikus groti ir žaisti su muzika. Produktai

Djembes, Tumbadoras, Cajon, Cherub, Akadinda ir Handpipes išdėstyti einant taku iki pusiasalio, lankytojai eidami gali išgirsti ne tik styginių, bet ir mušamųjų, pučiamųjų garsų.

SCENOS TECHNINIS SERVISAS

Muzikos namų projekte naudojama daug

SCENOS TECHNINIO SERVISO produktų. Pačios svarbiausios – garso sistemos, viešųjų erdvių kėdės ir akustinės plokštės. Lauke grojanti muzika lankytojams nurodys ateinančių koncertų ištraukas, o tai sklistų per L-Acoustics L Series kolonėles. Pačioje koncertų salėje naudojamos teleskopinės kėdės, kad salės erdvė būtų kuo daugiau multifukcinė. Teleskopinių kėdžių sistemos naudojamos

FIGUERAS gamintojo Flex 6035 modelis.

YAKIWOOD

Degintas medis – viena pagrindinių šio projekto medžiagų. YAKIWOOD siūloma apdaila naudojama tiek vidaus antro aukšto erdvėse, tiek išorės stogo apdailoje. Apvalūs deginto medžio takeliai – sklypo akcentas, todėl tai pat pasirinkta

YAKIWOOD teikiamos paslaugos. Visos apdailos yra tarp CARBON, BROWN, NATURAL ir LATTE produktų.

79

Scenos apšvietimas yra nuolatos besikeičiantis dalykas, taip pat nuolat eksperimentuojama su skirtingais šviestuvais, apšvietimo kampais, akcentinėmis šviesomis ir kt. Dėl to pasiremiama BY & N siūloma produkcija. Ekspozicijų salėse apšviesti paveikslus, skulptūras, ir instrumentus naudojamos akcentinės (tracklight) šviestuvai ,,ROT-4“ 12W-18W. Pagrindinėse erdvėse bendram apšvietimui naudojamos linijiniai šviestuvai 50 B UGR<19. Koncertų salės patalpoje naudojami HBL-UFO AD IP65aukštoms patalpoms skirti šviestuvai,kiti apšvietimo pasirinkimaibūtų numatyti atitinkamai pagal koncerto tipą ir poreikį.

TIKKURILA

Kad pastatas išliktų estetiškas, pasirinktos TIKKURILA medieną sauganti produkcija. Vidaus patalpoms naudojamas Kiva 10 vandeninis akrilinis vidaus lakas ir Paneeli-Ässä 20 pusiau matinis vandeninis akrilinis vidaus lakas. Lauko medinei apdailai naudojama Unica Super 90 greitai džiūstantis uretaninis alkidinis lakas.

SCHNEIDER ELECTRIC LIETUVA

Priešgaisrine sauga pasirūpinama su SCHNEIDER ELECTRIC produkcija.

Kadangi pastatas yra medinis, yra daug instrumentų, pasirūpinti priešgaisrinėmis sistemomis yra ypač svarbu. Dėl to naudojama ESMI fire detection panels 54 iš SCHNEIDER. Be gaisrinės saugos, naudojama pastatų automatizavimo sistema SpaceLogicKNX. Taip užtikrinamas saugumas, ekonomiškumas, naudojama mažiau laidų pastato sistemoms

80 BY & N

PANASONIC

Pastato šildymui ir vėdinimui naudojama

PANASONIC AQUAREA K serijos šilumos siurblys. Tai ne tik lengvai paslėpiamas fasade blokas, bet ir tyliai veikiantis (išlaikantys rimtį sklype), tvarus, ir atlaikantis iki -25 °C lauko temperatūros objektas (svarbus aspektas, nes sklypas su dideliu vandens telkiniu, temperatūra žemesnė nei miesto aplinkoje)

WICONA

Vienas iš pagrindinių objekto akcentų – vitrinos, besidriekiančios visu pastato perimetru. Dėl to pasirinkta WICONA produkcija. Šiuo atveju pasirinkta WICTEC 50A

Add-on curtain wall for steel and wood produktas, dėl kurios vitrinos rėmai gali būti ,,surišti“ kartu su pastato laikančia konstrukcija. Taip viešose erdvėse išvengiamos kolonos, medinis medžiagiškumas.

GEOPARTNERIS

Prieš pradedant bet kokius darbus, reikialingi teritorijos nauji topografiniai planai, kontroliniai geodeziniai planai ir požeminių tinklų planai GEOPARTNERIS teikiamos paslaugos galėtų šiuos darbus atlikti ir suteikti Kėdainių savivaldybei Babėnų karjero naujai ištirtus duomenis

ETERNIT BALTIC

Muzikantų pasiruošimo patalpoms, darbuotojų patalpoms naudojama ETERNIT BALTIC produkcija Atsitiktinės tekstūros apdaila LUNARA LA20 plokštės suteiktų elegantišką, grakštų įvaizdį, kas ir yra būdinga stygininkams. Šios plokštės naudojamos vidaus patalpose dėl garso izoliacijos (muzikantų pasiruošimo patalpose), atsparumo įvairioms medžiagoms. Taip pat jos yra tvariai gaminamos, todėl dera prie viso natūralaus ir tvaraus pastato įvaizdžio.

81

5. IŠVADOS

1. Lietuvių kultūra, apeigos ir muzika dažnu atveju siejasi su mirtimi ir jos tradicijomis. Bet tos tradicijos yra pamirštos, todėl yra svarbu turėti traukos objektus, kuriuose yra tiek edukacinių erdvių, tiek erdvių bendruomenėms, o tokia koncertų salė gali suteikti naujas galimybes bendradarbiauti su universitetais ir mokyklomis;

2. Miško teritorijoje esantis objektas gali tapti susitikimų vieta, traukos tašku, skatinantis lankytoją nagrinėti ne tik objektą, bet ir jo aplinkybes, teritoriją, istoriją ir pan.;

3. Pati teritorija atitinka aprašymus apie kankliavimo tradicijas, todėl tai gali tapti turizmo traukos objektu. Miesto lankytojai gali būti skatinami būti ne tik miesto centre, senamiestyje, bet ir miesto pakrašty, keliauti pažintiniais takais ir kt.;

4. Koncertų salė gali tapti Kėdainių simboliu, praturtindama miesto viešąsias erdves ir išlaikydama pagonišką simboliką. Jos patalpos tinkamos ne tik dabar, bet ir ateityje gali būti lengvai transformuojamos pagal poreikį;

5. Minimalizmas lietuvių istorijoje yra svarbus, bet ne tiek ryškus architektūroje, kiek muzikoje. Remiantis minimalizmo principais lietuvių muzikoje ir instrumentuose, kuriamas objektas įgauna savitą stilistiką, įprasminantis senąsias tradicijas.

82

NAUDOTOS LITERATŪROS SĄRAŠAS

Apanavičius, R. (1990). Senosios kanklės ir kankliavimas. Eksperimentinės technikos paminklų restauravimo įmonės spaustuvė.

Barlow, A.(2013). TheCultofIndividualism.AHistoryofanEnduringAmericanMyth. Bloomsbury Academic.

Burns, C. (1996). BauhausinAmerica, Journal of the Societyof Architectural Historians, 55(2), 182–85.

Etlin, R. A. (1983), Italian Rationalism, Progressive Architecture, 86 – 94.

Falco, F. D. (2018), Italian Rationalist Design: Modernity between Tradition and Innovation. Arts 8(1), 27. https://doi.org/10.3390/arts8010027

Furuyama, M. (2006). Ando. Taschen.

Griffiths, G. (2013). Minimal information content in Finnish architecture. NA, 17(4).

John, M., (2000). Brutalism, Ugliness, and the picturesque object. Formulation Fabrication - The Architecture of History: Proceedings of the Seventeenth Annual Conference of the Society of Architectural Historians, p. 259-66.

Kasčiukaitė, L. Daunoravičiūtė, G. (2012). Minimalizmas: komponavimo doktrina ir praktika Lietuvoje. Lietuvos muzikologija, 13(4), 61–84.

Kuginys, G., (2015). Architektūra be architektūros. BMK

Lomas, T., Etcoff, N., Van Gordon, W., & Shonin, E. (2017). Zen and the Art of Living Mindfully: TheHealth-EnhancingPotentialofZenAesthetics Journalofreligionand health, 56(5), 1720–1739.

Lupeikis, K. (2002). Minimalizmo aspektai Lietuvos architektūroje. Urbanistika ir architektūra, t. 26, Nr. 3, 114-124.

Lupeikis, K. (2012). Kompozicinės priemonės šiuolaikinėje minimalistinėje architektūroje. Journal of architecture and urbanism, 36(2), 107–118. https://doi.org/10.3846/20297955.2012.697720

Nakas, Š. (2004). Kuo pasižymi lietuvių minimalizmas? Lietuvos muzikos link, 8.

Shigenori, N. (2020), Japanese Zen Buddhist Philosophy, Metafizikos tyrimų laboratorija, Stanfordo universitetas. Prieiga per internetą: https://plato.stanford.edu/archives/spr2020/entries/japanese-zen/ [žiūrėta 2023 – 11 – 20]

Sullivan, L. (1896), The Tall Office Building Artistically Considered, Lippincots, 403 – 409. Tanizaki, J., 2022. Odė šešėliams. Lapas. White, M., (2003). De Stijl and Dutch Modernism. Manchester University Press. Saieh, N. (2020). Concert Hall Blaibach / peter haimerl.architektur. Prieiga per internetą: https://www.archdaily.com/567635/concert-hall-blaibach-peter-haimerl-architektur [žiūrėta: 2023 –11 – 20]

83

N. a., (2017). Foro Boca / Rojkind Arquitectos Prieiga per internetą: https://www.archdaily.com/884635/foro-boca-rojkind-arquitectos [žiūrėta: 2023 – 11 – 20]

N. a., (2014). Philharmonic Hall Szczecin / Estudio Barozzi Veiga Prieiga per internetą: https://www.archdaily.com/561343/philharmonic-hall-szczecin-estudio-barozzi-veiga [žiūrėta: 2023 – 11 – 20]

Fiederer, L. (2016). AD Classics: House of Culture / Alvar Aalto Prieiga per internetą: https://www.archdaily.com/783388/ad-classics-house-of-culture-alvar-aalto [žiūrėta:2023 –11 –20]

N. a., (2011). Kodály Centre / Építész Stúdió. Prieiga per internetą: https://www.archdaily.com/107400/kodaly-centre-epitesz-studio [žiūrėta: 2023 – 11 – 20]

LENTELIŲ SĄRAŠAS

1 lentelė Kanklių tipų sulyginimo apibendrinimas.............................................................................48

2 lentelė Projektuojamo objekto programa.........................................................................................76

84
85

Turn static files into dynamic content formats.

Create a flipbook
Issuu converts static files into: digital portfolios, online yearbooks, online catalogs, digital photo albums and more. Sign up and create your flipbook.