Samanvitha Koduvayur Suresh Portfolio

Page 1

PORTFOLIO

Interior Designer - Samanvitha Koduvayur Suresh

MeetSam!

After being in the software world for five years, Sam decided to explore the design realm. She started as an intern at a residential interior design company to discover that this is exactly where she belongs. She’s passionate about her new career and decided to go to school for Interior Design while continuing her internship, which converted her to a part-time assistant designer.

Currently, she is a second-year Interior Design student at Madison College to take her skills to the next level. She has been successful in the coursework and has been on the Deans list every semester. She was also a research program student on “Biophilic design and automation”. Sam served as Administration chair officer for the IIDA Wisconsin chapter student board for a year.

Sam’s favorite design styles are Warm minimalism and biophilic design, and she enjoys participating in design events. She proudly shares her amazing experience as a part of the “Design For A Difference” to help redesign an autistic school along with many proficient designers. She loves to design with passion and purpose.

Sam’s a designer by day and an artist by night; painting and sculpting are her favorites.

Oh, and she is also a mom of two cutie guinea pigs!

A few words about Sam from her boss…

“You have so many great qualities....strong interpersonal skills, the ability to multitask and always find something to do without even asking. In addition you have excellent computer and writing skills and are an active listener. My clients love you and always look forward to seeing you!

With your positive attitude and strong desire to be creative, I know this is the right field for you and you will be a top notch designer!”

Determined to make her mark in the design world…

Here are little drops of her work…..

Robert’s Laundry Project. 1 Residential P. 02 Kowalke & Kansteiner Remodel. 2 Residential Brunsell’s Kitchen. 3 Residential P. 10 P. 17 Assisted Living Facility. 4 Commercial P. 22
Contents.

Robert’s Laundry Project.

SPRING 2023

Software Used: SketchUp

Project Information.

This client is building a home, and they want to get some ideas for space planning and materials for their second-floor laundry room. They have 3 children and have 2 cats, so they require durable materials that will last for them. They would also like litter boxes in that space for their cats.

Client’s Requests.

• Front load washer and dryer

• Storage for ironing board and iron

• Storage for a sewing kit and mending items

• Storage for additional laundry soap and fabric softener

• A spot for hanging clothes that come out of the dryer

• A spot for air-drying clothing that cannot be dried in the dryer

• A sink for pretreating laundry

• A countertop space for folding laundry

• An open space for laundry baskets, at least 3 laundry baskets

• A spot to store a vacuum cleaner in the laundry room

Robert’s laundry room design Page 2

Floorplan.

Window bench seating with cat litter boxes below

Ironing station with foldable iron board & storage cabinet

Base and wall cabinets for storage with wood countertop

Full-height cabinet to store vacuum cleaner & other essentials

Washer & dryer with pedestal

A spot to hang clothes from the dryer

Air drying rack

Sink

Three laundry bins connected to the laundry chutes

Three laundry chutes for Dark, Light, and Colors

N NTS
Robert’s laundry room design Page 3

Elevations.

Wallpaper accent wall

Large window

North wall elevation

Textured wall

Window seating

Door to stairs hallway

Cat litter boxes

South wall elevation

Robert’s laundry room design Page 4

Elevations.

Accent paint

Wall cabinets for storage

Washer & Dryer

Tile backsplash

Countertop

Utility sink

Dark

East wall elevation

3 laundry bins connected to chutes

Pedestals

Accent paint

Air dry rack

Full-height cabinet for vacuum cleaner & essentials storage

Ironing station with foldable iron board & storage cabinet

Three laundry chutes for Light, Dark and Colors - connected to the laundry bins

West wall elevation

Rear side of the East wall elevation

Robert’s laundry room design Page 5

More storage cabinets Light Color
Door to stairs hallway
8 7 3 6 2 4 1 6 9 8 7 Storage with wood countertop Skylight Storage Laundry bins
iron board with storage 1 5 4 3 2 Spot to hang clothes from dryer Air dry rack Washer & dryer Storage Window Key 5 9 Robert’s laundry room design Page 6 Perspectives. 10 10
Foldable
5 8 7 6
6 8 7 Chute for dark clothes Chute for colored clothes
Chute for light clothes 5
1 4 3 2 Tiled backsplash Utility sink with storage Countertop space Key 2 4 1 3 Robert’s laundry room design Page 7
Accessing laundry chute from Rear side of the East wall elevation Cat litters
Perspectives.

Materials & Finishes.

Outer frame

finish: Walnut

Paint: BEHR –Platinum PPU26-11

Accent Wall Paint:

BEHR – Dark Room

BNC-29

Door Style:

Keyline-French

Vanilla Square

Door finish

Flooring: MSI Brickstone

Capella Taupe - Matte

Premium Porcelain Tile

Wallpaper: Pip & Lo - Fruit

Color: Navy

Countertop: Wood

Finish: Walnut

Backsplash: Daltile -

Argyle Blend White

Robert’s laundry room design Page 8

Materials & Finishes.

Washer & Dryer kit (with pedestals) GE 1320870

Color: Royal Sapphire

DryAway- Laundry Drying Racks & Frame

Oswald Supply Universal StainlessSteel Chute Door for Laundry

Sink: Kohler Kennon 25" sink - K-28003-1-CM4

PetSafe ScoopFree

Complete Plus SelfCleaning Cat Litter Box with Front-Entry Hood

Faucet: Kohler - Tone K-23767-BL

Best Access Doors 12" x 12" BA-IVH, Drywall

Inlay Access Panel

Iron-A-Way Ironing Center - 42

Inch Built-In Swiveling Ironing Board

Model:AE42FWU-L

Robert’s laundry room design Page 9

Kowalke & Kansteiner Remodel.

SPRING 2023

Software Used: Chief Architect x13

Concept Statement.

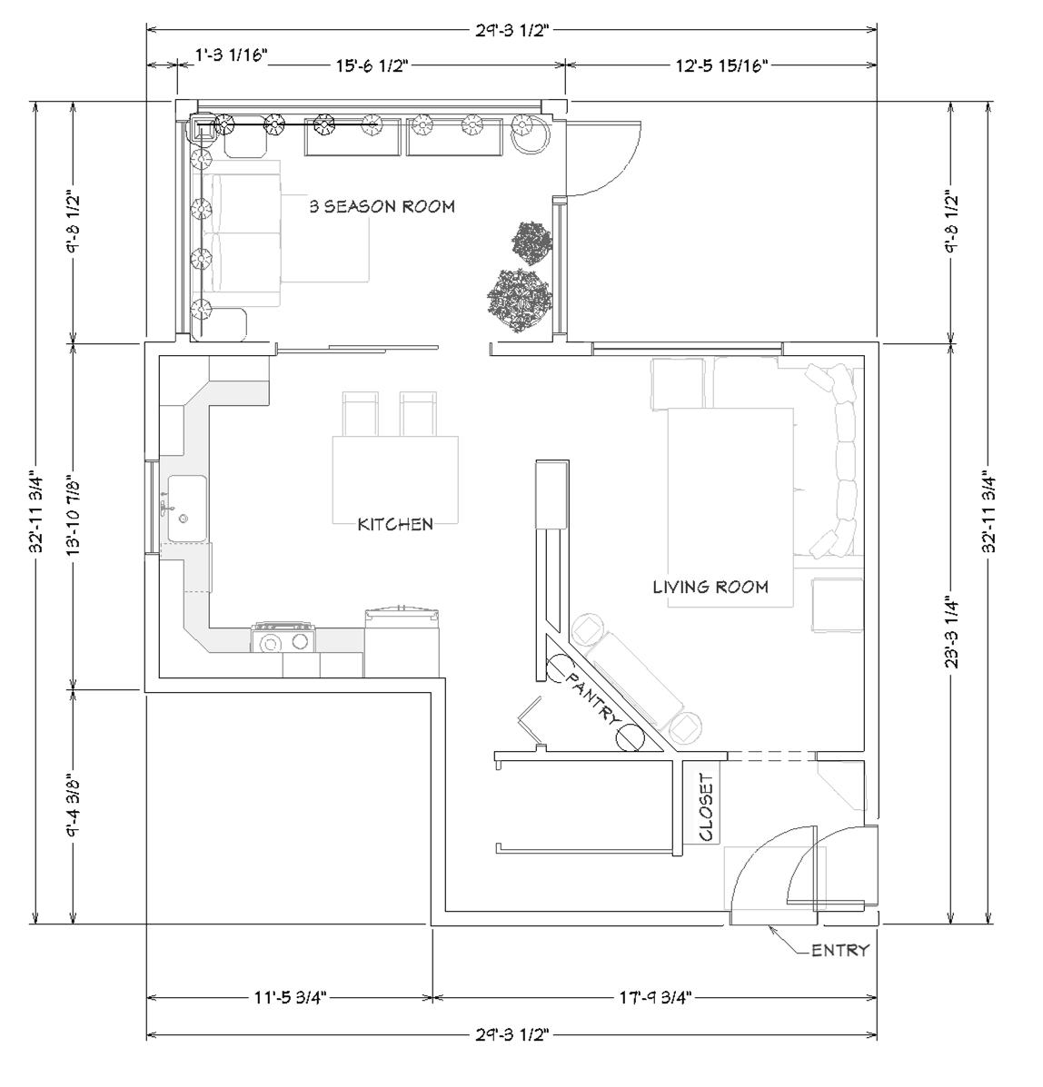
This remodel project will focus on the kitchen, living, 3 season room, and entry space. Inspired by string instruments, the floor plan will have simple, clean lines and subtle curves, and the warm wood tones will reflect in the interiors of this space. The house has a gentle flow of indoor to outdoor space (3 season room). The house will reflect the feelings of our client’s personalities and make this their own home.

Page 11
Kowalke & Kansteiner remodel.

Schematics.

footer Page 12 Kowalke & Kansteiner remodel.
Key

Project Goals.

This client owns a one-story ranch house. Their main goal is to remodel their kitchen but would also love to get ideas on opening up the public spaces and making the home family-friendly. They host frequently, and they have 6-8 guests typically. They have a cat who must be considered when selecting finishes to ensure they are pet friendly. They hope to have children in the future, so choosing durable materials and furnishings that will stand the test of time is essential.

NTS
Page 13 Kowalke & Kansteiner remodel.

Material selection & Perspectives.

Entry Cabinets

Sofa

Southeast perspective

Rug

Color palette

Ceiling Texture

Fireplace

Page 14 Kowalke & Kansteiner remodel.
Living
Entry
Ottoman Flooring
Chandelier
Perspective Northwest Perspective

3 Season Room Kitchen

Page 15 Kowalke & Kansteiner remodel.
String lights Loveseat Bench seating Pendant lights Extendable dining table Faucet Dining chair Backsplash & Countertop
Southwest perspective
Northeast perspective
3 Season room perspective
Inspiration Hardware

FFE & Electrical Plan.

NTS
Page 16 Kowalke & Kansteiner remodel.

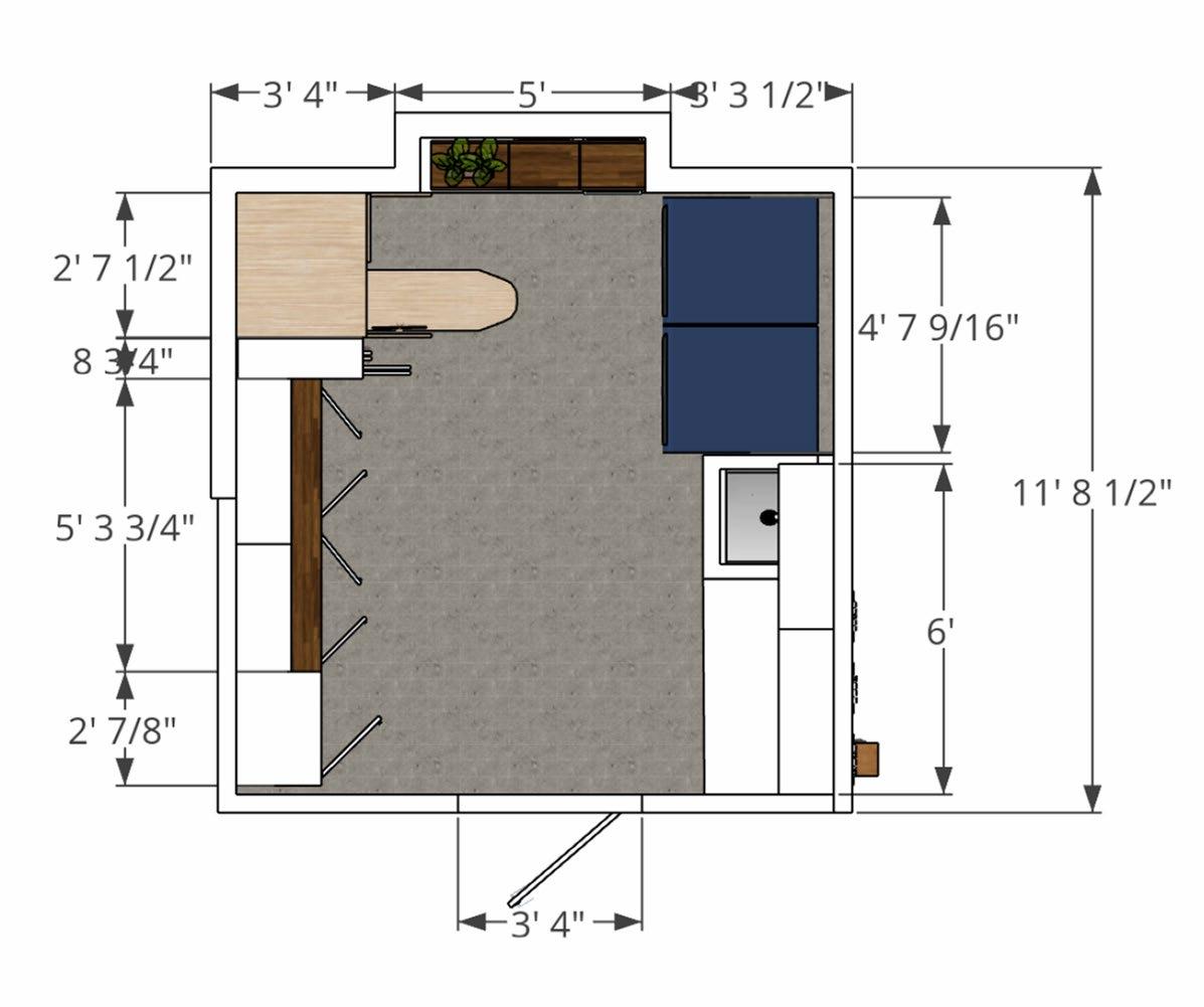
Brunsell’s Kitchen.

FALL 2022

Software Used: AutoCAD, Photoshop, Lumion

Project Information.

This client would like to redo their kitchen completely. Their kitchen is very much a social space, and they want to make the new kitchen entertainment-friendly. They prefer simple, easy to clean cabinets preferable in dark wood tone. They like stainless steel for appliances.

Client Requirements.

• Would like a cooktop and wall ovens

• Microwave is a priority in kitchen and prefers not above cooktop or in base cabinets

• Possibly go with a 24” deep refrigerator, counter depth

• Would like pull out trash between cooktop and sink

• Plenty of storage and prefers drawers

• Wants a large island with access from both sides

• Likes lazy susan cabinets, instead of blind corners

• Would like a double tier silverware drawer

Page 18 Brunsell’s kitchen
ISLAND WITH DINING SPACE FOR 2 BAY WINDOW W/ HERB GARDEN ON SILL HIDDEN APPLIANCE GARAGE WIDER DOORWAY TO DINING
Page 19 Brunsell’s kitchen
Floorplan.

Appliances.

Materials & Finishes.

Page 20 Brunsell’s kitchen
1 2 3 5 6
1. Appliance finish – stainless steel 2. Countertop – quartz 3. Door style – accolade 4. Hardware finish – chrome matte 5. Cabinet finish – alder in saddle brown
4 1 2 3 4
6. Paint – SW 9583 (sanctuary) & SW 9584 (mortar) 1. Hood 2. Cooktop 3. Refrigerator 4. Wall oven & microwave Ortho View

Perspectives.

Page 21 Brunsell’s kitchen
Northeast wall perspective South wall perspective East wall perspective Top View

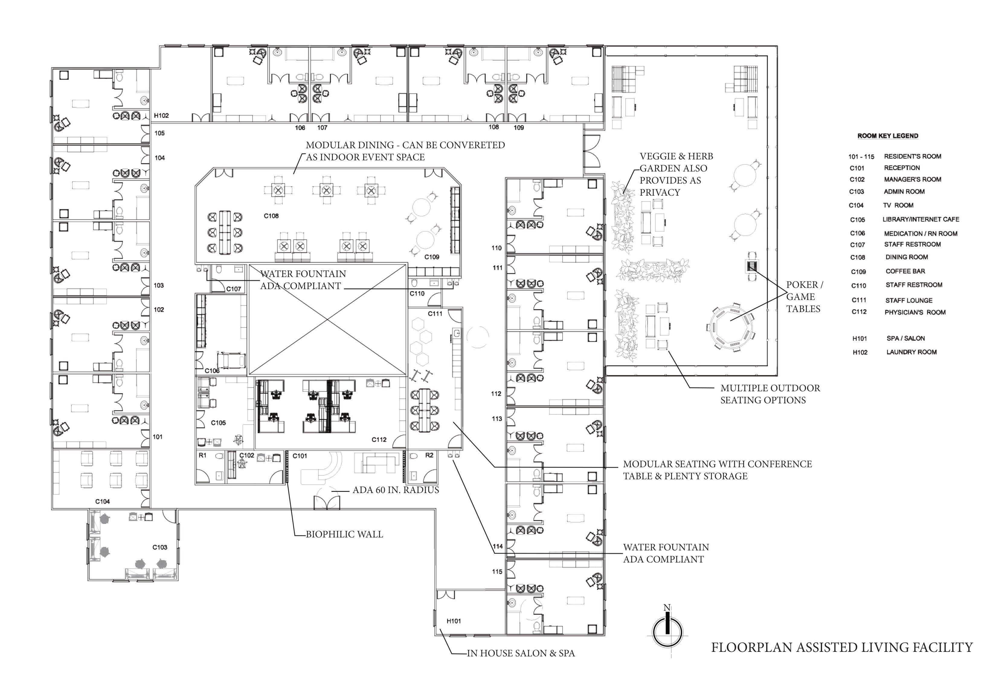
Assisted Living Facility.

SPRING 2023

Software Used: AutoCAD, Photoshop, Lumion

Concept Statement.

Inspired by the idea generator: "The blue planet" this project will be a wellrounded space that supports life. The color palette is derived from the inspiration " earth " with various blues from water and tones of browns from the land. The enigma of nature will reflect in the interiors of this facility. Influenced by the idea generator, the space will use organic shapes throughout and will have various textures. Overall, this space will come together like a cosmos.

Page 23 Assisted living facility

Floorplan.

Building Shell

Page 24 Assisted living facility
This is the given building shell for this project.

Rendered Floorplan.

Material & Furniture selection

Page 25 Assisted living facility
Resident’s Room.
Elani Embrace Fleet
Mile marker Staks
Physician’s Office. Page 26 Assisted living facility
Mile marker
Agile

Design For A Difference October 2022.

Madison Area Technical College designed this classroom with ‘Mountain’ theme. Along with two other designers, Sam helped create the new floorplan layout. Since the place had no windows, she designed and constructed artificial windows with her friend’s help. It was a wonderful experience for her!

CommonThreadsFamilyResourceCenter,Madison,Wisconsin
Get in touch. Email – kssamanvitha@icloud.com Phone – (608) 471 - 8933

Turn static files into dynamic content formats.

Create a flipbook
Issuu converts static files into: digital portfolios, online yearbooks, online catalogs, digital photo albums and more. Sign up and create your flipbook.