











Velkommen til Parken Fjellhamar Utomhusplan Leveransebeskrivelse
Mer enn et hjem Townhouses Romskjema
Alt du trenger i nærheten 4-roms leiligheter
Eiendommen fra A-Å
Aktivitetsmuligheter
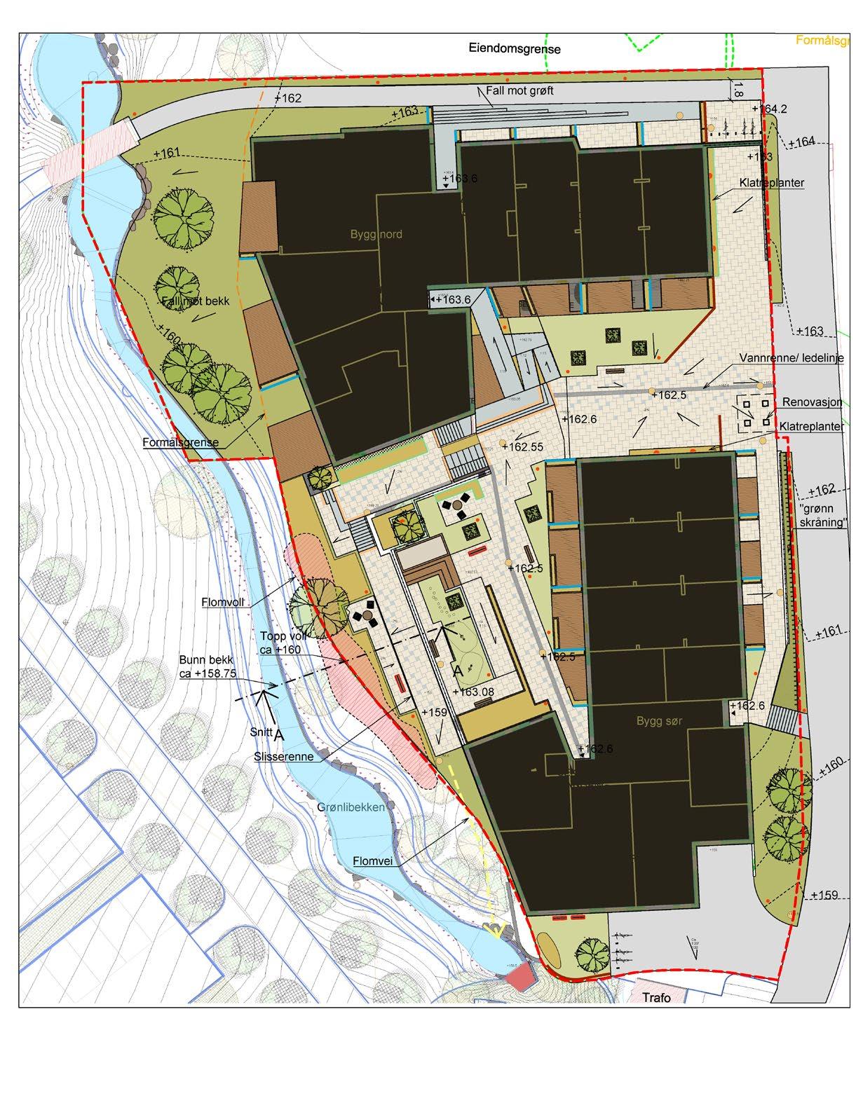
Finn din type leilighet i Parken Etasjeplaner Situasjonsplan



![]()












Velkommen til Parken Fjellhamar Utomhusplan Leveransebeskrivelse
Mer enn et hjem Townhouses Romskjema
Alt du trenger i nærheten 4-roms leiligheter
Eiendommen fra A-Å
Aktivitetsmuligheter
Finn din type leilighet i Parken Etasjeplaner Situasjonsplan



I Parken Fjellhamars 55 leiligheter og 6 townhouses har vi satt trivsel i høysetet. I gode boliger, fra 27 kvm til 167 kvm, som byr på det lille ekstra og gjør livet enklere for deg som bor her. Her vil du bo sentralt, med Fjellhamars nye, frodige park som nabo, kort gangavstand til togstasjonen og kort vei til hverdagens behov. 20 minutter fra Oslo, 10 minutter fra Lillestrøm og gangavstand til togstasjonen.
Finn ditt drømmehjem blant Parken Fjellhamars 2-roms, 3-roms og 4-roms.
Hvilken bolig ønsker du deg? En toppleilighet, et townhouse på to etasjer, en leilighet med markterrasse eller en bolig med en stor og solrik balkong? Flytter du fra hus til noe mer praktisk, eller har du små barn?
Akkurat hvilken type bolig du drømmer om vet du jo aller best selv, men her i Parken Fjellhamar finner du ganske sikkert en bolig perfekt for deg.
Dette blir et av områdets flotteste boligprosjekter. Arkitektene har skapt luftige boenheter for alle typer mennesker i alle faser av livet; single, par og barnefamilier. Unge og eldre. Her byr vi på både mindre og større
hjem, alle i solid utførelse med smarte planløsninger og store vindusflater, nærmest fra gulv til tak, som slipper lys og energi inn. Boligene er svært varierte og vil bidra til å skape et mangfold av mennesker. Kos deg i solen i både parken og fellesarealene, som på hver sine måter oppmuntrer til godt naboskap og nye vennskap.
Med parken som nabo vil bebyggelsen føles friere, med mer pusterom. Det er noe befriende ved å ha en slik umiddelbar tilgang til et fritt og grønt område. Det føles som det er litt ditt. Den nye parken, med lekeplass, bru og skravlebenker er til glede for store og små, med muligheter for aktivitet, rekreasjon og barnelek – og mange deilige pikniklunsjer.
Vi gleder oss til å se deg flytte hjem til Parken Fjellhamar.

“Tross alt det fine i fremmed duft, helt ren alene er hjemmets luft.”
Bjørnstjerne Bjørnson


Parken Fjellhamar er skapt for å trives i. Hjem hvor lykken kan blomstre i gode rom skapt for hverdagene, helgene og for livet i seg selv. Et trygt sted hvor vi kan slappe av og bare være oss selv. Et hjem du vil lengte hjem til.
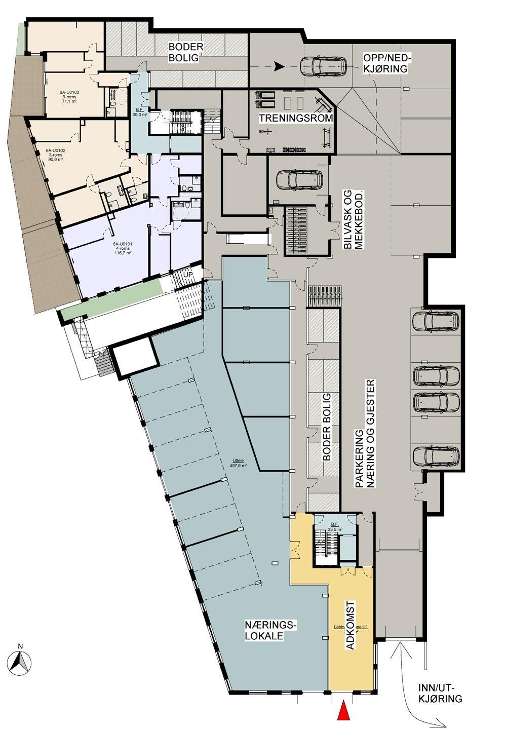
Parken Fjellhamar gir det lille ekstra til beboerne. Mer enn et hjem, med ett knepp opp i hva du forventer av livet i en leilighet. Ting som gjør livet litt enklere og mer praktisk. Her får du fri tilgang til eget treningsrom, innendørs bil- og sykkelvaskehall, sykkelbod og oppvarmet kjellergarasje.
Vaskehallen kan også fint benyttes hvis du for eksempel skal male eller reparere et møbel uten å måtte risikere malingssprut eller riper i gulvet i stuen din.



Alt du trenger i nærheten
Midt mellom Oslo og Lillestrøm finner du Fjellhamar. Et koselig og lite tettsted, som har alt du trenger — og mer til — for et godt liv. Fjellhamar er et område i vekst. Det er stadig flere som åpner øynene for det fine stedet vårt. Stadig flere vil leve livet og la barna sine oppleve barndommen her. Og det er ikke så rart, synes vi som er oppvokst og bor her fra før. Her er det trygt, oversiktlig og godt å leve. Gode skoler og gode tilbud, for både barn og voksne, med nærhet til vakker norsk natur.
Nordberg
Sogn
Brekke
Korsvoll
Fjellhamar er et eldorado for deg som liker å være i aktivitet. På Fjellhamar, og i omkringliggende områder, er det gode og varierte tilbud og lokale lag, i alle idretter du kan tenke deg; fotball, håndball, ishockey, dans, svømming, bowling og golf, for å nevne noen få. Spennende turstier og innbydende skoger. Deilige badeplasser og fiskemuligheter. Opplyste, preparerte skiløyper om vinteren. Unike Snø, verdens råeste helårsarena for snøopplevelser, er også rett rundt hjørnet.
Romsås

Ullevål
Grünerløkka Torshov
Nydalen
Grefsen
Storo
Vika
Aker br ygge

Oslo
Gamlebyen Oslo sentralstasjon
Sinsen
Økern
Løren
År voll
Veitveit

Nyland
Risløkka

Søndre Hovin
Etterstad

Br yn
Hellerud
Haugerud


Fjellhamar Torg, med dagligvare, apotek og andre servicetilbud

Fjellhamarhallen (turn/håndball) Lørenskog
Skøytebane Lørenskog
Lørenskog vgs, idrettsanlegg og
Dansestudio














For alt det andre du trenger til livet så finnes det lokale butikker og tilbud på Fjellhamar. Og hvis du trenger skikkelig shopping, og et uendelig utvalg, så er du så heldig at du faktisk vil bo midt mellom tre store shoppingsentre – Triaden, Metro og Strømmen Storsenter.
Trenger du enda mer å velge i så tar du toget, som går et steinkast unna døren din. Oslo Sentrum finner du på ca. 20 minutter. Er ikke Oslo nok så kan du reise til resten av verden via Gardermoen fra Fjellhamar Stasjon.
Ny barneskole, idrettsbygg og møteplass på Fjellhamar
Lørenskog kommune bygger ny barneskole, idrettsbygg og en hyggelig møteplass på det gamle industriområdet til BMI Icopal på Fjellhamar. På dagtid skal skolebygget, de to flerbrukshallene og svømmehallen brukes til undervisning, og på ettermiddagene, kveldene og i helgene kommer det til å være ulike aktiviteter der. Med dette får folk på Fjellhamar nye, gode møteplasser som vil være sentrale i utviklingen av Fjellhamar og Lørenskog.
Den nye skolen skal ha plass til 1176 elever fordelt på seks parallelle klasser fra 1. til 7. trinn og en base med plass til cirka 20 elever med nedsatt funksjonsevne. Skolebygget blir cirka 18 000 kvadratmeter. Skolens uteområde er en viktig del av prosjektet. Med en skolegård på cirka 23 000 kvadratmeter får hver elev rundt 20 kvadratmeter til rådighet. Her blir det blant annet områder til ballspill, klatrestativer, hinderløype og en akebakke.
Mellom skolebygget, idrettsbygget og boliger, som kommer på vestsiden av skolebygget, etableres et hyggelig og åpen møteplass for befolkningen. Dette skal bli et levende område for alle.




“I utformingen av Parken Fjellhamar har vi latt oss inspirere av sydlandske småbyer, som på tross av høy tetthet likevel uttrykker en finmasket småskala med variert palett.“

Illustrasjonen viser balkong i leilighet 4A-H0408. Farger kan avvike i illustrasjonen.



Truls Hagbarth Grimstad, Arkitekt/partner, LMR arkitektur as
Det er ikke hver dag arkitekter får tegne et boligprosjekt med “sin egen” park, i umiddelbar nærhet til butikker og andre tjenestetilbud, og attpåtil med ett minutts gange til jernbanen og resten av verden. Parken Fjellhamar har fått mye ut av et ideelt utgangpunkt.
Hovedgrep
Parken Fjellhamar ligger i overgangen mellom småhusbebyggelsen og de planlagt fortettede utviklingsområdene i Fjellhamar sentrum. Sånn sett vil Parken Fjellhamar sees i en større sammenheng der prosjektet har et ansvar som “megler” mellom ulike boligområder.
Bebyggelsens skala har ikke for stor kontrast til småhusbebyggelsen i Fjellhamar. For å bryte opp størrelsen er bygningsmassen delt i to volumer, som henholdsvis grenser inn den nordvestre og den sørøstre delen av tomtens byggbare areal. Ved å vinkle volumene unngås lengre fasadestrekk, samtidig som det etableres en diagonal passasje, bestående av to klart definerte uterom, fra sørvest til nordøst.
Det nordøstre uterommet er et adkomsttorg som knyttes til Øvre Grønliveien og åpner anlegget for generell ferdsel. Det sørvestre uterommet knyttes til parken og åpner anlegget for ettermiddagslyset og grøntdraget i vest, her tilrettelegges det i tillegg for trygg og oversiktlig barnelek. Sammen danner de to uterommene en naturlig passasje og møteplass for beboere. Komplekset som helhet får ikke en prioritert front og en uartikulert bakside, men henvender seg til alle sider.
I utformingen av Parken Fjellhamar har vi latt oss inspirere av sydlandske småbyer, som på tross av høy tetthet likevel uttrykker en
finmasket småskala med variert palett. En oppbrytning av volumet er gjennomført ved å trekke fasadelivet inn og ut, variasjon i teglforband og farge, brutte gesimslinjer, samt balkonger som veksler i fasaden og fremstår som grønne, vegghengte hager.
Bebyggelsen fremstår med dette som oppdelt og med en skala tilpasset omgivelsene. På dette viset kan både nytt og gammelt, lite og stort, fungere i samspill og bidra til å definere Fjellhamars fremtidige karakter.
Mangfold
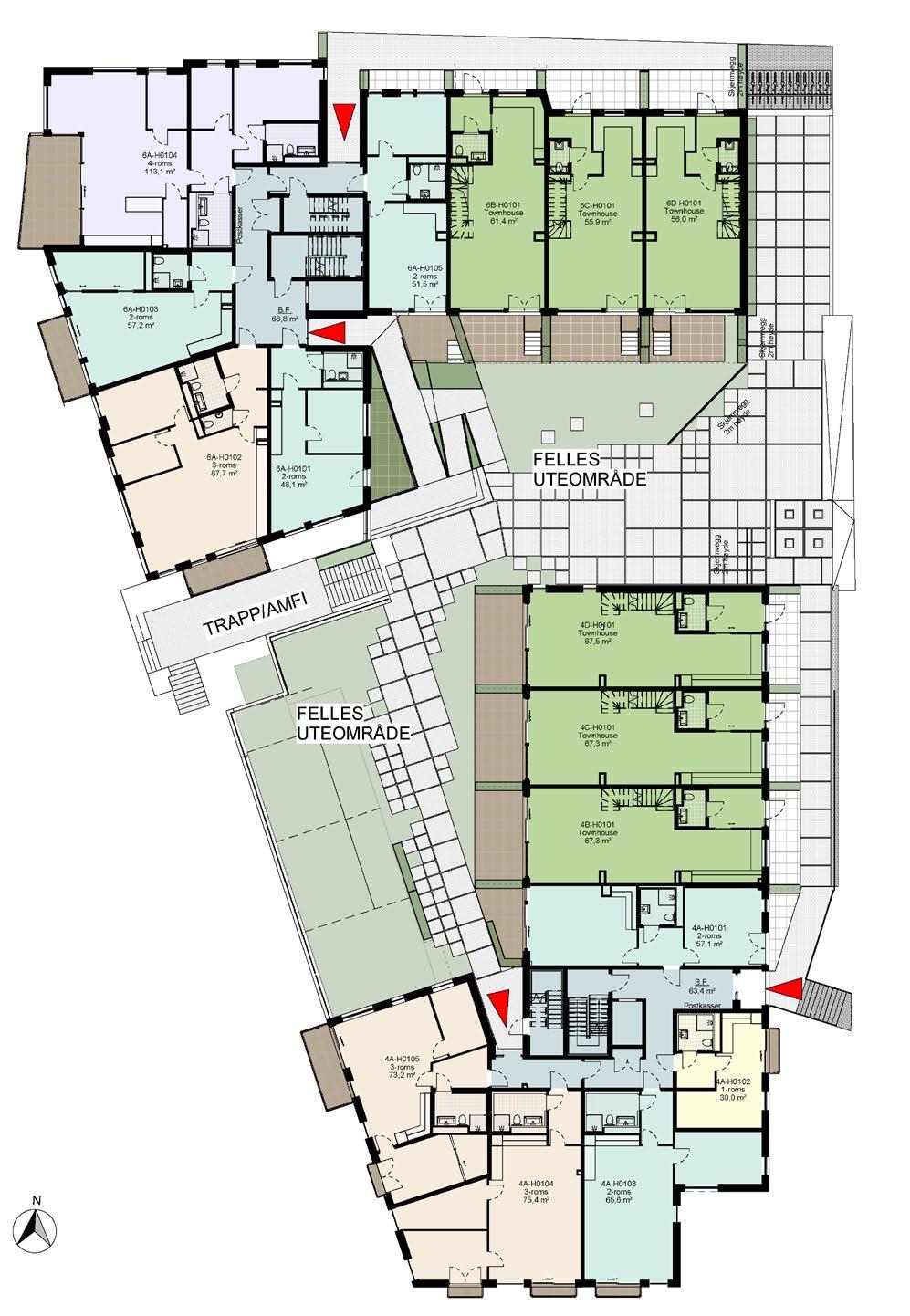
Det er totalt 61 boligenheter fordelt på de to byggene. Med stor variasjon, både i utforming og størrelse, skaper dette noe mer enn bare en ensartet boligblokk. Leilighetene får romslige og grundig gjennomarbeidede løsninger.
Store vindusflater, nær sagt fra gulv til tak, gir godt dagslys og utsyn. Kvalitet i materialer og detaljer sikrer det siste lille.
Hvert av byggene har trapper og heis som går direkte til parkeringskjeller, boder og felles treningsrom. Det er også avsatt rom for bilvask, hjulskift og sykkelpleie – eller mindre hobbyprosjekter, kanskje? Også i denne sammenheng har variasjon vært et stikkord. Her burde det være mulig å finne et hjem for alle; unge og gamle, barnefamilier og single.
Vi er sikre på at folk har godt av hverandre, og Parken Fjellhamar representerer det beste fra det meste.


I Parken Fjellhamar har du et stort utvalg ulike typer leiligheter – fra 2-roms leiligheter på 51 kvm til store 4-roms på hele 167 kvm! Sjansen er stor for at du finner en leilighet eller et townhouse som passer perfekt for deg. Prosjektet og leilighetene er i god og moderne standard. Her får du den lune og jevne varmen fra vannbåren gulvvarme i stue/kjøkken, på badet og i entreen. Flotte gulv med 1-stavs parkett. Moderne og solide kjøkken med integrerte hvitevarer og lekre flislagte baderom. I enkelte av de ledige
leilighetene har vi oppgradert leveransen med ekstra kvaliteter på kjøkken og bad.
Deilige, luftige fellesområder og park som nabo. Smarte planløsninger og store vindusflater som slipper lyset inn i hjemmet. Generell høyde under taket er på hele 2,6 meter og vil bidra ekstra til følelse av luftighet og rommelighet. Arkitekturen er variert og estetisk pen, med luft i bygningsmassen. Ta en titt og finn hjemmet du alltid har drømt om.


















Townhousene på Parken Fjellhamar er perfekte for den moderne familien! For dere som ønsker en mellomting mellom leilighet og rekkehus. Parkens unike Townhouses strekker seg over to etasjer, der samtlige bikker 110 kvm og vel så det, med tre soverom – inklusive et romslig hovedsoverom.
Townhousene har gjennomgående stuer i 1. etasje med utgang til koselige markterrasser som vender ut mot parken eller det åpne fellesarealet mellom husene. Entreen har et tilknyttet bad/WC, før du går videre til den åpne kjøkkenløsningen og stuen. Fra stuen tar du trappen opp til de tre soverommene og hjemmets hovedbad. Hovedsoverommet har i tillegg sitt eget, private bad med dusj.
På terreng, mot felles uterom, er det i tillegg lagt inn seks townhouses over to etasjer, med egne innganger fra Øvre Grønliveien eller fra gangveien nord på tomten.
Townhouse-løsningen representerer en typologi som styrker hovedgrepets intensjon ved å innføre hagebyens kvaliteter, og bidrar med dette til å binde sammen småhusbebyggelsen mot nord og øst med større leilighetskomplekser mot sør.

























Markterrasse ca 15,0 m2

Etasje : 1 og 2
BRA: ca 134,5 m2
P-rom : ca 130,0 m2
Markterrasse: ca 23,0 m2
(15,0 m2 + 8,0 m2)
Balkong : ca 1,0 m2
Generell himlingshøyde : ca.2,6 m
Himlingshøyde bad : ca. 2,2 m
Himlingshøyde gang : ca. 2,2-2,4 m

= Fast inventar, inngår
= Løst inventar, inngår ikke
= Nedfôret himling: ca. 2,2-2,4 m







Inng.terrasse ca 8,0 m2

Tegninger er ikke målbare.






Markterrasse ca 15,0 m2

Etasje : 1 og 2
BRA: ca 134,5 m2
P-rom : ca 130,0 m2
Terrasse: ca. 23,0 m2
(15,0 m2 + 8,0 m2)
Balkong : ca 1,0 m2
Generell himlingshøyde : ca.2,6 m
Himlingshøyde bad : ca. 2,2 m
Himlingshøyde gang : ca. 2,2-2,4 m

= Fast inventar, inngår
= Løst inventar, inngår ikke
= Nedfôret himling: ca. 2,2-2,4 m


Stue/kjøkken





Inng.terrasse ca 8,0 m2

Tegninger er ikke målbare.






Markterrasse ca. 15,0 m2

Etasje : 1 og 2.
BRA: ca 134,5 m 2
P-rom : ca 130,0 m2
Markterrasse: ca. 23,0 m2
(15,0 m 2 + 8,0 m 2)
Balkong : ca 1,0 m2
Generell himlingshøyde : ca.2,6 m
Himlingshøyde bad : ca. 2,2 m
Himlingshøyde gang : ca. 2,2-2,4 m

= Fast inventar, inngår
= Løst inventar, inngår ikke
= Nedfôret himling: ca. 2,2-2,4 m


Stue/kjøkken





Inng. terrasse ca. 8,0 m2

Tegninger er ikke målbare.







Etasje : 1 og 2
BRA: ca 112,0 m2
P-rom : ca 107,5 m2
Markterrasse: ca 27,0 m2
(12,5 m2 + 14,5 m2)
Balkong :ca 1,3 m 2
Generell himlingshøyde : ca.2,6 m
Himlingshøyde bad : ca. 2,2 m
Himlingshøyde gang : ca. 2,2-2,4 m




Markterrasse ca 12,5 m2
Stue/kjøkken
45,2 m²
Kjøkken

ca 1,0 m2


= Fast inventar, inngår
= Løst inventar, inngår ikke
= Nedfôret himling: ca. 2,2-2,4 m
Tegninger er ikke målbare.
Markterrasse ca 14,5 m2









Dette er Parken Fjellhamars aller flotteste leiligheter med svært god plass til hele familien – på ett praktisk plan. Leilighetene varierer i størrelser og har smarte, unike planløsninger. Disse romslige leilighetene finner du i alle plan, med de aller største i 3. og 4. etasje. Flere av leilighetene har to store balkonger og innendørs bod. Samtlige har to fullverdige baderom, hvorav ett er direkte tilknyttet hovedsoverom. I den aller største toppleiligheten på 167 kvm har du også mulighet til å utvide med et ekstra soverom. En av 4-romsene ligger på bakkeplan, med en markterrasse på hele 35 kvm. De største leilighetene er svært gode alternativer til eneboliger. God nok plass til alle, praktiske løsninger og tilbud i bygget, og du slipper det aller meste av forefallende arbeid. Bruk tiden din til bedre aktiviteter enn å måke snø og beise hus.





Illustrasjonen viser den flotte stue- og kjøkkenløsningen i leilighet 4A-H0408 på 167 kvm BRA. Lekkert kjøkken, her vist med en av de mulige, kostnadsfrie kjøkkenfrontene i grått. Alle kjøkken leveres fra anerkjent kjøkkenleverandør og med integrerte hvitevarer. I denne leiligheten leveres det vinskap i kjøkkenøy, dog uten vin. Kjøkken leveres i henhold til kjøkkentegninger og avvik fra det viste kjøkkenet kan forekomme.Viste veggfarger avviker fra standardleveransen.





Balkong ca 21,0 m²


Balkong ca 1,0 m²





Stue/Kjøkken 97,4 m²
Bad 5,4 m²

LOKALISERING
Sov. 9,1 m²

Tegninger er ikke målbare.
m 5 m
= Fast inventar, inngår = Løst inventar, inngår ikke
= Nedfôret himling: ca. 2,2-2,4 m

Bad 5,4 m²
Entre 6,6 m²
Sov. 9,4 m²
Bod 2,7 m²

Balkong ca 12,0 m²
Sov. 20,6 m²
Etasje : 4
BRA: ca 167,5 m2
P-rom : ca 162,0 m2
Balkong : ca 34,0 m2
(1m 2+ 21,0 m2 +12,0 m2)
Generell himlingshøyde : ca.2,6 m
Himlingshøyde bad : ca. 2,2 m
Himlingshøyde gang : ca. 2,2-2,4 m







Parkens større 3-roms leiligheter på 87-93 kvm henvender seg mot parken, med gode uteplasser hvor det er plass til både grill og møbler. I denne typen leilighet får du et bad/WC i tillegg til hovedbadet. Denne størrelsen passer godt til deg som ikke har behov for mer enn to soverom, men som likevel stiller litt krav til god plass ellers i hjemmet. Oppholdssonene i kjøkken og stue er åpne og luftige, med stor takhøyde og vindusflater som slipper mye lys inn i hjemmet.



















Etasje : 1.
BRA: ca 87,5 m2
P-rom : ca 86,0 m2
Balkong : ca 7,5 m2
Generell himlingshøyde : ca.2,6 m
Himlingshøyde bad : ca. 2,2 m
Himlingshøyde gang : ca. 2,2-2,4 m

= Fast inventar, inngår
= Løst inventar, inngår ikke
= Nedfôret himling: ca. 2,2-2,4 m


Balkong ca 7,5 m2

LOKALISERING
Tegninger er ikke målbare.


















Parkens 2-roms leiligheter fra 40-55 kvm har stor variasjon i planløsninger. Du kan velge blant totalt 16 stk. av akkurat disse størrelsene. Til felles er disse leilighetene som skapt blant annet for unge par som ønsker å bo sentralt på Fjellhamar. Nærheten til toget gjør at en leilighet her er et ypperlig valg hvis det for eksempel er Oslo-studenter i husstanden. Enkelte av leilighetene har fine, små uteplasser. Noen har større balkonger og terrasser, hvor du får plass til både grill og utemøbler. Samtlige leiligheter har åpne kjøkkenløsninger og gode soverom. Badet har plass til vaskemaskin.






Etasje : 1.
BRA: ca 51,5 m2
P-rom : ca 50,0 m2
Markterrasse: ca 13,0 m2
(8,0 m 2 + 5,0 m2)
Generell himlingshøyde : ca.2,6 m
Himlingshøyde bad : ca. 2,2 m
Himlingshøyde gang : ca. 2,2-2,4 m

Plante- kasse

Plante- kasse
= Fast inventar, inngår
= Løst inventar, inngår ikke
= Nedfôret himling: ca. 2,2-2,4 m

Stue/Kjøkken
Terrasse ca 5,0 m2 P l antek



Markterrasse ca 8,0 m2



Tegninger er ikke målbare.









Illustrasjonen viser eksempel på 2-roms med kjøkken og stue-løsning fra leilighet 4A-H0206 på 56 kvm BRA. Den viste veggfargen avviker fra standardleveransen. Kjøkken leveres i henhold til egne kjøkkentegninger og avvik fra illustrasjonen kan forekomme.


















Generelt
Leveransebeskrivelsen er utarbeidet for å orientere om bygningens viktigste bestanddeler og funksjoner. Det kan forekomme avvik mellom leveransebeskrivelsen og den øvrige salgsinformasjonen (Salgstegninger).
I slike tilfeller er det denne beskrivelsen som er gjeldende. Bildebruk og illustrasjoner i salgsmaterialet vil vise elementer som ikke er i samsvar med faktisk leveranse, så som møblering, kjøkken- og garderobeløsninger, dør og vindusform, fasadedetaljer, utomhus detaljer mv. Det presiseres særskilt at kjøkken leveres iht. egen kjøkkentegning som fremlegges på tilvalgsmøte.
Tegninger i prospektet viser ikke den reelle leveransen, blant annet er sjakter, eventuelle innkassinger og tekniske føringer ikke eksakt inntegnet. Salgstegningene i prospektet er ikke egnet for måltaking, da det er de ferdige prosjekterte og detaljerte arbeidstegninger det bygges etter. Videre kan vindusplasseringen i den enkelte leilighet avvike noe fra de generelle planer. Der ikke annet er beskrevet males det farge NCS S 500-N Klassisk hvit.
Utomhus
Utomhusarealene vil bli opparbeidet med utgangspunkt i foreløpig utomhusplan i prospektet. Selger forbeholder seg imidlertid retten til å foreta endringer med hensyn til utforming og materialvalg. Grøntområder vil bli beplantet og tilsådd. Noe utomhus arbeider kan bli utført etter innflytting på grunn av værforhold og årstider.
Adkomst til parkeringskjeller samt internveier på eiendommen vil i hovedsak bli belegningsstein, støpt betong og asfalt. Det vil bli lagt snøsmelte-anlegg foran innkjøring til parkeringskjeller.
Bæresystem
Bygningen utføres med bærekonstruksjon hovedsakelig i betong, med enkelte vegger med stålsøyler og dragere.
Yttertak
Yttertak i betong-konstruksjon tekket med takpapp/membran.
Yttervegger
Yttervegger består i hovedsak av bindingsverkvegger
av tre. Kledning vil i hovedsak være teglstein. Enkelte fasadetaljer kan være i andre materialer.
Innervegger
Sparklet og malt gips/betong i estetisk klasse K2. Innkassing for tekniske føringer må påregnes.
Himlinger
Sparklet og malt gips/betong.
Generell takhøyde er 2.6 m. Takhøyde i entre og bad vil være ca 2.2-2.3 m.
Innkassing/nedsenket himling rundt tekniske føringer og bærekonstruksjoner må påregnes.
Det vil bli synlige v-fuger i innertak ved platedekkeskjøter i betong.
Innvendige takpartier hvor oversiden er eksponert
mot det fri kan bli nedforet og isolert. Dette gjelder spesielt ved terrasser og enkelte inngangspartier.
Lister
Det leveres hvitmalte (NSC S 500-N Klassisk hvit) og gjærede gulvlister og gerikter rundt vinduer og dører. Synlige stifter. Det leveres ikke taklister.
Gulv i leiligheter
Parkett type eik 1-stav hvit-pigmentert i alle oppholdsrom. På bad/WC leveres fliser på gulv.
Vinduer
Leveres i tre belagt med aluminium utvendig. Åpningsbare og faste felter iht. tegning. Innvendig farge er hvit (NSC S 500-N Klassisk hvit).
Dører
Entrédører leveres med lyd- og brannisolering iht funksjonskrav, glatt, malt overflate, og blir utstyrt med godkjent låssystem med systemnøkler. Innvendige dører i leilighetene leveres med karmer og dørblad i glatt, malt, hvit utførelse (NCS S 500-N Klassisk hvit).
Terrassedør
Dør mot terrasser og balkonger leveres som heve-/ skyvedører med glass, to-fløyet terrassedør eller enfløyet terrassedør i hht tegning.

Fellesarealer
Hovedinngang til alle leilighetene er på gateplan i bygget mot SØR, ved avkjøring fra Øvre Grønliveien.
Det er også tilgang fra bakkeplan til begge byggene via bi-hovedinnganger i hvert bygg.
Via trapp/heis kommer du opp til alle etasjer.
Alle leilighetene har egen inngangsdør fra innvendig korridor. Alle postkasser blir plassert på hensiktsmessig sted ved hovedinngang eller ved hver oppgang.
Townhousene har egne innganger fra bakkeplan.
Gulv i korridorer leveres med teppe av typen
Interface eller tilsvarende.
Gulv i bodareal og tekniske rom leveres med malt betongoverflate.
Gulv i trappehus og inngangspartier leveres med keramiske fliser.
Korridorer og trapperom leveres sparklet og malt.
Bad
Bad leveres i hovedsak som prefabrikkerte baderomskabiner.
Det er stedvis planlagte plassbygde bad.
Det leveres hvit skuffeseksjon med heldekkende servant med ett greps servantbatteri, speil med innfelt
LED-belysning tilpasset servantstørrelse og stikk på vegg ved innredning. Dusjvegger i herdet glass og fastmontert dusjhode med hånddusj fra Grohe eller tilsvarende.
Uttak til vaskemaskin og tørketrommel i hht tegning.
Vegghengt toalettsisterne/fordelerskap fra Unopax MAXI
Back door inkludert glass (hvitt).
Badet har rør-i-rør system med rørskap til tekniske føringer. Det vil bli levert Unopax-paneler bak toalettet hvor innbyggingssisterene til toaletttet og vann-varmefordeling til boligene er plassert.
Se unopax.no for mer informasjon.
Toalett fra Grohe med Softclose toalettsete.
Fliser på vegg:
Imola Re-micron 60x30 grey eller lignende.
Fliser på gulv:
Imola Re-micron 30x30 grey eller lignende
I nedsenket sone i dusj leveres Imola Re-micron 5x5 grey eller lignende.
Kjøkken
Kjøkkeninnredning leveres med hvite fronter fra HTH Next eller tilsvarende. Kjøkkenet leveres med innfelt vask og laminert benkeplate. Integrert oppvaskmaskin, platetopp, komfyr og kombinert kjøl- og fryseskap. Hvitevarer fra Siemens eller tilsvarende.
Elektro
Anlegget installeres i henhold til offentlige myndigheters forskriftskrav NEK-400. Det elektriske anlegget leveres i hovedsak som skjult anlegg. Det tas forbehold om utførelse som åpent anlegg i enkelte tilfeller dersom dette er nødvendig i forhold til brann og lydkrav. I tillegg blir det installert sikringsskap/svakstrømskap i hver leilighet.
Det leveres stikkontakter i henhold til kravene i NEK400. Plassering av punkter gjøres på hensiktsmessig sted og vil bli avklart gjennom detaljprosjekteringen.
Det leveres egen strømmåler til boligen som plasseres i felles målerskap i fellesareal.
Det leveres tomrør for trekking av tele/data.
Installasjon av bredbånd/kabeltv organiseres av Sameiet og vil være på plass ved innflytting.
Det monteres ringetablåer ved hovedinngangsparti og porttelefon med fargeskjerm og automatisk døråpner i hver leilighet. I tillegg leveres det ringeknapp utenfor hver leilighet.
Ventilasjon
Det vil bli installert balansert ventilasjon med varmegjenvinning.
Avtrekk fra bad, WC og kjøkken. Til-luft til øvrige rom. Ventilasjonsaggregat plasseres i hovedsak i tak i entre i leiligheten. I enkelte leiligheter kan denne bli plassert i bod.
Oppvarming
Prosjektet ligger i konsesjonsområde for fjernvarme, og er planlagt tilknyttet Akershus Energi AS. Energibehov til oppvarming og varmtvann dekkes av fjernvarme eller annen varmekilde. Varmtvann leveres fra varmeveksler plassert i teknisk rom i p-kjeller. Oppvarming av boligene vil bli levert som vannbårent anlegg med gulvvarme på bad, stue/kjøkken og entre.
Avregning av energiforbruk til hver bolig.
Oppbevaring.
Det er avsatt plass til oppbevaring. Garderobeskap er ikke inkludert som en del av hovedleveransen fra selger, men kan bestilles som en del av tilvalgsprosessen.
Brann
Prosjektet tilfredsstiller alle krav til brannsikkerhet i henhold til TEK 17.

Balkong/takterrasse
Leveres med flislagt overflate med fall til sluk.
Balkongrekkverk leveres med håndløper i galvanisert stål eller lakkert aluminium med glass-rekkverk.
Markterrasse i 1. etg leveres med betongheller og beplanting mellom terrassene.
Balkonger er som en utvendig konstruksjon å anse. Mindre ansamlinger av vann kan oppstå på overflaten etter regnvær.
Enkelte balkonger leveres med innglassing. Se planløsning som viser hvilke leiligheter som har innglasset balkong.
Garasjeanlegg
Samtlige av p-plassene tilhørende beboere befinner seg i plan U2. Gjesteplasser er plassert i plan U1.
Det medfølger mulighet for kjøp av p-plass til et utvalg av leilighetene, og for de største leiligheter medfølger mulighet for kjøp av inntil to parkeringsplasser, se prisliste for full oversikt.
Garasjeanlegget er ventilert og oppvarmet slik at det til enhver tid er minimum +15 grader. Det er inkludert 1 stk garasjeåpner pr. p-plass.
Parkeringsgarasje leveres med gulv i betong, belagt med epoxy-belegg. Betongvegger og betonghimlinger sprøytemales til dekk.
Garasjeanlegget sprinkles.
Trimrom
Som en del av prosjektet vil det leveres et trimrom i plan U1.
Vaskehall
Som en del av prosjektet er det i plan U1 en felles vaskehall for bil/sykkel.
Sykkel-rom
I plan U1 er det tegnet inn et sykkelrom med direkte adkomst til vaskehallen.
Sportsbod
Det medfølger 1 stk sportsbod som befinner seg i plan U2 og U1.
Gulv leveres med malt betong. Vegger mellom sportsboder leveres som nettingvegger type Troax eller tilsvarende, med tette fronter/dør med hengelås som kan låses med systemnøkkel.
Sprinkleranlegg
I henhold til de siste tekniske forskriftene, TEK 17, er det krav om sprinkleranlegg i alle boligene i prosjektet. Det vil plasseres sprinklerhoder i tak eller på vegg og det ligger rør skjult i vegger/tak. Sprinklerhoder
må ikke tildekkes med møbler el l. slik at det hindrer dens funksjon. Man må også forsikre seg om at det ikke ligger sprinklerrør i veggen dersom man skal borre eller spikre i veggen.
I fellesareal og parkering kan dette fremkomme som åpent anlegg.
Sikkerhetsutstyr
Det leveres ett brannslukningsapparat i hver leilighet.
Søppelsystem
Det leveres nedgravde søppelsiloer.
Nedkast plasseres på utendørs fellesareal mot Øvre Grønliveien, i hht utomhusplan.
Tilvalg
Prosjektet er forutsatt gjennomført som serieproduksjon, med systematisering av tekniske løsninger og valg av materialer. Dette gjenspeiles i prosjektets organisering og byggetid, noe som igjen gir begrensninger for hvilke tilvalg og endringer som kan tillates og innenfor hvilke tidsrom disse arbeidene må bestilles. Tilvalgsmulighetene vil være avhengig av hvor langt i byggeprosessen man har kommet.
Det vil bli gitt mulighet for å gjøre enkelte individuelle tilpasninger i egen bolig. Selger og entreprenør vil i god tid før innredningsarbeidene starter utarbeide en tilvalgsliste hvor priser og frister for beslutninger vil fremkomme.


FLATE/ ROM
Entre
Gulv Vegg Tak Elektro
1-stavs Parkett Hvitpigmentert eik.
Sparklet og malt gips/betong.
Hvitmalt gulvlist i furu15x60 m/synlige spikerhull.
Gang (boenhet)
Sparklet og hvitmalt gips/ betong, ikke taklist, synlig V-fuge i betonghimling.
Som entre Som entre Som entre
Ringeklokke ved inngangsdør. To-veis porttelefon med lyd og fargebilde for åpning av hovedinngangsdør og bi-inngang (lobby) for bygg nord.
Stue/ kjøkken
Som entre Som entre Som entre
Stikk for taklys ved topp vegg, med bryter.
Stikk for taklys ved topp vegg m. bryter.
IT/TV punkt.
LED lyslist under overskap.
2 stk. dobbel stikkontakt over kjøkkenbenk.
Soverom 1
Som entre Som entre Som entre Stikk for taklys ved topp vegg med bryter.
IT/TV punkt (tomrør).
Stikk for taklys ved topp vegg m. bryter.
Synlige sprinklerhoder ved betonghimling. Skjulte sprinklerhoder ved gipshimling. Vannbåren gulvvarme.
Ventilasjonsaggregat for leiligheten leveres som takmontert i entre/gang med luke for filterbytte/service.

Inngangsdør, glatt hvit eller gråmalt med kikke-hull, låskasse og sluttstykke.
Innerdør som hvit glatt lett-dør med hvitmalte karmer og lister, med synlige spikerhull. Matt krom dørvrider og skilt.
Som entre
Synlige sprinklerhoder ved betonghimling. Skjulte sprinklerhoder ved gipshimling. Vannbåren gulvvarme.
Avtrekkshette over platetopp leveres som volumhette.
Oppvaskbenk med nedfelt beslag i rustfritt stål (1 kums).
Ettgreps blandebatteri med høy svingbar tut.
Batteri med stoppekran for oppvask maskin.
Innerdør som hvit glatt lett-dør med hvitmalte karmer og lister, med synlige spikerhull. Matt krom dørvrider og skilt.
Innerdør som hvit glatt lett-dør med hvitmalte karmer og lister, med synlige spikerhull. Matt krom dørvrider og skilt. Vinduer med hvitmalt trekarm og aluminiumsbeslått utvendig.
Hvitmalte karmer og lister med synlige spikerhull rundt vinduer og dører.
Det leveres 3 stk. systemnøkler til leiligheter. Nøkkel betjener alle fellesdører, postkasse, hengelås til bod, og leilighetsdør.
Synlige sprinklerhoder ved betonghimling.
Skjulte sprinklerhoder ved gipshimling. Uten vannbåren gulvvarme. Alternativ komfortvarme som tilvalg.
Innerdør som hvit glatt lett-dør med hvitmalte karmer og lister, med synlige spikerhull.
Matt krom dørvrider og skilt.
Vinduer innadslående med hvitmalt trekarm og aluminiumsbeslag utvendig.
Hvitmalte lister med synlige spikerhull.
Kjøkkeninnredning fra HTH eller tilsvarende. Slette fronter med innfreste grep, type HTH Next eller Sigdal Horizont eller tilsvarende.
Hellaminat benkeplate 30 mm tykk. Integrerte hvitevarer fra kjent leverandør (Siemens, el. tilsvarende): komfyr, induksjonstopp (nedfelt), oppvaskmaskin og combi kjøl/frys.
Demping på skuffer og skap.
Kildesortering i skuff under oppvaskkum.
I townhouse leveres interntrapp mellom etasje i utførelse:
- Vange i hvitmalt trevirke
- Trinn i lakkert eik
- Opptrinn i hvitmalt trevirke
- Spilerekkverk og håndløper i hvitmalt trevirke
Baderom 1

Fliser 30x30 cm, FK PRO Marte, Grey eller tilsvarende.
Fuger: Grå Nedsenket dusjsone. Fliser 5x5 cm.
Fliser 60x30 cm, FK PRO Marte, Grey eller tilsvarende.
Fuger: Grå
Plater eller betong hvitmalt/ lakkert plater.
Inspeksjonsluker i tak eller vegg.
Som baderom 1 Som baderom 1 Som baderom 1
Innfelte hvite LED downlights i tak med dimmer.
LED Lys over vask/speil: 60, 80 eller 100cm innredning leveres med speil med integrert belysning (lys i speilflaten).
Dobbelstikk på vegg over vask.
Stikkontakter for vaskemaskin og tørketrommel.
Baderom 2
Innfelte hvite LED downlights i tak med dimmer.
LED Lys over vask/speil: 60, 80 eller 100cm innredning leveres med speil med integrert belysning (lys i speilflaten).
Dobbelstikk på vegg over vask. WC
Som baderom 1 Som soverom 1 Som soverom 1
Spotter i nedforet gipshimling og lysarmatur over speil med stikk. Bod
Som soverom 1 Som soverom 1 Som soverom 1
Lysarmatur i tak med bryter
Balkong
Fliser 60 x 60 eller terrassebord av tre.
Tegl eller panel.
Uteplass på terreng
Terrassebord av tre og/eller heller av betong
Tegl eller panel. Som balkong
Utelampe styrt over fellesanlegg med astrour. Dobbel stikkontakt
Vegghengt toalett. I hvitt porselen med softclose toalettsete i hardplast.
Opplegg for vaskesøyle.
Vannbåren gulvvarme
På vegg over vegghengt toalett leveres installasjonsskap for vann med luke for service/betjening, type UNOPAX MAXI SPLIT eller tilsvarende.
Vegghengt toalett. I hvitt porselen med softclose toalettsete i hardplast. Monteres på UNOPAX MINI eller tilsvarende.
Vannbåren gulvvarme
Vegghengt toalett. I hvitt porselen med softclose toalettsete i hardplast. Monteres på UNOPAX MINI eller tilsvarende. Ettgreps blandebatteri med oppløft (propp).

Innerdør som hvit glatt lett-dør med hvitmalte karmer. Matt krom dørvrider og skilt. Hvitmalte lister m/synlige spikerhull rundt vinduer og dører.
Baderomsinnredning glatt hvit innredning med skuffer m/demping. Heldekkende benk med støpt servant (ripefri), og ettgreps blandebatteri.
Dusjvegger i herdet klart glass som kan svinges inn i dusjnisjen når dusjveggene ikke er i bruk.
Utvendig sprinkling iht. forskriftskrav
Som baderom 1
Som baderom 1
For fellesområder monteres utekran for komplett dekning med slangeutlegg
Innerdør som hvit glatt lett-dør med hvitmalte karmer. Dørterskler 15mm underliggende i eik.
Matt krom dørvrider og skilt.
Hvitmalt gjerdet list med synlige spikerhull rundt vinduer og dører
Innerdør som hvit glatt lett-dør med hvitmalte karmer.
Matt krom dørvrider og skilt.
Hvitmalte lister med /synlige spikerhull rundt vinduer og dører.
Servant i hvitporselen med blandebatteri. Speil over servant.
Rekkverk vil leveres med hovedmateriell i glass og stål.



MEGLER
Oppdragsnummer 912215006
Kontaktperson
Navn: Thomas Eriksen, telefon 91871915
Tittel: Eiendomsmegler
Ansvarlig megler
Navn: Jan Græsvik, telefon 91164848
Tittel: Siv.øk. / Eiendomsmegler
DNB Eiendom AS
Adresse: Dronning Eufemiasgate 30, 0021 Oslo. Org.nr.: 910 968 955
SELGER
Selger/Utbygger
Navn: Stasjonsgaarden AS Org.nr.: 957 145 566
Entreprenør
Navn: AS Realbygg. Org.nr.: 950 525 932
PROSJEKTET
Om prosjektet
Boligprosjektet Parken Fjellhamar er lokalisert sentralt på Fjellhamar og består av 55 selveierleiligheter samt 6 townhouses. Prosjektet tilbyr både mindre og større hjem, alle i solid vedlikeholdsvennlig utførelse med smarte planløsninger og god innvending standard. Unik beliggenhet i hjertet av Fjellhamar med den nye, grønne friparken som nærmeste nabo. Fjellhamar togstasjon og Fjellhamar torg med mange servicetilbud inklusiv stor og moderne matvarebutikk ligger i umiddelbar nærhet.
Beboerne i parken Fjellhamar har fellesfasiliteter som treningsrom, egen vaskeplass for bil og direkte adkomst til sykkelbod i garasjeanlegget.
Alle leilighetene har vannbåren gulvvarme og generell himlingshøyde er ca. 260cm.
Prosjektet består av to bygg med felles underetasje og garasjekjeller. I underetasjen er det også et næringslokale.
Adkomst
Adkomst direkte fra Øvre Grønnliveien til garasjeanlegg og de ulike oppgangene. Kort gangavstand til Fjellhamar togstasjon med ca. 22 minutters reisetid til Oslo S og 7 minutter til Lillestrøm.
Ferdigstillelse
Boligen er ferdigstilt og overtas etter nærmere avtale. Budgiver oppfordres til å opplyse om ønsket overtagelse i budskjema.
Innhold og standard
Boligene har god innvendig standard med vannbåren gulvvarme og 1-stavs parkett iht. romskjema. Tidsmessig kjøkkeninnredning fra HTH med integrerte hvitevarer, og delikate bad holdt i grått.
Noen av leilighetene er oppgradert utover standard leveranse:
Alle townhouse; dvs. leilighet 6C-H0101, 4B, C og DH0101 har alle oppgradert kjøkken som er to-delt med ulike fronter på under/overskap og synlig «trestruktur» i underskap. I tillegg har disse downlights i trappegang.
Toppleiligheten 4A-H0408 har oppgraderte bad med fliser gulv/vegg 60X60cm, og oppgradert baderomsinnredning. I tillegg er kjøkken oppgradert med «skuffelook» der enkelte skap er byttet til skuffer og vinskap. Ellers standard grå malte fronter.
Se ellers info på hver enhet for leveranse og standard.
Bebyggelsens areal
Norges Takst AS v/Frode Grønning har på vegne av Selger foretatt kontrollmåling, datert 24.1.2024 av boligene.
TBA
Totalt - terrasse og
Leilighet BRA-i BRA-e BRA balkongareal
4A-H0408 167 7 174 33,5
4B-H0101 134 5 139 25
4C-H0101 134 5 139 25
4D-H0101 134 5 139 25
6A-H0102 87 5 92 7
6A-H0105 51 5 56 13
6C-H0101 111 5 116 28

Arealet er angitt hhv. som bruksareal (BRA) som er samlet areal arealet innenfor boligens yttervegger samt eventuelle boder. BRA samlet består av
• Internt bruksareal (BRA-i) er areal innenfor omsluttende vegger. Det er for eksempel stue, soverom, kjøkken, entre, bad, innvendig bod og rom for kom munikasjon mellom disse.
• Eksternt bruksareal (BRA-e) er for eksempel en ekstern bod, som ikke er direkte tilknyttet det interne arealet. Tilleggsbygg kan være for eksempel garasje, naust eller utvendig bod.
• Innglasset balkong (BRA-b) er innglassede balkonger, verandaer og altaner som tilhører boenheten.
På tegningene kan det også være angitt et romareal som er nettoarealet innenfor omsluttende vegger. Det tas forbehold om mindre avvik for de oppgitte arealer, da beregningene er foretatt på tegninger.
• Terrasse- og balkongareal (TBA) er arealet av terrasser, altaner, verandaer og åpne balkonger som er tilknyttet boenheten.
Eierforhold
Selveier
Boligtype
Leilighet
Ettårsbefaring
Selger tilbyr ettårsbefaring av boligen. Denne vil bli gjennomført ca. ett år etter ferdigstillelse av boligen.
Boligkjøperforsikring
Mange kjøpere har anledning til å tegne boligkjøperforsikring. Vedlagt i dette dokument følger informasjon om Boligkjøperforsikring fra HELP Forsikring AS. Boligkjøperforsikring er en rettshjelpsforsikring som gir trygghet og profesjonell juridisk hjelp dersom det oppdages uventede feil eller mangler ved boligen innen fem år etter overtagelse. Les mer om Boligkjøperforsikring i vedlagte materiell eller på help.no. Det gjøres oppmerksom på at meglerforetaket mottar kr 3 700,- / 5 200,- / 6 500,- i kostnadsgodtgjørelse for Boligkjøperforsikring (avhengig av boligtype).
TOMTEN
Eiendommen
Prosjektet er oppført på eiendommen gnr 107, bnr 376
i Lørenskog kommune. Tomtearealet for sameiet er registrert i matrikkelen å være 3304 m². Sameiets tomt er opprettet med eget matrikkelnummer og seksjonert.
Hver seksjon består av en sameieandel i henhold til den tinglyste seksjoneringen.
Den enkelte seksjon har fått følgende adresse og seksjonsnummer:
Øvre Grønliveien 4A-H0408, 1472 Fjellhamar, Snr. 31
Øvre Grønliveien 4B-H0101, 1472 Fjellhamar, Snr. 3
Øvre Grønliveien 4C-H0101, 1472 Fjellhamar, Snr. 2
Øvre Grønliveien 4D-H0101, 1472 Fjellhamar, Snr. 1
Øvre Grønliveien 6C-H0101, 1472 Fjellhamar, Snr. 41
Øvre Grønliveien 6A-H0102, 1472 Fjellhamar, Snr. 36
Øvre Grønliveien 6A-H0105, 1472 Fjellhamar, Snr. 39
Tomtetype
Eiet tomt
SAMEIET
Sameiet
Tomten består av ett boligsameie med totalt 60 boligseksjoner. Den daglige driften er organisert som seksjonssameie iht. lov av 16.06.2017, nr. 65, eierseksjonsloven.
Hver seksjon utgjøre en sameieandel med tilknyttet enerett til bruk av en bruksenhet og rett til bruk av sameiets fellesarealer. Det er forbudt å erverve mer enn 2 boligseksjoner i samme sameie. Denne begrensningen gjelder også indirekte erverv, herunder kjøp via aksjer eller andeler i et selskap. Erverv er forbudt dersom det medfører at flere enn to av boligseksjonene eies av noen som har «tilknytning til hverandre». Dersom bestemmelsen brytes vil blant annet styret i sameiet uten forutgående varsling, kunne pålegge salg av seksjonene som er ervervet ulovlig. Videre vil man ikke kunne stemme på årsmøtet, og man vil ikke tas med i beregningsgrunnlaget for flertallsavgjørelser.
Sameiet er pliktig til å avholde årsmøter hvor regnskap og budsjett fremlegges. Sameiets styre har ansvaret for at eiendommen forvaltes etter retningslinjer og vedtekter som fastsettes av årsmøtet.
Fellesareal/utomhus/infrastruktur
Fellesarealer, herunder felles trappeganger, heis, rømningsveier, felles bodanlegg samt fasader, herunder balkonger, terrasser mv. er ferdigstilt.

Husene er beliggende med et hyggelig felles uteareal med adkomst både fra vest og øst.
Tomten og deler av bebyggelsen som ikke omfattes av eierseksjoner er fellesareal for seksjonseierne.
På eiendommen er det etablert diverse ledningsnett for vann, avløp, overvann, elektrisitet, data/tv/telefon og andre ledninger. Disse ledningene som går over eiendommen, er også i sameie med andre tilliggende eiendommer. Kjøper er kjent med og aksepterer ovennevnte og at tilliggende eiendommer har tinglyst nødvendige rettigheter til å legge, vedlikeholde og skifte ut ledninger ved behov. Kjøper plikter å medvirke til dette i årsmøter for sameiet dersom slike avtaler skal inngås og tinglyses etter at overskjøting har funnet sted.
Vedtekter
Det er utarbeidet vedtekter for sameiet og disse følger vedlagt. Spørsmål om dyrehold rettes til megler.
Parkeringsplasser, boder og sykkelparkering
Det medfølger en sportsbod i garasjeanlegg til hver bolig i tillegg til felles sykkelparkering. Bodene er organisert som tilleggsdel til Kjøpers boligseksjon.
Det er parkeringsplasser og noen boder i garasjekjeller for salg. Selger har allokert en rett til kjøp av garasjeplass(er) og ekstra bod primært basert på leilighetsstørrelse. Hvilke leiligheter som har allokert rett til kjøp av garasjeplasser og bod, samt pris per plass fremgår av prislisten. Retten til kjøp av garasjeplass gjelder kun ved kjøp av leiligheten. Parkeringsplassene er organisert som næringsseksjoner.
Parkeringsplassene tilfredsstiller SINTEF byggforsk 312.130 retningslinjer fra mars 2015. Kjøper oppfordres til å besiktige bod og p-plass.
Selger beholder eiendomsretten til å fritt kunne disponere over usolgte parkeringsplasser og boder, herunder gjennomføre utleie eller salg til andre enn seksjonseiere.
Ladestasjon for el-bil inngår ikke i leveransen fra Selger.
Selger tar forbehold om å fordele parkeringsplasser.
Parkeringsplasser for personer med nedsatt funksjonsevne Har en seksjonseier, leietaker eller en i husstanden nedsatt funksjonsevne, kan denne kreve at styret pålegger en annen seksjonseier å bytte parkeringsplass. Bytteretten gjelder bare dersom den som krever bytte, allerede disponerer en
parkeringsplass i sameiet. Styret bør tilstrebe at bytteplassen ligger i nærheten av søkers seksjon. Retten til å bruke en tilrettelagt plass varer så lenge et dokumentert behov er til stede.
Retten gjelder bare parkeringsplasser som i vedtak etter plan- og bygningsloven er krevet opparbeidet til bruk av personer med nedsatt funksjonsevne.
Kjøpesum, omkostninger og betalingsplan
Se egen prisliste for prisantydning på boligene. Selger står fritt til å forkaste eller akseptere et hvert kjøpetilbud.
Det gjøres oppmerksom på at papirutgaver av prospekt kan være redigert etter utskrift, og det oppfordres derfor til å alltid ta utgangspunkt i den digitale utgaven av både prospekt og prisliste som finnes på dnbeiendom.no og prosjektets hjemmeside. Det samme gjelder papirutgaver av prospekt ved salg av prosjektet mens det var under oppføring.
Omkostninger
Det skal i tillegg til kjøpesummen betales følgende:
Dokumentavgift 2,5 % av andel tomteverdi, se prisliste. P.t. er tomteverdien antatt å være 3.512, - kroner per kvm BRA-i for boligen. En forutsetning for å betale dokumentavgift av tomteverdi er at boligen selges innen 3 år etter ferdigstillelse. Etter dette beregnes dokumentavgiften av kjøpesum.
Tinglysningsgebyr for skjøte kr 500,-
Tinglysingsgebyr per pantedokument inkl. attestgebyr kr 740,-
Oppstartskapital til sameiet 2* månedlige felleskostnader. Beløpet kan bli fakturert av forretningsfører.
Tilknytningsavgift fjernvarmeanlegg kr 9.000, -.
Det tas forbehold om endringer av omkostningsbeløpene som følge av politiske vedtak eller lovendringer.
Betalingsplan
Innbetaling av fullt oppgjør inklusive omkostninger skal skje i forbindelse med overtagelsen. Kjøpere er ansvarlig for å formidle avtalens forutsetninger som har betydning for overtagelse og oppgjør til sin bankforbindelse, og påse at banken tilrettelegger sine forutsetninger til dette.
Eiendommens faste, løpende kostnader
1) Felleskostnader
Felleskostnader for leil. 4A-H0408 utgjør kr. 6.651,- pr. måned.

Felleskostnader for leil. 6C-H0101 utgjør kr. 4.747,- pr. måned.
Felleskostnadene ovenfor gjelder pr. januar 2026. Felleskostnadene inkluderer bla. kommunale avgifter (for vann, avløp, renovasjon), forsikring av bygningsmassen, strøm i fellesarealer, vaktmestertjenester som snømåking, plenklipping, forretningsførsel og renhold av fellesarealer. Budsjett fastsettes på generalforsamling i sameiet som avholdes en gang i året, og i denne forbindelse må det forventes at felleskostnadene kan øke som en konsekvens av senere tids generelle prisøkning samt mulig økning av kommunale avgifter i Lørenskog kommune. Det tas videre forbehold om endringer i fellskostnader som følge av styrevedtak og/eller avholdt generalforsamling etter at dette dokumentet er utarbeidet. Konferer megler for oppdatert informasjon.
Ovennevnte felleskostnader er eks. energiforbruk. Kostnader til vannbåren varme, forbruk av varmt vann og vannforbruk måles individuelt og avregnes regelmessig. Energiforbruk knyttet til vannbåren varme og forbruk av varmt vann avleses automatisk (fjern-avleses) og bli fakturert etterskuddsvis pr. måned etter faktisk/individuelt forbruk. Sameiet har inngått avtale med Energiservice (Viken fiber). Erfaringsmessig vil månedlige energiutgifter ligge på ca. kr. 10,-/12,- pr m2 BRA-i. Det presiseres at utgifter til energi vil være variable samt at forbruk av energi er individuelt. Ut i fra dagens energipriser må man kunne forvente at prisene vil være høyere.
Felleskostnader til dekning av driftskostnader knyttet til garasjeanlegget utgjør p.t. kr. 150,- pr garasjeplass, og betales av de som eier/disponerer p-plass i garasjeanlegget.
2) Info eiendomsskatt
Det er p.t. ikke eiendomsskatt på boliger i Lørenskog kommune. Dersom det politisk vedtas å innføre eiendomsskatt, vil sameiet/seksjonssameierne måtte betale denne skatten.
Forsikring
Eiendommen er forsikret gjennom sameiets fellesforsikring. Kjøper må tegne egen innboforsikring.
Formuesverdi
Eiendommens formuesverdi fastsettes i forbindelse med første likningsoppgjør. Formuesverdien fastsettes med utgangspunkt i en kvadratmeterpris som årlig bestemmes av Statistisk Sentralbyrå. Formuesverdien for primærboliger (der boligeier er folkeregistrert per 1. januar) og sekundærboliger (alle andre boliger man måtte eie) fastsettes etter forskjellige brøker. Se nærmere info på www.skatteetaten.no.
Forholdet til endelige offentlige planer
Eiendommen ligger i et område som er omfattet av reguleringsplan for Fjellhamar sentrum vest, vedtatt 17.09.2014.
Eiendommen er regulert til bolig/kontor/ institusjon/ barnehage/forsamlingslokale. Eiendommen ligger i et område som er regulert til konsentrert småhusbebyggelse i nord, parkområde i vest.
På andre siden av Øvre Grønlivei er det boligområde.
Ferdigattest eller midlertidig brukstillatelse
Det foreligger midlertidig brukstillatelse for boligblokkene med parkeringskjeller og tilhørende utearealer datert 5.12.2023.
Vei, vann og avløp
Eiendommen er tilknyttet offentlig ledningsnett for vei, vann og avløp. Vann og avløp er tilknyttet ledningsnettet via stikkledninger som vedlikeholdes for sameiets regning frem til påkoblingspunkt. Særskilt avtale/erklæring vil kunne bli tinglyst på eiendommen. Eiendommen har direkte adkomst til offentlig vei.
Heftelser/tinglyste bestemmelser
Eiendommen selges fri for panteheftelser med unntak av boligsameiets legalpant i hver seksjon jf. lov om eierseksjoner. Pantet er begrenset oppad til 2G (G er Folketrygdens grunnbeløp). Kommunen har i tillegg legalpant for forfalte kommunale avgifter og eventuell eiendomsskatt.
På eiendommen er det tinglyst heftelser og rettigheter som følger eiendommen ved overskjøting. Bestemmelsene fremkommer av grunnboken for eiendommen til prosjektet og eventuelle avgivereiendommer. Følgende tinglyste bestemmelser vil ligge til grunn for avtalen:
*1921/805-1/8 19.11.1921 Bestemmelse om veg
Bestemmelse om vedlikehold
Bestemmelse om generende virksomhet
Gjelder denne registerenheten med flere
Overført fra: KNR: 3222 GNR: 107 BNR: 376
*1923/285-1/8 26.07.1923 Bestemmelse om veg
Bestemmelse om vedlikehold
Bestemmelse om generende virksomhet
Gjelder denne registerenheten med flere
Overført fra: KNR: 3222 GNR: 107 BNR: 376
*1926/141-1/8 19.05.1926 Bestemmelse om veg
Bestemmelse om vedlikehold

Bestemmelse om generende virksomhet
Gjelder denne registerenheten med flere
Overført fra: KNR: 3222 GNR: 107 BNR: 376
1960/3442-1/8 18.11.1960 Bestemmelse om kloakkledning
Rett for kommunen til å anlegge og vedlikeholde ledninger m.m.
Gjelder denne registerenheten med flere
Overført fra: KNR: 3222 GNR: 107 BNR: 376
1983/2795-1/8 21.04.1983 Bestemmelse om veg
Rettighetshaver Lørenskog kommune til opparbeidelse av veg
Gjelder denne registerenheten med flere
Overført fra: KNR: 3222 GNR: 107 BNR: 376
1983/4699-1/8 30.06.1983 Bestemmelse om veg
Bestemmelse om avståelse av veggrunn
Rettighetshaver Lørenskog kommune
Gjelder denne registerenheten med flere
Overført fra: KNR: 3222 GNR: 107 BNR: 376
1988/1751-1/8 23.02.1988 Erklæring/Avtale
Rettighetshaver Lørenskog EL-verk Bestemmelse om trafostasjon/kiosk
Gjelder denne registerenheten med flere
Overført fra: KNR: 3222 GNR: 107 BNR: 376
2017/210652-1/200 09.03.2017 Erklæring/Avtale
Rettighetshaver: ELVIA AS ORG.NR: 980 489 698
Bestemmelse om adkomstrett
Bestemmelse om rettigheter og plikter ved oppføring, drift, vedlikehold og fornyelse av frittliggende nettstasjon
Bestemmelse om bebyggelse og beplantning
Gjelder denne registerenheten med flere
Overført fra: KNR: 3222 GNR: 107 BNR: 376
2023/488401-1/200 11.05.2023 21:00 Bestemmelse om adkomstrett
Rettighetshaver: KNR: 3222 GNR: 107 BNR: 498
Bestemmelse om vedlikehold
Gjelder denne registerenheten med flere
Kan ikke slettes uten samtykke fra: Lørenskog Kommune
Org.nr: 842 566 142
Overført fra: KNR: 3222 GNR: 107 BNR: 376
*) Heftelsen er innhentet fra Digitalarkivert, men megler har ikke lykkes å forstå innholdet i dokumentet.
Skolekrets
Ta kontakt med skolekontoret i kommunen for nærmere informasjon.
ØVRIGE VILKÅR
Særskilte bestemmelser
Kjøper gjøres oppmerksom på at det ikke foreligger tilstandsrapport eller egenerklæringsskjema ettersom boligen er nyoppført. Kjøper er oppfordret til å besiktige boligen.
Tegningene i prospektet bør ikke benyttes som grunnlag for nøyaktig møbelstilling, da målestokkavvik kan forekomme ved trykking/ kopiering.
Selger forbeholder seg rett til endring av prisliste uten varsel på usolgte boliger og eventuelle parkeringsplasser.
Selger forbeholder seg retten til å fordele parkeringsplasser.
Selger kan ikke garantere at det ikke er skjeggkre eller perlekre i boligen ved overlevering. Bekjempelse av skjeggkre med forgiftet åte har vist seg å være svært effektivt. Skadedyrfirmaer som benytter denne strategien, kan nå tilby en god og sikker sanering.
Dobbeltboligforsikring Boligene i prosjektet selges med dobbeltboligforsikring. Forsikringen gir Kjøper en garanti mot doble bokostnader dersom det tar tid å selge nåværende primærbolig.
Det er Selger som har tegnet og betaler for forsikringen. Forsikringen er tegnet i HDI Global Specialty SE, skadebehandlingsselskapet er Claims Link. Forsikringen gjelder fra budaksept og dekker faktiske ekstra boligkostnader med inntil kr 15 000 per måned i inntil 9 måneder, dersom Kjøper ikke får solgt sin gamle bolig før overtagelse av den nye. Dette omfatter netto rentekostnader og faktiske ekstra boligkostnader ved usolgt bolig (felleskostnader, boligforsikring, oppvarming/strøm og kommunale avgifter).
Forsikringen har ingen egenandel, kun en karenstid på 3 måneder. Den er gyldig i 12 måneder etter overtagelse av ny bolig, og Kjøper må oppfylle følgende to krav for å få utbetaling gjennom forsikringen:
1. Overtatt ny bolig.
2. Forsøkt selge boligen gjennom eiendomsmegler i minst 3 måneder.
Forsikringen opphører en måned etter budaksept, og Kjøper må akseptere bud på sin usolgte bolig innenfor 90 % av markedsført prisantydning. Dersom bud innenfor denne grensen ikke aksepteres, bortfaller muligheten for erstatning. Ytterligere informasjon følger av produktark vedlagt salgsoppgaven / som fås ved henvendelse til megler.

Utleie
Boligen kan leies ut i henhold til bestemmelsene i eierseksjonsloven og eventuelt vedtektene, dvs. utleie med varighet på over 30 sammenhengende dager.
Kortidsutleie av hele boligseksjonen i mer enn 90 døgn er ikke tillatt. Med korttidsutleie menes utleie i inntil 30 døgn. Grensen på 90 døgn kan fravikes i vedtektene og kan i så fall settes til mellom 60 og 120 døgn. Slik beslutning krever et flertall på minst to tredjedeler av de avgitte stemmene på årsmøtet.
Boligen har ingen egen utleieenhet.
Utleie av seksjonen skal meldes skriftlig til sameiets forretningsfører og styret med opplysning om hvem som er leietager.
Energimerking
Selger har nå foretatt energimerking, og boligen har fått følgende merkinger:
6C-H0101 - A
6A-H0102 - A
6A-H0105 - A
4A-H0408 - B
4B-H0101 - A
4C-H0101 - A
4D-H0101 - B
Lovverket
Boligen er nå ferdigstilt og selges etter avhendingslovens normalordning.
Tilbehørsliste som er utarbeidet av meglerbransjen i fellesskap er inntatt i salgsoppgaven, og gjelder dersom ikke annet er særskilt avtalt.
Generelle bestemmelser
Salgsoppgaven er basert på de opplysningene selger har gitt til megler, samt opplysninger innhentet fra kommunen, Kartverket og andre tilgjengelige kilder. Det er viktig at kjøper setter seg grundig inn i salgsoppgaven. Kjøper anses kjent med forhold som er tydelig beskrevet i salgsoppgaven, og slike forhold kan ikke påberopes som mangler. Dette gjelder uavhengig av om kjøper har lest dokumentene. Alle interessenter oppfordres til å undersøke eiendommen nøye, gjerne sammen med fagkyndig før bud inngis. Kjøper som velger å kjøpe usett kan ikke gjøre gjeldende som mangel noe han burde blitt kjent med ved undersøkelsen.
Dersom det er behov for avklaringer, anbefaler vi at interessenter rådfører seg med eiendomsmegler eller egne rådgivere før det legges inn bud.
Dersom boligen har blitt brukt som visningsleilighet eller
på annen måte stylet før visning er kjøper kjent med at det kan ha oppstått noe slitasje eller skader som følge av dette. Slik mindre slitasje må kjøper regne med, og vil ikke utgjøre en mangel. Kjøper og selgers rettigheter og plikter reguleres av avtalen mellom partene, samt informasjonen som har vært tilgjengelig for kjøperen i forbindelse med handelen. Avtalen utfylles av avhendingsloven, og det gjelder ulike avtalevilkår avhengig av om kjøper er forbrukerkjøper eller ikke. Dette er nærmere beskrevet nedenfor.
På grunn av ulike avtalevilkår kan selger vurdere bud fra en som ikke er forbruker, ulikt fra en forbrukers bud. Dersom kjøper ikke er forbruker, er selger sitt mulige mangelsansvar begrenset fordi eiendommen selges «som den er». Selger kan ikke ta «som den er» forbehold overfor en forbrukerkjøper. Selv et lavere bud fra en som ikke er forbruker kan foretrekkes fordi begrensningen i mulig mangelsansvar kan ha egenverdi for selger. Selger står fritt til å forkaste eller akseptere ethvert bud, og er for eksempel ikke forpliktet til å akseptere høyeste bud.
Budgiver skal i budskjema avgi egenerklæring om budgiver er forbruker eller næringsdrivende/ person som hovedsakelig handler som ledd i næringsvirksomhet. Budgivere får informasjon dersom andre bud er inngitt av en som ikke er forbruker.
Forbrukerkjøp - definisjon
Med forbrukerkjøp menes kjøp av eiendom når kjøperen er en fysisk person som ikke hovedsakelig handler som ledd i næringsvirksomhet.
Forbruker – avtalevilkår
Eiendommen har en mangel dersom den ikke er i samsvar med kravene som følger av avtalen, eller det foreligger brudd på bestemmelsene i avhendingsloven §§ 3-2 til 3-8. Hvis eiendommen ikke er i samsvar med det kjøperen må kunne forvente ut ifra alder, type og synlig tilstand, kan det være grunnlag for mangelskrav. Det samme gjelder hvis det er holdt tilbake eller gitt uriktige opplysninger om eiendommen. Dette gjelder likevel bare dersom man kan gå ut ifra at det virket inn på avtalen at opplysningen ikke ble gitt eller at uriktige opplysninger ikke blir rettet i tide på en tydelig måte.
Boligen kan ha en mangel etter avhendingsloven § 3-3 dersom det er avvik mellom opplyst og faktisk innvendig areal, forutsatt at avviket er på 2 % eller mer og minimum 1 kvm.
Ved beregning av et eventuelt prisavslag eller erstatning må kjøper selv dekke tap/kostnader opptil et beløp på kr 10 000 (egenandel), bortsett fra hvis eiendommen er solgt som ny.

Ikke-forbruker (næringsdrivende) – definisjon
Hvis kjøper er en juridisk person, eller en fysisk person som hovedsakelig handler som ledd i næringsvirksomhet, vil kjøpet ikke anses som et forbrukerkjøp.
Ikke-forbruker – avtalevilkår
Eiendommen har en mangel dersom den ikke er i samsvar med kravene som følger av avtalen. Eiendommen selges «som den er», og selgers ansvar utover det konkret avtalte er da begrenset etter avhendingsloven § 3-9, første ledd andre setning.
Avhendingsloven § 3-3 andre ledd fravikes, og hvorvidt boligens arealsvikt utgjør en mangel vurderes etter avhendingsloven § 3-8.
Informasjon om kjøpers undersøkelsesplikt, herunder oppfordringen om å undersøke eiendommen nøye, gjelder også for kjøpere som ikke anses som forbrukere.
Garanti
Eiendommen ble ferdigstilt 31.1.2024 og selges som ledd i næringsvirksomhet (fra utbygger). Hvis eiendommen selges innen 6 mnd. etter ferdigstillelse*, og kjøper er å anse som forbruker, vil selger stille oppfyllelsesgaranti overfor kjøper iht. § 12 i bustadoppføringsloven. Garantien skal være på min. 5 % av kjøpesummen, og vare frem til 5 år etter overtagelse. Garantien skal stilles straks avtale er inngått, dvs. ved budaksept, og det kan ikke kreves at kjøper innbetaler hele eller deler av kjøpesummen før garantien foreligger.
*Boligen anses som ferdigstilt når den faktisk er ferdig (det vil si at alt arbeid er fullført), uansett om det foreligger ferdigattest eller ikke. Aksepteres bud etter 6 mnd. etter ferdigstillelse vil det ikke stilles garanti.
Personopplysningsloven
I henhold til personopplysningsloven gjør vi oppmerksom på at interessenter kan bli registrert for videre oppfølging.
Meglers vederlag (betales av Selger)
Meglers vederlag er avtalt til kr 37.500, - per enhet. I tillegg betaler oppdragsgiver kr 6.250, - i oppgjørstjenester og kr 6.250, - for rådgivning, fag og analyse per enhet.
Finansiering
Som et av landets største finanskonsern tilbyr DNB Bank ASA alle typer banktjenester til konkurransedyktige priser. Banken kan gi deg lånetilbud til finansiering av eiendommen. Våre meglere kan opprette kontakt mellom deg og en kunderådgiver i banken, og som kunde hos oss lover banken en hurtig behandling av din låneforespørsel.
DNB Eiendom mottar formidlingsprovisjon fra DNB
Bank ASA for formidling av lånekunder. Dette gjelder kun personer som har samtykket til å bli formidlet til banken. Provisjonen er en internavregning mellom enheter i konsernet som ikke gir økte kostnader for kunden. Den enkelte megler mottar ingen godtgjørelse relatert Kjøpers valg av finansiering, og mottar heller ingen godtgjørelse for formidling av kontakt til DNB lånekonsulenter.
Salgsvilkår
Kjøp i prosjektet baseres på nærværende dokument, samt følgende:
1) Prisliste datert 16.2.2024
2) Romskjema datert 11.5.2021
3) Leveransebeskrivelse datert 29.4.2021
4) Oversikt over løsøre og tilbehør
5) Kontrollmåling areal
6) Plantegning datert 7.4.2021
7) Situasjonsplan / Landskapsplan
8) Energiattest
9) Midlertidig brukstillatelse
10) Sameievedtekter
11) Budsjett
12) Salgsprospekt
13) Reguleringsplan m/bestemmelser - fås ved hen vendelse til megler
14) Matrikkelkart – fås ved henvendelse til megler
15) Grunnboksutskrift og kopi av tinglyste heftelser 16) Informasjon om boligkjøperforsikring
17) Informasjon om dobbelboligforsikring
Lovpålagte opplysninger om eiendommen er ufullstendig uten alle ovennevnte dokumenter/vedlegg.
Salgsoppgavedato
Dette dokumentet er sist revidert dato: 16.01.2026
Det gjøres oppmerksom på at papirutgaver av salgsoppgave/prospekt kan være redigert etter utskrift, og det oppfordres derfor til å alltid ta utgangspunkt i den digitale utgaven av både salgsoppgave/prospekt og prisliste som finnes på dnbeiendom.no og prosjektets hjemmeside.

Gjelder i 5 år.
Er kjøpers motvekt til selgers boligselgerforsikring.
• Gir deg advokathjelp hele veien til rettskraftig dom, om nødvendig.
• Dekker motpartens omkostninger, forutsatt at HELP utpeker advokaten. Gir deg tilgang til Min side, der du kan følge saken din.
Advokathjelp ved boligkjøpet
Boligkjøperforsikring tegnes hos eiendomsmegler senest ved kontraktsignering og gir rett til advokathjelp inntil 5 år etter overtakelse. Forsikringen betales som del av oppgjøret ved boligkjøpet.
Andelsboliger/aksjeleilighet: Kr 7 700
Selveierleilighet/rekkehus: Kr 11 000
Ene-/tomannsbolig, tomt: Kr 16 900
“Vi unner ingen å stå alene”

Egenandel kr 4 000 påløper ved takst, tvist eller 10 timer advokatbistand, avhengig av hva som kommer først. Meglerforetaket mottar kr 4 700/5 200/6 800 i kostnadsgodtgjørelse, avhengig av boligtype.
Fra å vurdere om vi hadde råd til advokat, kunne vi vurdere om vi hadde råd til ny sofa.
Vi tar forbehold om pris- og vilkårsendringer. Hvis premien ikke er innbetalt ved overtakelse, vil avtalen bli kansellert. For fullstendig informasjon om dekning og vilkår, se help.no.
Har du spørsmål? Kontakt HELP på help.no/minside, telefon 22 99 99 99 eller post@help.no

Å kjøpe før du selger, innebærer en risiko for å bli sittende med to boliger i en periode, eller å kjøpe og selge i to ulike markeder. Dobbeltboligforsikringen gir deg som boligkjøper en garanti mot doble boutgifter dersom det tar tid å selge egen bolig.
En tryggere bolighandel
Boliger som selges med dobbeltboligforsikring gir en ekstra økonomisk trygghet for deg som boligkjøper. Forsikringen kjøpes og betales av boligselger, men det er du som kjøper som vil få utbetaling fra forsikringen. Boligene med dobbeltboligforsikring blir derfor mer attraktive i eiendomsmarkedet, og det vil bli tryggere for deg som interessent å legge inn bud.
Dekker ekstra kostnader
Forsikringen dekker faktiske ekstra boligkostnader med inntil kr 15 000 per måned i inntil 9 måneder, dersom du ikke får solgt din gamle bolig før overtakelse av den nye. Dette omfatter netto rentekostnader og faktiske ekstra boligkostnader ved usolgt bolig (felleskostnader, boligforsikring, oppvarming/strøm og kommunale avgifter). Forsikringen har ingen egenandel, kun en karenstid på 3 måneder. Den er gyldig i 12 måneder etter overtakelse, og du må oppfylle følgende krav for å få utbetaling gjennom forsikringen:
1. Overtatt ny bolig.
2. Forsøkt å selge din gamle bolig gjennom eiendomsmegler i minst tre måneder.
Forsikringen opphører en måned etter budaksept på den gamle boligen, og du må akseptere bud på din usolgte bolig innenfor 90 % av markedsført prisantydning. Dersom bud innenfor denne grensen ikke aksepteres, bortfaller muligheten for erstatning.
Dobbeltboligforsikring er tegnet for følgende leiligheter:
6C-H0101
6A-H0102
6A-H0105
4B-H0101
4C-H0101
4D-H0101
4A-H0408

Har du spørsmål?
Ta gjerne kontakt med megler.


Oversikten er utarbeidet av Norges Eiendomsmeglerforbund, Eiendom Norge og Advokatforeningens Eiendomsmeglingsgruppe, og er gjeldende fra 1. januar 2020.
Generelt
Lov om avhending av fast eigedom (avhendingslova/avhl.) av 3. juli 1992 regulerer kjøper og selgers rettigheter og plikter ved overdragelse av fast eiendom og andeler i borettslag.
I henhold til avhl. § 3-4 skal eiendommen, når annet ikke er avtalt, overdras med innredninger og utstyr som etter lov, forskrift eller annet offentlig vedtak skal følge med. Det samme gjelder varig innredning og utstyr som enten er fastmontert eller er særskilt tilpasset bygningen, jf. avhl. § 3-5. Loven inneholder ingen detaljert oversikt over hva som omfattes av «innredning og utstyr», og over hva som skal regnes som «fastmontert eller særskilt tilpasset».
Partene kan fritt avtale hva som skal følge med eiendommen ved salg. Bransjens liste over løsøre og tilbehør som skal følge med eiendommen, er en del av avtalen mellom kjøper og selger dersom ikke annet er opplyst i salgsoppgaven, kjøper har tatt forbehold i bud eller avtale på annen måte er inngått. Der intet annet er avtalt, vil løsøre og tilbehør medfølge slik dette fremkommer av avhl. § 3-4 og § 3-5 og denne oversikt.
Produkter og installasjoner som medfølger overdras uten noen form for garantier, utover eventuell gjenværende leverandørgaranti. Dersom det er noe i nedenstående liste som ikke finnes på eiendommen, vil det heller ikke medfølge.
1.
HVITEVARER medfølger der dette er spesielt angitt i salgsoppgaven.
2. HELDEKKENDE TEPPER følger med uansett festemåte.
3. VARMEKILDER, slik som ovner, kaminer, peiser, varmepumper og panelovner, følger med uansett festemåte. Frittstående biopeiser/varmeovner og terrassevarmere medfølger ikke. Det følger ikke med varmekilder i rom som ikke har vegg- eller fast monterte varmekilder på visning.
4.
TV, RADIO OG MUSIKKANLEGG. TV-antenner og fellesanlegg for TV, herunder parabolantenne, og tuneren/dekoder/tv-boks medfølger der dette eies av selger. Veggmontert TV/flatskjerm med tilhørende festeordning samt musikkanlegg følger ikke med (se også punkt 12).
5.
BADEROMSINNREDNING/UTSTYR. Badekar, dusjkabinett, dusjvegger, alle fastmonterte speil og hyller, fastmonterte glass- og håndkleholdere, herunder håndklevarmere samt baderomsinnredning, medfølger.
6.
GARDEROBESKAP medfølger, selv om disse er løse. Fastmonterte garderobehyller og knagger medfølger. Innredning i garderobeskap, for eksempel løse eller fastmonterte trådkurver, hyller, stenger og lignende, medfølger.
7.
KJØKKENINNREDNING medfølger, herunder også åpne, fastmonterte hyller og løs eller fastmontert kjøkkenøy.
8.
MARKISER, PERSIENNER og annen type innvendig og utvendig solskjerming, gardinoppheng, lamellgardiner og liftgardiner medfølger.
9.
AVTREKKSVIFTER av alle slag, samt fastmonterte aircondition/ventilasjonsanlegg,medfølger.
10.
SENTRALSTØVSUGER medfølger med komplett anlegg, herunder slange, munnstykke mm.
11.
LYSKILDER. Kupler, lysstoffarmatur, fastmonterte “spotlights”, oppheng og skinner med spotlights samt utelys og hagebelysning medfølger. Vegglamper, krokhengte lamper, lysekroner, prismelamper og lignende som er koblet til sukkerbit eller stikkontakt følger likevel ikke med.

12.
INSTALLERTE SMARTHUSLØSNINGER med sentral som styrer lys, varme, lyd o.l., samt tilhørende trådløse
enheter som brytere, sensorer, kameraer, integrerte høyttalere el. medfølger. Enkle lysstyringssystem f.eks. med en sentral som kun styrer lyspærer eller smartpærer montert i sokkel medfølger likevel ikke.
13.
UTVENDIGE SØPPELKASSER og eventuelt holder/ hus til disse medfølger.
14.
POSTKASSE medfølger.
15.
UTENDØRS INNRETNINGER slik som flaggstang, fastmontert tørkestativ, samt andre faste utearrangementer som f.eks. badestamp, boblekar/ jacuzzi og liknende utendørs kar, lekestue, lekestativ, utepeis, fastmontert trommel til vannslange, medfølger. Guidekabel/avgrensingskabel til robotgressklipper medfølger, men robotgressklipper og ladestasjon for denne medfølger ikke.
16.
FASTMONTERT VEGGLADER/LADESTASJON
TIL EL-BIL medfølger uavhengig av hvor laderen er montert.
17.
SOLCELLEANLEGG med tilhørende teknisk infrastruktur medfølger.
18.
GASSBEHOLDER til gasskomfyr og gasspeis medfølger.
19. BRANNSTIGE, BRANNTAU, feiestige og lignende medfølger der dette er påbudt. Løse stiger medfølger ikke.
20. BRANNSLUKNINGSAPPARAT, BRANNSLANGE og RØYKVARSLER medfølger der dette er påbudt. Det er eier og brukers plikt til å se til at utstyret forefinnes på enhver eiendom. Hvis annet ikke er uttrykkelig avtalt, skal dette derfor alltid følge med ved salg av eiendom.
21.
SAMTLIGE NØKLER til eiendommen som selger er i besittelse av skal overleveres kjøper på overtakelsen, herunder nøkler til eventuelle boder, uthus, garasjeportåpner e.l. Låses boder, uthus e.l. med hengelås, skal lås og nøkler til disse medfølge.
22.
GARASJEHYLLER, bodhyller, lagringshyller og oppheng til bildekk medfølger såfremt de er fastmontert.
Planter, busker og trær som er plantet på tomten, eller fastmonterte kasser og lignende er en del av eiendommen og medfølger i handelen.
PARKEN FJELLHAMAR


Sist oppdatert med virkning fra 1. januar 2014, i forbindelse med ikrafttredelse av endringer i eiendomsmeglingsforskriften.
Informasjonen er utarbeidet av Forbrukerombudet, Forbrukerrådet, Den Norske Advokatforening ved Eiendomsmeglingsgruppen, Eiendomsmeglerforetakenes Forening og Norges Eiendomsmeglerforbund, på grunnlag av blant annet forskrift om eiendomsmegling § 6-3 og § 6-4. Nedenfor gis en oversikt over de retningslinjer som forbrukermyndighetene og organisasjonene anbefaler benyttet ved budgivning på eiendommen. Avslutningsvis gis også en kort oversikt over de viktigste rettsreglene tilknyttet budgivning. Før det legges inn bud på eiendommen oppfordres budgiver til å set- te seg inn i all relevant informasjon om eiendommen, herunder eventuell salgsoppgave og teknisk rapport med vedlegg.
Gjennomføring av budgivning:
1. På forespørsel vil megler opplyse om aktuelle bud på eiendommen, herunder om relevante forbehold.
2. Alle bud skal inngis skriftlig til megler, som formidler disse videre til oppdragsgiver. Kravet til skriftlighet gjelder også budforhøyelser og motbud, aksept eller avslag fra selger. Før formidling av bud til oppdragsgiver skal megler innhente gyldig legitimasjon og signatur fra budgiver. Kravet til legitimasjon og signatur er oppfylt for budgivere som benytter e-signatur, eksempelvis BankID eller MinID. Med skriftlige bud menes også elektroniske meldinger som epost og SMS når informasjonen i disse er tilgjengelig også for ettertiden.
3. Et bud bør inneholde eiendommens adresse (eventuelt gnr/ bnr), kjøpesum, budgivers kontaktinformasjon, finansieringsplan, akseptfrist, overtakelsesdato og eventuelle forbehold som for eksempel usikker finansiering, salg av nåværende bolig ol. Normalt vil ikke et bud med forbehold bli akseptert før forbeholdet er avklart. Konferer gjerne med megler før bud avgis.
4. Megler skal legge til rette for en forsvarlig avvikling av budrunden. I forbrukerforhold (dvs. der oppdragsgiver er forbruker) skal megleren ikke formidle bud med kortere akseptfrist enn kl. 12.00 første virkedag etter siste annonserte visning. Etter denne fristen bør budgivere ikke sette en kortere akseptfrist enn at megler har mulighet til, så langt det er nødvendig, å orientere oppdragsgiver, budgivere og øvrige interessenter om bud og forbehold. Det bør ikke gis bud som diskriminerer eller utelukker andre budgivere. Dersom bud inngis med en frist som åpenbart er for kort til at megleren kan
avvikle budrunden på en forsvarlig måte som sikrer oppdragsgiver og interessenter et tilstrekkelig grunnlag for sine handlingsvalg, vil megler fraråde budgiver å stille slik frist
5. Megleren vil uoppfordret gi sin vurdering av det enkelte bud overfor oppdragsgiveren, når budet er gitt innenfor fristene i punkt 4.
6. Megleren skal så langt det er nødvendig og mulig holde budgiverne skriftlig orientert om nye og høyere bud og eventuelle forbehold. Megler skal så snart som mulig bekrefte skriftlig overfor budgivere at budene deres er mottatt.
7. Etter at handel har kommet i stand, eller dersom en budrunde avsluttes uten at handel er kommet i stand, kan en budgiver kreve kopi av budjournalen i anonymisert form.
8. Kopi av budjournal skal gis til kjøper og selger uten ugrunnet opphold etter at handel er kommet i stand. Dersom det er viktig for budgiver å bevare sin anonymitet, bør budet fremmes gjennom fullmektig.
Viktige avtalerettslige forhold:
1. Det eksisterer ingen angrerett ved salg/kjøp av fast eiendom.
2. Når et bud er innsendt til megler og han har formidlet innholdet i budet til selger (slik at selger har fått kunnskap om budet), kan budet ikke kalles tilbake. Budet er da bindende for budgiver frem til akseptfristens utløp, med mindre budet før denne tid avslås av selger eller budgiver får melding om at eiendommen er solgt til en annen (man bør derfor ikke gi bud på flere eiendommer samtidig dersom man ikke ønsker å kjøpe flere enn en eiendom).
3. Selger står fritt til å forkaste eller akseptere ethvert bud, og er for eksempel ikke forpliktet til å akseptere høyeste bud.
4. Når en aksept av et bud har kommet frem til budgiver innen akseptfristens utløp er det inngått en bindende avtale.
5. Husk at også et eventuelt bud fra selger til kjøper (såkalte “motbud”), avtalerettslig er et bindende tilbud som medfører at det foreligger en avtale om salg av eiendommen dersom budet i rett tid aksepteres av kjøper.
PARKEN FJELLHAMAR


Dette bør du vite om budgiving når du skal legge inn bud på en eiendom dnb eiendom formidler.
(Nedenstående er basert på kravene i eiendomsmeglingsforskriftens §§ 62 og 63)
Alle bud og budrelatert kommunikasjon med megler skal foregå skriftlig. Megler har ikke anledning til å formidle opplysninger om bud som ikke er gitt skriftlig. Megler vil likevel gi deg opplysninger og råd underveis i prosessen. Dette behøver ikke gjøres skriftlig.
For å sikre at du ikke ”glipper” i budrunden på grunn av formelle feil, må du følge disse reglene:
•Gi kun skriftlige bud. Det samme gjelder budforhøyelser og motbud. Budet må ha tilstrekkelig lang akseptfrist. Uansett bør ikke budet ha en akseptfrist på mindre enn 30 minutter fra budet inngis.
•Det første budet skal inngis på DNB Eiendoms budskjema, påført din signatur. Der skal referanse til salgsoppgaven for eiendommen fremkomme.
•Samtidig med at du inngir første bud må du legitimere deg. Det kan gjøres ved at du laster opp kopi av legitimasjon eller bruker bankID når du legger inn elektronisk bud på dnbeiendom.no, eller du kan vise legitimasjon direkte/personlig til megler som sørger for kopi. Annen oversendelse, eks sms eller epost, er forundet med en viss risiko for at opplysningene kommer på avveie.
•Dersom dere er to eller flere som skal kjøpe sammen, må samtlige budgivere undertegne budskjemaet og legitimere seg.
•Det kan i budskjemaet gis gjensidig fullmakt til å forhøye budet på vegne av hverandre. Dersom ikke slik fullmakt gis, må samtlige budgivere undertegne budskjemaet og legitimere seg.
•Du kan velge mellom følgende når du skal sende inn bud: Levere direkte/personlig til megler eller benytte budknappen til DNB Eiendom som du finner i annonsen på finn.no eller på eiendommens side på dnbeiendom.no Annen oversendelse, eks sms eller epost, er forbundet med en viss risiko for at opplysningene kommer på avveie.
•Bud som inngis utenom ordinær arbeidstid kan ikke forventes behandlet før neste ordinære arbeidsdag.
•Du har selv ansvaret for at ditt bud kommer frem til megleren. Megleren vil straks budet er mottatt bekrefte dette skriftlig til deg. Får du ikke slik bekreftelse, bør du ringe megleren for å sjekke om budet er mottatt.
•Selger vil gi sin aksept av bud skriftlig til megleren, som så videreformidler aksepten til den budgiver som får aksept på budet, med informasjon til øvrige budgivere og interessenter.
Ifølge forskrift om eiendomsmegling §6–4 vil kopi av budjournalen bli oversendt kjøper og selger etter budaksept. Budgivere kan få utlevert anonymisert budjournal. Forøvrig henvises til informasjon på budskjemaet.
For øvrig vises det til «Bransjenorm for budgiving» på DNB Eiendoms budskjema. Bransjenormen gir deg også informasjon som er viktig å sette seg inn i før du gir bud.

Oppdragsnummer:
912215006
Adresse:
Parken Fjellhamar
Undertegnede 1:
Undertegnede 2:
Adresse:
E-post 1: Tlf 1:
Gir herved bindende bud stort, kr på overnevnte eiendom med tillegg av omkostninger.
FINANSIERINGSPLAN:
Lånegiver
Egenkapital:
Kontaktperson: Tlf:
Jan Græsvik 91164848
Fødselsnummer:
Fødselsnummer:
Postnr:
E-post 2: Tlf 2:
kroner
Hjem tlf:
EVENTUELLE FORBEHOLD/FORUTSETNINGER:
Ønsket overtagelsestidspunkt:
Kontaktperson: Tlf: Kr
Budet gjelder til og med den kl.
Dersom annet ikke er angitt, gjelder budet til kl. 15.00(akseptfrist)
DNB Eiendom AS er behandlingsansvarlig, og behandler de personopplysninger som er nødvendige for å oppfylle avtalen med deg, samt andre formål som selskapet har lov til å behandle opplysningene til i henhold til personvernforordningen. Du kan lese mer om hvordan vi behandler personopplysninger i personvernerklæringen på www.dnbeiendom.no/om-oss/personvern. Der finner du også informasjon om dine rettigheter som innsyn, dataportabilitet med mer, og kontaktinformasjon til personvernombudet.
DNB Eiendom benytter informasjonen du oppgir i budskjemaet for å registrere ditt bud, sjekke finansiering, formidle og avholde budrunde.
DNB Eiendom AS benytter din kontaktinformasjon som navn, mobilnummer og e-post for å sende ut spørreundersøkelser til kjøpere, for blant annet å få din tilbakemelding på dine opplevelser på de tjenester og produkter du er og har vært involvert i hos DNB Eiendom AS. Besvarelse av undersøkelsen er anonym. Resultatene benyttes til analyse, informasjon- og statistikkformål, for å øke DNB Eiendoms innsikt, for å kunne forbedre kundeopplevelsen, tjenestene og produktene.
Personopplysninger knyttet til spørreundersøkelsen blir slettet etter besvarelse eller 10 dager etter utsendelse av undersøkelsen dersom denne ikke besvares. Dersom du ønsker å reservere deg fra å motta spørreundersøkelse, kan du gjøre det her: https://delivery-center.norstat.no/dnb/OptOut. Grunnlaget for utlevering av data til tredjeparter i behandlin-gen er Personvernforordningens art. 6 nr 1 bokstav f.
Undertegnede bekrefter å ha lest opplysninger og salgsvilkår som fremkommer i salgsoppgaven
Undertegnede er kjent med at selgeren står fritt til å godta eller forkaste ethvert bud og er klar over at handelen er juridisk bindende for begge parter, dersom budet aksepteres innen akseptfristen. Budet kan ikke trekkes tilbake innen akseptfristen dersom selger er gjort kjent med budet. Bud som megler mottar etter kl. 1500 kan ikke forventes behandlet før neste arbeidsdag. Dersom undertegnede ikke blir kjøper av denne eiendommen, vil kjøperen få opplysninger om min identitet.
Undertegnede budgivere (hvis flere) gir hverandre gjensidig representasjonsfullmakt. Dette innebærer at megler kan forholde seg til hvem som helst av oss med tanke på informasjon om bud, endringer i bud fra vår side samt informasjon om avslag eller aksept.
Jeg/vi er fysisk(e) person(er) som ikke hovedsakelig handler som ledd i næringsvirksomhet.
Sted/dato Budgiverens underskrift
Legg ved legitimasjon her
Budgiverens underskrift
Legg ved legitimasjon her


fra denne illustrasjonen kan forekomme.


Tegnforklaring: Bygningsvolum
Utkragende balkonger Tekniske oppbygg/avkast omfattes av disp. høyde.


C+ 176 C+ 175 (C+ 162,5) (C+ 163 ,5)








Ta kontakt med våre dyktige meglere fra DNB:


Jan Gresvik
Eiendomsmegler DNB
Telefon: 911 64 848 jan.gresvik@dnbeiendom.no
Thomas Eriksen
Eiendomsmegler DNB
Telefon: 918 71 915 thomas.eriksen@dnbeiendom.no






parkenfjellhamar.no