

Portfolio
Ma deline Silver




1 2 3 4
1
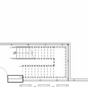
Lone Star Travel Agency
The Lone Star Travel Agency is envisioned as a dynamic, activity-based workspace that fosters collaboration, personalization, and meaningful client engagement. Designed to be both accessible and interactive, the space supports a variety of work modes. The Lone Star Travel Agency ranges from private office space to open, conversational exchanges. This allows travel agents to effectively collaborate with one another while delivering tailored experiences to clients. At the heart of the design is a client-centered approach, where visitors are welcomed into an inviting environment that encourages face-to-face interaction. Through thoughtfully designed zones for consultation, exploration, and teamwork, clients can actively participate in crafting travel itineraries that reflect their individual preferences and needs. By incorporating an activity-based workspace, clients are able to effectively plan unforgettable journeys.


PHOTOSHOP





FLOOR SLAB
STEEL BEAM
HEADED CONCRETE ANCHORS
REINFORCED CONCRETE COLUMN
SHEAR STUDS
REINFORCED CONCRETE COLUMN

MEZZANINE FLOOR TO CONCRETE COLUMN DETAIL
5/8” GYPSUM BOARD (TYP. BOTH SIDES)
3 5/8” METAL STUDS @ 16” O.C.
BATT INSULATION (ACOUSTIC)
3 5/8” METAL TRACK ANCHORED TO SLAB
ACOUSTIC SEALANT AT PERIMETER
3 5/8” METAL TRACK @ 16” O.C.






2
Main Street Running Co.
Expected to open in summer of 2026, the locally rooted retail space, located at 118 Main St, Hamilton OH, celebrates both community and movement. The Main Street Running Co. is owned by two Miami University alumni with a deep connection to the area. They contacted me and anther classmate to create two different renditions of the potential interior. Their overall goal is driven by a commitment to preserving the character of its historic storefront while contributing to the vibrancy and growth of downtown Hamilton. The design concept blends heritage and modern functionality, maintaining original architectural elements that honor the building’s history while introducing contemporary features that support an active, wellness-focused lifestyle. The space is envisioned as more than a retail store, but a place that runners can gather as a community. Through thoughtful spatial planning, the store incorporates areas for product exploration, personalized fitting experiences, and seating for informal social interaction. The Hamilton Running Store enhances the local atmosphere, reinforces community, and promotes an inclusive culture centered around health, connection, and movement.































































INSPIRATION AND PALATTE

































































































































PHOTOSHOP
SITE: 118 MAIN ST. HAMILTON, OHIO






3

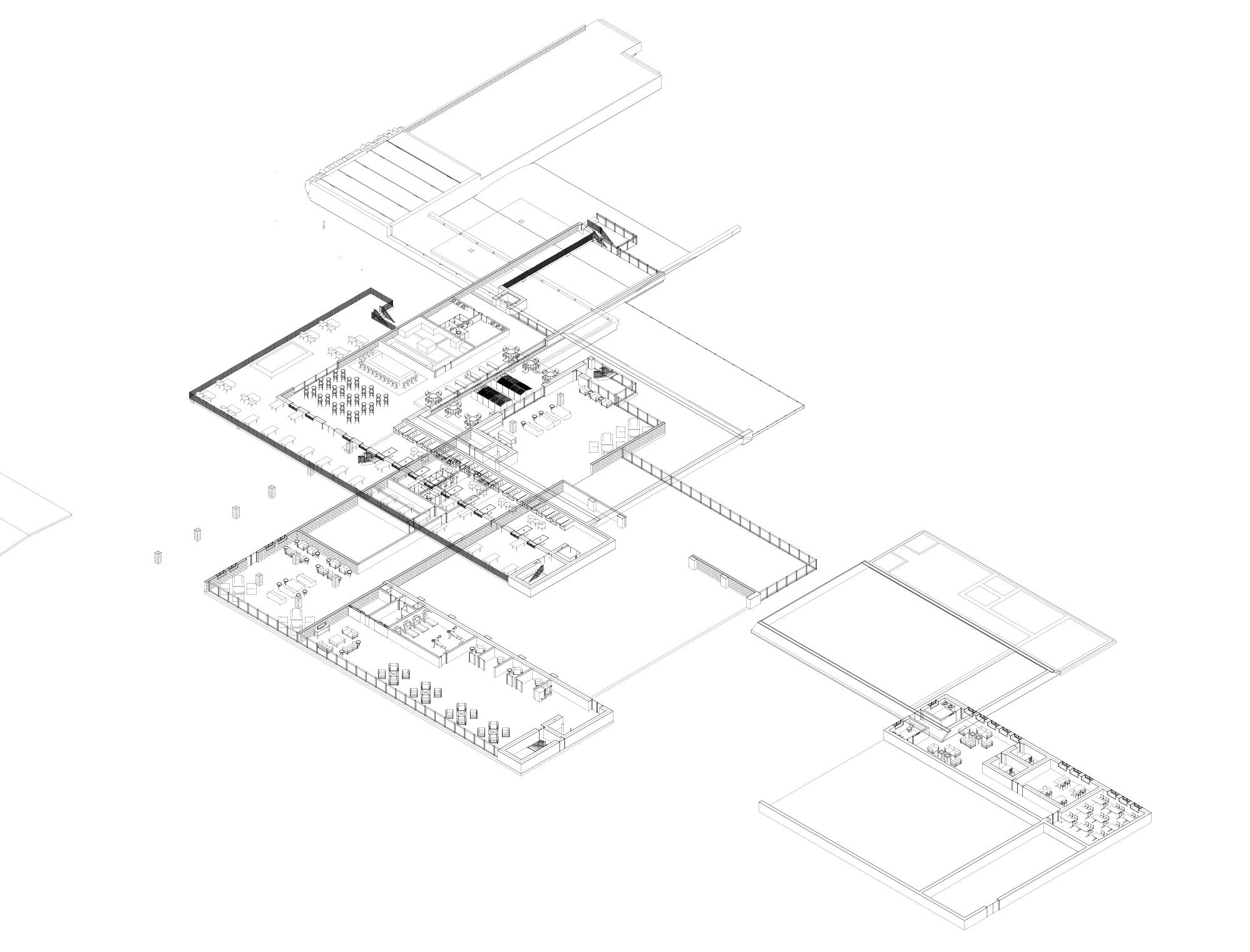
The Ground Up
The Ground Up is a multifaceted destination that brings together entertainment, dining, and local commerce to create a vibrant social hub for the Oxford community. Inspired by the late 1940s, the space blends nostalgic design elements with contemporary functionality, with the already existing flight school and hangars.The space establishes an atmosphere that is both timeless and engaging. Rooted in the idea of connection, The Ground Up is designed to foster interaction among residents, students, and local vendors. By integrating a restaurant and bar with a farmers market and entertainment venue, the space encourages visitors to gather, linger, and participate in shared experiences. The layout supports a variety of activities such as casual dining, live performances, and browsing locally sourced goods throughout the day. The Ground Up serves as both a cultural anchor and a catalyst for community engagement, strengthening local identity and creating a lively, inclusive destination where people come together from the ground up.





























































































































6. PRIVATE GYM



















NORTH FACING SECTION EAST
















INTERIOR PERSPECTIVE 1 BAR SEATING


































































































































































































































OUTDOOR SEATING/ENTERTAINMENT SPACE
INTERIOR PERSPECTIVE 2

INTERIOR PERSPECTIVE 3 PRIVATE LOUNGE
OTHER WORKS OF ART






MEDIUM: WATERCOLOR MEDIUM:
MEDIUM: INDIAN INK
MEDIUM: WATERCOLOR
MEDIUM: WATERCOLOR

My name is Madeline Silver and I am an Interior Design student at Miami University, graduating with a Bachelor in Fine Arts May 2026, with a strong interest in creating functional, thoughtful, and visually compelling spaces. I have developed a solid foundation in Rhino, Revit, Enscape, Lumion, Bluebeam, and the Adobe Creative Suite, which allows me to translate conceptual ideas into clear, communicative visualizations. I am particularly interested in the process of moving from initial concept to refined design, using both digital and handdrawn methods to explore and iterate ideas.
Through studio-based, semester-long projects, I engage deeply with spatial planning, material selection, and user-centered design. My work emphasizes the relationship between form and function, with a focus on how design decisions impact human experience. I approach each project as an opportunity to explore how environments can support well-being, productivity, and connection. Whether working on individual or collaborative projects, I value organization, attention to detail, and the ability to clearly communicate design intent.
I am continually inspired by my surrounding environment and the ways in which interior spaces shape daily life. I am especially interested in designing spaces that are not only aesthetically engaging but also purposeful, adaptable, and responsive to the needs of the user. As I continue to develop as a designer, I am eager to gain more hands-on experience in a professional setting where I can contribute to real-world projects, collaborate with multidisciplinary teams, and further refine my technical and creative skills. I am motivated to grow as a designer who can think critically, work efficiently, and bring meaningful, well-executed design solutions to the field of interior design.