Minquan Wang_Work samples

Page 1


|01 Jinqiao Art Center

Professional Work at David Chipperfield Architects 10/2022-03/2023

Competition

Role: leading designer of internally selected scheme.

Role: responsible for design development, 3D modeling, and visualizations throughout.

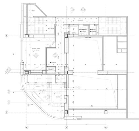
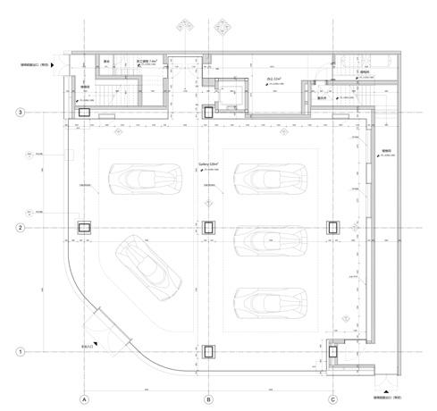
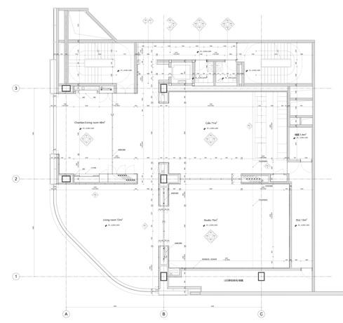
Jingqiao
Jingqiao

The Art Center sits on the southeastern corner of Jingqiao Central Park. The massing strategy takes on a urban approach that views the Art Center as a node interconnecting the surrounding landscapes and key destinations. A series of occupiable surfaces takes on the visitor flow from the park side onto the platforms above the Art Center’s massing, where vibrant cultural and community activites take placce. An enclosed full-height atrium stretching from the basement to the roof pays special attention to the changing elevations from the street to the park side and renders itself as the concourse of public activities.

Cavity Sunken plaza Road network
Program boxes Platforms Circulation Weather barrier Roof

The roof falls upon thirty-two 18mx18m structral modules. The roof form initiates from flat plates. To allow for natural lighting, one side of the roof is lifted to create a shingled configuration. Upon further structural studies, a curved profile is selected for the roof section, as this minimizes the structural height with an efficient combination of internal force flow: tensile hanging forces carried through the axial beams and bendingmoments taken by the curved truss structure. Lateral forces within each module is minimized with this setup, effectively eliminating the need for lateral bracings to the columns.

|02 NIO House Beijing Huaxi LIVE

The exterior facade utilizes back-lit fritted glass to create a warm, luminescent image. The fenestration accurately reflects the layout of interior spaces.

While the ground floor is used as a retail space, the upper floors of the project carry the NIO user community spaces: a clubhouse containing cafe, shared workplace, private meeting rooms, gathering and event spaces.

The facade design intentially avoids indifferent glass curtain walls commonly seen in car retailers around Huaxi Live, and opted for a “wall and window” vocabulary, so as to resonate with the house typology pointing towards the real goal of NIO Houses: to cultivate user community culture a be a home they could return to at any moment.

XRL Topside Development

Professional Work at Kohn Pedersen Fox Associates

03/2021-07/2021

Competition/Planning Approval Submission

Role: Designer of Client-picked competition scheme; Office Tower main contributor, responsible for design studies and model/drawing management throughout. Assistance in retail facade design.

Situated in the famous Kowloon district in Hong Kong, and projected to be an emerging city center, this mix-use development comes up with unique challenges.

The project was initially conceived together with the adjacent XRL (Express Rail Link) station as part of a larger XRL West Kowloon topside development plan. The site sits on the continuum of West Kowloon Parkway, which offers serial urban green spaces extending across the city to the water front. Due to planning approval issues, the original design scheme of the mix-use site was suspended, even though the XRL station and the basement of the mix-use site itself were already fully built. The new design has to accommodate to the existing structure and lend itself as an integral part of the West Kowloon Parkway sequence.

KPF was invited by the owner, SHKP, into a competition to reconceive the site. After being awarded the project, KPF continued to work with SHKP to develop the design scheme for Town Planning Board approval submission. I designed the Client-chosen scheme during the competition phase, and was the main contributor to the office towers design in the subsequent Planning Board submission phase. I also participated in the retail podium facade design.

The scheme initiated from a unique massing composition that responds to the rather bizaare spatial/programmatic requirement of the site.

The city’s major pedestrian circulations are on L2 via a pedestrian bridge network as part of the West Kowloon Parkway, with the vehicles circulate through driveways to reach the drop-off area, which is on L2 as well. With the office drop-off zones disconnected from the city and cut into seperate zones by the Client’s 3-tower base schemes, it was very hard to form a cohesive sense of arrival.

Challenging the Client’s base scheme with three towers longitudinally arranged along the site, our team proposed an alternate solution, where three deformed tower volumes revolve around a concentrated drop-off plaza. The driveway ramps continue to L3 while the entire L2 is allocated to retail. This allows for not only a shared plaza with memorable office drop-off experience, but also dynamic open spaces to further activate the retail components.

X 0.8

|04 Chongqing International Land-Sea Center

02/2019-02/2020

SD/DD/Tender set

Role: Main contributor in retail podium & LRT station facade design, Responsible for design studies, drawing production, presentation materials etc. throughout.

Chongqing International Land-Sea Center is a large scale mix use development in Chongqing, China. The project consists of three office/hotel towers, a retail podium, and a light rail station. The project was initially conceived over a decade ago. Due to the project being transacted to the new owner (Vanke) and the subsequent design changes, KPF was comissioned with a major redesign of the podium facades in 2018.
was the major contributor of the retail podium and LRT station facade redesign, and managed design studies, 3D models, drawing productions, and presentation materials throughout the process.

The design of both the LRT station facade and the shopping mall’s southern stone facade encountered various MEP and fire rescue window demands. To accommodate to the required facade opening rate without compromising the facade’s visual solidity, a fluid gradient pattern was applied to dissolve any discernible boundary between open/ventilated areas and nonopen areas.

To maintain the double-curve geometry of the shopping mall’s stone facade, extensive studies were done to modulate the stone panels and examine any potential visual tolerance issues. Parametric tools were applied to streamline the process with added accuracy.

The shopping mall’s SW main entrance was highlighted with a conical facade with rather convoluted deductive geometries. To accomodate to the fast-paced design iterations, I fully parametricized the facade allowing for automated regeneration of geometric setout, modulation, panelization, and curtain wall member modeling.

05/2020-08/2020

SD/DD

Role: Main contributor in retail podium and key public spaces design; Responsible for design studies, visualization, presentation materials etc.

Henderson Hung Hom is a mix-use project of residence and retail development encompassing seven blocks. The project aims at creating the next generation of mix-use. It emphasizes on experiential retail with a blend of art and culture, and speaks of the lifestyles of the younger generation of visitors and occupants. A vastly extraverted retail experience allows the existing urban fabric to permeate into the internal site to facilitate synergy with the intimatel scale of Hung-Hom neighborhood. Anchor stores are strategically positioned and brought to highlight so as to frame the urban spaces, while activating commercial value.

Détournement of Allure

Miami Beach is among the ultimate tourism destinations in the US. The city has been remembered and fantasized for its seashores, bars, clubs, and tropical flair. What underlies all these tokens of Miaminess is its vibrant social life. However, consumerist developments have been gnawing at social life on the beach. Profit drives developers erect privatized luxury hotels and condos, chopping the beachfront into fenced bubbles. Since contributing to the urban life goes against their privilege and profit, beachfront developments are increasingly disengaged from the city.

The most pertinent challenge in our face is not to design good architectures with high quality urban spaces, but to ensure such spaces are respected and maintained as they are intended to by the owners. In other words: can we design a game in which publicness is anchored at the core of profitability, thus invite beachfront developments to play along?

YSOA Advanced Design Studio Instructors: Emre Arolat, Gonca Paşolar, Kyle Dugdale Partner: Istvan van Vianen Fall 2017

EMBRACE THE GAME

Instead of fighting Miami's beachfront development pattern, the project works with it. Five mix-use hotel blocks each is an islands of varying tastes and lifestyles, manifesting the will of individual owners, whereas the Halo bridges them to achieve a unified gesture and experience. The sixth block, a former parking lot, is transformed as a performance park joining the Halo.

Public Flow

Ramps, stairs, escalators, and elevators lead people from the street all the way on to the podiums of hotel blocks, and further up to meet the Halo. Program attractors (retails, amenities, etc.) are spread along to keep the flow pumping.

Joints

Each hotel block is designed with a cascading podium bringing pedestrian onto its top, and one or multiple guest-room towers elevated above.

The Halo is broken into several segments on different heights to fit itself onto the site, but the circulation maintains continuous.

GROUND FLOOR: CONSUMERIST HETEROTOPIAS

The podiums contain most of the hotels' public programs (reception, retail, amenities, etc.). These are fully managed and operated on an individual basis, and configured to aim at commercial interest. From the ground floor, the project almost fully comply to the current model of development on the beachfront: profit driven consumerist heterotopias independently run by hotel owners.

Show The Visitors... And The City!

EASY OFFICE

Culver City Concept Art Studio

|07

Advanced

Instructors:

In the documentary Brillo Box (3¢ Off), when Andy Warhol is asked why he turned a common Brillo box into sculpture, he casually responded “because it’s easy to do”. Appropriation yields irony which is easily interpreted, but is paradoxically difficult to attain without an alignment of particular social, economic and cultural forces at play.

This studio investigated appropriation, misinterpretation, and abstraction as tools to generate formal agendas in the adaptive reuse of a warehouse building in Culver City into an Easy Office. Students were asked to hunt everyday items and curate them into a collection to express their sensibilities and obsessions, and convey it through collages. They then compressed the collection of objects into well thought ensembles, and dematerialized them with vacuum-forming. As levels of abstraction goes up, a formal agenda was extracted from each student’s work, which was ultimated transposed into an office interior.

YSOA
Design Studio: Pita & Bloom
Florencia Pita, Jackilin Hah Bloom, Miroslava Brooks Individual Work Spring 2018

2D Collage Object Collection

The studio initiated with collections of daily items to express a viewpoint, a sensibility or an obsession. My collection focused on streamlined industrial product with highly specific forms. The sharpness, linearity and hinge in these objects implied a tension between connection and exclusivity.

The images of the objects were then composed into collages to inform a formal agenda. The collages here stitched together disparate objects following their intrinsic formal logic, forming a mechanical Frankenstein, where the individual objects fade away into a new collectivity.

Developed Surface Drawing

Drawing for Misinterpretation

The developed surface drawing transposes the formal techniques from the previous iterations onto an architectural site. Item collections from the site were added to the initial collections, and together composed onto the unfolded interior surface of a warehouse. This results in a "technical drawing done wrong". In trying to make sense of the paradoxical readings, geometric mutations were made.

The play between the figures and the approximations results in a versatile field that flickers between identifiable forms and fluid aggregations. Small squads of conceptual artists or freelancers find their temporary niches by their preferences and constantly shuffle as projects proceed.

Turn static files into dynamic content formats.

Create a flipbook
Issuu converts static files into: digital portfolios, online yearbooks, online catalogs, digital photo albums and more. Sign up and create your flipbook.