Signature Homes Customer Collection Lookbook

Page 1

2

Welcome

Anything is possible when you build your new home with Signature Homes. Whether you use one of our popular pre-designed plans as a starting point or design your home completely from scratch, our team will be with you from start to finish, providing expert guidance as we bring your new home to life together.

Signature Homes is a full-service new homes solution that gives you access to our team of new home consultants, architectural designers, quantity surveyors and project managers, along with the expertise and knowledge of our experienced franchise partners, all in one place. Having one point of contact makes things a lot easier for you, and you can rest easy knowing your new home is being built by one of New Zealand's most renowned and respected residential builders. Even better, your new home will be protected by industry-leading building guarantees.

We’re proud to be 100% Kiwi-owned since our inception in 1983, and in that time we have brought thousands of Kiwi dream homes to life. After you’ve browsed the inspiration in this book, contact us for a free no-obligation new home consultation to discuss your new home.

3

dream home

STEP BY STEP GUIDE TO YOUR

1. Taking your brief

Your first meeting with Signature Homes gives us a chance to discuss your new home aspirations, and we’ll also share more about us and how we do things differently through our building process.

2. Site visit

Our team will meet with you on your site to discuss options for where your new home could be situated and how it might be oriented on your section. We’ll also conduct an initial review of site requirements for the building process.

3. Concept Designs

Now we understand the style of home you wish to build and the requirements of your site, we’ll present you with conceptual designs in alignment with your investment level as a starting point for your new home.

4. Greenlight Planning Service

Once you’ve chosen a concept design that pretty much ticks all the boxes, we’ll provide you with a comprehensive estimate to build your new home. Once you accept this estimate, we’ll move into our Greenlight Planning Service which gives you access to our team of expert designers and estimators to finalise your design.

5. Contract Presentation

We’ll produce full concept designs along with firm and final pricing. This process will give you surety of costs and peace of mind.

6. Entering into a building agreement

Now you’ve signed off the final design and pricing of your new home, we’ll enter into a building agreement. We arrange for council consent, and once this is issued you’ll meet with your Project Manager and commence your build.

7. Construction

Your Project Manager will take care of you from this point onwards, keeping you updated at key points throughout your build and meeting you on site to take you through your new home as it takes shape.

8. Your Home. Your Way.

Once we’ve finished your home and received a Council Compliance Certificate, we’ll hand over the keys to your brand new Signature Home. We’re sure you’ll enjoy it for years to come. In fact, we guarantee it!

4
5 Book a free, no-obligation New Home Consultation. Let us know your ideas for your dream home We’ll help you achieve your home, your way Get to know us, our build process, our team and the build options we have available We’ll give you clarity and let you know the next steps to start your build journey You’ll walk away with an understanding of what it’s going to cost to build your new home 5 1 2 3 4 New Home Consullation START YOUR BUILD JOURNEY WITH ABook your new home consultation today
6

your team MEET

Signature Homes is one of New Zealand’s leading residential building companies, with 14 local teams bringing hundreds of Kiwi dreams to life every year.

We’re a fully New Zealand owned business that has been operating since 1983. Signature Homes has strong relationships with the country’s leading building material suppliers, giving us access to fantastic pricing and supply arrangements that we pass on to you to ensure your new home is both high-quality and well-priced.

Owners Gavin and Anneta Hunt have been involved in the business since its inception nearly 40 years ago, and still oversee its running. Signature Homes has your best interests at heart and strives to make building a new home easy and stress-free.

New Home Consultants

Our New Home Consultants (NHCs) ask a lot of questions because their job is to find the perfect new build option, at the right price for your budget. Make sure you ask them questions too, as our NHCs will always find you an answer and are with you every step of the way.

Design Team

Our experienced architects, designers and estimators turn your dream into conceptual drawings and 3D images. They’ll show you a range of plans from our collections that could work on your site or, if you’re after something a little different, talk you through the process of designing your new home from scratch.

Colour Consultants & Interior Designers

Don’t worry if you don’t have an eye for interior design – when you build with us you have access to your own design team, including a colour consultant who will help guide you through these key decisions.

Building Project Managers

Once your build is locked down and signed off, your Project Manager (PM) will be your key point of contact. They'll manage the tradespeople on your site and all the requirements for the remainder of your build, keeping it on time and on budget, right up until you move in.

7

First BUILD

8
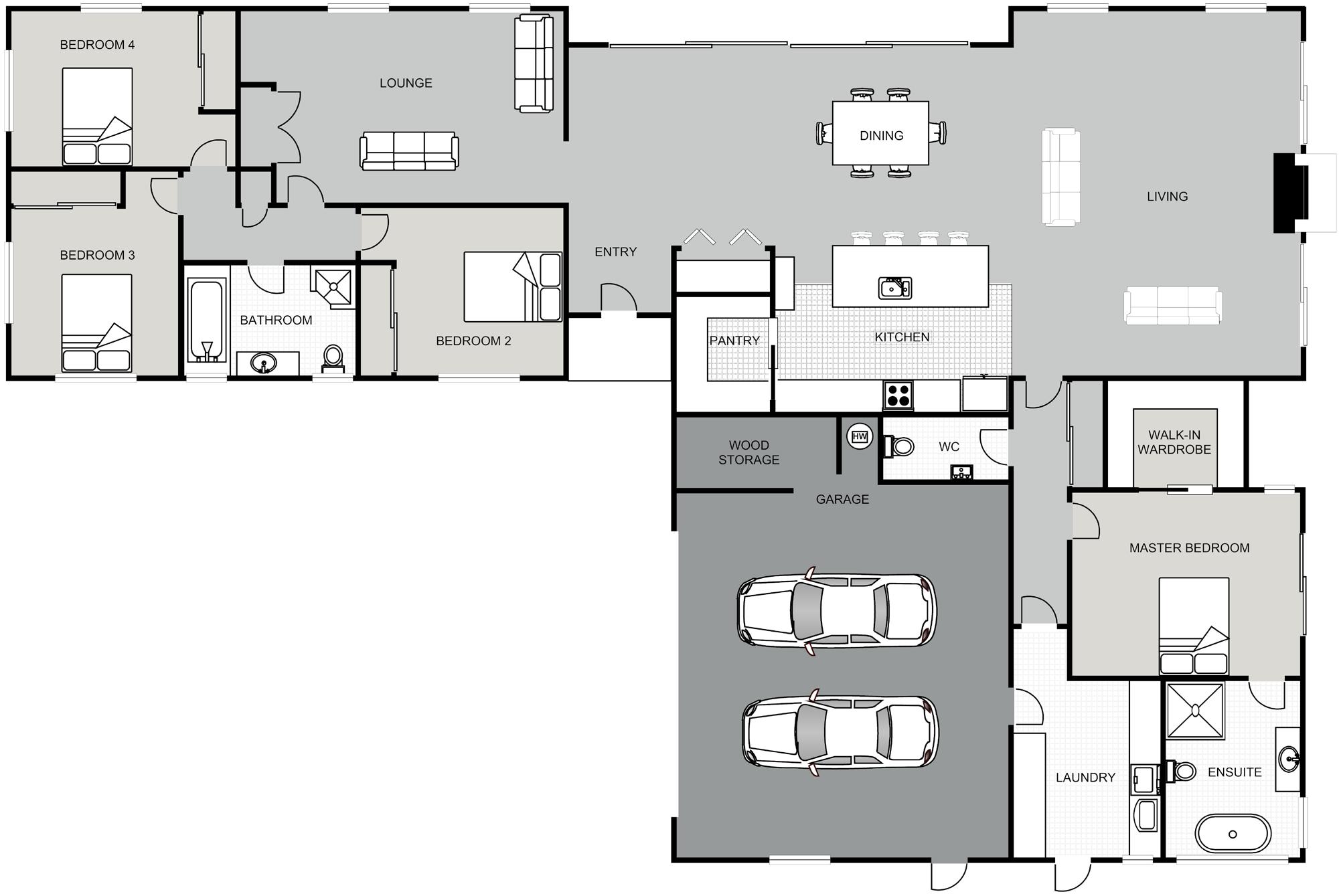
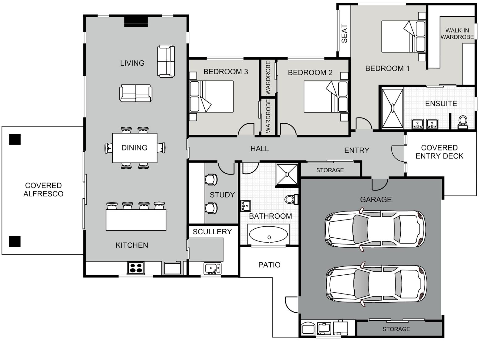
9 Ohauti 188m2 18 Modified Rosella 184m2 30 Petariki 224m2 Modified Tavai 250m2 Parkland 281m2 36 38 Modified Bellbird 164m2 10 Eastcott 229m2 Modified Caroline 223m2 26 22 14

Modified Bellbird

10 164m 2
Length 14.8m | Width 13.3m | Area 164m²

Meet Kimberley & Alec

Kimberley and Alec wanted to get onto the property ladder and keep costs down, without compromising on comfort for their growing family. Opting for a Signature Homes House & Land package located in a new residential development in Glenbrook. They settled on our popular Bellbird plan, from the Smart Collection.

The generous 164m2 of internal living, combined with the open plan kitchen and dining, plus double car garaging was a real selling point. They tweaked the plan slightly to accommodate for their growing family. Customised features included, the addition of an attic for extra storage, and turning the flexi-room/ fourth bedroom into an extra living space for the kids to enjoy.

Long vertical windows were introduced inviting sunlight and warmth into the main living areas, setting the tone for a light-filled family home.

Red brick was chosen to add a point of difference from the surrounding black-brick clad houses within the development.

11
"We loved that Signature Homes could offer us a fixed price"
12 164m 2
13
Length 14.8m | Width 13.3m | Area 164m²
JOINERY Aluminium joinery in Flaxpod from Permier Joinery ROOFING Monier Hacienda concrete tile in Sambuca
TIMBER CLADDING Linea weatherboard in Resene Element THE materials
BRICKS Mezzo in St Albans from The Brickery view home THE details 1 2 2 3
14 184m 2 Length 20.2m | Width 11.7m | Area 184m²
Modified Rosella
15

Meet Hayden & Amanda

Hayden and Amanda started looking for existing homes and quickly realised they could build a brand new home for almost the same price. The couple wanted something simple for their first home that still had design flair and a youthful edge.

The Taranaki pair knew they wanted to keep things simple to stick to their budget but also ensure the home had room to grow. They settled on the popular Rosella after experiencing it in person at a showhome, with some added personal touches.

Personality was added to Hayden & Amanda’s new build with a stunning dark kitchen and bright orange front door, plus sections of James Hardie Linea weatherboard to break up the home’s brick exterior.

THE details

16
184m 2
Length 20.2m | Width 11.7m | Area 184m² 3 2 2 2 view home
17 THE materials
FRONT DOOR Latitude front door in Mannex Tomcat KITCHEN SPLASHBACK Metalstone bronze from The Tile Depot TIMBER CLADDING Linea Weatherboard In Resene Foggy Grey Half from James Hardie BRICKS Austral Bricks Lanzarote from The Brickery
18 188m 2 Length 16.8m | Width 14.5m | Area 188m²
Ohauti
"Our experience with our new home consultant was the number one reason we chose Signature Homes"
19
188m 2

A family home with resale value in mind was key for this Tauranga family. High on their list of necessities for their new Signature home was a statement fireplace, private outdoor living, a butler’s pantry, walk-in wardrobe and a large study.

The couple approached their New Home Consultant with a rough plan for their new home, which was then expertly designed by Signature’s architects to suit their needs and budget. They also took care to design it with resale in mind, knowing they plan to move on after about five years – to their next Signature home!

The couple decided to save on their exterior cladding with a simple white brick, which gives the home a classic and hardwearing look. This allowed them to splurge elsewhere, including an impressive covered outdoor area, a larger kitchen with open shelves and a walk-in pantry, plus extra-large windows throughout the home.

Clarissa & Marco wanted the bathroom in their new home to wow their guests. As high traffic areas, they splurged on extra tiling, a built-in shower and a feature bath, which all elevate the space.

21 view home
THE details Length 16.8m | Width 14.5m | Area 188m² 3 1 2
CARPET Levante ‘Shamal’ from Bremworth FRONT DOOR Latitude front door in black TIMBER CLADDING
Linea weatherboard in Resene Black from James Hardie
BRICKS Premier Heritage in White 1 2 THE materials Meet Clarissa & Marco
22
223m 2 Length 21.0m | Width 16.3m | Area 223m²
Modified Caroline

Meet Jamie & Matt

Jamie and Matt wanted to build their family home in beautiful Papamoa with room to grow. After moving from busy Mount Maunganui, they knew the beachside town was the perfect place to raise their family.

The home's layout was inspired by the Caroline plan from our Pacific Collection, which they saw in-person at a Signature showhome just down the road from their new home. They made a few tweaks to better suit their lifestyle such as removing a study and scullery to allow space for a full laundry, and large shed. The master was also relocated for more privacy, and an outdoor shower was added behind the garage.

The home's exterior is a beautiful modern mix of James Hardie linea oblique weatherboard in Resene Nero, and Vulcan vertical board in Straw. An extra-large kitchen with extra bench space and hidden shelves instead of a butler's pantry was a must-have. The bright white cabinetry is perfectly complemented by stunning gold tapware and handles.

23
"The whole process of building with Signature was easy and stress-free. We love our new home"
223m 2 24
Length 21.0m | Width 16.3m | Area 223m² THE details THE materials
BARNDOOR Resene Half Lemon Grass KITCHEN BENCHTOP Wilsonart standard laminate (matt finish) in Linen edged with Multiplex birch ply TIMBER CLADDING Abodo Vulcan weatherboard (random profiles) in Straw
2 2 2 4
home 25
TIMBER CLADDING Linea Oblique weatherboard in Resene Nero from James Hardie
view
26
229m 2 Length 24.6m | Width 11.7m | Area 229m²
Eastcott

TIMBER CLADDING

Dark navy weatherboards and contrasting crisp white joinery creates a Hamptons look

KITCHEN CABINETRY

OUTDOOR FIRE

Escea outdoor gas fire

DS1150

THE
materials
Bestwood Melamine vertical grain in Timberland FLOORING Moduleo Select vinyl plank in Harvest
27
Horizontal Lineaboard in Resene Double Cod Grey

Meet Jimmy

For Jimmy, the decision to build new was an easy one. He always knew he wanted to live in a brand new home of his own, after living as a student in Otago in uninsulated housing.

Jimmy wanted the opportunity to Design & Build a home of his own, that was ideal for entertaining with ample room for flatmates, so he approached Signature Homes with a floorplan he had designed from scratch. Together they worked on fine tuning the floorplan to create a layout tailored to Jimmy’s requirements, turning his dreams on paper into reality.

His list of must-haves included maximizing natural light, a gas fireplace in the lounge, a big north facing deck and a large open plan diningliving-kitchen area. Perfect spaces were created for entertaining with friends and family.

The striking exterior façade was achieved using Horizontal Lineaboard in Resene Double Cod Grey, and crisp white accents accentuating the look.

The designer kitchen complemented with black accents create a sense of flow and connectivity between the exterior and interior of the home. Bestwood Melamine cabinetry adds a textured, grained surface effect to the space. The choice of bold dark hues add a nice touch of elegance to Jimmy’s mancave.

28
view home 229m 2
29 Length 24.6m | Width 11.7m | Area 229m² THE details 4 1 2 2
30
224m 2 Length 22.8m | Width 15.0m | Area 224m²
Petariki

Meet Rachel & Marc

Rachel and Marc mulled over a few plan options, deciding that they liked the layout of Signature Homes showhome in Papamoa, which was based on our Caroline Plan. They made a couple of tweaks to the plan, adding a walkin wardrobe in the master bedroom and some slight adjustments to the living area.

Good-sized kids' bedrooms were a must-have for Rachel and Marc, as they plan to be in their home for years to come. Children's bedrooms would need to transition into teenage bedrooms easily.

They were clear from the start that they wanted a dark exterior with white joinery. Picture frame windows and boxed corners assist in achieving their modern farmhouse look.

Inside, you’ll find standout features such as antique brass handles and a beautiful stone benchtop that adds a striking contrast against the black cabinetry. The Van Krieken’s kept their wall colours neutral so that they could introduce different colours through their interior furnishings. Black tapware was a must, as was the barn door to tick off the ‘modern farmhouse’ brief. They were clear from the start that they wanted a dark exterior with white joinery. Picture frame windows and boxed corners assist in achieving their modern farmhouse look.

Inside, you’ll find standout features such as antique brass handles and a beautiful stone benchtop that adds a striking contrast against the black cabinetry. Black tapware was a must, as was the barn door to tick off the ‘modern farmhouse’ brief.

31
view home
Dark, textured cladding combined with sharp white joinery creates instant modern country charm
32 224m 2

THE materials

33
4 2 2 2
Length 22.8m | Width 15.0m | Area 224m² THE details
KITCHEN CABINETRY Dezignatek Thermform in New Black-Texture TIMBER CLADDING Linea Weatherboard by James Hardie in Resene Bastille BRICKS Tenerife by Austral Bricks FLOORING Vega Vinyl Plank in Chocolate

Modified Tavai

34 250m 2 Length 19.5m | Width 14.8m | Area 250m²
35
materials
THE
KITCHEN CABINETRY Bestwood Melamine in Limestone Velvet (black), feature in Simply Eucalyptus (light) OVEN Smeg 5 burner freestanding oven in Black enamelled metal TIMBER CLADDING Linea Weatherboard in Resene Element from James Hardie BRICKS Euro Grande in Blanco from Midland Bricks

Meet Shell & Lee

A house to grow into and for all to enjoy sums up Shell and Lee's brief. They love to socialise, host family from the UK and dabble in a few movie nights! There was also the consideration of their two fur babies, who were the recipients of their own designated space, which comes complete with a fenced-off 'pet garden'.

The easy flow, open plan living and access to the outdoors at both ends of the home of the Tavai plan ticked a lot of our boxes. They worked with their Signature Homes design team to tweak the plan adding in a separate laundry and extending the open plan living space. The addition of extended sliding doors and full-length windows captures the indoor-outdoor flow even more so.

The brick exterior is inspired by growing up in England. The white brick with black joinery in ‘Flax’ adds a modern feeling to the home. Lush green plants help to soften the white brick creating a gorgeous botanical feel.

The rugged concrete stone bench creates a statement piece in the open-plan living space, and natural materials with a light and dark colour scheme, symbolise Taranaki beaches and landscape.

36 250m 2
"They always made us feel welcome, appreciated and like nothing was too much trouble"
37 Length 19.5m | Width 14.8m | Area 250m² THE details 4 1 2 2 1 view home
38 Parkland 281m 2 Length 25.8m | Width 14.4m | Area 281m²

Meet Anjuli & Ross

As you walk through the front door of the Parkland plan, you're welcomed by a wide hallway, with feature glass windows framing the garden and adding a natural element to the home.

The master suite is separated from the other three bedrooms, and open-plan living is ideal for entertaining. A media room provides a cosy space for relaxation, making our Parkland plan ideal for family living.

Further bonuses include a three-car garage, impressive walk-in pantry and generous separate laundry.

view home

39

Polished concrete, a monochrome palette and shaker style doors create a modern country feel

40
Length 25.8m | Width 14.4m | Area 281m² 281m 2 4 2 3 2
THE details

THE materials

41
FLOORING Polished concrete with ½ dose of carbon black BRICKS Huntly Clay brick in Resene Bokara Grey BARN DOOR Otaki 6 in Resene Alabaster with black hardware TIMBER CLADDING Abodo Vulcan Vertical Patina in Resene Tobacco Brown
42
43 Omokoroa 243m2 Meadows 265m2 Shoebridge 252m2 Moturoa 256m2 Westmere 252m2 52 68 56 64 60 Karere 335m2 Franklin 400m2 Bishopdale 337m2 72 80 76 Brywood 224m2 Huapai 193cm2 48 44 Urban BUILD
44 Huapai 193m 2 Length 14.15m | Width 17.47m | Area 193m²

Meet our Huapai Plan

This dual pavilion home provides 199sqm of effortlessly light, bright, and beautifully sun-soaked living spaces.

Enjoy three thoughtfully placed bedrooms, separate media room, a spacious open-plan kitchen, dining, and living room that flows out onto a stunning louvered pergola and deck area – perfect for entertaining with friends and family.

Designed to reflect a welcoming coastal-inspired abode, the Huapai design perfectly celebrates nature and a connection with the outdoors. Featuring a minimal tonal colour palette of crisp white, paired with stunning wooden accents to further accentuate the modern coastal look.

The relaxed, nurturing feel of this home is achieved using neutral colours, warm timbers and lots of texture view home

45
46 Length 14.15m | Width 17.47m | Area 193m² 193m 2 THE
1 2 2 4
details
47
THE materials
FLOORING Hurfords Genuine Oak Flooring in Barrel FEATURE WALL Scalloped wall in Resene Spanish Green TIMBER CLADDING James Hardie Linea Oblique weatherboard in Resene Half Milk White BRICKS La Paloma in Madrid by Austral Bricks from The Brickery
48
224m 2 Length 22.2m | Width 13.4m | Area 224m²
Brywood

Meet Carl

Our Brywood plan offers a clever design with all the bells and whistles, including two-living spaces, a study and three generous bedrooms.

The combination of brick and timber cladding makes for impressive street appeal, and the grand boardwalk entry adds further to stunning first impressions.

As you move through the pavilion style home you will see all living spaces, study plus master retreat in one wing, and two double bedrooms, family bathroom, and double garaging in the adjoining wing.

The home is full of thoughtful design features that add a striking visual appeal to the interior style, with Abodo Vulcan Screening on the kitchen island and Abodo Panelling in the entranceway and casual living space.

49
view home
50 224m 2

THE materials

51 THE details Length 22.2m | Width 13.4m | Area 224m²
FEATURE TILE
FLOORING
TIMBER CLADDING Aboda Vulcan Shiplap weatherboard in Teak
Pasado Moss 75 x 300
TILE
Quarry White Natural 600 x 600 BRICKS San Selmo Smoked in Opaque Slate by Austral Bricks
3 2 2 2 1
52
243m 2
Omokoroa
Length 27m | Width 12.7m | Area 243m²

Meet our Omokoroa plan

This design was built as a Signature Homes showhome in Omokoroa in the sunny Bay of Plenty. Designed with modern trends in mind, the home features cedar and reclaimed brick cladding, and raked ceilings in the generous living areas. With an inviting entryway leading to a spacious kitchen, dining and living area, plus a separate lounge, this stunning coastal home has plenty of space for the family. A standout feature is the covered outdoor area, providing ample space for entertaining no matter the weather.

Finished with inviting and natural tones, the interior design complements the surrounding landscape with its feature wallpaper, engineered timber flooring, fully tiled bathrooms and an ensuite with bi-fold windows opening to a private garden, creating a lovely oasis.

53
The designer kitchen is the heart of this family home
view home
54 THE details Length 27m | Width 12.7m | Area 243m² 243m 2 4 2 3 2
55
SPLASH BACK Dekton Trilium (Tech Collection) CHIMNEY Reclaimed Original by The Brickery FLOORING Oak Elegance in Rustic Oak from Godfrey Hirst
THE materials
TIMBER CLADDING Vertical cedar weatherboards in Hermpac Hacket Black
56
252m 2 Length 15.3m | Width 14.1m | Area 252m²
Shoebridge
57 THE materials
TIMBER CLADDING Horizontal Lineaboard in Resene Whitewater from James Hardie FIREPLACE Max Stone in Granite Schist BRICKS Premier country (rumbled edge) in white with natural grey mortar KITCHEN CABINETRY Bestwood Black Timberland & Limestone Velvet
"They were outstanding, providing us with knowledgeable, helpful advice, they were accommodating and easy to work with.”

Meet Linda & Graham

After many months of house hunting, only to find homes that needed significant refurbishing, Linda and Graham decided to build new.

The couple’s list of must-haves included a powder room, separate laundry, high quality finishes, raked ceiling and spacious airy interiors.

The Shoebridge plan is the epitome of low-maintenance living, with all the modern comforts in mind. It captures all-day sun, allowing the central openplan living spaces are adorned with abundant natural light and are cocooned by three bedrooms all with their own ensuite.

The striking pavilion ceiling helps to create the illusion of more space and contributes to a Hamptons-inspired home. The neutral colour palette inspired by New Zealand’s beautiful coast, helps to define a Hamptons-style home with a Kiwi touch.

The exterior features a combination of white brick and Horizontal Lineaboard in Resene Whitewater from James Hardie, adding a sense of texture and giving this home a natural and elegant feel.

58
252m 2
59 view home
details Length 15.3m | Width 14.1m | Area 252m² FIRST FLOOR 2 2 3 3
THE
60 Westmere 252m 2 Length 22.0m | Width 10.6m | Area 252m²
61

Meet Ben & Kelly

Our Westmere build is a Knock Down & Rebuild project in Westmere, Auckland. Originally on the property was a tired-looking 1930's bungalow that needed a complete makeover. Property owners Ben and Kelly decided the best thing to do was to start again, opting for Signature Homes complete Knock-Down & Rebuild project management service.

The Johnson's wanted to honour the original 1920's and 1930's character bungalows, creating a modernised bungalow that did not look out of place amongst the older homes on the street.

The modern bungalow look was achieved using weatherboard timber on the exterior and corrugated iron roofing. Inside the home, you'll find blonde oak engineered timber floors and cool white tones throughout each space.

62
This modern take on a traditional bungalow looks relaxed in its environment
252m 2
63 Length 22.0m | Width 10.6m | Area
252m²
CARPET Belgotex Rockerfeller in Ash KITCHEN CABINETRY Melteca Snowdrift Naturale from Laminex BATHROOM TILES Riverstone Silver Matt 60 from Tile Space TIMBER CLADDING Linea painted in Resene Athens Grey from James Hardie
THE materials

A home design perfectly situated to capture sea views from the second storey

64 Moturoa 256m 2 Length 13.3m | Width 17.5m | Area 256m²

Meet Bryan & Marie

The owners of this two-level home in New Plymouth spent eight years living in 17 different rental properties around NZ after the Christchurch earthquakes before finally settling in the coastal Taranaki town. Having lived in so many different homes, they had a good idea of what they wanted. Spacious living flowing out onto a well-positioned deck to capture sea views, as well as a garage with dedicated storage space were both must-haves.

The ground floor features two generous double bedrooms plus a large family bathroom opening onto a small courtyard. Upstairs, the master bedrooms takes pride of place, connected to the living areas via extensive decking.

view home

65
66 256m 2
67 Length 13.3m | Width 17.5m | Area 256m² GROUND FLOOR FIRST FLOOR THE details 3 1 2 2.5
68 Meadows 265m 2 Length 18.0m | Width 18.6m | Area 265m²

Meet lhe Meadows Plan

Effortlessly bright and welcoming, this home is architecturally designed to offer earthy, edgy and beautifully modern features. The thoughtfully considered layout features a bedroom wing with four spacious bedrooms positioned away from the main living area. The open plan kitchen, dining and living area flows out onto a stunning deck. Large expansive windows ensure the separated family room is light, bright and airy. The bespoke features of this home give it a beautiful welcoming feel.

69
Create
a striking exterior using timber screening that runs the full length of the house
70 265m 2

BRICKS

La Paloma in Tenerife by Austral

TIMBER CLADDING

Abodo Vulcan Vertical Patina

BARN DOOR

Custom made by Merchant Industries

FLOORING Quick-step Perspective Nature in Brushed Oak Grey

71 Length 18.0m | Width 18.6m | Area 265m² THE details 4 2 2
THE materials 2 view home
Bricks from The Brickery
72 Karere Length 19.0m | Width 17.8m | Area 335m² 335m 2
73 THE materials
TIMBER FLOORING Empire Cemento from Carpet Court BATHROOM TILES Riverstone Silver Matt 60 from Tile Space TIMBER CLADDING Abodo Tundra Shiplap BENCHTOPS Gracestone Granite and Marble
74 335m 2 THE details Length 19.0m | Width 17.8m | Area 335m² 4 3 2 1 2.5 GROUND FLOOR FIRST FLOOR view home

Meet Mike & Marianne

This stunning custom Design and Build home in Christchurch is owned by Mike and Marianne, whose brief was to create a home that felt like their holiday home every day.

Our Karere plan is ideal for those wanting a standout family home with all of life's luxuries.

The striking exterior was achieved using Abodo's premium weatherboard timber product and Rockcote Integra cladding system. Large windows with multiple skylights create a gorgeous light-filled home.

Interior features include a bold stairwell with a feature wall, a designer kitchen with impressive scullery, a master bedroom covering the entire upstairs area. Inside the home, you'll find four bedrooms, two well-appointed bathrooms, a designer kitchen with large scullery, two living spaces, open planning kitchen and living and a gym.

75
"Signature Homes came up with stunning ideas and were affordable!"
76 Bishopdale 337m 2 Length 13.5m | Width 17.8m | Area 337m²

Meet Monique & Nigel

The owners of this home wanted something their family could enjoy for years to come. A connection to the outdoors was important, with impressive bi-fold doors inviting the outside world into the large living area.

Spread over two stories, the home features 337m2 of internal living space, which houses four double bedrooms, three separate living areas, a study and a double internal-access garage. The huge 102m2 Kwila deck complements the impressive cedar cladding perfectly, resulting in a home that is a treat to look at while still blending in with its natural environment in beautiful Nelson.

view home

77
"The Signature Homes team put a lot of effort into the design of our home, and the result is excellent"
78 337m 2
79 Length 13.5m | Width 17.8m | Area 337m²
4 3 3 2.5 1 GROUND FLOOR FIRST FLOOR CLADDING Axon Panel in
TILES
5 Rib in
THE materials TIMBER CLADDING Cedar
THE details
All Black by James Hardie
Trento in Arlecchino from Tile Warehouse ROOFING
Colorsteel Ebony
stained in Resene Woodsman Driftwood
80 Franklin 400m 2 Length 20.2m | Width 19.4m | Area 400m²

Meet the Franklin’s

This stunning 400m2 house plan is split across two levels and comes complete with five bedrooms, two living spaces, three bathrooms and a games room. Step outside to an outdoor living oasis fit for all seasons, complete with swimming pool and basketball court.

An abundance of cleverly placed windows means light pours into every room. The monochrome colour palette is softened by splashes of green, navy and terracotta and repeated arches.

The beauty of this plan is in the detail. Every space has been considered and designed to maximise space and lifestyle, cue the bar tucked into the scullery, bench seats in sunny spots, and built-in shelves giving the opportunity to display beautiful objects.

Achieve a New York loft vibe with smoky textured brick and sharp, black lines view home

81
82 400m 2
GROUND FLOOR
FIRST FLOOR THE materials
PINK VANITY Forma Spio in Kobe from Plumbline CABINETRY Prime 18mm melamine in Black Timberland from Millbrook Kitchens CLADDING Titan Board in Ebony from James Hardie BRICKS
83
San Selmo Opaque Slate from The Brickery
THE details
5 2 2 3
Length 20.2m | Width 19.4m | Area 400m²
84 Coastal BUILD
85 Kensington 256m2 98 Greville 273m2 106 Whitworth 297m2 114 Carter 292m2 110 Modified Toto 180m2 86 Papamoa 265m2 102 Attewell 229m2 Montiicola 238m2 90 94 Maunganui 323m2 118
86 180m 2 Length 18.4m | Width 15.5m | Area 180m²
Modified Toto

Meet Molly & Brett

Molly and Brett love all that Raglan has to offer, and having lived there for many years, they decided it was time to build a home that truly complemented their lifestyle and growing family.

As their section sits right on the reserve of the Raglan Harbour, capturing the wild and ever-changing landscape was a must.

Large windows and multiple areas connecting to the outdoors were high on Molly and Brett's list, as were interior elements such as wood and stainless steel features to create a cosy coastal feel.

The modified Toto plan features an impressive layout like our original Toto plan where the couple worked with their Signature Homes architect to cleverly reorganise our Toto design to complement their stunning section.

The rearrangement of the living and bedroom spaces create a highly organised home, with outdoor living in mind. Each space interacts with the outdoors, providing a variety of stunning views throughout the home.

The design also needed to allow for a large decking area, with multiple areas to relax and entertain.

87
"The team was helpful, knowledgable and their attention to detail was impeccable"
88 180m 2 THE
view home Length 18.4m | Width 15.5m | Area 180m² 4 1 2 2
details
THE materials FLOORING Elkwood Laminate in Smoked Oak FIRE Metrofires 'Wee Rad' GARAGE DOOR Windsor Timbertech 4
in Heart
TIMBER CLADDING Linea Oblique weatherboard in Resene Half Element 89
panel
Rimu
90
Length 24.6m | Width 13.2m | Area 229m² 229m 2
Attewell

Enjoy the outdoors all year with a beautiful covered portico

Meet Peter

Peter and his companion Aero, the dog, enjoy a relaxed coastal lifestyle in Whakatane. Their new home is the epitome of modern lifestyle living. The top three 'must-haves' were to create a low-maintenance, energy-efficient, modern home.

You enter Peter’s modern abode via a boardwalk deck and step into large open spaces. The pavilion-style home means all bedrooms are tucked away from the living areas, and the master suite comes complete with access to the decking area. Well-considered ‘value adds’ include a cloak cupboard for guests, a spacious study to work from home, and an under-bench wine fridge in the stunning scullery.

Peter's brief of an East Coast inspired home comes to life with tan and cream accents and coastal furnishings. The home truly complements its semi-rural surroundings. The exterior catches the sunlight at all the right times, where the Abodo timber cladding in "Straw" creates beautiful creamy blonde shades throughout the day.

91
92 229m 2
93 FLOORING Euro Oil Premium engineered timber flooring in Isanti LIVING ROOM/ BEDROOM PENDANTS Bubble saucer pendant 66cm
lighting TIMBER CLADDING Abodo Vulcan vertical in Straw
materials BRICKS Estate in Ash by Premier Bricks
details Length 24.6m | Width 13.2m | Area 229m² 3 2 2 1 2 view home
from Mr Ralph
THE
THE
94
Length 26.2m | Width 15.1mm | Area 238m² 238m 2
Montiicola

Meet our Montiicola plan

This 238m2 , four-bedroom home is full of design inspiration. The 70’s inspired breeze blocks and vertical timber weatherboard cladding make for a striking home. Mid-century modern inspired design elements flow throughout the interior - including a rich variety of finishing’s and textures with surprising pops of colour. The Montiicola is truly an entertainer’s dream. The impressive alfresco area complete with a gas fire and portico ensures year-round use, and flows seamlessly into the kitchen, living and dining areas.

95
The Montiicola is an entertainers dream with light-filled open spaces.
96 238m 2

THE materials

CLADDING

135mm vertical Pukepine weatherboards in Resene Atmosphere

FEATURE BLOCKS

CABINETRY

Bestwood Melamine Classic Walnut Timberland

97 Length 26.2m | Width 15.1m | Area 238m²
THE details
Breeze blocks from Firth Industries WALLPAPER
2 2 2.5 4 view home
Casamance Sabal Wallpaper from Twill interiors
98 Kensington 256m 2 Length 18.2m | Width 11.8m | Area 256m²

Meet Leigh & Jeremy

‘Faded denim’ was the phrase the owners of this beautiful home in coastal Auckland settled on that would shape their new family home – it had to feel as comfortable and familiar as well-loved jeans.

Everyone having their own space was high on the list for this family with three teenage children, however they still wanted space to enjoy time together. The resulting home features a self-contained area downstairs for one child, while upstairs holds a parents' retreat, two double bedrooms, a study, kids' lounge and spacious decking for outdoor entertaining.

99
"We appreciated Signature Homes upfront and honest approach. We knew we were in safe hands"

CLADDIING

ROOFING

JOINERY

APL Vantage in Arctic White

100 256m 2 THE
materials
Longrun Colorsteel in Windsor Grey TIMBER CLADDING Pine weatherboards in Wattyl Grey Pearl James Hardie Axon Panel in Dulux Snowy Summit
view home 101 GROUND FLOOR FIRST FLOOR THE details Length 18.2m | Width 11.8m | Area 256m² 2 3 1 4 2
102
265m 2 Length 21.5m | Width 13.4m | Area 265m²
Papamoa

Meet Katie & Steve

The owners of this home wanted to create their ‘forever home’ and a style that complemented the idyllic beach location.

Spread over two stories, the home features 265m2 of internal living space, which houses four double bedrooms, two separate living areas, a study and a double internal-access garage.

The design celebrates outdoor living, where spaces seamlessly flow and the swimming pool is the centre of attention.

103
"It is our happy place - the slice of seaside coastal living we were seeking!"
104 Length 21.5m | Width 13.4m | Area 265m² 265m 2 THE details 4 2 2 2.5 GROUND FLOOR FIRST FLOOR view home

TIMBER CLADDING

Abodo timber cladding coated with Abodo Sioo:x product

ROOFING

Coloursteel in Gull Grey

FLOORING

Moduleo vinyl plank in ‘Brandy’

TILES

Athena texture gloss white

105
materials
THE
106
273m 2 Length 30.1m | Width 13.6m | Area 273m²
Greville
107
108 273m 2
view home 109
THE details
JOINERY Matt Black by APL Length 30.1m | Width 13.6m | Area 273m²
"We wouldn’t hesitate to do it all over again!"
BENCHTOP 60mm Primestone Aoraki
FLOORING Antique Oak flooring from Forte THE materials
TIMBER CLADDING Oiled cedar in WoodX Mount Honey 4 2 2 3 Meet Belinda & Andrew Honouring the beautiful environment was an absolute must-have when designing this stunning home right on the edge of Waihi Beach in the Bay of Plenty. Everything was thoughtfully designed to bring the outside in, from the choice of cedar cladding right through to the engineered timber floors in antique oak. The layout of this impressive fourbedroom home is centred around a tunnel view from the front door right through to the ocean at the other end of the home. This design is an entertainer’s delight, with spacious indoor and outdoor living areas including a luxurious firepit with sweeping views across the beach.
110 Carter Length 13.1m | Width 15.5m | Area 292m² 292m 2

Meet Jenni & Phil

The Carter plan is appropriately named after its owners, Jenni and Phil Carter. The home's layout is family-friendly in more ways than one; each space has been carefully considered to grow with their family, making it their ideal forever home. Spread across two floors, each space is highly liveable, with three living spaces used as a playroom, family living room and pool room. The home's colour palette and materials complement the coastal lifestyle and forever changing ocean views.

The exterior cladding is a mix of Abodo timber cladding and Celcrete, which helps to create dimension to the exterior. Inside, you'll find neutral colours and pops of green and pink to showcase a bit of character and design flair.

111
"Everyone involved in our building journey had an incredible focus on quality. We feel very lucky" view home
112 Length 13.1m | Width 15.5m | Area 292m² GROUND FLOOR FIRST FLOOR 5 3 2.5 2 292m 2
THE details

ENTRY DOOR

KITCHEN TAP

Lustro brushed brass kitchen mixer

113
THE materials
FLOORING Vega vinyl plank in Dune Aluminium Latitude in Bond River Gum TIMBER CLADDING Abodo Vulcan Patina Finish
114 Whitworth Length 18.3m | Width 11.6m | Area 297m² 297m 2
115

TIMBER CLADDING

INTERNAL STAIRCASE

BARNDOORS

116
Patea profile in Dulux Te Kuiti Solid wood in American Ash with glass balustrade Linea Weatherboard by James Hardie in Resene Element
297m 2
CLADDING Celcrete in Resene Alablaster
THE materials

Meet Shelley & Dave

If you're looking to maximise your site with a touch of luxury, then the two-storey Whitworth plan is for you. This property is all about capturing the water views from both levels. A functional, open-plan layout creates easy flow throughout the home. All four bedrooms are generous in size with ample bathrooms strategically positioned. The solid wood staircase in American Ash enhances the opulence theme, and the statement lighting from David Trubridge hanging in stairway creates striking reflections into the evening.

The abundance of windows and stacker doors ensures light flows through every room of the home all day long.

117
Length 18.3m | Width 11.6m | Area 297m²
THE details
FIRST FLOOR
2 4 2 3
GROUND FLOOR
view home
Panoramic views and an abundance of light bring the outdoors in

Maunganui

118
Length 24.2m | Width 14.4m | Area 323m² 323m 2

The Maunganui

Introducing our Maunganui house plan, a breathtaking three-bedroom design symbolising luxury beachside living.

Our Maunganui design is inspired by its location in the picturesque Mount Maunganui, Tauranga. The home's layout was determined by relaxation and multi-purpose spaces that effortlessly flow to the outdoors.

The home's exterior is sympathetic to its surroundings, using soft neutral tones such as chalky whites to enhance the beach location. Intricate stonework from local suppliers Te Kuiti stone creates a standout feature wall. Aluminum fins provide dual benefits of both privacy and further aesthetic interest.

Ground floor living is where family and friends connect with multiple outdoor spaces. Upstairs is where the bedrooms reside, and views of the famous Mt Manganui dunes and surf beach can be admired.

119
Blurring the lines between indoor and out, the Maunganui plan is the epitome of contemporary coastal living view home
120
24.2m | Width 14.4m | Area 323m² GROUND FLOOR FIRST FLOOR 323m 2
2 3 1 3 3
Length
THE details
121 THE materials
TWO-TONED KITCHEN Two-toned cabinets in Mink Shadow and Resene Half Rice Cake FLOORING European Oiled timber in Arctic CLADDING Timespec Vertical Shiplap Weatherboard in Dulux Half Titania STONE Island Stone Limestone in Omya

Lifestyle BUILD

122
123 Matangi 311m2 144 Motueka 273m2 Murdock 315m2 132 148 Seavill 320m2 152 Robinson 291m2 140 Waikato 270m2 Gardner 284m2 128 136 Ascot 340m2 156 Maxwell 242m2 124 Eshuis 351m2 160
124 Maxwell 242m 2 Length 27.9m | Width 16.3m | Area 242m²
125
A home that truly feels at one with nature and encourages people to connect with inviting spaces

Meet Clarissa & Darren

The Maxwell's wanted a home that could evolve with their family and lifestyle. A highly liveable home sums up the Maxwell plan, which can be easily extended as their family grows.

The Pavilion style home features open plan living, high-pitched ceilings and multiple access points to the outdoors, a must-have for a lifestyle home.

Dark brick is the material of choice for most of the exterior, with vertical shiplap cedar to the gabled ends of the house, entrance and covered areas to provide contrast. Inside, you’ll find a combination of cool whites and dark colours that complement the natural environment surrounding the Maxwell’s home.

126
242m 2

THE details

127
Length 27.9m | Width 16.3m | Area 242m² CLADDING
Vertical Shiplap Cedar in Lite Oak from JSC Timber
BRICKS
Austral Bricks La Paloma ‘Tenerife’ from The Brickery
FIREPLACE
Bosca 380 wood fire
4 1 2 2 view home
THE materials
KITCHEN
JOINERY
Prime Melamine Seafog in velvet finish/ contrast Melteca Char Blue naturale finish

Waikato

128
270m 2
Length 27.7m | Width 16.5m | Area 270m²
129

Meet BJ & Jess

When the owners of this beautiful new home in Tamahere first set out on their building journey, they knew one thing for sure: there were to be no compromises.

The home's exterior cladding is a true mix of old and new, with 'San Selmo' clay bricks complemented by Triclad board and batten painted striking black. The home is made complete with a black roof, black joinery and black garage door to add a touch of elegance. Inside, the owners wanted to carry the homely feel of the reclaimed-style brick through to the kitchen and living area to create a rustic vibe.

130 270m 2
Length 27.7m | Width 16.5m | Area 270m² FLOORING Polished concrete
THE details
FEATURE BRICKS
ROOFING Longrun in
Ebony
Blend of San Selmo range by The Brickery
Colorsteel
4 3 2 2
THE materials
CLADDING Triclad board and batten in black
view home
131

Motueka

132
273m 2
Length 25.7m | Width 16.5m | Area 273m²

Meet Dean & Emma

This barn-inspired home was designed with practicality in mind, and driven by a need for spaces for a family to live, laugh and play. The owners decided to knock down their 120sqm 1950s home on a family section in Moutere, near Nelson, and build their forever home in its place.

Relax and escape enjoying the stunning scenery, perfectly framed by large windows

The plan comprises two gable volumes – one long, one short – laid side by side. The smaller gable hosts the private master sanctuary with ensuite and walk-in wardrobe, plus a laundry, toilet and double garage. The larger gable contains the open-plan kitchen living and dining plus three bedrooms, separate lounge and family bathroom. Lots of storage and garaging was essential, as was taking advantage of an incredible view over the Moutere Estuary and Tasman Sea.

133
134 273m 2
135 Length 25.7m | Width 16.5m | Area 273m² THE details THE materials
TIMBER CLADDING Horizontal cedar shiplap JOINERY Vantage in Matt Gravel ROOFING Longrun in Colorsteel Windsor Grey
4 2 2 2.5
BRICKS Lanzarote by Austral Bricks from The Brickery view home
136 Gardner 284m 2 Length 19.4m | Width 19.8m | Area 284m²
137

Meet Gill & Steve

The owners of this stunning new home in Tauranga wanted to achieve a barn style home to celebrate their heritage and their love for converted barns - a popular choice in their original hometown in Essex.

Spread over two wings, this barn-inspired 283.7m2 home features four double bedrooms, two living spaces, a study nook and a double internal access garage.

The modern barn look is achieved through soaring cathedral style ceilings, open plan living spaces, an abundance of sliding doors and large windows to welcome the outdoors inside.

138
284m 2

Two separate wings define spaces with an abundance of windows to capture the stunning views

TIMBER CLADDING

BATHROOM TILES

view home 139 THE details
Length 19.4m | Width 19.8m | Area 284m² 2 4 2 2.5
THE materials
ROOFING Coloursteel 5 Rib Profile in Ebony Triclad Board & Batten painted with Timberkote Ebony Night Elf polish from Tile Space BRICKS Reclaimed bricks sourced via Waipa Bricklayers

Robinson

Meet The Robinsons

Our Robinson plan is the epitome of a modern farmhouse, and those looking for a premium lifestyle build will love the design features of this plan. The timeless design is defined by two wings, with open plan spaces and a seamless connection to the outdoors. An abundance of windows invites the outdoors in each day. The soft white interiors with subtle shades of greens create a calming effect throughout the home, enhancing the semi-rural lifestyle.

Each angle of the home provides a pleasing aesthetic. Adobo’s Vulcan timber cladding product features in the ‘Nero’ finish and complements the exquisite sunsets, bringing a warm glow across the home. Meanwhile, the darker wood brings a touch of drama.

Aluminium joinery framing accentuates the gable roof lines and frames the home beautifully.

"We loved all parts of our build journey, the team at Signature Homes Waikato made it a breeze for us"

view home

140
Length 28.2m | Width 20.1m | Area 291m² 291m 2
141
142 291m 2
143 THE details
Length 28.2m | Width 20.1m | Area 291m² CARPET Valenciana in Casa Bella TILES Lux Pietra Silver Polished 600 x 600 CLADDING Abodo Vulcan Shiplap Ebony
BRICKS Single clay bricks painted in Resene Half Black White 4 2
THE materials 2 2

Matangi

A standout entryway sets the scene for this beautiful farmhouse

144
311m 2
Length 28.1m | Width 19.4m | Area 311m²
145

Meet our Matangi plan

This stunning rural build in Waikato is reminiscent of a French farmhouse, striking the perfect balance between rustic and sophisticated. The twin gable ends provide shelter for a fabulous outdoor area that could be utilised all year round. Inside, the large kitchen island and scullery turn the functional kitchen space into the hub of the home. The open plan main living area is perfect for entertaining, and with a slightly separate media room, there's space for the kids to hang out without being too disconnected.

GARAGE WORKSHOP LAUNDRY STORE W/C BATHROOM KITCHEN DINING LIVING MEDIA LINEN/ STORE BED 3 BED 2 STUDY ENTRY ENSUITE WIR BED 1 OUTDOOR DINING SCULLERY STORE 146
311m 2 THE details Length 28.1m | Width 19.4m | Area 311m² 3 2 2 2 1 view home
147 THE materials
KITCHEN COUNTER Custom concrete benchtop ROOFING Asphalt shingle roof
FRONT DOOR Custom made
GARAGE DOOR Custom made from Dominator

Murdock

148
315m 2
Length 32.6m | Width 21.6m | Area 315m²

Create

Meet Melissa & Mark

Offering a contemporary take on country-style living, the Murdock stylishly combines elements of rural warmth with today’s modern musts.

A wide frontage creates a warm welcome and the family-friendly layout cleverly groups the kids’ bedrooms in a dedicated wing at one end, together with a bathroom, TV room and laundry. While the master bedroom with an indulgent walk-in wardrobe and lavish ensuite is at the opposite end of the home along with a separate study for extra privacy.

The home's exterior features a statement brick laid in a cobbling pattern to create a more dramatic effect. Combined with Vertical Truwood weatherboard on the entrance and outdoor living porticos to create contrast and complement the natural surroundings.

Inside the relaxed country feel is bought to life with a modern country kitchen, complete with shaker cabinets, a sundrenched window seat, barn doors, and Hardie Grove Lining on the entry, kitchen, dining and living area ceilings.

149
a statement lifestyle with this relaxed country home view home

THE materials

150
BATHROOM VANITIES Ravani wallhung vanity in American Walnut from Newtech ENTRANCE Floral wallpaper from Miss Lolo CLADDING Truwood vertical shiplap with natural stone coating BRICKS Single smooth painter brick laid in cobbling pattern in Resene Half Element by The Brickery
151 Length 32.6m | Width 21.6m | Area 315m²
2 2 2.5 4 1
THE details

Seavill

152
320m 2 Length 30.5m | Width 23m | Area 320m²
153

Meet Cris & Geoff

When the owners of this jaw-dropping home in the Bay of Plenty decided to move on from their terraced house in popular Mount Maunganui to embark on their building journey, they knew they wanted to make the most of the opportunity for extra space. Taking inspiration from the Seaview plan, the design was tweaked slightly to suit the family's needs while the interior and exterior takes on a completely different look and feel. Impressive vintage oak flooring carries through the kitchen, dining and living areas to create a seamless entertaining space. Huge sliding doors open to reveal an outdoor living area like no other - complete with gas fireplace and level-entry to provide uninhibited indoor/outdoor flow. A pool overlooking the large section and water views completes this family home.

320m 2 154
155 THE
details
FLOORING
"Signature Homes was absolutely fabulous. Everyone was polite, on time and incredible to work with"
CLADDING
Celcrete in Resene Half Rice Cake Forte Flooring in Vintage Oak
materials Length 30.5m | Width 23m | Area 320m² 4 2 3 2.5 TIMBER CLADDING Cedar in Resene Bushtrack view home
JOINERY Matt Black by APL
THE
156 340m 2 Ascot Length 26.3m | Width 26.9m | Area 340m²

THE materials

CLADDING Celcrete in Resene Sea Fog

TIMBER CLADDING Horizontal cedar weatherboards in Dryden Oil-Walnut

FLOORING Floorworks Vinyl Plank in Oregon (RW637)

FRONT DOOR Aluminium Plasma Smooth in Ebony with obscure sidelights

157

THE details

view home

Meet Jude & Yan

Our clients brief for the stunning Ascot plan was ‘large family living with a resort-like feel’, and that is exactly what they got.

The mixed cladding gives an opulent vibe while the lush, grand entranceway leads into bright and airy open-plan living spaces.

As you move through the home, you'll find the children's bedrooms and play area in the northern wing and the master bedroom with ensuite and adults lounge in the southern wing.

Featuring five bedrooms and three and a half bathrooms, there is ample space for all to enjoy. Large outdoor spaces allow for entertainment and play year round, and the swimming pool with tropical landscaping further cements the resort-style living.

158 340m 2
Length 26.3m | Width 26.9m | Area 340m² 5 3 2 3.5
159
160 Eshuis 351m 2 Length 42.2m | Width 19.24m | Area 351m²

Meet Wessel & Megan

What's not to love about this incredibly well-considered home in Waikato?

Property owners Wessel and Megan wanted a home for all seasons, with lots of sheltered outdoor spaces and sun-drenched bedrooms and living spaces.

The expansive decking area comes complete with bifold doors to fight off the prevailing winds creating a cosy outdoor space in the winter months.

Bedrooms are generous in size for their children to grow into, seeming like a castle now but offering the ideal space for their teenage years. There is so much space for this gorgeous family to enjoy; even the hallways are grand in their size.

Extensive decking provides ample space for entertainment and shelter from the elements all year round.

161
"We'd build with Signature Homes again in a heartbeat. We had lots of laughs along the way!"
162 351m 2

EXTERIOR BRICKS

TIMBER

ENTRY

DOUBLE

FIREPLACE

163 Length 42.2m | Width 19.24m | Area 351m²
4 1 2.5
THE details
CLADDING Triclad weatherboard stained in Dryden’s Slate Regency Montrose L850 DOOR Plasma Aluminium in Slate
2 view
Premier ‘Country’ rumbled bricks, painted in Resene Black White
THE materials
home

Building together FOR

To get h e r we c o ul d p l an t o v e r

To get h e r we c o ul d p l an

FOR A B ETTE R FU T U R E

A BETTER FUTURE

FOR A B ETTE R FU T U R E

m ak i ng us o ne o f Tr ee s Th a t

m ak i ng us o ne o f Tr ee

S i gn a t u r e H om e s ca r e s d e e p ly a b o u t our e n vi r onmen t , whe r e we a c ti v ely s e ek o ut o p p o r t u n it i e s t o e n ha n c e an d p r o t e c t t h e uniq ue b i o d i v e r s i t y of A o t ea r o a , New Z e a l a n d . O u r p a r t n e r sh i ps w ith Tr ee s T h a t C ou nt a n d S av e t h e K iw i e n a b l e s us t o do this.

S i gn a t u r e H om e s ca r e s d e e p ly a b o u t our e n vi r onmen t , whe r e we a c ti v ely s e ek o ut o p p o r t u n it i e s

C ou n t ’s l a r g e st c o nt r i bu t o r s

C ou n t ’s l a r g e st c o nt r

t o e n ha n c e an d p r o t e c t t h e uniq ue b i o d i v e r s i t y of A o t ea r o a , New Z e a l a n d . O u r p a r t n e r sh i ps w ith

Tr ee s T h a t C ou nt a n d S av e t h e K iw i e n a b l e s us t o do this.

Step 3: S av e t h e Ki w i.

we d o n a t e fu n ds t o hel p s a v e ou r n a t i o na l b i r d

Step 3: S av e t h e Ki w i. we d o n a t e fu n ds t o hel p s a v e ou r n a t i o na l b i r d

Step 1: Bu i l d y ou r

Step 1: Bu i l d y ou r

Step 2 :

Step 2 :

c o nst ru c tio n em i s si on s w i t h n a t i v e t r e e s

c o nst ru c tio n em i s si on s w i t h n a t i v e

t r e e s

Step 4:

em i s s i o n s f r om y ou r an ti c ip a t e d ov e r 5 0 y ea r s

Step 4: em i s s i o n s f r om y ou r an ti c ip a t e d

As a Sig na t u re Homes c ust o me r , yo u ’ l l be h elp in g t o pr o te c t o u r e n v i r on ment a nd s a ve o u r un iq u e bi o diversit y

As a Sig na t u re Homes yo u ’ l l be h elp in g t o pr e n v i r on ment a nd s un iq u e bi o diversit

Why Kiwi?

N a tive t r ees p l ay a n esse n tia l ro le i n r e d u c ing n et CO2e e m issi on s, stre n gthe nin g New Z ea l a n d's b i o d ive r sity a n d h e l p i ng com m u nities th r ive .

N a tive t r ees p l ay a n esse n tia l ro le i n r e d u c ing n et CO2e e m issi on s, stre n gthe nin g New Z ea l a n d's b i o d ive r sity a n d h e l p i ng com m u nities th r ive .

treesthatcount.co.nz

treesthatcount.co.nz

ov e r 5 0 y ea r s

Why Kiwi?

The K i w i i s a b i o l og i ca l odd i ty and f u l l of ch ar a c ter. Despite

The K i w i i s a b i o l og i ca l odd i ty and f u l l of ch ar a c ter. Despite

e a ch year by 2 % , me a ning i t f a ces ext i nct i on i n the next 5 0 years. For K i w i to thr i ve, w e al l need to work together.

e a ch year by 2 % , me a ning i t f a ces ext i nct i on i n the next 5 0 years. For K i w i to thr i ve, w e al l need to work together.

savethekiwi.nz

savethekiwi.nz

S T A R T FINIS H
T
S
A R T

NEW ZEALAND'S MOST

comprehensive GUARANTEES PROGRAMME

We've got you covered, right from day one

Home Completion Guarantee

Your payments to us are 100% secure, ensuring that you receive Your Home, Your Way, on budget, in accordance with the specification in your Building Agreement.

No Hidden Extras Guarantee

We believe the price we give you up front should be the same price you pay. We guarantee that we won’t sneak anything else into your price, meaning there are no nasty surprises when it comes to building your dream home.

Two Year Maintenance Guarantee

One of the best things about moving into a brand new home is the fact that you don’t have to fix up anything. You’ll receive a maintenance guarantee for two years, giving you more time to enjoy living in your home, rather than fixing it.

Guaranteed Completion Date

Ten Year Structural Guarantee

Your new home will stand the test of time.

When we tell you when you can move into your new home, we mean it – otherwise we pay! Knowing exactly which date you will be moving in makes it easier to organise the sale of your existing home, or the final date of your rental agreement as well as moving vehicles and the allimportant house warming.

Ten Year Weathertightness Guarantee

We have great faith in our builders and the products we use, so much so that we guarantee all our homes will be warm, dry and healthy to live in for years to come.

Total Price Guarantee

At Signature Homes, we guarantee that the price we give you when you sign your Building Agreement is the same price you will pay for your new home, excluding any authorised variations. No nasty budget blow-outs, no surprise costs and no scary extra fees.

Since 2007, Signature Homes has offered its clients the most extensive and meaningful residential building guarantees in New Zealand.
talk to your local team and experience the Signature Difference
We've been building fantastic homes to suit Kiwi conditions and lifestyles since 1983. The Signature Homes network now extends from Whangarei to Queenstown, and nearly everywhere in between. Northland 0800 082 882 Rodney & North Shore 0800 488 828 National Support Office 0800 744 628 Manukau & Botany 0800 102 109 Bay of Plenty & Tauranga 0800 102 105 Palmerston North & Manawatu 0800 707 310 Christchurch North 0800 744 466 Christchurch South 0800 844 488 Queenstown Lakes & Central Otago 0800 344 422 Nelson & Tasman 0800 244 422 Greater Wellington 0800 102 135 Taranaki 0800 102 104 Waikato 0800 082 888 Papakura & Franklin 0800 828 822 West & North-West Auckland 0800 020 600
signature.co.nz/teams

Turn static files into dynamic content formats.

Create a flipbook
Issuu converts static files into: digital portfolios, online yearbooks, online catalogs, digital photo albums and more. Sign up and create your flipbook.