Shuangjian Zhang architecture portfolio for UCL architectural computation

Page 1


From an early age, have been deeply passionate about design. vividly remember my childhood fascination with building models using materials like cardboard to construct my ideal structures. Through this creative exploration, came to realize that architecture is not just about cold steel and concrete; it is a powerful art form that embodies the thoughts and emotions of its designer.

A highlight of my academic experience was a sustainable building facade project in my junior year. My team and developed an adaptable facade system, designed through parametric modelling using Grasshopper, that automatically adjusted to weather conditions, enhancing indoor comfort and energy efficiency.

For my final project as an undergraduate, designed a bicycle-themed activity centre in Shanghai, inspired by local residents and cyclists. The design featured a sloped pathway that allowed cyclists to ride to the rooftop, offering scenic views and an interactive experience. The centre also included spaces for kayaking and areas for local villagers to sell goods, fostering community interaction and creating a multifunctional recreational hub.

These experiences have solidified my passion for architecture and its power to transform spaces and lives. As continue my journey, am eager to explore innovative and sustainable design solutions that enhance the way people interact with their environments.

Light and wind conditions

Annual Radiation Annual Sun Path East of China, located on the west coast of the Pacific Ocean.

Climate characteristics

Subtropical monsoon climate

There is sufficient sunshine throughout the year, and the solar radiation intensity of the south and east sides of the building is high, requiring the construction of a sun-shading facade.

Adaptive Facade Design

The project uses parametric calculation to design the outer surface of the building, to achieve the control of the amount of light and air intake, to achieve the energy-saving effect of the building. The project does this by changing the shape of the structure by calculating light and wind direction to create an adjustable mechanical structure.

Building facade design

Focus on structure

Sep 2023 - Dec 2023

Instructor - Giancarlo Di Marco

Group work

Contribution:Structure design, solid model production

According to the wind rose diagram and the architectural wind direction diagram, the site is dominated by northeast winds in spring and winter, with occasional west winds. Southeast and southwest winds prevail in summer and autumn.

Wind analysis
Shanghai
Location

shrinkage

Axonometric open

Axonometric shrinkage

Axonometric tape open

Axonometric tape shrinkage

Four rods around the axis of the rotating member needs to be connected to the rod load-bearing rod, can not be hollow, and by the thickness of the rod constraints contraction arc is limited.

It is possible to shrink the canopy but the components are too heavy and the folding trajectory is different from the GH model.

Simplified skeleton, by utilising the rigidity of the surface support material however, the volume of the intermediate components was not taken into account, resulting in a gap between the canopy and the skeleton.

The final version, lightweight and able to match the movement of the origami itself.

3. Inter level mechanical drive system

2. Mechanical Drive Shafts

The folding fan transmission system is not uniformly controlled by the motor, but by the inhabitants or building users themselves, giving sufficient freedom of adjustment.

The transmission of the origami model adopts the unified deployment of roof motors, and the opening and closing is controlled by solar radiation and other procedures, so that users do not need to worry about additional lighting problems.

We translated the traditional shophouses in Dongguan and came up with a general modular form, which was used as the main formal language for our design.

The area of the renovation is spread out along main street and the general direction of main street can be seen in the image.

The image shows the locations of the six areas we need to reconstruction.

The image shows how these six areas are connected to the main road.

The image shows the scene after the reconstruction of six areas.

R: Mr. Architect, you know. The main problem with the site is the lack of traffic, with only one main road.·

R: It's great to be able to rest more easily, but we also want to shop more easily.

A:Yes,Mr.Resident.So we replanned the traffic, equipping it with enough parking to contain the new traffic.

R: It's

Originally, this area was a tall building, which made the street very depressing. The

A: We also took this into account. But unlike the public

Market area

In this area, the original houses close to the railway were removed, and the low-rise shops were turned into a two-story commercial street. The first floor could also leave enough space and add vegetation to improve the environment.

Residential area

In this area, the original house in the middle was removed, the light and activity space were increased, and a multi-function house was built for residents to facilitate their travel.

Lake Sports Community Center

Sports community center design

Provide visitors and villagers with sports experience and leisure space

March 2024 July 2024

Instructor - Dong Chen, Teo Nacher

Individual work

The project is located in the suburbs of Shanghai, with a good environment. Based on the surrounding cities, it is also a good sports tourism area. The project mainly serves the sports people, as a rest station for cyclists, as an experience place for kayakers, and also meets the needs of villagers for gathering and selling. After completion, it can attract people who experience in the city, facilitate the passing of the movement, and provide additional income for the villagers.

Dianshan

Mechanical Watchtower

Contribution:helicopter

The building focuses on the propeller structure of the helicopter, combining the propeller structure with the existing watchtower structure to form a new structural form.Concrete is used as the wall material and steel structure is used as the support to ensure the stability of the

Composition of rotor system

Motion: Both sides of the propeller twist in the opposite direction to control the helicopter movement

Translated: According to the Angle generated by the rotation of the propeller on both sides of the evolution, the formation of the building with the Angle

Motion: The parts and propellers rotate with the central shaft, providing the helicopter with lifting force

Translated: According to the evolution of multi-layer circular parts, the formation of a multi-layer circular building

Motion: The rotation of the parallel rod drives the upper part to control the motion of the helicopter

Translated: According to the parallel evolution of the bar, the formation of a number of parallel planes of the building

Supporting fram and top building consitute the tower. Most of the tower is build for watching.The image below shows the basic types of watchtowers and some of the more famous towers. The type of the staircase,structure and the top building are extracted and preliminarily combined.

The two propeller rotation systems are crossconnected together to combine the steering system and interlocking system respectively to form the

[Top building]
[Structural Type]
[Synthetic Digram] Famous Tower
structure. Two four-story watchtowers are propped up and connected by corridors

Structure and space

support] The roof space is open and the two main structures are joined together, with a transparent lookout space at the very top.

The central part is the main support structure, and the steel structure is used to pull the lookout platformto ensure the stability of the lookout platform.

The two watchtowers are connected together to form the entire building, which can be viewed from every Angle, from the inside of the building to the outside, from the bottom to the top to give visitors a different experience.The orange and white styles blend in with the surroundings.Stand in the middle of the wilderness and experience the special experience of looking far away

Suzhou Old Street Transformation

Sep 2022 - Dec 2022

Instructor Adam Brillhart

Individual work

The project is mainly about the renovation of the old city, the site is close to the river and the houses are dense, dark and damp and lack of activity space. The renovation of houses in the old city of Suzhou included a platform on the second floor to connect the surrounding houses to provide greater public space and light areas.The design introduces the river into the community, which can beautify the environment and facilitate people's use.

A Poetic Endeavor Pedestrain Bridge

Bionic streamlined bridge

Transform the form of plant roots into Bridges

Mar 2023 Jun 2023

Instructor - Li-An Tsien

Group work

Contribution: Model printing, concept generation

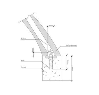
Creation Of Structure

Use the infrastructure to create a supportive shelf

Sep 2021 - Nov 2021

Instructor Sandro Rolla Individual work

This page is the first model, connected by an irregular square frame on a central support column. The column pulls each frame separately, and each frame is reinforced with the triangle shape.The joints are more securely connected by mortise and tenon joints.

On the next page is the second model, using triangles as the main element of the model to ensure the stability of the model under the shape.The support rods at each direction of the node are connected at the same position.

Turn static files into dynamic content formats.

Create a flipbook
Issuu converts static files into: digital portfolios, online yearbooks, online catalogs, digital photo albums and more. Sign up and create your flipbook.
Shuangjian Zhang architecture portfolio for UCL architectural computation by shuangjianzhang - Issuu