SHIYING GAO
(647) 784 - 2716
shiying.gao@alumni.utoronto.ca
06/2022 - Present
SHIYING GAO
PROFESSIONAL EXPERIENCES
Architect, OAA (Associate), Brook McIlroy | Toronto, Canada
Previously Intern Architect. Promoted to Associate in 2024. Registered with OAA in 2025.
• Consultant coordinator and construction contract administrator for an interior renovation project at Wilfrid Laurier University’s new Milton campus.
• Worked on construction document drawings and specifications on various new or renovation projects across Canada. Projects includes renovation of a 3-storey heritage building at the University of Toronto, a 2,300 m2 corporate office fit-up in Toronto, and 3-storey student residences for Fleming College.
• Participated in schematic design and design development of institutional, commercial, and residential projects. Roles include modelling, producing renderings, preparing and participating in client and stakeholder engagement meetings.
• Produced graphics used for project feature wall patterns, hoarding, award submission, and marketing. Coordinated professional photoshoot upon project completion.
• Led office BIM standards committee, produced standards guides and hosted standards workshops.
10/2019
- Present
05/2019 - 08/2019
Graphic Designer, World Council on City Data (WCCD) & Standarized Urban Metrics (SUM) | Toronto, Canada
• Visualize data, design marketing, communications, and publication materials for WCCD and SUM. Projects include Data-Driven Insight Reports for more than 40 municipal governments across the globe, and the annual publication WCCD City Data for the United Nations Sustainable Development Goals (2019 and 2020)
• Design WCCD and SUM websites in collaboration with the programmers. Projects include the main websites design for WCCD and SUM, WCCD Data Visualization Portal, and the WCCD Local Data Hub for Dubai and Riyadh.
Architectural Intern, DFA Design | Shanghai, China
• Participated in all phases of design in a variety of projects across the commercial, mix-use and cultural sectors
• Roles included researching site, creating analysis and concept diagrams, making physical models, rendering, assisting with the production of shop drawings, and preparing presentation materials
SKILLS
Archi Visual Office
Others
Revit, Rhino, Enscape, AutoCAD, Sketchup, V-Ray, Grasshopper, Model-Making Photoshop, Illustrator, InDesign, Lightroom
Microsoft Office, Bluebeam
Public Speaking and Presentation, Team Collaboration, Website Management
EDUCATION
University of Toronto Master of Architecture
09/2015 - 06/2019
09/2019 - 06/2022 2022 2022 2022 2021 2020 2019 2015
University of Toronto Honours Bachelor of Arts with High Distinction in Architectural Studies
AWARDS & DISTINCTIONS
Daniels Faculty Design Prize
Daniels Faculty Academic Honours Certificate
University of Toronto Fellowship
Winner of the UNI STRAYS Animal Shelter Competition
Top 50 in the Volume Zero Tiny Library Competition
Recipient of the University of Toronto Fellowship
Recipient of the President’s Scholarship of Excellence
Architect, OAA
English - fluent Mandarin - fluent



01
BIRGE-CARNEGIE LIBRARY HERITAGE BUILDING RENOVATION
Professional / Brook McIlroy
02
FLEMING COLLEGE HALIBURTON RESIDENCE
Professional / Brook McIlroy
03 MEVIC RENNOVATION
Professional / Brook McIlroy



04
CREATETO1113-1117 DUNDAS ST W
Professional / Brook McIlroy
05 URBAN STAGE
Academic
06
THE POST-INDUSTRIAL LIMINAL
Academic
BIRGE-CARNEGIE LIBRARY HERITAGE BUILDING RENOVATION
Professional Project / Brook McIlroy 2024 - Present (In Construction) / Toronto, ON, Canada
The renovation on the heritage building Birge-Carnegie Library, originally built in 1910, combines traditional library uses with classroom, collaboration spaces, meeting rooms and a variety of student, faculty and staff amenities. Additionally, the former archives area will be transformed into the office of the University President.
Key considerations in the new design includes full accessibility, a zero emissions energy & HVAC system, and the introduction of natural light throughout the building. Care and consideration have been made to preserve the heritage fabric, including trusses, tracery windows and intricate mill work which is being restored and will once again feature prominently in the redesign. New architectural elements including elevator, LED lighting and acoustic treatments are surgically inserted to avoid negatively affecting the building character.
Client Victoria University in the University of Toronto
Role
RFP response assistance, construction documents production, consultant coordination, marketing material production
Software
Revit, Enscape
Rendering Credit Winter Studio




When working on a heritage building, effective waterproofing is essential to protect the structure’s integrity, its historical value, and the health of its occupants. Working alongside the building science consultants, I assisted the team in developing specialised envelope details next to the new skylight and the underpinning structure.
EREMOVEANDREINSTALL XISTINGSLATEROOFINGTILES
SADDLEFLASHING:MIN600mm , >=3SLATECOURSES


I was in charge of developing the feature wall patterns in reference to Victoria University’s Crest and its four symbols: the Lamp, The Sphinx, The Owl and the Phoenix. One additional pattern, which embodies the abstraction of feather (the Owl and the Phenix) and flame (the Lamp and the Phenix), was developed to bridge the four symbols. The pattern was tested in model and will be produced by CNC.



02
FLEMING COLLEGE HALIBURTON RESIDENCE
Professional Project / Brook McIlroy 2022 - 2025 (Construction Completed) / Haliburton, ON, Canada
The project consists of multiple 3-storey student residences for Fleming College’s Haliburton campus that provide programs in the visual arts. During the early design phase, housing prototype had been proposed that allowed building in phases and would be complementary and cohesive with the pastoral setting of the campus. In Phase 1, two residences were constructed.
The building was designed with a regional modernism that acknowledges the local vernacular context. Materials and building scale reflect local construction traditions and a rural country aesthetic.
Client Fleming College
Role
Schematic design and modelling, construction documents production, construction administration assistance
Software
Revit, Enscape
Credit




The building envelope is designed for energy efficiency and to respond to the local vernacular with the cladding selection. The cladding is durable, eco-conscious, and requires minimal maintenance.
MEVIC RENNOVATION
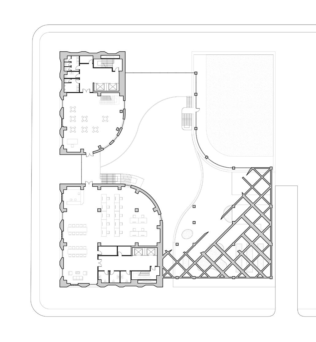
Professional Project / Brook McIlroy 2023 - 2024 (Construction Completed) / Milton, ON, Canada
The project transforms the ground floor of a functioning 3-storey office into the first educational facility for Wilfrid Laurier University’s new Milton campus. The project includes classrooms, computer labs, staff and student lounges, offices and storage. To maintain cost-effectiveness, the design retained much of the existing floor layout, incorporating targeted upgrades to sound attenuation, HVAC systems, lighting, and aesthetics to meet program requirements and align with the University’s branding. Expansive open space is provided that strikes a balance between public and private study areas, while the study nooks are custom designed semi-enclosed spaces for student collaboration: a private moment in the open public area.
Client Wilfrid Laurier University
Role
Construction administration, consultant coordination, construction documents production, professional photoshoot coordination
Software Revit, Enscape
Photo Credit
David Whittaker






The custom millwork serving as “Study Nook” is a highlight of the renovation and the mostly-used study spaces based on client feedback. I was in charge of designing this piece from early concept design to preparing construction drawings and material selections.

38mm
2X4 PLYWOOD COLLAR TIE, FINISHED WITH PLASTIC LAMINATE
2
13mm GYPSUM BOARD, TYP.
2 X 4 LUMBER
2
2
2
CUTOUT FOR POWER CONNECTIONS. 19mm PLYWOOD. FINISH ALL EXTERIOR EXPOSED FACES AND EDGES UNLESS OTHERWISE INDICATED. PLAM VENEER
TO MATCH.
38mm X 178mm FINISH RIDGE BOARD IN DOUGLAS FIR, STAINED AND FINISHED ON ALL EXPOSING SIDES. STAIN COLOR TO LATER SELECTION BY CONSULTANT.
38mm X 191mm PLYWOOD, FINISHED WITH PLASTIC LAMINATE ON ALL EXPOSING SIDES UNLESS OTHERWISE INDICATED. 13mm GYPSUM BOARD, TYP. PLASTIC LAMINATE FINISH ON 13mm PLYWOOD,
STAIN COLOR TO LATER SELECTION BY CONSULTANT.
04 CREATETO1113-1117 DUNDAS ST W
Professional Project / Brook McIlroy 2022 - 2024 (Concept Development / ZBA Completed) / Toronto, ON, Canada
The project proposes a 10-storey mass timber building to address the demand for housing among diverse building typologies. The floorplans accommodate approximately 96 units on a compact site, featuring an outdoor amenity space and a garden area for residents. Collaborating with the city, the project places environmental responsibility at its core. The design proposes a mass timber building construction with geothermal power for heating and cooling as well as green roofs and solar panels on multiple roofs, prioritizing energy, building efficiency, and sustainable climate control solutions.
Client CreateTO
Role
Design and modelling, ZBA document production
Software
Revit, Enscape
Rendering Credit Orlando Garcia




























































URBAN STAGE
Group Academic Project with Lingxin Zhang
January - April 2021 / Harlem, NYC, US
Harlem is a place for change with its unique historical root: the culture of activism. From the New Negro movement and the Harlem Renaissance in the 1920s to the recent protest demanding justice for George Floyd, the street of Harlem is one of the best witnesses of the activist history of Harlem; meanwhile, the street is the battlefield with certain violence and repression, sometimes with the possible cost of life.
As a center for activism, the project seeks to create an eclectic but not compromised “new street” where the bold and revolutionary ideas for social changes can take place, and at the same time has protective qualities and functions as the activists’ home and sanctuary. By defining the street as an open stage where voices are heard and thoughts are communicated, the project aims to extend the active street life into the building’s interior. It advocates a two-way interaction and the constant shift of position between the “audiences” and the “performers” to reach lasting participation in activism among people.
The project is also designed with net-zero goals in mind like employing mass timber constructions, and passive design strategies including considerations for site orientation, building envelope, natural ventilation.













The project responds to Harlem’s cultural heritage. Drawing inspiration from the reallife brownstone buildings, the appearance of the project is to create a contemporary interpretation of Harlem’s cultural memory and to preserve the cultural identity which is in a crisis right now.
The execution of the building appearance is also an environmentally responsible one with a high R-value building envelope and mass timber construction so that the project can stand the test of time and keep serving the local activists and their activities.
FLOOR & ROOF PLATES WAFFLE SYSTEM ATRIUM COVERING




THE POST-INDUSTRIAL LIMINAL
Individual Academic Project January - April 2022 / Toronto, ON, Canada
When an item once needed becomes ‘trash’, it is ‘disappeared’ to marginal sites hidden from view –hauled outside the city, even shipped offshore. Would making our waste streams more visible affect the way we consume and discard? Proposing that closer proximity between waste and humans can shape a more equitable and environmentally responsible future, the current waste-transfer station at Toronto’s Waterfront is reimagined as a hybridized site, with open recycling facilities, learning labs, upcycling operations, and the extension of an urban park. The project asks: can localizing the recycling process, diverting ‘trash,’ and transforming it into usable items be a source of community?

(ReservationRequired+ Observational)
(ReservationRequired/ Observational)





