

SHAYLA JORGENSON
ARCHITECTURE AND INTERIOR DESIGN PORTFOLIO

THE OXBOW
Research Center
Fall 2024 I 12 Weeks
Lincoln, Nebraska
Collaboration I T. Zelenka + R. Gunter
Tian Li, P.h.D


CULTIVATE
Adaptive Reuse Spring 2025 I 12 Weeks
Omaha, Nebraska
Collaboration I T. Nguyen + G. Teachworth
J. Reding + G. Trerotola


THE COLLECTIVE
Nature Integration in the Urban Interior Fall 2022 I 10 Weeks
Austin, Texas Kendra Ordia
EXPOSED
Innovative Community Spring Wayne, Steven


Community Center Spring 2023 I 12 Weeks
2024 I 8 Weeks
Rome, Italy
Collaboration I A. Miller
B. Bruscoli + S. Schlimgen
UNDERGRADUATE WORK: The Collective Radicata Una Serra Naturale
GRADUATE WORK: The Oxbow Exposed Cultivate

SHAYLA JORGENSON
402.431.0990
shaylajorgenson13@gmail.com
EXPERIENCE
DLR Group I Design Intern Denver, CO I Summer 2025
• Collaborate with project team to contribute to design development and with producing construction documentation
• Assist in the development of architectural drawings and renderings
CoCreate Design Studio and Altus Architectural Studios I Design Intern Omaha, NE I Summer 2024 - 2025
• Collaborate with project team to contribute to design development and with producing construction documentation
• Furniture, Fixtures, and Equipment selection
• Assist in the development of architectural drawings and renderings
• Participate in site visits to gather relevant project information
HDR I Interior Design Intern Omaha, NE I 2022-2023
• Collaborate with project teams to contribute to design development and with producing construction documentation
• Material and finish research
• Furniture, Fixtures, and Equipment selection
• Participate in site visits to gather relevant project information
PORTFOLIO


https://www.linkedin.com/in/shayla-jorgenson/ Issuu
https://issuu.com/shaylajorgenson
• Adobe Suite
• AutoCAD
• Bluebeam
• Microsoft Office SKILLS
• Physical Models
• Photography
• Revit
• Rhino
EDUCATION
UNIVERSITY OF NEBRASKA - LINCOLN Lincoln, NE I 2018 - 2023
Cum Laude I GPA: 3.8
Bachelor of Science in Design I Interior Design Minor in Education
Study Abroad: Academic Initiatives Abroad in Rome, Italy I Spring 2023
UNIVERSITY OF NEBRASKA - LINCOLN Lincoln, NE I 2024 - 2026
Master of Architecture
ACADEMIC ACHIEVEMENTS
• Regents Scholar I 2018-2023
• Dean’s List I 2023
• Norman Ochsner Scholarship I 2024
• W.Cecil Steward Arch. Fellowship I 2025
• HDR G.Spring Memorial Scholarship I 2026
INVOLVEMENT
ACADEMIC ASSISTANT - UNL
Graduate Learning Assistant I Fall 2023 - 2025
Graduate Teaching Assistant I Spring 2025 - 2026
• Provide students with learning opportunities
• Communicate effectively with students
• Assist supervisor with grading
• Assignment preparation and review
THE GALLERY
Co-Founder I 2023
Vice President I 2024-2026
• Create and publish a biannual student project book, celebrating college acheivements
• Shaping the identity of the organization, ensuring it is both impactful and cohesive.
AIAS
UNL Chapter I 2024 - 2026
ASID/IIDA
UNL Chapter I 2022 - 2026

THE OXBOW
RESEARCH CENTER
RESEARCH CENTER
FALL 2024 I 12 WEEKS
LINCOLN, NEBRASKA
COLLABORATION
T. ZELENKA + R. GUNTER
TIAN LI, PH.D


The Oxbow Research Center is a 110,000 square foot public research and education facility in Lincoln, Nebraska. As the culmination of a campus master plan, the center sits along Salt Creek, drawing inspiration from its geological and historical significance, once a natural meat preservative in the capital of the beef state. Its location near ongoing food studies at Nebraska’s Innovation Campus makes it an ideal site for a hydraulic research lab, reinforcing the link between land, water, and science. The building directly connects researchers to the landscape while welcoming the public into a flexible learning environment that supports exhibitions, workshops, and informal gathering. Within city limits, the center acts as a civic hub for continued education, reflection, and environmental awareness. Architecturally, the design embraces the fluid forms of oxbows through seamless spatial transitions, sustainable materials, and open circulation. Expansive glazing connects interior activity to the surrounding prairie, while adaptable interiors support both formal research and public engagement. The Oxbow Research Center unites academic exploration with community access, fostering a deeper understanding of Nebraska’s ecosystems and promoting long-term environmental stewardship.

SOUTH FACADE CAMPUS VIEW

EIDETIC IMAGE
CONCEPTS I MASTER PLAN
This master site plan illustrates how an economy can thrive when it is thoughtfully activated. By creating purposeful destinations, the design draws people into previously underutilized spaces and fosters a welcoming sense of community. The plan invites individuals of all backgrounds and industries to come together to engage with nature, through recreational use of the paths or through the study of hydrology, encouraging both social connection and environmental awareness.

CROSS SECTION OF SALT MARSH




NET ZERO FACTORS
ENERGY I MATERIAL + FORM
The Oxbow Research Center fosters education, research, and community engagement while strengthening connections to the earth. The ground floor includes a café, study spaces, laboratories, and lecture halls, with classrooms and a library above. Shaped by site conditions, the building responds to sun and wind patterns to maximize natural energy use. Sustainable strategie, such as passive solar fins, a rooftop biosolar system, a wind turbine façade, a green roof, and solar control glass, support a net-zero energy goal and occupant comfort, while on-site bioswales contribute to sustainable water management.

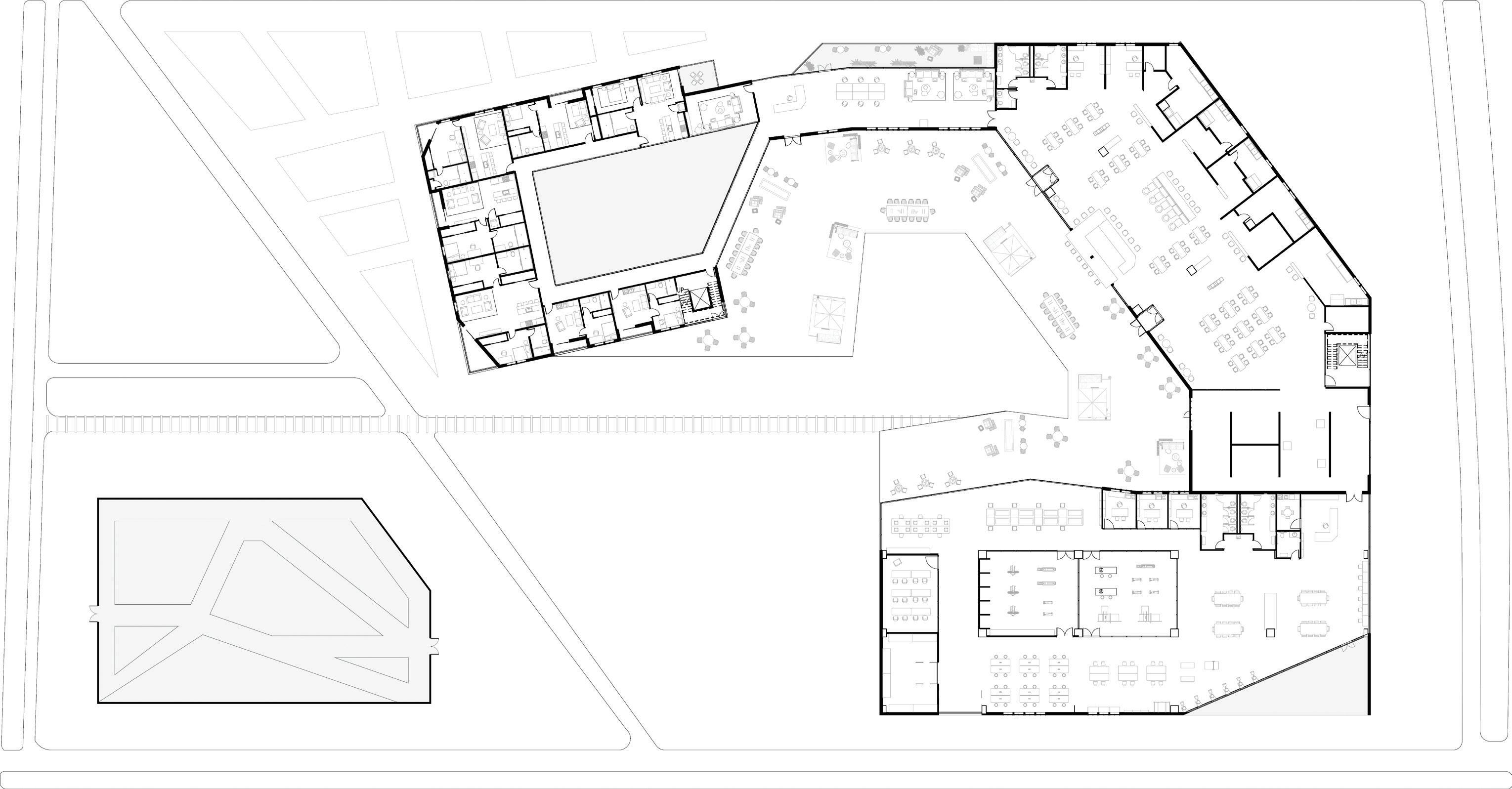
SECOND FLOOR PLAN

CULTIVATE
ADAPTIVE REUSE
SPRING 2025 I 12 WEEKS
OMAHA, NEBRASKA
COLLABORATION
G.TEACHWORTH + T.NGUYEN
JEREMY REDING + GUY TREROTOLA


Cultivate is is a cultural and community-centered architectural space in Omaha, Nebraska, conceived as an adaptive reuse of the existing Mutual of Omaha building. Designed to celebrate and preserve global traditions in a world often divided by conflict, the project transforms the existing structure into a living collage, drawing inspiration from the layering of images, materials, and meanings found across diverse cultures. Situated as a place of convergence, the building weaves together global identities into a collective experience that fosters understanding and exchange. The project welcomes the public into flexible spaces that support gathering, performance, education, and informal interaction, allowing culture to be lived rather than displayed. Within its broader context, the building functions as a civic anchor, promoting cultural continuity and dialogue across generations. Architecturally, the design embraces layered spatial organization, textured materials, and adaptive forms that reflect the richness of cultural overlap. Transparent thresholds and interconnected interiors encourage movement, visibility, and participation. More than a singular structure, the project acts as an evolving tapestry of global identity, demonstrating architecture’s capacity to cultivate, celebrate, and sustain culture into the future.

SOUTH FACADE SUBURBAN VIEW


CONFLICT I CULTURE
Cultivate draws inspiration from the concept of Conflict Kitchen in Pittsburgh, PA, inviting people to share the beauty of their culture, especially in times of conflict. Although there are many differences in the world, that separation can also help us coexist peacefully. The design translates this concept into a physical space where gathering, storytelling, and communal interaction are central, encouraging meaningful dialogue through architecture as much as through programming.



CONCEPTS I INTERIOR
These conceptual sketches explore how the building’s volumes, circulation, and rooftop terraces can be reinterpreted to support cultural gathering, storytelling, and community interaction. Pathways and visual connections, shown with directional flows, guide visitors through layered experiences while integrating green spaces that promote reflection and social engagement. The floor plan translates these ideas into a cohesive layout, balancing interior flexibility with exterior public gathering areas. Together, these strategies reinforce the project’s mission: to transform an existing structure into a dynamic cultural hub where architecture actively cultivates, celebrates, and sustains global traditions.

SECOND FLOOR PLAN

GATHER

SAVOR

DIGEST



DESIGN I APPLICATION
The Cultivate space is designed to welcome people to gather, savor, and digest. Visitors are encouraged to connect with one another while participating in the harvest, cultivating both relationships and fresh produce. They can savor the experience by exploring the preparation of the food and engaging with the products for sale. Finally, the community is invited to digest these experiences by enjoying the harvest and learning about the origins of the ingredients and the farming practices that produced them.


THE COLLECTIVE
URBAN INTERIOR
NATURE INTEGRATION IN THE URBAN INTERIOR
FALL 2022 I 10 WEEKS
AUSTIN, TEXAS
KENDRA ORDIA



The Collective aims to foster experiences within the urban interior that increase awareness, knowledge, and create meaningful connections to nature for underrepresented youth and young adults, with a focus on food security and healthy eating. This biophilic design offers a space where students can grow food, develop recipes, and share their cultural heritage with the Houston community. Students also have the opportunity to sell their creations to both the professional community connected to the space and the public through an indoor-outdoor café.



HOUSTON COMMUNITY CENTER ENTRANCE



CAFE SECTION PERSPECTIVE




INTERIOR I MATERIALS
The interior of The Collective is a warm space that plays off of its surrounding nature. With many natural materials and opportunities to interact with nature through the interior and exterior. The Collective also features wallpaper from local artists with inspirational art of Houston itself. With the site being directly across from a school it gives students the chance to share, learn, and connect with their community.
KITCHEN CLASSROOM
PATIO
LOUNGE SPACE


EXPOSED
INNOVATIVE MULTI-USE COMMUNITY CENTER
FALL 2024 I 8 WEEKS
WAYNE, NEBRASKA
STEVEN HARDY







Exposed is a mixed-use space designed to foster community engagement in Wayne, Nebraska, offering a place for people to connect, relax in their own space, and showcase artistic creations. It invites workers, students, and seniors to participate through entrepreneurship, artisan features, and educational classes. The space is not only a hub for creativity but also a platform for personal and professional growth. Exposed inspires a diverse range of users to create and collaborate like never before, providing a vibrant new environment that reflects the historic fairgrounds on which it stands. By merging the past and present, it cultivates a sense of belonging and shared purpose for all members of the community.












BLOCKING DIAGRAM














































































collaboration and innovation, it provides a supportive environment for the community to connect and thrive.


COWORKING SPACE
INNOVATION STUDIOS

KEY CONCEPTS















































RADICATA UNA SERRA NATURALE
COMMUNITY CENTER
SPRING 2023 I 12 WEEKS
ROME, ITALY
COLLABORATION I ABBY MILLER
BEATRICE BRUSCOLI AND SCOTT SCHILMGEN


The Radicata Una Serra Naturale has the main intention of revitalizing to create a community space where people have the opportunity to gather every day rather than once a week. This project will add color, light, and life to the area creating a welcoming and vibrant space. It will also continue to introduce the topic of an aquaponics system to Rome but in a more public and commercial way. This includes a food waste partnership with a local shelter to give back to the community that has made this possible. In order to celebrate the future it is important to recognize the past so the gallery space will represent the flora and fauna around the river to bring back its history. Functionally this area will bring both a night and day life with many play aspects through water for families celebrated with color, light, and culture.

RADICATA GREENHOUSE ENTRANCE

Radicata Una Serra Naturale is a site that incorporates multiple buildings, offering an opportunity for a more unified design. Below is an overall blocking plan that illustrates how the spaces can function together, accompanied by a perspective rendering of the envisioned layout. Ultimately, this space provides the community with a place to gather and connect with the natural environment.




RADICATA GREENHOUSE
RADICATA HISTORIC MUSEUM


RADICATA RESTAURANT


2. POLYCARBONATE
3. GRAVEL

8. RECYCLED GLASS
1. BLUE PENNY TILE
4. WOOD STRUCTURE 5. STEEL
CHESNUT WOOD
CONCRETE
