Shavonne Wu | Waterloo Architecture Winter 2025

Page 1


“Beyond bricks and mortar, architecture is a voyage of exploration”

Hello, I’m Shavonne!

I am from Toronto and is currently in my third year of studies at the University of Waterloo of Architecture in Cambridge, Canada. I am seeking a 4 month work placement from May 2025 to August 2025.

I believe that architecture is a series of possible answers, continuously solving problems through a multifaceted approach that encompasses various aspects of design, engineering, and creative thinking. The problems which I lie interest in are community connection and cultural impact.

Working with your team, I hope to further my education with your team and contribute to the success of your firm.

Summary of Qualifications

• Proficiency across various architectural softwares, Adobe and Microsoft Suites

• Strong sociable skill and positive personality for workplace collaboration

• Strong communication skill helps to overcome diversity and build trust in teamwork

• Strong ability to manage and allocate time efficiently that helps to accelerate length of work

• Eager to work under pressure and capable to cope with problems and difficult task

• Development of strong conceptualization skills through a combination of architectural studies and work experience that involved creating drawings and models

Experience

DIALOG, Architecture Student, 2024 SEP-DEC TORONTO, CANADA

• Played a key role in competition submissions, including Rethink the Future, AZ Awards, and Grands Prix Awards, by producing detailed plans, elevations, and presentation materials.

• Contributed to an affordable housing proposal by creating massing studies, site plans, axonometric drawings, and modular pattern analyses.

• Researched GO Transit stations and transit-oriented developments, identifying investment and development opportunities.

PlusClover, Architectural Intern, 2024 JAN-APRIL CENTRAL, HONG KONG

• Conducted research for the Headquarter office of Consumer Council and created graphic presentations to support architectural projects and proposals for HK Housing Authority.

• Performed site visits and engaged with clients to gather requirements and present design ideas.

• Produced detailed CAD drawings, enhanced plans and sections using Photoshop and generated high-quality renders and diagrams to illustrate design concepts effectively

Atelier Pacific Ltd, Summer Intern, 2023 JUN-AUG NORTH POINT, HONG KONG

• Worked on various projects like HK LV headquarter, SKIES 11 HK Joggy Club, Ferragamo renovation, etc.

• Conducting research for upcoming projects, getting the team ready for future processes, and gaining a deeper understanding of the site and its surroundings

• Create mood board to set and present overall ascetic and vibe of projects.

Education

University of Waterloo, School of Architecture, 2022-present CAMBRIDGE, CANADA

• Honus Bachelor of Architectural Studies Candidate (B.A.S. Hons), co-op

Achievements

President’s School/Distinction Scholarship, 2023

• Award to students with average of 95% or higher in high school

Hong Kong Alumni Assoc Ent Awd, 2023

• Award to student with outstanding academic achievement and good character through involvement in community or high school extracurricular activities

President’s Internation Experience Award, 2024

Skills

Rhino 7

Enscape

VRay

AuotoCad

SketchUp

Revit

Photoshop

Illustrator

InDesign

Laser Cutting CNC

3D Printing

Microsoft Office

Extra Curriculum

Bridge, Team Member 2022-present

Map Mentorship, Mentor 2023-present

Languages

Cantonese

English

Mandarin

Korean

13 May, 2024

plusClover Limited

13/F, Fung Lok Commercial Building, 163 Wing Lok Street, Sheung Wan, Hong Kong

To Whom it May Concern,

I confirm that WU, Zhuo Ying Shavonne was employed as Architectural Internship with plusClover from 8 January, 2024 to 30 April, 2024.

Her position of Architectural Internship carried responsibilities such as schematic design using 3D modelling, diagramming and CAD drawings.

Please do not hesitate to contact me should you have further questions.

Sincerely,

February 13, 2025

Farah Al Amin falamin@dialogdesign.ca

Reference Letter

To Whom It May Concern,

I am writing to recommend Shavonne Wu for future roles in the field of architecture. During her time at DIALOG, Shavonne demonstrated strong talent, skill, and dedication to her work.

Shavonne took ownership of her tasks and consistently delivered high -quality results. She showed creativity and proficiency in various areas, including conducting research, creating architectural diagrams, producing high-quality graphics for multiple projects, and working on design and 3D modeling tasks using Rhino.

She quickly became a valued member of our team, collaborating effectively with colleagues and communicating well. Her positive attitude made her a pleasure to work with.

Shavonne was a great intern, and I am confident she will continue to grow in her career. I highly recommend her for future opportunities and would be happy to provide further information if needed.

01 RETURN

Hospice

/Team Work/ Nara Kang/

Location

Waterfront Pathway, Kingston, ON, Canada

Media

Rhino, AI, PS, Enscape

Description

Return focused on helping individuals reconnect with cherished aspects of their lives as they approach their final days and offering individuals a choice to choose how they wanted to live. Recognizing that everyone copes with the end of life differently, the design emphasizes liberty and dignity, offering diverse spaces to support personal needs. Scenic views of Lake Ontario, tranquil courtyards, and carefully designed lighting provide comfort for those seeking connection with nature.

Circular Circulation
Green Spaces View
Public vs Private
Axis based Parti
Private Area, West Elevation - Concrete Facade

Roof Structure

Interior Walls And Furnitures

Green
Exterior Walls
Chapel
Gathering Garden
Entrance Lobby

treated water used for plant watering, cleaning and flushing system

through the gutter and downspouts to the rainwater storage tank

going through treatment

energy converted to electricity solar panels transferring energy to machinery

electricity used for lighting, HVAC system,and other building operations

Filtered grey water heater then into ground

geothermal looping through the building to either distribute heat from the loop or absorb heat to the loop

Horizontal Loop
Activity Room Lounge

Parts of the Umbrella as Inspiration

Transparency

Protection

Segmentation

Screening

Operability

02 THE PROTECTED

The Chinese Oil Paper Umbrella Archive 2024

/Individual Work/

Location

170 Spadina Ave, Toronto, ON M5T 2C2, Canada

Media

Rhino, AI, PS, Enscape

Description

The Protected meant to archive, display and protected the lost object- Chinese Paper Umbrella. It is inspired by the different parts of the umbrella and translate into key words, transparency, protection, segmentation, screening, and operablilty. The project provide different types of protection based on the program of the space. The exhibition areas would be dark and the other program would be more open. The building overall is made of wood and translucent glass to maintain privacy while keeping the outside curious as to what happens inside the building.

Wind Diagram Solar Diagram
Long Section

Operability

Protection

Transparency

Screening

Segmentation

Transparency

Lighting Diagram
Short Section
Third Floor Exhibition

Connectivity To The City

Split Based On Program

Create Inviting and Welcoming Corners

Create Difference In Height And Connectivity Between Buildings

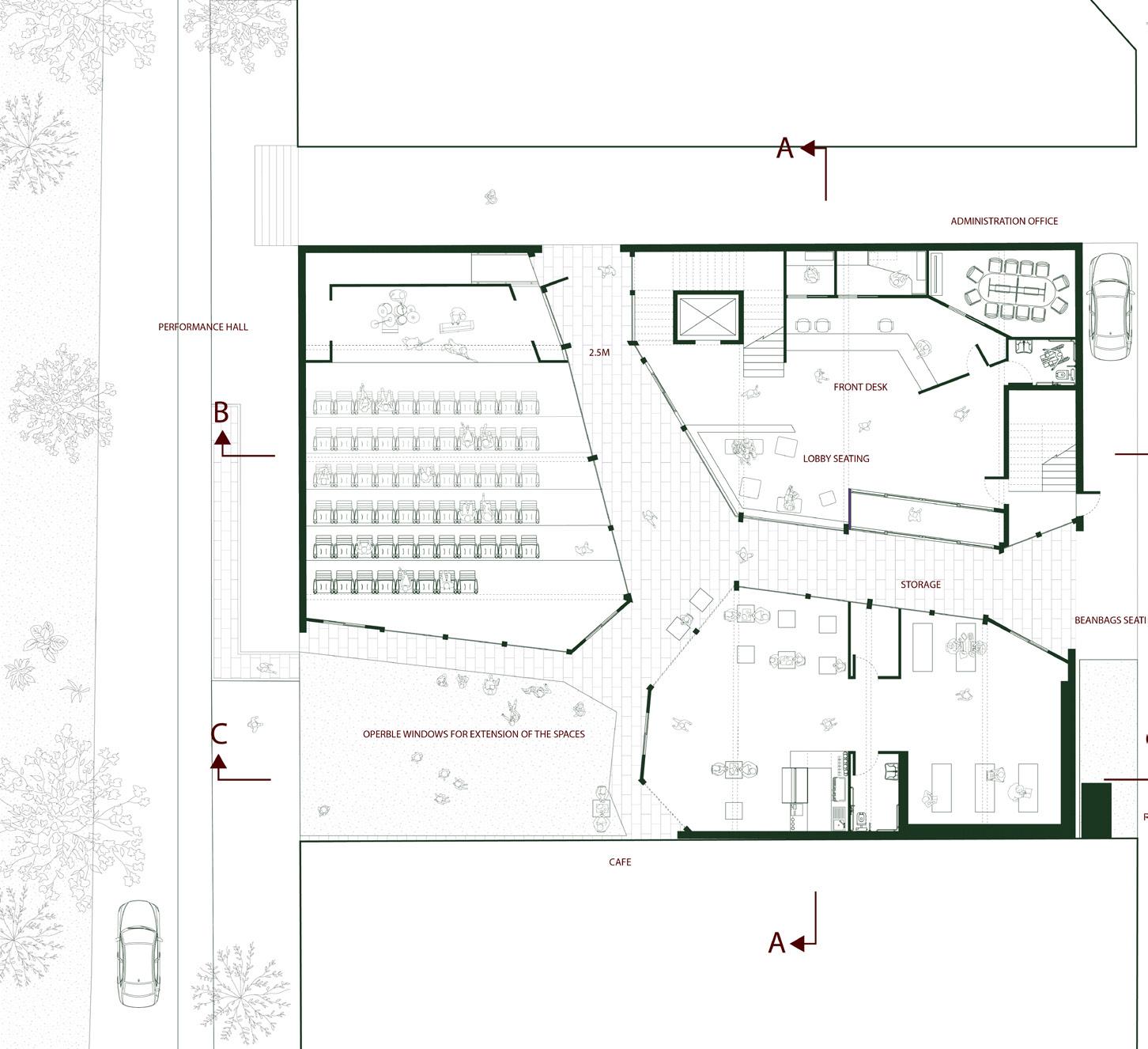
03 THE BRIDGE LIBRARY

The Welcoming Box

/Individual Work/

Location

39 Davies Ave, Toronto, ON M4M 2A9, Canada

Media

Rhino, AI, PS, Enscape

Description

The Bridge Library is designed to be a shared community space for the neighborhood. It mimics a box being cut up with paths going through the building, connecting the city and providing paths for entry from different directions. Brick is used as the main material on the exterior along with wood and glass on “cut” faces of the building to create a solid vs transparent effect. The library provides a cafe close to the park and a flexible performance hall at the opposite end to hold various events. The library over all offers a comfortable and open space for the community to access.

3rd floor of library looking out to the park
Exterior view of Library facing the park

Movement Of Water As Inspiration

04 LIKE WATER

Steel Competition

/Group Work/ Lillian He/

Location

Saint-Laurent river in Quebec City, Quebec, Canada

Media

Rhino, AI, PS, Enscape

Description

With its grand sweeping motions and fluctuations in space, the amphitheatre integrates into the surrounding hillside while mimicking the fluid waves of the river. There are five ribbons that weave around each other to form the canopy of the amphitheatre. Each canopy includes a bended steel plate that is supported structurally by three steel girders and several beams running horizontally and diagonally between them. Galvanized steel is used due to its high durability and protective coating. The galvanization of the steel results in a matte grey colour finish. The seats of the amphitheatre formed using concrete. They descend gradually into the ground while flowing in cohesion with the canopy.

Exploded Axo

The inspiration of the mesh came from the shadows of the water. Mesh is used to recreate the feeling of being under water by creating shadows

The canopy is inspired by also the waves but in the y-axis The ups and downs of the waves is applied and weaved together

Cable Rod Between Flange
Architectural
Steel Canopy
Horizontal
Wide Flange

The seating is inspire by the waves hitting on the beach

The flowiness wave is applied on the seating to create the gradient of waves

The diverse movements of water are incorporated and reflected in various parts of the stadium, creating a harmonious response to its surroundings. It’s as if the stadium seamlessly blends into the ocean. The dynamic, wave-like arrangement of the seating offers the audience multiple perspectives and unique experiences of the performances.

05 OBSERVATION RESTORATION

Landscape Design

/Individual Work/

Location

Riverside Dam, Cambridge, Ontario

Media

Rhino, Enscape, AI, PS, ArcGIS

Description

This project aims to restore the poor water quality in the Grand River. The project addresses pollution from agricultural runoff, industrialization, and focuses on residential and storm water pipes. Storm water pipes release water into the river without any filtration, and the buildup in the pipes, combined with the overflow of sanctuary water, negatively impacts water quality. By harnessing natural processes, this project filters and purifies water through mechanical filtration, plant filtration, and settlement areas. The system is designed to provide different experiences, allowing residents to witness and observe the cleaning process drinking water

Site Plan - Negative Contribution To Water Quality Motions

reduce turbidity by 60-70% and decrease bacterial loads by up to 99%

reduces turbidity by an additional 30-40% and decreases hydrocarbons and heavy metals by 20-30%

XYLEM WOOD LOG FILTER

logs filter out larger particles and bacteria their porous xylem structure, reducing and microbial loads

FINE GRAVEL FILTER

Fine gravel traps sediments and particulate matter while adsorbing some hydrocarbons and heavy metals, enhancing water clarity

lower nitrogen levels by 50-70% and phosphorus levels by 40-60%, with a slight pH decrease to around 6.0-7.0 due to microbial activity

further reduce nitrogen by 30-50% and phosphorus by 20-40%, with water pH stabilizing around 6.0-6.8 due to root activity

SWALE FILTER

slow water flow, allowing sediments to settle and plants to absorb nutrients, reducing nitrogen and phosphorus levels.

EMERGENT PLANT

Emergent plants absorb nutrients and trap sediments with their dense root systems, further improving water quality and clarity. END OF SYSTEM

Detailed Section - Storm Water Outlet Filtration System

Water Plants

myriophyllum spicatum l.

elodea

sagittaria latifolia

ceratophyllum muricatum

typha latifolia

acer rubrum

bicolor

salix nigra

Water Plants

alisma subcordatum

alisma subcordatum

Chemical Filtration

Using submerged, emergent, and floating plants to filter out excess nutrients like nitrogen and phosphorus, traps sediments, and provide habitat for microorganisms that aids in pollutant breakdown

Storm Water Outlet Treatment

Using a step by step system, consisting of xylem wood log filter, fine gravels, swales, and emergent plants to purify the water before entering the river, reducing the pollution

Chemical Filtration

Using submerged, emergent, and floating filter out excess nutrients like nitrogen phorus, traps sediments, and provide microorganisms that aids in pollutant

pistia stratiotes
quercus

caltha leptosepala ssp. howellii

pontederia cordata

asclepias incarnata ssp. incarnata

cephalanthus occidentalis

cephalanthus occidentalis

Experience Zone

A garden designed to allow casual activity and to witness the storm water outlet, understanding how water has been polluted and the process of purification before entering the river

Sambucus Racemosa
Wetland Plants
Looking to the Garden from Outlet
Entrance of Garden - Step 1 Filtration

ADDITIONAL WORK 01

CNC Milling

/Team Work/ Emma Wang, maeve Wang, Jessica Wang/

Material

Concrete, Plexi-glass, Foam

Media

Rhino, CNC milling Machine, Heat Gun

Description

This project is a combination of several items, the umbrella, mirror, textile, and fishing culture. The idea of reflective surface and water ripple are used to represent all the items. The project was fist modeled in Rhino then Milled with foam using the CNC machine. It is casted in concrete afterwards and The Plexi-glass was molded onto the concrete with heat gun creating a shell.

Social, Affordable, Family Housing

Low-Rise Walk Up

Double-Loaded

ADDITIONAL WORK 02 STUDIO WORK

THE BACKBONE /Jayden Chen, Irene Lee, Thanh Cao/ Located in Cambridge, ON, a urban planning project transforming the site adjacent a heavily car-oriented road to a pedestrian friendly site

ADDITIONAL WORK 03

DIALOG WORK

Peel Regional Police, 23 Division building, Mississauga,ON

Highlighting the unique design enhancing sustainability and green corridors

Focusing on the mental health of user in the building

ADDITIONAL WORK 04

Plus Clover Work

Estate beautification Proposal

Highlighting the Carpet Corridor on the ground floor

Connecting Residents’ daily lives from one block to another

Turn static files into dynamic content formats.

Create a flipbook
Issuu converts static files into: digital portfolios, online yearbooks, online catalogs, digital photo albums and more. Sign up and create your flipbook.