Portfolio - Shalome ACOSTA ZAPATA

Page 1


PORTFOLIO

SHALOMÉ ACOSTA ZAPATA

Ce portfolio présente une sélection de projets réalisés au cours de mon parcours académique et professionnel. À travers la modélisation BIM, la réhabilitation urbaine et la conception d’équipements publics, j’explore l’architecture comme un outil d’analyse et de transformation des espaces. Chaque projet est une opportunité d'expérimenter, d’apprendre et d’affiner ma vision architecturale.

SHALOMÉ ACOSTA ZAPATA

ARCHITECTE STAGIARE

Je suis architecte en formation, finalisant mon master à l’École Nationale Supérieure d’Architecture de Saint-Étienne, après avoir commencé mes études à l’Université de San Buenaventura, en Colombie. Cette double expérience culturelle m’a permis de développer une vision large et enrichissante de l’architecture.

Chaque jour est pour moi est une opportunité de grandir, de découvrir de nouveaux outils et de perfectionner des techniques qui contribuent à développer des solutions innovantes et durables. Mon engagement professionnel repose sur le fait de tirer le meilleur parti de chaque expérience, en gardant toujours la curiosité et le dévouement qui me poussent à m'améliorer.

Date de naissance : 11/03/1999

Lieu de naissance : Medellín, ANT Nationalité : Colombienne INFORMATIONS PERSONNELLES

CONTACT

+33 07 00 00 00 00

shaloacosta@gmail.com

www.linkedin.com/in/shalome-acosta

https://www.behance.net/shalomeacosta

PORTFOLIO-Shalome Acosta https://issuu.com/shaloacosta

St-Étienne, Auvergne-Rhône-Alpes, France

FORMATION ACADÉMIQUE

Master en Architecture (en cours)

Institution : ENSASE

Année : En cours

CONSERVATION ET DÉFIS DU PATRIMOINE EN MILIEU URBAIN

Un analyse comparative du Pardo Centro (Medellín) et du Marais (Paris)

Mémoire: Diplôme d’Architecte

Institution : Université de San Buenaventura, Colombie

Année : Septembre 2024

Baccalauréat Technique en Design Graphique

Institution : Nuestra Señora del Rosario de Chiquinquirá, Colombie

Année : 2016

EXPÉRIENCE PROFESSIONNELLE

Auxiliaire de vente et caissière

Zara, STEEL - Saint-Étienne | Depuis juillet 2022

Accueillir les clients et fournir un service personnalisé pour garantir une expérience d'achat agréable.

Gérer les transactions en caisse avec précision et rapidité.

Stage en architecture

SR. Architectos, Colombie | 2021

Conception et coordination architecturale de projets, notamment de un Centre de Développement pour Enfants (CDI).

Réalisation de plans architecturaux, modélisation 3D et vérification technique des projets.

Collaboration interdisciplinaire avec ingénieurs (structure, hydraulique, bioclimatique).

Service client | Auxiliaire de vente

Tienda Verde, Colombie | Déc. 2019 – Fév. 2020

Conseiller les clients et répondre à leurs besoins pour assurer un service de qualité.

Gestion des demandes et des transactions en magasin.

ÉTUDES COMPLÉMENTAIRES

Étude : Programme de Formation en BIM ARCHITECTURAL & STRUCTURAL DESIGN

Institution : Naska Digital

Année : 2021

Heures : 110

Étude : Formation en Adobe Photoshop

Institution : SENA

Année : Juillet 2020

Heures : 40

Étude : Processus Constructifs

Institution : SENA

Année : Décembre 2019

Heures : 40

Étude : Bases des Finitions

Institution : SENA

Année : Octobre 2019

Heures : 40

AUTRES

Symposium international : "Architecture, nature et ruralité"

Université de San Buenaventura

Rôle : Assistante

Lieu : Medellín – Avril 2017

Jeune Ambassadeur : Colombie / Région Auvergne-Rhône-Alpes.

Période : Depuis 2023.

Expositions

Présentation des travaux de recherche et d’expérimentation sur la définition de l’urbain et du non-urbain.

Lieu : CIAPV, Limousin, et Maison de l’Architecture de Limoges.

Date : Novembre - Décembre 2024.

LANGUES

Espagnol :

Français :

Anglais :

COMPÉTENCES TECHNIQUES LOISIRS

Langue maternelle

Niveau intermédiaire B1

Niveau débutant

Autocad Lumion

Revit

COMPÉTENCES PERSONNELLES

VALEURS

Intégrité

Engagée

Dynamique

Travail d'équipe Adaptabilité

Sens du détail

Respect des objectifs

Ponctualité

Expression graphique numérique

Persévérance

Responsable

Disciplinée

INTÉRÊTS

Photographie urbaine

Design bioclimatique

Histoire de l’architecture

Conservation du patrimoine

Disponible pour un stage à partir de mi-juillet 2025

TABLE DES MATIÈRES

HÁBITAT SAN BENITO

Bâtiment résidentiel

Situé en face du Parc Central de San Benito, ce projet s’intègre dans un environnement urbain marqué par une forte densité et une activité commerciale dynamique. Conçu pour les étudiants et les personnes âgées, le bâtiment vise à répondre aux besoins de logement temporaire, d’interaction sociale et d’activités récréatives dans une zone stratégique, proche de l’Université de San Buenaventura.

Objectifs architecturaux

Intégrer des usages mixtes combinant commerce, logement et espaces publics.

Encourager l’interaction intergénérationnelle grâce à des espaces communs fonctionnels et accessibles.

Préserver l’environnement naturel avec des zones vertes et des espaces ouverts connectés visuellement et fonctionnellement au parc.

Incorporer des éléments architecturaux tels qu’un éclairage stratégique pour assurer la sécurité et le confort des usagers dans l’espace public.

Résultats attendus

Redynamiser le quartier en proposant des solutions d’habitat adaptées.

Améliorer la qualité de vie des usagers en créant des espaces conçus spécifiquement pour leurs besoins.

Offrir un lieu de rencontre favorisant l’équilibre entre activités académiques, récréatives et commerciales.

Espace public privé Entrée de lumière

commercial

Espace public privé

Vues sur le parc

Centre pour les personnes âgées

Zone piétonne

Socle

EXPLORATOIRE

DES ARTS SCÉNIQUES

Bâtiment Public

Situé à Belén, Medellín, l’Exploratoire des Arts

Scéniques est un espace dédié à la création, l’expérimentation et la diffusion des arts du spectacle. Il vise à être un lieu de rencontre favorisant l’échange culturel, la formation et la représentation artistique.

Son design architectural s’intègre au Plan Directeur "Corredor de la 80", en lien avec la Comuna 15Guayabal, renforçant les dynamiques de contemplation, loisirs et culture.

Comment concevoir un espace flexible et inclusif pour les artistes de tous âges, tout en favorisant son appropriation par la communauté ?

Inspiré par le Parque Explora de Medellín, cet équipement se veut un laboratoire artistique public, un espace ouvert, collaboratif et expérimental, où chacun peut échanger des savoirs, expérimenter et développer des projets librement.

Objectifs Architecturaux

Espaces Polyvalents : Création d’espaces modulables pour accueillir des spectacles, des ateliers, des résidences artistiques et des événements interdisciplinaires.

Intégration au Quartier : Connexion fluide avec Belén, en valorisant les dynamiques sociales et urbaines pour renforcer l’interaction entre l’art et la communauté.

Durabilité : Utilisation de matériaux écologiques, de systèmes de ventilation naturelle et d’éclairages écoénergétiques pour un impact environnemental réduit.

Accessibilité et Inclusion : Conception d’espaces ouverts et accessibles, permettant à tous les habitants de participer activement à la culture et de se réapproprier l’espace public.

Résultats Attendus

Valorisation des Arts Scéniques : Un espace qui stimule la création et la diffusion du théâtre, de la danse, du cirque et de la musique.

Participation Communautaire : Implication des habitants de Belén et Medellín dans la vie artistique, avec des programmes éducatifs et participatifs.

Impact Urbain et Culturel : Faire du quartier un pôle culturel qui soutient les artistes émergents et dynamise le secteur à travers la culture.

03

NOR AREV (Nouveau Soleil)

Bâtiment Réhabilité

Situé à Erevan, Arménie, ce projet répond à la nécessité de réhabiliter une zone urbaine sous-utilisée, en intégrant des espaces de logement, de commerce et de culture. L’objectif est de renforcer l’identité du lieu en rénovant un bâtiment existant et en créant un environnement habitable favorisant la connexion avec le paysage et l’histoire locale.

Objectifs Architecturaux

Réhabiliter l’espace urbain en transformant un ancien terrain en un parc récréatif.

Intégrer des logements et des commerces pour dynamiser l’interaction sociale et économique.

Améliorer la circulation et l’accessibilité, en ajoutant un ascenseur dans un bâtiment initialement accessible uniquement par des escaliers, facilitant ainsi les déplacements sur ses cinq étages et sa terrasse.

Concevoir des appartements adaptés aux personnes à mobilité réduite, garantissant des espaces fonctionnels et accessibles à différents niveaux.

Utiliser des matériaux durables, en intégrant des éléments locaux comme la pierre et le bois pour renforcer l’identité du site.

Résultats Attendus

Améliorer la qualité de vie des résidents grâce à des espaces conçus pour le bien-être et l’interaction sociale.

Servir de modèle de rénovation urbaine, en inspirant d’autres initiatives de réhabilitation dans la ville.

Encourager l’activité culturelle et sociale, en créant un lieu inclusif qui renforce le sentiment de communauté.

Garantir l’accessibilité universelle, en offrant des solutions de mobilité adaptées à tous les usagers, sans obstacles architecturaux.

CENTRE COMMUNAUTAIRE ARMÉNIEN

Bâtiment Public et Résidentiel

Dans le cadre de l’atelier, l’exercice consistait à concevoir un projet en respectant les exigences nécessaires à l’élaboration d’un permis de construire. L’objectif était de développer une proposition architecturale complète, intégrant les contraintes réglementaires, techniques et urbaines, tout en répondant aux besoins spécifiques du site.

Situé dans le quartier Monthieu - Saint-François, en périphérie de Saint-Étienne, ce projet vise à remplacer l’ancien Centre Communautaire Arménien par un nouvel équipement intégrant espaces sociaux, culturels et logements. L’intention est de créer un lieu de rencontre inclusif, favorisant la convivialité, l’échange culturel et l’intégration communautaire.

Le terrain se trouve Rue Bernard Palissy, avec une seule façade sur rue.

Afin d’optimiser l’apport de lumière naturelle, le bâtiment est décalé de 3,60 m par rapport à l’église arménienne située à l’est. Cette séparation génère deux nouvelles façades, améliorant ainsi l’éclairage et la ventilation des espaces intérieurs.

DÉTAILS

CONSTRUTION DE SEPT LOGEMENTS ET D’UN SALLE DE QUARTIER

MAITRE D’OUVRAGE : Centre Communautaire ARMENIEN

ADRESSE: 7 Rue Bernard Palissy

COMMUNE : Saint-Étienne, 42000

PREFIXE : 000

SECTION : HI

PARCELLES : 42

SURFACE TOTALE DES PARCELLES : 655 m²

PLANS ARCHITECTURAUX

PLAN REZ-DE CHAUSSSÉE DU PROJET

PLAN R+2 DU PROJET

PLAN R+1 DU PROJET

PLAN R+3 DU PROJET

Objectifs Architecturaux

Répondre aux exigences d’un permis de construire, en respectant les contraintes

Organisation du Projet

Rez-de-chaussée Maintien de la fonction communautaire avec

- Trois salles polyvalentes, modulables grâce à des cloisons amovibles.

- Un bureau administratif, des sanitaires et une cuisine, ouverts sur un jardin pour la ventilation naturelle.

Premier étage (R+1) Extension du centre communautaire avec:

- Une salle polyvalente supplémentaire et une terrasse avec vue sur l’église.

- Premier logement (T4) avec triple exposition et accès indépendant.

Étages R+2 et R+3 Espaces entièrement résidentiels

- R+2 : Un T1, un T2 PMR (adapté) et un T4.

- R+3 : Un T4 PMR et un T4 standard.

Dernier étage (R+4) Espace partagé et dernier appartement

- Jardin commun sur la terrasse nord.

- Dernier logement (T3) avec vue dégagée.

FAÇADE EST

COUPE

CDI EL DORADO

Bâtiment Public

Dans le cadre de mon stage chez SR Architectes et Ingénieurs

S.A.S, j’ai participé à la conception et au développement du Centre de Développement de l’Enfant El Dorado, un projet destiné à accueillir 300 enfants âgés de 0 à 5 ans. Mon rôle a consisté à travailler sur l’aménagement des espaces, l’adaptabilité des volumes, et les solutions architecturales visant à créer un environnement stimulant, sécurisé et fonctionnel pour la petite enfance.

Situé à Envigado, Colombie, ce projet s’inscrit dans une initiative municipale visant à améliorer les infrastructures éducatives et sociales. Le bâtiment a été conçu pour favoriser la lumière naturelle, la ventilation croisée et l’intégration paysagère, tout en assurant une accessibilité optimale pour les enfants et leurs accompagnateurs.

L’un des défis majeurs du projet était d’adapter l’architecture à un terrain contraignant, tout en garantissant une organisation fluide des espaces et une flexibilité d’usage pour répondre aux différentes activités pédagogiques et récréatives. Le projet intègre des espaces modulables, des salles polyvalentes, des aires de jeux et des espaces de rencontre pour les familles, afin de favoriser une approche éducative inclusive et dynamique.

L’architecture repose sur des principes bioclimatiques visant à optimiser le confort thermique et réduire la consommation énergétique, créant ainsi un cadre de vie sain et durable pour les enfants et la communauté.

Objectifs Architecturaux

Adaptabilité et intégration urbaine : L’architecture s’adapte à la densité et à la géométrie du site en jouant avec les volumes, les pleins et les vides, ainsi que les relations intérieur-extérieur.

Espaces ludiques et éducatifs : Le projet propose des salles pédagogiques adaptées aux différentes tranches d’âge, des ateliers d’activités, une salle polyvalente, une cafétéria et une zone environnementale.

Connexion avec la nature : L’aménagement paysager intègre des espaces verts existants et crée une continuité avec l’environnement urbain.

Sécurité et accessibilité : Une attention particulière est portée à l’accessibilité universelle, avec des circulations fluides et des aménagements inclusifs.

Résultats Attendus

Offrir un environnement éducatif et récréatif qui favorise le bien-être des enfants et de leurs familles.

Concevoir un bâtiment durable et fonctionnel, adapté aux besoins des communautés locales.

FAÇADES

Façade Nord-Est

Contribuer à l’amélioration du tissu urbain en intégrant un équipement public de qualité, au service de l’éducation et du développement social.

Façade Sud-Ouest

Façade Sud-Est

Façade Nord-Ouest

Salle

à manger Niveau 1 / Niveau +0.0 m

Plan de la Salle à Manger
Façade intérieure 16 - Salle à Manger / N.P.A 0.00 (FI-16)
Façade intérieure 17 - Salle à Manger / N.P.A 0.00 (FI-17)
Façade intérieure 18 - Salle à Manger / N.P.A 0.00 (FI-18)

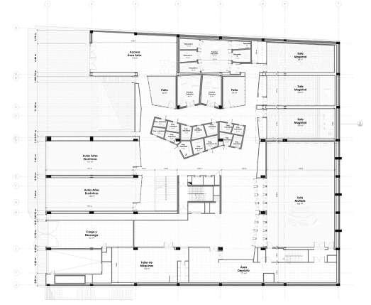
FACULTÉ DES ARTS

UNIVERSITÉ JAVERIANA

Projet de modélisation BIM

Ce projet est un exercice académique réalisé dans le cadre d’un programme de formation en BIM. Il ne s’agit pas d’une conception personnelle, mais d’une réinterprétation numérique du bâtiment existant de la Faculté des Arts de l’Université Javeriana à Bogotá, conçu par La Rotta Arquitectos et inauguré en 2015.

Avec une superficie de 17 725 m², cet édifice est dédié à la formation artistique et académique, accueillant des espaces pour les arts visuels, la musique et les arts scéniques.

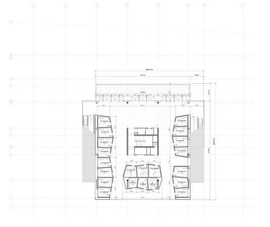
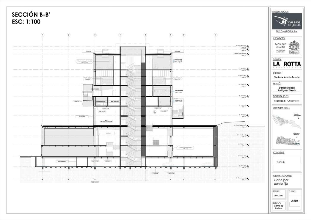
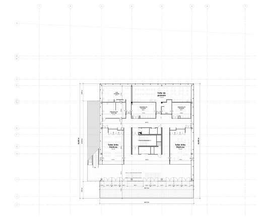
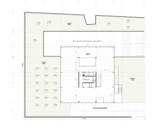
L’objectif de cet exercice était de recréer les plans et modèles du bâtiment à l’aide d’outils BIM avancés, permettant d’analyser ses systèmes structurels et architecturaux. Cette réinterprétation numérique offre une meilleure compréhension de son organisation spatiale et de ses principes constructifs.

PLANS ARCHITECTURAUX (Cette sélection représente une vue d’enseble du projey sans inclure tous les niveaux et détails)

NIVEAU 1 _ HALL PRINCIPAL

NIVEAU -2 _ MUSIQUE ET ARTS SCÉNIQUES

NIVEAU 2 _ PRATIQUES MUSICALES

NIVEAU 4 _ PHOTOGRAPHIE

AXONOMÉTRIE EXPLOSÉE - FACULTÉ DES ARTS

Éléments Obtenus

Maquette numérique détaillée : Modélisation complète du bâtiment, incluant la structure, l’enveloppe architecturale, les circulations et les aménagements

Plans et coupes numériques : Production de plans détaillés, coupes et élévations basés sur la modélisation BIM.

Études des façades et des matériaux : Représentation fidèle des systèmes de façade, des finitions et des

Analyse de l’organisation spatiale : Identification des relations fonctionnelles entre les espaces, y compris les zones éducatives, administratives et récréatives.

Optimisation des circulations : Étude des flux internes

Intégration de la structure mixte : Analyse et représentation des systèmes porteurs en béton et en acier, garantissant une lecture claire des principes constructifs.

Visualisation et rendus 3D : Création de rendus photoréalistes et de simulations visuelles permettant une meilleure communication du projet.

Simulation de l’environnement urbain : Intégration du bâtiment dans son contexte géographique et paysager, en prenant en compte son impact visuel et spatial.

Création de mobiliers paramétriques : Modélisation de mobiliers spécifiques pour les espaces éducatifs et administratifs, permettant une adaptabilité et une personnalisation selon les besoins du projet.

COUPE A-A’
COUPE B-B’

COUPE C-C’

Objectifs de la Modélisation BIM

Représenter fidèlement la structure existante à travers des maquettes numériques détaillées.

Développer un modèle architectural et structurel permettant d’analyser la construction et son organisation spatiale.

Explorer les interactions entre les différents éléments architecturaux, comme les façades, les espaces publics et les structures porteuses.

Appliquer les compétences en modélisation BIM à travers des logiciels spécialisés.

Résultats et Apprentissage

Approfondissement des connaissances en modélisation paramétrique et en gestion des données architecturales.

Compréhension des principes de structure mixte, combinant béton armé et charpente métallique.

Analyse détaillée des connexions entre les espaces éducatifs, les zones de loisirs et les circulations internes.

Développement de la capacité à interpréter et transposer des plans existants en modèles BIM.

COUPE D-D’

PHOTOGRAPHIE

RENDER INTÉRIEUR

VUE DANS REVIT

Merci

Turn static files into dynamic content formats.

Create a flipbook
Issuu converts static files into: digital portfolios, online yearbooks, online catalogs, digital photo albums and more. Sign up and create your flipbook.