Portafolio académico Sergio Severino

Page 1

PORTAFOLIO

SERGIO MANUEL SEVERINO CABALLERO

En el censo nacional del 22 de octubre como voluntario. Reconocimiento al desempeño en el ciclo 2018-2 a cargo del jefe de taller Arq. Gabriel Desulovich Vertiz en el encargo del nuevo mercado de surco.

arq.Fiorella Altamirano en consecuencia de al orden de mérito.

https://issuu.com/fiorellaaltamirano7/docs/revista_digital_-_publicaci_n

Participación en el campeonato por el 50 aniversario de la Universidad Ricardo Palma, siendo parte de la selección de taekwondo en la categoría feather.

Maqueta seleccionada para la exposición detalleres 2018-2 , a cargo del jefe de taller Arq. Gabriel Desulovich Vertiz en el encargo del nuevo mercado de surco.

Publicación a cargo del arq.Emerson Porras a causa del desempeño logrado.

https://www.instagram.com/p/CKPd0VAFqNI/

Proyecto seleccionado para la exposición virtual de talleres 2021-1 a cargo de la arq.Rita Gondo Mimani , en el encargo del nuevo mercado de surco. https://www.instagram.com/p/CVLWIdftRdO/ https://miro.com/app/board/o9J_l5zqqvA=/

SOFTWARE MÁS UTILIZADO

IDIOMAS

ESPAÑOL INGLÉS

SERGIO MANUEL SEVERINO CABALLERO Estudiante de arquitectura ACERCA DE MI CONTACTO +51 942131944 ssergiomanuel22@gmail.com Jr.Huaca del sol Mz.S4 Lt.31, La Molina Sergio Severino sergio_severino22.9 REDES SOCIALES Estudiante de la Facultad de Arquitectura y Urbanismo (FAU) de la Universidad Ricardo Palma curso el 8vo ciclo soy un chico creativo, que le gusta encontrar soluciones a las necesidades arquitectónicas, a lo que requiera la población estudiada. Tengo hábitos de pintar dibujar diagramar mis ideas antes de pasarlas a los programas. Ademàs suelo ser autodidacta al momento de aprender cosas de mi interès, como por ejemplo programas y hobbies.También represento a mi universidad en la selección de taekwondo. “Los arquitectos pasan toda la vida con esta idea razonable de que se puede luchar contra la gravedad” Renzo Piano EXPERIENCIA PUBLICACIONES EDUCACIÓN IEDP LEONARD EULER EXPOSICIÓN DE TALLERES REVISTA DIGITAL DE PAISAJISMO EXPO FAU URP 2019-2 REVISTA DIGITAL 2020-1 ESTUDIOS BASICOS Instituto Nacional de Estadística e Informática TALLER 6 - MERCADO DE SURCO TALLER 13 - EDIFICIO DE USOS MIXTOS EXPO FAU 2018-2 /MERCADO DE SURCO EXPO T14 2021-1 / CETPRO DE DISEÑO GRÁFICO MEDALLA DE ORO Y PLATA 2017 INEI RECONOCIMIENTO AL MÉRITO RECONOCIMIENTO AL MÉRITO 50 ANIVERSARIO URP EXPOSICIÓN DE TALLERES EXPOSICIÓN VIRTUAL DE TALLERES
Exposición de maqueta constructiva del sistema aporticado del curso de edificación 2 Publicación a cargo por la
Edcucacion primaria - secundaria
CONTENIDO 1 2 3 4 5 6 7 8 9 Centro cultural y de exposiciones. Cetpro de diseño gráfico. Edificio de usos mixtos. Hotel boutique en Tarma. Centro de integración social Mercado anexo numero 2 Centro de investigación Exploración de la forma Extras: fotografía y dibujo

EN LIMA ES POSIBLE ENCONTRAR

EJEMPLOS DE CENTROS DE EXPOSICIONES, SIN EMBARGO EN ESTE ENCARGO SE TRATA DE REUNIR DIVERSAS ACTIVIDADES CULTURALES.

Centro cultural y de exposiciones.

ADEMÁS SE VA A PRIORIZAR LAS SALAS DE EXPOSICIONES YA QUE VA A ORGANIZAR UNA GRAN PARTE DEL ESPACIOS PRESENTE. ESTE CENTRO CULTURAL Y DE EXPOSICIONES .

UNA GRAN OPORTUNIDAD DE MOSTRAR ESPACIOS.

0
1
PRIMER BOCETO A MANO 2021 CICLO 08 TALLER 7 ARQ.ALBERTO REYNAGA DA SILVA UBICACIÓN: AV DEL EJÉRCITO 1200-1600 SAN ISIDRO FACULTAD DE ARQUITECTURA Y URBANISMO

Centro cultural y de exposiciones

EN LIMA ES POSIBLE ENCONTRAR EJEMPLOS DE CENTROS DE EXPOSICIONES, SIN EMBARGO EN ESTE ENCARGO SE TRATA DE REUNIR DIVERSAS ACTIVIDADES CULTURALES.

ADEMÁS SE VA A PRIORIZAR LAS SALAS DE EXPOSICIONES YA QUE VA A ORGANIZAR UNA GRAN PARTE DEL ESPACIOS PRESENTE. ESTE CENTRO CULTURAL Y DE EXPOSICIONES PRETENDE CAUSAR SENSACIONES ESPACIALES AL USUARIO.

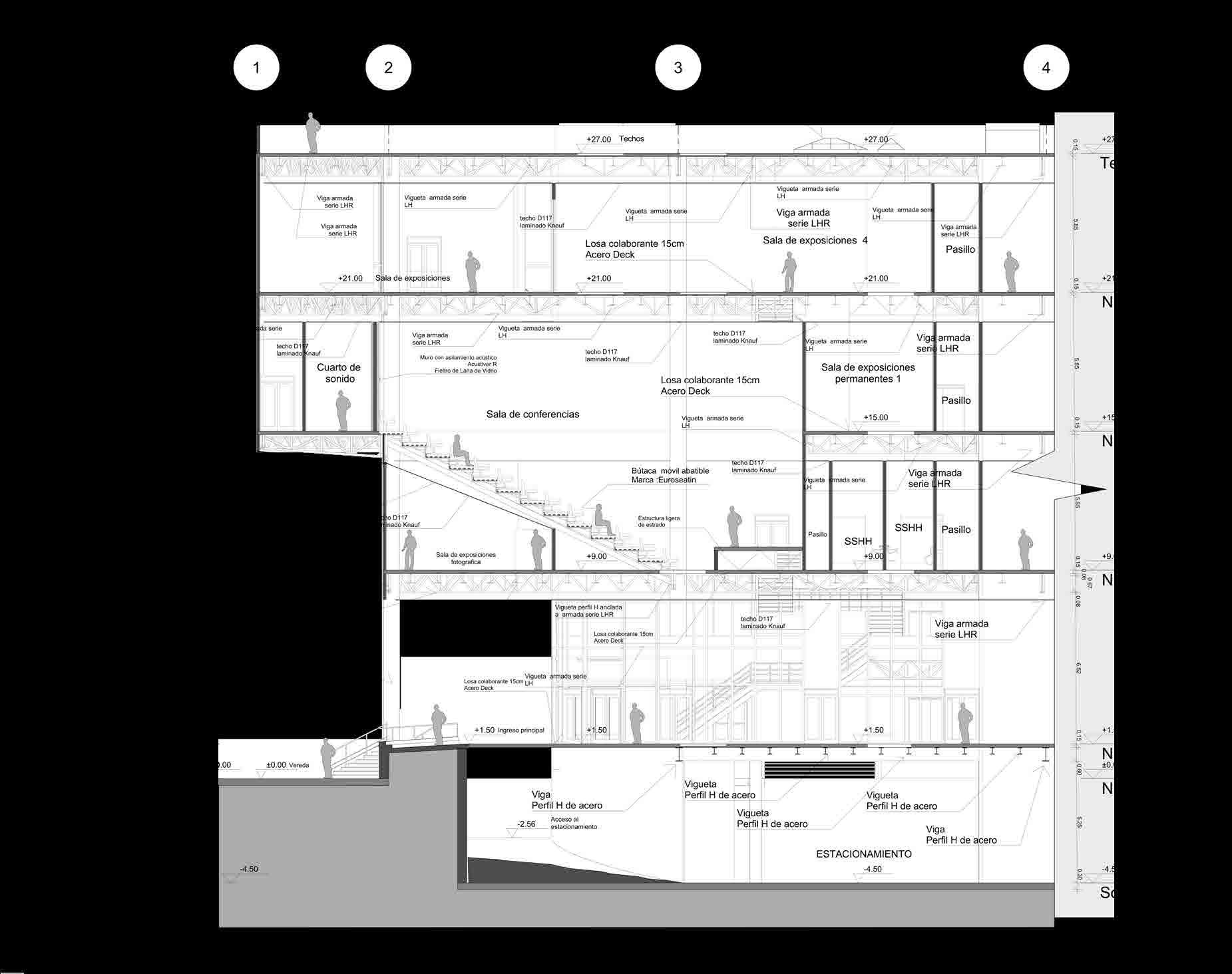
CORTE 4-4

Desarrollo del proyecto Desarrollo del proyecto

Vistas exteriores Vistas interiores

Vista de la plaza de la cafetería Vista del area de exposiciones Vista del ingreso hacia el área de exposiciones Vista de la sala de conferencias

EL DESARROLLO DE ESTE PROYECTO ES EN EL DISTRITO DE BARRANCO, EN EL PASAJE FUNICULAR. LA PROPUESTA SE EMPLAZA EN EL ACANTILADO DE LA COSTA VERDE, ENTERRANDOSE PARA NO VIOLAR LAS ALTURAS PROMEDIO DE LA ZONA, GANANDO ASÍ TERRENO SUBTERRÁNEO Y VISUAL DE CASI TODOS LOS AMBIENTES HACIA EL LITORAL. EL CONCEPTO FORMAL DE LA ENVOLVENTE, ES DE LA LANGOSTA MARINA, DONDE SE UTILIZAN ELEMENTOS DE SU CAPARAZÓN PARA REINTERPRETARLOS Y LLEVARLOS A ESTA CUBIERTA.

0 2
2021 CICLO 07 TALLER 14
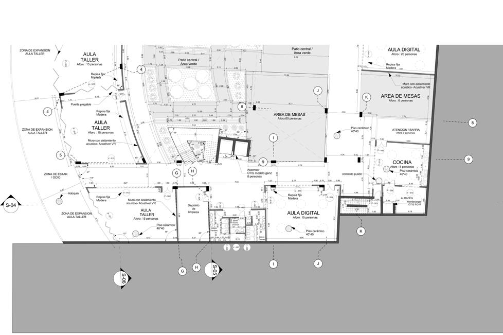
Ceptro de diseño gráfico
ARQ. RITA GONDO MIMANI UBICACIÓN: PSJE FUNICULAR BARRANCO FACULTAD DE ARQUITECTURA Y URBANISMO PRIMER BOCETO A MANO

Ceptro de diseño gráfico

SIGUIENDO EL CONCEPTO INICIAL, SE TIENEN QUE DISTRIBUIR LOS ESPACIOS PARA GENERAR SENSACIONES DE DOBLE Y TRIPLE ALTURA; ACONDICIONANDOLOS A LA VEZ PARA QUE SATSIFAGA LAS NECESIDADES DE LOS USUARIOS, QUE EN SU MAYORÍA SON ESTUDIANTES. LA ESTRUCTURA ES EN BASE A UN SISTEMA MIXTO BASADO EN COLUMNAS DE CONCRETO ARMADO, VIGAS DE ACERO, ADEMÁS DE UTILIZAR LOSA COLABORANTE QUE PERMITEN LUCES MUY GRANDES Y ANCLAJES PARA EVITAR EL COLAPSO DEL INMUEBLE.

Desarrollo del proyecto Desarrollo del proyecto

ALGORITMO DEL SISTEMA ESTRUCTURAL DESARROLLADA EN EL ENVOLVENTE

Vista

Vista

Vistas exteriores Vistas interiores

Vista

Vista

Vista

Vista

Vista

Vista

de la plaza de ingreso. desde la costa verde desde la costa verde del pasillo de las aulas. de la plaza de contemplaciòn. de la plaza de ingreso. del aula de impresión 3d. del puente interno.

LOS EDIFICIOS DE USOS MIXTOS SON TENDENCIA AL ALOJAR DIVERSAS ACTIVIDADES EN UN UNICO INMUEBLE, ESTE NO IBA A SER LA EXCEPCIÓN, YA QUE EL VIEJO URBANISMO ESTÁ QUEDANDO ATRÁS. LUEGO DEL ESTUDIO URBANO SE DA EL REQUERIMIENTO DE ESTE TIPO DE EDIFICIO, QUE ALOJE A LOS VECINOS DE SAN JUAN DE MIRAFLORES Y PUEDA GENERAR MÁS ACTIVIDADES CON LA GENTE.

0 3
EDIFICIO DE USOS MIXTOS VIVIENDA DEPORTE COMERCIO 2020 CICLO 06 TALLER 13 ARQ.EMERSON
UBICACIÓN: AV.CENTRAL SAN
FACULTAD
PORRAS
JUAN DE MIRAFLORES
DE ARQUITECTURA Y URBANISMO
PRIMER BOCETO A MANO

EDIFICIO DE USOS MIXTOS

DENTRO DE ESTA MANZANA SE FORMARÁ EL EDIFICIO, ESTE SE SEPARAN VOLUMÉTRICAMENTE HABLANDO. LA ZONA DEPORTIVA ESTÁ UBICADA DE MODO QUE PUEDA CAPTAR MÁS GENTE, A SU VEZ QUE ES

PERMEABLE Y CONECTA LA PLAZA INFERIOR. POR SU PARTE TANTO LE VOLUMEN DE VIVIENDA Y COMERCIO ESTÁN ELEVADOS, ESTO CON LA FINALIDAD DE DAR ÉNFASIS EN ESTOS USOS. EL VOLUMEN DE LA VIVIENDA DE ALTA DENSIDAD ES EL QUE RESALTA MÁS, ESTÁ PROTEGIDA CON UNA FACHADA CINÉTICA, QUE PROTEGE

A LAS VIVIENDAS DE LA EXCESIVA RADIACIÓN SOLAR. TODO ESTO LOGRADO EN BASE A ALGORITMOS DESARROLLADO EN EL CICLO. QUINTO PISO EDIFICIO MULTIFAMILIAR

DECIMOQUINTO PISO EDIFICIO MULTIFAMILIAR

MULTIUSOS Circulaciòn vertical DEPÒSITO DEPÒSITO contro Vestidores adutos Administraciòn GRADAS ltiples Almacèn Cafeterìa Restaurant Cafeterìa Minimarket Minimarket Ingreso cundario secundario secundario ngreso Ingreso NIVEL VIVIENDA NIVEL COMERCIO NIVEL DEPORTE 1" 2"

Desarrollo del proyecto Desarrollo del proyecto

ALGORITMO DE FACHADA CINÉTICA PRESENTE EN EL EDIFICIO DE VIVIENDA

Vistas exteriores Vistas interiores

Vista de la plaza del area comercial Vista de la plaza del area comercial Vista de la plaza del area deportiva Vista del patio de juegos del area deportiva

LA TEMÁTICA DE LOS HOTELES BOUTIQUE ES LA ÚLTIMA TENDENCIA EN LA ACTUALIDAD, ESTA VEZ SE REALIZÓ EN TARMA UN HOTEL QUE PRIORICE LAS VISTAS GENIALES QUE OFRECE LA GEOGRAFÍA PERUANA.

PARA ESTE ENCARGO SE TOMO LA DECISIÓN DE REPRESENTAR LAS CASAS TARMEÑAS EN LA FALDA DE LOS CERROS QUE ESTÁN PRESENTES EN LA ZONA.

0 4
HOTEL
2019 CICLO 05 TALLER 16 ARQ.TANIA VILLANUEVA FLORES UBICACIÓN: TARMA FACULTAD
Y URBANISMO
BOUTIQUE
DE ARQUITECTURA
PRIMER BOCETO A MANO

Centro cultural y de exposiciones

COMO TOMA DE PARTIDO SE DECIDIO GENERAR VOLUMENES DISPERSOS CON LA INTENCIÓN DE GENERAR PRIVACIDAD Y ENFATIZAR LA TEMÁTICA BOUTIQUE DE MANERA ASCENDENTE Y CON ELLOS LOGRAR GANAR LAS VISTAS DEL ENTORNO NATURAL.

EL HOTEL CUENTA CON RESTAURANT, SPA, PISCINA GIMNACIO, 10 HABITACIONES DE DIFERENTE CATEGORÍA Y 2 HABITACIONES MATRIMONIALES.

AGREGANDO A LA TEMÁTICA DEL HOTEL, LOS MUROS DE LAS HABITACIONES ESTÁN HECHAS DE ADOBE, TÍPICO DE LA ZONA, ADEMÁS POSEE PROPIEDADES TÉRMICAS QUE GARANTICEN EL CONFORT TÉRMICO DE LOS USUARIOS.

HOTEL BOUTIQUE -TARMA

HOTEL BOUTIQUE -TARMA

HOTEL BOUTIQUE -TARMA

HOTEL BOUTIQUE -TARMA

PRIMERA PLANTA SEXTA PLANTA
CORTE GENERAL
del proyecto
VISTA DEL LUCERNARIO CON FORMA PIRAMIDAL VISTA DEL CONJUNTO MAQUETA 1:100 VISTA DEL ACCESO HACIA LAS HABITACIONES VISTA DE LA PLAZA SUPERIOR VISTA DEL CONJUNTO VISTA DEL CONJUNTO MAQUETA 1:250 VISTA DEL CONJUNTO MAQUETA 1:250 VISTA DEL CONJUNTO MAQUETA 1:250
Desarrollo
Desarrollo del proyecto

CON EL FIN DE REUNIR DIVERSAS ACTIVIDADES, Y ANTE LA ESCASA OFERTA DE EQUIPAMIENTOS CULTURALES EN EL CALLAO MONUMENTAL, SE PROPUSO ESTE CENTRO DE INTEGRACIÓN. CUENTA CON SALONES DE USOS MIXTOS, AULAS TEORICAS, BIBLIOTECA, SALAS DE EXOSICIÓN, CAFETERÍA, AGENTES BANCARIOS, ETC. TODO ELLOS ORDENADO MEDIANTE UNA PLAZA REPRESENTANDO LOS PATIOS DE LAS CASAS VIRREINALES DEL PRIMER PUERTO. PARA ESTE PROYECTO SE MANTUVO EL PLOMO DE LA CALLE PARA RESPETAR EL ESTADO DE LAS CASAS COLINDANTES.

0 5
CENTRO DE INTEGRACIÓN SOCIAL 2019 CICLO 04 TALLER 7 ARQ.ROBERTO MARTÍN LIBIO LECAROS UBICACIÓN: Calle La Mar 472, Callao Monumental FACULTAD DE ARQUITECTURA Y URBANISMO
BOCETO A MANO
PRIMER

ESTA REMODELACIÓN CONSISITIÓ EN APROVECHAR AL MAXIMO EL ESPACIO QUE YA OCUPABA EL MERCADO. PARA ELLO SE ORDENARON LOS PUESTOS EN DIFERENTES TIPOS DE TIENDAS DE ACUERDO CON SU UBICACIÓN Y CERCANÍA A LOS INGRESOS. CUENTA CON UN PATIO DE MANIOBRAS EN EL JR.FRANKLIN D ROOSEVELT.ADEMÁS DE LOS PUESTOS DE VENTA DE ROPA, CARNES, VIVERES, ABARROTES, ETC. ADCIONALMENTE POSEE PLAZAS RECREATIVAS QUE FACILITEN LAS LABORES DE VENDEDORES Y COMPRADORES.

0 6
MERCADO ANEXO NUMERO 2 2018 CICLO 03 TALLER 6 ARQ.GABRIEL DESULOVICH VERTIZ UBICACIÓN: Av. Jorge Chávez 568, Santiago de Surco FACULTAD DE ARQUITECTURA Y URBANISMO
PRIMER BOCETO A
MANO

DE ACUERDO A LOS17 PUNTOS DE LA ARQUITECTURA NEOPLASTICISTA SE FORMA A PARTIR DE PLANOS GENERANDO ESPACIOS , CON JERARQUÍA . EL ESPACIO INTERACTÚA CON LA LUZ LA LUZ ES CAUSANTE DE LA VIDA A UN ESPACIO . E S MUY CONOCIDO QUE LOS COLORES OSCUROS TIENDEN PERCEPTUALMENTE A DAR LA IMPRESIÓN DE UN ESPACIO MENOR Y LOS CLAROS EN CAMBIO LA DE UNO MAYOR ALGO SIMILAR OCURRE APARTE DE SU IMPLICANCIA AFECTIVA, SI EL PARÁMETRO ES DE SUPERFICIE GRUESAMENTE TEXTURA DA O LISA . BÁSICAMENTE DESDE QUE ES LA LUZ EL AGENTE INFLUYENTE EN LA PERCEPCIÓN EL GRADO DE REFLECTIVIDAD DE LOS PARÁMETROS ES UNA IMPORTANTE CONSIDERACIÓN .

0 7
CENTRO DE INVESTIGACIÓN 2018 CICLO 02 TALLER
GARCÍA
BÁSICO N°2 ARQ.OSCAR
UBICACIÓN: IMAGINARIA FACULTAD DE ARQUITECTURA Y URBANISMO PRIMER BOCETO A MANO
0 8 EN ESTE PRIMER
SE TRATÓ
COMPOSICIÓN
BASADA EN
DE FRANK
GENERANDO
MAS
Y
PARA ENVOLVER Y GENERAR ESPACIOS. ESTE FUE EL PRIMER
HACIA A LA
EXPLORACIÓN DE LA FORMA 2017 CICLO 01 TALLER BÁSICO N°3 ARQ.ALBERTO REYNAGA DA SILVA ARQ.MARISSA QUIROZ UBICACIÓN: PARQUE DE LA EXPOSICIÓN FACULTAD DE ARQUITECTURA Y URBANISMO
ENCARGO DE LA CARRERA
DE LLEVAR A UNA
GENERADA POR VOLÚMENES PARA GENERAR ESPACIOS,
LAS LINEAS DE DISEÑO
GHERY,
FOR-
SINUOSAS
ORGÁNICAS
ACERCAMIENTO
ARQUITECTURA.
PRIMER BOCETO A MANO

FOTOGRAFÌA

-TÍTULO DE LA FOTO Ritmo paciente -LUGAR Plaza biblioteca sur -ANGULO DE VISIÓN normal

-TÉCNICA DE COMPOSICIÓN diagonal dinámica -EFECTO UTILIZADO ninguno -CÁMARA UTILIZADA C elular Samsung

Ejercicio realizado en base al libro FUN WITH A PENCIL de Andrew Loomis para luego ser escaneado

DIBUJOS

0 0 9 9
ssergiomanuel22@gmail.com +51 942131944

Turn static files into dynamic content formats.

Create a flipbook
Issuu converts static files into: digital portfolios, online yearbooks, online catalogs, digital photo albums and more. Sign up and create your flipbook.
Portafolio académico Sergio Severino by Sergio Severino - Issuu