Interior & Architecture Portfolio

Page 1

ABOUT ME

EDUCATION

Methodist School, Dankuni|Class of 2016-Graduated with 73.2%

Techno India University, Kolkata|Batch of 2021-Graduated with 7.78 CGPA

EXPERIENCE

Architectural Intern| Agrawal & Agrawal Architects, Kolkata| Jul 2020- Dec 2020

Assisting with design work and pepared sanction drawings for residential and commercial projects

Design Partner| HomeLane, Kolkata| Oct 2021 - Jan 2022

A dynamic and multifaceted role that combined creativity, project management, client interaction and teamwork

Junior Designer| Studio Kusinara, Kolkata| Jan 2022- Feb 2024

Extensively involved in architectural and interior design of residential, commercial and hospitality projects. Had the opportunity to work on several end-to-end projects, taking them from conceptualization to execution while handling client interactions, conducting site visits, and managing vendor relationships

SOFTWARE SKILLS

Autocad| Sketchup| Enscape| Lumion| Adobe Photoshop| Adobe Indesign| Adobe Illustrator

Hello, I’m Dipanwita, an architect and designer driven by a deep sense of empathy and a commitment to creating spaces that resonate with people on a personal level. With a two and a half year journey in the industry, I’ve cultivated a unique approach that places human experience at the forefront of every design endeavor.

Portfolio_Dipanwita Sen Portfolio_Dipanwita Sen
01. Mahato Apartment 01-14 02. GKB Opticals 15-22 03. Leela Gold Office 23-28 04. Caravansarai 29-34 05. Agarwal Apartment 35-38 CONTENTS

01

Mahato Apartment

Type- Residential

Area- 2250 sqft

Site- Anassa,Kolkata

Involvement- Drawing production, Site involvement

The layout is spacious and thoughtfully designed, with an open-concept living area that seamlessly blends the kitchen, dining, and lounging spaces. This interior space epitomizes luxury with its neutral color palette, high-end finishes, and thoughtful design elements, creating a haven of sophistication and style that exudes both comfort and refinement.

01 Portfolio_Dipanwita Sen
02 Portfolio_Dipanwita Sen Interior Design

A TEA CEREMONY

The living room is integrated with an in-situ wooden seating system. With two levels of seating, it can be both inwardlooking as well as outward-looking.

Inspired by the setting of a tradition Japanese tea ceremony, this element frames the view of the city for a warm cozy, flexible corner to unwind.

The volume of the living/dining space is doubled by cladding the entire wall western wall in bronze mirror While adding an element of luxury, it also adds warmth to the space- especially during dusk with the setting sun reflecting on it.

A MARBLE CARPET

A flooring pattern with white, grey and black marble inserts leads one from the entrance corridor to the living, dining and the bedrooms.

It demarcates the circulation area and creates a welcoming atmosphere.

COMPLETING THE EXPERIENCE

In order to compliment the flooring in the entrance corridor the ceiling is dropped down and cladded in ribbed wooden panels.

The drop in the ceiling is also used to house the air conditioning for the entire space.

Portfolio_Dipanwita Sen Portfolio_Dipanwita Sen
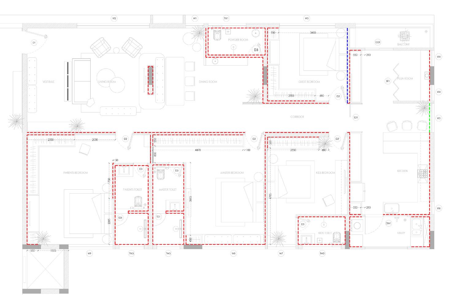
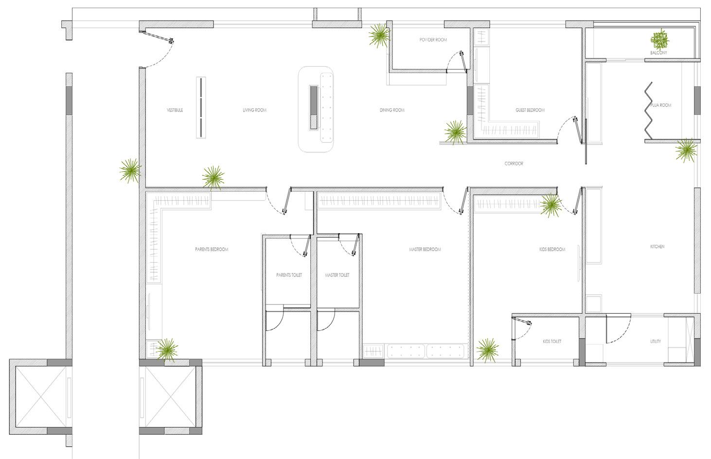
03 INTERIOR LAYOUT
04 Interior Design
Portfolio_Dipanwita Sen Portfolio_Dipanwita Sen 05 INTERIOR LAYOUT 06 LIVING & DINING Interior Design

CO-ORDINATED LAYOUTS

Portfolio_Dipanwita Sen Portfolio_Dipanwita Sen 07
08
LIVING & DINING
Interior Design

IN-HOUSE SPA

The toilet is divided into wet and dry zones using contrasting materials and a fluted glass door. Using brass fixtures the two spaces are tied together.

Portfolio_Dipanwita Sen Portfolio_Dipanwita Sen
09 MASTER TOILET DETAIL 10 MASTER TOILET DETAIL Interior Design
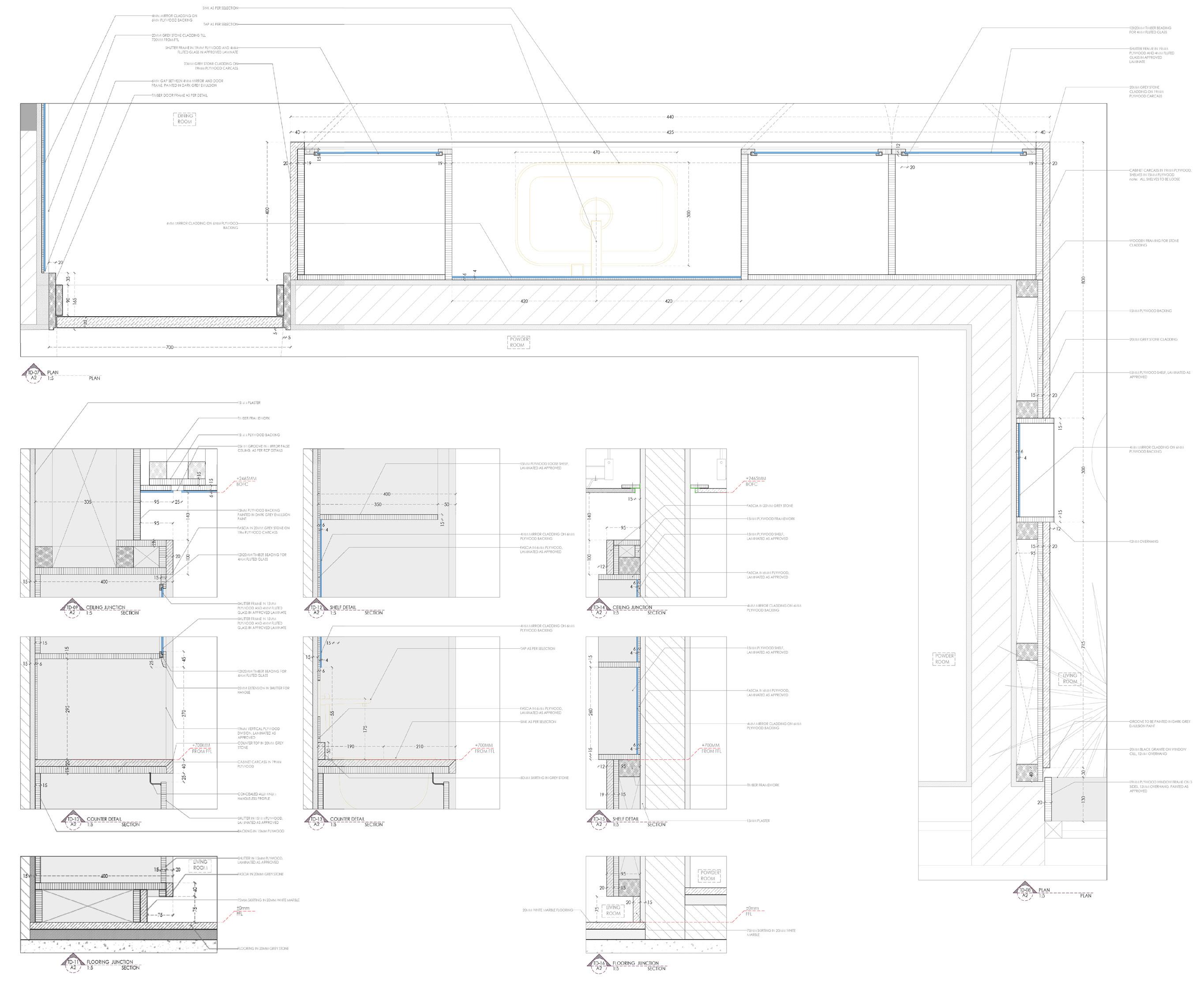
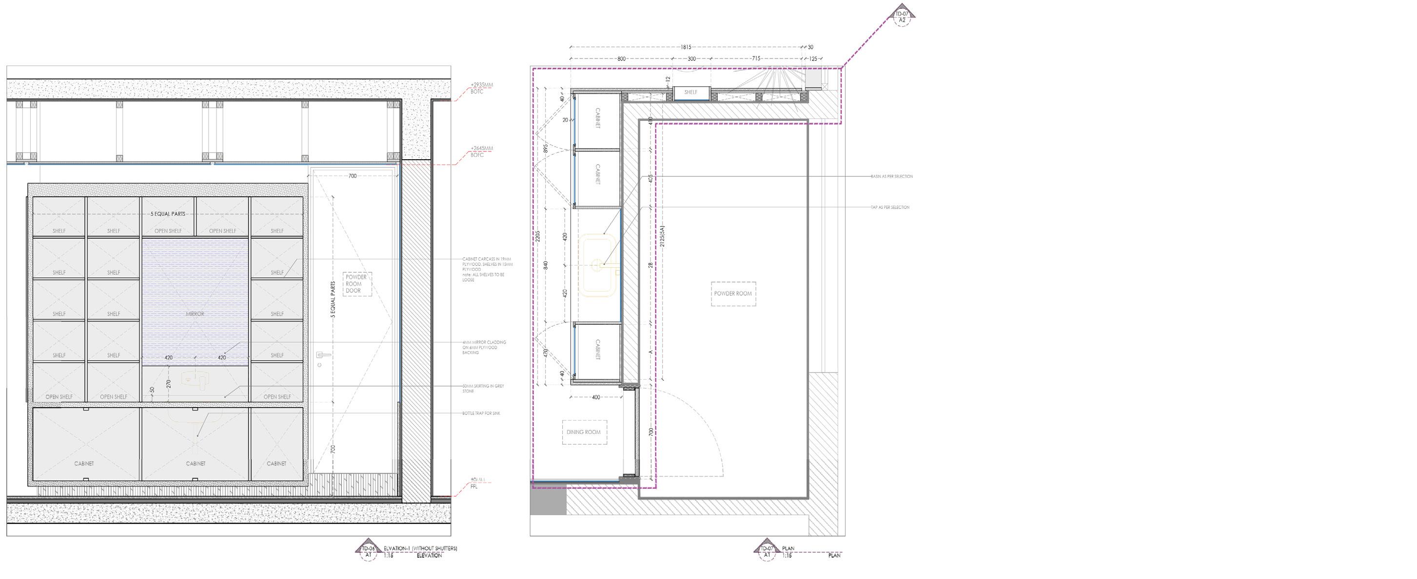
Portfolio_Dipanwita Sen Portfolio_Dipanwita Sen 11 KID’S TOILET DETAIL POWDER ROOM DETAIL 12 Interior Design
PUJA UNIT
Portfolio_Dipanwita Sen Portfolio_Dipanwita Sen 13 STUDY UNIT 14 Interior Design IN-SITU BENCH

GKB OPTICALS

Type- Commercial

Area- 670 sqft

Site- Quest mall,Kolkata

Involvement-Drawing production

The layout embraces an open concept, allowing for fluid movement and a sense of spaciousness. Marble flooring or accents add a touch of elegance, while veneer finishes on display fixtures and furniture provide warmth and richness. Sleek and minimalistic display shelving showcases eyewear collections, allowing them to become focal points within the space. Lighting fixtures are carefully selected to enhance the ambiance and highlight key areas such as the reception desk. Overall, the design exudes sophistication and refinement, creating an inviting environment that elevates the optical studio experience for both customers and staff.

Portfolio_Dipanwita Sen
02
15 16 Interior Design
Portfolio_Dipanwita Sen Portfolio_Dipanwita Sen 17 INTERIOR LAYOUT 18 Interior Design CO-ORDINATED LAYOUTS
Portfolio_Dipanwita Sen Portfolio_Dipanwita Sen 19 20 Interior Design JOINERY DETAILS
Portfolio_Dipanwita Sen Portfolio_Dipanwita Sen 21 ELEVATIONS 22 Interior Design

03

LEELA GOLD OFFICE

Type- Commercial Area- 1342 sqft

Site- Hyderabad Involvement- Designing, 3D visualization

The jewelry office interior features a warm color palette with brown tones, creating an inviting ambiance. White marble flooring throughout the space provides a clean and bright backdrop, while grey marble flooring adds sophistication and contrast in select areas. A prominent mirror wall in the reception area enhances the sense of space and elegance, while a baffle ceiling seamlessly extends from the reception to the accounts area, providing a cohesive design element. The studio area is meticulously designed to display jewelry pieces effectively, with well-placed lighting fixtures highlighting the beauty of the collections. Overall, the office exudes a luxurious yet welcoming atmosphere, perfect for showcasing exquisite jewelry.

23
24 Interior Design

RENDERED VIEWS

Portfolio_Dipanwita Sen Portfolio_Dipanwita Sen 25
PIETRA GREY MARBLE
PALETTE INTERIOR LAYOUT 26 Interior Design RECEPTION RECEPTION ACCOUNTS AREA RECEPTION
TEAK WOOD VENEER WHITE MARBLE MATERIAL
Portfolio_Dipanwita Sen Portfolio_Dipanwita Sen 27
AREA ACCOUNTS AREA ACCOUNTS AREA CABIN 28 Interior Design
ACCOUNTS
CABIN
TOILET STUDIO
TOILET

CARAVANSARAI

Type- Hospitality

Area- 1800sqft

Site- Siliguri, West Bengal

Involvement-Designing, 3d visualization,

The guest house boasts a contemporary design featuring concrete finish walls that exude a sleek and modern aesthetic. Its inviting entrance is adorned with a portico, offering a welcoming ambiance to guests. The structure is characterized by expansive arch windows, allowing ample natural light to flood the interior while providing picturesque views of the surrounding landscape. Topped with a durable metal roof, the guest house stands as a resilient and enduring structure amidst the lush greenery of dense trees, creating a tranquil and secluded retreat for visitors to enjoy.

Portfolio_Dipanwita Sen
04
29 30 Architecture
Portfolio_Dipanwita Sen Portfolio_Dipanwita Sen 31 RENDERED VIEW 32 Architecture
Portfolio_Dipanwita Sen Portfolio_Dipanwita Sen 33 EXTERIOR VIEWS 34 Architecture EXTERIOR VIEWS

05 AGARWAL APARTMENT

Type- Commercial

Area- 2000 sqft

Site- Hyderabad

Involvement- Drawing production

The apartment interior epitomizes contemporary sophistication with a neutral color palette accentuated by luxurious wood textures, achieving a seamless equilibrium between modernity and warmth. Minimalist furniture pieces enhance the sense of spaciousness while fulfilling functional needs. A distinct feature of the space is the clever use of varying levels of transparency to establish privacy without compromising on openness. This innovative approach to design is complemented by a thoughtful integration of different design elements adding layers of visual interest and depth to the overall ambiance.

35
36 Interior Design
Portfolio_Dipanwita Sen Portfolio_Dipanwita Sen 37 CO-ORDINATED LAYOUTS INTERIOR LAYOUT PUNNING LAYOUT FLOORING LAYOUT RCP LAYOUT 38 Interior Design RCP DETAILS RCP LAYOUT
Portfolio_Dipanwita Sen Portfolio_Dipanwita Sen 39 CROCKERY UNIT DETAILS 40 Interior Design CROCKERY UNIT DETAILS
Portfolio_Dipanwita Sen
THANK YOU

Turn static files into dynamic content formats.

Create a flipbook
Issuu converts static files into: digital portfolios, online yearbooks, online catalogs, digital photo albums and more. Sign up and create your flipbook.
Interior & Architecture Portfolio by Dipanwita - Issuu