Skip to main content

SELINA YAN | Architecture Portfolio 2026

Page 1


Pratt Institute | M.Arch

SELINA YAN

Art and design

SUISEKE (Group Project)

Community Greenhouse & composting facility 2025

C.R.A.F.T. (Group Project)

HIGHER EDUCATION INSTITUTE 2023

Transit & InFrastructure

architecture INTERNSHIP (Stantec) 2025-present

OTHER WORK

FINE ART, PHOTOGRAPHY, iMAGE-MAKING 2020-2026

Print & paper SURFACE TENSION COMMUNE

Open access CRAFT workshops 2024

façade system exploration & visualization 2025 NYCHA HOUSING renovation 2024

NOMAD PORTABLE ORIGAMI SHELTER 2020 THE ONE THEATRE

Intercultural theatre 2022

COMMERCIAL & RESIDENTIAL

architecturE VISUALIzATION INTERNSHIP (Hayes Davidson) 2023

rETROFIT REPORTS

NEWPOOL FARM architecture INTERNSHIP (RAFT) 2023 architecture INTERNSHIP (BiBO) 2022

ARCHITECTURAL EDUCATION

SUISEKE

Community Greenhouse & composting facility

Year: 2025

Site: Queens, NY, USA

Professor: Gisela Baurmann graduate Group project (2 members)

The waterfront composting and greenhouse center ties together other themes of recycling with the incorporation of the sustainable fashion center. Community is at the core of the project and aims to unite residents in New York City. The center will raise awareness of sustainable practices and of transforming urban food waste into usable fuel and soil. The site is bordered by industrial infrastructure and Queensboro Park. The location presents a unique opportunity to integrate industrial processing with public space. The two types of programs coexist with people and processes flowing throughout the various spaces.

This idea of grounded sustainability and machine processes manifests as pebble-like forms that are both a homage to industrial machinery and a return to our natural landscape. These soft, rounded volumes sit within the landscape as both decorative and functional buildings. There is a contrast between the natural landscape and man-made infrastructure throughout the proposal, with water even becoming part of the main design concept. The concept of flow is central to the design, but this is drawing inspiration from both the idea of flow throughout processes and the gradual flowing of water. The water within the landscape varies depending on the time of day, as it is affected by the tide. The water then becomes a mediator between the architectural design and the East River. This concept is echoed in the façade, which incorporates flowing pipes as both opaque walls and shading devices. Finally, a rippling walkway leads visitors deeper into the site from the adjacent park and invites people to discover what activities are hosted by the peaceful pebble forms. Work included are the drawings and visuals I developed as part of a collaborative design and working process.

QUEENSBORO BRIDGE
WATER
ROOSEVELTISLAND
QUEENSBORO PARK STREET
TERRACOTTA HOUSE

COMMUNITY

MARKET & COMMERCE

FERRY TERINAL

SUSTAINABLE FASHION CENTER

COMMUNITY & EDUCATION

PARKING

MANUFACTURING & INDUSTRY

COMPOSTING

Cold storage
Chemical storage
Mechanical room
Restroom
Outdoor vegetation
Flood reservoir
Truck entry & deliveries
Weighing station
Material drop-off
Truck washing station
Reception (composting)
drop-off
Secondary Greenhouse
Main Greenhouse
Storage
Restroom
Office & administration COMPOSTING
Office (composting)
Break room
Viewing area
Composting exhibition COMMUNITY & SUSTAINABLE FASHION
10. Waiting area
Dining 12. Reception (sustainable fashion)
Material & textile store
2F

SHADING DEVICE SYSTEM: METAL RODS AS LOUVERS

VERTICAL RODS (East-West

ELEVATION: NORTHWEST

Floor 1 0’-0”
Basement -19’-10”

1: Stainless steel tube, 2 3/4” diameter

2: Stainless steel mounting rail

3: Threaded titanium rod

4: Stainless steel subframe

5: Stainless steel h-profile

6: Stainless steel RHS

7: Standing seam aluminium roofing sheet

8: Sheathing board

9: Waterproof layer (EPDM)

10: Rigid insulation: 8 1/4” (3 layers, between purlins)

11: Vapour control layer

12: Sheathing board

13: Steel roof deck

14: Steel beam: 12” x 18”

15: Ceiling fixing (to composite deck)

16: Suspended ceiling system (service zone, fire-retardent, acoustically insulated)

1: Stainless steel tube, 2 3/4” diameter

2: Stainless steel mounting rail

3: Threaded titanium rod

4: Stainless steel subframe

5: Stainless steel h-profile

6: Stainless steel RHS

7: Standing seam aluminium sheet

8: Airtight layer & waterproof membrane

9: Rigid insulation: 9” (2 layers, between purlins)

10: Vapour control layer

11: Steel purlins (substructure sits alongside steel columns)

12: GFRC panel wall finish (Plywood sheathing board, panels attached with bond adhesive)

13: Steel beam: 12 x 18”

14: Secondary steel beam

15: Composite concrete and steel deck

16: Screed (with integrated radiant underfloor heating)

17: Impact -sound insulation board (x2 layers)

18: Rubber tile floor finish

19: Ceiling fixing (to composite deck)

20: Suspended ceiling system (service zone, fire-retardent, acoustically insulated)

21: Aluminium grating panel

22: Steel beam: 8” x 20” (steel member, attached back to steel column via Schock Isokorb T Type S-V)

23: Glass fibre reinforced gypsum board reveal with painted finish

24: Window (thermal glazing, toughened glass, cavity, 2× laminated safety glass in aluminium frame)

1: Drain with grate (situated around building perimeter)

2: PPC coated perimeter insulation

3: Concrete retaining wall: 1’ 3/4”

4: Airtight layer & waterproof membrane

5: Rigid insulation: 10”

6: Window (thermal glazing, toughened glass, cavity, 2× laminated safety glass in aluminium frame)

7: Glass fibre reinforced gypsum board sill with painted finish

8: Steel rod and ball joint

9: Vapour control layer

10: Metal stud wall with service zone

11: GFRC panel wall finish (Plywood sheathing board, panels attached with bond adhesive)

1: Basement concrete footing

2: Concrete ground bearing slab

3: Damp proof membrane

4: Rigid insulation (EPS)

5: Vapour control layer

6: Sill sealer

7: Screed (with integrated radiant underfloor heating)

8: Impact sound insulation board (x2 layers)

9: Rubber tile floor finish

10: External drain pipe

PRINT & PAPER

OPEN ACCESS CRAFT WORKSHOPS

Year: 2024

Site: SWINDON, UNITED KINGDOM

Professor: GRAHAM BIZLEY UNDERGraduate Project

Town centers in the United Kingdom were once the social and retail heart of communities. Dealing with the threat of rising vacant properties, Swindon High Street was sadly rated the 5th worst out of 50 of the UK’s largest towns and cities in 2019. The proposed site will help to revive the intersection point where the two streets cross. The primary aim of this project was to prompt rejuvenation within the area, allowing the streets to evolve rather than deteriorate.

The project hopes to breathe new life into the local community by proposing open-access workshops dedicated to the traditional craft techniques of print and papermaking. These workshops will serve as a hub for creativity and sustainability and a symbol of future growth. Accessible to all, the building will encourage artistic exploration, learning, and skill development. The program fosters sustainability by reusing the existing basement structure and integrating an outreach program using Swindon’s waste paper for hand-crafting. The reuse of the previous building’s concrete basement promotes refurbishment as a way to reduce carbon emissions. The approach also presents the opportunity to showcase the interplay between Swindon’s past and present. Inspired by origami, the folding façade pays homage to papercraft while embodying the functions and purpose of the building. This narrative is consistent throughout the design, with structural features leaning into the idea of folding and paper’s transformative qualities. Exploring the material theme further, visitors are taken on a journey through the building as each floor represents a part of paper’s story and life cycle.

FLEETSTREET

FLEETSTREET

BRIDGE STREET
QUEEN STREET

3F: administration & workshop

Printmaking (Secondary workshop)

Administration

Shared Kitchen

Plant & building services

2F: printmaking

Printmaking (Main workshop)

Printmaking (Secondary workshop)

Plant & building services

1F: front of house & papermaking

Front of house (entrance & shop)

Gallery

Papermaking

Administration

Plant & building services

Basement: education & community

Education & community

Café

Plant & building services

SECTION

New-build

Existing basement

25. Printmaking workshop: Intaglio, Planographic, Stencil, Relief
Aqua tint

CONCEPTS: PLAN

CENTRAL LIGHT

CONCEPTS: section

LIFE CYCLE OF PAPER

CIRCULARITY

VERTICAL CONNECTIVITY

OPEN PLAN ENTRY FOYER

PROXIMITY TO NATURE

PULLING BACK FROM THE EDGE

OLD VS. NEW

THE STORY OF PAPER GARDEN: PLANT SPECIES

Cotton (Gossypium spp.)
Oak (Quercus spp.)
Papyrus (Cyperus papyrus) Willow (Salix spp.)
Mulberry (Morus spp.)
Birch (Betula spp.) Nettles (Urtica dioica) Flax (Linum usitatissimum)

PLASTERBOARD

INSULATION

STAINLESS STEEL FRAMEWORK

ALUMINIUM TRANSOMS & MULLIONS

FRITTED GLASS PANEL

PRE-FABRICATED FAÇADE PANEL

ORIGINAL BUILDING

Origami-inspired diagonal grid

Structural Grid (orthogonal & diagonal

diagonal system)

Structural grid

Primary beam

Secondary beam

Tertiary beam

Column

CLT structural core

HIGHspecific ation glazing

(with summer bypass) stack ventilation underfloor heating

rainwater attenuation tank

Sustainable drainage systems (permeable paving & stormwater planters)

SURFACE TENSION

façade system exploration & visualization

Year: 2025

Site: 500 Park Ave, MANHATTAN, NY, USA

Professor: Ramon Pena Toledo graduate project

Surface Tension explores ways to develop ideas for façade systems through image-making and visualization techniques. The proposal is a reinterpretation of the existing 500 Park Avenue building. The corner location and existing glazing become a basis for adapting the building’s massing and structure to create a conceptual architectural skin. I have always been drawn to forms that appear soft or fluid because of their illusion of continuous movement. I wanted to investigate this idea by emphasizing the tension brought about when a solid material can have an implied weightlessness through its form. This tension questions the idea of ephemerality and permanence.

Contrast and layering in these images display the façade as a device for igniting curiosity about what is contained within the building. Inside is a dynamic, multi level retail and concept store where creators from various creative fields can come together to showcase their work in an ever-changing landscape of experiential installations. The exterior responds to this environment by revealing glimpses of the vibrant interior through strategic openings and materiality that frame curated display moments. The existing concrete structure is draped in a clear, softly distorted skin. These two materialities are in deliberate opposition: heavy versus light, fixed versus seemingly fluid. The soft fabric-like façade follows the form of bay windows, which shift in and out of the building’s skin and serve as display opportunities. The secondary sheer façade varies in opacity and reflectivity to catch the light differently throughout the day while revealing selected interior spaces.

The bubble-like forms give a sense of visual rhythm, guiding the eye upward and in. The temporal nature of bubbles hints at the dynamic, ever-changing interior installations. Ultimately, the façade begins to blur the boundary between display and engagement.

PHYSICAL MODEL

NYCHA HOUSING RENOVATION

Year: 2024

Site: Brooklyn, NY, USA

Professor: James Garrison

Graduate Project

Project showcased at the RE:AL ESTATES RESTRUCTURED LIVING EXHIBITION (2025)

The refurbishment of the Bushwick NYCHA housing project redefines urban community living by transforming isolated blocks into interconnected, inward-facing courtyard clusters. The design activates the street level with communal spaces and landscaped areas, fostering interaction and belonging among residents. The design links existing residential blocks in pairs with new additions, forming courtyards lined with curved terraces. These terraces serve as circulation routes for the apartments and communal spaces, overlooking a shared courtyard. This arrangement promotes community engagement while maintaining privacy for the residents. The building forms are kept simple to ensure cost-efficiency and consistency. This approach supports the project’s function as housing and allows for repeatable elements. While the form adapts to different site contexts, the architecture remains minimalist, acting as a backdrop for community activities. While creating enclosed courtyards, the design maintains open visual connections and lines of sight through strategic openings. This openness preserves the site’s connection to the surrounding urban environment and ensures the housing complex remains welcoming to residents and the community.

The aims of the amenities provides are to promote Community, Healthy & Sustainable Lifestyles, and Intergenerational Living. These are all essential in fostering a holistic environment that benefits the wellbeing of residents. The amenities have a focus towards long-term environmental and social sustainability. Community strengthens social ties and creates shared spaces for interaction. Prioritizing healthy & sustainable lifestyles will improve overall physical and mental health of residents. This encompasses the provision of community exercise/activity spaces and shared food production allotments. Intergenerational living encourages diverse age groups to coexist and benefit one another. From the initial research, it was noteworthy that many lived alone in the existing apartments. Flexible living will enable families to grow over time and to downsize later if necessary while providing facilities catering to all ages will help preventing feelings of isolation. The housing proposal presents flexible and dynamic spaces that will form the basis of a supportive community that evolves with residents’ changing needs.

Existing apartment buildings

Demolished

ENCLOSED COURTYARDS SOLID VS. VOID

STREET LEVEL AMENITIES

SHARED SPACES & CONNECTION

COMMUNITY, SUSTAINABLE LIFESTYLES & INTERGENERATIONAL LIVING

PHYSICAL & MENTAL WELLBEING (Health services, Sport & exercise, physical activity)

WORK & ENTERTAINMENT (RETaIl, co-working spaces, studio spaces)

COMMUNITY & ENGAGEMENT (InteRgenerational daycare)

Toddler Child Young Adult Parent Senior

STREET LEVEL: 1F FLOOR PLAN N

Greenhouses & urban farming spaces

Community use (multi-purpose culture, arts & dining)

Commercial & Retail units

Workspaces: Creative/Maker studio space, Music studios, Offices

x2 story arrangement: ‘lower’ floor plan

Greenhouses & urban farming spaces

Community use (multi-purpose culture, arts & dining)

Single story apartment 500-750 sqft (x1 bedroom, bathroom, kitchen/living/dining)

Single story apartment 750-1000 sqft (x2 bedroom, bathroom, kitchen/living/dining) N

x2 story arrangement: ‘upper’ floor plan

Single story apartment 1250-1500 sqft

(x3 bedroom, bathroom, kitchen/living/dining)

Small duplex 750-1000 sqft

(x3 bedroom, x2 bathroom, kitchen/living/ dining, study/lounge)

Large duplex 1250-1500 sqft

(x4 bedroom, bathroom, kitchen/living/dining, study/lounge)

1: Timber hardwood floorboarding

2: Plywood subfloor and adhesive

3: Screed with underfloor heating

4: Waterproof membrane

5: 2 x Chipboard glued

6: 5 layer CLT

7: Ceiling fixing (to CLT)

8: Suspended ceiling system (fire-retardent, acoustically insulated, timber finish)

9: Glulam Beam

10: Insulated glass door (double glazed with low-e coating and argon gas infill)

11: Aluminium door frame

12: Sill sealer

13: Timber door sill and deck

14: Timber-finish panel

15: Pre-cast concrete plank (Hollowcore concrete)

16: Steel support angle (bolted to CLT)

17: Steel angle for wood siding support

18: Vapour permeable membrane

19: Rigid insulation

20: OSB

21: Airtight layer and waterproof membrane

22: Cedar cladding (vertical)

23: Metal flashing

24: Wood head jamb

25: Aluminium window system with insulated glazing (double glazed with low-e coating and argon gas infill)

26: Aluminium window system with insulated glazing (double glazed with low-e coating and argon gas infill)

27: Timber Window sill

28: Sill sealer

29: Steel support angle

30: Steel angle for wood siding support

31: Gymsum board

32: Batt insulation

33: Exterior plywood sheathing

34: Vapour permeable membrane

35: Rigid insulation (extruded polystyrene)

36: OSB

37: Airtight layer and waterproof membrane

38: Cedar cladding (vertical)

1: Raised terrace system (adjustable pedestal heights, timber porcelain finish decking)

2: Waterproof layer and breather membrane

3: Pre-cast concrete plank (hollowcore concrete)

4: Tension cable

5: Concrete planter edge

6: Planter soil

7: Substrate

8: Drainage channel

9: Concrete render finish

10: Pre-cast concrete plank (hollowcore concrete)

11: Concrete cap (with render finish)

12: Steel support beam

13: Shim and grout

14: Welded beam attachment (tab welded to W section bottom flange)

15: Clevis

16: Adjustment/tightener for (tenson cable)

17: Tension cable

PHYSICAL MODEL: CHUNK

c.r.a.f.t.

CenteR for Renewable AdvanceD Fabrication of TimbeR

HIGHER EDUCATION INSTITUTE

Year: 2023

Site: Swindon, United Kingdom

Professor: ROBERT GROVER

Undergraduate Group project (4 members)

Finalist for TED HAPPOLD PRIZE

The work for this project is from the Happold Foundation Project which is an annual collaborative project at the University of Bath for final-year architecture and engineering students. The primary goal of this jointdegree project is to promote integrated ways of thinking within construction and architecture. The project site was located in Swindon. The brief is to design a STEAM institute in Swindon with a focus on two subjects. The institute will be attended by 6000 students, of which 120 will have on-site accommodation. As a group, we collectively thought it was imperative that we design spaces that enhance the existing context. Therefore, our primary focus was on creating a scheme that gives back to the local community through regenerative design principles. This belief forms the foundation of our design to enhance Swindon socially, economically, and environmentally.

In response to the prevailing challenges in Swindon, we created CRAFT (Center for Renewable Advanced Fabrication of Timber). The center emerged as a solution to address a significant skills gap and the overemphasis on a singular industry. The town’s reliance on a specific sector has rendered it vulnerable, resulting in limited diversification of skills and industries. Recognizing this skills gap, we have designed a scheme that integrates practical skills with theoretical research to equip individuals with a versatile skill set. CRAFT’s focus on Timber Engineering and Mechanical & Electrical Engineering is intended to enrich Swindon socially, economically, and environmentally, paving the way for a new industry aligned with the town’s tradition of innovation. This initiative is poised to shape Swindon’s future and play a pivotal role in revitalizing the construction industry, particularly in pre-fabricated housing. As housing is a widespread issue both locally in Swindon and nationally across the UK, our combination of subjects will have long-term benefits for tackling this crisis. I have included the drawings and visuals I developed, the concept and design were developed collaboratively.

PHASE 1: STRUCTURAL CORES & SITE PREP

STUDENT VILLAGE

PHASE 2: WORKSHOP

3:

30 years post-completion of design proposal (Housing for students)

PHASE
FRONT OF HOUSE

PHASE 4: ACCOMMODATION

PHASE 5: AUDITORIUM

PHASE 6: REMAINING EDUCATION BLOCK & ATRIUM

RECYCLING FACILITY

20 years post-completion of design proposal (Research lab in collaboration with recycled clt)

LEARNING & WORKING PLAN 1F

Delivery Bay
Timber/M&E Machine Workshop
Goods Lift
Student Work Storage 5. Secondary Exhibition Space
Female WC
Male WC
Accessible WC
Shared Large Machine Workshop
Plant room
Female Changing
Male Changing
Main Exhibition Space
Food Storage
Kitchen
Staff Changing
Gender Neutral Toilets
Cleaning Store
Dining Hall

LEARNING & WORKING

HOUSING & LIVING

Planning permission & site preparation

Excavation & concrete foundation cores

glulam frame construction

CLT MODULE construction

Glulam frame construction

interiors & services

Workshop construction

Educational construction

HOUSING & living PLAN 5F 1.

Plant 2. Terrace Access and Storage
3. Flat of 8
4. Flat of 12
(With x1 accessible bedroom)
5. Kitchen
6. Cleaning storage

Module type 1: x2 large bedrooms

Module type 2: corridor x2 bedrooms

Bedroom Module Type 2
Bedroom Module Type 1

NOMAD

PORTABLE origami SHELTER

Year: 2020

Art & Design Foundation

Functionality and transportability were the key aims throughout this project. I aimed to craft a folding shelter with the exploration of core origami principles. I wished to explore the collapsible nature of origami and its potential use for creating temporary structures that are easy to transport. There was a challenge in designing a structure which is stable during use yet can be compacted and light when folded. I created a 1:2 prototype model to trial whether the idea indeed functions in real life. The final result was successful in providing both practicality in its deployed state and compressible for convenience during transportation or storage. I hope to always come back to this idea of converting between 2D and 3D. This conversion between sheet material and structural forms intrigues me. These ideas are also particularly relevant to using materials resourcefully when thinking about sustainability.

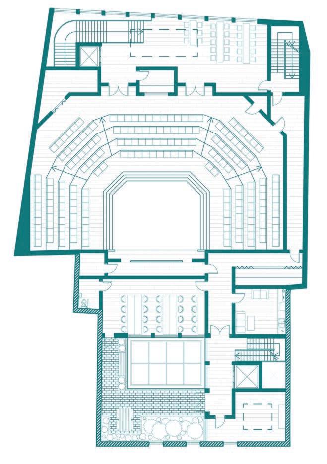
THE ONE THEATER

INTERCULTURAL THEATER

Year: 2022

Site: OXFORD, United Kingdom

Professor: Mark Wray

Undergraduate project

Theatre productions should reflect the communities they perform in. In turn, promoting diversity of interest and representation within the industry. This project is set in the city of Oxford which has the third highest population of ethnic minorities within the South East of England. There is also an extreme disparity in wealth in the same city which further indicates a degree of inequality which may not immediately be associated with Oxford. As a response, I chose to design an intercultural theatre which serves as a platform for narratives and stories from people of various cultural backgrounds to be shared with one another. Part of this project will be addressing this disparity, by understanding how architecture might represent and support marginalised communities. Many theatres already exist in Oxford but there is not currently a theatre which represents the multicultural demographic of Oxford.

The building simultaneously acts as a community hub with the provision of a film and theatre workshop spaces. Public access to these facilities and classes enables more opportunities for people to get involved with the film and theatre industry. This in turn encourages representation. Creating an environment which focuses on community helps to foster connections between people. The theatre will boost individuals’ sense of belonging, encouraging unity among the residents of Oxford. The workshop, public amenities and intercultural theatre are combined under one roof to become architecture that is of, and for, the people of Oxford. The site is bordered by two busy streets. The design addresses these two frontages by treating the ground floor as an extension of the external street both in the north and the south. The stone façade of the existing south elevation will be preserved due to it being a Grade I listed building. The notional floor levels of the Georgian stone exterior are used as a guide for the internal floor heights. Existing masonry is paired with a copper roof which is inspired by vernacular architecture of Oxford which features many patinated copper roofs. The patinated copper roof stretches across the building and is met with copper standing seam cladding. The variation in copper’s aging is an expression of the existing masonry being integrated with the new-build in the north of the site.

INTEGRATION OF NEW AND OLD

EXTENSION OF both STREET FRONTAGES

COMMUNITY GATHERING PLACE

Existing walls to be kept

Foyer
Reception
Cloakroom
Bar
WC
Photography & film studio
Photography Dark Room
Drama studio & rehearsal space
Media & postproduction
Workshop space
Café
Staff & cast entrance
Storage (stage equipment)
Control room
Breakout area
Auditorium
Dressing room (main)
Dressing room (green room)
19. Roof garden
Prayer room
Administration
Break room
ELEVATION: NORTH
ELEVATION: SOUTH

ENVIRONMENTAL

STRATEGIES:

COPPER ROOF

GLULAM TIMBER FRAME

roof structure

GLULAM TIMBER FRAME

3f structure

CLT

3f floor plate

GLULAM TIMBER FRAME

2f STRUCTURE

CLT

2f floor plate

GLULAM TIMBER FRAME

1f STRUCTURE

STONE FACADE (existing)

CONCRETE FLOOR GROUND BEARING SLAB

PROFESSIONAL WORK

Transit & Infrastructure

architecture INTERNSHIP STANTEC, 2025 - present

At Stantec, I have been working on the transit and infrastructure team. Their projects are mostly involved with agencies such as MTA, NJ Transit, and PANYNJ. I supported the overall production of drawings across a diverse set of projects at various stages of completion. I also helped with 3D models and rendering. I’ve also become more aware of the regulations and submission processes for the design package associated with several transit agencies. The experience has definitely felt rewarding as I’m able to contribute to the infrastructure of New York City and the surrounding areas. Specific drawings and further project information cannot be shared for confidentiality reasons, but I have shown renders I produced using a shared BIM model.

COMMERCIAL & Residential

architecture VISUALIZATION INTERNSHIP Hayes Davidson, 2023

My internship at Hayes Davidson involved assisting with the production of high-end architectural visualizations for commercial and residential projects. I contributed to the overall scene composition and setup, but mostly to material refinement and post-production. I enjoyed working alongside senior visualization artists to deliver professional renders for clients. My work aimed to create the desired atmosphere and accurate realism of materials within the final image. Ultimately, I learned the impact of an image on communicating spatial intent and an overall architectural design narrative. The renders displayed below were assigned to me individually, but they form part of a larger portfolio of images. Details of these projects are withheld for confidentiality reasons.

Mansard insulation (unseen in this image)
Pitch roof insulation (unseen in this image)

RETROFIT REPORTS

architecture INTERNSHIP RAFT, 2023

My role as a Part I Architectural Assistant at RAFT involved supporting tasks across various retrofit projects. These projects mostly ranged from RIBA (Royal Institute of British Architects) stages 0-3 and enabled me to form a well-rounded understanding of approaches to retrofit. I was introduced to PHPP (Passive House Planning Package) software and learned how evidence-based data analysis can be a tool when making design decisions as well as recommendations. I enjoyed seeing how sustainable approaches within architecture have real potential to improve our health while also reducing energy costs.

Although I worked on various projects for the deep-retrofit of schools, I was fortunate to be a part of the SBDE-14 project. The project involved producing heat decarbonisation plans, airtightness reports and thermography reports for 14 schools within the London Borough of Southwark. I was tasked with creating architectural diagrams and data-related graphics for reports across 3 of the 14 schools. Working on various reports taught me the importance of in-depth energy performance analysis when aiming for truly sustainable buildings. I also saw how each retrofit scenario is unique and there is not a universal solution to achieving zero-carbon based on building typology. These reports would be the first step for each school’s journey towards a low-carbon future. They could serve as a guide for what building measures to implement and which of these should be prioritized. I learned how the information within the reports is crucial as a tool to secure funding for the recommended measures. Retrofit contributes to reducing costs and energy usage while optimizing existing infrastructure. As an approach, retrofitting helps schools to manage their energy demands, saving money which enables schools to allocate the funds towards education. With budget constraints and cuts in education funding, removing excessive energy expenses and fostering sustainability will hopefully have benefits towards the local community beyond the school itself. Below and to the right is work from the St Saviour’s & St Olave’s School heat decarbonisation plan as an example. The school had eight blocks in total but the work and research shown here is focused on Block B only.

The graph on the left illustrates the school’s total annual carbon emissions, and how these will be reduced year on year from 2023-2030. In the short term the school may see a slight increase in its energy bills due to electrification of services but will see it reduce significantly once the building fabric is upgraded and ASHPs (air source heat pumps) are introduced.

Annual running costs are calculated based on an average unit price of 10.7p/kWh for Gas and 30.2 p/kWh for Electricity. No standing charges are taken into account.

long TERM RETROFIT WORKS

NEWPOOL FARM

Newpool Farm is a disused area of agricultural land which a commercial land owner is looking to transform into a local tourism destination. This would involve the conversion of the existing long barn to the north-west of the site into two short-stay holiday lets, the demolition of existing dilapidated barns to allow for the provision of a single-story reception building with storage facilities, and the provision of 8 glamping cabins surrounding the ponds to the north east. The client was mindful from the beginning of the project to engage and take advice from a diverse consultant team to ensure that the proposals for the site would be viable and with a strong business case, but also sympathetic to the ecologically and environmentally sensitive site.

The majority of my time on placement was focused on work for the Newpool Farm project. I assisted in the design for the glamping cabins, two holiday let barn conversion homes and two car ports to go with each holiday home. This design process initially involved producing hand-drawn notional sketches before progressing onto digital technical drawings. Using a similar design process, I helped finalize the glamping cabin locations and the site’s board-walk connectivity strategy. My role within the scheme’s overall branding and marketing was to research possible branding options for the project as a whole as well as to create indicative visuals. The goal of the visuals was to help achieve successful planning application and to sell the designs as a viable tourism experience. This project’s planning application has since been approved.

ART & DESIGN

ARCHITECTURAL VISUALIZATION, 2026

ARCHITECTURAL VISUALIZATION, 2023

DREAM HOUSE
SPRING: 51 West 70th Street NEW YORK City
DIGITAL ILLUSTRation, 2023
DUBROVNIK - 35MM film
SINGAPORE - 35MM film

AMSTERDAM - 35MM film

Girona - 35MM film
fine art (PAINTING), 2020
paint
LIFE DRAWING SKETCH, 2021
slipper
GRAPHITE Pencil
SELINA YAN Portfolio

Turn static files into dynamic content formats.

Create a flipbook
SELINA YAN | Architecture Portfolio 2026 by selinakatyyan.com - Issuu