P&T Consultants_Internship Portfolio of Drawings

Page 1


AR4421

ARCHITECTURE INTERNSHIP PROGRAMME

P&T CONSULTANTS PTE LTD

AY2024/2025 SEMESTER 1

PORTFOLIO OF WORKS 03 JUNE 2024 - 02 DECEMBER 2024

BY: SEK YONG JUN

P&T Group traces its roots back to 1868 when founder William Salway arrived in Hong Kong from Australia to establish a design practice in response to the growing demand for more elaborate buildings. Today, P&T Group stands as a distinguished and internationally recognized architectural engineering firm in the Southeast Asia Region. Regarded as one of the largest consultancies globally, the team of over a thousand experienced professionals operates across more than 70 cities, contributing to millions of square meters of floor area designed and completed each year. Their comprehensive services encompass architectural, structural, and mechanical engineering, along with planning and project management, all supported by their own in-house interior and graphic design departments. Their services extends to architectural, structural, and mechanical engineering, alongside planning,project management, interior and graphic design, model making, and extensive technological support, providing a complete package for total design solutions.

Image taken from https://web.p-t-group.com/en/about/company-profile.php

1.2 INTRODUCTION - ROLES AND TASKS

My Objectives

This is my second official internship, the first being the one I completed during my polytechnic course. I chose P&T Consultants mainly as I wanted to diversify my experience in the architecture industry. As my previous internship experience was at a small firm, I wanted to see how a large firm operates. A large firm handles a wider range of project portfolio, usually bigger in terms of scale, complexity and typology. I can get a larger exposure and more opportunities to try different types of projects in various stages of their timeline.

Another important goal is the need to understand and see first hand the architect’s relationship with key players such as clients, suppliers, contractors, engineers and landscape architect. This is vital as the internship will cover the largely practical knowledge as opposed to the theory learnt in school.

Roles and Tasks as a Design Intern of PTA (the architectural wing of P&T Consultants)

My main role as a design intern is to assist architects on various stages of projects using both architectural software tools to microsoft office to develop drawings, sketches, 3D models, project documentation and presentation materials.

I participate in design meetings and accompany architects to site visits and observe construction progress. Through this, not only do I participate in collaborating and communicating with fellow colleagues, clients and contractors on the interdisciplinary tasks helmed by different people, I also gain practical experience on how design ideas are implemented in the built environment

Image taken from https://web.p-t-group.co m/en/index.php

2. PROJECTS

Overview

Throughout my time as an intern at P&T Consultants, I have had the opportunity to be a part of four projects within the Private sector of mainly Condominiums and one Mix-used Development. In addition, I designed a Condominium Showflat Sales Gallery and managed to be present from conceptualisation to construction.

As this is my first time designing condominiums, there were many key differences in terms of design thinking in terms of how to market it as a more “luxurious” home. From the micro scale of furniture and unit layout to the macro scale of building facade, amenities and even choosing the material and colour palette. All are key considerations as they affects the selling point of the project as a whole. I used to think that “rectangular blocks of houses” do not require much design thinking, but I realise that even though they look similar from afar, each project is meticulously conceptualised and sensitive to its surroundings and its target audience. Designing housing’s main purpose is for the units and amenities to be people centric.

2.1 PROJECT 1: HOLLAND DRIVE CONDOMINIUM

^ Rendering as of 10072024

^ Rendering as of 05072024

^ Site Plan

^ Concept Sketch

2.1 PROJECT 1: HOLLAND DRIVE CONDOMINIUM

OVERVIEW OF PROJECT:

Holland Drive Condominium is a 37 storey private residential development consisting of 2 standalone blocks. Block 1 has 10 units per core while Block 2 has 8 units per core. 3 unit types from 2 bedroom to 4 bedroom with a total of 17 different configurations.

TASKS & DELIVERABLES:

-Studying and making adjustments to unit and block plans of a private residential project to ensure it fits clients brief and maximises GFA. -Preparation of presentation materials/drawings for client consultant meetings.

SOFTWARE USED:

-AutoCAD floor plan drawings for individual units and overall site plans, sections, -Excel sheet tabulation -Powerpoint presentation preparation

DURATION: WEEK 01 - 04

REFLECTION:

One of my primary responsibilities has been analyzing the comments and drawings made by the Architect regarding the spatial layout and adjusting unit and block plans to align with the design and optimizing the Gross Floor Area (GFA).This experience has broaden my understanding of an Architect’s duty in constant refining of work. There will always be changes that sometimes require me to take a few steps back and start again due to the volatile nature of the client’s request and the architect’s ideas. Thus, I learn to adapt and be open to these requests in changes, even if it means to undo work that I’ve done previously because the idea before was better. Through this month long task, I was able to deepen my technical skill set in AutoCAD, communication skills with my colleagues, and the importance of presenting ideas visually, ensuring clarity of thoughts.

2.1 PROJECT 1: HOLLAND DRIVE CONDOMINIUM

^ Typical comments drawn by Architect that requires me to edit

^ Typical written comments compiled on PPT that requires me to edit

2.1 PROJECT 1: HOLLAND DRIVE CONDOMINIUM

2.2 PROJECT 2: ANSON RD MIXED

2.2 PROJECT 2: ANSON RD MIXED USE COMMERCIAL

OVERVIEW OF PROJECT:

Anson Rd is a single block mix-used re-development in the heart of the CBD.

TASKS & DELIVERABLES:

-Assisted in Anson Road Mixed Development by Hong Leong Holdings on the architectural development of the common areas ie sky garden and common area facilities.

-Assisted in the tender package for main contractor tender design intent documentation and showflat tender documentation for upcoming redevelopment sales gallery at #03-00 Hong Leong Building.

SOFTWARE USED:

-SketchUp Modelling of Core Walls Iterations, Office & Residential Sky Terraces, MSCP. Detailing of Letter Boxes

-AutoCAD Tender Drawings for Showflat, Carpentry Finishing

-Powerpoint presentation preparation

DURATION: WEEK 04 - 08

REFLECTION:

SketchUp was mainly used as this project required spatial and detailed designing, material and lighting design. The various tasks from skyy terraces to the MSCP require a more interior design perspective as to how to make the spaces visually aesthetically and pleasing. For the Sky Terraces I did several tile layout designs for the Core Walls and re-designed the sky gyms. As for the MSCP, I started the design of the lobbies from scratch. I first did up a few iterations for the metal screen wall, which serves as a barrier between the road and the lobby. Next, I designed the false ceiling and letter boxes, complete with lighting. Lastly, I helped with the tender package with regards to the Anson Showflat, editing the floor plan and drawing out the cabinetry works for the office and pantry. Through this project, I brushed up on my SketchUp skills and manage to converse with my architect regarding design ideas. Choosing and differentiating materiality plays a huge part in real world projects.

^ Typical comments drawn by Architect that requires me to edit
^ Typical comments drawn by Architect that requires me to edit
^ Process Work

^ Typical comments drawn by Architect that requires me to edit

^ Final design outcome of the MSCP lobbies

^ Designing the Anson Showflat Reception
^ Showflat: Drawing the Cabinetry for office and pantry

2.2 PROJECT 2: ANSON RD MIXED USE COMMERCIAL

Tender Drawings: Units 1BR-S1 and 3BR2 in

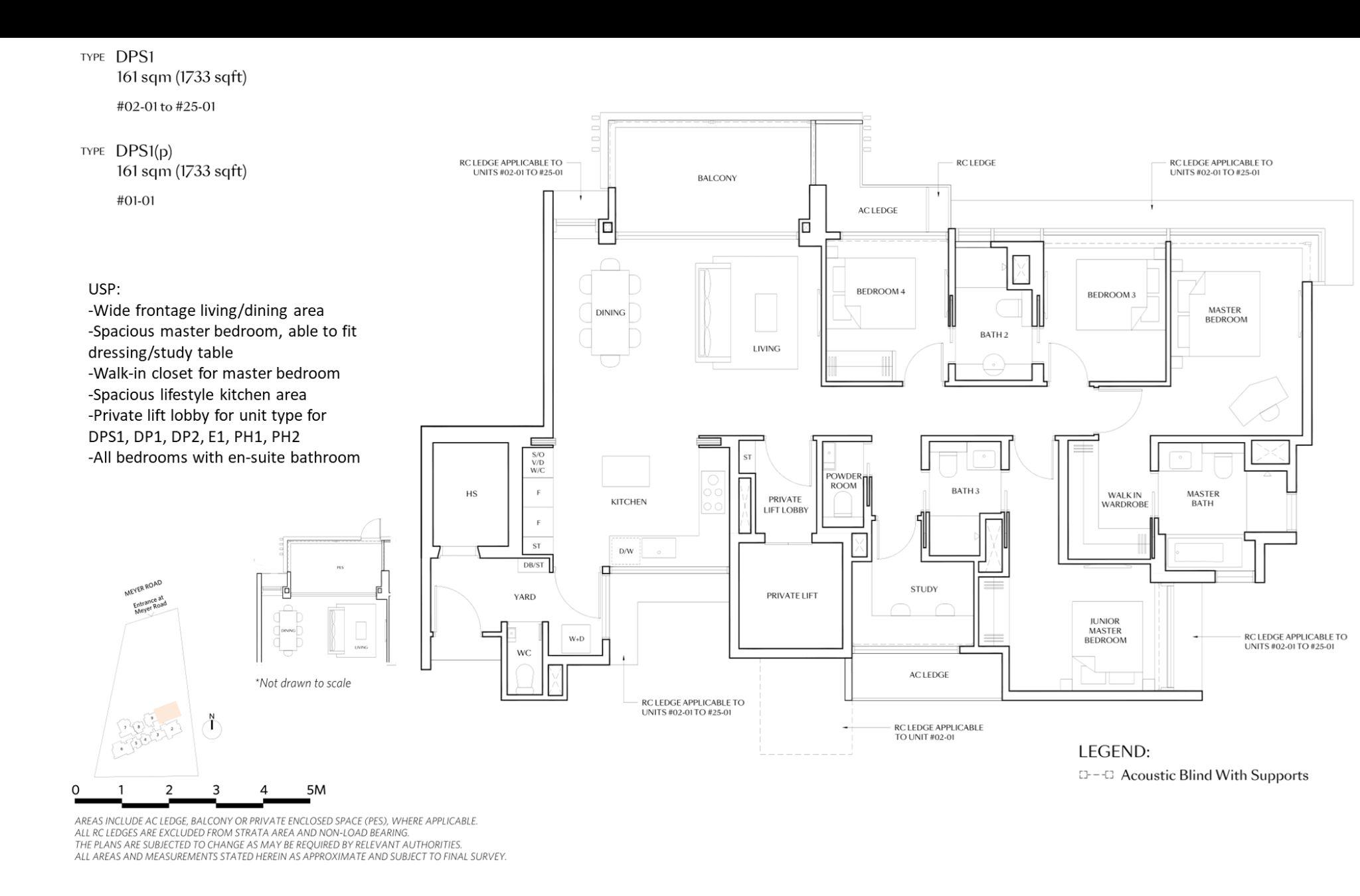
2.3 PROJECT 3: MEYER ROAD - MEYER BLUE CONDOMINIUM

OVERVIEW OF PROJECT:

Meyer Blue is a single block private residential development along Meyer Road.

TASKS & DELIVERABLES:

“During the internship at P&T, YJ significantly contributed to the architectural team by assisting with various tasks. In Meyer Blue project, he worked on massing modelling and building design using sketchup, developed agent briefing slides, and engaged in some design studies. Additionally, he played a key role in creating presentation materials that enhanced our project proposals. His efforts have greatly supported the team, and we are pleased to have him as part of our group!” -Architect Mo Islami (PTA)

SOFTWARE USED:

-SketchUp Modelling -AutoCAD

-Powerpoint presentation preparation for Meyer Agent’s Briefing Package -Photoshop

DURATION: WEEK 08 - 16

REFLECTION:

For the first part of this project, I developed the common corridor and common area gates for the main development on SketchUp. As with other projects, I came up with a few iterations for the architect and clients to decide, and implemented them on the 3D file. Thereafter, I created a Powerpoint Package with key details on location, design and detailing of the gates across the project. The subsequent weeks are spent on creating a full powerpoint package to present to the client. I learnt many techniques on how to use powerpoint effectively to my advantage and how to arrange the drawings and annotations in a professional way. I also use photoshop to render site plans, maps, and diagrams.

2.3 PROJECT 3: MEYER ROAD - MEYER BLUE CONDOMINIUM

2.3 PROJECT 3: MEYER ROAD - MEYER BLUE CONDOMINIUM

^ Main Development 1st Storey Lift Lobby Gates Iteration Process

2.3 PROJECT 3: MEYER ROAD - MEYER BLUE CONDOMINIUM

^ Preparing Site Analysis

2.3 PROJECT 3: MEYER ROAD - MEYER BLUE CONDOMINIUM

2.3 PROJECT 3: MEYER ROAD - MEYER BLUE CONDOMINIUM

^ Circulation Plan

^ Distance with other development Plan

Schematic Section

^ Levels measured in Singapore Height Datum (SHD)

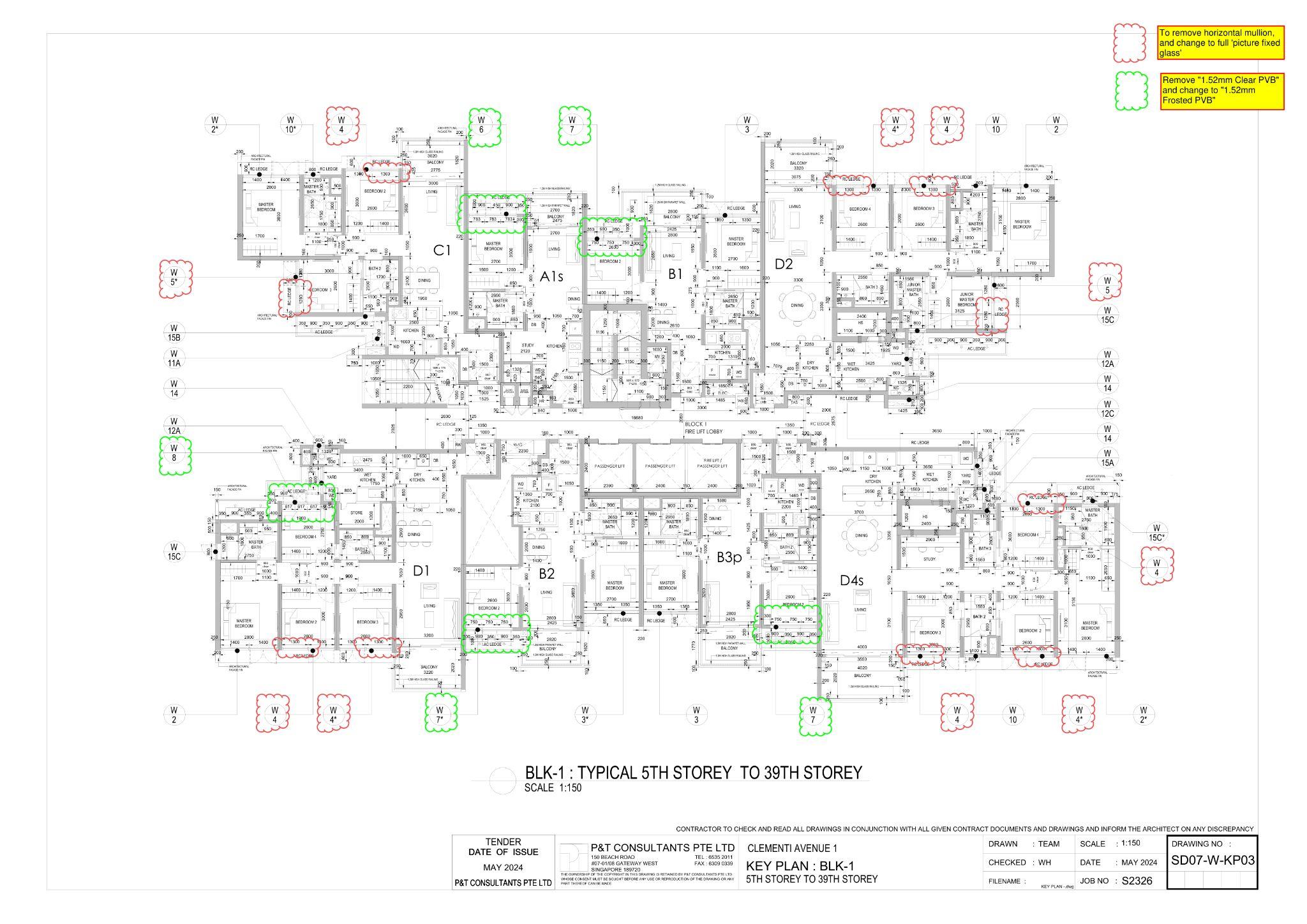
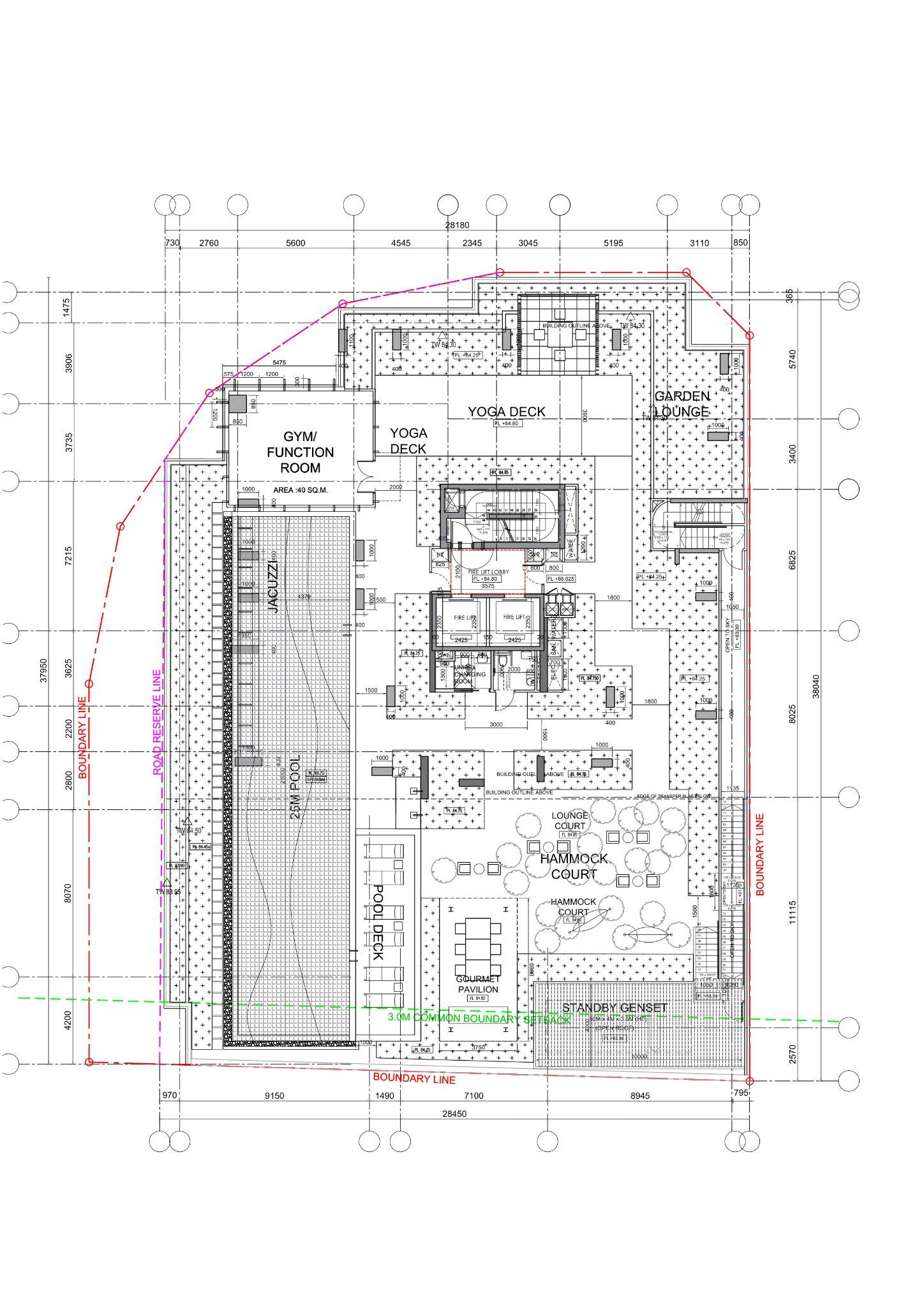
2.4 PROJECT 4: CLEMENTI AVENUE 1 - ELTA CONDOMINIUM

2.4 PROJECT 4: CLEMENTI AVENUE 1 - ELTA CONDOMINIUM

OVERVIEW OF PROJECT:

ELTA is a two-block private residential project along Clementi Avenue 1.

TASKS & DELIVERABLES:

- Assisted the design team on Clementi Avenue 1 Condominium Development of 501 Units with 3 Storey MSCP, Basement & Landscape Deck at 4th Storey.

-Assisted in the design development of the main development common areas, and sales gallery design development.

-Assisted in other ad-hoc tasks required for development sales launch ie agents briefing documentation.

-Assisted in the design of Clementi Sales Gallery Showflat at Prince Charles Avenue , a single storey temporary building.

-SketchUp Modelling of Main Development (MSCP, Process Massings, Facade Windows, Clubhouse and Signage) and Showflat

-Powerpoint presentation preparation for Agent’s Briefing

This is my first time designing a showflat for private residential development. Due to the client’s large budget allocated for the showflat, there are many elements such as the outstanding signage, the water feature and large format marble tiles not seen in other showflats. As a designer, it feels good not to be constrained by the budget and allowing the showflat design to mimic the luxury of the main development.

As for the main development, I refined the roof of the MSCP and added landscape planters, created the process massing models, refined the clubhouse, updated the unit windows and designed the entrance signage.

2.4 PROJECT 4: CLEMENTI AVENUE 1 - ELTA CONDOMINIUM

^ SketchUp model of MSCP and Landscape planter

2.4 PROJECT 4: CLEMENTI AVENUE 1 - ELTA CONDOMINIUM

2.4 PROJECT 4: CLEMENTI AVENUE 1 - ELTA CONDOMINIUM

^ Main Development SketchUp Model

2.4 PROJECT 4: CLEMENTI AVENUE 1 - ELTA CONDOMINIUM

2.4 PROJECT 4: CLEMENTI AVENUE 1 - ELTA CONDOMINIUM

^ Main Development Signage with Arrival / Drop-Off

^ Section Drawing

2.4 PROJECT 4: CLEMENTI AVENUE 1 - ELTA CONDOMINIUM

^Comments to edit for Main Development Facade Windows

^Sketchup Main Development Facade Windows

2.5 PROJECT 5: PRINCE GEORGE RD - ELTA CONDOMINIUM

^Showflat SketchUp Works: Front Perspective as of 231024

TO PRIVATE DEVELOPMENTS

What I did for Site Visits:

- To observe construction progress

- To review design changes with easy access to site conditions

- Identify opportunities and constraints in construction, on-the-spot problem solving

- To facilitate face to face communication between architects, contractors and other stakeholders

- Observation and Documentation through pictures

Attending in Site Meetings (things I saw the Architect do)

- Participating in site meetings to coordinate with the project team, including architects, engineers, contractors, and subcontractors.

- Discussing project milestones, timelines, and resolving any coordination issues that may arise.

- Providing updates on the project status, including achievements, challenges, and upcoming milestones.

- Reporting on any site-related issues, construction delays, or changes to the project scope.

- Reviewing construction progress in relation to the design drawings and specifications.

- Addressing any discrepancies between the design intent and the actual construction work, proposing solutions or modifications as needed

- Participating in discussions during site meetings to make critical decisions related to design changes, construction methods, and project adjustments.

- Collaborating with the project team to ensure that decisions align with project goals and client expectations.

SITE MEETING FOR PROJECT #2: ANSON RD @ HONG LEONG BUILDING

Comments from Project Architect:

1. Need to check the function of Lvls 2 to 6 of the adjacent building. This is due to the air vents placed at the side of the building facing the Hong Leong Building.

2. Installing noise meter in adjacent building to monitor

Learning Points:

I attended my first meeting involving the Contractor, structural and M&E engineers, Quantity Surveyor, Interior Designer and Architects.

Hong Leong building is an existing building located near the project site and serves as a temporary meeting space and also the showflat. This is the first time I’ve seen a showflat designed within an existing building. I followed the Architects around the empty units to inspect and take measurements of pillars and floor distance to refine and edit the AutoCAD plans subsequently.

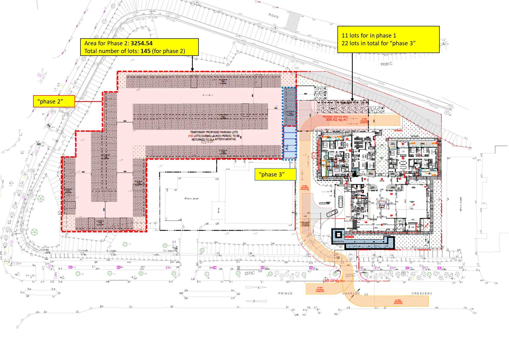
#3: CLEMENTI AVE 1 SHOWFLAT

Comments from Clients:

1. Confirm/regularise the setback required from the carpark beside, to maintain at least 1.2m on site for fire engine path

2. Study how to widen the road

3. Study driveway entrance ramp and mitigate level difference

4. Reduce the roadside planting strip by 200mm to widen the driveway

5. Reconfigure car parking at the back to avoid existing sloping terrain.

Learning Points:

As the construction of the showflat is still in early stages, the architects, landscape architects, clients and contractors gathered at the site to discuss and mitigate issues. Construction workers can be seen already analysing the CAD plans and prepare for site setting out. Being at site allows us to be able to visualise the space, terrain and site surroundings so we may make better informed decisions.

#3: CLEMENTI AVE 1 SHOWFLAT

Comments from Architects:

1. Discrepancies between the architect’s drawings of the Showflat Units and the Contractors, leading to inaccuracies in the constructed design.

2. Colour of the facade material mock-up pieces looks different under the sun, require architect to re-propose.

3. Marble slabs from the same batch looks different terms of grain and colour, require contractor to mark out and solve.

4. Landscape needs to award to nominated sub-contractor soon.

Learning Points:

After 2 months, I returned to the same site to witness the construction progress. The carcass structure has been fully done up, and internal works are ongoing. The walk-around enabled the architects to identify the areas that need to be worked on and the meeting between client, contractor and architect discussed the timeline of the project, the progress and issues that need to be addressed.

3.1 SHOWFLAT SITE VISIT TO THE CONTINUUM @ THAIM SIEW AVE

Learning Points:

The Continuum uses Advance Precast Concrete System (APCS) instead of the typical Prefabricated Prefinished Volumetric Construction (PPVC). APCS adopts precast concrete components and allows for more flexibility in terms of unit layout as compared to the rigid PPVC. Thus, the rooms are more flexible and configurable to suit each buyer’s needs.

This project is also unique in a sense that it sits on two different plots of land separated by a road. Interesting design elements such as a bridge and two of every facility needed to be constructed due to the separated plots,

As this project sits on conservation land, it was requested by URA that one existing bungalow be preserved in its original state. Thus, on my own free time, I took a trip down to the Construction Site to take a look at the works and happen to see the preserved bungalow nestled inside.

^ Main Entrance
Rendering Impressions
Unit Layout Plan
^ Showcase Model & Main Rendering
^ Accurate Detail of fins
Clear indication of
^ Typical Unit Layout Plan
^ Conserved House
^Main Development Construction Site with Conserved House

3.1 SHOWFLAT SITE VISIT TO LENTOR CENTRAL (U/C)

Learning Points:

This is a unique visit as it is a showflat still under construction. We got to see the interior scaffolding and works being installed.

The construction of a showflat aligns with the actual construction of the units within the condominiums, whereby the FFL and materials used for the units must be exactly the same. The exterior and the amenities however, are specifically designed for the showflat, to evoke a relatable design to that of the main development and also showcase the pros of what the development offers that sets it apart from competitors.

One thing to note is as it is a temporary structure, the timeline for showflat construction is very tight. Considering 2 months to complete the carcass and roughly 1 month for Interior Design works, the entire showflat must be complete within 3-4 months.

^Location of Lentor Central & Lentor Hill Site Locations
^Showflat Under Construction
^Internal Scaffolding (Entrance)
^Project Construction Signboard
^Construction of the Showcase Model Base
^Unit Renovations by ID, room lit by floor lamp
^Installation of Large Glass Windows ^ Worker prepping paint
^Discussion Area

3,1 SHOWFLAT SITE VISIT TO LENTOR HILL RESIDENCES

Learning Points:

Interesting story from the sales representative, he mentioned at first the units on the right sold out first due to the proximity of 1km to the nearby high profile school CHIJ St. Nicholas Girls’ School. Later, it was found out that the whole development would be within the radius, the left block of the development began to sell.

The design concept for this development is very interesting, as it is set on a relatively steep hill, hence the name. Having the need to converse the large distinct trees within the site, the Architects decided to celebrate them by having the blocks separated into two halves, almost resembling the chinese character “八“.

Another learning point was that as this development uses PPVC technique, each divided portion of the unit cannot be designed more than 3.4m in width. This is due to LTA’s regulation that if the width exceeds 3.4m, police escort is required and it cost around $10,000 per trip.

^ Showcase Model ^ Similar Arrival/ Drop off facade ^ Showcase Model ^ Similar Arrival/ Drop off facade
^ Site Information (Plans, diagrams)
^Unit types sold as of 13 Sep 2024
^Construction has begun for Lentor Hills

3.1 SHOWFLAT SITE VISIT TO NARA GROVE

Learning Points:

The Site Visit to Nara Grove Showflat serves as a pre-empt to the design construction of Clementi Ave 1 Showflat which I’m working on. This is important as there are similar design elements in terms of large-format marble wall tiles, c-channels, colour and finishes.

I followed my design architect and the contractor as we walked around inspecting construction methods and gain insights into the successful and unsuccessful areas of design and construction so we can further improve for our Showflat.

This trip showed me the strong teamwork this company has, evident by the warm exchange of ideas and critics that happens between different project teams and how everyone was learning from each other.

^ Conserved Trees on Site
^ Showflat built on Project Plot
^ Similar Arrival/ Drop off facade
^ Neighbouring Project done by P&T
^ Different design teams discussing
^ Developers for this Project
^ Gap below cabinet for iRobot
^ Additional requirement for ledge on window
^ Unsuccessful roof detail

TO KIM KEAT HEIGHTS HDB BTO DEVELOPMENT

Learning Points:

Seeing a HDB project was a refreshing change for me, as I typically focus on private development projects.

The Technical Site Meeting is a weekly meeting between designers and contractors to discuss details in the construction process. This meeting was very informational and useful as I can apply what I’ve learnt in both Architecture Practice module taught in school and Internship and see the terms and building codes being conversed in real life.

I got to witness a sub-nominated supplier pitch the installation and detailings of the Wall and Floor Mounted Gondola System on Roof. An interesting takeaway was that not every location can be mounted as the thickness of the roof slab determines how much weight the roof can withstand. The concepts of Revised Variation Order (RVO) vs Discrepancy were also discussed with regards to the difference in architect’s and C&S engineer’s drawings of a link bridge.

^ Construction Site
^ Workers Resting Area
^ Director Hira (P&T) drawing for visualisation
^ Technical Meeting
^ Developers for this Project

4.1 REFLECTIONS AND LEARNING OUTCOMES

Overall Reflections:

This internship has taught me to put experiential learning at the forefront of whatever I do. Expanding my horizons to see the how architecture is like as a job versus what I am used to in school is paramount for me to plan my next step forward as I plan ahead. Throughout the past months, the work which I have been a part of within the private development sector were varied and comprehensive, and I was able to see some of the work I've done come to life during site visits. I was also fortunate to be shown around showflat through site visits hosted by the Architects, attend site meetings and listening into their discussions and even visit a HDB project development, which is out of my team’s scope of works. The relationship an architect have with their clients and contractors is the most interesting takeaway. It is more than just designing and presenting, it's the ability of the architect to form good working relations with the said parties, to persuade, collaborate and take lead in overseeing multiple projects through to completion. The site meetings enforced the need for attention to detail, as the team would go through every wall thickness, grooveline to even screw, bolt and nuts.

Learning Outcomes:

1. Acclimatizing to a new work environment, new tasks and meeting new people requires adaptability and an open mind. I must be willing to try, even if there is a possibility of failure.

2. Increasing my knowledge of software skills from learning new shortcuts to designing and working more efficiently is important for me as a student and will also follow me for life.

3. School may have taught me that design will always require edits and revised work to improve. Working has added another layer to it in terms of having to meet different architects with different working styles and expectations and having to constantly adjust to meet their requirements.

Turn static files into dynamic content formats.

Create a flipbook
Issuu converts static files into: digital portfolios, online yearbooks, online catalogs, digital photo albums and more. Sign up and create your flipbook.
P&T Consultants_Internship Portfolio of Drawings by Y. J. Sek - Issuu