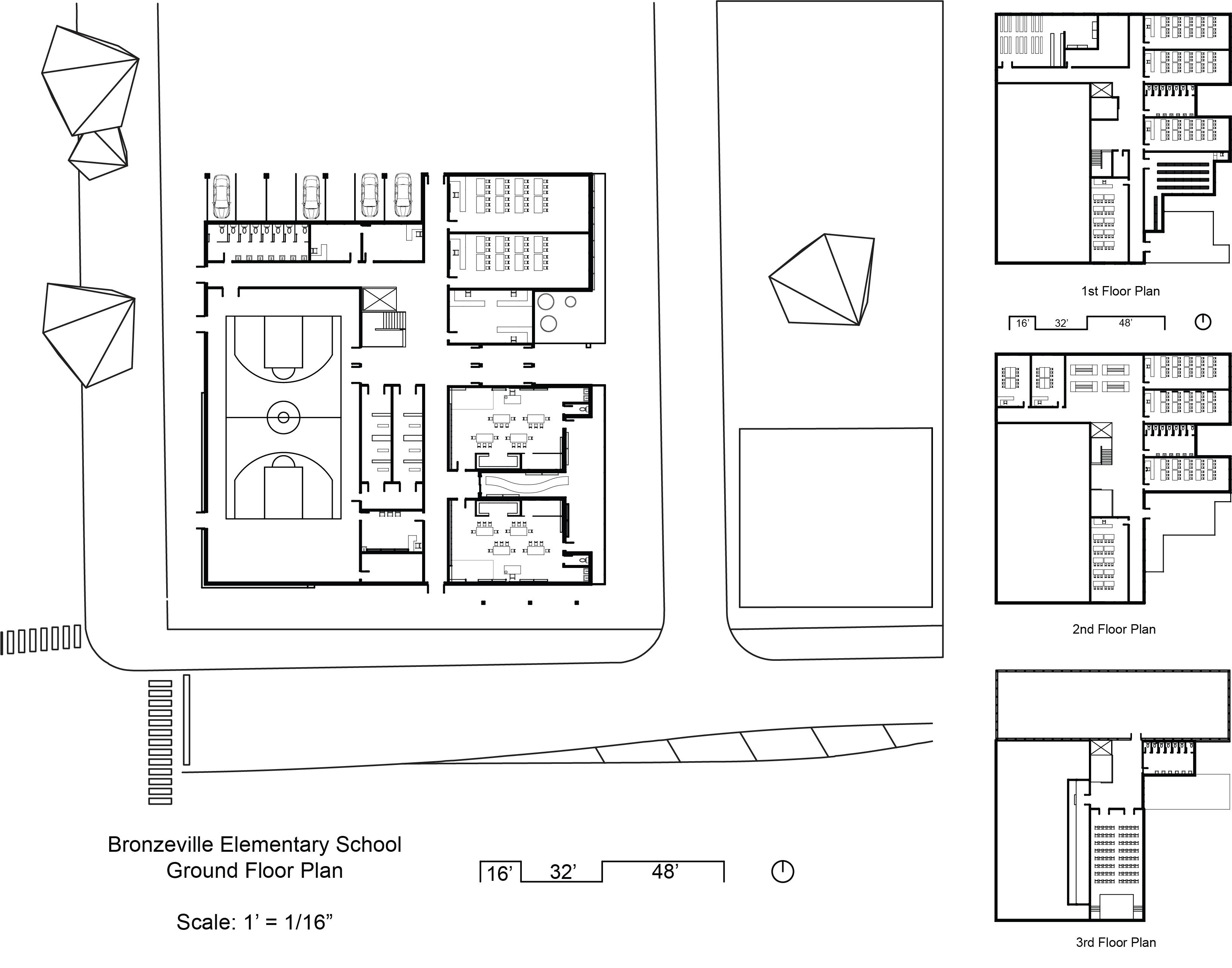
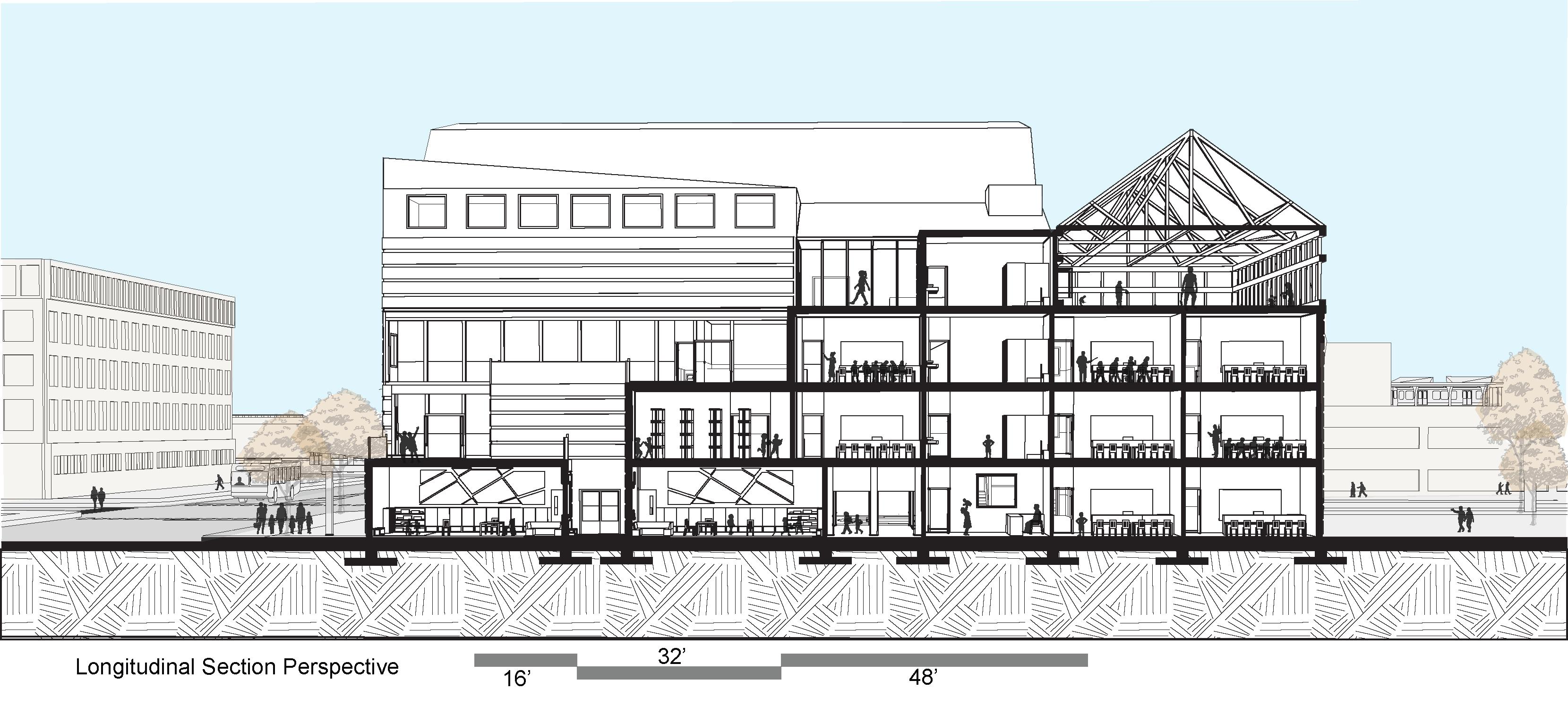
DINOSEFEROVIC PORTFOLIO
Seferovic Designs
![]()
Hello! My name is Dino Seferovic and I am a junior majoring in architecture and minoring in business at the University of Illinois Urbna-Champaign. I aspire and have deep ambition to work with stadium design and the engineering behind it. I am also enthusiastic to work with other types such as healthcare, mulit-purpose, residential, and urban design. My future plan is to return for the graduate program to pursue a masters degree in architecture with a structures concentration.







