pre-thesis provocations
Morgan Knowles Sobotka Spring 2023


some initial thoughts and connections


Morgan Knowles Sobotka Spring 2023
some initial thoughts and connections
Medicine Bear, winter count
Lakota winter count
misc obsessions: materials tests, molds, inflatables, attachments
Taliesin shelters were constructed on-site in the open desert behind the school, a playfield for experimentation while also providing informal housing for students. Shelters had to be contained to a 12x12x12 footprint and cost roughly $3,000 in materials
how to build a site-less version? what is a SCI-Arc version of a shelter? what constraints to use?
temporal quality of the material
a host for new activity
framing diagrams
frameworks for testing different systems and conditions
constraints on the amount of weight a single laborer can carry so the individual unit was designed to be just below that weight
constraint considerations:
cost weight footprint the size of the potential vehicle doorframes of SCI-Arc time (assembly/disassembly)
idea of footprint as a constraint
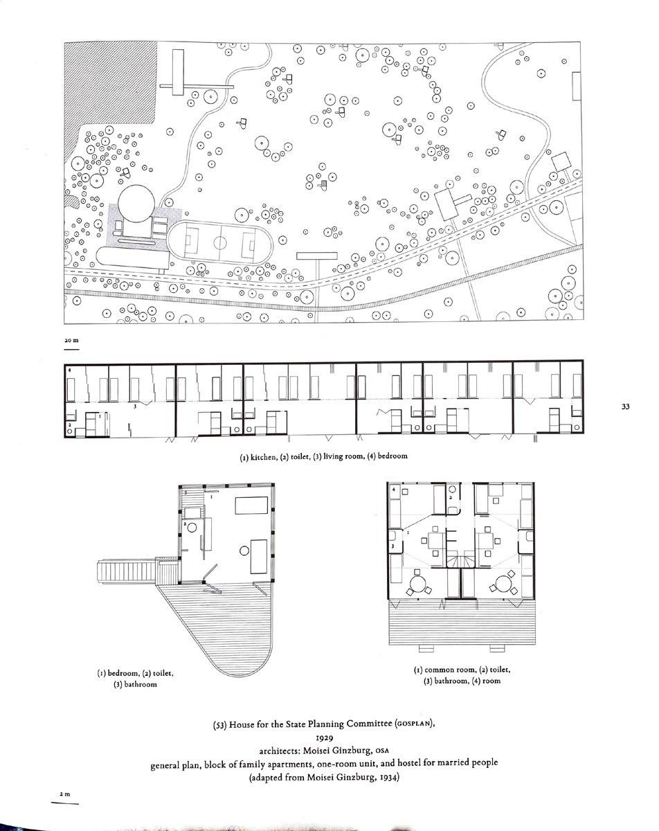
post-war, Ministry of Reconstruction laid down the requirement of 36 sq. meters (later upscaled to 54) for the housing footprint
idea of time as a constraint
homes had to be “immediately habitable on the day of assemblage” (6x6 Demountable House, Galerie Patrick Seguin)
what does it mean to shelter in the context of Los Angeles? what about in the context of SCI-Arc?
i.e. perhaps not physical sheltering but perhaps this is a space for resting, commoning, caring, etc.
what if that shelter does not remain in Los Angeles but moves on? is it site specific or site agnostic?
the word “shelter” is rather charged and brings in political and ideological implications that I’m not interested in engaging with in this particular project
some alteratives:
pavilion roost assembly assemblage a prop (props for learning as a title?) a study test site testing site laboratory spectacle framework creature expo exhibition grotto a folly demountable intervention
Raoul Feuillet, dance notation (1659-1710)
The shape of the symbol tells you the direction of the movement.
The shapes of the symbols indicate nine different directions in space.
For steps, place is right under you, as in marching in place.
The center line of the staff represents the center line of the body. Supports (usually the feet) are written alongside the centerline. Symbols to the right of this line are for the right side of the body, symbols to the left for the left side.
high = up on toes (step), above shoulder (hand), above hip (foot) middle = straight leg (step), shoulder level (hand), hip level (foot) low = bent knees (step), below shoulder (hand), below hip (foot)
The length of a symbol tells you the timing of the movement.
For dance movement, the staff is laid out in measures to match the measures of the music. Tick marks are used to indicate the beats, barlines across the staff show the start and end of the measure.
The Labanotation staff is read from bottom to top.
material to inscribe notation
thermostatic diagrams of my own apartment summer vs. winter
air is the best insulator
mesh of different sizing and spacing to create an insulated but breathable system - concentric arrangement?
diurnal cycle n. 1. any pattern that recurs every 24 hours as a result of one full rotation of the planet Earth around its axis
2. see circadian rhythms
thermostatic adj. 1. of or relating to a thermostat 2. having or maintaining a consistent temperature
stereotomy n. 1. the art and science of cutting three-dimensional solids into particular shapes 2. the art of stonecutting
3. French stéréotomie - stéré (solid) + tomie (surgery) 4. wall thickness, see poché
Could we engage in nomadic migration within our own homes?
Historically, homes were outfitted with elements for diurnal and seasonal rhythms – sleeping porches, summer kitchens, and a central hearth. Certain materials were employed for their specific thermostatic qualities and different parts of the homes lit up depending on the time of day and time of year.
The modern movement brought thinness to architecture – single panes of glass, the disappearance of solid poche – only made possible with the onset of air conditioning. (destabilizing the center and the edges of the home) We came to expect domestic spaces that maintain a constant homeostasis (now linked to our idea of comfort) Spaces became more comfortable but also more stagnant.
I would like to bring rhythm back into domestic spaces. Instead of creating permanent additions to the edges and center of our homes we could employ foldability (malleability, mobility) that creates soft enclosures. The aim of these enclosures is to employ concentric layers of thin material with pockets of air in-between (air is the best insulator, breathability, flow) and evaporative cooling (heating techniques?) to create temperature-controlled spaces that can disassemble, fold up, pack down and migrate into a different part of the space depending upon the time of year, the time of day or temperature within the space. I would like to prod at our ideas around comfort and discomfort within our domestic spaces and propose a counter cultural way of engaging with our own living spaces.
(inflection points)
Could we engage in nomadic migration within our own homes?
Historically, homes were outfitted with elements for diurnal and seasonal rhythms – sleeping porches, summer kitchens, storm windows, and a central hearth. Certain materials were employed for their specific thermostatic qualities and different parts of the homes lit up depending on the time of day and time of year.
The modern movement brought thinness to architecture – the onset of the single pane of glass and the disappearance of solid poche –made possible by the invention of HVAC. The loss of the central hearth and thermostatic perimeter conditions destabilized the center and edges of the home. We came to expect domestic spaces that maintain a constant homeostasis. This homeostasis is now linked to our modern idea of comfort. As interior spaces became more comfortable, they also became more stagnant.
I would like to bring rhythm back into domestic spaces. Instead of creating permanent additions to the edges and center of our homes we could employ foldability, malleability, mobility that creates soft enclosures. Can thermostatic control be achieved by layering porous material with pockets of air in-between? Can the porosity of material combined with concentric air pockets determine and allow control of air flow, temperature, and insulation? (insert source) This would create a temperature-controlled spaces that can disassemble, fold up, pack down and migrate into a different part of the home depending upon the time of year, the time of day or the temperature within the space.
This proposes a nomadic migration within our pre-existing spaces, a mobile creature within the current domestic container. It creates the dynamic within the static, a room-within-a-room, an interior within an interior. Could this peripatetic creature propose a counter-cultural way of engaging with our own living spaces? This migration would be dependent upon daily and seasonal thermal fluctuations, challenging us to detach from thermostatic homeostasis and engage with inconsistency within our interiors. I would like to prod at our ideas around comfort and discomfort within our domestic spaces. Where is the line between thermostatic comfort and discomfort? By creating a comfort scarcity I think we can engage with where our own comfort line is and propose how we can move the line. Can we reconsider and renegotiate the terms of comfort?
invented word: peripatetal system
Greek peri- (around, about) Greek pateo- (walk, tread) a walking perimeter title?
Mtg. Notes
3.27.2023
- Salmaan Craig studies on thermal mass
* introduce another material
* read ‘Breathing Walls’
- specificity of place
* Los Angeles
* hot days, cool nights
* home as laboratory
- Satish Kumar
* pilgrimage
* Peripatetic School
* Zapatista idea of walking while asking questions
- marry the poetry and the science
- protagonist: who are they?
* what if that changes? Ability to be nimble can flex as family unit changes
- heat exchangers
- quotidian temperature oscillations
- am I doing the anti-termite mound?
- in order to transfer heat to the air flowing through it, a porous material must first receive heat at one face
- cooled through pores to withstand extreme heat, ventilation through pores
- dynamic insulation, Motstrømstak (Swedish), Porenlüftung (German)
- sees two major flaws with current experiments:
1. use of standard insulation materials requires additional (unnecessary) layers
2. use of air-mixing intermediary cavity
- a heat exchanger enveloping a room, could it be a sandwich of air? Does the exchanger need to have specific thermal properties?
- optimizing porous materials in counter-flux heat exchange
- numerical solutions exist but implementing them is not straight-forward. The role of imprecision!
- thermocouple as an instrument, thermocoupling as a verb, strange bedfellows
- a natural convection boundary layer will form so long as there is a temperature difference between the interior surface and the interior air
- methods for heating one face of the porous material would be remote radiant heating or a closed-loop water circuit
- tender center as a heat exchanger?
convection heat transfer based on suction predicts that the boundary layer shrinks with increased suction. Thinner boundary layer = lower thermal resistance
edge instability with nested temps
the borders will always be equalizing heat maps as motion
not stagnant
thickness of the heat exchanger determines the ventilation system scale from Salmaan Craig ‘Breathing Walls’
heat recovery, as measured
red = cement
blue = glass
green = wood
ventilation system can be maintained through the stack effect, like the wind catchers of Iran
termite mounds as examples of porous thermal mass
- buildings as a prime mediator of subjective interiority
- the capacity of surfaces and pores to orchestrate phenomena
- modern building market is flooded with specialized materials but there are strong environmental and economic reasons to use simpler and fewer materials
- when buildings are mechanically conditioned, building envelopes must insulate and, therefore, isolate
- idea of good thermal contact
- more efficient models will not change the culture around HVAC consumption
i.e. new forms for new ideas
- high conductivity materials = chubby
low conductivity = slender
- geometry and form can make a simple material do a smart thing
24/7, Jonathan Crary capitalism’s colonization of every hour of our day
could be adapted to be 27/7/72
comfort is a key part to the productivity model and 72 degrees Fahrenheit has become the agreed upon upper limit of comfort
HVAC brings: convenience efficency comfort but also: longer work days or work seasons less sleep less community (isolated pods)
comfort as pacificiation
comfort as a western idea
Maxwell Fry + Jane Drew
diurnal cycle n. 1. any pattern that recurs every 24 hours as a result of one full rotation of the planet Earth around its axis
2. see circadian rhythms
thermostatic adj. 1. of or relating to a thermostat 2. having or maintaining a consistent temperature
stereotomy n. 1. the art and science of cutting three-dimensional solids into particular shapes 2. the art of stonecutting
3. French stéréotomie - stéré (solid) + tomie (surgery) 4. wall thickness, see poché
tender center a filling churning assemble/disassemble nomadic malleable materiality
interior becoming material architecture as recipe plans held in the mind choreographing the body good thermal contact (dis)comfort
chubby materials
edge instability nested interiors
a nimble system
thermocouple as an instrument, thermocoupling as a verb strange bedfellows
Could we engage in nomadic migration within our own homes?
Historically, homes were outfitted with elements for diurnal and seasonal rhythms – sleeping porches, summer kitchens, storm windows, and central hearths. Certain materials were employed for their specific thermostatic qualities and different parts of the homes lit up depending on the time of day and time of year.
The modern movement brought thinness to architecture – the onset of the curtain wall and the disappearance of solid poche – made possible by the invention of HVAC. The loss of the central hearth and thermostatic perimeter conditions destabilized the center and edges of the home. We came to expect domestic spaces to maintain a constant homeostasis. This homeostasis is now linked to our modern idea of comfort. As interior spaces became more comfortable, they also became more stagnant.
I would like to experiment with bringing rhythm back into domestic spaces. Instead of creating permanent additions to the edges and center of our homes I will employ material foldability and malleability to create a mobile enclosure, a soft creature that can move and resettle around the home based on new domestic cycles. Can thermostatic control be achieved with foldable and malleable materials? Can the porosity of material combined with a tender center allow some control of air flow, temperature, and insulation? If possible, this would create temperature-controlled spaces that can disassemble, fold up, pack down and migrate into a different part of the home depending upon the time of year, the time of day or the oscillation of temperature. I propose my own Los Angeles apartment as laboratory and my own domestic inclinations as case study, engaging with thermostatic rhythms that could applied to all Mediterranean zones.
This proposes a nomadic migration within our pre-existing spaces, a demountable framework that can rove and roost within the current domestic container. It creates the dynamic within the static, a room-within-a-room, an interior within an interior. Could this peripatetic creature propose a counter-cultural way of engaging with our own living spaces? This migration would be dependent upon daily and seasonal thermal fluctuations, challenging us to detach from thermostatic homeostasis and engage with inconsistency within our interiors. I would like to prod at our ideas around comfort and discomfort within our domestic spaces. Can we reconsider and renegotiate the terms of comfort?
how do you capture a sensation or a phenomenon visually?
how do you draw time?
how do you draw air?
how do you draw sound?
how do you draw air?
how do you draw phenomenona?
how do you draw sound?
how do you draw phenomenona?