Skip to main content

Master Thesis: Its Cool to Get Old_2024/25

Page 1


It’s Cool to Get Old

Rethinking Elderly Care Facilities as Community Infrastructure

First Advisor. Dr. Amelie Rost

Second Advisor. Prof. Peter Apel

Presented to DIA Dessau Institute of Architecture

Hochschule Anhalt, Dessau, Germany

Summer Semester 2025-26

First Advisor. Dr. Amelie Rost

Second Advisor. Prof. Peter Apel

ABSTRACT

The process of aging is a fundamental human experience that deeply impacts social structures, cultural values, and the built environment. This thesis examines the intricate relationship between aging, society, and architecture, focusing on how design can both influence and reflect societal attitudes toward growing old. By analyzing the aging process across various dimensions—such as materials, assistive objects, housing typologies, and cultural practices—

this research aims to reveal the reciprocal connections between design and perceptions of aging.

Architecture and objects engage in a continuous dialogue with societal views on aging, mutually shaping and reinforcing one another. Thoughtful design has the potential to challenge stereotypes, dismantle stigmas, and create spaces that honor aging as a natural and valuable stage of life.

CONTENT

PART 01 - DIMENSIONS OF AGEING

• Framwork

• Material

• Material - Quartet

• Reference Projects On The Subject Of Materials

• Object

• Standard Space Configuration For Assistive Objects

• Avialable Assistive Objects

• Product Design

• Typology

• Elderly Housing Typology

• Analysis Of One Reference Project

PART 02 - RESEARCH EXCERCISE

• Hypothesis

• Research Question

• Framework

• Literature Review | Isolation Of Communities

• Findings

• Architectural Case Study | Conventional Facilities

• Findings

• Architectural Case Study | Successful Practices

EXCERCISE

Of Elderly Conventional Successful

76 - 77

78 - 79

80 - 81

82 - 89

90 - 91

92 - 109

110 - 111

112 - 119

PART 03 - PROJECT PROPOSAL

• Site

• Program

• Conceptual Development

• Design Proposal

• Bibliography

- 199

PART 01

DIMENSIONS OF AGEING

FRAMEWORK

The research consists of three interconnected layers designed to explore the process of aging and the principles of age-appropriate architecture. These layers are material, object, and architecture. The layers form the foundation of the initial study, providing essential groundwork to emphasize the cultural aspects of aging.

The objective is to investigate the juxtaposition of architecture and culture in shaping the experience of aging, aiming to develop a deeper understanding of their interplay which will later help us to examin the cultural aspect of ageing through the lens of the research hypothesis and question.

MATERIAL

The choice of materials is a fundamental aspect of architectural design, influencing not only the aesthetics and functionality of a structure but also its long-term performance and sustainability. In Central Europe, the climatic conditions play a critical role in shaping how outdoor building materials age over time, impacting their durability, maintenance, and overall environmental footprint.

This chapter focuses on exploring the lifecycle of materials, examining their behavior under the specific climatic conditions of Central Europe. It aims to provide a comprehensive material catalog, addressing key aspects such as lifespan, patina development, recyclability, maintenance requirements, and insulating properties. Additionally, the chapter investigates the compatibility of materials with construction systems, insulation, and cladding applications, forming a foundation for informed material selection in future architectural projects.

To further understand how the ageing process of materials can be used creatively and meaningfully in architecture, the chapter also includes a catalog of reference projects. These case studies highlight innovative approaches to embracing material ageing as a design tool, showcasing examples where the natural transformation of materials enhances the aesthetic and functional qualities of architectural spaces.

MATERIAL-QUARTET

CATAGORY I : WALLS/COLUMNS/VERTICAL LOAD-BEARING SYSTEM

MATERIAL-QUARTET

CATAGORY I : WALLS/COLUMNS/VERTICAL LOAD-BEARING SYSTEM

MATERIAL-QUARTET

CATAGORY II : CEILINGS/BEAMS/ROOFS HORIZONTAL LOAD-BEARING SYSTEM

MATERIAL-QUARTET

CATAGORY II : CEILINGS/BEAMS/ROOFS HORIZONTAL LOAD-BEARING SYSTEM

MATERIAL-QUARTET

CATAGORY III : EXTERIOR WALL CLADDING, NON-LOAD-BEARING

MATERIAL-QUARTET

CATAGORY IV : EXTERIOR ROOF AND CEILING CLADDING

Site: Sumvitg, Graubünden, Switzerland

Materials: Timber (larch wood), copper roof

Constructed primarily from untreated larch wood, which weathers naturally in the Alpine climate.

Over time, the wood has taken on a silvery-gray patina, blending harmoniously with its natural surroundings. The copper roof also ages, developing a greenish patina as it weathers.

REFERENCE PROJECTS ON THE SUBJECT OF MATERIALS

1. Felipe Camus (Photographer), Saint Benedict Chapel by Peter Zumthor, August 25, 2013, photographs, “AD Classics: Saint Benedict Chapel / Peter Zumthor,” Archdaily, accessed January 26, 2025, https://www.archdaily.com/418996/ad-classics-saint-benedict-chapel-peter-zumthor.

Saint Benedict Chapel | Peter Zumthor | 1989
Fig. 01

Site: Vals, Switzerland

Materials: Locally sourced Valser quartzite stone

“Mountain, stone, water – building in the stone, building with the stone, into the mountain, building out of the mountain, being inside the mountain – how can the implications and the sensuality of the association of these words be interpreted, architecturally?”

REFERENCE PROJECTS ON THE SUBJECT OF MATERIALS

2. Andrea

The

January 26, 2025, https://www.archdaily.com/13358/the-therme-vals.

Ceriani (Photographer),
Therme Vals by Peter Zumthor, February 11, 2009, photographs, “The Therme Vals / Peter Zumthor,” Archdaily, accessed
The Therme Vals | Peter Zumthor
Fig. 02

Site: Sainte-Lucie-de-Tallano, France

Materials: Copper

“Building after ruins is the past and modernity embracing each other, making the promise never to betray each other. One becomes the other and no one is erased. I liked the idea of a possible return to ruin, that the copper could be undone - this possibility is a courtesy, respect, to the past, to Corsican heritage.”

REFERENCE PROJECTS ON THE SUBJECT OF MATERIALS

January

https://www.archdaily.com/966028/convent-saint-francois-amelia-tavella-architectes?ad_source=search&ad_medium=projects_tab.

3. Thibaut Dini (Photographer), Convent Saint François by Amelia Tavella, August 12, 2022, photographs, “Convent Saint François / Amelia Tavella,” Archdaily, accessed
26, 2025,
Convent Saint François | Amelia Tavella Architectes | 2021
Fig. 03

OBJECT

In architectural planning for age-appropriate living environments, attention to detail in object and product design is crucial. The integration of specific objects— such as mobility aids, accessibility enhancements, and supportive furniture—shapes the functionality and inclusivity of spaces for elderly users. These objects not only influence individual comfort but also interact directly with architectural elements like room layouts, door openings, ramps, and circulation areas, necessitating a thoughtful and holistic approach to design.

This chapter investigates the role of objects and products in creating barrier-free and elderly-friendly living spaces. By developing an object catalog, it identifies essential items that must be considered in architectural planning and illustrates their impact on spatial design through detailed drawings. Additionally, a comparison with current DIN standards for barrierfree construction provides a framework for assessing compliance and identifying areas for improvement.

Beyond the functional aspects, the chapter also explores the aesthetic and practical design variants available in the market, compiling a product catalog of manufactured solutions. This catalog examines existing designs for objects like bathtub exit aids or door-opening systems, offering insights into their usability and adaptability.

Finally, the chapter transitions from analysis to design, presenting a design proposal for one of the researched objects. This exercise aims to rethink and innovate everyday assistive products, ensuring they align with both the functional needs and the dignity of their users.

The design will be visualized through 2D technical drawings and a 3D model, contributing a unique perspective to the ongoing dialogue about accessible and inclusive design.

STANDARD SPACE CONFIGURATION FOR ASSISTIVE OBJECTS

Standard configuration of space for assistive objects is studied based on DIN standards for barrier-free construction

STANDARD SPACE CONFIGURATION FOR ASSISTIVE OBJECTS

STANDARD SPACE CONFIGURATION FOR ASSISTIVE OBJECTS

STANDARD SPACE CONFIGURATION FOR ASSISTIVE OBJECTS

PRODUCT DESIGN

for age appropriate forms of living

Exercise on Invisible Care for Elderly Assistance

The staircase often serves as a significant barrier to universal access, even for individuals who are otherwise mobile. This challenge becomes even more pronounced as people age. In this exercise, the aim was to design subtle and unobtrusive support systems for elderly individuals, addressing their needs without creating visible separations. By integrating care invisibly, the goal was to minimize segregation between elderly individuals and others, fostering inclusivity and shared accessibility.

TYPOLOGY

The design of housing for elderly individuals is deeply influenced by cultural, societal, and environmental factors. Across the world, various forms of elderly housing have emerged, each reflecting the unique needs, traditions, and values of its context. From communal living arrangements rooted in intergenerational support to modern, individualized care facilities, these typologies demonstrate a wide spectrum of architectural responses to aging populations.

This chapter explores the diversity of elderly housing typologies and their corresponding architectural manifestations. By researching housing forms from different cultures, it aims to develop a catalog of architectural solutions that address the specific needs of elderly residents. Each typology is paired with a reference project—identified as a "best practice"—to illustrate its real-world application and effectiveness in addressing cultural and social expectations.

Beyond cataloging, the chapter delves deeper into one selected reference project, analyzing it at multiple scales, from urban integration to interior details like bathroom layouts. This comprehensive analysis considers materiality, object integration, architectural design, and the societal and cultural dynamics that influence the space. The aim is to uncover the principles and strategies behind successful elderly housing models, providing valuable insights for future architectural interventions. By examining these typologies and their reference projects, the chapter seeks to establish a robust understanding of how architecture can adapt to the diverse and evolving needs of aging populations.

ELDERLY HOUSING TYPOLOGY

INDEPENDENT LIVING

MEMORY CARE

ASSISTED LIVING

NURSING CARE

Continuing Care Retirement Communities (Ccrcs)

ELDERLY DAYCARE

INDEPENDENT LIVING

User Group

Seniors who are relatively healthy and independent.

Features

• Apartments or small homes with easy access to social and recreational activities.

• Minimal or no healthcare services on-site

• Vibrant social atmosphere; communal areas like dining halls, gyms, and gardens.

Housing for Elderly People in Huningue | Dominique

Coulon & associés | France

The programme consists of tewnty five 50sqm homes, a restaurant in three sections, a computer room, a hobby workshop, a vegetable garden and a petanque field

Everything is organised to foster relations among the residents. Collective living spaces are as generous as possible, with abundant natural light. Red concrete, terracotta and wood produce a benevolent atmosphere.

Outside, the building is enveloped in brick on all sides. We selected a craft brick that is non-standard, irregular and occasionally misshapen.

The walls catch the light; by emphasising its rustic port setting, the building connects itself to the history of the Rhine.

September 13, 2018, photographs, “Housing for Elderly

/

&

Archdaily, accessed January 26, 2025, https://www.archdaily.com/901996/housing-for-elderly-people-inhuningue-dominique-coulon-and-associes?ad_source=search&ad_medium=projects_tab.

4. Eugeni Pons (Photographer), Housing for Elderly People in Huningue by Dominique Coulon & associés,
People in Huningue
Dominique Coulon
associés,”

ASSISTED LIVING

User Group

Seniors who need help with daily activities, such as bathing, dressing, or managing medication, but do not require constant medical care.

Features

• Staffed 24/7 with caregivers

• Private rooms or apartments with common dining and activity areas

• Often include amenities like dining services, transportation, and wellness programs.

Assisted living at Haacht | osar | Belgium

Elderly individuals thrive in apartments of 60–100 m² that promote self-reliance and adapt to changing needs with minimal interventions. These homes should foster a sense of control and comfort, enabling residents to move in before requiring care and remain as their needs evolve.

In Haacht, 53 assisted living homes were uniquely designed with subtle, hidden care features and a focus on individuality. The light-filled homes wrap around an inner garden, with open walkways encouraging interaction and terraces framed by soft, rounded balustrades.

At the base, a service center and brasserie connect the green courtyard to the village center, enhancing community integration.

https://osar.be/ ocmw-klapgat-haacht/.

5. Olmo Peeters (Photographer), Residence Klapgat by OSAR, n.d., photographs, “Residence Klapgat, Haacht,” OSAR, accessed January 26, 2025,

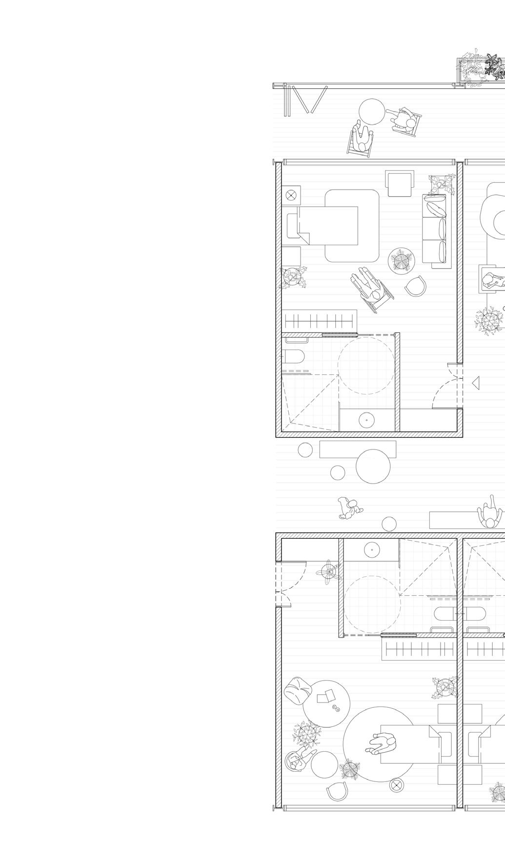
NURSING CARE

User Group

Primarily for elderly individuals who require a high level of medical care and assistance.

Features

• Nursing homes provide both long-term and short-term care.

• Full-time medical staff, registered nurses and physicians

• Specialized care for chronic illnesses rehabilitation

• Post-surgery recovery.

Retirement Home of the Franciscan Sisters

Schenker Salvi Weber Architekten | Austria

Houses 96 rooms; the main entrance is arranged around a courtyard resembling a village square, facing the valley.

Two patios provide the building with depth. All traffic routes have natural light, making them ideal for strolling. They accommodate sitting areas to encourage group conversations among the residents. Particular attention has been paid to making the collective areas both fluid and transparent.

The rooms on all floors are oriented towards a spacious, central living kitchen where residents can meet, play cards, chat, and eat together, “which is very well received,” says Friederike Elisabeth Hacker.

Each apartment is equipped with a barrier-free shower and toilet. The personal living environment can be individually designed.

photographs, “Retirement Home of

/ Schenker Salvi Weber Architekten,” Archdaily, accessed January 26, 2025, https://www.archdaily.com/1017023/ retirement-home-of-the-franciscan-sisters-in-vienna-schenker-salvi-weber-architekten?ad_source=search&ad_medium=projects_tab.

6. David Schreyer (Photographer), Retirement Home of the Franciscan Sisters in Vienna by Schenker Salvi Weber Architekten, May 26, 2024,
the Franciscan Sisters in Vienna
Fig. 06

MEMORY CARE

User Group

Dedicated to seniors with Alzheimer’s, dementia, or other cognitive impairments.

Features

• Secure environments to prevent wandering

• Specialized staff trained in memory care

• Daily routines and structured activities that help maintain cognitive function

The Alzheimer’s Village in Dax, France, transforms traditional nursing home models with a focus on healing architecture for individuals with Alzheimer’s and dementia. This innovative design emphasizes dignified aging through three principles: local architectural identity, quality landscapes, and habitual activities.

Residents are encouraged to participate in familiar daily tasks and move freely within the village’s safe and thoughtfully designed environment. The integration of the surrounding landscape fosters autonomy and connection, creating a sense of belonging and purpose. The village stands as a model for how architecture can enhance quality of life and promote independence for those with dementia.

Alzheimers Village | NORD Architects | France

7. 11h45 (Photographer), Alzheimers Village by NORD Architects, December 21, 2021, photographs, “Alzheimers Village / NORD Architects,” Archdaily, accessed January 26, 2025, https://www.archdaily.com/973948/alzheimers-villa-nord-architects?ad_source=search&ad_medium=projects_tab.

Fig. 07

CONTINUING CARE RETIREMENT COMMUNITIES (CCRCS)

User Group

Retirement communities with multiple care levels, allowing aging in place

Features

• Offers a range of housing options within one community, allowing residents to transition from independent living to assisted living and nursing care as their needs change.

• Comprehensive, life-long care in one location

• Access to amenities and a continuum of care

The Project provides housing for the elderly and breaks with the classic model of elderly care. Close to the centre of Geel, seniors can live independently, but also together. In an apartment or in a group home.

Thanks to the care flats, residents retain control over their own lives and a couple does not have to be separated when one of them becomes too dependent on care.

Residents can go to a group home in the same building as the flats. From both forms of housing, they can call on professional care support, depending on their individual care needs.

In the plinth of the buildings we house a sufficiently large public program. The neighborhood is more than welcome to the service center, daycare, wellness, a co-working place. . The functions broaden the living environment of the residents without loss of privacy.

https://osar.be/klein-veldekens-2-geel/.

8. Olmo Peeters & OSAR (Photographers), Small Field Blankets, Yellow by OSAR, n.d., photographs, “Small Field Blankets, Yellow,” OSAR, accessed January 26, 2025,
Fig. 08

ELDERLY DAY CARE

User Group

Social interaction for seniors, typically for those who live with family caregivers who need respite or cannot be home during the day.

Features

• Offer structured activities, meals, and socialization

• opportunities in a supervised setting.

• Often include health monitoring, physical therapy, and activities geared toward cognitive stimulation.

• Provides a safe environment during the day.

Resource Centre | C.F. Møller Architects | UK

This is alongside providing therapeutical rooms and supported living accommodation, for both long and short stays. The centre also houses a space for the wider community, including a shop and café, offering opportunities of employment to service users and actively highlighting the collaborative culture of the day centre.

The 3 metre fall across site is mitigated by locating the main entrance and protected drop-off area in the lower site in order to provide step-free access.

A second main entrance to the most public areas, including the café, community space and shop, is situated on the first floor level street frontage.

The building’s form is articulated as a sheltering courtyard with an active, residential-scale street frontage along the Palace Road Estates.

https://www.cfmoller.com/p/Resource-Centre-at-Coburg-Crescent-i3333.html.

9. Mark Hadden (Photographer), Resource Centre at Coburg Crescent by C.F. Møller Architects, n.d., photographs, “Resource Centre at Coburg Crescent,” C.F. Møller Architects, accessed January 26, 2025,
Fig. 09

ANALYSIS OF ONE REFERENCE PROJECT

In this section, a key reference project is analyzed in detail. The research begins with the urban context and progresses to the individual spaces within the project. The concept and user experience are thoroughly examined to understand the approach to care, both architecturally and programmatically. Subsequently, various drawings are created to explore the scale of the spaces and gain a deeper understanding of the project.

10. Olmo Peeters & OSAR (Photographers), Small Field Blankets, Yellow by OSAR, n.d., photographs, “Small Field Blankets, Yellow,” OSAR, accessed January 26, 2025, https://osar.be/klein-veldekens-2-geel/.
Fig. 10

ALZHEIMERS VILLAGE | NORD ARCHITECTS | FRANCE

The Alzheimer’s Village in Dax, France, offers a groundbreaking approach to elderly care, reimagining the traditional nursing home to better support individuals with Alzheimer’s disease and dementia. Designed as a model of healing architecture, the village emphasizes enhancing residents’ quality of life and fostering a sense of dignity during significant life changes.

The design is grounded in three core principles: celebrating local architectural identity, integrating high-quality landscapes, and encouraging habitual activities. These elements work together to create a therapeutic environment where residents feel at home and connected to their surroundings.

The village allows residents to engage in familiar daily activities, fostering a sense of normalcy and purpose. Movement is unrestricted, enabling individuals to explore the surrounding landscape and maintain autonomy while benefiting from a safe, supportive environment. This design highlights how architecture and thoughtful planning can empower residents to live with dignity and independence, even as their needs evolve.

LOCAL ARCHTIECTURAL IDENTITY

For individuals with Alzheimer’s or dementia, a familiar and easily recognizable environment is essential. Such spaces should minimize cognitive challenges and avoid causing unnecessary distress.

Inspired by the “bastide” typology—a traditional fortified town found in the surrounding region—the design incorporates concrete arches that frame the village’s main square. These arches provide shaded, semi-private areas around central fountains and seating spaces, fostering comfort and ease of use.

Throughout the village, materials like timber plank cladding, plaster, and pitched clay-tiled roofs have been carefully chosen to evoke forms and textures familiar to the residents.

https://osar.be/klein-veldekens-2-geel/.

The complex is harmoniously integrated the landscape of ancient pine where residents can relax or take looping path winds through the explore without encountering dead

Nature is brought close to the specific grasses, climbing plants, provide a stimulating and calming a sense of privacy by dividing outdoor areas, contrasting with the untamed lake, offering diverse and enriching

Fig 12. Incorporating existing natural setting to Fig 13. Having a waterbody at the center of the
Fig 11. The concrete arch, inspired by the local “bastide“ archway typology along with the use of wood plank cladding and plaster
10. Olmo Peeters & OSAR (Photographers), Small Field Blankets, Yellow by OSAR, n.d., photographs, “Small Field Blankets, Yellow,” OSAR, accessed January 26, 2025,

integrated with nature, transforming trees into a recreational haven take leisurely walks. A continuous the area, ensuring residents can dead ends or becoming disoriented.

residential units through siteplants, and fragrant flowers, which calming atmosphere. Espaliers create outdoor spaces into garden-like untamed natural scenery near the enriching experiences for the residents.

HABITUAL ACTIVITIES

Residents are encouraged to participate in as many everyday activities as possible, fostering independence as they move freely through the local landscape surrounding their homes.

The village center features amenities such as a shop, hairdresser, restaurant, cultural center, healthcare facilities—designed to mirror the familiar aspects of their former homes and neighborhoods. These elements provide comfort and a sense of continuity.

Social interaction plays a vital role in fostering a meaningful and active life. Facilities like the hairdresser, market square, and restaurant are also accessible to the surrounding community, allowing residents of the Alzheimer’s Village to engage with locals.

Fig 14. Residents with their Family members and friends
Fig 15. Residents participating in gardening along with the staff and neighbours

The site is situated in a secluded area, separated from the local residential community by a wooded landscape. Connected by a bus route, it provides a unique opportunity to develop a nature-oriented environment—an essential feature for the programs envisioned. This setting allows for the creation of a tranquil and therapeutic atmosphere, perfectly aligned with the needs of the residents and the surrounding natural context.

Building Blocks Railway Line Legends

Farmland

Bus-Stop

SITE PLAN

Woodland
Fig. 16. Redrawn from NORD Architects, “Alzheimers Village,” 16. NORD Architects, Alzheimers Village, December 21, nord-architects?ad_source=search&ad_medium=projects_tab.

Village,” 2021.

2021, drawings, Archdaily, accessed January 26, 2025, https://www.archdaily.com/973948/alzheimers-villanord-architects?ad_source=search&ad_medium=projects_tab.

The campus is comprised of a central village hub and four residential blocks. The village center houses essential amenities such as a shop, hairdresser, restaurant, cultural center, and healthcare facilities—designed to reflect familiar elements from residents’ former homes and neighborhoods, fostering a comforting sense of recognition and continuity.

The four residential blocks are organized into distinct neighborhoods, each with its own identity and courtyard. These neighborhoods are interconnected by an urban street that leads to the village center.

The pathways throughout the campus are designed as loops, rich with sensory experiences and varying characteristics. They meander through the natural landscape, offering residents multiple ways to stay connected to nature and engage with their surroundings

Fig. 17. Redrawn from NORD Architects, “Alzheimers Village,” 2021.

BLOCK A

The village square is encircled by four blocks, with two of them being two-story structures. On the ground floor, the space houses essential facilities including a medical unit, auditorium, cultural block, marketplace, and restaurant.

The cultural block features a library and various workshops, while the auditorium serves as a venue for hosting a variety of events.

On the upper level, there is a daycare facility and an administrative zone. The square, along with other communal areas, plays a crucial role in facilitating interactions between residents and the local community, encouraging integration and a sense of belonging.

16. 17. NORD Architects, Alzheimers Village, December 21, 2021, drawings, Archdaily, accessed January 26, 2025, https://www.archdaily.com/973948/alzheimers-villanord-architects?ad_source=search&ad_medium=projects_tab.

MedIcal Block
Auditorium Block
Cultural Block
Market Block
Restaurant Block
Administrative Block
Daycare Block
GROUND FLOOR
FIRST FLOOR
Fig. 18. Redrawn from NORD Architects, “Alzheimers Village,” 2021.

RESIDENTIAL BLOCK

The complex is divided into four clusters, each consisting of four parts. These parts are arranged to form a central courtyard within each cluster.

Each cluster houses around 30 residents, who live in smaller “families,” with all necessary facilities and outdoor spaces. The central courtyards of each cluster provide a large, open space for a variety of outdoor activities. Each cluster offers different activities, such as gardening, chicken coops, and seating areas for enjoying the winter sun.

Each part of the cluster follows the same programmatic sequence, with living and dining areas that open up to the outdoors. These communal spaces act as gathering points for the residents, and the generous spaces are well-lit by transparent openings that lead out to the central courtyard.

Fig. 19. Redrawn from NORD Architects, “Alzheimers Village,” 2021.

DETAIL PLAN

The rooms are spacious enough to accommodate two people, allowing for couples to live together.

In addition to the regular bedrooms, there is an interconnected twin bedroom designed to provide safety and support for specific cases. Along with the bedrooms, there are service rooms such as a laundry room, bathing service room, and storage spaces. The communal areas are designed to connect all the rooms, fostering a family-like environment. This layout helps maintain a household atmosphere, even within a healthcare facility, ensuring that residents feel at home and comfortable.

19. 20. NORD Architects, Alzheimers Village, December 21, 2021, drawings, Archdaily, accessed January 26, 2025, https://www.archdaily.com/973948/alzheimers-villanord-architects?ad_source=search&ad_medium=projects_tab.
Fig. 20. Redrawn from NORD Architects, “Alzheimers Village,” 2021.

PART 02

RESEARCH EXCERCISE

HYPOTHESIS

• Elderly care facilities tend to be isolated from the community, restricting opportunities for the residents to have meaningful social interactions and integration.

• Reintegration is achievable by designing inclusive spaces that foster interaction and create a harmonious connection between the elderly and the wider community.

RESEARCH QUESTION

• Do elderly care facilities contribute to the social isolation of their residents by reducing opportunities for interaction with the broader community?

• How can architectural design strategies facilitate the reintegration of elderly care facilities, creating inclusive spaces that bridge the gap between elderly individuals and the community?

FRAMEWORK

• Literature Review | Isolation of Elderly Communities

Analyze the extent of social and spatial disintegration of elderly people in Germany by reviewing data, reports, and scholarly research.

• Architectural Case Study | Conventional Facilities

Investigate conventional elderly care facilities to understand how their architectural design and spatial planning contribute to social isolation.

• Architectural Case Study | Successful Practices

Study exemplary elderly care facilities that successfully foster community integration, identifying key architectural and programmatic strategies.

LITERATURE REVIEW | ISOLATION OF ELDERLY COMMUNITIES

In Germany, 21% of the population is currently aged 65 or older, making it the second most aging nation in Europe. By 2050, this figure is expected to rise significantly, with 38% of the population projected to be aged 60 and above. Additionally, the proportion of those aged 80 and older will grow from the current 6–8% to 13%, underscoring the challenges of a rapidly aging society (Federal Statistical Office, Wiesbaden 2016, 18).

As this demographic shift intensifies, the care

infrastructure has expanded to accommodate the growing elderly population. This includes a range of services, from pension schemes to specialized housing solutions designed for seniors.

In this study, we will examine the available facilities and the living conditions of elderly residents,through the lens of social integration.

1. Federal Statistical Office, Wiesbaden, Older People in Germany and the EU (Order No. 0010020-16900-1), Wiesbaden, July 2016, 18.

Fig 21

The care structure in Germany revolves around a pension scheme designed to support the elderly population. This assistance is categorized into three main types:

1. Service-based care,

2. Cash benefits, and

3. combination of both.

Under the service-based care category, individuals can receive assistance at home, organized by care organizations. In the cash benefits category, recipients typically arrange their care needs through family

CARE STRUCTURE IN GERMANY

members, neighbors, or other informal networks by providing compensation. However, they can also choose care services from various facilities, including both long-term and short-term options. The third category benefits from a mix of care services, including shortand long-term care, day care programs, and specialized accommodations such as Alzheimer’s centers.

Numerically, cash benefits are the most prevalent, as they offer individuals greater flexibility to choose from a wide range of care options.

Common reasons for moving to a care facility include the need for a secure environment in case assistance is required, the desire to avoid being a burden on family members, and the relief from household responsibilities.

In addition to these options, other forms of support have been developed, such as senior clubs and programs like “meals on wheels,” to further enhance the quality of life for the elderly population.

(Federal Statistical Office, Wiesbaden 2016, 58-59)

1. Federal Statistical Office, Wiesbaden, Older People in Germany and the EU (Order No. 0010020-16900-1), Wiesbaden, July 2016, 58-59.

SUBJECTIVE SATISFACTION

General life satisfaction refers to an individual’s overall assessment of their quality of life. It reflects how content or satisfied they feel with their life as a whole, considering factors such as personal achievements, relationships, health, and well-being. This measure provides a broad understanding of an individual’s happiness and fulfillment in life.

The subjective experience of autonomy relates to how much control and independence an individual perceives they have over their life and decisions. It reflects their ability to make choices freely, act on personal preferences, and manage their daily activities without undue restriction. This experience can vary significantly based on factors such as living arrangements, physical health, and societal/institutional support systems.

General Life Satisfaction

Subjective Experience Of Autonomity

While 74% of residents living independently report being satisfied with their lives, only 53% of care facility residents express the same. It shows a notable gap in the subjective experience of autonomy between individuals living in private households and those residing in care facilities. While 92.5% of household residents report feeling autonomous, only 35.4% of care facility residents share this sentiment.

Fig 23. Albrecht et al. (2022). D80+, SUF of the RDC-DZA.
Fig 22. Albrecht et al. (2022). D80+, SUF of the RDC-DZA.

LIVING ENVIRONMENT

Attachment to the living environment refers to the emotional bond individuals develop with their physical surroundings, such as their home or community. This attachment is shaped by factors like the comfort and aesthetics of the space, familiarity, and opportunities for meaningful activities within it.

Social cohesion, on the other hand, is the sense of solidarity and connectedness among members of a community. It involves trust, social interaction, and a shared identity that fosters mutual support and collaboration.

Attachment To Their Living Environment

Here is a significant difference in attachment to the living environment between individuals in private households and those in care facilities. While 67% of household residents report feeling attached to their living environment, only 36% of care facility residents share this sentiment.

These two concepts are interconnected. A strong attachment to the living environment encourages social interaction and community participation, strengthening social cohesion.

Social Cohesion Level

Residents in private households report stronger social cohesion overall compared to those in care facilities, with a higher prevalence of strong connections and a lower occurrence of weaker bonds. This contrast suggests that care facilities may face challenges in fostering the same level of community and social interaction found in household settings

22. 23. 24. 25. Albrecht et al. (2022). D80+, Scientific Use File of the Research Data Centre of the German Centre of Gerontology.
Fig 24. Albrecht et al. (2022). D80+, SUF of the RDC-DZA.
Fig 25. Albrecht et al. (2022). D80+, SUF of the RDC-DZA.

SOCIAL ENGAGEMENT

Social engagement refers to the active participation of individuals in meaningful activities, interactions, and relationships within their community or social circles. It involves regular communication with others, participation in social, cultural, or recreational activities, and contributing to group or community efforts. Social engagement plays a vital role in enhancing overall wellbeing by promoting mental health, reducing loneliness, and fostering a sense of belonging. For older adults,

Prefered Living

Care facilities are generally not the first choice, especially for those with a partner who prefer households. For individuals without a partner, care facilities are a more viable option, though still secondary to living alone. This suggests that care facilities mainly serve as a fallback for those lacking social support or the ability to live independently.

staying socially active is particularly important as it helps maintain cognitive health and provides a sense of purpose and fulfillment.

The size of a social network indicates the number of meaningful social connections an individual has, including family, friends, colleagues, and community members.

Size of Social Network

Household residents tend to have larger social networks, while care facility residents show a more even distribution across different network sizes, with a notable portion reporting smaller social networks of 4 or fewer connections This indicates that individuals in care facilities may experience more limited social interactions compared to those in private households, potentially affecting their social engagement and overall wellbeing.

Fig 27. Albrecht et al. (2022). D80+, SUF of the RDC-DZA.
Fig 26. Albrecht et al. (2022). D80+, SUF of the RDC-DZA.

SOCIAL VALUE & ATTACHEMENT

Feeling of anomie, value dissonance, and social disorientation are interconnected concepts that describe a state of social alienation. Anomie refers to the breakdown of social norms, leading individuals to feel disconnected from society. Value dissonance occurs when there is a conflict between personal values and societal expectations, increasing feelings of inner conflict and alienation. Social disorientation arises when individuals struggle to understand their role in society

due to shifting norms or confusion, resulting in a sense of purposelessness. Together, these factors contribute to social isolation and a weakened sense of community and belonging.

Attachement to Their Living Environment

Care facility residents exhibit higher levels of feeling of anomie compared to household residents, with a notable proportion reporting disconnection. The primary sources of this disconnection include differences in lifestyle, value dissonance, and social disorientation, suggesting that care facility residents face more significant challenges in adjusting to their environment. These feelings of alienation may

arise from the shift in social norms, routines, and expectations within the facility, which may not align with their personal values or previous experiences. In contrast, residents in private households report experiencing these issues to a lesser extent, indicating that the more familiar and personal nature of household living offers a greater sense of social stability and alignment with their own lifestyles and values.

26. 27. 28. 29. Albrecht et al. (2022). D80+, Scientific Use File of the Research Data Centre of the German Centre of Gerontology.
Fig 28. Albrecht et al. (2022). D80+, SUF of the RDC-DZA.
Fig 29. Albrecht et al. (2022). D80+, SUF of the RDC-DZA.

FINDINGS

• Limited Opportunities for Social Engagement in Care Facilities: Residents in care facilities face challenges in maintaining ties with the outside world due to institutional settings that prioritize internal systems over community integration. This lack of connection exacerbates feelings of disconnection and alienation.

• Higher Levels of Anomie in Care Facilities: Care facility residents experience greater social disorientation, value dissonance, and lifestyle misalignment, which hinder their ability to adapt and engage with their surroundings, both within and outside the facility.

• Impact on Autonomy and Independence: The limited autonomy experienced by care facility residents diminishes their ability to independently seek social interactions or engage with community activities, further isolating them from broader societal networks.

• Preference for Household Living Tied to Social Well-Being: The overwhelming preference for household living among individuals with strong social support highlights the role of familiar environments in fostering social engagement. Care facilities, by contrast, are more often chosen by individuals without a partner or social support, which already predisposes them to isolation.

• Care Facilities as Reactive Rather Than Proactive Environments: Care facilities tend to serve as fallback options for those unable to live independently, often focusing on providing basic care rather than actively promoting interaction with the broader community.

• Generational Gap in Care Facilities: Care facility residents show a 15–19% decline in valuing generative roles, such as mentoring younger generations and sharing their experiences. This reflects a disconnect from broader societal values and a reduced sense of intergenerational engagement, further contributing to their social isolation.

ARCHITECTURAL CASE STUDY | CONVENTIONAL FACILITIES

Germany, with 21% of its population aged 65 and older, has the second-highest proportion of elderly individuals among European Union countries (Federal Statistical Office, Wiesbaden 2016, 18). Within Germany, SaxonyAnhalt ranks first among the federal states, with 25% of its population falling into this age group (Federal Statistical Office, Wiesbaden 2016, 11). Notably, the city of Dessau-Roßlau, as a historically significant urban center, exhibits an even higher percentage, with 32.5% of its population comprising elderly individuals.

As a result, Dessau-Roßlau features a dense network of elderly care facilities distributed across both urban and rural areas. These facilities provide a wide range of services, including day care, assisted living, and dementia care, offering valuable insights into the state of care practices and the architecture of care facilities.

In this chapter, we will analyze these care facilities at macro, meso, and micro scales, with a particular focus on their role in promoting social integration. This study aims to deepen our understanding of care practices, their defining characteristics, and the architectural frameworks of conventional elderly care facilities in Germany. 1. Federal Statistical Office, Wiesbaden, Older People in Germany and the EU (Order No. 0010020-16900-1), Wiesbaden, July 2016, 18.

MACRO ANALYSIS

The central area of Dessau, encompassing key locations such as the rail station, city center, and Dessau Center, functions as the primary hub for the city’s facilities. According to the 15-minute walking city concept, which emphasizes accessibility to essential services within a 15-minute walking radius (approximately 1.2 km), most elderly care facilities are concentrated within this central zone. This strategic location allows residents to easily access a wide range of urban amenities, such as public transportation, healthcare services, shopping centers, and recreational spaces, which are integral to fostering social integration and reducing isolation (Moreno et al., 2022).

Additionally, facilities located outside this central zone remain well-connected to the city’s core through efficient public transportation networks, including tram and bus services. This connectivity ensures that elderly residents, even those in more peripheral areas, can still access the essential services and social opportunities offered by the central area

Carlos Moreno et al., “The ‘15-Minute City’ Concept Can Shape a Net-Zero Urban Future,” Nature Communications 13, no. 1 (2022): 112, https://doi.org/10.1038/s41599-022-01145-0.

CITY PLAN
Rail Station Rathaus Center
Dessau Center
City Map

MESO ANALYSIS

The facility at Georgenallee 41 is within a 5-minute walking radius of schools, pharmacies, grocery store, and restaurant. While it offers access to essential services, limited public transport and the absence of green spaces reduce its potential for fostering social engagement. Similarly, Elballee 59, surrounded by grocery store, school with sports zone, club, and restaurant, benefits from bus route with multiple stops. Although both facilities have dedicated health services, the neighborhoods lack green spaces and diverse social amenities crucial for supporting broader integration and interaction.

School

Grocery Shop

Pharmacy / Medical Chamber

Club

Sports Zone

Public Transportation

Restaurant / Cafe

Auditorium / Theater

Museum / Gallery

Shopping Centre

Church

Elballee 59
Georgenallee
Fig 31. Neighbourhood Map

MESO ANALYSIS

The facilities at Wolfgangstraße 24, Alexandrastraße 6, Ferdinand-von-Schill-Straße 7a, Hausmannstraße 5, and Oechelhaeuser Straße 62 are clustered in close proximity, supported by a bus route, the main tram line, and multiple stops. The neighborhood features schools, grocery shops, pharmacies, sports zones, restaurants, cafés, the Anhalt Theater, Bauhaus Museum, the city’s main shopping center, and a church. Notably, only Hausmannstraße 5 has a park nearby, limiting access to green spaces for informal outdoor engagement. Despite the variety of amenities, the lack of widespread green spaces remains a critical gap in promoting broader social integration

School

Grocery Shop

Pharmacy / Medical Chamber

Club

Sports Zone

Public Transportation

Restaurant / Cafe

Auditorium / Theater

Museum / Gallery

Shopping Centre Church

Hausmann
Fig 32. Neighbourhood Map

MESO ANALYSIS

The facilities at Georgenstraße 13-15, Tornauer Str. 23A, Bernburger Str. 15, and Fröbelstraße 19 are located along a major public transportation route with multiple bus and tram stops, ensuring strong connectivity. The neighborhood includes schools, grocery shops, sports zones, a museum, shopping centerS, a church, and a few restaurants and cafés. However, the availability of communal facilities decreases toward the outer city, limiting opportunities for social interaction and convenience for residents in those areas.

School

Grocery Shop

Pharmacy / Medical Chamber

Club

Sports Zone

Public Transportation

Restaurant / Cafe

Auditorium / Theater

Museum / Gallery

Shopping Centre

Church

Georgenstraße 13-15

Fröbelstraße 19

33. Neighbourhood Map

Tornauer Str. 23A
Bernburger Str. 15
Fig

MESO ANALYSIS

The facility at Heidestraße 303 is situated in the outer area of the city, with limited amenities within its 5-minute walking radius, comprising only a pharmacy and grocery stores. While it is connected to the city via a bus route with nearby stops, the lack of diverse communal facilities such as schools, recreational spaces, or cultural venues reduces opportunities for social engagement. This peripheral location underscores the challenges of integrating elderly residents into the broader community, as the area falls short of meeting the principles of inclusivity

School

Grocery Shop

Pharmacy / Medical Chamber

Club

Sports Zone

Public Transportation

Restaurant / Cafe

Auditorium / Theater

Museum / Gallery

Shopping Centre

Church

Heidestraße 303

Fig 34. Neighbourhood Map

MESO ANALYSIS

The facilities at Junkersstraße 52 and Ellerbreite 42A are located on the outskirts of the city, both connected by public transportation, including bus and tram.

Junkersstraße 52 offers minimal amenities within its 5-minute walking radius, with only a school and a club.

In contrast, Ellerbreite 42A is surrounded by several shopping malls and a school. Despite their proximity to public transport, both locations still face limitations in terms of social facilities. The peripheral nature of these areas reduces opportunities for social interaction and community integration, which is crucial for elderly residents

School

Grocery Shop

Pharmacy / Medical Chamber

Club

Sports Zone

Public Transportation

Restaurant / Cafe

Auditorium / Theater

Museum / Gallery

Shopping Centre

Church

52

Junkersstraße
Ellerbreite 42A
Fig 35. Neighbourhood Map

MICRO ANALYSIS

In the micro-scale analysis, we will examine the spatial relationship of the facility within its community. This includes:

• Placement in Context: Understanding how the facility is situated within its surrounding environment.

• Interaction with Surroundings: Assessing how the facility engages with and connects to its immediate neighborhood.

• Outdoor Space: Evaluating the type and quality of outdoor spaces provided by the facility.

• Semi-Outdoor Spaces:

Analyzing the availability and functionality of semioutdoor spaces for residents and visitors.

Fence
Green Space
Fig 36. Micro Analysis
Fig 37. Micro Analysis

FINDINGS

• Macro Analysis: Most care facilities are located within a 15-minute walking distance from the city center, ensuring accessibility for residents and visitors. Facilities on the outskirts are also well-connected to the city center through public transportation. This connectivity facilitates accessibility for the broader community but is more effective for younger, mobile demographics.

• Meso Analysis: Care facilities in central urban neighborhoods benefit from proximity to essential communal amenities. However, these areas often lack sufficient open public spaces for community engagement. In contrast, care facilities in suburban or peripheral locations frequently face a shortage of communal infrastructure and activities, limiting opportunities for residents to integrate into the local community. While younger individuals can compensate for this deficiency due to reliable public transportation, the elderly face significant challenges in fostering social connections due to mobility constraints.

• Micro Analysis: At the micro level, care facilities generally lack both physical and social connectivity with their immediate surroundings. While many facilities have open green spaces, these are often underutilized by residents and the community due to poor spatial integration. These spaces are typically designed as isolated, fenced areas adjacent to the facility structure, rather than as continuous and inviting extensions of the surrounding environment. Furthermore, architectural design often neglects visual and social connectivity, with limited semioutdoor terraces, small windows, and barriers that discourage interaction with the neighborhood. This design approach significantly hinders opportunities for community engagement and integration.

ARCHITECTURAL CASE STUDY | SUCCESSFUL PRACTICES

Findings from the earlier studies reveal that the social isolation of elderly residents in care facilities is often a result of both programmatic and architectural shortcomings. In some cases, strict operational rules isolate residents from their surrounding neighborhoods, while in others, architectural design reinforces this separation.

In this chapter, we will examine three architectural projects that successfully address these issues by integrating elderly care facilities with their local communities, using approaches that align with our findings:

• Alzheimer’s Village | Nord Architects | France: A project designed to foster community engagement and social inclusion for residents.

• Plaza de América | Alicante, Spain: A development that promotes intergenerational living through thoughtful spatial and programmatic integration.

• Klein Veldekens | Osar | Belgium: A facility that emphasizes continuity of living, integrating care within familiar environments to eliminate the need for residents to leave their community.

Alzheimers Village | NORD Architects | France

The project is designed as a self-sustaining village, complete with streets, houses, a supermarket, and communal spaces, creating a familiar and welcoming environment for residents. Public areas such as cafés, shops, and gardens are accessible to both residents and visitors, serving as informal meeting points that encourage interaction among the elderly, caregivers, families, and the broader community.

By embracing people of all ages, the village fosters intergenerational connections, breaking social barriers

and reducing the stigma associated with dementia care. Collaboration with local organizations, volunteers, and businesses further integrates the facility into the community, transforming it from an isolated care setting into an essential part of the local fabric.

Additionally, the village offers open natural environments that promote therapeutic benefits and provide spaces for diverse activities. These spaces enhance the well-being of residents while strengthening connections among the residents, staff, and surrounding neighborhood.

38. 11h45 (Photographer), Alzheimers Village by NORD Architects, December 21, 2021, photographs, “Alzheimers Village / NORD Architects,” Archdaily, accessed January 26, 2025, https://www.archdaily.com/973948/alzheimers-villa-nord-architects?ad_source=search&ad_medium=projects_tab.

Fig. 38

Plaza de América | Alicante, Spain

The project fosters intergenerational relationships by offering affordable housing for both lowincome older adults and young people, creating an inclusive community that promotes mutual support, understanding, and collaboration across generations.

The housing units are designed around shared spaces that encourage social interaction, with communal areas such as gardens, courtyards, and multipurpose rooms acting as hubs for collective activities and engagement.

By revitalizing the Plaza de América area, the project contributes to urban renewal, making the neighborhood more vibrant and inclusive. This regeneration attracts diverse groups, enhancing both social cohesion and economic opportunities for the broader community.

Launched in 2003 by the Municipal Housing Board of Alicante (PMV), the Municipal Project for Intergenerational Housing and Community Services addresses the housing needs of low-income older adults and young people.

The initiative provides 244 affordable intergenerational housing units in central urban areas, combining accessible living with a sense of community. By fostering a family-like environment, the project promotes a sense of belonging and supports older adults in maintaining their independence as they age.

In addition to housing, the project offers a range of services to the broader community, contributing to the revitalization of the surrounding neighborhoods and enhancing social cohesion.

Fig. 39

Klein Veldekens | osar | Belgium

This project redefines traditional elderly care by integrating care rooms and independent living spaces within the same building, eliminating visual or physical separations. This seamless design allows residents to maintain control over their lives, ensuring couples can remain together even when one partner requires more intensive care.

The building offers flexible housing options, with residents able to move between independent flats and

group homes while accessing professional care services tailored to their individual needs.

The ground floor features an extensive public program, including a brasserie, service center, daycare, wellness facilities, and co-working spaces, all open to the neighborhood. These shared functions enrich the residents' living environment, fostering community engagement and interaction while preserving their privacy.

https://osar.be/klein-veldekens-2-geel/.

40. Olmo Peeters & OSAR (Photographers), Small Field Blankets, Yellow by OSAR, n.d., photographs, “Small Field Blankets, Yellow,” OSAR, accessed January 26, 2025,
Fig. 40

PART 03

PROJECT PROPOSAL

The site not only provides the physical space for the proposed facility but also plays a crucial role in supporting the goals of social integration, accessibility, and community engagement. This chapter explores the criteria that guide the selection of a site base on research and case study observations, and findings that can facilitate these objectives, while also taking into account the unique needs of elderly residents. The site analysis will examine the surrounding

neighborhood. This will provide insight into how the site can foster interaction with the broader community and reduce the potential for isolation.

Existing site conditions will also be analyzed to identify opportunities for adaptive reuse or necessary modifications to align with the program’s requirements.

In addition, this chapter includes existing drawings of the site, serving as a visual foundation for the design process.

SITE SELECTION CRITERIA

BASED ON RESEARCH FINDINGS

• Proximity to Community Hubs: Sites should be within a 15-minute walk of markets, parks, and cultural spots, or well-connected by public transport if farther out.

• Neighborhood Characteristics: Areas with mixed-age populations and open public spaces are ideal for intergenerational interaction and social cohesion.

• Urban Integration: Favor sites that blend into the neighborhood, especially those with potential for adaptive reuse and minimal isolation.

• Potential for Social Regeneration: Prioritize areas needing revitalization, where the facility can drive community and economic renewal.

“Functional Isolation”

(The building serves its original purpose, but remains detached from the neighborhood.)

“Dormant Disconnection”

(The function is obsolete; the building is abandoned and cut off from its context.)

“Integrated Rebirth”

(The building is adapted with a new, community-oriented function bringing life and connection.)

AGEING IN ARCHITECTURE

Aging is not a phenomenon exclusive to humans; it is a universal process that also affects architecture. Like people, buildings experience a prime period in their early years, marked by peak performance, aesthetic appeal, and functionality. Over time, however, architecture, too, begins to age—showing signs of wear, developing a patina, and often losing its original charm and usefulness.

This parallel becomes particularly evident in the case of industrial architecture. During their operational prime, such buildings are typically closed off, accessible only to a select few, and isolated from the broader community. Once their functional role ends, they are frequently abandoned, left disconnected from their surroundings. However, the adaptive reuse of these derelict industrial sites—brownfields—offers a powerful opportunity to re-integrate such architecture into the life of the community. This mirrors the potential for reintegrating the elderly into society, shifting both from a state of isolation to renewed participation and relevance.

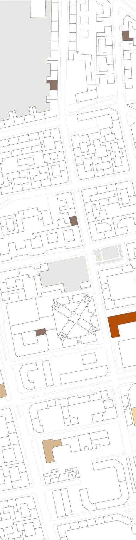
PROPOSED SITE

The proposed site, located in the Neukölln district of Berlin, has been selected based on several factors that align with the site criteria. The site is part of the former Kindl Brewery complex and was historically used as a warehouse during the factory's operation. While other parts of the brewery have been repurposed for residential and office use, the warehouse remains largely underutilized, with only 25% of its floor area currently serving temporary purposes.

Below is an evaluation of the site based on the outlined criteria:

• Proximity to Community Hubs: The site is located near Karl-MarxStraße, a vibrant street with a diverse range of functions, including a city center, shopping centers, and educational institutions. Additionally, the area features healthcare amenities such as hospitals, pharmacies, and doctors' offices, making it an ideal location for an elderly care facility.

• Neighborhood Characteristics: While the neighborhood is predominantly residential, it is enriched with a variety of functions, including commercial, educational, healthcare, and cultural facilities like art galleries. This mix of uses reflects a demographically diverse population, supporting opportunities for intergenerational interaction.

• Urban Integration: The site is adjacent to the Kindl courtyard, which has been identified in plans by the district planning authority and the current landowner for future conversion into a communal space. This planned transformation highlights the potential for social engagement and community exposure. Moreover, the underutilized warehouse represents an urban brownfield, underscoring the need for adaptive reuse to reintegrate it into the neighborhood.

• Potential for Social Regeneration: The relocation of the brewery has left significant land available for community improvement. While parts of the site have been repurposed, the warehouse—occupying the largest footprint—remains unadapted. This presents a significant opportunity for revitalization, allowing the site to become a focal point for communal regeneration and social interaction.

41. Maryon AG, “Vollgut,” Maryon AG, accessed December 21, 2024, https://maryon.ch/en/liegenschaft/vollgut/.

SITE SURROUNDINGS

After the relocation of the factory, ownership of the property—originally developed starting in the 1920s—changed hands, except for the main brewery building. This structure was later converted into the KINDLZentrum für zeitgenössische Kunst. The remaining parts of the property have since been adapted for various uses.

• A: Previously the main warehouse of the factory, this structure expanded over time to meet increasing demand. The lower section, comprising three stories, showcases a complex structural evolution, including brick vaults, concrete frame structures, and steel frame elements. The upper part, accessible directly from the Kindl courtyard, features a lofty steel frame structure.

• B: Formerly used as the loading and unloading bay and an extension of the warehouse, this part is currently under construction to serve as a workplace for the environmental organization Bund für Umwelt und Naturschutz Deutschland.

• C: Once an extension of the warehouse, this structure has been fully redeveloped and is now utilized by the co-working space organization Impact Hub.

• D & E: The building labeled E previously served as the factory's administration building. After the relocation, this structure, along with a newly constructed building (D) beside it, is now used by Berlin Global Village.

• F: The main brewery building, renowned for its intricate brickwork and complex form, has been transformed into the well-known KINDLZentrum für zeitgenössische Kunst.

• G: Previously vacant land, this area has been developed into a residential block aligned with existing adjacent buildings, providing affordable housing for young people.

KINDL COURTYARD

After the relocation of the former factory, the courtyard has evolved into one of the key communal attractions within the neighborhood. It serves as a versatile space, hosting a range of activities, from community meetings to outdoor events. During the summer, the courtyard is also utilized for communal gardening, and it occasionally transforms into a vibrant flea market.

Previously, students from TU Berlin constructed a reused wooden structure at the center of the courtyard. This structure has become a multi-purpose pavilion, playing a central role in supporting various communal activities.

Kindl - Zentrum Für Zeitgenössische Kunst Berlin Global Village Affordable Accommodation
Accommodation For Young Persons Warehouse ( Site )

LAND USE MAP

The site is predominantly surrounded by residential buildings. However, many of these buildings also feature diverse functions on their ground floors. In the accompanying functional map, an effort has been made to highlight these non-residential uses.

The wide variety of functions includes commercial programs such as shopping centers, grocery stores, small shops, restaurants, offices, and coworking spaces. Additionally, cultural spaces such as clubs, auditoriums, theaters, and exhibition galleries contribute to the neighborhood's vibrancy. The area also boasts a well-established network of schools and educational institutions, further reflecting the diverse demographics of the community.

The map also identifies plazas, parks, and gardens, which provide spaces for leisure and recreational activities, enhancing the neighborhood's overall quality of life.

LEGENDS

CARE FACILITIES

In addition to its diverse mix of functions, the surrounding area is home to an array of care facilities that cater to a wide range of needs. These include hospitals, doctors' chambers, physiotherapy centers, pharmacies, and children's daycare centers. Furthermore, the neighborhood features various residential care facilities, such as assisted living accommodations, nursing homes, and specialized assisted living arrangements for younger individuals with specific needs.

The presence of these facilities underscores the importance of accessible care services within the community. It highlights a strong demand for diverse care provisions, not only for the elderly but also for younger individuals and families. This variety also reflects the demographic diversity of those requiring care in the neighborhood, spanning different age groups and care needs.

LEGENDS

PUBLIC TRANSPORTATION

The proposed site is well integrated into the existing public transportation network. Within a 500-meter (approximately 5-minute walking) radius, there are multiple bus stops serving several routes, ensuring accessibility to different parts of the city. Additionally, the neighborhood features two U-Bahn stations, further enhancing connectivity and ease of travel for residents and visitors.

Despite the well-established public transport infrastructure in the area, the site’s slightly offset position from Karl-Marx-Straße provides a distinct advantage. While maintaining close proximity to this vibrant and well-connected corridor, its location offers a quieter and more serene environment, making it particularly well-suited for residential functions and care facilities. This balance between accessibility and tranquility contributes to creating a comfortable and supportive living environment for elderly residents and those in need of care.

LEGENDS

GROUND FLOOR

Concrete Frame Structure

Brick Load Bearing Wall Structure

Steel Frame Structure

Non-Load Bearing Elements

EXISITNG STRUCTURE

The building is constructed using three distinct structural systems. The southern section features a steel framework, while the northeast side is built with a concrete frame structure. The northwest side, likely the oldest part of the building, is made of brick.

FIRST FLOOR

Beneath the brick section, there is a vaulted structure originally designed for ice storage. This area is enclosed by thick brick walls to regulate temperature effectively. The building has three main staircases that connect all levels from the ground floor to the third floor. A central corridor runs through the middle of each floor, linking the staircases and various sections of the building. The front part of the brick structure is reinforced with densely positioned steel columns.

SECOND FLOOR

Concrete Frame Structure

Brick Load Bearing Wall Structure

Steel Frame Structure

Non-Load Bearing Elements

EXISITNG STRUCTURE

The ground level, which connects to Neckarstraße, is partially embedded in the earth on two sides. Although the east side is above ground level, the façade has no openings. The brick section has a separate entrance and is not connected to other parts of the floor.

The upper levels have a larger floor area compared to the ground level. The first floor follows the same

THIRD FLOOR

circulation pattern, with partition walls dividing the space into multiple rooms. A double-height hall facing Neckarstraße, now used as an event hall, is a prominent feature of this level. The remaining space is divided into three sections: one serves as storage and restrooms for the event hall, while the other two are large rooms. The topmost floor consists entirely of a steel structure

with a lightweight metal roof. This allows for a longspan interior, which remains completely open except for the staircases. Currently, this level is used as a go-kart area and has direct access to the Kindl courtyard.

PROGRAM

The integration of elderly care facilities within the broader community requires a thoughtful and strategic approach to programming. Programs not only shape the functional and operational dynamics of these facilities but also directly influence the quality of life, social engagement, and well-being of residents. In the context of this thesis, the program serves as a crucial framework to address the challenges identified in the earlier findings, such as social isolation, limited autonomy, and disconnection from the community.

This chapter aims to outline a comprehensive programmatic strategy that fosters interaction,

independence, and inclusivity. It begins by establishing key program criteria derived from research and case study observations, and findings followed by a proposed program that responds to these criteria. The final section explores a detailed breakdown of the program, highlighting specific spaces, their interconnections, and their roles in enhancing the social and spatial integration of elderly care facilities within the community.

By addressing both functional needs and community integration goals, this chapter sets the foundation for a holistic design approach that redefines the role of elderly care facilities as vibrant, community-centric spaces.

PROGRAM FORMULATION

PROGRAM CRITERIA

• Integration of Public and Private Spaces: Including shared spaces such that encourage interaction between residents and the surrounding community.

• Intergenerational Engagement: Include programs that attract different age groups, fostering mutual support and understanding

• Support for Autonomy: Provide flexible living arrangements, to allow residents to maintain control over their lives.

• Cafe

• Garden

• Multipurpose area

• Accessible Care Services: Integrate on-site care services such as wellness centers, therapy rooms, and group care homes, ensuring easy access for both residents and the community.

• Accommodation for other age groups

• Daycare for children

• Co-working space / workshop

• Collaborative recreational activities

• Assistive living

• Nursing care

• Wellness Facilities

• Daycare for Elderly Persons

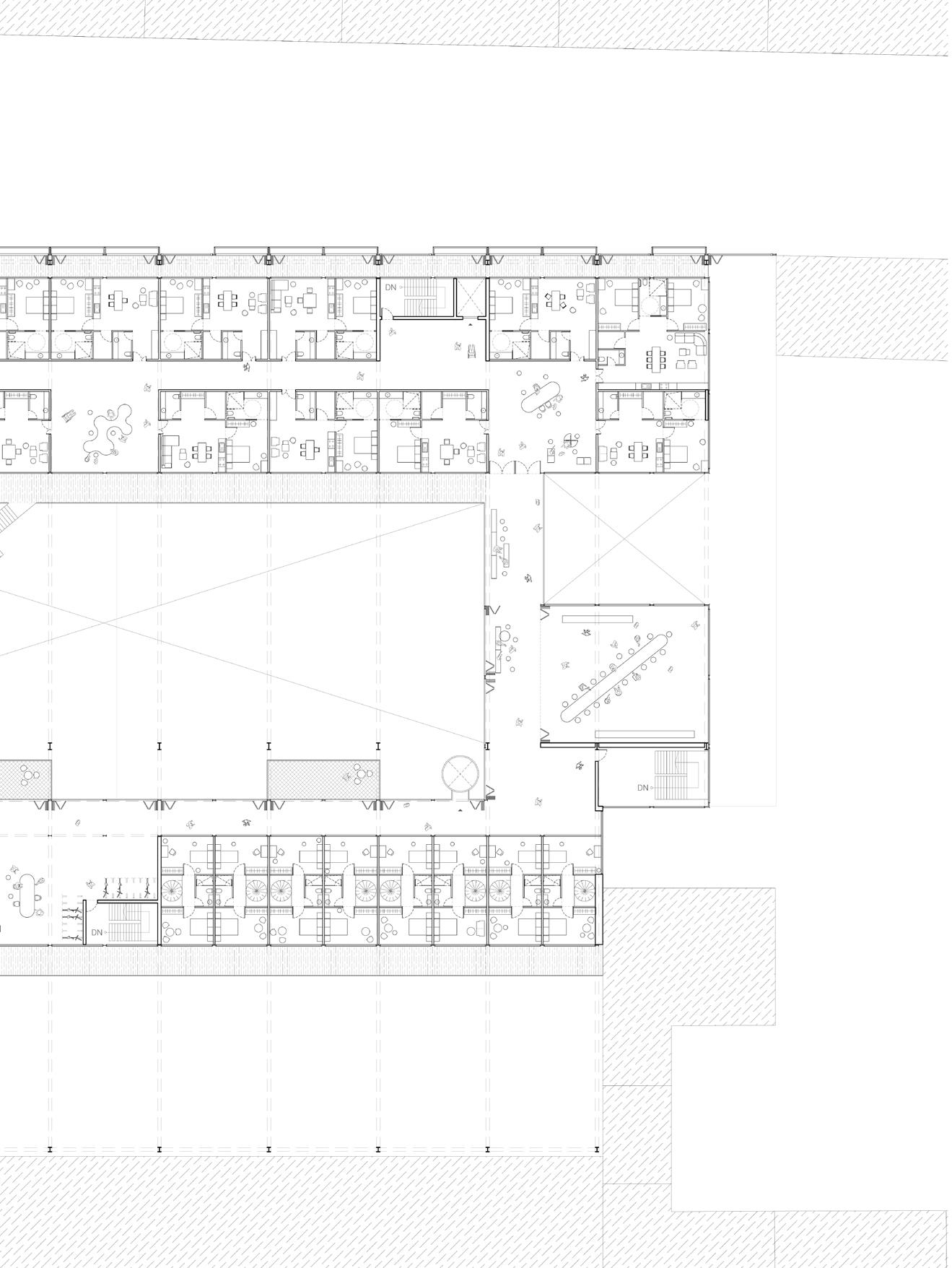
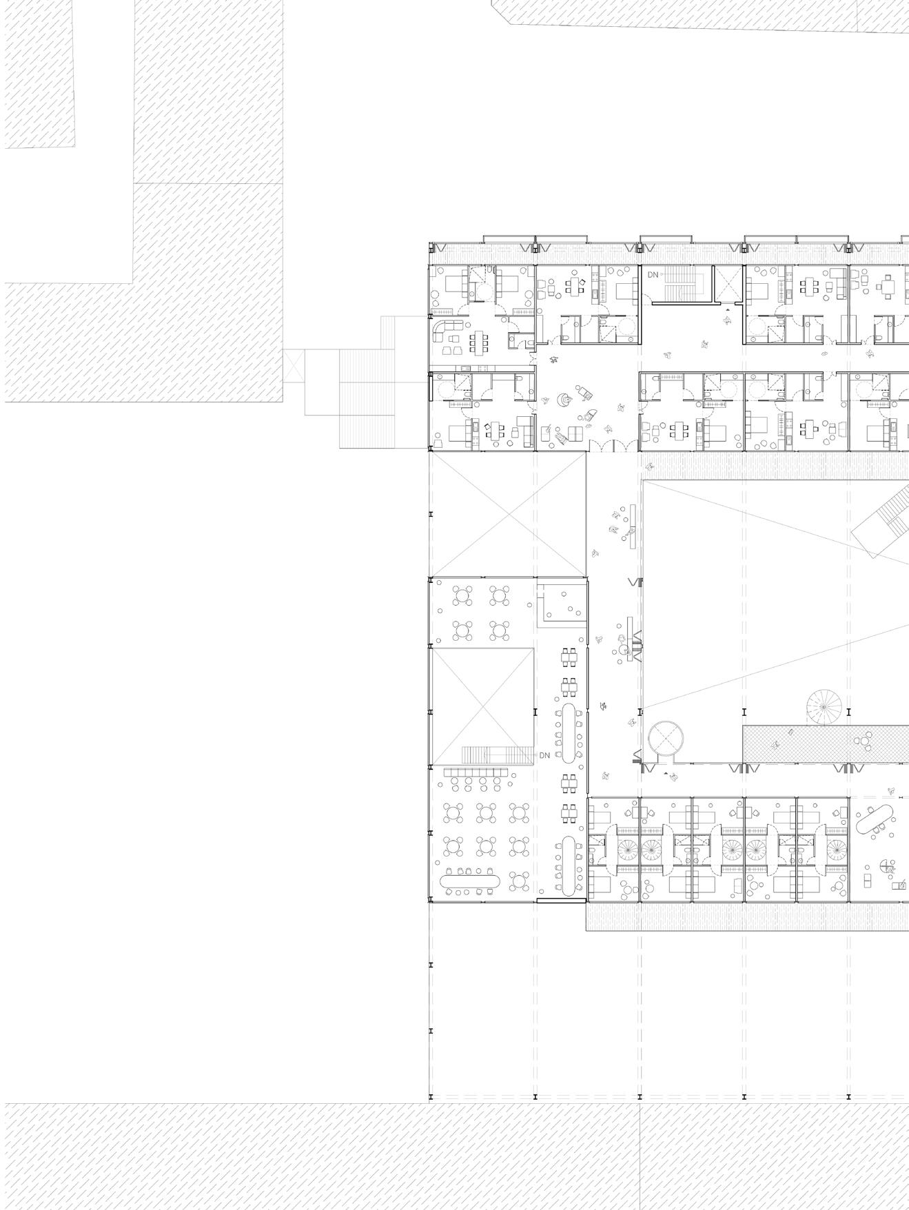
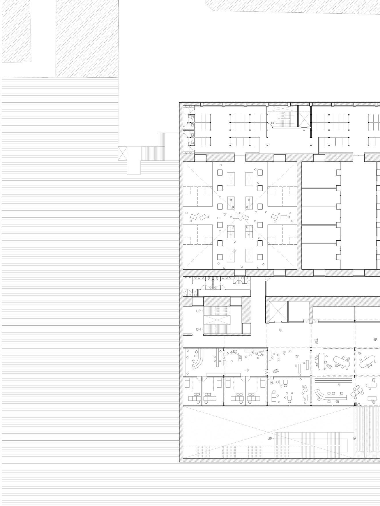
CONCEPTUAL DEVELPMENT

Transformation

• A portion of the central structure is removed to create a central courtyard, enhancing natural light and spatial quality.

• The building is detached from the neighboring structure on the south side by cutting away part of the southern volume.

• Previously closed façades are opened up to establish stronger visual and physical connections with the surrounding neighborhood.

• New open spaces are introduced to activate the structure and invite community interaction.

• A ramp circulation is integrated to connect Neckarstraße with the Kindl Courtyard, ensuring accessible and continuous movement through the site.

Proposed Structure

• Green gardens are introduced within the structure, serving as an intimate, nature-infused collaborative space. It also acts as a buffer zone, softening the connection between the building and its attached neighbors.

CONCEPTUAL DEVELPMENT

PROGRAM DISTRIBUTION

• The structure connects to public areas on both the ground and third floors. At ground level, it engages the surroundings through communal functions. To preserve the integrity of the brick volume, the entire three levels within it are dedicated to the wellness zone, which features separate circulation from the rest of the building.

• The first floor introduces the assisted living accommodations and includes semi-residential care facilities such as an elderly day care center.

• Assisted living continues on the second floor, which also houses studio apartments on the opposite side.

• The third floor connects to the central courtyard and links to the public plaza via a café. This level also accommodates nursing care units—benefiting from easy plaza access—and the lower level of the duplex family apartments.

• The fourth and top floor consists of the private zones of the duplex family apartments and additional assisted living units.

CONCEPTUAL DEVELPMENT

CIRCULATION

• To enhance vertical connectivity and complement the central courtyard, a carefully designed ramp system is integrated throughout the structure

• This ramp allows the public plaza—extending from the third-floor courtyard—to flow continuously through all levels, linking back to the communal functions on the ground floor. It forms a clear circulation axis that connects all communal and residential areas within the building.

• Additional stairs and lifts ensure compliance with fire safety and regulatory requirements.

ZONING DISTRIBUTION

1. Entry Lounge
2. Daycare For Children
3. Multipurpose Hal
4. Storage
5. Coworking Space
6. Admin Office
7. Theraputic Pool
8. Change Rooms
9. Wellness Reception
10. Equipment Shop
11. Service + Mechanical Room + Heating
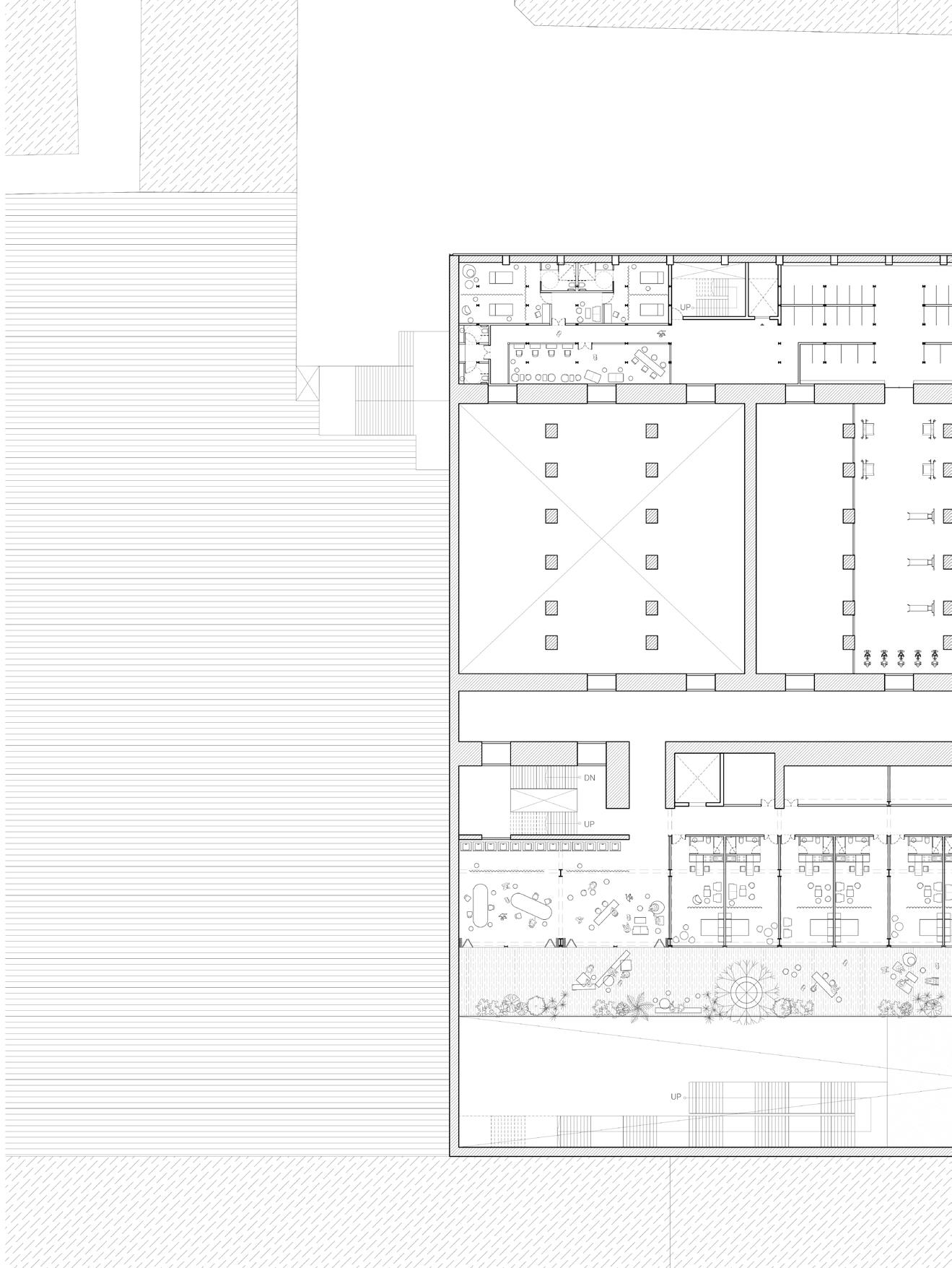
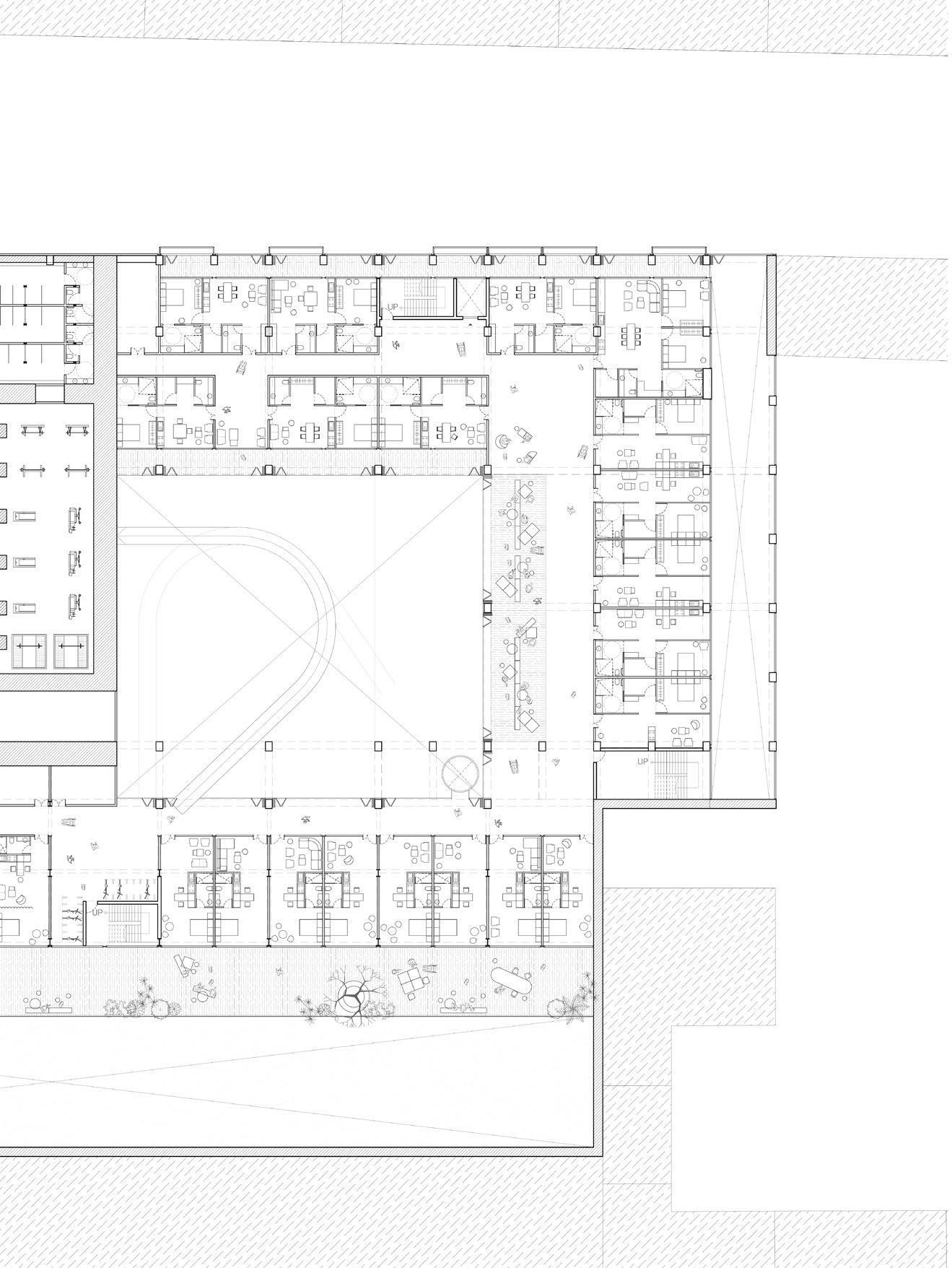
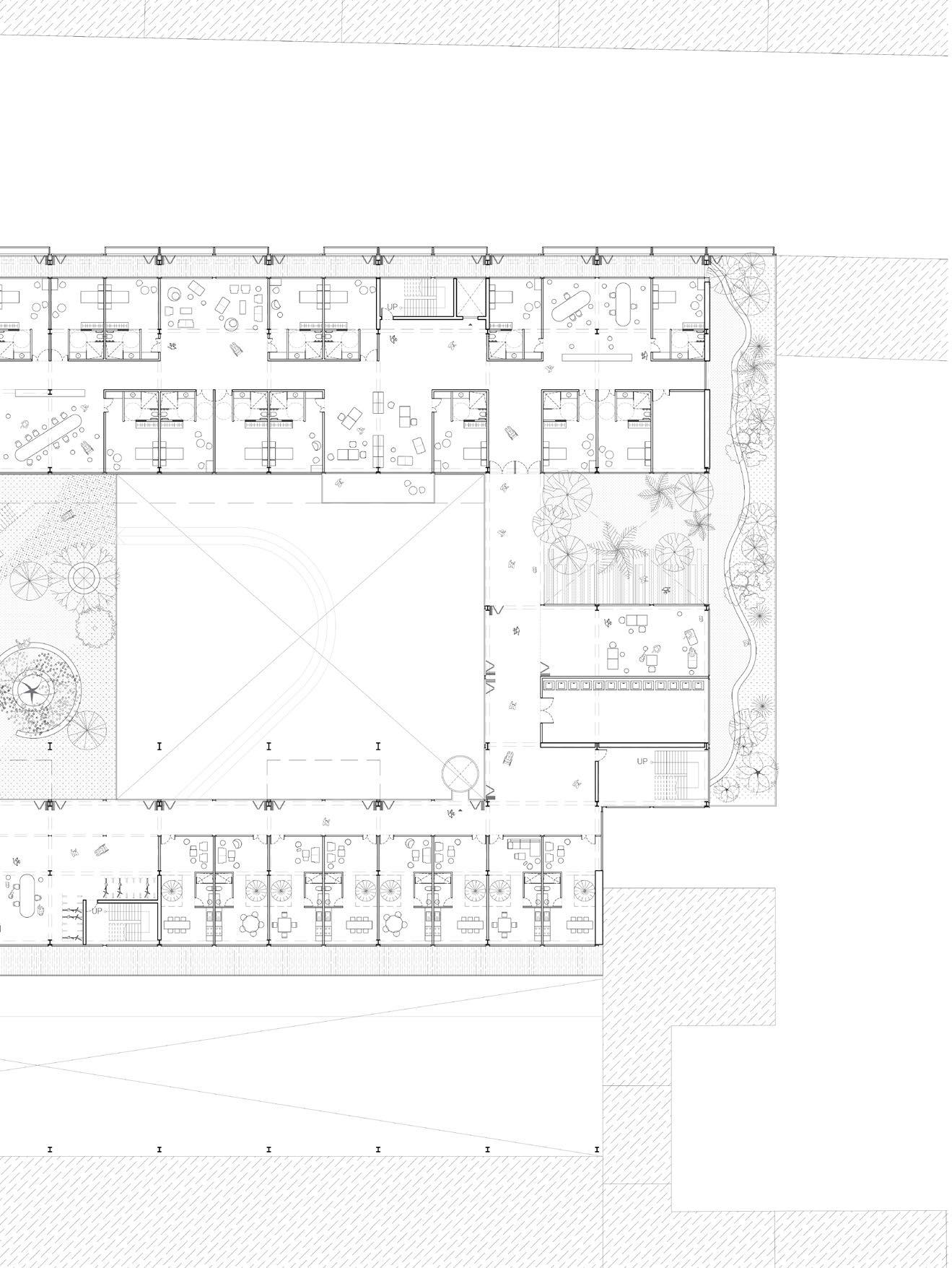
1. Assisted Living Units
2. Communal Terrace
3. Daycare For Elderly
4. Kitchen
5. Dining Area
6. Music Zone
7. Games Zone
8. Workshop / Club
9. Library
10. Consultants 11. Storage 12. Service + Mechanical Room + Heating 13. Sauna
Indoor Games
Changerooms
1. Assisted Living Units
2. Studio Apartments
3. Communal Laundry
4. Storage
5. Service + Mechanical Room + Heating
6. Yoga Studio
7. Gymnesium
8. Change Rooms
9. Saloon & Parlor
10. Spa Facilities
1. Nursing Care Units
2. Nursing Care Staff Break Room
3. Nursing Care Laundry
4. Familty Apartments
5. Cafe & Restaurant
6. Dining And Waiting Lobby
7. Nurse Station
ASSISTED LIVING UNITS 2. COMMUNAL DINING 3. FAMILY APATMENTS 4. CAFE & RESTAURANT

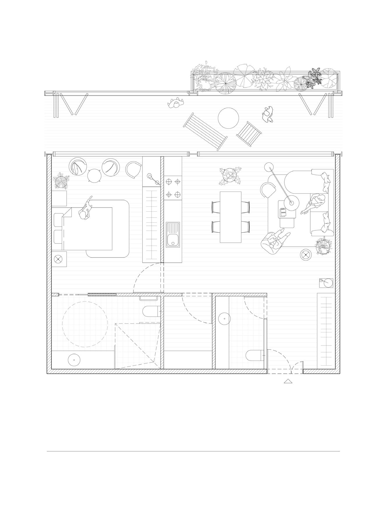
UNIT DETAIL - ASSISTED LIVING UNIT

The Proposal envisions a place where ageing is not a decline, but environment and its users grow together, embracing the richness, shared journey of strength,

but a celebration—for both people and architecture. Here, the built richness, character, and wisdom that come with time. Ageing becomes a strength, dignity, and coolness.

BIBLIOGRAPHY

• 11h45. 2021. Alzheimers Village by NORD Architects. December 21. Photographs. “Alzheimers Village / NORD Architects.” www.archdaily.com/973948/alzheimers-villa-nord-architects?ad_source=search&ad_medium=projects_tab.

• Albrecht, A., R. Kaspar, J. Simonson, S. Stuth, N. Hameister, C. Tesch-Römer, M. Wagner, and S. Zank. 2022. Old Age Research Data Centre of the German Centre of Gerontology, Berlin. Scientific Use File Version 1.0. DOI 10.5156/D80/2022/M.001.

• Camus, Felipe. 2013. Saint Benedict Chapel by Peter Zumthor. August 25. Photographs. “AD Classics: Saint Benedict 26, 2025. https://www.archdaily.com/418996/ad-classics-saint-benedict-chapel-peter-zumthor.

• Ceriani, Andrea. 2009. The Therme Vals by Peter Zumthor. February 11. Photographs. “The Therme Vals / Peter Zumthor.” www.archdaily.com/13358/the-therme-vals.

• Dini, Thibaut. 2022. Convent Saint François by Amelia Tavella. August 12. Photographs. “Convent Saint François / Amelia https://www.archdaily.com/966028/convent-saint-francois-amelia-tavella-architectes?ad_source=search&ad_medium=projects_tab.

• Federal Statistical Office, Wiesbaden. 2016. Older People in Germany and the EU. Order No. 0010020-16900-1. Wiesbaden,

• Hadden, Mark. n.d. Resource Centre at Coburg Crescent by C.F. Møller Architects. Photographs. “Resource Centre at January 26, 2025. https://www.cfmoller.com/p/Resource-Centre-at-Coburg-Crescent-i3333.html.

• Moreno, Carlos, Marie Gauthier, Jean-Baptiste Meunier, and Philippe M. D. Lemoine. 2022. “The ‘15-Minute City’ Concept Communications 13 (1): 112. https://doi.org/10.1038/s41599-022-01145-0.

• Peeters, Olmo. n.d. Residence Klapgat by OSAR. Photographs. “Residence Klapgat, Haacht.” OSAR. Accessed January

• Peeters, Olmo, and OSAR. n.d. Small Field Blankets, Yellow by OSAR. Photographs. “Small Field Blankets, Yellow.” OSAR. veldekens-2-geel/.

• Pons, Eugeni. 2018. Housing for Elderly People in Huningue by Dominique Coulon & associés. September 13. Photographs. Dominique Coulon & associés.” ArchDaily. Accessed January 26, 2025. https://www.archdaily.com/901996/housing-for-elderly-people-in-huningue-dominique-coulon-andassocies?ad_source=search&ad_medium=projects_tab.

• Schreyer, David. 2024. Retirement Home of the Franciscan Sisters in Vienna by Schenker Salvi Weber Architekten. May Sisters in Vienna / Schenker Salvi Weber Architekten.” ArchDaily. Accessed January 26, 2025. https://www.archdaily.com/1017023/retirement-home-of-the-franciscansisters-in-vienna-schenker-salvi-weber-architekten?ad_source=search&ad_medium=projects_tab.

World Habitat Award. n.d. Plaza de América: Municipal Project for Intergenerational Housing and Community Services

https://world-habitat.org/world-habitat-awards/winners-and-finalists/municipal-project-for-intergenerational-housing-and-community-services-in-alicante/#awardcontent.

Architects.” ArchDaily. Accessed January 26, 2025. https://

in Germany (D80+): Representative Survey 2020. 10.5156/D80/2022/M.001.

Benedict Chapel / Peter Zumthor.” ArchDaily. Accessed January

Zumthor.” ArchDaily. Accessed January 26, 2025. https://

Amelia Tavella.” ArchDaily. Accessed January 26, 2025. https://www.archdaily.com/966028/convent-saint-francois-amelia-tavella-architectes?ad_source=search&ad_medium=projects_tab.

Wiesbaden, July.

at Coburg Crescent.” C.F. Møller Architects. Accessed

Concept Can Shape a Net-Zero Urban Future.” Nature

January 26, 2025. https://osar.be/ocmw-klapgat-haacht/.

OSAR. Accessed January 26, 2025. https://osar.be/klein-

Photographs. “Housing for Elderly People in Huningue / https://www.archdaily.com/901996/housing-for-elderly-people-in-huningue-dominique-coulon-and-

May 26. Photographs. “Retirement Home of the Franciscan

https://www.archdaily.com/1017023/retirement-home-of-the-franciscan-

Services in Alicante. Photograph. Accessed January 26, 2025. https://world-habitat.org/world-habitat-awards/winners-and-finalists/municipal-project-for-intergenerational-housing-and-community-services-in-alicante/#award-

Turn static files into dynamic content formats.

Create a flipbook
Master Thesis: Its Cool to Get Old_2024/25 by S M Sazzad Lishan - Issuu