Shuaiqi WANG Architecture Portfolio for UCL MArch Architectural Design

Page 1

SHUAIQI WANG CONTACT

+86 188 8860 5383

saysw1@163.com

Xinjiang, China

LANGUAGE

Chinese English

EDUCATION

2018.09 - 2022.06

University of Nottingham Ningbo China

Faculty of Science and Engineering

Major: Architecture

Degree Classification: Secong Class, Division one

ACADEMIC EXPERIENCE

Rhino Sketchup

Grasshopper Blender

PS AI ID

Enscape

V-ray

Lumion

SKILLS HOBBIES

Swimming Movies Travel

2020.06 - 2020.09

UIA-HYP CUP 2020

Participated in the UIA-HYP Cup 2020 as a group member, was responsible for the pre-project research and concept output and participated in the production of drawings.

2021.07 - 2021.09

Overseas Research Project 2021

- Four Elements Community

Group worked together to complete a project for a familyfriendly community centre with an urban farm theme, Based on the earth element.

2022.05 - 2022.06

'MAKING MEMORY IN CITY' School Exhibition

- Planning Team

Planning the exhibition co-organised by the Architecture Design Studio Unit3 and the Ningbo Urban Memory Lab.

AWARDS

2021.12

Head's Scholarship

For Academic Excellence in University of Nottingham Ningbo China

SOCIAL EXPERIENCE

2018 - 2019

Ancient Architecture Conservation Group Volunteer

Participation in the Yong Volunteers Association ancient architecture conservation group.

2019. 07

Sun Shade International Volunteer Program

Successfully completed 26 hours of voluntary work of community service in Republic of Maldives with Sunshade Volunteers.

Painting Piano Photograph

05 OTHER WORK 01 02 04 03

UNDER THE CANOPY

A sense of security and a desire to explore are what everyone seeks in their childhood. This project will start with these two things to create a kindergarten for children. The design concept comes from the 'tree', the main body of the building is covered under a canopy like tree, to make the child feel protected. At the same time, the translucent roof ensures that the interior of the building interacts with the outside world, so that one does not feel locked up. The interior of the building is designed around tree columns with different types and functions of spaces, all connected by corridors, waiting to be explored by children. It is hoped that the project will become a dream land for children.

-LOCATION -CLIMATE

Ningo is always raining and the tempertue in smmer is very hgh. However, wind speed in Ningbo is not very fast.The sun shading and rain prensentation will be considered in design program.

-SITE ANALYSIS

The site is locatied in central part of Ningbo city, very close to the river. It is surronded by many residentil blocks and commercial area is not far away. A kindergarten can provide convenient education resources for the locals around the site.

USER ANALYSIS

For the main point of masterplan is about green city, nature element is considered to add in the project. In my opinion, nature is one of importment elements in kids’ development, the study not only can happen in the classroom, kids can also study in an opener and freer environment by their eyes and hands.

In order to highlight the feature of dreamland , which is different from the real world. It will be like a secret base for kids. So, a canopy is desined to ‘protect’ the secret base. However, in my mind, it would better not be an enclosed space, having interaction with outside world, so I purpose to find a way to make the canopy ‘semi-transparent’. In this way, the site will be protected without being isolated from the outside world.

CONDITION DESIGN CONCEPT
SITE
-CHILD BEHAVIOURS -NARRATIVE Lunch Painting Singing Music Playing Writing Dancing Create Class Reading Sleep Running 8:30 11:00 14:00 9:00 12:00 16:00 Go into the kindergarten Leave the kindergarten Morning check Having a breakfast Having lunch Taking a nap Teaching activities Playing games Outdoor activities Teaching activities Playing games Outdoor activities

Fixing Component

DESIGN PROCESS

Timber Structure

Assembly of the frame and fasteners of the canvas. Site condition. The main entrance is located on the north side for safety and easy access to the playground.

Placing building volumns according to site information.

Concrete Foundation

Lay out functional blocks. Living units for kids faces south for better natural light. Office area faces the gate, has a protective stance towards the interior.

Softening the edges of the block and rotating the regular blocks to remove the sense of intentionality.

A great circulation is added to the atrium, linking to all accessible spaces. Guide and encourage kids to explore.

Covering the canopy to 'project' the building. There are holes for people go in and go out, interacting with the outside.

Fencing at entrances and at gaps between the blocks. Placing green areas. The final

ETFE Membrane Steel Structure Foundation The shape of roof allows rain water to slide off.

ACTIVITY SPACE

PLAY AROUND THE COLUMN

Function of circulation, view platform and playground

ROOF SPACE

Connecting to the library and supports reading, relaxation, games and other activities

WAITING SPACE

Available for parents waiting to pick up their children to rest

SAND PIT Recreational facilities for children

TERRACE OUTSIDE THE ROOF

The terrace that stretches out over the roof allows children to interact with the nature

ARCHITECTURE DRAWINGS

1 2 3 4 5 7 7 8 9 10 15 6 +4.20m A B' B A'
-GROUND FLOOR PLAN
0 2 4 10m
-SECTION AA'
1. Entrance 2. Security Room 3. Morning Check 4. Dining Room 5. Atrium 6. Kitchen 7. Classroom Unit 8. Clinic 9. Library 10. Multi-function Room 11. Office 12. Studio 13. Art Spca 14. Outdoor Reading Space 15. Sand Pit 16. Principal Office 17. MeetingRoom 9 14 11 13 7 +0.00m +3.30m +8.40m +13.40m +6.60m +9.90m +13.20m +15.00m -THE 1st FLOOR PLAN -THE 2nd FLOOR PLAN -SECTION BB' 0 2 4 10m 0 2 4 10m

CONSTRUCTION DETAILS

20MM Timber Floor

Waterproofing Membrane

50*50mm Timber Joist with Mineral Wool

Waterproofing Membrane

150mm Concrete Slab

20MM Timber Floor

Waterproofing Membrane

50*50mm Timber Joist with Mineral Wool

Waterproofing Membrane

200mm Concrete Slab

100mm Insulation Layer

Waterproofing Membrane

50mm Lean Concrete Foundation Trench

0 0.5 1 2 4m

POSTAL MUSEUM

The digital age has accelerated the recording and dissemination of information, but the emotions carried in the information have not increased as a result, even as the connection between people has become weaker. Chinese characters, on the other hand, are not only a tool for communication for the Chinese, but also carry culture and feelings.

So, the project is proposed to be a history and culture type museum displays and collects postal related items, and provide a space and chance for visitors and the locals having a deeper communication with emotions. In the form, the growth curve is used to express the expansion of social networks, and break the rational, regular block by the dynamic curve to create a sense of conflict. The curve naturally brings the crowd into the interior, emphasizing the introversion in communication.

Source: http://vod.ningbo.cn

DESIGN PROCESS -CONCEPT -DESIGN DEVELOPMENT

SITE ANALYSIS
Select the Site Linearly arrange functional volumes with an axis Elevating the roof, enlicening facade and help ventilation Transitive space, Strengthen the sense of external volume Introduce concept, Create couurtyard space Cover the courtyard with triangle glass roof See from the data, it is obvious that the business of parcels and letters continue to shrinking.
BACKGROUND RESEARCH -LOCATION -PEOPLE

-GROUND FLOOR PLAN

Square
Tickets Window & Security
Reception
Courtyard
Exhibition Room1: Postal History 6. Exhibition Room2: Stamps & Envelops 7. Exhibition Room3: Postmarks & Post cards 8. Exhibition Room4: Post Transportation Facility 9. Temporary Exhibition Room 10. Lockers & Rest Area 11. Gift 12. Catering 13. Speech 14. Reading 15. Coffee A
-SECTION AA' ARCHITECTURE DRAWINGS 1.
2.
3.
4.
5.

-SECTION BB'

-THE 1st FLOOR PLAN
1. Exhibition Room5: Letters 2. Video Room 3. Meeting Room 4. Multi-Fuction Hall 5. Storage &Facility 6. Workshop 7. Restoration Studio 8. Reading Space 9. Office 10. Terrace
Gift Shop Catering Speech Space Reading Area Coffee 16. Office 17. Toilet 18. Library 19. Water 20.
Hall 21. Meeting Room 22. Video Room 23.
B A' B'
Multi-function
Exhibition Room5: Letters

SPATIAL TYPE

Main function space

The theme gallery has the function of displaying postal related articles and popularizing postal history. The theme pavilions are connected with each other. The theme of the exhibition can be changed and the exhibition is open to the public for the convenience of those who only want to visit the temporary exhibition

Leisure Space

To provide a rest space for visitors, but also open to the outside to serve people passing by. Proximity to internal and external libraries for user convenience.

3. Speech Space

Open Space

An open lecture space where visitors can share their stories or use it as a tree hole.

4. Multi-function Hall

Multi-function Space

Many activities and events can be hold here, such as academic meeting, celebration, Communication activities, lecture and so on.

1. Exhibition Room 2. Coffee

1. Rainwater drain on top

2. Rainwater drain pipe inside the wall

3. Rainwater drain spout

4. Connecting steel reinforcement

5. Precast concrete wall panel

6. cast-in-place concrete

7. Connecting foundation reinforcement

8. Waterproofing layer

9. Roof sloping layer

10. PET Sphere layer

11. Light pre-slab reinforced concrete

12. Screed Layer

13. Paving tile

14. Reinforced concrete slab

15. Sloping layer

16. Stone paving tile

17. Refilled terrain

18. Foundation

19. Blinding concrete

20. Glazingpanel

21. Aluminium frame

22.Bespoke aluminium gutter

CONSTRUCTION DETAILS 1 2 3 22 4 5 6 7 8 9 10 11 12 8 13 14 14 15 16 17 18 19 20 21

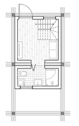
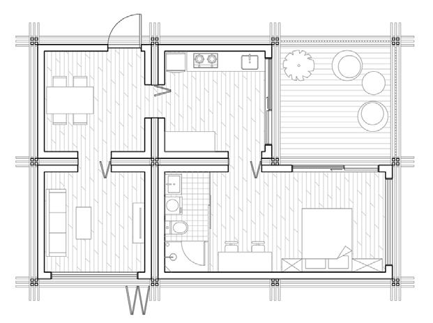
'MAGIC CUBE' COMMUNITY

Nearly half of all university graduates in Ningbo choose to stay and work in Ningbo after graduation, and the first thing they face is the problem of renting accommodation. They often have high expectations of housing but find it difficult to afford the high rents. The aim of the project is to provide a comfortable and affordable low-cost housing for young people on low incomes. The modular design allows for a significant reduction in expenditure and shortens the building cycle. At the same time, the project retains the possibility of change and growth, with movable and replaceable modules to support residents in creating housing that meets their expectations. Blank modules are set aside at the beginning of the construction phase to be filled in by the occupants in the future. The project can be seen as a universal,growable, low-cost residential community for young people.

-SITE CONDITION -BACKGROUND

The site is based on an urban planning project, located in the old city centre with a concentration of commercial and office space nearby. During the site survey it was found that many young people who have recently graduated and worked choose to rent in this area because of the easy access to the city. However, they face problems such as high rents, small living spaces and ageing amenities.

DESIGN PROCESS

-CONCEPT

-MODULAR CUSTOMIZATION SYSTEM

According to the data from the survey, the average rental price near the site is twice as high as the overall rental price in Ningbo, and 80% of the interviewees felt they were under a lot of pressure to rent.

The project preserves

and

SITE ANALYSIS
Click, Customize your own community With the growth of family or community over the years, the living area can be increased by adding or changing modules Allows sharing of information and supports joint planning of space use with neighbours The program retains the possibility of change and growth, which can be increased or decreased depending on the current state of the site Preselect the function modules, add to shopping cart View the build process in real time and book your installation date in advance Grid support sturcture Expand in the future Put in the basic
modules at the beginning
function
variability
growth, the modules can change according to future needs
Car Path Pedestrian Enter

UNIT TYPOLOGY

POSSIBLE CONFIGURATIONS

-4 UNITS(1 PEOPLE)

-6 UNITS(1-2PEOPLE)

-8 UNITS(2-3PEOPLE)

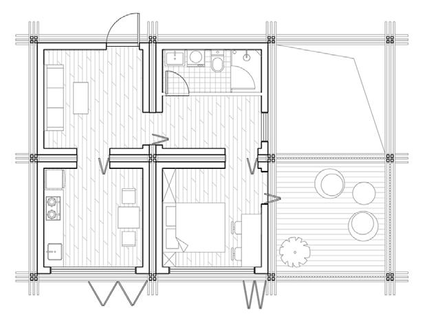
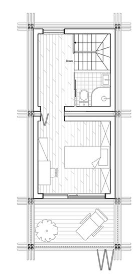
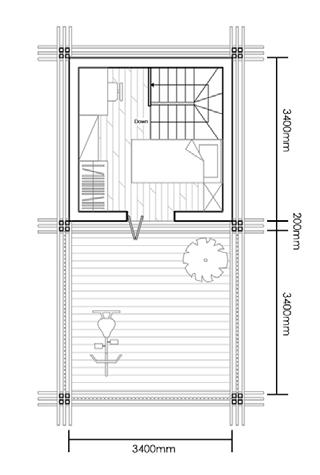
-Structure Frame -Corridor A -Corridor B -Terrace A -Terrace B -Kitchen -Dining Room -Living Room A -BedRoom A -BedRoom B -BedRoom C -BedRoom D -Toilet -Living Room B -Living Room C -Terrace C -Terrace D -Terrace E -Terrace F -Before -Before -Before -After -After -After 3200mm 3400mm 3400mm

-UNIT PLANS

-Before

Living Room A, Bedroom A, Toilet, Terrace A/B

-After

Living Room A, Kitchen, Bedroom C, Toilet, Terrace F

-Before

Living Room B ,Kitchen, Bedroom A, Toilet, Terrace A/B

-After

Living Room B, Kitchen, Dining Room, Bedroom D, Terrace A/B

-Before

Living Room A, Kitchen, Bedroom A, Bedroom B, Toilet, Terrace A/B

-After

Living Room C, Kitchen, Bedroom B, Bedroom C, Toilet, Terrace A/B, Terrace F

There are a total of three types of units in the project, each offering a certain number of compartments. The occupants can customise their house within the grid they own. It shows the initial living module proposed by designer and the possible configuration after a period of development by the occupants.

COMMON SPACES

-COFFEE&REST

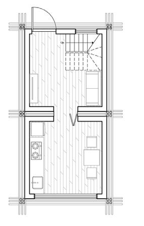
ARCHITECTURE DRAWINGS

-GROUND FLOOR PLAN

10 10 14 14 15 17 16 12 11 13 4 8 9 2 6 3 7 1 5
1. Courier Room 2. Security Room 3. Store 4. Coffee&Resting 5. Multi-activity Room 6. Restaurant 7. Sunken Skateboard Space 8. Exhibition Space 9. Courtyard Garden 10. Dwelling Unit 11. Public Activity Space 12. Lift 13. Water Tower 14. Residential Buildings 15. Market 16. Parking Lot 17. Park
-ELEVATION
-RESTAURANT -FITNESS ROOM
-SECTION AA' -TYPICAL FLOOR PLAN -ROOF PLAN 1. Fitness Room 2. Lift & Staircase 3. Dwelling Unit 4. Outdoor Corridor 5. Terrace 2 1 3 3 3 3 4 5 5

CONSTRUCTION DETAILS

1. Beam, composed of three 50*200mm wooden beams

2. Column, 4 wooden columns

75*75mm

3. Steel anchor plats

4. Foundation

5. Insulation layer, 140mm

6. Wood stud, 20*140mm

7. Bamboo fibre panel, 15mm

8. Impact sound insulation, 20mm

9. Waterproofing layer

10. Screed layer

11. wooden floor, 10mm

12. Latex paint layer, 10mm

13. Adaptable wooden blinds

14. French Window

15. Glass sliding door

16. cladding layer

17. Metal keel, 20mm

18. Plasterboard, 20mm

19. Secondary beam

20. Cavity

21. Mirror stainless steel plate

22. Angle iron

23. Smartech folding door

PARENT-CHILD FARM

Lack of communication between parents and children is a problem that plagues many Chinese families. Although parents spend a lot of time with their children, it is difficult to generate effective communication. The project therefore aims to provide a space where interaction and communication can be stimulated in an attempt to break down negative relationships. Agricultural activities are known to be very attractive to Chinese people and are a highly interactive activity. So the project was proposed as a family farm community centre. In order to bring citizens closer to the farming life, the project is not only about farming, but also includes educational workshops and a greenhouse, where parents and children have the opportunity to learn and do farming together, strengthening their communication with each other in an interactive process. The project also serves the surrounding community with a market that provides fresh vegetables and produce to the neighbourhood.

DESIGN CONCEPT

The importance of agriculture is well known, but in the city people are still disconnected from it, and citizens' contact with agriculture is limited to the dining table. The project seeks to bring citizens closer to agriculture and amplify their perception of it

The survey found that there is a general lack of communication between parents and children in Chinese families. Even when they are in the same space, communication between parents and children is often negative. It is important to find ways to create positive interactions between parents and children.

-CLIENT ACTIVITIES

SITE ANALYSIS
CLIENT ANALYSIS
CITY Far away from farm Family Interaction & Experience Plant Farm Attract the citizens Farms move into the city, bringing citizen and agricultural life closer together FARM

TIME LINE FUNCTION SPACE

-General Day

Main Activity Space: Farm, Workshop, Greenhouse, Hydroponic Lab

-In The Center

General day activities are relatively negative, there is a lack of communication and interaction between parents and children The Centre provides space and opportunities for parent-child activities. Fun planting teaching activities encourage parent-child interaction and enhance mutual communication and understanding.

PLANT ANALYSIS

Temperature/℃ Average Annual Temperature/℃ Length/M Month 30 20 10 0 0.2 0.4 0.6 0.8 1.0 Sowing Time Harvest Time Root Depth Plant Height Greenhouse Outside Farm 70% Autumn 58% Summer 27% Spring 27%Winter GROWING SEASON Children Children Farm staff Go to school Go to work Look after farm Lunch Dinner Watch TV Play Phone Homework Parents Parents Visit Plant Harvest Neighbors Manage Market Cook Workshop Chef Teacher Rest Go home Have fun Prepare meals
DESIGN PROCESS Add path on the roof and some rest platform It should be integrated with each other Space is underutilised and too fragmented The scale of space is too large Stie Two Story Building Add playground in the middle Functional Area According to the sunlight to organize the functional area Glass Roof Create more openings on the roof to have more sunlight Terrace & Opening Base on the concept, adding terrace on the roof that people can walk on, and maximize the greenhouse opening to ensure adequate light Three Entrance Corner - flow direction - main entrance Other teo entrances - for neighbors -THE FINAL MODEL -THE FIRST MODEL
SECOND MODEL -THE THIRD MODEL
-THE

ARCHITECTURE DRAWINGS

The Workshop uses movable partition walls, which can be changed according to different activities to create various spatial effects.

-Section Diagram

The overall trend in plant height is consistent with that of the roof

-Layout Process

1.Entrance 2. Reception 3. Workshop 4. Market 5. Playground 6. Greenhouse 7. Cafe 8. Farmland 9. Soil 10. Terrace 11.School 12.Residential Area
-GROUNDFLOOR PLAN -WORKSHOP INTERNAL LAYOUT -GREENHOUSE -SECTION AA' 10 12 12 11 4 8 9 2 2 2 6 3 7 1 1 1 5 0 5 10 20 30M Workshop Holding Event Open Exhibition Party Path
Entrance Walkway Tree (≥6m) Tree (>3,<6m),Shrub Shrub, Herbaceous Aquatic Plant

Shared Kitchen

Parent-Child Cooking, Restaurant

Hydroponic Studio

Hydroponic Lab

Market

Sell Vegetables, Sell Agricultural Products

Workshop

Education, Exhibition, Interaction, Discussion

Greenhouse

Education, Exhibition, Collect, Popularize Knowledge

-JOURNEY MAP

Learn about greenhouse and hydroponic, do the farm

People curioue about the center

People want to relx Cooking workshop

Farming workshop

FARM
FARM WORKSHOP Family Journeys Visit Journeys
HYDROPONIC
MARKET GREENHOUSE

OTHER WORK

CUBE DESIGN 2019.09-2019.10 Individual work SHELTER DESIGN 2019.12 Group work UIA-HYP 2020 2020.08-2020.09 Group work

2021.09-2022.07

Individual work

PHYSICAL MODELS PAVILION DESIGN 2021.06 Group work

Turn static files into dynamic content formats.

Create a flipbook
Issuu converts static files into: digital portfolios, online yearbooks, online catalogs, digital photo albums and more. Sign up and create your flipbook.
Shuaiqi WANG Architecture Portfolio for UCL MArch Architectural Design by Shuaiqi WANG - Issuu