

SARAH SCHOBER
ARCHITECTURE PORTFOLIO SARAH SCHOBER
ARCHITECTURE PORTFOLIO
AIAS PRESIDENT | AIAIC CO-CHAIR
I am a graduate candidate passionate about finding simple, yet detailed solutions to complex problems. I am fascinated by people-centric design and an approach that creates a lasting impact, both socially and environmentally. My curiosity enables myself to indulge in the design process and form a concious consideration of a design’s many factors.


sarahcatherine.schober@calbaptist.edu
https://www.linkedin.com/in/sarahschober/

SOLACE CHRISTIAN STUDY CENTER
EDUCATIONAL FACILITY AND CHAPEL
UNIVERSITY OF MICHIGAN CAMPUS
FALL 2024
ON EXHIBITION VENICE BIENNALE ARCHITETTURA 2025
By referencing acaemic and natural precedents, the project produces an environment of intimate seclusion and immersion into thought which enables one to transcend their physical reality to discover peaceful understanding in the spiritual.






SURROUNDED GREENSCAPE

IMMERSION


SCALED INTRICACY

SITE PLAN
BASEMENT FLOOR
LONGITUDINAL SECTION










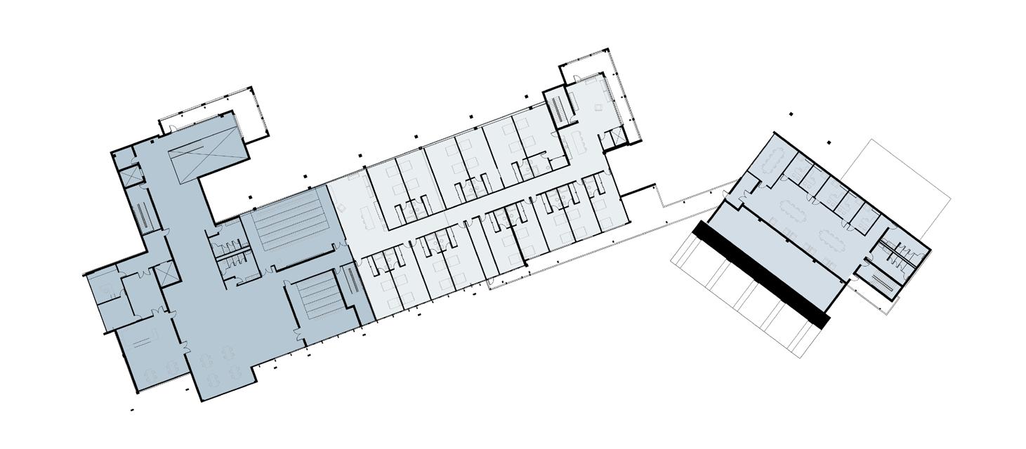
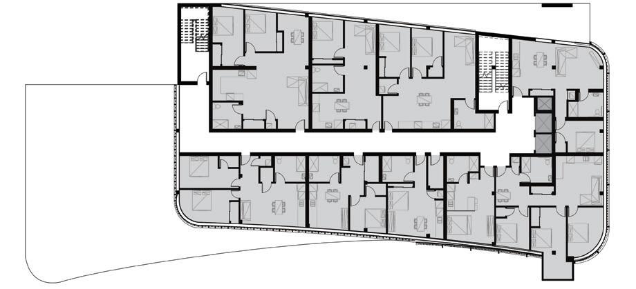
WRIGHTWOOD MEMORY CENTER
MEMORY CARE FACILITY
WRIGHTWOOD, CA
FALL 2025
By engaging the natural topography and views of the site, the project encourages free movement and engagement from its residents within a contained space to provide for the specific needs of dementia care while enabling the individual resident to retain their sense of individuality. Additionally, it seeks to produce warmth in its architecture to cater to individuals regardless of background.



EXTERIOR COURTYARD











SITE DIAGRAM
FLOOR PLAN
FLOOR PLAN
FLOOR PLAN
FLOOR PLAN











CORK EXTERIOR PANELING
CORK EXTERIOR PANELING
CORK EXTERIOR PANELING
CORK EXTERIOR PANELING
CORK
Cork is a high-performing and easily maintained material which provides excellent thermal and acoustic insulation. As it is a renewable resource, it reduces the carbon footprint of the project.
EXTERIOR PANELING
Cork is a high-performing and easily maintained material which provides excellent thermal and acoustic insulation. As it is a renewable resource, it reduces the carbon footprint of the project.
Cork is a high-performing and easily maintained material which provides excellent thermal and acoustic insulation. As it is a renewable resource, it reduces the carbon footprint of the project.
Cork is a high-performing and easily maintainedmaterial which provides excellent thermal and acoustic insulation.
Cork is a high-performing and easily maintained material which provides excellent thermal and acoustic insulation. As it is a renewable resource, it reduces the carbon footprint of the project.
EPDM ROOFING
EPDM ROOFING
EPDM ROOFING
EPDM ROOFING
EPDM ROOFING
To ensure the resilience and energy-efficiency of the project, EPDM will be used for the roof envelope in an effort to achieve an excellent balance between cost-effectiveness and environmental consideration
To ensure the resilience and energy-efficiency of the project, EPDM will be used for the roof envelope in an effort to achieve an excellent balance between cost-effectiveness and environmental consideration
To ensure the resilience and energy-efficiency of the project, EPDM will be used for the roof envelope in an effort to achieve an excellent balance between cost-effectiveness and environmental consideration
To ensure the resilience and energy-efficiency of the project, EPDM will be used for the roof envelope in an effort to achieve an excellent balance between cost-effectiveness and environmental consideration
EPDM will be used for the roof envelope in an effort to achieve an excellent balance between cost-effectiveness and environmental consideration.
STUCCO INTERIOR FINISH
STUCCO INTERIOR FINISH





STUCCO INTERIOR FINISH
STUCCO INTERIOR FINISH
STUCCO INTERIOR FINISH
Stucco’s use on the interior finish of the project provides a unique texture to the interior environment while additionally benefitting from thermal regulation, cost-effectiveness, and durability.
Stucco’s use on the interior finish of the project provides a unique texture to the interior environment while additionally benefitting from thermal regulation, cost-effectiveness, and durability.
Stucco’s use on the interior finish of the project provides a unique texture to the interior environment while additionally benefitting from thermal regulation, cost-effectiveness, and durability.
MATERIALITY
MATERIALITY
MATERIALITY
MATERIALITY
Stucco’s use on the interior finish of the project provides a unique texture to the interior environment while additionally benefitting from thermal regulation, cost-effectiveness, and durability.
Provides a unique texture to the interior environment while additionally benefitting from thermal regulation, costeffectiveness,and durability.
MATERIALITY




ENERGY AND LIGHTING ANALYSIS


NORTH VIEW VIEWS CENTRAL PATH
SOUTHWEST VIEW






APPROACH INTERIOR CIRCULATION




TERRACE A

TERRACE B






U.S. OLYMPIC ROWING FACILITY
ROWING CENTER AND HOUSING
PRINCETON UNIVERSITY CAMPUS
SPRING 2025
The project seeks to pay homage to the devotion required of an olympic rower by producing an air of reverence that derives from the interconnectedness of the natural landscape to the built environment. This manner of approach aims to elevate the experience of the disciplined athlete to allow them to channel their reverence to rowing.









BUILDING ENVELOPE ELEVATION

BUILDING ENVELOPE SECTION








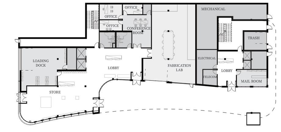
ENVISION STUDIOS
LIVE-WORK URBAN HOUSING PROJECT
118 10THAVENUE, NEW YORK CITY, NY
FALL 2023
ACSA TIMBER IN THE CITY COMPETITION CANDIDATE
The makerspace intends to amplify the community’s value for STEAM education with the intent to bring about a new era of New York. The project utilizes mass timber to allow the building to become a learning tool for its students.




EMPATHETIC TRAVEL STUDY
An exploration into the path of travel for the residents and visitors of Envision.


NEIGHBORING TYPOLOGIES

CIRCULATION GREEN SPACE SITE PLAN








FIFTH FLOOR


SECOND FLOOR

FIRST FLOOR

TECTONIC MODEL
CONCRETE FLOOR
GLULAM COLUMN
DOUBLE-SKINNED GLASS FACADE
WOODEN VERTICAL SUNSHADES
HORIZONTAL SUNSHADES
HORIZONTAL PANELLING
GLULAM BEAMS
CLT FLOOR SLAB




GLULAM COLUMN
CONCRETE FLOOR
CLT FLOOR SLAB
GLULAM BEAM
HORIZONTAL SUNSHADE
HORIZONTAL PANEL

GLASS CURTAINWALL
VERTICAL MULLIONS
CURTAINWALL FASTENING SYSTEM






