Skip to main content

TERRAVERDE - TALLER DE COCINA

Page 1


Grupo 2
Grettel Alvarez
Giannina Zuccotti
Milagros Fernández
Sara Cadena
TALLER: Espacio Cocina
Laura Navarro González

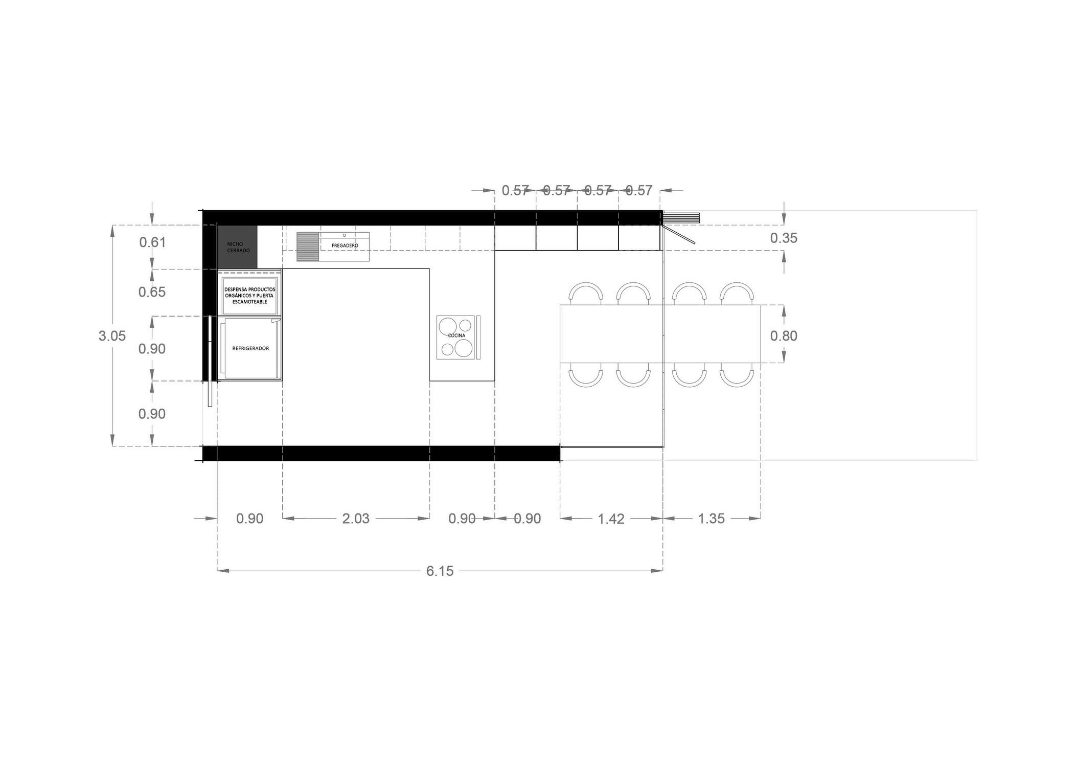
Espacio para compartir

Relación interior exterior Cocina limpia y funcional

Almacenamiento amplio

Espacios de preparación grande

Almacenaje para productos orgánicos

Preparación

Encuentro

Flujos

Relación interior exterior

Relación interior exterior

Almacenamiento amplio

Espacio para compartir

Relación área preparación/ área social

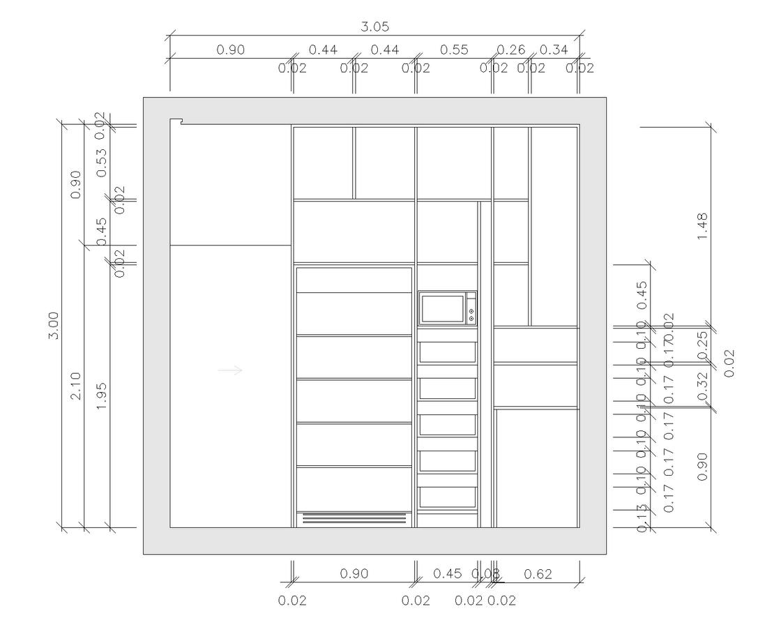
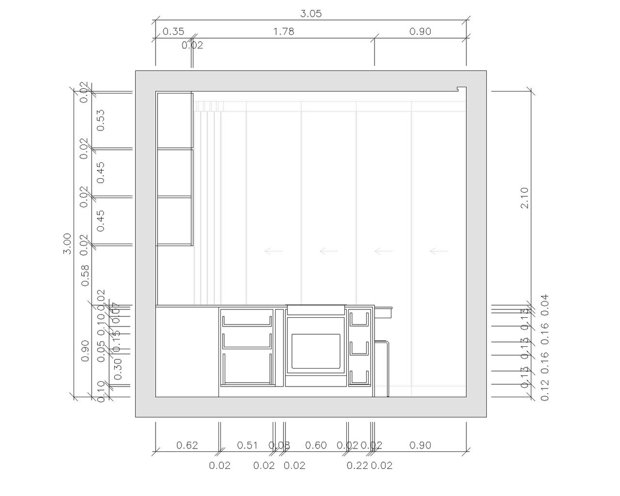
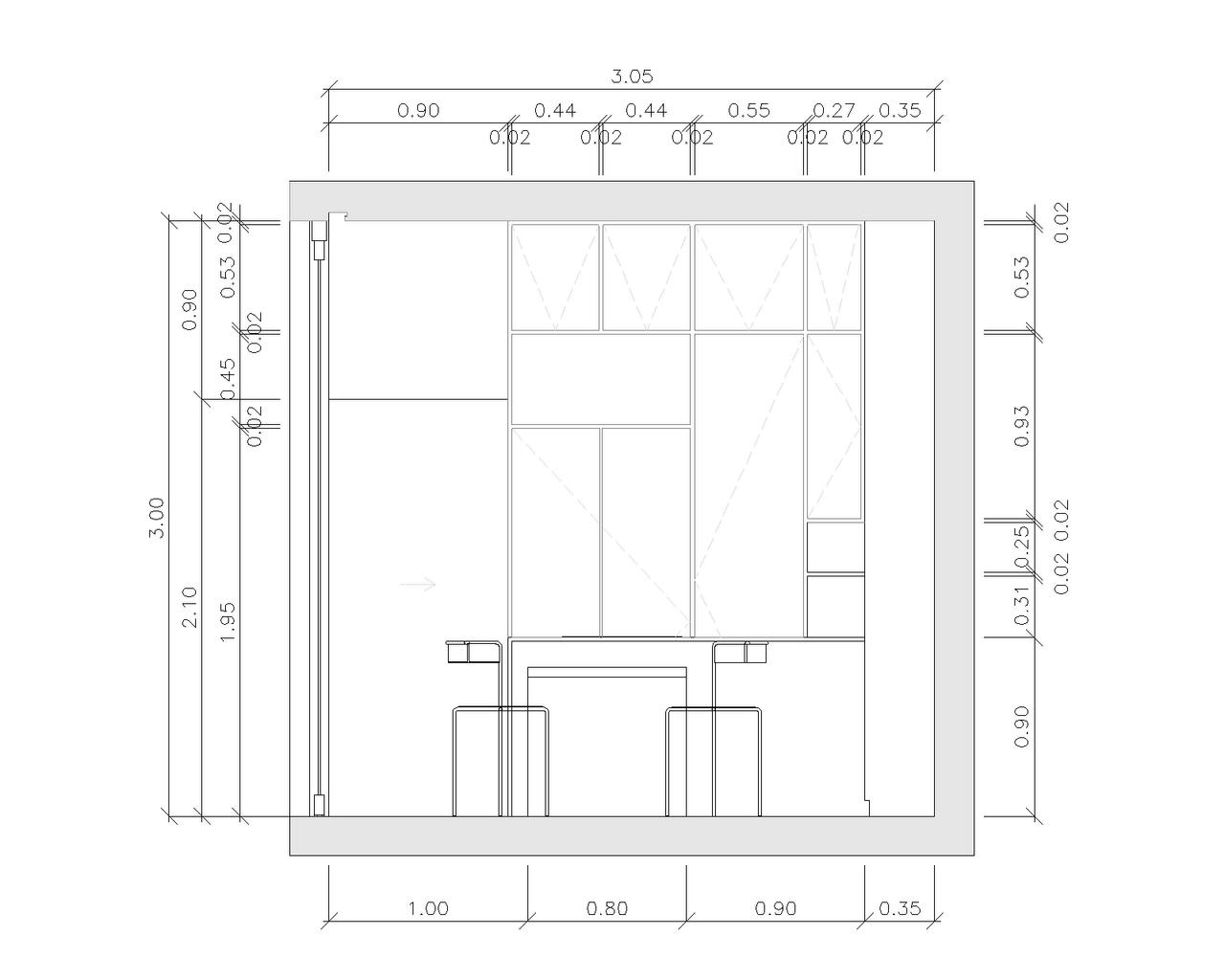
ALZADO FRONTAL
ALZADO FRONTAL
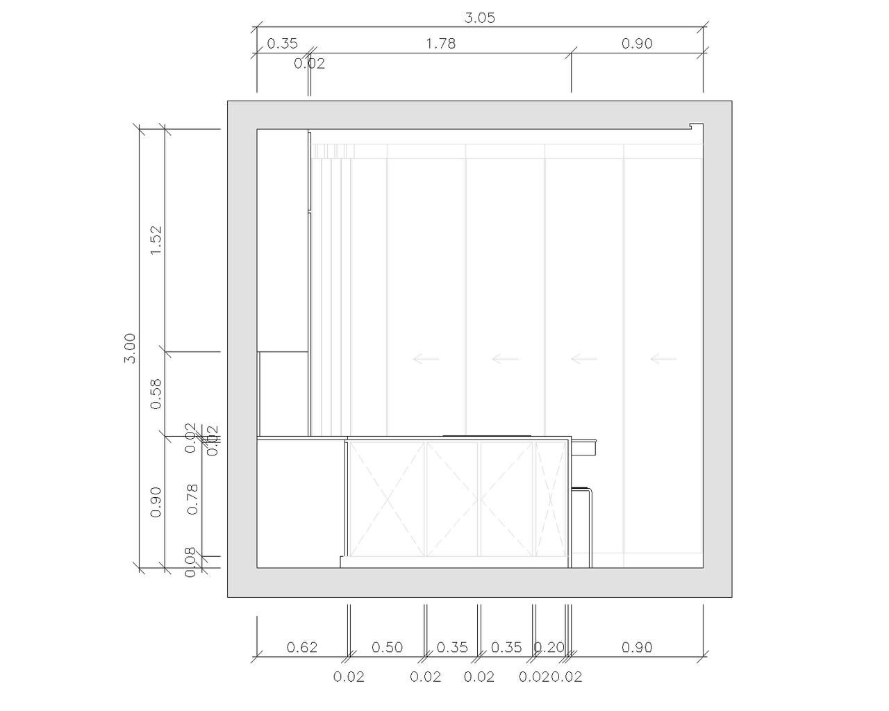
ALZADO LATERAL IZQUIERDO
ALZADO LATERAL DERECHO

ALZADO LATERAL DERECHO

MELAMINA EGGER ROBLE

KENDAL NATURAL

Mobiliario

Gamela Roble Kendal

natural H3170 ST12 AGL

EG 2800 2070 19 Gabarró

Link melamina

MÁRMOL ROJO ALICANTE

Encimera

Mármol rojo alicante

Emerex

Link mármol

GREEN MATT

Piso cerámico

Green matt 5×25

Azteca

Link piso

MELAMINA TERRACOTA NOVA

Mobiliario y mesada

Melamina Superpan "Terracota Nova".

Fabricante: FINSA Agloval

Link melamina

Almacenaje amplio y limpio

Sustracción Materialidad Almacenaje productos orgánicos

Electrodomésticos escondidos

Frigorifico K 2902 Vi - 0,90 x

Link nevera

Serie 200 Extractor de superficie 90 cm flush installation

Link extractor

Lavavajilla integrable

Bosch SPV2HKX42E

0,45 cm x 0,82 cm

Link Lavavajilla

Cocina
Placa vitroceramica AKT 8090/NE
Link cocina

COCINAS KIT ONLINE

Cubo de Basura

Integrado para Cajón de Cocina 600/900 mm

Link cubo de basura

Link

Hawa Concepta III – El herraje para puertas de armario pivotantes y escamoteables
herrajes puertasescamoteables

Turn static files into dynamic content formats.

Create a flipbook