INSTALACIONES II_PORTAFOLIO

Page 1

Facultad de Ingeniería y Arquitectura

Carrera de Arquitectura Área de Construcción y Estructuras Ciclo 2022 2

PORTAFOLIO
INSTALACIONES II
Saori Yamanija 20203938 Docente: Ángela del Pilar Cabrera Sección 625

CONTENIDOS

01

PRÁCTICA CALIFICADA 1

CG 9, CG 10, CG 11 04

02 INFORME DE LABORATORIO 1

CG-1, CG-5, CG-8, CG-9, CG-11 12

03 INFORME DE LABORATORIO 2

CG 1, CG 5, CG 8, CG 9, CG 11 20

04 RED DE ALUMBRADO

CG 1, CG 5, CG 8, CG 9, CG 11 28

05 PRÁCTICA CALIFICADA 2

CG 1, CG 5, CG 8, CG 9, CG 11 36

06 INFORME DE LABORATORIO 3

CG 1, CG 5, CG 8, CG 9, CG 11 40

07 INFORME DE LABORATORIO 4

CG-1, CG-5, CG-8, CG-9, CG-11 48

08 RED DE TOMACORRIENTES Y CONTRAINCENDIOS

CG 1, CG 5, CG 8, CG 9, CG 11 54

09

PRÁCTICA CALIFICADA 3

CG 1, CG 5, CG 8, CG 9, CG 11 112

01

EC1-1

PRÁCTICA CALIFICADA 1 DESCRIPCIÓN

Se desarrolló una prueba escrita resolviendo el cuadro cargas de un edificio multifamiliar que contaba con 32 departamentos. Se realizó en cuadro para cada tipo de departamento y para el comercio, a partir de lo cual se halló la potencia instalada y máxima demanda del edificio.

REFLEXIÓN

Considero que el tema desarrollado en esta prueba no fue muy complejo, debido a que se trataba de seguir un proceso de cálculo mecánico y que incluía operaciones sencillas. Sin embargo, fue muy importante prestar mucha atención a lo largo del proceso, pues cualquier erros se arrastraría hasta el total. A la vez, fue necesario manejar el tiempo de forma eficiente, pues es un proceso largo.

Asimismo, alcancé una óptima comprensión del tema, el cual es muy importante, pues permite conocer la dotación diaria de energía y también la demanda real, lo cual tendré que aplicar en la ejecución de futuros proyectos.

CUADRO DE CARGAS

PRÁCTICA CALIFICADA 1

CUADRO DE CARGAS

PRÁCTICA CALIFICADA 1

CUADRO DE CARGAS

PRÁCTICA CALIFICADA 1
02

EC1-2

INFORME DE LABORATORIO 1 RED DE ALUMBRADO

DESCRIPCIÓN

Se desarrolló un primer laboratorio en el que se pasaron los cables y realizaron las conexiones hacia los centro de luz e interruptores, en base a una serie de tuberías previstas.

REFLEXIÓN

La realización de este laboratorio fue muy importante, debido a que pudimos trasladar los conocimientos recogidos en clases teóricas, a la práctica Esto me permitió lograr una verdadera comprensión del proceso de instalación y la manera en que los componentes se relacionan.

Asimismo, esta experiencia me permitió familiarizarme con cada tipo de accesorio y su función específica dentro de la red A la vez, reconocí las distintas consideraciones que debe tomarse en cuenta para realizar una red de manera óptima y que funcione adecuadamente

En un inicio el proceso fue difícil, pues fue nuestra primera aproximación a una instalación de este tipo Sin embargo, mediante la práctica fui dominando los métodos y llegamos a un resultado satisfactorio.

INFORME DE LABORATORIO 1 RED DE ALUMBRADO

DESCRIPCIÓN

Introducción y Objetivo Identificación de Accesorios Tipos de interruptores Tipos de Cables Tipos de Llaves Proceso de Instalación Recomendaciones Resultados

INTRODUCCIÓN

Se llevó a cabo un laboratorio en clase donde pudimos ver en persona los diferentes componentes de la red de alumbrado. Además, pudimos experimentar y familiarizarnos con ellos y con su forma de instalación mediante un ejercicio en clase donde armamos una red en base, pasando los cables correspondientes, sobre tuberías ya instaladas. De esta manera, pudimos identificar los errores comunes que se pueden cometer al instalar una red para poder aprender de ellos y corregirlos

OBJETIVO

Este informe tiene como objetivo plasmar los conocimientos aprendidos durante el laboratorio en clase. Se presentará el resumen del aprendizaje sobre la red de alumbrado, inicialmente identificando los accesorios que utilizamos y la función que cumple cada uno, así como recomendaciones y normativa a seguir para realizar de manera correcta la red Para una correcta realización de la red debíamos de poner en práctica lo aprendido en clase que fue un primer acercamiento a lo que se realizaría en el laboratorio

R E D D E A L U M
D O
B R A

CAJA OCTOGONAL

IDENTIFICACIÓN DE ACCESORIOS

CAJA RECTANGULAR

SOCKET

Su principal función es alojar empalmes de cables y otros tipos de conexión Por esta pasan los cables neutro y fase, y queda embutida en el techo.

WINCHA PASACABLES

Alojan conductores y conexiones, además de permitir instalar los interruptores, tomacorrientes y pulsadores.

INTERRUPTOR

Su función, aparte de sostener el foco, es ser la base, es el mecanismo que regula y lleva la energía eléctrica al foco.

CINTA AISLANTE

Guía de plástico para facilitar la entrada en tuberías debido a su rigidez y flexibilidad Cuenta con una punta redondeada que evita que se atore en las curvas

TUBOS

Dispositivo cuyo objetivo es interrumpir la conexión eléctrica ya sea tan simple como un apagado o encendido de luz Hay distintos tipos

Cinta adhesiva plastificada de PVC con acabado mate, es flexible y aislante, por lo que le permite resistir altos voltajes

LLAVE ELÉCTRICA CABLES

Los tubos son dispositivos que protegen y conducen los cables eléctricos de una instalación desde su punto inicial hasta los dispositivos de consumo

Corta la corriente eléctrica de un circuito cuando el fluido eléctrico sobrepasa el valor nominal establecido en el mismo dispositivo

Transporta energía eléctrica de un punto a otro Tienen torones, filamentos independientes que permiten el ingresar el aire, sobrecalentandose menos

INFORME DE LABORATORIO 1 RED DE ALUMBRADO

TIPOS DE INTERRUPTORES

SIMPLE

Este solo tiene dos pernos, en cada uno se conectarlo, y llega al interruptor El cable neu centro de luz El interruptor mueve una plaq presiona de nuevo, se levanta la plaquita, se r

DOBLE

Del tablero el cable fase va al centro de luz 1 y pasa por este, sin conectar, hasta el interruptor. Por otro lado, El cable neutro va del tablero al centro de luz 1 y conecta, y luego a l centro de luz 2 y conecta Del interruptor salen los cables de retorno del foco 1 y 2 El del foco 1 va al centro de luz 1 y conecta, en cambio el del foco de luz 2, pasa por el centro de luz 1 y conecta en el 2

TRIPLE

Funciona igual que el doble, pero con un foco

CONMUTACIÓN

Permite prendey y apagar la luz desde distintos puntos La red continúa desde el centro de luz primero se va al interruptor más cercano y luego al segundo El dado tiene tres pernos y en cada pero enran tres cables

TIPOS DE CABLES

TIERRA

TIPOS DE LLAVES

Protege tanto el manipulador del aparato como al aparato en sí Evita que la corriente eléctrica produzca daños Conduce posibles sobre tensiones a tierra

2. TÉRMICA

Este dispositivo protege la instalación del recalentamiento de os cables (para evitar que se quemen) ante una sobrecarga

1. DIFERENCIAL

Dispositivo que interrumpe inmediatamente la corriente cuando detecta una falla o fuga en el circuito eléctrico

2
1

INFORME DE LABORATORIO 1 RED DE ALUMBRADO

PROCESO DE INSTALACIÓN

1. UBICAR ACCESORIOS

Una vez ubicado el tablero general en una zona al alcance permanente de los usuario, se debe decidir la ubicación de los centros de luz, considerando la distancia mínima de 20cm entre focos en un ambiente y la máxima de 3m, para una iluminación

2 DAR ENERGÍA

El primer paso para armar la red eléctrica, una vez que ya se tienen colocadas las tuberías, cajas octogonales y cajas rectangulares, es realizar el cableado Este consiste en introducir los cables fase y neutro, de ser necesario, con ayuda de la wincha pasacables El cable fase debe llegar desde el tablero general a todos interruptores, por medio de los centros de luz, puede pasar por octogonales pero sin conectarse Por otro lado, el neutro va del tablero general conectando los los centros de luz, más no los interruptores.

3. RETORNOS Y PUENTES

Los cables de retorno van de los interruptores a los centros de luz Algunos retornos pasan por el octogonal para llegar de interruptor doble o triple al otro centro de luz

En los casos de conmutación simple es necesario colocar puentes: que serían dos cables de un interruptor de conmutación al otro. Los retornos en este caso van del interruptor al que no llegó el fase al centro de luz En el caso de una conmutación doble, sucede lo mismo pero los puentes serías dos cables por cada foco

CONSIDERACIONES

En los puentes de un circuito de conmutación nunca van los cable fase y de retorno en un mismo tubo

En el conmutac cable fas al interr cercano.

Po pu m

EVITAR

Los cables no pueden pasar por el piso de la ducha, por las escaleras en un segundo piso y en las terrazas siempre deben ir por el suelo

1 Tubos 2 Caja octogonal 3 Interruptor 4 Caja rectangular 3 1 2 4 5 6 7 8 9 5 Foco 6 Tablero general 7 Llave térmica 8 Llave térmica 9 Diferencial
REPRESENTACIÓN
CIRCUITO ELÉCTRICO
03

EC1-3

INFORME DE LABORATORIO 2 INSTALACIONES EN UN ALIGERADO

DESCRIPCIÓN

Se desarrolló un laboratorio en el que se representó la manera en que una red de alumbrado se vería embutida en una losa aligerada Para ello, se llevó a cabo una explicación teórica y luego se procedió a disponer la red.

REFLEXIÓN

Considero que la realización de este laboratorio fue muy enriquecedora, debido a que me permitió comprender la forma real en la que una red eléctrica se hallaría en la realidad Previo a ello, solamente habíamos realizado una forma simplificada, por lo que realizarlo me permitió trasladar un diseño intangible que realizamos en CAD a una forma real

El proceso de instalación no fue complejo, sin embargo, debido a que involucraba temas constructivos aprendidos en ciclos pasados, se me dificultó la comprensión de los componentes en un primer momento, pero luego observándolo en la explicación logré recordarlo.

Finalmente, lo más importante fue identificar las consideraciones implicadas en este proceso, pues de no tomarlas en cuenta, se podrían dar errores que debilitarían la estructura

INSTALACIÓN

DESCRIPCIÓN

Introducción y Objetivo Identificación de Accesorios Herramientas Proceso de Elaboración Consideraciones Conclusiones

INTRODUCCIÓN

El laboratorio 2 se dividió en dos etapas. La primera, consistió en la explicación teórica, a través del técnico, sobre la colocación correcta de la luminaria dentro de un espacio. En esta se resolvieron dudas y se explicó todo el procedimiento para la segunda etapa. Finalmente, la segunda etapa, consistió en la parte práctica donde se elaboró la construcción de una losa aligerada y se ubicaron los accesorios y las tubería necesarias para que, por estas, puedan pasar los cables.

OBJETIVO

Este informe, de la misma manera que el primero, tiene como uno de sus objetivos plasmar los conocimientos aprendidos en clase durante el laboratorio. Además, como principal objetivo, se buscó aprender el proceso correcto de instalaciones eléctricas dentro de un techo aligerado de ladrillo y tecnopor.

En las siguientes láminas, se presentará el resumen de el aprendizaje sobre las las instalaciones eléctricas en un aligerado, inicialmente identificando los accesorios, sus herramientas, el procedimientos y las consideraciones que se deben tomar para este proceso.

INFORME DE LABORATORIO 2
I N S T A L A C I O N E S E L É C T R I C A S E N A L I G E R A D O

TUBERIAS PVC

IDENTIFICACIÓN DE ACCESORIOS

CAJA OCTOGONAL

CABLES

Los tubos son dispositivos que protegen y conducen los cables eléctricos de una instalación desde su punto inicial hasta los dispositivos de consumo

LADRILLOS

Alojan conductores y conexiones, además de permitir instalar los interruptores, tomacorrientes y pulsadores

Transporta energía eléctrica de un punto a otro Tienen torones, filamentos independientes que permiten el ingresar el aire, sobrecalentandose menos

UNIONES DE PVC BLOQUES TECNOPOR

Elementos usados para la construcción Estos poseen un adecuado comportamiento de absorción y disipación frente a la exposición al sol y de aislamiento de humedad

La uniones de PVC se utilizan tanto para el aislamiento como para el recubrimiento de los cables dentro de la instalación. Estos permiten unir dos tuberías de manera segura

CINTA AISLANTE

ALAMBRE

Los ladrillos de tecnopor reemplazan a 4 ladrillos de arcilla, disminuyen los ruidos molestos entre pisos y producen mayor confort térmico Estos son una buena opción para una losa aligerada

CURVA PVC 90°

Cinta adhesiva plastificada de PVC Es flexible y aislante, por lo que le permite resistir altos voltajes y proteger los empalmes de hilos y cables eléctricos

Dota a la estructura firmeza, ya que su flexibilidad puede servir para hacer nudos que refuercen sin que el material se rompa

La unión en curva a 90° de PVC permite realizar cambios de dirección de las tuberías en ángulos de 90 grados

INSTALACIÓN

IDENTIFICACIÓN DE HERRAMIENTAS

HUINCHA CORTA TUBOS GUANTES

Cinta métrica enrollada dentro de una caja de plástico Esta sirve para realizar medidas dentro de la construcción con exactitud.

Herramienta utilizada para cortar tubos redondos en ángulo recto Produce un corte limpio y es rápida, siendo la forma más conveniente de cortar tubería

NIVEL ALICATE DE PUNTA

El nivel es una herramienta básica que se utiliza para determinar la horizontalidad o verticalidad de un elemento.

Esta herramienta sirve para sujetar piezas pequeñas o para llegar a rincones de difícil acceso dentro del proceso de una obre

CASCO BOTAS

Son una parte del vestuario laboral indispensable para el trabajo, ya que protegen frente a diversos tipos de riesgos

ALICATE UNIVERSAL

Actúa como un elemento de protección importante para lesiones y accidentes en el cráneo y la cabeza Por ello, es importante que el trabajador los use durante toda la obra.

Sirven para que los pies estén protegidos frente a impactos De esa manera si algo cae sobre ellos evitará que los dedos del pie queden aplastados o cercenados

El alicate universal permite realizar múltiples actividades dentro de la construcción Por ejemplo: cortar, doblar, apretar o aflojar uniones, etc

LENTES

Tienen como objetivo proteger los ojos al frente y los lados de una gran variedad de peligros o riesgos, como objetos o partículas sólidas voladores, e incluso de salpicaduras químicas

INFORME
LABORATORIO 2
DE

1. TRAZADO DE MEDIDAS

Entre ladrillos (espacios para colocar las viguetas): 10 cm

Separación entre cajas ortogonales (casetones): 30 cm

Primero, a través de una huincha, se trazan las medidas correspondientes para saber donde colocar tanto los ladrillos como también las cajas ortogonales de la losa aligerada. Estas medidas son las siguientes: Es importante tener en cuenta que estas distancias se repiten a lo largo de todo el aligerado

2. COLOCACIÓN DE LADRILLOS

Segundo, se colocan los ladrillos teniendo en cuenta el trazo realizado anteriormente En nuestro caso incluimos ladrillos de arcilla y bloques de tecnopor. Una vez ya definida la ubicación de los ladrillos, se colocan las cajas ortogonales (casetones) dejando la se correspondiente

3. COLOCACIÓN DE TUBERÍAS

Finalmente, se colocan los tubos en el dependiendo del largo que se necesite las uniones de PVC o la herramienta co manera, la red de tuberías toma la form llegar a cada caja ortogonal Como introducen las tuberías en los aguje ortogonal. De esta manera, la red de tub que se introduzcan los cables correspon

Correcto Los centros de luz no se deben colocar dentro de as
Encambio,estosdebenestardentrodelosladrillos Incorrecto
CONSIDERACIONES
viguetas
PROCESO DE INSTALACIÓN
1 Bloque de tecnopor 2 Ladrillo 3 Caja octogonal 4 Tuvería de PVC 5 Curva PVC 90° 6 Caja Rectangular LOSA ALIGERADA 1 2 3 RESULTADOS
1 Bloque de tecnopor 2 Ladrillo 3 Caja octogonal 4 Tuvería de PVC 5 Curva PVC 90° 6 Caja Rectangular RESULTADOS 4 5 6 INSTALACIÓN ELÉCTRICA
04

EC1-4

RED DE ALUMBRADO

DESCRIPCIÓN

Se desarrolló una red de alumbrado sobre un edificio multifamiliar que cuenta con tres niveles, un semisótano y una azotea. Este cuenta a la vez con 6 departamentos.

REFLEXIÓN

Considero que realizar esta red fue muy importante, en vista de que, a diferencia de una vivienda unifamiliar, en esta tipología de edificio se dan una serie de consideraciones distintas y más complejas.

Es así, que aprendí a trabajar en un proyecto con múltiples niveles y sótano, así como la función de accesorios como sensores de movimiento, cajas de pase y medidores.

Este trabajo me permitió repasar para la práctica calificada, poniendo en práctica las habilidades necesarias para desarrollar una red de alumbrado completa. A la vez que provocó dudas que pude resolver en clase.

ALUMBRADO

DE
RED

ALUMBRADO

DE
RED
05

EC1-5

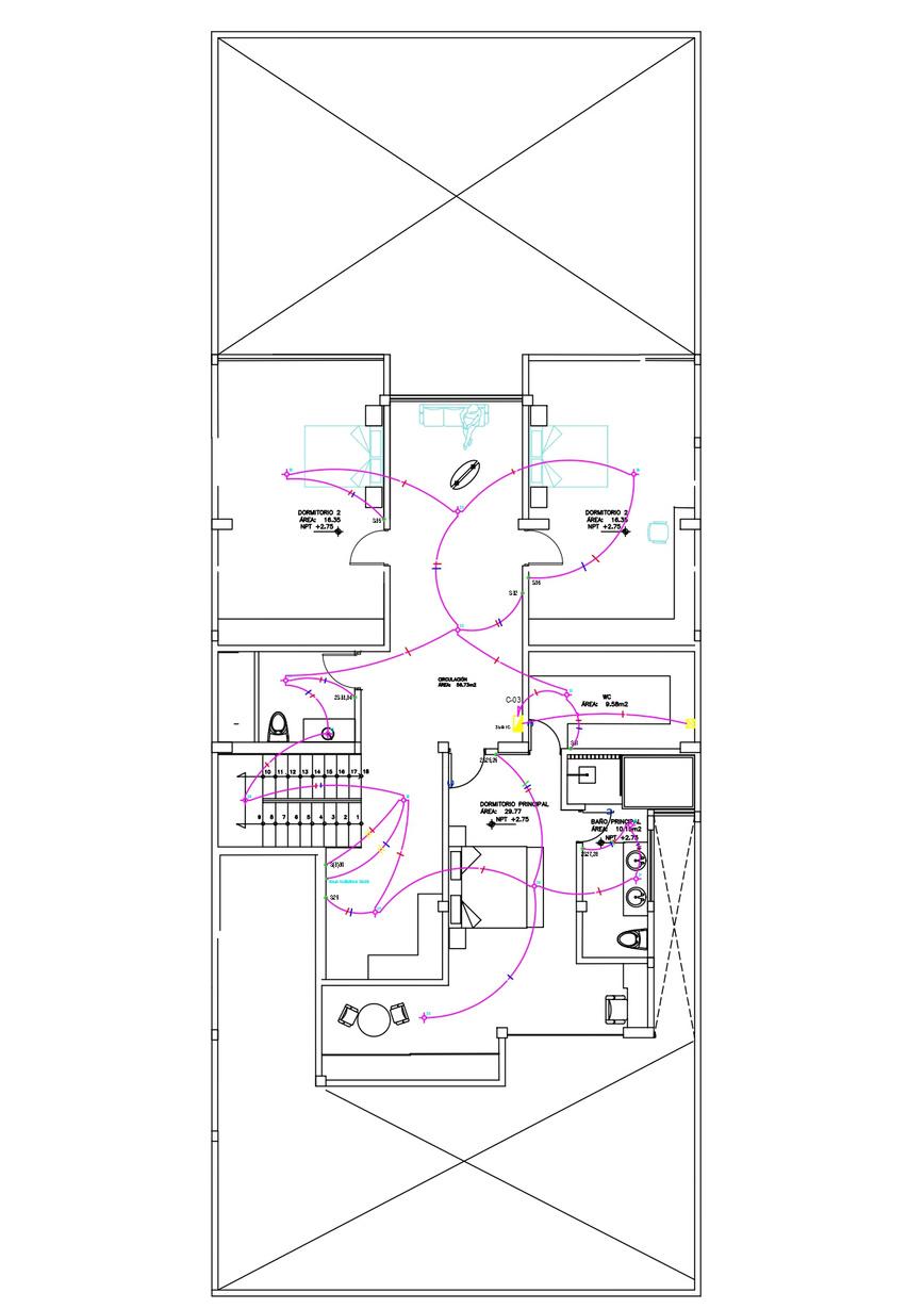
PRÁCTICA CALIFICADA 2 DESCRIPCIÓN

Se desarrolló una prueba en CAD, en la que el objetivo consistía en dibujar una red de alumbrado para una vivienda unifamiliar, para lo cual se debió colocar correctamente los centro de luz, las tuberías y cables

REFLEXIÓN

Considero que el tema desarrollado en esta prueba fue bastante complejo, pues era necesario recordar cuáles son los cables que pasan y de qué manera, para cada tipo de interruptor. Asimismo, las dimensiones de la vivienda, así como el límite de tiempo agregaron un mayor grado de dificultad

Sin embargo, fui capaz de resolverlo de manera eficiente, en vista de que pude practicar bastante en las clases y por mi cuenta. Frente a ello, me encuentro satisfecha pues logré una alta comprensión del tema, desarrollando aptitudes en el diseño de redes de alumbrado que podré aplicar a lo largo de mi vida profesional.

RED DE ALUMBRADO

PRÁCTICA CALIFICADA 1
PLANTA 1
PLANTA 2
06

EC2-1

INFORME DE LABORATORIO 3 UBICACIÓN VERTICAL DE TOMACORRIENTES

DESCRIPCIÓN

Se desarrolló un laboratorio en el que se representó la ubicación vertical de distintos tipos de tomacorrientes, cada uno con una función específica, así como, el tablero general, y salidas especiales y de fuerza

REFLEXIÓN

Considero que la realización de este laboratorio fue muy enriquecedora pues me permitió reconocer la ubicación vertical de estos accesorios, mientras normalmente solemos imaginarlos en planta Esto me permitió relacionar la altura de cada accesorio a su función específica.

Asimismo, fue una aproximación a la manera en que estos accesorios se instalarían en un proceso constructivo, utilizando la manguera para hallar un nivel de referencia y luego ubicando cada accesorio.

UBICACIÓN VERTICAL

DESCRIPCIÓN

Introducción y Objetivo Materiales y Accesorios Simbología Proceso de Trazado en Pared Recomendaciones Conclusiones

INTRODUCCIÓN

Se llevó a cabo un laboratorio en clase donde pudimos ver la primera parte de la instalación de los tomacorrientes y las distintas alturas correspondientes para cada área de una vivienda unifamiliar o multifamiliar El saber los distintos tipos de diagramación nos ayudara a plasmarlos en las paredes para luego realizar la instalación correcta de los tomacorrientes

OBJETIVO

Este informe tiene como objetivo plasmar los conocimientos aprendidos durante el laboratorio en clase. Se presentará el resumen del aprendizaje sobre los distintos tipos de alturas y diagramación en planta de los tomacorrientes, así como de la forma correcta de pasar nivel para la instalación en pared

INFORME DE LABORATORIO 3
U B I C A C I Ó N V E R T I C A L D E T O M A C O R R I E N T E S

CAJA OCTOGONAL

IDENTIFICACIÓN DE ACCESORIOS

CAJA RECTANGULAR

PLANCHA DE MADERA

Su principal función es alojar empalmes de cables y otros tipos de conexión. Por esta pasan los cables neutro y fase, y queda embutida en el techo

TIRA LINEA

Alojan conductores y conexiones, además de permitir instalar los interruptores, tomacorrientes y pulsadores

MANGUERA

la función de la plancha es simular una pared para hacer las marcas respectivas de los trazados.

TIZA

El tira línea es un aparato para realizar el trazado del nivel en la pared con la línea cubierta de ocre.

La manguera transparente sirve para correr nivel desde un punto a otro y nivelarlo a la altura del suelo.

WINCHA

La tiza la vamos a utilizar para realizar los dibujos de los símbolos y terminología de tomacorrientes en la plancha de madera

BALDE CON AGUA

Sirve para medir las alturas que vamos a realizar a partir del nivel 0

El balde de agua servirá para llenar la manguera de agua y correr nivel

SIMBOLOGÍA

Existen 3 tipos de achurados a la hora de representar los tomacorrientes en planta; sin achurado: es el común este es el interruptor que se ubica a 0 45m de altura , para los otros dos el achurado puede variar, o de adentro o de afuera, generalmente el interruptor que decide es el de la altura del televisor, que se encuentra a 1 80m y el otro a 1 20m

TELEVISIÓN INTERNET

TEEl cable de internet y el de televisión se representan con una U con TV o TE en la parte interior, el cable que se utiliza para es el cable coaxial, estos cables vienen del techo distribuidos por las distintas compañías cuando es una vivienda unifamiliar y viene por el suelo cuando es una vivienda multifamiliar.

TABLERO GENERAL

TERMA

El tablero general se representa con un cuadrado atravesado con un una línea diagonal, y acurado de un costado, y la terma está compuesta de un círculo con un triángulo achurado unido a un rectángulo con cable

TOMACORRIENTES BAJO TOMACORRIENTES ALTO TOMA CORRIENTES MEDIO

1. UBICAR EL NIVEL +1

Para realizar el trazado en la pared de OBS, lo primero que se tiene que hacer es realizar el traslado de nivel con ayuda de la manquera transparente previamente llenada de agua, para realizar el marcado del nivel desde donde vamos a considerar el "nivel +1 " , una vez corrido el nivel con respecto a la altura homogénea del agua a los dos extremos se procede a marcar con la tiza y utilizar el tira línea para marcar la línea base.

2. UBICANDO LAS ALTURAS

Como segundo paso se realiza el trazado de las alturas que ocupan los distintos tipos de tomacorrientes, ubicando así la altura de 3 toma corrientes bajos a 0.55m debajo del nivel +1, de ahí se ubicaron 1 toma corrientes medio a +0 20m sobre el trazado +1 y dos cajas para interruptores, a la altura de 0 45 sobre el nivel +1 se ubicaran el tablero general y la terma, a la altura +0.80 se ubicaría el tomacorrientes alto y por ultimo a la altura de +1.20 se ubicaría una caja hexagonal para luz alta de pared

3 COMPLETANDO EL PROCESO

Una vez identificadas las alturas se procede a colocar el área que ocupa cada uno de los artefactos, ya que estos van a ser ubicados al medio de cada punto marcado, debido a que las alturas previamente marcadas dictaminan el medio de cada uno de los aparatos eléctricos en un circuito de tomacorrientes 1 ALTURA DE TABLERO

PROCESO DE TRAZADO EN PARED CONSIDERACIONES

2 ALTURA DE TERMA

3 SIMBOLOGÍA

4 TOMACORRIENTES

5

TOMA COAXIAL

La correcta altura para colocar el tablero es 1 45 m

La correcta altura para colocar la terma es 1 45 m

Es importante utilizar la simbologia para que el maestro de obra sepa a que nos referimos

Distinguir entre los distintos tipos de tomacorrientes: medios, altos, y bajos, así como a prueba de agua

La toma coaxial es distinta a la de un tomacorrientes normal, ya que esta viene directo de la distribuidora

TOMACORRINTES EN PARED

RESULTADOS

2
3
4
5
6
bajo 7 Television
1 Tomacorriente alto
Tablero general
Terma
Tomacorriente medio
Interruptores
Tomacorriente
1 3 2 4 5 6 7 RESULTADOS REPRESENTACIÓN 1 Tomacorriente alto 2 Tablero general 3 Terma 4 Tomacorriente medio 5 Interruptores 6 Tomacorriente bajo 7 Television
07

EC2-2

INFORME DE LABORATORIO 4 RED DE TOMACORRIENTES

DESCRIPCIÓN

Se desarrolló un laboratorio sobre la red de tomacorrientes, para lo cual se realizaron las distintas conexiones con los tipos de cables correspondientes.

REFLEXIÓN

Considero que la realización de la red de tomacorrientes fue muy enriquecedora, pues me permitió trasladar los conceptos teóricos adquiridos en clase a la práctica Esto me proporcionó una idea más clara de la manera en que se conectan los distintos componentes y del funcionamiento de cada uno dentro del conjunto

Por otro lado, este me permitió familiarizarme con los distintos accesorios y cable involucrados en la instalación y conocer sus peculiaridad y la forma adecuada de manejarlos.

Finalmente, considero que el proceso no fue muy dificultoso, en vista de que en el primer laboratorio aprendimos a trabajar con los cables, pasarlos a través de las tuberías y a manejar las herramientas. Esto me permitió trabajar con mayor seguridad y eficiencia.

INFORME DE LABORATORIO 4 RED DE TOMACORRIENTE

DESCRIPCIÓN

Introducción y Objetivo Identificación de Accesorios Proceso de Elaboración Consideraciones Conclusiones

INTRODUCCIÓN

El laboratorio 4 consistió en realizar la red de tomacorrientes para ello fue necesario entender el cableado y los elementos necesarios para realizar este procedimiento. Por ello, antes de realizar el laboratorio la docente nos explicó y realizó una clase teórica para lograr entender el proceso de instalación.

OBJETIVO

Este informe, tiene como uno de sus objetivos plasmar los conocimientos aprendidos en clase durante el laboratorio Además, como principal objetivo, se buscó comprender los conceptos básicos de instalaciones eléctricas para el desarrollo de un proyecto arquitectónico

En las siguientes láminas, se presentará el resumen de el aprendizaje sobre las las instalaciones eléctricas de una red de tomacorrientes, inicialmente identificando los accesorios, sus herramientas, el procedimientos y las consideraciones que se deben tomar para este proceso.

R E D D E T O M A C O R R I E N T E S

TOMACORRIENTES DOBLE

Accesorio diseñado para la conexión de dos aparatos eléctricos

ACCESORIOS

TOMACORRIENTE SIMPLE

Accesorio utilizado para realizar una conexión de tipo universal En este tipo de tomacorriente no existe una conexión con puesta a tierra

TOMACORRIENTE DE SCHUKO

Accesorio diseñado para que se acoplen perfecto los cables de los artefactos eléctricos Solo puede soportar corrientes que no sobrepasen los 16 A

TOMACORRIENTE EN LÍNEA

Este tipo de tomacorriente es menos común en el mercado Sin embargo, funciona y posee las misma características que un tomacorriente simple.

CAJA DE PASE

Permite alojar los empalmes de los cales de tomacorrientes En esta caja pasan los cables neutro, fase y tierra

TOMACORRIENTE APRUEBA DE AGUA

Este tipo de tomacorriente es utilizado en los tomacorrientes cercanos a lavatorios, y baños Este detectan las diferencias entre la corriente en la línea, el neutro y las fallas a tierra

TABLERO GENERAL

Equipo a donde llega todo el conjunto de conductos eléctricos y tuberías Desde allí se distribuye a los diferentes circuitos

CURVA SAP DE 3/4''

Curva de PVC utilizado para poder pasar los cables de tomacorrientes y es s resistente a químicos Esta diseñado para modificar el enrutamiento de las tuberías en un ángulo de 45°

PELACABLES

Instrumento que permite cortar el recubrimiento aislante que protege el cobre para poder pelar el cable sin dañarlo

TUBOS DE PVC DE 3/4''

Tubo de PVC, diseñado para proteger los cables de tomacorrientes

WINCHA PASACABLES

Guía de plástico que facilita el paso de cables por las tuberías de PVC, ya que posee una curva redondeada

DESTORNILLADOR

Permite ajustar los cables a los tomacorrientes

IDENTIFICACIÓN DE

CABLE NEUTRO

Su función es la de permitir “regresar” a la corriente. Para poder transmitirse, la electricidad necesita de dos conductores

TIPOS DE CABLES

CABLE FASE

Cable por el que entra la corriente eléctrica y emite una tensión de 220 o 230 voltios

CABLE A TIERRA

Busca enlazan el enchufe de cada aparato eléctrico con la tierra, para que en caso de que surja algún tipo de corriente de fuga, o descarga de origen atmosférico

3 EMPALME DE TOMACORRIENTE

Para realizar el empalme es necesario utilizar el pelacables, ya que este nos permitirá empalmar el cable que pasa por todo el circuito con cables que se ajusten a los tomacorrientes.

PROCESO DE INSTALACIÓN

TUBOS cables de todos los lizar este o el uso de cables de todos los r este Para s necesario para poder

CONSIDERACIONES

1 UN SOLO CIRCUITO

3 CRUCE POR DUCHAS

La cocina, el extractor, bomba de agua, terma, circuito de intercomunicadores, red de televisión, red de internet poseen un circuito independiente

RESULTADOS Y PRUEBA

8 Diferencial 6 7 8 4 1 1 3 2 4 5 1 3 2 5 1 3
Los cables de tomacorrientes no deben pasar por el suelo de las duchas 1
En los baños y en enchufes cercanos a lavaderos colocar tomacorrientes a prueba de agua
2 COLOCAR TPA
08

EC1-3

RED DE TOMACORRIENTES Y CONTRAINCENDIOS

DESCRIPCIÓN

Se desarrolló una red de tomacorrientes que incluyó las de internet, intercomunicador y televisión, sobre un edificio multifamiliar que cuenta con tres niveles, un semisótano y una azotea. Asimismo, se realizó la red contraincendios que incluye detectores de humo y luces de emergencia

REFLEXIÓN

Considero que este trabajo fue muy importante, pues pude reconocer las consideraciones específicas que se dan en una red de tomacorrientes para un edificio multifamiliar, en el que las redes de internet, intercomunicador y televisión son bastante diferentes a las de un unifamiliar. Asimismo, pude practicar para la práctica calificada y resolver dudas respecto a las redes, que me proporcionarían mayor seguridad.

Por otro lado, aprendí a realizar una red contraincendios, identificando los ambientes en los que se requiere un detector de humo, así como los puntos estratégicos en los que se debe colocar una luz de emergencia.

Finalmente, logré una alta comprensión de los temas, lo cual será fundamental para poder aplicarlo de manera adecuada en mi futuro profesional.

UNIVERSIDAD DE LIMA FACULTAD DE INGENIERÍA Y ARQUITECTURA

MEMORIA DESCRIPTIVA

INTEGRANTES

ARIAS ANDRADE, KEILA BELEN 20203963

FERNANDEZ MELGAR, RAFAELA 20200782

PANDURO CASTELLANO, DANIELA ELIZABETH 20193208

ROVEGNO VARESE, ARIANNA MARINA 20203929

SOTA RODRIGUEZ, LAURA MARIELA 20202018 VILLA GARCIA, RODRIGO 20202258

YAMANIJA UYEMA, ASTRID SAORI 20203938

PROFESORA

CABRERA LAU, ANGELA DEL PILAR

LIMA PERÚ 2022 2

TABLA DE CONTENIDOS ESPECIFICACIONES TECNICAS 4 1 JUSTIFICACIÓN DEL CUMPLIMIENTO DE LA NORMATIVA TÉCNICA 4 2 TITULO I: GENERALIDADES 4.3 TITULO II: HABILITACIONES URBANAS 4.4 TIPOS DE HABILITACIONES 4.5 INSTALACIONES ELÉCTRICAS Y MECÁNICAS 4 6 OBRAS DE SUMINISTRO DE ENERGÍA Y COMUNICACIONES 4 7 TITULO III: EDIFICACIONES 4.8 ARQUITECTURA 4.9 ESPECIFICACIONES TÉCNICAS GENERALES 4.10 ESPECIFICACIONES TÉCNICAS DEL INTERRUPTOR DIFERENCIAL 4 11 GLOSARIO DE MATERIALES DE LAS REDES 4 TIPO DE PROYECTO 1.1 UBICACIÓN Y EMPLAZAMIENTO 1.2 ACCESIBILIDAD 1.3 ZONIFICACIÓN 1 4 CUADRO DE ÁREAS 1 DESCRIPCIÓN DEL PROYECTO 2.1 AMBIENTES POR NIVEL 2 3 LEYENDA 3 1 RED DE ALUMBRADO 3.2 RED DE TOMACORRIENTES & CONTRAINCENDIOS 5 CUADRO DE CARGAS DEL EDIFICIO 5.1 ESPECIFICACIONE GENERALES 5 2 CARGA POR TIPO DE DEPARTAMENTO 5 3 CARGA TOTAL DEL EDIFICIO 6 METRADO 6.1 METRADO DE CIRCUITO DE COCINA

OBJETIVOS DEL TRABAJO

El presente trabajo se realizó de manera colectiva. Se nos encargó el diseño de una vivienda multifamiliar en donde se debía colocar las redes de alumbrado y tomacorrientes. Para ello, fue necesario cumplir con la normativa vigente y con las especificaciones dadas en clase sobre un correcto diseño de alumbrado, tomacorrientes, colocación del tablero general, sub tablero general, caja pase, pozo tierra y colocación de cables.

1.1 UBICACIÓN Y EMPLAZAMIENTO

1. TIPO DE PROYECTO
Memoria Descriptiva Datos Tipo de Proyecto Vivienda Multifamiliar Ubicación Av. General Juan Antonio Pezet 991 con Av Belén Distrito San Isidro Provincia Lima Distrito Lima

1.2 ACCESIBILIDAD

El multifamiliar cuenta con un ingreso principal y vehicular por la Av. General Juan Antonio Pezet.

1.3 ZONIFICACIÓN

http://msi gob pe/portal/wp content/uploads/2015/10/PLANO DE ZONIFICACION DE USOS DE SUELO1 pdf
1. TIPO DE PROYECTO

DESCRIPCIÓN PROYECTO

1. SEMI SÓTANO

El proyecto cuenta con un semisótano de 7 estacionamientos ubicados en el nivel-1 50 y dos estacionamientos ubicados en el nivel de vereda. También, cuenta con un cuarto de bombas y un baño. El ingreso se da desde la Av. General Juan Antonio Pezet, ya sea por medio de las escaleras que se encuentran en el ingreso principal. o también por medio de una rampa si nos encontramos en un vehículo

7 estacionamientos en el semisótano

2 estacionamientos en el sótano Cuarto de bombas Baño

2. PRIMER NIVEL

El acceso a la primera planta se da por medio del semi sótano gracias a las escaleras y ascensor. De igual manera, en este nivel se encuentran dos departamentos los cuales tiene dos ingresos interiores uno que es por medio del ascensor que se encuentra en la sala y el otro que se dirige a la cocina. A comparación de los demás departamentos de los diferentes niveles estos dos son los únicos que cuentan con terraza

2.
2 departamentos 2dormitorios 1dormitoriodeservicio 4baños 1sala 1comedor 1terraza CADADEPARTAMENTO

DESCRIPCIÓN PROYECTO

3. SEGUNDO Y TERCER NIVEL

En el segundo y tercer nivel cuentan con la misma distribución y poseen de igual manera dos departamentos. Sin embargo a comparación de los departamentos del primer nivel este cuenta con balcones y no cuenta con terraza.

CADADEPARTAMENTO

2dormitorios

1dormitoriodeservicio

4baños

1sala

1comedor

1balcón

4. CUARTO NIVEL

El último nivel consiste en una azotea a la que se accede mediante el núcleo de escaleras.

5. CUADRO DE ÁREAS

Niveles

m2 Construidos

Sótano 420 m2

Primer Nivel 336 m2 Segundo Nivel 292 m2 Tercer Nivel 292 m2

Cuarto Nivel 292 m2

Total 1632 m2

2.

3.1 LEYENDA DE RED DE ALUMBRADO

3.
LEYENDA

LEYENDA

3.1 LEYENDA DE RED DE TOMA CORRIENTES Y CONTRA INCENDIOS

3.

ESPECIFICACIONES TÉCNICAS

4.1 JUSTIFICACIÓN DEL CUMPLIMIENTO DE LA NORMATIVA TÉCNICA

Para la redacción del presente proyecto se han tenido en cuenta las indicaciones que se dan en las disposiciones que a continuación se citan (lista no exhaustiva) del Reglamento Nacional de Edificaciones del Perú y sus generalidades

4.2 TITULO I: GENERALIDADES

El Título Primero norma las Generalidades y constituye la base introductoria a las normas contenidas en los Títulos siguientes

4.2.1 NORMA G.010 CONSIDERACIONES BÁSICAS

Consideraciones básicas sobre el Reglamento Nacional de Edificaciones

4.2.2

NORMA G.020 PRINCIPIOS GENERALES

Consideraciones básicas sobre el Reglamento Nacional de Edificaciones

Principios generales:

De la Seguridad de las Personas; De la Calidad de Vida; De la Seguridad Jurídica; De la Subordinación del Interés Personal al Interés General; Del Diseño Universal.

4 2 3 NORMA G 030 DERECHOS Y RESPONSABILIDADES

Los actores del Proceso de la Edificación que intervienen como personas naturales o jurídicas, instituciones y entidades públicas o privadas, son los siguientes:

El Propietario; El Promotor Inmobiliario; Los Profesionales Responsables del Proyecto; Las Personas Responsables por la Construcción; Las Municipalidades; Las Personas Responsables de la Revisión de Proyectos; y El Ministerio de Vivienda, Construcción y Saneamiento

Sus derechos y responsabilidades están determinados por lo dispuesto en la presente norma, la Ley del Procedimiento Administrativo General, el Código Civil, el Código Penal, y las demás disposiciones que le sean aplicables; así como por lo pactado en el Contrato que acuerda su intervención.

4 2 4 NORMA G 040 DEFINICIONES

Definiciones usadas en las Normas del Reglamento Nacional de Edificaciones.

4 2 4 NORMA G 050 SEGURIDAD DURANTE LA CONSTRUCCIÓN

Establece los lineamientos técnicos necesarios para garantizar que las actividades de construcción se desarrollen sin accidentes de trabajo ni causen enfermedades

4.

4. ESPECIFICACIONES TÉCNICAS

4.3 TITULO II: HABILITACIONES URBANAS

El Título Segundo norma las Habilitaciones Urbanas y contiene las normas referidas a los tipos de habilitaciones, los componentes estructurales, las obras de saneamiento y las obras de suministro de energía y comunicaciones

4.3.1 NORMA GH.010

ALCANCES Y CONTENIDOS

Alcances y Contenidos de las normas técnicas contenidas en el Título II Habilitaciones Urbanas.

4 3 2 NORMA GH 020 COMPONENTES DE DISEÑO

URBANO

Detalla los componentes de diseño de una Habilitación Urbana: los Espacios Públicos y los Terrenos aptos para ser edificados

4 3 3 NORMA GH 020 COMPONENTES

DE DISEÑO URBANO

Detalla los componentes de diseño de una Habilitación Urbana: los Espacios Públicos y los Terrenos aptos para ser edificados

4.4

TIPOS DE HABILITACIONES

Serán usadas las normas peruanas vigentes detalladas a continuación:

4.4.1 NORMA TH.010

HABILITACIONES RESIDENCIALES

Constituyen Habilitaciones Residenciales aquellos procesos de habilitación urbana que están destinados predominantemente a la edificación de viviendas y que se realizan sobre terrenos calificados con una Zonificación afín

4.5

INSTALACIONES ELÉCTRICAS Y MECÁNICAS

Serán usadas las normas peruanas vigentes detalladas a continuación:

4 5 1 NORMA EM 010 INSTALACIONES ELÉCTRICAS INTERIORES

Las instalaciones eléctricas que se efectúan a partir de la acometida hasta los puntos de utilización y se aplica obligatoriamente a todo proyecto.

4

5 2 NORMA EM 020 INSTALACIONES DE COMUNICACIONES

Establece las condiciones que deben cumplir, las redes e instalaciones de comunicaciones en edificaciones que involucran a las telecomunicaciones y a los servicios postales de ser el caso.

4.5.3

NORMA EM.030 INSTALACIONES DE VENTILACIÓN

Se refiere principalmente a disposiciones para la ventilación mecánica, la cual es desde la simple renovación del aire en un ambiente o conjunto determinado de ambientes sin ningún tratamiento, hasta la renovación del aire y su tratamiento con procesos diversos simples o combinados de limpieza, mezcla, humectación, deshumectación, calentamiento y enfriamiento

4. ESPECIFICACIONES TÉCNICAS

4.5.4 NORMA EM.040 INSTALACIONES DE GAS

Establece los mínimos requerimientos técnicos que se deben incluir en el diseño y construcción de una edificación en la que se instale redes internas de gas natural y/o redes de media y baja presión de gas licuado de petróleo.

4 5 5 NORMA EM 060 CHIMENEAS Y HOGARES

Establece los requerimientos para las chimeneas, salidas de humo, ventilaciones, hornos, sus conexiones y transporte de productos de combustión; en resumen, todas aplicaciones que se refieran a actividades que requieran la utilización del calor

4.5.6 NORMA EM.110

CONFORT TÉRMICO Y LUMÍNICO CON EFICIENCIA ENERGÉTICA

Establecer zonas del territorio de la República del Perú de acuerdo a criterios bioclimáticos para la construcción, indicando las características de cada zona. Además, establecer lineamientos o parámetros técnicos de diseño para el confort térmico y lumínico con eficiencia energética, para cada zona bioclimática definida.

4.6

OBRAS DE SUMINISTRO DE ENERGÍA Y COMUNICACIONES

Serán usadas las normas peruanas vigentes detalladas a continuación:

4 6 1 NORMA EC 010

REDES DE DISTRIBUCIÓN DE ENERGÍA ELÉCTRICA

Las disposiciones de esta norma son aplicables a todo proceso de electrificación de habilitación de tierras y edificaciones.

4.6.2 NORMA EC.030 SUBESTACIONES

ELÉCTRICAS

Las disposiciones de esta norma son aplicables a todo proceso de electrificación de habilitación de tierras y de edificaciones.

NORMA EC.040 REDES DE INSTALACIONES DE COMUNICACIONES

Establece los lineamientos técnicos que deben seguirse para el diseño y la construcción de infraestructura, a fin de dotar de redes de telecomunicaciones, a una habilitación urbana.

4.7

TITULO III: EDIFICACIONES

El Título Tercero norma las Edificaciones y comprende las normas referidas a arquitectura, estructuras, instalaciones sanitarias e instalaciones eléctricas y mecánicas.

4 7 1 NORMA GE 010

ALCANCES Y CONTENIDOS

Alcances y Contenidos de las normas técnicas contenidas en el Título III Edificaciones, aplicables en el diseño y ejecución de las edificaciones a nivel nacional.

4 7 2 NORMA GE 020 COMPONENTES Y CARACTERÍSTICAS DE LOS PROYECTOS

Requisitos de información que deberán ser cumplidos por los profesionales responsables por la elaboración de los proyectos

4. ESPECIFICACIONES TÉCNICAS

4.7.3 NORMA

GE.030 CALIDAD EN LA CONSTRUCCIÓN

Identifica las características de diseño y de ejecución que son críticas para el cumplimiento del nivel requerido para cada una de las etapas del proyecto de construcción y para su vida útil, así como los puntos de control y los criterios de aceptación aplicables a la ejecución de las obras.

4 7 3 NORMA GE 040 USO

Y MANTENIMIENTO

Identifica las características del uso y del mantenimiento de las edificaciones

4.8 ARQUITECTURA

Serán usadas las normas peruanas vigentes detalladas a continuación:

4.8.1

NORMA A.010 CONSIDERACIONES GENERALES DE DISEÑO

Establece los criterios y requisitos mínimos de diseño arquitectónico que deberán cumplir las edificaciones.

4.8.2 NORMA A.020

VIVIENDA

Constituyen edificaciones para fines de vivienda aquellas que tienen como uso principal o exclusivo la residencia de las familias, satisfaciendo sus necesidades habitacionales y funcionales de manera adecuada.

4

8 3 NORMA A 120 ACCESIBILIDAD PARA PERSONAS CON DISCAPACIDAD Y DE LAS PERSONAS ADULTAS MAYORES

Establece las condiciones y especificaciones técnicas de diseño para la elaboración de proyectos y ejecución de obras de edificación, y para la adecuación de las existentes donde sea posible, con el fin de hacerlas accesibles a las personas con discapacidad y/o adultas mayores.

4.8.4

NORMA A.130 REQUISITOS DE SEGURIDAD

Establece los requisitos de seguridad y prevención de siniestros que tienen como objetivo salvaguardar las vidas humanas y preservar el patrimonio y la continuidad de la edificación.

ESPECIFICACIONES TÉCNICAS

4.
4.9 ESPECIFICACIONES TÉCNICAS GENERALES 4.10 ESPECIFICACIONES TÉCNICAS DEL INTERRUPTOR DIFERENCIAL

ESPECIFICACIONES TÉCNICAS

4.11 GLOSARIO DE MATERIALES DE LAS REDES

NOMBRE

DEFINICIÓN

IMAGEN

INTERRUPTOR SIMPLE

Dispositivo que permite el control ON OFF (conexión y desconexión) de la corriente eléctrica en toda clase de circuitos eléctricos con cargas resistivas e inductivas.

https//definicionde/tuberia/

http jpg

INTERREUPTOR DOBLE

El interruptor doble tiene dos mandos en un mismo mecanismo: cada uno de ellos enciende una lámpara distinta.

https://wwwleroymerlines/hazlo tu mismo/consejos/como instalar un interruptor doble

https//sodimacscene7com/is/image/SodimacPeru/445274

INTERRUPTOR TRIPLE INTERRUPTOR DE COMPUTACIÓN SIMPLE

El interruptor triple es un dispositivo diseñado para encender y apagar el paso de energía eléctrica a los circuitos eléctricos

https://definicionde/?s sumidero

Su función es permitir controlar un punto de luz desde dos interruptores diferentes, muy útil por ejemplo en pasillos, donde un interruptor se coloca al principio y otro al final.

https://syzcominsape/

https://sodimacscene7com/is/image/SodimacPeru/445290 ht

Interruptores: Las placas para los interruptores ha sido construidas en conformidad de la Norma Internacional IEC 669 1 y están construidas en termoplástico, material que tiene excelente resistencia a los impactos y con propiedades antiestáticas Los contactos de sus interruptores son de plata, para asegurar un adecuado funcionamiento y durabilidad; los interruptores tienen sus bornes protegidos disminuyendo los riesgos de contacto accidentales los bornes tiene una capacidad de 10Amp , 220 Voltios, similar a la marca Ticino

4.

NOMBRE DEFINICIÓN IMAGEN

CAJA DE PASE OCTOGONAL

La caja octagona es un sistema que sirve como fuente para un hogar o edificio Su principal función es alojar empalmes de cables y otros tipos de conexión.

Materialidad: PVC Dimensiones: 9x9x4cm

https://wwwmaterialesjerezcommx/producto/caja octagonal/

Funciona como paso a los cables y cables eléctricos o, también, para conectar cables en interruptores o enchufes

CAJA DE PASE CUADRADA

MEDIDORES

Materialidad: PVC Dimensiones: 30x25x12cm

https://wwwkrausmullercombr/es/caja de paso que es y para que sirve/

https://wwwmaterialesjerezcommx/producto/caja octagona/

TABLERO GENERAL

El medidor de energía eléctrica es un dispositivo que mide el consumo de energía eléctrica de un circuito o un servicio eléctrico.

Http//wwwosinerggobpe

Equipo a donde llega todo el conjunto de conductos eléctricos y tuberías, que salen desde la parte del medidor Desde allí se realiza la distribución a los diferentes circuitos

Tamaño de tableros: Tablero general de 15 polos

https://grupocasalimacom

https://promartvteximgcombr/arquivos/ids/437885 1000 1000/33809jpg?v=637245633798330000

https://sodimacscene7com/is/image/SodimacPeru/445290

https//wwwpromartpe/trampa

p sal 2 c r 3 4 nivel uno/p
4.11 GLOSARIO DE MATERIALES DE
LAS REDES

NOMBRE DEFINICIÓN IMAGEN

POZO A TIERRRA

Evita que algún equipo o persona reciba una descarga eléctrica Para lograrlo, se entierra una varilla de cobre con el fin de crear ese polo a tierra y se crea un camino de baja resistencia para canalizar la corriente y esparcirla.

Medidad: 80 cm de diámetro por 2.60 metros de profundidad

https://grupocasaimacom

https://grupocasalimacom

CAJA TOMA

FOCOS

CINTA AISLANTE

Contenedor de conexiones eléctricas, por lo general destinada a ocultarlas de la vista y desalentar la manipulación

Materialidad: PVC Dimensiones: 4.5x8x13cm

https//eswikipediaorg

https//eswikipediaorg

Proyecta la luz de una lámpara hacia una región concreta o espacio determinado

https://eswikipediaorg

Aisla formando un sello hermético de alta resistencia a la acción de cualquier contaminante corrosivo (de dimensiones 19m x 18.3mm x 0.15mm, de color negro) https://www3mcompe

t<htps//eswikipediaorg

https://www3mcompe
4.11 GLOSARIO DE MATERIALES DE LAS REDES

NOMBRE DEFINICIÓN IMAGEN

TUBOS DE PVC

Tubo de 3/4" conformado por PVC, diseñado para proteger los conductores eléctricos contra el deterioro, cuenta con un aislamiento eléctrico y bajo nivel de corrosión, además es resistente a químicos

https://wwwpromartpe

https//wwwpromartpe

CABLE FASE

CABLE NEUTRO

Cable por el que entra la corriente eléctrica y es con el que hay que tener cuidado, ya que hablamos de una tensión de 220 o 230 voltios

https://wwwendesacom

https://wwwendesacom

CABLE A TIERRA

Su función es la de permitir “regresar” a la corriente Para poder transmitirse, la electricidad necesita de dos conductores.

https://wwwendesacom

Su función es enlazan el enchufe de cada aparato eléctrico con la tierra, para que en caso de que surja algún tipo de corriente de fuga, o descarga de origen atmosférico

https://wwwendesacom

https://wwwendesacom

4.11 GLOSARIO DE MATERIALES DE LAS REDES

NOMBRE DEFINICIÓN IMAGEN

TOMACORRIENTE UNIVERSAL DOBLE

Elementos destinados a conectar eléctricamente un conductor o cable flexible a un aparato eléctrico, con dos entradas

Tipo: Tomacorriente Doble Universal + Tierra Modus Style Terra de plástico Marca: Bticino

https://wwwinsstes

https://wwwinsstes

CENTRAL DE ALARMAS CONTRA INCENDIOS

Central a la que se conectan los elementos del sistema de alarmas contraincendios, que permite detectar algún posible siniestro de fuego

Marca: Opalux

https://wwwendesacom

https://wwwendesacom

SIRENA ESTROBO FLASH

Se activa una sirena y luz cuando el sistema centralizado es iniciado por algún sensor de incendio, lo cual permite alertar sonora y visualmente a personas

Marca: Opalux

https//wwwpromartcom

https//wwwpromartcom

ESTACIÓN MANUAL DE ALARMA

Aparato que es activado en caso de incendio, apretando un botón o tirando de una palanca Al ser activado, el aparato informa de inmediato a la central de alarmas contra incendios

Marca: Opalux

https//wwwverisurecom

https//wwwverisurecom

4.11 GLOSARIO DE MATERIALES DE LAS REDES

NOMBRE DEFINICIÓN IMAGEN

DETECTOR DE HUMO

Aparato que detecta la presencia de humo o monóxido de carbono en un área determinada y alertar a la central de alarmas contra incendios

Marca: Opalux https://wwwverisurecom https//wwwverisurecom

TOMACORRIENTE A PRUEBA DE AGUA

Elementos destinados a conectar eléctricamente un conductor o cable flexible a un aparato eléctrico, con dos entradas y cubierta que protege del agua

Tipo: Tomacorriente Doble Universal Light Idrobox https//wwwpromartcom https://wwwpromartcom

4.11 GLOSARIO DE MATERIALES DE LAS REDES

5. CUADRO DE CARGAS

5.1 ESPECIFICACIONES GENERALES

Edificio 6 departamentos de 4 pisos Datos 4 de 132 m2 18300 2 de 152m2 29850

Departamentos menores a 130 m2 W

Cocina eléctrica 5000 Refrigeradora 450 Microondas 1500 Lavadora 350 Calentador 1500

Para departamentos menores de 130 m2 todos los artefactos tendrán un factor de demanda al 100%

Departamentos mayores a 130 m2 W

Cocina eléctrica 15000 Microondas 1500 Refrigeradora 450 Lavadora 400 Calentador 2 unidades 1500 Horno 3000 Aire acondicionado 3000 3 bombas de 2HP c/u 4500 Área común de 327 m2 Ascensor 6000

Todos los artefactos que no se les ha asignado factor trabajan al 100%

CUADRO DE CARGAS

5.2 CARGA POR TIPO DE DEPARTAMENTO

Departamentos de 132 m2 PI FD MD Departamentos de 132 m2 (4) 3500 100% 3500

Cocina eléctrica 15000 100% 5000 Microondas 1500 100% 1500 Refrigeradora 450 100% 450 Lavadora 400 100% 350 Calentador 1500 100% 1500 Horno 3000 80% 2400 Aire acondicionado 3000 100% 3000 18300 17700 18 3 Kw 17 7 Kw

Departamentos de 152 m2 PI FD MD

Para los primeros 45 m2 (2) 3500 100% 3500

Cocina eléctrica 15000 12000/rto 40% 13200 Microondas 1500 100% 1500 Refrigeradora 450 100% 450 Lavadora 400 100% 400 Calentador 1500 100% 2700 Horno 3000 60% 1800 Aire acondicionado 3000 100% 3000 29850 26550 Total 29.8 Kw 26.5Kw

5.

CUADRO DE CARGAS

CARGA TOTAL DEL EDIFICIO

Carga del edificio

PI FD MD

(i) El 100% de la carga mayor de cualquier unidad de vivienda 29850 100% 29850 (ii) El 65% de la suma de cargas de las 2 unidades de vivienda con cargas iguales o inmediatamente menores 1 x 29850 + 1 x 18300 48150 65% 31297 5 (iii) El 40% de la suma de cargas de las 2 unidades de vivienda con cargas iguales o inmediatamente menores que las del subpárrafo (ii) 2 x 18300 18300 40% 7320 (iv) El 30% de la suma de las cargas de las 15 unidadesde vivienda con cargas 18300 30% 5490 Cualquier carga de alumbrado, no ubicada en las unidades de vivienda, debe ser añadida con un factor de demanda de 75% 327 x 25 w/m2 8175 75% 6131 25

Bombas 3 x 2 x 750 4500 75% 3375 Ascensor 6000 75% 4500

Total 133275 87963.75 PI 6123.15 WK MD 826.2 KW

5.
5.3

TUBOS

0 83 1 98 1 03 3 65 Vertical Tablero 1.5 Vertical Tomacorrientes 1.2 x 5 Total 14.99 5% de sobrante 0 7495 Redondeado / 3m de cada tubo 16m / 3 Tubos 5 33 Tubos redondeado 6 tubos

CABLES

Total de tubo 16 m 16 m 16 m Curvas 6 x 0 15 6 x 0 15 6 x 0 15 Total Curvas 0.9 0.9 0.9 Total 16 9 16 9 16 9 Total Redondeado 17 17 17 Tipo de Cable Cable 4 mm2 Cable 4 mm2 Cable 4 mm2

Caja Rectangular 3 Tomacorrientes 3 Curvas 6
Cable Tierra Cable Fase Cable Neutro
Tubos Horizontales 6.
METRADO 6.1 METRADO DE CIRCUITO 6 DE COCINA
ACCESORIOS

TOMACORRIENTES

RED DE

TOMACORRIENTES

RED DE

TOMACORRIENTES

RED DE

CONTRAINCENDIOS

RED

CONTRAINCENDIOS

RED

CONTRAINCENDIOS

RED
09

EC2-4

PRÁCTICA CALIFICADA 3

DESCRIPCIÓN

Se desarrolló una prueba en CAD, en la que el objetivo consistía en dibujar una red de tomacorrientes para una vivienda unifamiliar, para lo cual se debió realizar el cálculo lumínico y de aire acondicionado de un dormitorio, colocar correctamente los tomacorrientes y conectarlos entre sí, así como, diseñar las redes de TV, internet e intercomunicador.

REFLEXIÓN

Considero que el tema desarrollado en esta prueba fue bastante complejo, pues se debía realizar cuatro redes. Por ello, fue necesario recordar las consideraciones específicas para cada una de ellas, así como la simbología correspondiente.

Por otro lado, si bien, al inicio me encontraba preocupada con el límite de tiempo, pues además de las redes se debía realizar el cálculo lumínico y de aire acondicionado, la vivienda era de dimensiones pequeñas, lo cual permitió resolverlo sin mayor probelmas.

RED DE TOMACORRIENTE

CÁLCULO LUMÍNICO

CÁLCULO DE AIRE ACONDICIONADO

PRÁCTICA CALIFICADA 2

RED DE TOMACORRIENTE

PRÁCTICA CALIFICADA 2
PLANTA 1
PLANTA 2

REFLEXIÓN

Culminando el curso de Instalaciones II, alcancé una alta comprensión respecto a las redes eléctricas de alumbrado y tomacorrientes, con un buen manejo de la forma de instalación, el diseño y las consideraciones de cada una.

Mediante ejercicios prácticos en el laboratorio y explicaciones teóricas complementarias, pude desarrollar aptitudes fundamentales para mi futuro profesional. Debido a que, al diseñar un proyecto, tendré en consideración los requerimientos de las redes para producir una edificación funcional, sobre la cual se pueda desarrollar una red de manera óptima y eficiente.

Finalmente, considero que los laboratorios fueron muy importantes para conocer el proceso de instalación y poder tener en cuenta la manera correcta de realizarse cada elemento, para en un futuro poder supervisar en obra que la red este resuelta adecuadamente y asegurar un resultado de calidad y seguro

Turn static files into dynamic content formats.

Create a flipbook
Issuu converts static files into: digital portfolios, online yearbooks, online catalogs, digital photo albums and more. Sign up and create your flipbook.
INSTALACIONES II_PORTAFOLIO by Saori Yamanija - Issuu