Architecture work

Page 1


B.E. China Academy of Art, China M.Arch. University of Virginia, US yra3ge@virginia.edu, +1 501-288-5168

Zebin Yan

01 | MOUNTAIN HOUSE

Song Yang Chenjiapu Culture Hall and Restaurant

06 | BOHONG VILLAGE BOOKSTORE

Design projects working at Sens Architects

02 | MURAL STUDIO

03 | WALL MUSEUM

Exhibition Hall at China Academy of Art

Mural studio in Los Angeles 04 | III LIBRARY

Library in Bronzeville, Chicago

05 | TREE BUILDING

Jiaxing Zicheng Archaeological Site Area Pavilion Design

07 | OTHER WORK Painting

01 | Mountain House

Spring 2021, Studio project China Academy of Art Individual work Instructor: Shanshan Qi

The project is situated in Chenjiapu, Songyang County, an idyllic village nestled among mountains with a stunning natural landscape. The village enjoys a certain level of seclusion from urban life, evoking a sense of paradise.

The main visual point is composed of the stream formed by the extrusion of the mountain on both sides and the mountain itself.

The window of the building happens to form a frame to form a landscape painting.

PROJECT OVERVIEW

Chenjiapu Village is built along the mountain and its settles are distributed along the terraces of the mountain which embraces a fall down more than 200 meters. The overall appearance indicates it as a typical southern cliff settlement-cluster of western Zhejiang.

Starting from Li Bai's poetic painting, the project recreates the experience of the visitors to the scenery and the relationship between nature and people in the painting.

Main View
plan of Chenjiapu village
Li Bai's poetic painting, Wen Zhenming (1470-1559) Rock orientation analysis
Close view, medium view, long view analysis
Analysis of relationship between different rocks and main space
The Waterfall Mount Lu Viewed from afar.
The sunlit Censer Peak exhales incense like cloud; Like an unpended stream the cataract sounds loud. As if the Silver River fell from the blue sky.

A COLLECTION OF INTERFACE PRACTICES SPACE OPERATION RESULTS

The 2.5-dimensional interface manipulation technique is used to make the space have a certain guiding force to the viewer by manipulating the interface in the three basic single-axis directions of x-axis, y-axis and z-axis as well as multi-axis in a unit square space, so as to attract the viewer to promote the occurrence of events and thus achieve the purpose of viewing.

Spatial deepening of each unit space based on the combination of interface manipulation and three basic profiles, forming a spatial experience with a certain rhythm of attraction and rejection of space.

The first section focuses on the strong attraction of the entrance space and the response to the connection to the external environment through the window, which hits the second floor space directly through the staircase and enters the designed spatial flow to view the building and landscape.

The second section mainly emphasizes the occlusal relationship between the exhibition space on the second floor and the space on the first floor, through which the space on the second floor can see the sequence of spaces behind, and a certain amount of shading on the space on the second floor makes the viewer interested in visiting the building.

The third section expression mainly focuses on the roundabout between spaces, with complex and variable spatial organization, in the process of space guiding the viewer's movement so that the viewer keeps changing directions to see different views, and reaches the last space after constant changes.

The last section focuses on expressing the view of the external environment and consists of a main lounge and a semi-outdoor activity platform, with a staircase on one side that also provides a degree of view and eventually directs the view to the main landscape in the distance.

Entering the entrance space is guided by a sunken patio within the sloping walls of the space and by a gentle slope that leads the viewer forward in light and guidance.

Render of entrance

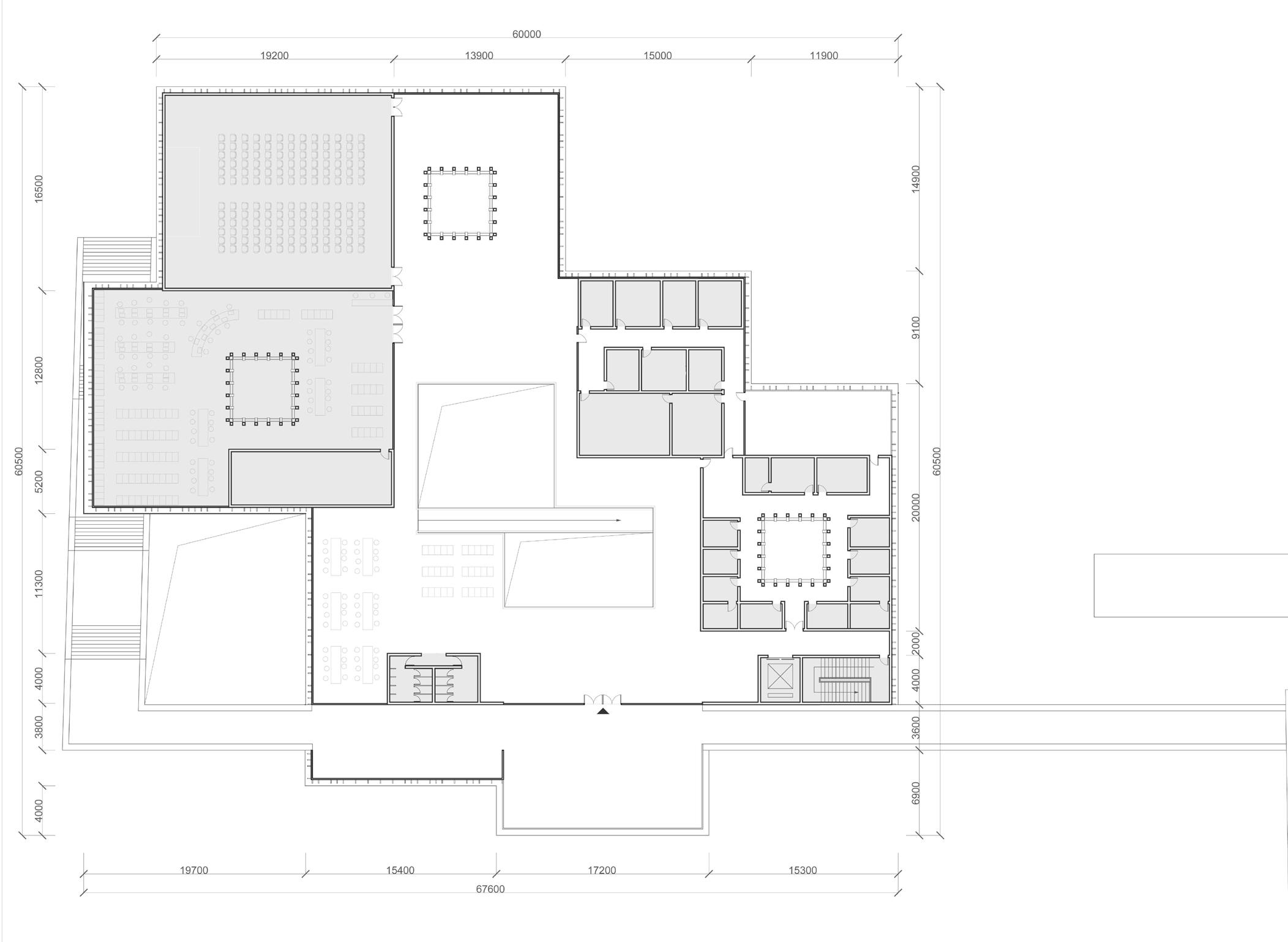
05 | Mural Studio

Spring 2024, Studio project University of Virginia Individual work Instructor: Martin Robles, Ines Maria

This project is located in Los Angeles, the project is based on the overall mural impression of the city of Los Angeles to build a mural studio for the community, the community has a Mexican and Latino background, their mural cultural background is very rich, with their ethnic traditions and culture.

From the site analysis, it can be seen that there is a rich community culture in the vicinity of the site, such as music bars, restaurants, hotels, etc., as well as around the site there is a very rich mural painted on the façade of many buildings facing the street;

From the urban texture of the city as well as the building volume, it can be seen that there is a hospital with a large volume of buildings at the back of the site, and a residential neighborhood with a smaller volume of buildings to the south of the site, as well as a number of other buildings. Therefore, the spatial blocks are organized in a way that the building volume gradually becomes smaller from the north to the south in the architectural strategy.

1. Mural Studio
Conference rooms
Individual studios
Restroom
Stair
Public Lounge
Kitchen
Individual office
Painting Studio
Storeroom
Exhibition room
East Elevation
South Elevation
North Elevation
A-A Section
B-B Section

03 | WALLS MUSEUM

Instructor: Li Huang

Different from the architectural texture and spatial pattern of the surrounding cities, the architectural complex of China Academy of Art is caused by its advantaged environment. The surrounding natural environment has formed the basic principles for the construction of campus buildings, which are developed on the basis of mountains and rivers.

This project is located at the center of the campus on , which acts as a natural barrier separating the buildings to the south and north of the mountain. "Barrier" also serves as the starting point of this design, with the wall as the basic element to construct the building. On the whole, the campus buildings are built around the mountain, showing the attitude and awe of nature adopted by the buildings.

The function of this project is mainly composed of multi-functional hall, conference hall, exhibition space, lecture hall, etc. The streamline connecting each main functional space and environmental road are connected to form the road system of the whole campus.

Spring 2020, Studio project China Academy of Art
Individual work

For the ancients, especially the ancient painters, landscape painting was not simply a depiction of natural scenery, but their spiritual aspirations and their attitude toward life.

Jinhao, who was influenced by Taoist thought, drew much of his interest in painting from the Taoist aesthetic concept that "there is great beauty in heaven and earth", so he left a Taoist temple on the mountainside in his paintings. The appearance of the Taoist temple is not accidental; it exists both as a real scene and as a reflection of his heart - a solitary forest house, a mountain enlightenment.

The vertical axis composition, with a bird's-eye vertical panoramic layout, depicts three levels of scenery near, middle and far, and places the highest main peak in the midst of a cluster of peaks, which is majestic and clearly layered. In the use of brushwork, the methods of outlining, chapping, rubbing, dabbing and dyeing are used in parallel, especially the application of the chapping method, which is an important contribution to the development of landscape painting by Jing Hao. The painter uses the method of ink staining to reflect the distance between the mountains, water, trees and scenery with the shadiness and intensity, the varied ink and wash, and the rich layers.

Proportional Relationship

It can be seen from the painting that the proportion between the building and the surrounding landscape is dominated by the natural landscape, and the architecture adopts a relatively low attitude.

Conversion

The proportion relationship between nature and architecture evolves to the relationship of each element of the single building, and the elements dominated by the wall account for the largest proportion to achieve the purpose of barrier.

Kuanglu Picture, Jinhao (850-911)
Painting Background
Walls
Building 10%
Environment 90%

Each building (Waterfront Mountain Residence Hotel, Craft&Folk Art Museum, Walls) is located at the foot of the mountain, the mountainside and the valley between the two peaks, hiding in the mountain to achieve the balance of the relationship between architecture and nature.

The viewpoint of the façade has the same meaning as that of the mountain, and both have the intention of "barrier", thus giving the viewer a curious desire to know the landscape behind the mountain or the space behind the walls.

Connectivity and View

The connection between the north and the South is conducive to interdisciplinary communication and has different landscape and architectural links between the north and the south. The east-west orientation emphasizes the transition from the urban fabric to the natural landscape, and the "one line sky" connects the two different spatial patterns.

View1
View2
The Elevation Relationship between Architecture And Mountain in Perspective of South of the Hill
Walls
Waterfront Mountain Residence Hotel Museum
View1
View2
Site Plan

The extraction of the wall mountain concept is closely related to the spatial effect of a line of sky composed of walls, which largely depends on the sense of gap in the space.

Constituent Step Decomposition

"One line sky" space mode and its atmosphere is the main construction purpose of this project. Through the separation and reorganization of architectural elements themselves, the space between elements is continuously compressed to reproduce the sense of gap, so as to realize the characteristics of narrow and deep space depth of "one line sky". Space Experience Extraction

system separation

Floor system separation

of functional space systems

One line sky
Extraction
Wall
Separation
Intial block
Separation out two walls
Draw a north and south aisle each
The walls separate again to distinguish the primary and secondary
Separation
+46.0m
1 5m 0 A-A Section
1 5m 0
B-B Section

04 | III LIBRARY

Spring 2023, Studio project University of Virginia Individual work Instructor: Dobrowolski, Devin

The project is located in the Bronzeville neighborhood of Chicago, where there are ample school facilities, cultural infrastructure, and community cultural institutions, so it is important to establish a public library program within the community for reading and social activities for the people in the community and nearby neighborhoods.

The design logic of the project starts with three spatial prototypes in different spatial languages, and gradually evolves with spatial extrapolation and complexity.

The space in the first column was selected for deepening the design

Fewer Boiler, Inc
4341 S Cottage Grove Ave
C-C Section

B-B Section Perspective

Street Elevation
Render

03| JIAXING ZICHENG ARCHAEOLOGICAL SITE AREA PAVILION DESIGN_ TREE MUSEUM

Fall 2019, Studio project China Academy of Art Individual work

Instructor: Li Huang

This project is located in the archaeological site area of Jiaxing Zicheng, and the corner part of the city wall was chosen to facilitate a certain connection with the outside world of the wall, and the connection with the wall itself. The project explores the influence of different structures on the functional space and spatial atmosphere from the structural point of view.

Sub City Historical Background

Jiaxing Zicheng site was built in the third year of Huanglong in the Three Kingdoms period (231 AD). In that year, by the boxing county "wild rice from the birth", Wu Emperor Sun Quan thought it was an auspicious omen, issued an edict to change the boxing county to Wo Xing County, and at the same time ordered the county to "repair the city and Guo, raise the tower, dig a deep pool of rift valley", the construction of the city. In the fifth year of Chiwu (242 A.D.). At the end of Tang Dynasty, in the first year of Wende (888 AD) or the third year of Qianning (896 AD), Jiaxing expanded to build a large city with a circumference of 12 miles. People call - the big city the mother city, and the old city within the perimeter the sub-city, and its wall is called the sub-wall.

Map
Jiaxing
Pinshan
Zicheng
Jiannan
Nanbuziyang
Hanxiang
Renbao
Yanzjing
Tianxinghu
Square
Wedding Club
Ruoai Hotel

The structure is mainly erected on top of the archaeological site canals to provide space for visitors and shelter for the excavated artifacts.

standpoints

standpoints Four standpoints

1/4Four standpoints

1/4Eight standpoints

standpoints Twelve standpoints

1/4Twelve standpoints

Building block generation analysis
Stump element analysis
1. Elevation: from bottom to top, from sparse to dense
2. Structure: tree structure from bottom to top
3. Climate boundaries: expanding from bottom to top Exploded view
1. Placement of blocks in the corner
3. Retracted into the bottom space in sequence
5. Some of the blocks protrude outside the city walls
Putting in the structure
Join the atrium space
Dissolving architectural boundaries

The design concept of the plan mainly expresses the space through the flow space of the plan space, which allows visitors to freely visit and walk inside the space, not only horizontally but also vertically, so the main ramp connecting the floors is placed in the center of the space.

Different measures have been taken in the consideration of the already existing walls, so that the building and the walls have different dialogues

Section A-A
Section B-B
Elevation

CONSTRUCTION DRAWING&PERSPECTIVE VIEWS

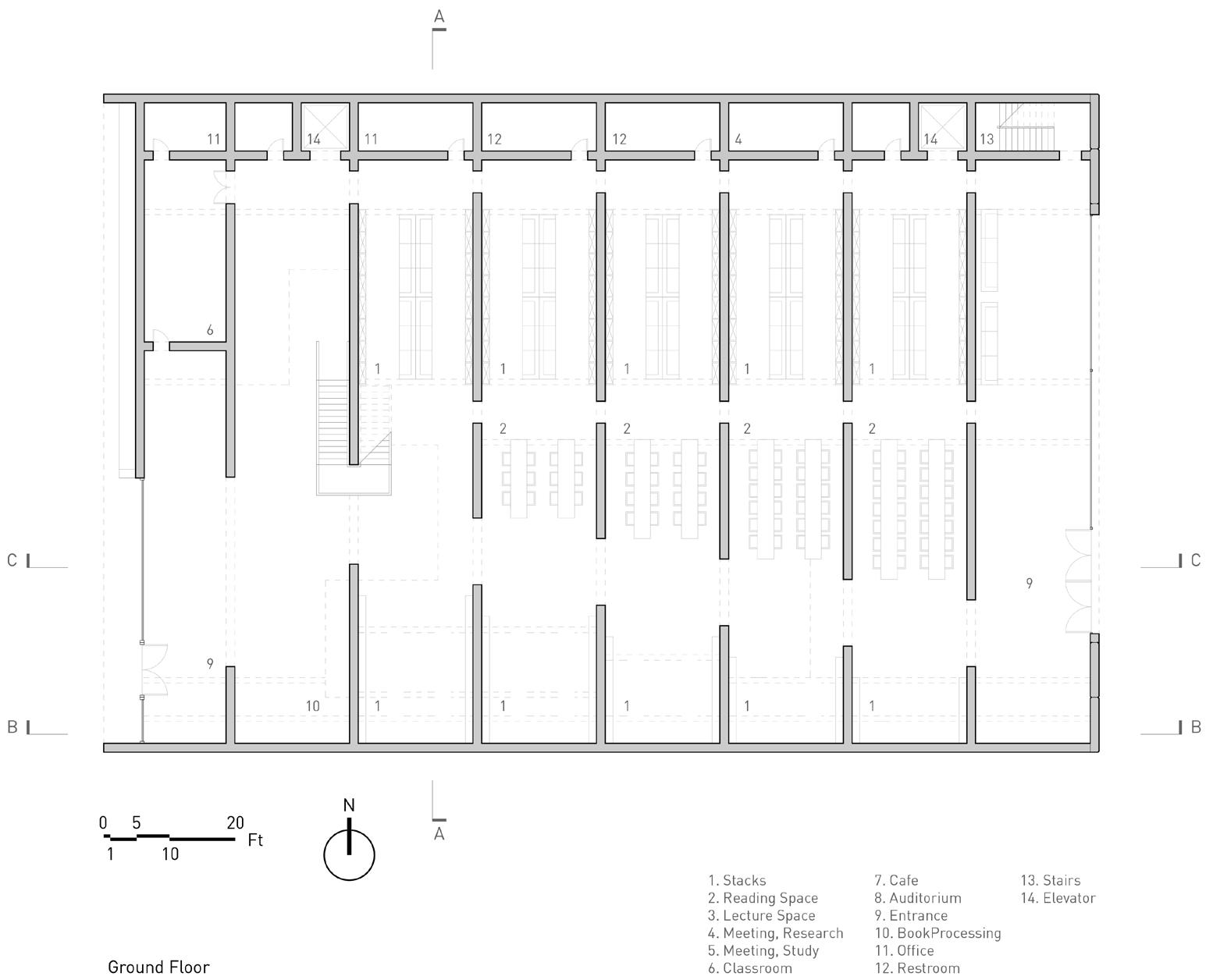
06 | Bohong Village Bookstore

Spring 2022, Work project Sens Architects

The construction of Bohong Village Bookstore is an important derivation of the Bohong series of reading platform. Rural distribution, balanced development, through the conversion and reuse of old buildings in the villages to achieve the coverage of library resources, so that the new space for reading is embedded in all corners of Tongxiang, and further build the public reading service system of urban and rural areas as a whole, so that the city of Tongxiang's aroma of books is more everlasting and ever-new.

Lu Fei Bohong, surname Lu Fei and first name Kui, pseudonym Shaocang, original native place is Tongxiang, Zhejiang. He is a famous educator and publisher in China, also the founder of Zhonghua Book Company. In 2018, the Tongxiang government decided to adopt the name of the famous figure of Tongxiang – “Pioneer of Chinese Book Industry” Lu Feikui, and issued the “Implementation Plan for Building Bohong Urban Study (Book Fragrance Station)”. It took the lead in pilot construction in the urban area and central towns such as Quanzhou and Wuzhen, creating a “ten minute reading circle” covering urban and rural areas. Using books as a medium to build an elegant Tongxiang.

Ground Floor
Exterior view1
Exterior view2
Second Floor
Elevation
Section
Interior view1
Interior view2

07 | Other Work

Spring 2017, Painting China Academy of Art

These paintings were inspired by Impressionist paintings,sketch of phenomenon

POLYSTYRENE PAINTING AND SKETCH

Wall Mountain, 300mmx740mm, polystyrene painting, 2017
Dunkirk, 560mmx700mm, polystyrene painting, 2017
Tree trunk exercise, 520mmx740mm, Charcoal, pencil, gray sketch paper, white chalk, 2017
Rotten wood exercise, 389mmx546mm, Pencils, sketching paper, 2017

Turn static files into dynamic content formats.

Create a flipbook
Issuu converts static files into: digital portfolios, online yearbooks, online catalogs, digital photo albums and more. Sign up and create your flipbook.