



Elaborati approfonditi in tavola - scala 1:50



![]()




Elaborati approfonditi in tavola - scala 1:50



La sfida principale, che bisogna affrontare quando si converte un silo da semplice stoccaggio di grano a hotel o a spazio polivalente ad uso pubblico, è sicuramente l’installazione di solai all’interno dei cilindri di calcestruzzo armato.
I silos infatti sono pensati come cilindri verticali autoportanti, che a causa delle forti pressioni dovute al peso dei cereali, sono progettati per resistere a forti pressioni orizzontali spingenti verso l’esterno.
Nel progetto, cambiando la funzione dell’edificio, non si avranno più le forti pressioni orizzontali dovute allo stoccaggio ma, con l’inserimento dei solai, si riprodurranno delle pressioni verso l’esterno simili alle originali.
L’idea di progetto è dunque quella di inserire delle cerchiature interne in acciaio, fissandole al calcestruzzo armato tramite degli ancoranti, e di appoggiare sopra di esse la parte di solaio, composta da una lamiera grecata collaborante e da una finitura sommitale. Nel calcolo di progetto è stato preso in esame l’edificio “Algen Silos”, ovvero il nuovo edificio con funzione di hotel. Per poter fissare le cerchiature alla struttura portante verticale cilindrica del silo, sono stati utilizzati 6 ancoranti con fascetta espandente in acciaio inossidabile (FAZ II Plus 12/10 K R - FISCHER) con profondità del foro di 80 mm e diametro foro di 12 mm con chiave di serraggio pari a 19 mm. Sono stati scelti questi elementi dopo un’analisi del peso del solaio e del peso della cerchiatura, comprendendo il peso proprio, i carichi permanenti strutturali, i carichi permanenti non strutturali, e il carico dovuto alle azioni variabili (funzione d’uso hotel). Le cerchiature strutturali sono realizzate con dei tubi (scatolati) in acciaio a sezione rettangolare di dimensione pari a 150x80x4mm, calandrati per ottenere la forma circolare di circonferenza pari a 13,80 m.
La resistenza di questi tubi in acciaio è stata attentamente verificata per assicurare che possano sostenere i carichi previsti senza deformazioni eccessive o cedimenti strutturali. La scelta dell’acciaio come materiale per le cerchiature garantisce anche una maggiore durabilità nel tempo e resistenza alla corrosione, elementi cruciali per un edificio a uso pubblico.
Sopra alla cerchiatura poggia, come già detto, la parte strutturale del solaio composta da una lamiera grecata di spessore 0,7 mm e di altezza di 60 mm, completata superiormente da un getto in calcestruzzo di spessore 100 mm. Questa combinazione di lamiera grecata e calcestruzzo garantisce un’ottima capacità portante, riducendo al contempo il peso complessivo del solaio. La parte di finitura comprende poi una guaina anticalpestio, l’impianto di riscaldamento a pavimento, e la pavimentazione in gres porcellanato. La guaina anticalpestio è essenziale per garantire il comfort acustico all’interno dell’hotel, riducendone il rumore. L’impianto di riscaldamento a pavimento offre un riscaldamento uniforme e confortevole per gli ospiti, mentre la pavimentazione in gres porcellanato, oltre ad essere esteticamente gradevole, è resistente e facile da pulire, ideale per un uso intensivo come quello di un hotel.

Lunghezza circonferenza (circ.) = 13,80 m
Raggio del solaio (r)= 2,20 m
Carico totale del solaio (Q)= 7,63 kN/m2
Tensione amm. acciaio S235-Fe360 (σ)= 1600 kg/cm2
Lunghezza tratto di pertinenza (L) = circ./6 = 2,30 m
Carico lineare sulla cirfonferenza (q)= Q*r = 16,79 kN/m
Momento flettente massimo (Mmax)= (q*L2)/8 = 11,10 kN*m
Modulo di resistenza minimo (Wmin)= Mmax/σ = 70,70 cm3
Secondo tabelle “oppo” (www.oppo.it) il tubo scatolato in acciaio a sezione rettangolare di dimensione pari a 150x80x4 mm ha un modulo di resistenza massimo (Wmax) pari a 70,94 cm3, dunque maggiore di quello di progetto.

Scheda tecnica dell’ancorante con fascetta espandente in acciaio inossidabile FAZ II Plus 12/10 K R, marca FISCHER

1 - Fori nel silos di calcestruzzo armato, diametro 12 mm

3 - Posizionamento del solaio strutturale composto da lamiera grecata collaborante

2 - Posizionamento della cerchiatura in acciaio e fissaggio con l’ancorante in acciaio inossidabile (FAZ II Plus K R)

4 - Posizionamento della finitura del pavimento
La valutazione strutturale dell’edificio è stata realizzata grazie La valutazione strutturale dell’edificio è stata realizzata grazie all’ausilio del software Midas Gen, che ci ha permesso di elaborare e gestire il modello tramite il metodo agli elementi finiti. Questo approccio ha consentito una simulazione dettagliata e precisa delle sollecitazioni e delle deformazioni subite dalla struttura sotto diverse condizioni di carico.
Il modello semplificato dell’edificio di Algen comprende gli elementi verticali, quali pilastri e silos, i muri della torre e i solai.
Sono stati valutati i seguenti casi di carico:
• Stato Limite Ultimo (SLU): sono stati considerati i carichi del peso proprio, i carichi permanenti strutturali, i carichi permanenti non strutturali e il carico accidentale legato alla funzione d’uso hotel. Questo ha permesso di verificare la capacità della struttura di resistere alle massime sollecitazioni.
• Spinta orizzontale del vento: è stata considerata la spinta del vento prevista dall’Eurocode-1 (2005), con una velocità pari a 26 m/s, applicata secondo le due direzioni principali X e Y.
• Carico neve: è stato preso in esame il carico neve specifico della zona climatica di Malmö (Svezia | BFS 2013:10 EKS 9), in conformità con la normativa europea EN 1991-1-3, risultante in un carico pari a 1 kN/m². Questo ha assicurato che la struttura venisse progettata per sostenere il peso della neve durante le stagioni invernali.
Risultati dell’Analisi
In seguito, abbiamo inserito i vari grafici che rappresentano i risultati ottenuti grazie al processo di calcolo del software Midas Gen. I grafici illustrano chiaramente come la struttura risponde ai diversi casi di carico, evidenziando gli elementi strutturali principali dell’edificio, quali i muri portanti della torre, i solai e gli elementi verticali come silos e colonne. Questi grafici sono fondamentali per comprendere le distribuzioni delle sollecitazioni e per identificare eventuali punti critici o necessità di rinforzo.
Conclusione
In conclusione, l’edificio silos di Algen, analizzato secondo le diverse azioni esterne e i criteri di Stato Limite Ultimo (SLU), risulta conforme alle normative vigenti e sicuro per l’uso previsto come hotel.


Analisi completa della struttura dell’edificio secondo i carichi allo Stato Limite Ultimo (SLU).
Si nota una deformazione massima nella parte sommitale della torre, con un valore pari a 3,79 mm.






Analisi parziale della struttura dell’edificio, considerando i muri dell’edificio secondo i carichi allo Stato Limite Ultimo (SLU).
Si nota una deformazione massima nella parte sommitale, con un valore pari a 3,79 mm.
Analisi parziale della struttura dell’edificio, considerando i solai dell’edificio secondo i carichi allo Stato Limite Ultimo (SLU).
Si nota una deformazione massima nel solaio al piano ultimo, con un valore pari a 3,79 mm.
Analisi parziale della struttura dell’edificio, considerando le colonne e la struttura a cilindri/silos dell’edificio secondo i carichi allo Stato Limite Ultimo (SLU).
Si nota una deformazione massima nel solaio al piano ultimo, con un valore pari a 3,79 mm.





Analisi completa della struttura dell’edificio secondo il carico neve. in direzione verticale, previsto nella zona climatica di Malmo (Svezia | BFS 2013:10 EKS 9) come descritto dalla normativa europea (EN 19911-3), pari a 1 kN/m2.
Si nota una deformazione massima sul lato corto posto a sud-ovest, con un valore pari a 9,19 mm.
Analisi completa della struttura dell’edificio secondo il carico vento, in direzione orizzontale (X, o da nord-ovest), previsto dall’Eurocode-1 (2005), con velocità pari a 26 m/s.
Si nota una deformazione massima sul lato corto posto a sud-ovest, con un valore pari a 9,21 mm.

Analisi completa della struttura dell’edificio secondo il carico vento, in direzione orizzontale (Y, o da sud-ovest), previsto dall’Eurocode-1 (2005), con velocità pari a 26 m/s. Si nota una deformazione massima nella parte sommitale della torre, con un valore pari a 6,55 mm.
Per quanto riguarda i sistemi di miglioramento alla piccola scala adottati sui silos oggetto di progetto Algen e Korallen, si sono adottate diverse tecnologie di coibentazione con l’obiettivo di migliorare l’efficienza energetica e preservare le strutture esistenti.
In particolare sui due silos circolari l’intervento di coibentazione di chiusure opache verticali e orizzontali risulta il medesimo, tuttavia l’intervento di progettazione ad hoc per i due edifici varia considerando le esigenze funzionali differenti. In dettaglio si sono effettuati dunque disegni tecnici su uno dei due silos circolari oggetto di studio, Korallen, mentre per il complesso di silos Algen1 si è preso in esame nel particolare costruttivo. Di seguito, si descrivono in dettaglio gli interventi effettuati sul silos Algen.
Il silos Algen, denominato “Algen cubo” per la sua forma cubica, presenta una maglia di pilastri e travi in calcestruzzo armato visibili anche in facciata. L’intervento di rigenerazione si è focalizzato sull’inserimento di un nuovo pacchetto coibentante all’interno di questa maglia strutturale, migliorando l’efficienza energetica dell’edificio.
Pacchetto di chiusura opaca verticale (sp: 254 mm)
• Doppia lastra in gesso rivestito: sp. 12+12 mm
• Intercapedine in lana di roccia: sp. 30 mm, λ = 0,03 W/mK, M = 100,0 kg/m³
• Pannello in legno X-LAM: sp. 100 mm, λ = 0,08 W/mK, M = 20,0 kg/m²
• Guaina fonoisolante
• Intercapedine in lana di roccia in doppio strato: sp. 100 mm, λ = 0,03 W/mK, M = 100,0 kg/m³
• Montante in acciaio inox 18-8-3 o AISI 316: sp. 3 mm
• Pannello di rivestimento in alluminio (ALUCOBOND® PLUS): sp. 4 mm, M = 7,6 kg/m², λ = 0,44 W/mK, U = 5,58 W/m²K, RAL 7004
Chiusure trasparenti verticali
Porte finestre: nei punti dove erano presenti i balconi di attracco dei ponteggi per lo scarico merci. Finestre: nei restanti moduli.
• Vetrocamera con gas argon, LOWE: sp. 3.3.1. - 16 - 6.6.1
• Telaio mobile in legno con apertura a battente: sp. 60 mm, RAL 101
Interventi sui pacchetti di chiusura opachi orizzontali
Il solaio, in ottime condizioni manutentive ma allo stato grezzo, è stato integrato con ulteriori strati impiantistici:
• Pavimentazione in gres porcellanato 60x60 cm: sp. 9 mm, M = 21,0 kg/m², RAL 7006
• Massetto fluido premiscelato con solfati, fluidificanti e inerti:
[19] Gli interventi progettuali sui silos circolari dei complessi di Algen e Korallen rispecchiano due approcci differenti: su Algen (funzione hotel) si prevede di intervenire maggiormente sulla facciata con bucature che garantiscano una illuminazione e aerazione adeguata alle camere; su Korallen (funzione prevalete biblioteca) si prevede un’intervento consistente sull’interno con svuotamenti del calcestruzoo armato al fine di creare spazi pubblici ampi e confortevoli agli utenti.
Questa differenza di approccio non implica modifiche rilevanti riguardo le scelte tecnologiche sui due silos circolari perciò all’interno del modulo di tecnologie si analizza specificatamente il particolare di Korallen.


(76) In alto. Schemi approcci di intervento per i silos circolari oggetto di studio
sp. 20 mm, ρ = 36 kg/m³
• Impianto radiante a pavimento: sp. 40 mm, ρ = 30 kg/m³
• Tappetino anticalpestio in polietilene reticolato espanso e fibra agugliata: sp. 0,3 mm, M = 0,95 kg/m²
• Sottofondo in argilla espansa con impianti: sp. 90 mm, ρ = 380 kg/m³
• Barriera al vapore in poliestere PE: sp. 0,2 mm, ρ = 94 kg/m³
• Solaio strutturale in c.a. (C40/50; B450C): sp. 300 mm, ρ = 2500 kg/m³
• Controsoffitto per impianti: sp. 400 mm
Pacchetto di chiusura opaca orizzonale controterra
• Pavimentazione in gres porcellanato 60x60 cm: sp. 9 mm, M = 21,0 kg/m², RAL 7006
• Massetto fluido premiscelato con solfati, fluidificanti e inerti: sp. 20 mm, ρ = 36 kg/m³
• Impianto radiante: sp. 40 mm, ρ = 30 kg/m³
• Tappetino anticalpestio in polietilene reticolato espanso e fibra agugliata: sp. 0,3 mm, M = 0,95 kg/m²
• Sottofondo in argilla espansa con impianti: sp. 90 mm, ρ = 380 kg/m³
• Barriera al vapore in poliestere PE: sp. 0,2 mm, ρ = 94 kg/m³
• Pannello isolante termico rigido in lana di roccia: sp. 100 mm, ρ = 110 kg/m³
• Platea strutturale in c.a. (C40/50; B450C): sp. 300 mm, ρ = 2500 kg/m³
• Magrone: sp. 110 mm, ρ = 150 kg/m³ Pacchetto di chiusura opaca orizzontale in copertura
• Per la copertura, accessibile solo per fini manutentivi della facciata, sono stati inseriti i seguenti strati:
• Pavimentazione in gres porcellanato: sp. 20 mm, RAL 9006
• Supporto per pavimento galleggiante “Arkimede”: sp. 35-60 mm
• Guaina impermeabilizzante bituminosa con film in PE: sp. 4 mm, M = 8 kg/m²
• Massetto di pendenza in sabbia e cemento: sp. max 200 mm, ρ = 1250 kg/m³
• Guaina impermeabilizzante bituminosa con film in PE: sp. 0,9 mm, M = 8 kg/m²
• Pannello isolante termo-acustico rigido in lana di roccia: sp. 100 mm, ρ = 110 kg/m³
• Barriera al vapore bituminosa in poliestere PP: sp. 0,9 mm, ρ = 778 kg/m³
• Solaio strutturale in c.a. (C45/55; B450C): sp. 300 mm, ρ = 2500 kg/m³
• Controsoffitto per impianti: sp. 400 mm
L’intervento sul silos Algen cubo ha puntato a migliorare l’efficienza energetica e a preservare la struttura esistente a telaio. Questo ha comportato l’implementazione di pacchetti coibentanti specifici per le facciate, i solai e le coperture, garantendo un significativo incremento della performance energetica e un miglior comfort interno, oltre a mantenere l’integrità strutturale e l’estetica originale dell’edificio.
L’intervento sui silos circolari, con particolare attenzione al silos Korallen, prevede una serie di misure tecnologiche avanzate e dettagliate per migliorare l’efficienza energetica, la funzionalità e l’estetica dell’edificio. Di seguito, vengono descritti i vari interventi previsti.
Pacchetto di chiusura opaca verticale
La chiusura opaca verticale del silos Korallen mantiene il calcestruzzo preesistente a vista, protetto da un intonaco. Il pacchetto ha uno spessore totale di 430 mm e include:
• Intonaco di rivestimento: spessore 15 mm
• Parete strutturale in c.a.: spessore 200 mm, ρ = 2500 kg/m³
• Pannello isolante termico rigido in lana di roccia: spessore 200 mm, ρ = 70 kg/m³
• Lastra in gesso rivestito: spessore 15 mm
Chiusure trasparenti verticali
Per le chiusure verticali trasparenti, si prevede l’installazione di serramenti tipo oblò entro carotature nel calcestruzzo, composti da:
• Vetrocamera con gas argon, LOWE: spessore 3.3.2. - 143.3.2
• Telaio ferrofinestra in acciaio INOX calandrato: spessore 40 mm, RAL 9004
• Solai Interni
Interventi sui pacchetti di chiusura opachi orizzontali
I solai interni del silos Korallen sono inseriti all’interno dei cilindri e costituiti da:
• Pavimentazione in gres porcellanato 60x60 cm: spessore 9 mm, M = 21,0 kg/m², RAL 7047
• Massetto fluido premiscelato con solfati, fluidificanti e inerti: spessore 30 mm, ρ = 36 kg/m³
• Impianto radiante: spessore 40 mm, ρ = 30 kg/m³
• Tappetino anticalpestio in polietilene reticolato espanso e fibra agugliata: spessore 0,3 mm, M = 0,95 kg/m²
• Sottofondo in argilla espansa con impianti: spessore 100 mm, ρ = 380 kg/m³
• Rete elettrosaldata in acciaio: Φ spessore 5 mm
• Lamiera grecata in acciaio: altezza 60 mm
• Controsoffitto per impianti: spessore 400 mm
I solai sono fissati alle pareti con cerchiature ad hoc, approfondite nella parte strutturale della relazione.
Pacchetto di chiusura opaca orizzonale contro terra
Per la chiusura opaca orizzontale contro terra, il pacchetto prevede:
• Pavimentazione in gres porcellanato 60x60 cm: spessore 9 mm, M = 21,0 kg/m², RAL 7047
• Sottofondo in argilla espansa con impianti: spessore 130 mm, ρ = 380 kg/m³
• Barriera al vapore in poliestere PE: spessore 0,2 mm, ρ = 94 kg/m³
• Pannello isolante termico rigido in lana di roccia: spessore 70 mm, ρ = 110 kg/m³
• Platea strutturale in c.a. (C40/50; B450C): spessore 520 mm, ρ = 2500 kg/m³
• Magrone: spessore 200 mm, ρ = 150 kg/m³
Copertura
La copertura del silos Korallen, accessibile solo per fini manutentivi, include:
• Pavimentazione in gres porcellanato: spessore 20 mm, RAL 9006
• Supporto per pavimento galleggiante “Arkimede”: spessore 35-120 mm
• Guaina impermeabilizzante bituminosa con film in PE: spessore 4 mm, M = 8 kg/m²
• Massetto di pendenza in sabbia e cemento: spessore massimo 200 mm, ρ = 1250 kg/m³
• Guaina impermeabilizzante bituminosa con film in PE: spessore 0,9 mm, M = 8 kg/m²
• Pannello isolante termo-acustico rigido in lana di roccia: spessore 100 mm, ρ = 110 kg/m³
• Barriera al vapore bituminosa in poliestere PP: spessore 0,9 mm, ρ = 778 kg/m³
• Solaio strutturale in c.a. (C45/55; B450C): spessore 150 mm, ρ = 2500 kg/m³
• Controsoffitto per impianti: spessore 400 mm
L’ultimo piano sarà chiuso da un box in vetro con:
• Vetrocamera LIGHTPANEL (LEDscreen): spessore 3.3.1. - 16 - 6.6.1
• Telaio in acciaio INOX: spessore 60 mm, RAL 9004
L’intervento sul silos Korallen mira a preservare l’integrità strutturale e l’estetica originale esternamente, migliorando nel contempo l’efficienza energetica e il comfort abitativo. Attraverso l’uso di materiali isolanti avanzati e l’implementazione di serramenti efficienti, il progetto intende creare un ambiente vivibile e confortevole per gli utenti.
[20] La posizione degli edifici e lo spazio a ìperto nel contesto limitrofo garantisce una facilità di posa di piattaforme elevatrici per la manutenzione delle facciate.



La nostra relazione ha per oggetto l’esecuzione dei lavori propedeutici alla realizzazione di un impianto di climatizzazione da inserire all’interno di n. 2 silos rigenerati e rifunzionalizzati.
L’intervento di rigenerazione vuole trattare due edifici sulla penisola di Nyhamnen limitrofa al centro città di Malmö in Svezia, gli edifici sono in uno stato di abbandono e non presentano impianti di climatizzazione funzionanti se non qualche macchina per il trasporto di grano rimasta in sito.
Nell’ottica di una rifunzionalizzazione delle strutture in oggetto, un attento progetto impiantistico, permette l’ottimizzazione energetica dell’edificio al fine di incidere positivamente sull’abbassamento dei consumi energetici in gioco.
La descrizione tecnica, di seguito riportata, ha lo scopo di illustrare le soluzioni impiantistiche proposte. La posizione, il tipo e la quantità dei componenti da realizzare sono validi e coordinati con l’attuazione delle altre opere previste di progetto.
Descrizione degli edifici oggetto di studio in ambito impiantistico
La penisola di Nyhamnen presenta più edifici, ex silos abbandonati, tuttavia, con la presente relazione impiantistica si approfondisce il progetto di rigenerazione di due strutture che presentano conformazioni simili agli altri non trattati.
All’interno del complesso di silos Korallen si prende in esame il silos circolare [1] al centro dell’area di progetto, mentre per quanto riguarda il complesso di silos Algen si prende in esame il silos dalla morfologia squadrata [2]. Le due conformazioni morfologiche diverse progettualmente spingono a due rifunzionalizzazioni e definizioni impiantistiche differenti.
Le funzioni principali inserite sono:
• silos [1] biblioteca e aree pubbliche;
• silos [2] studentato e negozi.
In particolare l’edificio denominato come Korallen è disposto su n. 6 piani fuori terra, al piano terra è presente uno spazio espositivo e aree riciclo. Ai piani superiori vi sono aule studio, auditorium, biblioteca e laboratori. All’ultimo piano un’area bar.
Il secondo edificio denominato Algen Cubo è più basso in altezza, è disposto su 5 livelli fuori terra, al piano terra sono presenti diverse aree comuni a disposizione degli studenti più negozi e uffici direzionali, ai piani superiori gli appartamenti.
Attualmente, i due silos dismessi non sono dotati di impianti rilevanti tranne che per le macchine usate per il trasporto, il trattamento e lo stoccaggio del grano. L’impianto principale è formato da un sistema di trasporto meccanizzato che permette di trasportare il grano dall’esterno ai silos stessi e da un sistema di stoccaggio che
garantisce la conservazione del grano in condizioni ottimali.
Le macchine presenti includono nastri trasportatori e pompe per il movimento del grano, sistemi di pulizia (per la rimozione di impurità) e dispositivi di ventilazione per mantenere il grano asciutto. All’interno dei silos, non ci sono sistemi di climatizzazione o riscaldamento, poiché la funzione principale degli impianti è esclusivamente legata alla gestione del grano.
L’assenza di impianti riduce di molto i costi operativi e semplifica la manutenzione, ma implica anche che gli spazi non sono attualmente idonei per altri usi senza significative modifiche e implementazioni impiantistiche.
I lavori progettuali da eseguire si possono sintetizzare nel modo seguente:
• per entrambi i silos, nuovo impianto di trattamento aria UTA (Unità di Trattamento Aria), per garantire un’efficace ventilazione e controllo dell’umidità;
• sistemi di climatizzazione invernale ad alta efficienza con pompa di calore acqua-acqua, sfruttando il calore della falda acquifera per produrre energia utile per alimentare il sistema di riscaldamento a pavimento;
• installazione di pannelli fotovoltaici per la produzione di energia rinnovabile e la riduzione dell’impatto ambientale;
• implementazione degli impianti igienico-sanitari moderni adeguati alle normative vigenti.
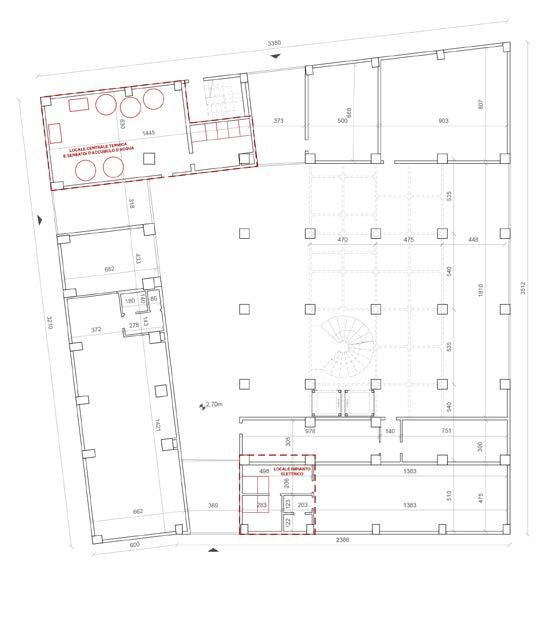
Per il funzionamento degli impianti suddetti, si prevede la realizzazione di locali termici che serviranno ad entrambe le strutture e saranno poste in posizioni strategiche, sia in funzione di una migliore collocazione rispetto alla zona servita che rispetto alla disponibilità dei locali tecnici necessari per la specifica utenza.

(79) A sinistra. Schema di collocazione HVAC equipment rooms - UTA sulle coperture di Algen e Korallen.
L’impianto dovrà essere realizzato in modo compiuto e in conformità alle leggi, norme, prescrizioni e regolamenti emanati dagli Enti ed Autorità riconosciuti a livello nazionale e locale.
Le normative prese in considerazione sono quelle vigenti nel territorio svedese propedeutiche alla corretta esecuzione delle opere di ristrutturazione impiantistica e non.
1. Boverkets Byggregler (BBR): norme edilizie svedesi emesse dall’Agenzia Nazionale per l’Edilizia (Boverket), e riguardano: sicurezza strutturale; prevenzione incendi; salute e igiene; efficienza energetica protezione ambientale.
2. PBL - Plan- och bygglagen (Legge sulla Pianificazione e l’Edilizia) stabilisce le regole fondamentali per la pianificazione urbanistica e la costruzione in Svezia. All’interno disposizioni inerenti: permessi di costruzione e ristrutturazione; conformità alle normative edilizie; controlli di qualità durante la costruzione e la ristrutturazione.
3. AMA Hus sistema di specifiche tecniche standardizzate utilizzate nella progettazione e costruzione edilizia. Al suo interno vi sono linee guida dettagliate sui metodi di costruzione, materiali e tecniche, comprese quelle per edifici in calcestruzzo armato.
4. Miljöbalken (Codice Ambientale) contiene disposizioni che riguardano la protezione dell’ambiente durante le attività di costruzione e ristrutturazione. Esso comprende norme su gestione dei rifiuti da costruzione; controllo dell’inquinamento; uso sostenibile delle risorse.
5. Sik (Svensk Byggtjänst) linee guida che forniscono indicazioni pratiche sulla realizzazione degli interventi edilizi, comprese le ristrutturazioni degli edifici in calcestruzzo armato, con dettagli su riparazione e rinforzo delle strutture in c.a. (isolamento termico e impermeabilizzazione-miglioramenti dell’efficienza energetica).
6. EKS (Eurokod Complementary Rules) indicano le modalità di applicazione degli Eurocodici in Svezia, dando integrazioni e chiarimenti per garantire che le strutture rispettino le normative europee in ambito di sicurezza e prestazioni.
7. Norme Locali, oltre alle normative nazionali, è importante considerare le norme locali che possono includere requisiti specifici per determinati tipi di interventi o per edifici situati in zone particolari.
Per aspetti di progettazione impiantistica di sicurezza e di efficienza energetica sono state prese in considerazione le principali norme europee pertinenti, in particolare la EN15251 che descrive i parametri ambientali per la progettazione e la valutazione della prestazione energetica degli edifici, in conformità con tale norma si specificano i dati per la qualità dell’aria interna, l’illuminazione, il rumore ed altre condizioni ambientali interne da considerare durante la ristrutturazione.
[21] Considerando la posizione del progetto si sono considerati gli aspetti qualitativi ambientali e prestazionali valutati dagli standard tecnici sviluppati dal comitato europeo nelle Norme EN.
Gli impianti sono stati progettati per rispondere alle necessità specifiche delle strutture, assicurando prestazioni ottimali e durature. Aspetto fondamentale del progetto è il risparmio energetico, valutato attraverso l’integrazione degli impianti con le strutture dell’edificio coniugate con le tendenze attuali della tecnologia. L’impiego di fonti rinnovabili, come i pannelli fotovoltaici e la pompa di calore acqua-acqua, sarà un punto forza per contribuire alla riduzione dell’impatto ambientale e dei costi energetici.
Per il continuo e ottimale funzionamento degli impianti, sono stati considerati materiali di alta qualità e aggiornate norme tecniche. Gli impianti sono stati selezionati per facilitare la manutenzione ordinaria e straordinaria, assicurando che il loro funzionamento non venga interrotto e sia efficiente.
Particolare attenzione inoltre è stata rivolta all’involucro edilizio dei due silos, in un’ottica di risparmio energetico e sostenibilità. In un contesto climatico freddo come quello del nord Europa, è cruciale isolare adeguatamente l’edificio per minimizzare le dispersioni termiche e massimizzare l’efficienza energetica. Per questo motivo, nei due silos verranno utilizzati materiali isolanti ad alte prestazioni come la lana di roccia e isolanti poliuretanici.
L’uso di questi materiali contribuirà a ridurre le dispersioni termiche attraverso l’involucro edilizio, migliorando l’efficienza energetica complessiva degli edifici. Inoltre, l’isolamento termico ridurrà i costi di riscaldamento durante i rigidi inverni di Malmö, migliorando il comfort degli utenti.
Queste scelte progettuali, finalizzate al benessere ambientale e al risparmio energetico, rendono gli impianti tecnologicamente ed energeticamente avanzati, offrendo una grande flessibilità d’uso.
Nel progetto sono stati adottati diversi accorgimenti per il risparmio energetico, considerato fondamentale in un contesto climatico freddo come quello svedese. I due silos, attualmente dismessi, presentano caratteristiche strutturali diverse che hanno richiesto soluzioni specifiche per l’isolamento termico e la gestione dei ponti termici.
Nel caso del silos circolare [Korallen], abbiamo optato per un isolamento interno al fine di preservare la facciata esterna, intervenendo solo per una pulitura e messa a nuovo.
L’isolamento interno è stato realizzato con lana di roccia, un materiale con una trasmittanza termica (λ) di circa 0.03 W/mK, che offre eccellenti proprietà isolanti e acustiche, oltre a essere resistente al fuoco. Un punto critico è rappresentato dal giunto chiusura opaca verticale-chiusura opaca orizzontale dove l’isolamento si interrompe.
Per minimizzare il ponte termico, abbiamo risvoltato la lana di roccia sulla superficie inferiore del solaio. Inoltre, il pacchetto di
solaio è stato progettato con uno strato di isolamento che ospita il sistema di riscaldamento a pavimento, contribuendo ulteriormente a risolvere il ponte termico e migliorando l’efficienza energetica complessiva dell’edificio.
Nel caso del silos squadrato [Algen], la situazione è apparsa più semplice grazie alla struttura a telaio in calcestruzzo armato, ciò ha permesso di creare un nuovo pacchetto di facciata, chiudendo efficacemente i ponti termici principali.
I punti più critici di ponte termico sono stati individuati in corrispondenza del nodo tra la nuova facciata e il balcone preesistente, che rappresenta una discontinuità. Per minimizzare questo ponte termico, è stato posizionato un isolamento esterno in lana di roccia. Inoltre, è stato installato un serramento in legno con vetrocamera e camera ad argon, che migliora ulteriormente le prestazioni termiche dell’involucro.
A livello impiantistico, entrambi i silos sfruttano fonti rinnovabili. Sulla copertura sono stati installati pannelli fotovoltaici, sebbene in quantità minima, per contribuire alla produzione di energia elettrica. Inoltre, grazie alla presenza della falda acquifera, sono state installate pompe di calore acqua-acqua. Le pompe di calore acqua-acqua sfruttano il calore presente nella falda acquifera per produrre energia utile. Questo tipo di sistema è particolarmente efficiente in contesti climatici freddi, poiché la temperatura dell’acqua di falda è relativamente stabile e superiore a quella dell’aria esterna durante l’inverno.
Il funzionamento delle pompe di calore acqua-acqua si basa su un ciclo frigorifero inverso:
1. Assorbimento del calore: L’acqua di falda, che ha una temperatura più alta rispetto all’aria esterna in inverno, viene pompata attraverso uno scambiatore di calore, dove cede calore al fluido refrigerante della pompa di calore.
2. Compressione: Il fluido refrigerante, riscaldato dall’acqua di falda, viene compresso da un compressore, aumentando ulteriormente la sua temperatura.
3. Condensazione: Il fluido refrigerante ad alta temperatura passa attraverso un secondo scambiatore di calore, dove cede il calore accumulato al circuito di riscaldamento dell’edificio, riscaldando l’acqua per il riscaldamento a pavimento e l’acqua calda sanitaria.
4. Espansione: Il fluido refrigerante, ora raffreddato, viene espanso per ridurre la sua pressione e temperatura, pronto per iniziare un nuovo ciclo.
Questo sistema garantisce un’elevata efficienza energetica, con un coefficiente di prestazione (COP) che può superare il 4, significando che per ogni unità di energia elettrica consumata, la pompa di calore fornisce quattro unità di energia termica.
Questi accorgimenti progettuali, coniugati alla scelta di materiali isolanti di alta qualità e all’uso di tecnologie impiantistiche avanzate, mirano a ridurre significativamente il consumo energetico degli edifici.
Inoltre, l’adozione di queste soluzioni innovative non solo contribuisce a un significativo abbattimento delle emissioni di CO2, ma favorisce anche un miglioramento del comfort abitativo, garantendo ambienti interni salubri e ben temperati per tutto l’anno.
[22] La scelta progettuale di utilizzare pompe di calore acqua-acqua è motivata dalla presenza di una falda acquifera superficiale, dovuta alla vicinanza del sito al mare.
Questo contesto ambientale rende conveniente sfruttare le risorse idriche disponibili per migliorare l’efficienza energetica dell’impianto, riducendo al contempo i costi operativi e l’impatto ambientale.

(80) In alto. Schema di collocazione Pompe di calore piani di Algen e Korallen.
Il progetto in entrambi gli edifici analizzati vede un sistema di climatizzazione misto, sfruttando un’unità di trattamento dell’aria e pompe di calore acqua-acqua senza raffrescamento. La pompa di calore acqua-acqua, illustrata precedentemente, permetterà di riscaldare le camere e le aree comuni nel silos squadrato [Algen] e le aree pubbliche del silos circolare [Korallen].
Il riscaldamento a pavimento offre numerosi vantaggi, tra cui una distribuzione uniforme del calore, miglior comfort termico e risparmio energetico. Il sistema funziona facendo circolare acqua calda a bassa temperatura (generalmente tra 30°C e 45°C) attraverso una rete di tubazioni posizionate sotto il pavimento. Questo metodo di riscaldamento consente di mantenere una temperatura ambiente confortevole con una superficie pavimentata calda al tatto, riducendo al minimo i punti freddi e massimizzando l’efficienza energetica.
La temperatura ottimale per il riscaldamento a pavimento in un ambiente residenziale è di circa 21-24°C, con il pavimento che raggiunge temperature tra 25-29°C. Questo sistema contribuisce a ridurre i consumi energetici grazie alla bassa temperatura di esercizio dell’acqua, e garantisce un comfort termico elevato senza la necessità di radiatori visibili, liberando spazio utile nelle stanze.
Vi è inoltre previsto l’installazione di un sistema UTA in entrambi i silos, posizionandolo sui piani più alti degli edifici per prelevare aria pulita. L’Unità di Trattamento Aria risulta un componente chiave per la ventilazione e il controllo del clima interno, in grado di garantire aria fresca, pulita e adeguatamente trattata in tutti gli ambienti.
Il funzionamento dell’UTA prevede diversi passaggi:
1. Prelevamento dell’aria esterna: l’aria fresca viene prelevata dall’esterno attraverso prese d’aria situate sui piani alti, lontano dalle fonti di inquinamento.
2. Filtrazione: L’aria prelevata viene filtrata per rimuovere polveri, pollini e altre particelle contaminanti, migliorando la qualità dell’aria interna.
3. Riscaldamento e/o Raffreddamento: anche se il raffrescamento non è previsto in questo progetto, l’UTA può riscaldare l’aria in inverno utilizzando l’energia fornita dalla pompa di calore acqua-acqua. In tal modo, l’aria immessa negli ambienti è sempre a una temperatura confortevole.
4. Umidificazione e Deumidificazione: a seconda delle esigenze, l’UTA può aggiungere o rimuovere umidità dall’aria, mantenendo i livelli di umidità interna ottimali.
5. Distribuzione: l’aria trattata viene poi distribuita nei vari ambienti attraverso un sistema di canalizzazioni, garantendo un ricambio d’aria costante e la rimozione di aria viziata.
[23] Collocare le UTA sui piani più alti consente un prelievo di aria esterna più pulita e meno contaminata. Inoltre, la distribuzione dell’aria avviene per caduta, riducendo il consumo energetico necessario per la ventilazione forzata.
La combinazione di un sistema di riscaldamento a pavimento efficiente e l’installazione di unità di trattamento aria garantisce un elevato comfort termico e una qualità dell’aria ottimale all’interno degli edifici. La scelta di questi impianti è stata dettata dalle condizioni climatiche di Malmö e dall’esigenza di creare un ambiente interno salubre e confortevole, con un’attenzione particolare al risparmio energetico e alla sostenibilità ambientale.




Terra LEGNDA:


Canali primari di mandata
Canali primari di ripresa


Canali di mandata al piano

Canali di ripresa al piano



Terminale di ripresa
Terminale di mandata
Per garantire un adeguato comfort ambientale e l’efficienza energetica dei nuovi spazi, è fondamentale intervenire sull’involucro esterno e implementare un sistema impiantistico avanzato per il trattamento dell’aria e il riscaldamento degli ambienti.
Gli interventi di riqualificazione dell’involucro esterno risultano essenziali per ridurre al minimo i fabbisogni energetici della struttura in un ottica di risparmio energetico, si prevede dunque per i due silos:
• Miglioramento delle prestazioni termiche delle superfici opache e trasparenti.
• Installazione di nuovi materiali isolanti per ridurre le dispersioni termiche.
• Implementazione di finestre e vetrate ad alte prestazioni.
Per i due differenti interventi si sono analizzate specificatamente le stratigrafie a diretto contatto con l’esterno, sia prima dell’intervento di coibentazione che dopo.
Per entrambe le strutture i dati sullo stato di progetto utilizzati sono: Ti = 20°C; URi = 50%; Te = -5°C; URe = 75%.
Nel contesto del silos circolare Korallen, destinato a diventare un edificio pubblico multifunzionale, gli interventi sull’involucro esterno mirano a trasformare l’edificio abbandonato in un ambiente energeticamente efficiente e confortevole. Questo richiede isolamento termico delle pareti esterne: utilizzo di materiali ad alta efficienza termica quali la lana di roccia e isolanti più compatti come i poliuretanici per ridurre le perdite di calore attraverso le superfici opache.
Le stratigrafie alle pagine successive mostrano l’implementazione e i risultati sulla trasmittanza e condense interstiziali ottenute dopo l’intervento di coibentazione.
Per il silos Algen Cubo che sarà convertito in uno studentato, gli interventi includono la rimozione dei tamponamenti di chiusura verticale opaca esistenti e l’implementazione di un nuovo pacchetto di facciata che garantisce una ridotta trasmittanza unitaria U [W/ m²K] oltre all’isolamento in copertura e al solaio del piano terra. Si prevede una chiusura opaca verticale con strato strutturale in X-lam, isolamento termico in lana di roccia e pannelli alucobond in facciata.
Analizzati i nuovi pacchetti di chiusura opaca verticale e orizzontale, si sono effettuati calcolo specifici caso per caso al fine di ottenere la trasmittanza termica di ogni nuova soluzione stratigrafica.
I risultati risultano ottimi infatti in ogni caso si minimizza la trasmittanza rispetto alla preesistenza. Ulteriore analisi effettuata riguarda la verifica della condensa interstiziale tramite la realizzazione di diagrammi di glaser per ogni soluzione stratigrafica adottata. I diagrammi di Glaser sono stati utilizzati per analizzare il comportamento igrotermico delle strutture, in particolare per valutare la distribuzione della temperatura e del vapore acqueo attraverso i vari strati dei componenti edilizi adottati.
Questi diagrammi permettono di visualizzare e verificare se una struttura è adeguatamente progettata per evitare problemi di condensazione interstiziale e per minimizzare la trasmittanza termica, ovvero il trasferimento di calore attraverso la parete.
Nei risultati ottenuti, è emerso che la coibentazione prevista da progetto è stata efficace nel ridurre al minimo la trasmittanza termica in entrambi gli interventi di rigenerazione, Algen e Korallen. Grazie all’utilizzo dei diagrammi di Glaser, è stato possibile dimostrare che la stratificazione dei materiali isolanti è stata ottimizzata per impedire la formazione di condensa interstiziale all’interno delle strutture edilizie.
In dettaglio, l’analisi dei diagrammi di Glaser ha evidenziato che la coibentazione progettata permette di mantenere il punto di rugiada al di fuori delle zone critiche della struttura, prevenendo così qualsiasi rischio di accumulo di umidità che potrebbe compromettere l’integrità dei materiali e la qualità dell’ambiente interno.
La corretta gestione delle temperature e del flusso di vapore acqueo assicura che gli edifici rigenerati siano non solo energeticamente efficienti, ma anche durevoli e salubri per gli occupanti.
In sintesi, l’impiego dei diagrammi di Glaser ha confermato l’efficacia delle soluzioni di coibentazione proposte, garantendo una significativa riduzione della trasmittanza termica e prevenendo la formazione di condensa interstiziale, tali risultati risultano dunque fondamentali per il successo degli interventi di rigenerazione dei due silos.
Infine, è stato effettuato il calcolo della trasmittanza termica non solo per gli elementi opachi delle strutture edilizie, ma anche per quelli trasparenti.
Per quanto riguarda quest’ultima categoria, sono stati presi in esame in particolare i materiali e le tecnologie utilizzate: la trasmittanza termica delle componenti di Algen in legno e vetrocamera con camera ad argon è stata analizzata nel dettaglio, così come quella delle componenti trasparenti di Korallen, progettate in alluminio e vetrocamera con argon. Questo processo ha consentito una valutazione dettagliata e precisa delle perdite termiche attraverso tutte le superfici dell’edificio, fornendo dati essenziali per l’ottimizzazione energetica complessiva.
La determinazione della trasmittanza termica per le superfici trasparenti, come finestre e vetrate, è risultata fondamentale poiché tali aree risultano spesso punti critici per la dispersione di calore. Inoltre, grazie a questa analisi, è stato possibile calcolare con accuratezza il carico termico invernale dell’edificio.
Tale calcolo è essenziale per il corretto posizionamento e dimensionamento delle pompe di calore, che devono essere adeguate a garantire un’efficienza ottimale nel riscaldamento degli spazi interni durante i mesi più freddi.

01_Prima dell’intervento di coibentazione

02_Prima dell’intervento di coibentazione

03_Prima


01_Dopo l’intervento di coibentazione

02_Dopo l’intervento di coibentazione

(83) Prima e Dopo stratigrafie a contatto con l’esterno Korallen.
(84) A destra. Tabelle utilizzate per il calcolo dell’U e della condensa interstiziale Korallen
7-Doppia
8-Finitura
Rse - Resistenza
KORALLEN: chiusura opaca controterra (01)
Prima dell'intervento di coibentazione
Resistenza Termica Totale [m²K/W]
Trasmittanza Unitaria [W/m²K] Rtot U
Dopo l'intervento di coibentazione
Resistenza Termica Totale [m²K/W]
Rtot
Trasmittanza Unitaria [W/m²K] U
KORALLEN: chiusura opaca copertura (02)
Prima dell'intervento di coibentazione
Resistenza Termica Totale [m²K/W] Rtot
Trasmittanza Unitaria [W/m²K] U
Dopo l'intervento di coibentazione
Resistenza Termica Totale [m²K/W] Rtot
Trasmittanza Unitaria [W/m²K]

04_Prima dell’intervento di coibentazione

05_Prima dell’intervento di coibentazione



04_Dopo l’intervento di coibentazione

05_Dopo l’intervento di coibentazione

(85) Prima e Dopo stratigrafie a contatto con l’esterno Algen.
(86) A destra. Tabelle utilizzate per il calcolo dell’U e della condensa
3-Barriera
4-Sottofondo
5-Isolamento
6-Strato
6-Strato
ALGEN: chiusura opaca controterra (04)
ALGEN: chiusura opaca controterra (04)
Prima dell'intervento di coibentazione
Prima dell'intervento di coibentazione
Resistenza Termica Totale [m²K/W] Rtot
Resistenza Termica Totale [m²K/W] Rtot
Trasmittanza Unitaria [W/m²K] U Dopo l'intervento di coibentazione
Trasmittanza Unitaria [W/m²K] U Dopo l'intervento di coibentazione
3-Solaio
4-Guaina
Resistenza Termica Totale [m²K/W] Rtot Trasmittanza Unitaria [W/m²K] U
Resistenza Termica Totale [m²K/W] Rtot
ALGEN: chiusura opaca copertura (05)
ALGEN: chiusura opaca copertura (05)
Prima dell'intervento di coibentazione
Prima dell'intervento di coibentazione
Resistenza Termica Totale [m²K/W] Rtot
Resistenza Termica Totale [m²K/W] Rtot
Trasmittanza Unitaria [W/m²K] U Dopo l'intervento di coibentazione
Trasmittanza Unitaria [W/m²K] U Dopo l'intervento di coibentazione
8-Doppia guaina impermeabilizzante
8-Doppia
Rse - Resistenza termica superficiale esterna [m²K/W]
Rse - Resistenza termica superficiale esterna [m²K/W]
9-Finitura superficiale flottante
Trasmittanza Unitaria [W/m²K] U Strato Spessore [m] λ design [W/mK] C
Resistenza Termica Totale [m²K/W]
Resistenza Termica Totale [m²K/W]
Trasmittanza Unitaria [W/m²K] U
ALGEN: chiusura opaca verticale (06)
Prima dell'intervento di coibentazione
ALGEN: chiusura opaca verticale (06) Prima dell'intervento di coibentazione
Rsi - Resistenza termica superficiale interna [m²K/W]
Rsi -
1-Intonacatura e tinteggiatura
2-Parete in c.a.
Rse - Resistenza termica superficiale esterna
I diagrammi di Glaser confermano l’efficacia delle soluzioni di coibentazione proposte, garantendo riduzione della trasmittanza termica e evitando formazione di condensa interstiziale. La verifica della condensa interstiziale risulta essenziale per garantire la buona efficacia dei pacchetti coibentati di progetto.
SERRAMENTO n. 1
Dimensioni
SERRAMENTO n. 2
Caratteristiche materiali
incidenza vetro su Uw
incidenza telaio su Uw
incidenza ponte termico distanziatore su Uw
Trasmittanza termica serramento
Trasmittanza termica serramento

SERRAMENTO n. 4
SERRAMENTO n. 2
incidenza vetro su Uw SERRAMENTO n. 3
incidenza
incidenza
SERRAMENTO n. 5
incidenza

incidenza telaio su Uw
incidenza ponte termico distanziatore su Uw
SERRAMENTO n. 6

n. 4
incidenza ponte termico distanziatore su Uw Trasmittanza termica serramento
1,60 W/m²K
n. 3
Dimensioni
u.m. Dimensioni
Area totale Aw 10,60 m²
Area vetro Ag 9,22 m²
Area telaio Af 1,38 m²
% telaio 0,13
Perimetro Vetro Lg 22,10 m Perimetro Vetro Caratteristiche materiali
Caratteristiche materiali
Vetrocamera con Argon Ug 1,20 W/m²K Vetrocamera con Argon Telaio in alluminio con taglio termico Uf 2,80 W/m²K
y g 0,08 W/mK
incidenza telaio su Uw
incidenza vetro su Uw
Ag Ug 11,06 W/K 66,3%
incidenza ponte termico distanziatore su Uw
Af·Uf 3,86 W/K
incidenza telaio su Uw
incidenza ponte termico distanziatore su Uw
incidenza vetro su Uw SERRAMENTO n. 6
incidenza
Trasmittanza termica serramento
incidenza

Trasmittanza termica serramento Uw 1,58 W/m²K
SERRAMENTO n. 5
Dimensioni
u.m. Dimensioni
Area
Area telaio Af 0,75 m²
% telaio 0,07
Perimetro Vetro Lg 14,70 m Perimetro Vetro Caratteristiche materiali
Caratteristiche materiali
Vetrocamera con Argon Ug 1,20 W/m²K
Vetrocamera con Argon Telaio in alluminio con taglio termico Uf 2,80 W/m²K Telaio in alluminio con taglio termico y g 0,08 W/mK Ag Ug 12,84 W/K
incidenza telaio su Uw
incidenza ponte termico distanziatore su Uw incidenza vetro su Uw
incidenza vetro su Uw
incidenza telaio su Uw
incidenza
Trasmittanza termica serramento
incidenza
Trasmittanza termica serramento Uw 1,41 W/m²K

incidenza telaio

SERRAMENTO n. 7
SERRAMENTO n. 8
incidenza vetro su Uw
incidenza telaio su Uw
incidenza ponte termico distanziatore su Uw
incidenza vetro su Uw
incidenza telaio su Uw
incidenza ponte termico distanziatore su Uw
Trasmittanza termica serramento Trasmittanza termica serramento
SERRAMENTO n. 9
Dimensioni Dimensioni

SERRAMENTO n. 10
Caratteristiche materiali
Caratteristiche materiali
vetro su Uw incidenza telaio su Uw
vetro su Uw
incidenza ponte termico distanziatore su Uw
incidenza vetro su Uw
incidenza telaio su Uw
incidenza ponte termico distanziatore su Uw
telaio su Uw
incidenza ponte termico distanziatore su Uw
Trasmittanza termica serramento
incidenza telaio su Uw incidenza telaio su Uw

incidenza ponte termico distanziatore su Uw
Trasmittanza termica serramento


Di fatto, il calcolo della trasmittanza termica nella progettazione delle componenti a contatto con l'esterno rappresenta un elemento cruciale per garantire l'efficacia degli interventi di rigenerazione dei silos Korallen e Algen. L'analisi approfondita delle trasmittanze termiche ha evidenziato una significativa riduzione delle dispersioni di calore rispetto allo stato preesistente, allineando i risultati con gli obiettivi di efficienza energetica previsti dal progetto.
L'isolamento termico, ottenuto attraverso l'utilizzo di materiali avanzati come la lana di roccia e i pannelli X-lam, ha consentito di migliorare notevolmente le prestazioni termiche delle superfici opache.Questo è stato particolarmente evidente nei nuovi pacchetti di facciata e nelle chiusure verticali e orizzontali implementate.
I risultati ottenuti, verificati tramite i diagrammi di Glaser, hanno dimostrato l'efficacia delle soluzioni adottate nel prevenire la formazione di condensa interstiziale, garantendo così la durabilità e l'integrità delle strutture edilizie.
Per quanto riguarda le superfici trasparenti, l'analisi della trasmittanza termica ha permesso di ottimizzare l'uso di vetrocamera con gas argon, sia per le componenti in legno di Algen che per quelle in alluminio di Korallen.
Questa scelta ha contribuito a ridurre ulteriormente le perdite termiche, affrontando efficacemente i punti critici rappresentati dalle finestre e dalle vetrate. L'intervento sull'involucro esterno, insieme alla corretta gestione delle temperature e del flusso di vapore acqueo, risulta essenziale per minimizzare i fabbisogni energetici e i carichi termici invernali, soprattutto in un contesto climatico come quello di Malmö, Svezia.
Le soluzioni studiate in una progettazione integrata, hanno fatto in modo che gli edifici rigenerati non solo rispettano i criteri di efficienza energetica, ma offrono anche un elevato comfort ambientale per gli utenti.
Il progetto di rigenerazione dei silos Korallen e Algen ha raggiunto con successo gli obiettivi prefissati, garantendo una significativa riduzione della trasmittanza termica degli elementi di chiusura opachi e buoni valori Uw.
n.



A seguito di un’analisi preliminare sul carico termico estivo necessario in un luogo prevalentemente freddo durante tutto l’anno come quello svedese, non è risultato necessario determinare un impianto di climatizzazione di raffrescamento per la stagione calda. I sistemi di coibentazione garantiscono una climatizzazione passiva degli ambienti interni mantenendo una temperatura interna intorno ai 20°C.
Per il calcolo del carico termico invernale necessario, per ogni edificio, si sono sfruttati le trasmittanze U di componenti opache e trasparenti moltiplicate per le aree di superfici disperdenti, differenza di temperatura di progetto e fattore di correzione
Qt = U*A*∆T*Ft
Il fattore di correzione considerato per tutti gli elementi disperdenti verso ambienti esterni è Ft = 1, mentre per gli elementi disperdenti verso il terreno, il fattore di correzione considerato è Ft = 0,45.
Dunque, entrando nel merito dei calcoli, è risultato necessario determinare le trasmittanze termiche (U) degli elementi opachi (pareti, tetto, pavimento contro terra) e degli elementi trasparenti (finestre, vetrate) per garantire il rispetto delle normative vigenti e l’efficienza energetica dei nuovi edifici.
I calcoli delle trasmittanze termiche hanno coinvolto:
1. Determinazione delle caratteristiche dei materiali: conducibilità termica (λ) e spessore di ciascun strato dei componenti dell’involucro.
2. Calcolo della trasmittanza termica degli elementi opachi, utilizzando la formula: U=∑(λidi)+Rsi+Rse1 (di è lo spessore di ciascun strato; λi è la conducibilità termica di ciascun strato; Rsi e Rse sono le resistenze termiche superficiali interna ed esterna).
3. Calcolo della trasmittanza termica degli elementi trasparenti, utilizzando la formula: U=(Ug*Ag+Uf*Af+Ψg*Lg)/Aw
Ottenuto il carico termico per trasmissione Qt si è proceduto calcolando il carico termico di ventilazione Qv dato dalla formula: 0,34*[Wh/(m³K)]*numero di ricambi orari [h^-1]*Volume netto[m³]*∆T[K]. Il valore n considerato è risultato pari a 2h^-1 poiché è prevista l’installazione di un sistema di unità di trattamento dell’aria.
Il carico termico invernale dunque è stato ricavato sommando il carico termico per trasmissione e il carico termico di ventilazione.
Di seguito son riportati valori tabellati utilizzati per il calcolo termico per trasmissione e per ventilazione dei due edifici oggetto di analisi propedeutici per la formulazione del carico termico invernale totale necessario per mantenere un ambiente interno a una temperatura confortevole durante i mesi più freddi.
Tale parametro risulta fondamentale per il dimensionamento degli impianti e per la gestione dei costi energetici.
termico di ventilazione Qv
Carico termico invernale Korallen [W]
Carico termico per trasmissione Qt Carico termico di ventilazione Qv
Per entrambi gli edifici, il sistema di climatizzazione previsto è di tipo misto, offre una soluzione integrata per il riscaldamento, la climatizzazione e la ventilazione degli spazi interni.
Questo sistema comprende:
1. Pompa di calore acqua-acqua: Questa tecnologia utilizza l’acqua come fonte di calore per la produzione di calore durante la stagione invernale e il raffrescamento durante la stagione estiva. Le pompe di calore acqua-acqua sono note per la loro elevata efficienza energetica, in particolare in contesti dove l’acqua di falda, di un lago o di un fiume può essere utilizzata come fonte termica stabile.
2. Unità di trattamento aria (UTA): Per garantire un adeguato ricambio d’aria, filtrazione e deumidificazione, migliorando la qualità dell’aria interna.
3. Impianto di distribuzione: Reti di tubazioni e condotte per la distribuzione del fluido termovettore e dell’aria trattata agli ambienti interni.
Si è effettuata dunque un’ analisi di dimensionamento dei canali di distribuzione di mandata e di ripresa dell’aria e un dimensionamento preliminare dei locali tecnici di unità di trattamento dell’aria.
Per quanto riguarda la collocazione dei canali di distribuzione dell’aria si sono sfruttati in entrambi gli interventi, gli spazi tra il solaio strutturale e il controsoffitto per non percepire le dotazioni impiantistiche all’interno degli spazi vivibili e utilizzati dagli utenti.
Nel pacchetto solaio oltre alle dotazioni impiantistiche connesse all’unità di trattamento dell’aria si prevede l’inserimento di serpentine per il riscaldamento a pavimento, terminali di riscaldamento ottenuto tramite pompa di calore acqua - acqua.

(92) In basso. Dotazioni impiantistiche Posizionamento canali di distribuzione dell’aria e pannello radiante a pavimento nei pacchetti di Korallen2 e Algen1.

Q 2000 m3/h Portata d'aria
Q 0,56 m3/s Portata d'aria
w 3,8 m/s velocità dell'aria
A 0,15 m2 sezione canale
Nel caso di canale a sez. rettangolare:
H 0,30 m Altezza canale
L 0,49 m Larghezza canale
Nel caso di canale a sez. circolare:
D 0,434 m Diametro idraulico equivalente
Dce= 0,418 m Diametro circolare equivalente
DIMENSIONE UTA 80*120*465cm
Q 12500 m3/h Portata d'aria
Q 3,47 m3/s Portata d'aria
w 7,5 m/s velocità dell'aria
A 0,46 m2 sezione canale
Nel caso di canale a sez. rettangolare:
H 0,50 m Altezza canale
L 0,93 m Larghezza canale
Nel caso di canale a sez. circolare:
D 0,768 m Diametro idraulico equivalente
Dce= 0,735 m Diametro circolare equivalente
DIMENSIONE UTA 130*195*585cm
Q 10000 m3/h Portata d'aria
Q 2,78 m3/s Portata d'aria
w 5,5 m/s velocità dell'aria
A 0,51 m2 sezione canale
Nel caso di canale a sez. rettangolare:
H 0,60 m Altezza canale
L 0,84 m Larghezza canale
Nel caso di canale a sez. circolare:
D 0,802 m Diametro idraulico equivalente
Dce= 0,774 m Diametro circolare equivalente
DIMENSIONE UTA 120*185*545cm Auditorium
Q 2000 m3/h Portata d'aria
Q 0,56 m3/s Portata d'aria
w 3,2 m/s velocità dell'aria
A 0,18 m2 sezione canale
Nel caso di canale a sez. rettangolare:
H 0,30 m Altezza canale
L 0,59 m Larghezza canale
Nel caso di canale a sez. circolare:
D 0,474 m Diametro idraulico equivalente
Dce= 0,453 m Diametro circolare equivalente
Q 10000 m3/h Portata d'aria
Q 2,78 m3/s Portata d'aria
w 6,5 m/s velocità dell'aria
A 0,43 m2 sezione canale
Nel caso di canale a sez. rettangolare:
H 0,50 m Altezza canale
L 0,85 m Larghezza canale
Nel caso di canale a sez. circolare:
D 0,738 m Diametro idraulico equivalente
Dce= 0,708 m Diametro circolare equivalente
Q 4000 m3/h Portata d'aria
Q 1,11 m3/s Portata d'aria
w 4,5 m/s velocità dell'aria
A 0,25 m2 sezione canale
Nel caso di canale a sez. rettangolare:
H 0,60 m Altezza canale
L 0,41 m Larghezza canale
Nel caso di canale a sez. circolare:
D 0,561 m Diametro idraulico equivalente
Dce= 0,541 m Diametro circolare equivalente
Il dimensionamento dei canali di distribuzione dell’aria e dell’UTA è stato effettuato ad hoc per ogni funzione dei due edifici. Nel caso del silo Korallen, i canali primari e secondari sono stati dimensionati per aerare e climatizzare un auditorium, un bar e una biblioteca. Sono stati considerati i requisiti specifici di portata d’aria, temperatura e qualità dell’aria per ogni locale, assicurando il massimo comfort e il rispetto delle normative vigenti. Per il silo Algen, destinato a uso residenziale per studenti, il dimensionamento ha riguardato appartamenti, uffici direzionali, negozi e aree comuni. Sono stati effettuati calcoli specifici per garantire un ambiente confortevole ed efficiente dal punto di vista energetico.
È stata posta attenzione anche agli aspetti acustici e alla facilità di manutenzione, per mantenere la qualità dell’aria interna nel lungo periodo. L’integrazione con sistemi di automazione avanzati consente una gestione ottimale dell’impianto, monitorando e regolando i parametri in tempo reale per un’efficienza energetica elevata e un comfort costante per tutti gli occupanti.
ALGEN: calcolo canali principali
Appartamenti
Q 4000 m3/h Portata d'aria
Q 1,11 m3/s Portata d'aria
w 4,5 m/s velocità dell'aria
A 0,25 m2 sezione canale
Nel caso di canale a sez. rettangolare:
H 0,40 m Altezza canale
L 0,62 m Larghezza canale
Nel caso di canale a sez. circolare:
D 0,561 m Diametro idraulico equivalente
Dce= 0,540 m Diametro circolare equivalente
DIMENSIONE UTA 95*125*490cm
Uffici direzionali
Q 4000 m3/h Portata d'aria
Q 1,11 m3/s Portata d'aria
w 5,0 m/s velocità dell'aria
A 0,22 m2 sezione canale
Nel caso di canale a sez. rettangolare:
H 0,60 m Altezza canale
L 0,37 m Larghezza canale
Nel caso di canale a sez. circolare:
D 0,532 m Diametro idraulico equivalente
Dce= 0,512 m Diametro circolare equivalente
DIMENSIONE UTA 120*185*545cm
ALGEN: calcolo canali secondari
Appartamenti
Q 2000 m3/h Portata d'aria
Q 0,56 m3/s Portata d'aria
w 3,5 m/s velocità dell'aria
A 0,16 m2 sezione canale
Nel caso di canale a sez. rettangolare:
H 0,40 m Altezza canale
L 0,40 m Larghezza canale
Nel caso di canale a sez. circolare:
D 0,450 m Diametro idraulico equivalente
Dce= 0,436 m Diametro circolare equivalente
Uffici direzionali
Q 2000 m3/h Portata d'aria
Q 0,56 m3/s Portata d'aria
w 4,0 m/s velocità dell'aria
A 0,14 m2 sezione canale
Nel caso di canale a sez. rettangolare:
H 0,60 m Altezza canale
L 0,23 m Larghezza canale
Nel caso di canale a sez. circolare:
D 0,421 m Diametro idraulico equivalente
Dce= 0,396 m Diametro circolare equivalente
Negozi Negozi
Q 4000 m3/h Portata d'aria
Q 1,11 m3/s Portata d'aria
w 4,5 m/s velocità dell'aria
A 0,25 m2 sezione canale
Nel caso di canale a sez. rettangolare:
H 0,60 m Altezza canale
L 0,41 m Larghezza canale
Nel caso di canale a sez. circolare:
D 0,561 m Diametro idraulico equivalente
Dce= 0,541 m Diametro circolare equivalente
DIMENSIONE UTA 120*185*545cm
Aree comuni
Q 4000 m3/h Portata d'aria
Q 1,11 m3/s Portata d'aria
w= 4,5 m/s velocità dell'aria
A 0,25 m2 sezione canale
Nel caso di canale a sez. rettangolare:
H 0,45 m Altezza canale
L 0,55 m Larghezza canale
Nel caso di canale a sez. circolare:
D 0,561 m Diametro idraulico equivalente
Dce= 0,543 m Diametro circolare equivalente
DIMENSIONE UTA 120*185*545cm
Q 2000 m3/h Portata d'aria
Q 0,56 m3/s Portata d'aria
w 3,5 m/s velocità dell'aria
A 0,16 m2 sezione canale
Nel caso di canale a sez. rettangolare:
H 0,60 m Altezza canale
L 0,26 m Larghezza canale
Nel caso di canale a sez. circolare:
D 0,450 m Diametro idraulico equivalente
Dce= 0,427 m Diametro circolare equivalente
Aree comuni
Q 1500 m3/h Portata d'aria
Q 0,42 m3/s Portata d'aria
w= 3,5 m/s velocità dell'aria
A 0,12 m2 sezione canale
Nel caso di canale a sez. rettangolare:
H 0,45 m Altezza canale
L 0,26 m Larghezza canale
Nel caso di canale a sez. circolare:
D 0,389 m Diametro idraulico equivalente
Dce= 0,374 m Diametro circolare equivalente
Il progetto di rigenerazione degli edifici Korallen 2 e Algen 1 ha dimostrato che un’attenta progettazione impiantistica e l’implementazione di soluzioni tecnologiche avanzate possano trasformare vecchi silos in strutture moderne ed efficienti dal punto di vista energetico.
L’installazione di un impianto di climatizzazione basato su riscaldamento a pavimento con pompe di calore acqua-acqua si è rivelata una scelta strategica, sfruttando la vicinanza del sito al mare e la presenza di una falda acquifera superficiale. Questa soluzione non solo garantisce un’efficiente generazione di calore per il riscaldamento degli ambienti, ma risponde anche alle specifiche esigenze climatiche di Malmö, nel Nord Europa, dove la principale necessità è quella di mantenere gli spazi confortevoli durante l’inverno.
L’analisi preliminare dell’involucro esterno degli edifici ha fornito un chiaro quadro delle condizioni preesistenti e ha permesso di pianificare interventi mirati per migliorare significativamente le prestazioni termiche. Le riduzioni delle trasmittanze termiche (U) ottenute dopo gli interventi sui pacchetti di chiusura verticali e orizzontali opachi, nonché sulle Uw dei serramenti, sono state fondamentali per diminuire i carichi termici invernali degli edifici.
I risultati mostrano un carico termico invernale di 415.994,19 W per Korallen 2 e 380.605,84 W per Algen 1.
Questi valori indicano che gli edifici sono ora meglio isolati e richiedono meno energia per mantenere temperature confortevoli, riflettendo un’ottimizzazione complessiva dell’efficienza energetica oltre ad ulteriori benefici:
• L’integrazione di pompe di calore acqua-acqua e il miglioramento delle trasmittanze termiche hanno notevolmente ridotto i carichi termici invernali, garantendo un sistema di riscaldamento efficiente e sostenibile.
• L’implementazione delle UTA e delle canalizzazioni d’aria assicura un ricircolo d’aria ottimale e una qualità del microclima interno agli edifici, fondamentale per una biblioteca pubblica e uno studentato.
• L’approccio progettuale ha privilegiato soluzioni che sfruttano risorse naturali locali, come l’acqua del mare e la falda acquifera, riducendo l’impatto ambientale e migliorando la sostenibilità degli edifici.
• Gli interventi sull’involucro esterno e i sistemi di climatizzazione garantiscono un alto livello di comfort interno, essenziale per le attività previste.
I risultati ottenuti in termini di carico termico invernale risultano minimi confermando la bontà degli interventi di progettazione sviluppati.
La riduzione significativa delle dispersioni termiche e l’implementazione di un sistema di riscaldamento efficiente e sostenibile dimostrano che gli edifici Korallen 2 e Algen 1 sono stati trasformati in spazi energeticamente efficienti e confortevoli in modo da garantire benefici a lungo termine per gli utenti e per l’ambiente.
Tale relazione infine permette di analizzare complessivamente
l’intervento impiantistico e sull’involucro messo in atto al fine di effettuare una valutazione di massima costi-benefici.
Scala di priorità degli interventi:
1. Isolamento dell’involucro esterno e sostituzione dei serramenti - Questo intervento risulta assolutamente prioritario poiché riduce significativamente le dispersioni termiche, abbattendo il carico termico invernale e migliorando l’efficienza energetica complessiva degli edifici.
2. Installazione delle pompe di calore acqua-acqua - Essenziale per garantire un sistema di riscaldamento sostenibile ed efficiente. Dato l’alto investimento iniziale, è cruciale prevedere piani di finanziamento o incentivi.
3. Sistema di riscaldamento a pavimento - Prioritario per assicurare un comfort termico ottimale e uniforme all’interno degli edifici, giustificando i costi iniziali con il comfort a lungo termine.
4. Installazione delle UTA e canalizzazioni d’aria - Anche se non immediatamente critico per la riduzione del carico termico, è fondamentale per garantire una qualità dell’aria adeguata e un ambiente salubre, soprattutto in spazi pubblici e residenziali.
L’approccio progettuale interdisciplinare utilizzato per lo studio dell’intervento previsto sui silos in oggetto garantisce una trasformazione efficace e sostenibile degli edifici, rendendoli non solo funzionali e confortevoli per i loro utenti, ma anche esempi di efficienza energetica e sostenibilità.




Bibliografia e Sitografia