

ARQUITECTURA
SAMANTA ZAVALA ARGAMA

PROYECTO DE VIVIENDA MULTIFAMILIAR











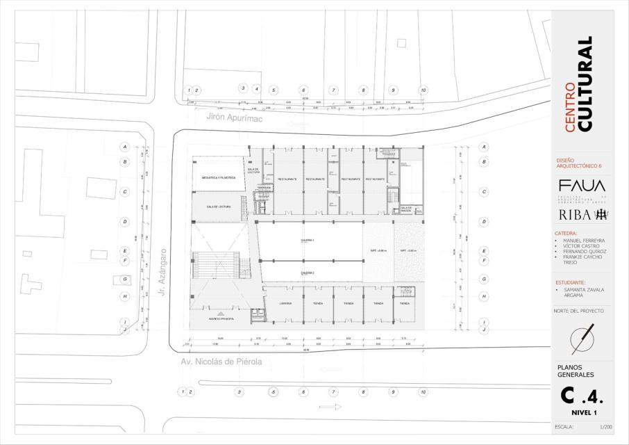
CENTRO CULTURAL

CENTRO CULTURAL PARA LAS ARTES ESCÉNICAS
Samanta Zavala Argama



de intervención
Área
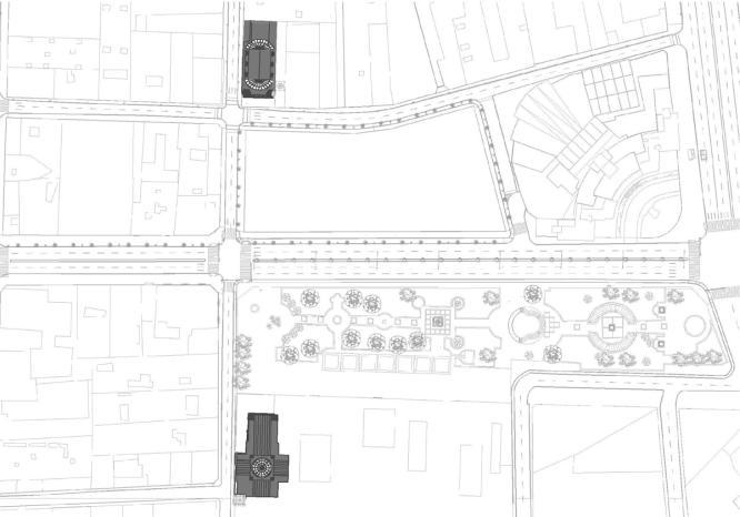
Centro Histórico de Lima

PROPUESTA
URBANA


Este sector del terreno, debido a la presencia del Poder Judicial presentará una mayor escala para tener una mejor relación con su entorno
Espacio accesible al público que se encarga de generar de manera permanente, procesos de desarrollo cultural concertados entre la comunidad.
El Centro de Formación Artística al ser de un carácter más privado tendrá un recorrido orientado por las necesidades de los usuarios, a diferencia del Centro Cultural que al ser de carácter público debe ser recorrido de manera sencilla y orientada por atractores.
Espacio de carácter más privado que busca concebir espacios adecuados, en donde los artistas puedan desarrollar y producir sus creaciones.
Por esta razón el sector de mayor escala será ocupado por el Centro de Formación Artística.
CONTEXTO


ÁREA DE INTERVENCIÓN


ESTRATEGIAS FORMALES






IglesiadelosHuérfanos
PanteóndelosPróceres
ANTEPROYECTO


Biblioteca y filmoteca

Estacionamiento

S.S.H.H.

Estacionamiento
Cafetería
Recibidor


Recibidor

Estacionamiento
Estacionamient
Cafetería
Galería


PLANOS










ASPECTOS
TECNOLÓGICOS Y CONSTRUCTIVOS

DETALLES CONSTRUCTIVOS





PROYECTO DE TESIS










