Muliza de sueños y añoranzas

Page 1

CERRO

DE PASCO

PASCO, PERU

“MULIZA DE
SUEÑOS Y AÑORANZAS”

Centrointegradoparala sostenibilidad,participacióncomunitariaypatrimoniominero-cultural

TALLER 8

SAMANTA ZAVALA

Mi proyecto inicia con el concepto "Inside", este representa una interpretación personal de mi ciudad natal, Cerro de Pasco, a través de una escultura que materializa la dualidad cultural y las cicatrices dejadas por la minería. Esta obra no solo captura el dolor colectivo y la esperanza frente a la adversidad, sino que también sirve como fundamento para diseñar arquitectura con carga emocional, profundamente entrelazada con el espíritu de la comunidad. La escultura es un medio para concretar y visualizar estas emociones complejas, permitiéndonos desarrollar espacios que reflejen genuinamente la identidad y los desafíos de nuestra zona. Así, "Inside" se convierte en el primer paso hacia una arquitectura que dialoga con su entorno, llevando en sí la esencia de nuestras luchas y esperanzas.

ESTRUCTURA DE LA PRESENTACIÓN DEL PROYECTO

Este proyecto es complejo y lleno de matices, abarcando desde la inspiración inicial hasta las decisiones arquitectónicas concretas. Para facilitar su comprensión, he decidido estructurar la presentación y explicación del proyecto en torno a cuatro preguntas fundamentales: dónde, cuándo, por qué y cómo.

Estas preguntas nos guiarán a través de la esencia del proyecto, simplificando la manera en que abordamos su complejidad y permitiéndonos entender profundamente el edificio propuesto. Al responderlas, buscamos desvelar no solo los principios que motivan el diseño, sino también cómo estos principios se traducen en un espacio arquitectónico.

¿DÓNDE?

UBICACIÓN DEL PROYECTO

El proyecto se sitúa en Cerro de Pasco, una ciudad altoandina en la sierra peruana, específicamente en el departamento de Pasco, Perú.

Perú Pasco Cerro de Pasco

Característica Distintiva de Cerro de Pasco

Cerro de Pasco se distingue por el Tajo Raúl Rojas, un tajo a cielo abierto en el centro de la ciudad. Su expansión ha consumido progresivamente el tejido urbano, afectando tanto a la población como al ambiente. Este fenómeno subraya la interacción entre la minería y el desarrollo urbano, marcando profundamente la identidad y estructura de la ciudad.

¿CUANDO?

Para facilitar la comprensión de la compleja historia de Cerro de Pasco, resumo sus etapas históricas en dos momentos claves: la minería a través de socavones y el desarrollo del tajo abierto. La ciudad se consolidó alrededor de la riqueza minera, donde inicialmente la extracción se realizaba mediante socavones. Esta etapa inicial muestra cómo la minería y la vida urbana se entrelazaron desde el principio, siendo fundamentales en la conformación de la cultura y la sociedad de Pasco.

La transición a la explotación mediante tajo abierto marcó una nueva etapa en la historia de Cerro de Pasco. La expansión del tajo ha consumido gradualmente las capas históricas más antiguas de la ciudad, ubicadas en su centro. Este proceso ha resultado en la pérdida de elementos valiosos para la memoria histórica de la comunidad: la primera capa de la historia urbana, importantes símbolos antiguos, y casi la totalidad del centro histórico, dejando apenas un remanente de lo que fue.

El futuro próximo enfrenta un desafío crítico con la próxima fase de expansión minera, conocida como Plan L. Este plan amenaza con destruir los últimos vestigios del centro histórico, incluyendo la Plaza Chaupimarca.

La ubicación de esta área, al borde del tajo, y el hecho de que las propiedades históricas ya han sido adquiridas por la compañía minera, subraya la inevitabilidad de esta destrucción y la transformación irreversible del tejido urbano y cultural de Cerro de Pasco.

¿POR QUÉ?

Pese a su significativo aporte económico al país, Cerro de Pasco ha sido, en muchos aspectos, olvidado por el estado, dejando a su población vulnerable a una serie de adversidades. Más allá de la palpable contaminación que afecta la salud de sus habitantes, la ciudad enfrenta la pérdida de elementos intangibles pero igualmente cruciales: su memoria histórica y el derecho a recordar y honrar su pasado. Este abandono contrasta profundamente con el papel vital que la minería, eje de su economía, ha jugado a nivel nacional.

FÍSICAS Y TERRITORIALES

CONTAMINACIÓN AMBIENTAL Y DE LOS RECURSOS NATURALES PÉRDIDA DEL TEJIDO URBANO

MINA RAÚL ROJAS

TAJO ABIERTO

CONSECUENCIAS

RESPUESTA PROYECTUAL

Espacio dedicado a prevenir, tratar y controlar la contaminación en Cerro de Pasco

CULTURALES Y SOCIALES

La interdependencia entre minería y cultura en cerro de pasco define su esencia

La interdependencia entre minería y cultura en cerro de pasco define su esencia

RESPUESTA PROYECTUAL

RESPUESTA PROYECTUAL

Espacio de sensibilización y aprendizaje acerca de los efectos de la contaminación

CENTRO DE INVESTIGACIÓN EN PREVENCIÓN Y TRATAMIENTO DE CONTAMINACIÓN

Espacio de salvaguarda y exhibición para estructuras históricas relevantes

La pérdida de estructuras históricas debilita la memoria y la identidad cultural

Enfrentando el desafío del Tajo Raúl Rojas en Cerro de Pasco, realicé un análisis detallado, enfocado en sus repercusiones culturales, sociales y físico-territoriales. Este estudio me llevó a proponer dos instalaciones fundamentales: un centro de investigación para la prevención y tratamiento de la contaminación, y un centro de interpretación que narre el patrimonio oscuro de la ciudad, ambos pensados para generar un impacto positivo en la comunidad.

RESPUESTA PROYECTUAL

Espacio de muestra que refleja la conexión entre cultura y minería, y su influencia en la ciudad

Espacio dedicado a explorar y entender la historia y herencia cultural ligadas a los retos y efectos de la actividad minera en la ciudad

CENTRO DE INTERPRETACIÓN DEL PATRIMONIO OSCURO DE CERRO DE PASCO

CENTRO DE INVESTIGACIÓN EN PREVENCIÓN Y TRATAMIENTO DE CONTAMINACIÓN

CENTRO DE INTERPRETACIÓN DEL PATRIMONIO OSCURO DE CERRO

Para integrar activamente a la comunidad y superar la pasividad tradicional de los visitantes, introduje la idea de un centro comunitario. Este actuaría como un puente, no solo involucrando a la comunidad en las actividades de los centros sino también facilitando la transferencia de conocimientos y tecnología. El objetivo es que estos espacios no estén aislados sino que formen parte de la vida cotidiana de los habitantes, contribuyendo a un cambio significativo y continuo.

COMPONENTES DEL PROYECTO

El proyecto se concentra en tres pilares: un Centro de Interpretación, un Centro Comunitario y un Centro de Investigación. Esta estructura busca promover una interacción dinámica entre investigadores, visitantes y la comunidad local, apostando por una arquitectura que catalice la regeneración social y cultural de Cerro de Pasco.

DE PASCO AGENTES DE INVESTIGACIÓN Y DESARROLLO TECNOLÓGICO GENERADORES CENTRO DE INVESTIGACIÓN AGENTES COMUNITARIOS CONECTORES CENTRO COMUNITARIO AGENTES PASIVOS VISITANTES CENTRO DE INTERPRETACIÓN

¿CÓMO?

Uno de los puntos de partida clave para la construcción del nuevo edificio es el inminente Plan L, que amenaza con destruir lo que resta del centro histórico de Cerro de Pasco. Ante esta realidad, mi enfoque es conservar y valorar los fragmentos arquitectónicos supervivientes, integrándolos en el nuevo diseño. Esto no solo preserva un enlace tangible con el pasado sino que también inyecta una capa de memoria e historia en el tejido del edificio moderno.

RECONTEXTUALIZACIÓN

LOS ELEMENTOS ARQUITECTÓNICOS Basándome en las estructuras existentes, el proceso de construcción incluirá el desmontaje cuidadoso de edificaciones seleccionadas,

DE

focalizándome en rescatar tres elementos clave: puertas, ventanas y ornamentos. Estos componentes serán los insumos principales en la creación de la nueva estructura. La reutilización de estos elementos no solo es una respuesta a la imposibilidad de salvar las estructuras en su totalidad, sino que también representa una estrategia para recontextualizar y dar nueva vida a la memoria histórica de Cerro de Pasco, integrándola en una visión arquitectónica que mira hacia el futuro sin olvidar su origen.

PUERTAS

VENTANAS ADOBES

RECONSTRUCCIÓN SIMBÓLICA

Un aspecto fundamental en la formación del edificio es la composición volumétrica, especialmente en cómo aborda la pérdida de memoria histórica. Frente a la destrucción de elementos icónicos del centro de Cerro de Pasco, he decidido enfocarme en la reconstrucción de tres símbolos cruciales que representan el alma de la ciudad y que han sido profundamente extrañados tras su pérdida: la torre del reloj de campana, el monumento al soldado desconocido, y el castillo de Lourdes. Aunque la compañía minera construyó réplicas de estos, ubicadas en partes nuevas de la ciudad, no han logrado replicar el impacto emocional y simbólico original.

Este proceso de reconstrucción no se limita a una simple replicación física; busca reinterpretar estos símbolos, abstrayendo sus formas para integrarlas en la nueva edificación de manera que resuenen tanto con la historia como con el presente de la comunidad. Este enfoque encuentra paralelismos históricos, como en la creación del monumento al soldado desconocido, donde cada piedra aportada por los familiares de los soldados fallecidos de sus pueblos natales se utilizó para construir su base, añadiendo un profundo significado colectivo al símbolo. A pesar de que las estructuras originales fueron destruidas, el acto de recrear estos símbolos utilizando elementos de construcciones históricas pretende recuperar y mantener viva la memoria colectiva de la ciudad a través de la arquitectura.

Torre del reloj de campana Castillo de Lourdes Monumento al soldado descocido

TRANSICIÓN DEL PAISAJE: CAMPO A CIUDAD

La composición volumétrica del proyecto toma en cuenta el perfil único del terreno, situado en la intersección entre el campo y la ciudad, facilitando una transición entre la verticalidad característica del campo y las inclinaciones pronunciadas de los cerros circundantes.

FACTORES DETERMINANTES EN LA SELECCIÓN DEL TERRENO

La elección del terreno para proyecto consideró elementos críticos específicos de Cerro de Pasco. Reconociendo los desafíos históricos y las dinámicas de expansión de ciudad, se ha entendido que, a pesar de los intentos de reubicación, la tendencia más probable es que la ciudad continúe desarrollándose alrededor del tajo. Este análisis fundamentó la decisión de seleccionar un terreno en el límite actual de la ciudad, anticipando futuras expansiones y asegurando que la ubicación esté fuera de los radios de contaminación más significativos, especialmente la contaminación aérea generada por el tajo.

CARACTERÍSTICAS SIMBÓLICAS Y PRÁCTICAS DEL TERRENO

El terreno elegido no solo se destaca por su posición estratégica en el borde de la ciudad, potencialmente en el camino de futuras expansiones, sino también por su simbolismo y configuración topográfica. Ubicado cerca de una vía principal que articula la ciudad, sin estar tan próximo como para generar conflictos, el terreno presenta una elevación que contrasta directamente con la depresión del tajo, simbolizando una forma de resistencia y contraposición.

Este “arco", que se eleva en contraste con el "arco invertido" que representa el tajo, ofrece una oportunidad única para establecer un nuevo símbolo arquitectónico para Cerro de Pasco, enfatizando la resiliencia y la renovación frente a la adversidad.

ADAPTACIÓNBIOCLIMÁTICA A LA ZONA DEFRÍOEXTREMO

Una consideración crucial en el diseño del edificio es su adaptación bioclimática para enfrentar las condiciones de frío extremo típicas de la zona. La orientación del terreno y el recorrido del sol, que asciende casi verticalmente durante el día, limita la eficacia de utilizar los muros laterales para captar calor. En respuesta a esto, se ha optado por diseñar muros laterales inclinados, no completamente verticales, permitiendo así una mayor absorción solar. Esta modificación estructural facilita la captura y almacenamiento de calor solar de manera más eficiente, crucial para mantener temperaturas interiores confortables.

INTEGRACIÓNDELA ARQUITECTURA VERNÁCULA

Para maximizar la eficiencia térmica y respetar las características arquitectónicas locales, las aberturas del edificio serán diseñadas de manera que sean pequeñas, alineándose con el estilo vernáculo de la región caracterizado por el uso de adobe y formas tradicionales. Esta decisión no solo refleja una adaptación al clima sino que también evita la creación de puentes térmicos que podrían surgir de grandes ventanales o muros cortina. Por lo tanto, el diseño demuestra una adaptación completa al contexto bioclimático y cultural de Cerro de Pasco, enfatizando la "pesadez" del edificio como un medio para conservar el calor y proteger sus interiores del frío extremo.

El proyecto se articula en torno a tres volúmenes sólidos, cada uno con funciones específicas, unidos por puentes internos que mantienen la cohesión visual sin destacarse a simple vista. Estos volúmenes simbolizan una reinterpretación moderna de elementos culturales esenciales de Cerro de Pasco, fusionando la historia con la innovación arquitectónica.

La integración de puertas y ventanas antiguas en el edificio más grande refleja un enlace tangible con el pasado, mientras que la elección de adobe modificado subraya un compromiso con las prácticas constructivas tradicionales adaptadas a las exigencias climáticas locales. Este enfoque asegura que el proyecto no solo honre el legado arquitectónico de la región, sino que también se alinee con principios de sostenibilidad y resistencia al tiempo.

Este diseño representa un balance entre la conservación cultural y la adaptación a nuevos usos y contextos, ofreciendo un espacio que respeta y revitaliza el patrimonio de Cerro de Pasco.

ESTRUCTURA DE LA CUBIERTA

Exterior de concreto impermeabilizado

MATERIALIDAD Y SOLUCIONES PROVISIONALES

Aislante de lana de oveja

Adobe reconstruido.

La elección de materiales para el edificio es crucial, especialmente dada la exposición directa a condiciones climáticas extremas como la lluvia, la nieve y el sol. La idea inicial de utilizar adobe, valorado por su significado histórico, se reconsideró en favor de una capa superior de concreto impermeabilizado para proteger la estructura. Esta solución provisional busca compensar las limitaciones del adobe frente a la humedad y el desgaste, aunque sigo en la búsqueda de alternativas más adecuadas que puedan ofrecer una mejor respuesta a estas condiciones sin sacrificar el valor estético e histórico.

ADAPTACIÓN CLIMÁTICA Y MANEJO DEL AGUA

Además, se implementará un sistema de acequias alrededor del edificio para gestionar eficazmente la lluvia y la nieve. Este diseño facilitará que el agua se deslice rápidamente por los muros, evitando su absorción y el riesgo de daños por congelación y acumulación de nieve. La forma del edificio contribuye a este efecto, canalizando el agua hacia las acequias, donde se recogerá para su reciclaje, reflejando un enfoque sostenible y práctico para el clima de Cerro de Pasco.

FINANCIAMIENTO

El financiamiento es un aspecto crucial, dada la envergadura y el costo del proyecto. La empresa minera, en compensación por el impacto en la ciudad, se ha comprometido a financiar la construcción de centros culturales y patrimoniales. Aunque las entradas de turistas al centro patrimonial representarán una fuente de ingresos menor, una estrategia adicional de financiamiento surge de la necesidad local de evaluaciones ambientales periódicas. El edificio incluirá laboratorios que cumplen con los estándares del MINAM para que las minas circundantes puedan realizar pruebas de calidad ambiental. Este servicio no solo ayudará a financiar el edificio de manera continua sino que también beneficiará a la comunidad local, proporcionando herramientas para monitorear y controlar la calidad ambiental de su entorno, empoderándolos en la gestión de su territorio.

El edificio se presenta con una cubierta teñida de rojo, una elección deliberada que va más allá de lo estético para sumergirse en lo simbólico. Este color, evocando la sangre de los afectados por la minería y las pérdidas humanas, busca que el edificio se establezca como un nuevo símbolo para la ciudad. Esta simbología fuerte se complementa con una estructura que desafía las convenciones mediante la inclusión de materiales tradicionales y técnicas de construcción adaptadas al clima extremo de la región.

La propuesta arquitectónica pretende sacar a la luz el "socavón", reinterpretándolo y dándole un lugar prominente en la superficie, a través del uso de elementos históricos. Esta aproximación busca crear un diálogo entre la pérdida y la preservación, entre el vacío dejado por el tajo y la plenitud de la memoria colectiva. La elección de reconstruir símbolos perdidos de la ciudad en el diseño del edificio actúa como una manifestación de resiliencia cultural y recuperación de la identidad.

El interior del edificio está diseñado para emular las emociones asociadas al trabajo minero, utilizando juegos de luz y sombra para representar la dualidad entre la oscuridad de las profundidades y la búsqueda constante de la luz. Este diseño busca evocar el dolor y la esperanza de la comunidad, utilizando las ventanas antiguas recuperadas no solo como elementos funcionales sino como conductos de narrativas emotivas.

La escalera principal del edificio, que articula los tres bloques, se ha diseñado para emular la sensación de descender en un ascensor hacia la mina. La altura de la escalera refuerza esta experiencia, creando un ambiente que recuerda las profundidades de la mina, donde la luz se desvanece conforme se avanza hacia abajo.

En torno al edificio se ha dispuesto una acequia, elemento que juega un papel crucial en la gestión del agua y la nieve, reflejando el ingenio adaptativo a las condiciones climáticas de Cerro de Pasco.

La primera vista del interior del centro de interpretación invita a los visitantes a experimentar una representación del tajo abierto desde una perspectiva subterránea. El recorrido por el interior se realiza a través de rampas ascendentes, rodeadas de muros enriquecidos con ventanas y puertas antiguas recuperadas, que guían hacia la luz en la parte superior. Este ascenso simbólico a través del edificio no solo refleja físicamente el desafío de salir de la mina sino que también representa un viaje desde la oscuridad hacia la esperanza. La culminación de este recorrido en la parte superior aún está por definirse, buscando un elemento o espacio que sirva como un remate significativo, un hito que capture la esencia del proyecto y su conexión con la comunidad y el entorno.

El proyecto se compromete con la memoria individual y colectiva, ofreciendo un espacio donde las historias de las víctimas de la minería son honradas y recordadas. La incorporación de huellas de manos con nombres y fechas en la base del centro de interpretación sirve como un poderoso recordatorio de las vidas marcadas por la industria minera, convirtiendo al edificio en un espacio de reconocimiento y justicia.

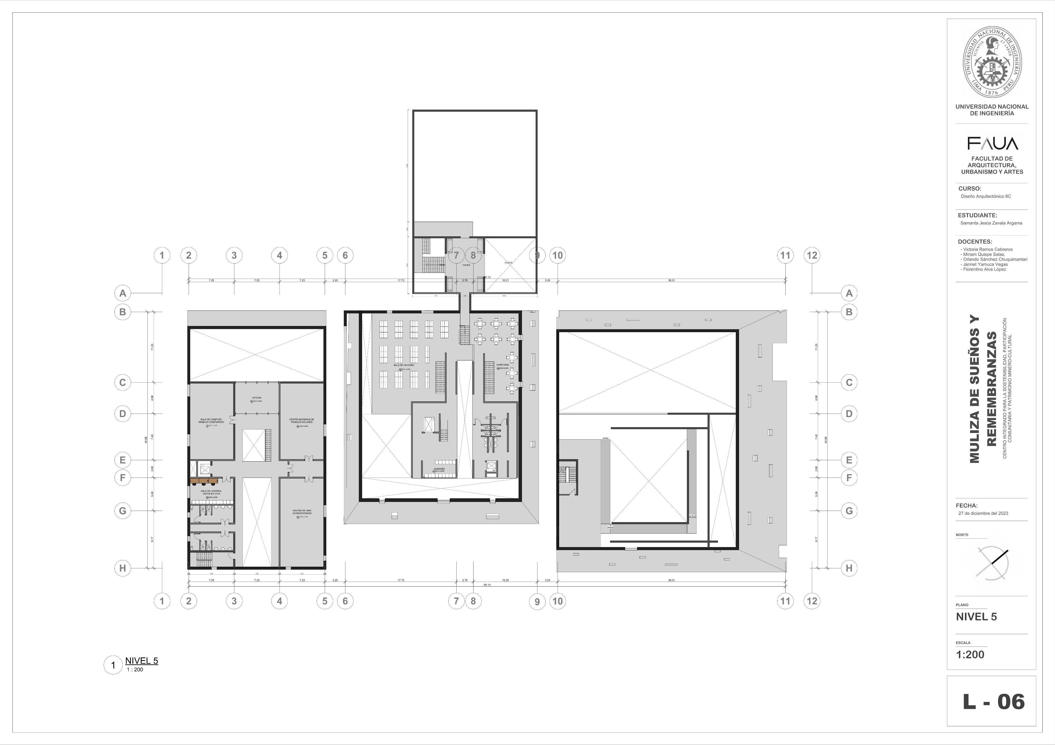
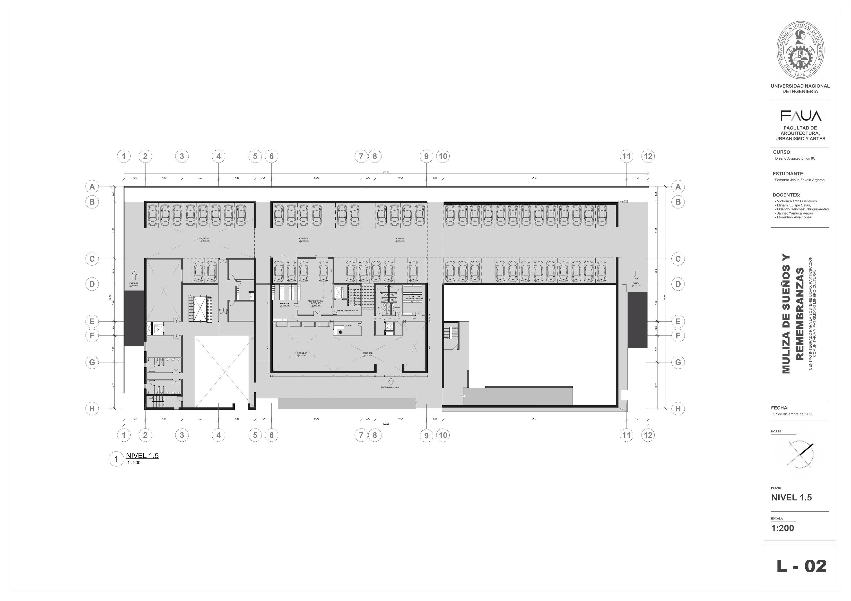
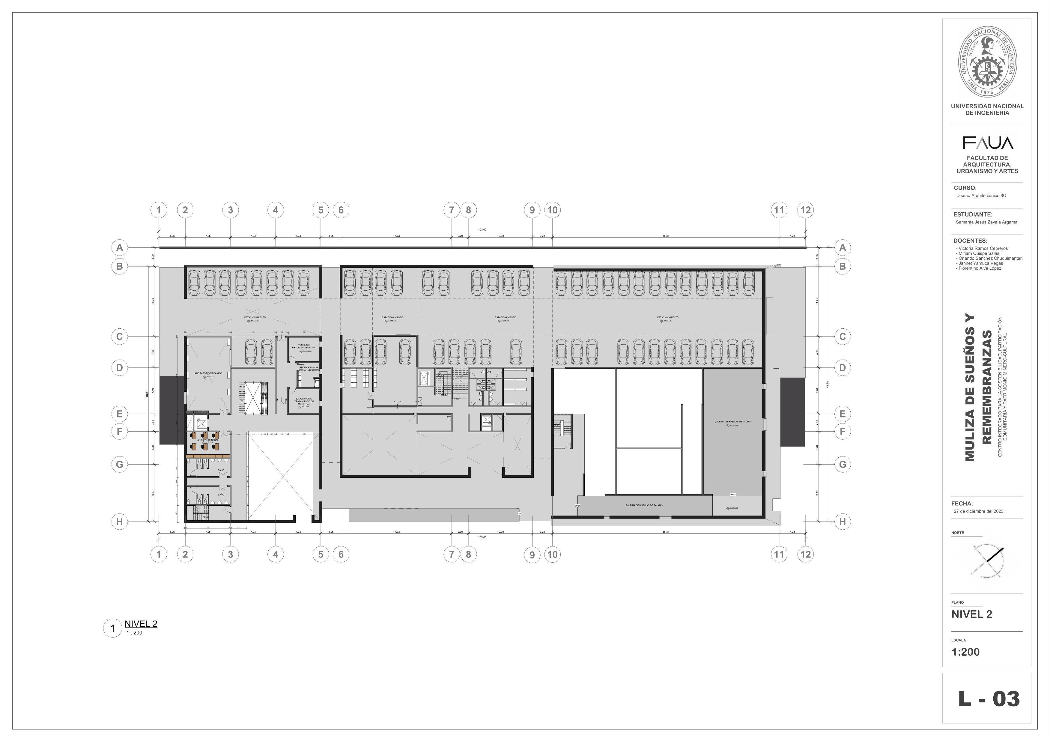
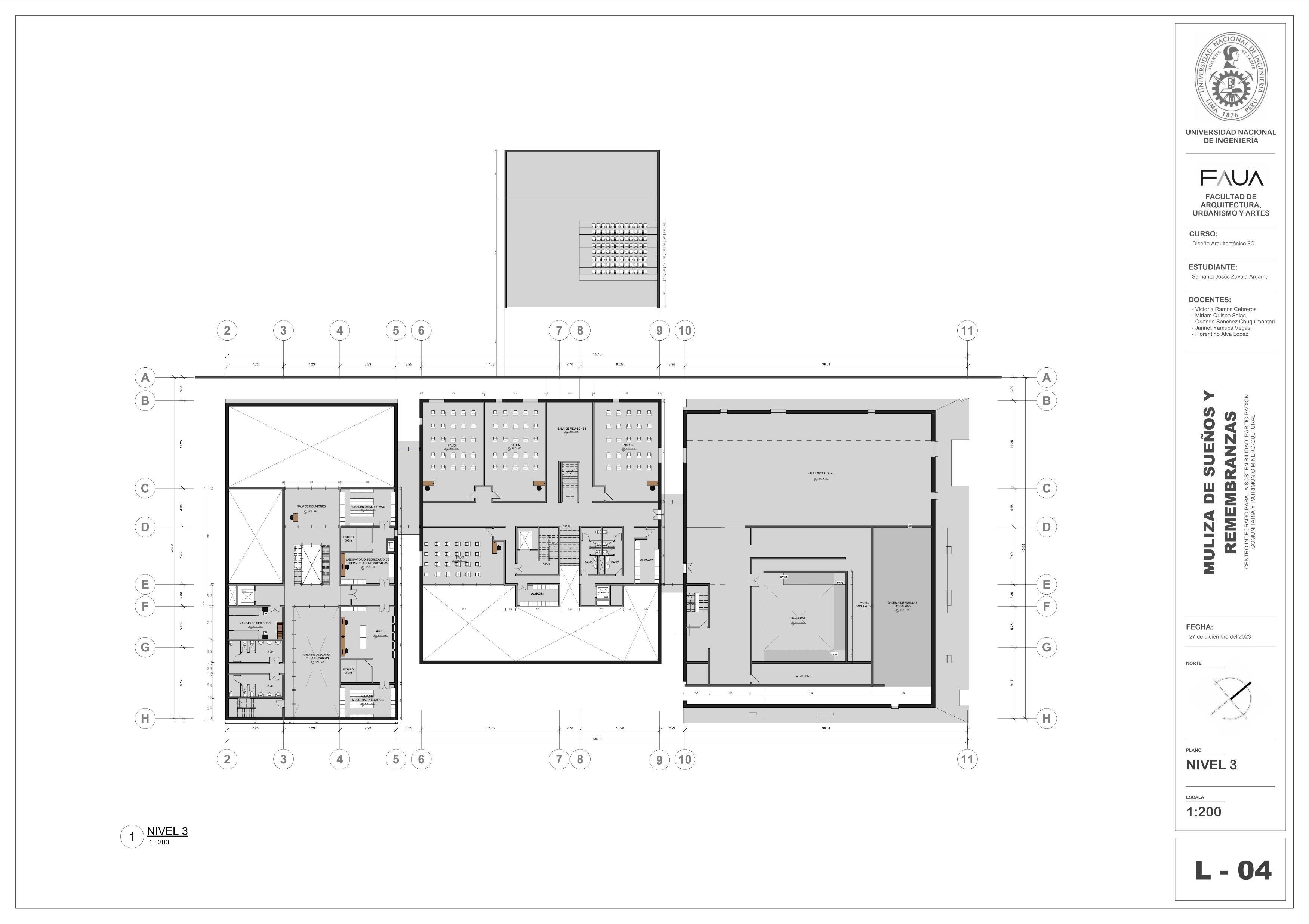
PLANOS

INGRESO SECUNDARIO

INGRESO POR EL ESTACIONAMIENTO

INGRESO

PRINCIPAL INGRESO SECUNDARIO

INGRESO POR EL ESTACIONAMIENTO

INGRESO PRINCIPAL

Centro integrado para la sostenibilidad

Centro comunitario

Centro de patrimonio

minero - cultural

SAMANTA ZAVALA

Turn static files into dynamic content formats.

Create a flipbook
Issuu converts static files into: digital portfolios, online yearbooks, online catalogs, digital photo albums and more. Sign up and create your flipbook.