Skip to main content

SK Portfolio

Page 1

ARCHITECTURAL PORTFOLIO

SAMAR AL.KHASHMAN 2020-2024

01

AMMAN NOCTURNE TOWERS

Business Complex-Commercial

DESIGN 5 STUDIO

INDIVIGUAL WORK

Fourth Year / First Semester 2023/2024

02 03

NEW MILLINUEM MUSEUM

Modern Art Museum

DESIGN 4 STUDIO

INDIVIGUAL WORK

Third Year / Second Semester 2023

MULTAQA.Students Centre

DESIGN 3 STUDIO

INDIVIGUAL WORK

Third Year / First Semester 2022/2023

REDESIGN
SHOTS SKETCHES
& RENDERED
04 05
4-13 14-27 28-39 40-43 44-47
PROJECTS INDEX

AMMAN NOCTURNE TOWERS – DESIGN 5 STUDIO

PROJECT

AMMAN - JORDAN

An architectural marvel, the transparent building seamlessly integrates with its surroundings, challenging the notion of gleaming commercial towers.It defies the trend towards an elitist lifestyle, embodying harmony and breaking free from the conventional path.

A harmonious Parametric Steel structure Skin surrounding the building showcasing the wealth and the future opportunities.

JU / 2023-2024

4 INTRODUCTION
01

Put the axis on the chosen area and intrude the two blocks to separate the functions

Extrude the two towers due to the site forces and emphasize on the entrance

One tower is shorter than the other to achieve Asymmetrical view and allow natural light inside

Adding the twisted Parametric skin to the taller tower showcasing the philosophy of evolution

6 MORPHOLOGY
Duality. Visibility
OVERALL ACHIEVING: Transparency. Twin Phenomena.

DIAMOND SHAPED

LAMINATED GLASS PANNELS

TREATED STEEL STRUCTURE

CONCRETE BLOCK-WALL & CURTAIN WALLS

SLABS LIGHT WIEGHT CONCRETE SLABS

STRUCTURE COLUMNS Visibility & See-through

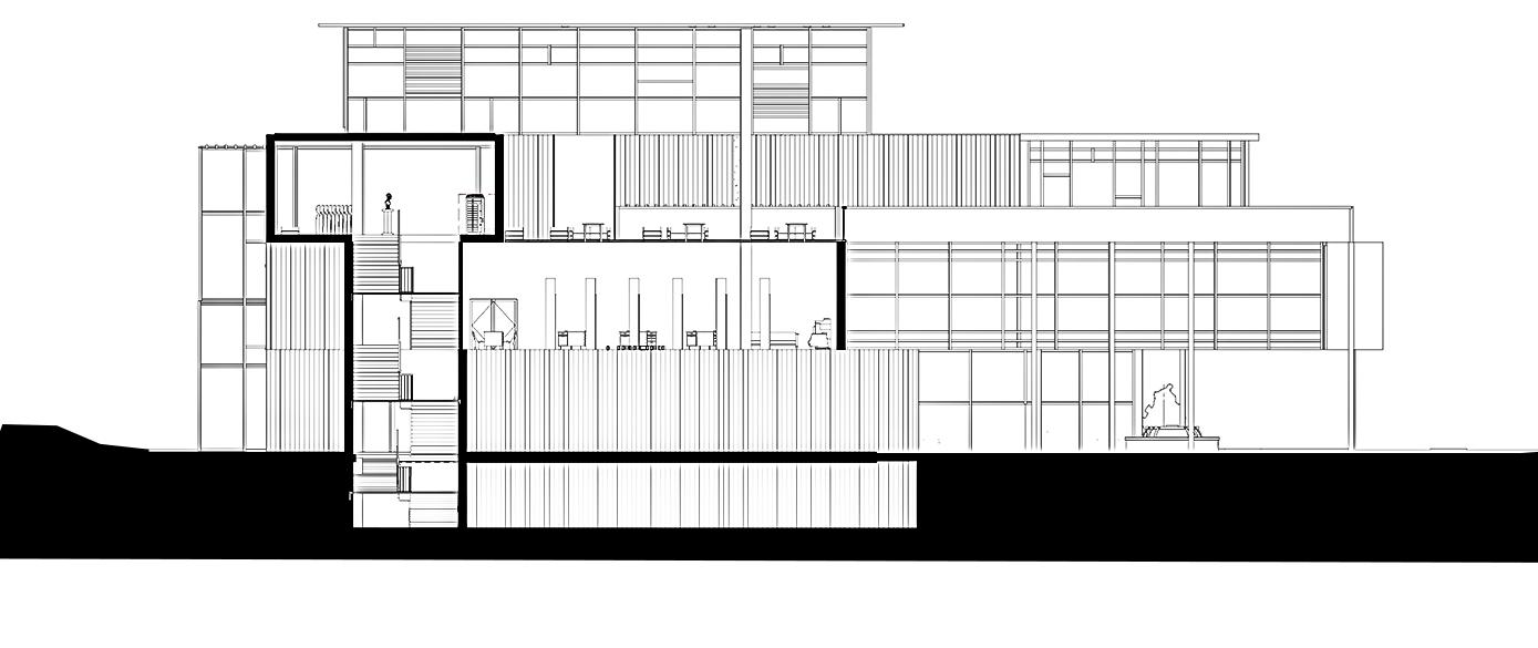
DOUBLE ENVELOPE AXONOMETRIC / SECTION

TERRACES

7
STRUCTURE DETAILS

ENTRANCE

8 OUTDOOR AREA
EXTERIOR

RESTAURANT & LOUNGE

MASTER

BEDROOM

INTERIOR

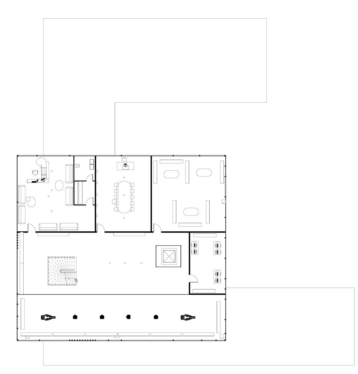
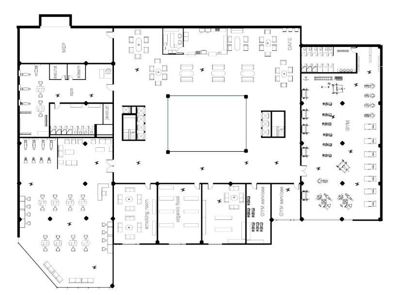
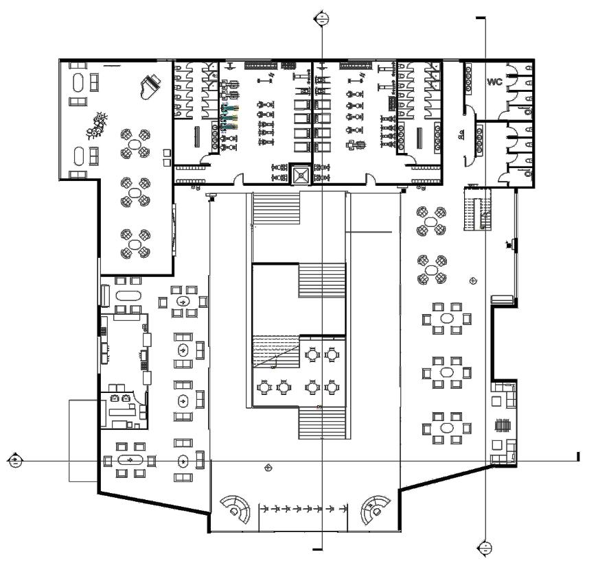
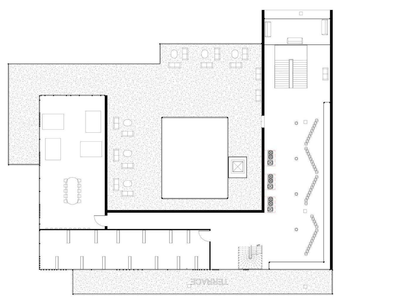
PODIUM 1 (GF) (LOUNGE, SEATING AREA & RETAIL SHOPS)

LEVEL 13 TYPICAL FLOOR (OFFICES AND DOUBLE ROOMS)

LEVEL 3 (GYM ,CAFÉ, NUTRITIONIST BEAUTY SALON & SPA

LEVEL -1 (UNDERGROUND PARKING

10 MORPHOLOGY

NUTRITIONIST OFFICE

A-A

SECTION B-B

11 STRUCTURE DETAILS
SPA )
PARKING & BASEMENT)
SECTION

EAST ELEVATION

SOUTH ELEVATION

12
NORTH ELEVATION
ELEVATIONS
WEST ELEVATION
13 SITE PLAN

NEW MILLINUEM MUSEUM – DESIGN 4 STUDIO

PROJECT

The New Millennium Museum project draws inspiration from the iconic architect Ludwig Mies van der Rohe, renowned for his minimalist design principles and innovative use of materials. Embracing Mies’s ethos of “less is more,” the museum aims to provide visitors with a serene and immersive experience while showcasing contemporary art and cultural exhibits.

14 INTRODUCTION
JU
02
/ 2023
15

STATEMENT

“[In art], less is more.” - Ludwig Mies van der Rohe

The story behind this project: I was in a contemporary architecture lecture and the architect mies van de rohe caught my attention by the way he uses lines and surfaces then immediatly looked for his design methods and got inspired.

This museum’s design is characterized by clean lines, geometric forms, and a minimalist colour palette, reflecting Mies’s signature style. Transparency and fluidity define the spatial organization, with an emphasis on open layouts..

16
JU / 2023 PHILOSOPHY

BUILDING CONCEPT

the Concept is rooted in the belief that design can and should be used to create buildings that are both aesthetically pleasing and environmentally responsible. The central courtyard serves as a physical manifestation of this philosophy, showcasing the beauty of nature while also contributing to the building’s sustainability.

DESIGN APPROACHES

MODERN BIOPHILIC

Incorporating modern biophilic creates a welcoming, immersive environment. By integrating natural elements.

ECO ART

Eco-art in museums enriches visitor experience, promotes environmental awareness, and encourages collaboration for sustainability.

GREEN ROOFS

Green roofs enhance sustainability, aesthetics, and community engagement, serving as a model for green building practices in the cultural sector.

17 CONCEPT & MORPHOLOGY
5*5 GRID SPATIAL LAYOUT
18 EXTERIOR
19

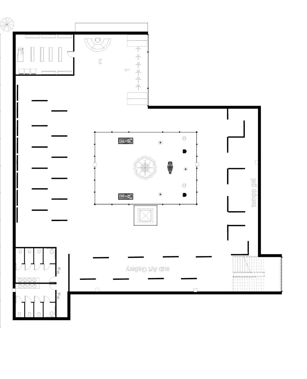
PODIUM (GF) (MAIN ART GALLERY, SUB ART GALLERY ,SCULPTURES GARDEN, RETAIL SHOP)

THIRD FLOOR (ADMINSTRATION, SPECIAL PIECES AREA & IT ROOMS

FIRST FLOOR (RESTAURANT, LIBRARY, ART STUDIOS)

BASEMENT -1 (STORAGE, WORKSHOP, LOADING-UNLOADING

20
PLANS

AREA &

SECOND FLOOR

(GREEN ROOF, CONFERENCE ROOM & MEDITATION SPACE)

21 WORKSHOP, SECURITY &
LIBRARY, RESEARCH
UNDERGROUND PARKING -2

3D MASSING MODEL

22
3D SHOTS
SKIN PATHWAY

SCULPTURE GARDEN

GALLERY AREA

24 ELEVATIONS
WEST ELEVATION
SECTION A-A
SOUTH ELEVATION
25 SECTIONS
SECTION B-B
EAST ELEVATION NORTH ELEVATION
26 3D MODEL
27 SITE PLAN

MULTAQA STUDENTS CENTRE

DESIGN 3 STUDIO PROJECT

This project was designed to revolutionize the student experience by prioritizing the concepts of clustering and human-centric design. Situated at the heart of the campus, this innovative facility aims to create a dynamic environment that fosters collaboration, community engagement, and well-being among students.

/ 2022 - 2023

28 INTRODUCTION
JU
03
29

DESIGN PROCESS

Grid Reference System to ensure cohesive and organized architectural layout.

Dividing the block into 2 masses to identify functional requirements.

creating a space for an efficient circulatio and to define the objectives.

each unit is inclined to an opposite approach due to the site forces.

30 MORPHOLOGY

BUILDING CONCEPT

MULTAQA reimagines the traditional student centre as a multifunctional hub that brings together diverse activities, services, and amenities within clustered zones. Achieving the Concept of clustering on interior and reflecting it on exterior, the project focuses on enhancing the overall student experience through thoughtful spatial organization, user-centered amenities, and intuitive navigation.

31 FORM EXPLOADED
32 EXTERIOR

GROUND FLOOR (LOUNGE, AUDITORIUM, GYM & RESTAURANT)

FIRST FLOOR (LIBRARY, PAINTING

A-A

PLANS
SECTION

ROOM, STUDY ROOMS)

SECOND FLOOR (IT ROOMS, ADMINSTRATION & ARCADE ROOM)

35 SECTIONS
SECTION B-B

LOUNGE AREA

36 INTERIOR
EXPOSED AUDITORIUM

GENERAL STUDY ROOMS VIEW

37
RESTAURANT
38 ELEVATIONS
ELEVATION
NORTH
WEST ELEVATION EAST ELEVATION SOUTH ELEVATION
39 SITE PLAN

04 REDESIGN & RENDERED SHOTS.

40
Airport rd. AMMAN-JORDAN
41 2023

LANDSCAPE PROJECT (PATHS INTERSECTION SHOT)

42 RENDER
EXPOSED AUDITORIUM SHOT

HEXAGON SHAPE PAVILION DESIGN

RENDER
URBAN PLANNING 1 CITY SHOT

SKETCHES.

NOTRE-DAME DE PARIS CATHEDRAL

44 05
45
JU - 2022
46 JU - 2021/2022
47 JU - 2021/2022
48 THANK YOU! 2020-2024

Turn static files into dynamic content formats.

Create a flipbook
SK Portfolio by Samar Al-khashman - Issuu