Selected Works - Samantha Guzman

Page 1


SAMANTHA GABRIELLA GUZMÁN

DESIGN PORTFOLIO

PERSONAL STATEMENT

My exposure to architecture originated from our home. My Venezuelan household taught me the value of hard work and passion, instilling in me a lens for the built environment that intersects with public awareness of the social and systemic barriers in marginalized communities. The stories and traditions I grew up with made me curious about how architecture can emerge as a link between the physical and cultural context. I applied these interests in shaping my architectural agency through my undergraduate involvement. I am interested in working on public interest projects that focus on the human-centered experience. My ultimate goal is to establish a practice dedicated to such initiatives, where the emphasis is on research, cultural context, and urban analysis aimed at positively impacting communities.

EDUCATION EXPERIENCE LEADERSHIP SERVICE

Harvard University, Graduate School of Design

Masters of Architecture I | May 2028

Texas A&M University, College of Architecture

Bachelors of Environmental Design | May 2024

Barcelona Architecture Center

Semester Abroad | Fall 2022

Texas Target Communities (TxTC) | College Station, TX

Research Assistant, May 2024 - Aug 2024 organizing, modeling, and 3d printing a 1:500 scale map of the Tenth Street District in Dallas, TX to be featured in the exhibition and to provide as a resource back to the communtiy for future planning.

TAMU ARCH Lecture Series | College Station, TX

Student Worker, July 2023 - May 2024 selected amongst my cohort to design and produce the graphics design for the 20232024 TAMU ARCH Lecture Series: Frameworks.

Corgan | Dallas, TX

Commercial Studio Summer Intern, May 2023 - Aug 2023 produced renders, animations, and contributed to schematic design phases for various commercial projects. actively participated in on-site visits, gaining practical insights into the construction process and enhancing overall project understanding.

Corgan | Austin, TX

Commercial Studio Summer Intern, May 2022 - Aug 2022 assisted in team projects and learned about the steps post schematic design phases. also participated in a design sprint project with the HUGO team, designing a sustainable inovation.

American Institute of Architecture Students | College Station, TX

Marketing Director, May 2023 - May 2024 Marketing Officer, May 2022 - May 2023 currated the graphic identity for this years AIAS marketing materials. led a team of students interested in graphic design skills. part of a mentorship family of first and second year students.

National Organization of Minority Architecture Students | College Station, TX

Event Coordinator, Aug 2023 - May 2024 Member, Aug 2021 - May 2023 organized donation drives for student resource library and community outreach events.

Twelve | College Station, TX

Service Officer, May 2021 - May 2022

Member, Jan 2021 - May 2024 service leader in a diverse social-service organization. organized and hosted many cleanups that made a direct impact on the Brazos community. increased involvement with our philantrophy, Tiny Hope Village, a non-profit organization building tiny homes to reduce homelessness in Brazos County.

Tiny Hope Village (THV) | Hearne, TX

Volunteer, Jan 2021 - May 2024

connected with the THV community. helped raise money towards the building of these tiny homes. organized work days to go help clear up the site for future construction.

RECOGNITION

Texas Society of Architects Studio Awards | Addressing Food Scarcity 2023

Fresh Visions II Wright Gallery Exhibition | Machine Assembly Summer 2022

Axiom TAMU Student Publication | Flux 2022

RESEARCH SKILLS

HOME-OFFICE | Simple Machines Workshop | Spring 2023

Texas Target Communities (TxTC) | Urban Interventions of Jefferson | Spring 2023

T4T LAB | Machine Assembly | Spring 2022

Digital Software

Rhino 3dm

InDesign

Illustrator

Photoshop Revit

3D Printing

Keyshot

AWARDS

Modeling Skills

Hand Modeling

Laser Cutting Languages

English Spanish

Harvard GSD Dean Merit Scholarship 2024-2028

Hispanic Scholarship Fund - HSF Scholar Recipient

Nov 2023

Class of 1972 Endowed Aggie Ring Scholarship

May 2023

William Merriweather Pena Scholarship

May 2023

Ellison Miles Scholarship

May 2023

History Maker Homes Scholarship

May 2023

A Robert ‘83 & D Baker ‘83 Endowment

Aug 2022

Former Students Pooled Scholarships

Aug 2022

Peggy & Charles Brittan SABR

Aug 2022

Joe & Sheyrrye Bass SABR Scholarship

Aug 2022

Herbert Hale JR. ‘52 Endowment

Aug 2022

001 Four, Three, Two, One

Core I | Living Single, Living Together

Professor Jenny French

Contribution: research, design, drawings, physical models

Skills: rhino 3dm, illustrator, photoshop, model making, 3D printing

“Percier and Fountaine’s rectified reconstruction, with its asymmetrical space inside a symmetrical envelop... latent structure of inhabited space burst through the confies of classical planning in his architecture.” Translations from Drawing to Building and Other Essays; Robin Evans

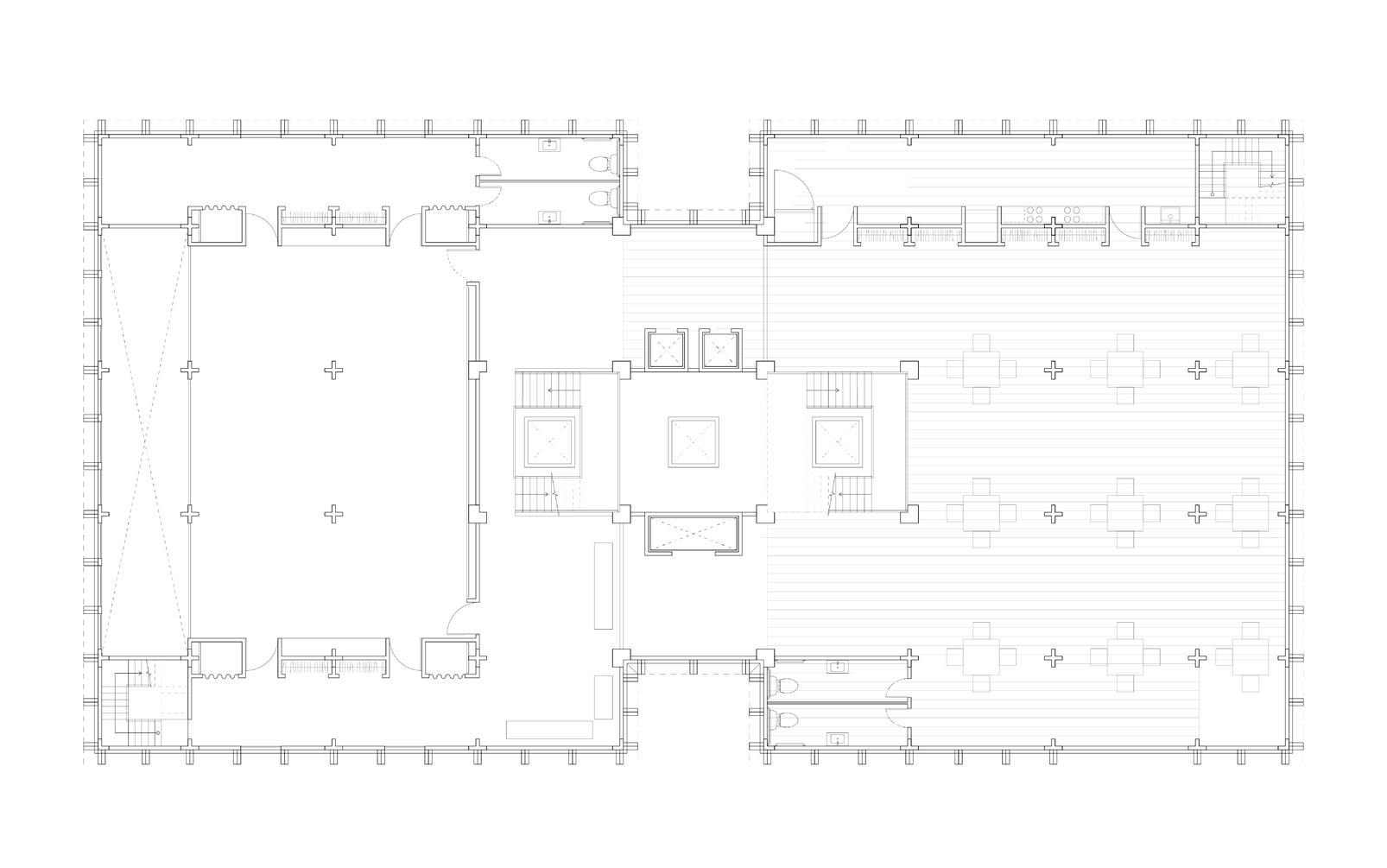
The project is a duplex between two social narratives, two single families that extend support from the neighborhood to its internal child daycare nested between the collective living space. The project starts with a given plan, providing a constraint that the plan must being kept pure at one level and can then misalign and deviate vertically above or below. I had given plan 04 and initially took note on the parallel indication of the corridor on the top and bottom and the asymmetry within symmetry the blank plan begins to unfold. My project plays with the role of symmetry. However, through the misalignment and logics dictated by the four towers. This order allowed room for disorder, disguised by the repetitive building envelope. Following the rule of symmetry the diagram begins to play this game of spot the difference between the spatial relations only seen through the plans and section.

The duplex is integrated in context between different zoning lots in the cambridge/somerville area. The contrast between the residential front versus the commercial back, proposes a common zoning challenge visible in the Somerville/Cambridge area. The emphasis of the symmetrical look of the 3 story front side with the visible four towers versus the back side accessible from the second level that serves as the main entrance to the commercial space. The towers appear on the outside to host the same function, but in reality take on different roles, whether light wells into the private bedrooms or act as vertical circulation cores.

The project pushes the boundaries of collective living and flexible spaces while asking a deeper question to the design of how the duplex could respond to the larger network of its context.

LEVEL 00 - RESIDENTIAL SHARED LIVING

MODEL
MODEL PHOTO - DAYCARE FRONT
MODEL PHOTO - RESIDENTIAL FRONT

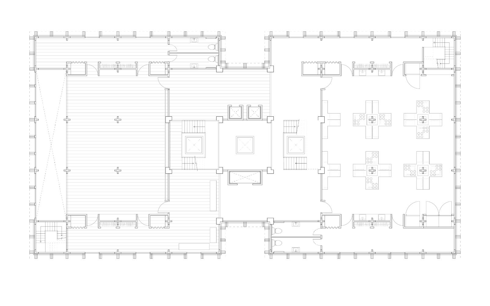
002 PLUS + PLUS

Core I | Sample, Cut, Stitch

Professor Jenny French

Contribution: research, design, drawings, physical models

Skills: rhino 3dm, illustrator, photoshop, model making, 3D printing

noun or verb

Assembly an accumulation of parts, generating a collective whole

The project is a duplex between two social narratives, two single families that extend support from the neighborhood to its internal child daycare nested between the collective living space. The project starts with a given plan, providing a constraint that the plan must being kept pure at one level and can then misalign and deviate vertically above or below. I had given plan 04 and initially took note on the parallel indication of the corridor on the top and bottom and the asymmetry within symmetry the blank plan begins to unfold. My project plays with the role of symmetry. However, through the misalignment and logics dictated by the four towers. This order allowed room for disorder, disguised by the repetitive building envelope. Following the rule of symmetry the diagram begins to play this game of spot the difference between the spatial relations only seen through the plans and section.

The duplex integrated in context between different zoning lots in the cambridge/somerville area. The contrast between the residential front versus the commercial back, proposes a common zoning challenge visible in the Somerville/Cambridge area. The emphasis of the symmetrical look of the 3 story front side with the visible four towers versus the back side accessible from the second level serves as the main entrance to the commercial space. The towers appear on the outside to host the same function, but actually take on different roles, whether light wells into the private bedrooms or act as vertical circulation cores.

The project pushes the boundaries of collective living and flexible spaces while asking a deeper question to the design of how the duplex could respond to the larger network of its context.

LEVEL 02 - CULINARY STUDIO

MODEL PHOTO - FRONT ELEVATION

003 ADDRESSING FOOD SCARCITY

Arch 305 Research Studio | Urban Interventions for Jefferson, TX

Professor Tyrene Calvesbert

Contribution: research, design, drawings, production site, collective site, experience site

Skills: Arc GIS, rhino 3dm, illustrator, photoshop Collab w/ Aidan Lozano

a food desert is a specified area that features “large proportions of households with low incomes, inadequate access to transportation, and a limited number of food retailers providing fresh produce and healthy groceries for affordable prices.” These combined paramters of low-income, inaccessibility, and unaffordability target underserved populations, particularly minorities, who are placed in vulnerable dispositions through societal, political, and economic factors within their spatialization hosted by numerous systemic barriers.

Ranked at the national scale, Marion County, TX categorizes within the high food insecurity level, translating to unaffordability to an adequate diet. Statistically speaking, 24% of all people in Marion County are food insecure in comparison to 15.4% at the state level and 12.9% at the national level as provided by Urban Institute. Looking into the county level, we analyzed food accessibility, the reality being there are no main distributors, forcing locals to travel out to other neighboring counties to buy basic necessities.

Based upon our findings, we have concluded that Jefferson is considered a food desert. These combined parameters of low income, inaccessibility and unaffordability target underserved populations who are placed in vulnerable dispositions through societal, political, and economic factors within their spatialization hosted by numerous systemic barriers.

Assessing Jefferson at the city scale, we used our agency in curating buffer zones centered around pre established food programs with varying radii; taking into consideration age demographics. Our buffer zones produced three focus areas that we defined as underserved, narrowing our potential site selections. We developed three project proposals unique to each area, pushing the agenda to exceed past the traditional conception of food distribution.

Our project aims to reformulate food insecurity by considering its pertinence as a challenge of distribution while seeking to transform it through proposing new urban infrastructure given its relevance at multiple scales while extending its use beyond the needs of the underserved community. We aim to reimagine the conventional approach to addressing food deserts by conceptualizing our project across various sites and levels using field, collection, and figure strategies.

Food Desert

FOOD AS COLLECTIVE

FOOD AS PRODUCTION

FOOD AS EXPERIENCE

POTENTIAL SITE - AXONOMETRIC

“No grocery competition”

“More housing on empty lots”

“Youth retention, higher paying jobs”

“Comc bldg - community closet”

“Grocery and Gas Stations are frequently used” “Good place”

“We can improve on feeding more people”

**the graphics on this page were made based on information researched from ArcGIS, Public and Stakeholder Engagement Survey, Final Report and Appendix, Public Engagement Report

ZOOM ANALYSIS - PRODUCTION

“Froggtown revitalization. Is it really moving? Need volunteers?”

“Need to involve all facets of community. Schools need more parent involvement”

“Apartments, good open spaces”

“Community development”

ZOOM ANALYSIS - COLLECTIVE

“Food and shopping is appealing”

“I would like to see more variety in food options”

“Community Development”

“More variety in dining”

“Representation of ethnic diversity need to improve, from food to cultural background. Jefferson could benefit from highlighting and promoting education and understanding of different cultural and ethnic groups”

“Only one grocery store - food desert”

“Tourism in Jefferson is strong and thriving”

“The staff is awesome, the store needs updating! The freezers leak too much, the beer is hardly ever cold! For it to be our main grocery store the building could match the great employees!”

ZOOM

GREEN HOUSE LAB // SECTION
FROGG SITE PLAN // AXONOMETRIC
DISTRIBUTION SITE PLAN // AXON. ZOOM FOOD AS
GOAT
YOGA // PERSPECTIVE

004 CONNECTING CORNERS

Study Away Program | Cultural Center in Gracia, Barcelona, España

Professors Miguel Roldán, David Espuña

Contribution: research, design, drawings, collage, renders, section

Skills: ArcGIS, rhino 3dm, illustrator, photoshop, keyshot Collab w/ Gabrielle Gonzalez

“Gracia can’t breathe. We demand a green space here. Imaginem verde. What could l’Abaceria 3.0 be?” The fence around the vacant site, was filled with posters with these quotes from the surrounding community. The locals made paper flowers and water bottles filled with plants to stress Gracia’s need for greenery, as the density of hardscapes contributing to their rising heat index.

Barcelona is an urban fabric made of corners. Analyzing the urban structure, the integration of expanding green, public spaces within the city blocks has increasingly developed throughout history. Cerda’s Plan was an urban design reformation in 1860 to extend the public and green spaces through a new layout for the Ensanche expansion. A unique characteristic was the integration of the chamferred corner which opened the area of street intersections and created a sense of connection between different directions. With only few plazas in the neighborhood of Gracia, the problem of the original orthogonal orientation was identified to eliminate public space and curate rigid entrances restrictive to four facades. Our project is orientated 35° from the intial orientation with entrances now facing the north and south direction. The new orientation developed six corners that began to weave with the preexisting public space.

The result of the rotation generated new perspectives in relation to the surrounding balconies. Instead of designing with the original structure, the project site now behaves as a block to reestablish the connection and iteraction amongst the people of Gracia with relation to the public space extension.

Food is very important to the Spanish culture. Our proposal for the cultural center provides kitchens and gathering spaces for the community to congregate and have a larger resource to host events. The corners are given back the greenery the locals have been longing, and act as buffer spaces as one enters from the confined, narrow streets. The ramp has a flexi brick facade structure using the regions natural clay material.

This project provided a unique experience being able to engage beyond the site in understanding the cultural context and guidance from Spanish archtiects.

COMMUNAL KITCHENS

RAMP HALLWAY // RENDER
ROOFTOP GARDEN

005 AFTER HOURS

Arch 405 Integrated Studio | Texas A&M University Visitor Center

Professor Marcel Erminy

Contribution: research, site analysis, drawings, floor plans, section, renders, integrated system, integrated system, physical bones model

Skills: revit, rhino 3dm, illustrator, photoshop, keyshot Collab w/ Ava Greaney

“How long will the visitors be inside before beginning the tour?” “The visitors will be inside for 15 minutes.”

Texas A&M University currently has 74,000 students enrolled and constantly surpasses that amount each year. The university currently hosts 2,000 prospective students annually to visit here in College Station, which raised the need to design a visitor center to better host the tour guides out of the current shared space in the rudder auditorium.

After the pandemic and seeing how needs caused spaces to adapt, it is crucial to challenge the thought; how can this visitor center respond beyond the needs of the visitors? A provoking idea that we felt is necessary to push for as this building should not have this much investment to only serve as a touring operation center Monday through Friday open from 9am - 5pm,

The project not only required us to integrate the structure and system components, but also challenges a response to the site with the public interest in mind.

DOUBLE HEIGHT CAFE REALITONS // SPATIAL SECTION

COLUMN CONNECTION // EXPLODED DETAIL

SPECIAL CONDITION // EXPLODED DETAIL

006 SIMPLE MACHINES

Simple Machines Workshop | Spring 2023

Led by Brittany Utting, Daniel Jacobs (HOME-OFFICE)

Contribution: research, design, drawings, physical model, fabricating Skills: revit, rhino 3dm, illustrator, photoshop, keyshot Collab w/ Christian Martinez, Alex Pina

AIAS hosted a workshop with Brittany Utting and Daniel Jacobs HOME-OFFICE to explore the design and fabrication of a simple machine. This simple machine was asked to host an arduino sensor to be able to collect air quality data in a chosen site. The large span of the machine allows it to be placed over bodies of water, such as lakes or ponds, where air quality measurements can be compared to those at the water bank. The retractible and extendable modules can be set up to collect data at regular intervals, allowing users to monitor changes in air quality over time and identify potential sources of pollution.

Overall, this experience was rewarding in the engage in collaboration with fellow individuals to transform conceptual drawing ideas into model design proposals. It was interesting to experience making live changes to the design when fabricating the model.

007 MULLION MOCK-UP

Corgan Internship | Summer 2023

Contribution: research, 3D printed mullion caps, drawings, physical model Skills: rhino 3dm, illustrator, 3d printing, prototype design

During my internship at Corgan, Commercial Studio sector, I was tasked to explore Kawneer curtain wall cap mullion options. The goal was to use 3D modeling and printing skills to create a prototype that could serve as a physical, interactive model for internal and external use. This model aimed to help visualize design possibilities beyond the standard 2.5-inch mullion cap cover, that the project manager expressed to me as the typical revit default in their practice. I designed the system based on various mullion cap cover elevation profiles and 3D printed them.

In a team meeting, I presented the project and observed colleagues interacting with the curtain wall prototype, choosing and testing different profiles. This project was unique to the commercial studio and fueled my interest in the design-build process. I enjoyed the designing, physical modeling, and consideration of the user experience.

PROTOTYPE

008 MARKETING

AIAS Marketing Director

Contribution: graphic designs, posters, fliers, instagram posts

Skills: illustrator, photoshop, rhino 3dm

As the AIAS Marketing Director, I was in charge of planning the graphic aesthetics for the 2023-2024 term. This involved choosing the fonts, color pallete, and design style to help guide the marketing committee to be involved in helping design various graphics, while following a cohesive identity. The graphics aim to have typography as the main elements and drive of the overall design. Techniques used include; scale, color hierarchy, and layering. The following graphics are a mix of individual works and some currated with committee chair members.

I also was selected amongst my cohort this year to be hired as the designer of TAMU Arch Lecture Series. Based on the theme being “Frameworks” I currated a theme and color pallete to produce a cohesive set of individual posts for each lecturer as well as the overall posters for each semester. These opportunities have assisted in developing my skills in graphic design and marketing.

Turn static files into dynamic content formats.

Create a flipbook
Issuu converts static files into: digital portfolios, online yearbooks, online catalogs, digital photo albums and more. Sign up and create your flipbook.