Tarea_portafolio profesional_20%

Page 1

PORTAFOLIO

Proyectos Selecionados

1
Heidi Samantha Villacis Aldas

Soy estudiante de arquitectura con una fuerte pasi贸n por el dise帽o y la creaci贸n de espacios innovadores. Actualmente curso el quinto semestre en la Universidad Tecnica de Ambato, dondehedesarrolladohabilidadesendiversas 谩reasdelaarquitectura.

Durante mis estudios, he participado en varios proyectos acad茅micos y extracurriculares que me han permitido aplicar mis conocimientos ensituacionespr谩cticas.Adem谩s,heasistidoa talleresyseminariosquehanampliadomiperspectivasobreeldise帽osostenibleylaarquitectura moderna. Mi objetivoes seguir aprendiendoycontribuirconideasfrescasy creativasen el campo de la arquitectura, buscando siempre la excelencia en cada proyecto que emprendo.

2
Samantha Villacis

Educacion

2014-2021

BachillerenCienciasenelColegioPelileo

2021 UniversidadTecniadeAmbato

Manejo de Software

Idiomas

InglesA2-Conversasional

Espa帽ol

3
4 01 ViviendaSocialIllarri

FacultaddeDise帽oyArquitectura

5 02

01 Vivienda Colectiva Personas Vulnerables

ProyectodeTercerSemestre

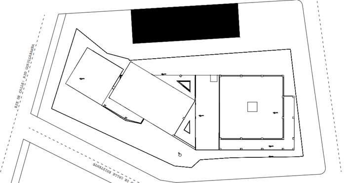
LaresidenciaILLARIest谩destinadaaserhabitadapormujeres.Ubicadaenunazona estrat茅gica de la ciudad de Ambato, al estar cerca de lugares concurridos como elHospitalSantaIn茅s,laUnidadEducativa CeliteyelparqueLaFloresta.Seencuentra apocadistanciadenodosurbanoscomo el centro comercial Mall de los Andes.

6
ILLARI

ProcesodeDise帽o

Implantacion

Estrategias

Relaci贸nInterior-Exterior

Es la relaci贸n de los espacios, c贸mo esta est谩 distribuida y da la experiencia sensorial al transmitir el estado de paz y tranquilidad a trav茅s de elementos tipol贸-

Composici贸nMorfolog铆a

Tipo de arquitectura que se implementa a trav茅s de valores de escala con la proporci贸n de altura del edi脼cio, continuidad de la fachada, adecuaci贸n topogr谩脼ca y volu-

7

LenguajeArquitectonico

Integraci贸ndeVegetaci贸n

Vegetaci贸nenpatioscomoenespaciosde conexi贸n, celos铆as como estrategia para proporcionar identidad al espacio para generarsentimientodeseguridad.

Ventilaci贸neIluminaci贸n

Ayudar谩aqueeledi脼ciosemantengafresco y con luz, dando as铆 un espacio donde se pueda obtener la satisfacci贸n de necesidades.

8
Planta Baja
9 PlantaPrimerNivel.PlantaSegundoNivel.

PrespectivaInterior PrespectivaExterior

CorteTransversal

10

FachadaLateralDerecha FachadaFrontal

CorteLongitudinal

11

Prespectiva

12 PrespectivaExterior
13 PrespectivaExterior

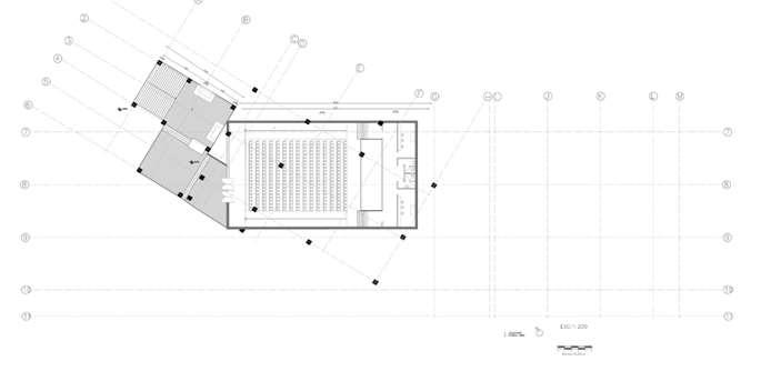
02 Falcultad de Dise帽o y Arquitectura

ProyectodeCuartoSemestre

Las piezas arquitect贸nicas en el modernismo suelen ser elementos constructivos que destacan por su simplicidad y funcionalidad. Esto incluye componentes como colum-nas, vigas, y paneles modulares que se utilizan de manera clara y directa, sin decora-ci贸n excesiva.

14
Pieza

ElementosProyectuales

Implantacion

PuntosdeArquitecturaModernista

Funcionalismo

PrioridadalaFunci贸n:Lam谩xima鈥渓aformasigue alafunci贸n鈥漞scentralenelmodernismo.Eldise帽o arquitect贸nico debe responder a las necesidadesfuncio-nalesdeledi脼cioydesususuarios.

SimplicidadyMinimalis-

Dise帽o Limpio y Sencillo: Las formas geom茅tricas simples y las l铆neas limpias son caracter铆sticas distintivas,evitandoadornosydetallesinnecesarios.

Est茅tica Sobria: Se busca belleza basada en la purezadelaforma ydelosmateriales,sinrecurrir adecoracionessuper脽uas.

15

LenguajeArquitectonico

16
Subterraneo
17
PlantaBaja PrimeraPlanta

SegundaPlanta

18
PrimeraPlanta

CorteLongitudinal

19
CorteTransveral FotodelaMaqueta

ElevacionFrontal

ElevacionPosterior

UsodeMaterialesModernos

Nuevos Materiales: El modernismo se caracteriza por la adopci贸n de materiales como el acero, el hormig贸n armado y el vidrio, que permiten mayores posibilidades estructuralesyest茅ticas.

Innovaci贸n Tecnol贸gica: Incorporaci贸n de nuevas t茅cnicas de construcci贸n y tec-nolog铆a avanzada, facilitando la creaci贸n de estructuras m谩s ligeras y resistentes.

20

ElevacionLateralIzquierda ElevacionLateralDerecha

FotodelaMaqueta

21

FotodelaMaqueta

22
FotodelaMaqueta
23
Gracias

GRACIAS

24

Turn static files into dynamic content formats.

Create聽a聽flipbook
Issuu converts static files into: digital portfolios, online yearbooks, online catalogs, digital photo albums and more. Sign up and create your flipbook.