

Intro
The project is situated within the existing ACV building, located in the heart of Ghent. The historical city centre is strongly present, with landmarks such as Saint Nicholas’ Church and the Belfry within close proximity. The site is bordered by busy streets that naturally lead toward the touristic core of the city, reinforcing its central and strategic position.
Exploring the wider context reveals a pronounced creative and cultural character. Nearby institutions such as the Design Museum, the music and dance academy, and the Sint-Lucas School contribute to a vibrant artistic atmosphere that defines the area.
Another key aspect of the context is the presence of several care facilities in the vicinity. A significant number of less mobile residents live in the area, highlighting the importance of accessible, inclusive, and well-connected public spaces within the project’s scope.


Upon entering the site, one is immediately confronted with its complexity. The entrances are not clearly articulated, which creates a sense of ambiguity regarding the main access points.
The scale of the building is perceived as large and dominant, with limited reference to human scale. This offers an opportunity to rethink how the space can become more approachable and engaging for users.
In addition, the site is predominantly paved, with little to no presence of greenery or biodiversity. Introducing natural elements could significantly enhance the spatial quality and soften the overall character of the site.

Needs & ambitions
By examining the City of Ghent’s future spatial programme and linking it to our site observations, two major needs became evident: the growing demand for spaces that support creative and making practices, and the need for more green and biodiverse environments within the city centre. In response, the project proposes the creation of a makerspace that functions as a shared environment where creative individuals can meet, work, and exchange ideas. At the same time, the design introduces green and biodiverse spaces that enhance the urban experience for both wandering tourists and local residents, contributing to a more inclusive and resilient city centre.


Utsuroi & Layering
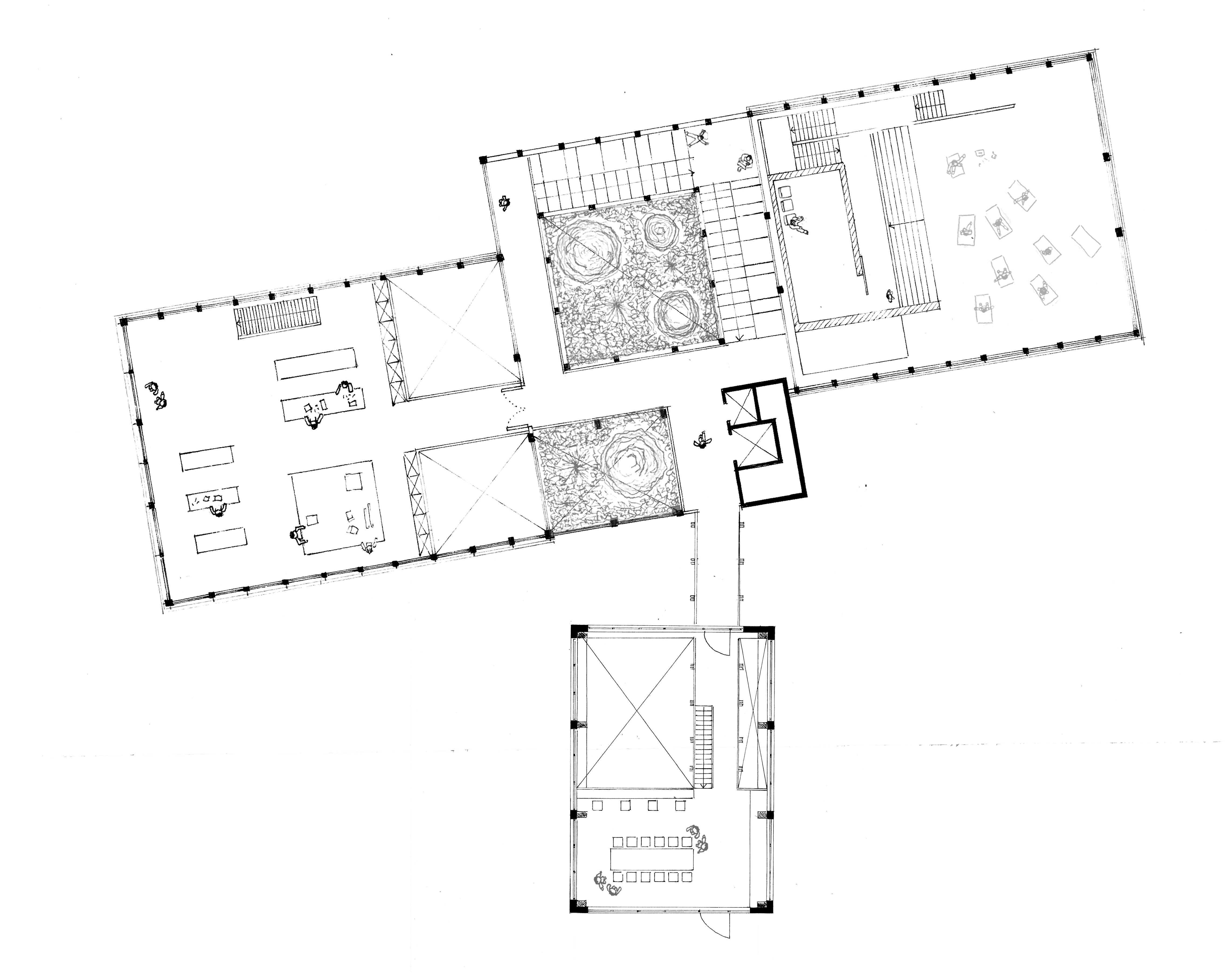
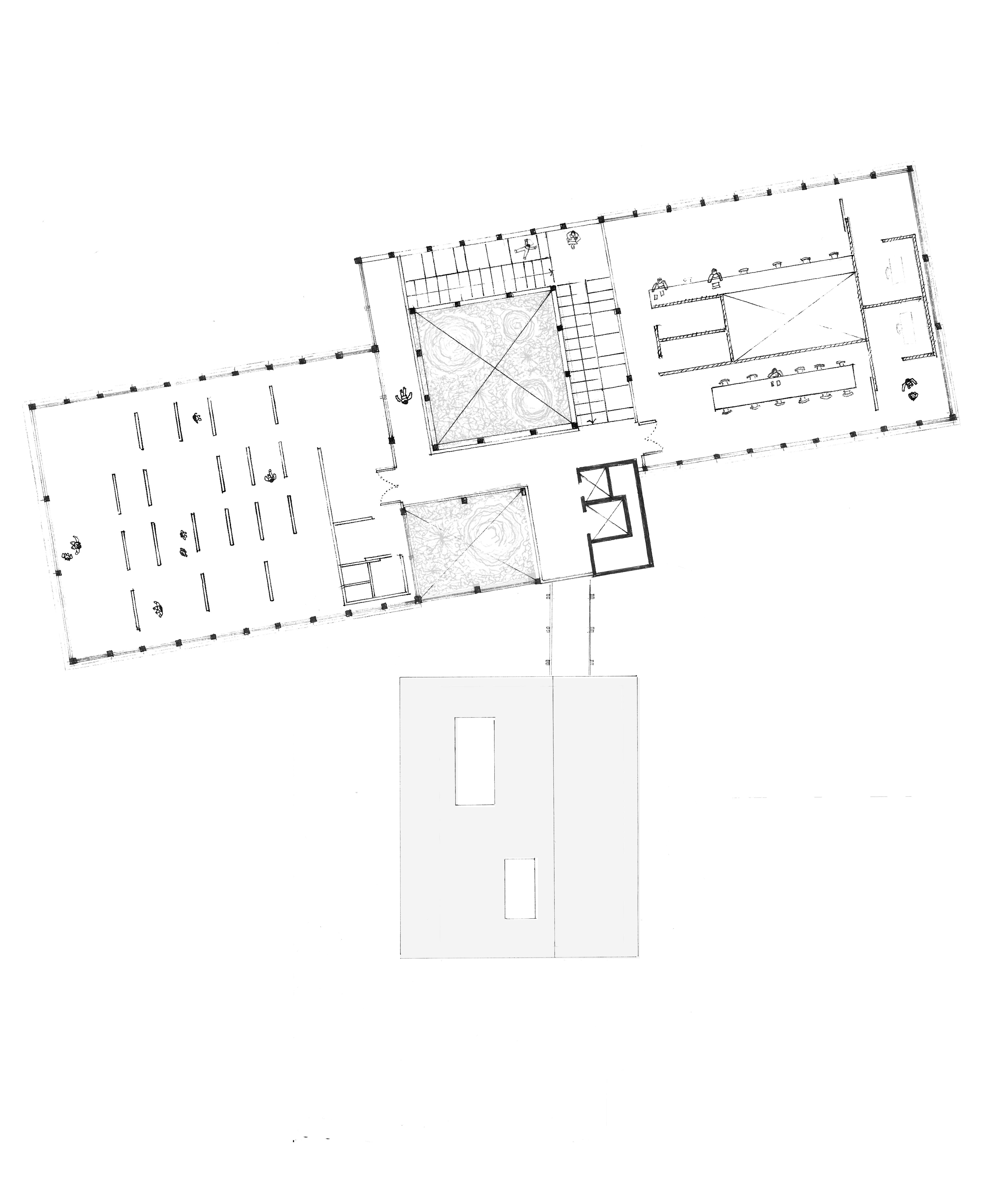
Given the large and fragmented character of the site, the design explores ways to introduce a more human-scaled spatial experience. This search led to Japanese spatial concepts, in particular the notion of Utsuroi, which refers to gradual transitions and subtle shifts in atmosphere. Through the use of layering, distinct places can emerge within a continuous and immersive spatial framework.
Layering is therefore adopted as a key design strategy, applied to both the new programme and the landscape design. Each successive layer gently transforms the atmosphere, guiding users from more public spaces toward increasingly intimate and sheltered environments.

layering concept 1

overview of the three layers

functions explained by the three layers






sections scale 1:150

sections scale 1:150


moments of encountering



















































