Salim Ahmed
Contact Information
salim.aldirdiri@gmail.com
(916)7167862
San Francisco, CA
Work Experience
BIM and Project Management Assistant Intern - Design/ Ivy Hume
Oakland, CA | 6 Weeks Summer Internship - Summer 2025
• Led BIM setup and standards for the office (Revit templates, worksets, file management).
• Provided Revit training and technical support to team members.
• Coordinated drawing production for ongoing permit and construction documentation.
• Managed troubleshooting, modeling standards, and versioning across projects.
• Proposed design adjustments to enhance spatial quality and atmosphere; which were implemented.
Architectural Philosophy
Views. Every project begins and ends with what the user sees, whether framing an existing landscape or crafting new vantage points that enrich the experience. For me, architecture is about orchestrating the experience within every space.
Every detail from the placement of a window to the path a user takes shapes that experience.I design to make every moment intentional, and every ambiance meaningful.
My goal is to create spaces that people remember not just for their efficiency, but for how they feel moving through them.
Education
California College of the Arts –M.Arch Advanced Standing
San Francisco, CA | Expected Graduation: May 2026
Advanced coursework in sustainable architecture, digital fabrication, and design strategy.
University of Khartoum – Bachelor of Architecture Khartoum, Sudan | Completed: 2016 5-year program with a focus on architecture.
• Tracked project design Items as they are studied in options, incorporated into project Revit models, and added to project budget and schedule spreadsheets.
• Worked in Revit to develop project Legends, Schedules and Families, and coordinate Families.
• Worked in Google Sheets and Microsoft Excel to optimize project data management.
• Researched best practice project management softwares available and developing GANTT-charts.
Drafter/Designer – McCandless & Associates Architects
California, United States | Sep 2023 - Dec 2023
•Documented site conditions for 3+ projects, enabling data-driven decision.
•Spearheaded the modification of detailed construction documents, ensuring 100% compliance with local regulations.
•Developed high-quality renderings and color boards, improving client presentations.
•Conducted comprehensive code research, proactively identifying potential issues and expediting approvals by 10%.
Design Architect – Abaad Co.
Taif/Riyadh, Saudi Arabia | June 2021 - Jan 2022 & Dec 2022 - May 2023
•Designed 20+ residential, commercial, and participated in K-12 school projects, showcasing versatility across architectural styles.
•Led the design of two gas stations, ensuring compliance with Saudi safety standards and completing designs ahead of schedule.
•Mentored 2 junior architects, leading to their successful independent handling of small-scale residential projects, providing guidance that improved design compliance to 100%.
Design Architect – Mohammed Al-Hothali Co.
Taif, Saudi Arabia | Jan 2022 - Aug 2022
•Designed residential, mixed-use, and commercial buildings, contributing to 10+ projects across diverse scopes.
Supported junior architects with feedback and training, fostering a 25% improvement in output quality.
•Partnered with senior engineers to secure regulatory approvals, reducing rejection rates and project delays.
•Researched new building technologies, introducing innovative materials that enhanced project efficiency.
Internship – Murtada Maaz Consultancy
Khartoum, Sudan | Sep 2019 - Dec 2019
•Conducted site inspections and contractor coordination for residential projects, reducing construction errors.
•Delivered high-quality design solutions, earning commendation for attention to detail and project management capabilities.
Table of Contents
00 Urban Frame (MArch advanced studio,
2024)
|
Oakland, California
This West Oakland public library engages its urban context withinteractive design, celebrating the city through multiple viewpoints and integrated local art, creating a dynamic exchange between the building and Oakland itself.

Urban Frame — West Oakland Library View from the top floor, framing the cityscape.

Urban Frame









Events through out the library and the atrium being a key element in rhe design and to the user experience. I’m reimaging these moments and approaching the design fwith a similar intention but differernt approach.
I selected and analyzed Louis Kahn’s Phillips Exeter Library as a precedent, focusing on how experience is organized through atrium space and circulation. I reinterpreted these ideas to structure spatial sequence and observation in my own design.





Urban Frame
By figuratively bringing Oakland into the building through local art, and by highlighting key views of the city through observation points, the design immerses the building in its surroundings and establishes a meaningful dialogue with its context.





Urban Frame
Urban Frame responds to Oakland’s context with an interactive design that evolves into a panoramic topfloor platform. Zoning supports diverse users: adults engage with community outreach on the first floor, children enjoy a playful cozy second floor with a café for the parents, and teens have a third-floor lounge. Upper levels house staff functions. A translucent roof and strategic glazing enhance daylight and city views.









The library has two entrances: one for families from the residential side with a front desk, stairs, and elevators nearby; the other from the non-residential side, less directly connected. Site context
Urban Frame



Section Model
Clear Glazing
(Observation/Light)



















Urban Frame

from the top floor The Top Floor as an observation platform.

View of the main reading area
Showcasing the double-height space and integrated artwork.














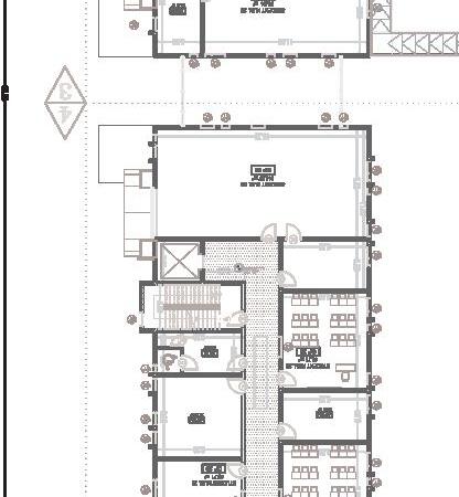
Taif’s Gem | Taif, Saudi Arabia | 2022
This mixed-use development in Taif, Saudi Arabia, combines hospitality and commercial functions in one building. It features sub-basement parking, a shared ground floor, three typical upper floors, and a private top-floor annex tailored to the client’s specific needs.























































































































































































































































































































The site’s slope offered a unique design opportunity. Two elevated entrances were strategically placed to provide easy access to hospitality spaces and sub-basement parking, integrating the building with its terrain—an approach the client especially appreciated.
I was responsible for the complete design of this mixed-use development, from initial concept through building permit acquisition. This included collaborating with the senior engineer on structural and code requirements.































The Forge | (MArch integrated studio, 2025) | Treasure Island, California
This collaborative multi-use development hosts a residential element and a making space. Designed to provide as much services as possible for wood and metal workers.
















The Forge responds to Treasure Island’s wind, sun, and documented soil radiation. Site analysis led to robust, elevated construction for occupant health. The massing is raised and rotated for ventilation and solar orientation, eroded for access, illuminated for daylight, shifted to define public and private zones, and terraced to create outdoor spaces. Each transformation, diagrammed above, directly addresses a site condition.

Site Conditions Map
Site analysis map showing prevailing wind direction and areas of documented soil radiation on Treasure Island. These factors were key in shaping the project’s orientation and construction strategy.


Cut through courtyard and residential units, showing structural layering and the relationship between living spaces and communal workshops. Perspective Section

The Forge | (MArch integrated studio, 2025) | Treasure Island, California



The Forge | (MArch integrated studio, 2025) | Treasure Island, California

The Forge | (MArch integrated studio, 2025) | Treasure Island, California
Detailing the structural envelope, this section illustrates a 5-layer CLT floor over glulam beams and columns. The system supports both residential and workshop zones, optimizing for modularity and load transfer while reducing embodied carbon. Doubleglazed aluminum windows and metal coping complete the envelope.

Cut through the residential units and workshop, illustrating the CLT floor assembly and doubleglazed envelope system. Wall Section A–A Detail - 01
Detail -02
Detail - 02
Detail - 03
-03
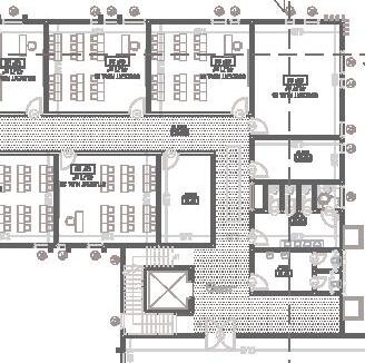
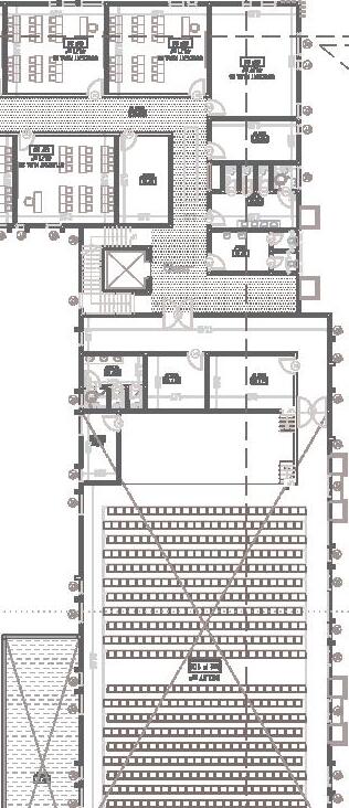
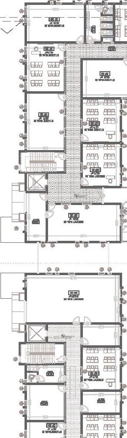
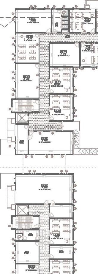
03 Alsahafa School | Riyadh, Saudi Arabia | 2022
Tasked with redesigning the school’s basement, I focused on optimizing the layout to integrate seamlessly with the existing column grid. This involved strategically placing doors and windows based on functional requirements, building type, and accessibility considerations.















































Alsahafa School | Riyadh, Saudi Arabia | 2022






























































































































Alsahafa School | Riyadh, Saudi Arabia | 2022
Alsahafa School | Riyadh, Saudi Arabia | 2022
South Elevation
West Elevation
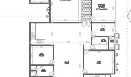
Accessory Dwelling Unit
This ADU, added to an existing ranch garage, transforms a tight footprint into a functional living space. Northeast view analysis guided the placement of the patio and upper deck as seamless indoor-outdoor extensions capturing panoramic views.































































































































































Circulation Diagram
























































Given the client-requested 500 sf footprint, the design minimizes circulation to maximize usable space and enhance comfort and openness.



















































































































Circulation Path
Existing Garage




































































































































Accessory Dwelling Unit | California, United States | 2023

























































































































































Accessory Dwelling Unit | California, United States | 2023
I led the project from initial concept development through client approval of the final design.









