Saiwen Xu_ Portfolio

Page 1


SAIWEN XU

selected works

2022-2024

As an architecture student deeply passionate about the fusion of traditional forms with modern functionality, I present this portfolio as a reflection of my journey through the ever-evolving landscape of architectural design. My education at the Ohio State University and subsequent experiences in various architectural firms have cultivated a design philosophy that cherishes sustainable innovation and thoughtful integration of spaces into their natural and cultural environments.

This portfolio is a curated collection of my work spanning residential, cultural, and commercial projects. Each project, whether a compact urban residence or a sprawling public park, has been a unique narrative in functionality, aesthetics, and environmental responsiveness. From the Vitra Campus to Columbus, Ohio, these projects have allowed me to explore architecture in diverse contexts.

April 2022

April 2023

October 2022

LUNAR CALENDAR

Dcember 2023

RESEARCH WORK OTHER WORKS 05 06

December 2023

March-December 2022

DATUM OF ART

Vitra Prototyping Center

Spring 2022

Individual Work

Prof. Nina Thomson

This project explores programmatic questions related to display and storage through the design of a display pavilion and a prototyping center on the Vitra Campus in Weil am Rhein, Germany.

The Vitra campus is comprised of a collection of extraordinary examples of contemporary architecture from a group of international architects. As a “fully operational production site and a field of experimentation for architecture and design,” the Vitra campus is an opportune site to consider the front and backend of creative production and material fulfillment.

This project is to design a prototyping center on the Vitra Campus in Weil am Rhein. It brings together several different program types including fabrication spaces, design studios, a gallery, and an archive of furniture prototypes into a single building.

My initial concept is to design a building combining features of the complicated shaped museums around campus with the simple volumetric shaped factories. It satrted from two curves and transformed into basic volumes that are both organized radially meanwhile formed public and private space.

Alvaro Siza
Herzog de Meuron
Tadao Ando
Tadao Ando
Zaha Hadid
Frank Gehry
SANAA

8. workshop

Ground floor
Section 1-1’
1. lobby
2. cafe
3. rest area
4. main exhibition
5. temporary exhibition
6. open archive
7. closed archive
9. loading dock
Section
cafe
rest area
closed archive
loading dock

The elevations show the vivid space between the different exhibition pavilions. The characteristics is not only visble and tangible in the interior of each pavilion but also on the exterior when visitors wander around public areas.

TWISTING TOWER

High-rise Tower

Spring 2023

Group Work with Carlos Ocon

Prof. Alex Oetzel

This project is to design a skyscraper in the downtown of Columbus, OH. Its prominent location, linking river, park, and city and serving as a gateway to downtown, inspires a design for the tower that caters to diverse publics.

Our initial concept is to design a building that is seen as a transition from the cultural and natural area on the south-west to the downtown area on the north-east by twisting it only on two facets of the facade facing west and south, creating a dynamic shape that spirals diagonally from southwest to northeast. The two different facade languages are seen as two different attitudes toward the surrounding environments.

Massing Study

Concept Diagram

Program Diagram

In the beginning, we made a few massing studies that explored the different kinds of change on the facades in relation to the interstitial spaces between the exterior and interior.

Hotel Rooms collaborated with Carlos Ocon
Scioto River
Cultural Area
Bicentennial Park
1. lobby 2. reception
theater
cafe 5. convenience store
mechanical room
dining area
kitchen
hotel lobby
0 15’ 45’ 105’

The two photos show the two different languages on the façade. The one on the top presents the twisting language driven by the various types of interstitial spaces whereas the one is seen as a response to the other skyscrapers downtown by adapting a similar language.

GEOMETRY LAND

Columbus Social Housing

Fall 2022

Individual Work

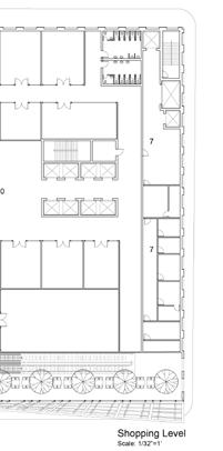
This project is to design a high density housing development that primarily consists of low-rise, high-density housing with a live-work focus in the Franklinton neighborhood of Columbus, an area which lies in the historic flood plain on the west side of the Scioto River. Franklinton has been the focus of a great deal of investment, building, and cultural activity. It is now a burgeoning arts district, lively with galleries, maker spacers, breweries, restaurants, and bars.

Inspired by the idea of art, I attempted to use basic two-dimensional geometry to represent the three-dimensional nature of architecture. These geometric shapes serve as public spaces including a gallery, a restaurant, a sky bridge, and a series of outdoor green spaces, connecting the whole project

The public space is comprised of a gallery, a shopping center, a restaurant, and a cafe. Besides, the circular sky bridge as well as the rooftop of the restaurant and cafe connect to the apartments on the perimeter, creating a vivid live-work environment.

In order to provide a lively mix of families, couples, elderly, and singles, there are several types of housing typologies ranging from the studio to the two-bedroom unit.

LUNAR CALENDAR

Native American Center

Autumn 2023

Individual Work

This project aims to provide a new home for the Native American Indian Center of Central Ohio (NAICCO), an intertribal Indigenous urban community by reflecting on the role that our contemporary American lifestyle and land development play in creating environmental crises for ourselves and our global community. The site sits on the confluence of the two most important rivers in Columbus, Ohio, which also used to be a territory of the Native American community.

Additionally, NAICCO’s members come from dozens of different tribes who are working together as part of the #landback movement. Landback is a cross-tribal, decentralized movement that strives to address structural racism by revesting native communities with rights to and control of their ancestral lands.

It is fascinating that their use of a 13-moon lunar calendar names each month after a particualr astrolomical phenomenon or a event like the “Strawberry moon” in June. Therefore, I aim to revive these traditional concepts to reconnect the community with its heritage. This approach also serves to introduce and educate the wider world about Native American cultural practices.

Besides, The idea of “Yin Yang” is constantly being applied to the project as well as poeple wander around it, since I believe it is similar to the idea of ecology where everything is interconnected with each other, so I decided to use it to organize the entire project.

The physical model shows the overall relationship between each element. Every one of these “pebbles” is connected to another by the path wandering back and forth. This path is seen as “Yin” in some cases, while seen as “Yang” in others.

Strawberry Moon
Flowering Moon
Little Spirit Moon
Great Spirit Moon
Sucker Moon Snowcrust Moon
Sugaring Moon
Freezing Over Moon
Combining Leaves Moon Bright Leaves Moon
Ricing Moon
Bluberry Moon Halfway Through Summer Moon
Major Form
Cycle “Yin” “Yang” Newark Earthwork
Offset Soild and Void
learning center
restaurant
amphitheater
garden
wetland
observatory
gallery
retention pond
playgrounds

The outdoor garden provides an opportunity for people to approach the Ntive American plants closely when they bloom in different seasons, particular spring. These include sages, sweetgrasses, etc.

The purpose of the amphitheater is to serve as a public gathering place where Native Americans can share indigenous cultures by telling tales to both indigenous people from other tribes and visitors.

The playgrounds provide a place for people not only to have a rest but also appreciate the change of whether. In Native American cultures, people used to tell the time by observing ther falling leaves on the ground.

The Learning Center contains a gallery, a rest area, and a theater. The oculus on the roof is meant to bring a sublime feeling into the space and educate visitors about the connection between Native American culture and the moon.

Learning Center Section

VENTILATING BENCH

Independent Research

Autumn 2023

Individual Work

Prof. Iman Ansari

This course delves into the interplay between architecture and medicine, examining their shared history and impact on societal and scientific thought through analysis of texts, buildings, and creative expression.

In this research work I primarily studied the ventilating bench in the dispensary as the object. The utilization of valves, steam coils and air vent was innovative at that era for air control and inspired the development of hospital architecture.

This was used to control the amout of air that could be ventilated.

This was the place where the air came out from the cellar.

This was used to transfer heat to other places.

Valve
Steam coil
Air vent
1. valve 2. wooden support 3. bench
flooring
5. metal box 6. plank 7. column
8. steam coil

OTHER WORKS

Form Explorations

Autumn 2021 - Spring 2023

Individual Work

A collection of representation practices for form, perspective and composition exploratoins.

This project started from deconstructing a chair in our library and rebuild it using the fragments, intended to explore the essence of relationship between each component of the chair.

This project is inspired by an etching by Hans Vredeman de Vries. Based on that, I developed three interpretations exploring the idea of scale and the angles they were going to be viewed.

Turn static files into dynamic content formats.

Create a flipbook
Issuu converts static files into: digital portfolios, online yearbooks, online catalogs, digital photo albums and more. Sign up and create your flipbook.