PORTFOLIO
SABRINA MORGAN
Email: sabrinamorgan66@gmail.com
Phone: 724-683-4365
www.linkedin.com/in/sabrina-morgan-3301702b4

The details are not the details. They make the design.
![]()
SABRINA MORGAN
Email: sabrinamorgan66@gmail.com
Phone: 724-683-4365
www.linkedin.com/in/sabrina-morgan-3301702b4

The details are not the details. They make the design.
Baltimore, Maryland
This pediatric clinic design focuses on behavioral health and centers around the therapeutic use of art. The concept explores how visual stimulation can positively impact mental well-being, using engaging, child-friendly art to create a calming environment and gently distract adolescent patients during their visits.
Rendered Floor Plan




Chicago, Illinois

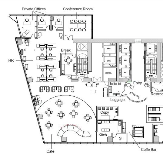
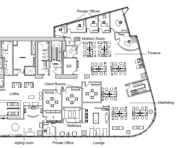
This office and design space for Chanel Headquarters was conceived to reflect the brand’s mission of transcending fashion conventions and embodying timeless luxury. The open floor plan encourages flexibility and collaboration, breaking away from traditional office norms to support creativity and innovation. Designed with advanced technology integration and an emphasis on elegance, the space also features a private styling room to offer clients a personalized and exclusive experience, further reinforcing Chanel’s commitment to defining style and creating lasting desire.





Alliance, Ohio
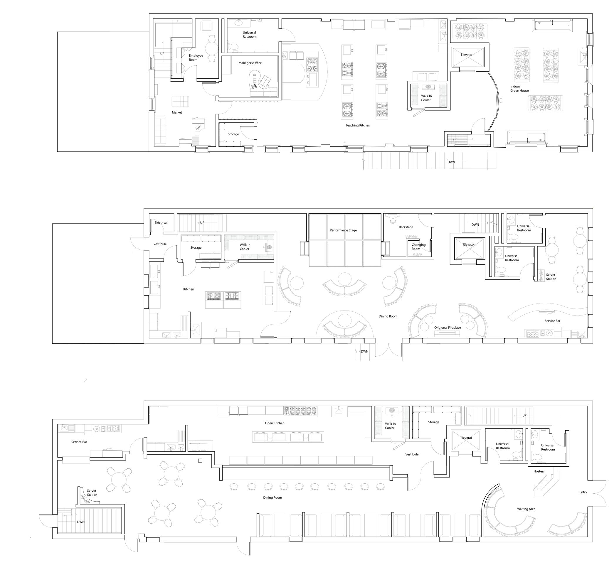
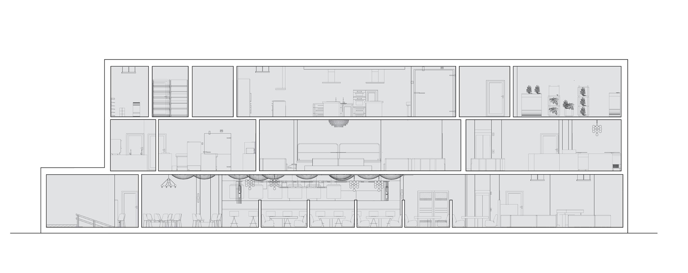
This adaptive re-use project, located in Alliance, Ohio, seeks to express the emotional experience of cultural compression, using each of its three floors to reflect different aspects of community, identity, and healing. The ground floor features a casual restaurant with an open kitchen, inviting guests to witness the preparation of indigenous foods and engage with cultural storytelling through cuisine. The second floor serves as a performance and networking space, designed to foster connection, creativity, and collective empowerment. On the third floor, a greenhouse supplies fresh produce for the restaurant and surrounding community, accompanied by a workshop space for educational programming on healthy eating and cultural food traditions, and a small market aimed at addressing food insecurity.






Illinois
This space is designed to foster a sense of belonging and calmness within the intensity of urban life. The transition from exterior to interior is carefully orchestrated to slow movement while maintaining efficiency. Where circulation, the way people, the blood of our buildings, move through space becomes central to the design. Rather than serving only as the “space between the spaces,” circulation here is conceived as an experiential dimension, capturing the act of moving through the building three-dimensionally and over time. Subtle wall gestures provide natural yet undefined pathways, guiding users fluidly without prescribing a destination. Much like the body’s vascular system, the design sustains continuous movement, minimizing congestion while enabling multiple trajectories that create a smooth, cohesive spatial flow.






Floor Plan


Ohio
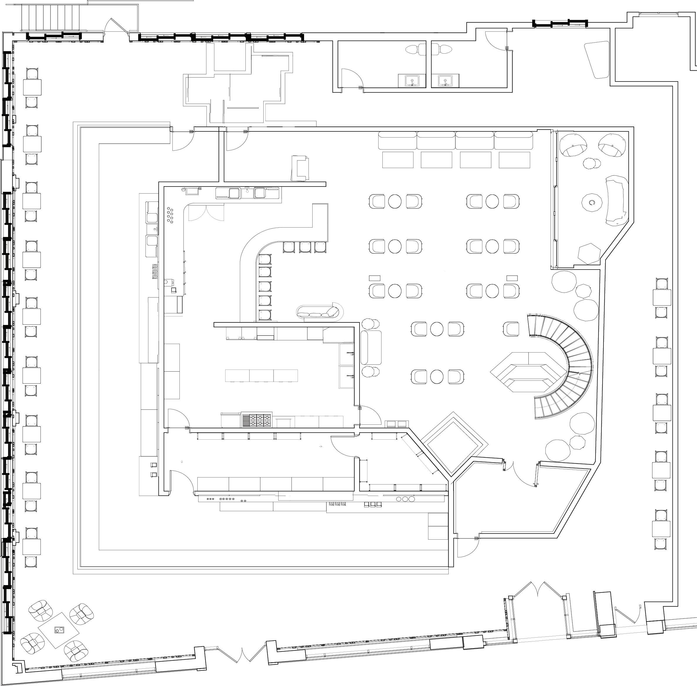
This project explores a dual-purpose veiled behind reflective glass, offering transforms into a hidden speakeasy, in a dynamic, ever-changing environment. natural rhythms with human interaction.

Object Study

dual-purpose space that transitions seamlessly from day to night. By day, the smoothie bar remains partially offering only subtle hints of the interior through shifting daylight and shadow play. By night, the space speakeasy, where interactive LED lighting and mirrored surfaces respond to movement, immersing guests environment. The design blurs the line between what is visible and what is experienced, merging interaction.








This concept envisions a contemporary speakeasy where interactive lighting becomes an active part of the guest experience. Weightsensitive seating and touch-responsive tables trigger subtle color shifts, allowing furniture to react intuitively to human presence. Layered neon accents, reflective surfaces, and sculptural circulation elements create a dynamic atmosphere that evolves throughout the evening. The design merges technology and intimacy to transform the lounge into an immersive, experiential interior rather than a static space.








Lakewood, Ohio
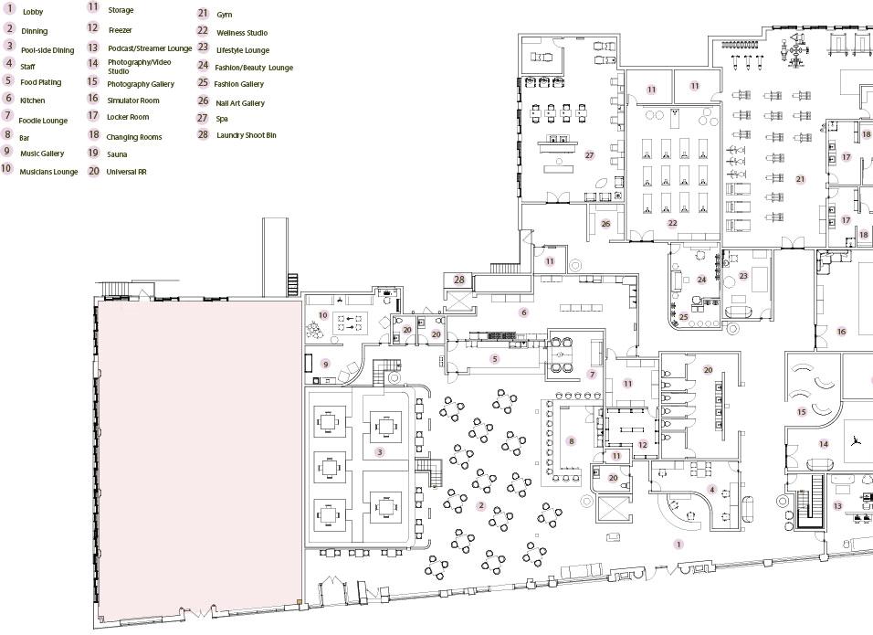
This project re-imagines the traditional country club as a modern social hub designed for the era of content creation. Shifting from exclusivity to inclusivity, the space celebrates participation over prestige, transforming passive social environments into active stages for collaboration, selfexpression, and visibility. Immersive pocket lounges are tailored to different content creator archetypes, such as streamers, fashion influencers, and lifestyle coaches, each offering aesthetic-driven settings designed for both connection and creation. Unified by a contemporary design language, the club becomes a dynamic landscape where every moment is shareable, and every space invites engagement.




Physical Material Board









As an Interior Designer at Floor & Decor, work centers on guiding contractors and homeowners through informed material and color selections that balance aesthetics, performance, and budget. This role involves translating client goals into cohesive palettes, advising on flooring, tile, stone, and finish combinations while considering durability, constructability, and overall design intent. Through close collaboration and hands-on material consultation, design expertise and technical knowledge are integrated to support confident decision-making and successful project outcomes.



Email: sabrinamorgan66@gmail.com
Phone: 724-683-4365
www.linkedin.com/in/sabrina-morgan-3301702b4