SP24 - ARCH 613 - Thesis Design Winners

Page 1


ARCH 613 THESIS DESIGN AWARD WINNERS

SPRING 2024

Cody Tenczar

Thesis Honor Award, Spring 2024

Nicole Casler

Thesis Award, Spring 2024

Renee Parry

Thesis Award, Spring 2024

Camila Uriona Gamboa

Thesis Commendation, Spring 2024

Mohamad Othman

Thesis Commendation, Spring 2024

HOLLOWED HISTORY

PALIMPSEST PARK OF THE PAST, PRESENT AND FUTURE

Cody Tenczar
Roger Williams University

Dean of the School of Architecture

SIGNATURES

Thesis Studio Professor

Author

“Study the past and you would define the future”
-Confucius

INTRODUCTION

History helps us understand the past, present, and future. It brings peoples and cultures together in a way that can not be achieved in any other dimension Architecture as a result is often defined by the culture and people its embedded within. In culture comes place, history, and society, each that differs from any other. Unfortunately, these cultures can be fragile, whether it be the passing of time, ages of conflict, or the unfolding of urbanization, and therefore are ever changing and often completely lost forever. However, remnants of these past cultures are ways for the communities from long ago to once again be reinstated and celebrated in a new light. A light that has been recently put out by the modern way of life. Architecture and design is the medium for the preservation of these traces and the empowerment to a world with an abundance lost cultures.

Pyramids of Giza (Giza, Egypt)
Roman Colosseum (Rome, Italy)

PROBLEM STATEMENT

As the world continues to write the next chapter, it is clear that what has already been written has been forgotten. Societies around the world are losing touch with their historical and cultural pasts. Elements that allow us to create an identity of who we are and who we were while allowing us to connect, comprehend, and learn for those of the future. In attempts to capitalize on this value, the prospect of an institution is formed. Using the medium as such will provoke an array of resources that can be offered to surrounding communities alike, with endless possibilities for education. Yet, this institution in the form of a museum and urban park will not fall under the spell of being depicted as an empty canvas for free expression. Curating a space that is a reflection of the identity it promotes will engage in a strong architectural and cultural connection to its designated past.

Louvre Museum (Paris, France)
National Museum of African Art (Washington, DC)

INTENTIONS & THEMES

Museums have a unique public image as both a source of intellectual discovery as well as being ridiculed for acting as a monotonous display of rubble. However, it is the former that accurately depicts the truth behind these architectural typologies as they give a rationalized perspective to the world we live in. In 1755, Dr. Samuelson Johnson described museums as a “repository of learned curiosities” indicating that there is a relationship between objects on display and the people who view them, it is in this relationship that informs comprehension and understanding of the curiosities that circulate the world around us in both the past and present.

Since the architecture implications of museums will be at the forefront of design considerations, it is imperative to look at the history of museums. While the idea of collections can date back millions of years,

it is suggested that the origins of museums derive from the Greeks, who coined the term “mouseion” which can be roughly defined as a place for contemplation and teaching. Museums in the age of antiquity were seen as a place of gathering with scholarly implications of objects rather than putting them on display for examination. In the Middle Ages museums were seen in a new light as religion influenced the collection of artifacts for the theory of spiritual remedies or supernatural powers. Up until this point museums were often described as private collections that were a representation of an individual, as they wouldn’t be entirely seen as public affairs until the Renaissance. It was this period that brought a rebirth of art and a culmination with the ideals of the enlightenment that changed the perspective of a museum as a social activity. This is when knowledge of unreachable cultures and regions of the

Depiction of Alexandria Library (site of the Temple of the Muses, one of the first examples of a museum)

world expanded the learning of the general public. At the turn of the 20th century museums grew exponentially as their rise in social importance continued to grow. This marked the beginning of museums being identified as an educational institution as we know them today. It will be this ideal with the infusion of a historical site that will be the intention for this project. To achieve these intentions the themes of cultural revitalization, public integration, and preservation will be asserted.

Cultural revitalization has been a staple in the architectural world as it involves analyzing the culture within the context of a selected site. In better understanding the background of the people and place one is designing, will imply a stronger connection with its users. It is the goal to use the values and ideas of the identified culture to enforce a structure that will support their past and present. This can be achieved through architectural design

tools via materiality, form, and program. Creating an architecture that utilizes motifs of the past in a modern way will create an effective and recognizable design for the locale. This will help break the modern model of a conceptual museum that is not impacted by the place it serves, hence this interjection will lead to the recreation of an identity that has vanished.

Likewise, public integration is another theme that will be targeted to ensure the idea that this is not a private affair for one culture but rather it is the process and encouragement of community gathering. This will focus on allowing the accessibility of all while simultaneously allocating for a multitude of programmatic opportunities benefiting the local community that are in line with learning, leisure, recreation, and educating objectives. Another element situated in public integration is the idea to better the public good, therefore the implementation of environmental,

Capitoline Museums (Dating back to 1471 these are some the oldest museums still standing)

economical, and social strategies at micro and macro scales will be fused into the design that in essence revolves around people.

Through the concept of preservation, it is the aim of the project to preserve a physical piece of architectural history. In doing so calls for the protection and celebration of an archaeological site that stood the test of time. This will create an experience that further encapsulates the themes present in the museum typology such as promoting education, patriotism, and theoretical thinking. The rehabilitation and additive use of a historical site will further develop the ideas of cultural revitalization and the benefit of the public as this will open new opportunities for the surrounding area. The process of preservation will also positively economically impact the local community as this will provide a new area of attraction and tourism. This gesture will also promote other significant resurrection projects that are in abundance throughout the globe.

House of Culture (Dietfurt, Germany)
Romare Bearden Park (Charlotte, North Carolina)
Dao Mau (Hien Ninh, Vietnam)

PROJECT STATEMENT

With the identified intentions of creating an institution that revolves around the problem of a cultural revival, the objective is to create a museum space that is embedded within an archaeological site and urban park. The options created within will make a useful resource to better the surrounding area as well as creating a new form of institution. The inclination of an archaeological site will drive the design and implicate cultural references made to influence the design that will have a direct correlation to the site’s context and therefore the culture it represents. This combination will allow for the exploration of how one can both protect a historic landmark while at the same time infusing a public structure within that does not impede on the site but rather adds value to it. Due to the sensitivity of such a site, this will need to be done in a strategic manner on all fronts so as to not destroy the very site that is being preserved. However, this space can not be docile as it will have to hold enough elements to impact the society around it. The challenge to fit such a program into an existing condition will need to be studied in depth to be properly executed.

In order to fully understand the situation at hand, it is important to look at designs that have successfully achieved this task. The museum precedents that have been selected, specifically deal with an integration of an archaeological site with the combination of other programmatic elements that encourage public interaction. These precedents will revolve around the European theater as this is the area for the most potential sites in terms of having multiple archaeological findings that can accommodate public infrastructure for a community oriented project.

National Museum of Modern Art (Precedent)
Acropolis Museum (Precedent)
Madinat Al Zahra Museum (Precedent)
El Born Cultural Center (Precedent)

National Museum of Roman Art

The achievements of the Roman Empire are captured in this design as it creates a unique cohesion with the orientation of the modern city of Marida whilst interjecting the building within the ruins of various time periods. It creates a harmony between new and old by following the construction methodology of Roman architecture with the combination of contemporary techniques. This site houses some of the most preserved Roman ruins in the world, serving as a strategic outpost at the height of the Roman Empire. The building mimics the ideals of a basilica with large arches and a flood of light penetrating the spaces via clerestory windows. The lower floor acts as a tomb as it preserves an excavation site that can be occupied by the museum visitors. Materiality is designed to the detail, as seen in gestures like the three brick bands within the arches, a reflection of the adjacent Roman amphitheater ruin.

Main Hallway
Integration of Structure Within Archaeological Site
Worm’s Eye Sectional Axon

This project uses materiality and architectural form to connect to the site’s history, as the arching forms create drastic interior spaces that put emphasis on natural light and scale, evoking a unique perspective for the museum viewers. In contrast, the alignment of the new building with the organization of the ruins below creates a unique juxtaposition within the design. Public access to the archaeological site is strategically incorporated into the Murcia fabric as the space takes advantage of the existing road conditions as circulation devices.

Exhibition Space
Cript-Like Archaeological Exhibition Space

Acropolis Museum

This museum features three levels of historical integration. The bottom floor is expertly analyzed to integrate new supporting structure within an excavation site to house an extensive exhibition space on the second floor that is connected by a glass ramp for viewers to visually experience the site below. Continuing brings visitors onto the third floor Parthenon gallery which is orientated towards the Parthenon itself and houses friezes in dimensional forms accurately matching their historical positions found in the Parthenon itself. This space gives a 360 degree view of Athens and the Acropolis. A three dimensional circulation loop starts at the bottom floor with an entrance and continues up to various levels of exhibition spaces and then back down to the ruins leading out directly towards the Acropolis, giving a chronological sequence to the artifacts on display.

Exterior View With Relationship To Acropolis
Exterior View At Entrance

The idea of creating an intentional sequential path of circulation with varying directed viewing experiences is the main extracted outcome for pedestrians. Creating a chronological organization to the space allows for a coherent experience. While spectators can not freely roam the archaeological site, several moments of connection via visual voids lets people experience the excavations in a new way.

Massing Organization
Circulation Organization
Parthenon Gallery

Sitting on a Hispano-Muslim site the quality of beauty found within archaeological ruins was intensified by the gesture of sinking the building within the landscape that still remains fully unearthed of its historical past. In excavating the site, walls and courtyards of past times were uncovered and translated into the composition of the building’s interior. Its exterior surrounding walls were created as a metaphor of an excavation site. Internally, the building is articulated around courtyards that divides the space into public, private, and research spaces. The courtyards, along with the red and white coloration of the building are symbolic references to the ancient history of Cordoba. The building remains composed in the landscape in such a way that it will continue to be discovered by its visitors just as new archaeological findings will continue to emerge around it.

Madinat
Exhibition Space
Sections Site View
Spatial Diagram (Courtyard/Circulation/Museum Space)
Courtyard Cloister

The concept of using existing ruins to create the organization of a newly constructed building is one of great interest in this museum. Strategically dividing spaces by natural elements that are common to the cultural vernacular of the site helps create a successful subdivision of space. Allocating accessibility routes around the perimeter creates a unique feature that accommodates the masses.

Roof View of Courtyard
Study Model
Sunken Concept Creates Low Profile Embedded Into Landscape

El Born Cultural Center

Josep Mestre (Barcelona, Spain 1876)

Enric Badia (Remodel 2012)

Once Spain’s first ever large-scale cast iron building, this structure was initially used as a public market for the El Born district in 1876. With the construction of a new library set to take place, ruins from the Roman period to 1700s Spain were discovered. Through the process of adaptive reuse, the market was thus turned into a cultural center. The layout of the building features a centralized axis that has several voids within the floor for visitors to openly view the ruins below. While circulation surrounds the major openings, the perimeter of the structure houses major programmatic spaces; a gallery for the archaeological site findings, a gallery for temporary art, and two flexible multipurpose spaces. All these programmatic spaces have glass walls facing the center of the building allowing for direct views of the archaeological site.

Main Entrance
View From Event Space With Views of Excavations
Organization Diagram (Axes/Public Program)

Sections

The composition of the building creates the idea of having flexible and rentable public spaces that can display art of both past and present while always celebrating the centralized ruins. It stays true to the form that was previously created while creating a new pavilion that not only protects the excavations below but also exhibits a center for pedestrian interactions.

View From Building’s Center
Roof Center Detail
View of Perimeter Public Spaces

SITE IDENTIFICATION

Looking at a location that has seen the loss of multiple cultural entities draws eyes towards the Iberian Peninsula, more specifically, Spain. Spain has a vast history which dates back at least 300,000 thousand years during the Paleolithic age. Ever since its conception Spain has seen an abundance of cultures come and go. Some of the first recorded intrusions in Spain started in 800 BC when Phoenicians, hailing from the middle east, first settled in southern Spain. Almost two hundred years later, Spain saw the interests of Greeks as they created colonies on the eastern shores, then it was Celts who came from the north. It would be around the same time that native Iberians became recognized as the native culture in central and southern Spain. These Iberian tribes would soon be conquered by the Romans around 218 BC where they ruled there for roughly 600 years. The people of Spain would be

heavily influenced by the religious and economic beliefs of the Roman empire, many remnants of Romans are still seen today. Christian Visigoths took control until the Muslim conquest. With the emergence of Islamic peoples coming to Spain during the Umayyad Conquest of Hispania in 711, the peninsula soon came under control of Islam influences. Under Islamic control there was a clear unification of ethical and religious practices within cultures including Muslims, Christians, and Jews. Economic prosperity occurred under Islamic control through agriculture and textiles. By the late 15th century internal power disputes and rising Christian aggression brought an end to the Islamic rule. While there was a mass departure of Islamic peoples, fragments from years of flourishing architecture, education, and literature still remain. After Catholicism took over, Spain took the shape that is now seen today.

Interest is drawn towards the Islamic past as they once controlled an immeasurable empire that is lesser known even though their rule in Spain was just as long as the Romans. Several remnants of Islamic architecture can be seen all throughout Spain as a golden age of Islamic rule once occurred there. This brings us to the Islamic ruins of San Esteban in Murcia, Spain. The city of Murcia itself was established in 825 A.D. by Islamic ruler Abd Ar-Rahman III who turned the city into a provincial capital of Cordoba. The city flourished through agriculture of orchards and gardening as its irrigation system from the nearby river Sequra was extensive. Due to its geographical location, trade through tapestries and ceramics was also prosperous. Muslims ruled there for 500 years but their power would fade with the Christian conquest in the mid thirteenth century. The modern day Murcia was built upon the dwellings and sites of this past. Archaeologists and historians have attempted to conserve the area but haven’t been extremely successful due to a lack of funding and incomplete ruins. However, as treasures of the old Kingdom of Murcia continue to surface, the reinstatement of the Islamic past which has long since been forgotten is once again coming to life.

The San Esteban archaeological site is located in the old garden of San Esteban and is the largest Moorish (coined for Islamic people in the Spanish region at the time) excavation site that has been discovered in Murcia, stretching over 100,000 sqft. While this area is still being fully evaluated, the presence of an Islamic suburb with houses, streets, gardens, religious spaces, and precincts of the eleventh and twelfth century are present. This area is most likely the result of urban expansion as the city of Murcia (termed Medina during the Medieval age) saw an outward expansion from its fortified walls during the golden age of Islamic rule. In the modern age this area was subject to controversy as the ruins were discovered

when trying to construct an underground parking garage. The construction process not only discovered ruins from centuries ago but consequently destroyed the luscious San Esteban palace garden that once stood there. Initial suggestions were made to refill the site entirely avoiding the problem, however recent decisions have been made to preserve the archaeological ruins in a cultural space in hopes to create an international resource for the city. The proposal is part of the “Medieval Murcia’’ plan which strives to preserve medieval sites throughout the city. The goal for the San Esteban site, is to “value the archaeological site and respectfully cover it to ensure its conservation through a recreation of the San Esteban Garden.” Unfortunately, the ruins of the site are fragile and deteriorate when exposed to the elements, mostly from exposure to high heat and water damage from torrential rains. Competitions have begun to address this site, however what remains has initiated the decaying process.

Medina (Medieval Murcia)
Murcia
Locations of Major Islamic Architectural Works in Spain
2. Cathedral of Saint Mary of Toledo
7. Castillo Arabe
1. Mosque of Christ of the Light
4. Cordoba Mosque at Mezquita
8. Alhambra Palace
5. Cathedral of Seville
9. La Madraza Granada
6. Alcazar
3. The Viana Palace

SITE ANALYSIS

This site is located in the heart of Murcia, sitting just south of the main highway system, N340 which connects to greater Spain, and just north of the Segura river. The San Esteban site is located in a dense area of the city, being surrounded by public amenities including churches, schools, parks, historical landmarks, a shopping mall, and a performance theater. Public needs such as parking and accessible sidewalks are also in abundance nearby. The site has a direct adjacency to the San Esteban palace which was built in 1555, being influenced by Renaissance and religious architecture of monasteries. San Esteban palace functioned as a Jesuit school, living quarters, and mental institute before converting to palace in 1972. Whilst it was on the verge of being destroyed it was declared a historic monument and turned into the headquarters for the Murcia presidency and government council.

The lot itself is roughly 105,000 sqft of uncovered ruins. The ruins that show a traditional Islamic suburb of the eleventh, twelfth, and thirteenth century of the medieval age are well documented. Studies have identified that the main construction materials of buildings and irrigation systems included adobe walls, primitive formwork of sand, limestone, and brick. The house architecture within is described as traditional as they feature courtyards often landscaped with a main room located at the north end and an intentionally angled entrance to the street for privacy purposes. While the majority of the excavation site features houses, the northwest corner features a religious sector housing a necropolis with a oratory and small mosque. Fossil, ceramic, and textile (references to the prosperous silk industry) remains have also been located within the site.

Government Office
Church of Saint Michael the Archangel
Historical Landmark
Hermitage Church of the Steps of Santiago
Multipurpose Block

Depth (meters)

Soil Type
Anthropic Fill
Clay
Sandy Clay
Sand & Gravel
Sand & Gravel
Sandy Gravel
C. Jeronimo de Roda
C. Acisclo Diaz
C. Portillo San Antonio
Cjon. de Burruezo
Corner of C. Acislo Diaz & C. Portillo San Antonio
Middle of Cjon. de Burruezo
Corner of C. Jeronimo de Roda & Cjon. de Burruezo
Corner of C. Jeronimo de Roda & C. Portillo San Antonio

Major Surrounding Context

1. San Esteban Palace

2. Iglesia San Miguel Arcangel (Church of Saint Michael the Archangel)

3. Ermita del Salitre (Museum Landmark)

4. Ermita de los Pasos de Santiago (Hermitage Church of the Steps of Santiago)

5. El Corte Inglés (Shopping Mall)

6. Teatro Romea (Performing Arts Center)

7. Estación de autobuses (Bus Station)

8. Jardín de la Seda (Park)

9. Jardín de la Pólvora (Garden)

10. Public School Federico de Arce Martínez (Public School)

11.

12.

Centro de Cultura Contemporánea Cárcel Vieja (Historical Landmark)
Colegio Jesús María (Charter School)
2. Iglesia San Miguel Arcangel
1. San Esteban Palace
3. Ermita del Salitre
5. El Corte Inglés
10. Public School Federico de Arce Martínez
4. Ermita de los Pasos de Santiago
7. Estación de autobuses
11. Centro de Contemporánea Cárcel Vieja
8. Jardín de la Seda
12. Colegio Jesús María
9. Jardín de la Pólvora
6. Teatro Romea

PRECINCTS PUBLIC AREAS/STREETS

HOUSES RELIGIOUS AREA

STORE

UNDOCUMENTED AREAS

DOCUMENTED STRUCTURES

ANTICIPATED STRUCTURES

DOCUMENTED HYRDAULIC SYSTEM

ANTICIPATED HYRDAULIC SYSTEM

Typical Street With Sewage System
House Detail
House Detail Showing Brick & Earth Contruction
Typical House Organization
Typical Precinct Organization
Relgious Area Detail Showing Concrete Construction

Average Temperatures & Precipitation

The climate of Murcia has Mediterranean qualities with lots of sunshine and hot summers. It is located at sea level nearly 20 miles from the coast. With average temperatures in the 60s it is possible for temperatures to drop below 40 degrees but that is rare. Precipitation is fairly low especially in the summer, averaging around a foot of rain per year while snow almost never occurs. Wind is also fairly mild as it hovers around 10mph coming from the northwest and southwest directions.

Sunny, Cloudy, & Precipitation Days
Wind Speed
Wind Rose
National Museum of Roman Art (on site to scale)
Acropolis Museum (on site to scale)
El Born Cultural Center (on site to scale)
Madinat Al Zahra Museum (on site to scale)

REGULATORY REPORT

Buildings are only historically regulated in the historic center of the city, coinciding with the walled area except for the renovation of Gran Vía, and its historical suburbs. This site does not fall within this district, therefore the building conditions are regulated as follows:

Setbacks: 4 meters(13 ft)

Site Coverage: Occupation may reach up to 100% of the plot on the ground floor, up to 5 meters high, provided that the easement of other plots and ventilation of the premises is ensured, or occupying a maximum of 60% of the plot

Minimum building frontage to the road: 20 meters (65 ft)

Maximum building frontage to the road: 60 meters (196 ft)

Minimum building depth: 15 meters (50 ft)

Maximum depth of the building: 20 meters (65 ft)

Maximum Height: Not exceed that corresponding to the street where it is located, or if no corresponding street, maximum height of the building: 5 floors, equivalent to 16 meters (52ft)

Balconies, overhangs and open cantilevered bodies authorized in particular ordinances, and provided that they do not exceed 10% of the closed built surface.

Parking:

Newly built facilities will have one (1) car parking space for every one hundred (100) square meters of built surface, one accessible space for every 50 parking spaces or fraction, up to 200 spaces and one more accessible space for every 100 additional spaces or fraction.

Toilets:

Whenever the existence of toilets or changing rooms, there will be at least one accessible toilet for every 10 units or fraction of toilets installed, which may be shared use for both sexes.

Energy:

The buildings will have a thermal envelope with characteristics such that it limits the needs of primary energy to reach thermal comfort. The thermal installations available in the buildings will be appropriate to achieve the thermal comfort of its occupants. The buildings will have lighting installations appropriate to the needs of their users and at the same time energy efficient, having a control system that allows their adjustment. The buildings will have electrical energy generation systems from renewable sources for their own use or supply to the grid. The buildings will have a minimum infrastructure that makes it possible to recharge electric vehicles.

PROGRAM OUTLINE

In creating a program for the site it is best to understand what the design proposal asked for. The outline was the result of citizen participation via questionnaires and over 261 consultations. The basic considerations included a walkable green space with accessibility to all that sits atop a museum preserving the ruins of the site. This will result in “a powerful tourist attraction because it is located in a privileged area of the city and becoming a symbol for Murcia, destined to be a focus of cultural, tourist and leisure attraction.”

In achieving the intentions of the proposal and my own objectives, the combination of a museum and community centered park will result with a program that will focus on the cultural exposure, learning, and socialization of its users. This will be achieved through the use of a flexible museum space that can be an exhibition space for the site’s history and a gallery for upcoming local artists. The museum will be at the focal point of the site and will house a terrace on the roof for a social lookout space. While the new constructed museum acts as the main program piece the elevated park will serve as a museum in itself revealing traces of the site’s ruins both in a literal and metaphorical way. The park will house spaces for leisure gathering while also serving as a calming circulation path that will provoke experiential learning and connectivity to the natural world. The goal of these gestures and strategic program spaces are intended to reflect the values the design strategy; cultural revitalization, public integration, and preservation.

Traditional Stacking
Program Outline
Little Island (New York City, New York)
Park Collage

Even with an emphasis on the enhancement of the Islamic past of the site, the goal of the architectural design is to allow accessibility and opportunities for all. The city of Murcia has seen a steady incline of people as it has reached over half a million inhabitants and is still climbing. This with the combination of the fact the people of Murcia are highly involved with their culture and recreation, indicated by the vast amounts of museums, parks, and cultural centers already scattered throughout the city are prime opportunities to grasp the entirety of the population. Locally, this project will be able to support leisure activities and educational needs as seen fit. Due its location and historical importance it will attract both passing pedestrians as they visit nearby landmarks adjacent to the site, but also travelers from around the world as the San Esteban archaeological site obtains global recognition.

Murcia Cathedral (top tourist attraction in Murcia)
Murcia Population Map

Visitors from all over the world will be greeted with an expansive concrete winged canopy-like structurethatarchesoverthesidewalksurface. Alightglowcanbeseenfromtheundersideof thestructurewhichdrawsspectatorsnearer.Asviewerscomeclosertothesitetheyaregreeted with an expansive opening the goes deep beneath the street level surface. Catwalks greet individualsasittakesthemonajourneyaboveanexcavatedruinssite.Thesepathsarematched to the streets below as the visitors of the present are essentially walking in the paths of those whohadcomefromlongbefore.Eventually,thevisitorsreachacentralizedglassvolume.Interest getsthebestofthemastheyenterthebuilding.TheyaregreetedwithIslamicarchesthatbring themintoanexpansivewhiteinteriorfilledwithdisplayedartifactsandpaintings.Thenextmove is up to each individual as the museum takes guests up and down. Most individuals continue up to another level contain similar features. On this floor a interior courtyard floods the interior space with natural light. Two exits can be located on opposite sides that bring people to the elevatedparkthatsitsatoptheconcretecanopy.Headingupanotherlevelbringsthegueststoa terracethatallowsthemtooverlookthesiteandsurroundingMurciaskyline.Headingbackdown and out into the park brings people through luscious elevated green journey. Trees and flowers are in abundance as they add beautiful colors to the park. Alcoves are a common occurrence throughout the path that contain windows on the structures floor to look down on the ruins fromabove.Thesealcovesholdbenchesandtablesforreflectingandsocialization.Thejourney could continue endlessly but a ramp is visible that brings viewers down to a plaza adjacent to theneighboringpalace.Goingbackthroughthecatwalksanotherrampisnoticed,howeverthis time it descends into the crypt below. A first hand experience of the ruins is experienced below withlightpouringinfromlightwellsabovealongwiththesoftglowofceilinglightsthattracethe ruinsbelow.Hoursandhourscanbespenttravelingthroughtheruinsandoncefullysatisfied an ascendingstaircasebringspeoplebackuptothestreetlevelofthemuseum.Departingthrough themuseumreturnsguestsbacktothecatwalksandoncemorebacktothestreetsidewalk.As theviewofthesitebecomesdistanttheominousglowsoonbeginstofade.

Midcrit Proposal

STRUCTURE

PROPOSAL

STREET LEVEL WALKWAYS
ELEVATED PARK
LIGHT WELLS
PARK PATHS
MUSEUM
Midcrit Southwest Facing Section
Midcrit Diagram (Axis, Traced Paths, Building Zone, Scale Comparison)
Midcrit West Facing Section
Midcrit View of Museum Interior
Midcrit View from Street
Midcrit View from Ruins
Gate Proposal
Gate Southwest Facing Section
Gate View from Ruins Ramp
Gate View from Street
Gate View of Platform Ramp

Proposal

TRACING RUINS

REINSTATE PARK

RAMP CIRCULATION

LIGHT WELLS DERIVED FROM RUINS

MAKING CONNECTIONS

INSERTING MUSEUM

RAISING PARK
View from Street Level
View from Ruins’ Ramp
View of Platform Park Ramp
View from Museum Second Floor
View from Platform Park
Midcrit Model

CONCLUSION

The goal for this project was to use traces of the archaeological site to create a social gathering space that could promote community inhabitation with encompassing ideas of education and nature. In using parameters from the design proposal an elevated park was created with a centralized embedded museum.

The elevated park sits 16 feet above street level, the same depth as the current floor of the ruins to street level. Its concrete form is angled at the edges to create a slimmer appearance. The edges of this “concrete canopy” are used as planters to create a cleaner edge profile to hide railings from street level view. The landscaping of the park is both a symbolic gesture to the irregular grid of the ruins below and a direct reflection of the floor pattern of the San Esteban garden that once stood on the site. The underside of the concrete canopy is a reflection of the ruins which is etched into the ceiling. In the center of these etchings is a lighting source that helps illuminate the space. This entire concrete canopy is supported by an irregular column grid. Each column carefully placed to not impede on the ruins below. Hanging from the supported canopy are catwalks. These are at street level and are light in their design with the use of mesh steel flooring and cables for structural support. The configuration of the catwalk paths are derived from the streets found in the ruins along with connecting elements. The paths are reflected on the concrete canopy above as small slits in the elevated park are created to increase light penetration below. Similarly, floor windows can be found in the park that reflect locations of courtyards found in the analysis of the ruins. These windows also create alcoves along the park paths that create spaces for gathering and leisure activities. ADA ramps are located at the south end of the site, one to bring people up the park and another to bring

people down to the ruins. The other vertical circulation comes from the museum. This museum is centralized in the site and can be accessed from all three levels of the site. Internally it is flexible to provide ample opportunity for the displaying of past and present items. An interior courtyard is located on the second floor to create more lighting options and connect to the park. A cut out can be seen on the first and second floors that allows the ruins to be seen from each floor of the museum. A roof terrace on the museum creates a new perspective of the site in its entirety.

As a whole the design was successful in achieving its initial goals. The site is not only easily accessible to all at all levels but it is also promotes preservation goals and community integration. In covering the decaying ruins and being respectful to the adjacent site’s historic palace, the new proposal protects and enhances the sites history. By having a park that offers another green amenity for the city of Murcia and a flexible museum, the people of local and wider communities can enjoy the site at many different angles. In many ways this creates a new opportunity that is similar to the context of Murcia and greater Spain, however it is done in a way that is unique to the site in such a way it can promote international recognition.

The overarching goal of this project was to provoke a new way to think about museums and educational institutions. Museums can take many forms and shapes but should be unique to the history it reflects along with the site it is situated within. They can also be thought of in a more metaphorical and or symbolic way as seen through the use of palimpsest ideals seen in this project. In the end, it is important that we as individuals do not forget the people, places, and achievements of those who have come before us.

Final Proposal

BIBLIOGRAPHY

Anguissola, Anna Materiality in Roman Art and Architecture : Aesthetics, Semantics and Function. Edited by M. Taylor Lauritsen. Decorative Principles in Late Republican and Early Imperial Italy (Decor) , 3. INSERT-MISSINGSERVICE-NAME. Berlin: De Gruyter, 2021.

This book reflects on the building materials of history that can be defined as expert and vernacular, each of which bearing a meaning of society, politics, religion, economical, or aesthetic. Building materials of antiquity such as the Romans are not based on logistical systems or based on the perception of the viewer alone but rather in the socially embedded process of architectural creation. Roman studies on architecture and building materials revolve around the ideas of chronology, cultural attribution, and ideological/political significance. Materiality is a concept that is created through experimentation and innovation. Expert is understood as the developed or preserved within a certain social group of builders based on seniority and experience, according to said generations, while vernacular is the influencing by factors outside of the building process

Colin Breen, Sara McDowell, Gemma Reid & Wes Forsythe (2016) Heritage and separatism in Barcelona: the case of El Born Cultural Centre, International Journal of Heritage Studies, 22:6, 434-445, DOI: 10.1080/13527258.2016.1166145

This journal discusses the political struggles that revolved around the construction of the El Born cultural center. With the rise of political Catalans seeking independence in Spain halted the discovery and eventual adaptive reusing of the site. It focuses on the ownership struggles of heritage sites as this can create complex situations that affect an entire society.

Jamalinezhad, Mahdi, et al. “Islamic Principles and Culture Applied to Improve Life Quality in Islamic Cities.” ProcediaSocial and Behavioral Sciences, vol. 35, 2012, pp. 330–334.

The reading explains that the Islamic ideals that need to be addressed in an Islamic city include human welfare & glory, justice & equality, central consideration, unity & kind-heartedness, economic development, security & safety, and environmental protection. Islamic cities are built in line with nature seen with optimized use of light, wind, water, backyards, porches, and orchards. Studies show that adding more connectivity between citizens and major authorities, adding more cultural and recreational programs, organized conferences and or training sessions for ethics to reinforce social unity, will all create a stronger sense of community in the modern age. Providing areas of improved security, economic stability, and environmental justice will improve the quality of life within Islamic cities

Lobell, John. Louis Kahn : Architecture As Philosophy. Monacelli Press, 2020 Preface.

This book highlights that Philosophy is an attempt to understand the world, ourselves, and our place in the world. Khan states that architecture has an existence and a presence as we both exist in buildings and we also experience buildings. The current struggle between our today’s architecture is understanding the relationship between traditional and modern architecture. All buildings serve a function, however true architecture will express the meaning of that function and how that function acts in our lives and the greater world

O’Neill, M., Sandahl, J., & Mouliou, M. (Eds.). (2020). Revisiting Museums of Influence: Four Decades of Innovation and Public Quality in European Museums (1st ed.). Routledge.

A chapter in this book talks about the awards winning Madinat Al Zahra museum. The Madinat museum features a relationship with its context like no other, shown through the technical drawings. The content here identifies the organizational strategies such as grid to compose its spaces. There is also an emphasis on intervention of the natural world seen through the abundance of courtyards and its relationship to the landscape. Sobejano arquitectos explain their excavation metaphor approach to the museum. In creating the building’s interior based on found ruins within the site, the gesture to embed the building into the undiscovered landscape creates a powerful message to the site’s past. This building uses historical quotations of courtyard spaces and symbolic enclosing walls to programmatically divide the spaces within.

Pilegaard, Ane. “Proximate Interiors: When Exhibition Design Activates Museum Architecture.” The Design Journal, vol. 26, no. 2, 2023, pp. 310–328.

A resource that states museums evoke a multi sensory environment for the public while creating sequential narratives and experiences. Atmosphere and movement are important concepts in designing a museum as the ambiance dictates the overall design and how viewers perceive the objects on display. Interior design of space, material, color, and details can produce a new medium in which displays are enhanced to stand out or can be inter connected into the architecture itself. Spatial perception plays a major role in the development of museums as the architecture itself acts as a container that contains works that often of spatial barriers themselves. The displayed objects, viewers, interiors, and exteriors all become the basis of a unified material fabric that makes up a museum

Plantzos D. Behold the raking geison: the new Acropolis Museum and its context-free archaeologies. Antiquity. 2011;85(328):613-625. doi:10.1017/S0003598X00068009

This article describes the interior composition of the building as it portrays three levels of art and architectural history. It highlights the reasoning behind the design decisions that were made to encompass the resulting structure that revolves around its placement in orientation with the Acropolis and the surrounding archaeological site. In traversing the building one experiences layers of history in a way that when one enters one leaves in a designation towards the highlighting site of the Acropolis. A relationship is created between the archaeological site below and the city skyline containing the Acropolis above.

Rafael Moneo (1987) The National Museum of Roman Art in Mérida, Museum International, 39:3, 192-196, DOI: 10.1111/ j.1468-0033.1987.tb00691.x

This article gives an in-depth analysis of Moneo’s National Museum of Roman Art from its design strategies to the minuscule details. It is suggested that the architecture relied heavily on the Roman ruin of the site, materiality, and construction of the museum is reflected upon it. It also takes ideals from the surrounding context of the Roman complex to incorporate historical motifs with techniques of contemporary architecture. Moneo’s masterfully crafted museum is one that sheds history in a new light. Putting an emphasis on the mending between the old Roman ruins with the modern city of Merida. Creating a learning space that coexists with history in a way that uses technical applications and cultural motifs to create a hybrid between new and old.

Simmons, John E.. Museums : A History. Blue Ridge Summit: Rowman & Littlefield Publishers, Incorporated, 2016. Accessed December 19, 2023. ProQuest Ebook Central.

This resource sheds light on the history of museums, going all the way back to the stone age where collections occurred as early as the age of tools. This book goes through the centuries of history decoding how the perception and physical display of objects within museums has changed with the times. The conclusion results in an accumulation of history that helps shape the museums of the modern age.

VILLALTA MARTÍNEZ, Pilar; SÁNCHEZ MEDRANO, Francisco J. “There is a city under the city: the project for the temporary conservation of the medieval remains of the garden of San Esteban (Murcia)”. Feminism/s. N. 17 (Jun. 2011). ISSN 16968166, pp. 45-64

This writing states the historical past of Murcia as a whole from its discovery by Muslim leaders, acting as once a major world leader in the agricultural world to the aftermath of Christian conquest. It suggests that the Moorish people are part of a civilization that is lost in Spain even though its history is richly embedded in the grounds below. It mentions San Esteban as the leading site of Moorish architecture and establishes a new desire to conserve their history with an abundance of new treasures continually being found throughout Murica. It also discussed the controversial situation of the site which was once intended to house an underground parking garage yet now has been identified as a cultural location to hopefully benefit Murica as a whole.

CITATIONS

Pg 6. Roman Colosseum (Rome, Italy), https://www.pinterest.com.mx/pin/832391943603796903/ Pg 6. Pyramids of Giza (Giza, Egypt), https://world-placez.blogspot.com/2013/02/Great-Pyramid-Giza-Egypt.html Pg 7. National Museum of African Art (Washington, DC), https://www.archdaily.com/805465/adjayes-national-museum-of-african-american-history-and-culture-photographed-by-brad-feinknopf

Pg 7. Louvre Museum (Paris, France), https://www.pinterest.com/pin/391250286383427865/

Pg 8. Depiction of Alexandria Library (site of the Temple of the Muses, one of the first examples of a museum), https://www.ancient-origins.net/ancient-places-africa/what-treasures-were-lost-destruction-great-musaeum-alexandria-006924

Pg 9. Capitoline Museums (Dating back to 1471 these are some the oldest museums still standing), https://www.getyourguide.com/capitoline-museums-l3299/

Pg 10. House of Culture (Dietfurt, Germany), https://www.archdaily.com/789923/house-of-culture-kuhnlein-architektur Pg 10. Dao Mau (Hien Ninh, Vietnam), https://www.archdaily.com/1008125/dao-mau-museum-arb-architects Pg 10. Romare Bearden Park (Charlotte, North Carolina), https://qcexclusive.com/charlotte-outdoor-activities/ Pg 10. National Museum of Modern Art (Precedent), https://www.archiweb.cz/en/b/historicke-muzeum-rimskeho-umeni

Pg 11. Acropolis Museum (Precedent), https://hammer.ucla.edu/programs-events/2018/04/architecture-for-the-ages-the-new-acropolis-museum-of-athens-with-dimitrios-pandermalis

Pg 11. Madinat Al Zahra Museum (Precedent), https://jakobboerner.com/architecture/madinat-al-zahara-museum Pg 11. El Born Cultural Center (Precedent), https://www.livitaly.com/tour/barcelona-picasso-tour-with-fine-arts-school-exclusive-access/ Pg 12. Main Hallway, https://www.archdaily.com/625552/ad-classics-national-museum-of-roman-art-rafael-moneo

Pg 12. Ruins vs New Construction, Author created

Pg. 13. Inte1gration of Structure Within Archaeological Site, https://www.archdaily.com/625552/ad-classics-national-museum-of-roman-art-rafael-moneo

Pg 13. Worm’s Eye Sectional Axon, https://www.archdaily.com/625552/ad-classics-national-museum-of-roman-art-rafael-moneo

Pg 14. Plans, section, & elevation, https://www.pinterest.co.uk/pin/231091024604647114/

Pg 15. Exhibition Space, https://www.pinterest.co.uk/pin/123215739794995032/

Pg 15. Cript-Like Archaeological Exhibition Space, https://motorhomeeurope.com/merida-spain-everything-roman/

Pg 15. Exhibition Space (top), http://www.spainisculture.com/en/estilos/hispania_romana/

Pg 16. Exterior View With Relationship To Acropolis, https://uniquedestination.mitsishotels.com/articles/the-acropolis-museum-turns-11/ Pg 17. Void Over Excavations, https://news.gtp.gr/2019/07/04/acropolis-museum-guides-visitors-ancient-neighborhood/ Pg 17. Section Showing Pedestrian Route & Relationship With Excavations, http://www.positive-magazine.com/architecture/the-acropolis-museum/ Pg 18. Exterior View At Entrance, http://www.greekescapes.com/discover-the-wonder-of-the-acropolis-museum/ Pg 18. Entry Level Floor Plan, https://blog.naver.com/PostView.nhn?blogId=chuloh1&logNo=80092142850

Pg 19. Circulation Organization, https://www.archdaily.com/61898/new-acropolis-museum-bernard-tschumi-architects/5009188728ba0d27a70017a1-n ew-acropolis-museum-bernard-tschumi-architects-image

Pg 19. Massing Organization, https://www.archdaily.com/61898/new-acropolis-museum-bernard-tschumi-architects/5009188728ba0d27a70017a1-ne w-acropolis-museum-bernard-tschumi-architects-image

Pg 19. Parthenon Gallery, https://www.archdaily.com/61898/new-acropolis-museum-bernard-tschumi-architects/5009188728ba0d27a70017a1-new-a cropolis-museum-bernard-tschumi-architects-image

Pg 20. Exhibition Space, https://www.area-arch.it/en/madinat-al-zahra-museum/ Pg 20. Sections, https://www.area-arch.it/en/madinat-al-zahra-museum/

Pg. Site View, https://www.architectural-review.com/today/madinat-al-zahra-museum-by-nieto-sobejano-cordoba-spain

Pg 21. Courtyard Cloister, https://www.architectural-review.com/today/madinat-al-zahra-museum-by-nieto-sobejano-cordoba-spain

Pg 21. Spatial Diagram (Courtyard/Circulation/Museum Space), Author created

Pg 22. Roof View of Courtyard, https://www.pinterest.com/pin/452752568785760808/

Pg 22. Study Model, https://divisare.com/projects/16946-nieto-sobejano-arquitectos-museo-y-sede-institucional-madinat-al-zahra

Pg 22. Sunken Concept Creates Low Profile Embedded Into Landscape, https://www.architectural-review.com/today/madinat-al-zahra-museum-by-nieto-sobejano-cordoba-spain

Pg 23. Ramp Circulation, Ramp Circulation, https://www.architectural-review.com/today/madinat-al-zahra-museum-by-nieto-sobejano-cordoba-spain

Pg 23. Double Height Exhibition Space, https://www.architectural-review.com/today/madinat-al-zahra-museum-by-nieto-sobejano-cordoba-spain

Pg 24. Main Entrance,, https://www.blogarama.com/resources-blogs/268201-barcelona-guide-apartment-city-blog/34821842-learn-about-born-cultural-centre-travel

Pg 24. View From Event Space With Views of Excavatio, https://goop.com/ca-en/place/spain/barcelona/born-museums/el-born-cultural-center/ns

Pg 25. Organization Diagram (Axes/Public Program), Author created

Pg 25. Views of Excavations, https://mikestravelguide.com/things-to-do-in-barcelona-visit-the-el-born-cultural-center/

Pg 26. Sections, https://arquitecturaviva.com/works/born-cultural-center

Pg 26. Previous Conditions, https://arquitecturaviva.com/works/born-cultural-center

Pg 27. Roof Center Detail, https://arquitecturaviva.com/works/born-cultural-center

Pg 27. View of Perimeter Public Spaces, https://www.pinterest.com/pin/88735055135160648/

Pg 27. View From Building’s Center, https://barcelonando.com/el-bornla-ribera/

Pg 28. Map, https://www.lahistoriaconmapas.com/

Pg 29. Googe Earth Images, https://earth.google.com/web/@37.98840423,-1.13367305,42.44450596a,333.89343693d,35y,9.35935996h,0.27798013t,0r/data=OgMKATA

Pg 30. Murcia, https://www.pinterest.com/pin/697072848560442341/

Pg 30. Medina (Medieval Murcia), https://www.estrategiamurcia.es/proyectos-estrategicos/san-esteban/sobre-el-yacimiento/ Pg 31. Pre 2009, https://www.estrategiamurcia.es/proyectos-estrategicos/san-esteban/objetivos-y-situacion-del-proyecto/ Pg 31. Post 2009, https://www.estrategiamurcia.es/proyectos-estrategicos/san-esteban/objetivos-y-situacion-del-proyecto/ Pg 31. Timeline, https://www.estrategiamurcia.es/proyectos-estrategicos/san-esteban/objetivos-y-situacion-del-proyecto/ Pg 32. Locations of Major Islamic Architectural Works in Spain, https://earth.google.com/web/@37.98840423,-1.13367305,42.44450596a,333.8934369 3d,35y,-9.35935996h,0.27798013t,0r/data=OgMKATA

Pg 33. 1. Mosque of Christ of the Light, https://hiddenarchitecture.net/mosque-of-cristo-de-la-luz/ Pg 33. 2. Cathedral of Saint Mary of Toledo, http://tripomatic.com/spain/castile-la-mancha/toledo-spain/primate-cathedral-of-saint-mary-of-toledo Pg 33. 3. The Viana Palace, https://theculturetrip.com/europe/spain/articles/beautiful-must-visit-gardens-in-cordoba-spain/ Pg 33. 4. Cordoba Mosque at Mezquita,, https://www.reviewofreligions.org/25868/places-of-worship-la-mezquita-catedral-de-cordoba/ Pg 33. 5. Cathedral of Seville,, https://goingawesomeplaces.com/top-things-to-do-in-seville-spain/ Pg 33. 6. Alcazar, https://visiter-seville.fr/visiter-alcazar-seville/ Pg 33. 7. Castillo Arabe, https://olveradiary.blogspot.com/p/castillo-de-arabe.html

Pg 33. 8. Alhambra Palace, https://rightcasa.com/useful-tips-when-visiting-the-alhambra-palace-tickets-and-tours/ Pg 33. 9. La Madraza Granada, https://www.pinterest.com.mx/pin/255438610095120307/ Pg 34. Map, https://www.estrategiamurcia.es/proyectos-estrategicos/san-esteban/objetivos-y-situacion-del-proyecto/ Pg 35. Site Plan, https://www.estrategiamurcia.es/proyectos-estrategicos/san-esteban/objetivos-y-situacion-del-proyecto/ Pg 35. Soil Conditions, https://www.estrategiamurcia.es/proyectos-estrategicos/san-esteban/objetivos-y-situacion-del-proyecto/ Pg 36. Site Dimensions, https://www.google.com/maps/place/Ermita+de+los+Pasos+de+Santiago/@37.9877139,-1.1347464,121m/ data=!3m1!1e3!4m6!3m5!1s0xd6381f5feec5835:0x7db97ba9d834727!8m2!3d37.9890444!4d-1.1355175!16s%2Fg%2F11fzwk4v_s?entry=ttu

Pg 37. Corner of C. Acislo Diaz & C. Portillo San Antonio, https://www.google.com/maps/place/Ermita+de+los+Pasos+de+Santiago/@37.9877139,-1.1347464,121m/data=!3m1!1e3!4m6!3m5!1s0xd6381f5feec5835:0x7db97ba9d834727!8m2!3d37.9890444!4d-1.1355175!16s%2Fg%2F11fzwk4v_s?entry=ttu

Pg 38. 1. San Esteban Palace, https://www.laopiniondemurcia.es/murcia/2022/06/20/impulsan-comision-recuperar-ermita-salitre-67460898.html

Pg 38. 2. Iglesia San Miguel Arcangel, https://www.estrategiamurcia.es/proyectos-estrategicos/san-esteban/objetivos-y-situacion-del-proyecto/ Pg 38. 3. Ermita del Salitre, https://www.flickr.com/photos/eltb/7174604060

Pg 38. Major Surrounding Context, Author created

Pg 39. 4. Ermita de los Pasos de Santiago, https://www.istockphoto.com/photo/beautiful-and-old-hermitage-called-pasos-de-santiago-in-murciagm1446953980-484886693

Pg 39. 5. El Corte Inglés, https://www.laopiniondemurcia.es/murcia/2022/06/20/impulsan-comision-recuperar-ermita-salitre-67460898.html

Pg 39. 6. Teatro Romea, https://www.dreamstime.com/editorial-photo-teatro-de-romea-murcia-spain-april-image41591096

Pg 39. 7. Estación de autobuses, https://www.laverdad.es/murcia/ciudad-murcia/nueva-estacion-bus-murcia-20220326002209-ntvo.html

Pg 39. 9. Jardín de la Pólvora, https://www.tripadvisor.co.uk/Attraction_Review-g187518-d19046543-Reviews-Jardin_De_La_Polvora-Murcia.html

Pg 39. 10. Public School Federico de Arce Martíne, https://primerciclofedericodearce30.blogspot.com/2013_11_01_archive.html

Pg 39. 11. Centro de Contemporánea Cárcel Vieja, https://www.elitemurcia.es/la-carcel-vieja-abre-sus-puertas-para-convertirse-en-un-macrocentro-de-cultura-contemporanea/

Pg 39. 12. Colegio Jesús María, https://fra1.digitaloceanspaces.com/directory/uploads/place/image/file/304283/Colegio_Jes%C3%BAs_ Mar%C3%ADa_22NOV2018_Toto_Olmos.jpg

Pg 40. Pla https://www.estrategiamurcia.es/proyectos-estrategicos/san-esteban/objetivos-y-situacion-del-proyecto/n, Pg 40. Excavation Process, https://www.estrategiamurcia.es/proyectos-estrategicos/san-esteban/objetivos-y-situacion-del-proyecto/ Pg 41. Excavation Photos, https://www.estrategiamurcia.es/proyectos-estrategicos/san-esteban/objetivos-y-situacion-del-proyecto/ Pg 42. Site Sections, https://www.estrategiamurcia.es/proyectos-estrategicos/san-esteban/objetivos-y-situacion-del-proyecto/ Pg 43. Site Plans, https://www.estrategiamurcia.es/proyectos-estrategicos/san-esteban/objetivos-y-situacion-del-proyecto/ Pg 44. Climate Graphs, https://www.meteoblue.com/en/weather/historyclimate/climatemodelled/murcia_spain_2513413 Pg 45. Climate Graphs, https://www.meteoblue.com/en/weather/historyclimate/climatemodelled/murcia_spain_2513413 Pg 46. Precedent Diagrams, https://www.google.com/maps/place/Ermita+de+los+Pasos+de+Santiago/@37.9877139,-1.1347464,121m/ data=!3m1!1e3!4m6!3m5!1s0xd6381f5feec5835:0x7db97ba9d834727!8m2!3d37.9890444!4d-1.1355175!16s%2Fg%2F11fzwk4v_s?entry=ttu Pg 47. Precedent Diagrams, https://www.google.com/maps/place/Ermita+de+los+Pasos+de+Santiago/@37.9877139,-1.1347464,121m/ data=!3m1!1e3!4m6!3m5!1s0xd6381f5feec5835:0x7db97ba9d834727!8m2!3d37.9890444!4d-1.1355175!16s%2Fg%2F11fzwk4v_s?entry=ttu Pg. 48. Zoning Map, https://www.estrategiamurcia.es/proyectos-estrategicos/san-esteban/objetivos-y-situacion-del-proyecto/ Pg 49. Lot Boundaries,, https://www.estrategiamurcia.es/proyectos-estrategicos/san-esteban/objetivos-y-situacion-del-proyecto/ Pg 50. Diagrams, Author created Pg 50. Park Collage, Author created Pg 51. Little Island, https://www.6sqft.com/nycs-newest-park-little-island-finally-opens-on-the-hudson-river/ Pg 52. Murcia Population Map, https://worldpopulationreview.com/world-cities/murcia-population Pg 52. Murcia Cathedral (top tourist attraction in Murcia), https://www.thecrazytourist.com/15-best-things-murcia-spain/ Pg 52-77. Diagrams, Drawings, Models, Author created

Threadscapes

Crafting Design for the Senses

Nicole Casler

May 20th, 2024

Threadscapes: Crafting Design for the Senses Degree: Masters of Architecture

Cummings School of Architecture

Roger Williams University May 20th, 2023

Submitted in fulfillment of the requirement for the Master of Architecture Degree

I’d like to dedicate this thesis to my parents who have showed unwavering support, my brothers who have answered countless late night calls, my amazing professors and to some of the most amazing people(my friends) whom I have met on this journey.

Nicole Casler
Nicole Casler
Stephen White

1 Problem Statement

Us humans have admitted we spend 87% of our lives inside buildings. Many of which have Sick Building Syndrome and Contribute to Seasonal Depression. The ever dullness of spaces with fluorescent lighting, sounds of clacking of a keyboard and continuous stale air has been creating a sensory deprivation environment all in the name of productivity. The invention and use of technology has only exacerbated this phenomenon further. In order to be happy, healthy, creative humans, it’s best to cater to the design of the built environment by addressing what the body is able to understand.

Architects used to cater towards the senses but stopped addressing all of the seven when modernism came into play. At that point in time, there was a focus on only one of the senses, sight. Ever since then, all architecture and most of what people design has become Ocular-centric or focusing only on the sight of a viewer. No longer are spaces able to create dynamic interactions and interrelations between each other and a structure but rather a sensory deprived space.

2Introduction

The human body experiences seven types of senses on the daily; visual, auditory, olfactory, gustatory, tactile, vestibular, and proprioception. The typical built structure post the modernism period addresses one sense in particular, the visual. Those which are to be assumed to be targeted are secondary at best. The fact that we humans spend most of our time inside these spaces which have catered toward only one of the many ways we experience the world has led us to be in a sensory deprecated world. This one where we get tired more easily, are less engaged, and less productive. All of which is leading us to burnout and exhaustion. When we are in spaces such as a forest, we are catering towards all of our senses as they are all being engaged. Capturing the engagement of the senses we experience when in a forest in the built environment will help create a healthier, more connected, creative environment which encourages living in the now.

Senses Graph

5 Senses Graph shows in green what the typical current built structure caters towards and how strongly it is catered towards. The blue shows what is trying to be achieved through design.

2.1 Project Statement

The goal is to create a well rounded bodily experience which caters towards all of the senses we humans should encounter on a daily basis through the built environment based on a series of design principles. My project is based on an institutional setting catered towards those in the textile craft trade. Although all other forms of craft are present. The (Insert Title of Project here) is not specifically for one typology but rather an example of principles which are able to be applied to all types of building forms. These principles are intended to be helpful for all those who encounter their existence and hopefully create a better sense of place and understanding in this world. As the principles are to be universal, the typology of the structure is able to change but was specifically chosen to allow for an extreme circumstance where the senses are able to be heightened or suppressed. Figure 3

2.3 Themes/ Architectural Intentions

I aspire to explore how the built environment can cater towards the seven senses and in doing so create an environment which promotes a better built environment. Each sense has the ability to help create a better understanding of place. It's through these senses we are able to fuse the meta and physical together, engaging with the metaphysical world. The built environment is one which brings these environments together through color, light, contours, and memories. Which leads to another of my intentions to explore how structures and the built environment help understand the passage of time through the use of spaces and memories. How we remember a place or an event, we typically recall the feelings of the memory, whether that be through scent, sight, sounds or the simple vibrations of a space. This idea of memory is supported through the adaptive reuse of an already existing building with historic ties to it. The space which I’ve chosen is one with utilizes the art world, more specifically that of a textile center.

Textiles have the inept ability to touch every sense, tough though the coarseness of material, the sound of weaving or machinery, the visual aspect of patterns, the taste of threads when trying to tie them off, the smell of dyes or the fibers when they fall, the feeling of textiles against the skin for the proprioception, and the ability to balance it amongst others. Its though the development of this center where not only are the senses weaved together but the new and old are also in dialogue though the physical weaved connection of buildings past and present.

2.4

My client for this development is the owner of the property in communications with the historic society, the local government, and other art councils in the area. They had come together and realized there was a missing part of their community which allows a light to be shown on the historic industries of the area while allowing for the community to use a space which encourages creativity. The community in the surrounding area is the main user of this space. Although the immediate user is the surrounding community, there is a secondary audience which is to pull in those who wish to explore the history of textiles in the area as well as those who wish to learn about the development of textiles from the exterior society. The last group is those who live in the nearing city of Boston, specifically those who wish to get away from the immediate area into a creative retreat. There is no specific age group of which this space is specifically designed for however it will carry with it an inclusive design sense. Figure 4

3 Program Outline and Area

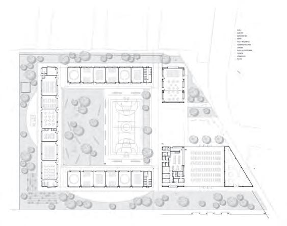
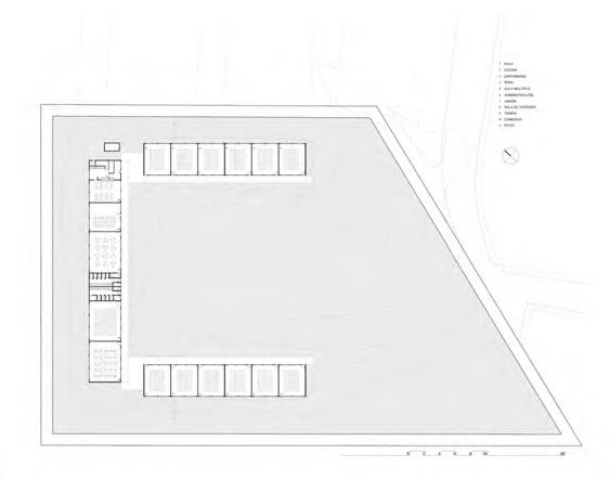
This site which was once a mill used to create cotton and silk textiles is to become a campus for a center of creativity focusing on textiles. This center will house a museum which will tell the history of the town, its connection to the mill as well as an area about the history of textiles in the east coast. Accompanying the museum is a learning center which will include three large loom rooms along with a drawing, printmaking, photography, and wood studio. On a more residential aspect, there will be several residences with a common house which will include communal areas, cafeteria, kitchen, exhibit space, and a library. Most of which will be placed in the existing structure with adaptations of its need. Lastly, there will be an administrative suite with offices for all those who do not live on the premises.

Site Identification & Rationale

The site sits just outside the main metropolitan area of Boston in the City of Newton Massachusetts. Along with neighboring the capital city, it is directly tied to it through the Charles River as in the past, the site utilized the river as means of power for the mill work. Overall the site is made up of 213,013 square feet and is currently mostly covered in a parking lot which is partially used.

Nicole Casler
Figure 6
Figure 7

Site Identification & Rationale

Whats Around It

Currently the city of Newton, specifically the Upper Falls district, although part of the historic district does minimal to address its rich history of industry nor does it promote the green reservation nearby. Most of the structures surrounding the area are housing with a mix of antique shops mixed in with the homes. Other points of interest include Cook’s bridge, Echo Bridge, The Echo Bridge Restaurant and Cafe, the Second Baptist Church and the Hemlock Gorge Reservation area. The Echo Bridge Office park currently allows for the pre-existing structure to exist with minimal landscaping or community engagement. There is also no connection from this site to the reservation. Recently, a study of the residents in the areas was conducted showing an urge for more green spaces and communal areas for recreational activities. The development of the site into a campus for textiles has the ability to provide just that.

As the intention is for a large group of people to occupy the site for external sources as well as the neighboring towns, it was important to look at how people may be able to access the site. Thanks to its proximity to Boston and Logan International Airport, the site allows for those who come from some distance to access the site. Those who live in Boston are also able to easily access the site as an escape from city life though the use of the T or commuter line of Boston. The residents of the area are able to easily access it by foot but also by car. There has been some discussion of adding bus lines as well into the area.

Figure 10
Figure 8
Figure 9

Site Identification & Rationale

The existing ground floor plan contains mostly offices used by doctors, construction teams as well as other professionals .The Lower right and corner is used as the antique mall.

The second floor acts as the main floor and entrance to the existing sting instrument store.

The third floor plan is a continuation of the string instrument shop with a performance center in the basement as well.

Existing Square footage

Although the site currently does not address the senses at all, there are opportunities to enhance those with what is already around the site. Next door to the mill is a small 20 ft waterfall which creates a calming noise which can be harnessed to address the auditory sense. Along that same area is the Hemlock Gorge which consists of a strong scent of not only evergreen trees but also the general scent of nature which when addressed in such a way may be able to be incorporated into the nearing structure addressing the olfactory. Visually, the site itself has minimal appeal however, the older structures as well as the nature surrounding the site is one which may be able to improve the visual satisfaction of the area overall. The rest of the sense which need to be addressed are done so in a combination of ways involving but not excluded to those discussed here.

4.5a

Site Identification & Rationale

The industrial building desig ned in the Federal Style is the oldest brick industrial building in the area. Built in 1821 by Elliot Manufacturing Co. the structu re took on three different ad ditions; the first being arran ged with a central courtyard with a clerestory monitor roof as well as the structure being 3.5 stories tall. At this time the mill was used to produce cot ton goods. Two years later the 2 story thread mill was constructed. In 1883, it stopped producing cotton goods as it could not keep up with the competing Lowell mill. The mill changed owners in 1886 to become a silk mill which continued to exist up until the 1950’s. From there it has been retrofitted to house shops and business offices.

Site Identification & Rationale

Past images have shown a picturesque view of the site from across the water which is reminiscent of Frederick Law Olmsted and his landscape designs. Although the reserve next to the site is not one of his designs the landscape architect employed many of his values. The image of the dam shows what the site used to look like across the way and included a bridge which is something I feel is lacking for those of the space or the town in general to have more access to the reserve.

The directory provided here shows the change of the structure over time. The area highlighted in green is the most recent addition of the structure. That in the gray is part of the original structure along with few additions made relatively close to the original creation of the structure.

The silk mill structure is seen here in the pink. It contains a coal room, two different sections of spinning or textile-related activities as well as storage and what I believe to be pumps. What this map does show that is interesting is the fact that there used to be housing on the site for workers. These are the six structures which line the streets which corner the site. This is something which I will be able to take into account and possibly use those same spaces for the new program as they no longer exist. This map also helps me determine what is historic and newer for means of needing to follow the historic commission.

Figure 20
Figure 18
Figure 19

Newton Massachusetts exhibits the typical seasonal and weather changes of the New England region. The winters Newton experiences have historically been cold and snowy with the typical temperature reaching below freezing. Come spring, residents are able to experience milder temperatures with the thawing of the ground. In summer, residents are to expect muggy conditions with an average high of 82 degrees Fahrenheit. During these summer months, those in the area are to expect up to fifteen hours of sunlight during the summer solstice. Come fall, the weather becomes much more bearable and the changing of the leaves provide a picturesque view of the town. In general, Newton experiences all of the seasons allowing all those who live and visit the city to experience all the wonders which come with it.

The site doesn’t have such strong sunlight which requires much shading however as the historic building is required to stay, it is important to look at the existing shadows. Most of which lay over the reservation and the Charles River. The existing parking lot however does not have any harsh shadows seen on the site. For the potential of new building and plantings its best to avoid the northwest corner or making that any studio space which requires light should try to be placed not facing the northwest.

Shadows From All Seasons

5 Regulatory Environment Summary Report

5.1

Although the site sits on the Charles River, it is not prone to extreme flooding according to FEMA. The Site does exist on storm water drainage to existing Aquifers which yield 50-250 gallons per min.

Although there are no current means of environmental codes to follow, all properties need to have and EVR/HRV System.

New construction requires wiring for eclectic vehicle (EV) charging.

Institutions which will exceed hot water above 1,000 gallons a day require solar or other renewable energy forms.

I will need to use net- zero construction and thermal heating and cooling.

To handle storm drainage, I will need to employ natural drainage techniques.

When constructing on my site, I will be dealt with the typical climate change issues most places are dealing with. This includes but is not limited to an increase in temperatures, some sea level rise and a 10% increase in rain over the past 10 years .This increase in rain had led to issues with flooding in the area and a collection of surface water. Incorporating previous surfaces into the design is a major point of concern. Others include the ability to provide spaces which are comfortable for all ages as the heat continues to increase. Tornadoes and floods are also major considerations which need to be addressed within my design. The infrastructure is also at risk thanks to these environmental changes.

Figure 30

Technical Investigation Outline

The state code for Massachusetts follows their own codes which are cohesive to that of the International Building code. The IBC will be used to determine the means of egress, ADA and the number of bathrooms needed for my structures.

All ADA means are found and followed through by the Massachusetts 521 CMR based on the usage of a space. See images.`

Means of Egress:

30 net for the Museum and exhibits

20 net for the classrooms

100 gross for the library

50 net for the shops

50 gross for the dorms

6.1 Technical Investigation Outline

Bathrooms:

1 per 100 men and women

Water fountains:1 per 400 persons

Currently the site is zoned to be manufacturing and for public use. For the program proposed, it falls under mix-used institutional. I will be seeking a variance for the current zoning to allow for the ability to occupy part of the public land and build on it. A variance will also be sought out to allow for dormitories to be built n the part of the site zoned for manufacturing.

General

FAR: 0.2 - 0.36 max

Max height: 36’

Max Stories: 3

Set backs: front-60’, side-40’, rear40’

Building signs can be no higher than 3’ and no wider than 3’

1 Sign can be 20sf and 1 can be 10 sf

2 signs are allowed per frontage street

Dormitory

5% of beds need to be inclusive

6.2 Technical Investigation Outline

Parking

1 stall per employee not living on premises

1 per 5 for every dormitory room

All stalls are to be 9’ x 19’

Handicap stalls are to be 19’ x 12’

6 to 25 stalls: 1 handicap stalls are required

26 to 40 stalls: 2 handicap stalls are required

41 to 100 stalls: 4% but not less than 3 handicap stalls are required

No parking is allowed to be placed in a setback; parking needs to be 6ft away

No parking allowed within 5 ft of a building containing dwelling units

Parking Landscape Requirements

A 24’ aisle width in necessary for 90 degree parking

Screening is necessary for exterior parking: 5 foot density required all year round

Local Zoning

Interior parking spaces are to have 5% of space with 20 stalls and will be landscaped.

Landscaped sections are to be min 25 sq ft with no dimension less than 5 ft

1 tree for every 10 stalls

Loading

Off street loading has to be 10’ x 35’ x 12’

2 are needed

Landscaping Requirements

There needs to be a vegetation buffer of 60’ around all property

No fences are allowed

Bike parking

Located near entrance

1 bicycle space per 10 parking stalls or fraction

Bike stalls are to be 7’ x 2’

The site sits in the historic district of Newtons Upper Falls which means there is an extra layer of ordinances which the site needs to follow. The town does have their own historic commis sion also known as the Newton Histor ic Commission(NHC). Along with those proposed through the NHC, all struc tures built or renovated need to follow the Secretary of the Interior Standards.

HDC Guidelines

New construction can be in the forms of existing buildings

Structures need to be proportional to structures

Structures need to be comparative in forms and massing of those nearby

Name with amount of coverage per site

Roof seed to align with surrounding Structures

Figure 38
Figure 37

Europäisches Hansemuseum

Studio Andreas Heller GmbH Architects & Designers

Lübeck, Germany

2012-2015

This museum is nestled into what was once the mid-evil wall of the city. As is now is nestled into castle hill, the architects had to handle not only the natural conditions of the site but the historic conditions as well. The site itself is one of the UNESCO World Heritage sites thanks to the architectural ruins found beneath the first floor. The site takes what is untouchable with its historic context and still allows for a space where people can interact with history as well as their own understanding of where they are without interrupting the artifacts.

Vestibular

The structure is divided into two different sections, the old and the new highlighted in blue. No matter when they were constructed the axis run parallel to each other allowing for individuality and unity.

Exhibition Structure

Once this structure was an old iron works in Germany. They iron works was closed in the beginning of the century. It sat unoccupied until the 1980’s where it became an exhibition center which also holds history of the Karnten sate. This project shows the past industrial age in a more rural setting which later became involved with the history of the area and a form of art. It addresses the need for waterproof spaces in a semi decimated structure. This closes in the two ears, the industrial history with modern technology for those to inhabit.

There is a strong visual connection to the landscape and proof of importance for the movement about the site.

Figure 44
Figure 45
Figure 48
Figure 18
Figure 46
Figure 49
Figure 47
Figure 39
Figure 40
Figure
Figure

7.2a

Astley Castle

Witherford Watson Mann

Warwickshire, England, UK

2007-2012

Astley Castle has been an occupied structure up until the 1970’s when vandals overtook it and the condition fell into disrepair. In the mid 2000’s the structure was under threat of being demolished, when it was taken under to be preserved. The structure is made of the same material which is found on my site. The existing parts of the structure where left as is but converted to be stabilized through the integration of the new floor plan/. Energy performance was addressed through new brick and mortar with mass construction.

Rural Ruins Re-imagined Smell and Time

7.2b

Astley Castle

Witherford Watson Mann

Warwickshire, England, UK

2007-2012

Although the space was made to be lived in and closed off to the external elements, there is a strong sense of “don’t touch it” in terms of an intervention here. The inclusion of the old and the new is distinct through the use of colored bricks however the continuation of material allows for it to be uniform in looking. There is a poetic sense of time discussed though this minimal intervention look. The inclusion of the sense and how the new and old brick feel is something to consider in future productions.

Rural Ruins Re-imagined Smell and Time

Nicole Casler
Figure 53
Figure 54
Figure 55
Figure 56
Figure 50
Figure 51
Figure 52

Haworth Tompkins

Snape Maltings, Snape, UK

This space is of a not traditional sense of what an occupied space really is. The shell of this building use to be a house for pigeons now turned a collaborative space for artists and musicians alike. Made on site, these space chose not to disturb the remaining walls of the space . It addresses the past, acoustics and light as a main part of its design.

Haworth Tompkins

Snape Maltings, Snape, UK

The green here is the already existing structure. There is a small amount of distance between the old ruin and he new which is something to look into how close you can build to something.

The architects have lined up the new window/ doors with that of old creating symmetry.

Figure 62
Figure 60
Figure 61
Figure 58
Figure 59
Figure 57

Hedmark Museum

Hedmark Norway

1967-2005

Although not for specifically one type of person, this structure looks at how to use a space of ruins and change them into a space which is usable. It’s a way of keeping the ruins as is currently but incorporating them into the current times. This specific structure chooses to keep the existing structure with minimal interventions to it. The glass placed in the holes turned windows is one of the more simplistic forms of intervention which is what I wish to achieve with the existing structure.

Hedmark Museum

Hedmark Norway

1967-2005

There are two different means of axis, those from the old structure and those from the new. The old is denoted in the green. The new is currently “hugging” the old structure.

The base of the structure is still the original part of the structure

Figure 66
Figure 67 Figure 68
Figure 69
Minimal intervention is described in the blue
Figure 64
Figure 65
Figure 63

7.5a

SESC Pompéia Factory

Lina Bo Bardi

San Paulo, Brazil

1977-1986

This site is one in a very urban area which is a wonderful example of adaptive reuse. The structure was a large industrial plant and was unused for several years after which Lina Bo Bardi turned it into a “Cultural Factory”. This space utilizes a new structure as its sports center but adapts the rest of it into a cafeteria, library and other cultural means of program. The SESC Pompeia is a great example of creating a space for not only the community but also a space which celebrates its past with a much larger intervention.

Community and Art Engagement Taste / Proprioception / Hear

7.5b

SESC

Pompéia Factory

Lina Bo Bardi

San Paulo, Brazil

1977-1986

The newest part of the structure not only is different in form and material but also completely detached from the adapted part of the structure(Green). The blue indicate interventions into the old with the new.

Community and Art Engagement Taste / Proprioception / Hear

Two axis which are the main circulation space between the old and the new.

Nicole Casler
Figure 73
Figure 74
Figure 75
Figure 76
Figure 77
Figure 79
Figure 78
Figure71
Figure 72
Figure 70

Layton, NJ

Peter’s Vally is located in the Poconos . This it is one of many different artist workshops that are able to be found throughout the county. This workshop is separated into two different types of buildings, the yellow seen on the left are the first which are the structures in which artists and visitors are housed in when they come to the camp. The second of the buildings are the actual workshops. The spaces are widely spread apart with some having a mile walk in between.

Currently the site offers six different disciplines . They mostly keep their doors open thanks to a partnership with the United States national park service, national endowment of the arts, public libraries, and New Jersey council of the arts and historic trust. It has been able to provide educational experiences for over fifty years . There is much more of a walk which is required her rather than my site with a walk being over a mile to one of the studio spaces. It does use all older structures.

Snow Farm

Williamsburg, MA

Snow Farm is similar to the other artist colonies I have looked at for this project. It is however spread out on fifty acres of land with eleven buildings that act as a campus all together. They do have a fiber room which relates directly to my current program and they provide classroom layouts per discipline. Most of the spaces which they have are single story and made for eight to nine students. After fitting the floor plans on my current site, it was a guarantee that the program works for the site. They too are able to keep their doors open with the generous donations from donors, residents, and volunteers as well as being a 501c.

Figure 82
Figure 83 Peter’s
Figure 81
Figure 80

Anderson Ranch

Snowmass Village, Co

Anderson’s Ranch is Located near Aspen Colorado and takes up 55,000 SF of the property with studio spaces. They where once a dairy ranch prior to the 1970’s from which it later became designated as an artist get away. Today, there are 8 disciplines which anyone can take classes in. The ranch is able to keep its doors open thanks to art councils and donors . This is a great example of how to take a smaller acreage and transform it into a space for artist and community members to explore their creativity side.

7.9

Salem Art Works

Salem Art Works is on the larger side of the campus like art centers I have looked at. It sits on 119.4 acres of land which was also an old dairy farm . All of the dairy barns have been re-purposed as the studios for artists to use. Unlike others, this campus caters towards six disciplines; blacksmithing, ceramics, a foundry, printmaking, welding, and a wood-shop. As seen on the campus map, the is a place called the back 40 which is open to the public and is a sculpture park.

The spaces have been retrofitted to have more modern amenities such as movable walls, shared and individual spaces, as well as larger doors to make spaces half inside and half outside. They rely on the council of the arts and state legislation to keep operating..

Figure 86
Figure 87
Figure 85
Figure 84

Precedents on Site

Current Site Conditions

Preliminary Site Strategies Preliminary Site Sections

Nicole Casler
Montage of Thesis
Montage of Thesis

9 MIDTERM

Midterm Review Midterm Review

Axon of Building With Entrances
Axon of Building With Parks

10 GATE REVIEW

Nicole Casler

Each of these concepts are an abstracted version of the mathematic textile program designs. This way, the program, the buildings, and the surrounding are literally and metaphorically weaved together.

Roof Test Fits
Observation Tower Test Fits

The facade is to be composed of materials traditionally found in the area, so brick, metal and stucco.

Nicole Casler
South Facade Concepts
East Facade Concepts
West Section
East Section
Interior Double Hight Hallway Perspective

11 FINAL REVIEW

Like how textiles are woven together, the site and how it came to be is a weave between the old and the new with a connecting weave of the surrounding nature.

Nicole Casler
Casler
Exterior of Summer Garden
Parti
Site Plan

Structural Grid of Old Building and Main Side Building

Structural Axon of New Addition

Structural Grid of Expansion

Nicole Casler
Nicole Casler
Section
Section
Site Sense After Intervention
Physical Model from Side
Physical Model from Corner

Shading Screen Pattern

Connecting the Old and the New

Shading Screen Placement

Exterior of Main Building

Winter Garden Interior

The journey undertaken in this architectural thesis has been one of exploration, innovation, and critical examination. Through the analysis of contemporary architectural practices and the exploration of adaptive reuse technologies, this thesis has aimed to contribute to the evolving discourse in the field of architecture.

The primary objective of this research was to address the intersection of human wellbeing through the senses, the experiences of time, functionality, and aesthetic appeal in modern architectural interventions to existing structures. It has successfully achieved just that with an almost minimalistic intervention approach. Most of the original structure was kept in tact with the majority of the change being the conversion of the parking lot to an extension of the public park system in the area. Time has been a major player in this project, more specifically how to address a building which no longer is used for its intended purpose and how to honor its history while preparing for the future of a site.

This research does not stop within the academic realm but rather offers practical solutions and guiding principles for architects and urban planners. As the field of architecture continues to evolve, it is imperative that we adopt a forward-thinking approach that anticipates and responds to the changing needs of our society and environment. This thesis takes into account the overall human experience in architecture creating a more comfortable built environment for all.

13 Annotated Bibliography

“Inhabiting Time” by Juhani Pallasmaa

In inhabiting time, Pallasmaa goes into depth about the human suspension between needing experiences and rushing between experiences. He states that how we are able to experience places have a lot to do with how we experience time, more specifically how we use spaces as a measurement of time, an example of this is miles per hour when traveling. As technology has advanced, we have become unaware of the fact that there is this measurement as er do simply as what society tells us to do and when. In my research, this comes into play with how we experience places and how time can be interpreted based on the spaces which we create. Also alluding to the ways in which we are having a more difficult time creating memories from spaces though this expedited society speed.

Pallasmaa,Juhani. “Hapticity and Time” in Architecture Review May 2000, pp. 78-84

Pallasmaa once again details how our senses allow for us to interpret spaces and time. He mentions how the eye has the most power over the senses which is why architecture has become an art form specifically catered to the eye which led to a uniformity and sameness in all of our structures. Its this specific reason why buildings have started to lose their connection to the other senses. Architecture should be multi sensory and according to Pallasmaa, architecture is “how the world touches ourselves”. He also describes how architecture has changed from its timelessness and its need to create in the present. He describes a world which we need to interact with the building. In my project, the point is to create these connections and interactions with the structure though the intersection of the senses which the structure caters towards.

Clemmensen, Thomas Juel. 2022. “Humanly Modified Ground and Time-Based Aesthetics.” Journal of Landscape Architecture: JoLA, no. 1 (January): 38–47.

Clemmenson has a fascination with time and how humans are able to address time though place making. A lot of this place making has to do with the original geographical changes and attributes described in the environment. Most of which are contradictory of each other based on the time in which they exist. Monuments are an example of this as most have to deal with the landscape as well as the human interaction of the senses. For my project, this is needed to address a certain landscaping which I will need to provide. It explains the importance of not only the built but the natural environment and their connections.

13 Annotated Bibliography

Safont-Tria, Jordi, Sanford Kwinter, and Steven Holl. 2012. Steven Holl Color, Light, Time. Zurich, Switzerland: Lars Müller. Steven Holl is one of the many artists and architects which I have looked at in mt exploration of the senses and time. He explores it though the use of color to identify place, light to identify the passage of time and their representation of the viewers. Water is a big part of his work as it is a lens to show people different means of perception, i.e.; reflection, reversibility of spaces, refraction, and transformation of light. This creates an experience felt by all senses. This has influenced me to place my stature near a place of water and further experiment with how that affects places and peoples.

Dovey & Dickson, “Architecture and Freedom? Programmatic Innovation in the Work of Koolhaas/OMA” JAE vol. 56/1 Sep 2002, pp. 5-13

Although this document described how Koolhaas programed his spaces, and the geometric meaning behind them, this placement was intentional though creation. The way he placed program allowed for movement to occur throughout his structures as well as create moments between the structure and the one experiencing them. This is something I wish to employ in my own programmatic layout of the structure.

Spence, C. Senses of place: architectural design for the multi sensory mind. Cogn. Research 5, 46 (2020). Spence states that designing for the multi-sensory is difficult, it should encourage social, emotional and positive cognitive functions. The human body experiences spaces with 12% of touch, 3% of hearing, and 1% to taste and smell. Which means we have created a hierarchy of senses. Not much research has been done with the interactions between the human senses but there has been a shift in the art and architectural world to explore this new topic of sensory living. This article really has improved my understanding of how the human body and mind interact on a scientific level with the built environment. It also helped explain to me why it’s so hard to find information on sensory based architecture. There are two other forms of architecture I need to explore that are semi-related, Biophilic Design and Synesthesia design.

14 Citations/Sources

“1. Historical.” n.d. The Friends of Hemlock Gorge. Accessed December 17, 2023. https://hemlockgorge.org/the-makers-of-the-mold/1-historical/.

“2021 INTERNATIONAL BUILDING CODE (IBC) | ICC DIGITAL CODES.” n.d. Codes.iccsafe.org. https://codes.iccsafe.org/content/IBC2021P2.

“521 CMR - 2006 Edition | Mass.gov.” n.d. Www.mass.gov. Accessed December 19, 2023. https://www.mass.gov/lists/521-cmr-2006-edition.

Biswas. 1996. M 1, 333 Innovative Austrian Architecture. Wien: Springer.

“City of Newton Climate Vulnerability Assessment and Adaptation and Resiliency Action Plan.” n.d. Accessed December 19, 2023. https://www.mass.gov/doc/newton-ccva-and-adaptation-action-plan/download.

“Dovecote Studio / Haworth Tompkins.” 2010. ArchDaily. November 17, 2010. https://www.archdaily.com/89980/dovecote-studio-haworth-tompkins.

Gaudion, Katie, and Chris McGinley. 2012. Review of Green Spaces Outdoor Environments for Adults with Autism . Edited by Graham Vickers. Helen Hamlyn Centre for Design.

“Hedmark Museum by Sverre Fehn (699AR) — Atlas of Places.” n.d. Www.atlasofplaces.com. https://www.atlasofplaces.com/architecture/hedmark-museum/.

“Herzlich Willkommen Im Europäischen Hansemuseum Lübeck.” 2023. Europäisches Hansemuseum. November 3, 2023. https://www.hansemuseum.eu/.

“Homepage.” n.d. Anderson Ranch Arts Center. https://www.andersonranch.org/.

“Ken Newcomb: Makers of the Mold, Streets, Bridges & Parks.” n.d. Hemlockgorge.org. Accessed December 17, 2023. https://hemlockgorge.org/old/FHG_Makers_of_the_ Mold/MakersStreetsBridgesParks.htm#HemlockGorgeReservation.

Lupton, Ellen, and Andrea Lipps. 2018. “Why Sensory Design? | Cooper Hewitt, Smithsonian De-sign Museum.” Cooper Hewitt Smithsonian Design Museum. April 3, 2018. https://www.cooperhewitt.org/2018/04/03/why-sensory-design/.

Maslin, Steve. 2022. Designing Mind-Friendly Environments Design and Architecture for Everyone. London Philadelphia: Jessica Kingsley Publishers.

Pallasmaa, Juhani. 2012. The Eyes of the Skin : Architecture and the Senses. Newark: John Wiley & Sons, Incorporated. Accessed December 16, 2023. ProQuest Ebook Central.

Rychtarikova, Monika. “How do blind people perceive sound and soundscape.” Akustika 23, no. 1 (2015): 6-9. Rychtarikova describes how those who are blind walk through a city. Too much noise is distracting but too little can cause confusion on placement. Those who have some sort of sensory deprivation have been able to adapt and use other senses to guide them. Understanding how those without the main sense which architecture targets will help develop a series of principles which will govern my design.

“Peters Valley School of Craft | Learn with Us in the Delaware Water Gap.” n.d. Peters Valley School of Craft. Accessed May 20, 2024. https://petersvalley.org/.

Review of Newton MRA. 1986. Department of the Interior: Department of the Interior.

14 Citations/Sources 15 Image Citations

Figure 1: This pie chart from the NHAPS study shows that Americans spend 86.9% of time indoors, plus another 5.5% inside a vehicle.NHAPS

Figure 2: Image provided by author

Review of NEWTON’S HERITAGE LANDSCAPES: A COMMUNITY-BASED RECONNAISSANCE REPORT. 2010. Newton Planning & Development Department Newton Community Preservation Committee.

Review of Newton, Massachusetts Chapter 30: Zoning Ordinance. 2017. City of Newton Massachusetts. City of Newton Massachusetts. https://www.newtonma.gov/home/ showpublisheddocument/29823/638349436153070000.

“Salem Art Works.” n.d. Salem Art Works. Accessed May 20, 2024. https://www.salemartworks.org/.

Shea, Deboraha. 1982. Review of Newton’s 19th Century Architecture : Newton Upper and Lower Falls. Newton Historical Commission : Department of Planning and Development

“Snow Farm | the New England Craft Program.” n.d. Www.snowfarm.org. https://www.snowfarm.org/.

Spence, Charles. 2020. “Senses of Place: Architectural Design for the Multisensory Mind.” Cognitive Research: Principles and Implications 5 (1). https://doi.org/10.1186/ s41235-020-00243-4.

Stafford, Tom. n.d. “Adaptation: Why Your Brain Loves to Tune Out.” Www.bbc.com. https://www.bbc.com/future/article/20120508-why-your-brain-loves-to-tune-out.

Stoner, Julie. n.d. “Research Guides: Fire Insurance Maps at the Library of Congress: A Resource Guide: Sanborn Fire Insurance Co. Maps.” Guides.loc.gov. Accessed May 20, 2024. https://guides.loc.gov/fire-insurance-maps/sanborn.

TED. 2013. “Design for All 5 Senses | Jinsop Lee | TED Talks.” YouTube. https://www.youtube.com/watch?v=N6wjC0sxD2o.

TEDx Talks. 2016. “Architecture and the Science of the Senses | Stefan Behling | TEDxGoodenoughCollege.” YouTube Video. YouTube. https://www.youtube.com/ watch?v=FbfPWalO_ss.

Viva, Arquitectura. n.d. “SESC Pompéia Factory, São Paulo - Lina Bo Bardi.” Arquitectura Viva. https://arquitecturaviva.com/works/sesc-fabrica-pompeia-9.

“Witherford Watson Mann Architects.” n.d. Www.wwmarchitects.co.uk. https://www.wwmarchitects.co.uk/projects/astley.

Figure 3: Image provided by author

Figure 4: Common Creative License

Figure 5: Image provided by author

Figure 6: Base Image: Google Earth, Graphics: Author

Figure 7: Base Image: Google Earth, Graphics: Author

Figure 8: Base Image: Google Earth, Graphics: Author

Figure 9:City of Newton

Figure 10: City of Newton

Figure 11: Image provided by author

Figure 12:Image provided by author

Figure 13:Image provided by author

Figure 14:Image provided by author

Figure 15: Image provided by author

Figure 16:Newton Historic District Commission

Figure 17:Newton Historic District Commission

Figure 18:Newton Historic District Commission

Figure 19: Image provided by author

Figure 20: https://guides.loc.gov/fire-insurance-maps/Sanborn

Figure 21: Weather Overview, https://weatherspark.com/y/26269/Average-Weather-in-Newton-Massachusetts-United-States-Year-Round

Figure 22:Hours of Daylight and Twilight.https://weatherspark.com/y/26269/Average-Weather-in-Newton-Massachusetts-United-States-Year-Round

Figure 23:Average Temperature. https://weatherspark.com/y/26269/Average-Weather-in-Newton-Massachusetts-United-States-Year-Round

Figure 24: Image provided by author

Figure 25: Image provided by author

Figure 26: Image provided by author

Figure 27: Image provided by author

Figure 28: Image provided by author

Figure 29:FEMA

Figure 30:City of Newton

Figure 31:https://www.mass.gov/lists/521-cmr-2006-edition.

Figure 32:https://www.mass.gov/lists/521-cmr-2006-edition.

Figure 33:https://www.mass.gov/lists/521-cmr-2006-edition.

Figure 34:https://www.mass.gov/lists/521-cmr-2006-edition.

Figure 35:https://www.mass.gov/lists/521-cmr-2006-edition.

Figure 36:City of Newton

Figure 37:City of Newton

Figure 38:City of Newton

Figure 39:https://www.hansemuseum.eu/.

Figure 40:https://www.hansemuseum.eu/.

Figure 41:https://www.hansemuseum.eu/.

Figure 42:https://www.hansemuseum.eu/.

Figure 43:https://www.hansemuseum.eu/.

Figure 44: https://www.guentherdomenig.at/en/projects/carinthian-regional-exhibition-heft-in-huttenberg-1993-1995

Figure 45: https://www.guentherdomenig.at/en/projects/carinthian-regional-exhibition-heft-in-huttenberg-1993-1995

Figure 46: https://www.guentherdomenig.at/en/projects/carinthian-regional-exhibition-heft-in-huttenberg-1993-1995

Figure 47: Biswas. 1996. M 1, 333 : Innovative Austrian Architecture. Wien: Springer. Figure 48: Biswas. 1996. M 1, 333 : Innovative Austrian Architecture. Wien: Springer. Figure 49:Biswas. 1996. M 1, 333 Innovative Austrian Architecture. Wien: Springer.

Figure 50:Www.wwmarchitects.co.uk. https://www.wwmarchitects.co.uk/projects/ astley.

Figure 51:Site Plan, Www.wwmarchitects.co.uk. https://www.wwmarchitects.co.uk/ projects/astley.

Figure 52:Www.wwmarchitects.co.uk. https://www.wwmarchitects.co.uk/projects/ astley.

Figure 53:Www.wwmarchitects.co.uk. https://www.wwmarchitects.co.uk/projects/ astley.

Figure 54:Www.wwmarchitects.co.uk. https://www.wwmarchitects.co.uk/projects/ astley.

Figure 55:The RuinWww.wwmarchitects.co.uk. https://www.wwmarchitects.co.uk/ projects/astley.

Figure 56:Www.wwmarchitects.co.uk. https://www.wwmarchitects.co.uk/projects/ astley.

Figure 57:https://www.archdaily.com/89980/dovecote-studio-haworth-tompkins.

Figure 58:https://www.archdaily.com/89980/dovecote-studio-haworth-tompkins.

Figure 59:https://www.archdaily.com/89980/dovecote-studio-haworth-tompkins.

15 Image Citations

Figure 60:https://www.archdaily.com/89980/dovecote-studio-haworth-tompkins.

Figure 61:https://www.archdaily.com/89980/dovecote-studio-haworth-tompkins.

Figure 62:https://www.archdaily.com/89980/dovecote-studio-haworth-tompkins.

Figure 63:Www.atlasofplaces.com. https://www.atlasofplaces.com/architecture/hedmark-museum/.

Figure 64:Www.atlasofplaces.com. https://www.atlasofplaces.com/architecture/hedmark-museum/.

Figure 65:Www.atlasofplaces.com. https://www.atlasofplaces.com/architecture/hedmark-museum/.

Figure 66:Www.atlasofplaces.com. https://www.atlasofplaces.com/architecture/hedmark-museum/.

Figure 67:Www.atlasofplaces.com. https://www.atlasofplaces.com/architecture/hedmark-museum/.

Figure 68:Www.atlasofplaces.com. https://www.atlasofplaces.com/architecture/hedmark-museum/.Figure 59:Www.atlasofplaces.com. https://www.atlasofplaces.com/architecture/hedmark-museum/.

Figure 70:https://arquitecturaviva.com/works/sesc-fabrica-pompeia-9.

Figure 71:https://arquitecturaviva.com/works/sesc-fabrica-pompeia-9.

Figure 72:https://arquitecturaviva.com/works/sesc-fabrica-pompeia-9.

Figure 73: Image provided by author

Figure 74: Image provided by author

Figure 75: https://arquitecturaviva.com/works/sesc-fabrica-pompeia-9.

Figure 76: Image provided by author

Figure 77: Image provided by author

Figure 78: Image provided by author

Figure 79: Image provided by author

Figure 80:https://petersvalley.org/

Figure 81:https://petersvalley.org/

Figure 82:https://www.snowfarm.org/

Figure 83:https://www.snowfarm.org/

Figure 84:https://www.andersonranch.org/

Figure 85:https://www.andersonranch.org/

Figure 86:https://www.salemartworks.org/

Figure 87:https://www.salemartworks.org/

GEOMORPHIC THRESHOLDS: Generating Place Through Contextual Awareness & Identity

Renee Parry | Master of Architecture Thesis

Date Submitted 05/20/2024

Acknowledgments

To my parents, my sister, my professors, my friends, and all of the others who have supported me along the way, thank you. Without you I never would have made it to this point. ...and lastly, thank you to Dean White, Julian Bonder, and Andrew Cohen for the opportunity to explore and experiment.

GEOMORPHIC THRESHOLDS:

Generating Place Through Contextual Awareness & Identity

Renee Clair Parry Degree: Master of Architecture

Cummings School of Architecture

Roger Williams University Date: May 20th, 2024

Submitted in fulfillment of the requirement for the Master of Architecture Degree

Signatures

Author: Signature Date Advisor Signature Date

Dean

Signature Date

| TABLE OF CONTENTS

As the boundaries of human intercourse are widened by giant strides of trade and travel, it is of vital import that the bonds of human understanding be maintained, enlarged and strengthened rapidly. Unity of the Pacific nations is America’s concern and responsibility; their onward progress deserves now a recognition that will be a stimulus as well...San Francisco stands at the doorway to the sea that roars upon the shores of all these nations,and so to the Golden Gate International Exposition I gladly entrust a solemn duty. May this, America’s World’s Fair on the Pacific in 1939, truly serve all nations in symbolizing their destinies, one with every other, through the ages to come.”

- PRESIDENT FRANKLIN D. ROOSEVELT during the opening ceremonies of the 1939 International Exhibition

|ABSTRACT

The focus of this thesis will explore an architecture that is born naturally from a hyper awareness and logic of the context in which it is to exist. The genesis of idea and crafting of experience can be born from a multi-scalar critical understanding of heritage, culture, history, values, geologies, contemporary and traditional practices, site, and conditions in both the natural and built environments. With this there is opportunity to intervene in an environment which has been subjected to specific circumstances that call upon a resiliency, and revitalization. The complex heterotopic landscape of Treasure Island is a result of an island crafted by the hands of peoples from the shoals of Yerba Beuna. The

complexity of the existence of the island is seen not only through its rich and diverse land use history, but also with the conditions in which it exists. The island nestled in the middle of San Francisco’s Bay, is just some 300 feet off of the shores of Yerba Beuna Island. This strategic location, originally meant to become an airport for Pan Am, serving the cities of San Francisco and Oakland, has undergone occupational change from its origin as the home of the 1939 international world fair, into a naval base used throughout world war II, and occupied until the later 1970’s. Most recently was bought back by the City of San Francisco, and has remained in a state of desolation as the resources for maintained infrastructure

had been pulled when the navy had transfered owner ship. The island sits in a unique position to be developed to resolve some of the pressures that are result from the housing crisis of the city, while also serving as the center piece of the bay, between the Oakland and San Francisco. This thesis will look to explore the various architectural interventions in efforts to revitalize the urban environment and introduce elements of resiliency as means of creating sustainable operating frameworks for communities.

There is an immersive interaction between design, the built environment, the ecology of public/social spaces, and the resiliency of such space in relation to the space’s cultivated identity. Each one of these interactions intersect on a multidimensional and multi-scalar level. The awareness of these intersections occur through the interactions experienced within the built and natural environments. Through an analysis of these experiences critical social, political, and economic conditions can be identified, not only shaping design strategies, but also influence cultural resiliency and redefining spacial identities. The goal of this thesis will be to better understand the resiliency of urban identities through the reaction of the discourse between the built environment and the surrounding bay area context. This will be accomplished through the selection of a site that has been subjected to constant change and adaption, followed by a process of place-making done through a hyper awareness , logic, and analysis of the specified site.

In an attempt to understand the interactions that occur as such levels, an analysis of conditions, done through ethnography, observation, archival research, and spatial analysis will occur. This thesis will take a site specific approach, selected off a series of parameters. When looking at opportunities that will result in these specific types of interaction, there are several conditions that may be met. This could include the site existing within a heterotopic nature. This condition could be discovered through sites whose typology has changed over the course of the sites designation as a place. This may result in sites which have had previous military occupation, or even extreme changes or adaptions in land use or zoning over the last century. Secondly the parameter of a rich cultural presence must be met. The culture of the area can be vulnerable, or subject to vulnerability and or displacement, but without culture association there is a struggle for the development of spatial identities. This approach will begin with a regional review of the selected site. By looking at the site with a wider lens, hopefully contextual queues which inform the hyper logic of local development, culture, economical standings and politics can be realized. A regional scope will also allow for the deeper understanding of adjacencies both geologically and architecturally. This analysis of elements will then be conducted at a local scale involving the city, and then a hyper local scale of immediate town and site surroundings. This will be carried out in tandem with the cultural understanding and awareness of local identities.

PROJECT STATEMENT

|ARCHITECTURAL THEMES

URBAN REVITALIZATION

Urban revitalization through architectural strategies is a dynamic approach aimed at breathing new life into neglected or underutilized urban spaces. Architects play a pivotal role in this process by re-imagining and redesigning areas to enhance their functionality, aesthetics, and community engagement. This revitalization often involves adaptive reuse of existing structures, transforming abandoned warehouses or industrial sites into vibrant mixed-use spaces or cultural hubs. Integrating green spaces, pedestrian-friendly designs, and sustainable elements not only enhances the visual appeal but also fosters a sense of community and connectivity. Architectural strategies in urban revitalization prioritize inclusive, respecting the area’s historical context while infusing contemporary elements that meet the evolving needs of the community. Ultimately, these strategies serve as catalysts for economic growth, cultural enrichment, and the creation of thriving, livable urban environments.

HETEROTOPIC URBAN LANDSCAPES

When exploring the intersection of urban conditions and cultural resiliency, it became evident that this was best observed through conditions where induced through the presence of a heterotopic landscape. Heterotopic landscapes are typically viewed through a multifaceted lens which challenge societal norms and perceptions of space. This type of urbanscape exists outside of established societal structures, creating nontraditional intersections of culture, identity, and sense of place. This results in sites which hold contradictory, or divergent meanings. A heterotopic site will serve as a reflection of the complexities of society and challenge the collective understanding of space, identity, and social order.

The integration geomorphology into the strategies that will shape this thesis, will allow for inspiration and information to be drawn from the natural formations that have occurred at both a regional scale and a hyper local scale. The use of geomorphology allows for the intersection between principles derived from visual queues and understanding of the geology, alluding to design strategies that will shape material usage, textures, approaches, and formal gestures. This strategy is applicable to the site of Treasure island as it pulls on the history of the development of place. As the island initially existed as a shoals that broke the surface of the water and created hazards for ship goers. The shoals were then filled and quarried to develop the base on which the island was formed. In addition the shoals, geologically, there is a rich landscape that surrounds the site, worth observing and understanding to better take queues from. The island is only accessible through a naturally formed island of Yerba Buena, and is nestled in the oceanic valley between the complex topography of Oakland, and San Francisco. This will blur the distinction between built environments and the landscape, fostering a sense of unity and connectivity between human-made spaces and the Earth’s geological heritage.

TRANSIT ORIENTED DESIGN

Cultural resiliency embodies a profound understanding and respect for a community’s heritage, traditions, and identity. Architectural design, within this framework, becomes a means of preserving and celebrating cultural narratives while adapting to changing circumstances. Structures and spaces are conceived not just as physical entities but as embodiments of cultural memory and resilience. Architects engage with local communities, incorporating elements of cultural significance into the design process, whether through symbolic motifs, traditional materials, or vernacular architectural styles. By valuing and integrating cultural practices and aesthetics, architectural interventions foster a sense of belonging and pride among residents, reinforcing a community’s resilience in the face of social, economic, or environmental challenges. This approach not only safeguards cultural heritage but also empowers communities to navigate change while maintaining a strong sense of identity and cohesion.

SITE SELECTION

| SITE IDENTIFICATION AND ANALYSIS

SELECTION AND LOGIC

To Select a site, a matrix was created, framed around seven major criteria categories that had to be met to ensure a series of conditions and challenges were present in order to test the thesis idea. The criteria used were included heterotopic landscapes, a cultural presence reflected through current conditions, the presence of heritage or contributing historic attributes, the location being within an urban context, the presence of vulnerable populations, geomorphic qualities, and economically influenced tourism. I began this pursuit looking at least 10 different sites across the US, Spain, and India, and ultimately was able to condense my options down to 3 options being Jalsamer in Rajastan India, Niagara Falls in Upstate New York, and Treasure Island in San Fransisco Bay. Each of these sites qualified by meeting the parameters outlined in the criteria, however, I was able to further narrow the potential selection by limiting the options to sites I had previously experienced. This parameter left the options of the City of Niagara Falls, and Treasure Island. Treasure Island was chosen due to its location, and the for the opportunities posed for the island due to its unique history and identity changes over the course of the last century. The island was also selected for its impending future, as the city wishes to develop the island to solve a series of issues and struggles that the city is currently facing, including housing, transit, and resources.

HETEROTOPIC LANDSCAPES CULTURAL PRESENCE HISTORIC

the site must have undergone a major use change, and landscape adaptation. This could be anything from military use (such as a fort, to housing) or major displacements due to political or economic change)

For this thesis to be best conceptualized, the site must have some type of culture identity or presence. This could be interesting, especially if autonomous landscapes or cities are explored

Idealy the site has some elements of historic architecture or architecture that has been valued through preservation efforts.

The urban context of this thesis is critical as urban landscapes traditionally exist in a state of flux. The rapidly changing environments typically result in conditions that are reflections of the values and beliefs of the public through tangible physical conditions of place.

In terms of place making, believe it could be proven that site identity is better crafted and developed with the site has a heavy influence of natural geography, or is derived from natural geography. This could entail sites that exits in environments with strong geologic features, or built environments that have potential to strengthen identity through alignment back to the geologic contexts.

The presence of tourism either adds to the infrastructural pressures or relieves economic burdens. If such places

REGIONAL MAP OF THE BAY AREA

This diagram is showing the regions that compose the makeup of the bay area. Each region all tho climatically somewhat similar differ drastically in terms of content with in the region. The bay region, located in the Northern part of California, is best known for its scenographic landscape, diverse and rich cultures, and technological innovations and practices. This regional area is known as the home of several major cities including San Fransisco, San Jose, and Oakland, as well as for its many iconic elements such as the Golden gate, twin peaks, redwood forest, and Alcatraz. The region has themes of a dynamic arts scene, rolling hills, and beautiful waters, creating an identity of creativity, entrepreneurship, and outdoor connectivity.

CENTRAL BAY

REGIONAL ANALYSIS

MODERN DAY BAY LANDS

The San Fransisco Bay lands consist of extensive wetlands and surrounding marshes that makeup the fringe of the shoreline for San Fransisco Bay. The bay lands are an important regional resilient feature as they are critical elements of an ecosystem whose role is to maintain water quality, provide flood protection, and to create natural buffers mitigating the effects of sea level rise, and coastal erosion. The bay lands have significantly changed over the last several centuries as a result of human intervention including activities related to agriculture, urban development, and industrialization. Today there are numerous conversation efforts and restorations attempts to restore and protect such valuable assets.

SAN FRANSISCO BAY

Spanning roughly 400 miles, San Fransisco Bay is a natural harbor just off the northern California coast. Today the bay serves as a vital ecosystem for its surrounding region. The bay is home to a diverse marine habitat, and creates a framework for recreational activities both in the water and along its shores. The bay is a result of a series of geological processes millions of years ago when the melting of the last ice-age led to sea level rise. Additionally the tectonic activity due to the numerous fault lines that frame the region also contributed significantly in shaping the distinctive landscape including the deep channels and rugged coast of the area. Today the bay is utilized as a critical feature in the cultural hub of its surrounding major cities, and an economic hub for its innovative industries.

MAJOR FAULT LINES

Treasure Island is located directly between two major, and highly active fault lines, the San Andreas and the Hayward Fault lines. The San Andreas fault runs nearly 800 miles across an extensive area of California, and is responsible for several major catastrophes, including the great earthquake of 1906, which nearly leveled the city of San Fransisco. The Hayward Fault runs through the east bay region through cities including Berkely and Oakland. The Seismic hazards posed by these faults have enforced and implemented struck building codes, and practices mitigating the risk of destruction due to liquification.

HIGH RISK LIQUIFICATION

This diagram is showing the high risk liquification areas (severe areas shown in red and moderate areas shown in yellow) across the bay region. As seen in the diagram areas that are especially prone are typically located along the shore line, specifically in areas that have been reclaimed from former wetlands for development purposes. The reclaimed land can pose problems as the seismic stress on the loose sandy soils create a condition of liquification (where losely packed and highly water saturated soil loses its strength and behave like a liquid when subjected to strong vibrations).

REGIONAL TOPOGRAPHIC ILLUSTRATION OF SAN FRANSISCO

SOIL AND GEO-TECHNICAL ANALYSIS|

The composition of the artificial island consists of some 287,000 tons of quarried clay, sand, and fill, from for the vicinity of the shoals and surrounding bay area. During the construction of the islands causeway, which makes up the base and the sea walls of the island, 23 feet of dredged sand was used to fill the interior of the island, and another 50,000 cubic tons of top soil that was used mostly to support the islands plantings and vegetation. This composition though has proven challenging. Over the recent years liquification due to earth quakes has occurred in the upper layers of the fill, at depths of approximately 25’to fail resulting in sinkage. The liquification on the island is mostly located in areas where the shoals do not exist, and the geological makeup turns to soft deposits of mud. The island was constructed before the best practices of land reclamation were realized. To resolve this issue in 2015, an exploratory investigation was done where a 53 ton, 75’ foot long, Jafec 40,000 direct Power Compactor was used in an attempt to densify the soil. This effort of Vibro Compaction proved to be sufficient in achieving the soil densities required to ensure build-ability on the shoals, at lest up to 23’ in soil depth. This Vibro compaction technique would have to be used across the majority of the island where building is to occur to ensure that the liquification is mitigated.

|TOXIC HISTORY LEAVES ISLAND IN RADIOATIVE STATE

After the war had ended, the island transitioned into a training center for dealing with radiological contamination. The training center was meant to teach officers how to deal with decontamination, specifically in the form of decontaminating a radioactive war ship known as the USS Pandemonium. The land based vessel contained hundreds of sealed pouches of radioactive contaminants such as cesium - 137, a highly radioactive isotope. The use of the ship continued for 30 years after the war ended. The USS Pandemonium was not the only source of environmental contamination. Additionally the Navy dumped large amounts of radiological waste into large rubbish pits. This became especially problematic when Naval families began living on the

base in the 1960’s. As seen in the figure, the navy discarded the majority of the waste at the corner of Aveue E and 11th street. This area was known as the South Storage Yard. Unfortunately this dumping ground was later turned into an elementary school play yard. Another popular dumping site exists on the corner of Avenue D, and 11th street, where the islands day care is now located. This site was commonly used as burn site, where the navy burned trash and debris.

575

The naval Radiological Laboratory was used for testing and building bomb, missiles, and other weapons. (Little Boy the bomb dropped on Hiroshima was assembled here) Canisters containing cesium and radium were transported through half- and quarter-mile underground tunnels.
metal discs consisting of radioactive radium-226 had been found in the ground at Treasure Island as of 2011.

The San Francisco micro climate is a product of the interplay between geographical features, oceanic influences, and atmospheric conditions. This region is most notable for the thick “marine layer” of fog that blankets the bay most mornings and nights. The climate can broadly be described as cool in the summers and mildly wet in the summers. Generally the temperatures fall around upper 60’s to mid-70’s throughout the entirety of the year. The climate is a product of the cool California current that flows south along the coast and the warm temperate dry climate of inland. The marine layer of fog, typically extends inland several miles, creating conditions that cool the warmer in land regions. The land massing that is connected by the Golden Gate bridge plays a critical role in shaping the micro climate. The narrow opening where the bridge is located facilitates the flow of the fog across the bay. The bays water also regulates temperatures by absorbing heat during the day and releasing it at night. The areas of the region closer to the ocean are typically cooler in temperatures and higher humid conditions.

Fog Map – Showing the average distribution of fog over land.

Treasure Island is located in the largest estuary in the western United States. The bay drains a watershed of nearly 40% of california. The bay itself consists of a sereis of complex networksthat intertwine embayments, creeks, rivers, and sloughs, all of which are tidally influenced. The bay is broken up into four different embayments including the Suisun Bay, San Pablo Bay (both combined are known as North Bay), Central Bay, and South Bay. The Sacremento River and the San Joaquin River provide the largest component of freshwater to the bay. The part of the bay where treasure island is located in known as Central Bay. Central Bay exists directly between the shores of Downtown San Francisco and Oakland, with the island of Yerba Beuna and Trasure island Nesteled centrally in the middle of it. Central bay is fed by the inlet that runs under the golden gate bridge and run off water from the north mostly

from the Carquinez Strait, and run off from the mountains that surround South Bay.

Central bay (aside from the shoals of Yerba Beuna), includes the deepest portions of the bay with an average depth of about 43’, with the Golden Gate Strait being more then 300’ deep. The extreme change in water depth causes intense tidal currents. This is where understanding the hydrodynamics of the bay becomes critical. The most significant influences of the complex movements of the bay water are tides, freshwater inflows, winds, and bathymetry. The Central Bay is a mixed estuary where there is a gravitational circualtion of tides in deeper areas, with the additional wave type of wind waves. The combination of the two create circumstances which can contribute to erosion, and shoreline degredation or change.

Average Temperature Map- Showing the average temperatures of San Francisco Area (Treasure Island – 75 ̊F)

Average Solar Radiation over the Bay Area (Treasure Island Exists at 1.7511.775 kWh/m2

ISLAND CONDITION

Images of bay dredging and infilling of the quarried shoal rock.

UNDERSTANDING THE CONSTRUCTION TIMELINE OF THE ARTIFICIAL ISLAND

The overall construction process of the island began in 1936 and was completed for the grand opening of the exposition in February 1939. The phased construction is shown via the timeline. This shows how the island was infilled with shored rock from the shoals, and then sand from the surrounding bay areas.

| GOLDEN GATE EXHIBITION IDENTITY

The original purpose of Treasure Island was to host the 1939-40 Golden Gate International Exposition, and then transition into the San Francisco Air Port. The purpose of the exhibition was designed to celebrate the newly completed golden gate bridge and the Oakland Bridges as engineering accomplishments. Additionally the exhibition was meant to showcase a phenomenon of pacific unity across a series of pacific islands. This projection of pacific spirit led to the development of the pavilions which would represent pacific islands. There was a deep focus in the architecture and landscape of the island translating these ideas and

conceptual connections. This was seen through the designs of the chief architect George Kelham who looked to a series of features influenced from Cambodia, Malaysia, Siam, and East Asia. This was seen in features which would represent science, agriculture, industry, and art. The landscape of the island was composed of a series of plantings native to the bay area. This included 4,000 trees, 70,000 shrubs and over 700,000 blooming plants. To sustain this the island was designed to have a 3 million gallon reservoirs hollowed out of the rock from yerba Beuna to irrigate the entirety of the island.

| NAVAL IDENTITY

In 1941 the United States Navy began leasing Treasure Island from the City of San Francisco as a “Reception Center”. By 1942, the Navy Confiscated the island and took ownership making over 10 million dollars in improvements. Over 12,000 men a day were processed here for pacific area assignments, and then thousands more were processed after the war ended. The island was operational through both the Korean and Vietnam Wars during which it became a Technical Training Center for Electronic Technicians (ET) in Radiation and Detection equipment (RADIAC), Communications & Radar systems, as well as training of Shipfitter and Damage Control Technicians, which also covered Nuclear Biological & Chemical (NBC) Warfare Decontamination (DECON) techniques (Building 600, Building 157, Building 2, Builng 3, and Building 1 were all nationally historically Registered)

LAYERED IDENTITIES

This drawing is showing the various identities of the island through both plan and through section. The drawing is composed of a series of layers, each capturing specific moments of the built environments identity. The islands identity of the Golden Gate international exhibition is shown through dotted white lines. The Island as a navy base is shown through solid line. Yerba Beuna is the land mass ghosted into the background, as the original land mass of the bay. This layering of elements shows a complex system of change which met the needs of the actions being carried out on the island.

| CURRENT SITE CONDITIONS

An initial review of Treasure Island, reveals a glimpse of aging infrastructure, derelict buildings, and environmental degradation. Over decades of change and the transfer of owner ship the island today exists in a state where about 65 % of it is covered by either building or impervious surfaces. Three of the buildings on the island are from the era of the International fair and are designated as Building 01, the administration building, Building 02 and Building 03, airplane hangars. Additionally there are about 92 post world war II buildings and about 908 residential units (only 728 which are occupied). The island is composed of 110 acres of residential buildings, 90 acres of open space, 95 acres of parking, and 70 acres of institutional, retail, office, restaurants, child care, a yacht club, and a wastewater treatment plant.

The transfer in ownership of the island is quite evident. The lack of occupation, use, and maintenance of buildings has taken quite a toll on the existing structures and infrastructure of the island. Without the need to assess and repair damages, buildings have begun to crumble. Additionally the areas of the island that were deemed inhabitable and are in a state of remediation due to the radioactive pollution on the island. Areas that are prohibited are enclosed by a chain link fence.

In 1996 after the closure of the naval base, an amalgam of real estate developers envisioned turning treasure island into a housing destination supplementary to the city. Construction on infrastructure began in 2011. Various dilapidated buildings had been demolished, however, as seen in the photos from 2017, much of the island is still in disrepair. Abandoned buildings of the Navy have long sat as sites of exploration for local thrill seekers, and the canvas of much graffiti. Several buildings stand alone as skeleton survivors of fires and other catastrophes.

|REGULATORY ENVIRONMENTAL CONDITIONS

There are two phases and scales of code and technical information that need to be observed and followed for the urban planning phase of the design, as well as the smaller scale building focus phase. When reviewing the guidelines of development for the City of San Francisco there is a provision for the development of the island listed under Sec. 249.52 which creates treasure island and Yerba Beuna Island as special use districts of the city. The Special Use district is shown and designated on sectional Map SU14 of the Zoning maps of San Francisco. This designation allows for any property within the special use district owned by the United States, Department of Labor, the Coast Guard, the Federal Highway administration, or the California Department of Transportation to be declared in a public use district (P Public Use) unless reclassified. This will progress the cities long term goal of implementing the creation of new neighborhoods on treasure island, benefiting the extensive infrastructural work and improvements, creation of recreational and entertainment opportunities, while creating jobs and sustainable communities.

In this section of the Planning Code (Sec. 249.52c) the Tidelands Trust Overlay Zone is also acknowledged. The Zone is part of the Treasure Island Public Trust Exchange Act which authorizes an exchange of public lands to be consistent with a proposed development plan.

This permitted the creation of Sec 249.52d, which calls for the Design for Development of the island in accordance with the Standards and Guidelines applicable within the Special Use District. Because of this TIDA was able to enable the creation of various Zoning districts that will be implemented as design development continues. This includes Treasure Island Residential TI-R, Treasure Island Mixed Use (TI-MU), Treasure Island Open Space (TI-OS), and Treasure Island Public/Civic/Institutional (TI-PCI).

The framework of development of the island is crucial as it will dictate the opportunities and experiences held by islanders. All pieces of the master plan should be planned in tandem to ensure the coinciding and interlapping of program with cultural identity and community planning. Treasure Island, is a 400 acre land mass born out of the shoals of Yerba Beuna. The island exists in the middle of San Francisco bay, halfway between Oakland and the shores of San Francisco. The island is accessible by the Bay Bridge connecting main lands to Yerba Beuna and followed by a causeway which links the islands together. The island has had a unique history identity and land use changes. This included the 1939 Golden Gate International Exhibition, and then to Naval Station treasure Island where the navy held occupation for 5 decades up until 1997, into what it is now, a series of mixed use buildings, residential units, and a series abandoned buildings and environmental contamination.

In 1997 the Treasure Island Conversion Act passed which designated TIDA as the redevelopment agency under California Redevelopment Law. TIDA or Treasure Island Development Authority has the ability to administer Public Trust for properties on the island, while also working with a master developer for the land use and control of lands of the island. This additionally allowed for a subsequent group known as the Treasure Island Citizens advisory board to be developed. This group has been working over the last 15 years hosting workshops and meetings to develop a series of guidelines, policies, objectives, and planning principles specific to the island. This resulted in a series of 6 objectives that outlined in The San Francisco General Plan, that will be used to drive the design for the urban redevelopment of the island.

ISLAND INTERVENTIONS

| CLIENTS AND USERS

The main clients of this proposal will include a variety of peoples. For the first phase of this project involving the master plan, the main client would be the city of San Francisco as well as the current residents and future residents of the island. These are key stake holders who will aid in developing the image and sense of place across the island. These peoples will not only shape identity , but will also set the baseline of cultural values and standards. However, the use group for the intended master plan program is a bit more complex. As the island heavily relies on tourism and occupants who are not residents to support its minimal economy, spacial consideration should also be given to such peoples. Island occupants are a much broader group of people including locals who commute to the island for employment, and those who commute or travel here for destination purposes. With the main users of the project being the local and regional community, with the exception of tourism. With the city or district 6 as the main client, the project can be developed in a way that best reflects the policies set up by the city, that are created in conjunction directly with the public. A majority portion of the clientele of the island will be made up with its current residents. The demographics of the island inhabitants are composed of 56% Caucasian residents, 28% African American, 10% Latino/Hispanic, 2% Asian. A major component for this master plan is the inclusion of some 8,000 units of housing. In addition to this, a significant proportion the housing has the opportunity to fall into an affordable or mixed income bracket of housing typology. There are several agencies that are already operating in relation to supporting the resources for such program. This includes Catholic Charities, HomeRise, HealthRIGHT 360, Swords to Plowshares, Mercy Housing, and Chinatown Community development center.

OBJECTIVE :

Realize the full Potential of the Underutalized Treasure Island by creating new neighborhoods that include facilities and amentities necessary to support a diverse thriving community.

OBJECTIVE :

Create a diverse urban neighborhood that responds to the island and waterfront setting and reflects San Francisco’s built form and character in a sustainable and innovative way.

| CONCEPTUAL PROGRAM

OBJECTIVE:

Implement transportation improvements that are multi-modal, serve residents and visitors, prioritize walking, biking, and transit, and provide residents with the ability to commute and

OBJECTIVE :

Create jobs, a variety of economic development oppurtunities and to enhanve vitality and quality of life for residents of the island and the city.

OBJECTIVE:

Create a high quality system of parks and open spaecs, facilitate improved shoreline access, and provide a wide range of rereational and ecological restoration oppurtunities.

OBJECTIVE:

Develop infrastructure that is sustainable in the short- and longterm by reducing the use of energy and water, allowing for increased sustainability over time, and being adaptable for changes in the environment due to the climate changes.

06

01 02 03 04 05

The goal of the masterplan is the revitalize an existing neighborhood, and provide the resources and infrastructure for holistic growth resulting in the supportive framework for a diverse and thriving community. The program for the masterplan is derived from the land use plan required by the city. This includes a balanced and complete mix of land uses including places of employment, residential components, recreation facilities, centers of entertainment, commercial, and retail spaces, service spaces, business for arts, and education. The program design should respond to the islands waterfront setting, as well as reflect the character of the cities it site between in a holistic and sustainable way.

The planning efforts of the island have been developed over a 15 year span after the naval base on the island closed. During this time community initiatives and workshops were carried out, which resulted in the discovery of a series of principles, goals, and objectives for the development efforts. Special attention should be given to program elements that will create linkages between peoples and the places that they occupy. This will be realized through the integration of educational facilities such as schools, public facilities, public safety facilities, recreational and entertainment spaces, community gathering spaces, culture centers and hubs. This program should be dispersed across the island strategically to allow for pocket development of town centers. This will hopefully encourage cohesion in island identity, and the ability for island goers to develop a sense of place and belonging that is a reflection of collective beliefs and values. This leads to the concept of developing the master plan with the intentions of creating a destination supplemental to the city of San Francisco and the city of Oakland. The proximity of the island nestled in the bay between these two metropolis allow for

opportunity to make visual connections through the view sheds across the bay. The new neighborhoods and the revitalized communities will have expansive access to a series of marine amenities, including open spaces, waterside trails for biking and walking, hopefully fostering opportunities for diverse social interactions, district character, and economic and political opportunities

With this the island could be broken up into a series of districts. This would include the residential districts facing the adjacent cities, island center facing Yerba Buena, and an open space and parks districts. The program which composes the open space and parks shall create transit oriented connections to Yerba Beuna, and the mainland cities, as well as connection to the new ferry terminal. With this, there is a requirement by the city to include a culture park into the open space program. The culture park will serve as a part of the San Francisco Arts Master plan, whose goal is to aid in the resiliency of culture across the city, strengthening the sense community and societal identies.

|CASE STUDY ANALYSIS

GOVENORS ISLAND

Govenors Island, located in the Harbor of New York, has had somehwat of a similar life cycle as Treasure Island. The island rested in the harbor as an abandoned military base, and was transformed into a cultural and recreational hub of the harbor. The design of the island takes a careful and balanced approach which integrated historic preservation practices, and innovative revitalization techniques, creating a diverse space to be enjoyed by all. The design prioritized sustainable measures, as well as environmental stewardship, through the inclusion of extensive green spaces, public accessible waterfront praks, and an infrastructure that begins to brigde the gap between the built and natural environments.

Additionally the island encmpasses significant cultural programming, playing a critical role in the succes of the redevelopment. This allowed for the Island to become the host of seasonal events, art installations and perforances, festivals, and exhibitions. This programming also plays a crucial role in developing an island identity that is desirable, and creates a higher quality of experiences.

The island serves as a great case study to examine the triumph and success where urban revitalization, and community planning collide.

in Stockholm now resides on the island of Skeppsholmen Island. The Island used to be headquarters of the Swedish navy, running parallel to the city. When the navy moved off of the island a series of buildings and autonomous resources were left behind and littered the site. Moneo chose this site of the island due to the forgotten nature of the landscape. The building typology is similar to that of treasure island where there were military barracks, munition dumps, shipyards, clinics spaces, churches, workshops and more. In 1990, it was decided that instead of trying to wipe the entirety of the its clean from the military presence, the a museum should be built instead. The competition that Moneo participated in al-lowed for site selection for a museum and cultural center. When Moneo began looking at site strategies, he examined the interaction between the water and the land forms, and determined that the building should not be based on contact with the sea but rather in a dialogue with it and the other existing buildings of the island. This strategy influenced the entirety of the design, from form, (250 meters in length, and roof lines and forms that reflect the context adjacent), the lighting based circulation, and interaction with the sites topography.

MODERNA MUSEET AND ARKITKTUMUSEET

GOVENORS ISLAND

Thistourists center located in Blaye France, built in 2020, size is about 524 sq meters . The tourist offices faces a UNESCO World Heritage Site, the Vauban Citadel, which is a fort built in the 11th century as part of the defense system to oppose any enemy incursions of the area. The tourist office replaced old dilapidated buildings that had to be demolished for safety reasons. The location and orientation of the tourist office allow for great visibility, and view vantages towards the estuary and the citadel. The building has quite a few panoramic views and uses a local stone with traditional building techniques. This allows for the building to hold identity and to assimilate into a large scale of place. the program intertwines into building identity through the use of natural and raw materials all locally sourced. This precedent aligns with the goals I am trying to explore and has evidence of a heterogenous environments across periods of time, with integration of adaptable and flexible program into an existing place that already has an established identity. Similar to the Jaisalmer fort, the site called for an intervention in the built environment as a result of adverse conditions in neglect or deterioration. The program infilled was a result of need based on local culture and socio economics like tourism

This case study also examines the relationship between heterotopic and autonomous urban scapes, as Moneo rencounters his homeland to design the nation of Navarre’s archive. This adaptive revitalization project, which ha sat in a deteriorated state for a significant period of time, housed the military and government until the late 1970’s. this made the design for a renovation a bit difficult. The adaption of the building was done through a series of strategies including material analysis, contextual review of urban fabric, and a geologic association to the Pamplona skyline on the plateau dominating the Arga River. The program of the renovated archives was organized in a way to maintain the original configuration of the vaulted hall spaces and to maintain the integrity of the cloister. The vaulted spaces were transformed into exhibition spaces, flanked by sunken courtyards. In areas were the existing construction was deemed unusable, the remains were preserved accentuating their edges between new stone and existing masonry.

GENERAL AND ROYAL ARCHIVE OF NAVARRE PAMPLONA, SPAIN

URBAN ANAYLSIS

| VOLUME AND DESITY

UNION SQUARE, SAN FRANCISCO

PORTLAND, OREGON

| BLOCK DENSITY

UNION SQUARE, SAN FRANCISCO

PORTLAND, OREGON

SUNSET DISTRICT, SAN FRANSISCO

|

| TOWER HEIGHT AND DENSITY

8,000 UNITS555 MONTGOMERY

8,000 UNITS181 FREMONT TOWER

SUNSET DISTRICT, SAN FRANSISCO

8,000 UNITSSALESFORCE TOWER SERIES OF TOWERS FOR VOLUME COMPARISON

CONCEPTUAL MONTAGE

This conceptual assembly of images and textures are a representation of the island. Themes of of the bay are seen through the inclusion of the tidal marshes and salt flats, and the rolling hills. Additionally, I have woven in layered history of the islands identity through the inclusion of the Sun Tower and the Pan American Clipper Plane. The diagonal lines ghosted into the background align to the various grids of San Fransisco, Oakland, and other iconic features of the Bay including Angle Island, Alcatraz, and The Golden Gate Bridge.

CONCEPTUAL DESIGN PROCESS

|

PLANNING STRATEGIES

BLOCK SCHEME |

HISTORIC AND NEW GRID CONVERGENCE

BUILDABLE AREAS PROGRAM PLACEMENT

Each block becomes hyper reactive to its surroundings through the use of specific view sheds. within the surrounding bay there are several veiws that are critical in the creation of the island identity. This includes that of the City Side shore line, the rolling hills of Angle island, and the a few icons such as the Golden Gate Bridge, and Alcatraz. These views were then used to shape the urban form of each block. This in turn added an extra layer of porosity, as well as creating interior courtyard spaces, unique to each block.

| ISLAND TEST FIT ISLAND TEST

| MASTER PLAN SCHEMATIC MASSING

| WHITE MODEL MASSING RENDERS

MIDRISE RESIDENTIAL & COMMERCIAL BUILDINGS

CLIPPER COVE AND RECREATION AREA

TREASURE ISLAND NATURE WALK

BAYLANDS AGRO PARK

WETLAND AND ECOHABITATS

WASTE WATER MANAGEMENT

MIXED DENSITY RESIDENTIAL AREA

CONCEPTUAL DESIGN

ISLE EXPERIEMNTAL|

APPLICATION OF LAYERED VEGETRATION TO SUPPORT SUSTAINABLE FRAMEWORK. SMALL SCALE COMMUNITIES INTENTIONALLY PLACED IN CLUSTERS

LAYERED TYPOLOGIES OF PUBLIC SPACES

DIVERSE FORMAL MASSING STRATEGIES

ACCESSIBILITY TO VARIOUS MEANS OF PUBLIC TRANSIT

VEHICLE ACESS TO MAJORITY OF ISLAND

PROTOTYPE 04

PROTOTYPE 01

PROTOTYPE 02

PROTOTYPE 03

MIXED INCOME, MIXED USE

AXON DIAGRAM OF BLOCK TYPE
BLOCK TYPE SECTION
BLOCK TYPE ELEVATIONS
AXON DIAGRAM OF BLOCK TYPE
SECTION

|CONCLUSION

This thesis explored iterations of design experimentation in a location facing a multitude of challenges. Treasure Islands artificial nature is not only the genesis of the islands potential, but also the cause of the severity of the issues that the island faces. It brings to question a series of morality questions, some of which cannot not even begin to be touched through the examination of this thesis, but are certainly framed around the intervention that we as designers have in the built and natural environments. The island, originally a symbol of peace and unity of the pacific islands, realistically should have never existed. The construction of the island led to the disruption of natural environments, which may be restored, will never be recovered. The biggest question that this thesis leaves open ended, is what right do we have, in destroying such naturality, for purpose of gain? Especially when the societies that we destroy and create on behalf of, are the unchanging problem. Transforming this island into a solution retrofit only solves the problems faced by urbanity temporarily. It may ease congestion, and provide economic prosperity for some time, but realistically the problems will occur again, leaving authorities and planners in a questionable state of what next?

That is not to say that this thesis does not serve as an experimental prototype, that begins to address such issues. If there is no other solution to mitigate the housing crisis of San Francisco, the issues of liquification from land reclamation in the bay

area, or the struggles of infrastructural congestions, then the solutions and prototypes addressed and proposed could serve as example of what could be. The design proposed explores a multitude of ways in developing experiential identities of the island, revitalizing the urban infrastructure in ways that have not yet been tested, and creating an urban form that reacts entirely to its surrounding context. The hyper logic used in decision making allowed for a dialogue surrounding the realization of what the true essence is of this artificial island, which rests solemnly in the middle of one of the most infamous bays in the world. Treasure island one served as the spectacle of the Bay region, catching the eye of the world as it shown as a beacon of unity and peace of the pacific islands, showcasing the best of culture, people, and powers. The island has opportunity to emulate similar themes, serving as opportunity to explore what could be. The entire redevelopment of the island should allow for architectural experimentation, exploring the best practices is master planning design to create diverse and sustainably operating neighborhoods, as well as experiments to test technology in ways that specifically benefit the quality of life for all who inhabbit the island.

|ANNOTATED BIBLIOGRAPHY

Robinson, James B. “Cultural Resilience Architecture in Post-Disaster Planning.” Carleton University Ottawa Ontario, 2011. Cultural Resilience Architecture in Post-Disaster Planning | James Robinson

This thesis by Robinson, “Cultural Resilience Architecture in Post-Disaster Planning”, explores the idea of embodying culture through built form in adaptive and resilient environment post-disaster. Robinson uses this thesis as a way to identify the relationships between long term strategic planning in combination of culturally complex and specific community rebuilding and rebranding. Robinson also uses this space to successfully examine a variety of community rebuilding case studies where local knowledge and collaborative design were in play. Robinson then used these case studies to determine a theory based formulaic response that could be applied to long term redevelopment or singular, independent rebuilding scenarios. There are a few key and critical points that Robinson made throughout this thesis the first being that there is a deep so understanding the inclusion of local knowledge at the crux of successful community rebuilding and resiliency. But with this comes its own challenges. For example, the challenge of a democratic and collaborative process that allows for outsiders to come in and offer aid and collect credible information about a foreign population of peoples, can create an inherent bias toward any type of development plan or rebuilding strategies. To combat this Robinson, I suggest that you utilization of a framework that is rooted in the localized knowledge of participatory design. In this thesis Robinson took on the approach of one as an outsider to the design and as an outsider planning consultant, where they had little previous knowledge or stake within the community. This allowed Robinson to evaluate the findings and formulate the hypothesis of unbiased from an unbiased perspective and lay a foundation of important localized knowledge in post disaster planning, and an understanding of collaboration within the community in terms of design application. The application of the hypothesis that Robinson derived was used

to develop a culture market in Haiti which affirmed the necessity for a locally driven collaborative design in a post disaster rebuilding initiative.

Guallart, Vicente. Geologics: Geography, information, architecture. Barcelona: Actar, 2008.

Geologics, Geography, Information, Architecture | Vincent Guallart

In the book geologic geography information architecture by Vincent Guallart, we see at least a full decade worth of research presented to show evidence toward a development of architectural projects that encompass a multitude of scales. The book explores territorial projects, buildings, homes, cities, and broad scopes of design work, through various modes of informational processes that are linked to design. Vincent claims that every architectural project is a manipulation of geographic parameters of place as he defines geography as the mapping of physical, economic, and social phenomena, over a territory. He constructs the idea that the geologics, ( which he also uses to show value of place) are the most basic simplified mechanisms used to interact with a place in accordance with its natural “rules”. Vincent claims that we need to view the world has a system of ecosystems that interacts with a multi-dimensional and multi scalar form. He claims that every architecture project shall seek to integrate is self to inhabit places that literally resonated with the earth. Vincent gives a series of case studies move architectural work that follow a logic which embraces everything from the interaction with the natural elements such as mountain, rocks or trees, and the transformations of urban areas and context with a focus on social organizations in their multi-dimensional interactions with the digital world.

Reiser, Jesse, and Umemoto. Atlas of Novel tectonics pp. 17-36

The reading calls on different conceptual forms of design and argues their relation to traditions, history, culture, and logic. This relates to the thesis I am proposing as it pulls on the ideas of the intersection of the thresholds between tangible and intangible architectural forms. The concepts proposed in this expert begin to question then relevancy of historical knowledge and the understanding that architecture itself can make history where history can only inform new architecture. This multifaceted approach of architectural thinking allows for deeper understanding of specific conditions that can lead to the success of failure of a project. This becomes critical when we look at the approach of how architecture exists within its context. The authors brought up a great point about the shift in the understanding of objects, and how objects are no longer in a fixed or permanent “field”. This further brings up the idea that theoretical and programmatic site issues should be analyzed on a multi-scalar analysis.

Sustainable

Framework for Durham

Learning

and Buisness Park (dLab) by Svn

In Oshawa Ontario, the design firm SvN developed a masterplan for the Innovation Durham Urban Design Study. The proposal presents a sustainable urban framework with “prestige” industrial lands that are adjacent to Oshawa West Go Station, Durham College, and Tent University. The goal behind the masterplan was envisioned by the local landowners and longterm tenants , which interlaced an urban masterplan of urban land use, urban forms, landscape design, and building typologies. The masterplan was intended to be programmed in a way that would provide additional academic and research opportunities for the local institutions. Through a rigorous analysis and assessment of opportunities in sustainability, a framework to support the island through land use, landscape design, and built form guidelines was created. The plan utilizes an extensive

passive recreation and alternative transportation strategies. The strategies, encompassing around pedestrian walkability and public transportation, move away from the need of individual means of transportation through vehicle. This promoted blended environments, and allowed for the desegregation of natural and built typologies.

|BIBLIOGRAPHY

American Legal Publishing. “SEC. 249.52. TREASURE ISLAND/YERBA BUENA ISLAND SPECIAL USE DISTRICT.” Accessed May 21, 2024. https://codelibrary.amlegal.com/codes/san_francisco/latest/sf_ planning/0-0-0-21366.

Andriana. “Bay Area Fishing: The Complete Guide.” FishingBooker Blog, September 19, 2020. https:// fishingbooker.com/blog/fishing-in-the-bay-area/.

anneschnoe. “Anne Schnoebelen’s Treasure Island Gallery.” Treasure Island Then and Now, August 9, 2014. https://treasureisland1939.com/2014/08/09/lilly-is-pressing-her-chin-gently-into-my-hand/.

ArchDaily. “‘The Hills’ by West 8 Set to Open on Governors Island,” July 15, 2016. https://www.archdaily. com/791454/the-hills-by-west-8-set-to-open-on-governors-island.

ArchDaily. “Salt Museum / Malcotti Roussey Architectes + Thierry Gheza,” May 11, 2010. https://www. archdaily.com/59348/salt-museum-malcotti-roussey-architectes-thierry-gheza-architecte.

California Beaches. “Treasure Island, San Francisco, CA,” n.d. https://www.californiabeaches.com/ beach/treasure-island-san-francisco/.

Canales, Katie. “San Francisco’s Historically Radioactive Treasure Island Is Finally Getting a $6 Billion Makeover. Meet the Residents Who Have Lived on It for Years.” Business Insider, January 24, 2020. https://www.businessinsider.com/san-francisco-treasure-island-housing-crisis-radioactiveland-2019-12.

Floornature.com. “Rafael Moneo Wins the Praemium Imperiale 2017 | Floornature.” Accessed May 21, 2024. https://www.floornature.com/rafael-moneo-wins-praemium-imperiale-2017-13098/.

“Getting Geotechnical: The Making, Shaking and Remaking of San Francisco’s Treasure Island | Informed Infrastructure,” n.d. https://informedinfrastructure.com/73239/getting-geotechnical-the-makingshaking-and-remaking-of-san-franciscos-treasure-island/.

“Interim Implementation Plan a G E N D a 01.” Accessed May 21, 2024. https://static1.squarespace. com/static/62fac8a0e4d4c17b5b302497/t/6567c8168472872dff80e058/1701300260263/TI+Interim+Imp lementation+Plan+Development+-small.pdf.

Niekerken, Bill Van. “At SF’s 1939 World’s Fair, a Mad Dash to Be First through the Gates.” San Francisco Chronicle, February 20, 2019.

“Rediscovered Photos Showing Golden Gate International Exposition in a New Light.” San Francisco Chronicle, August 28, 2018.

O’Mara, Kelly . “Large Parts of the Bay Area Are Built on Fill. Why and Where?” KQED, February 6, 2020. https://www.kqed.org/news/11799297/large-parts-of-the-bay-area-are-built-on-fill-why-and-where.

OnCipperCove. “About Clipper Cove | OnClipperCove.” Accessed May 21, 2024. http://onclippercove. com/aboutclippercove/.

One Treasure Island. “One Treasure Island.” Accessed May 21, 2024. https://www.onetreasureisland. org/.

Picryl. “Ships in the San Francisco Bay.” Accessed May 20, 2024. https://picryl.com/topics/ ships+in+the+san+francisco+bay.

Reid, Robert. “California’s Treasure Island.” National Geographic, November 28, 2014. https://www. nationalgeographic.com/travel/article/californias-treasure-island.

Romans, Brian. “Landfill and Liquefaction | KQED.” www.kqed.org, September 30, 2010. https://www. kqed.org/quest/8920/landfill-and-liquefaction.

scc.ca.gov. “San Francisco Bay Area – California State Coastal Conservancy,” n.d. https://scc.ca.gov/ projects/san-francisco-bay/.

Smith, Matt. “Radiation Worries on Treasure Island.” SFGate, November 13, 2013. https://www.sfgate. com/bayarea/article/Radiation-worries-on-Treasure-Island-3794865.php.

Taylor, Ruth. “A Cartograph of Treasure Island in San Francisco Bay : Golden Gate International Exposition.” The Portal to Texas History, 1940. https://texashistory.unt.edu/ark:/67531/metadc29458/.

Treasure Island California. “USS Pandemonium,” August 8, 2023. https://treasureislandcalifornia. wordpress.com/category/index/uss-pandemonium/.

Viva, Arquitectura. “Museums of Modern Art and Architecture, Stockholm (Project Stage) - Rafael Moneo.” Arquitectura Viva. Accessed May 21, 2024. https://arquitecturaviva.com/works/museos-dearte-moderno-y-de-arquitectura-estocolmo.

wilsonmeany.com. “Treasure Island | Wilson Meany.” Accessed May 21, 2024. https://wilsonmeany. com/project/treasure-island/.

www.asla.org. “ASLA 2012 Professional Awards | Governors Island Park and Public Space Master Plan,” n.d. https://www.asla.org/2012awards/085.html.

www.foundsf.org. “TI 1938 - FoundSF.” Accessed May 21, 2024. https://www.foundsf.org/index. php?title=TI_1938.

www.panam.org. “Pan Am Eras: War Years, Vital to Victory.” Accessed May 21, 2024. https://www. panam.org/war-years?start=0.

“In the end, it wasnt arbitrary at all, It meant exactly what it was supposed to. “ - RP

ARCHITECTURE AS A VEHICLE FOR ADVANCING

EDUCATION AS A HUMAN RIGHT

“Education is a human right with immense power to transform. On its foundation rest the cornerstones of freedom, democracy, and sustainable human development”

“Knowledge is a very special commodity: the more you give away, the more you have left. Imparting education not only enlightens the receiver, but also broadens the giver—the teachers, the parents, the friends. Schooling not only benefits the person being schooled, but also others who are close to those who are being schooled. Basic education is a truly social good, which people can share and from which they can jointly benefit, without having to snatch it from others.”

AS A HUMAN RIGHT

ARCHITECTURE AS A VEHICLE FOR ADVANCING EDUCATION

CAMILA ALEJANDRA URIONA GAMBOA

MASTER OF ARCHITECTURE

CUMMINGS SCHOOL OF ARCHITECTURE

ROGER WILLIAMS UNIVERSITY

MAY 2024

Submitted in fulfillment of the requirements for the Master of Architecture degree

CAMILA A. URIONA GAMBOA

Thesis Author

JULIAN BONDER

Thesis Advisor and Professor of Architecture

STEPHEN WHITE

Dean and Professor of Architecture

THESIS ABSTRACT

Education is an empowering human right that has multiple benefits for both individuals and society. Education is a tool that economically and socially marginalized adults and children can use to lift themselves out of poverty and be fully participating members of their communities. This project aims to explore how architecture can be used as a vehicle for advancing education as a human right. There are two sides to be addressed when considering education as a human right. These are the right to learn and the right to teach. The right to learn focuses on ensuring inclusive and equitable universal quality education and lifelong learning opportunities for all individuals. The right to teach focuses on academic freedom and how knowledge is stored and shared. On one hand, this project aims to create a school prototype that explores how to create an effective learning environment for students through creating a module that can be repeated and expanded upon and will take materiality and character based on its site and context. On the other hand, this project aims to also create an advocacy center for academic freedom that will provide a space for research and dissemination of knowledge regarding education. There will also be a gallery space to showcase any new knowledge gain about education and effective teaching methods as well as any advocacy efforts and campaigns that promote the right to learn and the right to teach.

PERSONAL MANIFETSO & INTERESTS

RESEARCH

EDUCATION THROUGHOUT TIME

THE ROLE OF ACADEMIC INSTITUTIONS

INSTITUTIONS ADVOCATING FOR EDUCATION

PRECEDENT ANALYSIS

ESTOA, UDEM, MEXICO

CEPT UNIVERSITY, INDIA

LA PIEDRA SCHOOL, CHILE

ARENA DO MORRO, BRAZIL

CHILDREN VILLAGE, BRAZIL

FUJI KINDERGARTEN, JAPAN

ENGLISH FOR FUN CENTER, SPAIN

ALTO ANAPATI PRESCHOOL, PERU

METI PRIMARY SCHOOL, BANGLADESH

MKOMBOZI PRIMARY SCHOOL, TANZANIA

NUEVA CREACIÓN KINDERGARTEN, MEXICO

SAN FELIPE CHENLA SCHOOL, GUATEMALA

SCHOOL N300 COLONIA NICOLICH, URUGUAY

LOVELL INTERNATIONAL SCHOOL, THAILAND

THE RAJKUMARI RATNAVATI GIRLS SCHOOL, INDIA

SZENTPÉTERFA ELEMENTARY SCHOOL, HUNGARY

LYCÉE SCHORGE SECONDARY SCHOOL, BURKINA FASO

29 DE NOVIEMBRE SCHOOL RECONSTRUCTION, COLOMBIA

PRECEDENT ANALYSIS

XINNAN KINDERGARTEN, CHINA

ULYANKULU SCHOOL TANZANIA

HIMAWARI NURSERY SCHOOL, JAPAN

SIMBA VISION MONTESSORI SCHOOL, TANZANIA

PROBLEM & PROJECT STATEMENT

ARCHITECTURAL INTENTIONS

PROGRAM OUTLINE & SPACE ALLOCATIONS

SITE IDENTIFICATION

SITE ANALYSIS

DESIGN DEVELOPMENT

FINAL DESIGN

01 PERSONAL MANIFESTO

Throughout my upbringing, my parents have always encouraged me to learn as much as I can from every field of study. According to them, KNOWLEDGE IS POWER. Material possessions might be taken away or lost, but knowledge will always be an intangible possession that could never be taken away from me. For these reasons, I have always had an initiative to learn anything that caught my interest. As a result, I have had a positive learning experience at almost every stage of my educational career. By being a quick learner, I easily became a good student in any institution I attended. However, throughout my conversations with friends, I have come to the realization that not everyone has a positive educational experience. Moreover, throughout my college career, I discovered that not everyone is as fortunate to have the freedom to receive a quality education. Oftentimes, the educational system fails those who do not conform to the traditional modes of learning, neglects those with limited resources, or silences those who might want to explore “controversial” or “dangerous” topics.

Education is a human right. “Education is the primary vehicle for economically and socially marginalized adults and children to lift themselves out of poverty and obtain the means to participate fully in their communities” (UN Human Rights, Office of the High Commissioner). There are two sides to education that one must consider when discussing it as a human right: the right to learn and the right to teach. The right to education as explained by the International Declaration of Human Rights refers to education that is “...directed to the full development of the human personality and to the strengthening of respect for human rights and fundamental freedoms.” The right to teach relates to academic freedom. “Academic freedom is presented as a basic human right, inextricably linked to the right to education, and part of a broader package of human rights, including freedom of expression and association, equality before the law, and the right to the benefits of culture and scientific progress” (Inter-American Principles on Academic Freedom and University Autonomy).

Architecture should have an activist role in society. When one considers education as a human right, the role of architecture should be to provide spaces where people can effectively learn and freely teach their interests and topics they are passionate about. Architecture should provide spaces that can accommodate diverse types of education and also provide spaces where knowledge can be stored and shared with current and future generations. It is important to define the characteristics required to create such learning environments as well as evaluate the needs of all its users, including students, educators, and the staff. Then, it is crucial to analyze the architectural elements that can help to craft the best conditions for learning and teaching in different modalities and a variety of subjects. Also, designers must note that not all countries or neighborhoods have the same resources for basic infrastructure and that different cultures might have different traditions on how knowledge is shared. Nonetheless, education is a human right. All individuals deserve access to a quality education that will help them develop skills necessary for a life sustaining job. How can architecture help to ensure an inclusive and equitable quality education and lifelong learning opportunities for all individuals?

Education is a basic human. Education not only provides individuals with the tools to obtain a life sustaining job but it also promotes curiosity, innovation, and exploration, which are crucial for the future development of society. Every individual should have access to a good quality education. The education of future generations must be a primary concern at a global level because these will be the individuals who will be in charge of the society. It is important to create environments that support diverse learning styles so all individuals can achieve their full potential in the field of study they choose and also develop as full-rounded individuals with a strong sense of self and a conviction to make a positive impact in the world. Exploration and collaboration between fields of study is a must. Architects should be more conscious about how the built environment influences the learning process and experience of students and educators. I have fond memories of all the institutions I have attended and the environments where my learning needs were nurtured and my mind was allowed to wander. Some were better than others, but an element that was always present was the sense of community and freedom. The architectural elements that define the space, give it a character, and create an atmosphere have an influence on how effective the quality of education is and how these conditions affect how students learn and how successful they become in the long run.

The architecture of schools has an intangible impact on how people learn and interact during the learning process. The environment where people learn is as important as what they learn. Materials, light conditions, textures, colors, and the overall atmosphere the architecture creates should elevate the building with hopes to inspire. Academic institutions have the spaces where minds are formed. These spaces should have the ability to engage the mind and open it to discoveries. They should create an environment where the mind is free to wander and the desire to learn is nurtured. Learning goes beyond the four walls of a classroom because knowledge can be shared in numerous ways, such as a lecture, a demonstration, a collaboration between instructor and student, a group discussion, or a casual conversation.

01 MATRIX OF INTERESTS

THEMES

Education as a HUman Right

Right to Learn & Right to Teach

Quality Education

Knowledge as Power

Education and Democracy

Ideal Learning Environments

Modes of Learning

Multipurpose/Flexible Spaces

Outdoor Learning

Project Based Learning

Effects of Technology in Education

Academic Sucess

Mentors

Academic Freedom

Neuroaesthetics

How learning is perceived by different cultures

Nneuroscience and Design

Culture

Biculturalism/Multiculturalism

Immigration

Immigrants and Future Generations

Sense of Belonging

Stranger in a Foreign Land

Integration vs Assimilation vs Marginalization

Dialogue in Public Spaces

Casual Interactions

Interactions Between Different Cultures

Vibrant Colors

Vegetation

Organic Forms

Textures

Movement of Bodies Through Space

Psychology - how the brain works

Art that evokes emotion

Lucid Dreaming

Consciousness

ARCHITECTURES ARCHITECTS TECHNOLOGIES AND MAKING MATERIALS

Gothic Architecture

Architecture used as symbols or metaphors

Architecture that integrates vegetation

Landscape Design Efficient

Courtyards & Balconies

Latin American Architecture

Academic Institutions

Ideal Learning Environments

Alvar Aalto

Jorn Utzon

Herzog & DeMeuron

McKim, Mead, & White

Felix Candela

Tadao Ando

Toyo Ito

Daniel Libeskind

Zaha Hadid

Louis Kahn

B. V. Doshi

Jeanne Gang

Antonio Gaudi

Lina Bo Bardi

Miguel Montor

Tatiana Bilbao

Alejandro Aravena

Heatherwick Studio

Atelier Bow-Wow

David Chipperfield

RCR

Diana Kellogg

REM Koolhaas

Loha Architects

Francis Kere

Suchi Reddy

Biomimicry

Thin Concrete Shells

Net Zero

Repetition, Rhythm

Proportions

Composition

Recycled
Unwind by Neil Shusterman Left to Tell by Immaculee Ilibagiza Maus by Art Spiegelman
The Book Thief by Markus Zusak Sold by Patricia McCormick
Jewher Ilham: A Uyghur’s Fight to Free Her Father by Jewher Ilham

02 EDUCATION THROUGHOUT TIME

Education in essence, is the passing down of knowledge from generation to generation. This knowledge is rooted in cultural traditions and skills people considered useful to acquire. Depending on how each culture viewed education, it took different forms and focused on different areas of expertise. These varied in style and importance, but they all started as oral traditions and instruction that later became written records. During ancient times, education was only accessible to the elite and there was a clear separation between knowledge and skills taught to male and females. Young boys would become their father’s apprentice and learn their skills while young girls would learn housekeeping skills and how to become a caregiver as well as a wife. This notion about education was an universal assumption although some cultures took different approaches as to how learning takes place.

In ancient India, education was considered to have three steps. The first step was hearing: knowledge acquired by listening to someone more knowledgeable about a topic or skill. The second step was reflection: students think, analyze, and make inferences. The third step was the application of knowledge to real life.

In ancient China, the first education system was created to teach aristocrats about rituals, literature, politics, music, art, and archery. In later decades, working-class people received an education that centered around skills for work.

In ancient Greece and Rome, education was more readily available and children learned basic literacy skills, sports, and music. As children grew, they learned work skills from their father or a tradesman. Also, most of the education received was from military training designed to create warriors with complete obedience, courage, and physical perfection, literacy and other skills were disregarded. Over time, more schools were established and the education system was arranged in tiers where students would progress based on their inborn gift for learning.

In the West of Africa, there is the tradition of the community gathering under a sacred tree. This would be the place where people would share and pass down knowledge from generation to generation.

For Aztec and Mayan civilizations in Central and South America, education was given by parents but supervised by the authorities of the settlements. There were two types of schools for young boys: one for military training, and one for advanced learning in writing, astronomy, statesmanship, theology, and more. Education for young girls centered around housekeeping and child raising. All females were taught to be involved in religion but did not take any leadership roles. For the Inca Empire, education was separated into two spheres: one for upper classes and one for the general population. The upper classes received education from wise elders, such as philosophers, poets, and priests, while the general population would learn knowledge and skills from people around them.

During the Middle Ages, education was provided by religious institutions such as monasteries and churches. The establishment of universities also emerged and offered education in the arts, law, medicine, and theology.

Modern systems of education derive from institutions founded with religious principles. However, some of these became more secular as other secular institutions also started to emerge. At this time, the concern for educating the poor and people of lower social status also emerged and free education became a topic of discussion. In the 1770s in Europe, increasing academic interest led to the analysis of teaching methods and the first chair of pedagogy was established in Germany. In the late 19th century, most of Europe provided elementary education in reading, writing, and arithmetic because politicians believed that education was needed for orderly behavior. Secondary education was given only to those who could afford it. Other models of education emerged during the 20th century, such as Maria Montessori’s Montessori schools in Italy and the development of the Waldorf education in Germany by Rudolf Steiner.

During the early years of the United States as an independent country, many children were excluded from access to education based on income, race, ethnicity, gender, and geographic location. The first schools established had ties to religious institutions. Some were permanent while others had traveling schoolmasters. The creation of public schools emerged from the desire to prepare people for democratic citizenship. An educated population would preserve democracy, understand political and social issues, participate in civic life, vote wisely, protect their rights and freedoms and resist and fight injustices. Over time, schools became decentralized and states have primary authority over the educational system. Issues of equity and equal opportunity arose during the time of the Civil Rights Movement. As a result, schools started to provide other social services such as breakfast and lunch for children from low-income families, before and after school care programs, counseling, substance abuse prevention, and safety and violence prevention.

Currently, there is some form of compulsory education in most countries. During the 21st century the goal about education shifted from providing access to education for all to ensuring a high quality education. Throughout history, education was only reserved for the elite and people with the resources to afford it. Education was viewed as a privilege and became a symbol of high class status in society. This became a concern when authorities started to understand that education has a vital role in building communities, promoting economic development, and eliminating social disparities and inequalities. Education went from being a privilege to becoming a basic human right. Numerous efforts from governments around the world and international institutions fought to have education accessible to all. This goal was somewhat achieved and most countries have some form of free compulsory elementary education. Nonetheless the fight for an educated population still continues because it is crucial to consider the quality of the education being taught.

02 THE ROLE OF ACADEMIC INSTITUTIONS

The architecture of spaces has an intangible effect on its users. When it comes to educational environments and institutions, the architecture can embody the unique aspirations and visions of the institution and aid in the realization of those ideals. The architecture of learning environments influences the activities that can be held in those spaces. There is a direct correlation with the qualities of a space and the learning outcomes. A space that provides physical safety, habitability, and an optimal balance of stimuli can improve the academic achievement of students and, vice versa, overcrowded, dull, and uncomfortable spaces can have detrimental effects on academic achievement. The design of learning spaces must support what is being learned as well as how the learning takes place. The spatial conditions that support the process of learning are just as important as the material being learned.

When considering the design of learning spaces, it is imperative to understand the learning practices that are used by educators. The architecture of the learning spaces should aid and have the adaptability to support all those learning practices as different materials are being taught and the needs of the educators and students evolve. Broad categories of learning practices include noticing, wondering, and helping. Several architectural elements can aid to facilitate these learning practices. Some examples include creating moments to slow down and explore, curving pathways, movement through spaces, visibility to promote social closeness, open-ended play spaces to encourage exploration, spotlight elements to spark conversations, spaces for learner connections to self, to others, and to the environment, and inclusivity for the creation of a safe space for students to express themselves and their ideas.

The architecture of academic institutions are where young minds are formed. It is crucial to understand human development through education. Education is an intrinsic public good that has a vital role in building human capital, breaking the cycle of poverty, promoting economic development, and eliminating social disparities. Architecture alone cannot fix the ongoing global education issues, but it can help to provide safe and habitable infrastructure where the learning can take place. It is important to note that traditional classroom layouts are no longer flexible enough to serve the evolving needs of educators and students. Reimagining how classrooms can adapt to diverse learning practices as well as addressing topics of sustainability, the environment and technology integration are important areas that need to be explored further in depth in the architectural discourse.Designers need to understand how to craft spaces that elevate institutions with the hopes to inspire. Spaces need to promote creativity, curiosity, and innovation. These also need to have spaces where knowledge can be effectively stored and disseminated. Learning spaces should be student- focused to make all of them confident and comfortable to perform at their best, individually and collectively.

02 INSTITUTIONS ADVOCATING FOR EDUCATION

UN’s 17 SUSTAINABLE DEVELOPMENT GOALS

These goals are an urgent call for action by all countries, in a global partnership, to recognize that ending poverty and other depravations must go hand-in-hand with strategies that improve health and education, reduce inequality, spur economic growth, address climate change, and work to preserve natural ecosystems. discusses access to quality education and lifelong learning opportunities for all.

UNITED NATIONS, HUMAN RIGHTS COMMISSION

“As an empowerment right, education is the primary vehicle by which economically and socially marginalized adults and children can lift themselves out of poverty and obtain the means to participate fully in their communities. . . Increasingly, education is recognized as one of the best financial investments States can make. But the importance of education is not just practical: a welleducated, enlightened and active mind, able to wander freely and widely, is one of the joys and rewards of human existence.” (Internatinal Covenant on Economic, Socia; and Cultural Rights)

ORGANIZATION OF AMERICAN STATES

A good education is a vital component needed to foster economic development, social equity and security in any democratic society. The OAS collaborates with member states in their efforts to ensure quality education for all. In doing so, the Organization coordinates a variety of educational programs in many countries of the hemisphere, and provides scholarships to young men and women to promote greater opportunities.

INTER-AMERICAN COMMISSION ON HUMAN RIGHTS

Academic freedom is presented as a basic human right, inextricably linked to the right to education, and part of a broader package of human rights, including freedom of expression and association, equality before the law, and the right to the benefits of culture and scientific progress.

NATIONAL EDUCATION ASSOCIATION

Every student in America, regardless of family income or place of residence, deserves a quality education. In pursuing its mission, NEA has determined that the energy and resources of their 3.2 million members will focus on improving the quality of teaching, increasing student achievement and making schools safer, better places to learn.

EDUCANDO

Educando delivers world-class training and ongoing support to teachers and principals from public schools, creating systemic change in education while equipping young people for improved professional career opportunities leading to a brighter and more prosperous future.

SCHOLARS AT RISK

Scholars at Risk is an international network of institutions and individuals whose mission it is to protect scholars and promote academic freedom. The organization focuses on providing sanctuary and assistance to threatened scholars, investigating and speaking out against attacks on higher education communities, and developing spaces for free inquiry and expression

COALITION FOR ACADEMIC FREEDOM IN THE AMERICAS

The Coalition for Academic Freedom in the Americas is a project to increase awareness and advocacy in defense of academic freedom across the Americas, aimed at developing and concretizing relevant human rights standards, both as a means of protecting higher education spaces in the western hemisphere, and modeling best practices elsewhere.

ORGANIZATION FOR ECONOMIC COOPERATION AND DEVELOPMENT

International organization that works to build better policies for better lives. Their goal is to shape policies that foster prosperity, equality, opportunity, and well-being for all.

UNITED WORLD SCHOOLS

UWS works to ensure children have access to quality, inclusive education in remote and marginalised communities by collaborating with local partners, communities and governments.

YES WE CAN WORLD FOUNDATION

Nonprofit organization based in Los Angeles, CA. Their mission is to provide full time bilingual education, build safe spaces and provide mental health support for children regardless of their location, legal status or economic background. Yes We Can World Foundation is the creator and operator of the Yes We Can Mobile Schools Program; the first and only accredited bilingual school program for refugee and migrant children at the US-MX border.

ESTOA|UDEM

NUEVO LEON, MEXICO - TATIANA BILBAO - 2016-19

ARCHITECTURAL INTENTIONS

This project was designed to achieve a 100% pedestrian campus and provide a green lung for the city’s western zone. The building seeks to promote a closer relationship between individuals and architecture to help to cultivate a feeling of community and identity among students. The ultimate goal of ESTOA is to create a place where students feel welcomed and can develop their academic activities and enjoy social life.

PROGRAM

Its program seeks to enrich student life, improve the community experience, and contribute to the creation of public spaces. The building has student space, commercial areas, service offices, classrooms, and underground parking that was designed to be adapted to other uses in the future. Private areas are clustered at the base and public areas are at the upper levels.

CONTEXT & SCALE

It is the main entrance of the university and is an extension of public space working as a link between the city, the campus, and the people. The site’s topography influenced the massing thus resulting in a conglomerate of rectangular volumes: component units that form a greater whole. The landscape and structure have a synergy. In some areas the landscape blends into the interior of the structure and in others the structure extends to the landscape creating versatile spaces for diverse uses.

MATERIALITY AND CONSTRUCTION

The form of this project was designed to function as an agora, a public open space where knowledge was shared in ancient Greece. The building is approximately 90,000 square meters . The building envelope is made of precast concrete panels and efficient low-e windows. It has green roofs and arches with native vegetation.

PRECEDENT: CEPT UNIVERSITY

AHMEDABAD, INDIA - B.V. DOSHI - 1966-68

ARCHITECTURAL INTENTIONS

The concept for CEPT University was to create an open building to blur the boundaries between formal and informal spaces while increasing interaction with nature to create an indoor-outdoor synergy. The place of learning was seen as one where there were no boundaries, no hierarchies, and a complete atmosphere of free and uninterrupted inquiry. The teaching spaces reflect a philosophy of a learning environment where nothing was boxed into rigid categories but rather it was an open environment in spirit as well as physical form.

PROGRAM

The Center for Environmental Planning and Technology (CEPT) sought to create a campus of many interconnected disciplines. It offers undergraduate, postgraduate, and doctoral degrees. There are interrelations between architecture, design, planning, and construction technologies. Understanding the relationship between the arts and social and natural sciences was very important. CEPT is considered to be a hub of culture and a great example of academic design.

CONTEXT & SCALE

CEPT is a vital part of the city. It is located at the center of urban life. It comprises five faculties: Architecture, Planning, Technology, Design, and Management. Currently, the university continues to grow and there are plans for expansion. Some of these include a library, a plaza, and a studio fabrication environment. CEPT is an example of how an academic institution can positively transform a community.

MATERIALITY AND CONSTRUCTION

CEPT primarily uses brick and concrete. Studio spaces have clerestory windows to bring in abundant natural light to the learning spaces. Architecture can have emotional, intellectual and physical impacts on individuals. Doshi believed that education is about discovery. He paid close attention to spaces and body movements in time to create a fluidity between defined and liminal spaces. These qualities are achieved through the repetition of elements in the facade and the constant connection with nature through views. The concrete frame is expressed in the exterior of the building due to its contrast with the brick exterior walls and balconies.

PRECEDENT: LA PIEDRA SCHOOL

TEMUCO, CHILE - CORREA 3 ARQUITECTOS - 2022

ARCHITECTURAL INTENTIONS

The design rose from a respectful and deep dialogue with community members to respect and understand their cultural and spiritual practices. The school aims to meet the community’s educational needs while preserving and celebrating their cultural identity that has deep connections with spirituality and nature.

PROGRAM

Classrooms are arranged in a circle. This allows all students to be equidistant from the teacher. There is a special courtyard that is used for special spiritual ceremonies.

CONTEXT & SCALE

This is a project for the Mapuche community of Galvarino. Important elements include the circumference, cardinal points, sun and moon orientation, earth present on the site, and orthogonality.The circular layout is a key design element. For the Mapuche, meetings are held in a circle to emphasize equality among all participants. Spaces are arranged in a radial pattern. The building is made of modular classrooms organized around a circular outdoor space.

MATERIALITY AND CONSTRUCTION

The classrooms have windows oriented to receive a ray of sunshine before the students take their places to symbolize a new day of learning and growth. The building uses wood frame construction with steel cladding.

PRECEDENT: ARENA DO MORRO

NATAL , BRAZIL - HERZOG & DE MEURON - 2014

ARCHITECTURAL INTENTIONS

This is the first project of the masterplan for Mãe Luiza. The masterplan identifies underdeveloped activities in the community and proposes potential for new activities for the community within its dense urban fabric. This project aimed to create a public space that belongs to the daily needs of people.

PROGRAM

It is a gymnasium with multipurpose community spaces. It hosts almost 30 different sports sessions and multiple community events. The building is flexible to support all kinds of activities and inviting for people of all ages.

FORMER FOOTBALL PITCH ROOF NEW ROOF STRUCTURE

CONTEXT & SCALE

It is located where an improvised football pitch that served the Mãe Luiza favela used to be. Mãe Luiza is a favela located between sand dunes along the beach and the commercial beachfront. The gymnasium is next to a school and along the Green Street, which is another intervention in Mãe Luiza to create a street for pedestrians and connect the major commercial corridor with a future park. The roof opens up towards the street and the water creating an inviting front.

MATERIALITY AND CONSTRUCTION

It has a curvilinear facade that faces the street made of bespoke semi-transparent concrete blocks adapted from local building material. The building envelope is permeable to allow people to look in while they pass by and to provide natural light and ventilation for the interior. The building uses the natural colors of the materials to become a backdrop for the vibrant colors that users bring when they inhabit the building.

CHILDREN VILLAGE

ARCHITECTURAL INTENTIONS

The Children Village provides boarding accommodations for students of the Canuanã School. Its goal is to demystify the notion of the school being the sole place for learning, but it should also be a space with a home value where students have a sense of belonging.

PROGRAM

It is organized in two villages for living located at either side of the school campus: one for male students and one for female students. The living spaces are arranged in 45 units of 6 students each. This organization improves the quality of life of children, their individuality, and their academic performance. Adjacent to the living spaces, there are interacting spaces: TV room, reading spaces, balconies, patios, hammocks, and more.

CONTEXT & SCALE

This project is located in the central region of Brazil. Important elements for this design was how to include the place’s history and culture of manual work of agriculture and indigenous nature. Each living village has three courtyards that are lined by dormitories and interacting spaces.

MATERIALITY AND CONSTRUCTION

The project encourages local construction techniques, indigenous beauty, and the notion of belonging.Each living village is defined by a large timber roof canopy supported by a frame of glue-laminated timber beams and columns The roof slopes from West to East. The dormitories and other rooms are defined by perforated brickwork that was handmade on site.

KINDERGARTEN

TOKYO, JAPAN - TEZUKA ARCHITECTS - 2007

ARCHITECTURAL INTENTIONS

Fuji Kindergarten is a single-story, oval-shaped building that encourages children to play and interact by breaking down the physical barriers found in the typical early childhood educational architecture. All design decisions were made to create a learning environment that improves learning ability, calmness, and focus while also instilling values of equality and inclusiveness.

PROGRAM

The learning spaces are loosely defined through furniture to allow interactions and socialization. The school follows the Montessori Method where children learn through discovery and exploration. An accessible roof becomes the main play space for the school, giving students an endless path to run, jump and play.

CONTEXT & SCALE

The kindergarten is located in the Tachikawa suburb of Tokyo. It provides learning spaces for 500 children between ages of 2 and 6. The interior is an integrated space partitioned with furniture to define learning areas. Projecting through the roof are three preserved zelkova trees.

MATERIALITY AND CONSTRUCTION

The building is made of an iron grid arranged around the existing zelkova trees. The roof is a three-dimensional curved surface with a hyperbolic shell that changes delicately. There are no bearing walls. White-painted steel columns are found at the intersections of the roof grid that is supported by two large perimeter rings. Natural materials predominate in the project to create a warm atmosphere for children to be in contact with soft textures both indoors and outdoors.

ENGLISH FOR FUN CENTER

MADRID, SPAIN - LORENA DEL RÍO & IÑAQUI CARNICERO - 2016

ARCHITECTURAL INTENTIONS

This school uses a pedagogical approach based on the idea that every child is unique. It aimed to create a place to boost creativity, imagination, and stimulate all five senses. The goal was to create a space with the spirit of adventure where play objects develop their full potential in interaction with the children.

PROGRAM

The school uses the Reggio Emilia approach, which is an educational philosophy based in self-guided and open interpretation of learning based on three core principles. One is that the child is an active part of the learning process. Two, the built environment is considered a third teacher after teachers and parents. Three, the process of learning has to be made visible.

CONTEXT & SCALE

It is a two-story building. Located in an urban area in Madrid. A part of the program offered by the school includes urban camps for learning English.

MATERIALITY AND CONSTRUCTION

The building proposed a thick structure to configure classroom spaces with inhabitable walls for the storage of furniture and other objects. This allows the creation of nooks that only children can inhabit. A generic module made of light beech wood that can be used in multiple ways was employed.

ALTO ANAPATI PRESCHOOL

ARCHITECTURAL INTENTIONS

The design was generated through an ethnographic approach and participatory workshops. Observation surveys helped to learn about teaching dynamics in the community. Workshops offered an understanding of the importance of the preservation of the knowledge and culture of the community. This helped the designers and the community to assign the role and symbolic value of the school.

PROGRAM

The school provides education for more than 50 children and a community space for 86 families. It has indoor and outdoor classrooms, a multipurpose space, sensory stimulation area, playground, a vegetable garden, and farmland.

CONTEXT & SCALE

It is located in a Nomatsigenga native community in the central jungle of Peru. The school was founded in 2008 and the building was built in 2021. The building is located in the access area to the community and is organized in two blocks that form a loose L-shape framing an outdoor space for the whole community.

MATERIALITY AND CONSTRUCTION

Most of the materials used in the school are locally sourced, such as clay, wood, bricks, and river stones.. The architecture has low environmental impacts and is in compliance with sustainability standards.

PRIMARY SCHOOL

ARCHITECTURAL INTENTIONS

This project aimed to improve the quality of living in rural areas by developing a school that will communicate and develop knowledge and skills within the local population. The school provides classes for people of the region up to age 14 as well as workshops for tradeoriented professions. The school has cavelike spaces with smooth interiors to stimulate the children’s senses while they explore these spaces

PROGRAM

The school aims to provide a free and open learning experience where children can develop their individual abilities and interests at a pace that suits their learning speed. The architecture of the school provides different kinds of spaces and uses that support this approach to learning.

CONTEXT & SCALE

The school is located in a rural area of Bangladesh and it aims to provide the rural population with access to a quality, holisticallyoriented education. The school aims to open up possibilities in poor villages in regions of northern Bangladesh to make people aware of the potential they have to strengthen the region and reduce outward migration to cities.

MATERIALITY AND CONSTRUCTION

Historic building techniques were used and improved and were passed on to local tradesmen. The foundation is made of bricks, which is the most common construction material in Bangladesh. Thick earth walls are used on the ground floor. The upper floor is a frame construction made of bamboo that provides a more open and lighter appearance that opens views to the surrounding area.

PRECEDENT: MKOMBOZI PRIMARY SCHOOL

CHAMAZI, TANZANIA - ARCHITECTURAL PIONEERING CONSULTANTS - 2017

ARCHITECTURAL INTENTIONS

This project was led by The Sisters of the Holy Redeemer and their desire to expand their nursery school. This missionary group seeks to provide better educational access to young children in Tanzania.

PROGRAM

The program includes a series of primary school classrooms that will later on be expanded upon to serve secondary school and other supporting facilities.

CONTEXT & SCALE

This Montessori primary school is an addition to the existing nursery owned by The Sisters of the Holy Redeemer. They also have future plans to add spaces for secondary education. There is a timber covered walkway that connects the new and future-build classrooms and serves as a shaded circulation area, outdoor gathering space, and play space.

MATERIALITY AND CONSTRUCTION

It uses a load bearing structure made of locally burnt clay bricks. This type of construction is part of masons’ traditional, experience-based knowledge. The structure is made of vaulted roofs resting on concrete columns and ring beams. Air circulation above the vaults is implemented for the hot-humid climate. The vaults improve acoustics and enhance thermal comfort. The narrow plan allows for cross ventilation in classrooms.

CREACIÓN KINDERGARTEN

ARCHITECTURAL INTENTIONS

This school is part of the Urban Improvement Programs in the city. It sought to raise the educational level of the population by providing access to quality education from an early age and thus minimize problems such as violence, insecurity, and vandalism.

PROGRAM

The project is currently a kindergarten, but it was designed with the possibility for social appropriation and to function for other purposes. The design was mainly driven by the needs of the children. An efficient classroom is not square, so edges are rounded in the classrooms. This creates a non-linear transition between spaces that can feel safer for children.

TULTEPEC, MEXICO - TALLER DE ARQUITECTURA MIGUEL MONTOR - 2022

CONTEXT & SCALE

The classrooms are oriented to have large transitory spaces that offer a source of light as well as a space to connect with nature. The classrooms are modules that are organized along the site to create a linear composition of pairs. These pairs are rotated when they house the service and circulation spaces. The two-story modules are located on the side where the site slopes down.

MATERIALITY AND CONSTRUCTION

The designers sought to create an environment of universal understanding through the senses. There is a wide variety of textures on the brick walls and wood elements that stimulate the visual and tactile senses.

SAN FELIPE CHENLA SCHOOL

QUICHÉ, GUATEMALA - SOLIS COLOMER ARQUITECTOS - 2012

ARCHITECTURAL INTENTIONS

The school seeks an architectural composition with three different languages: the tectonics, the huipil and the topography, which are legacies from the Mayan culture of the area.

PROGRAM

San Felipe Chenla School is one of the 7 schools that are part of the “Schools Nebaj” program in Quiché. This project is a grant from the International Cooperation Agency of Korea (KOICA), which seeks to dignify educational facilities in needy areas in the Guatemalan highlands and other locations.

CONTEXT & SCALE

The Quiché area has a Mayan cultural legacy. The site is located in highland topography that has various natural profiles that are formed as the Cuchumatanes develop from north to south throughout Guatemala. The building is a small two-story intervention that blends into the landscape.

MATERIALITY AND CONSTRUCTION

The building is made of several vertical planes of exposed concrete modules that define the space in which the different classrooms are contained. The enclosure system consists of a sliding door system that has a double function: to consolidate the building, defining it, and to liberate it into the landscape of the Cuchumatanes.

SCHOOL N300 COLONIA NICOLICH

ARCHITECTURAL INTENTIONS

This school is the first site built in the area for institutional purposes. It was designed to address the growth that the area is experiencing. It is part of the Full-Time Schools program, which seeks to improve conditions of equity for children in poverty who live in a fragmented and territorially disregarded society. The school aims to reflect the features of the location through the use of local materials.

PROGRAM

The school has classrooms to serve elementary and middle school students. It has a cafeteria, a covered patio, and a central courtyard with recreational activities and flexible open space that can be used for school and community events.

CONTEXT & SCALE

This school was created to respond to the accelerated growth of the area. The area went from a semi-rural to an urban area. The building is a U-shape with a patio that is oriented to project the building towards the rural landscape. The main entrance to the school uses the inclination of a wall in a corner of the U-shape to generate a space of wide transition with openness towards the community.

MATERIALITY AND CONSTRUCTION

The building uses exposed brick due to its long history in national architecture and important roots to the culture that creates an emotional relationship to the users. The brick envelope has variations that respond to different needs of the program by becoming more or less permeable.

PRECEDENT:

LOVELL INTERNATIONAL SCHOOL

PATTAYA CITY, THAILAND - PLAN ARCHITECT - 2023

ARCHITECTURAL INTENTIONS

The main design intention was to keep the existing trees and bring up their potential to create an interesting atmosphere. The concept for the design was a treehouse with free flow curving building shapes.

PROGRAM

The building is separated into three wings: under three years old, kindergarten, and administration. Each wing has its own court with outdoor learning spaces behind classrooms. There is an linked indoor play space in front of each classroom due to the occasional severe weather in the area that can limit outdoor recreational activities.

CONTEXT & SCALE

It is an international kindergarten in Thailand. The existing trees on the site are aged and mature and the owner and designer’s main intention was to keep most of them and integrate them in the new school design. Each court is designed based on the existing trees giving each of them a unique character.

MATERIALITY AND CONSTRUCTION

The interior materials for the school provide a cozy wooden atmosphere that harmonizes with the surrounding context. Classrooms use a white color that creates a pleasant brightness for learning.

THE RAJKUMARI RATNAVATI GIRLS SCHOOL

ARCHITECTURAL INTENTIONS

The school is the first in a complex of three buildings known as the GYAAN Center. While girls are receiving an education, local artisans will teach mothers and other women weaving and embroidery techniques from the Jaisalmer region that are on the verge of being forgotten and lost. These will preserve and enhance traditional techniques while establishing economic independence for the women, their families, and their communities. The education, independence, and empowerment women gain at the GYAAN Center will incentivize families to educate their daughters in the future.

PROGRAM

It is a girls school that will serve more than 400 girls from below the poverty line from kindergarten to grade 10. The GYAAN Center includes the Medha, a performance and art exhibition space with a library and a museum, and the Women’s Cooperative where local artisans will teach mothers and other women the weaving and embroidery techniques from the region.

CONTEXT & SCALE

The school is located in the Thar Desert region of Jaisalmer, India. Female literacy is around 32%, so the schools will have a vital role in educating and empowering young girls and women of the region. The forms used for the complex are three ovals that represent the power of femininity and infinity while also relating to the planes of the sand dunes in the region.

MATERIALITY AND CONSTRUCTION

It was constructed with local hand cut Jaisalmer sandstone by local craftsmen. Kellogg thought it was vital to include the community in a building made for the community. The roof has a solar panel canopy that serves as a cooling system. The elliptical shape of the structure helps to create a cooling panel of airflow. In some areas, the sandstone blocks are offset to create a screen to allow natural light and ventilation into interior spaces.

PRECEDENT:

SZENTPÉTERFA, HUNGARY- CAN ARCHITECTS - 2023

ARCHITECTURAL INTENTIONS

This school introduces a new model of school architecture in Hungary. It integrates indoor and outdoor learning environments, a learning canopy, and other innovative classroom layouts. The design is based on research and participatory design through conversations with teachers, students, and municipality representatives. Preparation for this school took almost 30 years.

PROGRAM

The school has customized classrooms for different age groups, a learning landscape that expands on formal learning, and indoor and outdoor public spaces that serve the entire community.

CONTEXT & SCALE

Szentpéterfa is a Croatian minority settlement. This community has preserved its strong identity through the integration of contemporary innovations into preserved traditions. The existing school building on the site was transformed into a cluster of the larger school that is organized in learning clusters.

MATERIALITY AND CONSTRUCTION

Following Hungarian rural architectural tradition, the learning clusters are connected by a huge canopy. This canopy also serves as an outdoor classroom and is painted red to represent the Croatian identity of the community.

PRECEDENT: LYCÉE SCHORGE SECONDARY SCHOOL

ARCHITECTURAL INTENTIONS

The school seeks to set a new standard for educational excellence in the region and also provide a source of inspiration by showcasing local building materials in an innovative, modern way.

PROGRAM

The school consists of 9 modules that accommodate a series of classrooms and administration rooms. One of the modules has a dental clinic for students.

BUILDING MODULE

CONTEXT & SCALE

It is located in the third most populated city in Burkina Faso. The 9 modules are arranged radially around a courtyard. This is a central public courtyard that is protected from wind and dust. It also has an amphitheaterlike quality that accommodates informal gatherings and formal assemblies or celebrations for the school as well as the community as a whole.

MATERIALITY AND CONSTRUCTION

The walls of the modules are made from local laterite stone, which is easily malleable when first extracted and hardens when left exposed to the atmosphere above ground. This material has thermal mass capabilities that in combination with the wind-catching towers and overhanging roofs lower temperatures for interior spaces. The modules have a secondary facade made of local eucalyptus wood wraps that create a transparent fabric that provides a variety of shaded intermediary spaces. The classroom ceilings are made of perforated plaster vaults that diffuse indirect sunlight to improve interior light quality and prevent overheating from direct sunlight. The furniture is made of local hardwoods and steel offcuts from the roof construction.

29 DE NOVIEMBRE SCHOOL RECONSTRUCTION

NUEVA COLONIA, COLOMBIA - TALLER SINTESIS - 2020

EXISTING CONDITIONS

RECONSTRUCTION

ARCHITECTURAL INTENTIONS

The existing classrooms were too hot, dark, and lacked proper ventilation. The central courtyard was a marshy area and did not allow play and recreational activities. In 2018, Taller Sintesis designed a proposal to intervene in the existing building to improve the learning environment for children and expand the existing facilities.

PROGRAM

The reconstruction created diverse learning environments. Niches were created for spaces for leisure and socializing. Larger spaces were generated for a more public and diverse program that will be open to the use of the community such as a new entrance, kitchen, dining room, workshops, an auditorium, and a large flexible space for recreation and events. The central courtyard was reinvented into a place for sports and games for the students.

CONTEXT & SCALE

Nueva Colonia had high rates of poverty and deficiencies at all levels. The reconstruction was able to resolve the issues of the existing school and expanded the U-shape plan to become a square plan with a central courtyard. The massing has an element extruding from a corner to create an entry plaza and connect it with the surrounding neighborhood.

MATERIALITY AND CONSTRUCTION

The brick facades were opened with permeable brick enclosures to generate cross ventilation and allow natural light to interior spaces. Existing windows were enlarged to reconcile with the scale of children so they can properly see outside. The existing roof was extended to generate eaves for shading.

KINDERGARTEN

XIAMEN, CHINA - HORDOR DESIGN GROUP - 2017

ARCHITECTURAL INTENTIONS

This project belongs to the grassroots people’s livelihood project which focuses on meeting the growing educational needs of preschool children in several natural villages nearby.

PROGRAM

The two circular courtyards provide a scene for endless play and interaction. The kindergarten has 12 classrooms. The courtyards improve the natural ventilation of interior spaces and make space bright with natural light.

CONTEXT & SCALE

In order to fit in its context of the Dongliao Village, the kindergarten was designed as a simple square box. The interior organization of the building is defined by the two main courtyards: large and small circles.

MATERIALITY AND CONSTRUCTION

The exterior walls are decorated with Minnan local red bricks. Doors and windows are based on interior functions. Children’s classrooms and activity rooms are open to allow as much natural light as possible. The main color and materials in the interior spaces are white while the ground is decorated by active colors in order to activate the atmosphere.

ULYANKULU SCHOOL 03

ULYANKULU, TANZANIA - JEJU STUDIO - PROPOSAL, UNDER CONSTRUCTION

ARCHITECTURAL INTENTIONS

The fundamental idea of the Ulyankulu School is to create a building for education and a space for social activities during and after school hours, promoting play between the kids and other Ulyankulu inhabitants.

PROGRAM

There is a central courtyard shaded with the canopy of mango trees. All classrooms are wrapped within a perforated clay-brick wall creating many smaller patios, each designed to suit different outdoor activities and stimulate kids and other Ulyankulu inhabitants to socialize, play and spend time together.

CONTEXT & SCALE

Ulyankulu is a young, small town in Tanzania. The town is a result of the migration of thousands of Burundi refugees in the 1970s after mass genocides. The decision to wrap the school around a group of trees has multiple influences. One of which is to put nature in the center, in order to silently influence a shift in the relation between the children and their environment. This idea used to be important in the local culture. In East Africa, trees are a link between the sky and earth; between the spiritual world of ancestors and people.

MATERIALITY AND CONSTRUCTION

This proposal uses materials, details and craftsmanship from the Ulyankulu region. Classroom structure, shape, and its double roof structure is designed in order to create efficient passive cooling and prevent overheating of the interior.

HIMAWARI NURSERY SCHOOL

TOKYO, JAPAN - AKAIKE TOHYAMA ARCHITECTS - 2022

ARCHITECTURAL INTENTIONS

This is a relocation and new construction project for a nursery school in Musashimurayama City, Tokyo. The previous building was a two-story structure with children’s activities divided between the upper and lower floors. The client wanted a one-story wooden structure for the new building to enrich the interaction and experiences of children of different ages.

PROGRAM

The volume was dispersed and small playgrounds were scattered around them creating a plan with circulation that connects the inside and outside. The aim was to create a place where children could spend their time freely by expanding their sphere of activity throughout the school. The plan was designed to stimulate the five senses and create a variety of play activities through the use of openings, uneven planes, different textures of the yard pavement, and trees that bear flowers and fruit at different times of the year.

CONTEXT & SCALE

The area has a generous atmosphere, with residential areas spreading toward the Musashino Plateau and Sayama Hills. Five wooden houses compose the nursery school. The height of the flat roof was kept low, and the high ceilings and five house-shaped volumes on the second floor were designed to match the scale of the surrounding detached houses to create a gentle structure that blends in with the townscape.

MATERIALITY AND CONSTRUCTION

The beams in the nursery and Himawari Hall are exposed. The warmth of the wood envelops the space. Each volume has a different structure to give each place its own character. The use of wood not only for the interior of the building but also for the exterior and walls creates a warm wooden atmosphere both inside and out, making the preschool building child-friendly wherever it is touched.

PRECEDENT: SIMBA VISION MONTESSORI SCHOOL

NGABOBO, TANZANIA- ARCHITECTURAL PIONEERING CONSULTANTS - 2022

ARCHITECTURAL INTENTIONS

The studio’s design draws on Montessori patterns, which are 28 spatial ideas derived from the principles of Montessori, a method of education that encourages hands-on learning rather than formal teaching. These include making use of local materials with tactile qualities and ensuring a building is formed of interconnected spaces that are tailored to children’s activities.

PROGRAM

In 2019, Africa Amini Alama, a local NGO, called for a design competition to develop one of their existing schools into a Montessori campus consisting of an additional primary school, children’s house, workshops, and dormitories for students and teachers.

CONTEXT & SCALE

Located in Ngabobo Village in rural Tanzania, a series of connected spaces characterize the school in the interior. The walls are rotated at an angle of 45° to the main orientation of the structures and clearly identify every room as a distinct space from the outside. The geometry of 45° angles creates an array of visually protected corners where the users of these corners form smaller groups within the class community. Rooms are aligned like pearls on a string without the need for typical corridors and can be connected according to programmatic needs. Connection between rooms can gradually open or close through sliding doors.

MATERIALITY AND CONSTRUCTION

The remote location of the site and the ambition to operate with an ecologically low impact led to a simple block wall construction, which consists of volcanic rock and sand available on-site. The blocks consist of 10% of cement and the walls are constructed without the need for additional reinforcement. Interior spaces are partly clad with straw and mud to improve comfort and acoustics, a technique traditionally carried out by Maasai women. The use of steel is reserved for the roof, which acts as a sunshade and rainwater harvester. A combination of natural ventilation, sun shading, and thermal mass ensures thermal comfort.

PROBLEM STATEMENT

Education is one of the most valuable possessions any human can acquire. Education should be a right and not a privilege. International human rights law as described in the Universal Declaration of Human Rights states that “everyone has the right to education.” More than just any kind of education, all individuals have the right to receive a quality education that further develops their innate talents and areas of interest and that guarantees them a life-sustaining job to lead a meaningful and fulfilling life. A quality education has a vital role in the development of a community, breaking the cycle of poverty, promoting economic productivity, and eliminating social inequities. A quality education is one that seeks to nurture lifelong curiosity, innovation, and exploration.

Nowadays, the world is falling behind in achieving quality education. The United Nations has included quality education as one of their Sustainable Development Goals (SDGs). Although progress has been made since the establishment of these goals, it is not sufficient nor significant enough. “An estimated 84 million children and young people will still be out of school, and approximately 300 million students will lack the basic numeracy and literacy skills necessary for success in life. To deliver on Goal 4, education financing must become a national investment priority. Furthermore, measures such as making education free and compulsory, increasing the number of teachers, improving basic school infrastructure and embracing digital transformation are essential” (UN, SDGs Progress Report 2023).

Furthermore, education not only considers the right to receive a quality education that is inclusive and accessible, but it also encompasses academic freedom for both teachers and students to “...pursue, develop, and disseminate knowledge and ideas through research, teaching, study, discussion documentation, production, creation or writing” (Human Rights Watch). Academic freedom “...enables the consolidation of democracy, pluralism of ideas, scientific progress, [and] human and societal development. Academic freedom is presented as a basic human right, inextricably linked to the right to education, and part of a broader package of human rights, including freedom of expression and association, equality before the law, and the right to the benefits of culture and scientific progress” (Inter-American Principles on Academic Freedom and University Autonomy).

The right to education is currently facing many obstacles. An obstacle that can be addressed through architecture is the problem of proper infrastructure. The place where students learn is as important as what they learn. The architecture of education institutions has an unknowable and intangible impact. The architecture of a space can influence how humans learn and interact. Academic institutions have the spaces where minds are formed. These spaces should have the ability to engage the mind and open it to discoveries. They should create an environment where the mind is free to wander and the desire to learn is nurtured.

To understand how architecture can be a vehicle for advancing education as a human right, it is important to first understand human rights and their importance in society. Human rights are inherent to all individuals and are the foundation for freedom, justice, and peace. The Universal Declaration of Human Rights outlines the basic human rights all individuals are entitled to. “All human rights are universal, indivisible, interdependent, and interrelated” (Vienna Declaration and Programme of Action, 1993).

It is critical to analyze how educational institutions have been designed throughout history and whether or not these projects created spaces that promote quality education as a human right or if these allude to a perception of education as a privilege. Historically, literacy and knowledge were reserved only for the elite and wealthy. The first educational institutions created in the United States excluded children on the basis of income, race, ethnicity, gender, and geographic location. As the nation developed and grew, the views on education evolved. Education was viewed as a way to prepare people for democratic citizenship. This was a major reason for the creation of public schools to guarantee that an educated population would preserve democracy. An educated population will understand political and social issues, participate in civic life, vote wisely, protect their rights and freedoms, and resist injustices. Education was also viewed as a means to provide moral instructions and build character. More than just providing an education, the infrastructure of a school can also provide spaces for the community to engage in social activities and thus strengthen the sense of community. A school can serve multiple roles in a community and improve the quality of life of its residents. “[E]ducation is the primary vehicle by which economically and socially marginalized adults and children can lift themselves out of poverty and obtain the means to fully participate in their communities’’ (UN Human Rights, Office of the High Commissioner).

This project aims to explore how architecture can be a vehicle for advancing education as a human right as well as exploring the architectural elements of learning environments and how these can have intangible impacts on the way people learn and interact. Education encompasses the right to learn and the right to teach. These rights are closely interrelated with other human rights that include freedom of expression, equality before the law, and the right to the benefits of culture and scientific progress. This project will house an institution that advocates for education as a human right and will serve as a prototype for a new model of education. This new model of education will focus on the ideas of creating spaces that nurture the desire to learn and inspire a life-long commitment to learning. The prototype will adapt its appearance and material palette to reflect the vibrancy of the community it will inhabit.

ARCHITECTURAL INTENTIONS

MATRIX OF CLASSROOM ENVIRONMENTS & DESIRED QUALITIES

NORTH AMERICA

CLASSROOM = THE THIRD THEACHER

LATIN AMERICA EUROPEASIA

SPATIAL QUALITIES OF A CLASSROOM CAN SUPPORT THE LEARNING THAT OCCURS WITHIN ITS WALLS

FOSTER ENCOUNTERS AND ENCOURAGE COMMUNICATION AND RELATIONSHIPS

CREATE ENVIRONMENTS FILLED WITH NATURAL LIGHT, ORDER, WONDER, AND EXPLORATION

INVITE STUDENTS TO DELVE DEEPER, INVESTIGATE, AND REPRESENT THEIR LEARNING THROUGH A RANGE OF MEDIUMS

SENSE OF SAFTEY AND SECURITY

ENCOURAGE COLLABORATIONS AMONG STUDENTS

REFLECT VIBRANCY OF THE COMMUNITY

IN-LIFE APPROACH (INTENTIONAL, WHAT DO I NEED FROM THIS SPACE?)

PLACE WHERE MINDS ARE FORMED

INDOOR-OUTDOOR SYNERGY

LEARNING IS DEEPLY AFFECTED BY CONTEXT, CIRCUMSTANCE, STATE OF MIND, AND STATE OF SURROUNDINGS

EUROPE ASIA AFRICA

TRANSFORM FROM A SPACE TO A PLACE MEANINGFUL TO STUDENTS PERSONALLY AND EMOTIONALLY

ORGANIZE A LEARNING ENVIRONMENT AROUND WHAT STUDENTS AND EDUCATORS NEED

ANY SPACE WHERE LEARNING HAPPENS IS TECHNICALLY A LEARNING SPACE

GOOD ACOUSTICS

GOOD AIR QUALITY AND VENTILATION

ACCESS TO VIEWS OF NATURE

COOL LIGHT = CONCENTRATE

WARM LIGHT= CREATIVE

ATMOSPHERE WHERE STUDENTS COULD ENGAGE EASILY WITH EDUCATORS

CONSIDER CULTURAL TRADITIONS WHILE INCORPORATING NEW TECHNOLOGIES

ENGAGE THE MIND AND OPEN IT TO DISCOVERIES

SPACES THAT ENCOURAGE, CULTIVATE, AND PROD LATENT CURIOSITY

THE WAY YOU FEEL IN A SPACE ACTUALLY CHANGES YOU

PROGRAM OUTLINE

INTERRELATIONS AND ADJACENCIES

The program crafted for this project aims to address the two sides of education previously discussed. The right to learn will be addressed by crafting a prototype school. This school will provide primary education serving children from kindergarten to fifth grade. The prototype school will include student-focused classrooms, study areas for collaborations, quiet zones for reflection, and open-ended recreational areas to ensure that children have a place for wandering and exploration.This age range of students was selected due to the importance of education during this child development period. At this age range, children start to develop a sense of identity and place in society. It is important to instill in children the importance of education during this age range to ensure that they continue on to secondary and higher education. Children need to be taught that education is a fundamental human right they are entitled to in order to develop as a human being and be a participating member of their communities. Education not only increases the chances of obtaining a life sustaining job, but it also aids individuals to develop their sense of self, moral principles, and place in society.

The right to teach will be addressed by crafting an advocacy center for academic freedom and a research center that will investigate what strategies are needed to make quality education more accessible and inclusive around the world, especially in developing countries. The advocacy center will focus on providing resources for individuals and institutions facing difficulties related to academic freedom and censorship. It will have a library where anyone can publish and disseminate any type of research that might be controversial. There will also be a gallery space with rotating exhibitions that will showcase works included in the library, advocacy efforts and campaigns, and important findings from the research center about education. The multipurpose community space that is shared with the school will serve to host events and conferences related to academic freedom and the right to education.

Moreover, noting that a school should also have program that involves the community, spaces such as the multipurpose community space, library, and gymnasium can be used for community activities. This will foster a strong sense of pride and personal connections to the school and the advocacy center. Also, study areas and some classrooms will be used during after-school hours to provide education for adults of older individuals who have not completed their education in a traditional pathway due to personal hardships.

AREA ALLOCATIONS 06

Classrooms (15)

Kitchen (1)

Nurse’s Office (1)

Administration

Cafeteria

Playground

Classrooms (15)

Outdoor Courts (3)

Indoor Play Area

Gymnasium

Cafeteria

Small Outdoor Pool

Administration

Roof Garden

Classrooms (15)

Multipurpose Space

Administration

Outdoor Recreation Areas

Covered Pathways/Gathering Space

School Garden

PRECEDENTS WITH SIMILAR AREAS

MÃE LUIZA , BRAZIL

This site is located adjacent to Herzog and De Meuron’s Arena do Morro in Natal, Brazil. The goal on this site would be to expand upon the master plan proposed for Mãe Luiza by incorporating a primary school in close adjacency to the Arena do Morro. Arena do Morro is an important and valued asset in this neighborhood. As a result, creating a synergy with this project could offer possibilities expanding the existing program to better serve the needs of the community as well as providing education opportunities for individuals.

This site is located adjacent to an exisitng elementary school. The goal on this site would be do a renovation and expansion on the existing school. The existign school appears to be in need of upgrades to better serve the needs of the students. Additionally, there is an adjacent vacant lot that can provide space for expansion of the building as well as the implementation of recreational outdoor areas that could serve other nearby schools and the community as a whole. This site is close to the Universidad de Monterrey, which is an institution that has been leading in effort to advocate for academic freedom and the right to education. As a result, creating connections with this institution could benefit the project.

MÃE LUIZA - NATAL, BRAZIL

HISTORY

Mãe Luíza was settled during the period known as the “rural exodus.” The neighborhood was officially registered on January 23, 1958. Mãe Luíza, like many other Brazilian cities, was selected because it was in a hard-to-reach area where unpopulated hills were covered with dense vegetation.Mãe Luíza grew into a dense neighborhood over the years. The settlement has remained compact and preserved its natural surroundings with lush green as its constant backdrop and sand as its fragile floor with densely packed small houses with colorful walls and red tiled roofs.

Today, because Mãe Luíza is located neat a tourist area, the community has been affected by the surge of hotels being built along Avenida João XXIII, near Via Costeira. This type of large tourist facilities have environmental and social impacts, such as reducing the ventilation, access, and views of Mãe Luíza residents as well as affecting land prices and potentially pushing local populations out of this area.

ANALYSIS OF AREA

PHYSICAL LOCATION: The site is located across the street from Herzog & De Meuron’s Arena do Morro and is adjacent to the Natal’s Lighthouse and military residency. The site is in between two main streets, one of which connects the favela with the commercial beachfront. There is an approximate 95 foot difference between the main street near the beachfront and the main street adjacent to Arena do Morro. Due to this elevation and the low-rise buildings in the beachfront, unlike other areas with high-rise development along the coast line, there is the opportunity to have unobstructed views of the waterfront.

MÃE LUIZA IN NATAL
SITE IN MÃE LUIZA
SITE
NATAL IN STATE OF RIO GRANDE DO NORTE

HUMIDITY COMFORT LEVELS IN NATAL

SUN CHART

CLIMATE: The climate in Natal, Brazil is hot, windy, and occasionally cloudy. Over the year, temperatures average between 72°F to 88°F and stay within 70°F and 90°F. Natal does have a significant rainfall period between December and September with an average of 2.7 inches of rainfall. The humidity levels in Natal can be considered oppressive throughout the year. It is important to consider cross ventialtion and other passive cooling strategies. The wind speeds in Natal average around 14.2 miles per hour and the predominant wind direction in Natal is from the east.

ANALYSIS OF AREA

CONTEXT BUILDINGS: The areas around the site are mostly residential mixed with some schools, commmunity centers and small businesses. As one gets closer to the beachfront, the area becomes more commercial and has more tourism. The Mãe Luiza Lighthouse and military residences are located to the north of the site. There are also some parks and sports courts in the favela as well as a hiking trail further southwest from the site.

The most important context buildings are the Arena do Morro, the Dinarte Mariz Public School, and the Espaco Solidario Elderly Care Center.

The Arena do Morro plays a very important role in the community since its construction. At first, it was designed mainly to accomodate various sports; but over time, it became a crucial element for the community where multiple generations gather for festivals, sport and community events, as well as everyday activities.

The Dinarte Mariz Public School is adjacent to the Arena do Morro and was renovated in 2020. It serves grades 4th to 12th. It organized around a courtyard. It has 10 classrooms, a library, three laboratories, multimedia rooms, and multipurpose rooms.

The Espaco Solidario Elderly Care Center has been serving the community sincce 2001. 10% of Mãe Luiza’s population is above 60 years old. Espaco Solidario supports this active aging population by proving activities and events while celebrating the automy they have.

ARENA DO MORRO
ARENA DO MORRO

SIGNIFICANT FEATURES:

A significant feature of this site is its topography and its visual connections to the waterfront. Another important feature is the potential connections with the masterplan for Mãe Luiza, which sought to connect a main commercial street with the waterfront. In this masterplan, the site being proposed for this project is adjacent to a park space. The project proposal could take some elements of this vision and incorporate the proposed program with the park proposal. Moreover, another important feature is its proximity to the lighthouse, this is a significant historic marker for the community.

DINARTE MARIZ PUBLIC SCHOOL
DINARTE MARIZ PUBLIC SCHOOL
ESPACO SOLIDARIO
ESPACO SOLIDARIO
ESPACO SOLIDARIO
DINARTE MARIZ PUBLIC SCHOOL

DESIGN DEVELOPMENT

ITERATIONS #1:

SCHEME 1

This scheme sought to consider the small scale of the building in the neighborhood. The urban fabric of Mãe Luiza 8is composeed of small house modules desenly packed together. The classrooms form the small modules that then become linear elements that define courtyards.

SCHEME 2

This scheme considers bar buildings organized around a courtyard. This organization of the school stems fromm the existing Dinarte Mariz Public School. This scheme is also located closer to the southern part od the site in order to relate more to the neighborhood.

SCHEME 3

This schemee draws inspiration from the Arena do Morro. The plan of this building uses circular and curvilinear elements to define spaces. Curved buildings house the classtooms and define two courtyard spaces for different age groups.

ITERATIONS #2: SCHEME 1

In this scheme the roof covers the classroom clusters. The advocacy center becomes the public face of the project.

SCHEME 2

This scheme also keeps the advocacy center as the public face of the project and the linear buildings start to be fragmented due to the topography and sloped roofs

SCHEME 3

This scheme provides two different-sized courtyards with a community space adjacent from the main street.

DESIGN DEVELOPMENT

ITERATIONS #3:

SCHEME 1

This scheme follows the urban fabric of Mãe Luiza with the orthogonal volumes. These volumes are organized around two courtyards and are covered by a large roof that provides covered transitional spaces and walkways. This typology of a large roof covering smaller volumes is seen in many built projects in Brazil due to its climatic contidions. This large roof offers protection from the sun and rain. The roof has its own framing structure that allows the creation of a gap that encourages natural ventilation of interior spaces.

SCHEME 2

This scheme continues to experiement with the curved forms expressed in the Arena do Morro. The curved forms present a more welcoming atmosphere that also create more defined courtyard spaces with soft edges. These forms also aim to complement what is going on with the Arena and the street scape by creating an entry plaza that aligns with one of the entrances to the Arena. This scheme also has a single roof covering the smaller volumes.

MID-REVIEW ITERATIONS #4: SCHEME 1

This scheme continues the connection with the urban fabric of Mãe Luiza. Due to the changes in topography and the advocacy center being two stories, the roof has been fragmented. Also, the creation of outdoor learning spaces is starting to emerge.

DESIGN DEVELOPMENT

SCHEME 2

This scheme has created clusters of classrooms that form these oval and circular forms. These forms leave some covered spaces that can emerge as outdoor learning spaces. Also, these organic forms create soft edges of wandering paths around them. The advocacy center along with the library and gallery space become the public face of the project.

ITERATION #5: SCHEME 1

This scheme concentrates in the creation of two courtyards for two different age groups and haas further developed the classroom with interior and exterior learning spaces. The library has been identified as the main connector between the school and the advocacy center. Its formal articualtion aims to relate to the Arena do Morro by using the same language on the roof. The advocacy center follows the language of the school, but creates a larger volume closer to the main street

ITERATIONS #6: SCHEME 1

This scheme explores the roof form of the library and gallery space as it extends to cover the advocacy center. Due to its large dimension, some perforations have been introduced in the roof to provide light and ventilation to covered spaces.

SCHEME 2

This scheme continues to explore the roof form of the library, gallery space, and advocacy center as it created an entry plaza between the volumes.

DESIGN DEVELOPMENT

ITERATION #7: GATE REVIEW

The design has developed the classroom module using some of the design patterns for Montessori Architecture. The main focus was in creating outdoor learning spaces, visual connections among classrooms, and niche spaces for concentration. The administration and support spaces of advocacy center aare closer to the existing wall on the northern end of the site. The library, gallery space, resource and research centers are articulated in the same language as the Arena do Morro to signify their importance to the community. This building would be the first view of the project as one approaches it from the street perpendicular to the site.

The design continues to utilize a roof covering smaller volumes but this roof has been fragmented based on the topography changes and the classroom modules. The roofs are supported in wooden frames that create gaps that allows natural ventilation of interior spaces. The materials would be locally sourced wood and brick.

DESIGN DEVELOPMENT 09

ITERATIONS #8:

SCHEME 1

This scheme explores the the roof of the classroom modules and the advocacy center. It creates a single roof for the classroom modules. The roof for the advocacy center uses the materials of the Arena do Morro roof, but in a rectangular form and only sloping in one direction

SCHEME 2

This scheme fragments the roofs for the classroom modules and explores a combination of two flat, organic form roofs for the advocacy center.

ITERATION #9: SCHEME 1

This scheme draws inspiration from how the Mãe Luiza neighborhood views its history as a spiral. Mãe Luiza has overcomed many challenges through the efforts of its residents as well as other organizations and groups that have provided aid. With this spiral form in mind, the plan of the library and gallery space form a spiral that extends out and creates an outdoor space for gathering.

ITERATION #10: SCHEME 1

Continuing with the cultural significance of spiral, this scheme makes the advocacy center, library, and gallery space a curved building that has spirals at both ends. One end creates a public amphitheater space for community and advocacy events. The other end creates a more private outdoor space that provides a more private reflection space after visitors go through the gallery space.

FINAL DESIGN 10

The final design considers all the precedents previously studied as well as the history and culture of Mãe Luiza.

The focus for this design was to provide learning environments that can accommodate diverse types of learning and teaching as well as promoting creativity, curiosity, and innovation. Also, this design aimed to create an overall project that fits within the urban fabric of Mãe Luiza and its streetscape.

The hope for this project is to symbolize the importance and value of education. “ Basic education is a truly social good, which people can share and from which they can jointly benefit, without having to snatch it from others.” (Amartya Sen). Education provides the basic foundation for a successful life. Education can make a substantial difference to people’s futures, especially in developing countries. Education is a tool that economically and socially marginalized adults and children can use to lift themselves out of poverty and become fully participating members of their communities.

Over the past decade, Mãe Luíza has not seen a significant increase or improvement in learning facilities regardless of its growing population. For this reason and also due to its history and culture of resilience and strength, Mãe Luíza was chosen as the site for this project. Nonetheless, the hope for this project is to become a catalyst for change in developing countries where education is not easily accessible. The prototype school along with the advocacy center could be placed in any place where the right to learn and teach is being threatened.

DESIGN

ADVOCACY CENTER & ADMINISTRATION

WORSHOP SPACE & TOILET ROOMS

FINAL DESIGN

CROSS SECTION

CLASSROOMS

ROOFS

BUILDING

ENVELOPE

FINAL DESIGN

OUTDOOR LEARNING

WINDOW SEATS

WORKSPACE ON THE FLOOR

FLEXIBLE FURNITURE LAYOUT

DIFFERENT HEIGHTS FOR FLOORS

PATTERNS OF MONTESSORI ARCHITECTURE USED FOR CLASSROOM DESIGN

...AND A NEW SCHOOL FOR MÁE LUÍZA AN ADVOCACY CENTER...

FINAL DESIGN

FINAL DESIGN

FINAL DESIGN

ANNOTATED BIBLIOGRAPHY

Blastoff. “Architecture’s Role in Facilitating Learning.” Neenan Archistruction, March 30, 2021. https://www. neenan.com/architectures-role-in-facilitating-learning/.

This article discusses multiple strategies on how to use architecture to facilitate learning experiences for students. It talks about technology integration, decentralized classroom layouts, innovations in desk functionality, collaborative workspaces, presentation environments, and quiet zones. All these elements can help to elevate the students’ and teachers’ experiences when it comes to education. This article describes how different elements cater to different users and their needs.

“D) General Comment No. 13: The Right to Education (Article 13) (1999).” United Nations Human Rights | Office of the High Commissioner. Accessed January 22, 2024. https://www.ohchr.org/en/resources/educators/humanrights-education-training/d-general-comment-no-13-right-education-article-13-1999.

This article describes the general comment on the right to education and how it was established as an international human right. It also describes steps and guidelines that all nations that follow the international declaration of human rights must follow. Some of these discuss access to education, non-discrimination, physical accessibility, economic accessibility, acceptability, and adaptability. It also outlines goals and aspirations that all nations must seek to achieve such as free and compulsory primary education as well as opportunities for higher education for all individuals. “Education Gap in Latin America.” Educando, 2020. https://educando.org/education-latinamerica/#:~:text=Great%20strides%20have%20been%20made,high%2Dquality%20and%20relevant%20 education.

This article discusses the education gap in Latin America. It explains how progress has been made in providing education throughout Latin America, but the majority of children are still not receiving a quality education. It explains how there are high dropout rates and how education investments are inadequate, poorly directed, and most of the time favor high-income students rather than the ones that demonstrate the most need. Educators are also discussed as a key element to quality education. Finally the article calls for cross-cultural investments and collaborations throughout Latin America to achieve high quality education. “Education in the Developing World.” The Human Journey, 2023. https://humanjourney.us/health/educationfor-a-changing-world/education-in-the-modern-world-solving-for-the-future/education-in-the-developingworld/.

This article discusses how education has progressed over the past century, but it still remains with areas for improvement, especially in the world’s poorest countries. It discusses how public services, such as education, should not be privatized. A private institution explained that they have limited funds and that the educators and staff have to earn a livelihood, which starts to address the problem of inadequate salaries for educators. More than just discussing the problems, some good progress has also been made. Some examples include free primary and secondary education through the increase of tax collection from the richest as well as increasing the government’s budget for education. This article also discusses the gender gap in education due to cultural norms and misinterpretations of religious concepts that lead to violence against women of all ages. Another topic is how increased enrollment does not mean that all students obtain a quality education. Many factors play into the effectiveness of education in low-income countries, such as malnutrition, disease, chaotic or violent environments, low supplies, and poor infrastructure. The article calls for a redefinition of education in the developing world and how the focus should be more on helping students to develop knowledge and skills that are relevant to their lives and can lift them and their communities out of poverty.

“Education Overview.” World Bank, October 11, 2023. https://www.worldbank.org/en/topic/education/ overview.

This article explains how education is a human right that is a powerful driver of development and a strong instrument for reducing poverty and improving health, gender equality, peace, and stability. It discusses how COVID-19 has exacerbated the ongoing global learning crisis. Numerous students at all academic levels have suffered major learning losses during the pandemic as well as negative effects to their mental health.

Fredman, Sandra. “Human Rights at the Heart of Education (Part I).” World Education Blog, February 2, 2022. https://world-education-blog.org/2018/01/08/human-rights-at-the-heart-of-education-part-i/.

This article discusses how education is at the heart of the global struggle to alleviate poverty and reduce inequality. It discusses how a human rights approach to education is more effective than a development goals approach. Human rights are entitlements and legally enforceable duties rather than policy commitments that change over time. The right to education can be considered a social right, a freedom right, and an equality right. Education is also a right that allows other rights and freedoms to be fully enjoyed and practiced.

“A History of Education since Ancient Civilizations.” Brewminate, June 23, 2021. https://brewminate.com/ahistory-of-education-since-ancient-civilizations/.

This article discusses education over time in different cultures around the world. This summary of the evolution of education over time across different cultures provides an understanding of what was important for a community to teach as well as which individuals were given an education. Over time it is important to note that education has become an important element of human life and that all individuals must receive a quality education

Kakande, Angelo. “The 100 Posters for the Right to Education Exhibition: Its Lessons for the Enforcement of Fundamental Rights.” Start Journal, February 15, 2012. https://startjournal.org/2012/02/the-100-posters-forthe-right-to-education-exhibition-its-lessons-for-the-enforcement-of-fundamental-rights/.

This article discusses the art exhibition about posters for the right to education that took place in the Institute of Heritage Conservation and Restoration to celebrate the International Human Rights Day. The article analyzes a selection of the 100 posters from the exhibition to expose the visual and legal issues relating to the right to education in Uganda.

Kelkar, Gauri. “How Educational Institutions’ Architecture Shapes Young Minds.” Architectural Digest India, February 6, 2021. https://www.architecturaldigest.in/story/how-educational-institutions-architecture-shapesyoung-minds/.

This article talks about how the architecture of schools has an unknowable and intangible impact on how we learn and interact. Special attention must be given to materials in order to elevate the building with the hopes to inspire. Academic institutions are where young minds get formed, therefore, neuroaesthetics play an important role in these spaces. Neuroaesthetics refers to the science of how our environment and experiences in environments shape us and our perception. This article discusses examples of academic institutions in India. They all discuss indoor and outdoor synergy, space and how the body moves through them in time, how architecture is visual and tactile, the importance of fluidity between defined spaces and liminal spaces because learning goes beyond the four walls of a classroom, and how education is about discovery. Learning spaces should create environments that nurture the desire to learn and allow the mind to wander.

Lawrence, Steve, and Benjamin Stæhli. “Montessori Architecture: A Design Instrument for Schools.” Zürich: Park Books, 2023.

This book discusses the Montessori Education pedagogy and offers a series of design patterns that architecture can embody to facilite and promote effective learning. This book explains how and why Montessori Education was created and with what purpose in mind. The 28 design patterns address design choices at different scales such as overall school orientation to maximize natural light as well as providing small niche spaces for individual reflection and learning. Moreover, the last section of the book has a repertorie of schools that have implemented these design patterns in different countries that consider different cultures and traditions when it comes to education and learning.

Lins, Paulo, Ion de Andrade, Tomislav Dushanov, Nicole Miescher, and Lars Müller. “Mãe Luíza - Building Optimism.” Zurich: Lars Müller Publishers, 2021.

This book tells the history of Mãe Luíza with a comparative analysis of how the neighborhood has changed between 2009 and 2019. It offers important insights as to what the neighborhood has endured since its first residents settled in this remote area. It also discusses what positive and negative changes have occured in these recent years and what change still needs to happen for this community to flourish and become a positive model for surrounding favelas.

Musau, Zipporah. “Africa Grapples with Huge Disparities in Education.” African Renewal, March 2018. https://www.un.org/africarenewal/magazine/december-2017-march-2018/africa-grapples-huge-disparitieseducation.

This article discusses how leaders of African countries are prioritizing the attainment of universal primary education because it will aid the countries to lift themselves out of poverty. They built schools and located teachers all around, even the most remote places, with the help of religious organizations and other partners. Despite high enrollment there are still inequalities and inefficiencies when it comes to what is taught in schools. To address some of these issues, it is necessary to invest in child and youth development through education and health policies and programs.

Oluwatayo, Adedapo Adewunmi, Peter A. Aderonmu, and Egidario B. Aduwo. “Architecture Students’ Perceptions of Their Learning Environment and Their Academic Performance.” Learning Environments Research 18, no. 1 (2015): 129–42. https://doi.org/10.1007/s10984-015-9172-7.

The study explained in this article analyzes 273 students in a school of architecture in Nigeria. Some perceptions explored in the study included involvement of students in their studies, perceived support, and conduciveness of the learning environment. Students’ perceptions of their learning environments varied depending on their years of study, age, and gender. A key finding in the study was that students have a desire to be involved in their training and be participants in the creation of knowledge. Shlc. “Education Policies, Systems, and Progress inAfrica andAsia:AComparativeAnalysis.”Centre for Sustainable, Healthy and Learning Cities and Neighbourhoods, May 13, 2020. https://www.centreforsustainablecities.ac.uk/ research/education-policies-systems-progress-africa-asia-comparative-analysis/.

This is a comparative analysis of education systems, policies, inputs, and outcomes of Bangladesh, India, the Philippines, Rwanda, South Africa, and Tanzania. The analysis shows that there are disparities across groups in urban areas that create barriers and gaps between students in affluent neighborhoods and students attending public schools. This analysis explains that colonial legacies continue to have an impact on how education is instructed. There is a need to improve access, quality, and outcomes of primary,

secondary, and tertiary education systems along with alternative routes of education, such as technical and vocational training. Also, there is a need to enforce and implement already established education policies that have the potential to encourage socioeconomic and human development. The analysis exposes how the lack of resources and mismanagement of budgets lead to the inability to finance education systems and invest in life-long learning opportunities. The quality of the available education is also a concern because students do not attain basic literacy skills and there is a shortage of qualified, trained teachers as well.

Tilsley, Alexandra. “School Funding: Do Poor Kids Get Their Fair Share?” Urban Institute, May 2017. https:// apps.urban.org/features/school-funding-do-poor-kids-get-fair-share/.

This article explains how school funding plays a key role on improving student outcomes, especially among low-come students. The struggle that policymakers face is how they can direct funds to students who need them the most. Public schools in the U.S. are funded through a combination of local, state, and federal funds. Each state has a different combination on how schools are funded. This article explores possible relationships between how schools are funded and the academic achievement of students. The article analyzes the differences between how much local, state, and federal funding the public schools use in each state. The way a state divides its school districts affects its ability to target poor students through funding formulas. Ultimately, all states have some power to decide how progressively or regressively they want to fund education.

“Understanding Education as a Right.” Right to Education Initiative, 2023. https://www.right-to-education.org/ page/understanding-education-right.

This article explains reasons to consider education as a right. Education is not a privilege. It is a human right that is legally guaranteed for all. Both individuals and society benefit from the right to education. It is fundamental for human, social, and economic development. Education is a powerful tool to develop the full potential of all individuals and ensure human dignity and wellbeing. Education must be available, accessible, acceptable, and adaptable in all its forms and at all levels.

Williams, Bernard. “Designing for Student Success: Exploring the Role of Architecture in Educational Environments.” AmazingArchitecture, July 1, 2023. https://amazingarchitecture.com/articles/designingfor-student-success-exploring-the-role-of-architecture-in-educational-environments#:~:text=More%20 so%2C%20the%20architecture%20of,the%20teaching%20and%20learning%20experience.

This article talks about how a school’s architectural design influences how students experience and enjoy the spaces. There are some school design principles that can encourage collaboration and promote learning. These are the inclusion of presentation spaces, decentralization of classroom layouts, inclusion of collaborative teaching and study areas, inclusion of quiet zones, and the experimentation with innovative functionality of classroom furniture.

Winthrop, Rebecca. “Improving Access to Quality Public Education in Africa.” Brookings, February 11, 2022. https://www.brookings.edu/articles/improving-access-to-quality-public-education-in-africa/.

This article makes recommendations about how to improve access to quality education in Africa. A recommendation is to harness the innovative capacity of African communities to solve their problems with very little resources. Another is to support enriched teaching and learning experiences to improve foundational literacy and numeracy skills. Also to increase investments in improved models of learning that prepare African youth for future work. Inclusive and equitable education systems must be built on a strong early learning foundation so all students have a desire and are well equipped to be lifelong learners. In addition there is a need to lead on system transformation in the face of climate change.

12 CITATIONS

“354.1 Arena Do Morro.” Herzog & de Meuron. Accessed May 19, 2024. https://www.herzogdemeuron.com/ projects/354-1-arena-do-morro/.

Abdel, Hana. “Himawari Nursery School / Akaike Tohyama Architects.” ArchDaily, September 25, 2023. https://www.archdaily.com/1007252/himawari-nursery-school-akaike-tohyama-architects.

Abdel, Hana. “Lovell International School / Plan Architect.” ArchDaily, September 25, 2023. https://www. archdaily.com/1007248/lovell-international-school-plan-architect?ad_source=myad_bookmarks&ad_ medium=bookmark-open.

Abdel, Hana. “Simba Vision Montessori School / Architectural Pioneering Consultants.” ArchDaily, September 26, 2023. https://www.archdaily.com/1007337/simba-vision-montessori-school-architectural-pioneeringconsultants?ad_source=myad_bookmarks&ad_medium=bookmark-open.

Abdel, Hana. “The Rajkumari Ratnavati Girl’s School / Diana Kellogg Architects.” ArchDaily, April 29, 2021. https://www.archdaily.com/960824/the-rajkumari-ratnavati-girls-school-diana-kellogg-architects.

“Após Reforma, Escola Estadual Dinarte Mariz Volta A Funcionar Em Natal.” Agora RN, January 21, 2020. https://agorarn.com.br/geral/apos-reforma-escola-estadual-dinarte-mariz-volta-a-funcionar-em-natal/.

Block, India. “Tokyo Kindergarten by Tezuka Architects Lets Children Run Free on the Roof.” Dezeen, October 2, 2017. https://www.dezeen.com/2017/10/02/fuji-kindergarten-tokyo-tezuka-architects-oval-roof-deckplayground/.

Caballero, Pilar. “Alto Anapati Preschool / Semillas.” ArchDaily, November 22, 2021. https://www.archdaily. com/972190/alto-anapati-preschool-semillas?ad_source=myad_bookmarks&ad_medium=bookmark-open.

Caballero, Pilar. “Mkombozi Primary School / Architectural Pioneering Consultants.” ArchDaily, September 29, 2023. https://www.archdaily.com/1007494/mkombozi-primary-school-architectural-pioneeringconsultants?ad_source=myad_bookmarks&ad_medium=bookmark-open.

Caballero, Pilar. “Nueva Creación Kindergarten / Taller de Arquitectura Miguel Montor.” ArchDaily, September 11, 2023. https://www.archdaily.com/991384/nueva-creacion-kindergarten-taller-de-arquitectura-miguelmontor.

Cabezas, Constanza. “School in Nebaj / Solis Colomer Arquitectos.” ArchDaily, June 23, 2013. https://www. archdaily.com/389137/school-in-nebaj-solis-colomer-arquitectos?ad_source=myad_bookmarks&ad_ medium=bookmark-open.

“CEPT University, School of Architecture - Balkrishna Doshi .” Arquitectura Viva, October 31, 2018. https:// arquitecturaviva.com/works/cept-university-school-of-architecture.

“Children Village.” RIBA. Accessed May 19, 2024. https://www.architecture.com/awards-and-competitionslanding-page/awards/riba-international-awards/riba-international-awards-2018/2018/children-village.

Coulleri, Agustina. “29 de Noviembre School Reconstruction / Taller Síntesis.” ArchDaily, July 25, 2022. https:// www.archdaily.com/985865/29-de-noviembre-school-reconstruction-taller-sintesis.

“Education.” OECD Better Life Index. Accessed 2023. https://www.oecdbetterlifeindex.org/topics/education/.

“Escola Estadual Senador Dinarte Mariz.” Escolas no Brasil, September 17, 2021. https://www.escolasnobrasil. com/nordeste/escola-estadual-senador-dinarte-mariz-natal.

“Fuji Kindergarten - Data, Photos & Plans.” WikiArquitectura, October 10, 2020. https://en.wikiarquitectura. com/building/fuji-kindergarten/.

“Fuji Kindergarten: Educational Buildings.” Tezuka Architects. Accessed May 19, 2024. http://www.tezukaarch.com/english/works/education/fujiyochien/.

Gibson, Eleanor. “Walls with Integrated Furniture and Yellow Nooks Encourage Play in Madrid School.” Dezeen, February 16, 2017. https://www.dezeen.com/2017/02/16/video-english-for-fun-centre-school-ricastudio-furniture-madrid-spain-english-language-movie-miguel-de-guzman-movie/.

“Lovell International School L Plan Architect.” Arch2O.com, October 29, 2023. https://www.arch2o.com/ lovell-international-school-l-plan-architect/.

Luco, Andreas. “La Piedra School / Correa 3 Arquitectos.” ArchDaily, September 12, 2023. https://www. archdaily.com/1006663/la-piedra-school-correa-3-arquitectos?ad_source=myad_bookmarks&ad_ medium=bookmark-open.

“Lycée Schorge.” Kéré Architecture, 2016. https://www.kerearchitecture.com/work/building/lycee-schorge.

Lynch, Patrick. “Tezuka Architects’ Fuji Kindergarten Wins 2017 Moriyama Raic International Prize.” ArchDaily, September 20, 2017. https://www.archdaily.com/880027/tezuka-architects-fuji-kindergarten-wins2017-moriyama-raic-international-prize?ad_source=myad_bookmarks&ad_medium=bookmark-open.

“Mãe Luiza.” Ameropa. Accessed May 19, 2024. https://www.ameropa.com/foundation/brazil-old/mae-luiza.

“Memórias Vivas de Mãe Luíza.” Mae Luiza. Accessed May 19, 2024. https://mae-luiza.com/.

“METI School.” Anna Heringer Architecture, 2007. https://www.anna-heringer.com/projects/meti-schoolbangladesh/.

Minero, Emelina. “The Architecture of Ideal Learning Environments.” Edutopia, March 2, 2018. https://www. edutopia.org/article/architecture-ideal-learning-environments/.

Ott, Clara. “School N300 Colonia Nicolich / PAEPU_ANEP.” ArchDaily, October 3, 2019. https://www.archdaily. com/925848/school-n300-colonia-nicolich-paepu-anep.

Ott, Clara. “Szentpéterfa Elementary School / Can Architects.” ArchDaily, September 14, 2023. https:// www.archdaily.com/1006785/szentpeterfa-elementary-school-can-architects?ad_source=search&ad_ medium=bookmark-open.

Owoo, Betty. “Architectural Pioneering Consultants Uses Local Materials for School in Tanzania.” Dezeen, December 5, 2023. https://www.dezeen.com/2023/10/31/architectural-pioneering-consultants-simba-visionmontessori-school/.

Pereira, Matheus. “Children Village / Rosenbaum + Aleph Zero.” ArchDaily, October 22, 2020. https://www. archdaily.com/879960/children-village-rosenbaum-plus-aleph-zero.

“The Rajkumari Ratnavati Girls School.” Diana Kellogg architects. Accessed May 19, 2024. https://www. dkarchitects.com/rajkumariratnavatigirlsschool.

Rojas, Cristobal. “English for Fun Flagship in Madrid / Lorena Del Río + Iñaqui Carnicero.” ArchDaily, December 19, 2016. https://www.archdaily.com/801563/english-for-fun-flagship-in-madrid-lorena-del-rioplus-inaqui-carnicero?ad_source=myad_bookmarks&ad_medium=bookmark-open.

Sagredo, Rayen. “Lycee Schorge Secondary School / Kéré Architecture.” ArchDaily, April 19, 2021. https:// www.archdaily.com/885677/lycee-schorge-secondary-school-kere-architecture.

Saieh, Nico. “Arena Do Morro / Herzog & de Meuron.” ArchDaily, May 22, 2014. https://www.archdaily. com/509030/arena-do-morro-herzog-and-de-meuron.

Saieh, Nico. “Handmade School / Anna Heringer + Eike Roswag.” ArchDaily, March 4, 2010. https://www. archdaily.com/51664/handmade-school-anna-heringer-eike-roswag?ad_source=myad_bookmarks&ad_ medium=bookmark-open.

“Tatiana Bilbao Estudio: Estoa – UDEM.” Tatiana Bilbao Estudio | Estoa – UDEM, 2019. https://tatianabilbao. com/projects/estoa-udem.

Thorns, Ella. “How Schools in Africa Can Benefit from Clever Design and Mango Trees.” ArchDaily, March 5, 2018. https://www.archdaily.com/889960/how-schools-in-africa-can-benefit-from-clever-design-and-mangotrees.

“Ulyankulu School.” architect magazine, March 13, 2018. https://www.architectmagazine.com/projectgallery/ulyankulu-school_o.

“Ulyankulu School.” JEJU.studio, October 1, 2022. https://jeju.studio/portfolio/ulyankulu-school/.

“Wayair Foundation School: Jeju Studio.” ArchiDiaries, November 22, 2023. https://www.archidiaries.com/ projects/wayair-foundation-school-jeju-studio/.

“What Does Quality Education Mean? Breaking down SDG #4.” Concern, August 31, 2023. https://concernusa. org/news/quality-education-explained/.

“Xinnan Kindergarten, China.” Hordor Design Group. https://www.gooood.cn/xinnan-kindergarten-china-byhordor-design-group.htm.

A KURDISH CULTUTAL CENTER IN FRANKFURT, GERMANY BY MOHAMAD OTHMANN

GRADUATE ARCHITECTURE THESIS

ROGER WILLIAMS UNIVERSITY

ARCH 613.01 MAY 21, 2024

SUBMITTED IN FULFILLMENT OF THE REQUIREMENTS FOR THE MASTER OF ARCHITECTURE DEGREE

BUOYANT CULTURE

MOHAMED O THMANN, AUTHOR

ANDREW COHEN, THESIS ADVISOR

WHITE, DEAN

INTRODUCTION

Gathering spaces are vital components of communities, serving as venues for social interaction, collaboration, and cultural exchange. These spaces come in various forms, from traditional settings like parks, cafes, and community centers to modern digital platforms and virtual environments.

Physical gathering spaces, such as parks and town squares, have been integral to human societies for centuries. They provide places for people to come together, relax, play, and celebrate. These spaces often reflect the culture and values of the community, fostering a sense of belonging and identity among residents. In urban areas, parks and plazas serve as breathing spaces amid the concrete jungle, offering relief from the hustle and bustle of city life.

Community centers and cultural institutions like libraries, museums, and theaters also play crucial roles as gathering spaces. They not only provide access to information and education but also host events, workshops, and performances that bring people together and promote civic engagement.

When immigrants relocate to foreign lands, maintaining their traditional habits can be both a challenge and a source of comfort. The ability to practice these habits often depends on various factors, including the immigrant’s level of integration into the new society, access to resources, and the openness of the host community to cultural diversity.

One significant challenge immigrants face in practicing their traditional habits is adapting to a new environment with different social norms, customs, and expectations. For example, dietary preferences, religious practices, and forms of social interaction may differ significantly between the immigrant’s home country and their new residence. This can create a sense of cultural dissonance and make it difficult for immigrants to continue their traditions as they did before.

local plant inspired the Qatar national museum
Qatar National Museum, Jean Nouvel

Language barriers can also hinder immigrants’ ability to practice their traditional habits, as effective communication is essential for participating in cultural activities, accessing community resources, and connecting with other members of the immigrant community. Learning the language of the host country can empower immigrants to navigate their new surroundings more effectively and engage with local customs while preserving their cultural heritage.

The openness and acceptance of the host community toward cultural diversity can significantly impact immigrants’ ability to practice their traditional habits. When immigrants feel welcomed and respected for their cultural heritage, they are more likely to feel comfortable expressing their traditions openly and sharing them with others. Conversely, discrimination, prejudice, and cultural insensitivity can create barriers that discourage immigrants from practicing their traditions and integrating into their new community.

Qatar National Museum, Jean Nouvel, the museum and the traditional architecutre
Qatar National Museum, Jean Nouvel, experimental spaces analysis
Qatar National Museum, Jean Nouvel, program indentification

Overall, immigrants’ capability to practice their traditional habits in foreign lands is influenced by a complex interplay of factors, including cultural adaptation, language proficiency, access to resources, and the social and political context of the host community. By fostering inclusive and welcoming environments that embrace cultural diversity, host communities can support immigrants in preserving and celebrating their traditions while contributing to the rich tapestry of cultural exchange and mutual understanding.

Grand Egyptian Museum, Heneghan Peng, the museum is pointing to the great pyramids.
Grand Egyptian Museum, Heneghan Peng, main lobby

From an architectural perspective, the capability of immigrants to practice their activities in foreign lands is closely intertwined with the design of the built environment and the accessibility of public spaces. Architecture plays a crucial role in shaping the social, cultural, and economic dynamics of a community, and it can either facilitate or hinder immigrants’ ability to maintain their traditions and engage in their desired activities.

One key aspect of architectural design is the creation of inclusive and culturally responsive spaces that accommodate the diverse needs and preferences of immigrant communities. This involves considering factors such as accessibility, cultural symbolism, and the provision of amenities that support the practice of traditional activities.

For example, designing public spaces with universal accessibility features, such as ramps, elevators, and tactile paving, ensures that immigrants with disabilities can participate fully in community life and access essential services and cultural events. Similarly, incorporating elements of cultural significance, such as prayer rooms, community gardens, or ethnic food markets, creates opportunities for immigrants to connect with their cultural heritage and practice their traditions in their new environment.

PROJECT STATEMENT

The primary idea is to create a public program for minority communities to practice their habits and traditions in foreign lands, and the Kurdish community could be a great example of studying what they believe in and how to create spaces concerning their thoughts.

The intention is to create a cultural center for minority cultures, specifically the Kurds, where many Kurds live in Europe without any actual building representing their existence in the world.

The primary clients will be Kurd members living in Germany, where they can understand and develop the program of such a project, and they could be individual funders or a group of business people who can support the project financially.

The need for a cultural center that can provide a suitable place for certain people to practice their habits is vital in terms of the purpose of such a program. In this case, as we study the Kurdish habits and their unique activities, many points can be determined according to historical and cultural research; the first observation is the open public space and its role in occupying many activities such as the Newroze festival that requires an ample open space with specific topography to locate the fire location as it represents the sign of freedom from injustice.

The Kurds are an ethnic group primarily inhabiting a region known as Kurdistan, which spans parts of modern-day Turkey, Syria, Iraq, and Iran.

They are often described as the largest ethnic group without a state of their own. Here are some key points about the Kurds:

Population and Distribution: Estimates of the global Kurdish population vary, but it is generally believed to number in the tens of millions. The majority of Kurds live in the Middle East, with significant populations in Turkey, Iran, Iraq, and Syria. Smaller Kurdish communities exist in countries such as Armenia, Azerbaijan, and Lebanon.

Language and Culture: Kurdish is the primary language spoken by Kurds, belonging to the Iranian branch of the Indo-European language family. Kurdish culture is characterized by its rich traditions, including music, dance, literature, and cuisine. Despite facing attempts at assimilation and suppression, Kurdish cultural identity has remained strong.

History of Marginalization: Throughout history, Kurds have often faced marginalization, discrimination, and oppression in the countries where they reside. Policies of forced assimilation, restrictions on language and cultural expression, and violence against Kurdish communities have been common, particularly in Turkey and Iraq.

Kurdish Nationalism: The Kurds have a long history of seeking greater autonomy or independence for their homeland. Various Kurdish nationalist movements and political organizations have emerged over the years, advocating for Kurdish rights and self-determination.

Conflict and Struggle: The Kurds have been involved in numerous conflicts and struggles for recognition and autonomy. The Kurdish-Turkish conflict, centered around the Kurdistan Workers’ Party (PKK) in Turkey, has been one of the most protracted and violent, resulting in significant casualties on both sides.

Iraqi Kurdistan: Iraqi Kurdistan, located in the northern part of Iraq, has achieved a degree of autonomy since the establishment of a no-fly zone following the Gulf War in 1991. The Kurdish Regional Government (KRG) governs the region, which has its own parliament, military forces, and economy.

Syrian Kurds and Rojava: In Syria, Kurdish groups such as the People’s Protection Units (YPG) have played a significant role in the Syrian Civil War. They have established semi-autonomous regions known as Rojava, where Kurdish cultural and political rights are emphasized.

International Relations: The status of the Kurds has been influenced by broader geopolitical considerations, with various regional and global powers either supporting or opposing Kurdish aspirations based on their own interests. The Kurdish role in the fight against ISIS, for example, garnered international attention and support.

kurdish tradistional dance

KURDS NEWROZ

/ NEW YEAR /

Newroz, also known as “Nowruz” or Kurdish New Year, is a significant cultural and traditional celebration observed by Kurds and various other communities across the Middle East, Central Asia, and beyond. It marks the beginning of spring and is a time of renewal, hope, and celebration of nature’s rejuvenation.

The word “Newroz” is derived from Persian and means “new day” or “new light.” It’s celebrated on the spring equinox, usually falling on March 21st, though the exact date may vary slightly depending on the regional calendar or cultural traditions. Newroz has ancient roots, dating back thousands of years to Zoroastrian traditions and pre-Islamic Persian civilizations.

For Kurds, Newroz holds deep historical and cultural significance as a symbol of resistance, freedom, and unity. It commemorates the legendary struggle of Kawa, a blacksmith who rebelled against the tyrannical rule of the despotic king Zahhak in Kurdish folklore. According to the myth, Kawa led a successful uprising to overthrow the oppressive ruler, marking

the beginning of a new era of liberation and justice.

Modern-day Newroz celebrations typically include a range of festive activities, rituals, and customs. People gather in public squares, parks, and other communal spaces to participate in traditional dances, music performances, and poetry recitations. Bonfires are lit to symbolize the triumph of light over darkness and the victory of good over evil.

Traditional foods are prepared and shared among family and friends, including dishes like dolma, kebabs, and sweets like baklava. Colorful flags, banners, and decorations adorn streets and homes, creating a festive atmosphere of joy and solidarity.

Newroz is also a time for reflection on Kurdish identity, history, and aspirations for the future. It’s often marked by political speeches, cultural events, and demonstrations advocating for Kurdish rights, autonomy, and recognition. In regions with significant Kurdish populations, such as Turkey, Iran, Iraq, and Syria, Newroz has been a focal point for expressions of Kurdish cultural pride and calls for social justice and equality.

Newroz fire walk towards the mountians
The Fires Night as it called on march 20th

Despite facing challenges and repression in some countries, the spirit of Newroz endures as a symbol of resilience, hope, and unity for Kurds and other communities around the world. It’s a time to celebrate cultural heritage, reaffirm collective identity, and envision a brighter future grounded in the values of freedom, peace, and solidarity.

Fire holds a central and symbolic role in Newroz celebrations within Kurdish culture. Lighting fires is a key ritual during Newroz, representing various themes such as the triumph of light over darkness, the arrival of spring, and the renewal of life.

dancing around Newroz fire
the walking back journey from the mountains

The lighting of the Newroz fire is often accompanied by traditional songs, dances, and rituals that symbolize unity, resilience, and the spirit of resistance. People gather around the bonfires in public squares, parks, and other communal spaces to partake in the festivities.

The significance of fire in Newroz can be traced back to ancient Zoroastrian traditions, where fire symbolized purity, enlightenment, and divine protection. Over time, these symbolic meanings became intertwined with Kurdish folklore and mythology, particularly the legend of Kawa the Blacksmith.

According to Kurdish folklore, Kawa was a heroic figure who rebelled against the tyrannical ruler Zahhak, marking the beginning of a new era of freedom and justice. Legend has it that Kawa lit a series of signal fires on the mountaintops to alert the people to rise up against oppression. These fires are believed to have been the precursor to the modern-day Newroz bonfires.

The act of lighting bonfires during Newroz serves as a powerful symbol of resistance against injustice and tyranny, echoing the spirit of Kawa’s uprising. It’s a time for Kurds to reflect on their history of struggle, honor the sacrifices of their ancestors, and reaffirm their commitment to freedom and dignity.

dancing events on Newroz day march 21st
Newroz festivel on march 21st

PROGRAM ANALYSIS

An initial study requires 100,000 sf of ground area, and that includes the following pavilions:

1. Musical hall: This facility offers a large flexible space for Kurdish weddings and musical events, along with smaller practice rooms for dancing and traditional instrument teaching.

2. Recreation center: This indoor field can accommodate different tourists and has soccer, basketball, and entertainment spaces.

3. Exhibition hall: This is an ample space showcasing the history and artistic work of many Kurdish artists, with smaller spaces for various art exhibitions.

4. Educational pavilion: the auditorium is a necessity in such a program where conferences and lectures can be given to the audiences in addition to smaller classrooms teaching the languages, history, and the future of such a buoyant culture.

5. Public hall: a restaurant complex offering many traditional foods, with a center kitchen as a smaller space used for teaching food preparation.

6. Market circulation: This space is unique in character as it connects the different pavilions and includes retail shops that showcase cultural products.

MUSICAL HALL

Kurdish music is a rich and diverse musical tradition that reflects the cultural heritage, history, and identity of the Kurdish people. It encompasses a wide range of styles, instruments, and lyrical themes, influenced by the unique cultural, linguistic, and geographic diversity of the Kurdish regions spanning across Turkey, Iran, Iraq, Syria, and the wider diaspora.

One of the most prominent genres of Kurdish music is folk music, which has been passed down orally through generations and reflects the daily life, joys, sorrows, and struggles of Kurdish communities. Folk songs often feature themes of love, nature, social justice, and resistance, with lyrics sung in various Kurdish dialects.

Musical instruments play a vital role in Kurdish folk music, with each region having its own distinct repertoire of instruments. Some of the most commonly used instruments include the daf (a large frame drum), the tanbur (a long-necked lute), the duduk (a double-reed woodwind instrument), the zurna (a type of oboe), and various types of stringed instruments like the saz and the tembur.

All Kurds gathering for celeberation
kurdish wedding hall

In addition to folk music, Kurdish music has also been influenced by other musical traditions from the surrounding regions, such as Persian, Arabic, Turkish, and Armenian music. This fusion of styles has led to the emergence of new genres and subgenres, blending traditional Kurdish melodies with modern instrumentation and production techniques.

Kurdish music has historically served as a vehicle for cultural expression and resistance against oppression. During periods of political upheaval and repression, Kurdish musicians have used their art to convey messages of solidarity, resilience, and hope, often at great personal risk. Songs celebrating Kurdish identity, language, and heritage have played a crucial role in fostering a sense of collective belonging and mobilizing support for Kurdish rights and autonomy.

In recent years, Kurdish music has gained international recognition through the work of artists and musicians in the Kurdish diaspora, as well as collaborations with musicians from other cultures. Kurdish musicians have embraced modern recording technologies and social media platforms to reach wider audiences and preserve their musical heritage for future generations.

Overall, Kurdish music is a vibrant and dynamic art form that continues to evolve and thrive, serving as a powerful expression of Kurdish culture, history, and aspirations for a better future. It embodies the resilience, creativity, and spirit of the Kurdish people, enriching the global tapestry of musical diversity.

traditional musical instruments
Kurdish traditional drum

RECREATION CENTER

Kurdish sports encompass a variety of traditional and modern activities that reflect the athletic prowess, cultural heritage, and community spirit of the Kurdish people. While some sports have ancient roots deeply embedded in Kurdish history and traditions, others have gained popularity more recently, reflecting global trends and influences.

One traditional sport that holds significant cultural importance among Kurds is wrestling, particularly a style known as “Kurdish wrestling” or “koresh.” This form of wrestling has been practiced for centuries and often involves grappling and ground techniques. It’s not only a physical contest but also a symbol of strength, honor, and masculinity within Kurdish society.

Another traditional Kurdish sport is horseback riding, which has historical roots in nomadic pastoralism and cavalry warfare. Equestrian events, such as horse racing, tent-pegging, and horseback archery, are still practiced in some Kurdish regions, showcasing the horsemanship skills and cultural heritage of the Kurdish people.

Football (soccer) is by far the most popular modern sport among Kurds, enjoyed by people of all ages and genders across Kurdistan and the diaspora. Kurdish football clubs compete in domestic leagues within their respective countries, and there’s a strong sense of regional pride associated with supporting local teams. International football tournaments, such as the FIFA World Cup and the UEFA European Championship, also garner widespread enthusiasm and support among Kurdish football fans.

Basketball, volleyball, and martial arts, such as taekwondo and judo, are also growing in popularity among Kurdish youth, with clubs and leagues emerging in various Kurdish communities. These sports provide opportunities for physical fitness, skill development, and social interaction, fostering a sense of camaraderie and teamwork among participants.

In addition to organized sports, outdoor activities like hiking, mountaineering, and skiing are enjoyed by Kurds, particularly in regions with rugged terrain and natural landscapes conducive to outdoor recreation. These activities not only promote physical health and well-being but also offer opportunities for people to connect with nature and appreciate the beauty of their homeland.

Overall, Kurdish sports reflect a blend of ancient traditions and modern pursuits, showcasing the athleticism, resilience, and cultural identity of the Kurdish people. Whether it’s through traditional wrestling matches, football matches, or outdoor adventures, sports play an integral role in Kurdish society, bringing people together, fostering community pride, and celebrating the spirit of competition and camaraderie.

gathering spaces along with sport corners
pool example with natural light access

EXHIBITION PAVILION

Kurdish traditional arts and handicrafts are deeply rooted in the cultural heritage and identity of the Kurdish people, reflecting their rich history, folklore, and way of life. These traditional arts encompass a wide range of disciplines, including visual arts, music, dance, literature, and handicrafts, each with its own distinctive styles, techniques, and symbolism.

One of the most celebrated forms of Kurdish traditional art is literature, particularly poetry and storytelling. Kurdish poets and storytellers have long been revered for their ability to convey the beauty of the Kurdish language and the richness of Kurdish culture through verse and narrative. Many traditional Kurdish folk tales and epic poems, such as the “Shahnameh” and the “Mem u Zin,” have been passed down orally through generations, preserving the collective memory and values of the Kurdish people.

Visual arts also hold a prominent place in Kurdish culture, with traditional forms of painting, calligraphy, and decorative arts dating back centuries. Illuminated manuscripts, ornate woodcarvings, and intricate textiles are among the most notable examples of Kurdish visual arts, often featuring motifs inspired by nature,

Kurdish traditional carpets exhibition hall experince

mythology, and geometric patterns. These artworks not only serve as expressions of beauty and craftsmanship but also as vehicles for cultural expression and identity.

Music and dance are integral components of Kurdish cultural life, with a rich tradition of folk music and dance passed down through generations. Kurdish music is characterized by its emotive melodies, intricate rhythms, and lyrical themes of love, longing, and resilience. Traditional Kurdish musical instruments, such as the daf (frame drum), tanbur (long-necked lute), and zurna (double-reed wind instrument), play a central role in accompanying singers and dancers during performances.

Handicrafts are another important aspect of Kurdish traditional arts, with artisans producing a wide range of items using traditional techniques and materials. Embroidery, weaving, pottery, and metalwork are among the most common forms of Kurdish handicrafts, each reflecting the unique cultural heritage and regional identity of the artisans. These handmade crafts not only serve practical purposes but also carry symbolic and aesthetic value, often adorned with intricate patterns and motifs passed down through generations.

In recent years, efforts have been made to preserve and promote Kurdish traditional arts and handicrafts through cultural institutions, educational programs, and community initiatives. By celebrating and supporting these artistic traditions, Kurds are able to maintain a strong connection to their cultural heritage while also contributing to the preservation and enrichment of the global cultural landscape.

EDUCATIONAL PAVILION

The Kurdish population, like any other, values education as a fundamental tool for personal development, empowerment, and societal progress. Despite facing various challenges, including political instability, economic constraints, and social discrimination, Kurds have made significant strides in expanding access to education and developing learning tools tailored to their linguistic and cultural needs.

Language plays a crucial role in Kurdish education, as Kurds have historically faced restrictions on using their native language in formal schooling systems. In many regions, Kurdish children were prohibited from learning and speaking Kurdish in schools, leading to linguistic assimilation and cultural marginalization. However, efforts have been made in recent years to promote the use of Kurdish as a medium of instruction in schools, particularly in regions with significant Kurdish populations.

In addition to formal education systems, Kurds have developed alternative educational resources and learning tools to meet the needs of their communities. Community-based initiatives, such as Kurdish language schools, cultural centers, and grassroots organizations, play vital roles in

providing supplementary education and preserving Kurdish language, history, and culture.

The advent of digital technology has also opened up new possibilities for educational innovation and outreach among Kurds. Online platforms, mobile apps, and digital libraries offer access to educational resources in Kurdish language and facilitate distance learning opportunities for students of all ages. Social media networks and online forums serve as platforms for knowledge sharing, collaboration, and networking among Kurdish educators, learners, and activists.

Furthermore, efforts have been made to develop and adapt educational materials and curricula to reflect Kurdish cultural perspectives and values. Textbooks, teaching materials, and educational content are increasingly incorporating themes related to Kurdish history, literature, art, and folklore, providing students with a more inclusive and culturally relevant learning experience.

Despite these advancements, challenges remain in ensuring equitable access to quality education for all Kurds, particularly those living in remote or marginalized communities. Addressing disparities in educational infrastructure, resources, and opportunities requires sustained investment in education, teacher training, and curriculum development, as well as policies that promote linguistic and cultural diversity within educational institutions.

PUBLIC PAVILION

Kurdish cuisine is renowned for its rich flavors, diverse ingredients, and centuries-old culinary traditions. Influenced by the geography, climate, and cultural heritage of the Kurdish regions spanning across Turkey, Iran, Iraq, Syria, and the wider diaspora, Kurdish food reflects a fusion of Middle Eastern, Mediterranean, and Central Asian culinary influences.

One of the hallmarks of Kurdish cuisine is its emphasis on fresh, seasonal ingredients sourced from local farms and markets. Grains, vegetables, legumes, and dairy products are staples of the Kurdish diet, with meat and poultry often reserved for special occasions or festive meals.

One of the most iconic Kurdish dishes is “dolma,” which consists of grape leaves or vegetables stuffed with a mixture of rice, herbs, and spices, often accompanied by minced meat or nuts. “Kebabs” are also popular, featuring grilled skewers of marinated meat, such as lamb, chicken, or beef, served with flatbread and a variety of condiments.

“Kubba” is another beloved Kurdish dish, made from bulgur wheat or rice dough filled with spiced meat, onions, and pine nuts, then shaped into balls or patties and either fried or boiled.

resturant space with cafe zone
Kurdish traditional food

“Yaprax” is a similar dish, featuring stuffed vegetables like cabbage, eggplant, or zucchini.

Kurdish cuisine also boasts a wide array of soups, stews, and sauces, often flavored with aromatic herbs and spices like mint, parsley, cumin, and sumac. “Ash reshteh” is a hearty Kurdish soup made from noodles, beans, lentils, and a variety of greens, seasoned with onions, garlic, and dried mint.

Dairy products, such as yogurt, cheese, and buttermilk, are commonly used in Kurdish cooking, adding richness and depth of flavor to many dishes. “Labneh” is a popular Kurdish yogurt-based spread, often served with flatbread or used as a dip for vegetables.

For dessert, Kurds enjoy a variety of sweets and pastries, including “baklava” (layered pastry filled with nuts and honey), “kunafa” (shredded wheat pastry soaked in syrup), and “halva” (semolina or nut-based sweet).

Tea (“çay”) is the beverage of choice for many Kurds and is typically served throughout the day, often accompanied by sweets or dried fruits. Traditional Kurdish herbal teas, such as mint, sage, and chamomile, are also popular for their soothing and aromatic qualities.

In general, Kurdish cuisine reflects a deep connection to the land, a reverence for seasonal ingredients, and a commitment to preserving culinary traditions passed down through generations. Whether enjoyed at home with family or shared with friends at festive gatherings, Kurdish food embodies the warmth, hospitality, and cultural richness of the Kurdish people.

traditional Kurdish seating areas
Traditional Kurdish resturant

MARKET CIRCULATION

Kurdish market areas are vibrant hubs of economic activity and social interaction, where people come together to buy, sell, and exchange goods and services. These marketplaces, known as “bazaars” or “souks,” are integral to Kurdish culture and daily life, serving as centers of commerce, culture, and community gathering.

In Kurdish cities and towns, market areas are often characterized by bustling streets lined with shops, stalls, and vendors selling a wide variety of goods, including fresh produce, spices, textiles, clothing, household items, handicrafts, and electronics. The sights, sounds, and smells of the market create a sensory-rich environment that attracts locals and visitors alike.

Traditional bazaars in Kurdish regions typically consist of narrow alleyways and covered arcades, with vendors setting up their stalls along the pedestrian thoroughfares. These marketplaces are often organized according to the type of goods being sold, with specific sections dedicated to food, clothing, jewelry, and other categories.

One distinctive feature of Kurdish market areas is the presence of traditional artisans and craftsmen who specialize in producing handmade goods and handicrafts. These artisans, known as “ustas,” demonstrate their skills and craftsmanship in areas such as woodworking, metalworking, pottery, weaving, and embroidery, creating unique and high-quality products that showcase Kurdish cultural heritage.

In addition to the commercial activities, Kurdish market areas serve as important social spaces where people gather to socialize, exchange news and gossip, and enjoy street food and refreshments. Tea houses, cafes, and restaurants are often situated near the marketplaces, providing opportunities for relaxation and social interaction.

Market days, which often coincide with the local weekly market or “souk day,” are particularly lively occasions, with vendors from surrounding villages and rural areas converging on the town to sell their wares. These market days offer a unique opportunity to experience the diversity of Kurdish culture, cuisine, and craftsmanship in one place.

Despite the modernization and globalization of commerce, Kurdish market areas continue to thrive as vibrant centers of economic activity and cultural exchange. They

Kurdish cratfs market
Local Kurdish shadding elements

EXTERIOR AMPHITEATHER

While there isn’t a specific tradition of exterior amphitheaters in Kurdish festivals, outdoor gatherings and performances are indeed significant parts of Kurdish cultural celebrations. Kurds have a long history of holding festivals and communal events in open spaces such as public squares, parks, and natural amphitheaters.

The choice of venue for Kurdish festivals often reflects the community’s connection to nature and the landscape. Natural amphitheaters, formed by hillsides or valleys, provide ideal settings for large gatherings, performances, and cultural events, offering both practical and symbolic advantages.

1. Capacity and Accessibility: Outdoor amphitheaters can accommodate large crowds, allowing for more people to participate in festival activities. The open-air layout also facilitates easy access and movement, ensuring that attendees can come and go freely throughout the event.

2. Acoustic Properties: Natural amphitheaters often boast excellent acoustics, with the surrounding terrain amplifying sound and allowing performers to be heard clearly by the audience. This enhances the overall experience

Mosco Wlak Ampitheater
Flexible Ampitheater

of musical performances, storytelling, and speeches during festivals.

3. Connection to Nature: Holding festivals in outdoor amphitheaters allows Kurds to connect with their natural surroundings and appreciate the beauty of their homeland. The panoramic views of mountains, valleys, and landscapes provide a picturesque backdrop for cultural festivities, fostering a sense of pride and belonging among participants.

4. Cultural Significance: Outdoor gatherings in natural amphitheaters have historical and cultural significance in Kurdish traditions. They evoke a sense of continuity with ancient customs and rituals, reminding participants of the enduring bond between the Kurdish people and their land.

During Kurdish festivals, outdoor amphitheaters may host a variety of activities, including musical performances, dance recitals, theatrical productions, poetry readings, and traditional ceremonies. These events serve as opportunities for Kurds to celebrate their cultural heritage, express their collective identity, and strengthen social bonds within the community.

While the specific design and construction of exterior amphitheaters may vary depending on the geographic location and local customs, their importance in Kurdish festivals lies in their ability to provide inclusive, immersive, and memorable experiences that bring people together in celebration of shared traditions and values.

RELATED PRECEDENT

PROJECTS

Cultural centers play a crucial role in society by serving as hubs for community engagement, artistic expression, educational programming, and cultural preservation. These institutions provide spaces where people can come together to celebrate their cultural heritage, exchange ideas, and participate in a wide range of activities that promote social cohesion and mutual understanding.

It can also play a vital role in preserving and promoting cultural heritage by documenting, archiving, and showcasing artifacts, artworks, traditions, and oral histories that are integral to a community’s identity. Through exhibitions, workshops, and educational programs, cultural centers ensure that cultural heritage is passed down to future generations and appreciated by a broader audience.

On a different term where it can serve as platforms for artists, performers, writers, and musicians to showcase their talents and creative works. They host art exhibitions, concerts, theater performances, film screenings, literary events, and other cultural activities that enrich the cultural landscape and contribute to the vibrancy of the local arts scene.

BAT TRANG CERAMIC COMMUNITY HOUSE

Bat Trang Ceramic Community House was put into operation in 2021. With a total investment of 150 billion VND, the project is part of The Center for “Quintessence of the Vietnamese Craft Village” to develop craft villages and preserve the traditions of pottery craft more than 500 years old.

Bat Trang Ceramic Community House plays an important role in village planning. It is located at the gateway to welcome tourists, facing the Bac Hung Hai canal and connecting to the Red River. The building form is carefully considered to control construction density and height, create harmonious proportions and views, improve the canal landscape, and recreate the hustling and bustling scene of the canal’s ancient pottery market.

The project is a 5-storey multi-functional complex. The architectural shape results from 7 interlocking ceramic wheels inspired by the image of a ceramic artisan smoothing a block of clay into overlapping curves that tend to expand gradually. It creates an impressive volume and optimizes its functionality, such as making a shelf for displaying ceramics or a staircase to move between floors. From another perspective, the project is reminiscent of the image of Bat Trang’s antique gourd furnace

COMMUNITY CENTER OF FRAGRANT LAKE

Fragrant Lake is a cultural tourism resort community located in the north of Wuhan City, with wilderness and lakes as the original natural community environment. Meng Fanhao, the co-founder and chief architect of line+ studio, was invited to design the first public building in the entire community - the Community Center of Fragrant Lake.

The public life of the community is not only to meet the diversity and richness of activities but also includes the goal of spiritual reshaping. Under the trend of flat, fast, and decentralized times, we hope to use “light” as a medium to create a “daily centrality” that re-links the intimate relationship between people and between people and nature.

The design extracts and abstracts from key elements such as the cornice form and color tone of the Yellow Crane Tower and local traditional buildings, and generates a roof form in which floating cornices and viewing platforms are embedded, implying a majestic and profound local architectural culture. The giant roof not only constitutes the central meaning of the community coordinates in form but also has the plasticity of a deeper spiritual medium for the interior space.

COMMUNITY CENTER OF

BAISHADAO FINANCIAL

TOWN

Located in a new financial town in the suburb of Shenyang, this planned 5,000 square meters community center belongs to a commercial plot that will house 50,000 square meters of future development. Our program research discovered two disadvantages: 1.

this newly developing area does not have sufficient population to support large quantities of retails; 2. It is very questionable how to make a typical shopping center competitive. After a discussion with the client, we both agreed that this commercial center should be something special. Thus came the idea of using a botanic garden to energize the space.

The client was very much excited about the proposal and commissioned URBANUS to design the entire 50,000 square meters project, rather than a singular community center. After analyzing various potential commercial models in this area, an innovative layout appeared: a greenhouse was employed as the center of all programs to attract visitors and start-up businesses.

SITE SELECTION

The Kurdish population is dispersed across various countries around the world, primarily concentrated in regions of Kurdistan spanning across Turkey, Iran, Iraq, and Syria. Additionally, there is a sizable Kurdish diaspora living in Europe, North America, Australia, and other parts of the world due to historical migrations, displacement, and resettlement.

Estimating the exact number of Kurds worldwide is challenging due to factors such as political sensitivities, varying definitions of Kurdish identity, and limitations in census data. However, it’s estimated that there are tens of millions of Kurds globally, making them one of the largest ethnic groups in the Middle East without a sovereign state.

Germany has one of the largest Kurdish diaspora communities in Europe, with significant numbers of Kurds residing in various cities and regions across the country. The exact population of Kurds in Germany is difficult to determine precisely due to factors such as varying migration patterns, asylum status, and ethnic self-identification. However, estimates suggest that there are several hundred thousand to over one million Kurds living in Germany.

Kurds began migrating to Germany in significant numbers starting in the 1960s and 1970s, initially

as guest workers recruited to fill labor shortages in the booming post-war German economy. Subsequent waves of Kurdish migration occurred due to political upheavals, armed conflicts, and human rights abuses in Kurdistan and neighboring regions.

In Germany, Kurdish communities have established cultural associations, community centers, and social networks to support new arrivals, preserve their cultural heritage, and advocate for Kurdish rights and recognition. These organizations play vital roles in providing social services, educational programs, legal assistance, and cultural events for Kurdish residents and their families.

Despite facing challenges such as language barriers, discrimination, and integration issues, Kurds in Germany have made significant contributions to German society in various fields, including academia, politics, business, arts, and sports. They have also been active participants in social and political movements advocating for Kurdish rights, democracy, and peace in their homeland and beyond.

Overall, the Kurdish diaspora in Germany represents a dynamic and diverse community that continues to shape and enrich the cultural tapestry of German society while maintaining strong connections to their Kurdish heritage and identity.

Nidda Park is a sprawling green oasis located in Frankfurt, Germany, offering a tranquil retreat from the hustle and bustle of city life. Situated along the banks of the Nidda River, this expansive park spans over 160 hectares and features diverse landscapes, recreational facilities, and natural habitats that attract visitors of all ages throughout the year.

1. Natural Beauty: Nidda Park is renowned for its scenic beauty, with meandering pathways, lush greenery, and picturesque views of the Nidda River. The park’s landscape includes open meadows, wooded areas, wetlands, and ponds, providing a rich tapestry of habitats for diverse flora and fauna.

2. Recreational Activities: The park offers a wide range of recreational facilities and activities for visitors to enjoy. These include jogging and biking trails, playgrounds, sports fields, and picnic areas, providing opportunities for exercise, relaxation, and outdoor leisure activities for individuals, families, and groups.

3. Cultural and Historical Sites: Nidda Park is home to several cultural and historical landmarks that reflect the area’s rich heritage. The park features the remains of ancient Roman settlements, historic bridges, and architectural landmarks such as the Glauburg Castle ruins, which offer insights into the region’s past.

site selection, Frankfurt
site selection, Nidda Park

4. Botanical Garden: Within Nidda Park, visitors can explore the Botanical Garden Frankfurt am Main, a serene oasis showcasing a diverse collection of plant species from around the world. The garden features themed areas, including alpine gardens, Mediterranean landscapes, and exotic plant collections, providing educational opportunities and inspiration for nature enthusiasts.

5. Wildlife Observation: Nidda Park is teeming with wildlife, providing ample opportunities for birdwatching and wildlife observation. Visitors may encounter a variety of bird species, waterfowl, and small mammals, as well as amphibians and insects, particularly in the park’s wetland and aquatic habitats.

6. Events and Festivals: Throughout the year, Nidda Park hosts a variety of events, festivals, and cultural celebrations that showcase the park’s natural beauty and cultural diversity. These may include outdoor concerts, art exhibitions, food markets, nature walks, and environmental education programs, drawing visitors from across Frankfurt and beyond.

Overall, Nidda Park offers a harmonious blend of natural beauty, recreational opportunities, and cultural attractions, making it a beloved destination for locals and tourists alike to explore, unwind, and connect with nature in the heart of Frankfurt.

SCHEMATIC DESIGN

The aim is to create an environment that mirrors the unique activities of the Kurdish community. This will be achieved through the establishment of several pavilions, each dedicated to a different aspect of Kurdish culture. These spaces will be interconnected, symbolizing the unity of the community, and will culminate in a shared space, akin to a market, where various cultural items can be purchased.

Given that the program is expanding on a park site, it is crucial to maintain a strong connection between the indoors and outdoors. This design element not only ensures privacy for small events but also allows for flexibility in the use of different spots in the building. The geometry of the pavilions and their connection to the smaller spaces can illustrate this concept.

Based on that notion, the mountains were a primary drive for the geometry of the large spaces as they represent the origin of the Kurds. They also offer strong roots of the traditional places that remain in every Kurdish person no matter where they live, so many ideas like domes are great representations of the mountains and can occupy more significant events regarding their function.

Nidda Park offers potential spots for the building, and the following analysis of the site summarizes it.

NORTHEAST PORTION OF THE SITE

The site has plenty of opportunities for program distribution and access points. The program is located in the northeast part of the site in the first schematic design; this zone creates private access to the building without interrupting the neighborhoods and provides flexibility in traffic issues related to the annual festival.

This design seeks to provide indoor spaces on the waterfront side of the site. It creates certain moments of privacy that the users can use for their cultural activities without being interacted with by social circumstances.

PORTION OF THE SITE

locating the program near the neighborhood zones so local communities can share and engage with the activities more often instead of creating isolated spaces that break down the community connections between different cultures.

Creating a sequence of spaces that connects the access point to the central plaza zone where the festival will occur is the primary concept of this specific proposal. It provides gathering spaces for all communities to see how other cultures practice their activities in a safe environment.

sorrunding analysis
sorrunding analysis

NORTHWEST

PORTION OF

THE SITE

Similar to the second approach, this proposal creates gathering spaces with nearby residential zones by locating the program on the east part of the site and taking one of the residential roads as a primary access point.

As the central plaza circles around the open spaces, the building tends to connect directly to other private spaces for private activities and how different events from other cultures can occur in the same zone as part of the collaborative sharing of thoughts and habits between different communities.

The Newroz festival is an essential event in Kurdish culture. It must have a strong appearance in geometry that can be articulated by arranging the pavilions in the shape of a hand that holds the Newroz fire in its palm, where the fingers can represent the pavilions. It is located diagonally, pointing to the primary fireplace on top of an artificial hill slope to the level of the fire that is on the same level as a person who experiences the market circulation.

Like the Galaxy SOHO project in central Beijing designed by Zaha Hadid, the five pavilions connect and create a semi-closed gathering space as the pavilions offer retail and entertainment spaces. Precedent projects combine the different pavilions similarly to the Kurdish Cultural Center; to accommodate that, the drive was a focal point where all the pavilions could orient. It can help to connect all the various spaces into a linear gathering space, like the SOHO project, along with retail shops and relevant spaces related to the faculty department.

Galaxy SOHO, Zaha Hadid, Pavilion conection
initial project sketches
initial project sketches
program disterbution on the initial proposal
Geomtry concept
site axon

DESIGN

DEVELOPMENT

This phase took the project to another level in terms of geometry and space relationship, as the original notion of the hand holding fire in its palm stayed the same, the shape of the pavilions adopted to be more representative of the Kurdish mountains, as the triangle shape works better in showcasing the intention of such massive spaces where it starts to gradient upwards starting from the circulation zone to Nidda riverside.

The massive spaces require additional spaces that can offer smaller events to connect the smaller spaces with the main ones. The arrangement of these spaces acts like a village built upon the mountain. The space between the additional spaces creates a private courtyard for continuation purposes and sun exposure, as the irregular Kurdish villages nest among each other and are built in a randomly organized configuration connected to the main pavilion on one end and open to the patio from the other. It also connects the various spaces to a series of gathering zones.

improved sketches Prince Mahidol Hall, Architects 49
Kurdish villages Kurdish villages in Newroz Festivel

The Prince Mahidol Hall creates a singular, strong geometry that turns the focus on the end face where the triangle appears in its plain shape and a curved cantilever on the other side. That combination of different geometry allows the audience to experience generous gathering spaces on both ends.

A Developed study of the Kurdish cultural center suggests a curved market circulation that can be accessed through one of the wide openings between the thumb and index finger, and such a natural concept gives access to the building along with a greater separation between the divergent programs such as the public pavilion which should be separated due to its central kitchen not to distribute the other programs as it creates a privacy factor to all the pavilions.

elevation sketches studies
Educational Pavilion exterior view
Auditorium Partition sketches
geomtry studies
courtyrad studies
program axon
geomtry axon
First Floor Plan
Second Floor Plan
South Elevation
Exhibition View
North Elevation
Ampitheater View

FINAL DESIGN

Improved design decisions were made in this phase, changing the articulations of the pavilion geometry in relation to the additional spaces. This helped strengthen the connection between the large-scale events and the small spaces connected to those pavilions.

In addition to the building improvement, another notion of these was the experimental walk, which included an open parking garage on the other side of the river that can occupy up to 100 cars at its maximum capacity, and the people can use a pedestrian bridge drops the people in the area between the thumb and index finger pavilion where the central plaza exists, furthermore, a drop-off area is located at the east side of the plaza, and it provides private access to the lower parking garage too and the loading area for supplies, This access assists the users with more accessible projects, including easier entry and exit points.

One proposal is to create a roundabout intersection to limit the traffic in front of the main entrance. Speaking of the pavilion improvements, a skylight was added to all the triangle-shaped spaces due to the need for natural light to access the extended space.

This also helps in the structural spec, where less weight is loaded on the T-line. However, the structure continues to create a rigid frame to maintain the overall deadload from external factors and the concrete shell.

Improved design decisions were made in this phase, changing the articulations of the pavilion geometry in relation to the additional spaces. This helped strengthen the connection between the large-scale events and the small spaces connected to those pavilions.

In addition to the building improvement, another notion of these was the experimental walk, which included an open parking garage on the other side of the river that can occupy up to 100 cars at its maximum capacity, and the people can use a pedestrian bridge drops the people in the area between the thumb and index finger pavilion where the central plaza exists; furthermore, a drop-off area is located at the east side of the plaza, and it provides private access to the lower parking garage too and the loading area for supplies, This access assists the users with more accessible projects, including easier entry and exit points. One proposal is to create a roundabout intersection to limit the traffic in front of the main entrance.

Speaking of the pavilion improvements, a skylight was added to all the triangle-shaped spaces due to the need for natural light to access the extended space. This also helps in the structural spec, where less weight is loaded on the T-line. However, the structure continues to create a rigid frame to maintain the overall dead load from external factors and the concrete shell.

On the other side of the pavilions, the amphitheater was initially built on top of an artificial hill to accommodate the notion of the Newroz festival being culturally accurate, and the top point of the hill is the primary focus point of the event since the topography of the site is flat, a person who is walking in the market circulation, would hardly the top hill, and that is due to the large capacity of the amphitheater which requires large slop percentage for the 10,000 desired audiences to attend this unique event.

The idea is to bring the outdoor stage to the basement level, as the ground floor level can oversee both the back side of the stage and the top hill point. This would improve the exercise walk as the users walk through the market zone and exit from the west side of the building, ending with the amphitheater view and the rest of the park areas.

Geomtry Axon
East Elevation
South Elevation
North Elevation

MUSCIAL HALL PAVILION

This pavilion is unique regarding the special wedding ceremony that Kurdish culture has. In notion, it requires a large open hall with the bride and groom sitting at the central point. The hall is left by three steps so they can be seen by all the guests.

The groom and bride’s rooms are on the second floor, where they start the ceremony by using the decorative large-scale staircase down to the wedding hall level. The additional spaces will be music and dance practice rooms for couples and band courses. As a location, the musical hall represents the pinky finger of the hand holding the fire.

The additional space roof is used for gathering events, and the pavilion is 11,000 square feet, with 3,000 square feet employed by the smaller spaces on the courtyard side.

Structural Axon

RECREATION CENTER

A sports center included an indoor multisport hall at the basement level, a gym area on the second floor, and a swimming pool on the far end of the pavilion, accessed by creating catwalks on the sides of the shell.

Smaller spaces are used for entertainment purposes like theatre events. These spaces are flexible and open to each other by having sliding doors in the shared partitions.

The pavilion is 20,000 square feet, with 5,000 squares used for the smaller courtyard spaces.

Structural Axon

EXHIBITION PAVILION

A series of showcase areas open to the main hall and are suspended in the shell’s center, providing a tour circulation from the ground floor to the third floor. The space can be used for large art events or a regular tour showcasing different works related to Kurdish artists and many others from other cultures.

Other spaces are used for teaching crafts and art-related materials, and they are flexible enough to be used for small art events for independent artists.

The main hall is 35,000 square feet with the basement for art storage and 6,000 square feet for smaller spaces regarding their position according to the shell side.

Structural Axon

EDUCATIONAL PAVILION

The educational pavilion provides a large auditorium for 500 people, which is used for conferences and cultural events. It expands on three floors with two primary lobbies: a public one on the market side and a private one for the auditorium users on the shell`s other end.

Many smaller spaces are used as classrooms for all ages, teaching the original language and the history of the Kurds, and they can be used as practice rooms for plays in both the outdoor theater and the auditorium.

The auditorium, along with service spaces, is 25,000 square feet and expands on three floors, and the classrooms and practice rooms are 4,000 square feet.

Structural Axon

The central kitchen provides various traditional foods related to Kurdish culture. It has one large hall spread over two floors with different seating types, such as breakfast, lunch, and dinner. The basement level is occupied by a loading deck and private parking for the building users. The additional spaces are meant to teach traditional food recipes and serve as faculty spaces for the building.

The main hall is 16,000 square feet, 3,000 square feet for additional spaces, and another 3,000 square feet for faculty rooms.

Structural Axon

MARKET ZONE /SOUQ/

This circulation zone is unique in many ways. One of the primary factors is the continuity it provides to the users, bringing people from the entry main lobby to the end of this market, retail, and shop line. Also, the Major pavilions’ entrance is oriented toward the market, so the experimental walk can be boosted by creating a geometric shape like the pavilion riverside made on the market side.

The retail shops are made for building production. All the pavilions have various functions, each producing artwork, musical instruments, traditional clothing, and educational books. This helps to create a village atmosphere where you can find almost everything related to the culture, and it is on one central axis.

As the axis separates the people who are using the souq from the users of the pavilion by having a ramped path in front of the shop, it creates collaborative gathering spaces that occur in front of each pavilion; those spaces are articulated in unique ways like the exhibition gathering space which oversees the back side of the outdoor stage and the public and musical hall are meant to be access points for the amphitheater users whether the educational and the recreation center has unique balcony space provides visual access to the top hill point.

The curved circulation brings attention to the importance of the top hill, which is the center that all the lines are pointed towards and competes with the idea of holding the fire in the palm on one hand; on the other hand, the curved arch center is located in a strategic place where the users can view the rest of the park which can be used and occupied by the public.

Courtyard View
Ampitheater View From the Balcony
Courtyard Gate View

PROJECT EXPERIENCE

The primary experience gained from such thesis was the importance of the users that affect the architectural decisions and how it can articulate the spaces according to the cultural representations, which influence many experimental people who like to review another culture from an architectural perspective, as the Kurds have a particular method of daily life and a rich arts and crafts it provides more opportunities to view it from different angles.

Projects like cultural centers create different atmospheres than other functional buildings, always reflecting the importance of users’ comfort in practicing their own habits without creating any uncomfortable spaces that might diminish the value of their functionality. Finally, this project has a special place in my heart since I am personally Kurdish.

For centuries, my people have missed the feeling of speaking their language or practicing traditional festivals freely, and that was a great motivation for me to bring back what is missing in such a beautiful culture.

BIBLIOGRAPHY

Bozarslan, H., Bozarslan, H., Bozarslan, H., James, B., Atmaca, M., Ates, S., Bajalan, D. R., Soleimani, K., Yadirgi, V., Yüksel, M., Garapon, B., Gunes, C., Bozarslan, H., Gurses, M., Ye en, M., Bayır, D., Stansfield, G., & Watts, N. F. (2021). The Cambridge History of the Kurds. Cambridge University Press eBooks. https://doi.org/10.1017/9781108623711.

Community Center of Baishadao Financial Town 2021 | URBANUS . (n.d.). http://www.urbanus.com.cn/ projects/community-center-of-baishadao-financial-town/?lang=en

Dag, V. (n.d.). How Kurdish diaspora groups are pushing for unity over their divided homeland. The Conversation. https://theconversation.com/how-kurdish-diaspora-groups-are-pushing-for-unity-over-their-dividedhomeland-130103

Galaxy SOHO | Zaha Hadid Architects - Arch2O.com. (2023, July 8). Arch2O.com. https://www.arch2o.com/ galaxy-soho-zaha-hadid-architects/

Griffiths, A., & Griffiths, A. (2022, December 9). Jean Nouvel unveils National Museum of Qatar in Doha. Dezeen. https://www.dezeen.com/2019/03/28/jean-nouvel-national-museum-qatar-cultural-architecture/

Gallery of Community Center of Fragrant Lake / line+ studio - 1. (n.d.). ArchDaily. https://www.archdaily. com/1003681/community-center-of-fragrant-lake-line-plus-studio/64a9e23c59211864a0d020d6-community-center-of-fragrant-lake-line-plus-studio-photo

TABLE OF CONTENTS

Page 06............................................................................Introdcution

16.....................................................................Project

28....................................................................Program

Knappert, J. (1993). THE KURDS: A BRIEF HISTORY. International Journal on World Peace, 10(2), 67–70. http://www.jstor.org/stable/20751890

Leezenberg, M. (2023). History, Culture and Politics of the Kurds: A short Overview. Kulturní Studia, 2023(1), 115–127. https://doi.org/10.7160/ks.2023.200105

Salah, R. (2023, December 26). Bat Trang Ceramic Community House | 1+1>2 Architects - Arch2O.com. Arch2O.com. https://www.arch2o.com/bat-trang-ceramic-community-house-112-architects/

Sattin, A. (2020, January 16). The Grand Egyptian Museum: everything we know, from the architecture to the Must-See Collections. Condé Nast Traveler. https://www.cntraveler.com/story/grand-egyptian-museum-cairo-everything-we-know

Learn about Kurdish culture | The Kurdish Project. (2016, August 2). The Kurdish Project. https://thekurdishproject.org/history-and-culture/kurdish-culture/ Tentech B.V. (2023, October 31). [:nl]Amphitheater | Tentech | Ontwerp en advies voor lichtgewicht bouwen[:]. Tentech. https://tentech.nl/en/textile-architecture/amphitheatre/ Team, D. (n.d.). Perth Modern School Auditorium. https://www.dcwc.com.au/projects/perth-modern-auditorium History of the Kurds – The Kurdistan Memory Programme. (n.d.). https://kurdistanmemoryprogramme.com/ history-of-the-kurds/

World Horticultural Expo Floriade 2012, Venlo by Arcadis. (n.d.). Landezine. https://landezine.com/world-horticultural-expo-floriade-2012-venlo-by-arcadis/ Welle, D. (2013, March 31). Kurds in Germany. dw.com. https://www.dw.com/en/welcome-to-the-kurdish-conflict-in-germany/a-16711363

Page 87...................................................................Schematic Design

Page 98.............................................................Design Development

Page 110.........................................................................Final Design Page 156.................................................................Project Experince

Turn static files into dynamic content formats.

Create a flipbook
Issuu converts static files into: digital portfolios, online yearbooks, online catalogs, digital photo albums and more. Sign up and create your flipbook.