ARCH 214 ARCHITECTURAL DESIGN CORE STUDIO IV
SPRING 2024
architecture / design
![]()
architecture / design
avery bennett
selected works 2023-2024

01 02 03 labyrinthine as above, so below site analysis 04 the confluence




labyrinthine spring 2024
“designing a space for sleeping, and exploring the connection of physical and mental realms.”
exploring the concept of sleepwalking as a navigation of a labyrinth, reality begins to blur and perceptions intertwine. the twisting stairways and intersecting pathways symbolize the journey of the psyche, with the shelter’s center representing the midway point between enlightenment and darkness. the ascent towards enlightenment is portrayed as perilous yet enlightening, while the descent into darkness offers solace amidst the chaos.











as above, so below spring 2024
“creating a duplex tailored to accommodate two clients with distinct professional backgrounds.”
the microbiologist and an astronomer, professions that explore vastly different realms yet share intriguing parallels in their approaches to understanding the universe. the microbiologist’s realm, showcases the scientist’s fascination with the microscopic world. the astronomer’s realm is grand, resembling crossing earth’s boundaries into space.

























microbiologist


site analysis
spring 2024
“studying the existing context surrounding new orleans to illustrate opportunities and constraints.”
new orleans boasts a vibrant culture and rich history, attracting millions of visitors with its renowned cuisine, music, and festivals. the city faces challenges due to its susceptibility to natural disasters, aging infrastructure, and persistent greenery disparities. addressing these issues while preserving its identity is essential for the city’s long-term resilience and prosperity.












the confluence spring 2024
“developing urban strategies and housing types to accomodate a multigenerational population.”
a multigenerational housing community in new orleans designed to foster community by embracing cluster housing to promote connections among residents. the architecture seamlessly integrates with the natural environment, employing eco-friendly and green materials, offering a mix of private sanctuaries and communal gathering spaces.

























Professor: Olga Mesa
ARCH 214 Architectural Design Core Studio IV
Spring / 2024
Sleep powers invisible strength within us. With it, we center energy and reboot for the coming day. Without it, we scatter and deplete energy, fragment physical and mental ability, and eventually cannot survive. This design itself was inspired by tree base cavities from above ground root systems, which are open to sunlight yet often have a deeper and darker space inside them.
My project gives patients who struggle with Alzheimer’s a place to sleep that is quiet and nurturing. Alzheimer’s patients often go through a period of agitation, disorientation, and added confusion as the sun goes down — a symptom known as “sundowning.” It is only after a good rest and the sun rises again that the sundowning symptoms subside and the patient returns to a calmer state. By eliminating the transition from day to night, my proposal reduces the impact of sundowning, helping those with Alzheimer’s be more comfortable and less disoriented. Alzheimer’s patients need plenty of deep sleep during the night, and frequent naps during the day to help decrease the symptoms of sun-downing.
In addition to sleep, Alzheimer’s patients need to be closely looked after. The role of the caregiver is to keep the patient safe and aid them with their daily tasks. With this in mind, windows offer a way for caregivers to check-in on the patient without disrupting their sleep. This design helps address the unique sleep needs of an Alzheimer’s patient with a sunlit day-time space, a sensory stimulation-free sleeping space, and a way to eliminate “sundowning” with access for caregivers to look after them.

















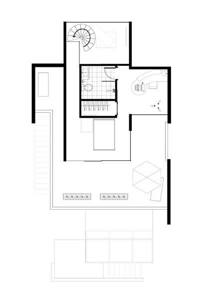
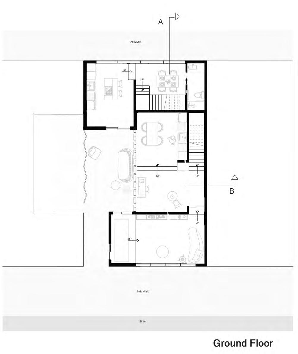
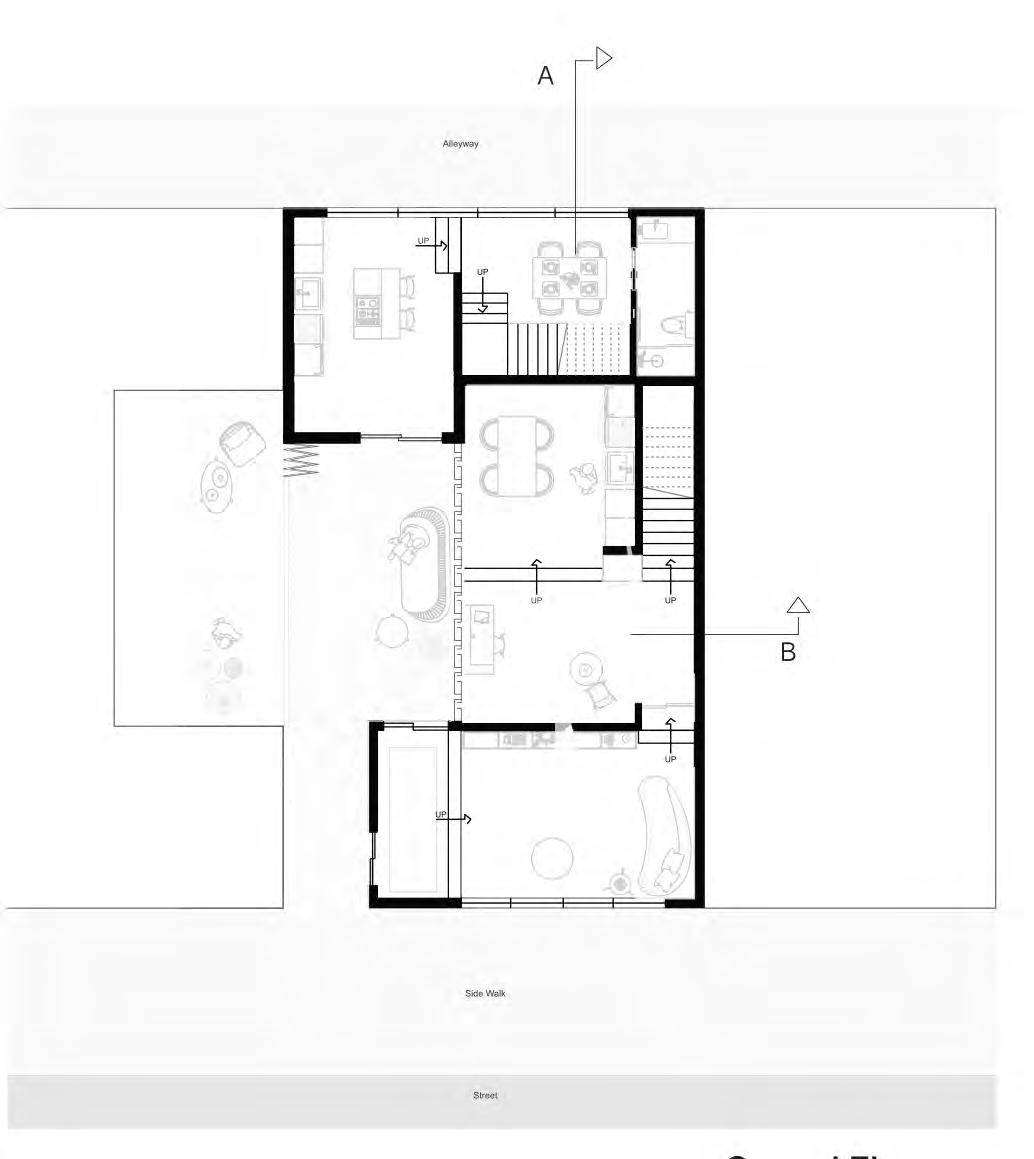
High above the earth, where the open skies meet the shifting lines of the horizon, soars the pilot. Theirs is a world of altitude and velocity, where every flight is a dance with the winds, a symphony of calculated movements and instinctive responses. In the cockpit, the pilot finds solace in the boundless expanse of the heavens.
On the other end of the spectrum lies the ceramicist, immersed in the elemental dance of clay and fire. In the quiet confines of the studio, hands play with malleable earth, shaping it into objects of beauty and purpose. Each piece is a testament to the alchemy of earth and water, form and function.
This duplex mirrors these two worlds through a series of interconnected levels and volumes, facilitating an experience that plays on the celestial and terrestrial realms.
The ceramicist’s public gallery and private studio are nestled on the ground floor, firmly rooted in the earth, while the pilot’s office occupies the highest perch of the duplex overlooking the residence and offering a vista of the city skyline. From their respective vantage points, both occupants are granted a unique perspective, allowing them to engage with their surroundings while remaining grounded in their craft and profession.
Each level seamlessly transitions into the next, fostering a harmonious interplay of space and light throughout the dwelling. Through a series of designed stairs, volumes and channeled glass windows, the house allows one to experience the essence of their entire dwelling from a single room. This approach fosters a sense of



Site Model
(with and without proposed building)




Conceptual Strategy Models
Stacked floors, Volumes & Levels


Both (but mostly for ceramacist as outdoor gallery space





























Sectionals
*Please note that the model was made to the scale of the floor material and that due to this, the model is slightly larger than 1/4 scale. The scale figures are at 1/4 scale, thus they are a little small - perhaps they are children?!
Rising tall above the urban landscape, “Avant Garden” is a multigenerational apartment complex that invites the community in through a series of avant-garde steps and spaces. With a focus on sustainable, organic living, the residents of this apartment complex come together to celebrate wellness and life through shared residential communal spaces such as gardens (both indoor and outdoor), communal kitchens and dining spaces, meditation rooms and lounges. The ground floor hosts a co-op market for local businesses, a coffee bar and a yoga studio. Upon entering the complex, visitors are immediately drawn to the central courtyard; the heart of the complex. It’s a gathering place where neighbors and the public come together to cultivate friendships and enhance wellness.







Axonometric Massing Drawings Showing Conceptual Architectural Strategy




Conceptual Strategy Models
Courtyards, double height space & irregular curves
Site Plan
1/32” = 1’ scale
Floor Plan



Second Floor Plan
1/8” = 1’ Scale
Third Floor Plan
1/8” = 1’ Scale
Fourth Floor Plan
1/8” = 1’ Scale
Fifth Floor Plan
1/8” = 1’ Scale
Sixth Floor Plan 1/8” = 1’ Scale




Unit Type II Floor Plan (ADA)
Multi-Generational Unit Floor Plan









































Professor: Karen Hughes
ARCH 214 Architectural Design Core Studio IV
February 14 / 2024
“Sometimes at night I would sleep open-eyed underneath a sky dripping with stars. I was alive then.”
-Albert Camus
A few years ago I had the opportunity to work and live on a triple masted tall ship. The experience was formative in many ways, but one image that remains vivid in my mind is that of the night sky. I held the 0000-0600 and 12001800 watches where I spent the nocturnal hours under a sky filled with stars, so abundant, the milky way evidently striped through the sky above. It was clear to me then of the true infinency of our universe. The sleeping shelter is in the ocean to provide an unobstructed view of the night sky as the occupant can “raise the halyard” to open the sleeping chamber up and connect one with the night sky and the feeling of being “alive”. The structure remains stationary whereas the tides rise and fall. From the shore, one can tell the tides based on the docks position in relation to the structure and on the inside of the sleeping chamber, one can feel and hear the water levels which encompass the room. Therefore, the sleeping shelter acts as a vessel between seeing the tides and experiencing them.













The librarian and the horticulturist’s relationship can be described through Raphaels, School of Athens in which Plato and Aristotle stand at the center of. Plato points up at the sky, inferring that he is satiated by the theoretical and contemplative realm whereas Aristotle points down as he is more concerned with the literal and experiential. With that, a librarian is generally more inward thinking, as they spend a lot of time involved in the theoretical where a horticulturist is generally more outward looking, as they work with their hands, and dealing with the physical. In form, there is a void in both structures, the librarian’s attention is focused inwardly to their void which is the staircase whereas the horticulturist’s attention is always outward looking, out into their void which is an exterior garden. The librarian circulates in their void, where you can see up and down to all floors of the tower where the horticulturist circulates around their void, looking into their garden. The librarian’s home extends out of the horticulturist’s home as they physically ascend up into the sky, or the “heavens”. The volume of the tower can be felt within the horticulturist’s place as the tower drops the regular ceiling height down, reinforcing its permanence, like that of knowledge. The horticulturist’s home hugs the ground, supporting their understanding of life through the physical.




Conceptual Diagrams


Conceptual Diagrams

Conceptual Diagrams





Conceptual Strategy Model 1



Conceptual Strategy Model 2




Conceptual Strategy Model 3















● Incorporated as a city in 1837
● Important keystone to American Western expansion, trading possibilities
● Chicago Fire of 1871, city banned construction of wooden buildings
-Lead to “The Loop”
-Main commercial area
-Chicago Fire + Industrial Revolution + rise in land price= first skyscrapers!
● Early skyscrapers




Auditorium Building, Sullivan, 1889 Marquette building, Fuller, 1895

Fisher Building, Burnham, 1896












Chicago
● Overall population of 2,665,064
● 1,159,424 occupied housing units (91.84%)
● 581,013 family households (50%)
● Average Household Income - $104,223
● Median House Value - $313,300
● 520,324 ages 18 and under (19.52%)
● 1,763,874 ages 18 to 64 (66.19%)
● 380,866 ages 65 and up (14.29%)
● 47,694 live in group quarters (1.79%)
● 1,103,628 15 or older never married (49.38%)
● 789,111 15 or older now married (35.31%)




Chicago City Central (6.17 square miles)
● Overall population of 185,420
● 113,509 occupied housing units (90%)
● 34,679 family households (30.55%)
● Average Household Income - $151,695
● Median House Value - $492,400
● 14,953 ages 18 and under (8.06%)
● 141,970 ages 18 to 64 (76.56%)
● 28,497 ages 65 and up (15.37%)
● 5,584 live in group quarters (3.01%)
● 90,564 15 or older never married (52.69%)
● 63,310 15 or older now married (36.83%)






● Block Group 1 saw 100 violent and property crimes reported in 2022
● Block Group 1 saw 70 violent and property crimes reported in 2021










●High-rise housing project constructed in 1947- housed up to 15,000 people

●Was originally created to house war workers then developed to house primarily low income families
●Created a dense poverty zone
●Socially isolating, lack of communal spaces
●Was named Chicago's most dangerous neighborhood
●Poor planning, poor management and gang violence caused it to be demolished in 2000

●Result of its failure was the demise of high-rise public housing in the city


●In 1832, CharlesTaylor purchased 80 acres of land now known as Goose Island for $100.
●Became a major industrial zone from 1875 and beyond
●Chicago's prime position for trade made it also a great spot for production

●Many Italian Immigrants came to work on the island mainly in steel production, gave it the name “Little Sicily”
●Later coined as "Little Hell," as Peoples Gas Company as well as the Coke Company plant released their emissions
●Great depression halted expansion of Goose Island as an industrial zone
●As a result, may companies left Goose Island, leaving it primarily unused today


“What was once an industrial hub is quickly transforming into a manufacturing and technology hub for the city.”

● Real Estate Development Firm R2 Companies and Urban Planning Group PORT Urbanism have joined forces to devise a plan for its renewal.
● R2 and PORT have devised innovative circulatory and infrastructural pathways.These pathways aim to make Goose Island an attractive destination for individuals and businesses.
● Proposed additions include pedestrian and vehicular bridges, train and water-taxi stops.
● The North Branch River Canal would be transformed into a water garden.
● This transformation would allow kayakers to safely explore part of Chicago.
● It would also provide an attractive recreation and exercise area for bicyclists.

● Objective: Reverse the fortunes of Goose Island by transforming it into a sustainable, high-tech neighborhood connected to Chicago’s urban grid.
● R2 Companies and PORT Urbanism collaborative plan aims to renew Goose Island by 2025










Significant Views









9 am



12 pm



3 pm





Winter Spring Summer Fall












● Chicago is known for its extreme range in temperatures
● When temperatures reach 55 or below, heating and wind protection methods are necessary
● When temperatures reach 75 or above, cooling, shading and natural ventilation methods are necessary
● On site, a central, protected, courtyard would provide sufficient protection from weather
● Building should use passive heating and cooling methods when necessary






Site
Public Parks
Private Parks





















































































Some design strategies to be considered for the site that would be beneficial
Cross ventilation, placing openings like windows or vents, promotes natural airflow, regulating indoor temperature and removing stale air, and enhancing overall air quality.
Building materials serve not only aesthetic purposes but also function as sustainable tools, considering factors such as durability, thermal performance, environmental impact, and cost-effectiveness.
Roofing and shading can serve as shading devices to regulate sunlight, heat gain, and natural light within a building, this creates thermal comfort, and reduces energy consumption for cooling. This reduces environmental impact and costs
Solar lighting, utilizing sunlight through skylights, large windows, lowers energy use and electricity costs. Building orientation, focusing on how a building aligns with the sun and wind, allows for natural light to be used as heating cooling.

Pre Final Submission
Indoor Ramp Documentation
The ramp inside of the rec center does not meet ADA as for one foot gained there is only 9.4 feet of run.
1- Handrails meet code as they are at the appropriate height and are on both sides
2- The center of the ramp being flat meets code (every 30’ travelled there must be a flat area)
3- The ramp angle does not meet code making it difficult for handicap users to maneuver.
In conclusion, the ramp currently doesn’t serve the function it is intended for due to ADA guidlines.





Billiards Documentation
It was made evident through the workshop that playing pool is not easily accessible.
1- Due to the low under table height being 22”, a person in a wheel chair would be unable to position their legs below the table. This makes it so people in a wheelchair have to play angled sideways.
2- Due to the forced position of the wheelchair, the applicant can’t comfortably reacch the center of the table making it difficult if the whiteball needed to be moved during game play.
3- There is enough room to circulate the table to play.
In conclusion, you can play pool if in a wheel chair, just not all game play is independent/comfortable.





people w/ shared kitch.
1-2 people w/ children