Meghan Rodenhiser - Integrated Project Design Studio FA20

Page 1


MEGHAN E. RODENHISER
ROBERTO VIOLA OCHOA
ARCH 513 INTEGRATED PROJECT DESIGN

TABLE OF CONTENTS:

SITE & CONTEXT

REGIONAL CITY SITE

BUILDING NARRATIVE TECHNICAL RESEARCH

CODE

STRUCTURAL

ENVELOPE

MECHANICAL

APPENDICES

SCHEMATIC DESIGN SET

ADDITIONAL RESEARCH

PRELIMINARY STUDIES

As the ancient and modern seat of power in the Mediterranean, the city of Rome has a rich and diverse history spanning millennia. Traces of this deep rooted history are visible today through the city’s multitude of monuments, piazzas, urban systems, and architecture. It is impossible to design in a city such as this without understanding the context in which the city has developed and grown.

This research looks beyond aesthetics and design and seeks to understand how factors such as climate, geography, history, and politics shaped both the architecture and the urban fabric surrounding the city and the site. This analysis will help to inform our design and allow us to create a building that is truly connected and integrated into the urban fabric of the area.

ROME, ITALY

The country of Italy is located on a boot-shaped peninsula in the middle of the Mediterranean Sea. The mountainous peninsula is divided down the center by the Apennine Mountain Range and protected in the north by the Alps. The rivers flowing from these mountain ranges into the valleys below created areas that were ideal for early settlements. Today’s major cities across Italy, such as Milan, Venice, and Florence, grew from early settlements located along these rivers. Today as in ancient times, roads and various modern means of transportation connect these major cities creating a network through which people, ideas, and goods can travel and spread. These cities established unique cultures that formed the various regions of Italy.

Rome is located in the region of Lazio bounded to the East by the Apennine Mountains and to the West by the Tyrrhenian Sea. Even though Lazio has the capital of Italy within it, the region is predominantly agricultural, producing goods such as olives, wine grapes and kiwi. This is due to the area’s Mediterranean climate, consisting of moderate winters and warm/humid summers.

Rome, like many other major cities in Italy, was settled around the Tiber River. The river provided the city not only protection from invaders but a means of transportation for goods and people, creating the basis for their economy. The early settlement was located close to the banks of the Tiber river. The river was constantly flooding yet the Romans did not see this as a problem, they celebrated the floods because they understood what the river provided for the settlement. In fact, they created plaques for buildings that survived the flooding. After a while flooding became too much for the city and they constructed walls in order to keep the floods at bay. This ultimately cut all ties to the river for the citizens of Rome.

As the city grew people began to fill in the low lying areas in between the 7 hills. These hills acted as the first boundary of Rome with vineyards on the outskirts and Palatine Hill serving as the city center for the area’s scattered inhabitants.

According to ancient Roman Myths, the city of Rome, first known as the Eternal City, was founded on the banks of the Tiber where the twins Romulus and Remus were found by a she-wolf. In reality, Rome was formed around 750 BC when scattered settlements around the Seven Hills of Rome came together. Palatine hill served as the city center where inhabitants created markets, temples, and other civic buildings, turning the water-logged valley into a city. As the city continued to grow, the Romans began to engineer paved roads, reaching in all directions towards far away settlements and lands. The roads allowed merchants and armies to quickly move between cultural and civic centers across the peninsula, elevating Rome’s status as a military power and transportation hub.

As Rome continued to grow and prosper, as both a military and economic power, the city became subject to outside attacks and invasions. In order for the city to protect itself and its people, Rome invested heavily in its military and constructed walls as a defensive border around the city. The first set of walls, known as the Servian Wall were constructed in the fourth century BC. Over the next six centuries, the city outgrew the limits of the Servian Wall, rendering the wall useless. The city then constructed the new Aurelian Wall in the late third century AD Which encompassed an area almost three times the size of the previous city limits. Within the new walls, the city was divided into 14 districts called the Rioni.

From the third century AD through the medieval era, the urban fabric of Rome remained largely unchanged. The ancient Roman systems, temples, and structures fell into disrepair after the Fall of the Roman Empire. It wasn’t until the eighth century that the papacy came into power. For nearly a milenia, the Pope was the primary religious and civic leader of Rome, responsible for all urban reconstruction projects throughout the city. The largest of these projects happened during the 16th century when for nearly 50 years, several popes, including Pius IV, Pius V and Sixtus V, sought to restore the city of Rome and improve the urban fabric. They ordered ancient roman aqueducts be restored, roads widened and paved, and public fountains to be installed in piazzas across the city. Pope Sixtus V conceived of a new system of roads that would cut across the existing medieval fabric, connecting major monuments and landmarks around Rome. Many of these roads are still in existence today.

After Italy became a unified country in 1861, roughly 300 years after Pope Sixtus V carved new roads through the city, Rome underwent another transformation. The city was named the capital of the new nation, however it’s infrastructure was insufficient to handle the influx of new residents. There was no sewer system, poor circulation, and a lack of housing. Between 1873 and the 1910s, the city completed several master plans which outlined new neighborhoods, a number of which were brought to fruition.

ROME TRANSPORTATION

The roads created by Pope Sixtus V are still used today as the primary routes throughout Rome, giving way to nearly every neighborhood while also allowing travel out of the city. Rome has always been a transportation hub for Italy. The main train station, Roma Termini, is located in the midst of the city, creating a landmark for what the city stands for and how it has developed over the years. Almost every neighborhood within Rome has a major landmark that begins to make up the layout of that particular area. These landmarks also help to give Rome its identity,

Highways Throughout Rome
Railway’s Throughout Rome
Trervi Fountain
Roman Forum
Spanish Steps
Vatican
Villa Giulia
Baths of Caracalla
Colosseum
St. Mary of Angels Martyrs
Pantheon 10. Piazza Navona
Porta Pinciana 12. Basilica Di Santa Maria Maggiore
Esquilino
S.Saba
S.Angelo
S.Eustachio
Castro Pretorio
Sallustiano
Ludovisi
Colonna
Campo Marzo
Pincino Olympic Village
Flaminio
Della Vittoria

Today, Rome spans far beyond the Aurelian Wall and the original 14 Roni. With close to three millennia of growth and history it is not surprising that the urban structure varies between neighborhoods. In the old neighborhoods of Rome, such as Ponte, located within the borders of the Aurelian wall, the streets are extremely narrow and laid out haphazardly, with no discernible pattern. The buildings are unusually shaped and densely packed into the irregular blocks. As is typical with the vernacular architecture of the area, the buildings in this neighborhood are stone structures, rising multiple stories tall with minimal footprints.

Neighborhoods that were planned after the unification of Italy, such as Prati and Della Vittoria are much more formal than the older neighborhoods. Unlike Ponte, the Della Vittoria neighborhood is designed in a radial pattern, centered around a piazza. The main streets were designed much wider to accommodate the circulation of traffic (and later automobiles) with banks of trees lining the streets. The architecture, while constructed in a similar manner to the older areas of Rome, is more formal, taking on the characteristics of the neoclassical style. The blocks are taken up almost entirely by large buildings with central courtyards, as opposed to the random collection of buildings in the historic center. The main difference between Della Vittoria and Prati is that the latter was laid out in a grid pattern as opposed to a radial plan. Both neighborhoods are reminiscent of Hussman’s design for Paris.

The neighborhoods planned in the beginning of the twentieth century, such as Pinciano, are laid out in the romantic/ picturesque style. The streets in these neighborhoods are wide, curving roads that were designed for automobile traffic and inspired by the rural movement occurring around the world during this period in time. The buildings are multistory apartments that utilize concrete as opposed to the traditional stone construction. Unlike other neighborhoods in Rome, the buildings in areas such as Pinciano are not densely packed, instead they are detached from the other buildings.

Ponte
Della Vittoria
Prati
Pinciano

The weather that Rome experiences throughout the year is very mild with summer highs of 80-90 degrees and winters that get down to around 40 degrees. This type of weather leaves Rome with four seasons, Spring, Summer, Fall and Winter. Each of these seasons bring different environmental conditions for the city. All the conditions are generally more mild allowing the architecture within Rome to use specific design elements such as a patio and thinner buildings to help with combating the varying weather conditions. The geographical location puts it under the CSA, Mediterranean Climate, on the Koppen Climate Classification Chart. This classification just means that Rome is susceptible to more dry summer’s and wetter winter’s. With the location near the water the humidity within Rome tends to be higher. This is also something to take into consideration when looking at the architecture and how they begin to combat the weather.

It is also important to look into the humidity and the varying weather it is also important to note the movement of air within the city. The wind speed in Rome ranges from a light to gentle breeze according to the Beaufort Scale. What this means for Rome is leaves and twigs will move and there will be a slight rustle of leaves throughout the year. With this slight breeze being nearly year round, the city is able to use differing types of architectural elements such as window placements to help circulate air through the use of patio design.

VERNACULAR ARCHITECTURE

Vernacular architecture is designed to respond to the local needs of the people and the climate. The climate in Italy, particularly Rome, is hot and humid, especially during the summer months. One way in which the local architecture combats this is by constructing buildings out of stone. The thick stone walls absorb the sun’s energy during the day, keeping the interior of the buildings at a comfortable temperature, and release the stored heat at night when the temperature drops. For this reason, Italians have been constructing their buildings out of stone for centuries. Modern buildings use this same principle however instead of using stone, they use concrete.

KOPPEN CLIMATE CLASSIFICATION CHART WEATHER IN ROME

Another traditional material used in Italian vernacular architecture is the iconic clay tile. Clay tile roofs are incredibly durable, capable of lasting for over three hundred years. They are also naturally thermal resistant, meaning that they reflect the heat of the sun during the day, preventing the interior of the building from heating up. The way they are configured also adds to their thermal resistance. In the area around Rome, clay roofs use a series of interlocked half round tiles; two on the top and one on the bottom. This configuration allows for a natural air barrier, reducing the amount of heat transferred into the building.

Another common, yet simple device used to combat the climate in the region is shutters. In Rome, operable shutters are not only used to prevent water from entering the building, but to control the amount of sun as well. On a warm day, shutters can be closed to filter the amount of light coming into the space, preventing the air from heating up.

The way the structures are configured also helps to combat the heat. Many buildings in Rome either have thin profiles or have a courtyard at the center. These building configurations allow for increased cross ventilation through the structure, cooling the space without the need for A/C. Courtyard buildings, or buildings arranged along a narrow street also enjoy the benefits of the “courtyard effect”. During the day, the sun heats the air in the courtyard or narrow street.

The warm air rises, causing the cooler air in the interior of the building to rush out, creating a cooling effect. When night falls, and the temperatures drop, the cool air then drops into the courtyard, causing the airflow to move in the opposite direction.

NEIGHBORHOOD

The project is located at the edge of two neighborhoods in Rome, the Flaminio neighborhood and the Pinciano neighborhood. The Flaminio neighborhood is named for the Via Flaminia which marks the eastern edge of the area. For centuries, the land along the Via Flaminia was made up of vineyards and farmland. At the turn of the century, after the unification of Italy, the area was laid out and developed as an industrial district just outside of the historic center. The major business in the area was related to the automobile industry until WWI when the plants were converted into weapons manufacturing plants. In recent years, the neighborhood has undergone another transformation, shifting from a center of industry to a center for the arts. Today the area is home to cultural institutions such as the MAXXI museum, Auditorium Parco della Musica, and the Accademia Filarmonica Romana. The accademia is an institution that has been in the area for over a century, bringing together amateurs and professional musicians through their shared love of music.

Places Along / Near Via Flaminia

CULTURE

Since Rome has been around for centuries it has a very rich culture. THe culture within Rome has changed from century to century and that is seen through how the different neighborhoods have changed. This specific neighborhood along via flaminia has a very interesting culture. Along one side of the street there are what would consist of typical Roman vernacular architecture and what one would think of when they think of coming to the city. While on the other side of the road it is more industrial with a rich street art culture. This street also has a very popular market that became a stop along the road. This market begins to bring a different feel for the space. As of right now the side of the street that is more industrial is full of one story buildings that are either boarded up or worn down. There are also advertisements stuck to the front of the facades. This is adding to the idea of street art and the street as a way to advertise within this area. Another thing to note about the culture is the tram system with these wires that hang above the street. These begin to establish a height over the street almost as if it is its own space. This condition is not specific to this area, it is a system used all throughout the city. The neighborhood is not full of color, the streets seem almost as if they were monochrome. The vibrance within the city comes from the gardens. This creates an interesting vegetation condition for the area.

The Accademia Filarmonica Romana is located in an incredibly unique part of Rome. The site sits along the Via Flaminia, less than a half mile from the Porta Flaminia, the Aurelian Wall, and Piazza del Popolo. In ancient times, the Via Flaminia was one of the most important roads in Rome, stretching from Piazza Colonna in Rome to Rimini. The route was not only important for trade with cities north of Rome, but also for military campaigns and expansion. Throughout the Roman Empire, emperors, military leaders, and wealthy citizens, took exceptional interest in the road, building temples, bridges, and even tombs at the edge of the street. To have a tomb on the street was considered a high honor.

The Via Flaminia retained its importance well into the Renaissance. When dignitaries or nobility visited Rome from the north, they would travel along the Via Flaminia and ceremoniously enter through the Porta Flaminia (Porta Del Popolo). As visitors would often stay the night just outside the gate, the area was the ideal place to build papal villas such as Villa Giulia and eventually Villa Borghese. In the sixteenth century, the area just outside the gate consisted mainly of vineyards and farms owned by wealthy citizens. It was not until Italy was unified in the mid nineteenth century that the area was developed into neighborhoods and middle class housing. The site sits between two of these neighborhoods, Pinciano to the west, which encompasses Villa Giulia and Villa Borghese, and Flaminio to the east, which was named for the ancient road.

Summers in Rome consist of consistent 80 degree weather paired with little to no rain. Though there is little to no rain because of the geographical location of Rome the summers are extremely humid. The site that we are looking at will have direct sun at almost all hours, this means we need to take this into consideration when looking at how to approach the site. The sun at its highest point will be hitting the front facade, there will be no relief from the direct beams other than if it is more cloudy.

Though the site is generally more vulnerable to the sun, luckily Rome tends to have a slight breeze at all times. The wind direction in the summer predominately comes from the West. Taking advantage of this breeze could be helpful when creating airflow within the site.

Architectural solutions to these conditions would be looking at finding a material that can be heated up from the sun throughout the day and used for heat at night when the temperatures begin to drop. As for the wind, window placement and thinking about having a patio for air to flow throughout the space cooling it naturally.

WINTERS IN ROME

The winter season for Rome consists of rain and stronger winds, combined with temperatures that get down to 40 degrees. Just as in the summer there will be solar gains for the site with the sunrising southeast of the site and setting in the southwest.

Through the winter season the wind predominantly comes from the East. This brings an interesting condition to the site of understanding how the hill along the back of the site begins to move the air. There will be cover from the wind and it will be broken up by the vegetation around the site.

The conditions that are currently around the site have are more focused on patio buildings, also their materiality. This area is protected by the vegetation that is within the area. Architectural solutions and thinking about the approach to the site should be more focused on how to use the sun and its orientation and how to protect the courtyard condition that is being created by the existing buildings on the site.

The vegetation that is more local to our site consists of Cypress and Stone Pine trees. These trees like many others around the area were planted in place of the native vegetation. When looking at the site these will be the trees that line the street in front of the site, Via Flaminia. The trees within the site, like the architecture, help to control the wind that enters these spaces, especially in the winter. Since the Cypress and Stone Pine trees categorize as evergreens their leaves sprout and stay around yearly, but the Mulberry trees being deciduous the leaves fall around the winter time. Around the year our site is protected by the vegetation that emcompasses it.

SITE CONTEXT / CONDITIONS

The Accademia Filarmonia Romana is located along the edge of Villa Giulia. This leaves the site with an interesting topographic condition. The site is mostly flat but at the back of the site there is about an 80’ hill, leading to the gardens of Villa Giulia. This hill begins to create a border between the Accademia and Villa Giulia. Giving the feeling of disconnect, even though the site used to be used as farmland for the vineyards.

It is worth noting that this site is surrounded by local shops and restaurants and also has a bus stop just down the road at Del Popolo, this will give the site a very active street life. Another thing when looking deeper into the context where the site is, the street art culture that is prevalent. There are also advertisements placed along the facade of the building. One half of the street seems more worn down while the other half seems as if it is a completely different vernacular of architecture.

As of right now the layout of the buildings that the accademia uses create a courtyard space which they use for performance and such. Also across the street there is an open space with parking, this could be used as access to the site. The site is roughly 163’ by 300’ ; these dimensions are a rough estimate around the site to understand scale and the area that we will be dealing with. This does not include touching the already existing accademia buildings.

VEGETATION ON SITE

The vegetation around our site is very dense, there are a lot of stone pine trees, palm trees and bamboo stocks. Yes, bamboo. They are used as a means of creating a wall for the outdoor performance space to feel as if it is its own room. There are also little flowers throughout the site. Helping to give this space a feel for what a roman garden would be like. The vegetation within this site provides the academia with the perfect set up for outdoor performances.

ACCADEMIA FILARMONICA ROMANA

The Accademia Filarmonica Romana is one of the oldest musical institutions in Italy. This institution was founded in 1821 in the spirit of amateurism. People who received a great musical preparation only for them to play in their living rooms. It was founded by nobles and wealthy bourgeois who were led by Marquis Raffaele Muti Papazzuri. All of these amatuer singers and instrumentalists used this space to put on performances that showcase their talent. After about 3 years the academia received recognition from the Papal state, this led them to change their agreement between private individuals so they could stay a part of the cultural life in Rome.

In 1870 the Papal government ordered a reauthorization of the filarmonica, changing their outlook to not be focused on amateurism but rather a more professional institution. With this change the enthusiasm of amatures was only a memory and they began to lack on their financial means.

This particular building along via flaminia is used as an administrative headquarters. This is because of the growth of academia. They were able to purchase a theater in the Olympic village which is north of the headquarters.

The Accademia Filarmonica Romana the years of the filarmonicas life have been filled with troubles but it has broadened the musical activity and understanding within the accademia, these changes are associated with what was happening in the city at that time.

This is a place that holds a lot of history along via flaminia and within the musical community. The accademia not only does performances in theaters but they also do them in the garden that is just behind the building. The layout of the accademia has created almost a courtyard condition for the institution to be able to put on concerts and great an outdoor experience.

This project is an “addition” to the Accademia Filarmonica Romana. We will be using the unused space by the institution to give more space to the accademia. The location of this site is in between the existing Accademia Filarmonica Romana and one story industrial buildings. Across the street there is a garden which creates an interesting condition for when looking into how to deal with climatic issues.

The main way to access the site would be from Via Flaminia, which is one of the main roads within Rome. This street has vehicle access while also having a tram that runs along the street. The train station for people to travel that way is down the road by Piazza Del Popolo. Pedestrians are able to walk up next to the building but this road within Rome is mostly vehicular based rather than being for pedestrians.

This site is within an industrial area within Rome that could be developed soon. Taking this into consideration when looking at not focusing too much on the buildings to the south for this reason. These buildings could and probably will change over time which will change how the building receives the sun from the south and the site will be more shaded then it is as of now.

The other site condition that should be noted is how the buildings look architecturally. Being that the neighborhood they were built in was built in the 18th century it is important to look into how they used design and materials to uphold the test of time and weather.

The site is bound to the North by an 80’ hill filled with vegetation. This hill creates a barrier between our site and Villa Guilia. This hill creates multiple conditions when thinking about the climate by also how the site could be used. Is there a way to use the hill to create an interesting spatial condition? The hill becomes an identity for the site giving it a backdrop that the Accademia puts to use. The importance of the hill and the spaces it creates for the accademia seems important to how they function within the space.

2

BUILDING NARRATIVE

Given the knowledge of the region, city, and site acquired through extensive research, it becomes the challenge of the designer to decide how to best shape the project. How does one relate the architecture to the place, context, and site? What character and identity is being expressed through the design? What is the best approach to the organization of the site and the spaces within the project. How do the materials and tectonics of the building enhance the character of the project? How does the design respond to the climate and site conditions?

By considering and exploring these questions, a set of princples and site intentions emerge that help to guide the project through all phases of the design, from the conceptual to the technical.

Throughout Rome, there is a set of relationships between public vs. private, street and site, interior vs. exterior that most buildings adhere to. The public area of the street is defined by the massive facades that protect the interior of the building from the world outside. It is very clear where the public space ends and the private space begins. This scheme asks the question what if this was not the case? What if the public space extended beyond the street? How can this be achieved without ignoring the relationship between street and site?

Often along Italian streets, loggia’s are used as transitional spaces between the public and private realms. They allow for the creation of a barrier without shutting out the public. Instead of thinking as the loggia as a series of columns and arches, the loggia at the edge of the site is made of a series of parallel walls extending into the site. As one approaches the site the walls create the illusion of a closed, solid façade, maintaining the relationship to the street. it is only as one passes in front of the loggia that the walls open up revealing the site beyond. The extended walls of the loggia frame ones few of the garden and the buildings beyond allowing the public to visually interact with the site. The perspective quality of the loggia lining up with the parallel buildings beyond entices visitors to be pulled through the site, where they can appreciate the gardens and the artists at work.

The central pathway between the two buildings was inspired by the feeling of walking through the old streets of Rome. Life happens between the buildings and in the streets in Italy. One walks by store fronts, restaurants, and shops and there is an opportunity to interact with the people around you. The pathway between the buildings becomes the main circulation space for both the public and the artists. Instead of an imposing façade separating the interior of the buildings from the exterior of the building, the façade becomes permeable, through the use of a double wall system. The interior wall is made of glass while the exterior wall is composed of a brick screen. This screen allows the sounds of music, dancing, and performances to move flow out towards the public, creating a sensory experience for those moving between the buildings, while providing a sense of privacy and protection from the sun at the interior.

Just as with the loggia, and the screened walls, the design of the landscape plays off of the idea of conceal and reveal. Reminicant of moving through the Villa Giula, it is not until one moves through the the site that they discover the changes in the landscape that create sunken spaces where exterior performance and gathering can take place.

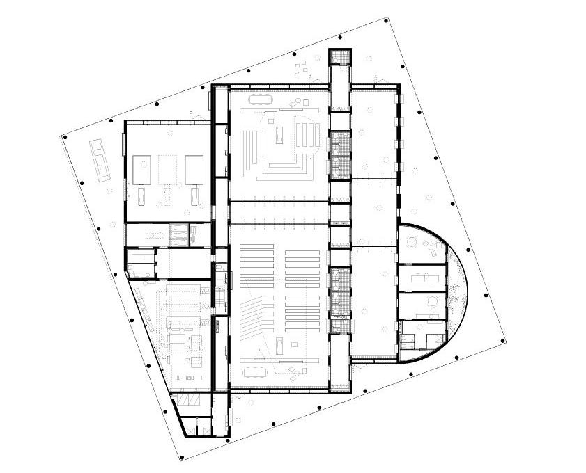
BAGSVAERD CHURCH

LOCATION: BAGSVAERD, DENMARK

BUILT: 1976

ARCHITECT: JORN UTZON

Bagsvaerd Church has a long, slender, rectangular form, arranged along a grid, which encompasses the entire program. The corridors, which serve as the primary circulation space, run along the exterior walls, creating the façades, and divide the building into distinct programmatic zones, ranging from public to private. On one side of the building, the exterior wall is completely closed off, protecting the spaces within from the outside world. On the other side of the building, the exterior walls have been punctured and eroded, allowing people to access the interior courtyards located in each section of the building. These courtyards serve as secondary circulation spaces. Though the exterior walls hide the true form of the spaces within the building, they do express the hierarchy of the spaces through height. The taller walls correspond with the religious and public programs of the building, all located to one side of the building. As one moves further into the building, the spaces within become more private and closed off. The rooms become smaller, the courtyards become enclosed, and the corridors become less permeable.

PROJECT PLAN

This plan was organized using a grid system and a 7.5 foot square module. Like Jorn Utzon’s Bagsvared Church, the circulation corridors are pushed to the exterior of the building creating a protective barrier between the interior and the outside world. This protective barrier is solid and monolithic on three of the foor sides of the buildings. The fourth side is carved away allowing entrances into courtards located in the more public areas of the buildings. these court yards serve as secondary circulation. The facade uses a perforated brick screen to maintain a sense of privacy and protection for the interior spaces while also allowing light and music to flow between the public street and the spaces. The brick screen also references the degree of privacy each space posesses. Denser screens are used in front of the more private spaces. The building’s facade hides the true form of the building inside, whose ceiling are shape to create the best acoustical enviornment for the various concert halls and practive rooms. The corridors, in addition to providing the primary circulation space for the building, also help to divide the space into distinct public, semi-public, and private zones. Dividing the program into two buildings allows for built enviornment to define a space for social interaction inbetween.

HIERARCHY OF SPACE
SPATIAL RELATIONS

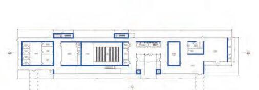
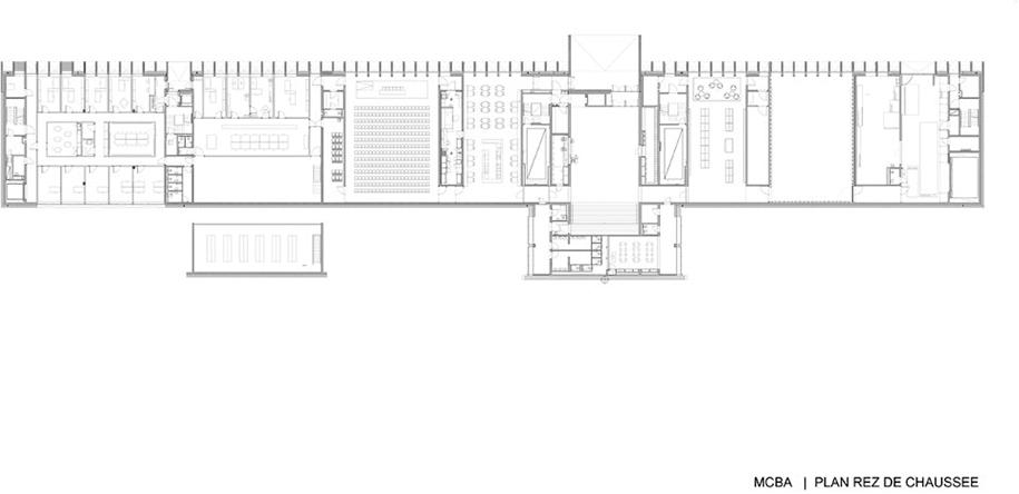
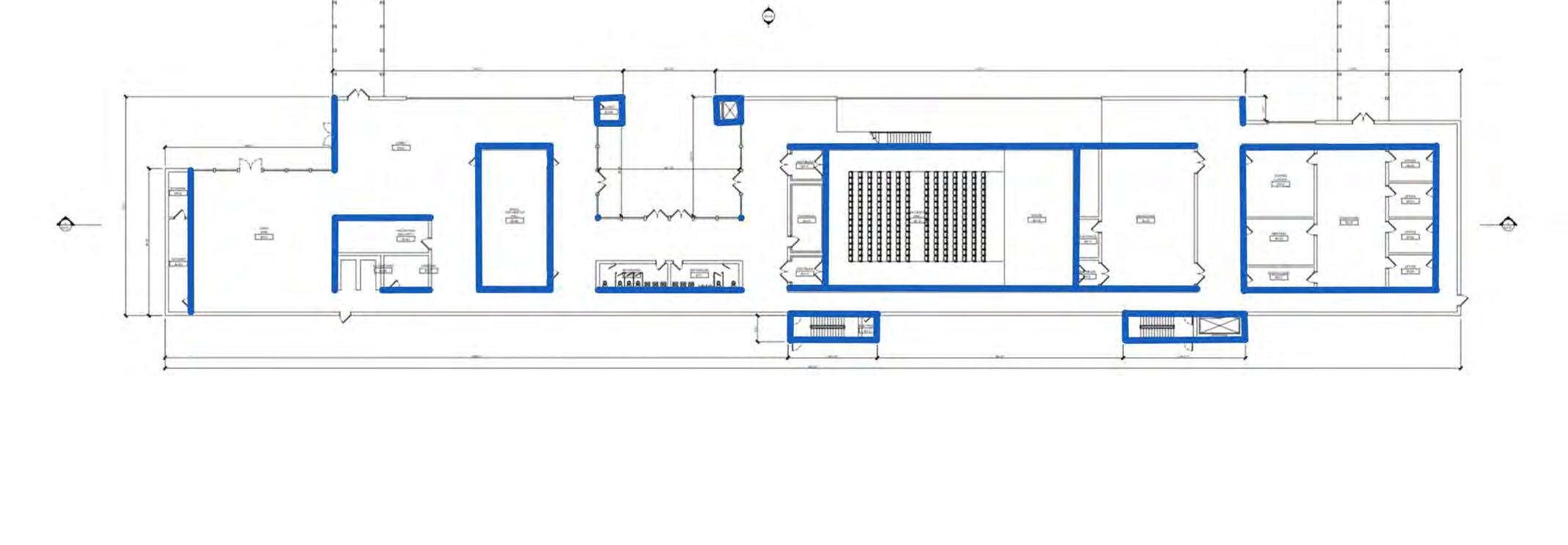
MUSEE CANTONAL DES BEAUX ARTS

LOCATION: LAUSANNE, SWITZERLAND

BUILT: 2019

ARCHITECT: BAROZZI VEGA

The geometric composition of Barozzi Vega’s Musee Cantonal des Beaux Arts is based off of a long, narrow module that is repeated to create a compact, slender form. The width of this module is expressed on the exterior of the building using a series of louvers that spans the entire north facade. The louvers allow the façade to become more permeable on this side, where the building faces onto a public space. In contrast, the south façade of the building is monolithic, protecting the building and the program from the industrial railyard beyond. On the inside, the modules are used to place the interior partitions. Throughout the first floor, there are a number of narrow cores, typically 2 -3 modules wide, which hold the auxiliary functions and service spaces that help to define the public areas of the building. The most important public space is the central atrium. The atrium is aligned with the historic 19th building located along the south wall of the museum and is further accentuated by the walls that extend into the public square. The main horizontal circulation space occurs along the south wall, where visitors can pass between the various galleries. A secondary circulation space occurs along the north side of the building, at the top of the service cores. These small passages lead to emergency exits located on either side of each space. As one moves from the central atrium towards the ends of the building the spaces become more private, holding functions such as office and classrooms, and less important hierarchically.

PROJECT PLAN

This plan was generated using long narrow modules to organize the various programmatic spaces. The spaces are separated on the interior by long, cores that serve as the vertical circulation and service spaces for the buildings. The primary horizontal circulation space is located at the rear of the building and extends the entire length of each building, giving access to each area. The programmatic spaces are organized within the building moving from public to private along the horizontal axis. The facades of the building facing the public street are louvered, providing a sense of permiability as one moves through the site. The more private a space is the denser the louvers become, allowing visitors to get a sense of the building’s program from the exterior. The public is able to further read the building from the exterior through the use of banding that coresponds with the service spaces. These spaces are constricted allowing light to enter the building through these spaces. Dividing the program into two buildings allows for built enviornment to define a space for social interaction inbetween.

HIERARCHY OF SPACE
GENERATIVE PLAN
GENERATIVE

FORMAL COMPOSITION:

This composition, like the last one, also used the second site strategy, in which the buildings and structures placed on the site become the shapers of space. Many of the elements from the previous composition remained the same, such as the grid organization, circulation corridors, strong protective facades, and hierarchical massing of the various programmatic volumes. The main difference between this composition and the last one is the connection between the public pathway created by the twin buildings and the Giardini della Filarmonica.

The first compositional strategy completely blocked off the public spaces of the new project from the Accademia gardens. While this defined the edge of the site and the space of the garden, it limited the interaction between the two spaces. As this intervention on the site is conceptualized as an addition to the Accademia, this second iteration strives to make that connection. The courtyards, instead of serving as secondary circulation between interior spaces, become the links between the Giardini della Filarmonica and the new public pathway.

This compositional strategy also plays more with the erosion of the rectilinear form. Towards the front of the site, where the programmatic spaces are more public, the walls of the building begin to be carved away creating courtyards that are partially visible from the street. This strategy allows for different layers of the building to be visible from the street, enticing the public to enter the space. This architectural move give the illusion that the public pathway narrows as one moves through the space, creating a moment at the end of the path where the space opens up to the garden beyond.

PLACE, CONTEXT, SCALE

The site is located along the Via Flaminia, an ancient Roman road that once served both merchants and the military, connecting Rome to cities in northern Italy. The road begins just outside of the ancient city walls, at the Porta Del Popolo, and stretches all the way to Rimini. For centuries, the land along this road consisted of vineyards, farms, and villas owned by prominent members of Roman society, including Pope Julius’s Villa Giulia, located just behind the site. Farm buildings, churches, tombs, and walls lined the road much like the current buildings do today. In one such building, located directly adjacent to the site, is the Accademia Filarmonica Romana, an organization that brings together musicians and artists of all skill levels and social standings to promote the arts within the community. Often, the Accademia will utilize the rear garden as a social and concert space, inviting the public to view various performances throughout the year. The garden, however, is cut off from the street by the Accademia buildings, greatly limiting the public’s interaction with the space.

The main intention of this intervention is to create a series of public spaces that connect the Giardini della Filarmonica will the public realm of Via Flaminia. Similar to the ancient and medieval fabric of the city, the buildings and structures on the site are designed to serve as shapers of public space. They not only define the boundary of the site itself, but the edges of the public spaces within the site as well. In some cases, the buildings define the edges of the public spaces whereas at other times the buildings are carved away to create courtyard spaces within the building. The courtyards are used to bring natural light into the various programmatic spaces.

When arranging the buildings on the site, it was important push the intervention up to the edge of the street, creating a strong relationship between the area of the street and the site. Throughout Rome, buildings line the street, not only defining the edges of the public realm, but creating an imposing, continuous façade that stretching the length of the roadway. These strong facades were designed to protect the interior of the building by creating a barrier between interior and the outside world. To ignore the established relationship between the street and the facade would make the building feel out of place within the context of the city. This intervention, however, challenges the notion that the street facade has to be an impenetrable barrier between the street and the interior of the site. Instead this façade becomes permeable as one approaches the site, extending the public realm into the interior of the site.

SPACE,

Throughout Italy, one of the most common building typologies is the courtyard building. The courtyard plan has been used in this part of the world for millennia, stretching back to the time of the Roman Empire. In ancient and modern plans alike, courtyards are used as social spaces as well as circulation spaces within the building. They are public areas, surrounded and protected by the rooms of the house, to be used by members of the family and their guests. In most cases, these courtyards also serve as devices to bring light and fresh air into the building. Much like the public piazzas in the city, the building defines the edges of the courtyard creating these public spaces.

In this intervention, the intention is that visitors will be able to circulate through the site via the public spaces created by the various buildings and structures. The spaces are purposefully arranged so the more public spaces, such as the gardens and entry areas, are located towards the front of the site while the more private areas, such as the administration offices, are located to the rear of the site. The pathway created by the two buildings is designed to draw visitors through the site, allowing them to discover aspects of the building as that travel down the path. When walking through the site and courtyards, the line between public and private becomes slightly blurred. The facades of the buildings facing the central path become semi permeable, through the use of brick screens. This allows visitors to catch a glimpse of the activity on the interior of the buildings while also allowing music and sound to flow into the courtyards and pathway, filling the space.

The buildings are designed to have a monolithic quality. This design choice is in reference to the monolithic nature of the Aurelian Wall, located just a few hundred feet away, and ancient ruins scattered throughout Rome. This building quality was also inspired by Rationalist Italian architecture, which became popular in the 1920s and 30s when this area of Rome was developed. Rationalist architecture in Italy drew inspiration from the tradition forms of ancient Roman architecture, such as the arch and column, and simplified these elements to create a modern architecture that felt timeless, yet still connected to site and its context. As this site has a rich history that spans several thousand years, it is important to design buildings in such a way that they feel both of the time and connected to the past.

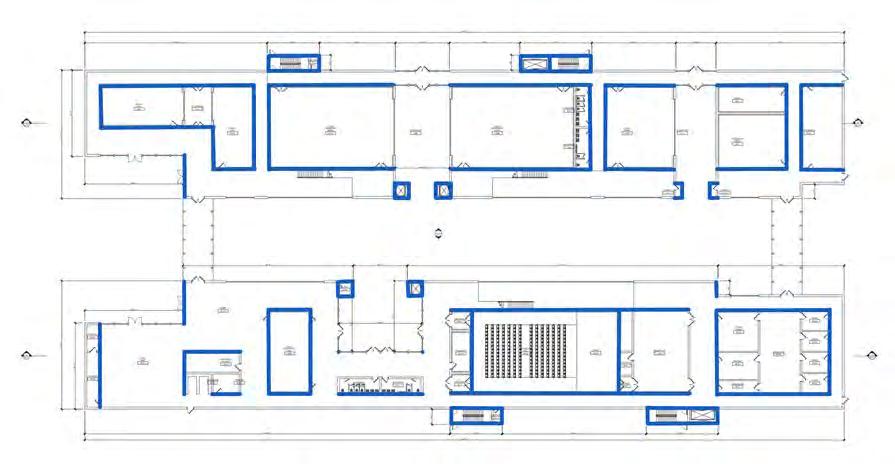
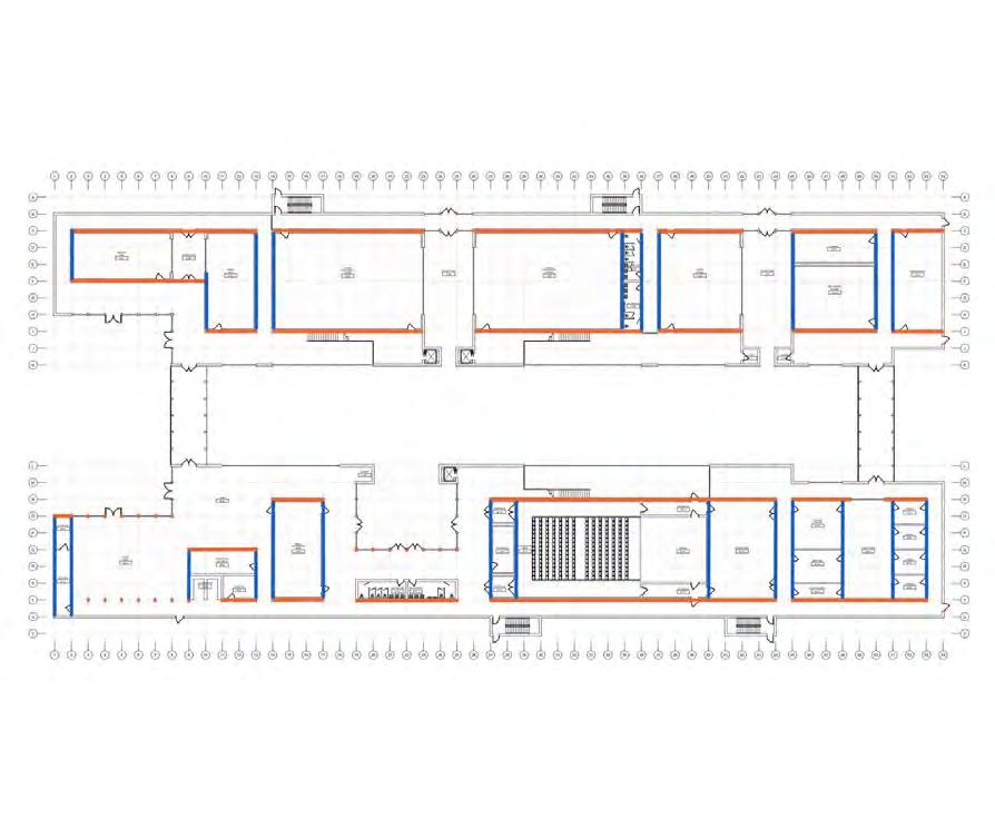
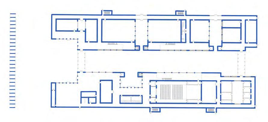
ORGANIZATION & ARTICULATION

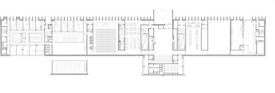
In addition to the loggia that serves as the entrance to the site from the Via Flaminia, there are two, twin, rectilinear buildings that contain the project’s programmatic spaces. One building contains all of the conservatory spaces whereas the other building houses the public and chamber orchestra spaces. The buildings are organized along a grid system that is based off of a square module. Similar to the way the buildings and structures define the public spaces on the site, the circulation corridors define the different spaces within the building. These circulation corridors make up the inhabitable, protective barrier between the interior spaces and the outside world. The sizes of these corridors are depended on the programs that they serve; the more public the program is the wider the corridors become.

The articulation of the facades change based on their relationship to the site and the interior programs. Where the facades face the edges of the site, the walls of the buildings become more soild, drawing from the Roman tradition of protecting the building’s interior. When the facades face onto a public space the walls are carved away, creating entrances into courtyards that connect to public areas of the buildings. In addition to allowing light an air to enter the building, these courtyards also serve as circulation spaces between the public pathway and the Giardini della Filarmonica, creating a physical and visual connection between the two spaces. The exterior facade sof both buildings are comprised of a reclaimed tile screen. This screen appears monolithic from a distance, relating to the monolithic nature of the ancient Roman architecture, and become more permiable as the closer one gets. an interior facade, comprised of clay blocks and curtian walls, set just behind the screen creates a series of solids and voids that plays with the concept of permiablity. More public spaces within the building are highlighted with opens while the private function are shelded from the outside.

As one moves through the site and the buildings, the program shifts from public to private, similar to a traditional Roman house. The difference between a traditional Roman house plan and this design is that the pathway created between the two buildings extends the public space further into the site, creating a condition where the buildings become more private as one move away from the center.

The hierarchy of the spaces within the building is expressed by the height of the various volumes. While this gives visitors a hint at what is happening on the interior of the building, it is not until they are inside that they discover the true form of each rooms. Inside the ceilings are shaped to create the best acoustical environment for the various concert halls and practice rooms.

TECTONICS & MATERIALITY

This project is designed to be monolithic in nature, using brick as the primary building material. This is a reference to the ancient Roman’s use of brick masonry in many of their structures and buildings as well as the continued use of masonry construction across Italy throughout the centuries. The heaviness of the material anchors the project to the earth and the site while also enhancing the protective quality of the private facades.

In this environment, brick masonry is an ideal choice for construction. The inherent qualities of the material and the various types of wall constructions provide the opportunity for brick to be utilized as more than just structure. Whenr constructed out of masonry, walls can be used to achieve a thermal mass that helps keeps the building temperature regulated throughout the year. Clay bricks, a traditional Roman building material, have intrinsic thermal qualities that allow them to absorb heat during the day and release it at night. As a result, the use of brick could allow for little to no insulation to be used within the walls themselves.

Another material used throught the project is the reclaimed clay tile that comprises the screen which envelopes the buildings. The reclaimed clay tile is a referenc to the iconic clay tile roof used across Rome and throughout Italy. For centuries, local builders have been using clay tiles to not only protect the interoir of their building from inclimate weather, but also to combat the intense Roman sun. The clay tiles, much like the clay bricks, absorb the heat, preventing any thermal transfer into the buildings.

The use of this iconic tile helps to connect the project back to the history and the context of the site. The clay tile screen helps the project to achieve the desired monolithic look while still allowing for indirect sulight and ventilation. Additionally, the clay tiles help to enhance the concept of permiablity at the envelope. The spacing of the clay tiles, as well as the curtian wall beyond, allows visitors to the site to catch a glimpse of what is going on inside of the building, enticing vistors to explore the Accademia further.

By using the reclaimed tiles in this way, the facades of the project feel rooted in the history of the site, yet modern and timeless.

ENVIORNMENTAL STEWARDSHIP:

One of the goals of this intervention is to draw inspiration from traditional and vernacular Roman architecture in order to integrate passive strategies into the design of the buildings. One such aspect of vernacular Roman architecture is the use of brick masonry. Thick masonry walls have thermal properties that allow the brick to absorb the sun’s energy during the day, keeping the interior of the buildings at a cool, comfortable temperature. At night, when the temperature drops, the stored heat is released into the interior of the building warming the space throughout the night. The use of these thermal walls helps to keep the interior of the buildings comfortable without the need for heavy, excessive mechanical systems.

Another common strategy for solar management in Rome is shutters. Shutters on Roman buildings are used to help control the amount of sunlight coming into the building, preventing the air on the interior of the building from heating up. While traditional shutters will not be employed in this design, the idea of controlling and managing the amount of sunlight entering a space a consideration. The clay tile screens employed along the public facing façades help to control the amount of sunlight coming into the building, helping to create a cooler environment for users of the space.

The configuration of courtyards within the structure is also inspired by traditional Roman architecture. Many buildings in Rome either have thin profiles or have a courtyard at the center. These building configurations allow for increased cross ventilation through the structure, cooling the space without the need for A/C. Courtyard buildings, or buildings arranged along a narrow street also enjoy the benefits of the “courtyard effect”. During the day, the sun heats the air in the courtyard or a narrow street. The warm air rises, causing the cooler air in the interior of the building to rush out, creating a cooling effect. When night falls, and the temperatures drop, the cool air then drops into the courtyard, causing the airflow to move in the opposite direction.

Garden space to engage with the public and absorb rainwater.

Buildings oriented to take advantage of the east west winds for cooling.

Brick screening to control the amount of sunlight entering the space.

Brick masonry construction for thermal mass benefits.

Courtyard effect to help cool the interior spaces of the building.

Courtyards provide light and fresh air to interior spaces

Good architecture is about more than the overall design and aesthetics of a project. Successful architects and designers find a way to intergrate all aspects of the design, from the appearance of the project to the configureation of the building systems, into one cohesive unit. Any changes to the structure, envelope, or systems would affect the way the project percieved by the public and change the function of the design. This protion of the design process draws upon the intentions and priciples established earlier in the project to inform choices about the more technical aspects of the design.

STRUCTURAL SCHEME

Load bearing masonry construction is the most common type of construction used in Italy. For millennia, Italians have been using stone and masonry to construct their buildings, from the simplest dwelling to their most important places of worship. Load bearing masonry has evolved over centuries of innovation. In ancient times, the first stone structures were constructed using uncut rough stone that where fitted together without any type of mortar. As type when on, builders worked towards perfecting their techniques, learning how to cut stone into smaller blocks and brick and arranging them in such a way that they strengthen the structure. Ancient Romans even developed an early version of concrete that is used in famous buildings such as the Pantheon. Given the location and history of the site, it is appropriate to use load bearing brick masonry in this project.

The use of brick masonry in this design will help to ground the project to the site. The heaviness of the material not only anchors the projects to the site but also provides a sense of permanence and timelessness to the design. The monolithic quality of the buildings reference back to nearby structures, such as the Aurelian Wall and Roman ruins, and places the project in context with the surrounding history.

While Ancient Roman construction was typically simple, this does not mean that it was not well articulated. Different types and styles of brick and stone were used in order to ornament and define the project. In some cases multiple types of brick were used in the same project. This technique could be applied the this design in order to further articulate the exterior of the building while allowing the visitors better understand it’s interior functions.

One reason that brick is used so extensively in vernacular Italian architecture is its thermal qualities. Massive masonry structures help to thermally control interior spaces. Heat from the sun is absorbed and stored in the stone and masonry during the day, keeping the interior of the building cool during the day, and released at night when the temperature drops.

Load bearing concrete walls and strucutral members are used to carry the load of the building and support the facade. The brick screen facade is set away from the structure, hiding the concrete from the exterior and creating an airspace interstitally. An operable window is placed infront of the screen for temperature control.

In order to achieve the use of perforated brick screens, brick masonry pillars are used to carry the load of the building to the ground allowing the screens to be load free. An operable window is placed infront of the screen for temperature control.

OPUS LATERICIUM

Opus caementicium (Roman Concrete) is used to fill the cavity between the brickwork in order to create a stronger more durable wall. The brickwork used to face the core protects the porous concrete.

OPUS MIXTUM

Opus Mixtum walls, like Opus Latericium, use a roman concrete core to give the wall strength. The patterning of the size and shape of the brick masonry presents the opportunity to create an articulated facade.

CAVITY WALLS help to acheive thermal insulation and sound isolation as there is little way for heat or sound to transfer. Metal ties are used to connect the walls and slabs will typcially rest on the inner layer of brick. Cavities can be filled will additional insulation.

SOLID MASONRY WALLS with two layers of masonry can be used for both insulation and structure. Terra Cotta bricks have inherent thermal properties that allow them retain/reflect heat. The smaller, inner brick layer acts as the structure whereas the thicker outer layer as as the insulation.

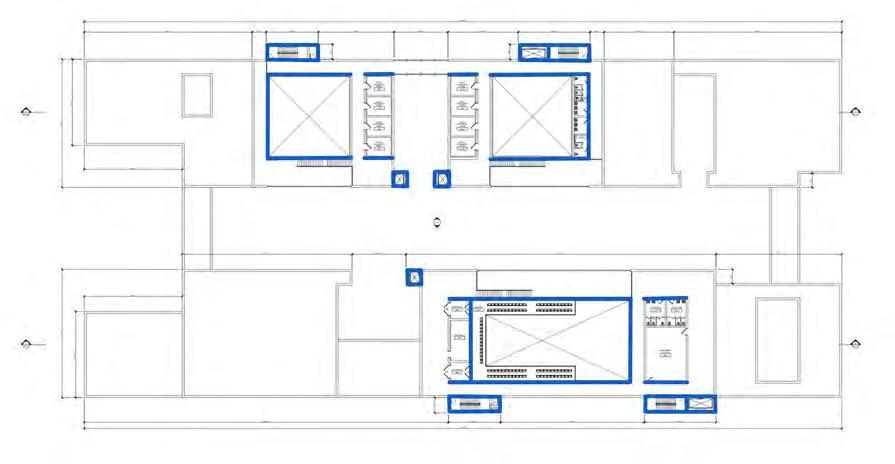
In this project, the interior walls serve as the load bearing walls for the entire project. These wall are stacked on on top of one another in order to create a continuous path from the roof to the ground. Using the interior walls as the main loadbearing walls allows for the slab to be cantilevered over the exterior circulation, creating a column free interior. Cantilevering the concrete slab allows for the exterior walls to be free from the structural load, making it possible for the wall to become more permiable. This would allow for architectural articulation such as brick screens and various texture to occur across the facades.

While the walls running the length of the twin buildings serve as the main load bearing walls, the shorter walls running perpendicular serve as lateral support for the building. These wall help to keep the main structural walls from twisting and turning, providing stability for the structure. The concrete slab is a one way joist slab that spans the entire width of the building. The slab uses concrete joists and post tensioning techniques to help span the distance between the support walls creating a clear span below.

For this project, a deep foundation system is ideal over a standard shallow foundation. One reason this is ideal is for siesmic purposes, as Rome is located near a fault line. a deep foundation allows the building to be anchored in soild bedrock. Another reason a deep foundation system would be benefitial is that the foundation can be intergrated with the structure of the basement. By using a series of load bearing walls, the basement becomes a deep structural slab. This is the same approach taken by the Maxxi Museum a few blocks away.

BASEMENT INTERIOR DEEP FOOTING REINFORCED CONCRETE WALLS AND SLAB

LOAD BEARING MASONRY - CANTILEVERED SLABS

Load bearing masonry walls are key elements in traditional Italian construction. For this project the main load bearing walls are in set from the exterior envelope. This would allow the interior walls help with sound isolation in the musical spaces. Additionally, moving the load bearing walls to the interior helps to free up the exterior walls to create brick screens and textured effects.

CANTILEVERED

DEEP FOUNDATION SYSTEM

For this project, a deep foundation system is ideal over a standard shallow foundation. One reason this is ideal is for siesmic purposes, as Rome is located near a fault line. a deep foundation allows the building to be anchored in soild bedrock. Another reason a deep foundation system would be benefitial is that the foundation can be intergrated with the structure of the basement. By using a series of load bearing walls, the basement becomes a deep structural slab. This is the same approach taken by the Maxxi Museum a few blocks away.

LOAD BEARING STRUCTURAL MASONRY WALLS

CANTILEVERED CONCRETE SLAB

ONE WALL HOUSE - CHRSITIAN KEREZ SHALLOW FOUNDATION - TYP. IN

DEEP FOUNDATION

LOAD BEARING STRUCTURAL WALL

DEEP FOUNDATION / BASEMENT

SECOND FLOOR SLAB
SECOND FLOOR LOAD
WALLS AND COLUMNS
ROOF SLAB

This envelope option is a lightweight system that blends modern and historical materials to create a timeless façade. Throughout much of Rome, building facades are designed to be massive and imposing. They are meant to separate the interior of a building from the public realm of the street, protecting the people and spaces inside. Public façades rarely have windows at street level and minimize the connection of the interior to the public street. Traditionally, builders took advantage of the thermal properties of massive construction in order to maintain comfortable temperatures in interior spaces. Without the creation of a thermal mass, the challenge is to design a system that will protect the building from solar radiation, while still remaining lightweight. The design of this façade challenges the idea that the public realm ends at the street.

The design of the structure allows for incredible flexibility in the façade. The load-bearing masonry walls are pushed towards the interior of the buildings allowing the concrete slabs to cantilever to the edge of the building, freeing the exterior walls from any structural load. This allows for a curtain wall system to become the first layer of the enclosure. The curtain wall system is anchored to the edge of the slab and allows for natural light to enter the space. In this case, the glass serves as insulation and water protection.

An all-glass building would look out of place within the context of the site. The area surrounding the Academia is filled with historic masonry structures, some dating back to the Ancient Romans. It was important to give the impression that the exteriors of the buildings are monolithic and imposing, like their neighbors, yet permeable as one moves through the space, similar to the loggia at the front of the site.

Recycled clay roof tiles, like those found all across Italy, are used to create a screened façade that surrounds the buildings like a second skin. The clay tiles are staggered and hung from cables attached to the underside of the roof slab. This screen helps to protect the interior of the building from the heat of the sun while also providing a feeling of permeability between the interior and exterior spaces. Utilizing the clay tiles connects the design of the project to the history of the site while also giving a sense of timelessness to the space.

There are several aspects of the local climate in Rome that are critical to consider during design. The first condition is the intense heat that occurs during the summer months. In Rome, summer temperatures can soar as high as 100 degrees, making both the interior and exterior spaces incredibly uncomfortable and potentially dangerous. If not properly insulated and protected from the heat, building interiors can reach over 80 degrees. Given the program of the building, in which hundreds of people gather together to practice music, watch performance, and dance, temperatures could climb even higher. The activities occurring within the space require that the building remain at a cooler temperature.

A major factor in controlling temperatures within the building is how much sunlight is entering the building. Rome is subject to high levels of solar radiation, meaning that a considerable amount of heat is generated by the sun’s rays. Solar radiation levels are particularly high in the summer, causing already warm temperatures to climb even further. This is important to consider when designing a building and its envelope. An all glass building would allow too much direct light into the building, causing it to overheat. While glass facades such as these are ideal for letting natural light into the building, the light much be diffused to keep temperatures down.

During summer months, the high humidity can make conditions in Rome oppressive, both indoors and outdoors. These conditions worsen when large groups of people gather together, such as in concert or practice halls. Additionally, rigorous activities such as dancing, can cause humidity level to rise in a space. By protecting a space from the solar radiation, the temperature of the space drops, lowering the humidity level simultaneously. Another way to combat high humidity is through proper ventilation. While ventilation alone will not lower the humidity of a space, it will move air causing interior spaces to feel more comfortable, similar to a breeze on a hot day.

One way to respond to these climate conditions is to look at how vernacular architecture has dealt with them in the past. Local builders took advantage of the thermal properties of stone and clay, building massive structures that absorb the heat, keeping the interiors cool. They used courtyards to bring indirect light into the buildings and allow for cross ventilation throughout the structure. They also employed sun controlling devices, such as awnings and shutters to protect the interior from the sun’s rays.

GREEN ROOF SYSTEM

One of the main passive strategies employed in this design is the use of green roof. In a local climate, such as the one in Rome, a green roof is ideal for multiple reasons. The first reason is thermal protection. In the past, going back to the time of the ancient Romans, local builders took advantage of the thermal properties of stone and clay to help insulate the building. The thick walls they built created thermal masses which absorbed the heat during the day, keeping the interior spaces cool. At night, the heat would release from these masses and help to regulate the temperature in the building.

Green roofs work off of this same idea. Comprised of a number of different layers including soil, insulation, and a drainage mat, green roof systems can often reach about two feet in depth. These two feet of material becomes an insulation layer that protects the slab below from transferring heat into the building. Instead, the soil absorbs the heat and stores it to aid in plant growth.

In addition to helping protect the interior of the building from heat, green roof systems help to reduce the heat of the overall urban area. Flat roofs are a common sight in many urban areas across the globe. When left untreated flat roofs will reflect the solar radiation contributing to what is known as the heat island affect. While one building may not have much of an impact on its own, multiple flat roofs in one area can create significantly raise the temperature of the air. Green roofs, unlike flat, untreated concrete roofs, do not reflect solar radiation, thus limiting the heat island affect.

Green roofs are also beneficial because they help to reduce the amount of water runoff during a rain event. Traditional roof materials are not permeable or absorptive. In the event of rain, all the water that lands and collects on the roof will eventually flow off of the roof causing issues at grade level. Green roofs absorb much of the rain water that falls onto roofs. The rain water will hydrate the plants growing on the roof while excess water can be stored in the drainage matt to be used at a later time. In this building, over 90% of the roofs are covered with a green roof system. Helping to reduce the impact of the building on the environment.

SUN/SOLAR HEAT REFLECTION off of the flat roof. The reflection of heat off flat roof adds to the heat island effect in urban areas.

TRADITIONAL ROOF

STRUCTURES: Do not absorb rain water, increasing the about of runoff during a heavy rain event.

HEAT TRANSFER through the slab heating the interior spaces. The insulation and mass of the slab are the only thermal barriers.

SUN/SOLAR HEAT

REFLECTION: Green roof are less reflective of heat than normal flat roofs. Solar heat is absorbed by the soil aiding in plan growth.

HEAT TRANSFER: Build a green roof ontop of the structure adds thermal mass. The soil insulates the slab, keeping the space below cooler and reduces ambient noise

GREEN ROOF STRUCTURES:

Engineered soil in green roof system are high absorbative and limit the amout of rain runoff. Excess water can be stored by the roof system to be used later.

GREEN ROOF COVERAGE:

The green roof systems covers over 90% of the building’s roof plane. The surface of the roof is broken up by a series of square skylights that let light into the interior spaces of the building. The skylights are placed using the same modular grid system which helped to generate the design.

COURTYARDS/ LIGHT WELLS:

As much of the building’s program is pushed to the interior of the building it is important to introduce natural light into these space. Courtyard and lightwells provide the space for light to enter the building and for people to gather.

CLAY TILE SCREEN SYSTEM

One of the biggest climatic challenges of the site is the high levels of solar radiation combined with the intense heat of Roman summers. While the thermal mass of the building and the green roof can help the prevent heat from transferring into the building through the walls, designers also have to be concerned with the sun rays coming through windows and curtain walls. In ancient and vernacular forms of Roman architecture, local builders and users employed several devices to prevent the sun from entering a space. One such device was shutters. Shutters are still seen on building across Rome and greater Italy today. Operable shutters allow the user of the space to control the amount of sunlight that is entering the building simply by opening and closing the shutters and louvers.

Another device that was often used to protect people from the Sun’s heat is a velarium. Velariums are a type of cloth shading device that are suspended between two cables. When the sun’s rays are intense velariums would be pulled out to create a shaded spot below and retracted when they are no longer needed. It is believed that there was once a large velarium covering the Colosseum that would be used during gladiator shows and other sporting events. Velariums are still used today across Rome to create more comfortable areas to inhabit during the warm weather.

Each of these devices was used to prevent the Sun’s intense rays from entering a building or an area in order to keep it cooler. Similarly, the clay tile screen system which wraps around the entirety of each building was design to help control the amount of light entering the spaces beyond. The climate in Rome consists of very hot summer and cool winters, meaning that direct sunlight is needed in the winter rather than in the summer. In order to accommodate this need each clay tile is spaced exactly 8” apart. The 8” in gap between tiles takes into consideration the angle of the sun at different times during the year. During the summer time, the angle of the sun reaches 70 degrees above the horizon. At 8” apart the clay tiles block the light from directly entering the building while still allowing the ambient light to enter the space, keeping the interior cool. In the winter, the angle of the sun drops down to just 25 degrees above the horizon line. At 8” apart the clay tiles allow direct light to enter the building, allowing the interior spaces to benefit from direct solar gain.

SUMMER SUN ANGLE = 70 DEGREES
WINTER SUN ANGLE = 25 DEGREES

HORIZONTAL SCREEN

SYSTEM: helps to block the instense sunlight from entering the building keeping the interior spaces cooler in the summer time .

SUMMER SUN ANGLE = 70 DEGREES

WINTER SUN ANGLE = 25 DEGREES

HORIZONTAL SCREEN

SYSTEM: In the winter, when the sun is at a lower angle, the screen helps to diffuse the harsh sunlight entering the building while still allowing the sun to heat the interior spaces

WINTER SUN ANGLE = 25 DEGREES

While it is important to block the sunlight during summer months to prevent the building from over heating, it is also important to let light in during the winter months. In the winter, the sun hits the facade at a lower angle. By properly spacing the clay tiles, the screening system allows light to enter the building during the winter while diffusing it in the summer.

COURTYRADS / NATURAL VENTILATION

One of the most common building typologies in Rome is the courtyard building. Since the time of the ancient Roman Empire, local builders have been including courtyards in the vernacular architecture. While piazzas were the space for the public to interact with one another, the courtyard was a private, protected gathering space within the home for family and friends. Unlike today’s facades, which are full of windows and floor to ceiling glass, traditional roman building facades were monolithic and solid, protecting the interior of the building from the public realm of the street. Additionally, streets were narrow and buildings were infilled creating dense urban blocks. The closed off facades, narrow condition of the streets, and infilled urban fabric all resulted in the need to bring light into the building from above.

Courtyards and light wells are used throughout Rome to bring light into interior spaces. This design in particular benefits from the use of these carved out spaces. As the circulation spaces are pushed to the exterior of the building, the main programmatic spaces are collected at the interior of the building, away from the facades. Similar to the urban fabric of Rome, these internal spaces needed to be lit from above. The courtyards and light wells are carved into the areas between main programmatic spaces, such as the rehearsal rooms and the dance studios. This allows indirect, natural light to enter these areas of the building. In some cases, these carved away spaces are used as private areas for the building occupants whereas elsewhere they are used as secondary circulation space, connecting the public pathway with the Accademia’s garden. Additional light is brought into the internal spaces via the skylights set into the green roof. These skylights are organized using the same grid system used to modulate the building.

In addition to bringing added light into the building, these courtyards help to provide the adjacent spaces with some natural ventilation. Windows can be opened on either side of the courtyard, when needed, creating a cross ventilation effect across the rooms. Utilizing the courtyard spaces for ventilation also allows users to take advantage of the courtyard effect. As the sun heats up the air in the courtyard, the warm air raises causing cooler air to rush into the space, creating a cross breeze effect. At night, the process reverses allowing the cool air to drop back down into the courtyard. Natural ventilation is supplemented by mechanical ventilation.

NATURAL CROSS VENTILATION:

Cross ventilation is used to move fresh air through out the spaces surrounding the courtyards, cooling the interior spaces of the building.

COURTYARD EFFECT:

In vertical spaces such as courtyards, hot air rises as the cool air fall creating air movement that helps to cool the spaces withing the building.

GEOTHERMAL VENTILATION:

Geothermal ventilation is used to provide fresh air to areas of the building that are pushed to the interior and have no direct access to the various courtyards.

In today’s world in which society is facing incredible environmental challenges brought on by climate change, it is important to use as many passive systems as possible in order to create more environmentally responsible buildings. Though passive strategies are employed throughout the design, it is difficult in this climate and at this scale to create a completely passive building. Passive strategies alone can only provide comfort about 47% of the time between 8am to 8pm. As a result, mechanical systems are required to work in concert with the passive strategies. Natural ventilation and sun shading to prevent solar gain are combined with active cooling and ventilation systems while direct solar gain is paired with active heating systems. The active systems in the building will mostly focus on providing heat and ventilation to the building during the winter months when the local climate gets colder and natural ventilation is no longer a viable option. In order to make the interior spaces of the building comfortable, heating is required about 66% of the time.

Given the climate challenges currently facing the world, energy consumption and pollution are two major concerns when it comes to using mechanical systems. Traditional mechanical systems such as boilers, condensers, and HVAC use fossil fuels to operate, creating pollution. Additionally, these systems are often too heavily relied upon, using energy to condition spaces where passive strategies could have been employed. When buildings are conditioned using only HVAC, the interior spaces are often over conditioned to the point where people are forced to wear sweater during the summer to stay warm. Pairing active and passive systems and introducing more adaptive comfort systems are critical in reducing energy waste. Alternatives to burning fossil fuels, such as using geothermal wells, can be used to heat air without releasing carbon emissions.

This building in particular will require active systems to help manage ventilation, heating, and humidity. Given the program of the building, which includes concert spaces, music rooms, gathering places, and dance halls, the number of people in the spaces varies depending on the hour and can change rapidly. While passive system will certainly help to condition these spaces, they are too slow to respond to these quick changes in the interior conditions. Active strategies have the benefit of being utilized when needed and can respond to new climate condition quickly, providing comfort in public spaces.

VENTILATION ARRANGEMENT:

POOR VENTILATION ARRANGEMENT

Direct supply line allows sound to travel through all rooms

GOOD VENTILATION ARRANGEMENT

Acoustically lined supply branches prevent sounds from travelling between rooms

POOR MECHANICAL SOUND ISOLATION:

Vibrations and soundwaves travel through the structure.

GOOD MECHANICAL SOUND ISOLATION:

Vibrations and soundwaves are isolated from the structure.

There were several design considerations when choosing active systems for the project. The first design consideration was that the ceiling was to remain free of mechanical systems. By freeing the ceiling of mechanical systems, they became another plane on which acoustic material could be applied. In spaces such as the large concert hall and large rehearsal rooms, where acoustical quality is important, the shape of the ceiling was manipulated using suspended acoustical panels. These panels helped to reflect and diffuse the sound throughout the spaces creating more even sounds. Having mechanical systems run along these ceiling would not only affect the aesthetic quality of the space but the acoustical quality as well. Additionally, mechanical system can be loud. Noise and vibrations produced by the mechanical system could affect how the musicians and performers hear themselves, interfering with the program of the space.

While passive strategies have been employed throughout the building, several spaces such as the concert halls, rehearsal rooms and recording studios need mechanical system to provide sufficient heating, cooling, ventilation and humidification. One way to run these systems without using the ceiling is to run duct work beneath a technical floor. Technical floors are raised off of the structural slab using pedestal supports arranged in a grid system. As the building was organized using a grid system, the technical floor was an easy element to incorporate into the design. These floors can range from 4” deep to 4 feet deep and can accommodate many types of building systems including electrical, plumbing, and mechanical. In this design a 2 foot deep technical floor was used to run ductwork beneath the floor. Additionally, the air space provided by the technical floor creates an acoustic barrier helping to further isolate the sound throughout the building.

Sound was an important design consideration when laying out the mechanical systems. When several vents are connected along the same duct branch, the ventilation system can act like a sound bridge. Similar to a thermal bridge, a sound bridge can transfer sound between rooms. While such an occurrence may not affect an office space, sound bridges would greatly impact the sound quality and isolation of rehearsal rooms and theaters. For this reason, acoustically important rooms such as the rehearsal rooms, concert halls and recording studios are all ventilated using individual supply and return branches. Additionally, the main ventilation ducts do not run under any of these sound sensitive rooms. Instead, the main ventilation branches

are run beneath the corridors where any potential noise pollution would make less of an impact.

Finally, it was important to the design of the buildings that the roofs remain free from mechanical equipment. Surrounding the site are several buildings that are upwards of seven stories tall while the original Accademia Filarmonica is three stories tall at highest point. Given the new buildings’ maximum height of just over two stories tall, the roofs will be visible to the surrounding buildings, therefore, it is important that they be treated as a fifth façade. Instead of placing the mechanical equipment on the roof, the AHU’s and heat pumps were located in the basement. This move not only limits the amount of vibrations transferred through the structure, but allows for easier access to the geothermal wells below the building. Placing the mechanical equipment in the basement also allows for more direct access to the technical floor layer and less large service chases running through the building.

ZONE ONE

ZONE TWO

ZONE THREE

ZONE FOUR

ZONE FIVE

ZONE SIX

Z ONE ONE:

DANCE HALLS, LARGE REHERSAL ROOMS, SMALL REHERSAL ROOMS

- HEATING IN THESE SPACES WILL PRIMARILY HAPPEN IN THE WINTER WHEN THE TEMPRETURES IN ROME DROP.

- DIRECT ACCESS TO COURTYARDS ALLOWS FOR POTENTIAL SOLAR HEAT GAIN IN THE WINTER THROUGH WINDOWS

- THERMAL MASS HELPS TO STORE HEAT DURING THE DAY AND PREVENT HEAT LOSS

- COOLING IS NEEDED DUE TO THE WARM LOCAL CLIMATE AND POTENTIALLY HIGH RELATIVE HUMIDITY

- SPACES SUCH AS DANCE HALLS HAVE MORE COOLING NEEDS DUE TO INTENSE PHYSICAL ACTIVITY.

- ACTIVE COOLING TO BE USED IN COMBINATION WITH PASSIVE STATEGIES SUCH AS THERMAL MASS AND SUN SHADING

- VENTILATION SYSTEM TO SUPPLIMENT NATURAL VENTILATION. LARGE REHERSAL ROOMS ARE DEEP LIMITING THE ABILITY OF THE COURTYARDS TO FULLY VENTILATE THE SPACE.

- INDIVIDUAL VENTIALTION BRACHES USED TO PREVENT SOUND BRIDGING BETWEEN REHERSAL ROOMS

Z ONE TWO:

CHOIR ROOM, LARGE REHERSAL ROOMS, SMALL REHERSAL ROOMS

- HEATING IN THIS SPACE WILL PRIMARILY HAPPEN IN THE WINTER WHEN THE TEMPURATURES IN ROME DROP.

- DIRECT ACCESS TO COURTYARDS ALLOWS FOR POTENTIAL SOLAR HEAT GAIN IN THE WINTER THROUGH WINDOWS

- THERMAL MASS HELPS TO STORE HEAT DURING THE DAY AND PREVENT HEAT LOSS

- COOLING IS NEEDED DUE TO THE WARM LOCAL CLIMATE AND POTENTIALLY HIGH RELATIVE HUMIDITY

- SPACES SUCH AS THE LARGE REHERSAL ROOMS MAY REQUIRE MORE COOLING DUE TO OCCUPANCY. CONSISTANT RELATIVE HUMIDITY IS IDEAL FOR INSTRUMENTS

- COMBINATION ACTIVE AND PASSIVE STRATEGIES

- VENTILATION SYSTEM TO SUPPLIMENT NATURAL VENTILATION. LARGE REHERSAL ROOMS ARE DEEP LIMITING THE ABILITY OF THE COURTYARDS TO FULLY VENTILATE THE SPACE .

- INDIVIDUAL VENTIALTION BRACHES USED TO PREVENT SOUND BRIDGING BETWEEN REHERSAL ROOMS

- AIR HANDLING UNIT PROVIDING COOLING, HEATING, AND VENTILATION.

- HEAT PUMP CONNECTED TO GEOTHERMAL FIELD LOCATED BELOW THE BUILDINGS

- AIR HANDLING UNIT PROVIDING COOLING, HEATING, AND VENTILATION.

- HEAT PUMP CONNECTED TO GEOTHERMAL FIELD LOCATED BELOW THE BUILDINGS

Z ONE THREE:

RECORDING STUDIO, LOUNGE, MAINTENANCE

- HEATING IN THIS SPACE WILL PRIMARILY HAPPEN IN THE WINTER WHEN THE TEMPURATURES IN ROME DROP.

- LIMITED SOLAR GAIN POTENTIAL IN RECORDING STUDIO DUE TO PROGRAMMATIC NEEDS OF THE SPACE TO BE ACOUSTICALLY BALANCED

- LIMITED NUMBER OF PEOPLE USING THE SPACES EQUALS LESSER DEMAND ON SYSTEMS

- COOLING IS NEEDED DUE TO THE WARM LOCAL CLIMATE AND POTENTIALLY HIGH RELATIVE HUMIDITY

-TECHNICAL EQUPIMENT NEEDS TO BE KEPT IN A COOL ENVIRONMENT TO PREVENT OVER HEATING.

- LIMITED NUMBER OF PEOPLE USING THE SPACES EQUALS LESSER DEMAND ON SYSTEMS

- MECHANICAL VENTILATION REQUIRED IN RECORDING STUDIO. SPACE NEEDS TO BE ACOUSTICALLY ISOLATED FROM THE REST OF THE BUILDING.

-INDIVIDUAL VENTIALTION BRACHES USED TO PREVENT SOUND BRIDGING BETWEEN SPACES

-TECHNICAL EQUPIMENT NEEDS TO BE KEPT IN A COOL ENVIRONMENT TO PREVENT OVER HEATING.

- AIR HANDLING UNIT PROVIDING COOLING, HEATING, AND VENTILATION.

- HEAT PUMP CONNECTED TO GEOTHERMAL FIELD LOCATED BELOW THE BUILDINGS

Z ONE FOUR: CAFE, LOBBY, KITCHEN, PUBLIC FUNCTIONS, SMALL CONCERT HALL

- HEATING IN THIS SPACE WILL PRIMARILY HAPPEN IN THE WINTER WHEN THE TEMPURATURES IN ROME DROP.

-LARGEST POTENTIAL FOR SOLAR HEAT GAIN THROUGH FACADE AND SKYLIGHTS. SMALL CONCERT HALL NEEDS CONSISTENT THERMAL AND LIGHTING CONTROL.

-LARGE FLUXUATIONS IN OCCUPANCY DEPENDING ON EVENTS

- COOLING IS NEEDED DUE TO THE WARM LOCAL CLIMATE AND POTENTIALLY HIGH RELATIVE HUMIDITY

-LARGE FLUXUATIONS IN OCCUPANCY DEPENDING ON EVENTS. LARGE CROWDS RAISE THE TEMPERATURE AND HUMIDITY IN A ROOM CAUSING DISCOMFORT.

- COOLING SYSTEMS COMBINED WITH NATURAL VENTILATION AND SUN SHADING

- VENTILATION SYSTEM TO SUPPLIMENT NATURAL VENTILATION WHEN NEEDED

- ADDITIONAL VENTILATION NEEDED IN KITCHEN AND INTERIOR ROOMS

- INDIVIDUAL VENTIALTION BRACHES USED TO PREVENT SOUND BRIDGING BETWEEN LOBBY/ CAFE AND SMALL CONCERT HALL

- AIR HANDLING UNIT PROVIDING COOLING, HEATING, AND VENTILATION.

- HEAT PUMP CONNECTED TO GEOTHERMAL FIELD LOCATED BELOW THE BUILDINGS

Z ONE FIVE: LARGE CONCERT HALL, STAGE, BACK STAGE, TECHNICAL BOOTHS

- HEATING IN THIS SPACE WILL PRIMARILY HAPPEN IN THE WINTER WHEN THE TEMPURATURES IN ROME DROP.

- NO SOLAR GAIN POTENTIAL IN THE THEATER AS THE SPACE NEEDS TO HAVE CONSISTENT THERMAL AND LIGHTING CONTROL.

Z ONE SIX: OFFICES AND ACCADEMIA ADMINISTRATION.

- HEATING IN THIS SPACE WILL PRIMARILY HAPPEN IN THE WINTER WHEN THE TEMPURATURES IN ROME DROP.

-GREAT POTENTIAL FOR SOLAR HEAT GAIN THROUGH THE COURTYARD AND THE SKYLIGHTS IN THE OFFICE.

-REGULAR OCCUPANCY EQUALS CONSISTANT SYSTEM NEEDS

- COOLING IS NEEDED DUE TO THE WARM LOCAL CLIMATE AND POTENTIALLY HIGH RELATIVE HUMIDITY. CONSISTENT THERMAL AND HUMIDITY CONTROL REQ.

- THERMAL MASS TO PROTECT SPACE FROM HEAT

-LARGE FLUXUATIONS IN OCCUPANCY DEPENDING ON EVENTS. LARGE CROWDS RAISE THE TEMPERATURE AND HUMIDITY IN A ROOM CAUSING DISCOMFORT.

- MECHANICAL VENTILATION REQUIRED THROUGHOUT THE SPACE. LARGE CONCERT HALL NEEDS TO BE ACOUSTICALLY ISOLATED FROM THE REST OF THE BUILDING. INDIVIDUAL VENTIALTION BRACHES USED TO PREVENT SOUND BRIDGING BETWEEN SPACES

- LARGE VARIATIONS IN OCCUPANCY REQUIRE ADDITIONAL VENTILATION

- AIR HANDLING UNIT PROVIDING COOLING, HEATING, AND VENTILATION.

- HEAT PUMP CONNECTED TO GEOTHERMAL FIELD LOCATED BELOW THE BUILDINGS

- COOLING IS NEEDED DUE TO THE WARM LOCAL CLIMATE AND POTENTIALLY HIGH RELATIVE HUMIDITY

- WINDOWS ALLOW FOR USER OPPERATED CONTROL

-- REGULAR OCCUPANCY EQUALS CONSISTANT SYSTEM NEEDS

- VENTILATION SYSTEM TO SUPPLIMENT NATURAL VENTILATION WHEN NEEDED

- INDIVIDUAL VENTIALTION BRACHES USED TO PREVENT SOUND BRIDGING BETWEEN OFFICES

- AIR HANDLING UNIT PROVIDING COOLING, HEATING, AND VENTILATION.

- HEAT PUMP CONNECTED TO GEOTHERMAL FIELD LOCATED BELOW THE BUILDINGS

Z ONE ONE:

SQFT OF AREA SERVED: 8,226 SQFT

COOLING CAPACITY: 47 TONS

PACKAGED UNIT SIZE: 25’-11” X 7’-4”

COOLING AIR VOLUME (CFM): 20,000

MAIN SUPPLY/ RETURN: 11 SQFT

BRANCH SUPPLY/ RETURN: 20 SQFT

Z ONE TWO:

SQFT OF AREA SERVED: 6,428 SQFT

COOLING CAPACITY: 37 TONS PACKAGED UNIT SIZE: 25’-11” X 7’-4”

SUPPLY/ RETURN: 8.5 SQFT

BRANCH SUPPLY/ RETURN: 16 SQFT

Z ONE THREE: (NOT SHOWN ON CHART)

SQFT OF AREA SERVED: 2,769 SQFT

COOLING CAPACITY: 5 TONS (EST.)

PACKAGED UNIT SIZE: N/A

COOLING AIR VOLUME (CFM): 1000 (EST.)

MAIN SUPPLY/ RETURN: 1 SQFT (EST.)

BRANCH SUPPLY/ RETURN: 2 SQFT (EST.)

Z ONE FOUR:

SQFT OF AREA SERVED: 10,248 SQFT

COOLING CAPACITY: 55 TONS

PACKAGED UNIT SIZE: 25’-11” X 7’-4”

COOLING AIR VOLUME (CFM): 25,000

MAIN SUPPLY/ RETURN: 15 SQFT

BRANCH SUPPLY/ RETURN: 25 SQFT

Z ONE FIVE:

SQFT OF AREA SERVED: 10,046 SQFT

COOLING CAPACITY: 55 TONS

PACKAGED UNIT SIZE: 25’-11” X 7’-4”

AIR

(CFM): 25,000

SUPPLY/ RETURN: 15 SQFT

BRANCH SUPPLY/ RETURN: 25 SQFT

Z ONE SIX: (NOT SHOWN ON CHART)

SQFT OF AREA SERVED: 1,766 SQFT

COOLING CAPACITY: 5 TONS (EST.)

PACKAGED UNIT SIZE: N/A

COOLING AIR VOLUME (CFM): 1000 (EST.)

MAIN SUPPLY/ RETURN: 1 SQFT (EST.)

BRANCH SUPPLY/ RETURN: 2 SQFT (EST.)

ACCADEMIA FILARMONICA ROMANA
ACCADEMIA FILARMONICA ROMANA MEGHAN E RODENHISER
CIRCUIT
CIRCUIT
CIRCUIT
CIRCUIT
CIRCUIT
SITE BOUNDRY
VILLAGUILIA
MINISTERO MARINA
LIGHT INDUSTRIAL AREA
VIA FLAMINA

A1 RESEARCH

As the ancient and modern seat of power in the Mediterranean, the city of Rome has a rich and diverse history spanning millennia. Traces of this deep rooted history are visible today through the city’s multitude of monuments, piazzas, urban systems, and architecture. It is impossible to design in a city such as this without understanding the context in which the city has developed and grown.

This research looks beyond aesthetics and design and seeks to understand how factors such as climate, geography, history, and politics shaped both the architecture and the urban fabric surrounding the city and the site. This analysis will help to inform our design and allow us to create a building that is truly connected and integrated into the urban fabric of the area.

Mulberry Tree
Salvia Rosmarinus
Flower Carpet outside of the Vatican
Roman Rose Garden
Cypress Tree -
Roses Holly
Cork Oak
Stone Pine
Carob

By researching, anaylizing, and drawing assemblies of other buildings, we are able to develop an understanding of how those materials and structures contributed to the over all architectural concept of the project. Often, when analyizing previously unknown buildings, new means and methods of construction are discovered as well as new materials. Looking at precedent projects allows designers to learn from other architects, as they may be dealing with similar programmatic, design, climatic and structural challenges. This project introduced us to the concept of intergrated envelope, structural, and architectural designs.

ARCHITECT: BERNARDO BADER SCHRUNS, AUSTRIA

The Alpine Sports Center in Schruns, Austria was built as an administrative office for Silvretta Montafon. The building was conceive of as the centerpiece of a larger urban planning project which included creating a new town square. According the Bernardo Bader, the project’s architect, the building, which is slight bowed inward at the main facade, serves as a hinge connecting the new development with the greater urban fabric surrounding the site. The exterior of the building is clad using a natural cut local stone. Using this stone not only allows the building to command a presence in the square but allows the modern form to fit into the context of the town and vernacular architecture. The goal was to make the being feel as though it belonged to the alpine landscape.

The walls of the Alpine Sports Center are comprised of three main layers: two layers of vertically cored clay brickwork and the natural stone facade with no added insulation. The interior layer of the vertically cored clay brickwork serves as the main structural support for the floors. The floors of the center are comprised of a 10 inch concrete slab,poured over top of an audio thermal layer, topped with impact sound insulation, sub floors, and oak wood flooring. The edge of the concrete slab rests on only the interior layer of brickwork as opposed to both the interior and exterior. As such only the interior layer of brick work is load bearing. Precast concrete lintels, set into the wall, are used to span the distance above the large window openings. The structural lintel are separated from the lintels seen on the exterior of the building by an insulation layer to prevent thermal bridging.

The exterior layer of the vertically cored clay brickwork serves as the thermal insulation layer for the building as well as the AVM barrier. The clay bricks used for this layer are highly insulated and moisture controlling, eleminating the need for any additional insulation or barriers. In general, the natural thermal properties of the clay blocks allows them to retain heat, preventing it from traveling between the interior and the exterior. In addition to the clay, the exterior stone cladding also contributes to the insulation of the building because it creates more thermal mass, keeping the interior conditioned as desired. Where there are window openings, double insulated thermal glass is used maintain a continuous thermal barrier around the entire envelope. Small thin panels at the edge of the windows open up to provide natural ventilation as needed during the summer. Pull down sun shades, embedded in the exterior concrete lintel allow for users to control the amount of sunlight let into the building.

THERMAL INSULATION / AIR & MOISTURE BARRIER

At Bernardo Bader’s Alpine Sports Center in Schruns, the first layer of vertically cored clay brickwork serves as the thermal layer as well as the AVM barrier. Clay’s natural thermal properties allows it to retain heat preventing it from traveling between the interior and the exterior. In addition to the clay, the exterior stone cladding also contributed to the insulation of the building because it creates more thermal mass, keeping the interior conditioned as desired. Where there are window opens, double insulated thermal glass is used maintain a continuous thermal barrier around the entire envelope. Pull down sun shades, embedded in the concrete lintel allow for users to control the amount of sunlight let into the building.

STRUCTURAL SYSTEM

At Bernardo Bader’s Alpine Sports Center in Schruns, the interior layer of vertically cored clay brickwork serves as the main structural support at the building envelope. 10 inch thick concrete slabs span each level and carry the loads of each floor. The edge of these concrete slabs rests only on the interior layer of clay blocks as opposed to both the interior and exterior layers. As previously noted, the exterior layer serves as the thermal insulation for the building. Precast structural concrete lintels are used to span the window openings. These lintels are separated from the decorative lintels seen on the exterior of the building by a layer of insulation to pervent thermal bridging.

COWAN COURT

where : Churchill College Cambridge

CONSTRUCTION

Cowan Court was an addition to an already existing residential complex for Churchill College. The project was centered around the idea of sustainability while also beginning to blend in with the existing buildings. The materials are used as a way to bring back the colors that were original to the college. The bay windows used are a characteristic of the original students rooms, the design of these windows was to give a space for the students to sit while, this was possible because of the thickly insulated walls for the most energy efficient structure. This design is a courtyard plan giving the students an area to study in the summer.

The materials used within this project were part of an environmental strategy, having passive ventilation throughout the structure, triple glazed windows and the use of solar electricity, solar water and rainwater collection. This was to reduce the amount of energy used by the building. They even went as far as to install a system that monitored the electricity within each room to make sure that people were not being wasteful.

The structure of this project is composed of glulam beams spanning 6.5 meters between glulam columns, this is an example of traditional beam and joist construction. There are deeper beams that provide a stiffness to the long span floors. The internal structure of the project does not line up between floors but the columns were placed in a very particular manner that allowed this project to be constructed the way it is. A major note of how this project is constructed is that all four walls on the exterior have a curve to them.

The courtyard design of this project is accompanied by the use of operable shutters on the exterior. This allows air flow throughout the space, giving the student the ability to control their own environment.

STRUCTURE DIAGRAM

TYPICAL ROOF ASSEMBLY

-STAND AND SEAM METAL ROOF

-4” INSULATION

-1 1/2’ EXPOSED GLULAM

-VAPOR CONTROL

-METAL DECKING

-1” INSULATION

-3/4” GYPROC SOUND BLOCK

-3/4” SKIM

-150x50mm GLULAM COLUMN

TYPICAL FLOOR ASSEMBLY

-3/4” WOOD FLOOR

-RIGID INSULATION -BATTEN -PLYWOOD

-360mm GLULAM BEAM

TYPICAL CEILING ASSEMBLY

-2x4 WOOD JOISTS

-3” INSULATION

-U-SHAPED METAL BRACKET

-GYPROC SOUND BLOCK -SKIM

TYPICAL WALL ASSEMBLY

-PREFABRICATED CLADDING CASSETTE

-70x50 TAPERED HORIZONTAL BATTEN

-50x38 VERTICAL BATTEN

-2x100mm CELOTEX FR5100 PIR BOARD FITTED BETWEEN TIMBERS

-150x50mm SFS FRAMING AT 600 -GYPROC SOUNDBLOC -SKIM

-ALUMINIUM SOFFIT ABOVE WINDOW / CLADDING

-OAK TRIPLE GLAZED WINDOW

TYPICAL SLAB ON GRADE ASSEMBLY

-3/4” WOOD FINISH

-WATER BARRIER

-GLULAM BEAM

-6” CONCRETE SLAB -RAMMED EARTH

TYPICAL BELOW GRADE WALL ASSEMBLY

-RAMMED EARTH

-WATERPROOFING MEMBRANE

-4” DRAINAGE PIPE

-CAST IN PLACE CONCRETE FOOTING

-200 RC UPSTAND BOARDMARKED WITH 400mm VERTICAL TIMBERS

-ALLOW FOR SOME NARROW BOARDS (SHADED) TO ENSURE JOINT LINES DO NOT ALIGN WITH THOSE ABOVE

The materials used for the facade of this project were reclaimed wood from floors of the french railway carriers. All these elements were prefab ricated cladding cassette compositing of seven 150 wide by 30 thick. These boards are tapered to horizontal battens screwed in with 5mm x 150mm long wood screws into prefixed vertical battens. There are five different types of facade design, all varying in length and one that varies in style. The one that is different sets at the top of the project and they are used as a way to give depth between old and new materials, show ing the weathered pattern along the reclaimed wood. ALong these facades there are elements that are slightly smaller just to make sure that the joints do not line up perfectly, these will be clad on site .

This project uses the sun as a way to power and heat the building. They do this through the use of solar panels and triple glazed windows that allow little amounts of light through. This use of passive energy consumption helps the project to be sustainable not only through its materials but also through its energy usage. There are me chanical units that are located in the basement just in case but they try to solely rely on other uses of power. This project is also constructed using a dense roof to help keep the building a normal temperature.

This project also has a system in place to collect rainwater and use it throughout the project, and also to water the courtyard space. The water runs off from the roof into a drainage pipe that then drains the water to a tank. This will purify the water and make sure that it is still able to be used.

MANUFACTURERS

A2 PRELIMINARY STRATEGIES

These preliminary design studies were used as a way to develop site and compositional strategies that were not dictated by program and adjacencies. Consideration was given first to the site. Free from the preconceived notions of program, site schemes were developed based on the surrounding context, history, and extensive research. This helped to generate initial thoughts on design principles and site intentions that would be carried throughout the project.

These intentions were further explored through compositional exercises, during which buildings utilizing different organizational strategies were studied and analyzed. Geometric principles and organizational stragtegies from these building were applied to the initial site schemes in order to help concieve of the project as an architectural form rather than a series of adjacencies.

Only after these initial explorations were complete was occupancy and programming added into the design process and design principles further articulated.

SCHEME 1 - GATEWAY TO CULTURE

This project is intended to interact with the Accademia Filarmonica Romana; a public institution that celebrates and promotes the arts. One of the most important spaces at the Filarmonica is the Gardini della Filarmonica. The garden serves as a performance and gathering space; a place where the musicians and artists can share their work and interact with the public. The garden is accessible through an arched passageway carved from the Accademia’s imposing façade, set against the street.

The goal of this intervention is to engage with the Gardini della Filarmonica as well as the public along the Via Flaminia. The building is set against the street, similar to the Accademia and other facades surrounding it, creating the illusion of an imposing wall continuing down the street. A path is carved through the building at angle, visually connecting the street to the garden, giving the public a glimpse at what lays beyond the walls. Like the pathways of the Gardini della Filarmonica, the path through the space does not reveal the entire garden, instead it draws people down the path, enticing them to discover what is on the other end. The walls of the buildings gradually compress the space between them as one walks towards the garden, as the vegetation and trees do within the garden. At the end of the path, the walls fall away to reveal the main outdoor performance space of the Accademia. This journey down the path is reminiscent of journey visiting dignitaries would make down the Via Flaminia, as they passed through the Porta del Popolo, and Rome was revealed to them.

The main cut through the building was designed to interact with people traveling from the Porta del Popolo towards Flaminio. In order to engage with members of the public travelling towards the historic center a secondary cut was made creating a small piazza at the start of the path to the garden. This cut invites people to enter into the space and provide a space for informal and impromptu performances by musicians and artists of the Accademia.

While the shapes of the buildings are determined by the pathways cut through the site, the materiality and organization are inspired by the vernacular buildings of Rome. The buildings are designed to be massive and monolithic in appearance, making use of thick masonry walls similar to those of the ancient roman ruins and the defensive walls of the city. Similar to the urban fabric that surrounds the site, the buildings and their programs are centered around courtyards. These courtyards serve not only as circulation and recreation spaces for the resident artists, but as a means of allowing light and air to move through and enter the building. While the walls facing the street remain massive and monolithic, as many roman buildings do, the walls facing the private gardens open up allowing musicians and visitors to the garden to enjoy an easy flow between the interior and exterior.

Throughout Rome, there is a set of relationships between public vs. private, street and site, interior vs. exterior that most buildings adhere to. The public area of the street is defined by the massive facades that protect the interior of the building from the world outside. It is very clear where the public space ends and the private space begins. This scheme asks the question what if this was not the case? What if the public space extended beyond the street? How can this be achieved without ignoring the relationship between street and site?

Often along Italian streets, loggia’s are used as transitional spaces between the public and private realms. They allow for the creation of a barrier without shutting out the public. Instead of thinking as the loggia as a series of columns and arches, the loggia at the edge of the site is made of a series of parallel walls extending into the site. As one approaches the site the walls create the illusion of a closed, solid façade, maintaining the relationship to the street. it is only as one passes in front of the loggia that the walls open up revealing the site beyond. The extended walls of the loggia frame ones few of the garden and the buildings beyond allowing the public to visually interact with the site. The perspective quality of the loggia lining up with the parallel buildings beyond entices visitors to be pulled through the site, where they can appreciate the gardens and the artists at work.

The central pathway between the two buildings was inspired by the feeling of walking through the old streets of Rome. Life happens between the buildings and in the streets in Italy. One walks by store fronts, restaurants, and shops and there is an opportunity to interact with the people around you. The pathway between the buildings becomes the main circulation space for both the public and the artists. Instead of an imposing façade separating the interior of the buildings from the exterior of the building, the façade becomes permeable, through the use of a double wall system. The interior wall is made of glass while the exterior wall is composed of a brick screen. This screen allows the sounds of music, dancing, and performances to move flow out towards the public, creating a sensory experience for those moving between the buildings, while providing a sense of privacy and protection from the sun at the interior.

Just as with the loggia, and the screened walls, the design of the landscape plays off of the idea of conceal and reveal. Reminicant of moving through the Villa Giula, it is not until one moves through the the site that they discover the changes in the landscape that create sunken spaces where exterior performance and gathering can take place.

VILLA FARNESE

LOCATION: CAPRAROLA, ITALY

BUILT:1521

ARCHITECT: VIGNOLA

The plan of the Villa Farnese is a courtyard plan arranged along two axes; the primary axis running north to south and the secondary axis running east to west. The square courtyard is centered were these two axes intersect, creating four quadrants. A smaller square is located in each quadrant of the courtyard helping to articulate the axes and the four entrances to the villa. The geometry of the courtyard is then used to arrange the rooms in the rest of the plan as the lines forming the edges of the squares are carried through the building to create walls. The courtyard is surrounded by a gallery space, used primarily for circulation. The east and west sides of the gallery are narrower than the north and south sides. This change in dimension is suggestive of greater importance given to the entrances at the north and south façades of the villa. A similar geometry is used in the rooms that form the perimeter of the building, lending greater importance to the rooms situated along the north and south façades. The fenestration pattern on the façades further articulates the importance of the north and south facades over the east and west facades as the windows to the north and south are regularly spaced whereas the windows to the east and west are symmetrical about the axis, but are irregularly spaced. While the axes and the gallery serve as the primary circulation space in the villa, visitors also have the option of circulating through the villa along the outer walls of the rooms. This secondary circulation space allows visitors to move between rooms without having to use the gallery.

PROJECT PLAN

This plan began with creating a square mass and placing it paralell against the street. In order to create a connection between the gardens and the street, a path was cut through the building creating the primary axis of the building. A secondary cut was made perpendicular to the first, creating the secondary axis and providing the space for a small public piazza in the front of the building. Like Villa Farnese, a courtyard and gallery space serves as the primary circulation space in the building. The rooms are placed around the courtyard, protecting the interior of the building. The unusual geometry of the courtyard, which was created using the direction of the exterior walls instead of an orthagonal grid, is use to determine where the walls of the various rooms will be placed. the smaller of the two building holds the public function as well as the orchestra halls. The larger building holds the conservatory and office. The hierarchy of the building is express through the tilted roof. The walls use a brick screening method to creat a monolitihic facade while still allowing light into the building.

CIRCULATION

PROJECT PLAN

ORCHESTRA CHAMBERS

CONSERVATORY

MANAGMENT

PUBLIC SPACES

CIRCULATION/ SERVICE

BAGSVAERD CHURCH

LOCATION: BAGSVAERD, DENMARK

BUILT: 1976

ARCHITECT: JORN UTZON

Bagsvaerd Church has a long, slender, rectangular form, arranged along a grid, which encompasses the entire program. The corridors, which serve as the primary circulation space, run along the exterior walls, creating the façades, and divide the building into distinct programmatic zones, ranging from public to private. On one side of the building, the exterior wall is completely closed off, protecting the spaces within from the outside world. On the other side of the building, the exterior walls have been punctured and eroded, allowing people to access the interior courtyards located in each section of the building. These courtyards serve as secondary circulation spaces. Though the exterior walls hide the true form of the spaces within the building, they do express the hierarchy of the spaces through height. The taller walls correspond with the religious and public programs of the building, all located to one side of the building. As one moves further into the building, the spaces within become more private and closed off. The rooms become smaller, the courtyards become enclosed, and the corridors become less permeable.

PROJECT PLAN

This plan was organized using a grid system and a 7.5 foot square module. Like Jorn Utzon’s Bagsvared Church, the circulation corridors are pushed to the exterior of the building creating a protective barrier between the interior and the outside world. This protective barrier is solid and monolithic on three of the foor sides of the buildings. The fourth side is carved away allowing entrances into courtards located in the more public areas of the buildings. these court yards serve as secondary circulation. The facade uses a perforated brick screen to maintain a sense of privacy and protection for the interior spaces while also allowing light and music to flow between the public street and the spaces. The brick screen also references the degree of privacy each space posesses. Denser screens are used in front of the more private spaces. The building’s facade hides the true form of the building inside, whose ceiling are shape to create the best acoustical enviornment for the various concert halls and practive rooms. The corridors, in addition to providing the primary circulation space for the building, also help to divide the space into distinct public, semipublic, and private zones. Dividing the program into two buildings allows for built enviornment to define a space for social interaction inbetween.

CIRCULATION

PROJECT PLAN

ORCHESTRA CHAMBERS

CONSERVATORY

MANAGMENT

PUBLIC SPACES

CIRCULATION/ SERVICE

CREMATORIUM POLDERBOS

LOCATION: OOSTENDE, BELGIUM

BUILT: 2014

ARCHITECT: KERSTEN

The geometry of the Crematorium Polderbos originated with a square that has been slightly rotated. This rotation contrasts with the orthogonal orientation of the interior geometries, creating triangular exterior spaces around the entire building. The spaces in this building are organized in a series of longitudinal bands that vary in width, alternating between narrow and wide. These bands are shifted in response to the rotation of the roof. Areas of the bands that would have extended past the roof have been cut in order contain the program within the square geometry. The narrow bands running through the building contain all of the auxiliary and service spaces, as well as portions of the circulation. These narrow bands separate the wider bands that hold the building’s primary functions. The central band is the widest, suggesting its hierarchical importance, and contains the ceremonial/ religious spaces. The midsized ban, located to the left of the building, holds the private/ technical functions of the building while the small band to the right holds the public spaces. The semicircular space holds the administrative offices of the building. Visitors enter the building via the narrow band that separates the two public bands. Movement throughout the building occurs by weaving between the public areas and the circulation bands as needed.

PROJECT PLAN

This plan begins with a square mass that was placed paralell to the street. In order to create a connection between the street and the Giardini della Accademia, the mass was cut on a diagonal. The building’s spaces are organized in alternating lateral bands. The smaller bands of this plan contain the service and circulation spaces for the building as well as the entrances to the concert halls and the conservatory. the bands are arranged from the street to the interior of the site going from public to private functions. The largest of the bands, holds the conservatory spaces and has the potential open up onto the garden beyond. The exerior of the building expresses hierarchy through the height of the bands which have been carved by pulling and shifting the corners of the masses. The concept of banding is carried onto the facade where the windows have been arranged in long, narrow strips emphazing the importance of the cut through the mass.

CIRCULATION

PROJECT PLAN

ORCHESTRA CHAMBERS

CONSERVATORY MANAGMENT

PUBLIC SPACES

CIRCULATION/ SERVICE

MUSEE CANTONAL DES BEAUX ARTS

LOCATION: LAUSANNE, SWITZERLAND BUILT: 2019

ARCHITECT: BAROZZI VEGA

The geometric composition of Barozzi Vega’s Musee Cantonal des Beaux Arts is based off of a long, narrow module that is repeated to create a compact, slender form. The width of this module is expressed on the exterior of the building using a series of louvers that spans the entire north facade. The louvers allow the façade to become more permeable on this side, where the building faces onto a public space. In contrast, the south façade of the building is monolithic, protecting the building and the program from the industrial railyard beyond. On the inside, the modules are used to place the interior partitions. Throughout the first floor, there are a number of narrow cores, typically 2 -3 modules wide, which hold the auxiliary functions and service spaces that help to define the public areas of the building. The most important public space is the central atrium. The atrium is aligned with the historic 19th building located along the south wall of the museum and is further accentuated by the walls that extend into the public square. The main horizontal circulation space occurs along the south wall, where visitors can pass between the various galleries. A secondary circulation space occurs along the north side of the building, at the top of the service cores. These small passages lead to emergency exits located on either side of each space. As one moves from the central atrium towards the ends of the building the spaces become more private, holding functions such as office and classrooms, and less important hierarchically.

PROJECT PLAN

This plan was generated using long narrow modules to organize the various programmatic spaces. The spaces are separated on the interior by long, cores that serve as the vertical circulation and service spaces for the buildings. The primary horizontal circulation space is located at the rear of the building and extends the entire length of each building, giving access to each area. The programmatic spaces are organized within the building moving from public to private along the horizontal axis. The facades of the building facing the public street are louvered, providing a sense of permiability as one moves through the site. The more private a space is the denser the louvers become, allowing visitors to get a sense of the building’s program from the exterior. The public is able to further read the building from the exterior through the use of banding that coresponds with the service spaces. These spaces are constricted allowing light to enter the building through these spaces. Dividing the program into two buildings allows for built enviornment to define a space for social interaction inbetween.

CIRCULATION

PROJECT PLAN

ORCHESTRA CHAMBERS

CONSERVATORY

MANAGMENT

PUBLIC SPACES

CIRCULATION/ SERVICE

LOCATION: LOS ANGELES, CA, USA

BUILT: 2002

ARCHITECT: RAFAEL MONEO

Unlike the other plans analyzed in this exercise, Rafael Moneo’s plan for the Cathedral of Our Lady of the Angels is not organized by overarching geometries. Instead, this plan was organized around a directional quality. Due to the fact that both the entry and the altar had to be facing the east, Moneo had to come up with a way to bring visitors all the way to the back of the church so they could enter on axis with the nave. The nave of the cathedral is separated from the circulation spaces by long cores that hold smaller programmatic and auxiliary spaces. These cores direct visitors down the long hallways towards the back of the church from which they can approach on altar on axis. One will notice that the main axis of the cathedral passes through the cross window and altar and dictates the path of the central aisle. The walls of the service cores and the circulations spaces are angled in such a way that as one moves down the aisle the walls open up towards the stage and alter. Secondary circulation paths are cut through the service cores that allow visitors to enter the nave from the side. These paths are also cut in order to direct ones attention towards the central aisle. As a result of this directional geometry, the nave and altar become the main hierarchical spaces, followed by the service cores, circulation spaces, and garden.

PROJECT PLAN

This plan was generated with the experiance of the approach in mind. The building was formed by creating a square mass and placing it paralell against the street. A path was cut through the building to create a connection between the gardens and the street, while a secondary cut was made, perpendicular to the first, to create small public piazza in the front of the building. the lines of the exterior walls of the building were used to determine perspectival point from which the location of the walls was determined. The goal of this approach was to create spaces where the hierarchically important programs have the sense of opening up as you move through them. The spaces that were given hierarchical importance were the large rehersal spaces in the conservatory and the concert halls. These spaces are defined by large cores on either side that separate these programs from the circulation areas. Within these cores are smaller programatic spaces and service areas. The massing of these servic cores reach higher than the other spaces. This allows visitors to read the program of the building from the exterior and light to enter into the building through these cores.

CIRCULATION

PROJECT PLAN

ORCHESTRA CHAMBERS

CONSERVATORY MANAGMENT

PUBLIC SPACES

CIRCULATION/ SERVICE

ONE HALF HOUSE

LOCATION: N/A

DESIGNED: 1966

ARCHITECT: JOHN HEJDUK

The formal composition of John Hejduk’s One Half House is consistent with that of a fragmented plan. The composition of this plan is dictated by the primary geometries he uses: the circle, square, and diamond. These geometries are sized in such a way that the diamond fits within the circle and the circle fits within the square. The geometries are then cut in half, creating a semi-circle, a rectangle, and a triangle. The rectangle is placed beneath the semi-circle, along its vertical axis, at a distance equal to half the rectangle’s height. The triangle is rotated 90 degrees and is aligned along the semicircle’ horizontal axis. The area formed by these primary geometries becomes the main circulation area between these spaces. These geometries are then placed within a square, with the edges of the square meeting the bottom of the rectangle, the point of the triangle, the outermost point of the circle. The resulting square helps to place the upper, horizontal circulation band. This horizontal band is then connected to the primary geometries via a vertical band, which meets the center point of the right side of the rectangle. An orthogonal grid is then overlaid on top of these geometries, which allows for the interior walls to be placed. The main functions of the house are held within the primary geometries whereas the circulation is held in the bands and the space between the geometries.

PROJECT PLAN

The goal of this plan was to create a complex that plays with the idea of conceal and reveal. The unique rectangular mass at the front of the site is a loggia. This loggia is design to create the illusion of a solid mass until people approach the space. The primary program spaces are arranged around a central circulation axis. The exterior walls of these programmatic masses begin to suggest boundries that create smaller courtyards for the public to move through and occupy between the buildings. These courtyards created by the building allow the public to move through the space and discover the different forms of art and proformance that are house in this institution. The spaces are arranged so the public spaces are located near the front of the site while the private spaces are protected in the back of the site. The size of the buildings express the hierarchy of the spaces within

CIRCULATION

PROJECT PLAN

ORCHESTRA CHAMBERS

CONSERVATORY

MANAGMENT

PUBLIC SPACES

CIRCULATION/ SERVICE

Formal Composition:

This building was organized using a grid system and a 7.5 foot square module. Similar to the way the buildings and structures define the public spaces on the site, the circulation corridors define the different spaces within the building. These circulation spaces create an inhabitable, protective barrier between the interior spaces and the outside world that are sized depending on the programs that they service. Where the facades face the edges of the site, the walls of a building become solid and monolithic in nature, drawing from the roman tradition of protecting the building’s interior. When the facades face onto a public space, such as the pathway between the buildings the walls are carved away, allowing entrances into courtyards located in the more public areas of the buildings. In addition to allowing light an air to enter the building, these courtyards also serve as circulation spaces between the public pathway and interior spaces of the building, creating a connection between the two spaces. The public facades of the building, rather than being solid masonry walls are articulated with perforated brick screens maintain a sense of privacy and protection for the interior spaces while also allowing light and music to flow between the public street and the spaces. The brick screen also references the degree of privacy each space possesses. Denser screens are used in more private space where as more permeable screens are used in public spaces.

The hierarchy of the spaces within the building is readable from the building’s exterior. The taller the volumes are, the more important the spaces are within. While this gives visitors a hint at what is happening on the interior of the building, it is not until they are inside that they discover the true form of the various rooms. Inside the ceilings are shape to create the best acoustical environment for the various concert halls and practice rooms

Formal Composition:

This building was organized using a grid system and a 7.5 foot square module. Similar to the way the buildings and structures define the public spaces on the site, the circulation corridors define the different spaces within the building. These circulation spaces create an inhabitable, protective barrier between the interior spaces and the outside world that are sized depending on the programs that they service. Where the facades face the edges of the site, the walls of a building become solid and monolithic in nature, drawing from the roman tradition of protecting the building’s interior. When the facades face onto a public space, such as the pathway between the buildings or the Giardini della Filarmonica, the walls are carved away, allowing entrances into courtyards located in the more public areas of the buildings.

In addition to allowing light an air to enter the building, these courtyards also serve as circulation spaces between the public pathway and the Giardini della Filarmonica, creating a connection between the two spaces. The public facades of the building, rather than being solid masonry walls are articulated with perforated brick screens maintain a sense of privacy and protection for the interior spaces while also allowing light and music to flow between the public street and the spaces. The brick screen also references the degree of privacy each space possesses. Denser screens are used in more private space where as more permeable screens are used in public spaces.

The hierarchy of the spaces within the building is readable from the building’s exterior. The taller the volumes are, the more important the spaces are within. While this gives visitors a hint at what is happening on the interior of the building, it is not until they are inside that they discover the true form of the various rooms. Inside the ceilings are shape to create the best acoustical environment for the various concert halls and practice rooms

PLACE,

The site is located along the Via Flaminia, an ancient road that connected Rome to cities in the north. The Via Flaminia begins just outside of the ancient city walls at the Porta Del Popolo and stretches all the way to Rimini. For centuries, the land along this road was made up of vineyards, farms, and villas. Farm buildings, churches, tombs, and wall lined the road much like the modern buildings do today. Located next to the site is the Accademia Filarmonica Romana, an organization that brings together musicians and artists of all skill levels and social standings to promote the arts within the community. Often, the Accademia will utilize the back garden as a social and concert space inviting the public in to view the various performances throughout the year. The issue however is that the Giardini is cut off from the street, limiting the public’s interaction with the space.

The main intention of this intervention is to create a series of public spaces that connect the Giardini della Filarmonica will the public realm of Via Flaminia. Similar to the medieval fabric of the city, the buildings and structures on the site are designed to serve as shapers of these public spaces. They not only define the boundary of the site itself, but also the edges of the public spaces within the site. In some cases, the buildings define the edges of the spaces whereas at other times they are carved away to create spaces within the building. When placing the building on the site, it was important push the intervention up to street, creating a strong relationship between the street and the rest of the site. Throughout Rome, buildings line the street, not only defining the edges of the public realm, but creating an imposing, continuous façade stretching the length of the roadway. These strong facades protected the interior of the building by creating a barrier between it and the outside world. To ignore this established relationship to the street would make the building feel out of place within the context of the city. However, this intervention challenges the notion that these street facades have to be a barrier between the street and the interior of the site. What if this façade where to become permeable?

SPACE, CHARACTER, ATMOSPHERE, IDENTITY

Throughout Italy, one of the most common building typologies is the courtyard building. The courtyard plan has been used in this part of the world for millennia, stretching all the way back to the Roman Empire. In plans such as these, courtyards are used both a social spaces as well as circulation spaces within their building. They are protected public areas to be used by members of the family and their guests. In many cases, these courtyards also served as devices to bring light and fresh air into the building. Much like the public piazzas in the city, the building defines the edges of the courtyard creating these public spaces.

In this intervention, the intention is that visitors to the site will be able to circulate through the site via the public spaces created by the buildings and structures. The spaces are purposefully arranged so the more public spaces are located towards the front of the site (such as the gardens and entry areas) while the more private areas are located to the rear of the buildings. The pathway created by the two buildings is designed to draw visitors through the site, allowing them to discover aspects of the building as that travel down the path. When walking through the site and courtyards, the line between public and private becomes slightly blurred. The walls of the courtyard become semi permeable, through the use of brick screens. This allows visitors to catch a glimpse of the artists at work while also allowing the music to flow into the courtyards, filling the space.

The building is designed to have a monolithic quality. This design choice is in reference to the monolithic qualities of the Roman ruins and city walls located just a few hundred feet away. This quality of the building was also inspired by the rationalist Italian architecture, which became popular in the 1920s and 30s when this area of Rome was developed. Rationalist architecture in Italy drew inspiration from the tradition forms of ancient roman architecture and simplified these elements to create a modern architecture that felt timeless, yet still connected to site and its context.

ORGANIZATION, ARTICULATION

This building was organized using a grid system and a 7.5 foot square module. Similar to the way the buildings and structures define the public spaces on the site, the circulation corridors define the different spaces within the building. These circulation spaces create an inhabitable, protective barrier between the interior spaces and the outside world that are sized depending on the programs that they service. Where the facades face the edges of the site, the walls of a building become solid and monolithic in nature, drawing from the roman tradition of protecting the building’s interior. When the facades face onto a public space, such as the pathway between the buildings or the Giardini della Filarmonica, the walls are carved away, allowing entrances into courtyards located in the more public areas of the buildings. In addition to allowing light an air to enter the building, these courtyards also serve as circulation spaces between the public pathway and the Giardini della Filarmonica, creating a connection between the two spaces. The public facades of the building, rather than being solid masonry walls are articulated with perforated brick screens maintain a sense of privacy and protection for the interior spaces while also allowing light and music to flow between the public street and the spaces. The brick screen also references the degree of privacy each space possesses. Denser screens are used in more private space where as more permeable screens are used in public spaces.

The hierarchy of the spaces within the building is readable from the building’s exterior. The taller the volumes are, the more important the spaces are within. While this gives visitors a hint at what is happening on the interior of the building, it is not until they are inside that they discover the true form of the various rooms. Inside the ceilings are shape to create the best acoustical environment for the various concert halls and practice rooms

This project is designed to be monolithic in nature, using brick as the primary building material. The use of brick is a reference to the ancient Roman’s use of brick in many of their structures and buildings as well as the continued use of masonry construction across Italy. The heaviness of the material anchors the project to the earth and the site and enhances the protective quality of the facades. While the use of brick helps the design to achieve this monolithic quality, the material is also incredibly versatile allowing for different application of the same brick unit across the entire façade. While inherently textured, bricks can be arranged in order to create different wall textures across the building, adding an extra layer of dimension to the project and allowing further definition of space. The use of brick, as opposed to concrete, also helps to enhance the sense of scale that accompanies this building. Regular module of the brick helps visitor to understand the true size and dimensions of the building.

While bricks are typically thought of as a solid material, this project uses them to create transparency in transitional spaces. The bricks are arranged in such a way that they create various types of brick screens, allowing light to be filtered into the building, while sound is allowed to travel out into the public spaces. The density of the screens is used to articulate the building and allow the public to read the building from the exterior. Denser screens are used in more private space where as more permeable screens are used in public spaces.

In this environment, brick is an ideal choice for construction. The density of the brick and the configuration of the walls provides the opportunity for the brick to be utilized as more than just structure. The brick walls can be used to help achieve a thermal mass that keeps helps the building temperature regulated. Additionally, if designed correctly, the use of brick could allow for little to no insulation to be used within the walls themselves.

ENVIRONMENTAL STEWARDSHIP

One of the goals of this intervention is to draw from traditional and vernacular Roman architecture in order to integrate concepts of passive strategies. One such aspect of vernacular Roman architecture is the use of brick masonry. The thick masonry walls absorb the sun’s energy during the day, keeping the interior of the buildings at a comfortable temperature, and release the stored heat at night when the temperature drops. The use of these thermal walls helps to keep the interior of the buildings comfortable without the need for heavy mechanical systems.

Another common strategy for sun management in Rome is shutters. Shutters on roman buildings are used to help control the amount of sunlight coming into the building, preventing the air on the interior of the building from heating up. While traditional shutters will not be employed in this design, the idea of controlling and managing the amount of sunlight entering a space a consideration. The brick screens employed along the façade help to control the amount of sunlight coming into the building, helping to create a cooler environment for users of the space.

The configuration of courtyards within the structure is also inspired by traditional Roman architecture. Many buildings in Rome either have thin profiles or have a courtyard at the center. These building configurations allow for increased cross ventilation through the structure, cooling the space without the need for A/C. Courtyard buildings, or buildings arranged along a narrow street also enjoy the benefits of the “courtyard effect”. During the day, the sun heats the air in the courtyard or narrow street. The warm air rises, causing the cooler air in the interior of the building to rush out, creating a cooling effect. When night falls, and the temperatures drop, the cool air then drops into the courtyard, causing the airflow to move in the opposite direction.

Garden space to engage with the public and absorb rainwater.

Buildings oriented to take advantage of the east west winds for cooling.

Brick screening to control the amount of sunlight entering the space.

Brick masonry construction for thermal mass benefits.

Courtyard effect to help cool the interior spaces of the building.

Courtyards provide light and fresh air to interior spaces

A3 DEVELOPMENT OF PRELIMINARY DESIGN

DESIGN

The purpose of this assignment was to further strengthen our design principles and intentions. In good architecture, every aspect of the project’s design is helping to further the intentions and enhance the character of the building. Developing a cohesive set of design prinicples helps to create a stonger, more thoughtful project. This assignment also began to consider the technical needs of the variuos programmatic spaces of the project. Research on acoustics, room shapes, finishes, and technology was conducted as the needs of these space would greatly affect the design of the overall project.

Arguably the most important part of designing for a rehearsal space is the room geometry. Yes, existing rooms with poor geometries can be adapted to perform better acoustically through different finishes. However, when the room is shaped with music in mind, the acoustical potential for the room will grow exponentially.

The geometry of the room defines the quality of the music that is produced. When designing rehearsal spaces, architects should avoid using flat, parallel facing walls. If the finishes of these walls are sound reflective, this configuration can cause flutters and echoes, where sound bounces back at the musicians uncontrolled, creating an uneven mix of music. Designers should also avoid using concave shapes, such as curving walls, as this configuration will focus the music to one area in the room, creating a hot spot. The optimal configuration for walls and ceilings is splayed and angled surfaces. The angle of these surfaces help to prevent flutter and echoes while allowing the sound to better distribute throughout the room.

When sizing rehearsal spaces, a good rule of thumb is each musician requires 30 square feet of floor space and vocalists require 15 square feet. This rule allows for both rehearsal and circulation space. The volume of the room is critical when designing rehearsal spaces for both orchestras and choirs. Small band rooms with low ceilings will be overly loud and reverberant, affecting the quality of the music. Higher ceilings help to control the sound of larger bands and allow the musicians to accurately hear their sound. Ideally, rehearsal spaces should have 550 – 700 cubic feet of volume per instrumentalist and 350 – 500 cubic feet per vocalist. At a minimum, rehearsal spaces require 400 cubic feet per musician and 300 per vocalist. In most cases, large music groups require at least 15 – 20 foot ceilings.

Traditionally, the most acoustically perfect room is one whose dimensions are based off of the golden ratio.

Up to 80 musicians or 80 vocalists

Individual Practice Room
Flutter Echo
Noise Hotspot
Splayed Reflective Walls
Angled Reflective Ceiling
ROOM GEOMETRY:

1) Wall Diffuser Panels on the upper and lower walls.

2) Hard surface prefered on floor for sound reflection.

3) Absorbtion Panels help to evenly distribute the sound.

4) Air space below the risers to maintain room volume.

5) Mix of diffusers and absorbtion panels for better sound quality.

ACOUSTICAL FINISHES:

Once the geometry of the room has been designed, or if the room is existing, acoustical finishes can be used to further refine the acoustical properties of the room. Ideally, every rehearsal space should have a mix of sound reflection, sound diffusion, and sound absorption. Mixing these acoustically strategies will help to create a well-balanced room.

Sound reflecting materials help to direct the sound across the room, towards the conductor, and back to the musicians. This allows them to hear their own music in relation to the rest of the group. Because musicians’ sound is directed at different angles reflective materials have to be placed throughout the room. For trumpets, whose sound is directed forward, reflective materials are best placed on the walls. For woodwind instruments, such as clarinets, reflective materials are best placed on the ground, where the majority of their sound is directed. Because of this, rehearsal room floors should not be finished with carpeting or soft materials, as this would dampen the sound.

Having solely sound reflecting surfaces in a rehearsal room will cause a big, booming effect and could result in an uneven distribution of sound. Sound diffusing devices and finishes help to scatter the sound throughout the room, creating a more even sound throughout the space. Additionally, sound diffusing surfaces help to reduce flutter and echoes in spaces that are not geometrically ideal. There are several different types of commonly used diffusers including barrel diffusers, pyramid diffusers, and wood block diffusers, all of which can be applied to either the ceiling or the wall. As with sound reflecting panels, sound diffusers should be placed throughout the space, on the upper and lower walls as well as the ceiling.

Sound absorbing materials are incredibly important in rehearsal spaces. While sound reflecting and diffusing materials help to disperse the sound throughout the space, there may still be issues with the volume of the music or the geometry of the space. Sound absorbing materials can help to correct geometric issues in the space and reduce the amount of reverberation in the hall. Additionally, while reflection and diffusion panels help the control the higher and mid frequency sounds, absorption panels help to control the lower frequency bass sounds. Like with everything in acoustics, too much absorption material can cause the sound to be dull and flat.

SOUND ISOLATION:

While the geometry and acoustic finishes focus on fine tuning the sound inside the room, designers should also consider the sound travelling outside of the room. In rehearsal spaces, ambient noise and other sounds can affect the tone of the music produced by the musicians. Ideally, designers should try to isolate rehearsal spaces from other noise producing spaces.

Rehearsal rooms and other practice rooms should not be placed next to each other, as the sound will travel through the walls and affect the surrounding rooms. In this case, the only way to isolate the sound would be through costly construction assemblies. Ideally, rehearsal and practice rooms should be separated by buffer zones or acoustically dead areas. This arrangement limits the amount of sound traveling between live music rooms, providing the sound isolation desired in these spaces.

Another consideration is the mechanical equipment that the building requires. Every room requires ventilation; however tradition means of ventilation are not suitable for music spaces. Commonly, air supply ducts supply air to multiple rooms along a single duct. While this arrangement saves money, it allows sound to travel between the spaces which can affect the musicians in other rooms. One way to solve this issue is by using acoustically lined air supply branches off the main duct. This configuration would limit the amount of sound traveling between the rooms.

Mechanical units themselves also can cause acoustic issues. When in use, mechanical units emit vibrations and sound waves that can travel that can travel through the floor. For this reason, mechanical units are not usually placed directly above or below the rehearsal or musical spaces. In such cases that mechanical equipment has to be placed near the playing spaces, there are ways to mitigate the vibrations that travel through the structure. The most common way to isolate these vibrations is to mount the mechanical equipment on steel spring isolators. These springs absorb the vibrations of the equipment, much like the shocks on a car, and limit the level of noise transmitted through the structure.

VENTILATION ARRANGEMENT:

POOR VENTILATION ARRANGEMENT

Direct supply line allows sound to travel through all rooms

GOOD VENTILATION ARRANGEMENT

Acoustically lined supply branches prevent sounds from travelling between rooms

POOR MECHANICAL SOUND ISOLATION: Vibrations and soundwaves travel through the structure.

GOOD MECHANICAL SOUND ISOLATION: Vibrations and soundwaves are isolated from the structure.

Band Rehearsal Room

WALL ASSEMBLY OPTION 1: STC RATING: 60

5/8” GYPSUM WALL BOARD (2)

3 5/8” STEEL STUDS @ 16” O.C.

3 1/2” FIBERGLASS BATT INSULATION

1” AIR SPACE

3 1/2” FIBERGLASS BATT INSULATION

3 5/8” STEEL STUDS @ 16” O.C.

5/8” GYPSUM WALL BOARD (2)

WALL ASSEMBLY OPTION 2: STC RATING: 60

5/8” GYPSUM WALL BOARD

GREEN GLUE SOUND MEMBRANE

5/8” GYPSUM WALL BOARD

3 5/8” STEEL STUDS @ 16” O.C.

RESILIANT BARS @16 O.C.

3 5/8” STEEL STUDS @ 16” O.C.

3 1/2” FIBERGLASS BATT INSULATION

1” AIR SPACE

LOAD BEARING BRICK WALL

WALL ASSEMBLY OPTION 2: STC RATING: 60

5/8” GYPSUM WALL BOARD GREEN GLUE SOUND MEMBRANE

5/8” GYPSUM WALL BOARD

3 5/8” STEEL STUDS @ 16” O.C.

RESILIANT BARS @16 O.C.

1 1/2” WOOD BATTENS @ 16” O.C.

1 1/2” FIBERGLASS BATT INSULATION

LOAD BEARING CAVITY BRICK WALL

When looking to design a chamber music hall it is important to understand all of what goes into the design. There are multiple different ways to approach this type of hall, but it is also important to understand the difference between a chamber music hall and a theater. Chamber music is focused on string and wind instruments as well as piano and maybe opera. This type of program has differing requirements as well as considerations that need to be had. It is the consideration of seating and how that effects the stage and those requirements, which in turn effects how an architect will need to approach the space acoustically. All of these come together to create an overall experience that a person could have within the Chamber Music Hall.

There are overarching styles of theaters that begin to determine specific layouts within a concert hall. The first is a SHOEBOX it is a simple rectangular room with balconies. It is a simple design but if it is not designed correctly, it can have flutter echoes. This will need certain materials and the introduction of elements along the walls help to reduce the amount of flutter echoes. The next hall type is FAN SHAPED can accommodate large number of audience members while still having everyone face the performers. It is not prone to flutter echo because there are no parallel walls. Having the back of the hall be wider and more spacious this helps for the sound to not get trapped making the use of acoustical elements not as necessary. The last style is VINEYARD. This type has become very popular because of the relationships it begins to create with the audience and performers. The irregular nature of this type of concert hall helps to break up the sound to help avoid acoustical issues such as flutter echo’s and focusing. Starting with a general shape these three styles help to determine the seating arrangement and how the overall design of the theater can progress.

SEATING CONFIGURATION TYPES:

There are many different seating types that a Chamber Music Hall can have, this will determine how the space is then made up. The first seating layout that the space could be END STAGE, this is a seating arrangement where all the audience members are facing the stage in the same direction. Having everyone face the stage can cause problems with the relationships that people can have with the performers. This is because as more and more seats get added people are getting farther and farther away and are not able to feel as if they are one with the stage. The next seating arrangement that can be chosen is WIDE FAN. Wide fan is when all the seats are placed along 130-degree angle of inclusion, having this angle brings people closer to the performers ultimately bringing a more intimate experience with the performers. When looking to design in this way the consideration of how and where the focus of the stage and which way will be will people be facing. Next seating arrangement is ¾ ARENA. This type of seating configuration is based on

180-270-degree angle of inclusion, having this type of arrangement helps with visual and audible connection between the audience and the performers. This type of seating arrangement allows the sound to carry in a more natural way leaving out no spaces within the hall. There are OTHER ways to consider seating types, it can be the combination of any of the types already stated or it could be 360-degree around the stage. This is just a matter of what works within the space and knowing what acoustical and mechanical considerations must be had with each seating configuration.

STAGE CONFIGURATION TYPES:

Though seating configuration types leans its way into how the stage will be set up there are still types fo stage configurations to accommodate look into. The first is FRONTAL (proscenium) this type of stage is usually deep or raked and sloped away from the audience. This normally has a frame surrounding the stage to help with the acoustics and projecting the sound. This type of stage creates almost like a movie quality for the audience to sit and enjoy. The next stage type is a THRUST stage this type is where the audience goes around and above the stage. This allows for an intimate experience between performers and the audience because no one has a bad view because the stage is not covered by walls. The final stage type is SURROUND this is when the audience can sit around the entire stage allowing for everyone to have a full view of what is happening. With a surround stage there are more issues with how the performers are to be set up and how the acoustics can be carried within the space.

STAGE GENERAL REQUIREMENTS:

The stage within a chamber music hall on average should be 16-20 SF per musician, with a width of about 55’-80’ this will probably be closer to 50. The stage should be made up of mounted felt cushions under sleepers, variably spaced to dampen resonant vibration. Is under stage is unused the structural base can be ground slab. There is normally a soft reflective material that is used for the stage. Another consideration that needs to be had is the acoustical panels that can be used, risers if necessary and lighting.

ACOUSTICAL CONSIDERATIONS:

The consideration that needs to be had for acoustical needs are the forms of the hall, the volume per person and the type of performance. Shoebox auditoriums have strong early reflections which play a significant role in the acoustical quality. This creates a richness to the auditory experience for the audience. The narrow walls provide dynamic response to the music that is being played. This can be optimized by textured finishes and promoting reflections to all areas equally. This style limits the amount of people that can be within the theater, because as the theater gets larger it leads to more uneven sound distribution. Fan shaped auditoriums are typically not as great for an acoustical experience, they are better for actual experience. The wide nonparallel walls are reflected to the back of the hall rather than the audience. This is due to the

lateral reflections arriving later because of the distance between the walls. The fullness is normally limited due to lower ceiling and higher sound absorption because of the larger audience. Vineyard is the best shape for visual and audible interest, being so close to the stage there is direct sound for most of the audience. This type of shape project the sound directly to the listeners which is great but when the sound reflects to itself there is no lateral movement for the audience which gives the hall a lack of sense. Though the reflection throughout the space does give a fullness to the sound. Since the stage is directly in the center with this layout it causes the sound to not be distributed evenly, mostly because most instruments project their sound forward. Most of the issues with sound within a place can be enhance by sound reflectors around the auditorium and above the stage. Another way to eliminate sound reflection is by the addition of soft surface such as the chairs and curtains along the wall. With keeping a reverberation time of 2 seconds which is what a chamber music hall calls for the volume per person should be around 10 cubic meters. When resolving acoustical issues it needs to be considered who is performing, with strong instruments they resonate sound where as with wind instruments they are more direct with the sound that they are producing. Just as string instruments the piano resonate sound while a singer projects sound in one direction. So when trying to resolve the issue of reverberation within a theater all types of performance should be taken into consideration.

LIGHTING REQUIREMENTS:

Within a music hall there are many considerations when it comes to lighting. A hall needs WORKING LIGHTS, which is composed of rear entrance, stage, loft, and performance. Having 4-500w quartz lamps with toggle switches located both backstage right and left. These are the lights that are used for the staff, so they can work from day to day. These lights are a lower power source so that the hall because they are easy to maintain. These are the lights that will be always used when public is not in the hall. Another type of lighting system would be the HOUSE LIGHTS, these are the lights that are used in the concert hall before and after a performance, but never during a performance. This will be a strip of lights that is placed at 60 and 45 degrees from the stage, this light will be white light to not make shadows on the stage and provide an illumination rather than a harsh light. These will be surrounding the stage and pointed towards the stage. Then there will be recessed lighting that will cause a soft glow of light throughout the entire Hall. Having them placed along the rows that are being created. The house lights are composed of walkway downlights, tungsten roof, fluorescents. These lights are controlled by a two pushbutton control station, one will be located on stage left towards the corner near the access ladder. The main control panel is located at the back of the hall to the right of the stage. There are 124 controls for both the tungsten roof lights and walkway downlighters and the 125 controls for the fluorescent light. The last part of lighting is the PERFORMANCE LIGHTING. This is a lighting system that is directly focused on the stage, normally these lights are set

USING ACOUSTICAL PANELS TO LINE BACK WALLS OF THE THEATER AND DIRECTLY ABOVE STAGE TO HELP WITH EQUAL DISTRIBUTION
USING ACOUSTICAL PANELS ABOVE STAGE AND ALONG WALLS TO HELP GUIDE THE SOUND WHILE ALSO HELPING WITH REVERBERATION IN THEATER
USING ACOUSTICAL PANELS TO LINE THE WALLS AND THE CEILING TO HELP WITH THE SOUND BOUNCING FROM WALL TO WALL.

slightly upstage, so they are creating a wash of light rather than focused light. Lastly there are EMERGENCY LIGHTING this is composed of exit signs and lighting along the isles, so people know where and how to leave.

Specifically for orchestra performance there are considerations that need to be had such as lighting the music, conductor, audience, the orchestra, and scores. Lighting the music for the performers is normally done by music stand lights, these are smaller rectangular lights that are on the top of the music stands. Making sure that the conductor is light so that the musicians can see is also important when setting up a lighting system. Placement of the conductor can change based on the layout of the orchestra, so it is making sure that no matter where they are it is taken into consideration. Lighting the audience for an orchestral performance is a light bit different than in the theater. The audience will need a soft low light to help them to better see the performers. When lighting the orchestra glare and shadows need to be taken into consideration. So, making sure that the lights that are being used are softer and allow for more of a glow than an intense downlight. Making sure that the angles are lower will help to make the ideal lighting set up for the performers.

MECHANICAL SYSTEM REQUIREMENTS:

Looking further into mechanical systems a chamber music hall should account for larger and smaller groups of people. While also maintain a good level of humidity because for the instruments to sound right having a super dry environment would not be ideal. As for mechanical system set up the best system would be going underneath the floor so there is no chance of dripping this will also allow for less rattling. Having airways underneath the seat will also allow for the hall to remain a solid temperature, with having them below the seats the air return vents would be at the top of the theater. The type of mechanical system has to be a configuration of smaller vents so there is less noise and will not interrupt the performances.

TYPICAL WALL ASSEMBLY COMPOSITION’S:

When designing typical wall assembly, it is important to look at how sounds can travel through the wall or doors. Music can be carried through a common wall when door is open the sounds will carry. There can be flanking below the wall through the floor, the sound can travel through ductwork. There are many things to consider when completing a wall within a chamber music hall.

Resilient Furring Channel

Gypsum Board Layers
Fabric over PCF Fiberglass
Wood Acoustic Panels
Concrete Wall
Steel Channel
Clips

Throughout Rome, there is a set of relationships between public vs. private, street and site, interior vs. exterior that most buildings adhere to. The public area of the street is defined by the massive facades that protect the interior of the building from the world outside. It is very clear where the public space ends and the private space begins. This scheme asks the question what if this was not the case? What if the public space extended beyond the street? How can this be achieved without ignoring the relationship between street and site?

Often along Italian streets, loggia’s are used as transitional spaces between the public and private realms. They allow for the creation of a barrier without shutting out the public. Instead of thinking as the loggia as a series of columns and arches, the loggia at the edge of the site is made of a series of parallel walls extending into the site. As one approaches the site the walls create the illusion of a closed, solid façade, maintaining the relationship to the street. it is only as one passes in front of the loggia that the walls open up revealing the site beyond. The extended walls of the loggia frame ones few of the garden and the buildings beyond allowing the public to visually interact with the site. The perspective quality of the loggia lining up with the parallel buildings beyond entices visitors to be pulled through the site, where they can appreciate the gardens and the artists at work.

The central pathway between the two buildings was inspired by the feeling of walking through the old streets of Rome. Life happens between the buildings and in the streets in Italy. One walks by store fronts, restaurants, and shops and there is an opportunity to interact with the people around you. The pathway between the buildings becomes the main circulation space for both the public and the artists. Instead of an imposing façade separating the interior of the buildings from the exterior of the building, the façade becomes permeable, through the use of a double wall system. The interior wall is made of glass while the exterior wall is composed of a brick screen. This screen allows the sounds of music, dancing, and performances to move flow out towards the public, creating a sensory experience for those moving between the buildings, while providing a sense of privacy and protection from the sun at the interior.

Just as with the loggia, and the screened walls, the design of the landscape plays off of the idea of conceal and reveal. Reminicant of moving through the Villa Giula, it is not until one moves through the the site that they discover the changes in the landscape that create sunken spaces where exterior performance and gathering can take place.

BAGSVAERD CHURCH

LOCATION: BAGSVAERD, DENMARK

BUILT: 1976

ARCHITECT: JORN UTZON

Bagsvaerd Church has a long, slender, rectangular form, arranged along a grid, which encompasses the entire program. The corridors, which serve as the primary circulation space, run along the exterior walls, creating the façades, and divide the building into distinct programmatic zones, ranging from public to private. On one side of the building, the exterior wall is completely closed off, protecting the spaces within from the outside world. On the other side of the building, the exterior walls have been punctured and eroded, allowing people to access the interior courtyards located in each section of the building. These courtyards serve as secondary circulation spaces. Though the exterior walls hide the true form of the spaces within the building, they do express the hierarchy of the spaces through height. The taller walls correspond with the religious and public programs of the building, all located to one side of the building. As one moves further into the building, the spaces within become more private and closed off. The rooms become smaller, the courtyards become enclosed, and the corridors become less permeable.

PROJECT PLAN

This plan was organized using a grid system and a 7.5 foot square module. Like Jorn Utzon’s Bagsvared Church, the circulation corridors are pushed to the exterior of the building creating a protective barrier between the interior and the outside world. This protective barrier is solid and monolithic on three of the foor sides of the buildings. The fourth side is carved away allowing entrances into courtards located in the more public areas of the buildings. these court yards serve as secondary circulation. The facade uses a perforated brick screen to maintain a sense of privacy and protection for the interior spaces while also allowing light and music to flow between the public street and the spaces. The brick screen also references the degree of privacy each space posesses. Denser screens are used in front of the more private spaces. The building’s facade hides the true form of the building inside, whose ceiling are shape to create the best acoustical enviornment for the various concert halls and practive rooms. The corridors, in addition to providing the primary circulation space for the building, also help to divide the space into distinct public, semi-public, and private zones. Dividing the program into two buildings allows for built enviornment to define a space for social interaction inbetween.

MUSEE CANTONAL DES BEAUX ARTS

LOCATION: LAUSANNE, SWITZERLAND

BUILT: 2019

ARCHITECT: BAROZZI VEGA

The geometric composition of Barozzi Vega’s Musee Cantonal des Beaux Arts is based off of a long, narrow module that is repeated to create a compact, slender form. The width of this module is expressed on the exterior of the building using a series of louvers that spans the entire north facade. The louvers allow the façade to become more permeable on this side, where the building faces onto a public space. In contrast, the south façade of the building is monolithic, protecting the building and the program from the industrial railyard beyond. On the inside, the modules are used to place the interior partitions. Throughout the first floor, there are a number of narrow cores, typically 2 -3 modules wide, which hold the auxiliary functions and service spaces that help to define the public areas of the building. The most important public space is the central atrium. The atrium is aligned with the historic 19th building located along the south wall of the museum and is further accentuated by the walls that extend into the public square. The main horizontal circulation space occurs along the south wall, where visitors can pass between the various galleries. A secondary circulation space occurs along the north side of the building, at the top of the service cores. These small passages lead to emergency exits located on either side of each space. As one moves from the central atrium towards the ends of the building the spaces become more private, holding functions such as office and classrooms, and less important hierarchically.

PROJECT PLAN

This plan was generated using long narrow modules to organize the various programmatic spaces. The spaces are separated on the interior by long, cores that serve as the vertical circulation and service spaces for the buildings. The primary horizontal circulation space is located at the rear of the building and extends the entire length of each building, giving access to each area. The programmatic spaces are organized within the building moving from public to private along the horizontal axis. The facades of the building facing the public street are louvered, providing a sense of permiability as one moves through the site. The more private a space is the denser the louvers become, allowing visitors to get a sense of the building’s program from the exterior. The public is able to further read the building from the exterior through the use of banding that coresponds with the service spaces. These spaces are constricted allowing light to enter the building through these spaces. Dividing the program into two buildings allows for built enviornment to define a space for social interaction inbetween.

FORMAL COMPOSITION:

This composition, like the last one, also used the second site strategy, in which the buildings and structures placed on the site become the shapers of space. Many of the elements from the previous composition remained the same, such as the grid organization, circulation corridors, strong protective facades, and hierarchical massing of the various programmatic volumes. The main difference between this composition and the last one is the connection between the public pathway created by the twin buildings and the Giardini della Filarmonica.

The first compositional strategy completely blocked off the public spaces of the new project from the Accademia gardens. While this defined the edge of the site and the space of the garden, it limited the interaction between the two spaces. As this intervention on the site is conceptualized as an addition to the Accademia, this second iteration strives to make that connection. The courtyards, instead of serving as secondary circulation between interior spaces, become the links between the Giardini della Filarmonica and the new public pathway.

This compositional strategy also plays more with the erosion of the rectilinear form. Towards the front of the site, where the programmatic spaces are more public, the walls of the building begin to be carved away creating courtyards that are partially visible from the street. This strategy allows for different layers of the building to be visible from the street, enticing the public to enter the space. This architectural move give the illusion that the public pathway narrows as one moves through the space, creating a moment at the end of the path where the space opens up to the garden beyond.

PLACE, CONTEXT, SCALE

The site is located along the Via Flaminia, an ancient Roman road that once served both merchants and the military, connecting Rome to cities in northern Italy. The road begins just outside of the ancient city walls, at the Porta Del Popolo, and stretches all the way to Rimini. For centuries, the land along this road consisted of vineyards, farms, and villas owned by prominent members of Roman society, including Pope Julius’s Villa Giulia, located just behind the site. Farm buildings, churches, tombs, and walls lined the road much like the current buildings do today. In one such building, located directly adjacent to the site, is the Accademia Filarmonica Romana, an organization that brings together musicians and artists of all skill levels and social standings to promote the arts within the community. Often, the Accademia will utilize the rear garden as a social and concert space, inviting the public to view various performances throughout the year. The garden, however, is cut off from the street by the Accademia buildings, greatly limiting the public’s interaction with the space.

The main intention of this intervention is to create a series of public spaces that connect the Giardini della Filarmonica will the public realm of Via Flaminia. Similar to the ancient and medieval fabric of the city, the buildings and structures on the site are designed to serve as shapers of public space. They not only define the boundary of the site itself, but the edges of the public spaces within the site as well. In some cases, the buildings define the edges of the public spaces whereas at other times the buildings are carved away to create courtyard spaces within the building. The courtyards are used to bring natural light into the various programmatic spaces.

When arranging the buildings on the site, it was important push the intervention up to the edge of the street, creating a strong relationship between the area of the street and the site. Throughout Rome, buildings line the street, not only defining the edges of the public realm, but creating an imposing, continuous façade that stretching the length of the roadway. These strong facades were designed to protect the interior of the building by creating a barrier between interior and the outside world. To ignore the established relationship between the street and the facade would make the building feel out of place within the context of the city. This intervention, however, challenges the notion that the street facade has to be an impenetrable barrier between the street and the interior of the site. Instead this façade becomes permeable as one approaches the site, extending the public realm into the interior of the site.

SPACE,

Throughout Italy, one of the most common building typologies is the courtyard building. The courtyard plan has been used in this part of the world for millennia, stretching back to the time of the Roman Empire. In ancient and modern plans alike, courtyards are used as social spaces as well as circulation spaces within the building. They are public areas, surrounded and protected by the rooms of the house, to be used by members of the family and their guests. In most cases, these courtyards also serve as devices to bring light and fresh air into the building. Much like the public piazzas in the city, the building defines the edges of the courtyard creating these public spaces.

In this intervention, the intention is that visitors will be able to circulate through the site via the public spaces created by the various buildings and structures. The spaces are purposefully arranged so the more public spaces, such as the gardens and entry areas, are located towards the front of the site while the more private areas, such as the administration offices, are located to the rear of the site. The pathway created by the two buildings is designed to draw visitors through the site, allowing them to discover aspects of the building as that travel down the path. When walking through the site and courtyards, the line between public and private becomes slightly blurred. The facades of the buildings facing the central path become semi permeable, through the use of brick screens. This allows visitors to catch a glimpse of the activity on the interior of the buildings while also allowing music and sound to flow into the courtyards and pathway, filling the space.

The buildings are designed to have a monolithic quality. This design choice is in reference to the monolithic nature of the Aurelian Wall, located just a few hundred feet away, and ancient ruins scattered throughout Rome. This building quality was also inspired by Rationalist Italian architecture, which became popular in the 1920s and 30s when this area of Rome was developed. Rationalist architecture in Italy drew inspiration from the tradition forms of ancient Roman architecture, such as the arch and column, and simplified these elements to create a modern architecture that felt timeless, yet still connected to site and its context. As this site has a rich history that spans several thousand years, it is important to design buildings in such a way that they feel both of the time and connected to the past.

ORGANIZATION

In addition to the loggia that serves as the entrance to the site from the Via Flaminia, there are two, twin, rectilinear buildings that contain the project’s programmatic spaces. One building contains all of the conservatory spaces whereas the other building houses the public and chamber orchestra spaces. The buildings are organized along a grid system that is based off of a square module. Similar to the way the buildings and structures define the public spaces on the site, the circulation corridors define the different spaces within the building. These circulation corridors make up the inhabitable, protective barrier between the interior spaces and the outside world. The sizes of these corridors are depended on the programs that they serve; the more public the program is the wider the corridors become.

The articulation of the facades change based on their relationship to the site and the interior programs. Where the facades face the edges of the site, the walls of the buildings become more soild, drawing from the Roman tradition of protecting the building’s interior. When the facades face onto a public space the walls are carved away, creating entrances into courtyards that connect to public areas of the buildings. In addition to allowing light an air to enter the building, these courtyards also serve as circulation spaces between the public pathway and the Giardini della Filarmonica, creating a physical and visual connection between the two spaces. . The public facades of the building, rather than being solid masonry walls are articulated with perforated brick screens that maintain a sense of privacy and protection for the interior spaces while also allowing light and music to flow between the public street and the spaces. The brick screen also references the degree of privacy each space possesses. Denser screens are used in more private spaces whereas more permeable screens are used in public spaces.

As one moves through the site and the buildings, the program shifts from public to private, similar to a traditional Roman house. The difference between a traditional Roman house plan and this design is that the pathway created between the two buildings extends the public space further into the site, creating a condition where the buildings become more private as one move away from the center.

The hierarchy of the spaces within the building is expressed by the height of the various volumes. While this gives visitors a hint at what is happening on the interior of the building, it is not until they are inside that they discover the true form of each rooms. Inside the ceilings are shaped to create the best acoustical environment for the various concert halls and practice rooms.

TECTONICS & MATERIALITY

This project is designed to be monolithic in nature, using brick as the primary building material. This is a reference to the ancient Roman’s use of brick masonry in many of their structures and buildings as well as the continued use of masonry construction across Italy throughout the centuries. The heaviness of the material anchors the project to the earth and the site while also enhancing the protective quality of the several facades. While the use of brick helps the design to achieve this monolithic quality, the material is also incredibly versatile, allowing for different application of the same brick unit across the entire façade. While inherently textured, bricks can be arranged in order to create different wall textures across the building, adding an extra layer of dimension to the project. Bricks can also be designed to have unique shapes and textures that can be used to convey different qualities of the building and spaces within. The added dimension and articulation allow for further definition of space. The use of brick, as opposed to other monolithic materials such as concrete, also helps to enhance the sense of scale that accompanies this building. The regular module of the brick helps visitors to understand the true size and dimensions of the building.

While bricks are traditionally thought of as a solid material, this project uses them to create transparency in transitional spaces. The bricks are arranged in such a way that they create various types of brick screens, allowing light to be filtered into the building, while sound is allowed to travel out into the public spaces. The density of the screens is used to articulate the facade and allow the public to read the building from the exterior. Denser screens are used in more private spaces where as more permeable screens are used in public spaces. The transparency and permeability of these screens allow people to glimpse the activity going on within the building, further challenging the relationship of the public realm and protected interior.

In this environment, brick masonry is an ideal choice for construction. The inherent qualities of the material and the various types of wall constructions provide the opportunity for brick to be utilized as more than just structure. Whenr constructed out of masonry, walls can be used to achieve a thermal mass that helps keeps the building temperature regulated throughout the year. Clay bricks, a traditional Roman building material, have intrinsic thermal qualities that allow them to absorb heat during the day and release it at night. As a result, the use of brick could allow for little to no insulation to be used within the walls themselves.

ENVIORNMENTAL STEWARDSHIP:

One of the goals of this intervention is to draw inspiration from traditional and vernacular Roman architecture in order to integrate passive strategies into the design of the buildings. One such aspect of vernacular Roman architecture is the use of brick masonry. Thick masonry walls have thermal properties that allow the brick to absorb the sun’s energy during the day, keeping the interior of the buildings at a cool, comfortable temperature. At night, when the temperature drops, the stored heat is released into the interior of the building warming the space throughout the night. The use of these thermal walls helps to keep the interior of the buildings comfortable without the need for heavy, excessive mechanical systems.

Another common strategy for solar management in Rome is shutters. Shutters on Roman buildings are used to help control the amount of sunlight coming into the building, preventing the air on the interior of the building from heating up. While traditional shutters will not be employed in this design, the idea of controlling and managing the amount of sunlight entering a space a consideration. The brick screens employed along the public facing façades help to control the amount of sunlight coming into the building, helping to create a cooler environment for users of the space.

The configuration of courtyards within the structure is also inspired by traditional Roman architecture. Many buildings in Rome either have thin profiles or have a courtyard at the center. These building configurations allow for increased cross ventilation through the structure, cooling the space without the need for A/C. Courtyard buildings, or buildings arranged along a narrow street also enjoy the benefits of the “courtyard effect”. During the day, the sun heats the air in the courtyard or a narrow street. The warm air rises, causing the cooler air in the interior of the building to rush out, creating a cooling effect. When night falls, and the temperatures drop, the cool air then drops into the courtyard, causing the airflow to move in the opposite direction.

Garden space to engage with the public and absorb rainwater.

Buildings oriented to take advantage of the east west winds for cooling.

Brick screening to control the amount of sunlight entering the space.

Brick masonry construction for thermal mass benefits.

Courtyard effect to help cool the interior spaces of the building.

Courtyards provide light and fresh air to interior spaces

A4 STRUCTURE

This exercise encouraged us to go beyond our own preconceptions of structure and consider other ways of constructing this project. Two structural schemes were developed; one using load bearing construction and the other using light weight framing. Through developing these two strategies, we were able to explore how each structural system could benefit and enhance the spatial and conceptual qualities of the design and were they were lacking.

A final structural system was selected and further articulated based on the established design principles and intentions. Looking at the structural systems through the lense of the principles provided the oppurtunity for the structure and the design to become intertwined.

Load bearing masonry construction is the most common type of construction used in Italy. For millennia, Italians have been using stone and masonry to construct their buildings, from the simplest dwelling to their most important places of worship. Load bearing masonry has evolved over centuries of innovation. In ancient times, the first stone structures were constructed using uncut rough stone that where fitted together without any type of mortar. As type when on, builders worked towards perfecting their techniques, learning how to cut stone into smaller blocks and brick and arranging them in such a way that they strengthen the structure. Ancient Romans even developed an early version of concrete that is used in famous buildings such as the Pantheon. Given the location and history of the site, it is appropriate to use load bearing brick masonry in this project.

The use of brick masonry in this design will help to ground the project to the site. The heaviness of the material not only anchors the projects to the site but also provides a sense of permanence and timelessness to the design. The monolithic quality of the buildings reference back to nearby structures, such as the Aurelian Wall and Roman ruins, and places the project in context with the surrounding history.

While Ancient Roman construction was typically simple, this does not mean that it was not well articulated. Different types and styles of brick and stone were used in order to ornament and define the project. In some cases multiple types of brick were used in the same project. This technique could be applied the this design in order to further articulate the exterior of the building while allowing the visitors better understand it’s interior functions.

One reason that brick is used so extensively in vernacular Italian architecture is its thermal qualities. Massive masonry structures help to thermally control interior spaces. Heat from the sun is absorbed and stored in the stone and masonry during the day, keeping the interior of the building cool during the day, and released at night when the temperature drops.

OPUS LATERICIUM

Opus caementicium (Roman Concrete) is used to fill the cavity between the brickwork in order to create a stronger more durable wall. The brickwork used to face the core protects the porous concrete.

OPUS MIXTUM

Opus Mixtum walls, like Opus Latericium, use a roman concrete core to give the wall strength. The patterning of the size and shape of the brick masonry presents the opportunity to create an articulated facade.

CONCRETE STRUCTURE

Load bearing concrete walls and strucutral members are used to carry the load of the building and support the facade. The brick screen facade is set away from the structure, hiding the concrete from the exterior and creating an airspace interstitally. An operable window is placed infront of the screen for temperature control.

BRICK STRUCTURE

In order to achieve the use of perforated brick screens, brick masonry pillars are used to carry the load of the building to the ground allowing the screens to be load free. An operable window is placed infront of the screen for temperature control.

CAVITY WALLS help to acheive thermal insulation and sound isolation as there is little way for heat or sound to transfer. Metal ties are used to connect the walls and slabs will typcially rest on the inner layer of brick. Cavities can be filled will additional insulation.

SOLID MASONRY WALLS with two layers of masonry can be used for both insulation and structure. Terra Cotta bricks have inherent thermal properties that allow them retain/reflect heat. The smaller, inner brick layer acts as the structure whereas the thicker outer layer as as the insulation.

REINFORCED

HOLLOW CORE STEEL COLUMN

A series of hollow structural steel columns makes up the main vertical structural element of the building. This column is filled with concrete and reinforced with rebar to provide extra strength and stability. In order to help the structure blend into the building and appear more monolithic, the HSS columns would be clad with Roman brick. For vistors to the building, the strcuture will appear as if it were made of load bearing masonry while still providing the nessecary flexiblity.

STEEL FRAME STRUCTURE - DETAIL

The main vertical elements of this structural grid system are the hollow structural steel columns. Between these steel columns are light gauge metal framing members than make up the main structure of the walls. The vertical structural members support wide flange steel beams which in turn support the open web joists. The open web joists have the capability of spaning the entire with of the structure allowing the spaces below to be column free. The space between the webs has acoustic benefits and provide space to run mechanical systems if need be. This steel structure also support the brick veneer on the exterior of the building, allowing the project to apper monolitihic in nature.

Load bearing masonry construction is the most common type of construction used in Italy. For millennia, Italians have been using stone and masonry to construct their buildings, from the simplest dwelling to their most important places of worship. Load bearing masonry has evolved over centuries of innovation. In ancient times, the first stone structures were constructed using uncut rough stone that where fitted together without any type of mortar. As type when on, builders worked towards perfecting their techniques, learning how to cut stone into smaller blocks and brick and arranging them in such a way that they strengthen the structure. Ancient Romans even developed an early version of concrete that is used in famous buildings such as the Pantheon. Given the location and history of the site, it is appropriate to use load bearing brick masonry in this project.

The use of brick masonry in this design will help to ground the project to the site. The heaviness of the material not only anchors the projects to the site but also provides a sense of permanence and timelessness to the design. The monolithic quality of the buildings reference back to nearby structures, such as the Aurelian Wall and Roman ruins, and places the project in context with the surrounding history.

While Ancient Roman construction was typically simple, this does not mean that it was not well articulated. Different types and styles of brick and stone were used in order to ornament and define the project. In some cases multiple types of brick were used in the same project. This technique could be applied the this design in order to further articulate the exterior of the building while allowing the visitors better understand it’s interior functions.

One reason that brick is used so extensively in vernacular Italian architecture is its thermal qualities. Massive masonry structures help to thermally control interior spaces. Heat from the sun is absorbed and stored in the stone and masonry during the day, keeping the interior of the building cool during the day, and released at night when the temperature drops.

LOAD BEARING MASONRY - CANTILEVERED SLABS

Load bearing masonry walls are key elements in traditional Italian construction. For this project the main load bearing walls are in set from the exterior envelope. This would allow the interior walls help with sound isolation in the musical spaces. Additionally, moving the load bearing walls to the interior helps to free up the exterior walls to create brick screens and textured effects.

WALLS

= 15 FEET

In this project, the interior walls serve as the load bearing walls for the entire project. These wall are stacked on on top of one another in order to create a continuous path from the roof to the ground. Using the interior walls as the main loadbearing walls allows for the slab to be cantilevered over the exterior circulation, creating a column free interior. Cantilevering the concrete slab allows for the exterior walls to be free from the structural load, making it possible for the wall to become more permiable. This would allow for architectural articulation such as brick screens and various texture to occur across the facades.

While the walls running the length of the twin buildings serve as the main load bearing walls, the shorter walls running perpendicular serve as lateral support for the building. These wall help to keep the main structural walls from twisting and turning, providing stability for the structure. The concrete slab is a one way joist slab that spans the entire width of the building. The slab uses concrete joists and post tensioning techniques to help span the distance between the support walls creating a clear span below.

For this project, a deep foundation system is ideal over a standard shallow foundation. One reason this is ideal is for siesmic purposes, as Rome is located near a fault line. a deep foundation allows the building to be anchored in soild bedrock. Another reason a deep foundation system would be benefitial is that the foundation can be intergrated with the structure of the basement. By using a series of load bearing walls, the basement becomes a deep structural slab. This is the same approach taken by the Maxxi Museum a few blocks away.

SHALLOW FOUNDATION - TYP. IN NEW ENGLAND

DEEP FOUNDATION SYSTEM

For this project, a deep foundation system is ideal over a standard shallow foundation. One reason this is ideal is for siesmic purposes, as Rome is located near a fault line. a deep foundation allows the building to be anchored in soild bedrock. Another reason a deep foundation system would be benefitial is that the foundation can be intergrated with the structure of the basement. By using a series of load bearing walls, the basement becomes a deep structural slab. This is the same approach taken by the Maxxi Museum a few blocks away.

DEEP FOUNDATION / BASEMENT

SECOND FLOOR SLAB
SECOND FLOOR LOAD
WALLS AND COLUMNS
ROOF SLAB

A5 ENVELOPE

This exercise, like the previous one, encouraged us to go beyond our own preconceptions of envelope and consider other ways of enclosing our buildings. When working with a design for weeks it is easy to be come complacent in one way of thinking, robbing both the design and the project of the opputunity of exploring other systems and becoming something more engaging.

Two building envelope schemes were developed; one using heavy cladding materials and the other using light weight systems. Through developing these two strategies, we were able to explore how each skin system could help to further articulate the facade and enhance the charater and identity of the project.

A final envelope system was selected and further develope based on the established design principles and intentions. Looking at the overall design, structure , and envelope systems as one cohesive units provided the oppurtunity for the structure and the design to become intertwined.

This envelope option is a massive system that references the thick masonry envelopes found across Rome. Ancient Romans used brick masonry, clay blocks, and concrete to construct their buildings, resulting in large and imposing facades. These facades were meant to separate the interior of the building from the public realm of the street, protecting the people and spaces inside. Often, these façades only had small windows facing the street, minimizing the interior’s interaction with the public. While this type of envelope construction was ideal for privacy purposes, Romans also utilized thermal properties of the thick walls to help control the temperature within the building. These massive walls would absorb and store the heat of the sun during the day and release it at night, helping to regulate the temperature of the interior spaces.

This system borrows from the vernacular system of construction in Rome with the exterior walls consisting of several masonry layers. The inner most layer consists of a brick cavity wall serving as the backup wall for the thermal layer. Using a cavity wall is ideal in this case because of its ability to isolate sound and it provides a space for smaller systems like electrical to run within the walls.

The next layer is the thermal layer, made up of clay blocks. Clay has been used in Roman construction for centuries in walls and on roofs. The material properties of clay allow it to be using for a variety of applications including thermal insulation, sound isolation, and fireproofing. The brick cavity walls and the clay blocks are tied together using masonry ties, causing these tow layer to act as one wall.

The final layer is brick screen applied over the entire building using roman brick. The brick screen creates a consistent and monolithic look across the entire building, reminiscent of the ancient ruins found around the city. While the brick screen itself is never interrupted, the solid wall behind it opens up to allow light into the buildings. Like the loggia at the front of the site, this envelope system appears to change as on approaches it, allowing previously protected spaces to become more permeable challenging the idea that the public realm ends at the street.

CONCEPT 2: LIGHTWEIGHT CONSTRUCTION

This envelope option is a lightweight system that blends modern and historical materials to create a timeless façade. Throughout much of Rome, building facades are designed to be massive and imposing. They are meant to separate the interior of a building from the public realm of the street, protecting the people and spaces inside. Public façades rarely have windows at street level and minimize the connection of the interior to the public street. Traditionally, builders took advantage of the thermal properties of massive construction in order to maintain comfortable temperatures in interior spaces. Without the creation of a thermal mass, the challenge is to design a system that will protect the building from solar radiation, while still remaining lightweight. The design of this façade challenges the idea that the public realm ends at the street.

The design of the structure allows for incredible flexibility in the façade. The load-bearing masonry walls are pushed towards the interior of the buildings allowing the concrete slabs to cantilever to the edge of the building, freeing the exterior walls from any structural load. This allows for a curtain wall system to become the first layer of the enclosure. The curtain wall system is anchored to the edge of the slab and allows for natural light to enter the space. In this case, the glass serves as insulation and water protection.

An all-glass building would look out of place within the context of the site. The area surrounding the Academia is filled with historic masonry structures, some dating back to the Ancient Romans. It was important to give the impression that the exteriors of the buildings are monolithic and imposing, like their neighbors, yet permeable as one moves through the space, similar to the loggia at the front of the site.

Recycled clay roof tiles, like those found all across Italy, are used to create a screened façade that surrounds the buildings like a second skin. The clay tiles are staggered and hung from cables attached to the underside of the roof slab. This screen helps to protect the interior of the building from the heat of the sun while also providing a feeling of permeability between the interior and exterior spaces. Utilizing the clay tiles connects the design of the project to the history of the site while also giving a sense of timelessness to the space.

DRAWINGLIST

COVERPAGE-RENDER

LARGESCALESITEPLAN

SITEPLAN

CODEREQUIREMENTS

BASEMENTFLOORPLAN

FIRSTFLOORPLAN

SECONDFLOORPLAN

ROOFPLAN

BASEMENTSTRUCTURALPLAN

FIRSTFLOORSTRUCTURALPLAN

SECONDFLOORSTRUCTURALPLAN

BASEMENTMECHANICALPLAN

FIRSTFLOORMECHANICALPLAN SECONDFLOORMECHANICALPLAN BUILDINGSECTIONS

SITE BOUNDRY
VILLAGUILIA
VIA FLAMINA

LoadbearingmasonryconstructionisthemostcommontypeofconstructionusedinItaly.Formillennia,Italians havebeenusingstoneandmasonrytoconstructtheirbuildings,fromthesimplestdwellingtotheirmostimportant placesofworship.Loadbearingmasonryhasevolvedovercenturiesofinnovation.Inancienttimes,thefirststone structureswereconstructedusinguncutroughstonethatwherefittedtogetherwithoutanytypeofmortar.Astype whenon,buildersworkedtowardsperfectingtheirtechniques,learninghowtocutstoneintosmallerblocksand brickandarrangingtheminsuchawaythattheystrengthenthestructure.AncientRomansevendevelopedan earlyversionofconcretethatisusedinfamousbuildingssuchasthePantheon.Giventhelocationandhistoryof thesite,itisappropriatetouseloadbearingbrickmasonryinthisproject.

Theuseofbrickmasonryinthisdesignwillhelptogroundtheprojecttothesite.Theheavinessofthematerialnot onlyanchorstheprojectstothesitebutalsoprovidesasenseofpermanenceandtimelessnesstothedesign.The monolithicqualityofthebuildingsreferencebacktonearbystructures,suchastheAurelianWallandRomanruins, andplacestheprojectincontextwiththesurroundinghistory.

WhileAncientRomanconstructionwastypicallysimple,thisdoesnotmeanthatitwasnotwellarticulated. Differenttypesandstylesofbrickandstonewereusedinordertoornamentanddefinetheproject.Insomecases multipletypesofbrickwereusedinthesameproject.Thistechniquecouldbeappliedthethisdesigninorderto furtherarticulatetheexteriorofthebuildingwhileallowingthevisitorsbetterunderstandit'sinteriorfunctions.

OnereasonthatbrickisusedsoextensivelyinvernacularItalianarchitectureisitsthermalqualities.Massive masonrystructureshelptothermallycontrolinteriorspaces.Heatfromthesunisabsorbedandstoredinthestone andmasonryduringtheday,keepingtheinteriorofthebuildingcoolduringtheday,andreleasedatnightwhen thetemperaturedrops.

Intoday'sworldinwhichsocietyisfacingincredibleenvironmentalchallengesbroughtonby climatechange,itisimportanttouseasmanypassivesystemsaspossibleinordertocreate moreenvironmentallyresponsiblebuildings.Thoughpassivestrategiesareemployed throughoutthedesign,itisdifficultinthisclimateandatthisscaletocreateacompletely passivebuilding.Passivestrategiesalonecanonlyprovidecomfortabout47%ofthetime between8amto8pm.Asaresult,mechanicalsystemsarerequiredtoworkinconcertwiththe passivestrategies.Naturalventilationandsunshadingtopreventsolargainarecombined withactivecoolingandventilationsystemswhiledirectsolargainispairedwithactiveheating systems.Theactivesystemsinthebuildingwillmostlyfocusonprovidingheatandventilation tothebuildingduringthewintermonthswhenthelocalclimategetscolderandnatural ventilationisnolongeraviableoption.Inordertomaketheinteriorspacesofthebuilding comfortable,heatingisrequiredabout66%ofthetime.

Onewaytorunthesesystemswithoutusingtheceilingistorunductworkbeneathatechnical floor.Technicalfloorsareraisedoffofthestructuralslabusingpedestalsupportsarrangedin agridsystem.Inthisdesigna2footdeeptechnicalfloorwasusedtorunductworkbeneath thefloor.Additionally,theairspaceprovidedbythetechnicalfloorcreatesanacousticbarrier helpingtofurtherisolatethesoundthroughoutthebuilding.

Soundwasanimportantdesignconsiderationwhenlayingoutthemechanicalsystems.When severalventsareconnectedalongthesameductbranch,theventilationsystemcanactlikea soundbridge,transferringsoundbetweenrooms.Foracousticallyimportantroomssuchas therehearsalrooms,concerthallsandrecordingstudiosareallventilatedusingindividual supplyandreturnbranches.Additionally,themainventilationbranchesarerunbeneaththe corridorswhereanypotentialnoisepollutionwouldmakelessofanimpact.

Insteadofplacingthemechanicalequipmentontheroof,theAHU'sandheatpumpswerelocatedin thebasement.Thismovenotonlylimitstheamountofvibrationstransferredthroughthestructure,but allowsforeasieraccesstothegeothermalwellsbelowthebuilding.Placingthemechanicalequipment inthebasementalsoallowsformoredirectaccesstothetechnicalfloorlayerandlesslargeservice chasesrunningthroughthebuilding

ZONEONE:

SQFTOFAREASERVED:8,226SQFT

COOLINGCAPACITY:47TONS

PACKAGEDUNITSIZE:25'-11”X7'-4”

COOLINGAIRVOLUME(CFM):20,000

MAINSUPPLY/RETURN:11SQFT

BRANCHSUPPLY/RETURN:20SQFT

ZONETWO:

SQFTOFAREASERVED:6,428SQFT

COOLINGCAPACITY:37TONS

PACKAGEDUNITSIZE:25'-11”X7'-4”

COOLINGAIRVOLUME(CFM):16,000

MAINSUPPLY/RETURN:8.5SQFT

BRANCHSUPPLY/RETURN:16SQFT

ZONETHREE:

SQFTOFAREASERVED:2,769SQFT

COOLINGCAPACITY:5TONS(EST.)

PACKAGEDUNITSIZE:N/A

COOLINGAIRVOLUME(CFM):1000(EST.)

MAINSUPPLY/RETURN:1SQFT(EST.)

BRANCHSUPPLY/RETURN:2SQFT(EST.)

ZONEFOUR:

SQFTOFAREASERVED:10,248SQFT

COOLINGCAPACITY:55TONS

PACKAGEDUNITSIZE:25'-11”X7'-4”

COOLINGAIRVOLUME(CFM):25,000

MAINSUPPLY/RETURN:15SQFT

BRANCHSUPPLY/RETURN:25SQFT

ZONEFIVE:

SQFTOFAREASERVED:10,046SQFT

COOLINGCAPACITY:55TONS

PACKAGEDUNITSIZE:25'-11”X7'-4”

COOLINGAIRVOLUME(CFM):25,000

MAINSUPPLY/RETURN:15SQFT

BRANCHSUPPLY/RETURN:25SQFT

ZONESIX:

SQFTOFAREASERVED:1,766SQFT

COOLINGCAPACITY:5TONS(EST.)

PACKAGEDUNITSIZE:N/A

COOLINGAIRVOLUME(CFM):1000(EST.)

MAINSUPPLY/RETURN:1SQFT(EST.)

BRANCHSUPPLY/RETURN:2SQFT(EST.)

GEOTHERMALWELLS:

TOTALTONSREQUIRED:204TONS

1300FOOTDEEPWELL=2TONS 204TONS2TONSPERWELL=102WELLS

CIRCUIT(24BORING HOLES300FEET)
CIRCUITBORING HOLES@300FEET)
CIRCUITBORING HOLES@300FEET)
CIRCUIT(25BORING HOLES300FEET)
CIRCUIT(29BORING HOLES300FEET)

Turn static files into dynamic content formats.

Create a flipbook
Issuu converts static files into: digital portfolios, online yearbooks, online catalogs, digital photo albums and more. Sign up and create your flipbook.