ARCH 613 THESIS DESIGN AWARD WINNERS
FALL 2021 + SPRING 2022

![]()
FALL 2021 + SPRING 2022

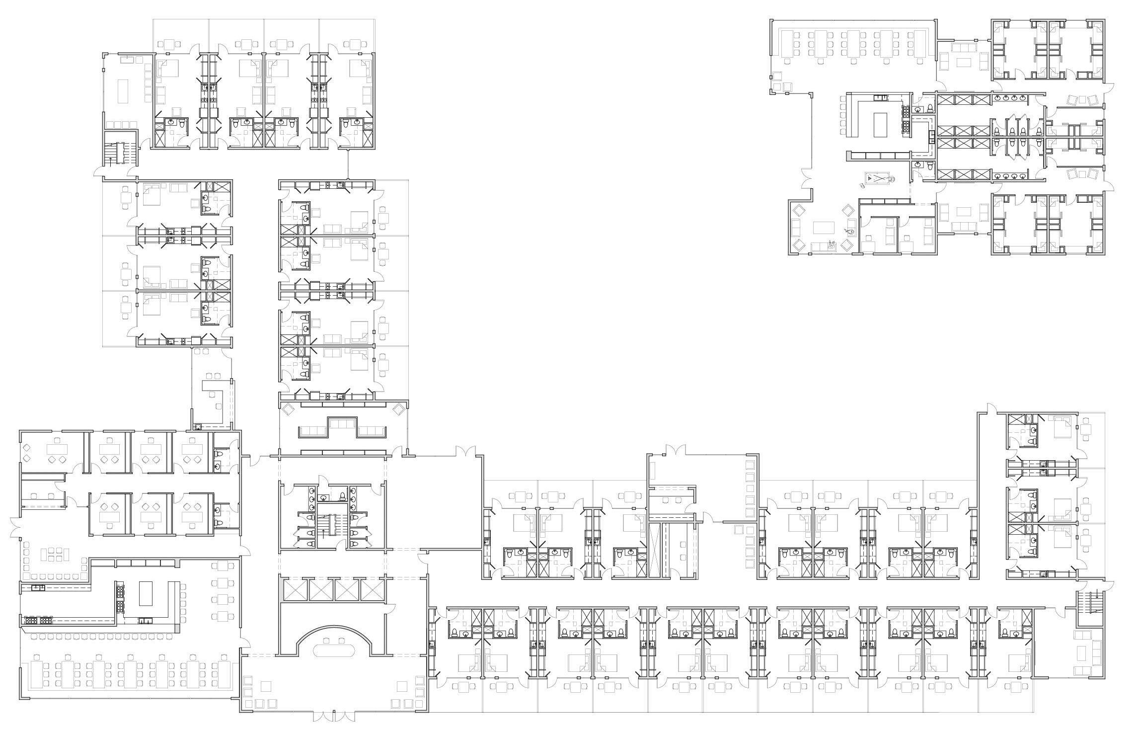
Health and Housing for the Homeless in the South side of Providence, Rhode Island
In the United States 29.8 million people are living without any healthcare coverage. Over 19 million people suffer from a form of poor mental health in America. There are an estimated 553,000 people experiencing homelessness on any given night. No bed to call their own and no place to find hope. People need help all around the United States. All three issues are linked at their core. Working to a solution to help the homeless have a place to stay but also have access to healthcare could improve the lives of millions. It is time to find better solutions within out community of how to help our neighbors.
Not all healing methods require medication and regular care. There are alternative options to dealing with mental health issues for people who have less severe cases of depression or anxiety. Having a connection to nature has been found to have a multitude of healing qualities. “Dr. Qing Li, a professor at the Nippon Medical School in Tokyo, found that trees and plants emit aromatic compounds called phytoncides that, when inhaled, can spur healthy biological changes in a manner like aromatherapy, which has also been studied for its therapeutic benefits. In his studies, Li has shown that when people walk through or stay overnight in forests, they often exhibit changes in the blood that are associated with protection against cancer, better immunity, and lower blood pressure (Sifferlan,1).” Spending more time outside amongst plants and trees will benefit mental and physical health. Cities hold 80% of the population in the United States but have a very limited amount of green space. Specifically in South Providence, there are little to no green spaces at all. Incorporating more greenery will benefit the health of everyone.
Providing the homeless with more than the bare minimum should be a priority of every city until everyone has a home.








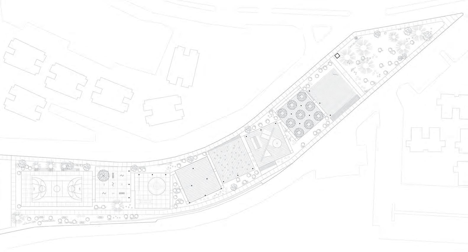
UPPER SOUTH PROVIDENCE
UPPER SOUTH PROVIDENCE


HEALTH CENTER SITE
RHODE ISLAND HOSPITAL

















































Providence Health and Housing Center
Homeless Shelter Entrance
Health Housing Main Entrance
Therapy Center Entrance
Social Work Center Entrance
Health Clinic Entrance
Employee Parking
Green-way Community Entrance
Future Educational and Trades Center
Future Transportation Hub
Future Public and Maintenance Facilities
CCRI- Liston Campus
Future Green-way Extension
















SEAN SMITH
ARCH 613_ SOCIAL ARCHITECTURE IN A VIRTUAL WORLD
SAAHP_ROGER WILLIAMS UNIVERSITY SPRING 2022
THE NATURE OF HUMAN INTERACTION HAS CHANGED DRASTICALLY DUE TO THE EVOLUTION OF THE VIRTUAL WORLD. WHAT DOES THIS MEAN FOR ARCHITECTURE AND PHYSICAL SPACE?
SEAN SMITH
ARCH 613_ SOCIAL ARCHITECTURE IN A VIRTUAL WORLD SAAHP_ROGER WILLIAMS UNIVERSITY



SEAN SMITH
ARCH 613_ SOCIAL ARCHITECTURE IN A VIRTUAL WORLD
SAAHP_ROGER WILLIAMS UNIVERSITY SPRING 2022


The data universally asserts that younger populations (18-29) are most likely to engage with and consistently use digital tools. Data shows that upwards of 80% of people in this age group use social media and online sites regularly. When considering the population that will be best served by the thesis outlined, this younger population is highlighted.


HOW CAN WE UTILIZE TOOLS OF THE VIRTUAL WORLD TO PRODUCE AN INTERACTIVE ARCHITECTURE THAT FINDS A HARMONY BETWEEN ONLINE AND IN-PERSON INTERACTION?



THE
PLAY A MAIN ROLE. THEY ARE BESTOWED WITH AN INTERACTIVE INTERFACE, WHICH ALLOWS THEM TO COMMUNICATE WITH THE BUILDING AND BEYOND.









SEAN SMITH
ARCH 613_ SOCIAL ARCHITECTURE IN A VIRTUAL WORLD SAAHP_ROGER WILLIAMS UNIVERSITY
“ILLUSIONARY

SEAN SMITH
ARCH 613_ SOCIAL ARCHITECTURE IN A VIRTUAL WORLD
SAAHP_ROGER WILLIAMS UNIVERSITY


SEAN SMITH
ARCH 613_ SOCIAL ARCHITECTURE IN A VIRTUAL WORLD


SEAN SMITH
ARCH 613_ SOCIAL ARCHITECTURE IN A VIRTUAL WORLD
SAAHP_ROGER WILLIAMS UNIVERSITY






“skateboarders are the most functional and engaged users of architecture and urban space.”
-IAIN BORDEN
ARCHITECTURAL HISTORIAN /SKATEBOARDER
SKATEBOARDING,SPACE AND THE CITY
























AQUEDUCT WAS DRAINED DURING WINTER

BOATS USING AQUEDUCT TO CROSSOVER THE GENESESRIVER

Broad Street Bridge
The race was cut along the East bank of the Genesee River by Elish Johnson and Orson Seymour to operate mills on the site of the Rudnel Libary.
Built on the foundation of the Erie Canal Aqueduct, the structure provides an important link between the east and west during the rise of the automobiel.

Structural improvements and the redesign of the sidewalk terrace located just outside the Rudnel Memorial Library.
Erie Canal Aqueduct
Replacing the orginial aqueduct with one that was wider and was constructed to accomdate travel over the Genesee River. Built entierly out of Onodaga Limestone.

Rundel Memorial Library
Built in the bed of the Erie Canal Aqueduct, this train served as a commuter rail for local residents
Designed and built during the Great Depression, the Rudnel Memorial Library building is constructed on pilings which float over the Johnson Seymour Mill Race and old Erie Canal Aqueduct.









































