ARCH 515 GRADUATE ARCHITECTURAL
DESIGN STUDIO
SPRING 2022
[RE]DEFINING CONTEXT: CONTEMPORARY
INTERVENTIONS IN A HISTORIC CITY
Hacin + Associates, Teaching Firm in Residence
![]()
[RE]DEFINING CONTEXT: CONTEMPORARY
INTERVENTIONS IN A HISTORIC CITY
Hacin + Associates, Teaching Firm in Residence

PROCESS : CONCEPT COLLAGES









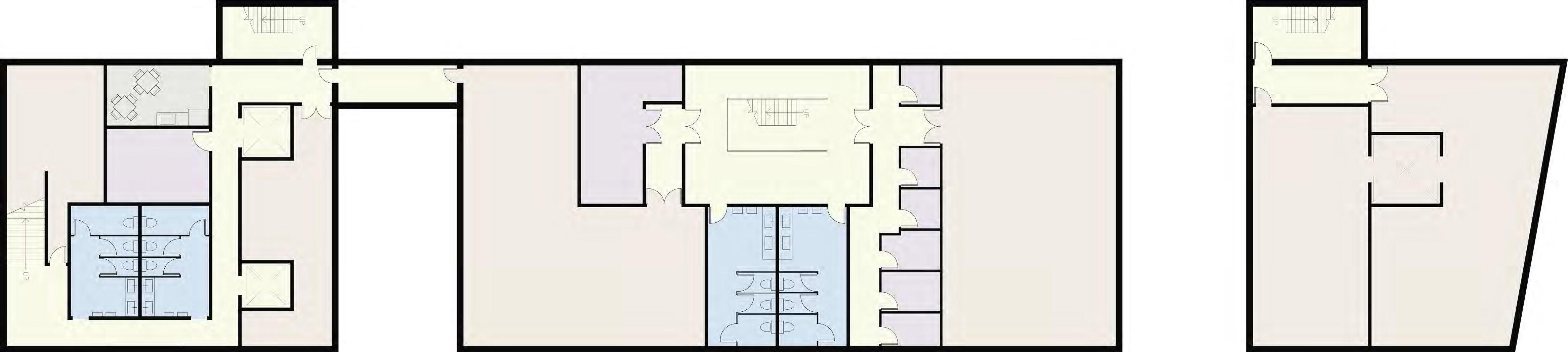
SITE PLAN (1/16” = 1’)
The Hub on Perry St aims to weave the different cultures of the south end together in one community oriented space. More directly, the site provides for the adjacent park, as well as the proposed townhouses, apartments, and hotel. The building is organized with an open first floor plan full of public space, as well as two bookend buildings that serve the community.
The bookend buildings feature a modern glassy facade. These more sculptural buildings speak to the community and illustrate their welcoming program. Raised in the center are townhouses with a more solid facade relating to the classic south end townhouse typology. The townhouses in my design are up-scale single family dwellings, each with 3 bedrooms. These are designed to help pay for the community program. Facing the park is an expansive market and restaurant building. Under the townhouses is a mix of the market and art space with an artisan market for different artists, chefs, and bakers. Facing SOWA is a large gallery building to strengthen the arts district. The facade treatment and structure attempt to accomplish an array of tasks. The arched structure recalls the docks that filled the area before the South End was filled in. These symbolize a connection or bridging of cultures. The openness and warmth they provide on the ground floor creates a welcoming facade. The sculptural fins aim the views from the bookend buildings, while reflecting light inside, as well as reflecting light back down into the woonerf and laconia path. The light brick treatment of the townhouses references the brick townhouses of the area while still reflecting light.








Terraced walkways serve as private pedestrian streets leading to the townhouses. The walkway undulates creating small balcony type spaces where residents can get outside, gather, and connect with their neighbors. Four units also have roof decks that give them an expansive outdoor space similar to the backyard areas of Union Park.


The facade along Perry St. is a blend of privacy and transperency. The lower floor features a arcade space that gives the pedestrians a covered space to walk. Above the townhouses jut out, with a more solid facade. The townhouses without roof decks feature a small balcony off of their first floor that allows them to experience the woonerf from their own home.







































































The hotel L is a full Luxury services with public amenities for the south end community. The Building Provides the people with retail and nightclub on the 1st two floors and bring a night life to the neighborhood. Astonishing vies are seeing from the terraces overlooking peters parks with a view of the city. The building façade respect the historic quality of the south end with a brick looking texture and the building main purposes building is to strengthen the community engagement with indoor and outdoor space.






























PLAN 1/8”=1’
THE HOTEL ROOM FLOORS HAVE COMMUNAL SPACES FOR THOSE THAT ARE CHECKED IN AS WELL. ON EACH FLOOR THERE ARE A SETS OF FULL KITCHENS ALL OPEN TO ONE ANOTHER THAT GUESTS ARE WELCOME TO USE. THE CABINETS ARE STOCKED WITH ALL THE BASIC KITCHEN UTENCILS. GROUP
MARKET AS WELL AS THE HOTEL LOBBY AND LOUNGE. IN TODAYS WORLD WORKING FROM HOME IS ESSENTIAL, SPACES ON THE SECOND LEVEL WERE CREATED TO MOCK CAFE SYTLE WORK FROM HOME CONDITIONS. THEY ARE OPEN TO THE PUBLIC AND ALLOW HOTEL GUESTS A DESIGNATED PLACE FOR WORK OUTSIDE OF THEIR HOTEL ROOM TO FOSTER A BETTER WORK-LIFE BALANCE.









Allow for low budget experiences in the south end COMMUNAL LIVING
Forge community identity within a shared space NEW INTERACTIONS
Establish positive communication between strangers
PEDESTRIAN FOCUSED CONNECTION Walkability throughout the site


































Concept - Form and Volume
This proposed apartment complex extends the character of the neighborhood of the South End district through the introduction of ground level restuarants on Perry Street and a predestrian cut through that promotes movement from Thayer Street to Jordan Street. The buildings volume is independent from the base floor which keeps the historic ‘memory’ of the old Leon warehouse/factory with brick and curved forms; upper residential floors of the building embraces modern architecture with sharp angles. Residents living around the central courtyard can embrace the beauty and peace of the courtyard and where the view of the Jordan Lofts is also not disrupted. The building provides transparency and outdoor spaces to take advantage of the four seasons in Boston and also provides an astonishing view of the sunset overlooking Peters Park.





























