RUBEN MANOPLA

PROFESSIONAL WORK SAMPLE

![]()

PROFESSIONAL WORK SAMPLE

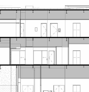
Project Stats: $2.0B+ | 33,000 Capacity | Las Vegas Strip (Former Tropicana Site)
Estimated Completion: Spring 2028 (In construction)
Sightline Optimization: Orchestrated wall and railing height coordination across suite and club levels, ensuring unobstructed field views from both seated and standing positions relative to the stadium rake.
Vertical Clearance Management: Standardized pony wall and enclosure heights to shield back-of-house mechanicals while maintaining mandated 8’-6” to 9’-0” clear heights across diverse program areas.
Program-Specific Transitions: Managed the vertical alignment of partitions across multiple levels to accommodate varying floor-to-floor heights and complex structural plenum depths.

Detailed Technical Documentation: Managed the comprehensive annotation and dimensioning strategy for primary vertical cores, ensuring 100% accuracy across enlarged plans and longitudinal sections.
System Integration & Design Updates: Facilitated real-time geometry adjustments to elevator shaft enclosures and pit depths based on updated manufacturer cab sizes and structural concrete tolerances.
Graphic Standards & Clarity: Spearheaded the graphic cleanup and visual hierarchy of complex Revit families to ensure legible, high-fidelity documentation for permit and construction sets.


Egress & Code Compliance: Managed comprehensive annotation and dimensional stringing for primary public egress stairs, ensuring strict adherence to code-mandated handrail clearances and riser/tread uniformity.
System Integration Tolerances: Coordinated precise vertical and horizontal tolerances for escalator assemblies, verifying that structural slab openings and support pits aligned with manufacturer-specific requirements for fit-out.
Technical Callouts & Detailing: Developed a robust system of technical callouts to resolve non-orthogonal plan geometries, ensuring seamless transitions between architectural soffit finishes and integrated lighting arrays.










Plan Development: Authored enlarged reflected ceiling plans (RCPs) and dust lid layouts to standardize secondary enclosures across primary stadium concourses.
Multi-Discipline Coordination: Managed the technical interface between architectural dust lid assemblies, recessed lighting arrays, and structural trusses to ensure code-compliant clearances.
Geometric Resolution: Resolved complex, non-orthogonal plenum conditions to maintain architectural clear heights while accommodating critical HVAC and fire suppression distribution.









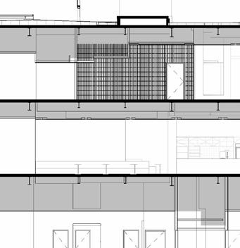
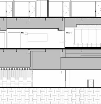
Project Stats: $200M | 160,000+
SF | Los Angeles, CA (University Park Campus)
Estimated Completion: Summer 2026 (In final construction)
























































































Section Coordination & Development: Refined building-length longitudinal sections to establish vertical continuity across 4 primary levels. Streamlined graphic standards via Revit visibility settings and 2D detail components, ensuring high-fidelity clarity for permit-ready documentation.
Comprehensive Callout Strategy: Developed and managed a complex system of wall section and detail callouts, ensuring a seamless navigational link between high-level building sections and localized technical details.
Interdisciplinary Section Coordination: Resolved spatial conflicts between primary structural steel, vertical egress paths, and mechanical plenums through rigorous cross-referencing of architectural sections and consultant models.











Perimeter Profile
Resolution: Executed the “knifeedge, technical development, coordinating rigid insulation tapers and structural outriggers to achieve a minimal aesthetic profile.
Enclosure Continuity: Resolved complex waterproofing transitions at the leading edge to ensure seamless integration between the roofing membrane, metal fascia, and concealed drainage.

Structural & Field Coordination: Aligned architectural intent with secondary steel supports under wind-load constraints, authoring large-scale details to clarify installation sequencing for the soffit and fascia.



System Documentation: Coor the technical development of the 3’-9” modular curtain wall and storefront systems across the north facade to ensure material efficiency and aesthetic continuity.
Vertical Alignment Coordination: Managed the precise vertical mullion alignment across multiple floor levels, coordinating with the primary structural steel grid and interior floor slabs.
Geometric Resolution: Resolved complex glazing transitions at corner conditions and varying finish-to-finish heights to maintain a consistent 3’-9” horizontal datum.


Modular Alignment: Standardized the precast concrete panel layouts to adhere to the primary 3’-9” modular grid, ensuring seamless vertical and horizontal alignment with the adjacent curtain wall and storefront systems.
Joint & Interface Design: Managed the technical detailing of panel joints and sealant depths to maintain a consistent aesthetic across varying material transitions.
Tolerance Management: Coordinated the installation tolerances between the rigid precast panels and the primary structural steel frame to ensure code-compliant clearances and building movement.









Project Stats: $3.0B+ | 2.25-Mile Elevated Guideway | Los Angeles, CA (LAX)
Estimated Completion: Late 2026 (In final testing/commissioning)
WCTA 00-WCTA GENERAL
G-002
• To be added after IDR/CR G-003
• To be added after IDR/CR G-004
WCTA-A-471
WCTA-A-471.01
WCTA-A-472.01
WCTA-A-480
• FCR-4366 - Modified wall to conceal exposed base plates at fixed glazing and auto sliding door Zone 09
• FCR-3952 - Revised again per LAWA LINXS coordination
• FCR-5869 - Added section to clarify window furring
• STA-08 44 18-2.1 - Revised dimensions to match submittal
• NCR-0818 - Updated callout for new detail per NCR
• FCR-6674 – Adjusted low point for Detail 02/500.09
Implementation of Field Change Requests (FCR) and Design Change Notices (DCN) for the Landside Access Modernization Program (LAMP) at Los Angeles International Airport. This scope involved the technical resolution of field interferences and code-compliance updates during the active construction of the APM guideway and station interfaces.
• To be added after IDR/CR G--05
G-006
G-007
G-010
• To be added after IDR/CR
• To be added after IDR/CR
• To be added after IDR/CR
• To be added after IDR/CR
WCTA 00-WCTA SITE CIVIL
For reference only. Will not be issued – S. Parab
WCTA 00-WCTA CIVIL ROUGH GRADING
No revised drawing scope – confirmed by Enrique Yang– S. Parab
WCTA 00-Utilities
For reference only. Will not be issued – S. Parab
WCTA 01-WCTA ARCHITECTURE
WCTA-A-011
WCTA-A-012
WCTA-A-012.01
WCTA-A-012.02
WCTA-A-013
WCTA-A-020
WCTA-A-050.02
WCTA-A-060
WCTA-A-070
WCTA-A-080
WCTA-A-081.02
WCTA-A-082.02
WCTA-A-084
WCTA-A-084.02
WCTA-A-084.04
WCTA-AX-101
• FCR-4992 – Revised EVCS striping background to reflect additional EVCS added from P2A & P2B as per LAWA Directive Letter No. 0080
• FCR-7421 - Revised door framing at LVL 1 St. 11 East CMU wall
• FCR-4992 – Revised EVCS count to reflect additional EVCS added from P2A & P2B as per LAWA Directive Letter No. 0080
• FCR-4992 – Revised EVCS count to reflect additional EVCS added from P2A & P2B as per LAWA Directive Letter No. 0080
• FCR-4366 – Revised plan background per FCR wall changes.
• FCR-4992 – Revised EVCS count to reflect additional EVCS added from P2A & P2B as per LAWA Directive Letter No. 0080
• FCR-7759 - Added new abbrev for existing gap
• FCR-4366 – Revised plan background per FCR wall changes
• FCR-4366 – Revised plan background per FCR wall changes.
• FCR-8100: Detail 4, removed the ISA symbol from the accessible EVCS stall markings.
• Revised interior floor requirements
• Revised Table
• FCR-8108 – Removed fire rating from furred wall
• FCR-8108 – Removed fire rating from furred wall
• FCR-4992 – Revised parking striping for EVs.
• FCR-4366 – Revised plan background per FCR wall changes.
• FCR-7228 – Reduced area of Esc. Control Room
• FCR-7338 – Reduced the area of Esca. Control Room.
• FCR-4311 – Revised breakaway door plan graphic.
• FCR-5431- Removed demolition scope of the P3 parapet wall.
WCTA-A-481
WCTA-A-482
WCTA-A-490
WCTA-A-491
WCTA-A-492
• FCR-7274 - Added keynotes and dimensions of guardrail, and updated model per shops
• FCR-7190 - Relocated FEC and BLS cabinet
• NCR-0875 WCTA and ped walkway - fire sleeve
• NCR-0486 - Two Medium Voltage (MV) conduits running in the WB guideway were installed on the south side of the column
• FCR-3388- dropped ceiling for utilitiy routing
• FCR-7624 & FCR-7788 - added new detail for missing expansion joint return to north
• FCR-3988 - Updated soffit to conceal pipes
• FCR-7274 - Added keynotes and dimensions of guardrail, and updated model per shops
• DCN-328 - Revised expansion joint per DCN-328
• FCR-5590 - Revised wall type to show 1 hr rating
• DCN-205 & FCR-3074 - Background update of HSS 8x6 to 12x12 per DCN
• FCR-5311 - Expanded view to show HSS elevations on glazing
• FCR-4823 - WOW wall updates
• FCR-7829 - Shifted footrail to be 1'-8" to the center line of core/post instead of the tube rail
FCR/DCN Management: Facilitated the documentation and drafting of architectural revisions (DCN process), ensuring field-identified conflicts were resolved through precise technical detailing and interdisciplinary coordination. Joint & Interface Design:
Interdisciplinary Conflict: Resolution: Performed PDF overlays and BIM coordination to resolve utility path interferences (mechanical/plumbing) with architectural partitions, maintaining the integrity of the building envelope and firerated assemblies
WCTA-A-496
WCTA-A-500
WCTA-A-500.01
WCTA-A-500.02
WCTA-A-500.03
WCTA-A-500.04
WCTA-A-500.06
WCTA-A-500.08
WCTA-A-500.09
WCTA-A-500.10
• FCR-6784 - Revised roof ladder framing to accommodate DCN-314 canopy movement.
• FCR-6796 - Moved antenna brackets per FCR request
• FCR-4565 -new detail for access ladder
• FCR-5522 - Revised top of canopy elevation
• FCR-5926 - & STA-26 41 13-2.2 - Updated lightning protection keynote
• FCR-6011 & FCR-6170 - Gutter revision per LINXS field condition email
• FCR-7506 - Added canopy drip flashing
• FCR-7085 & FCR-7494 - Updated detail per FCR-7085 to raise parapet coping cap & revised exterior light per FCR-7494.
• Sta- 07 56 00-5.1 - revised PVC to liquid-applied membrane roofing
• FCR-7416 - Adjusted EJ-E joint location to remove conflict with roof flashing.
• FCR-5590 - Updated wall type to (non-rated) above mezzanine. The rated wall will terminate at the 2-hour-rated mechanical mezzanine floor.
• FCR-5869 - Added detail to clarify window furring
• FCR-7167 & FCR-7461 -NCR-939-940
• FCR-7231 - North galleria soffit revised to metal panel
• FCR-5923 & 5671- Revised ships ladder and roof hatch & guard orientation
• FCR-7039 - Gyp. Enclosure to conceal exposed pipes
• FCR-6674 – updated WCTA East Vestibule Gutter transition
• FCR-7531 - Adjusted location of perf sheet metal & hat channel per LINXS request
• FCR-6327 - Added light fixture to detail per FCR request










Green is a
Red is most
DCN











