DOSSIER TALLER 7

Page 1

GRUPO 14 CÁTEDRA: Arq. Edgar Mandujano - Arq. Jack Mayer 14 • Celeste Rosario Pecho Peña 100% • Adrian Marcelo Bazan huertas 100% INSTITUCIÓN PÚBLICA DE GESTIÓN EMPRESARIAL -Propuesta• PROYECTO • Jr. Azangaro - Jr. Sta. Rosa
ADRIAN BAZAN HUERTA 14 • Celeste Rosario Pecho Peña 100% • Adrian Marcelo Bazan huertas 100% G-14 INTEGRANTES • PROYECTO • Jr. Azangaro - Jr. Sta. Rosa CELESTE PECHO PEÑA
ÍNDICE 01 02 03 04 05 CONTEXTO PROGRAMA PLANOS: UBICACIÓN Y PLANTAS PLANOS: ELEVACIONES Y CORTES RENDERS DE PROYECTO FINAL 06 GENERAR ESPACIOS A DETALLE

GENERALIDADES

03 PLANO DE UBICACIÓN
01 GENERALIDADES TERRENO PREEXISTENCIA INFORMACIÓN CATASTRAL ALTURA MAX. DE EDIFICACIÓN 2 PISOS USO PREDOMINANTE COMERCIAL ESTADO DE CONSERVACION REGULAR MATERIAL PREDOMINANTE ADOBE O QUINCHA ANTIGUEDAD 121 AÑOS AREA DE LOTE 459,40 m2 AREA CONSTRUIDA 827,15

CEPEFA

CEPEFA (CENTRO PÚBLICO DE FORMALIZACION LEGAL Y ARQUITECTURA)

Así mismo se reúne con SUNARP con el fin de que la formalización de documentación sea mas rentable al cliente.

Somos una empresa que se dedica a los tramites generales con arquitectos, abogados y notarios .

SEDE CENTRO HISTORICO - SUNARP

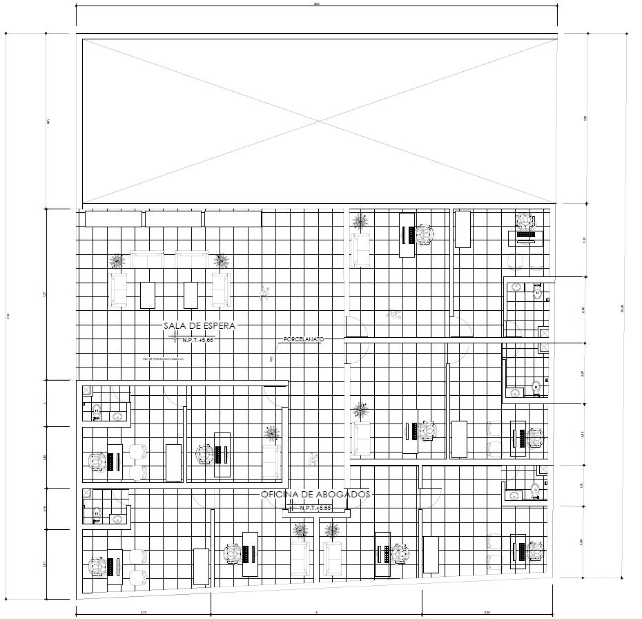
SUNARP ( SUPERINTENDENCIA NACIONAL DE REGISTROS PUBLICOS).

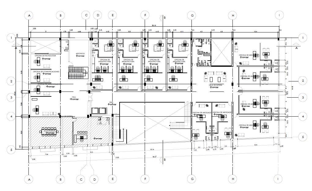
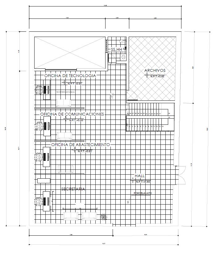
Contamos con la sede de Sunarp establecida en la preexistencia, cuenta con dos niveles, los cuales encontramos las oficinas de tecnología, comunicaciones, abastecimientos.

Así mismo la secretaria, sala de reuniones, oficina del gerente.

01 GENERALIDADES

FACHADA

Se tomo en consideración la trama de la casa Negreiros con el fin de preservar el monumento histórico y relacionarlo con su entorno.

Se usa material traslucido con el fin de mantener la iluminación y ventilación a las oficinas.

01 GENERALIDADES

ZONIFICACIÓN

02
GENERALIDADES- ZONIFICACIÓN ESTACIONAMIENTO CIRCULACION VERTICAL ( ESCALERAS Y ASCENSORES) CUARTIO DE SEGURIDAD AMBIENTES ESC: 1/100

ZONIFICACION

02
GENERALIDADES- ZONIFICACIÓN ´
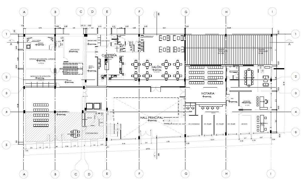
HALL DE INGRESO CIRCULACION HORIZONTAL CAFETERIA SEDE SUNARP
ESC: 1/100
NOTARIA
AMBIENTES
02 PROGRAM A GENERALIDADES- AMBIENTES ZONIFICACIÓN OFICINAS DE ABOGADOS OFICINAS DE ARQUITECTOS SEDE SUNARP CIRCULACIÓN PEATONAL AMBIENTES ESC: 1/100

PLANTAS

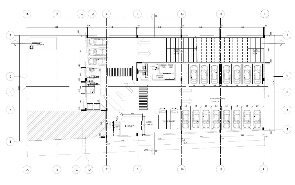
01 PLANOS PLANTA SÓTANO ESC: 1/100
02 PLANOS PLANTA PRIMER NIVEL ESC: 1/100
03 PLANOS PLANTA SEGUNDO NIVEL ESC: 1/100
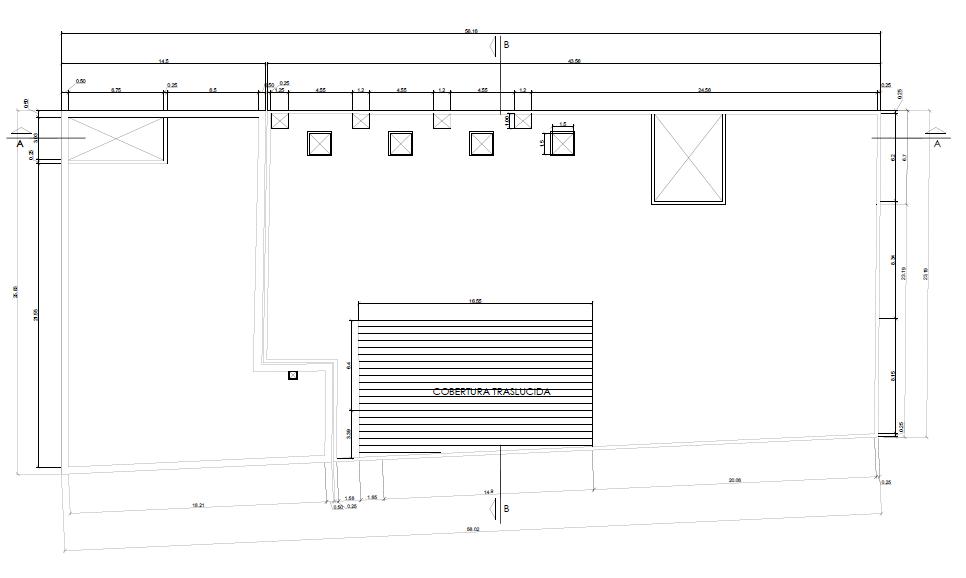
04 PLANOS PLANTA DE TECHOS ESC: 1/100

ANTROPOMETRIA

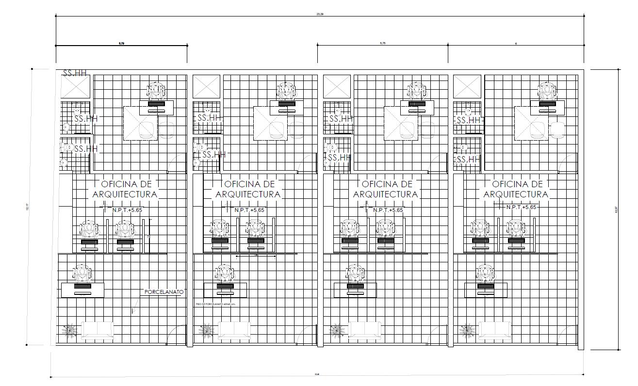
DESCRIPCION: - PORCELANATO DE 60 X 60 PARA HALL PRINCIPAL - PORCELANATO DE 40 X 40 PARA BAÑOS

05 PLANOS DE DETALLE ESC: 1/50
05 PLANOS DE DETALLE
06 ESC: 1/50 DESCRIPCION: - PORCELANATO DE 60 X 60 PARA HALL PRINCIPAL PLANOS DE DETALLE
06 PLANOS DE DETALLE

DESCRIPCION: - PORCELANATO DE 60 X 60 PARA HALL PRINCIPAL - PORCELANATO DE 40 X 40 PARA BAÑOS

07 ESC: 1/50
PLANOS DE DETALLE
07 PLANOS DE DETALLE PLANTA: SEDE SUNARP- PRIMER NIVEL

DESCRIPCION

:

- PORCELANATO DE 60 X 60 PARA HALL PRINCIPAL - PORCELANATO DE 40 X 40 PARA BAÑOS - REPISAS DE MADERA - JARDIN DE PASTO ARTIFICIAL

08 ESC: 1/50
PLANOS DE DETALLE
PLANTA: SEDE SUNARP- PRIMER NIVEL 08 PLANOS DE DETALLE

DESCRIPCION:

- PORCELANATO DE 60 X 60 PARA HALL PRINCIPAL - PORCELANATO DE 40 X 40 PARA BAÑOS

- MOSTRADOR DE MADERA - MESAS DE MADERA PINTADAS EN JADE

09 ESC: 1/50
PLANOS DE DETALLE
09 PLANOS DE DETALLE
-
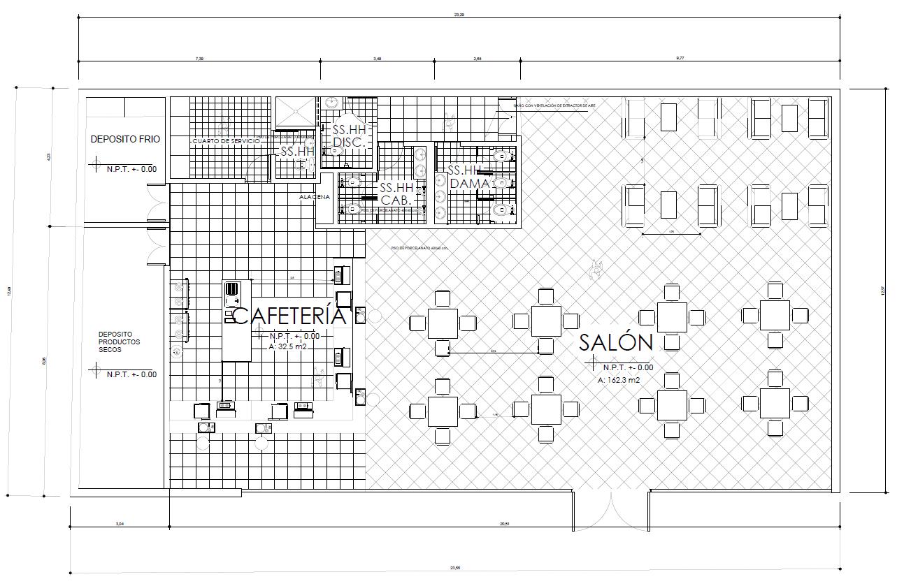
PLANTA: CAFETERÍA
PRIMER NIVEL

DESCRIPCION:

- PORCELANATO DE 60 X 60 PARA HALL PRINCIPAL

- PORCELANATO DE 40 X 40 PARA BAÑOS

- MOSTRADOR DE MADERA

- MESAS DE MADERA PINTADAS EN JADE

10 ESC: 1/50
PLANOS DE DETALLE

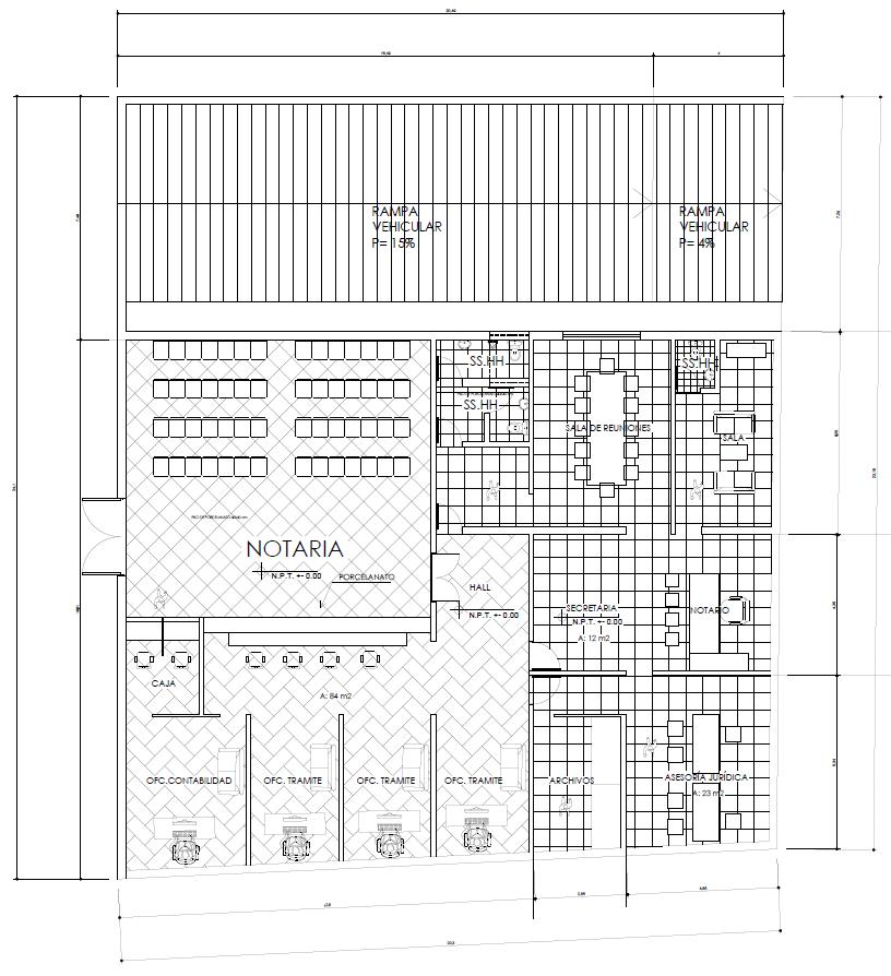
PLANTA: NOTARIAPRIMER NIVEL

10 PLANOS DE DETALLE

DESCRIPCION:

- PORCELANATO DE 60 X 60 PARA HALL PRINCIPAL - PORCELANATO DE 40 X 40 PARA BAÑOS

- MOSTRADOR DE MADERA

- SILLONES COLOR JADE

11 ESC: 1/50
PLANOS DE DETALLE

PLANTA: SEDE SUNARPSEGUNDO NIVEL

PLANOS DE DETALLE 11

DESCRIPCION:

- PORCELANATO DE 40 X 40 PARA BAÑOS

- MOSTRADOR DE MADERA

- SILLONES COLOR JADE

12 ESC: 1/50
PLANOS DE DETALLE
12 PLANOS DE DETALLE PLANTA: OFICINA DE ARQUITECTURA- SEGUNDO NIVEL

DESCRIPCION:

- PORCELANATO DE 40 X 40 PARA BAÑOS - MOSTRADOR DE MADERA - SILLONES COLOR JADE

13 ESC: 1/50
PLANOS DE DETALLE

PLANTA: OFICINA DE ABOGADOSSEGUNDO NIVEL

13 PLANOS DE DETALLE
14 ELEVACIONES Y CORTES
15 ELEVACIONES Y CORTES

RENDERS

06 RENDERS DE PROYECTO FINAL
06 RENDERS DE PROYECTO FINAL
06 RENDERS DE PROYECTO FINAL
06 RENDERS DE PROYECTO FINAL
06 RENDERS DE PROYECTO FINAL
06 RENDERS DE PROYECTO FINAL
06 RENDERS DE PROYECTO FINAL
06 RENDERS DE PROYECTO FINAL

Turn static files into dynamic content formats.

Create a flipbook
Issuu converts static files into: digital portfolios, online yearbooks, online catalogs, digital photo albums and more. Sign up and create your flipbook.
DOSSIER TALLER 7 by rosario pech - Issuu