Finding Formation / Rizhao Dong, B Arch

Page 1

Finding Formation Rizhao

Dong, B Arch

Finding Formation Rizhao Dong, B Arch

00 / Table of Contents 01 / Angel Island Visitor Center 02 / The Fillmore Library 03 / 806 Washington Artisits' Cooperative 04 / The Duality of Robert D. Thesis / Stacking Fields 04 / 17 18 / 31 32 / 47 48 / 65 66 / 97
RIZHAO DONG, B ARCH FINDING FORMATION 4/5

01 / Angel Island Visitor Center Exhibition of Immigration History

COURSE ARH 350 Studio 6

Site Conditions & Building Performance

PROJECT Visitor Center

INSTRUCTOR Ethen Wood

SITE Angel Island, Tiburon, CA

PROJECT STATEMENT

The project proposes a new island visitor center with exhibition hall, classrooms, library, conference rooms, multipurpose rooms and public spaces for visitor and educational purposes. The program aims to explore and showcase the experiences of early immigrants to the United States and the history of the island itself as an immigration station, and it welcomes visitors and helps people learn about the history of immigrants and immigration station through exhibitions, mini classes and reading materials.

PROJECT / ANGEL ISLAND VISITOR CENTER [01] [02] [03] [04] [Thesis]

Angel Island Visitor Center

Angel Island Visitor Center

Angel Island is well known for its history as an immigration station, and today it is open to the public as a state park, welcoming people for hiking and visiting the historic sites. This project proposes a new visitor center on the island with the concept of blending the programs together with no obvious separation in order to create a smooth transition between the spaces. The overall form is composed of three giant rectangles that are overlapping to create a blending e ect that connect each of the volumes. The leftover space in the middle of the overlapping volumes becomes a courtyard bring the outside landscape into the project and promote sustainability. Thicker walls enclose each end of these rectangles to frame the views and visually link the island with the building.

Angel Island is well known for its history as an immigration station, and today it is open to the public as a state park, welcoming people for hiking and visiting the historic sites. This project proposes a new visitor center on the island with the concept of blending the programs together with no obvious separation in order to create a smooth transition between the spaces. The overall form is composed of three giant rectangles that are overlapping to create a blending eect that connect each of the volumes. The leftover space in the middle of the overlapping volumes becomes a courtyard bring the outside landscape into the project and promote sustainability. Thicker walls enclose each end of these rectangles to frame the views and visually link the island with the building.

Blending

Blending

RIZHAO DONG, B ARCH FINDING FORMATION 6/7
Location Plan
Rizhao Dong | Fall 2020 | ARH 350 1” = 20’-0” 1 Overall Site Section
1 2 3 4
PROJECT / ANGEL ISLAND VISITOR CENTER

01 / Land art on site

02 / Land art plan 03 / Land art physical model

RIZHAO DONG, B ARCH FINDING FORMATION 8/9
02 / 01 /
PROJECT / ANGEL ISLAND VISITOR CENTER 03 /
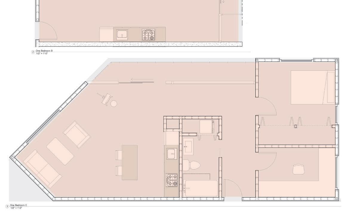
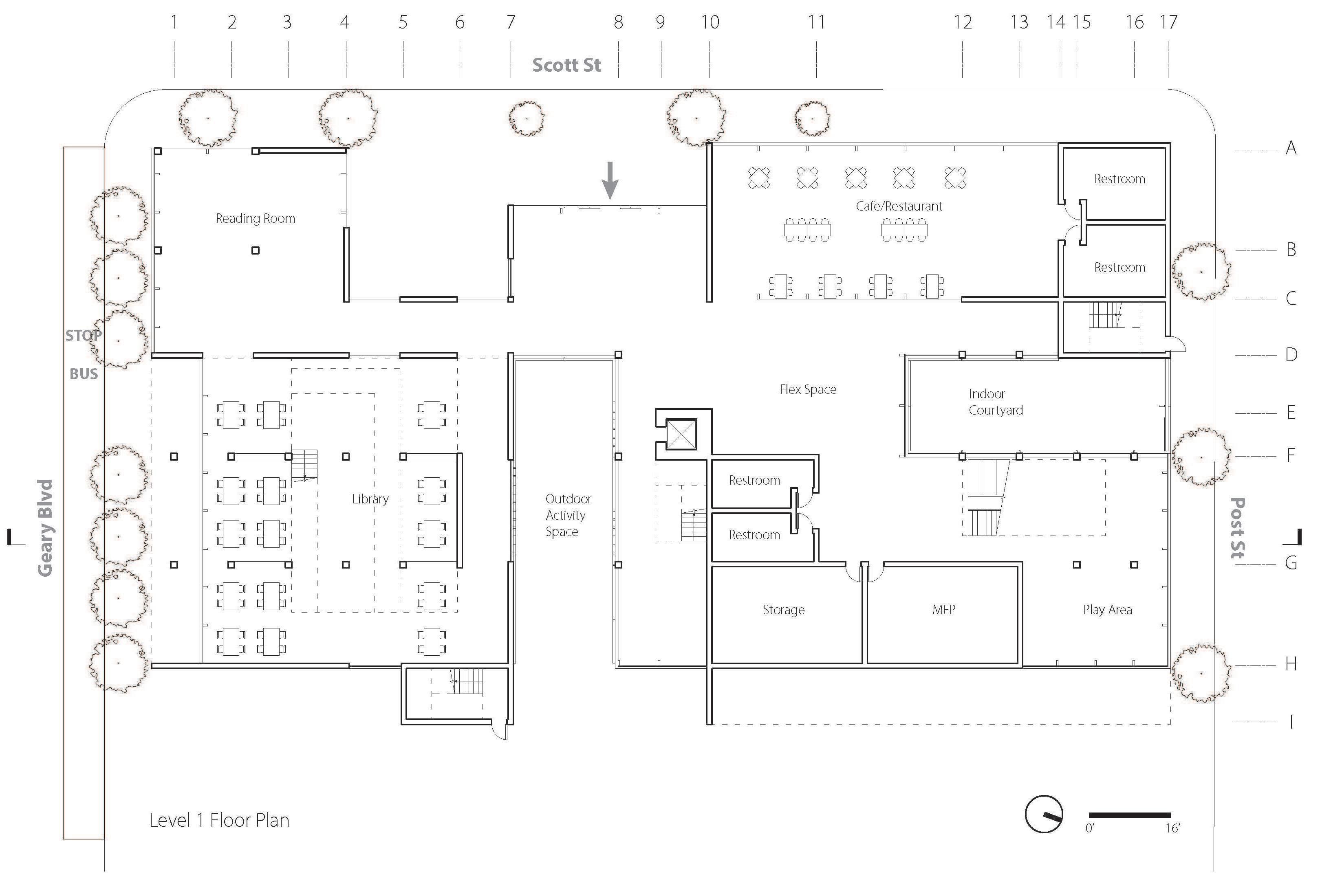
RIZHAO DONG, B ARCH FINDING FORMATION 10/11 Level 1 Floor Plan
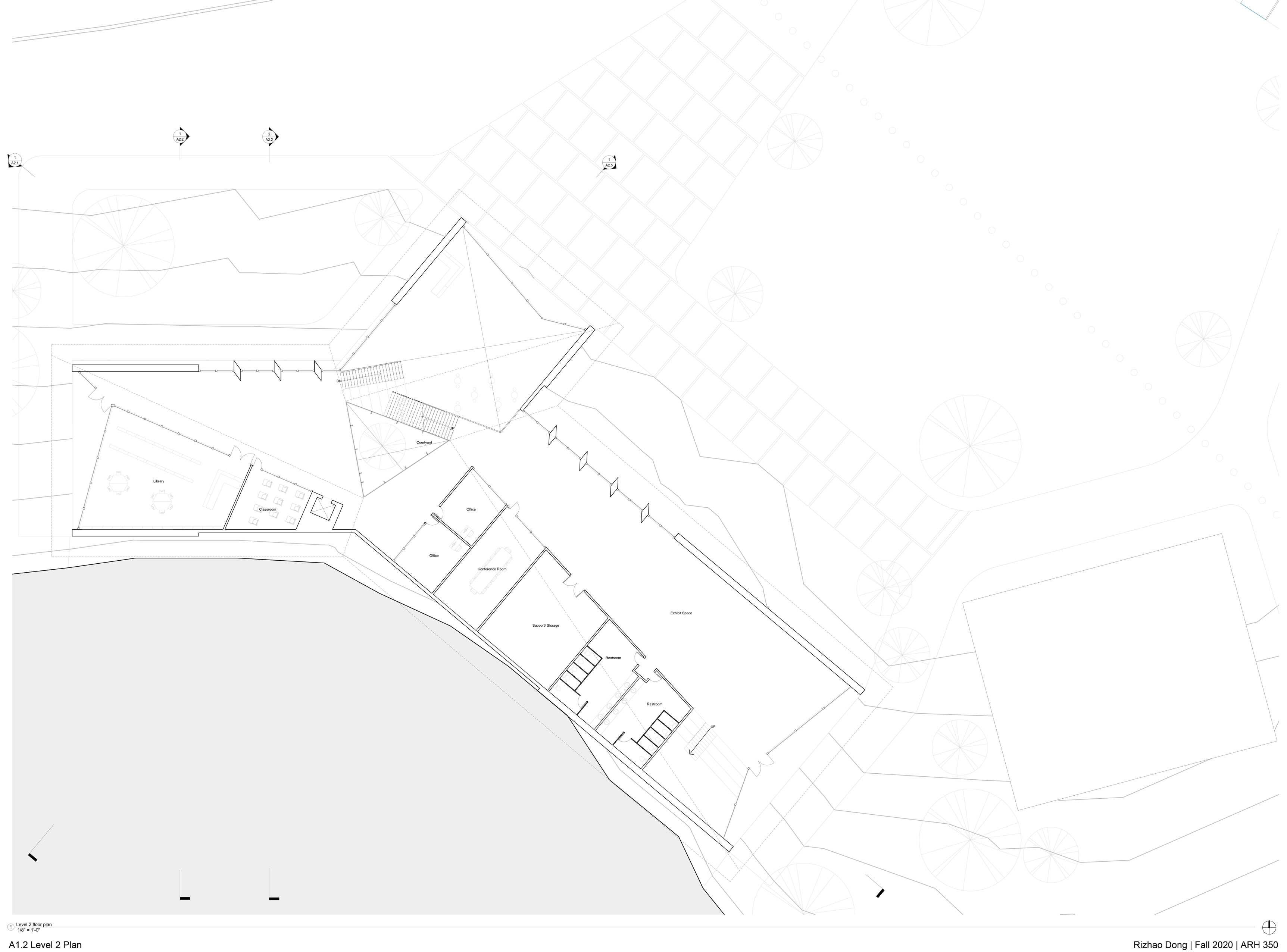
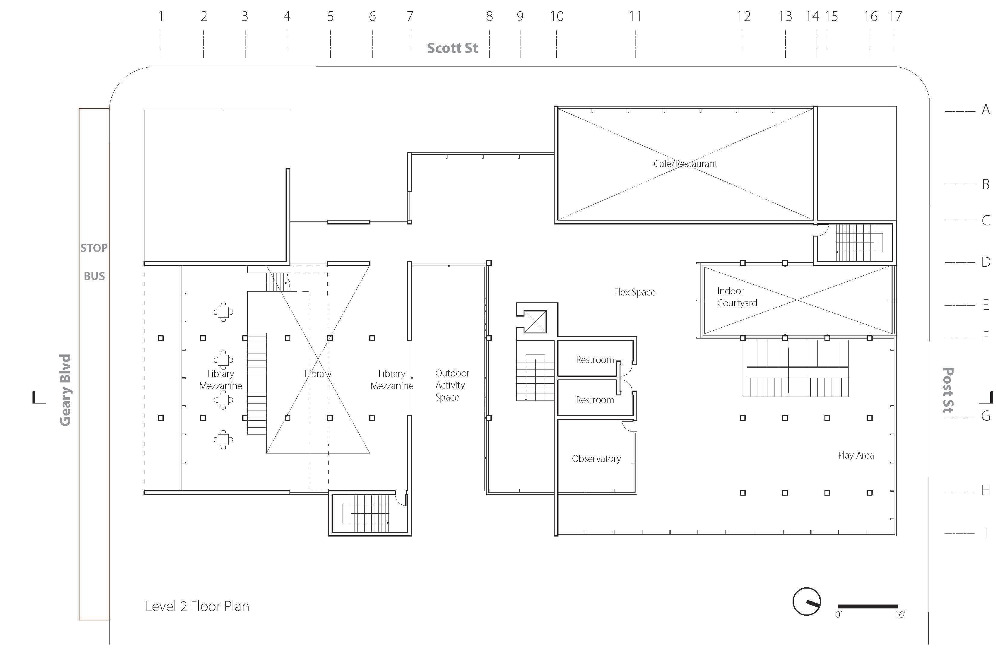
PROJECT / ANGEL ISLAND VISITOR CENTER Level 2 Floor Plan
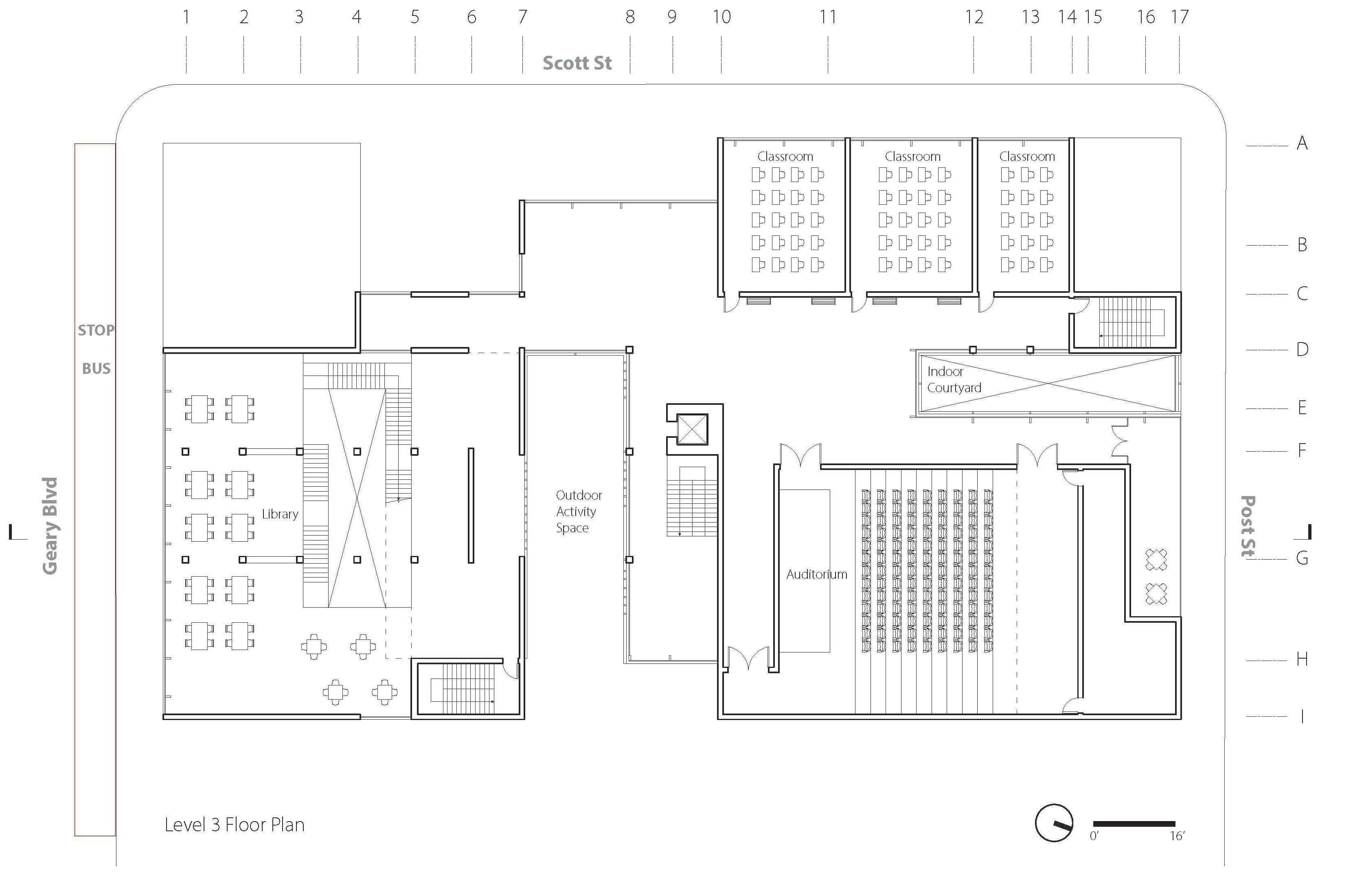
RIZHAO DONG, B ARCH FINDING FORMATION 12/13 Level 3 Floor Plan
PROJECT / ANGEL ISLAND VISITOR CENTER
RIZHAO DONG, B ARCH FINDING FORMATION Longitudinal
Section
PROJECT / ANGEL ISLAND VISITOR CENTER
Section through Central Courtyard
RIZHAO DONG, B ARCH FINDING FORMATION 16/17 Steel Roof Waterproof Insulation 3/4”Plywood 2“ x 8” @24” o.c. 8” Batt Insulation Gypsum Board 30” Glulam Beam Finish Wood Panel Flooring Sub ooring 14” Batt Insulation 2“ x 14” @24” o.c. Wood Panel Ceiling Waterproof Insulation Finish Concrete Flooring Concrete Slab
PROJECT / ANGEL ISLAND VISITOR CENTER
RIZHAO DONG, B ARCH FINDING FORMATION 18/19

PROJECT STATEMENT

PROJECT / THE FILLMORE LIBRARY [01] [02] [03] [04] [Thesis]
02 / The Fillmore Library After School Program & Library
Tectonics and Structure
This project aims to support immigrants who are displaced from their countries by giving them a sense of identity in a new place. The program brings the community together and offers language classes and family resources to navigate the educational system in the United States. COURSE ARH 410 Studio 7
PROJECT After School Program and Library INSTRUCTOR Karen Seong & Simon McKenzie SITE San Francisco, CA

Mapping

Gentri cation acts like a layer that covers the history of the redlining. There is a correlation when gentri cation map is seen overlayed onto the redlining map.

Redlined

01 / Gentrification acts like a layer that covers the history of the redlining.

Study Models

Overlay and transparency as a design concept is derived from the site research observation.

Physical Model 1:

Physical Model 2:

Physical Model 3:

Digital Model 1: Digital Model 2: Digital Model 3:

02 / Overlay and transparency as a design cocept is derived from the site research observation.

01 / Conceptual Site Mapping

02 / Study Models

03 / 3D Model on Site

RIZHAO DONG, B ARCH FINDING FORMATION 20/21
AreaGentricationLow Income Overlapping of Redlining & GentricationSection 8 HousingHospital
PROJECT / THE FILLMORE LIBRARY 03 /
RIZHAO DONG, B ARCH FINDING FORMATION 22/23 Level 1 Floor Plan
PROJECT / THE FILLMORE LIBRARY Level 2 Floor Plan
RIZHAO DONG, B ARCH FINDING FORMATION 24/25
Floor
Level 3
Plan
PROJECT / THE FILLMORE LIBRARY
4 Floor Plan
Level
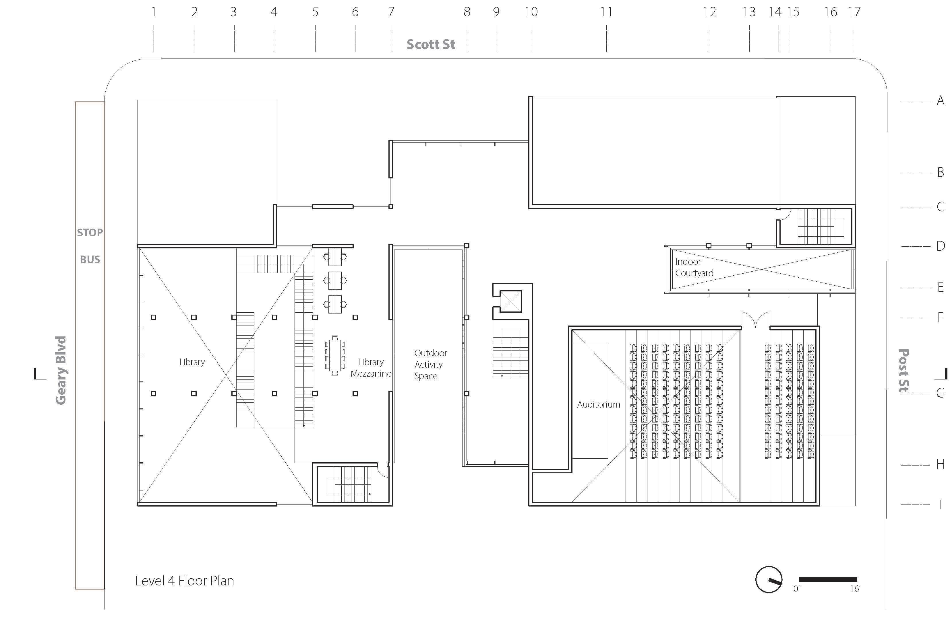
RIZHAO DONG, B ARCH FINDING FORMATION 26/27 Longitudinal Section 0’16’ Post St Geary Blvd Library (kids, teens) Library (adults) Oce Conference Room Flex Space Restroom Restroom Play Area Play Area Auditorium 1234567891011121314151617 A B C D E F Level 1 ------- 0’ Level 2 ------- 14’ Level 3 ------- 28’ Level 4 ------- 42’ Roof Bottom ------- 57’ Roof Top ------- 63’
Longitudinal Section
PROJECT / THE FILLMORE LIBRARY tural Diagram e Core 3 2 2 4 3 1 3 3 1. Concrete Core 2. Concrete Shear Wall 3. Mass Timber (column, beam, and floor slab) 4. Concrete Slab

Sectional Model

The openings allow peole look over to the other side of the building and the outdoor activity space. Visual connections are created with these sight lines.

RIZHAO DONG, B ARCH FINDING FORMATION 28/29

Front

PROJECT / THE FILLMORE LIBRARY
Library Mezzanine 1 Back Library Mezzanine 2
Perspective 1 Circulation Space looking to Outdoor Space Perspective 2 Main Stairs
RIZHAO DONG, B ARCH FINDING FORMATION 30/31 01 /
PROJECT / THE FILLMORE LIBRARY 02 / 03 / 01 / Vignette Library 02 / Vignette Play Area 03 / Vignette Outdoor Space
RIZHAO DONG, B ARCH FINDING FORMATION 32/33

03 / 806 Washington Artists' Cooperative Homes and Studios for Artists

PROJECT STATEMENT

PROJECT Affordable Cooperative Housing

INSTRUCTOR Charles Green

SITE Oakland, CA

DESIGN TEAM Rizhao Dong Salar Admadi Matthew Mitchell

The project aims to provide affordable housing for low-income Oakland based artists. The residential building has a range of unit types to choose from studio, one bedroom, and loft as well as a corresponding home studio environment within the units to meet the different spatial needs of artists and to allow them to create in their homes. Cracks into urban fabric is the key term of this project

PROJECT / 806 WASHINGTON ARTISTS' COOPERATIVE
[01] [02] [03] [04] [Thesis]
COURSE ARH 450 Studio 8 Housing & Integrated Design
RIZHAO DONG, B ARCH FINDING FORMATION 34/35 01 / Journey around Site 02 / Form Study 01 /
PROJECT / 806 WASHINGTON ARTISTS' COOPERATIVE 02 /
PROJECT / 806 WASHINGTON ARTISTS' COOPERATIVE Wash ing on Street 8th Stree Br oad way 9th Stree N 1/16 = 1'-0" 1 Site Plan
RIZHAO DONG, B ARCH FINDING FORMATION 38/39
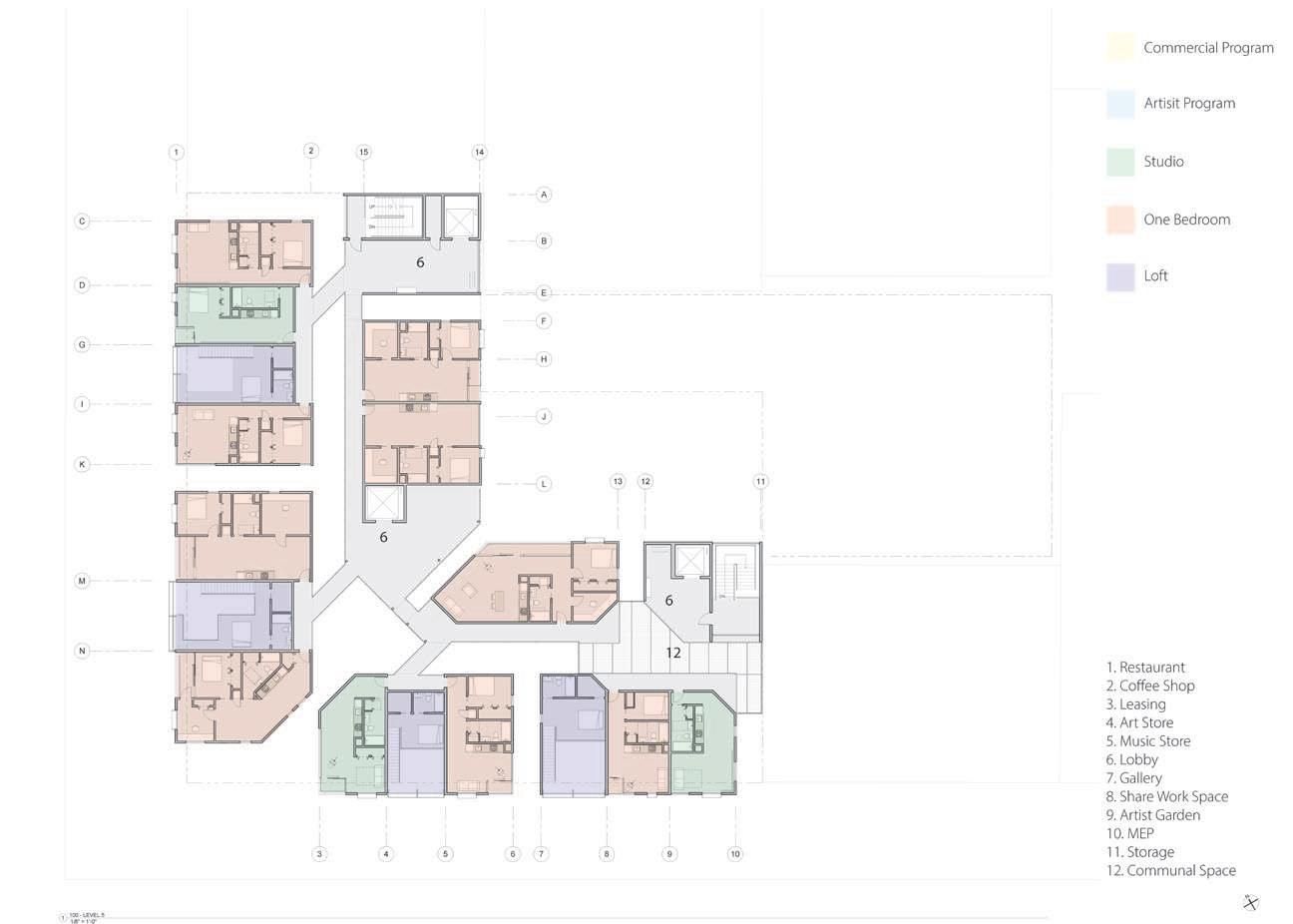
01 / Basement Level 02 / Level 1 03 / Level 2 04 / Level 3 05 / Level 4 06 / Level 5 01 / 02 / 03 / 04 / 05 / 06 /
PROJECT / 806 WASHINGTON ARTISTS' COOPERATIVE
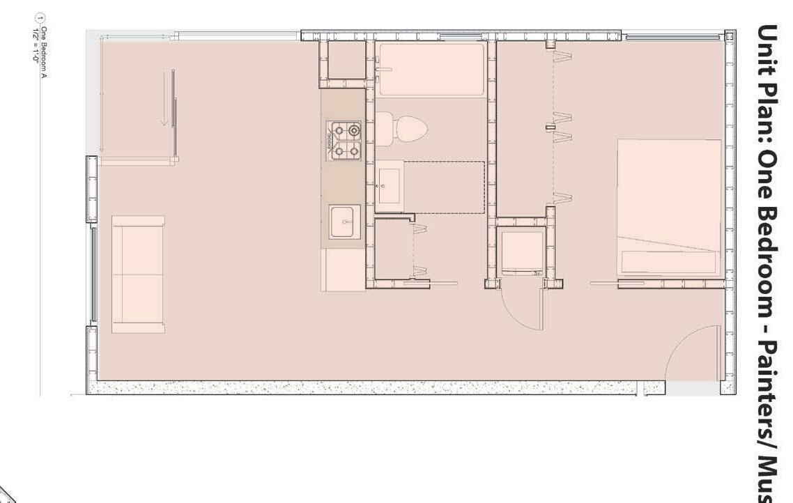
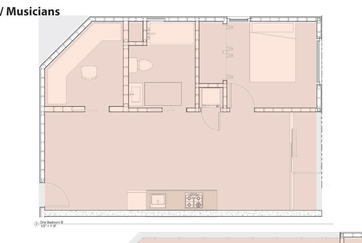
RIZHAO DONG, B ARCH FINDING FORMATION 40/41 01 / 02 / 03 / 01 / Studio Unit Plan 02 / 1 Bedroom Unit Plan 03 / Loft Unit Plan
PROJECT / 806 WASHINGTON ARTISTS' COOPERATIVE

01 / Section Perspective, Corridors

02 / Section Perspective, Rooms

RIZHAO DONG, B ARCH FINDING FORMATION 42/43
02 /
01 /

Sustainable Strategies

Heating & Cooling: - Thermal Mass - Natural Ventilation - Open-Air Courtyard

Daylighting:

Heating

Daylighting:

PROJECT / 806 WASHINGTON ARTISTS' COOPERATIVE LEVEL1 0' - 0" LEVEL2 15 - 0" LEVEL3 25
0" LEVEL4 35
0"
45
Natural Ventilation Natural
Natural Ventilation
-
-
LEVEL5
- 0" ROOFLEVEL 55 - 0"
Ventilation
Daylight Direct Heat from Sun Open-Air Courtyard Open-Air Courtyard Permeable Paver Permeable Paver Open-Air Courtyard
Sustainable Strategies
& Cooling: - Thermal Mass - Natural Ventilation - Open-Air Couryard
Rain Water Storage
- Direct / Indirect Daylight
- Direct / Indirect Daylight
RIZHAO DONG, B ARCH FINDING FORMATION 44/45 West
Elevation
PROJECT / 806 WASHINGTON ARTISTS' COOPERATIVE
RIZHAO DONG, B ARCH FINDING FORMATION 46/47 01 / Detail Wall Assembly Model

Flashing

Thin Brick Veneer - 1”

Thin Brick Holding Metal Deck

Vertical Metal Rail 5/8” (air space)

Vapor

Rigid Insulation - 1/2”

Fiberglass Mat Gypsum Sheathing - 1/2”

Light Gauge Steel Batt Insulation - 4”

Gypsum Board - 5/8”

Finish Concrete Flooring - 1 1/2” (radiant oor)

Concrete Slab - 12”

Thin Brick Veneer - 1”

Thin Brick Holding Metal Deck

Vertical Metal Rail - 5/8” (air space)

Vapor Rigid Insulation - 1/2”

Fiberglass Mat Gypsum Sheathing - 1/2”

Light Gauge Steel Batt Insulation - 4”

Gypsum Board - 5/8”

Flashing

Surface Break - 2”

ThinBrickVeneer-1”

ThinBrickHoldingMetalDeck

VerticalMetalRail-5/8”(airspace)VaporRigidInsulation-1/2”FiberglassMatGypsumSheathing-1/2”

LightGaugeSteelBattInsulation-4”GypsumBoard-5/8”

Assembly Model Detail Section

Scale: 3” = 1’ 0”

Assembly Model Detail Plan

Scale: 3” = 1’ 0”

PROJECT / 806 WASHINGTON ARTISTS' COOPERATIVE
RIZHAO DONG, B ARCH FINDING FORMATION 48/49

04 / The Duality of Robert D. Conceptual Media Center

COURSE ARH 210 Studio 3

Site Operations & Tectonic Systems

PROJECT Conceptual Media Center

INSTRUCTOR Alexandra Neyman

SITE Oakland, CA

DESIGN TEAM Rizhao Dong Serena Shih

Julia Pehoua Tatsiana Halavach

PROJECT STATEMENT

The project is a conceptual media center that is highly interactive with users. The project allows users to use transitional prosthetics to upload information into information bubbles that can be analyzed and shared with other users. The hidden information contained in these bubbles allows users with transitional prosthetics to search, analyze and exchange. The project will take the form of a growing information bubble, with some information displayed visually. The users will be in a huge bubble of information and will be constantly exploring and exchanging new stories.

PROJECT / THE DUALITY OF ROBERT D. CONCEPTUAL MEDIA CENTER [01] [02] [03] [04] [Thesis]
RIZHAO DONG, B ARCH FINDING FORMATION 50/51
PROJECT / THE DUALITY OF ROBERT D. CONCEPTUAL MEDIA CENTER
RIZHAO DONG, B ARCH FINDING FORMATION 52/53
PROJECT / THE DUALITY OF ROBERT D. CONCEPTUAL MEDIA CENTER
RIZHAO DONG, B ARCH FINDING FORMATION 54/55
PROJECT / THE DUALITY OF ROBERT D. CONCEPTUAL MEDIA CENTER
RIZHAO DONG, B ARCH FINDING FORMATION 56/57
/ THE DUALITY OF ROBERT D. CONCEPTUAL MEDIA CENTER
PROJECT
RIZHAO DONG, B ARCH FINDING FORMATION 58/59
PROJECT / THE DUALITY OF ROBERT D. CONCEPTUAL MEDIA CENTER
RIZHAO DONG, B ARCH FINDING FORMATION 60/61
PROJECT / THE DUALITY OF ROBERT D. CONCEPTUAL MEDIA CENTER
RIZHAO DONG, B ARCH FINDING FORMATION 62/63
PROJECT / THE DUALITY OF ROBERT D. CONCEPTUAL MEDIA CENTER
RIZHAO DONG, B ARCH FINDING FORMATION 64/65
PROJECT / THE DUALITY OF ROBERT D. CONCEPTUAL MEDIA CENTER
RIZHAO DONG, B ARCH FINDING FORMATION 66/67

Thesis

Fields

PROJECT STATEMENT

THESIS / STACKING FIELDS [01] [02] [03] [04] [Thesis]
Stacking
Exercising
/
Spaces and Facilities
project is to provide exercising spaces and facilities to the community to guarantee local residents’ daily outdoor exercise and promote physical and mental health at the same time.
the project footprint
be necessary. Therefore, stacking the programs
design strategy
the project. COURSE ARH 550 Studio 10 Final Thesis Project PROJECT Thesis Project INSTRUCTOR Ethen Wood & Philip Ra SITE Oakland, CA
The
Reducing
will
becomes the
which also allows a new park design around
RIZHAO DONG, B ARCH FINDING FORMATION 68/69

Thesis Statement

As Oakland continued to grow, parks began to be considered as an essential public infrastructure in the early 1900s. However, not every city park has received the same level of attention and investment. Due to regional characteristics, areas with fewer parks are often close to industrial areas, freeways and areas covered by harmful gasses. This problem is particularly evident in the West Oakland area of Oakland, California.

According to the research and studies, the health conditions of the West Oakland population are influenced by the environment and the lack of exercise, resulting in higher rates of asthma, high blood pressure, COPD and heart disease. The life expectancy of the residents in West Oakland is much shorter than the residents living in other parts of Oakland.

The lack of public exercising spaces in the parks in West Oakland does not guarantee people’s daily outdoor exercise and becomes one of the factors affecting people’s physical and mental health at the same time.The design aims to provide the community with exercising spaces and facilities at the appropriate location that help local residents get more exposure to exercise, to improve physical and mental health. To reduce the project

footprint, stacking the programs will be necessary which also allows a new park to be built around the project.

THESIS / STACKING FIELDS

1910 - First municipal playgrounds opened at deFremery Bushrod and Bayview (Raimondi). $1,000,000 bond issue for purchase of lands around Lake Merritt.

1910 - DeFremery Park is dedicated and included a dozen of swings, two long slides, a baseball diamond, two tennis courts, and courts for basketball, volleyball, and handball.

1947 - Raimondi an athletic

RIZHAO DONG, B ARCH FINDING FORMATION 70/71

Raimondi Park is dedicated and contained athletic eld.

1974 - Lowell Park is dedicated.

1999 - Poplar Community Recreation Center opens a new facility (known as Willie Keyes Recreation Center today).

THESIS / STACKING FIELDS

Health Data of West Oakland

Due to the impact of the surrounding environment, pollution from freeways, the Port and industrial areas, West Oakland residents are suffering from serious health problems and are at risk of exposure to breathing and heart and lung threatening diseases.

HEALTH DATA OF WEST OAKLAND

Asthma

COPD (chronic obstructive pulmonary disease)

Current asthma crude prevalence (%) - 9.85 - < 8.7

COPD crude prevalence (%) - 8.15 - < 5.7

- > 11

- > 41

High blood pressure crude prevalence (%) - 34.7 - < 28.3 - > 10.6

High Blood Pressure Heart Disease

- > 11

Coronary heart disease crude prevalence (%) - 9.85 - < 8.7

Source: https://experience.arcgis.com/experience/22c7182a162d45788dd52a2362f8ed65

RIZHAO DONG, B ARCH FINDING FORMATION 72/73

Benefits of Exercising

Exercise can help improve physical fitness in several ways, improving blood circulation and helping the body make better use of oxygen to boost immunity and improve disease symptoms. Moreover, regular exercise can also improve mental health, helping relieve stress and give up addictions.

WHAT

PHYSICAL

WELL-BEING

Source: https://medlineplus.gov/bene tsofexercise.html

https://joinyourgym.com/home-gym-setup/15-amazing-bene ts-of-exercise-illustrated/

MENTAL

THESIS / STACKING FIELDS
ARE THE HEALTH BENEFITS OF EXERCISING EXERCISING COULD HELP YOU
Maintain a Healthy Weight Relieve Chronic Pain Stronger Bones & Muscles Reduced Health Risks Healthier Skin Boost Energy Levels
Improved
Reduce
Socialising Lifetime Longevity
Sexual Health Sleep Better
Risk of Falls
Increase Brain Function Stress Relief Addiction Recovery Ease Depression & Anxiety

Age Group and Sport Demographics

Through data research and collection, the popularity of different sports varies across age groups. However, pickleball has become very popular recently and is great for people of all ages to participate.

Age Group & Sport Demographics

BASEBALL AREA 31,400 sqft

17%

BICYCLING 7%

FAVORITE SPORTS

AGE GROUP

PICKLEBALL AREA 1,800 sqft

77%

32%

BASKETBALL AREA 4,700 sqft

FOOTBALL AREA 57,600 sqft

44%

25%

SOCCER AREA 43,660 sqft (min.)

Source: https://www.dimensions.com/classi cations/sports https://www.pickleballportal.com/guides/pickleball-questions-answers/

https://www.aspenprojectplay.org/youth-sports/facts/participation-rates https://www.statista.com/statistics/1098462/favorite-sport-age/

RIZHAO DONG, B ARCH FINDING FORMATION 74/75
<10 years - 8% 10-17 years - 7% 18-24 years - 8% 25-34 years - 33% 35-44 years - 16% 45-54 years - 11% 55-64 years - 10% 65+ years - 7%

Observation of Exisiting Parks

THESIS / STACKING FIELDS

Site Hoover/Foster, West Oakland

West Oakland, Oakland, CA

SITE

Coverage: approx. 400 household (1200-1600 people)

RIZHAO DONG, B ARCH FINDING FORMATION 76/77
- 1
Wind Jan to Nov Wind Nov to Dec - 1 - 1 - 1 - 1
THESIS / STACKING FIELDS Hoover / Foster, West Oakland, Oakland, CA SITE SCHOOL SCHOOL 1.4 miles - 12 min 1.4 miles - 10 min 0.4 miles - 8 min 0.4 miles - 4 min 0.3 miles - 7 min 0.3 miles - 1 min 0.4 miles - 8 min 0.4 miles - 8 min 0.3 miles - 1 to 4 min 0.4 miles - 2 to 5 min 0.7 miles - 15 min 0.7 miles - 5 min 0.7 miles - 4 to 8 min 0.4 miles - 2 min 0.4 miles - 2 min 0.4 miles - 2 to 5 min 0.4 miles - 8 min 0.4 miles - 8 to 16 min Age 8% 7% 8% 33% 16% 11% 10% 7% <10 years 10-17 years 18-24 years 25-34 years 35-44 years 45-54 years 55-64 years 65+ years Racial Diversity African American White Hispanic Asian Two or more races 30% 29% 20% 11% 8% American Indian or Alaska native 1% Other race 1% Existing Building Coverage: approx. 400 household (1200-1600 people) Source: https://www.niche.com/places-to-live/n/hoover--foster-oakland-ca/residents/

Site

RIZHAO DONG, B ARCH FINDING FORMATION 78/79 FITNESS CENTER RATE 85 dB 60 dB NEIBORHOOD RATE
Microclimate Internally caused Sound

Parti Diagram

THESIS / STACKING FIELDS Stacking elds Landscape comes inside Cutting for vertical volume 1. Pure shape 2. Tension 3. More tension 4. Stretching 5. More stretching 6. Carving out openings
Form Generation Diagram
RIZHAO DONG, B ARCH FINDING FORMATION 80/81 WALKABLE RAMP SPORT FIELD PUBLIC ACCESS WALKABLE RAMP WALKABLE RAMP WALKABLE RAMP Program Diagram
THESIS / STACKING FIELDS Site Plan
RIZHAO DONG, B ARCH FINDING FORMATION 82/83 UP UP UP UP DN DN DN -'0 0 40" 004 -08 -0 1 A201 1 A202 0' 10' 20' 40' 80' A101 Level 1 Floor Plan Level 1 Floor Plan
THESIS / STACKING FIELDS DN DN DN DN DN -8 0 00 40 004 -08 -0 1 A201 1 A202 0' 10' 20' 40' 80' A102 Level 2 Floor Plan Level 2 Floor Plan
RIZHAO DONG, B ARCH FINDING FORMATION 84/85 Longitudinal Section
THESIS / STACKING FIELDS Cross Section

Circulation Diagram

Inspired by how people go uphill and combined with the idea of stacking programs, the building’s circulation will simulate the uphill zigzag path

RIZHAO DONG, B ARCH FINDING FORMATION 86/87
THESIS / STACKING FIELDS
+
THESIS / STACKING FIELDS Floor Assembly Finish Concrete Flooring – 1” Concrete Slab – 12” Glulam Beam – 5 1/8”x24” Floor Assembly Finish Concrete Flooring – 1” Concrete Slab – 12” Glulam Beam – 5 1/8”x24” Floor Assembly Finish Concrete Flooring – 1” Concrete Slab – 12” Glulam Column Glulam Column

Sun Light and Shade Study

Summer Solstice

Winter Solstice

8:00 a.m. 8:00 a.m. 12:00 p.m. 12:00 p.m. 4:00 p.m. 4:00 p.m.

RIZHAO DONG, B ARCH FINDING FORMATION 90/91
THESIS / STACKING FIELDS
Summer Sun Winter Sun

Sustainable Strategy: Rain Water Collection

Collecting rain water

Using stored water for watering the park

Storing rain water for draining toilets

THESIS / STACKING FIELDS
RIZHAO DONG, B ARCH FINDING FORMATION 94/95 01 /
THESIS / STACKING FIELDS 02 / 03 / 01 / Vignette Front Entrance 02 / Vignette Lobby 03 / Vignette Pickleball Court
RIZHAO DONG, B ARCH FINDING FORMATION 96/97
Perspective
Final Model Scale 1/16”=1’-0”
THESIS / STACKING FIELDS
South North West East
RIZHAO DONG, B ARCH FINDING FORMATION

Acknowledgements

B Arch Faculty Graphic Design Faculty Family

Jennifer Asselstine, Karen Seong, Carol Buhrmann, Eva Chiu, Doron Serban, Braden Engel, Alexandra Neyman, Francesca Oliveira, Philip Ra, Ethen Wood, Simon McKenzie, Zachary Meade, Charles Green, Stephen Ellis, Julia Grinkrug, Carl Wilford, James Kraus. Thank you for all the guidance and support, believing in me all the time.

Mom, Dad, and my family. Thank you for the endless support, encouragement and trust in me.

Mary Scott, Thank you for all your advice and support through the process of building my portfolio.

Friends

Qian Li, Weixuan Feng, Boyang Ran

Colophon

RIZHAO DONG, B ARCH FINDING FORMATION
School Book Binder Software Text Stock Copyright Cover Stock Font Student Course Academy of Art University, School of Architecture Blurb Printing & BindingAdobe InDesign Mohawk Super Fine Eggshell 100# Text
reserved
parts of this publication can be reproduced
express permission
Image Wrap Matte Finish Arial
Portfolio
Instructor
©2022 all right
no
without
from Rizhao Dong
Rizhao Dong rizhaodongdesign.com Senior
Mary Scott,

rizhaodongdesign.com

Turn static files into dynamic content formats.

Create a flipbook
Issuu converts static files into: digital portfolios, online yearbooks, online catalogs, digital photo albums and more. Sign up and create your flipbook.
Finding Formation / Rizhao Dong, B Arch by Rizhao Dong - Issuu