
Architecture
![]()

Architecture
Alex Riedel


After photographing facades of homes in San Francisco and Oakland, then collaging their elements and materials, I created the composite elevation drawing, then isolated a section to explore what may be happening behind the facade.
‘Rickle’ noun a small stack : loose heap : pile i.e. a rickle of stones
An artist’s residency nestled into a hillside, Rickle House is centered on ideas of communal living. The facility has 12 private bedrooms, with shared restrooms, studio spaces, and 3 central kitchens. All circulatory spaces are outdoors, but under cover of the roof. The roof strategically peels upward in the bedrooms and workspaces, creating clerestory windows facing east in the bedrooms to capture morning light and north in the workspaces to maintain a more consistent daylighting throughout the day.
Rickle House is 1 of 4 nominees for the Master of Architecture Studio Prize | First Year Core Studio Award issued by CCA Architecture Division. Winner to be announced Spring 2025.


Aggregate Plan
‘Chunk’ Plan







Intersect is a proposal to renovate 2 of Ludwig Mies van der Rohe’s Lake Shore Drive Towers in Chicago, IL. It revolves around the concept of integration, formally by physically integrating the two towers into one building, and programmatically by introducing socio-economic integration in the residential portions of the project. The formal logic is dictated by a distortion of the Miesian column which uses the columns as anchor points from which to disrupt. The project includes additions to the program to help lowerincome families thrive in a higher-income neighborhood including an urban market on the ground level, a restaurant that provides employment opportunities, offices for legal and medical assistance, and communal spaces to nurture integration.






Fall 2023
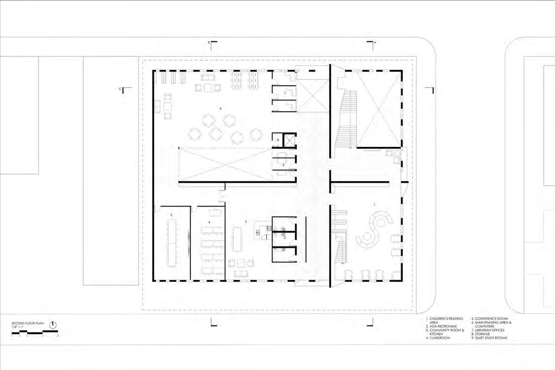
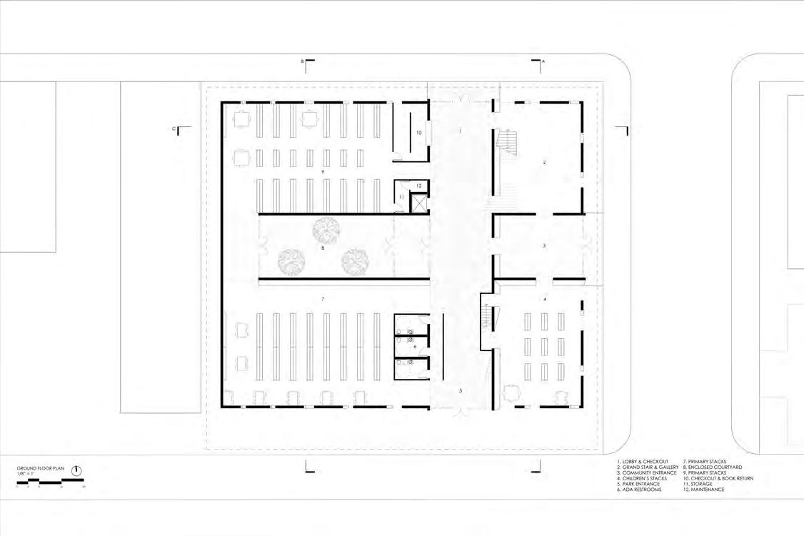
Beginning with a variation of the “Hidden Room Project,” I was tasked with designing a library that responds to recent book banning legislation in the State of Missouri. My approach to the hidden room project utilized slanted walls to create interstitial spaces, allowing passages to sneak underneath circulation between other rooms. Transitioning to the library, I utilized similar strategies, but not with the intention of hiding anything. I view my library as defiantly leaving “banned” books on the shelves amongst the others. There is an elementary school near the site and, since book bans are overwhelmingly targeted at children, I chose to emphasize children’s spaces in the design, encouraging them to read what interests them. I also created playful interactions with the architecture in the children’s spaces, with their own stairway that weaves in and out of the slanted wall.













Produce Park Los Angeles spans over 10 acres connecting Boyle Heights and the Arts District. Besides offering Angelenos places for recreation (basketball courts, bike paths, multi-purpose stage), Produce Park offers nearby communities an abundance of food. Produce on site is grown at a mass scale within 2 hydroponics systems, one spanning the underside of the bridge’s length and another over the LA River. The produce is distributed to the community through a farmers market filling a gap left by other LA Farmers markets. Food recovery programs store and redistribute from the park as well. The park is seeded with culturally significant fruit trees, herbs, and vegetables that connect the two communities through food cultivation, preparation, and feasts.
Produce Park was a collaborative project with Ricardo Alvarado and Kennedy Webb. My primary responsibilities included an equal share of overall design and planning, researching the feasibility of our proposed food production systems, and much of the physical modeling.















Starting with Ludwig Mies van der Rohe’s Tugendhat House as a precedent, I was particularly interested in the dining area and the half-circle shape it created in plan. I began with a vertical extrusion, then photographed it and began to transform it through folds and cuts where I found interesting shadows. As the form began to come together, I focused on two material precedents: the metallic sheen of the support beams that form a grid through the Tugendhat house and the mosaic tiles of the Cathedral Basilica of Saint Louis. I incorporated these effects into the form, by using a reflective material for the exterior and speckling the interior volume with the mosaic effect. My design intends to interact with light differently day and night. During the day, the reflective exterior will refract the bright sunlight at all angles, but at night the lights of the interior will glow under the awning created by the form while the exterior still reflects the night lights of the street. I also incorporated a large skylight in the lobby area that shines through all three levels of the theater by way of the second and third being walkways. I also incorporated smaller skylights in the theater itself, intentionally misaligned with the gaps in the acoustic paneling to create an ambient glow over the audience.








Bridging the Gap was a collaboration with 8 other students for the National Organization of Minority Architects Barbara G. Laurie Student Design Competition. Sited in the historically black community of Albina in Portland, Oregon, the proposal is intended to give displaced families a home to which they can return and foster economic and social growth in a struggling but vibrant community. The proposal was presented in person at the 2023 NOMA National Convention in Portland in competition with NOMAS chapters from 37 other universities across the country.
My contribution to the project was significant in the research and design phases. I was heavily involved in the contextual and historical research and the visualization of that data as well as much of the general site planning.







Alex Riedel