Architecture Portfolio

Page 1

ACADEMIC & PROFESSIONAL PORTFOLIO RICKY MARTINEZ

RICKY MARTINEZ | DESIGN PROFESSIONAL

AUSTIN, TEXAS | RICKYMARTINEZDESIGN@GMAIL.COM

PROFESSIONAL SUMMARY PROFESSIONAL EXPERIENCE

Detail-oriented designer with 7 years of experience in the architecture field with a focus on construction documentation. Experience working on large projects through all phases of design in a collaborative environment. Currently studying for the ARE exams. Experience working with various architectural software programs, including Revit, Rhino, Illustrator & Bluebeam.

CORE COMPETENCIES

Revit family creation

Revit template & view creation / set up

Building code compliance

ADA Requirment implementation

FF&E documentation

Coordinating with consultants

Construction documentation & detailing

3D modeling

Time management

Millwork detailing

Technical Skills

Revit / BIM 360

Rhino

Illustrator

InDesign

Photoshop

3D Printing LEED Green Associate

Bluebeam

Smartsheet

Trimble

Lumion

SKetchup

Grasshopper

ACCREDIDATION

HOK

Design Professional | 2017 - Present

• Assisted in the production of construction documents & project development through all phases of design.

• Revit modeling & project-specific family creation with functioning parameterers used for scheduling, tagging, etc.

• Assistedwith BIM management / Coordination; purging models to ensure model health.

• Experience incorporating project programming into schematic design plan development.

GSBS Architects

Architectural Intern | 2015 - 2017

• Project types ranged from small metal buildings to large Town Hall buildings using Revit & AutoCAD

• Implemented digital modeling & renderings for visualized presentations

EDUCATION

The University of Texas at Arlington Master of Architecture

The University of Texas at San Antonio Bachelor of Science in Architecture

Practice Management 160 / 160

Programming & Analysis

78 / 260

Project Development & Documentation

1520 / 1520

Project Management

118 / 360

Programming & Analysis

795 / 1080

Project Development & Documentation

101 / 360

AXP HOUR COMPLETED

CONTENTS

01. Maritime Museum 02. Duplex 03. Community Design 04. Magnet School 05. Hybrid Rain Panel 06. Professional Work 07. Personal Projects

ACADEMIC PROJECTS

MARITIME MUSEUM OF NAVAL EXPLORATION & TRADE

LOCATED IN SEVILLE, SPAIN, THIS PROJECT’S GOAL WAS TO ANALYZE THE CITY’S HISTORY & INCORPORATE IT INTO THE MUSEUM FOR THE PUBLIC. THE SITE CHOSEN FOR THE PROJECT RETAINS PART OF THE ROMAN WALL THAT FIRST STARTED TO GET BUILT AROUND 65 BC. THE PROGRAM FOR THE MUSEUM STRENTHEN’S AN EXISTING PUBLIC SPACE, CENTERED AROUND THE HISTORICAL LANDMARK CALLED THE HISPALIS FOUNTAIN. THE MUSEUM FEATURES A COURTYARD THAT SERVES AS A “MEMORY” OF THE EXISTING BUILDING THAT WAS IN IT’S PLACE. A SEQUENCE OF SPACES IS MEANT TO BRING PEOPLE THROUGH THE OPEN PUBLIC SPACES BACK TO THE MORE HISTORICAL SPACE FEATURING THE ROMAN WALL.

Initial massing

Public spaces

Connection from main spaces to the remnants of the roman wall

Responding to geometry of site

Preserving & celebrating history. The courtyard for this building is based on the “memory” of the courtyard space of the existing building.

Creating connection

Translating exterior spaces to the exterior

Galleries Research Storage Vertical Circulation Circulation Public Spaces Lobby

INTERLOCKING HOUSE

THE FOCUS FOR THIS STUDIO REVOLVED AROUND THE FORT WORTH NEIGHBORHOOD IN THE NORTH SIDE. NORTH SIDE FORT WORTH IS IN CLOSE PROXIMITY TO DOWNTOWN, THE STOCK YARDS AND THE FUTURE DEVELOPMENT OF PANTHER ISLAND. INTERLOCKING HOUSE WAS DESIGNED IN RESPONSE TO THE LARGE AMOUNT OF EMPTY LOTS LOCATED IN THE AREA AS WELL AS THE PROJECTED AMOUNT OF POPULATION GROWTH DUE TO THE DEVELOPMENT OF PANTHER ISLAND. THE DUPLEX TYPOLOGY IS AN EFFECTIVE WAY TO PROVIDE MORE POPULATION DENSITY WITHIN A SINGLE LOT. THE INTERLOCKING CONCEPT WAS INTENDED TO PROVIDE RESIDENTS IN BOTH UNITS VIEWS TO BOTH STREET SIDES.

NORTH SIDE FORT WORTH - IN CLOSE PROXIMITY TO DOWNTOWN, THE STOCK YARDS, AND THE FUTURE DEVELOPMENT OF PANTHER ISLAND. INTERLOCKING HOUSE WAS DESIGNED IN RESPONSE TO THE LARGE AMOUNT OF EMPTY LOTS LOCATED IN THE AREA AS WELL AS THE PROJECTED AMOUNT OF POPULATION GROWTH DUE TO THE DEVLEOPMENT OF PANTHER ISLAND. THE DUPLEX TYPOLOGY IS AN EFFECTIVE WAY TO PROVIDE MORE POPULATION DENSITY WITHIN A SINGLE LOT. THE INTERLOCKING CONCEPT FOR THIS DUPLEX WAS INTENDED TO PROVIDE RESIDENTS, IN BOTH UNITS, VIEWS TO BOTH STREET SIDES.

NORTH SIDE FORT WORTH - IN CLOSE PROXIMITY TO DOWNTOWN, THE STOCK YARDS, AND THE FUTURE DEVELOPMENT OF PANTHER ISLAND. INTERLOCKING HOUSE WAS DESIGNED IN RESPONSE TO THE LARGE AMOUNT OF EMPTY LOTS LOCATED IN THE AREA AS WELL AS THE PROJECTED AMOUNT OF POPULATION GROWTH DUE TO THE DEVLEOPMENT OF PANTHER ISLAND. THE DUPLEX TYPOLOGY IS AN EFFECTIVE WAY TO PROVIDE MORE POPULATION DENSITY WITHIN A SINGLE LOT. THE INTERLOCKING CONCEPT FOR THIS DUPLEX WAS INTENDED TO PROVIDE RESIDENTS, IN BOTH UNITS, VIEWS TO BOTH STREET SIDES.

MASSING CONCEPT DIAGRAM DIVIDING INTERLOCKING CREATING VOIDS UNIT MASSING NW 22nd Street NW 22nd Street N Houston Street N Houston Street N A B
Site Plan Figure Ground
INTERLOCKING HOUSE
NW 22nd Street NW 22nd Street N Houston Street N Houston Street N A B
Site Plan Figure Ground
INTERLOCKING HOUSE
N Houston CLOSET CLOSET CLOSET CLOSET BEDROOM BEDROOM MASTER BEDROOM MASTER BEDROOM READING SPACE READING SPACE BALCONY MASTER BATH MASTER BATH PANTRY LAUNDRY LAUNDRY LIVING DINING KITCHEN LIVING DINING N A B a b c A B STANDING SEAM METAL PANEL BRUSHED ALUMINUM WOOD SIDING
N CLOSET CLOSET CLOSET CLOSET BEDROOM BEDROOM MASTER BEDROOM MASTER BEDROOM READING SPACE READING SPACE BALCONY MASTER BATH MASTER BATH PANTRY LAUNDRY LAUNDRY LIVING DINING KITCHEN LIVING DINING N A B a b c A B STANDING SEAM METAL PANEL BRUSHED ALUMINUM WOOD SIDING
Site Plan Figure Ground
Site Plan Figure Ground
Section b Section a Section c Section a Section c

NORTHSIDE COMMUNITY

THIS COMMUNITY PLANNING PROJECT IS LOCATED IN NORTHSIDE FORT WORTH. IN RESEARCHING & GATHERING INFORMATION ON THE SITE IT BECAME APPARENT THAT THIS AREA HAD A HIGH NUMBER OF VACANT LOTS, LITTERING & HIGH POPULATION PER HOUSEHOULD. THE OBJECTIVE FOR THIS PROJECT WAS TO PROVIDE A SOLUTION TO THESE PROBLEMS & CHARACTERISTICS & CREATE A COMMUNITY GENERATED THE DESIRE IN PEOPLE TO CARE ABOUT THEIR COMMUNITY. NEW HOUSING, COMMERCIAL OPPORTUNITIES & RECREATION ACTIVITIES WERE ALL PART OF THIS PLANNING PROJECT.

Existing Conditions

MATERIALS:

THE AVERAGE HOME IN THIS NEIGHBOORHOOD WAS MADE UP OF DIFFERENT MATERIALS, SHOWING THAT THE OWNERS HAD ADDED ON TO THEIR HOMES AFTER THEY BOUGHT IT TO MAKE ROOM FOR MORE PEOPLE.

YARD SALES:

MANY HOUSES SET UP YARD SALES AS A WAY TO MAKE EXTRA MONEY.

LITTERING:

THE CREEK WAS LITTERED WITH TRASH THROUGHOUT THE SITE

CARPORTS:

MANY HOUSES HAD CARPORTS THAT WERE ADDED ON TO THE ORIGINAL DESIGN OF THE HOME.

CARPORTS:

THERE WERE A NUMBER OF DIY CARPORTS MADE FROM LOW-COST MATERIALS.

EMPTY LOTS:

THE SITE HAD AN ABUNDANCE OF EMPTY LOTS, MAKING THEM SUSCEPTIBLE TO LITTERING.

SCHOOLS:

SITE IS LOCATED BETWEEN 3 SCHOOLS, AN ELEMENTARY SHCOOL, MIDDLE SCHOOL & HIGH SCHOOL.

CHURCHES:

THERE ARE 5 CHURCHES IN THIS AREA, THEY ADD TO THE COMMUNITY/GATHERING SPACES OF THE NEIGHBOORHOOD.

COMMECIAL BUILDINGS:

SEVERAL LOCAL RESTAURANTS & BUSINESSES RUN ALONG THE 28TH STREET, THE MAIN STREET OF THE NEIGHBORHOOD. DRIVIING THROUGH THE NEIGHBORHOOD, A NUMBER OF HOUSES CAN BE SEEN SETTING UP YARD & GARAGE SALES. SOME ALSO HAD SMALL BUSINESSES RUNNING OUT OF THEIR HOMES.

RECREATION CENTER

THE RECREATION CENTER IS POPULAR AMONG KIDS FOR AFTER SCHOOL ACTIVITIES.

EMPTY / VACANT LOTS

EXISTING RESIDENTIAL BUILDINGS:

MOST OF THE HOUSES IN THIS AREA ARE MULTI-GENERATIONAL HOUSES, THIS IS WHY SO MANY HOUSES HAVE BEEN MODIFIED & ADDED ON TO WHAT WAS ORIGINALLY BUILT.

TREES:

THERE IS A LARGE AMOUNT OF TREE GROWTH ALONG THE CREEK THAT HAS BEEN ABUSED BY RESIDENTS AND USED AS A DUMPING GROUND FOR TRASH.

EXISTING NEIGHBORHOOD

STREET ADDITION PROPOSAL

CREATING NEW LOTS

INFILLING EMPTY LOTS

To supplement recreatiional activies, a viewing deck situated at the center of the neighborhood would provide a resting point for canoes & bicycle tricyclists & a community space for the neighborhood.

Trash Collection

Due to the high volume of littering in the area, a trash collector is proposed for the creek to ensure a healthy neighborhood. It would also provide new job opportunities for the area.

A canoe rental station located near the 28th street would help drive people into their community as well as implement more job opportunities.

New Businesses

Adding in these new amenities to the neighborhood would help bring in more businesses to the area, expanding the local economy.

Canoe Rental Viewing Deck Commercial Homes Expansion Homes

Water Tricycle Dock

Adds amenities to the community, each tricycle dock is situated near a school that would lend the opportunity for kids to commute home after school.

Tricycle Dock 2

The standard plan for this model is a 2 bedroom floor plan, proper foundation laid out at the front of the home allows for future commercial expansion. Residents would be able to open up their own home business or rent their space out to other local businesses

Modular wall panel, door & windows are kept at the same size to allow for easy removal of window & replacing it with a door for future expansion necessities.

Typical floor plan

Potential first floor expansion

Potential second floor expansion

The expansion home is modeled with the use of a modular prefabricated wall panel. By reducing labor costs, homes become more affordable. The modularity allows buyers to add on to their homes in the future if necessary. The skylight is sized to allow for easy removal & addition of stairs if necessary.

Commercial Home Model Expansion Home Model

HYBRID RAIN PANEL

THIS RESEARCH BASED DESIGN WAS FOCUSED AROUND THE ISSUE OF THE GROWING AMOUNT OF CONSTRUCTION, THE IMPERMEABLE SURFACES THAT CONSEQUENTLY COME WITH IT AND THE EFFECTS THEY ARE HAVING. STORM WATER RUNOFF AND POLLUTION ARE CAUSES FOR CONCERN. TURNING A PASSIVE DESIGN STRATEGY INTO AN ACTIVE DESIGN STRATEGY, TO HELP COMBAT THE EFFECTS OF THE IMPERMEABILITY OF SURFACES, WAS THE DRIVING FACTOR OF THIS DESIGN.

The Hybrid Rain Panel is a system that depends on the different functions of each layer. The main focus of the panel is the functionality of it, therefore the sieze and shape can vary as long as the parameters are met. Absorbing light rain, capturing the average rain and then slowly released without exceeding the extreme rainfall in the Dallas area. As the shape changes, the location of the panels can also be adjusted. The panel can also be modified or “evolve” so that it becomes it’s own structure and be installed in various locations; not exclusively on roofs.

Problem

The basic function of any roof is to offer protection from the elements for people and their possessions. A roof’s primary purpose is to shelter people from water. The current design method is to use an impermeable material to remove the water from both the building and the site as fast as possible to a man-made storm water management system that leads to the nearest natural waterway. The release of this accumulated water to the Trinity River increases water levels and discharge velocity. As architectural designers, it is our responsibility to investigate sustainable alternative systems outside the current construction norms. The aim of this research is to explore porous materials as a roofing layer so that we may learn ways in which to make a desirable alternative for architects and builders in terms of performance and economy.

Hypothesis

Through layering of materials and design of surface form, we can:

1. Create a new roofing system that uses both permeable and impermeable materials to collect and temporarilty retain rain water without causing leaks.

2. Reduce the discharge flow rate of water off of roofs of various slopes.

3. Design a new roof system that meets construction standards of the existing systems.

Question

Can a new roofing system that uses porous materials and geometric forms reduce water discharge veolocity from low slope roofs of Dallas Light Industrial buidligns and remain in the economic & performance ranges of existing roof systems, including thermal, weight and construction costs?

Storm Water Runoff Path

With a close proximity to the Trinity River and a high concentration of Light Industrial buildings, the focus of the research was made in the area along Irving Boulevard. Only an overall impermeable cover of 10% is required for the negativ effects of runoff to occur. These negative effects include flooding and water pollution (US EPA). With a total land area of 12.48 SQ. km., the area consists of 22% impermeable roof surface alone (12.6% light industrial, 9.4% commercial) in addition to 7.9% impermeable surface pavement.

Effects of Runoff

The World’s opulation is expected to increase by 2 billion people in the next 30 years. Currently at 7.7 billion, expection to reach 9.7 billion by 2050 (The UN, 2019). The DFW Metroplex was number one in the “Top 10 Metropolitan Areas in Numeric Growth”, increasing it’s popluation by 1.8%(121,767( from June 2017 to June 2018 (US Census Bureau). With the increase in population comes an increase in urbanization which results in a severe alteration at the surface, as natural vegetation and permeable ground is removed and replaced by man-made impermeable surfaces. Urban areas generate more than 5 times more runoff than a woodland area of the same size (US EPA). As architecture continues to push for a more dense urban design, the area of roof cover will also increase. Such areas will increasingly rely on storm drains to carry large amounts of runoff from roffs and paved areas to nearby waterways.

Malleable

Pervious Concrete

Best to mold at beginning, not when set. Very permeable. Too heavy to be placed on a light industrial roof

Best absorbent material but it does not release water. Water travels underneath material and gains a brown coloring. Once wet, it does not reduce any water flow rate.

Rain Capacity

Considering the amount of rainfall in the Dallas area, there are three water capacities to the panel. Understanding that there is a fluctuation in precipitation throughout the year, the panel must be able to hold the different amounts of rain for any given time of the year.

Water collects above the material until it is completely wet then slowly releases it.

Once wet, the material is not a good consistency; takes days to dry.

Evaporative Duration

The Absorbent layer would hold the amount of water during light to average rainfall but should evaporate the majority of the rain within 24 hours.

Light to average rainfall

Absorbent material captures up to 1.27 cm of rain

Maximum Heavy Rainfall

Water begins to collect on top of absorbent material. Water is slowly released into the secondary absorbent material

Sodium Polyacrylate Denim PET Cellulose Wood Pulp Cost Permeability
Weight
AbsorbenLight
Drainage Results

Assembly

Through research & computer-aided design and programming to determin an efficient form that would reduce flow rate and create channels for the water to evacuate off the surface to the drainage system. Researched precedents will allow us to understand the functionality of each part of the system includeing the impermeable layers.

In order to accomodate for those that want to use both solar energy & reduce the water rate, the possible addition of solar panels would be avialable.

Rain FLow 75% Reductiion

The final results of the prototype concluded that the rain flow rate was reduced by 75%. This will reduce flash flooding in the light industrial areas of Dallas, Texas

This layer prevents clogging within the panels from any debris.

The grid serves multiple purposes - structure for the solar panels to be placed at the most efficient angles as well as structural stability for any anticipated roof maintance.

The main goal of reducing rate of water coming off the buildings is done through the sloped PET, which both slowly absorbs & drains the water.

THis secondary layer is introduced to further reduce the rate of water being released off the building. Using the same material; PET is made up of recycled plastic.

These walls enclose the water coming out of the absorbent material and through small perforations, the water is the released onto the roof at a reduced rate to prevent flooding.

1. Solar Panel 2. Mesh 3. Grid 4. Absorbent Material 5. Secondary Absorbent Material 6. Panel Walls

Attaching solar panels to the top of the panels to maximize the surface of the panel.

RoofAttachment

Similar to solar panels, the Hybrid Rain Panel will be attached to the roof through a railing system.

Absorption Storage Hybrid Rain

PET material reduced water flow rate, it allowed a significant amount of puddling to occur before letting water through.

To capture the maximum storage capacity of the panel, the grid gives an efficient way of retaining the water before draining.

The PET Material was split along one axis of the grid and sloped enough to become parallel to the ground level.

The Hybrid Rain Panel provides solar panels to produce some energy to the building, while reducing the water rate to a reasonable flow rate during the rainy season, thus reducing flash flooding in the adjacent areas.

Rail System

Rail System

Snap-on, panel-attached end piece L-shaped bracket

Snap-on, panel-attached end piece. L-Shaped bracked

Anchor attached to roofing system

Anchor attached to roo ng system

Energy
PROFESSIONAL WORK

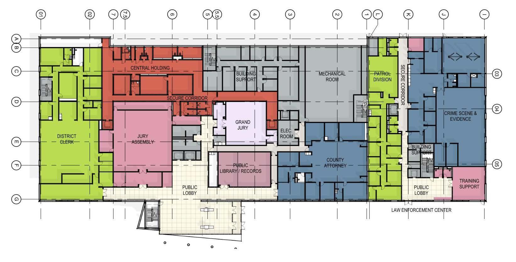
Pre-program reduction Program reduction

SCHEMATIC DESIGN

The client for the project reviewed their budget after the first schematic plans were submitted & decided to shrink the program in half. Although I did not work on the original schematic program plannning, i did work on the program reduction of the building where I referenced the program requirements developed by the client & project architect.

ELEV GUN STORAGE EVIDENCE INTAKE CHEM STORAGE ARMORY VEHICLE PROCESSING SHORT LONG TERM RR SHWR PATROL PATROL INTERVIEW RM COPY SECURE CORRIDOR TOILET TOILET ELECTRICAL TRAINING STORAGE ELEV. EQUIP. TRAINING OFFICE NARCOTICS STORAGE PROCESSING CRIME TECH SUPR EVIDENCE VIEW RM EVIDENCE PROCESSING TECH PATROL JURY ASSEMBLY Passport SUPPLY STORAGE Receptionist DISTRICT CLERK PUBLIC LAW LIBRARY WORKSTATIONS OFFICE MGR. PREFUNCTION JURY WORK ROOM COPY PRINT AREA PUBLIC RESTROOMS BREAK EXIT VEST. SECURITY SCREENING QUEUING SECURE EVIDENCE TOILET OFFICE MANAGER CHIEF DEPUTY TOILET STAIR TOILET STAIR CONNECTING CORRIDOR STORAGE RESTROOMS LOCKERS NOT FOR CONSTRUCTION Description Association Project Prepared For Consultant Name AB LEVEL -OVERALL P001 CHAMBERS COUNTY JUSTICE CENTER 201 COURT ST. ANAHUAC, TX 77514 CHAMBERS COUNTY 201 NORTH COURT ST. ANAHUAC, TX 77514 Hellmuth, Obata Kassabaum, Inc. LEVEL -OVERALL NOT FOR CONSTRUCTION AB LEVEL -OVERALL P003 JUSTICE CENTER NORTH COURT ANAHUAC, NOT FOR CONSTRUCTION AB LEVEL -OVERALL P002 JUSTICE CENTER 201 NORTH COURT ST. ANAHUAC,

DESIGN DEVELOPMENT

Renderings were made using Rhino & Lumion for a client meeting. Site was modeled in Rhino using the Landscape team’s CAD files.
8 9 10 J K A521 A521 A411 A411 A412 7 5 A411 5 A4 2 8 A41 6 A602 A602 FIRE LANE LIMITS EXTENTS OF PROPOSED FUTURE EXPANSION 60'-4" 6 A412 12'-0" 7'-4" RAMP 30'-0" LANDING 5'-0" RAMP 30'-0" LANDING 5'-0" RAMP 30'-0" LANDING 5'-0" RAMP 30'-0" LANDING 5'-0" RAMP 30'-0" LANDING 5'-0" 11 5/8" 6" 10" 9'-2 3/8" 7'-4" 10'-0" 10'-0" 10'-0" 5'-0" 10'-0" 10'-0" 10'-0" 5'-0" 10'-0" 10'-0" 10'-0" 5'-0" 10'-0" 10'-0" 10'-0" 5'-0" 10'-0" 10'-0" 10'-0" 5'-0" 10'-0" 10'-0" 10'-0" 10'-0" 10'-0" 10'-0" 10'-0" +/- 3'-0 3/8" 90' 10" 88' 4" 98' 4" 99' 4" 101' 1/2" A412 3 A412 - SECURITY FENCE GROUND LEVEL @ 407'- 86'-0" SECURITY FENCE RETAINING WALL EDGE OF NEW BUILDING 93' 4" 1:12 RAMP DN 1:12 RAMP DN 1:12 RAMP DN 1:12 RAMP DN 1:12 RAMP DN EDGE OF EXISTING BUILDING A412 6 86 11-11 + /161/2 10 110100 100 7 A IGN 85' 8" START AT GRIDLINE 4 XA636 7 A517 12'-0" A602 G H - 0 86' 0" 85' 10"85' 10" 8" 6" 8" 8" 6" 6" 8" 6" 6" 8" 90' 10" 93' 4" 95' 10" 95' 10" 98' 4" 99' 3" 88' 4" 8" 411 412 413 414 415 416 417 418 419 420 421 421 420 419 418 417 416 415 414 413 412 411 410 409 408 407 EXPANS I ONFD FD FD FD 1-0 CONC RB EXISTING TO REMAIN EXISTING FF = 102'LOPE DNNO STEEPER HAN 2 DS DS DS DS DS DS DS DS DS DS DS 8" 8" DG002 LEVEL 000 86' -0" 8 9 10 A412 214 88ELEV PIT 81' -0" 1'-0" 1'-0" 1'-0" 20 10-38 FENCE A412REF. EXTERIOR ELEVATIONS FOR BUILDING FACADE 2T.O. MASONRY 99' 4" T.O. MASONRY 102' 0" T.O. MASONRY 104' 8" T.O. MASONRY 99' T.O. MASONRY 109' 4" T.O. MASONRY 111' 4" 21'-0" 1'-0" LEVEL 100 100' -0" LEVEL 000 86' -0" 8 9 10 A412 A602 5 A602 CR1 CL1 DOWNSPOUT DOWNSPOUT DOWNSPOUT DOWNSPOUT DOWNSPOUT DOWNSPOUT DOWNSPOUT DOWNSPOUT SECURITY FENCE SECURITY FENCE BEYOND 1 20 A412 GUTTER GUTTER GUTTER GUTTER SECURITY FENCE GATE DOWNSPOUT 12 A516218 26 89' 0" 91' 8" 93' 4" 98' 4" 99' 3" T.O. RETAINING WALL AT FENCE 99' 9" T.O. RETAINING WALL AT FENCE T.O. RETAINING WALL AT FENCE T.O. RETAINING WALL AT FENCE T.O. RETAINING WALL AT FENCE T.O. RETAINING WALL AT FENCE 86' 0" 101' T.O. RETAINING WALL AT FENCE T.O. RETAINING WALL AT FENCE DOWNSPOUT 95' 10" 26 1 8 9 10 J A521 A521 A411 A411 A412 A602 A602 A602 1'-0" 1'-0" 1'-0" 1'-0" A412 3 A412 STANDING SEAM METAL ROOF OVER STRUCTURAL STEEL DECK EDGE OF NEW BUILDING SECURITY FENCE EDGE OF EXISTING BUILDING SECURITY FENCE A412 GUTTER GUTTER GUTTER SLOPE DN SLOPE DN SLOPE DN SLOPE DN SLOPE DN SLOPEDN G H A412A412 9 A412 A412 A412 1'-0" Sheet Number Sheet Title No.Description Association with All reproduction & intellectual property rights res Prepared For JQ 100 Glass Street Suite 201 Dallas, Texas 75207 Civil Structural Engineering Project No: Professional Seals Key Plan Original 48 36. Do not scale contents of this MEPCE 2928 Story Road West Las Colinas, Texas 75038 MEP Engineering & Fire Suppression LEC 2020-12-11 4:38:38 PM JAIL TO COURTHOUSE CONNECTION A411 KAUFMAN COUNTY JUSTICE CENTER KAUFMAN COUNTY 20.09003.00 100 N. Washington St. Kaufman, TX 75142 1/8" 1'-0" 1 JAIL TO COURTHOUSE CONNECTION 1/8" 1'-0" 3 BUILDING SECTION -INMATE WALKWAYFACING EAST 717 North Harwood Street Suite 2850, LB 8 Dallas, TX 75201 USA +1 214 720 6000 +1 214 Hellmuth, Obata & Kassabaum, 1/8" 1'-0" 6 SOUTH ELEVATION -INMATE WALKWAY LEVEL 000 1/8" 1'-0" 8 NORTH ELEVATION -INMATE WALKWAY LEVEL 100 1/8" = 1'-0" 5 WEST ELEVATION -INMATE WALKWAY 1/8" 1'-0" 7 ELEVATION -CONNECTOR EAST 1/8" = 1'-0" 2 JAIL TO COURTHOUSE CONNECTION -ROOF PLAN 100% DESIGN DEVELOPMENT08-21-2020 50% CONSTRUCTION DOCUMENTS10-12-2020 90% CONSTRUCTION DOCUMENTS11-23-2020 CONSTRUCTION DOCUMENTS12-11-2020 12/11/2020 CONSTRUCTION
DOCUMENTS
Details for this walkway were created by referencing similar details from other projects as well as with coordination with our structural team & feedback & support from the project architect.
99' 9" T.O. RETAINING WALL AT FENCE A411 DOWNSPOUT 3" ROOF DECK G90 2" TALL STANDING FIXTURE GRADE BEAM, RE: STRUCTURAL CONCRETE WALKWAY BASEPLATE AND ANCHOR BOLTS FOR POST STRUCTURAL SLAB AND TURNDOWNS CHAINLINE FENCE BETWEEN COLUMNS 111' 4" 15" DEEP CHANNEL 15" DEEP CHANNEL EMBED PLATE FOR TUBE T.O. MASONRY PRE HIGH EVE CAP A602 GRADE BEAM, RE: STRUCTURAL CONCRETE WALKWAY 12" CMU 15" DEEP CHANNEL 8X4 TUBE ROOF DECK G90 COATING 15" DEEP CHANNEL EMBED PLATE FOR TUBE GUTTER DOWNSPOUT TALL STANDING MTL ROOF T.O. MASONRY (LOW) 99' 4" T.O. MASONRY (HIGH) 91' 4" T.O. RETAINING WALL8" 86' 0" T.O. CURB 407'- (CIVIL) 3 99' 0" 10 A412 BETWEEN 3X3 STEEL ANGLE TALL STANDING SEAM METAL ROOF METAL CLOSURE PRE HIGH EVE CAP 2" TALL STANDING MTL. 20 A626 TALL STANDING SEAM METAL ROOF 3 2" TALL STANDING SEAM METAL ROOF. STRUCTURAL DECK EAVE PLATE No.Description All reproduction intellectual property rights reserved Dallas, Texas 75207 Civil & Structural Engineering Original 48 36. Do not scale contents this drawing. Las Colinas, Texas 75038 MEP Engineering & Fire Suppression JAIL TO COURTHOUSE CONNECTION A412 KAUFMAN COUNTY JUSTICE CENTER KAUFMAN COUNTY 20.09003.00 100 N. Washington St. Kaufman, TX 75142 2020 717 North Harwood Street Suite 2850, LB 8 Dallas, TX 75201 USA +1 214 720 6000 +1 214 720 6005 Hellmuth, Obata & Kassabaum, Inc. SOUTH ELEVATION -INMATE WALKWAYSECTION WALKWAY AT GROUND LEVEL SECTION -WALKWAY AT LEVEL 100 1/2" = 1'-0" 4 SECTION -INMATE WALKWAY LEADING TO MAIN BUILDING SECTION -INMATE WALKWAY AT LEVEL 100 NORTH ELEVATION -WALKWAY INTO MAIN BUILDING SECTION DETAIL -INMATE WALKWAY @ SECURITY FENCE SECTION DETAIL -INMATE WALKWAY @ CMU SECTION DETAIL -HIGH ROOF TO LOW ROOF AT INMATE WALKWAY 1/8" 1'-0" CEILING PLAN -INMATE WALKWAY SECTION -INMATE WALKWAY -ROOF @ CMU 100% DESIGN DEVELOPMENT08-21-2020 50% CONSTRUCTION DOCUMENTS10-12-2020 90% CONSTRUCTION DOCUMENTS11-23-2020 CONSTRUCTION DOCUMENTS12-11-2020 12/11/2020 99' T.O. RETAINING WALL AT FENCE LEVEL 100 100' -0" LEVEL 000 86' -0" A411 ELEV PIT 81' -0" GRADE BEAM, RE: STRUCTURAL GUARD RAIL CHAINLINK FENCE BETWEEN COLUMNS CONCRETE WALKWAY COLUMNS, REF: STRUCTURAL BASEPLATE AND ANCHOR BOLTS FOR POST EMBED PLATE FOR TUBE GUTTER DOWNSPOUT DECK G90 COATING 8X4 TUBE G H0 V A R E 9'-0" DRIP EDGE 1/2" CHAMFERED EDGES AT TOP OF CONCRETE, TYP. 89' 15" DEEP CHANNEL PRE-FINISHED HIGH EVE CAP TALL STANDING MTL ROOF LIGHT FIXTURE GRADE BEAM, RE: STRUCTURAL CONCRETE WALKWAY AND ANCHOR BOLTS FOR STRUCTURAL SLAB AND TURNDOWNS FENCE BETWEEN COLUMNS 111' 15" DEEP 15" DEEP PLATE FOR TUBE T.O. MASONRY PRE HIGH EVE CAP LEVEL 100 100' -0" LEVEL 000 86' -0" 4 A602 ELEV PIT 81' -0" GRADE BEAM, RE: STRUCTURAL CONCRETE WALKWAY 12" CMU 15" DEEP CHANNEL 8X4 TUBE ROOF DECK COATING 15" DEEP EMBED PLATE FOR TUBE GUTTER DOWNSPOUT TALL STANDING MTL T.O. MASONRY (LOW) 99' 4" T.O. MASONRY (HIGH) 91' 4" T.O. RETAINING WALL86' T.O. CURB 407'- (CIVIL) 3 99' 10 A412 BETWEEN 3X3 STEEL ANGLE TALL STANDING SEAM METAL ROOF METAL CLOSURE PRE HIGH EVE CAP A626 2" TALL SEAM METAL ROOF 3 2" TALL STANDING SEAM METAL ROOF. EAVE PLATE No.Description All intellectual rights reserved © Dallas, Texas 75207 Civil Structural Engineering Original 36. Do not scale contents this drawing. Las Colinas, Texas 75038 MEP Engineering Fire Suppression 2020-12-11 4:38:54 PM JAIL TO COURTHOUSE CONNECTION A412 KAUFMAN COUNTY JUSTICE CENTER KAUFMAN COUNTY 20.09003.00 100 N. Washington St. Kaufman, TX 75142 717 North Harwood Street Suite 2850, LB Dallas, TX 75201 USA 214 720 6000 214 720 6005 Hellmuth, Obata & Kassabaum, Inc. SOUTH ELEVATION -INMATE WALKWAY 1/2" 1'-0" 3 SECTION WALKWAY AT GROUND LEVEL SECTION -WALKWAY AT LEVEL 100 1/2" 1'-0" SECTION -INMATE WALKWAY LEADING TO MAIN BUILDING SECTION -INMATE WALKWAY AT LEVEL 100 NORTH ELEVATION -WALKWAY INTO MAIN BUILDING SECTION DETAIL -INMATE WALKWAY @ SECURITY FENCE 1/2" 1'-0" DETAIL -INMATE WALKWAY @ CMU SECTION DETAIL -HIGH ROOF TO LOW ROOF AT INMATE WALKWAY 1/8" 1'-0" CEILING PLAN WALKWAY SECTION -INMATE WALKWAY -ROOF @ CMU 100% DESIGN DEVELOPMENT08-21-2020 50% CONSTRUCTION 90% CONSTRUCTION CONSTRUCTION 12/11/2020 DOWNSPOUT LEVEL 100 100' -0" LEVEL 000 86' -0" 3 A411 ELEV PIT 81' -0" GRADE BEAM, RE: STRUCTURAL GUARD RAIL CHAINLINK FENCE BETWEEN COLUMNS CONCRETE WALKWAY 4" COLUMNS, REF: STRUCTURAL BASEPLATE AND ANCHOR BOLTS FOR POST EMBED PLATE FOR TUBE GUTTER DOWNSPOUT 3" ROOF DECK G90 COATING 8X4 TUBE G H0 V A R E 9'-0" DRIP EDGE 1/2" CHAMFERED EDGES AT TOP OF CONCRETE, TYP. 89' 0" 15" DEEP CHANNEL PRE-FINISHED EVE CAP 2" TALL STANDING MTL ROOF LIGHT FIXTURE LEVEL 100 100' -0" LEVEL 000 86' -0" ELEV PIT 81' -0" GRADE BEAM, RE: STRUCTURAL CONCRETE WALKWAY 3" ROOF DECK G90 COATING BASEPLATE AND ANCHOR BOLTS FOR POST STRUCTURAL SLAB AND TURNDOWNS CHAINLINE FENCE BETWEEN COLUMNS GUTTER DOWNSPOUT 101' 3" 111' 4" 15" DEEP CHANNEL 15" DEEP CHANNEL EMBED PLATE FOR TUBE T.O. MASONRY PRE-FINISHED EVE CAP LEVEL 100 100' -0" LEVEL 000 86' -0" A602 ELEV PIT 81' -0" GRADE BEAM, RE: STRUCTURAL CONCRETE WALKWAY 12" CMU 15" DEEP CHANNEL 8X4 TUBE 3" ROOF DECK G90 COATING 15" DEEP CHANNEL EMBED PLATE FOR TUBE GUTTER DOWNSPOUT 2" TALL STANDING MTL ROOF T.O. MASONRY (LOW) 99' 4" T.O. MASONRY (HIGH) 91' 4" T.O. RETAINING WALL8" 86' 0" T.O. CURB 407'-0" (CIVIL) 3 99' 0" A412 LEVEL 100 100' -0" LEVEL 000 86' -0" A411 ELEV PIT 81' -0" GRADE BEAM, RE: STRUCTURAL CHAINLINE FENCE BETWEEN COLUMNS SLAB VOID STRUCTURAL SLAB AND TURNDOWNS COLUMNS; REF: STRUCTURAL 8" TUBE BASEPLATE AND ANCHOR BOLTS FOR POST 3" ROOF DECK G90 COATING 3X3 STEEL ANGLE A412 A412 METAL CLOSURE PRE-FINISHED HIGH EVE CAP9'-0" 15" DEEP CHANNEL GUTTER 2" TALL STANDING MTL. ROOF TALL STANDING SEAM METAL ROOF H LINK TOP RAIL BOTTOM RAIL CONT. CLOSURE CLIP STRUCTURAL DECK 2X6 TREATED WOOD INFILL PANEL LEVEL 100 100' -0" EAVE PLATE Sheet Number Sheet Title No.Description Association with All reproduction intellectual property rights res Prepared For 100 Glass Street Dallas, Texas 75207 Civil & Structural Engineering Project No: Professional Seals Key Plan Original 48 36. Do not scale contents this 2928 Story Road West Las Colinas, Texas 75038 MEP Engineering & Fire Suppression LEC JAIL TO COURTHOUSE CONNECTION A412 KAUFMAN COUNTY JUSTICE CENTER KAUFMAN COUNTY 20.09003.00 100 N. Washington St. Kaufman, TX 75142 717 North Harwood Street Suite 2850, LB 8 Dallas, TX 75201 USA +1 214 720 6000 +1 214 Hellmuth, Obata & Kassabaum, SOUTH ELEVATION -INMATE WALKWAY 1/2" = 1'-0" 3 SECTION WALKWAY AT GROUND LEVEL 1/2" 1'-0" 1 SECTION -WALKWAY AT LEVEL 100 1/2" 1'-0" 4 SECTION -INMATE WALKWAY LEADING TO MAIN BUILDING 1/2" 1'-0" 2 SECTION -INMATE WALKWAY AT LEVEL 100 6 NORTH ELEVATION -WALKWAY INTO MAIN 1/2" 1'-0" SECTION DETAIL -INMATE WALKWAY @ SECURITY FENCE SECTION DETAIL -INMATE WALKWAY @ CMU SECTION DETAIL -HIGH ROOF TO LOW ROOF AT INMATE WALKWAY 1/8" 1'-0" CEILING PLAN -INMATE WALKWAY SECTION -INMATE WALKWAY -ROOF @ CMU 100% DESIGN DEVELOPMENT08-21-2020 50% CONSTRUCTION DOCUMENTS10-12-2020 90% CONSTRUCTION DOCUMENTS11-23-2020 CONSTRUCTION DOCUMENTS12-11-2020 12/11/2020 LEVEL 100 100' -0" LEVEL 000 86' -0" A412 GUTTER 101' 3" 99' 9" EXPANSION JOINT T.O. RETAINING WALL AT FENCE T.O. RETAINING WALL AT FENCE DOWNSPOUT DOWNSPOUT DOWNSPOUT LEVEL 100 100' -0" LEVEL 000 86' -0" 3 A411 ELEV PIT 81' -0" GRADE BEAM, RE: STRUCTURAL GUARD RAIL CHAINLINK FENCE BETWEEN COLUMNS CONCRETE WALKWAY 4" COLUMNS, REF: STRUCTURAL BASEPLATE AND ANCHOR BOLTS FOR POST EMBED PLATE FOR TUBE GUTTER DOWNSPOUT 3" ROOF DECK G90 COATING 8X4 TUBE G H 3V A R E S 9'-0" DRIP EDGE 1/2" CHAMFERED EDGES AT TOP OF CONCRETE, TYP. 89' 0" 15" DEEP CHANNEL PRE-FINISHED HIGH EVE CAP 2" TALL STANDING MTL ROOF LIGHT FIXTURE LEVEL 100 100' -0" LEVEL 000 86' -0" ELEV PIT 81' -0" GRADE BEAM, RE: STRUCTURAL CONCRETE WALKWAY 3" ROOF DECK G90 COATING BASEPLATE AND ANCHOR BOLTS FOR POST STRUCTURAL SLAB AND TURNDOWNS CHAINLINE FENCE BETWEEN COLUMNS GUTTER DOWNSPOUT 101' 3" 111' 4" 2" TALL STANDING MTL. ROOF 15" DEEP CHANNEL 15" DEEP CHANNEL EMBED PLATE FOR TUBE T.O. MASONRY PRE-FINISHED HIGH EVE CAP LEVEL 100 100' -0" LEVEL 000 86' -0" 8 A602 ELEV PIT 81' -0" GRADE BEAM, RE: STRUCTURAL CONCRETE WALKWAY 12" CMU 15" DEEP CHANNEL 8X4 TUBE ROOF DECK G90 COATING 15" DEEP CHANNEL EMBED PLATE FOR TUBE GUTTER DOWNSPOUT TALL STANDING MTL ROOF T.O. MASONRY (LOW) 99' 4" T.O. MASONRY (HIGH) 91' 4" T.O. RETAINING WALL8" 86' 0" T.O. CURB 407'- (CIVIL) 99' 0" 10 A412 LEVEL 100 100' -0" LEVEL 000 86' -0" A411 ELEV PIT 81' -0" GRADE BEAM, RE: STRUCTURAL CHAINLINE FENCE BETWEEN COLUMNS SLAB VOID STRUCTURAL SLAB AND TURNDOWNS 4" COLUMNS; REF: STRUCTURAL 8" TUBE BASEPLATE AND ANCHOR BOLTS FOR POST 3" ROOF DECK G90 COATING G H 3X3 STEEL ANGLE A412 A412 TALL STANDING SEAM METAL ROOF METAL CLOSURE PRE-FINISHED HIGH EVE CAP9'-0" 15" DEEP CHANNEL GUTTER 2" TALL STANDING MTL. ROOF LEVEL 100 100' -0" LEVEL 000 86' -0" A412 H 20 A626 1" EXPANSION JOINT 99' 4" 91' 4" T.O. RETAINING WALL AT MASONRY T.O. MASONRY G FASCIA COVER 8" 2'-0" METAL DECK TALL STANDING SEAM METAL ROOF 2X6 CONTINUOUS TREATED WD. PRE-FINISHED GUTTER TO EDGE ANGLE DOWNSPOUT TUBE STEEL EAVE-PLATE 5X5 STEEL TUBE H 3" STRUCTURAL DECK 3X3 METAL ANGLE 2X TREATED WD. SELF-ADHERING ROOF UNDERLAYMENT METAL CLOSURE PRE-FINISHED HIGH EVE CAP 3 8 111' 4" 5/8" STRUCTURAL "C" STEEL CHANNEL FASCIA 2" TALL STANDING SEAM METAL ROOF. 11" 12" CMU 1/4" CHAIN LINK TOP RAIL BOTTOM RAIL STRUCTURAL "C" CHANNEL FASCIA 4X8 TUBE STEEL PRE-FINISHED RAKE CAP 2X6 TREATED WOOD 2" TALL STANDING SEAM METAL ROOF CONT. CLOSURE CLIP PRE-FINISHED RAKE CAP B.O. DECK VARIES B.O. DECK VARIES SEE ELEV. S 1/2" 1/2" 3" STRUCTURAL DECK STRUCTURAL DECK 2X6 TREATED WOOD 1'-0" CHAIN LINK INFILL PANEL 8" 8" J LEVEL 100 100' -0" 8 EAVE PLATE PRE-FINISHED GUTTER TALL STANDING SEAM MTL ROOF 3"' STRUCTURAL DECK DOWNSPOUT FASCIA COVER 2X6 CONTINUOUS TREATED WD. STRUCTURAL "C" CHANNEL FASCIA Sheet Number Sheet Title No.Description Association with All reproduction intellectual property rights Prepared For JQ 100 Glass Street Suite 201 Texas 75207 Civil & Structural Engineering Project No: Professional Seals Key Plan Original 48 36. Do not scale contents MEPCE 2928 Story Road West Las Colinas, Texas 75038 MEP Engineering & Fire Suppression LEC JAIL TO COURTHOUSE CONNECTION A412 KAUFMAN COUNTY 20.09003.00 100 N. Washington St. Kaufman, TX 75142 717 North Harwood Street Suite 2850, LB 8 Dallas, TX 75201 USA +1 214 720 6000 +1 214 Hellmuth, Obata & Kassabaum, 1/8" 1'-0" 5 SOUTH ELEVATION -INMATE WALKWAYLEVEL 100 1/2" 1'-0" 3 SECTION WALKWAY AT GROUND LEVEL 1/2" 1'-0" 1 SECTION -WALKWAY AT LEVEL 100 1/2" = 1'-0" 4 SECTION -INMATE WALKWAY LEADING TO MAIN BUILDING 1/2" 1'-0" 2 SECTION -INMATE WALKWAY AT LEVEL 100 1/8" 1'-0" 6 NORTH ELEVATION -WALKWAY INTO MAIN BUILDING 1/2" 1'-0" 8 SECTION DETAIL -INMATE WALKWAY @ SECURITY FENCE 1/2" 1'-0" 7 SECTION DETAIL -INMATE WALKWAY @ CMU 1/2" 1'-0" 9 SECTION DETAIL -HIGH ROOF TO LOW ROOF AT INMATE WALKWAY 1/8" 1'-0" 11 CEILING PLAN -INMATE WALKWAY 1/2" 1'-0" 10 SECTION -INMATE WALKWAY -ROOF @ CMU 100% DESIGN DEVELOPMENT08-21-2020 50% CONSTRUCTION DOCUMENTS10-12-2020 90% CONSTRUCTION DOCUMENTS11-23-2020 CONSTRUCTION DOCUMENTS12-11-2020 12/11/2020 CONSTRUCTION DOCUMENTS Details for this walkway were created by referencing similar details from other projects as well as with coordination with our structural team & feedback & support from the project architect.

CONSTRUCTION DOCUMENTS

I have worked on numerous projects where I have had the responsibility of going through millwork & verifying appropriate millwork details are referenced as well as creating new details for new/unique millwork needs.

PT A927 10 3 6 M A X 2 7 M I N 3 84 3 M A X WD 1 PT PT 6 A801 754 36 21 0 1 A927 A927 754 754 ACCESSIBLE TRANSACTION WINDOW PT PT A801 A927 A927 2 A930 A930 SS 1 PL 1 26 90 1'-6" 3'-1" 1'-6" 3'-6" 2'-1" 1'-6" 6'-5 3/4" 1'-6" 11 A922 11 A922 M A X 21 0 48 EQ. EQ. 754 A801 A927 SS 1 ANGLED WALL, REF: PLAN SS PL 26 2 A930 90 786 725 10 A927 1'-0" VFY W/ EQUIPMENT 1'-0" 56 36 4 EQ EQ E Q E Q 40 1 A932 CLR. 3'-0" 26 15 FWP SS PL 12'-11" 21 0 EQUAL 4'-6" CPR-1 2 A930 SS PL 90 Sheet Number Sheet Title No. Description Project No: Professional Seals Original 36. Do not scale contents of A B 2 0 2 30 61 1 4 2 9 3 5 P M INTERIOR ELEVATIONS LOBBY, FS 21.09080.00 3/8" 1'-0" 1 LOBBY 1081 ELEVATION A 3/8" 1'-0" 2 LOBBY 1081 ELEVATION C 3/8" 1'-0" 5 RECEPTION 1088 ELEVATION A 3/8" = 1'-0" 6 LOBBY TRANSACTION WINDOW -ADA 3/8" = 1'-0" 4 RECEPTION 1088 ELEVATION B 3/8" = 1'-0" 3 LOBBY 1081 -ELEVATION D 3/8" = 1'-0" 7 VIDEO VISITATION COUNTER 3/8" = 1'-0" 9 RECEPTION -COPY AREA -ELEVATION D ISSUED FOR PERMIT 20 22 EQUAL 5'-0" 70 4 A922 15 A930 10 A922 SS 1 PL 1 1 20 8 A801 SS 1 770 21 0 12 1 20 756 SS 11 0 1 20 756 CLR 1'-1 1/2" 6 EQUAL 9'-0" CLEAR 6'-6" 3'-0" 2" 21 0 4 21 0 707 2 A930 13 A930 2 A930 19 A930 SS PL 2 A325 21 0 4 EQ EQ EQ EQ 10'-8" SS PL 1 2 A930 A927 A801 M A X 30 36 A927 SS 754 1 00 41 0 21 0 4 SS PL MILLWORK PT RF-1 14 A930 A930 18 A930 1 20 26 18 21 0 70 RF-1 SS 1 PL 1 PT 1 ALL CABINETS LOCKABLE, TYP. MILLWORK BASE, PL PL 1 2'-0" 6 EQUAL 9'-0" 1'-6" 2 A930 A930 14 A930 A930 15 A931 1 00 21 0 11 A922 A F F T O B O S C R E E N 8 0 M N 767 788 8 A927 20 O P E N N G T O F L U S H V A L V E 4 8 M A X O P E N N G T O F L U S H V A L V E 4 8 M A X O P E N N G T O F L U S H V A L V E 4 8 M A X 20 20 755 755 755 11 A922 SS 1 3/8" = 1'-0" 10 INTAKE OFFICE -WEST 3/8" 1'-0" 15 EVIDENCE -STAFF COUNTER 3/8" 1'-0" 14 EVIDENCE DROP-OFF COUNTER INTAKE SOUTH ELEVATION 3/8" = 1'-0" 9 INTAKE EAST ELEVATION INTAKE OFFICE PANTRY 3/8" = 1'-0" EVIDENCE VIEWING TECH PANTRY 1070 ELEVATION B 3/8" 1'-0" 16 INTERIOR ELEVATION 3/8" = 1'-0" 17 CEILING MOUNTED TV -INTAKE 3/8" = 1'-0" 18 PADDED CELL & DETOX CELLS 20 22 4 EQUAL 5'-0" 70 4 A922 15 A930 10 A922 SS 1 PL 1 1 20 A801 SS 770 21 0 12 1 20 756 SS1 0 1 20 756 CLR 1'-1 1/2" 6 EQUAL 9'-0" CLEAR 6'-6" 3'-0" 2" 21 0 4 21 0 707 2 A930 13 A930 2 A930 19 A930 SS 1 PL 1 A325 21 0 4 EQ EQ EQ EQ 10'-8" SS PL 2 A930 OPEN TO BEYOND 40 40 36 3 A927 SS TYP SURFACE MOUNTED DEAL TRAY UNDER WINDOW; CENTERED ON CMU 8 A801 M A X 30 36 A927 OPEN TO BEYOND SS SS 754 1 00 41 0 756 21 0 4 VFY. W/ EQUIP. 2'-2" 2'-1" HOLD 3'-0" SS PL MILLWORK BASE, PL-1 PT RF-1 14 A930 A930 18 A930 1 20 3'-0" 3'-0" HOLD 3'-0" 1'-6" 1" 26 18 21 0 70 RF-1 SS 1 PL 1 PT 1 ALL CABINETS LOCKABLE, TYP. MILLWORK BASE, PLPL 1 2'-0" EQUAL 9'-0" 1'-6" 2 A930 A930 14 A930 A930 15 A931 W/ EQUIP. 24" MIN VFY 1 00 21 0 11 A922 A F F T O B O S C R E E N 8 0 M N 767 788 8 A927 20 O P E N N G T O F L U S H V A L V E 4 8 M A X O P E N N G T O F L U S H V A L V E 4 8 M A X O P E N N G T O F L U S H V A L V E 4 8 M A X 20 2755 755 755 11 A922 SS 3/8" 1'-0" 10 INTAKE OFFICE -WEST 3/8" = 1'-0" 15 EVIDENCE -STAFF COUNTER 3/8" = 1'-0" 14 EVIDENCE DROP-OFF COUNTER 3/8" = 1'-0" INTAKE SOUTH ELEVATION 8 3/8" 1'-0" 9 INTAKE EAST ELEVATION 3/8" 1'-0" 12 INTAKE OFFICE PANTRY 3/8" = 1'-0" 13 EVIDENCE VIEWING TECH PANTRY 1070 ELEVATION B 3/8" = 1'-0" 16 INTERIOR ELEVATION -RELEASE 3/8" = 1'-0" 17 CEILING MOUNTED TV -INTAKE 3/8" = 1'-0" 18 PADDED CELL & DETOX CELLS SCHEDULED PARTITION 3/4" PLYWOOD PANEL, WOOD VENEER FINISH, MOUNTED ON Z-CLIPS GLAZING SYSTEM AS SCHED., RE: QD SERIES PUBLIC LOBBY SIDE ADMIN SIDE SOLID SURFACE COUNTERTOP, REF: DEAL TRAY MANUFACTURER FOR CUT OUT SIZE REQUIREMENTS RECESSED TRANSACTION DEAL TRAY, RE: QD SERIES SOLID SURFACE COUNTERTOP LINE OF ASSEMBLY BEYOND PROVIDE CONTINUOUS 2" 2" ALUMINUM ANGLE FOR SUPPORT OF COUNTER. MAX. 4" 2 1/2" 4" 2 1/2" SCHED PARTITION 3/4" PLYWOOD PANEL, WOOD VENEER FINISH, MOUNTED ON Z-CLIPS GLAZING SYSTEM AS SCHED. PUBLIC LOBBY SIDE ADMIN SIDE 3/4" SOLID SURFACE COUNTERTOP, REF: DEAL TRAY MANUFACTURER FOR CUT OUT SIZE REQUIREMENTS RECESSED TRANSACTION DEAL TRAY MAX. 4" 2 1/2" 1 1/2" INSULATION TUB DOOR FIRE EXTINGUISHER 1/2" X 4" HEADED STUD, 8" O.C., EACH SIDE WALL FLANGE HINGE 6" X 10 1/2" X 24" FIRE EXTINGUISHER CABINET PROVIDE FIRE RATED CONTINUOUS SEALANT AROUND EXTINGUISHER CABINET 10 1/4" CMU, SOLID SOAP INSULATION NOTE: MAINTAIN WALL SECURITY LEVEL 3/16" STL PL SECURITY BARRIER, (2) SIDES, TOP AND BOTTOM A801 LINE OF SECURITY GLAZING ABOVE RECESSED DEAL TRAY, UNDER SCHEDULED GLAZING SYSTEM, CENTERED ON CMU SOLID SURFACE COUNTERTOP, 10" X 12" CUT OUT TO ACCOMMODATE DEAL TRAY; SURFACE MOUNTED TO CMU BELOW; VERIFY W/ DEAL TRAY MANUFACTURER REQUIREMENTS 10" EQ. 1'-0" EQ. 1'-4" 1 3/4" 10" 10" 12" SURFACE MOUNTED DEAL TRAY; CENTERED AT CMU, RE: QD SERIES FOR DETENTION EQUIPMENT 2" CUT AT CMU TO ACCOMMODATE SURFACE MOUNTED DEAL TRAY SCHEDULED GLAZING, RE: QD SERIES 2" 2'-11" CONTINUOUS SOLID SURFACE COUNTERTOP W/ CUTOUTS TO ACCOMODATE SURFACE MOUNTED DEAL TRAYS 1 1/2" 3/4" SOLID SURFACE COUNTERTOP, REF: DEAL TRAY MANUFACTURER FOR CUT OUT SIZE REQUIREMENTS 3 STEEL TUBE DATA POWER CONDUITS GRATING FLOOR CEILING MOUNT WITH MEDIA PLAYER DEVICE STORAGE RE: CEILING PLAN BOTTOM OF TV TO BE 80" A.F.F. MIN. Sheet Number Sheet Title No. Description Date Project No: Professional Seals Key Plan Original 48 36. Do not scale contents of this drawing. A B 2023-06-17 3:04:54 PM MISCELLANEOUS DETAILS A927 21.09080.00 3" 1'-0" 1 RECEPTION -DEAL TRAY -SECTION DETAIL 3" 1'-0" 2 RECEPTION -DEAL TRAY -ADA 3" = 1'-0" 5 FEC CABINET -OFFICER STATION 3" 1'-0" 4 SURFACE MOUNTED DEAL TRAY -INTAKE BOOKING 3" 1'-0" 3 INTAKE / BOOKING -DEAL TRAY 1/4" 1'-0" 6 BASKETBALL HOOP -WALL MOUNTED INSTALLATION SECTION 3" = 1'-0" 7 ENCLOSURE FOR POWER & DATA CONDUITS FOR UPPER TIER TV. 1 1/2" 1'-0" 8 CEILING MOUNTED TV ISSUED FOR PERMIT 04/17/2023 LEVEL ONE 0" Q PANELS TO BE STAIN-GRADE VENEER ON 3/4" MDF. PROVIDE HARDWOOD EDGE AT OUTSIDE VERTICAL CORNER. VENEER TO RUN VERTICALLY AND TO COVER HARDWOOD EDGES FOR CONTINUOUS FLUSH APPEARANCE. FASTENERS TO BE CONCEALED. CONTINUOUS WORK SURFACE WITH BUILTUP FRONT NOSE. EASE FRONT EDGE PROVIDE CUTOUTS AT INTERNAL PLYWOOD RIBS TO ACCOMMODATE WIREWAYS SOLID SURFACE TOP ON 3/4" SUBSTRATE PROVIDE CONTINUOUS 2" X 2" ALUMINUM ANGLE FOR SUPPORT OF COUNTER. 2'-6" 2'-6" 1/2" SURFACE MOUNTED VIDEO VISITATION SCREEN FABRIC WRAPPED PANEL 2'-0" A932 2 A932 2'-0" 1" LEVEL ONE 0" 1 A932 1/2" A932 4 A932 5 1/2" EQ EQ PROVIDE CONTINUOUS 2" 2" ALUMINUM ANGLE FOR SUPPORT OF COUNTER. PANELS TO BE STAIN-GRADE VENEER ON 1/2" MDF. PROVIDE HARDWOOD EDGE AT OUTSIDE VERTICAL CORNER. VENEER TO RUN VERTICALLY AND TO COVER HARDWOOD EDGES FOR CONTINUOUS FLUSH APPEARANCE. FASTENERS TO BE CONCEALED. SOLID SURFACE TOP ON 3/4" SUBSTRATE FABRIC WRAPPED PANEL ABOVE COUNTERTOP CONTINUOUS WORK SURFACE WITH BUILT-UP FRONT NOSE, EASE FRONT EDGE 1" 1'-5" 2'-6" 1'-6" 1/2" WOOD FRAME STRETCHED FABRIC WRAPPED PANEL ACOUSTICAL CORE MATERIAL TAPERED EDGE 1" 1" 1/2" SOLID SURFACE TOP ON 3/4" SUBSTRATE, EASE OUTSIDE EDGES Sheet Number Sheet Title No. Description Date In Association with All reproduction intellectual property rights reserved DKHorn Engineering & Design, Inc. 2441 South Prairie Ave. Pueblo, Colorado 81005 Civil Engineering Project No: Professional Seals Key Plan Original 48 36. Do not scale contents this drawing. JENSEN HUGHES 2301 W. Plano Pkwy, Ste 210 Plano, TX 75075 Life Safety, Fire Protection & Fire Alarm SYSTEMS DESIGN INTERNATIONAL 5200 DTC Parkway, Suite 500 Greenwood Village, CO 80111 Food Service & Laundry A MILLWORK DETAILS A932 21.09080.00 2023 1/2" = 1'-0" 1 MILLWORK -VIDEO VISITATION -WIREWAY 1 1/2" 1'-0" 2 MILLWORK -VIDEO VISTATION -DIVIDER & END WALLS 6" = 1'-0" 5 FABRIC WRAPPED PANEL -S.S. CAP -END WALL ISSUED FOR PERMIT 04/17/2023 LEVEL ONE 0" Q PANELS TO BE STAIN-GRADE VENEER ON 3/4" MDF. PROVIDE HARDWOOD EDGE AT OUTSIDE VERTICAL CORNER. VENEER TO RUN VERTICALLY AND TO COVER HARDWOOD EDGES FOR CONTINUOUS FLUSH APPEARANCE. FASTENERS TO BE CONCEALED. CONTINUOUS WORK SURFACE WITH BUILTUP FRONT NOSE. EASE FRONT EDGE PROVIDE CUTOUTS AT INTERNAL PLYWOOD RIBS TO ACCOMMODATE WIREWAYS SOLID SURFACE TOP ON 3/4" SUBSTRATE PROVIDE CONTINUOUS 2" X 2" ALUMINUM ANGLE FOR SUPPORT OF COUNTER. 2'-6" 2'-6" 1/2" SURFACE MOUNTED VIDEO VISITATION SCREEN FABRIC WRAPPED PANEL 2'-0" A932 2 A932 2'-0" WOOD FRAME STRETCHED FABRIC WRAPPED PANEL ACOUSTICAL CORE MATERIAL TAPERED EDGE SOLID SURFACE TOP ON 3/4" SUBSTRATE, EASE OUTSIDE EDGES 1/2" 1" LEVEL ONE 0" 1 A932 1/2" A932 4 A932 5 1/2" EQ EQ PROVIDE CONTINUOUS 2" 2" ALUMINUM ANGLE FOR SUPPORT OF COUNTER. PANELS TO BE STAIN-GRADE VENEER ON 1/2" MDF. PROVIDE HARDWOOD EDGE AT OUTSIDE VERTICAL CORNER. VENEER TO RUN VERTICALLY AND TO COVER HARDWOOD EDGES FOR CONTINUOUS FLUSH APPEARANCE. FASTENERS TO BE CONCEALED. SOLID SURFACE TOP ON 3/4" SUBSTRATE FABRIC WRAPPED PANEL ABOVE COUNTERTOP CONTINUOUS WORK SURFACE WITH BUILT-UP FRONT NOSE, EASE FRONT EDGE 1" 1'-5" 2'-6" 1'-6" 1/2" 1" WOOD FRAME STRETCHED FABRIC WRAPPED PANEL ACOUSTICAL CORE MATERIAL TAPERED EDGE SOLID SURFACE TOP ON 3/4" SUBSTRATE, EASE OUTSIDE EDGES 1/2" WOOD FRAME STRETCHED FABRIC WRAPPED PANEL ACOUSTICAL CORE MATERIAL TAPERED EDGE 1" Sheet Number Sheet Title No. Description Date Project No: Professional Seals Key Plan Original 48 36. Do not scale contents this drawing. A 2023-06-17 2:57:14 PM MILLWORK DETAILS A932 21.09080.00 1/2" = 1'-0" 1 MILLWORK -VIDEO VISITATION -WIREWAY 6" = 1'-0" 3 FABRIC WRAPPED PANEL -S.S. CAP -DATA WALL 1 1/2" 1'-0" 2 MILLWORK -VIDEO VISTATION -DIVIDER & END WALLS 6" 1'-0" 4 FABRIC WRAPPED PANEL -S.S. CAP -DIVIDER WALL 6" = 1'-0" 5 FABRIC WRAPPED PANEL -S.S. CAP -END WALL ISSUED FOR PERMIT 04/17/2023 LEVEL ONE 0" Q PANELS TO BE STAIN-GRADE VENEER ON 3/4" MDF. PROVIDE HARDWOOD EDGE AT OUTSIDE VERTICAL CORNER. VENEER TO RUN VERTICALLY AND TO COVER HARDWOOD EDGES FOR CONTINUOUS FLUSH APPEARANCE. FASTENERS TO BE CONCEALED. CONTINUOUS WORK SURFACE WITH BUILTUP FRONT NOSE. EASE FRONT EDGE PROVIDE CUTOUTS AT INTERNAL PLYWOOD RIBS TO ACCOMMODATE WIREWAYS SOLID SURFACE TOP ON 3/4" SUBSTRATE PROVIDE CONTINUOUS 2" X 2" ALUMINUM ANGLE FOR SUPPORT OF COUNTER. 2'-6" 2'-6" 4'-0" 1/2" SURFACE MOUNTED VIDEO VISITATION SCREEN FABRIC WRAPPED PANEL 2'-0" A932 2 A932 2'-0" WOOD FRAME STRETCHED FABRIC WRAPPED PANEL ACOUSTICAL CORE MATERIAL TAPERED EDGE SOLID SURFACE TOP ON 3/4" SUBSTRATE, EASE OUTSIDE EDGES 1/2" 1" LEVEL ONE 0" 1 A932 1/2" A932 4 A932 5 1/2" EQ EQ PROVIDE CONTINUOUS 2" 2" ALUMINUM ANGLE FOR SUPPORT OF COUNTER. PANELS TO BE STAIN-GRADE VENEER ON 1/2" MDF. PROVIDE HARDWOOD EDGE AT OUTSIDE VERTICAL CORNER. VENEER TO RUN VERTICALLY AND TO COVER HARDWOOD EDGES FOR CONTINUOUS FLUSH APPEARANCE. FASTENERS TO BE CONCEALED. SOLID SURFACE TOP ON 3/4" SUBSTRATE FABRIC WRAPPED PANEL ABOVE COUNTERTOP CONTINUOUS WORK SURFACE WITH BUILT-UP FRONT NOSE, EASE FRONT EDGE 1" 1'-5" 2'-6" 1'-6" 1/2" 1" WOOD FRAME STRETCHED FABRIC WRAPPED PANEL ACOUSTICAL CORE MATERIAL TAPERED EDGE SOLID SURFACE TOP ON 3/4" SUBSTRATE, EASE OUTSIDE EDGES 1/2" STRETCHED FABRIC WRAPPED PANEL ACOUSTICAL CORE MATERIAL TAPERED EDGE Sheet Number Sheet Title No. Description Date Project No: Professional Seals Key Plan Original 48 36. Do not scale contents this drawing. A 2023-06-17 2:57:14 PM MILLWORK DETAILS A932 21.09080.00 1/2" = 1'-0" 1 MILLWORK -VIDEO VISITATION -WIREWAY 6" = 1'-0" 3 FABRIC WRAPPED PANEL -S.S. CAP -DATA WALL 1 1/2" = 1'-0" 2 MILLWORK -VIDEO VISTATION -DIVIDER & END WALLS 6" 1'-0" 4 FABRIC WRAPPED PANEL -S.S. CAP -DIVIDER WALL 6" = 1'-0" 5 FABRIC WRAPPED PANEL -S.S. CAP -END WALL ISSUED FOR PERMIT 04/17/2023

PERSONAL PROJECTS

3D WAVE PATTERN MODELED IN RHINO USING A SERIES OF CURVES. THE PATTERN WAS FLOWED ALONG A BOX TO CREATE THE PLANTER’S FORM.

THE NEGATIVE FORM WAS CREATED BY SUBTRACTING THE POSITIVE FROM WHAT WILL BE USED AS THE MOLD.

THE PICES OF THE MOLD WERE SPLIT INTO 4 IN ORDER TO MAKE THE REMOVAL OF THEM ONCE THE CONCRETE HAS CURED EASIER.

THE WAVE PLANTER

THIS CONCRETE PLANTER WAS MODELED IN RHINO, THE MOLD WAS 3D PRINTED & THEN CASTED USING CONCRETE. GRADIENT COLOR WAS USED TO ACCENTUATE IT’S WAVE DESIGN.

6” 5” 6” 5”
END PRODUCT

3D PRINTED SHOULDER ACCESSORIES

THESE SHOULDER PIECES WERE DESIGNED FOR A FRIEND WHO NEEDED SOMETHING FOR A PERFORMANCE THEY WERE HAVING. THEY WERE MODELED IN RHINO & 3D PRINTED. FINISHING PROCESS INVOLVED SANDING, FILLING & PAINTING.

Turn static files into dynamic content formats.

Create a flipbook
Issuu converts static files into: digital portfolios, online yearbooks, online catalogs, digital photo albums and more. Sign up and create your flipbook.