Baldwin Herald 03-23-2023

Page 1

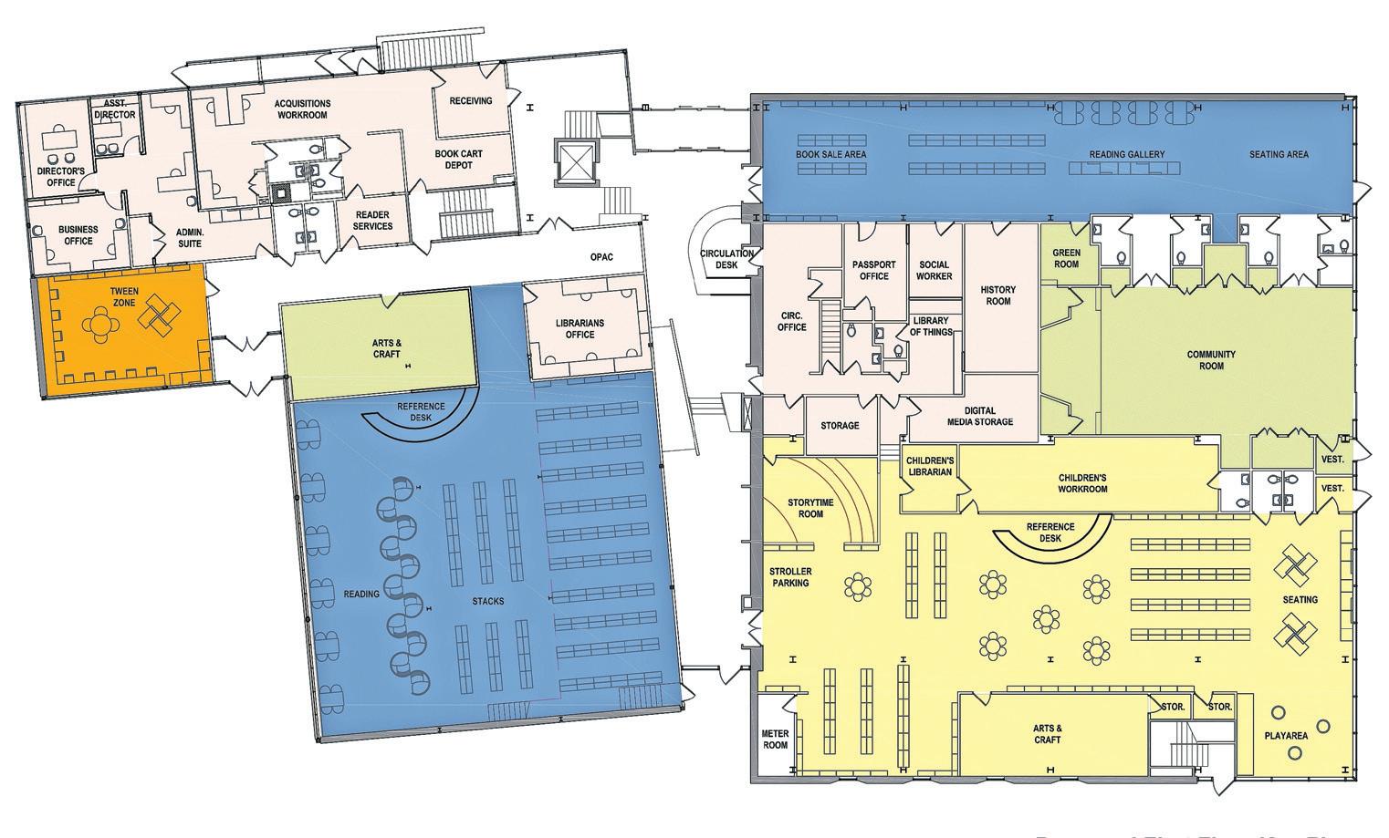
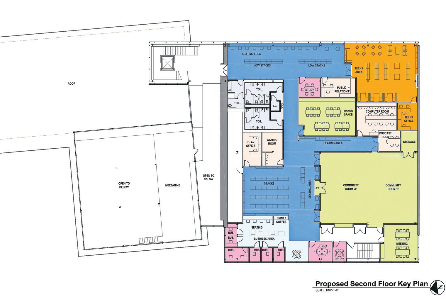
Library to hold referendum on $11M redesign

At its board of trustees meeting on Feb. 27, the Baldwin Public Library announced plans to hold a public referendum in May on a redesign and renovation of the facility’s first and second floors and the replacement of the roof and climate systems, at a cost of $11.6 million.

SOPHOMORE SARIAH DORESCA became the first Lady Bruin to capture a state championship when she won the 55-meter dash in a school record 7.02 seconds.

Sariah Doresca, Baldwin High sophomore, is a state champ

Four Baldwin High School runners captured New York State Public High School Athletic Association track and field titles on March 4 — including Sariah Doresca, the first Lady Bruin ever to win an individual state championship.

“It was amazing to win states, because it made all the long nights at practice pay off,” said Jahzara Emeli, a member of the winning 4x200-meter relay team at the New York State Indoor Track and Field Championships. “We came out of the meet with a win and a new record.”

After the team got a spirited send-off from dozens of parents and students as it set off for the meet at the Ocean Breeze Athletic Facility on Staten Island, the relay squad, which also included sophomores Doresca and Jillian Rickford and freshman Breanne Barnett, won their event with a time of 1 minute, 41.17 seconds.

“These four girls have shown what it looks like when you run together for years,” Karen Barnes, Baldwin High’s girls’ track and field coach, wrote in an email. “Their relationship on and off the track helps to prove that consistency and hard work are the main ingredients to success. The Baldwin community is so very

CONTINUED ON PAGE 4

“The library is confident the community will recognize the value in our proposal,” library Director Elizabeth Olesh said. “We are the one organization that serves all Baldwin residents of all ages, and our plans incorporate elements that speak to everyone.”

Under the new plan, residents would pay roughly $98 more per year.

“Libraries provide a tremendous range of services and resources for each tax dollar, and historically, Baldwin’s per-capita library tax has been much lower than many other libraries in Nassau,” Olesh said. “This referendum will enable us to do even more for Baldwin.”

OLESH library director

The project would also include new spaces and services for library patrons. The vote will accompany the Baldwin School District’s budget vote on May 16.

The cost of the library’s redesign was initially estimated to be about $5 million, which would have cost Baldwin taxpayers an extra $25 per year for 15 years.

Scott Faucheux, a local architect, said he was an enthusiastic supporter of the library’s plans, and added that he thought $11 million was a reasonable price to pay. “Were talking about $8 a month per household,” Faucheux said. “I think that’s a pretty reasonable amount of money for the upgrades and improvements were looking at. Baldwin as a whole is missing social spaces, so to see the opportunity for more social spaces is fantastic.”

The library’s plans, which can be viewed on its website, BaldwinPL.org, include a rede-

CONTINUED ON PAGE 12

VOL. 30 NO. 13 MARCH 23-29, 2023 $1.00 Chamber swears in new president Page 3 NASA astronaut visits students Page 19 HERALD BALDWIN
The library is confident the community will recognize the value in our proposal
ELIZABETH Courtesy Baldwin School District
Apply online at mptrg.com/heraldnote or call 516.715.1266 THE LEADER IN PROPERTY TAX REDUCTION Maidenbaum Property Tax Reduction Group, LLC 483 Chestnut Street, Cedarhurst, NY 11516 | Hablamos Español Get Results. Sign Today!Up Sit back and relax. DEADLINE APRIL 3RD

Nassau proclaims ‘Big Daddy’ Salgado Day

Rich Salgado is known to be one of the “most trusted men among professional athletes,” and an agent to the stars.

As the chief executive of Coastal Advisors, Salgado is an insurance adviser to more than 500 of the most prominent names in the world of sports, business, media and the entertainment industry. Clients include former New York Giants defensive end Michael Strahan, Fox Sports analyst Reggie Bush, former NBA point guardJeremy Lin, ESPN senior NFL Insider Adam Schefter, and actress Melissa Joan Hart.

It’s three decades worth of accomplishments and advocacy for the man known as “Big Daddy” — enough for Nassau County Executive Bruce Blakeman to officially proclaimed March 7 as Rich “Big Daddy” Salgado Day. Blakeman honored Salgado in Mineola, joined by Strahan, actor Hisham Tawfiq from NBC’s “The Blacklist,” and Schefter.

“It’s always an honor for me to recognize somebody who has contributed so much to Nassau County, Long Island, and quite frankly, the whole region — and perhaps we can say the whole country,” Blakeman said. “He’s always been a very outgoing, friendly, nice person to everybody he meets — whether they’re in a high station in life, or whether they’re somebody that’s struggling to do a little better for themselves and their family.”

Salgado attended New Hyde Park Memorial High School and went on to study at the University of Maryland, where he played college football as a defensive lineman. After graduating, he decided to make a shift from playing football to advising, launching Coastal Advisors in 1996.

Salgado’s role is to set up life insurance

policies, help with estate planning, and create other forms of financial protection in the face of adversity.

In addition to running his own insurance company, Salgado is also the chief commercial officer for Gas It Up — a minority-owned mobile fueling company with locations in Texas and on the east coast.

Those attending the recent ceremony talked about Salgado’s generous nature, evident in philanthropic efforts like the Big Daddy Celebrity Golf Classic, an annual charity event Salgado started in 2010.

For this year’s golf charity event, Salgado partnered with the Sher organization — a women-founded group supporting gender equality and equity. Salgado also founded Big Daddy Youth Football Camp, which focuses on private mentoring and speaking engagements for elementary- and middle school-aged campers.

He’s also been known to fly pizzas in for the Super Bowl, said his friend, Anzhelika Steen-Olsen.

“I have come to know him as a man of kindness and benevolence,” said SteenOlsen, founder of the Sher organization. “A trustworthy friend to many. A funny man who still wears his heart on his sleeve.”

Strahan — who now co-hosts “Good Morning America” on ABC — said he and Salgado became “fast friends” when they first met 28 years ago. At the time, the Texas native had only been living in New York for a couple years, playing for the New York Giants.

Salgado was someone Strahan knew always had his back.

“He is the most gentle, big man I know,” he said. “If I needed to call anybody to do anything at any time, or someone who literally goes out of their way to do things that I’m not even expecting — it’s Rich.”

Tim Baker/Herald
March 23, 2023 — BALDWIN HERALD 2 Your business isn’t cookie cutter. Your ERTC calculation shouldn’t be either. The Employee Retention Tax Credit (ERTC) is one of the best kept secrets around and was recently expanded to benefit more businesses. Even if you received a PPP loan, you can still qualify for this federal Covid-19 benefit for up to $26,000 per employee. At Easy Tax Credits, we analyze every business from scratch. Book a free, no obligation phone call with the expert lawyers and accountants at Easy Tax Credits today! Promotional offer: some restrictions apply. To qualify for promotional offer, business must enter into an agreement with Easy Tax Credits, LLC, and be eligible to receive ERTC funding. *Promotional offer furnished by Herald Community Media; Easy Tax Credits, LLC, not responsible for fulfillment of promotional offer. EasyTaxCredits.com Phone: 1-234-CREDITS (273-3487) $1,000 BONUS! Free advertising offer with Herald Community Media* Use reference code LIHERALD-2023 1209405
Rich SAlgAdO ReceiveS an official proclamation from Nassau County Executive Bruce Blakeman to make March 7 Rich ‘Big Daddy’ Salgado Day. His friends Anzhelika SteenOlsen and Michael Strahan praised Salgado for his many accomplishments as an insurance adviser.

HEMPSTEAD officials, like Supervisor Don Clavin, swore in Victor Sookdeo as the official chamber president in front of Baldwin community members, and his friends and family.

Victor Sookdeo sworn in as chamber president

Victor Sookdeo, from Queens, was sworn in as the president of the Chamber of Commerce at their reverse raffle event, which featured food from more than 10 Baldwin restaurants, on March 16.

The Baldwin Chamber of Commerce held their monthly meeting, which featured a reverse raffle and food from more than 10 Baldwinbased restaurants, at the American Legion Post 246 at 2754 Grand Ave and swore in Victor Sookdeo as the new chamber president, relieving Erik Mahler, the previous president, of his post.

The event began with the “Pledge of Allegiance,” followed by “God Bless America,” before Erik Mahler kicked off the reverse raffle. Raffle participants had the chance to win cash prizes, gift cards, and assorted baskets, while enjoying an assortment of foods provided by Baldwin businesses like, Kitty O’Hara’s, The Irish Pub, Raagini, Bites Galore Sweetique, and Novi.

Prior to the raffle, Mahler, and Town of Hempstead officials, like Supervisor Don Clavin, swore in Sookdeo as the official chamber president in front of Baldwin community members, and his friends and family.

Sookdeo said he and his wife Tina, moved to Baldwin in 2018 and opened his business, Park Assets Real Estate, and joined the Chamber of Commerce as a member in 2020. He was eventually asked to become a member of

the chamber’s board a year later and in 2022, the board approached him to consider becoming the chamber’s president, when Erik Mahler signaled he wanted to retire the position in 2023.

Sookdeo said one of his main goals, as chamber president is to reach out and unite Baldwin businesses that are not chamber members. He said he wants to foster more cooperation between businesses and promote local shopping. Another goal of his is to fill vacant buildings and units with new businesses in Baldwin.

“We have too many vacancies in Baldwin,” said Sookdeo. “Considering how great Baldwin is, we shouldn’t have so many vacant buildings in our shopping centers.”

Sookdeo said he graduated from St. Francis Prep in Fresh Meadows Queens in 2009, before attending Baruch College, studying business administration, in September

VICTOR SOOKDEO, WITH his wife and son Tina and Bitan Sookdeo, was sworn in as the president of the Chamber of Commerce at their reverse raffle event on March 16.

FORMER CHAMBER PRESIDENT Erik Mahler helped swear in Victor Sookdeo as the new president, before starting the reverse raffle with Baldwin community members.

of 2009. He then transferred to Queens College and graduated with a bachelor’s degree in psychology.

Sookdeo then started a pre-medical program at Hofstra University in 2013, where he planned to study to become a psychiatrist. During this time, he acquired a real estate license and ironically sold his first home to a Long Island-based psychiatrist, and decided to dedicate himself to become a full-time real estate agent in 2014.

Sookdeo said he now wants to focus on fostering a thriving business community and help existing Baldwin businesses grow.

3 BALDWIN HERALD — March 23, 2023
C onsidering how great Baldwin is, we shouldn’t have so many vacant buildings in our shopping centers
VICTOR SOOKDEO chamber of commerce president
Justine Stefanelli/Herald photos
TOWN OF

Protecting Your Future with

Protecting Your Future

Medicaid Asset Protection Trust (MAPT) v. Life Estate Deed

Medicaid Asset Protection Trust (MAPT) v. Life Estate Deed

Clients often ask whether the home should be deeded to the client’s adult children, while retaining a life estate in the parent or whether the Medicaid Asset Protection Trust should be used to protect the asset.

Clients often ask whether the home should be deeded to the client’s adult children, while retaining a life estate in the parent or whether the Medicaid Asset Protection Trust should be used to protect the asset.

While the deed with a life estate will be less costly to the client, in most cases it offers significant disadvantages when compared to the trust. First, if the home is sold prior to the death of the Medicaid recipient, the life estate value of the home will be required to be paid towards their care. If the house is rented, the net rents are payable to the nursing facility since they belong to the life tenant. Finally, the client loses a significant portion of their capital gains tax exclusion for the sale of their primary residence as they will only be entitled to a pro rata share based on the value of the life estate to the home as a whole.

While the deed with a life estate will be less costly to the client, in most cases it offers significant disadvantages when compared to the trust. First, if the home is sold prior to the death of the Medicaid recipient, the life estate value of the home will be required to be paid towards their care. If the house is rented, the net rents are payable to the nursing facility since they belong to the life tenant. Finally, the client loses a significant portion of their capital gains tax exclusion for the sale of their primary residence as they will only be entitled to a pro rata share based on the value of the life estate to the home as a whole.

All of the foregoing may lead to a situation where the family finds they must maintain a vacant home for many years. Conversely, a properly drafted MAPT preserves the full capital gains tax exclusion on the primary residence and the home

All of the foregoing may lead to a situation where the family finds they must maintain a vacant home for many years. Conversely, a properly drafted MAPT preserves the full capital gains tax exclusion on the primary residence and the home

may be sold by the trust without obligation to make payment of any of the principal towards the client’s care, assuming we have passed the look-back period of five years.

may be sold by the trust without obligation to make payment of any of the principal towards the client’s care, assuming we have passed the look-back period of five years.

It should be noted here that both the life estate and the MAPT will preserve the steppedup basis in the property provided it is only sold after the death of the parent who was the owner or grantor. Upon the death of the parent, the basis for calculating the capital gains tax is stepped up from what the parent paid, plus any improvements, to what it was worth on the parent’s date of death. This effectively eliminates payment of capital gains taxes on the sale of appreciated property, such as the home, after the parent dies.

It should be noted here that both the life estate and the MAPT will preserve the steppedup basis in the property provided it is only sold after the death of the parent who was the owner or grantor. Upon the death of the parent, the basis for calculating the capital gains tax is stepped up from what the parent paid, plus any improvements, to what it was worth on the parent’s date of death. This effectively eliminates payment of capital gains taxes on the sale of appreciated property, such as the home, after the parent dies.

There are instances where the life estate deed makes sense however. When the asset is a country house or a beach house that is intended to stay in the family for the next generation, then the life estate deed works perfectly well and may effect a significant savings to the family seeking to protect the asset.

There are instances where the life estate deed makes sense however. When the asset is a country house or a beach house that is intended to stay in the family for the next generation, then the life estate deed works perfectly well and may effect a significant savings to the family seeking to protect the asset.

ETTINGER LAW FIRM

ETTINGER LAW FIRM

ELDER LAW ESTATE PLANNING SINCE 1991 trustlaw.com

Trusts & Estates • Wills & Probate • Medicaid FREE CONSULTATION: 516-327-8880 x117 or email info@trustlaw.com

100 Merrick Rd., Rockville Centre • 3000 Marcus Ave., Lake Success

Lady Bruin wins team’s first individual state title

Other offices in Huntington • Melville • Islandia

100 Merrick Rd., Rockville Centre • 3000 Marcus Ave., Lake Success

Other offices in Huntington • Melville • Islandia

Four Generations Of Compassion & Trust Serving All Faiths Since 1903

CONTINUED FROM FRONT PAGE

proud of their accomplishments.”

Rickford, who ran the anchor leg, said that she and the other girls had practiced since last August in anticipation of the indoor season, which began in November. She and the other relay members, Rickford said, worked out five times a week, strategizing, perfecting their baton passes and sharpening their speed.

Doresca, meanwhile, made Baldwin High history by winning the 55-meter dash in a school record time of 7.02 seconds.

graduates in two years. She said she was proud to represent Baldwin on the track, but strived to be as successful academically as she is athletically, since she plans to eventually study medicine.

Doresca said she planned to continue to improve her running, and to join a track and field team at a Division I university when she

W“It’s always great to see dedicated student athletes reap the benefits of their hard work and effort,” Tyshawn Scarlett, the Baldwin district’s director of health, physical education and athletics, said in an email. “Our girls are the definition of hard work paying off. Witnessing our girls run and make history is a moment I will never forget. I am proud of them for what they have accomplished thus far as students and as athletes.”

Courtesy Baldwin School District THE BALDWIN HIGH girls’ 4x200-meter relay team, comprising sophomores Sariah Doresca, Jahzara Emeli and Jillian Rickford and freshman Breanne Barnett, won a state championship on March 4.
e came out of the meet with a win and a new record.
March 23, 2023 — BALDWIN HERALD 4
Matthew
769 Merrick Rd., Baldwin 516-223-1460 www.fullertonfhny.com 1208766 HOW TO REACH US Our offices are located at 2 Endo Blvd. Garden City, NY 11530 and are open from 8:30 a.m. to 5:30 p.m., Monday through Friday. MAIN PHONE: (516) 569-4000 ■ WEB SITE: www.liherald.com/baldwin ■ E-MAIl: Letters and other submissions: baldwineditor@liherald.com ■ EDITORIAl DEPARTMENT: Ext. 269 E-mail: baldwineditor@liherald.com ■ SUBSCRIPTIONS: Press ”7” E-mail: circ@liherald.com Fax: (516) 569-4942 ■ ClASSIFIED ADVERTISING: Ext. 286 E-mail: ereynolds@liherald.com Fax: (516) 622-7460 ■ DISPlAY ADVERTISING: Ext. 249 E-mail: sales@liherald.com Fax: (516) 569-4643 The Baldwin Herald USPS 50398, is published every Thursday by Richner Communications, Inc., 2 Endo Blvd. Garden City, NY 11530. Periodicals postage paid at Garden City, NY 11530 and additional mailing offices. Postmaster send address changes to Baldwin Herald, 2 Endo Blvd. Garden City, NY 11530. Newsstand Price: $1. Subscription rates: $60 for 1 year. Annual Subscription Rates, $9.75 per quarter auto-pay or $50 one-time payment within Nassau County or $60 outside of Nassau County. Copyright © 2023 Richner Communications, Inc. All rights reserved. HERALD
baldwin
Attorney advertising
ELDER LAW ESTATE PLANNING SINCE 1991 trustlaw.com
Trusts & Estates • Wills & Probate • Medicaid FREE CONSULTATION: 516-327-8880 x117 or email info@trustlaw.com
Visit us at trustlaw.com to learn more or search Ettinger Law on YouTube for our elder law estate planning videos 1207645
Attorney advertising
Visit us at trustlaw.com to learn more or search Ettinger Law on YouTube for our elder law estate planning videos

Molloy University helps young students read

Molloy University launched their spring enrichment program focused on increasing English literacy for more than 80 young Baldwin school children on March 4.

Children in the Baldwin School District — pre-kindergarten to sixth grade — are participating in Molloy University’s spring enrichment program — several Zoom-based educational sessions aimed at developing literary and social emotional skills in young students.

The university said they aim to foster a love of literacy throughout four sessions held on Saturday mornings beginning on March 4.

The university’s spring enrichment program is a free and has one more session on April 1 at 9:15-10:15 a.m.

The university said students from preschool through grade 3 are reading “The Day the Crayons Quit” a book by Drew Daywalt, and students from fourth grade through sixth are reading “The Crossover,” by Kwame Alexander — Packets with all materials needed to participate in the program are delivered participating children’s classroom and sent home in their backpacks.

AUDRA CERRUTO Molloy University associate professor and director of graduate and postmaster’s education programs

The student packets are generously funded by a grant from the Mother Cabrini Health Foundation through the university. Registration was conducted through an electronic form was available through the Baldwin School District’s several principals.

For more information, email Audra Cerruto acerruto@molloy..edu.

MOLLOY UNIVERSITY EDUCATION students Amanda Oppedicano, Kiarra Roth, and Julia DiBiase assemble enrichment packets for young Baldwin school students enrolled in the Spring enrichment program, sponsored by the university in partnership with the Baldwin School District.

Courtesy Metro
There is no responsibility on the parent’s part to purchase any materials. The university provides all pencils,
crayons,
workbooks, and novels.
5 BALDWIN HERALD — March 23, 2023 1. Offer subject to change at any time. Early withdrawal penalties apply. Fees could reduce earnings. Bonus offer not applicable to special promotion CDs. Visit ridgewoodbank.com/ home/personal/retirement for all product terms and conditions © 2023 Ridgewood Savings Bank | Member FDIC RATE & A HALF THAT’S A ON ANY IRA CD1 Lock in a special 0.50% interest rate bonus on top of our current rate.1 CHOOSE YOUR TERM & WE’LL RAISE YOUR RATE AN EXTRA 0.50% Roll over your 401(k) to take advantage of this great offer! Visit ridgewoodbank.com or scan here to see rates and open online. GET A 1201798

D’Esposito heads for the border to learn

It was his second trip to the border that separates the United States from Mexico, yet U.S. Rep. Anthony D’Esposito still finds himself discovering something new.

He got a firsthand look at the border situation near El Paso, Texas, before he was elected to Congress. And now D’Esposito has returned — this time with several of his House Committee on Homeland Security colleagues.

D’Esposito’s take away? The scene is worse than before.

More than 200,000 people are trying to cross the border each month, according to a January report by Pew Research Center — numbers that haven’t been this high since the turn of the century. While D’Esposito believes people should have the opportunity to come to America, they still must “come through the front door” —legally.

And for him, that means more funding for border patrol agents and the resources he says they need to keep the country’s borders safe.

“Our border patrol agents are doing the best that they can with the resources that they have,” D’Esposito said. “But the Biden administration is failing to implement the laws or allow them to implement the laws that are in place.”

John Modlin, chief patrol agent for the Tucson sector with U.S. Customs and Border Protection, told a House committee last month that Border Patrol has just 19,300 people, where it actually needs 22,000. Biden said his federal budget package would grow the ranks to 23,000, according to Government Executive.

At the border, D’Esposito described a car rolling into the entrance to El Paso where border agents seized a significant amount of illegal narcotics. While in a helicopter overhead, D’Esposito watched several migrants attempt to scale border security structures.

The congressman spoke to those who live and work near the border — educators, business owners, farmers and ranchers — and says he heard about how what’s happening at the border is having a negative impact on their daily lives.

“You really can’t get an understanding of what’s going on there until you see it with your own eyes,” D’Esposito said.

Next month, D’Esposito’s House committee plans to roll out a border bill he says will focus on better physical protection of the border, funding for border patrol agents, as well as mental health resources.

“Across the nation we’ve seen one of the largest increases in law enforcement suicide, and that’s the effects of the job,” said D’Esposito, a former New York Police Department detective. “We need to do better to provide them with the resources that they need so we can keep our men and women in blue safe and healthy.”

Biden’s budget plan maps out nearly $25 billion for U.S. Customs and Border Protection as well as Immigration and Customs Enforcement — up roughly $800 million. Those funds, according to the White House, would hire an additional 350 border patrol agents while also investing in border security technology, combatting fentanyl trafficking, and hire hundreds more support staff members.

Biden is reportedly considering bringing back migrant family detention centers for asylum seekers who attempt to cross into the U.S. illegally — a controversial policy left over from the Trump administration he ended shortly after taking office.

“The ideas are great, and perhaps even their intention is well received,” D’Esposito said. “But if we don’t have the resources — if we don’t have the personnel to make sure that that those issues are taken care of at the border — then none of it matters.”

Much closer to home, D’Esposito joined several of his Republican colleagues to introduce a pair of legislative proposals aimed to prevent House members convicted of financial or campaign fraud from profiting off such federal violations and fabrications.

If passed, the No Fame for Fraud resolution would change rules governing the House, intending to ensure current members indicted for violations of the Federal Election Act of 1971 or any other offenses — which would cause them to lose their congressional pension — cannot financially profit off their story.

The second part of the package is the No Fortune for Fraud Act, intended to guarantee any current or former House members found guilty of violating the Federal Election Act of 1971 or other laws cannot make money off their story and will lose their pension.

These profits include compensation for biographies, media appearances or other creative works.

D’Esposito said it is “no secret” these proposals were inspired by his Nassau County colleague, the embattled U.S. Rep. George Santos, and some of the ongoing investigations centering around a number of aspects of his campaign and office, including fundraising.

Even with that direct connection, Santos still reached out hoping to co-sponsor the bills, D’Esposito confirmed.

“It is absolutely ridiculous,” the congressman said of Santos. “He loves the spotlight. He loves to be part of the news cycle. Whatever it is that George Santos intends to do, or other members of Congress on either side of the aisle, they will not be able to financially benefit from duping the American people.”

Santos has announced plans to run for re-election in 2024 — something D’Esposito says he will join Nassau County Republicans and its chair, Joe Cairo, to make sure it’s a run that does not succeed.

U.S. Rep. ANThONy

D’Esposito got a bird’s eye view of the border between the United States and Mexico border during a recent trip to El Paso, Texas. During the helicopter ride, the freshman congressman says he witnessed several migrants trying to scale border security structures. D’Esposito has stressed the need for better border protections, and more funding for border patrol agents.

March 23, 2023 — BALDWIN HERALD 6
Tim Baker/Herald Courtesy U.S. Rep. Anthony D’Esposito
y ou really can’t get an understanding of what’s going on there until you see it with your own eyes.
ANThONy D’eSpOSiTO U.S. Representative

PRESENTS

FIGHTING AGAINST FRAUD: Learn the 411 on Recognizing a Scam

Help protect yourself from fraud and scams! This FREE webinar series will cover identity theft, elder fraud abuse and how to recognize the warning signs. Representatives from AARP Long Island and United States Postal Inspectors will also provide information about scams targeting people age 50-plus and their families, tactics fraudsters use, and resources available to help prevent fraud.

Advance registration is required.

THURSDAY, APRIL 13, 2023

12-1PM

IDENTITY THEFT:

Each year thousands of Americans fall victim to Identity (ID) Theft. Consumers reported losing nearly $8.8 Billion to scams in 2022. This webinar will focus on:

• Understanding Personal Identifiable Information (PII)

• Scams that target your PII

• Tips to safeguard your identity

REGISTER at www.LIHERALD.com/identity

THURSDAY, APRIL 20, 2023

12-1PM

ELDER FRAUD ABUSE:

Con artists don’t really care about your age or your needs. Their only goal is to separate you from your hard-earned money. Learn how to recognize scams. We’ll cover:

• Grandparent or Relative in Need scams

• Lottery and Sweepstakes Scams

• Investment Scams

REGISTER at www.LIHERALD.com/elder

FREE AARP LONG ISLAND IN-PERSON SHREDDING EVENTS

Shred your personal and financial documents at a location near you. Register and reserve your spot for a FREE drive-through contactless shredding event. (Limit 3 bags per car)

SATURDAY APRIL 22, 2023

10AM-1PM • IN-PERSON

LOCATION:

Nassau Community College

One Education Drive • Garden City, NY (Entrance to parking lot at Miller Place)

REGISTER at https://bit.ly/ShredGardenCity

SATURDAY MAY 6, 2023

• IN-PERSON

LOCATION: Michael J Tully Park 1801 Evergreen Avenue • New Hyde Park, NY

REGISTER at https://bit.ly/ShredNewHydePark

SATURDAY MAY 20, 2023

LOCATION: Farmingdale Library 116 Merritts Road • Farmingdale, NY

REGISTER at https://bit.ly/ShredFarmingdale

7 HERALD — March 23, 2023
HOST
For more information regarding this program, contact Rachel Leoutsakos at rleoutsakos@liherald.com or 516.569.4000 x242
Michael Hinman Executive Editor Herald Community Newspapers SPEAKERS Michael V. Del Giudice Postal Inspector Team Leader New York Division
MAKE THE LIVE WEBINAR? YOU CAN STILL REGISTER AND YOU’LL RECEIVE THE RECORDING
SPONSORED BY:
Bernard Macias Associate State DirectorLong Island AARP New York
CAN’T
BY EMAIL! FREE 2-PART WEBINAR SERIES
Donna Harris Public Information Representative United States Postal Inspection Service Headquarters
9AM-12PM
10AM-12PM
• IN-PERSON
1209363

Jewish War Veterans celebrate 127 years

Nation’s longest-running veterans organization wants more members

It’s been 127 years since a small group of Jewish Civil War veterans got together to discuss antisemitism and the lack of Jewish servicemen in the military.

That was 1896. Today, the Jewish War Veterans of the United States of America is still going as the longest-running veterans organization in the country. And it brought together members of Jewish War Veterans Post 652 — which includes members from all across Nassau County — to get back to basics and talk about hate.

“Their singular purpose was to show the world that, despite words of the contrary, Jews have always been part of the fabric of the United States of America since its inception,” said Gary Glick, commander of the Jewish War Veterans Department of New York. “We were hopeful following World War II and the defeat of Nazi Germany would be the end of antisemitism and hate for some time. But it continues to raise its ugly head quite often, and we are presently witnessing another period of this vital phenomenon, even in our own country.”

Members gathered at Central Synagogue–Beth Emeth in Rockville Centre last week to not only celebrate, but also to reflect. Hatred appears to be at its highest levels since World War II — something even Nelson Mellitz, the national commander of the Jewish War Veterans, told a joint session of Congress earlier this month, explaining that the level of discrimination is the worst it has ever been in his lifetime.

“We will defend the rights of everybody in the United States, and we will continue to do so,” Mellitz said. “As antisemitism continues to grow in the United States, the JWV asks you, congress members, to specifically help defend our country’s freedoms, and go forward and fight antisemitism and all forms of hate and bigotry, wherever it exists.”

Even today, however, Jews make up a small fraction of the military. A 2009 survey from the Military Leadership Diversity Commission revealed just 1 percent of soldiers identified as Jewish, compared to 2 percent in the general population.

During World War I, the Jewish War Veterans established the Jewish chaplaincy in the military, and fought to include the Star of David on the graves of Jewish soldiers.

Prior to the start of World War II, the group also helped lead a protest march and boycott of Nazi Germany and its goods, and would campaign for the 1938 Foreign Agents Registration Act, which led to several Nazi leaders in America being deported.

The organization continued its efforts long after the wars were over, too. It campaigned to include religious and racial protections in the GI Bill, stood against the Ku Klux Klan and the John Birch Society during the Cold War era, and even established a National Museum of Jewish Military History.

At the local level, it advocates for fellow veterans and help get them benefits they often were unaware they were eligible for. Following the coronavirus pandemic, several veterans had become more isolated, during which time Glick and others worked to connect with them and help get them the care they needed.

Yet, despite the organization’s stoic history, the Nassau County chapter has seen a steady drop in membership in more recent years. It’s primarily from a failed attempts to publicize the group’s existence, Glick says, fearing this could spell the end of the Jewish War Veterans unless someone takes action.

“Complacency will get absolutely nothing accomplished,” Glick said. “If you want to be the last of the

Why Beth Emeth?

The Jewish War Veterans celebrated its 127th anniversary at Central Synagogue-Beth Emeth in Rockville Centre last week — the very same temple where Rabbi Roland Gittelsohn served for 25 years.

Gittelsohn, who served during World War II, was tasked by his supervising chaplain with providing the eulogy as soldiers buried the dead following the Battle of Iwo Jima in 1945, where nearly 7,000 Americans were killed, and another 20,000 wounded.

JWV, sit back and enjoy your bagels and lox and we will drift into sunset unnoticed. We need to work together to be successful, and I’m hopeful to see some positive movement in this direction.”

ERIc SpINNER, cOmmANDER of Jewish War Veterans Post 652, discusses the importance of 127 years for the national organization as well as the recent anniversary of Iwo Jima, one of the turning points of World War II’s Pacific conflict.

GARy GLIck, cOmmANDER of the Department of New York Jewish War Veterans, delivers his message about the organization’s 127-year history combating hate regarding Jews in the military. He also spoke about the uncertainty of the group’s future in the face of rising antisemitism.

Eric Spinner, commander of Jewish War Veterans

Post 652 in Bellmore — and member of American Legion Post 1033 in Elmont — said that as many veterans get older, the number of people joining the post have gotten smaller. Currently, the Nassau organization boasts nearly 120 members, which has steadily declined over recent years.

“I didn’t know about it until two years ago,” Spinner said. “That’s when I joined.”

Spinner hopes by informing more people about the Jewish War Veterans and what it does to help provide services and recover medals for all veterans, that more people will be inclined to join their group.

“We welcome new Jewish veterans to our ranks,” Spinner said, “and we welcome patrons, too, who are not veterans, but who support our goals and aims.”

The post also welcomes anyone from the community willing to donate to help fund its cause.

To learn more about the organization, its history, and ways you can help, visit We-Are-Vets.us.

And for more information on the national group, visit JWV.org.

March 23, 2023 — HERALD 8
Daniel Offner/Herald photos JOE ScAROLA, cOmmANDER of the Nassau County American Legion and a member of Legion Post 303 in Rockville Centre, was welcomed to celebrate the organization’s 127th anniversary along with longstanding members of the Jewish War Veterans.

the Toyota.

Auto accident results in arrest

Tyshawn Cullum, 26, was arrested and charged with obstructing governmental administration, for his alleged involvement in a three-way car crash on March 15.

The police department’s First Squad said they a set up a “vehicle and traffic Law” stop at the intersection of West Marshall Street and Virginia Avenue on March 15 when a grey 2015 Toyota arrived allegedly blew past the stop, fleeing the scene.

According to detectives, they lost sight of the vehicle and began to canvass the area as they searched for the car. Detectives said a short time later they discovered a two-car accident at the intersection

of Grand and Woodside Avenue, in Baldwin, which involved the grey 2015 Toyota and another vehicle.

Police said the driver and passengers in the Toyota fled from the site of the accident on foot, however, one of the car’s occupants, Tyshawn Cullum, was arrested near the scene. Detectives said the second occupant was not apprehended, and one person suffered a minor injury in the accident.

Tyshawn Cullum, of Uniondale, was charged with obstructing governmental administration and was released on an appearance ticket.

— Andre Silva Courtesy John Scalesi
9 BALDWIN HERALD — March 23, 2023 ATM MOTORCYCLE And T RA i LER in SPECT i O n S Body Work • Detailing Window Tinting • Auto Glass Painted Pin Striping REPAIR SHOP OPEN 6 DAYS (Monday-Saturday) 8:00AM to 5:20PM COMPLETE LINE OF AUTOMOTIVE REPAIRS FOREIGN & DOMESTIC MECHANIC BAYS 7 7 Gas and Snack Shop Open 24 Hrs - 7 Days WE HAVE ALL your WEATHE r r ELATED NEEDS. 10% Senior Discounts (Excludes tires. Not to be combined.) 1209404 • F r ESH B r EWED C o FFEE • ICE • So DA • B EE r • WIDE VA r IET y o F r EF r ESHMENTS Labor only. Filter and Fluid Additional. With Coupon. Expires 3/31/23 transmission system fluid flush Originally $149.95 $ 49 95 now 3 Part fuel inJeCtion serViCe With Coupon. Expires 3/31/23 Originally $174.90 $ 119 now All cars foreign and domestic LABOR only. Parts additional. With Coupon. Expires 3/31/23 4 wheel dis brake sPeCial • install front or rear disC Pads • insPeCt brake lines, master Cylinder and brake fluids $ 59 95 C AR C ARE CE n TE R , LT d. ANTO N’S PRE-SPRING SPECIALS a NY OI l CH a NG e •Replace oil filteR •plus 9 pt. caR check $10 OFF ® Oil Change Exp.3/31/23 345 Sunrise Hwy. • Rockville Centre • 678-2064 12 oz Coffee and a Buttered Roll $ 299 Bud or Bud Light 18 pack cans W/Coupon Exp. 3/31/23 Exp. 3/31/23 Firewood throughout this PandemiC this will sanitize the air you are breathing in when your aC is on Cabin air filter rePlaCement sPeCial Filter & Installation included in most cars. Some cars additional. With Coupon Expires 3/31/23 $ 49 95 breathe CLeaN air now $1 off 50¢ off WE WILL MEET OR BEAT ANY ADVERTISED PRICE OR WRITTEN STATEMENT! Breathe Easy at South Shore Rehab Specializing in Vent Care, Trach and any Respiratory needs. Brand new renovated facility. 24 hr Respiratory Therapists “Saving One Life at a Time” We Have Successfully Decannulated 40+ Covid Survivors. Every Life Matters! 275 WEST MERRICK ROAD • FREEPORT, NY 11520 516-623-4000 • ventcarelongisland.com 1209145 WINNER REHABILITATION CENTER WINNER NuRSINg HOME
NASSAU COUNTY POLICE came across a two-car accident at the intersection of Grand and Woodside Avenue, in Baldwin, which involved the grey 2015 Toyota and another vehicle, resulting in the arrest of one of the passengers in

Beckham, Lloyd share soccer skills in Nassau

They flocked from all over Long Island to learn from one of soccer’s greatest — Carli Lloyd. But the 400 or so young athletes who gathered at the Mitchell Athletic Complex in Uniondale earlier this month got an added bonus, with a chance to bend it like David Beckham — with David Beckham.

The two soccer stars paid the weekend visit to talk about teamwork, sportsmanship and fitness. And, of course, to show a few moves to the kids, who ranged in age between 9 and 12.

Afterward, they broke into two sessions led by Lloyd and Beckham, teaching some soccer fundamentals and techniques, before posing for pictures with players and teams.

The visit was part of Sands Cares and its Sands Youth Empowerment Initiative — an organization active in communities where facilities owned by the Las Vegas Sands are situated.

The Sands is pursuing a massive redevelopment project at the nearby Nassau Coliseum, where it hopes to transform 80 vacant acres into an entertainment complex. It would include a hotel, restaurants, convention space and performance venues, as well as a casino.

Lloyd is a four-time Olympian, winning gold medals in 2008 and 2012. She has also won two FIFA Women’s World Cups in 2015 and 2019. She retired from the national team in 2021, but not before becoming the oldest player to score a goal for the United States in a 4-0 victory over Jamaica — a month shy of her 39th birthday.

Beckham was a soccer prodigy beginning as a teenager when he played for Manchester United who also appeared in three FIFA World Cups, and was known to be one of soccer’s best-paid players during his career.

Although retired as a player, Beckham is co-owner of Inter Miami CF, which competes in the Major Soccer League.

one might Say David Beckham has learned everything there is to learn about soccer over a long, storied career — but then again, he hasn’t had a chance to interact with some of the future soccer stars from Long Island.

Soccer StarS DaviD Beckham and Carli Lloyd took plenty of time to pose for pictures with the young soccer players and teams that traveled from across Long Island to see them at the Mitchell Athletic Complex — but the stars also took a moment to pose with some of the adults there, too. That includes Nassau County’s labor relations director Jose Lopez, far left, and Ted Sempepos from County Executive Bruce Blakeman’s office.

March 23, 2023 — BALDWIN HERALD 10
Daniel Tommasino/Herald photos Soccer icon DaviD Beckham snaps a selfie with some of Long Island’s best up-and-coming young soccer players during a surprise visit to the Mitchell Athletic Complex earlier this month, as part of the Sands Youth Power Initiative.

Hofstra looks to conquer CAA rivals

Hofstra University’s men’s lacrosse team learned the hard way a year ago to not leave its postseason fate in the hands of someone else.

After defeating Towson 15-14 on a late goal in the regular season finale, the Pride watched on the bus ride back to Long Island the Delaware-Fairfield game needing a Blue Hens defeat to earn the final spot in the Colonial Athletic Association (CAA) tournament. Delaware ended all hope with a 14-12 win that denied Hofstra a chance to compete for the CAA’s automatic bid into the NCAA Tournament.

“Two years ago we made the CAA tourney on a tie breaking scenario and last year we lost out on a tie breaking criteria, “said longtime Hofstra head coach Seth Tierney, who in 2021 experienced the opposite feeling when Hofstra qualified for the four-team CAA tourney from a Towson 12-11 loss to Drexel in the final weekend of the season. “There is no getting around it that these conference games have more weight to them.”

Hofstra, which was picked to finish fifth in the eight-team CAA, dropped its

league opener 12-11 to Fairfield on Saturday making its remaining seven league games that much more important.

The Pride have been led offensively so far this season by sophomore attackman John Madsen, a Locust Valley High School product, with 16 goals through the first six games. The Pride boast many potential scoring weapons including Rory Jones, Gerard Kane, Griffin Turner, Colton Rudd and Justin Sykes,

The defense brought back experience in senior goalie Mac Gates and long-stick defensive midfielder Corey Kale, who were named to the preseason All-CAA Honorable Mention Team along with Jones. The close-defense features veterans Tom Ford, Tim Hegarty and Danny Ochs. Redshirt freshman defenseman Ryan Kiernan, a Rockville Centre native and Chaminade graduate, is also making strides.

“Ryan Kiernan is a hard worker and his family did a wonderful job bringing him up ,” Tierney said. “His days are certainly bright in the very near future.”

Hofstra will next take the field on Saturday at league newcomer Monmouth before battling Towson in the CAA home opener on April 8 at 3 p.m. The regular season concludes on April 29 under the lights at Shuart Stadium against Long Island rival Stony Brook in the teams’ first meeting since the Seawolves joined the CAA.

Pride loses top scorer to injury

Hofstra’s women’s lacrosse team was hit with some early adversity when top scorer Nikki Mennella suddenly was lost for the year with a knee injury.

The freshman from Smithtown had already struck for 23 goals in six games before getting hurt in the fourth quarter of a 14-11 loss at Army on March 4. Hofstra showed resilience after losing Mennella with a 15-2 romp over Wagner three days later followed by a near upset of 20thranked USC in a 9-8 defeat on March 12.

“All year we have been building a great dynamic and belief system and the team has really bought into it,” Smith said. “We have learned to stay positive.”

With the absence of Mennella, junior Kerry Walser is taking on more of a leadership role on offense. She tallied three

goals and an assist in the USC loss after notching 22 goals in 2022.

Senior Taylor Mennella, the older sister of Nikki, has the most points on the team with 26. The Pride’s boast a number of other scoring threats including senior Katie Kelly, graduate student Rachel Graff, who graduated Columbia last year and Lauren Colletti.

On defense, Hofstra has forced 5 turnovers led by Trinity Reed, Brynn Hepting, Kendall Smith and Kayla Robertson along with graduate student midfielder Kayla Gatti. Freshman goalie Luchianna Cardello has emerged as the starting net-minder after leading Massapequa High School to

back-to-back Nassau County Class A titles.

Hofstra (4-5) opened with a 14-6 win against Long Island University and 11-8 at then 25th-ranked Vanderbilt before dropping four straight. The Pride opened CAA play with a 13-12 loss at William & Mary with a late comeback falling just short and will host Towson in their conference home opener this Saturday at noon. The CAA schedule closes on April 28 at league newcomer and national power Stony Brook.

“It’s a new season,” said Smith of the CAA schedule, where the top four teams make the conference playoffs. “We have to treat every game like it’s our last.”

Bringing local sports home every week Herald sports
Photos Courtesy Hofstra Athletics Communications LOCust VALLEy NAtiVE John Madsen, right, is off to a hot start for the Pride with 16 goals in six games.
11 BALDWIN HERALD — March 23, 2023 516.536.2800 | orlincohen.com
attacked? We’ve Got Specialists For That ® OC1085_RM_Herald_10.25x2.5_StripAd_Lacrosse_v1.indd 1 3/28/22 9:39 PM 1209120
JuNiOR KERRy WALsER scored 22 goals last season and will be asked to produce at a high level given the absence of Nikki Mennella.
Back

Spring 2023 Flushing Notice

Each spring, Liberty flushes the pipes in our water distribution system. This is an essential part of our system maintenance program, which helps us to clean out any mineral deposits and sediment inside the pipes. When crews are in the area, customers may experience a drop in water pressure or discolored water. If this happens, let your water run until it is clear. Customers are encouraged to check for discolored water before using the washing machine or dishwasher.

Flushing will be conducted Monday - Friday, 8 am to 4 pm. Any changes due to weather will be posted on our website at www.libertyenergyandwater.com.

Town Start DateEnd Date

Atlantic Beach4/17/20234/21/2023

Baldwin 3/27/20233/31/2023

Bay Park 5/15/20235/19/2023

Bellmore 5/1/20235/5/2023

Cedarhurst5/1/20235/5/2023

East Atlantic Beach4/17/20234/21/2023

East Rockaway5/15/20235/19/2023

Glen Head 5/1/20235/5/2023

Glenwood Landing5/8/20235/12/2023

Hewlett 4/24/20234/28/2023

Hewlett Bay Park4/24/20234/28/2023

Hewlett Harbor4/24/20234/28/2023

Hewlett Neck4/24/20234/28/2023

Inwood 4/17/20234/21/2023

Island Park5/22/20235/26/2023

Lakeview 5/8/20235/12/2023

Lawrence 4/17/20234/21/2023

Levittown 5/8/20235/12/2023

Lynbrook 5/1/20235/5/2023

Malverne 5/15/20235/19/2023

Massapequa5/22/20235/26/2023

Meadowmere 4/17/20234/21/2023

North Bellmore4/24/20234/28/2023

North Merrick3/27/20233/31/2023

North Seaford5/8/20235/12/2023

North Wantagh5/8/20235/12/2023

North Woodmere5/1/20235/5/2023

Oceanside 4/24/20234/28/2023

Roosevelt 3/27/20233/31/2023

Roslyn Harbor5/15/20235/19/2023

Sea Cliff 5/15/20235/19/2023

Seaford/South Seaford5/15/20235/19/2023

South Bellmore5/1/20235/5/2023

South Hempstead5/8/20235/12/2023

South Merrick4/17/20234/21/2023

South Wantagh5/15/20235/19/2023

Valley Stream5/22/20235/26/2023

Wantagh 5/15/20235/19/2023

West Hempstead5/8/20235/12/2023

Woodmere 5/1/20235/5/2023

Woodsburgh 5/1/20235/5/2023

2022 Annual Water Quality Reports

Learn about the quality of your water.

Each year, Liberty provides its customers with an Annual Water Quality Report to let them know how our water quality stacks up against federal and state drinking water standards. If you are a customer of ours, we encourage you to review this report as it provides details about the source and quality of the drinking water delivered to you in 2022.

View your water quality report online today!

In an effort to be more environmentally responsible, we no longer print our water quality reports. Instead, we have made them available on our website. To view your report online, visit our website at www.libertyenergyandwater.com.

website, BaldwinPL.org, include a redesign of the Children’s Room to enlarge the play area and allow more sunlight into the room, a dedicated Baldwin history room, a larger arts and crafts room, and more.

Library plans renovation of first and second floors

CONTINUED FROM FRONT PAGE

sign of the children’s room to enlarge the play area and allow more sunlight into the room, a dedicated Baldwin history room, a larger arts and crafts room, a larger teen zone, a community room on the second floor as well as several individual and small group rooms for studying or remote work.

The library also plans to create a maker space with a 3D printer and other technology, a podcast and video room, a gaming room, more comfortable seating throughout the building and a new HVAC system to replace one that Olesh said “is at the end of its life.”

“So much has changed in the past two decades in the way people use libraries,” she said. “Every day we receive more requests for meeting spaces that we can accommodate from community groups in Baldwin. Its time Baldwin gets to the standards of other libraries today.”

The board initially announced its intention to offer a referendum on the redesign of a 7,900-square-foot undeveloped room on the library’s second floor at a special meeting on Oct. 3. Since then, library officials have offered an online survey, sent out newsletters, and hosted discussions at organizational meetings including the Chamber of Commerce to help them better understand what residents want from the library.

At a board meeting on Feb. 7, Olesh said the library had partnered with H2M Architects + Engineers, in Melville, to create preliminary designs for the first and second floors, which were featured in a presentation. These plans differed significantly from the initial focus on the second floor, and now reflect a complete overhaul and redesign of the facility. For more information and details on the referendum, email bond@baldwinpl. org.

Illustrations courtesy Baldwin Public Library THE BALDWIN PUBLIC Library announced plans to hold a public referendum on a redesign and renovation of the facility’s first and second floors, at a cost of $11.6 million.
March 23, 2023 — BALDWIN HERALD 12
THE LIBRARY’S PLANS, which can be viewed on its
DateEnd Date Merrick 4/17/20234/21/2023 Mill Neck 4/25/20234/25/2023
Town Start
1208945

STEPPING OUT

Matzah Balls

• 2 tablespoons chicken fat or vegetable oil

• 1/2 cup seltzer

• 2 teaspoons grated onion

• 2 teaspoons parsley (optional)

holiday table

Those festive traditions make return

Welcome the flavors of spring and bring some sunshine to your table.

• 1/2 teaspoon salt

• Pinch white pepper

• 1 cup matzah meal

• 4 jumbo eggs

Mix the eggs well. Add the fat or oil, seltzer, herbs, spices, onion, and matzah meal. Mix thoroughly. Cover and chill for several hours, even overnight.

Bring a large pot of salted water to a boil. Dip your hands in cold water and make about 12 matzah balls. Drop

An Evening of Entertainment

Broadway leading man Brian Stokes Mitchell headlines Molloy University’s An Evening of Entertainment gala, joined by Seth Rudetsky and the South Shore Symphony Orchestra. The two-time Tony Award winner has enjoyed a career that spans Broadway, television, film, and concert appearances with the country’s finest conductors and orchestras. He received Tony, Drama Desk, and Outer Critics Circle awards for his star turn in ‘Kiss Me, Kate,’ He also gave Tony-nominated performances in ‘Man of La Mancha,’ August Wilson’s ‘King Hedley II’ and ‘Ragtime,’ among his star turns in other notable Broadway shows. His talents extend to producer, arranger and orchestrator on his three solo albums, besides contributing to more than 20 albums. A versatile and in-demand singer, his concerts always captivate his audiences.

Friday, March 31, 8 p.m. $50-$175. Madison Theatre, Molloy University campus, 1000 Hempstead Ave., Rockville Centre. (516) 323-4444 or MadisonTheatreNY.org.

Bird’s Nest Chocolate Cupcakes

• 24 pastel-colored paper baking cups

• 1 1/2 cups cake flour

• 1 1/2 cups sugar

• 3/4 cup Dutch process cocoa powder

• 1 1/2 teaspoons baking soda

• 1 1/2 sticks (12 tablespoons) butter, room temperature

• 3/4 cup buttermilk

• 2 large eggs

• 2/3 cup freshly brewed coffee, cooled to room temperature

• Chocolate Pudding Frosting, recipe follows

• Pastel-colored candy-coated chocolate pieces

• Chocolate decorating decors

Preheat the oven to 350 F. Line two 12-cup muffin pans with cupcake liners and set aside.

Classic Chicken Soup with Matzah Balls

• 6 quarts of water

• 1 whole chicken + extra package of wings (optional)

• 2-3 large carrots, chopped

• 3 ribs of celery, chopped

• 1 onion, cut in half

• 1 medium turnip or 2 small turnips, chopped

• 2 parsnips, chopped

• 1 bunch of dill

• 1 bunch of flat leaf parsley

• 1/2 tablespoon whole peppercorns

• Few sprigs of thyme

• Salt and pepper to taste

• 1/2 teaspoon turmeric for color (optional)

Place chicken and vegetables in a 16 or 20 quart pot and cover with 6 quarts of water.

Make a bouquet garni with the fresh dill, parsley, peppercorns and thyme. Add bouquet garni to pot.

Bring pot to boil and let simmer for 1 hour. Skim the foamy stuff off the top several times while soup is cooking.

Remove chicken and veggies from pot. Allow soup to simmer additional hour with the cover on.

Shred chicken while still warm. Save about half to put into the soup, use the rest for chicken salad or sandwiches.

Allow soup to cool, and place in fridge. Skim any remaining fat off the top.

Reheat to serve. Add chicken, matzah balls and desired vegetables.

Sift together the flour, sugar, cocoa powder and baking soda and add to the bowl of a stand mixer. Add the butter, buttermilk and eggs and beat on low until moistened. Raise the speed to medium and beat until light and fluffy, 2 to 3 minutes.

Add the coffee and beat until fully incorporated. Divide the batter evenly among the muffin cups, filling each about 3/4 full. Bake until a toothpick inserted into the center of a cupcake comes out clean, 22 to 25 minutes. Transfer the pans to wire racks and allow the cupcakes to cool completely.

Remove the cupcakes from the muffin pans and spread each with frosting, setting aside 1/2-cup of frosting. Place 3 candy-coated chocolate pieces on center of each to resemble eggs.

In small re-sealable food-storage plastic bag (or piping bag), place remaining 1/2-cup frosting; seal bag. Cut small hole in one bottom corner of bag; pipe frosting around chocolate pieces to create ridge on each cupcake.

Carefully spoon chocolate decors onto frosting ridge and around chocolate pieces to resemble nest.

Chocolate Pudding Frosting:

• 1 pint heavy whipping cream, very cold

• 1/4 cup sugar

• 1 teaspoon vanilla extract

• One 3.9-ounce box dry pudding mix, chocolate fudge flavor

In a stand mixer fitted with a whip attachment, whip the cream at high speed until light and fluffy, about 3 minutes. Add the sugar, vanilla extract and pudding mix and whip until smooth.

The Brubeck Brothers

Jazz giant Dave Brubeck’s sons celebrate their dad’s life and career, with their sentimental multimedia tribute ‘The Brubeck Brothers Quartet Celebrates Dave Brubeck’s Centennial.’ To honor Brubeck’s legacy, Chris and Dan Brubeck, who performed and recorded with their father since the 1970s, curate this memorable concert with their own Brubeck Brothers Quartet. With the brothers as the foundation, guitarist Mike DeMicco and pianist Chuck Lamb complete this dynamic quartet. Through stories told by his sons and music performed by the quartet, the show invites audiences to travel along the timeline of Brubeck’s extraordinary life and career. Their creativity, technique and improvisation can be heard in their uncompromising music, which reflects their dedication to melody, rhythm, culture and the spontaneous spirit of jazz.

Thursday, April 13, 7:30 p.m. $52. Tilles Center for the Performing Arts, LIU Post campus, 720 Northern Blvd., Brookville. Tickets available at TillesCenter.org or (516) 299-3100.

13 BALDWIN HERALD — March 23, 2023
As we eagerly step forward into spring, Passover and Easter beckon. It’s a moment to cherish age-old traditions and create new ones with family and friends, as we greet the season.

THE SCENE

March 26

Best of Broadway

Adelphi performing arts students perform their semiannual Broadway revuew, on Adelphi University Performing Arts Center stage, Sunday, March 26, 4 p.m. Under the direction of KT Thomas and Steven Altinel, this contemporary-themed show will highlight hits from pop/ rock shows, including”Rent,”

March 30

The Manhattan Transfer

The 10-time Grammy winning vocal group celebrates their 50th anniversary, performing at The Space, Thursday, March 30, 8 p.m. The group looks back on a career that has spanned genres from pop to jazz to rock and roll and more, in this special evening that highlights their long and dazzling career with their signature pitch-perfect vocals and impeccable style. Tickets are $65-$175; available at Ticketmaster.com or TheSpaceAtWestbury.com. The Space, 250 Post Ave. Westbury.

Baby Start

Paula Poundstone

The nimble, witty comedian visits the Landmark stage, Saturday, April 15, 8 p.m. Paula Poundstone is known for her smart, observational humor and a spontaneous wit that has become the stuff of legend. Appearing on stage with a stool, a microphone, and a can of Diet Pepsi, Poundstone’s legendary material keeps her audience thoroughly entertained this fast-paced evening of standup. Her ability to interact with her audience has been hailed for years, and there’s no slowing Poundstone down as she continues to rip riotous laughter for all who witness her talent. $60, $53, $43. Jeanne Rimsky Theater at Landmark on Main Street, 232 Main St., Port Washington. (516) 767-6444 or LandmarkOnMainStreet.org.

April 15

“We Will Rock You,” “School of Rock,” to songs from contemporary classics like “Wicked,” “Mamma Mia,” “The Prom” and “Next to Normal.” Students perform large group numbers as well as individual solos. Tickets start at $30, with discounts available to seniors, students, Adelphi alumni and employees. Adelphi University Performing Arts Center, 1 South Ave., Garden City. (516) 877-4000 or Adelphi. edu/pac.

Receptionist

Baldwin Public Library invites young children and parents to learn how to best care for a baby within the first 18 months, with a presentation by “A Time For Kids,” Wednesday, March 29, starting at 11 a.m. The program teaches how to promote early literacy, language development, and socialization, in the community room, 2385 Grand Ave. To register, visit BaldwinPL.org.

Needed for Publisher and Self-Storage Facility located in Garden City.

The ideal candidate should have excellent communications and customer service skills, be professional, dependable and have reliable transportation. Candidate should have computer knowledge and working knowledge of MS Office.

Candidate MUST be reliable, punctual and be able to work a CONSISTENT schedule:

• Monday and Wednesday 8am to 4pm

• Tuesday and Thursday 8am to 6pm

• Friday 8am to 5pm

Responsibilities include, but not limited to: Answering phones, greeting customers, assisting new customers by showing storage facility options and pricing, collecting payments from customers, contacting customers for late payments, applying payments, updating the customer files/data base and other administrative responsibilities on an as needed basis. $15-$18/hour plus benefits!

For immediate consideration, please send cover letter and resume to careers@liherald.com

Your Neighborhood
March 23, 2023 — BALDWIN HERALD 14 1205988 20 8106
Headquarters Featuring Karl Ehmer Products Open Monday - Friday, 9AM - 3PM Bosco Family Foods 507 Brown Court, Oceanside, NY 11572 Call 516-764-3663 To Place Your Order Or Order On-Line At www.karlehmer.com Parking inside parking lot, go to grey doors for service. $5 OFF $50.00 With Coupon. res 5/31/23 MONEY SAVING CASH & CARRY GO GERMAN TONIGHT! We Ship Direct To Your Friends & Family Go To www.karlehmer.com To Place Your Order With Coupon In Oceanside Store Only. Expires 5/31/23 1209240
BBQ
COMMUNICATIONS RICHNER
HELP WANTED

Breastfeeding Support Group

Mercy Hospital offers a peer to peer meeting for breastfeeding support and resources, facilitated by a certified breastfeeding counselor, every Thursday, 10:30 a.m.–11:30 a.m. Bring your baby (from newborn to 1 year) to the informal group setting. All new moms are welcome, regardless of delivering hospital. Registration required. Call breastfeeding counselor, Gabriella Gennaro, at (516) 705-2434 to secure you and your baby’s spot. Mercy Hospital, St. Anne’s Building, 1000 North Village Ave., Rockville Centre. For information visit CHSLI.org.

Autism Walk

Tai Chi classes

Join Tai Chi classes at Bethlehem Lutheran Church, Mondays, at 11 a.m., Wednesdays, at 7 p.m., and Saturdays 9 a.m. A small donation is optional to attend. 1375 Grand Ave., Baldwin. Any questions, email forevertaichi4you@gmail.com.

Day trip to the Catskills

SoHappy2Bfit, a member of the Baldwin Chamber of Commerce, invites all on a day trip to Resort World in the Catskills, Wednesday, May 31, 8 a.m. to 8 p.m. To join, mail a check, cash, or Venmo a nonrefundable $50 fee; contact Sheila Clark at (516) 655-7967.

Retro69

The Woodstock tribute band performs, Sunday, March 26, at My Father’s Place supper club. The band “recreates Woodstock,” performing its show in the same order of the original 1969 festival, running from Havens through Hendrix. Doors open at noon, concert is at 2 p.m. $35 in advance, $40 at door. The Metropolitan, 3 Pratt Blvd., Glen Cove. For tickets/information, visit MyFathersPlace.com or call (516) 580-0887.

Bird walk

‘Forever Plaid’

Plaza Theatrical is ready to spring forward with “Forever Plaid,” an affectionate musical homage to the close harmony guy groups that reached the height of their popularity during the ‘50s, Saturday, March 25, 7:30 p.m.; Sunday, March 26, 2:30 p.m.; Thursday, March 30, 2 p.m. The show features such hits as “Three Coins in a Fountain,” “Heart and Soul,” “Catch a Falling Star,” and “Love is A Many Splendored Thing.” It’s performed at Plaza’s stage at the Elmont Library Theatre, 700 Hempstead Tpke., Elmont. $49, $45 seniors. Elmont. For tickets, call (516) 599-6870 or visit PlazaTheatrical.com.

April 22

One Happy Hangout Place holds an Autism Walk, Saturday, April 22,1 p.m., at Baldwin Harbor Park, 3232 Grand Ave. For more information contact (5516) 375-1102.

Having an event?

Sugar and Spice

Sugar and Spice perform “The Women of Soul,” Sunday, March 26, 2 p.m., at Baldwin Public Library. Concert is in the community room, 2385 Grand Ave. No registration is necessary. For more information contact the library at (516) 223-6228.

Items on The Scene page are listed free of charge. The Herald welcomes listings of upcoming events, community meetings and items of public interest. All submissions should include date, time and location of the event, cost, and a contact name and phone number. Submissions can be emailed to thescene@liherald.com.

Join the South Shore Audubon Society on a bird walk, Sunday, March 26, starting at 9 a.m. All are welcome. Walk leaders, other birders and nature enthusiasts are happy to share their knowledge and experience with newcomers. Bring binoculars. Walk will be canceled in case of rain or snow. For more information, visit SSAaudubon.org. To register, text your name and contact information to Joe Landesberg at (516) 467-9498.

Family theater

Everyone’s favorite cat comes to mischievous life in this theatrical adaptation of the Dr. Seuss classic, presented by Plaza Theatrical Productions, Saturday, March 25, 11 a.m. See what goes on during that rainy day when two siblings are home alone with their pet fish while their parents are out of town, and the tall cat wearing a hat appears. Tickets are $15. Visit the Plaza stage at Elmont Public Library Theater, 700 Hempstead Turnpike, Elmont. For information/tickets, go to PlazaTheatrical.com or call (516) 599-6870.

THE SEAWANE CLUB

THE ROCKAWAY HUNTING CLUB

THE ROCKVILLE LINKS CLUB

MONDAY, MAY 15, 2023

SHOTGUN START: 10 AM

Foursomes and sponsorships are still available! To buy tickets online or to donate, visit southnassaulifesaver.org or call 516-377-5360. All proceeds to benefit Mount Sinai South Nassau and the special needs of our cancer patients at the Gertrude & Louis Feil Cancer Center.

15 BALDWIN HERALD — March 23, 2023
March 26
Heath Care on the South Shore –Be a Part of Mount Sinai South Nassau’s Day of Golf
Support Better
3 COURSES
1207683
Andrew Triolo Vice President Facilities, Planning & Development Mount Sinai South Nassau HONOREE Scott A. Kemins Chief of Department City of Long Beach, NY Fire Department COMMUNITY SERVICE AWARD EVENT SPONSOR:

Trailblazing from Greece, to Nebraska, and back again

Very few children know what they want to be when they grow up. But from a young age, Susan Poser knew she wanted a career in law. She was inspired by her father, Norman Stanley Poser, a former professor at Brooklyn Law School, and a former executive vice president of the American Stock Exchange.

“I was very good at arguing,” Poser told the Hofstra University campus newspaper. “I could argue my mother into a corner.”

The 59-year-old grew up in Manhattan and held onto her dream while majoring in ancient Greek and political science at Swarthmore College just outside of Philadelphia, where she graduated with honors in 1985. After that, Poser found herself teaching English at Anatolia College in Greece.

By 1987, Poser was finally ready to begin her career in law, moving to Lincoln, Nebraska, with husband Stephen DiMagno and their infant child. But it wasn’t the start to her career she expected.

‘‘A little part of me thought that this was actually his idea of a bad joke,” Poser said of her husband in the Hofstra Chronicle. “And it was going to surprise me when the plane landed in Cancún.”

But no, it really was Nebraska. DiMagno had picked up his first job as an assistant chemistry professor at the University of Nebraska while Poser had hoped to finish her juris doctorate from what is now Berkeley Law School at the University of California.

“This was a New Yorker moving out to Nebraska with an unwritten dissertation and a 3-week-old baby and no real job,” Poser said.

“Only love would have made anyone do that kind of thing.”

But it all came together, and Poser began working at

the University of Nebraska-Lincoln in 1994, as a visiting assistant professor of law. She was appointed by the Nebraska State Bar Association in 2003 to review policies

becoming a full professor of law in 2008. Two years later, she was the dean of the University of Nebraska College

Poser wasn’t expecting to find herself moving up into the school’s administration, but that changed one day in 2006 when she opened a university-wide email by chance. It was the chancellor, Harvey Perlman, looking for a new

This became the perfect opportunity to hone in on her

problem-solving skills. Like the potential environmental hazard to birds caused by the release of thousands of helium-filled balloons in the school’s stadium when the first Nebraska points were scored in a football game.

It was exactly the kind of role Poser never dreamed of, but discovered was perfect for her: leadership, problemsolving, and institution building.

The family moved to Chicago in 2016 where Poser was appointed provost and vice chancellor of academic affairs at the University of Illinois-Chicago. At Illinois, Poser led the acquisition of Chicago’s John Marshall Law School, creating the first and only public attorney school in Chicago. She also played a key role in creating two new cultural centers on campus — one focused on Arab American students, and another on students with disabilities.

Poser is always looking for growth and ways to expand her skills, but she knew she had to keep one thing in mind when expanding her career.

“It’s very important to make sure the work that you’re doing is work that you really want to do, and that you’re not going after jobs for status,” she said

Poser became the ninth president of Hofstra University in 2021 — and its first woman president in its 88-year history.

She never aspired to be a university president, but got to this point by doing what she loves: problem solving.

“You should always be doing the job that you want, and not the job that you have,” Poser said. “You should always try to do a little bit extra, and offer to do work that is not necessarily assigned to you.”

HistoRy MontH WOMEN’S HistoRy MontH WOMEN’S
Courtesy Susan Poser
March 23, 2023 — BALDWIN HERALD 16 Register at ald.com/hearing Join Doctor of Audiology, author, and Certified Dementia Practitioner Dr. Lawrence Cardano, Au.D. This webinar will present important information for you or a loved one having difficulty with hearing clarity or any concerns about risk of dementia Bring your questions when you register as they will be answered LIVE during the webinar! Dr. Lawrence Cardano, Au.D Doctor of Audiology Hearing Center of Long Island For more information, contact Rachel Leoutsakos at rleoutsakos@liherald.com or 516.569.4000 x242 46 Rockaway Ave , Valley Stream NY, 11580 (516) 872-8485 www HearingCenterofLI com THE HEARING CLARITY SOLUTION: Improving your mental acuity and quality of life with better hearing clarity. WEDNESDAY, MAY 3 AT 6:00PM PRESENTS 1209319
SuSAN POSeR wAItS with Hofstra University mascots Kate and Willie Pride before they welcomed new students to campus on move-in day in 2021.

Celebrating school spirit at ‘Sportsnite’

The Baldwin High School celebrated its 90th annual “Sportsweek” — a weeklong school spirit event where students are split into the blue and gold team and compete against each other on March 11.

The Baldwin High School experienced five days of celebration in a series of school-spirit themed events starting on March 6 until March 12. The week kicked off with a preview of the Saturday, March 11event — aptly titled Sportnite — followed by a father-daughter dance on March 7. On March 9, the high school held a banquet for Baldwin school mothers to attend, before ending their week on Friday March 10 with a Tea Dance for Baldwin school couples.

On March 11 the high school gathered in the gymnasium for Sportsnite — a night of competition between the blue and gold teams in a series of events. Each team created a skit, scored by music of their selection, and danced in the bleachers as they made their entrances into the gymnasium. This is followed by a series of four games, which factor into determining the winner of Sportsnite. This year the blue team took first place, and claimed the title of Baldwin Sportsnite winners of 2023.

It’s Your MoneY

OPTIONS FOR TAXPAYERS WHO NEED HELP PAYING

There are two main types of online payment plans:

Short-term payment plan: The payment period is 180 days or less and the total amount owed is less than $100,000 in combined tax, penalties, and interest. There’s no fee for setting one up, though interest and the late-payment penalty continue to accrue.

Long-term payment plan: Payments are monthly, and the amount owed must be less than $50,000 in combined tax, penalties, and interest. If the IRS approves a long-term payment plan, also known as an installment agreement, a setup fee normally applies. Low-income taxpayers may qualify to have the fee waived or reimbursed. In addition, for anyone who filed their return on time, the latepayment penalty rate is reduced while an installment agreement is in effect. The late payment penalty accrues at the rate of 0.25% per month, instead of up to 1 % per month.

Taxpayers who do not qualify for an online payment agreement may still be able to pay in installments. Taxpayers should review the Additional Information on Payment Plans page of IRS.gov for details.

THE BALDWIN HIGH School celebrated its 90th annual ‘Sportsweek’ — a week-long school spirit event where students are split into the blue and gold team and compete against each other.

Maureen Lennon/Herald
17 BALDWIN HERALD — March 23, 2023 COME TO THE FREE THURSDAY MARCH 30 • 2023 10:00AM – 1:00PM Temple Beth Am 2377 Merrick Ave, Merrick, NY 11566 FREE Health Screenings FREE ID Cards FREE Antique Evaluation FREE Refreshments FREE Cell Phones + Setup* FREE Panel Discussion GUEST SPEAKERS + FREE GOODIE BAGS* *while supplies last* GOLD SPONSOR: SILVER SPONSOR: DON’T MISS YOUR CHANCE TO WIN TONS OF PRIZES AND GIVEAWAYS* *must be present at drawing to win* TO SPONSOR OR EXHIBIT Contact Amy Amato at aamato@liherald.com or 516.569.4000 x224 TO RSVP Contact Sabrina Greenberg at sgreenberg@liherald.com or 516.569.4000 x219 *Must provide valid ID + proof of SS benefits* Register at richnerlive.com/seniorexpo or call 516.569.4000 x219 1208851
Presented as a service to the community by L.I. Tax Services Inc. Div. of Wolfsohn Financial 15 3 Broadway, Lynbrook NY 887-7380 www.wolfsohn.biz 1209078
TAX
THEIR
BILL: PArt III

Public Notices

LEGAL NOTICE

NOTICE OF SALE SUPREME COURT

COUNTY OF NASSAU, NJCC-NYS COMMUNITY RESTORATION FUND LLC, Plaintiff, vs. ANGEL

VARGAS A/K/A ANGEL A. VARGAS, ET AL., Defendant(s).

Pursuant to an Order Confirming Referee’s Report and Judgment of Foreclosure and Sale duly entered on June 18, 2019, I, the undersigned Referee will sell at public auction on the front steps on the north side of the Nassau County Supreme Court, 100 Supreme Court Drive, Mineola, NY on April 11, 2023 at 2:00 p.m., premises known as 560 Grimm Place, Baldwin, NY 11510. All that certain plot, piece or parcel of land, with the buildings and improvements thereon erected, situate, lying and being in the Town of Hempstead, County of Nassau and State of New York, Section 54, Block 108 and Lot 127. Approximate amount of judgment is $404,232.33 plus interest and costs. Premises will be sold subject to provisions of filed Judgment Index #003057/2017. Cash will not be accepted. This foreclosure sale will be held on the north side steps of the Courthouse, rain or shine. COVID-19 safety protocols will be followed at the foreclosure sale. If proper social distancing cannot be maintained or there are other health or safety concerns, the Court Appointed Referee will cancel the sale.

Ellen Durst, Esq., Referee Knuckles, Komosinski & Manfro, LLP, 565 Taxter Road, Suite 590, Elmsford, NY 10523, Attorneys for Plaintiff 137796

LEGAL NOTICE

SUPREME COURT OF THE STATE OF NEW YORK

INDEX NO. 606756/2022

COUNTY OF NASSAU

DEUTSCHE BANK

NATIONAL TRUST

COMPANY, AS TRUSTEE

FOR GSAMP TRUST 2006FM2, MORTGAGE PASSTHROUGH CERTIFICATES, SERIES 2006-FM2

Plaintiff, vs. KRYSTAL FORD, if living, and if she/he be dead, any and all persons unknown to plaintiff, claiming, or who may claim to have an interest in, or general or specific lien upon the real property described in this action; such unknown persons being herein generally described and intended to be included in the following designation, namely: the wife, widow, husband, widower, heirs at law, next of kin, descendants, executors, administrators, devisees, legatees, creditors, trustees, committees, lienors, and assignees of such deceased, any and

all persons deriving interest in or lien upon, or title to said real property by, through or under them, or either of them, and their respective wives, widows, husbands, widowers, heirs at law, next of kin, descendants, executors, administrators, devisees, legatees, creditors, trustees, committees, lienors and assigns, all of whom and whose names, except as stated, are unknown to plaintiff; MORTGAGE ELECTRONIC REGISTRATION SYSTEMS, INC.; FREMONT INVESTMENT & LOAN; THE PEOPLE OF THE STATE OF NEW YORK; UNITED STATES OF AMERICA;

“JOHN DOE #1” through “JOHN DOE #12,” the last twelve names being fictitious and unknown to plaintiff, the persons or parties intended being the tenants, occupants, persons or corporations, if any, having or claiming an interest in or lien upon the premises, described in the complaint, Defendants.

Plaintiff designates NASSAU as the place of trial situs of the real property

SUPPLEMENTAL SUMMONS

Mortgaged Premises: 1071 WASHINGTON STREET, BALDWIN, NY 11510

Section: 54, Block: 375, Lot: 1341, 1342, 1343, 1344

To the above named Defendants

YOU ARE HEREBY SUMMONED to answer the Complaint in the above entitled action and to serve a copy of your Answer on the plaintiff’s attorney within twenty (20) days of the service of this Summons, exclusive of the day of service, or within thirty (30) days after service of the same is complete where service is made in any manner other than by personal delivery within the State. The United States of America, if designated as a defendant in this action, may answer or appear within sixty (60) days of service. Your failure to appear or to answer will result in a judgment against you by default for the relief demanded in the Complaint. In the event that a deficiency balance remains from the sale proceeds, a judgment may be entered against you.

NOTICE OF NATURE OF ACTION AND RELIEF SOUGHT

THE OBJECT of the above caption action is to foreclose a Mortgage to secure the sum of $356,160.00 and interest, recorded on July 07, 2006, in Liber M 30698 at Page 868, of the Public Records of NASSAU County, New York., covering premises known as 1071 WASHINGTON STREET, BALDWIN, NY 11510.

The relief sought in the within action is a final judgment directing the sale of the premises described above to satisfy the debt secured by the Mortgage described above.

NASSAU County is designated as the place of trial because the real property affected by this action is located in said county.

NOTICE YOU ARE IN DANGER OF LOSING YOUR HOME

If you do not respond to this summons and complaint by serving a copy of the answer on the attorney for the mortgage company who filed this foreclosure proceeding against you and filing the answer with the court, a default judgment may be entered and you can lose your home. Speak to an attorney or go to the court where your case is pending for further information on how to answer the summons and protect your property. Sending a payment to the mortgage company will not stop the foreclosure action.

YOU MUST RESPOND BY SERVING A COPY OF THE ANSWER ON THE ATTORNEY FOR THE PLAINTIFF (MORTGAGE COMPANY) AND FILING THE ANSWER WITH THE COURT.

Dated: February 21, 2023

ROBERTSON, ANSCHUTZ, SCHNEID, CRANE & PARTNERS, PLLC Attorney for Plaintiff Oluwatobi Adedokun, Esq. 900 Merchants Concourse, Suite 310 Westbury, NY 11590 516-280-7675 137941

LEGAL NOTICE NOTICE OF SALE SUPREME COURT

NASSAU COUNTY U.S. BANK TRUST, N.A., AS TRUSTEE FOR LSF9

MASTER PARTICIPATION TRUST, Plaintiff against

KELLY DOUGAN A/K/A

KELLY ANN DOUGAN, et al Defendant(s)

Attorney for Plaintiff(s) Fein Such & Crane, LLP, 28 East Main Street, Suite 1800, Rochester, NY 14614. Pursuant to a Judgment of Foreclosure and Sale entered February 26, 2020, I will sell at public auction to the highest bidder at North Side Steps of the Nassau County Supreme Court at 100 Supreme Court Drive, Mineola, NY 11501 on April 17, 2023 at 2:30 PM. Premises known as 1483 Kingston Avenue, Baldwin a/k/a North Baldwin, NY 11510.

Sec 36 Block 319 Lot 5.

All that certain plot, piece or parcel of land, situate, lying and being at Baldwin, Town of Hempstead, County of Nassau and State of New York. Approximate

Amount of Judgment is

$301,374.96 plus interest,

fees, and costs. Premises will be sold subject to provisions of filed Judgment Index No 606573/2019. The foreclosure sale will be conducted in accordance with 10th Judicial District’s Covid-19 Policies and foreclosure auction rules. The Referee shall enforce any rules in place regarding facial coverings and social distancing. If proper social distancing cannot be maintained or there are other health or safety concerns, then the Court Appointed Referee shall cancel the foreclosure auction.

Foreclosure Auctions will be held “Rain or Shine.”

Richard Langone, Esq., Referee AYSN358

137931

LEGAL NOTICE

NOTICE TO BIDDERS

BALDWIN UNION FREE SCHOOL DISTRICT

HEALTH & WELLNESS

CENTER AT BALDWIN

HIGH SCHOOL

SED NO. 28-02-10-03-0-009-041

BWSD 2001 NB - 1

Notice is hereby given that SEALED PROPOSALS for:

BALDWIN UNION FREE SCHOOL DISTRICT HEALTH & WELLNESS

CENTER AT BALDWIN

HIGH SCHOOL

SED#

28-02-10-03-0-009-041

CONTRACT G – GENERAL

CONSTRUCTION WORK

Will be received until 11:00 AM on April 5, 2023 at the Business Office of the Baldwin Union Free School District, located at 960 Hastings Street, Baldwin, NY 11510, at which time and place all bids will be publicly opened and read aloud. Complete digital sets of Bidding Documents, drawings, and specifications, may be obtained online beginning March 22, 2023 as a download at the following website: melville.h2mplanroom.co

m

Please note REVplans (melville.h2mplanroom.co m) is the designated location and means for distributing and obtaining all bid package information. Only those Contract Documents obtained in this manner will enable a prospective bidder to be identified as an official plan holder of record. The Provider takes no responsibility for the completeness of Contract Documents obtained from other sources. Contract Documents obtained from other sources may not be accurate or may not contain addenda that may have been issued. All bid addenda will be transmitted to registered plan holders via email and will be available at melville.h2mplanroom.co m. Plan holders who have paid for hard copies of the bid documents will need to make the determination if hard copies of the addenda are required for their use, and coordinate directly with the printer for hard copies of addenda to be issued. There will be no charge for registered plan holders to obtain hard copies of the bid addenda.

escorted to the area of work. This meeting is not mandatory; however it is highly recommended that all potential bidders attend.

NOTICE TO BIDDERS

BALDWIN UNION FREE SCHOOL DISTRICT

HEALTH & WELLNESS CENTER AT BALDWIN HIGH SCHOOL

SED NO. 28-02-10-03-0-009-041

BWSD 2001 NB - 2

Nassau to physically handicapped persons, in accordance with Section 202-48 of the Code of the Town of Hempstead, all as set forth in said resolution; and

AYES: FIVE (5)

NOES: NONE (0) 138102

Complete sets of Bidding Documents, Drawings and Specifications, may be obtained from REVplans, 28 Church Street, Unit 7, Warwick, NY 10990 Tel: 1-877-272-0216 upon depositing the sum of $100 (One Hundred Dollars) for each combined set of documents. Checks or money orders shall be made payable to Baldwin Union Free School District. Plan deposit is refundable in accordance with the terms in the Instructions to Bidders to all submitting bids. Any bidder requiring documents to be shipped shall make arrangements with the printer and pay for all packaging and shipping costs.

Bids must be made in the standard proposal form in the manner designated therein and as required by the specifications that must be enclosed in sealed envelopes bearing the name of the job and name and address of the bidder on the outside, addressed to: the BALDWIN UNION FREE SCHOOL DISTRICT, clearly marked on the outside: Bid For: Baldwin Union Free School District –Health & Wellness Center at Baldwin High School. Each proposal submitted must be accompanied by a certified check or bid bond, made payable to the BALDWIN UNION FREE SCHOOL DISTRICT, in an amount equal to ten percent (10%) of the total amount of the bid, as a commitment by the bidder that, if its bid is accepted, it will enter into a contract to perform the work and will execute such further security as may be required for the faithful performance of the contract.

Certification of bonding company is required for this bid, see Instructions for Bidders section. Each bidder shall agree to hold his/her bid price for forty-five (45) days after the formal bid opening. A pre-bid meeting and walk thru is scheduled for March 29, 2023 at 3:00 pm at the project site. Potential bidders are asked to gather at the main entrance to the school, at which time they shall be

It is the Board’s intention and it reserves its right to award the contract to the lowest responsible qualified bidder, providing the required security who, to the Board’s satisfaction, meets the experience, technical, budget and all specification requirements and has references and responses from references that are deemed acceptable by the Board. The Board reserves the right to reject any or all bids, or portions thereof, or alternates, or alternatives, to waive any informality and to accept such bids, or portions thereof, or alternates, or alternatives which, in the opinion of the Board, are in the best interests of the School District.

Board of Education Baldwin Union Free School District 960 Hastings Street Baldwin, New York 11510 138092

WHEREAS, after due consideration, this Town Board finds it to be in the public interest to establish and set aside certain parking spaces for motor vehicles for the sole use of holders of special parking permits issued by the County of Nassau to physically handicapped persons;

NOW, THEREFORE BE IT

RESOLVED, that in accordance with Section 202-48 of the Code of the Town of Hempstead, the following parking spaces be and the same hereby is set aside for the sole use of holders of special parking permits issued by the County of Nassau to physically handicapped persons:

BALDWIN KINGS PARKWAY - south side, starting at a point 37 feet west of the west curbline of Elmwood Street, west for a distance of 20 feet.

(TH-9/23)

ELMONT ADAMS STREET - north side, starting at a point 222 feet west of the west curbline of Raff Avenue, west for a distance of 20 feet.

(TH-11/23)

FRANKLIN SQUARE PARK LANE NORTHnorth side, starting at a point 89 feet west of a point opposite the west curbline of Ascan Road, west for a distance of 20 feet.

(TH-13/23)

LEGAL NOTICE

SUPPLEMENTAL SUMMONS; Index No.:603668/2022

SUPREME COURT OF THE STATE OF NEW YORK COUNTY OF NASSAU --------------------------------X

LEGAL NOTICE

CASE NO.21527

RESOLUTION NO.273-2023

Adopted: February 28, 2023

Councilmember Goosby offered the following resolution and moved its adoption: RESOLUTION ESTABLISHING AND SETTING ASIDE CERTAIN PARKING SPACES FOR MOTOR VEHICLES FOR THE SOLE USE OF HOLDERS OF SPECIAL PARKING PERMITS ISSUED BY THE COUNTY OF NASSAU TO PHYSICALLY HANDICAPPED PERSONS AND THE REPEAL OF CERTAIN OTHER LOCATIONS, WHICH WERE PREVIOUSLY, SET ASIDE AS PARKING SPACES FOR PHYSICALLY HANDICAPPED PERSONS.

WHEREAS, pursuant to Resolution No.266-2023, adopted February 7th, 2023, a public hearing was duly held on the 28th day of February, 2023, at the Town Meeting Pavilion, Hempstead Town Hall, 1 Washington Street, Hempstead, New York, on the proposed establishment and setting aside of certain parking spaces for motor vehicles for the sole use of holders of special parking permits issued by the County of

INWOOD WANSERS AVENUEsouth side, starting at a point 294 feet east of the east of the east curbline of Jeanette Avenue, east for a distance of 20 feet.

(TH-598/22)

ROOSEVELT

GRENADA AVENUEnorth side, starting at a point 208 feet east the east curbline of Enness Street, east for a distance of 20 feet.

(TH-6/23)

WEST HEMPSTEAD

MADISON AVENUE - east side, starting at a point 235 feet north of the north curbline of McKinley Street, north for a distance of 20 feet.

(TH-8/23) ; and, BE IT FURTHER

RESOLVED, that the Town Clerk shall enter this resolution in the minutes of the Town Board and shall publish a copy of this resolution once in a newspaper having a general circulation in the Town of Hempstead, and shall post a copy hereof on the signboard maintained by her, and file in her office affidavits of such publication and posting.

The foregoing resolution was seconded by Councilmember Muscarella and adopted upon roll call as follows:

BR MADISON LLC, Plaintiff, -againstJAMES BOWEN a/k/a JAMES BOWENS, if he be living, if he be dead, his respective heirs-at-law, next of kin, distributees, executors, administrators, trustees, devisees, legatees, assignees, lienors, creditors, and successors in interest, and generally all persons having or claiming under, by, or through JAMES BOWEN a/k/a JAMES BOWENS, if he be dead, whether by purchase, inheritance, lien or otherwise, including any right, title or interest in and to the real property described in the compliant herein all of who and whose names and places of residence are unknown to the plaintiff; MONOGRAM HOME EQUITY CORP.; TRUIST BANK as successor to CRESTAR MORTGAGE CORP.; ROSANNE DEFRANK, if she be living, if she be dead, her respective heirs-at-law, next of kin, distributees, executors, administrators, trustees, devisees, legatees, assignees, lienors, creditors, and successors in interest, and generally all persons having or claiming under, by, or through ROSANNE DEFRANK, if she be dead, whether by purchase, inheritance, lien or otherwise, including any right, title or interest in and to the real property described in the compliant herein all of who and whose names and places of residence are unknown to the plaintiff; AND JOHN AND JANE DOES 1-10, the last ten names being fictitious and unknown to plaintiff, the persons or parties intended being the tenants, occupants, persons or corporations, if any, having or claiming an interest in or lien upon the premises described in the complaint, Defendants --------------------------------X

TO THE ABOVE NAMED DEFENDANTS: YOU ARE HEREBY SUMMONED to answer the Complaint in this action and to serve a copy of your Answer or, if the Complaint is not served with this Summons, to serve a Notice of Appearance, on the plaintiff’s attorney within twenty (20) days after the service of this Summons, exclusive of the day of service (or

March 23, 2023 — BALDWIN HERALD 18
LBAL1-2 0323 Place a notice by phone
516-569-4000
legalnotices@liherald.com To place a notice here call us at 516-569-4000 x232 or send an email to: legalnotices@liherald.com PUBLIC & LEGAL NOTICES To place a notice here call us us at 516-569-4000 x232 or send an email to: legalnotices@liherald.com
at
x232 or email:

Jasmine Moghbeli inspires young students

Jasmin Moghbeli, NASA astronaut from Baldwin, visited her hometown and Baldwin schools to speak and interact with students on March 13. The school district said Moghbeli, a former Baldwin High School graduate, visited the Baldwin School District to collaborate with students and inspire them to explore a career in the sciences. The district said it was at Lenox Elementary School, where Moghbeli was inspired to become an astronaut after completing a book report about a female astronaut in the sixth grade.

The school district said Moghbeli visited Lenox Elementary School, dressed in her space suit, to take part in a Balloon Rocket Challenge with young fourth and fifth graders. In the challenge, they explored concepts like lift, and thrust.

Moghbeli then visited the Baldwin High School and met with students on a plane design challenge, and a discussion STEM and engineering careers. She then joined students in the high school’s learning collaboratory and answered questions by students and staff.

The school district said Moghbeli graduated Baldwin High School in 2001, and the NASA Candidate program in 2020. According to ABC 7, Moghbeli will travel to the International Space Station in August as the commander of Crew 7.

Public Notices

within thirty (30) days after the service is complete if this Summons is not personally delivered to you within the State of New York); and in case of your failure to appear or answer, judgment will be taken against you by default for the relief demanded in the Complaint. Plaintiff designates Nassau County as the place of trial. The basis of the venue is the situs of the real property that is the subject of this action. The address of the real property is: 49-51 Peters Avenue, Hempstead, New York 11550. Dated: Great Neck, NY, March 8, 2023

ROBERT BICHOUPAN, P.C.,By: Carolyn Bichoupan, Esq., Attorneys for the Plaintiff, 175 East Shore Road, Ste. 270, Great Neck, New York 11023.

(516) 482-1186. The object of the action is to declare Plaintiff the record holder and owner of all rights, title and interest in and to the premises known as 49-51 Peters Avenue, Hempstead, New York 11550 and identified as Section 36, Block 049, Lot 014 (the “Premises”).

Notice of Electronic Filing: Efiling is Mandatory for Attorneys, who must record representation on the NYSCEF site at 222.nycourts.com/efile or file a Notice of Opt-Out form with the clerk.

To register for e-filing or for more information regarding e-filing, visit www.nycourts.gov/efileunrepresented or obtain court contact information at www.nycourts.gov.

The foregoing Summons is served upon you by publication pursuant to an Amended Order of Judge R. Bruce Cozzens, Jr., a Justice of the Supreme Court, Nassau County, entered March 10, 2023.

137947

LEGAL NOTICE NOTICE OF SALE SUPREME COURT COUNTY OF NASSAU

Wells Fargo Bank, NA, Plaintiff

AGAINST

Toqir Hussain Malik a/k/a

Toqir H. Malik a/k/a Toqir Malik; et al., Defendant(s)

Pursuant to a Judgment of Foreclosure and Sale

duly entered March 15, 2017 I, the undersigned

Referee will sell at public auction at the North Side Steps of the Nassau County Supreme Court at 100 Supreme Court Drive, Mineola, NY 11501 on April 25, 2023 at 2:00PM, premises known as 1115 Jackson Place, Baldwin, NY 11510. All that certain plot piece or parcel of land, with the buildings and improvements erected, situate, lying and being in Baldwin, in the Town of Hempstead, County of Nassau, State of New York, Section 54 Block 357 Lots 823-825.

Approximate amount of judgment $596,236.54 plus interest and costs. Premises will be sold subject to provisions of filed Judgment Index# 006885/2011. The auction will be conducted pursuant to the COVID-19 Policies Concerning Public Auctions of Foreclosed Property established by the Tenth Judicial District. Foreclosure Auctions will be held “Rain or Shine.”

Scott H. Siller, Esq, Referee LOGS Legal Group LLP

f/k/a Shapiro, DiCaro & Barak, LLC

Attorney(s) for the Plaintiff 175 Mile Crossing Boulevard Rochester, New York 14624 (877) 430-4792

Dated: March 2, 2023 138112

LEGAL NOTICE NOTICE OF SALE SUPREME COURT COUNTY OF NASSAU

JPMorgan Chase Bank, National Association, Plaintiff AGAINST Jessica Mordi; Giovana Smith a/k/a Giovana Mordi; et al.,

Defendant(s)

Pursuant to a Judgment of Foreclosure and Sale duly entered November 1, 2018 I, the undersigned Referee will sell at public auction at the North Side Steps of the Nassau County Supreme Court at 100 Supreme Court Drive, Mineola, NY 11501 on

April 24, 2023 at 2:30PM, premises known as 99 East Pennywood Avenue, Roosevelt, NY 11575. All that certain plot piece or parcel of land, with the buildings and improvements erected, situate, lying and being at Roosevelt, in the Town of Hempstead, County of Nassau, State of New York, Section: 55 Block: 483 Lots: 225 and 226. Approximate amount of judgment $341,969.56 plus interest and costs. Premises will be sold subject to provisions of filed Judgment Index# 005321/2016. The auction will be conducted pursuant to the COVID-19 Policies Concerning Public Auctions of Foreclosed Property established by the Tenth Judicial District. Foreclosure Auctions will be held Rain or Shine.

Michele Bencivinni, Esq., Referee LOGS Legal Group LLP f/k/a Shapiro, DiCaro & Barak, LLC

Attorney(s) for the Plaintiff 175 Mile Crossing Boulevard Rochester, New York 14624 (877) 430-4792

Dated: January 31, 2023

138110

MOGHBELI THEN VISITED the Baldwin High School and met with students on a plane design challenge, and a discussion STEM and engineering careers. She then joined students in the high school’s learning collaboratory

CIRCULATION ASSOCIATE

For immediate consideration, please send cover letter and resume to careers@liherald.com HELP WANTED

Richner Communications, publisher of Herald Community Newspapers has an excellent opportunity for a FT/PT Customer Service Rep. Must be reliable, organized, detail oriented, and able to work well under strict deadlines. Responsibilities include heavy computer work, answering phones, making phone calls, entering orders, faxing, filing, etc.

STRONG knowledge of EXCEL a must! Knowledge of DATABASE maintenance or postal regulations a plus.

$15-$18/hour plus benefits!

LBAL2-2 0323 PUBLIC AND LEGAL NOTICES… Printed in this publication can be found online. To search by publication name, go to: www.newyorkpublicnotices.com TO PLACE AND AD CALL 516-569-4000 x 232 19 BALDWIN HERALD — March 23, 2023
— Andre Silva Photos courtesy Baldwin School District JASMIN MOGHBELI, NASA astronaut from Baldwin, visited her hometown and Baldwin schools to speak and interact with students on March 13.
1209278
COMMUNICATIONS RICHNER

Hebrew Academy of Long Beach seeks educators to join our exceptional school faculty in fostering a culture of academic exploration and excellence and dedication to spiritual, intellectual, and personal growth of all students. We are currently looking for candidates in the following divisions:

Lev Chana Early Childhood:

Early Childhood Head Teachers

Early Childhood Assistant Teachers

Administrative Assistant

HALB Elementary School:

Assistant Teachers

Part Time Morah

Middle School Morah

DRS Yeshiva High School for Boys:

English Teacher

Science Teacher

Ivrit Teacher

Math Teacher

Learning Center Teacher

Guidance Counselor

Assistant College Guidance Counselor

SKA High School for Girls:

Graphic Design Teacher

Ivrit Teacher

History Teacher

Halacha Teacher

AP Computer Science Teacher

Art Teacher

American Sign Language Teacher (ASL)

To learn more about our school community, please visit www.halb.org. We look forward to hearing from you! Please send resumes or inquiries to resumes@halb.org

EMPLOYMENT

Help Wanted

ACCOUNTING OFFICER, HEMPSTEAD, NY. Bachelor + 1 yr. exp req. email res. to eromosele@iyaho.org. Iyaho Social Services.

ACCOUNTING/BOOKKEEPING, AR/AP

Do you have accounting, bookkeeping, or AR/AP experience? Are you tired of being retired, or need a few days a week to keep your mind occupied? If so, please send us a quick email and we will call you to discuss more details. We are a Customs Broker looking for someone who can support our everyday accounting needs and who doesn’t necessarily need or want to work every day. We look forward to talking with you!!! Email: Jobs@agraservices.com

ADMINISTRATIVE ASSISTANT FT:

RVC. Administrative Work, Answering Phones, Computer Skills – Microsoft, Excel, Outlook, Financial background helpful. No Health Beneifts. 516-763-9700 frances.difede@lpl.com

AUTO TECHNICIAN WANTED

Gregoris Subaru, Valley Stream

Experience Needed, Own Tools NYSI License Necessary

All Skill Levels Welcome

Salary Commensurate With Exp. Health Benefits, Union Call Steve H 516-872-9755 Ext.1 Email Steveh@gregorismotors.com

BOOKKEEPER P/T EXPERIENCED

5-10 Hours

BELLMORE UFSD NOW HIRING

• BUILDING SUBSTITUTES FT

Permanent Guaranteed Everyday Applicants applying for this position should have New York State Childhood Education (1-6) or (N-6) certification (preferred) or may be pursuing an Undergraduate/Graduate Degree in Education

• TEACHING ASSISTANT FT With Benefits

• TEACHING ASSISTANT PT Applicants applying for these positions must have New York State Teacher or Teaching Assistant Certification

• SCHOOL MONITORS PT

Letter/Resume/Certification: Dr. Joseph S. Famularo, Supt. of Schools 580 Winthrop Avenue, Bellmore, NY 11710 Fax 516-679-3027 bellmore@bellmoreschools.org or apply directly on OLAS

EXCITING HEALTHCARE OPPORTUNITIES

LAWRENCE PUBLIC SCHOOLS

POSITIONS AVAILABLE

TEACHER AIDES AND TEACHER AIDE SUBS

5.75 OR 3.75 HOURS PER DAY (High School Diploma required)

PART-TIME CLEANERS

Fingerprint Clearance Required For All Positions FOR FURTHER INFORMATION PLEASE CONTACT HUMAN RESOURCES AT 516 295-7037

MULTI MEDIA ACCOUNT DEVELOPMENT

Inside Sales

OUTSIDE SALES

STRONG

EDITOR/REPORTER

Email: info@bellautoschool.com

DRIVING

WANTED

Will Certify And Train HS Diploma NYS License Clean 3 Years

Call 516-731-3000

The award-winning Herald Community Newspapers group, covering Nassau County's North and South Shores with hard-hitting news stories and gracefully written features, seeks a motivated, energetic and creative editor/reporter to join our dynamic (and awesome) team! This education and general assignment reporting position offers a unique experience to learn from some of the best in the business. Historically, reporters who have launched their careers with us have gone on to The New York Times, Newsweek, Newsday, the New York Daily News, New York Post, CNN, BBC, NBC News and The Daily Mail, among many others. We look for excellent writers who are eager to learn, enhance their skills, and become well-established and respected journalists in our industry. To apply: Send a brief summary in the form of a cover letter describing your career goals and what strengths you can bring to our newsroom, along with a resume and three writing samples to mhinman@liherald.com

Looking for an aggressive self starter who is great at making and maintaining relationships and loves to help businesses grow by marketing them on many different advertising platforms. You will source new sales opportunities through inbound lead follow-up and outbound cold calls. Must have the ability to understand customer needs and requirements and turn them in to positive advertising solutions. We are looking for a talented and competitive Inside Sales Representative that thrives in a quick sales cycle environment. We offer salary, commission, bonuses, health benefits, 401K and paid time off. Will consider part time. Please send cover letter and resume with salary requirements to ereynolds@liherald.com Call 516-569-4000 X286

OFFICE WORK P/T LAWN SPRINK;ER

COMPANY. Monday-Friday 10am-2pm. Small 1 Person Office, Customer Relations, Scheduling Appointments, Light Computer. Lynbrook. 516-561-1981. mkd2@optonline.net

Richner Communications, One of the Fastest Growing Media, Event and Communications Companies on Long Island

March 23, 2023 — BALDWIN HERALD 20 1
Week. Handle Real Estate Property Management, Personal Finances. Computer Skills Necessary.
Work From Home Or Office. Lawrence.
CIRCULATION ASSOCIATE Full Time/Part Time Richner Communications, publisher of Herald community newspapers has an excellent opportunity for a FT/PT Customer Service Clerk in our busy Circulation Department. Basic customer service
administrative responsibilities
Per
Can
Call 516-375-9642
and
include: heavy computer work, answering phones, making phone calls, entering orders, faxing, filing, etc.
under
For consideration, please send resume & salary requirements to: careers@liherald.com DENTAL ASSISTING/ FRONT OFFICE : No Experience Necessay. Monday, Tuesday, Wednesday and Friday. Hours 3pm-8pm. $18/Hr. Long Beach. 516-849-4710
WANTED Full Time and Part Time Positions Available! Busy Print Shop in Garden City is Hiring Immediately for Full Time and Part Time Drivers. Must Have a Clean License and BoxTruck Driving Experience. Hours Vary, Night Availability is a Must. Please Email Resume to careers@liherald.com or Call (516)569-4000 x239
knowledge of EXCEL a must! Knowledge of DATABASE maintenance or postal regulations a big plus. Qualified Candidates must be computer literate, able to multitask, dependable, reliable, organized, energetic, detail oriented and able to work well
deadlines.
DRIVERS
Will
Bell
DRIVING INSTRUCTOR Company Car/ Bonuses. Clean Driving Record Required,
Train. Retirees Welcome!
Auto School 516-365-5778
INSTRUCTORS
is Seeking a Sales/Marketing Candidate to Sell our Print Media Products and our Digital, Events, Sponsorships. Salary, Commission, Eligible for Health Benefits, 401k and Paid Time Off. Will Consider Part Time. Please Send Cover Letter and Resume with Salary Requirements to rglickman@liherald.com or Call 516-569-4000 X250 PRESS-ROOM/WAREHOUSE HELP Long Island Herald has IMMEDIATE openings for a FULL-TIME Pressroom/warehouse helper in Garden City. We are a busy print shop looking for a motivated and reliable individuals to assist in various duties in the shop. Forklift experience is a plus and heavy lifting is required. Hours vary, so flexibility is key. Email resumes or contact info to careers@liherald.com
Fax your ad to:
E-mail your ad to: ereynolds@liherald.com E-mail Finds
to: sales@liherald.com DEADLINE: Monday, 11:00 am for all classified ads. Every effort is made to insure the accuracy of your ad. Please check your ad at the first insertion. Credit will be made only for the first insertion. Credit given for errors in ads is limited to the printed space involved. Publisher reserves right to reject, cancel or correctly classify an ad. To pLACE your AD CALL 516-569-4000 - press 5
CLASSIFIED
516-622-7460
Under $100
1208875
Employment HERALD
1208660
1208468
FULL TIME & PART TIME POSITIONS AVAILABLE RNs • LPNs • CNAs PHYSICAL THERAPISTS PHYSICAL THERAPIST ASSISTANTS OCCUPATIONAL THERAPISTS OCCUPATIONAL THERAPIST ASSISTANTS BEHAVIOR ASSISTANTS RECREATION LEADERS Experience In Long Term Care Preferred Competitive Salary Beach Terrace Care Center • Long Beach, NY Call 516-431-4400 Ext.223 Fax Resume 516-431-2105 Or Email: beachterrace640@yahoo.com 1207801 1208020 NEW STARTING SALARIES Van $24.41/hr. Non-Benefit Rate Big Bus $27.18/hr. Non-Benefit Rate BUSDRIVERSWANTEDDoN’T MISS The Bus! EDU c ATI o NAL BUS TRANS po RTATI o N 516.454.2300 $2,500.00 for CDL driver bus and van $500.00 for non CDL drivers. Will train qualified applicants Sign On Bonus *Some restrictions may apply. EOE One phone call, one order, one heck of a good price to run your ad in any state, or across the country. Call the USA Classified Network today! 1-800-231-6152

Help Wanted

PROPERTY and OPERATIONS MANAGER WANTED Freeport. Experienced

Professional in Property Management, Operations and Maintenance. 4pm-7pm.

Saturdays. 646-481-3076

EMAIL eagertoserve@verizon.net https://eagertoserve.site/

RECEPTIONIST - FULL TIME

Receptionist (full-time) needed for Publisher and Self-Storage Facility located in Garden City. The ideal candidate should have excellent communications and customer service skills, be professional, dependable and have reliable transportation. Candidate should have computer knowledge and working knowledge of MS Office. Candidate MUST be reliable, punctual and be able to work a CONSISTENT schedule:

Monday and Wednesday 8am to 4pm

Tuesday and Thursday 8am to 6pm

Friday 8am to 5pm

Job Responsibilities include, but are not limited to: Answering phones and greeting customers, assisting new customers by showing storage facility options and pricing, collecting payments from customers, contacting customers for late payments, applying payments and updating the customer files /data base and other general administrative responsibilities on an as needed basis. Hourly pay, plus eligible for Holiday Pay, PTO, Medical, Dental, 401k with company matching, plus other benefits. Qualified candidates should email their resume, cover letter and salary requirements. No phone calls please. Job Type: Full-time.

Salary: $15.00 /hour

Email your resume to: careers@liherald.com

Hewlett

Great for a Growing Family

RECEPTIONIST/ P/T: SEASONAL, Warm, Friendly, Excellent People Skills, Office Work/ Customer Service, Beach Club. 516-239-2150

Senior Scheduler: Prep & maintain master schedule for contractor/subcontractor agrmts; Review specs for work to be performed & determine appropriate construction docs; Dvlp time impact analysis fin reports; Develop & maintain change order documentation; Create reports estimating time & cost for change orders; Coordinate project control reqmts w/clients; Track work progress & adjust schedules; Review, analyze & report on delays & claims; Obtain data regarding damage, accidents & delays, prep reports & make recommendations for time & fin recovery from setbacks; Dvlp, review & analyze schedules; Prep earned value &/or schedule variance reports; Dvlp forensic schedule to asst w/delay claims. Work loc: Port Washington, NY. Travel & relocation possible to unanticipated locs throughout U.S. Sal: $120,266/yr. Mail res & pos applied for to: Group PMX, LLC, 10 Hillside Ave, Port Washington, NY 11050.

SHORT ORDER COOK DELI EXPERIENCE PT 25-40 HOURS A WEEK FLEXIBLE & MORNING HOURS AVAILABLE AT THE GOLF CLUB AT MIDDLE BAY 516-766-1880

TEACHERS B-2 Certified- Preferably Or With B.A. In Early Childhood In A Study Plan. Salaries Will Be Determined By Education Level. Send

Walk into this wonderful 4 Bedroom Colonial Home and fall in love with the fabulous eat in kitchen. If you love cooking, this is for you! There is more than enough room to bake on the huge granite island and the all stainless steel appliances are amazing. You will also adore the living room, formal dining room, fabulous den with a cozy fireplace plus a half bath. The second floor features a main bedroom with an ensuite bathroom, three additional bedrooms and a walk up finished attic with a window. There is also a full finished basement and laundry room and a great yard.. You won't miss the train going into the city, it’s only a couple of blocks away! The location is ideal, you are close to everything! This is a magnificent home that you can't miss seeing! Call Lisa Fava for more information or to set up an appointment.

OPEN HOUSES SUNday, 3/26/23 HEWLETT

1599 Lakeview Dr, 12-1:30, FIRST SHOW! 4 BR, 3 Bth Exp Ranch on Tree Lined St in SD#14. Spacious LR, DR & Family Rm, EIK & Fin Bsmt. Att Garage. HW Flrs. Near Park, Trans, Shops & Houses of Worship $829,000 1608 Ridgeway Dr, 1-2:30, Move Right Into This Completely Gut Renovated 4 BR, 3.5 Bth Col on 1/4 Acre Prop. New Kosher EIK, FDR, LR w/ Fpl, Den & Enclosed Porch. Radiant Heated Flrs. Full Fin Bsmt. 2 Car Att Gar. MUST SEE!! SD#20 DRASTIC REDUCTION! MOTIVATED SELLER! $1,399,000 ALSO FOR RENT $6,500 per month

1267 Peninsula Blvd, BA, NEW TO MARKET! 5 BR, 2 Bth Exp Cape in SD#14 (Hewlett-Woodmere) Living Room, DR & Updtd Gran/Wood EIK & Bths. Det

1.5 Gar & Driveway for 4/5 Cars. HW Floors. Gas Heat.Near LIRR, Shops, Trans & Schools. A Steal! $599,000

257 Willard Dr, 2-3:30, Spacious 5 BR, 3 Bth Exp Ranch With Open Layout.Main Floor Mstr Ste Plus Potential Mstr Ste on 2nd Flr. LR/Fpl, FDR, EIK & Sundrenched Family Rm w/ Doors to Deck. Fin Bsmt. Att Gar. Loads of Updates!! SD#20 (Lynbrook) No Flood Insurance Req. MUST SEE THIS! REDUCED!! $1,025,000

1193 E. Broadway # M23, BA, NEW TO MARKET! Move Right Into This Stunning Gut Renovated 2 BR, 2 Bth Coop in Garden Town. Gourmet Kit W/ Thermdore St Steel Appl Opens Into DR & LR. Primary BR w/Bth Plus Spac 2nd BR. W/D in Unit. New Self Controlled CAC. Oak Flrs, LED Lights. Near LIRR. Parking Avail. SD#14. You Don’t Want to Miss This $379,000

1534 Broadway #103, BA, Magnificent New Renovation! One of a Kind Ranch Style Living in Luxurious Jonathan Hall Condominium with Doorman & Elevator. Just Move into This Gut Rvated, Spacious 2 BR, 2 Bath Apt with Open Layout. Large Designer Eat in Kitchen with Sep Pantry & Laundry Rm. Master BR Boasts Gorgeous Bth & Walk in Closet. Terrace Faces into Courtyard. Garage Parking Incl REDUCED & MOTIVATED!!..$699,000

1534 Broadway #205, BA, Extra Large 2000 Sq Ft, 2 Bedroom (Originally 3 BR), 2 Bath Condo in Prestigious Jonathan Hall with Doorman

Lisa A. Fava, CBR, SRS, ABR Licensed Associate Broker, License #10301204103 516 815-2434 cell 516-887-0677 office

Becker Realty Services Inc. 50 Hempstead Ave, Lynbrook NY 11563

21 HERALD — March 23, 2023 2 03/23
Resume To: info@atozcentertoo@yahoo.com Or Contact Michael Budhoo At 718-740-8400 WHEATLEY HILLS GOLF Club, East Williston NOW HIRING: Waitstaff & Bussers, Front Desk Receptionist, Clubhouse Maintenance, Valet Parker, Pantry-Prep Position Competitive Hourly Wage E-mail: Frontdesk@wheatleyhills.com JOIN OUR TEAM! Be apart of a growing multi media company based in Garden City Now Hiring: • Sales/Multi Media Consultants* • Receptionist • Reporter/Editor • Drivers • Pressman/Press Helper Mail Your Resumes to Careers@liherald.com or call 516-569-4000 ext 239 *must have a car 1204568 1204615 * Employment HERALD To place an ad call 516-569-4000 press 5 HomesHERALD To place an ad call 516-569-4000 press 5 • To place an ad call 516-569-4000 press 5
HOME Of tHE WEEK
& Elevator. Updtd Wood/Quartz Kit, LR & DR. Washer/Dryer in Unit. Underground Pkg. Loads of Closets. Terrace Faces Back. Easy Ranch Style Living BIG REDUCTION!! MOTIVATED SELLER! $699,000 CE da RHURST 332B Peninsula Blvd, BA, Move Right Into This Updated 3 Br, 2.5 Bth Coop Townhouse. LR, DR, Gran/Wood Kit w/ Stainless Steel Appl. Trex Deck Off LR.Primary Ste Features Updtd Bth & WIC. Att Gar Plus 1 Pkg Spot incl in Maintenance. W/D. Pull Down Attic. SD#15. Convenient to Shops, Trans & Houses of Worship $449,000 Ronnie Gerber 516-238-4299 1209444 Results t hat Move You 1208557 1207130 HELPING YOU ON YOUR REAL ESTATE JOURNEY Rob Kolb Licensed Real Estate Salesperson Tripodi Shemtov Team Douglas Elliman Real Estate 30 West Park Ave | Long Beach, NY 11561 Cell: 516-314-1728 • Office: 516-432-3400 Rob.Kolb@elliman.com • Elliman.com/RobKolb JOBS, MERCHANDISE, REAL ESTATE & MORE... JOBS, MERCHANDISE, REAL ESTATE & MORE... JOBS, MERCHANDISE, REAL ESTATE & MORE... JOBS, MERCHANDISE, REAL ESTATE & MORE... It’s in the Herald Classifieds... To Advertise Call 516-569-4000 press 5 Rent Your Apartment through the Herald and PrimeTime Classified section. Call us for our great *specials. 516-5694000, press 5 for Classified Dept. *(private party only) One phone call, one order, one heck of a good price to run your ad in any state, or across the country. Call the USA Classified Network today! 1-800-231-6152

All we wanted was to build some walls

Q. We seem to have run into a problem. Our landscaper does brick paving and walls, and we spoke to him last summer about putting in walls around our yard, front and back. It gives us a sense of privacy, and makes our yard more defined. Unfortunately, the walls in the backyard went up last fall, and the ones in the front yard were just beginning when we got a notice on our front door that we’re in violation of some ordinance we don’t understand. Aren’t we allowed to put in walls? They are 4 feet high and will have lights at the driveway entrance that will look very nice and make our driveway safer, we think. What can you tell us?

A. I often have conversations with people who say they read my column and could answer most of the questions themselves, because it seems so obvious what the answer would be. Your question made me wonder if you didn’t already have a clue about what you might have done wrong.

I’m amazed at how often people tell me that their builder told them they didn’t require a permit, and not to worry, or that the builder got the permit already and will start immediately — with upfront partial or full payment, of course.

Ask The Architect Monte Leeper

Walls are just like any other built structure, and require not only permits, which readers who speak to me seem most focused on. The main reason for permission is safety, but secondarily, every property owner in a densely populated area is part of the bigger picture — bigger than their postage stampsized property — when viewed on a satellite image. You have to fit into the community.

This isn’t just about you. Walls define property, that is true, but they also create barriers to emergency responders who would need to access your yard in a raging fire scenario, for you or a neighbor. There are rules about how close a fence or other versions of a fence can be to a traffic corner, and how high they can be. Walls need to be constructed not to fail, just like other structures, and even a fence needs a foundation to keep it anchored from falling over or sinking under its own weight. Many communities have regulations that include an “architectural review,” meaning that they want to know the color, material and height of the fence, and even whether your lighting will shine onto other neighbors’ properties who may not share your de-light.

Because most building departments have little or no authority to penalize the builders who can lie about getting permits, which allows them to break the law without penalty, you, the homeowner, are stuck with the responsibility. Why this system is perpetual is beyond me, because there’s a neverending flow of anguished owners who can’t understand why they aren’t protected and not made aware until it’s too late, but that’s the way the illegal construction business works, for the present. Good luck!

© 2022 Monte Leeper

Readers are encouraged to send questions to yourhousedr@aol.com, with “Herald question” in the subject line, or to Herald Homes, 2 Endo Blvd., Garden City, NY 11530, Attn: Monte Leeper, architect.

REAL ESTATE

Open Houses

HEWLETT 1534 BROADWAY #205, Open House By Appt! Extra Large 2000 Sq Ft, 2 Bedroom(Originally 3 BR), 2 Bath Condo in Prestigious Jonathan Hall with Doorman & Elevator. Updtd Wood/Quartz Kit, LR & DR. Washer/Dryer in Unit. Underground Pkg. Loads of Closets. Terrace Faces Back. Easy Ranch Style Living...$699,000 Ronnie Gerber, Douglas Elliman 516-238-4299

HEWLETT 599 LAKEVIEW Dr, OPEN HOUSE,SUNDAY, 3/26, 12-1:30, FIRST SHOW! 4 BR, 3 Bth Exp Ranch on Tree Lined St in SD#14. Spacious LR,DR & Family Rm, EIK & Fin Bsmt. Att Garage. HW Flrs. Near Park, Trans, Shops & Houses of Worship...$829,000 Ronnie Gerber, Douglas Elliman 516-238-429

Open Houses

HEWLETT BA, 1267 Peninsula Blvd, BA, NEW TO MARKET! 5 BR, 2 Bth Exp Cape in SD#14 (Hewlett-Woodmere) Living Room, DR & Updtd Gran/Wood EIK & Bths. Det 1.5 Gar & Driveway for 4/5 Cars. HW Floors. Gas Heat. Near LIRR, Shops, Trans & Schools. A Steal! .....$599,000 RONNIE GERBER 516 238-4299

HEWLETT BA, 1534 Broadway #103, REDUCED AND MOTIVATED! Magnificent New Renovation! One of a Kind Ranch Style Living in Luxurious Jonathan Hall Condominium with Doorman & Elevator. Just Move into This Gut Renovated, Spacious 2 BR, 2 Bath Apt with Open Layout.Large Designer Eat in Kitchen with Sep Pantry & Laundry Rm.Master BR Boasts Gorgeous Bth & Walk in Closet. Terrace Faces into Courtyard and the Garage Parking is Incl..$699,000 Ronnie Gerber, Douglas Elliman 516-238-4299

Open Houses

HEWLETTE 1608 RIDGEWAY Dr, Open House SUNDAY 3/26, 1-2:30, Drastic Reduction! Motivated Seller!Move Right Into This Completely Gut Renovated 4 BR, 3.5 Bth Col on 1/4 Acre Prop. New Kosher EIK, FDR, LR w/ Fpl, Den & Enclosed Porch. Radiant Htd Flrs. Full Fin Bsmt. 2 Car Att Gar. MUST SEE!! SD#20...$1,399,000 ALSO AVAILABLE FOR RENT $6,500 per month Ronnie Gerber, Douglas Elliman 516-238-4299

House For Sale

POINT LOOKOUT: WATERFRONTLARGEST Selection of Beach Homes, Sale/ Rent. Our Home Listings Sell FA$T! VIDEOS. HUG R.E. 516-431-8000 www.hugrealestate.com

Apartments For Rent

CEDARHURST NO FEE Private Entrance, Modern 1BR, 2BR, 3BR, CAC, W/D, Storage, Wall To Wall Carpeting, Indoor Parking Space. Starting At $1450 For One Bedroom When Available. (516)860-6889/ (516)852-5135/ (516)582-9978

Apartments For Rent

EAST ELMONT: 1 BR Cottage, New Carpets/ Flooring. No Smoking/ Pets. $1400 Plus Utilities. 516-437-7608

INWOOD: BRAND NEW 2 BR, Kitchen, Bath, Living Room, 1 Car Rear Parking, Outdoor Storage Shed. $2,600+Electric. 515-315-0083

Out Of Town/Real Estate

NINEVEH NY: 25 Acres With Cabin And Bluestone Quarry. Hunting, Farming, Mining. Below Market. Must Sell. $75,000. Ben 347-866-5619, 718-266-9700

MoneyTo Lend

ARE YOU BEHIND $10k OR MORE ON YOUR TAXES? Stop wage & bank levies, liens & audits, unfiled tax returns, payroll issues, & resolve tax debt FAST. Call 888-869-5361 (Hours: Mon-Fri 7am-5pm PST)

Home Sales

Baldwin $870,000 Harbor Court. Hi Ranch. 4 bedrooms, 3 bathrooms. Updated eat-in kitchen with granite countertops. Formal dining room. Den/family room.

Taxes: $13,592.52

Bellmore $490,000

Hale. Cape. 2 bedrooms, 1 bathroom. Updated eat-in kitchen with granite countertops and stainless steel appliances. First floor bedroom. Extra room upstairs. Convenient location near LIRR and shopping

Taxes: $8,930.99

East Meadow $731,500

Plymouth Place. Split Level. 3 bedrooms, 2 bathrooms. Eatin kitchen. Formal dining room. Den/family room. Central air conditioning.

Taxes: $12,660.79

Hewlett Harbor $1,893,000

Pond Lane. Colonial. 8 bedrooms, 6.5 bathrooms. Finished basement. Gourmet eat-in kitchen with granite countertops and pantry. Formal dining room. Den/family room and home office. Legal accessory apartment. Cathedral ceiling. Security system.

Taxes: $40,850.88

Island Park $569,000

Kildare. Raised Ranch. 3 bedroom, 2 bathrooms. Updated eat-in kitchen with granite countertops, stainless steel appliances and island. Open layout. Ensuite master bedroom. Front deck and backyard patio. Dog run and parking for 5 cars. FEMA compliant.

Taxes: $8,000

Long Beach $714,000

West Park Avenue. Ranch. Westholme section. 2 bedrooms, 2 bathrooms. Eat-in kitchen. Open layout. Bonus great room. Large rooms. Convenient location, one block to West End shopping and dining.

Taxes: $11708.81

Rockville Centre $1,780,000

Hargale Court. Colonial. 4 bedrooms, 2.55 bathrooms. Finished basement. Eat-in kitchen with pantry. Formal dining room. Den/family room. Sauna/steam room. Cathedral ceiling with skylight. Security system.

Taxes: $30,890.75

Valley Stream $691,000

Fremont Road. Colonial. Gibson neighborhood. 5 bedrooms, 2 bathrooms. Eat-in kitchen. Open/airy floor plan. Formal dining room. All large rooms. Nice yard with deck. Convenient location near LIRR, schools, shopping.

Taxes: $12,214.11

West Hempstead $675,500

Argyle Road. Tudor. 3 bedrooms, 2.5 bathrooms. Finished basement. Eat-in kitchen. Formal dining room. Den/family room and home office.

Taxes: $12,270.56

March 23, 2023 — HERALD 22 3 03/23
HomesHERALD To place an ad call 516-569-4000 press 5 • To place an ad call 516-569-4000 press 5 Lisa Fava Licensed Associ Ate Broker 516-815-2434 LisaFava1@yahoo.com LisaFavasellshomes@gmail.com HEWLETT COLON ia L Fa BULOU s LOC aT i ON! 4 Br 2.5 Baths, Close To LIRR...... $989K 1208765 OPENING DOORS, CHANGING LIVES! Becker Real Estate, 50 Hempstead Avenue, Lynbrook, NY Herald
A sampling of recent sales in the area Source: The Multiple Listing Service of Long Island Inc,, a computerized network of real estate offices serving Nassau, Suffolk, Queens, and Brooklyn.
1208339 Robin Reiss Licensed Real Estate Salesperson Cell: 516.510.6484 Office: 516.623.4500 Robin.Reiss@elliman.com
This Robin won’t rest until you are in your new NEST!
How’s the market?? Please contact me for your free market report and personalized service!
… a place to call your own. To Place an Ad Call: 516-569-4000 Press 5 Suburb or country, house, condo, townhouse or apartment, our Classifieds can help you find a HOME that fits your style, your budget and Real Estate needs... it’s a MUST SEE! Call us today! Your Hometown Newspaper Helping you find a HOME or sell a HOME
"Leading Edge Award Winner"
23 BALDWIN HERALD — March 23, 2023 4 03/23 MarketPlace HERALD To place an ad call 516-569-4000 press 5 • To place an ad call 516-569-4000 press 5 • To place an ad call 516-569-4000 press 5 1208690 OCEAN VIEW POWER WASHING Inc. 10% OFF ANY SERVICE Call Bobby • 516- 431- 7611 Homes • Fences • Decks Cedar Homes • Sidewalks Patios • Staining & Painting Specializing In Power Washing GUTTER CLEANING, REPAIRS & SEAMLESS GUTTER INSTALLATION GUTTER SCREENS Call 516-431-0799 Book Online at aboveallgutters.com 1200374 Specializing in BLACKTOP at the BeSt priceS in town • ConCrete • BriCk Patios • stooPs • Belgium BloCks • sidewalks • drainage ProBlems • Cellar entranCe • waterProofing • driveway sealing • demolition • dumPster serviCe • Powerwashing Licensed & insured Free estimates 516-424-3598 516-807-3852 ALFREDO’S CONSTRUCTION Se Habla Espanol 1207696 senior Citizen Discounts Call Today For Spring SpecialS 1208073 Wenk PIPING & HEATING CORP. If Your Plumbing STInkS Call The WenkS! 516-889-3200 Oil to Gas Conversions • Hot Water Heaters Boilers • Radiant Heat • Whole House Water Filters All Plumbing & Heating Work • Lic./Ins. FREE ESTIMATES • 24/7 Emergency Service Available wenkpipingandheating.com $ 2 5 OFF Any Service Call For New Customers Exp. 4/30/23 1208108 TREE REMOVAL • LAND CLEARING • PRUNING END OF WINTER SPECIAL 10% OFF FOR ANY JOB PRIOR TO 3/31/23 ($500 Minimum) STUMPGRINDING • ELEVATING • STORM PREVENTION ALL MAJOR CREDIT CARDS ACCEPTED 516-216-2617 TREE SERVICE FREE ESTIMATES RESIDENTIAL COMMERCIAL OWNER OPERATED Nass. Lic. # 185081 Suff Lic# HI-65621 WWW.WECARETREESERVICE.COM #1206991 CERTIFIED ARBORIST ON STAFF ASK ABOUT OUR PRIVACY TREE PLANTING OWA_GotClutter_BW_Bold Sunday, August 02, 2020 11:31:01 AM 1209023 1109488 Long Island's Premier Painting & Remodeling Specialist! Experienced Quality Services: CALL NOW! 516-297-1885 AURA PAINTING • Interior/ Exterior Painting (all Kinds) • Kitchen Cabinet Painting • Kitchen & Bathroom Remodeling • Interior/ Exterior Home Remodeling 10% OFF ANY EXTERIOR PAINTING JOB jdpaintremodeling.com 1208767 • Interior/Exterior Painting (all Kinds) • Bathroom Remodeling • Interior/Exterior Home Remodeling • Wall Paper Removal & Drywall • Basement Remodeling/Refinishing 1200666 RYAN 516-695-4527 917-697-3647 HANDYMAN SERVICE Over 15 Years Experience Licensed • Insured FREE ESTIMATES COMPLETE RENOVATIONS “No Job Too Small!” Get the Best for Less! Kitchens • Bathrooms • Painting Roofing • Sheetrocking • Plumbing Electrical • Concrete • Powerwashing Carpentry • Basements • Baby-Proofing Ikea Furn. Assembly • Computer Repairs 1202213 1205843 Residential and Commercial - All Phases “Anthony & J Home Improvement, Inc.” Also specializes in ★ Kitchens ★ Bathrooms ★ Finished Basements ★ Flooring ★ Repairs ★ Woodwork/mouldings ★ Siding ★ Gutters Carpentry & Painting Specialist 516- 678-6641– Licensed & Insured Free e st I m Ates...call Anthony r omeo HEATING OIL HOME • COMMERCIAL RELIABLE • 24 HOUR EMERGENCY SERVICE FAMILY OWNED FOR OVER 65 YEARS CALL NOW FOR LOWEST PRICE ( 516) 379-2727 CALL FOR MORE INFO No service in Long Beach 1203130 WE GET YOUR SEWER AND DRAINS FLOWING AGAIN www.unclogitnow.com new customers only CALL NOW 888-777-9709 $69 Sewer $99 Hi-Tech Jetting $49 Drains JVR Plumbing & Heating - Nassau Master Plumber lic # 2520 Suffolk # 2111 /Ins 1204745 1207358 METROPOLITAN NEW YORK , INC. License#: 41413 - w w w.fidelifac ts.com 114 Old Countr y Rd. Ste 652 - Mineola, NY 11501 Background Investigations for Employment Screening - Criminal Histor y ChecksReference Checks - Drug Screening - Due Diligence Investigations Thomas W. Norton President 800-678-0007 / 212-425-1520 tnor ton@fidelifac ts.com 1208073 For Pricing call US! 516-766-6691 A-1 CARTING A-1 CARTING Any Job Big Or SmAll We Do Them All. give Us A Call. We have roll oFF containerS for Waste removal 1208498

MERCHANDISE MART

Antiques/Collectibles

We Buy Antiques, Fine Art & Jewelry Same Day Service, Free In-Home Evaluations, 45 Year Family Business. Licensed and Bonded, Immediate Cash Paid. SYL-LEE ANTIQUES www.syl-leeantiques.com 516-671-6464

FINDS UNDER $100

Finds Under $100

ANNE KLEIN PATENT Leather Pumps, Black, size 71/2, 31/2 inch heels, Brand new. $40. 516-537-3941

DOUBLE HUNG WOOD WINDOW: with screen. 52 X 29 1/2" Marvin Integrity, $40. 516-537-3941

XBOX ONE: CALL of Duty Cold War $25.

XBox- Lot of 13, 360 games $50. (516)596-1538.

Brick/Block/Concrete/Masonry

JB MASONRY : Driveways, Patios, Stoops, Sidewalks, Retaining Walls, Pool Areas, Stucco, Cultured Stone, Brick Work, All Types Pavers, All Concrete Slabs Restorations. FREE Estimates. 516-428-6388

Brick/Block/Concrete/Masonry

Cement Specialist, Brickwork, Interlock Bricks, Belgium Blocks, Stoops, Patios, Basement Entrances, Pavers, Waterproofing. Quality Work,

Handyman

HANDYMAN Repairs and Installations for the Household. Careful and Reliable and Vaccinated. Licensed and Insured. 30-Year Nassau County Resident. Friendly Frank Phone/Text 516-238-2112 E-mail-Frankcav@optonline.net

Home

Miscellaneous

BEST SATELLITE TV with 2 Year Price

Guarantee! $59.99/mo with 190 channels and 3 months free premium movie channels! Free next day installation! Call 888-508-5313

Plumbing

PLUMBER! PLUMBER! PLUMBER! FREE ESTIMATES! Heating, Repairs, Installations. $25 OFF New Customers. 24 Hour Emergency Response. 516-599-1011

Sprinkler Syst./Irrig.Wells

American Residential Warranty cov-

ALL MAJOR SYSTEMS AND APPLIANCES. 30 DAY RISK FREE/ $100 OFF POPULAR PLANS. 833-398-0526

HANDY DANDY HOME IMPROVEMENTS

* Full Or Partial Kitchens/ Baths *Painting *Sheetrock *Taping/ Spackling *Installations Ceramic/ Vinyl Tile *Carpentry *Alterations *Repairs/ More. FREE ESTIMATES. Dan 516-342-0761

ROOFING GREAT PRICES ! NEW ROOF SPECIALS SIDING- Best Prices RENOVATIONS & ALL REPAIRS

SUPER COMPETITIVE PRICES!

Licensed / Insured. Free Estimates Nassau License. # H-0102710000 Call John - 516-852-9830

Tree Services

T&M GREENCARE TREE SERVICE

*Tree Removal *Stump Grinding *Pruning *Roof Line Clearing. Residential and Commercial. "We Beat All Competitors' Rates." Lowest Rates. *Senior Discount. Free Estimates. *516-223-4525, 631-586-3800 www.tmgreencare.com

Satellite/TV Equipment

DISH TV $64.99 For 190 Channels + $14.95 High Speed Internet. Free Installation, Smart HD DVR Included, Free Voice Remote. Some restrictions apply. Promo Expires 1/31/24. 1-866-595-6967

GET DIRECTV FOR $64.99/mo for 12 months with CHOICE Package. Save an additional $120 over 1st year. First 3 months of HBO Max, Cinemax, Showtime, Starz and Epix included! Directv is #1 in Customer Satisfaction (JD Power & Assoc.) Some restrictions apply. Call 1-888-534-6918

PROFESSIONAL SERVICES

Education

COMPUTER & IT TRAINING PROGRAM! Train ONLINE to get the skills to become a Computer & Help Desk Professional now! Grants and Scholarships available for certain programs for qualified applicants. Call CTI for details! 844-947-0192 (M-F 8am-6pm ET). Computer with internet is required.

Health & Fitness

VIAGRA AND CIALIS USERS! 50 Pills SPECIAL $99.00 FREE Shipping! 100% guaranteed. CALL NOW! 855-413-9574

Tutoring

E-Z Breezy Test Prep & Tutoring

From SAT, GMAT, ACT, GRE, & GED, we’ve got you covered! We are running 60% off our 20-hour small-group (8 persons or less) online Spring courses. Please text 732-858-5592 or email dfinnegan89@gmail.com with any inquiries

AUTOMOBILE & MARINE

Autos For Sale

ACURA 2003, 3.2 CLS, 2 door, Silver, Black Interior, 160K Plus. Needs Battery. $1800 516-668-8877 runs great

JEEP 2012 LIBERTY: 79,000, Navy Blue, MUST SELL!

March 23, 2023 — BALDWIN HERALD 24 5 03/23
SERVICES
Lic./ Ins. Owner Always Onsite Free Estimates 516-354-5578 Cleaning Services MARINA'S CLEANING SERVICES: Cleaning Homes, Apartments, Condos, Offices. Experienced. FREE Estimates. Serving Long Island. 516-670-7764 Decks DECKS DECKS Our Only Business COMPOSITES/WOOD Excellent References & Many Photos Lic./Ins. Free Estimates C & S DECKS 516-729-5859 Electricians E-Z ELECTRIC SERVICES, INC. All Types Residential/Commercial Wiring, Generators, Telephone/Data, Home Entertainment, Service Upgrades, Pools, Spas. Services/Repairs. Violations Removed. Free Estimates Low Rates. 516-785-0646 Lic/Ins.
Improvement
CARPENTRY
Commercial.
FREE ESTIMATES!
Improvements
DON'T
Again!
BATH & SHOWER UPDATES in as little as ONE DAY! Affordable prices - No payments for 18 months! Lifetime warranty & professional installs. Senior & Military Discounts available. Call: 866-393-3636
& PAINTING: Residential/
All Phases. Licensed/Insured.
Anthony & J Home
516-678-6641
PAY FOR Covered Home Repairs
ers
As is $7500.00. 516 435 3461 Autos Wanted ***AAA*** AUTO BUYERS $Highest$ Ca$h Paid$. All Years/ Conditions! WE VISIT YOU! Or Donate, Tax Deduct + Ca$h. DMV ID#1303199. Call LUKE 516VAN-CARS. 516-297-2277 DRIVE OUT BREAST Cancer: Donate a car today! The benefits of donating your car or boat: Fast Free Pickup - 24hr Response Tax Deduction - Easy To Do! Call 24/7: 855-905-4755 WHEELS FOR WISHES benefiting MakeA-Wish® Northeast New York. Your Car Donations Matter NOW More Than Ever! Free Vehicle Pick Up ANYWHERE. We Accept Most Vehicles Running or Not. 100% Tax Deductible. Minimal To No Human Contact. Call: (877) 798-9474. Car Donation Foundation d/b/a Wheels For Wishes. www.wheelsforwishes.org. Junk Cars Wanted HIGHEST CA$H PAID All Cars Bought 24/7 FREE Pickup Serving Nassau County 41 Years No Title, No Keys=No Problem ID Required. CALL US LAST! Call us at 516-766-0000 HErald Crossword Puzzle Stuff HERALD To place an ad call 516-569-4000 press 5 • To place an ad call 516-569-4000 press 5 • To place an ad call 516-569-4000 press 5 Answers to todAy’s puzzle 1208972 • SYSTEM TURN-ONS • Installations/Renovations • Service • Repairs Certified Backflow Tester Joe Barbato 516-826-7700 Free Estimates Licensed and Insured Want to sell your car, motorcycle or boat? Have we got a deal for you! You can advertise your vehicle in the Deals on Wheels Classifieds All for an amazing price! Your add will run until you sell your vehicle. Just call one of our expert classified account executives today and you will be on your way to making a great deal on your set of wheels! 516-569-4000 press 5, then 2 Check out our Service Directory for all your repair decorating, party planning, cleaning or moving needs, and much more! 1208446 @stallercenter I (631) 632-2787 I stallercenter.com Come with STALLER Come laugh with us ! MIKE WINFIELD MAR STALLER CENTER FOR THE ARTS 20% OFF YOUR ORDER Enter NYPA20 at @stallercenter I (631) 632-2787 I stallercenter.com

Remembering Judy Heumann

My friend Judy Heumann died March 4 in Washington, D.C., where she lived. Her name might not mean too much to many of you. But to thousands, and I do meant thousands, of people who struggle every day with physical disabilities, her name is gold.

I met Judy when we were students at Long Island University’s Brooklyn Center. I worked on the college newspaper, Seawanhaka, and she was a ferocious member of the student council.

This is Judy’s story. I never wrote about her, but it’s time I did.

She was 18 months old when she was diagnosed with polio. She spent her entire life in a wheelchair. At LIU Brooklyn, she wheeled faster than most of us walked. She rolled into the college newspaper office filled with arguments, always ready for a duel, whether with the paper, the faculty or the administration. The fights, although fierce, always ended with a smile and a laugh.

When she graduated in the early 1970s with a B.A. in speech and theater, she

wanted to teach in a public school. The New York City Board of Education turned her down because she was in a wheelchair. Never willing to give in, she sued the city.

The New York Times wrote a front-page story about her case, and the Times’s editorial board backed her.

Then Mayor John Lindsay voiced his support.

She won her case, and never stopped winning.

I remember long latenight chats with her in those days, with me worrying that she would lose the case, and she expressing only confidence. She became the first New York City schoolteacher in a wheelchair.

In the late 1970s, she moved to California, there to take on the federal government on behalf of disabled people. Joseph A. Califano Jr., the U.S. Secretary of Health, Education and Welfare under President Jimmy Carter, had been slow to implement President Richard Nixon’s Rehabilitation Act, which outlawed discrimination by any institution receiving federal money.

Judy wanted to light a fire under Califano, and organized a mass demonstration, occupying the San Francisco office of HEW for almost a month in what has been described as the longest non-violent

demonstration of a U.S. building in American history.

I urged Judy to be careful, but that word was never in her vocabulary.

San Francisco’s mayor at the time, George Moscone, sent over mattresses. The Black Panthers delivered ribs and fried chicken. Judy won. Califano got moving on legislation to benefit the disabled.

Later she wound up in Washington, working for the Senate Committee on Labor and Public Welfare (now the Committee on Health, Education, Labor and Pensions). In 1993, she became assistant secretary of the office of special education and rehabilitation services under President Bill Clinton, a post she held until 2001.

These were busy and heady times for Judy, and she would whisk into New York, call from the airport and promise to meet “the next time” she was in. At least, I thought, we never lost touch.

Her whirlwind life never stopped. In 1970 she had formed an organization called Disabled in Action, which is now international in scope. She traveled the world, advocating for the rights of the disabled.

She became good friends with Hillary

Clinton, and accompanied the first lady on her trip to China in 1995.

After working in the Clinton administration, she was an adviser, fellow, or board member with such organizations like the World Bank, the Ford Foundation and Human Rights Watch. She somehow found time to meet and fall in love with Jorge Pineda, who was also in a wheelchair.

As a youngster, Judy had been a film star. She was a camper and a counselor at Camp Jened, a camp for disabled children, in the Catskills. The place became the subject of a movie, “Camp Crip,” which starred Judy. In a newspaper interview, she described the camp as a “playground,” but also said it had a bigger meaning.

“It was a liberating time,” she said. “We could be ourselves, and it absolutely helped formulate futures.”

I would not see much of Judy during those hectic years of hers in California and Washington, but she was really never far from my mind. I remembered those long-ago late-night talks, when she was so full of optimism. How, I wondered, how could she be?

But now I know. Whenever I think I can’t do something — anything — I think of Judy.

James Bernstein is editor of the Long Beach Herald. Comments? jbernstein@ liherald.com.

Feeling lost? Books are our GPS in the world.

Do you think we haven’t seen the likes of Marjorie Taylor Greene before? The story of shamelessly ambitious, undereducated bigots scrambling for traction in government is old. Read “All the King’s Men,” by Robert Penn Warren.

stretch in different directions, but human nature seems immutable, for better and worse.

and policy. We self-educate as we read; we learn tolerance for other ways of life.

Book bans will not stand over time. In the age of information, it is impossible to control what Americans read, unless we tip into a dystopia like North Korea, an unlikely evolution.

RANDI KREISS

Do you think Trump is an unprecedented phenom? See above. See Mussolini. See Pinochet. Except that Trump got lucky, got elected to the highest office in the United States and proceeded to disgrace the presidency during his time in the White House. It has been our national nightmare, but all this has happened before, and in other countries.

Are you agonizing over the rise in racism and the purposeful undermining of truth? Do you despair when you read about book bans, bolder antisemitism and anti-gay, anti-trans and anti-choice initiatives? There’s plenty out there to ring our alarm bells.

However, jingoistic groups have risen to power before. The names and dates change, and the boundaries of civility

Extremist movements have always found fertile ground in America. We are a violent country, forged in revolution, pushing our way west over the land and the bodies of native peoples. We even fought against one another in a war that killed well over 600,000 Northerners and Southerners.

I see two paths to comfort and sanity during this uncertain time. One is having faith that the pendulum will swing back to a middle ground again in America. History tells us that life plays out on a never-ending loop. Nothing is new under the sun, the Bible says.

I think of this when I hear that our political and social and cultural division is “unprecedented.” I think of this when I read that we’ve taken a hard turn and are headed over a cliff, with no way back. My hope is that political chaos will resolve in time if we continue to push back against undemocratic policies.

The other balm is reading, digging into fiction and nonfiction, finding the humanity that binds us all together, even as we disagree and wrestle over national values

Yesterday I read David Remnick’s interview with Masha Gessen in The New Yorker, and educated myself about life for people who are trans or gay or both or don’t fit into a category. I recommend it.

Recently I read “The Glass Hotel,” by Emily St. John Mandel, a fictionalized account of the Madoff Ponzi scheme. Living in our time and reading about fakery and chutzpah and hollowedout lives is somehow reassuring. We realize that, again, there are no new themes or behaviors, just new names and places.

Have you heard of “All My Puny Sorrows,” by Miriam Toews? Talk about writers as alchemists: She weaves a family story around a centerpiece of sisters, one who desperately wants to die, the other desperately trying to save her from suicide. The characters pull us into a dark story that is oddly humorous and fully human, an affirmation of life in difficult times.

Since our fiction writers are storytellers and soothsayers, they help inform the future. We cannot compromise on full access to literature. That means voting for officials, from the local school board to the presidency, who support freedom and resist censorship.

I reread “The Prime of Miss Jean Brodie” and discovered an entirely different book. Through the prism of our times, Miss Brodie is revealed not as a fun-loving nonconformist but as an emotionally abusive woman, seduced by nationalism and fascism. She apparently lives on in our Congress.

My nonfiction read this month is “We don’t Know Ourselves,” by Fintan O’Toole. Learning about the religious and political flames that nearly consumed Ireland is a cautionary tale. After a while the fighting took on a life of its own; people forgot why they planted bombs in the first place. (See “The Banshees of Inisherin.”)

In “The Naked Don’t Fear the Water,” by Matthieu Aikins, the author tells the story of going back to Afghanistan to find and escort to safety the helper who worked with him during the war, a great story that reminds us of our best selves.

Read these books to know that we have been here before. Catch a glimpse of the road ahead.

25 BALDWIN HERALD — March 23, 2023
Copyright 2023 Randi Kreiss. Randi can be reached at randik3@aol.com.
North Korea can control what its citizens read, but book bans will never work here.
OPINIONS
Iknew her at LIU Brooklyn. Many more got to know her in the halls of Washington.
JAMES BERNSTEIN

Tell Albany it’s time to support local journalism

It all seems simple enough. Folded paper covered with words, photographs, advertising and color.

Every week, you open your edition of the Herald, ready to catch up on everything you need to know in your community. Whether it’s some exciting new project taken on by your local lawmakers, or how our great schools are funded, or even some of the personal stories that touch your heart, you can’t imagine a world without your local newspaper.

And you don’t want to imagine a world without your local newspaper.

But local news is at risk. The number of newsrooms across the country has been cut in half since 2004, and more than 2,000 newspapers have closed — including nearly half of the weekly papers in New York state.

That has led to the rise of “news deserts” — areas in which there is little to no local newspaper coverage. These are communities just like this one, where everything from civic engagement, to public health and safety, to the survival of local businesses and community organizations is under significant threat.

These deserts are also where extreme partisanship and mistrust have grown considerably. A 2020 study by the Pew Research Center found that Americans who get most of their news on social media are less likely to get the facts about the coronavirus and politics, and more likely to hear unproven claims.

News deserts also lead to higher taxes, since bond rating agencies realize that, without a newspaper “watchdog,” a community is more likely to experience fraud, waste and abuse.

Trust in news is revitalized by ensuring that there are professional journalists everywhere. Especially in our own communities. When residents like you see reporters covering Board of Education meetings, asking questions of local elected officials and interviewing community

LETTERS

The president doesn’t get a ‘break,’ Jerry

To the Editor:

I have always thought of Jerry Kremer as an intelligent and honest politician, but his column “It’s time to give Joe Biden a break” (March 2-8) was clearly misguided. I’m an independent with no party affiliation. I consider myself a moderate, and I voted for Biden, but I don’t feel that

Support New York’s Local Journalism Sustainability Act

Reach out to your local representatives, and tell them you back A.2958-A/S.625-A.

■ Gov. Kathy Hochul (518) 474-8390, or tinyurl.com/HochulEmail

■ Assemblyman Brian Curran (516) 561-8216, or curranb@nyassembly.gov

■ State Sen. Kevin Thomas (516) 747-7430, or thomas@nysenate.gov

members about their opinions on matters of public interest, there is a reinforcement of the confidence in the interaction between the press and the community.

But if newspapers are so essential, why are they struggling? Traditionally, advertising accounts for a vast majority of the revenue needed to produce a newspaper each week — most of it in print. Yet that advertising stream fell 71 percent between 2000 and 2012 as businesses migrated to a digital ecosystem controlled by Google through its monopolistic dominance of online ad sales.

Google attracts viewers to its own website by displaying headlines and sections of news articles produced by news organizations like the Herald, but those viewers don’t tend to click through to the news organizations’ own websites. As a result, Google earns the ad revenue attracted by the publication of news, without covering any of the costs associated with paying the professional journalists who gather

anyone elected to the high est office in this country, arguably the most important position in the world, should ever be given a break. He (or she) has a duty to carry out the responsibilities of the position without excuses for any of their actions.

Mr. Kremer has made a gallant effort to point out what he considers Biden’s accomplishments, and even if I felt that his praise was warranted, it is far outweighed by Biden’s overall incompetence.

and report that news.

As well, the price of paper and delivery has risen dramatically, exacerbated by already high inflation — as much as 100 percent.

What can you do to help? You’re already doing it by subscribing to and reading the Herald. You very likely frequent the businesses that advertise in these pages — and maybe even advertise yourself.

But there is more you can do: Contact your Assembly member or state senator and tell them to say “yes” to A.2958-A/S.625-A — New York’s Local Journalism Sustainability Act. Time is of the essence, as lawmakers in Albany will finalize the state budget in the next week or two.

These bills offer a payroll tax credit — a bridge for transitioning to a new business model — to newspapers based on the number of employed journalists, ensuring that you will continue to receive unbiased coverage of village board meetings, high school soccer games and more.

Even more, this tax credit doesn’t just help newspapers like the Herald. It also would be offered to public radio stations, as well as to local online and not-for-profit news organizations. And remember, newspapers can be distributed in many ways, from print to online.

In the end, the legislation would save more than 350 newsrooms across New York state some $150 million per year over the next five years, a relatively small piece of the state’s more than $200 billion budget. But for newsrooms like this one, it could be the difference between survival and collapse into another news desert. Your neighborhood deserves to be covered by experienced journalists working at a local newspaper — in fact, it’s vital. We all want to live and work in safe, costeffective, well-run communities. But without local newspapers, that just won’t happen.

HERALD EDITORIAL
March 23, 2023 — BALDWIN HERALD 26 Baldwin HERALD Established 1994 Incorporating The South Shore Reporter The Baldwin Citizen Andre SilvA Senior Reporter Michelle AuclAir Multi Media Marketing Consultant Glenn Gold Multi Media Marketing Consultant office 2 Endo Boulevard Garden City, NY 11530 Phone: (516) 569-4000 Fax: (516) 569-4942 Web: www.liherald.com E-mail: baldwineditor@liherald.com Copyright © 2023 Richner Communications, Inc. HERALD COMMUNITY NEWSPAPERS Cliff Richner Publisher, 1982-2018 Robert Richner Edith Richner Publishers, 1964-1987 ■ STuArT richner Publisher ■ MichAel hinMAn Executive Editor Jeffrey BeSSen Deputy Editor JiM hArMon Copy Editor KAren BlooM Features / Special Sections Editor Tony BelliSSiMo Sports Editor TiM BAKer Photo Editor ■ rhondA GlicKMAn Vice President - Sales AMy AMATo Executive Director of Corporate Relations and Events lori BerGer Sales Director ellen reynoldS Classified / Inside Sales Director ■ Jeffrey neGrin Creative Director crAiG WhiTe Art Director crAiG cArdone Production Coordinator ■ diAnne rAMdASS Circulation Director ■ herAld coMMuniTy neWSPAPerS Baldwin Herald Bellmore Herald East Meadow Herald Franklin Square/Elmont Herald Freeport Herald Glen Cove Herald Hempstead Beacon Long Beach Herald Lynbrook/East Rockaway Herald Malverne/West Hempstead Herald Merrick Herald Nassau Herald Oceanside/Island Park Herald Oyster Bay Herald Rockaway Journal Rockville Centre Herald South Shore Record Valley Stream Herald Wantagh Herald Sea Cliff/Glen Head Herald Seaford Herald Uniondale Beacon MeMBer: Americas Newspapers Local Media Association New York Press Association Baldwin Chamber of Commerce Published by richner communications, inc. 2 Endo Blvd. Garden City, NY 11530 LIHerald.com (516) 569-4000

What the George Santos discourse is missing

Many of us in Nassau County, myself included, are disgusted by the lies that Republican congressman George Santos has been spewing on a near-daily basis. Like many others, I would like to see Santos resign.

But this isn’t about Santos. We need to begin a conspicuously absent conversation about the Democratic incompetence that led to Santos being a factor in the first place.

It’s an important discussion for Democrats to have, not least because the next George Santos may not be such a liar. The goal of Democrats should be to decisively defeat Republicans because of better ideas, not to pin hopes on sporadic scandals in order to notch victories.

The narrow focus on Santos as an unprecedented liar blurs that goal. For me, Santos’ lies just made him worse; it was his policies, which would increase inflation and put doctors in jail for giving abortions, that made him a deal-breaker. Santos shouldn’t be in office, not because

he lies a lot (though that’s part of it), but simply because he’s a cruel politician.

So how did Democratic incompetence lead us to Santos? Well, in January 2022, Robert Zimmerman announced his candidacy for the Democratic nomination in the 3rd Congressional District. Zimmerman wasn’t well known, but he has been a member of the Democratic National Committee for over two decades.

Zimmerman hadn’t run a campaign since Ronald Reagan was in office, and he had lost all three of his previous elections. To call him vulnerable was an understatement. But the New York State Democratic Committee nevertheless coaxed some serious endorsements to get “their man” into office — including one from Hillary Clinton — and it worked. Zimmerman became the Democratic nominee with just 36 percent of the vote in the party’s primary.

Predictably, Zimmerman went on to lose to Santos by 7.5 percentage points. He received 40 percent fewer votes than Tom Suozzi did in defeating Santos in 2020. Most important, Zimmerman failed to expose Santos’ fraud before the election. Zimmerman claims his campaign “didn’t have the time or money” to “dig

LETTERS

He is a 50-plus-year career politician, and his lies are well documented. I believe that a large number of votes cast in 2020 were against Trump rather than for Biden.

He portrayed himself as a moderate who can negotiate with both sides of the aisle. Since he was elected, it is apparent that he is a left-leaning socialist with a “woke” agenda and has surrounded himself with a like-minded staff. Mr. Kremer mentioned Biden’s visit to Ukraine, but failed to point out that he neglected to find time for the people of East Palestine, Ohio, who could use a show of his support. A visit by Transportation Secretary Pete Buttigieg was too little, too late.

Mr. Kremer touched on the border crisis, but that deserves much more criticism. It is an utterly chaotic situation that continues to plague our nation. Our standing in the world community has diminished as a result of our disastrous withdrawal from Afghanistan, a total embarrassment to those who have always looked to the U.S. as the defender of freedom. I could go on about inflation, the national debt and spiraling crime, but what’s the point? This isn’t the time to give the leader of the free world a break.

March is Red Cross Month, so thank our local heroes

To the Editor:

When emergencies happen on Long Island, like the apartment fire in Baldwin earlier this month that left a number of families without homes to go back to, help can’t wait.

In these dire moments, volunteers from Nassau and Suffolk counties, supported by local financial donors and community partners, help to ensure that their neighbors never face home fires and countless other crises alone.

“Every call is different,” says volunteer Disaster Action Team supervisor Magnolia Chiri of Deer Park, who responds to fires and other emergencies. “Every fire is different. But I go there with this shirt that says ‘Hope,’ so that’s the first thing people see when I show up. ‘Hope’ to me means that there’s a light at the end of the tunnel — that no matter how hard the hardship is, there’s always a little light out there, and there will always be people along the way who will help you.”

More than 90 percent of the work of the Red Cross is done by volunteers, and our mission simply wouldn’t be possible without them. During our 80th annual Red Cross Month celebration this month, we’re

deeper” into his opponent’s background. With 10 and a half weeks until the election and over $3 million in campaign cash? I’m not buying it, especially since it turns out that a Democratic group had already given Zimmerman 87 pages of Santos’ red flags before the election.

WThen again, I err in expecting competency from the New York Democratic Committee. Party chairman Jay Jacobs and his crew oversaw the Democratic bloodbath in Nassau County in 2021 (a county that has 30 percent more registered Democrats than Republicans) and didn’t invest a single dollar in two voting rights propositions that were voted down that year.

Last year, the Democrats came much closer to losing the governorship to a Republican than they anticipated in a state where Democrats outnumber Republicans by more than 2 to 1, and lost 20 percent of the entire Democratic House delegation. The New York Democratic Committee almost single-handedly cost the party the House of Representatives.

Democrats performed worse in every single county in New York state than they did in 2020. And yet the state committee re-elected Jacobs party chairman a few

months back.

We wouldn’t have to be reading these offensive stories about Santos pretending to be the descendant of Holocaust survivors if Democrats had just done their job.

But when I read stories about Democratic Party bosses, like Brooklyn’s Frank Seddio, handing out contracts worth hundreds of thousands of dollars to their close associates, I start to wonder whether they actually want to win.

It appears to me that the state Democratic committee is perfectly willing to gamble a loss on a poor candidate. As long as the money’s flowing in, what’s it to them? In fact, the scenario as it’s unfolding seems to be exactly what they want. The more the discussion centers on Santos as an aberration, the less we discuss holding the lazy, sclerotic, corrupt party machine accountable for letting people like him win in the first place.

Well, I do mind. I do care about the Democratic agenda. Here’s some tough love: It’s time to clear house and find new leadership that’s interested in winning. Because when the machine finally collapses, it’s going to be regular Democrats who get hurt.

Matthew Adarichev is a public policy major at Hofstra University, a political activist and an aspiring journalist whose work has appeared in the Hofstra Chronicle and the Anton Media Group.

proud to honor their selflessness and dedication, as well as our committed donors and partners. They are all community heroes who helped the Red Cross respond to 369 disasters on Long Island last year, assisting more than 1,700 of their neighbors. They also dedicated countless hours to teaching lifesaving and preparedness skills, and installing free smoke detectors in our communities.

You can join the celebration by visiting RedcCross.org to make a donation, become

a volunteer or take a class to learn lifesaving skills like first aid, CPR and how to use an AED. Donations help us provide shelter, food, relief items, emotional support and other assistance for people affected by disasters big and small.

On behalf of those we serve, we thank everyone who makes our lifesaving work possible.

27 BALDWIN HERALD — March 23, 2023
On STEAM Day, perhaps an engineer of the future? — Merrick
East Norwich
e can’t expect competency from the state Democratic committee.
OPINIONS
MATTHEW ADARICHEV

HERE FOR EVERY MOMENT OF EVERY LIFE

At Catholic Health, exceptional medical care and personalized support is inspired by every one of you.

Our Faith puts all your needs and comfort first. So, our innovative medical care is always delivered with unmatched compassion. It’s because we understand that we’re not treating just patients, we’re treating someone’s family, best friend, and neighbors to us all.

Learn more at chsli.org

March 23, 2023 — BALDWIN HERALD 28
1200001

Turn static files into dynamic content formats.

Create a flipbook
Issuu converts static files into: digital portfolios, online yearbooks, online catalogs, digital photo albums and more. Sign up and create your flipbook.