architecture portfolio

Page 1

Riccardo Masala 2019-2022 PORTFOLIO

Riccardo Masala

Portfolio - Selected works

Personal data

born in date

nat.

Cagliari 01/01/1997

italian

Contacts

email tel ricc.masala@gmail.com

+39 3498972679

+33 767843149

Languages

italian mother tongue

english CEFR C1 - Academic IELTS 6.5 - obtained in February 2019

spanish

french intermediate base knowledge

Programs

Autocad 2D

Revit

Adobe Suite

Rhinoceros

Google SketchUp

Skills

Team work

Graphic design

QGis

Vray Office Suite 3DS max Archicad

Model making

Hand drawining

Education

2010 - 2015

sept 2015 - jul 2019

sept 2019 - jul 2022

Workshop

oct 2018

aug 2019

sept 2019

Competition

jun - sept 2020

High School Diploma scientific high school ‘Euclide’ | Cagliari, Italy

Bachelor Degree in Architecture

Politecnico of Turin | Italy

Master Degree in Architecture Costruction City Politecnico of Turin | Italy

result: 110 cum laude

Architettura Salemi Entanglement

Biennale Internazionale Arte Contemporanea Sacra di Sicilia | Salemi, Italy

tutors: prof. R. Dini and prof. P.A. Croset

TeMa - Territori Marginali

Solan, Italy

tutors: prof. A. De Rossi and prof. R. Dini

Atelier 2000 - Scenari di progetto in alta quota

Introductive Workshop | Bionaz, Italy

tutors: prof. R. Dini

Prosperous Lishui

Future Shan Shui City

team: Politecnico of Turin’s China Room and South China University of Technology (SCUT) | Guangzhou, China

result: 3rd place

feb - may 2021

Reuse the fallen church

Reuse Italy | participants

Work Experiences

sept - dec 2018

feb 2021 - jun 2021

nov 2021 - may 2022

feb - jun 2022

sept 2022 - jan 2023

feb 2023 -avr 2023

avr 2023 - juil 2023

Publications

Intern at G*AA office - Turin

Collaborator of China Room - Politecnico of Turin supervisors: prof. M. Bonino see more on: @chinaroom_polito

Research Assistant - Politecnico of Turin supervisors: prof. M. Bongiovanni

Teaching assistant - design fundamentals studio supervisors: prof. N. Russi, F. Coricelli see more on: @coexistenzminimumissuu

Junior architect at baukuh - Milan

Internship at ATTA (Atelier Tsuyoshi Tane) - Paris

Junior architect at antoniovirgarchitecte - Paris

2021 China Room report 2021, Torino: Politecnico Bruno, E. et al., 2021 design unit work

Exhibitions

2021 China Goes Urban. The City to Come OF ENOUGHNESS: ISLANDS

MAO, Museum of Oriental Arts, Turin, Italy

ISBN: 9788885745575

EMERGENZE / INTERFERENZE

Alternative spatial occasion for the urban agenda

Master thesis in Landscape and Urbanism

Politecnico of Turin

result: 110 cum laude

Supervisors: Nicola Russi (PoliTo), Federico Coricelli

Team: Riccardo Masala, Ahmed Mansouri, Simona Belluscio

The following work is composed and divided into two books, with very different natures: the first one (01), more analytical, is a research that attempts in observing the city and its urban grid, trying to describe and narrate them both by using references and images of cities; the aim, here, is that of developing a descriptive, more scientific, objective approach. The first book starts with an analysis and interpretation of the current trends in the city of Turin, paving the way for a more theoretical discourse about the urban pattern of the grid and its historical, morphological, social rationales - comparing various models. Following, the work focuses on the so-called emergencies, emerged contradictions, exceptions to the grid - trying to acknowledge most of their features. The theoretical framework structuring and building this piece of work is mostly contained here.

The second book (02) is instead differently organized: it is more of a storytelling, a narration, almost a tale. It focuses on the consequences of the first, theoretical research, attempting to explore the potentialities of other, hidden moments of counterpoint - the so-called interferences - present in the city, identifying and locating them, thus developing three different projects - three themes, three neighbourhoods, three uses.

The aim of the entire work, however, is that of opening a field of research that could be endlessly deepened, perfected, improved, upgraded - acknowledging this is only one of the infinite possible ways of interpreting the city, particularly that of Turin, and all the urban phenomena related to its grid.

See more on: @coexistenzminimum https://www.koozarch.com/archipelago

5
1 km 6 EMERGENZE/INTERFERENZE | Turin patchwork metropolis
1 km 7 EMERGENZE/INTERFERENZE | Gridded Turin

Barriera di Milano, 45.096839°, 7.694474°

Vallette, 45.098972°, 7.646067°

San Donato, 45.078430°, 7.667150°

Aurora, 45.081786°, 7.690221°

Borgo Filadelfia, 45.043272°, 7.659165°

San Donato, 45.079288°, 7.667197°

Cit Turin, 45.072681°, 7.655436°

Barriera di Milano, 45.091888°, 7.689396°

Vanchiglia, 45.071535°, 7.696828°

Aurora, 45.077118°, 7.686538°

Centro, 45.072776°, 7.679802°

Borgo Vittoria, 45.098002°, 7.671134°

Vanchiglia, 45.070129°, 7.695085°

Crocetta, 45.059351°, 7.670997°

Santa Rita, 45.051908°, 7.649251°

Vanchiglietta, 45.071681°, 7.708701°

Lingotto, 45.020453°, 7.664965°

Aurora, 45.088052°, 7.681183°

Vallette, 45.093437°, 7.653217°

Vallette, 45.096962°, 7.650958°

Barriera di Milano, 45.087979°, 7.694833°

Barriera di Milano, 45.090077°, 7.702023°

Pozzo Strada, 45.071334°, 7.62377

Aurora, 45.076685°, 7.697134°

8
I II III IV V VI VII VIII IX X XI XII XIII XIV XV XVI XVII XVIII XIX XX XXI XXII XXIII XXIV 1 km EMERGENZE/INTERFERENZE | Exceptions
9 1km Aurora
Crocetta
EMERGENZE/INTERFERENZE | 3
Vanchiglia
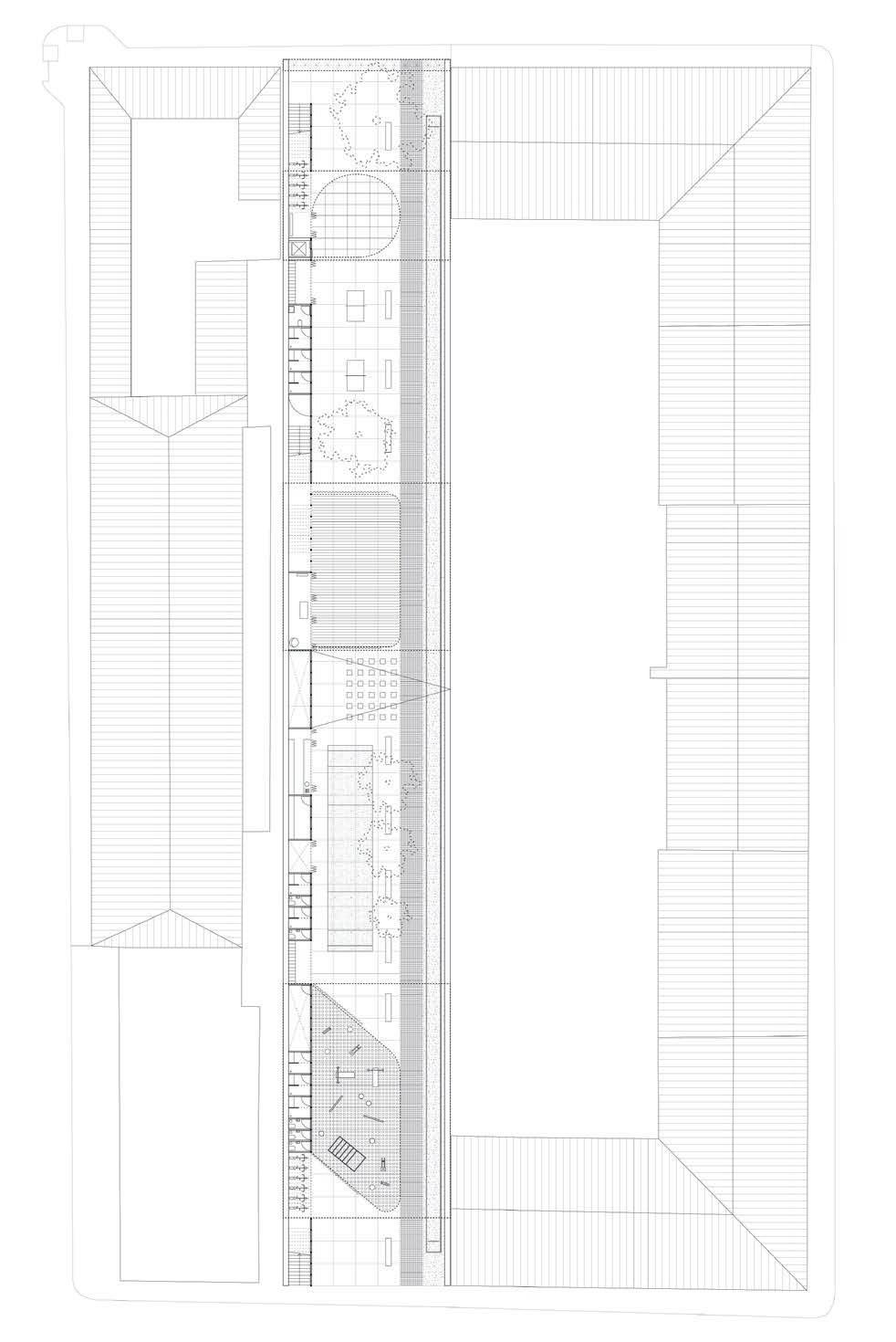
5m 10 EMERGENZE/INTERFERENZE | Vanchiglia groundfloor plan
11 EMERGENZE/INTERFERENZE | Tropical oasis
5m 12 EMERGENZE/INTERFERENZE | Sections
13 EMERGENZE/INTERFERENZE | Tropical oasis
5m 14 EMERGENZE/INTERFERENZE | Crocetta groundfloor plan
15 EMERGENZE/INTERFERENZE | Courtyard gym
5m 16 EMERGENZE/INTERFERENZE | Crocetta first floor plan
17 EMERGENZE/INTERFERENZE | Courtyard gym
5m 18 EMERGENZE/INTERFERENZE | Longitudinal section
19 EMERGENZE/INTERFERENZE | Courtyard gym
5m 20 EMERGENZE/INTERFERENZE | Aurora groundfloor plan
21 EMERGENZE/INTERFERENZE | Tondo
5m 22 EMERGENZE/INTERFERENZE | Aurora first floor plan
23 EMERGENZE/INTERFERENZE | Tondo
5m 24 EMERGENZE/INTERFERENZE | Longitudinal section
25 EMERGENZE/INTERFERENZE | Tondo
26 EMERGENZE/INTERFERENZE | Light echoes
27 EMERGENZE/INTERFERENZE | Light echoes

OF ENOUGHNESS: ISLANDS

New towns along the belt and road

Architecture and Urban Space studio

Supervisors:

Team:

AIRPORT CITY

An island, for the autonomy of its form from the context, (it will become?) a peninsula, for the situation of proximity and the role assigned: an Airport City, a natural extension of the airport infrastructure. Its aim: to resist the process of urbanization that will take place once the growing Lanzhou will gain enough power. Until then, it will counteract the city itself - a kind of oasis in the desert or, to better say, a green island.

KULTURFORUM

Six different spatial experiences, gathered trough an enfilade, form a sort of architectural typologies sequence: a mysterious object that encloses between two walls art, culture and public life.

HOUSING BLOCK

What can be the result of transposing perhaps the less successful soviet residential model into an airport city? From super(block) to mini: from a permanent way of living to a temporary one, from complete isolation to a certain degree of public life. The block components: a socle and some buildings, the first an enclosed village of patio typology housing, the last a collection of different housing models standing upon it. The exception: two digging curves recycle the patio typology to create an ambiguous indoor/outdoor collective experience.

See more on: @chinaroom_polito

Politecnico of Turin Michele Bonino (PoliTo), Alberto Bologna (PoliTo), Angelo Sampieri (PoliTo), Florence Graezer Bideau (EPFL), Arianna Maria Ponzini Riccardo Masala, Ahmed Mansouri, Simona Belluscio
29
30 OF ENOUGHNESS | Natural system
31 OF ENOUGHNESS | Urban morphologies
25m 32 OF ENOUGHNESS | Island
5m 33 OF ENOUGHNESS | Housing block

Section

First fl oor plan

Ground fl oor plan

5m 34 OF ENOUGHNESS | Kulturforum
35 OF ENOUGHNESS | Frames

TOGETHERNESS

Collaborative housing in the Ex Osi Ghia area

Design Unit in Architecture and construction systems

Politecnico of Turin

Supervisors: G. Corbellini (PoliTo), L. Caneparo (PoliTo), S. Becchio (PoliTo), P. Borghino (PoliTo), V. Federighi, C. Corsico

Team: Riccardo Masala, Alessandra Viotti

The Ghia Area is an abandoned urban area not easy to manage due to many issues. The shape of the area is an irregular triangle (a ‘cul de sac’) in-between two branches of the railway coming from Porta Nuova station.

Making this area alive again, importing new flows that keep it active even in the non-central hours of the day, will hopefully also function as a deterrent for some phenomena of illegality present today, uncontrolled flows of unidentifiable people that create a feeling of insecurity.

The project was designed without connections to the context, considering isolation not a weakness but a strength. During the design process, we dealt with the problem of sustainability, better affordability and social integration, concentration and sharing of space, adaptive processes and variability of structures in order to give a greater flexibility over time.

The area was organized by arranging the space rhytmically with six buildings. Those buildings, are placed in relation to the alignment to the railway perpendicularly and one longitudinally in the most extended area to the north-east. Those constructions, which represent the same skin but vary according to length and height, reaching a maximum of seven floors, are organized by five different typologies of short-term accommodations, according to the time of staying and the necessities of different people. The success of the near Toolbox coworking suggests also to look at the needs of youth culture in terms of public and shared spaces.

The facilities and commercial activities in the area mainly support the dwellings, but they also try to attract users from the outside in order to enhance the potentiality of the area.

See

more on: @mmw.arch
37
38 TOGETHERNESS | Axo
5m 39 TOGETHERNESS | Ground floor plan
5m 40 TOGETHERNESS | Type floor plan
41 TOGETHERNESS | Perspective section
42 TOGETHERNESS | Housing
90 cm 43 TOGETHERNESS | Details

Reuse Italy competition

Chiesa Diruta

Reuse the fallen church

The main concern with the Chiesa Diruta is how to reactivate such an important building without compromising its identity within the fabric of Grottole. To do so, the project rotates around simple and elementary actions, almost the bare necessary, and the idea of respecting as much as possible the spatial configuration of the church typology.

URBANITY

Besides the main events that could take place in the church, the project starts from the urban possibilities that can emerge from the ruin position. Strategically located between the dense town and the landscape of the Murge, the intervention aims at re-enabling the urban relevance of the Chiesa Diruta. To do so, the first move is to setback the new façade, to keep the original one, offering to the city a public space, giving the perception of being inside the church while still being outdoor. A kind of external lounge, the square absorbs the incoming fluxes of people and offers a public path from the city to the rooftop, a larger square on top of the ruin, that allows both outdoor events and a panoramic view of the surrounding landscape. On the other side of the church, 8 meters below the main floor plan, the project profits from the presence of a small square, to place the bar/restaurant activity that can extend outdoor and enjoy the panoramic view. Both these aspects are meant to be firstly opportunities for the citizens that can live the church as before, regardless of the activities of the new concert hall.

TOWER

A new ‘campanile’ reconstructs the image of what was there: within the massive walls of the former bell tower, a new light structure finds its own space, reshaping the townscape of Grottole. This element becomes an urban reference, still respecting his ‘competitors’: the Schinulfo Castle and the Chiesa Madre. Besides its urban role, the tower is mainly allowing to reach the different levels around which the projects are articulated: the matroneum, and the rooftop.

ROOFTOP

Instead of emerging from the church, the rooftop platform is inserted slightly below the level of the corniche, giving the sensation of being on a terrace surrounded by the original walls.

CONCERT HALL

The new concert hall is intended to be a simple and flexible space, in order to absorb the different events and activities imagined. The nave is left as a big void perceiving the typical reverb of a church, with a matroneum added on a different level, suspended from the roof structure. When not necessary, mobile furniture can be stored in two lateral apses, allowing for different activities to take place within the central space. The main guests have an independent entrance from the transept, with a dedicated level for personal space

Grottole, Matera Team: Riccardo Masala, Ahmed Mansouri, Simona Belluscio
45
5m 46 CHIESA DIRUTA | Concert hall
Ground fl oor plan Longitudinal section
47 CHIESA DIRUTA | Frames

Turn static files into dynamic content formats.

Create a flipbook
Issuu converts static files into: digital portfolios, online yearbooks, online catalogs, digital photo albums and more. Sign up and create your flipbook.
architecture portfolio by riccardo.masala - Issuu