Skip to main content

REVISTA CLIMA 315

Page 1


2026 / Año 49

ISSN N°0327-5760

Auspiciada por: Capítulo ASHRAE de Argentina

Cámara Argentina de Calefacción, Aire Acondicionado y Ventilación

Asociación Argentina del Frío

24 / Centros de datos, IA y refrigeración líquida

28 / Soluciones alternativas para las necesidades de refrigeración de los centros de datos

24 Centros de datos, IA y refrigeración líquida.

28 ACTUALIDAD. Soluciones alternativas para las necesidades de refrigeración de los centros de datos.

32 ACTUALIDAD. Una ciudad centrada en la eficiencia energética.

Revista

Auspiciada por:

Capítulo ASHRAE de Argentina

Cámara de Calefacción, Aire Acondicionado y Ventilación

Asociación

Argentina del Frío

36 ASHRAE. ¿Podemos eficazmente descarbonizar sin considerar la eficacia de la ventilación?

60 Bombas de calor híbridas: Una solución óptima para la descarbonización de los edificios.

70 Medir el movimiento crea una nueva forma de mapear la contaminación del aire en interiores.

82 OBRA PARA DESTACAR. El patrimonio se adapta al futuro: el desafío de modernizar edificios históricos en Argentina.

84 ARQUITECTURA SUSTENTABLE. El cáñamo: un cambio radical para la industria de la construcción.

88 ACTUALIDAD. La innovación, la comunidad y el futuro de HVACR dominan Las Vegas.

94 INFORME TÉCNICO. Los pilares de un Data Center eficiente y confiable: climatización y control inteligente.

96 INFORME TÉCNICO. El mercado solar entra en una nueva etapa.

98 INFORMACIONES DE LA CACAAV. CIAR 2026 XVIII Congreso Iberoamericano de Aire Acondicionado y Refrigeración.

La economía digital ya no es una promesa futura: es la infraestructura invisible que sostiene nuestra vida cotidiana. La expansión del comercio electrónico, la bancarización digital, el crecimiento del streaming, los servicios en la nube y, más recientemente, las aplicaciones de inteligencia artificial están impulsando una mayor demanda de infraestructura IT local y regional. Detrás de esa expansión silenciosa se encuentran los data centers, y en su núcleo crítico, los sistemas de enfriamiento. Esta evolución trae consigo un desafío térmico de escala inédita: racks con densidades cada vez mayores, cargas térmicas concentradas y requerimientos de operación ininterrumpida. En este contexto, el enfriamiento dejó de ser un sistema auxiliar para convertirse en un componente estratégico. La eficiencia energética del sistema térmico impacta directamente en el PUE (Power Usage Effectiveness), indicador clave en la industria. Reducir décimas en el PUE no es un detalle técnico: implica millones de dólares en ahorro operativo y una disminución sustancial de la huella de carbono.

Para la industria de climatización y refrigeración, el mercado de data centers representa una de las áreas de mayor crecimiento global. No se trata solo de provisión de equipos, sino de ingeniería integral: diseño térmico, simulación CFD, selección de sistemas, integración eléctrica y garantía de continuidad operativa.

Argentina cuenta con data centers corporativos, bancarios y de telecomunicaciones consolidados, además de instalaciones de “colocation” que buscan certificaciones internacionales. El desafío no es menor.

La ecuación energética argentina —marcada por costos variables, necesidad de eficiencia y una creciente presión por reducir emisiones— convierte al diseño térmico en una variable estratégica. En un data center, entre el 30% y el 45% del consumo eléctrico total puede estar asociado directa o indirectamente al enfriamiento. En un contexto de tarifas en revisión y exigencia de optimización operativa, cada punto de eficiencia cuenta.

Esto abre una oportunidad clara para la ingeniería nacional: optimizar con inteligencia, no sobredimensionar, y diseñar con criterio de eficiencia desde el inicio.

La especialización técnica es determinante. Los estándares internacionales, las certificaciones de eficiencia y la confiabilidad operacional elevan la vara profesional. El instalador y el proyectista deben comprender tanto la termodinámica como la arquitectura IT.

La economía digital argentina seguirá creciendo. Y detrás de cada transacción, cada operación bancaria y cada servicio en la nube, habrá una constante invisible pero imprescindible: frío confiable, eficiente y bien diseñado.

En definitiva, el enfriamiento de data centers es mucho más que una aplicación específica: es el punto de convergencia entre tecnología, energía y sostenibilidad. En un mundo cada vez más digital, la eficiencia térmica se convierte en una condición esencial para el desarrollo económico.

La editora

pCO5 +HS

Controlador lógico programable (PLC) para aplicaciones dedicadas. Rendimiento mejorado en cuanto a tiempos de aplicación como la velocidad de actualización. Totalmente compatible con la gama completa de controles pCO3 y pCO5, tanto en hardware como en software.

iJF

Gestiona los protocolos de comunicación más utilizados en HVAC/R (Modbus, Carel, BACnet, LonWorks, KNX, HTTP, SNMP).

La nueva gama de controladores iJ ha sido diseñada para satisfacer las necesidades del mercado de la refrigeración comercial. Son ideales para cámaras y góndolas frigoríficas. Poseen conectividad NFC y Bluetooth, y permiten la gestión de compresores de velocidad variable (VCC), humedad y dispositivos modulantes. Estos controles representan la evolución de las familias IR33 y PJ easy.

Humidificadores

IR33 universales

Termostatos, presostatos, humidistatos:

Controles universales de 1, 2, y 4 etapas con la posibilidad de controlar temperatura, humedad o presión.

Distintos modelos con entrada para sondas NTC, PT100, termocuplas J/K, corriente 4-20mA, tensión 0-1Vdc.

La más completa y moderna línea de humidificadores, abarcando desde vapor por electrodos sumergidos o a resistencia, hasta atomizadores por aire comprimido, incluyendo centrífugos, ideales para cámaras frigoríficas. Soluciones para todas las aplicaciones, desde confort hasta los más estrictos requerimientos industriales.

Boss mini

Boss mini es el nuevo sistema de supervisión para instalaciones de tamaño pequeño y mediano. Gestiona hasta 50 dispositivos, conectividad garantizada y optimización de su sistema con posibilidad de sinópticos personalizados. Notificación inmediata de alarmas mediante mails, sms, mensajes de Telegram. Amplia información, registro de alarmas y variables, fácil visualización mediante gráficos personalizables. Integración de cada dispositivo mediante comunicación serial o IP. Integración de dispositivos de terceros con comunicación Modbus y BACnet. La disponibilidad del protocolo MQTT facilita aún más la integración la integración con los sistemas estándar más utilizados en el mercado.

NUEVO LANZAMIENTO

• MÁS PODER CALORÍFICO

• MAYOR CONFIABILIDAD

• ODORIZADO PARA MAYOR SEGURIDAD

Gas propileno para altas prestaciones Temperatura máxima de llama 1982ºC Peso neto 400 g

Polo Industrial Ezeiza. Puente del Inca 2450 – Lote 149, Carlos Spegazzini, Buenos Aires, Argentina.
Hecho en Argentina

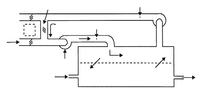
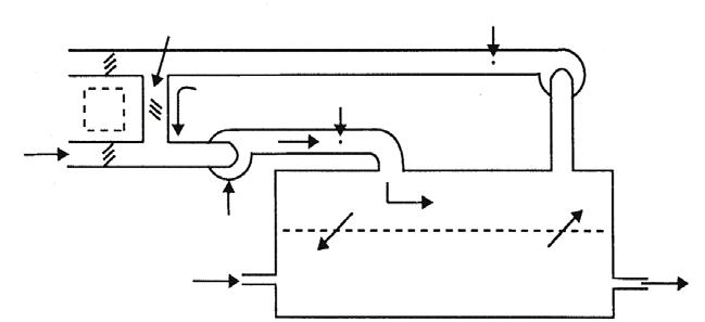
Refrigeración Híbrida

Centro de Datos de Hiperescala

En los centres de dates de Hiperescalas, donde las cargas termicas son extremadamente altas y la eficiencia energetica es primordial, Mitsubishi Electric ofrece soluciones de refrigeraci6n hfbrida avanzadas que combinan tecnologfas de refrigeraci6n lfquida y por aire.

jVea el video para obtener I mas informaci6n! '1-

Este enfoque integrado permits un control preciso de la temperatura, un uso optimizado de la energfa y la maxima tiabilidad, incluso en las condiciones operativas mas exigentes.

Gracias a su amplia experiencia en sistemas de refrigeraci6n para TI y su firme compromiso con la innovaci6n, Mitsubishi Electric proporciona arquitecturas de refrigeraci6n hfbrida flexibles, escalables y sostenibles basadas en enfriadoras par aire con tecnologfa de refrigeraci6n gratuita, muros ventiladores de agua frfa y unidades de distribuci6n de refrigeraci6n (CDU),

disefiadas para satisfacer las necesidades cambiantes de las infraestructuras digitales.

Actualmente, la refrigeraci6n hfbrida permits a los centros de datos de hiperescalas mejorar el rendimiento general del sistema y contribuir a sus objetivos de media ambiente al reducir el uso de refrigerantes y las emisiones locales de C02.

Con las soluciones de refrigeraci6n hfbrida de Mitsubishi Electric, los centros de datos hiperescalables pueden operar de forma eficiente, sostenible y segura.

AIR TECHNIK S.R.L.(CERMAC)

Tomas Guido 786 {1834)

Temperley, Bs. As. - Telefax: 011 58183224

Email: guespe@cermac.com.ar

ENERGY VALVE

• Medición y gestión de energía

• Optimización del Delta T

• Monitoreo de glicol

• Análisis en la nube

• Rendimiento dinámico y amplia compatibilidad.

• Soporta diversas plataformas de comunicación: Cloud, BACnet, Modbus y Belimo MP-Bus

PIFLV – VÁLVULA LIMITADORA DE CAUDAL + VÁLVULA DE CONTROL

• Rangos de Caudal: 295 a 3611 l/h

• Rangos de Diámetros: ½” a 1”

• Tipos de Actuadores: Retorno por Motor, Retorno por Resorte o Capacitor.

• Tipos de Control: On-O

SENSORES, TRANSMISORES Y ACCESORIOS

Presión, Humedad Relativa, Humedad Absoluta, Punto de Rocío, Entalpía. Dióxido de Carbono (CO2). Temperatura. Caudal.

VÁLVULA GLOBO

Centros de datos, IA y refrigeración líquida

La adopción de refrigeración líquida en los centros de datos ha llegado a un momento crítico. La industria de los centros de datos está atravesando una ola transformadora de innovación, impulsada por la creciente demanda de cargas de trabajo con uso intensivo de recursos informáticos.

Tareas como la computación de alto rendimiento (HPC) y la inteligencia artificial (IA), que abarcan el entrenamiento, la inferencia por lotes y la inferencia en línea, impulsan el desarrollo de equipos de TI avanzados adaptados a estas necesidades.

Esta tendencia está transformando el panorama de los centros de datos, con un aumento de instalaciones dedicadas a la IA o a fábricas de IA. Esto ha generado una creciente demanda de sistemas de TI con mayor potencia de diseño tér-

mico (TDP), mayores densidades de potencia en rack y requisitos de refrigeración más estrictos. Un desafío clave es abordar las cambiantes demandas de las cargas de trabajo con soluciones altamente eficientes y sostenibles, a la vez que se reduce el riesgo operativo.

La tecnología

La convergencia de la IA y la refrigeración de los centros de datos plantea un dilema acuciante. A medida que la potencia computacional continúa aumentando, la necesidad de soluciones avanzadas de transferencia de calor se vuelve crucial, desafiando los métodos de refrigeración por aire existentes. Actualmente, los centros de datos dedicados a la IA gestionan densidades de potencia de aproximadamente 120 kW por rack. Sin embargo, se prevé que estos límites aumenten conside-

rablemente, alcanzando potencialmente los 300 kW, 600 kW o incluso 1 MW por rack. Para satisfacer estas crecientes demandas, la refrigeración líquida se consolida como una tecnología esencial en la próxima generación de centros de datos. Las tecnologías de refrigeración líquida se pueden clasificar en general en enfoques directos al chip (DtC), de inmersión e híbridos:

• Directo al chip (DtC): Un fluido circula directamente al chip a través de una placa fría, enfocando eficazmente los componentes más calientes, como CPU y GPU, para una transferencia de calor eficiente. También se requiere refrigeración por aire para complementar la refrigeración de los demás componentes electrónicos.

• Inmersión: El equipo informático está sumergido en un fluido dieléctrico, lo que permite la transferencia directa de calor de todos los componentes al líquido.

• Híbrido: La refrigeración precisa de DtC se combina con el enfoque integral de inmersión para lograr una gestión térmica superior. Cabe mencionar que los enfoques híbridos también pueden referirse a una combinación de soluciones de aire y líquido, pero en este artículo nos centraremos en las soluciones de refrigeración líquida.

Estas tecnologías de refrigeración líquida se diferencian aún más según el uso de fluidos monofásicos o bifásicos para la transferencia de calor:

• Monofásico: Los fluidos permanecen en estado líquido durante todo el proceso de enfriamiento, absorbiendo calor y transfiriéndolo a un intercambiador de calor sin cambio de fase. Los principales tipos de fluidos monofásicos para DtC son agua (tratada) y agua con propilenglicol, y para inmersión son fluidos minerales, sintéticos o de bioaceite.

• Bifásico: Los fluidos pasan de líquido a gas

durante el proceso de enfriamiento, aprovechando este cambio de fase para mejorar significativamente la eficiencia de la transferencia de calor. Los fluidos bifásicos incluyen fluidos de ingeniería y refrigerantes.

El aumento de las demandas computacionales, como las cargas de trabajo intensivas, los servidores con coprocesadores y las mayores densidades térmicas y de potencia, han acelerado la adopción de soluciones de refrigeración líquida. La innovación tecnológica también ha desempeñado un papel fundamental, promoviendo una mayor eficiencia energética, un menor consumo de agua, la reducción de las emisiones de ruido, un uso más eficaz del espacio físico y un mejor coste total de propiedad (TCO) a lo largo de su vida útil. La sostenibilidad sigue siendo un aspecto clave, ya que reduce las emisiones de gases de efecto invernadero (GEI), disminuye el consumo de energía y agua, y permite la reutilización del calor residual.

Además, los esfuerzos regulatorios apuntan a soluciones de enfriamiento más eficientes y sustentables, mientras que las iniciativas gubernamentales como el programa ARPA-E Coolerchips del Departamento de Energía de EE. UU. continúan apoyando los avances. Sin embargo, persisten diversos desafíos. Los sistemas de refrigeración por aire siguen dominando la industria de los centros de datos como una solución probada. La innovación tecnológica genera preocupaciones como un mayor gasto de capital, escasez de mano de obra cualificada, incertidumbres en la cadena de suministro, complejidades en la manipulación de equipos informáticos, limitaciones en la capacidad de carga y suspensión de planta, e incógnitas sobre la fiabilidad y la sostenibilidad. La falta de estándares y mejores prácticas subraya la necesidad de estandarización, procedimientos operativos, métricas innovadoras y fluidos ecológicos. Además, las regulaciones que restringen los

refrigerantes con alto potencial de calentamiento global (PCG) y los fluidos dieléctricos que contienen sustancias perfluoroalquiladas y polifluoroalquiladas (PFAS) dificultan su adopción.

Se prevee que la adopción de la refrigeración líquida en estos centros se acelerará en los próximos años, especialmente para equipos informáticos donde las soluciones de refrigeración por aire resultan ineficaces. A continuación, presentamos perspectivas sobre diversos aspectos, incluyendo consideraciones generales, avances tecnológicos clave e innovaciones emergentes. Las consideraciones generales para el futuro de la refrigeración líquida se pueden resumir de la siguiente manera:

• Impulsando la innovación mediante estándares: El desarrollo de estándares y mejores prácticas en la industria impulsará la innovación. A medida que los equipos y la tecnología evolucionen, los estándares serán esenciales para el desarrollo de soluciones de vanguardia, lo que impulsará el crecimiento de la industria de los centros de datos.

• No existe una solución universal: coexistirán diversas tecnologías de refrigeración líquida, adaptadas a factores como la ubicación, la aplicación y los requisitos del proyecto. La colaboración será esencial para identificar estrategias eficaces de refrigeración líquida.

• Confiabilidad, modularidad y flexibilidad: estas cualidades serán clave para la adopción e implementación generalizada de sistemas de refrigeración líquida.

Los principales avances tecnológicos en refrigeración líquida en centros de datos incluyen:

• DtC: Monofásico. La creciente demanda de soluciones de placa fría capaces de gestionar TDP más altos subraya la importancia de los avances tecnológicos en DtC, y en particular en la tecnología de placa fría, incluyendo el

enfoque bifásico. Actualmente, los DtC y los intercambiadores de calor de puerta trasera (RDHx) dominan el panorama de la refrigeración líquida en los centros de datos.

• Unidades de distribución de refrigeración (CDU) de mayor capacidad: se proyecta que los nuevos diseños de CDU evolucionen aún más para cumplir con la confiabilidad y flexibilidad para los crecientes requisitos térmicos a nivel de rack y escala de MW.

• Inmersión: Es probable que el enfriamiento por inmersión monofásico siga siendo la solución preferida para las aplicaciones de criptomonedas, mientras que el enfriamiento por inmersión bifásico seguirá satisfaciendo requisitos de nicho específicos.

• Nuevos fluidos dieléctricos: Los fabricantes están abordando los desafíos relacionados con las PFAS y el PCA mediante el desarrollo de alternativas más ecológicas. Se prevé que las regulaciones geográficas sobre fluidos bifásicos y refrigerantes afecten su adopción.

Las innovaciones emergentes y los enfoques prometedores en refrigeración líquida:

• Refrigeración líquida híbrida: La combinación de refrigeración líquida directa de precisión y refrigeración líquida por inmersión presenta una estrategia eficaz para gestionar cargas térmicas más elevadas, a la vez que promueve la sostenibilidad. Este enfoque combinado también puede impulsar la reutilización del calor y reducir considerablemente, o incluso eliminar, el consumo de agua.

• Integración microfluídica: la integración de canales microfluídicos directamente en los diseños de chips acerca los fluidos de enfriamiento a los procesadores, revolucionando la eficiencia de la transferencia de calor.

• Diamante: La alta conductividad térmica del diamante sintético puede mejorar el rendimiento térmico y la confiabilidad a nivel de chip, como en un disipador de calor o sustrato.

• Nanofluidos: Los nanofluidos infundidos con nanopartículas a base de silicio están ganando impulso ya que mejoran significativamente la transferencia de calor.

Además, identificar a los principales proveedores es fundamental. Las siguientes listas, ordenadas alfabéticamente, pretenden ser una selección representativa, no una recopilación exhaustiva.

• DtC: Accelsius, Advanced Cooling Technologies, Boyd, Chilldyne, CoolIT Systems, Danfoss, Dell, Delta, GF Piping Systems, Hewlett-Packard, Huawei, IBM, Inspur, Jetcool, Lenovo, Mikros Technologies (de Jabil), Motivair (de Schneider Electric), Supermicro, Wieland, Zutacore

• Inmersión: Airedale (de Modine), Asperitas, Baltimore Aircoil Company, DCX Liquid Cooling Systems, Gigabyte, Green Revolution Cooling, Hypertec, Iceotope, LiquidCool Solutions, LiquidStack, Mara, Midas Immersion Cooling, Submer, Supermicro, Quanta, Wiwynn

• CDU: Accelsius, Airedale (Modine), Boyd, Chilldyne, CoolIT Systems, Delta, Envicool, Excool, FlatkGroup, Jetcool, LiquidStack, Motivair (de Schneider Electric), Munters, Nortek, nVent, Rittal, Supermicro, Stulz, Trane, Vertiv

• Fluidos: 3M, Cargill, Castrol, Chemours, Chevron, ExxonMobil, Lubrizol, Shell, Solvay, Valvoline

La innovación es clave para escalar la tecnología de refrigeración líquida, lo que reafirma la idea de que la necesidad suele impulsar la invención. Al aprovechar los avances tecnológicos, fomentar las colaboraciones y afrontar los desafíos, la industria de los centros de datos está bien posicionada para satisfacer eficazmente la creciente demanda.

Fuente: https://www.datacenterdynamics.com

Autor: Moises Levy. CEO, DCMETRIX.

Soluciones alternativas para las necesidades de refrigeración de los centros de datos

Los centros de datos dependen en gran medida del agua para su enfriamiento, pero las fuentes alternativas pueden reducir la presión sobre los sistemas municipales y respaldar la sostenibilidad.

Los centros de datos son el corazón de la era digital, impulsando todo, desde las compras en línea hasta los complejos cálculos de IA. Sin embargo, estos centros neurálgicos digitales tienen una gran demanda de un recurso cada vez más escaso: el agua. A medida que los centros de datos siguen creciendo, también crece su demanda de agua. Estados Unidos lidera el mundo en centros de datos, con más de 5000 en funcionamiento. Le sigue Alemania con poco más de 500. La superficie física

de los centros de datos varía entre 93 y más de un millón de metros cuadrados, con un promedio de unos 100 000. Según una estimación, para 2025 se crearán 175 zettabytes de datos, lo que representa un aumento de 146 veces desde 2010.

La mayoría de los centros de datos consumen una cantidad significativa de agua, principalmente en sus sistemas de enfriamiento. La cantidad exacta que consumen sigue siendo desconocida, en gran parte debido a la falta de transparencia de los principales proveedores. Asimismo, es difícil determinar las mediciones exactas, ya que el agua se utiliza tanto para refrigerar las máquinas como para generar la electricidad que las alimenta.

La generación de electricidad puede consumir hasta cuatro veces la cantidad de agua que se utiliza en la refrigeración directa. Los centros de datos representan en Estados Unidos casi el 2% del consumo total de electricidad. Si bien alrededor del 40 % de los datos se almacenan en pequeños servidores locales, cada vez más datos se externalizan a operaciones remotas masivas.

Una investigación del Uptime Institute sugiere que un solo gran centro de datos consume hasta 6,75 millones de galones de agua al año. Un artículo de 2021 estima un promedio de unos 150.000 galones. Hasta el 57 % podría provenir de suministros de agua potable, algo inusual para uso industrial. Sin embargo, el impacto negativo del consumo de agua en las comunidades y el medio ambiente puede variar considerablemente en función de un factor clave: si el agua proviene de suministros municipales.

En general, los centros de datos suponen una carga significativamente mayor para los hogares y las empresas cuando compiten con ellos por el agua suministrada a través de los sistemas municipales, en lugar de obtenerla de fuentes privadas alternativas.

Encontrar alternativas al agua municipal es una forma de conciliar la necesidad de los centros de datos con la necesidad de ser un buen vecino. Afortunadamente, existen diversas soluciones en este sentido.

El agua municipal y los centros de datos

En la mayoría de los casos, la forma más sencilla de obtener el agua que los centros de datos necesitan para su refrigeración es a través de los sistemas municipales de agua. Esto elimina la necesidad de que los operadores de los centros de datos construyan y mantengan su propia infraestructura de recolección y filtración de agua. Por lo tanto, no sorprende que el agua municipal represente aproximadamente el 95 % del consumo total de agua de los centros de datos.

Desde la perspectiva de las comunidades que también dependen del agua municipal, esto no siempre es positivo. Consideremos, por ejemplo, que un solo centro de datos puede consumir tanta agua como los residentes de todo un estado (al menos, ese es el caso de un centro de datos en Iowa). Cuando los centros de datos consumen una cantidad significativa de agua, pueden provocar escasez en hogares y negocios. También pueden contribuir a un aumento en los costos del agua, ya que construir y mantener una infraestructura hídrica capaz de satisfacer las necesidades de un centro de datos es una tarea costosa para las agencias de agua.

Se espera que la presión sobre los sistemas públicos de agua empeore a medida que los centros de datos consuman más electricidad, lo que genera mayores demandas de refrigeración, y la escasez de agua subterránea hace que los sistemas municipales que dependen menos de los pozos sean menos efectivos.

Fuentes de agua alternativas para centros de datos

Explorar fuentes de agua alternativas es esencial para que los centros de datos reduzcan su dependencia del suministro municipal y minimicen su impacto en las comunidades locales. Incluso en instalaciones con conexión a la infraestructura hídrica municipal, es posible obtener parte o la totalidad del agua que normalmente utiliza un centro de datos mediante medios alternativos.

1. Agua de ríos o lagos

Una opción es obtener agua directamente de ríos o lagos. Si los centros de datos están cerca de una fuente de agua superficial como esta, es probable que sea viable, desde una perspectiva económica y logística, bombear agua al centro de datos y usarla para refrigeración. Será necesario un poco de filtración para eliminar sedimentos y minerales que podrían obstruir las tuberías o evaporar los sistemas de refrigeración, pero el proceso no es más complicado que en el caso de un sistema de agua municipal que obtiene agua de una fuente similar.

2.

Agua de mar

El agua de mar también se puede utilizar para la refrigeración de centros de datos, una práctica que Google ha adoptado en al menos una de sus instalaciones. Sin embargo, un desafío importante es que el agua salada provocará la acumulación de minerales y corrosión en los sistemas de refrigeración por evaporación utilizados por la mayoría de los centros de datos. No obstante, el agua de mar podría destilarse antes de su implementación para la refrigeración de centros de datos como medio para filtrar la sal

Un enfoque alternativo consiste en sumergir todo el centro de datos en agua de mar, lo que permi-

te la refrigeración directa sin recurrir a las técnicas de evaporación tradicionales. Por ahora, los centros de datos submarinos siguen siendo principalmente experimentales, pero hay indicios de que su uso es cada vez mayor.

El concepto de los centros de datos submarinos es bastante simple: se toma la infraestructura de TI (como servidores y medios de almacenamiento), se instala en un recipiente hermético y luego se sumerge. Esto es precisamente lo que Microsoft hizo con el Proyecto Natick, un centro de datos submarino que inauguró frente a las costas de Escocia en 2018. Dado que los océanos cubren aproximadamente el 70 % de la superficie de la Tierra, no faltan ubicaciones para implementar centros de datos submarinos

El despliegue submarino podría resultar especialmente valioso en entornos donde las empresas desean operar centros de datos cerca de grandes centros de población, donde hay escasez de terrenos no urbanizados pero los centros de datos podrían ubicarse cerca de la costa.

Sin embargo, para que sean prácticos a gran escala, los centros de datos submarinos tendrían que superar algunos desafíos importantes, entre ellos:

• Mantenimiento de hardware: Cuando es necesario reemplazar un servidor o una unidad de

Según se informa, el agua municipal representa aproximadamente el 95% de todo el uso de agua de los centros de datos. Imagen: Alamy.

disco, enviar personal bajo el agua para realizar el trabajo, o trasladar el centro de datos a la superficie, es exponencialmente más difícil que en los centros de datos terrestres. La automatización robótica podría ayudar.

• Conectividad de red: La única forma viable de garantizar una conectividad de red de alto rendimiento para centros de datos submarinos es conectarlos a cables de red. Esto es factible, pero costoso.

• Seguridad física: podrían ser vulnerables a ataques terroristas o de estados nacionales, a quienes probablemente les resulte más fácil atacar una instalación ubicada en el fondo del mar que una en territorio firme y defendible.

• Abastecimiento de energía: Si bien obtener energía de fuentes renovables marinas es atractivo, estas fuentes no siempre son fiables.

3. Agua subterránea

Así como se puede suministrar agua a una casa mediante un pozo en el jardín, es posible obtener agua del centro de datos a través de pozos locales. La salvedad, por supuesto, es que esto solo funciona si hay suficiente agua subterránea disponible para satisfacer las necesidades de agua del centro de datos, y dado que esas necesidades son elevadas en la mayoría de los casos, a menudo no es práctico obtener suficiente agua solo a través de pozos. El crecimiento demográfico, el mayor uso de agua para fines agrícolas y las sequías prolongadas en algunas regiones han contribuido a una grave escasez de agua subterránea en Estados Unidos y otros países.

Pero el agua de pozo podría cubrir al menos una parte de las necesidades hídricas de un centro de datos, reduciendo así la presión sobre la infraestructura hídrica pública. En zonas donde abunda el agua subterránea, gracias a grandes acuíferos o a las frecuentes lluvias, los pozos pueden ser una alternativa completamente adecuada al agua municipal. 4. Aguas residuales

En lugar de obtener agua recién tratada de los sistemas municipales, los centros de datos pueden conectarse a los sistemas de retorno, por así decir-

lo, utilizando aguas residuales que fluyen a través de las tuberías de drenaje municipales.

El desafío obvio aquí es que es necesario eliminar los residuos de las aguas residuales antes de usarlas en procesos como la refrigeración por evaporación. Sin embargo, si el agua se utilizará para la refrigeración de centros de datos en lugar de verterse al medio ambiente, el tratamiento podría no ser tan intensivo como de otro modo. Por lo tanto, existe la oportunidad para que los centros de datos ayuden a las agencias de agua reutilizando sus aguas residuales y, de paso, reduciendo la cantidad de tratamiento que deben realizar las empresas de servicios públicos.

5. Reutilización de aguas grises

De manera similar, los centros de datos podrían depender de las aguas grises, es decir, el agua que fluye por los lavabos o las duchas. Las aguas grises suelen contener menos contaminantes, por lo que requieren menos filtración

Un desafío es que muchos sistemas de drenaje y alcantarillado no distinguen entre aguas grises y residuales, ya que los lavabos, las duchas y los inodoros suelen desembocar en las mismas tuberías. Sin embargo, al colaborar con las agencias de agua, los centros de datos pueden invertir en infraestructura que captura las aguas grises por separado y las utiliza para refrigeración.

El camino hacia la refrigeración sostenible basada en agua

A medida que los centros de datos continúan expandiéndose, sus necesidades de refrigeración requerirán soluciones innovadoras. Al adoptar fuentes de agua alternativas, los operadores pueden reducir su impacto ambiental y fomentar mejores relaciones con las comunidades locales.

En última instancia, lograr un equilibrio entre la eficiencia operativa y la sostenibilidad es crucial para garantizar que los centros de datos sigan siendo viables en un mundo donde los recursos hídricos son cada vez más escasos.

Fuente: DataCenter Knowledge

Una ciudad centrada en la eficiencia energética

El sector de la construcción es uno de los principales pilares en los que se asienta la economía de Hong Kong. La producción de construcción, tanto en el sector público como en el privado, totalizó unos 27.600 millones de EUR en 2022, lo que representa cerca del 9 % del PIB de la región. Sin embargo, es un sector que presenta grandes retos.

Hong Kong es una de las urbes más densamente pobladas del mundo, con la mayor parte de sus 7,5 millones de habitantes residiendo en más de 9.000 edificios de gran altura. Tras la deslocalización de la actividad industrial, el consumo de electricidad se atribuye exclusivamente a edificios residenciales, oficinas y centros comerciales, que son responsables del 90 % del consumo energético, frente a un promedio mun-

dial del 40 %. Este alto nivel de consumo por parte de los edificios trae consigo que sean responsables de la generación de un 60 % de las emisiones de gases de efecto invernadero de Hong Kong, lo que los convierten en elementos centrales de cara a los esfuerzos de ahorro energía y al cumplimiento de los objetivos del Acuerdo de París. Por otra parte, para hacer frente al crónico problema de escasez de vivienda, el gobierno de Hong Kong está impulsando el desarrollo de grandes proyectos de construcción de edificios residenciales en el territorio, con las áreas comerciales, educativas, sanitarias y sociales conexas, así como las necesarias infraestructuras de transportes. El gobierno local estima que el volumen de obra anual en los próximos años ascenderá a 35.000 millones de euros, de los cuales un tercio sería obra pública y el resto proyectos privados de construcción.

La preocupación por el elevado consumo energético de los edificios y la significativa huella de carbono de la construcción han suscitado un reciente interés entre los principales stakeholders del sector por la construcción sostenible. Este sector tiene como fin desarrollar la construcción minimizando el impacto medioambiental en todos sus componentes. El gobierno de la región ha tratado de incentivar la sostenibilidad en los proyectos de construcción. Para ello ha diseñado un marco de incentivos que impulsa a las empresas a adoptar técnicas de construcción sostenibles y favorece al uso de materiales sostenibles La acción de construir edificaciones de una forma sostenible abarca desde la elección de los materiales de construcción y conservación de energía, hasta la demolición y gestión de residuos. El gobierno de Hong Kong se ha fijado ambiciosos objetivos para reducir las emisiones de carbono entre un 65 % y un 70 % para 2030 y el consumo de energía en un 40 % para 2025 (con respecto a 2005). Para alcanzar estos objetivos, Hong Kong ha implementado estrategias “ACT” para mejorar la eficiencia energética de los edificios mediante legislación y colaboración.

¿Qué es el proyecto? ¿Cómo funciona?

El acrónimo “ACT” significa “Aceleración, Colaboración y Tecnología”.

El Departamento de Servicios Eléctricos y Mecánicos (EMSD) de Hong Kong ha implementado una serie de leyes para movilizar a la ciudadanía y promover la eficiencia y el ahorro energético, incluyendo la Ordenanza de Eficiencia Energética de Edificios (BEEO) y el Sistema Obligatorio de Etiquetado de Eficiencia Energética (MEELS). Los estándares de eficiencia energética se actualizan con base en los avances tecnológicos. EMSD también colabora con diversas partes interesadas, como la Plataforma de Diálogo y la Campaña de Ahorro de Energía para Todos, para fomentar la participación comunitaria, y con el Consejo de Edificación Ecológica de Hong Kong para promover la retrocomisión de edificios. Para mantenerse al día con los avances mundiales en tecnologías de eficiencia y conservación de energía (EE&C), EMSD también participó

activamente en el Grupo de Trabajo de Energía del Foro de Cooperación Económica Asia-Pacífico (APEC).

Tecnología

En 2016, la intensidad energética de Hong Kong se redujo un 28 % con respecto a 2005. Para cumplir los objetivos climáticos de Hong Kong, es fundamental implementar mejoras en el rendimiento energético de los edificios. EMSD creó InnoOffice para involucrar a startups, universidades y usuarios finales en la innovación conjunta de soluciones que mejoren la eficiencia energética de los edificios.

¿Cuáles son los objetivos de reducción de CO2?

Desde 2012, más de 800 edificios nuevos y unas 7000 obras de rehabilitación de edificios existentes han cumplido con los requisitos energéticos de BEEO. El ahorro estimado gracias a BEEO fue de 1500 millones de kWh/año en 2020, gracias a la contribución de los nuevos códigos energéticos de la edificación. Con la implementación completa de la última fase de los programas de etiquetado de eficiencia energética en diciembre de 2019, Hong Kong aspira a ahorrar 625 millones de kWh/año. El consumo final de electricidad de ocho tipos de electrodomésticos representa el 70 % del consumo total en el sector residencial.

EMSD ha colaborado con el Consejo de Edificación

Ecológica de Hong Kong para llevar a cabo proyectos piloto de retrocomisionamiento en edificios públicos y privados. Se logró un ahorro energético anual promedio del 5%. Con estos buenos resultados, la ciudad implementará el retrocomisionamiento en 280 edificios gubernamentales durante 7 años, a partir de 2019. A través de la Plataforma de Diálogo, las principales partes interesadas de los socios de la Carta de las 4T del sector de la construcción (unas 40 grandes organizaciones) han colaborado y establecido un objetivo general de ahorro del 5% entre 2015 y 2020. Se estima que la Ordenanza de Eficiencia Energética de Edificios (BEEO) ahorrará 1.500 millones de kWh al año en 2020 (reducirá las emisiones de carbono en 1,06 millones de toneladas). Hasta 2028, BEEO trae -

rá 27 mil millones de kWh de ahorro de energía acumulado de edificios nuevos y existentes, equivalente a una reducción total de emisiones de carbono de 19 millones de toneladas. Los edificios que tienen un buen desempeño en eficiencia energética son cruciales para una mejor habitabilidad y una vida “inteligente” baja en carbono. Tras la implementación completa de la tercera fase del Esquema Obligatorio de Etiquetado de Eficiencia Energética en diciembre de 2019, ahorrará 625 millones de kWh por año (reducirá las emisiones de carbono en 440.000 toneladas). A través de la plataforma de diálogo y la participación, los socios clave de las 4T del sector de la construcción han establecido sus planes de ahorro de energía (2015-20) con un ahorro total de 230 millones de kWh (reducirá las emisiones de carbono en 160.000 toneladas).

Todas las medidas mencionadas podrían ahorrar más de 2.200 millones de kWh en 2020 (reducir las emisiones de carbono en más de 1,5 millones de toneladas). La intensidad energética de Hong Kong se redujo un 28 % en 2016 con respecto al nivel de 2005, convirtiéndose en la más baja de las 21 economías de la APEC.

Próximos pasos

Las soluciones de retrocomisionamiento no solo se promueven en Hong Kong, sino también en la Gran Área de la Bahía (GBA) de China. El Departamento de Servicios Eléctricos y Mecánicos, junto con el Consejo de Edificación Ecológica de Hong Kong y la Sociedad de Ejecutivos de Operación y Mantenimiento de Servicios de Edificios, firmó un Memorando de Acuerdo en noviembre de 2018 con cuatro universidades y organismos profesionales de China continental y Macao para promover el desarrollo y la aplicación de soluciones de retrocomisionamiento en edificios de la GBA. Gracias a la colaboración entre estos socios, se espera que diversas organizaciones de la GBA y otras ciudades de China continental sigan colaborando para adoptar las soluciones de retrocomisionamiento como una nueva solución para lograr la eficiencia energética de los edificios mediante el intercambio de conocimientos, la formación y la participación en conferencias.

El

Desde su establecimiento en 2007, ELEMENTS ha sido un centro comercial destacado ubicado sobre la estación Kowloon en Hong Kong, cubriendo más de 92,900 m². En línea con el compromiso de descarbonización basado en objetivos científicos (SBT) de su propietario, ELEMENTS buscó mejorar la eficiencia energética y mejorar la experiencia general de los ocupantes. Con una capacidad de refrigeración significativa que supera las 7,000 toneladas (25 MW), ELEMENTS experimentó una transformación digital progresiva que incorporó inteligencia artificial (IA) para optimizar la eficiencia energética y el confort interior. Esta transformación incluyó la evaluación de calidad de datos y la retro-comisionamiento (RCx) por parte de los consultores para optimizar las operaciones a través de una plataforma digital. El proceso de RCx logró una reducción superior al 8% en el consumo de energía de la planta de enfriamiento en el primer año de implementación de la IA, mientras que mejoraba la satisfacción del cliente.

Eficiencia energética

Se realizó un retrocomisionamiento al inicio del proyecto para evaluar el rendimiento del sistema e identificar oportunidades de mejora operativa (OIO). Durante esta evaluación, se identificaron varias áreas de mejora del sistema. Estos datos se usaron para entrenar el modelo de IA, asegurando que el equipo y los sistemas del edificio funcionaran de manera cohesiva para maximizar la eficiencia sin comprometer la funcionalidad ni el confort térmico. El modelo de IA simula operaciones óptimas y realiza ajustes basados en datos históricos y pronósticos, lo que ha permitido lograr ahorros de energía de al menos un 8% anual en los sistemas de chiller de MVAC.

IAQ y confort térmico

Se instalaron más de 45 sensores de calidad del aire (IAQ) en todo el centro comercial, monitorizando nueve parámetros para mejorar la optimización del aire fresco. El modelo usa patrones históricos de conteo de personas y técnicas de conteo en tiempo real para ajustar la temperatura y controlar el flujo de aire,

manteniendo la comodidad térmica y la calidad del aire. Además, se incorporaron ciclos de circulación de aire para ajustar las condiciones en tiempo real.

Innovación

Se propuso un marco de evaluación de calidad de datos para los sistemas de gestión de edificios (BMS), siguiendo las normativas internacionales. Este marco resalta la importancia de la calidad de los datos en la capacitación de la IA, permitiendo modelos de IA más confiables para innovaciones tecnológicas en edificios. La IA, alimentada por un gemelo digital, mejora continuamente sus estrategias de optimización mediante el aprendizaje autónomo.

Operaciones y mantenimiento

La transformación digital del edificio ofrece una plataforma integrada que visualiza datos de rendimiento en tiempo real, apoyando el mantenimiento predictivo mediante diagnósticos dinámicos de fallas y alertas tempranas para los operadores. Esta plataforma optimiza la eficiencia operativa y reduce el riesgo de errores humanos.

Costo-efectividad

La plataforma de IA evalúa la rentabilidad del sistema considerando costos de desarrollo de modelos, actualizaciones de infraestructura, costos de nuevos equipos e instalación, y gastos operativos y de mantenimiento. El retorno de inversión (payback) se estima en dos años.

Impacto ambiental

Un objetivo clave del proyecto fue reducir las emisiones de carbono operacionales a través de ahorros de energía en el sistema MVAC. La reducción del 8.9% en energía es equivalente a unas 390 toneladas de CO2. La mejora en la calidad de los datos del BMS permite una comprensión más precisa del entorno interior y el funcionamiento del equipo, lo que puede extender la vida útil de los equipos y reducir la necesidad de reemplazos, disminuyendo el carbono incorporado generado.

¿Podemos eficazmente descarbonizar sin considerar la eficacia de la ventilación?

En todos los edificios nuevos y existentes, el carbono operativo es un factor clave. Los edificios son responsables de aproximadamente el 40 % de las emisiones de CO2 relacionadas con la energía.

En algunos edificios o zonas dentro de ellos (laboratorios, quirófanos, salas blancas, etc.), la energía de ventilación puede representar hasta el 70 % del consumo total. Un enfoque para reducir y gestionar la energía de ventilación consiste en considerar, modificar, medir y poner en marcha la eficacia de los sistemas de ventilación nuevos y existentes. El cambio de mentalidad clave es evitar mezclar todo el aire constantemente. El enfoque de mezcla del siglo XX funciona para fuentes de área, asumiendo que los problemas

de contaminación provienen de los materiales de construcción o el mobiliario y que las poblaciones son homogéneas. Para lo que resta del siglo XXI, debemos abordar las fuentes puntuales, como las personas infectadas o las emisiones localizadas en laboratorios, hospitales o escuelas. En la mayoría de las aplicaciones, tanto la energía de ventilación como la exposición de los ocupantes a los contaminantes pueden reducirse mediante una mejor eficacia de la ventilación.

El punto de partida

La efectividad de la ventilación se abordó por primera vez en la Norma ASHRAE 62, versión de 1989, en la sección 6.1.3. 3 y el apéndice informativo F. El enfoque se basó en sistemas HVAC típicos de EE. UU. que utilizaban la mezcla para el control del confort (Figura 1). Los valores de la tabla de ventilación de la norma (Tabla 2) asumieron condiciones de buena mezcla en la zona ocupada. La efectividad de la ventilación se definió en términos de ventilación total (Vo) y aire de ventilación no utilizado que se extrae (Voe).

Ev = Vo – Voe / Vo (F-3)

La Norma ASHRAE 62.1-2004 fue la primera versión de la norma de ventilación ASHRAE que exigió explícitamente que los cálculos se ajustaran a la efectividad del aire de ventilación que llega a la zona de respiración. La sección 6.2.2.3 exigía que el flujo de aire exterior de la zona se ajustara mediante la ecuación 6-2, donde Vbz es el flujo de aire exterior de la zona de respiración y Voz es el flujo de aire exterior de la zona.

Los valores de E z se proporcionaron en la Tabla 2 de la norma. Valores más altos de efectividad implican que se debe suministrar menos aire a la zona (es decir, mayor efectividad). La tabla reflejaba las prácticas de ingeniería del siglo XX. La mayor parte de la tabla se aplicaba a espacios bien mezclados con E z = 1.0. Se requirieron ajustes para los sistemas de calefacción donde el aire no pasaba por la zona de respiración, con un rango de Ez de 0.5 a 0.8. Se incluyó una entrada para la ventilación por desplazamiento (E z = 1.2) y se aplicaron tolerancias para el cálculo según la Norma ASHRAE 129-1997.

La actualidad

Existen estudios previos a la COVID-19 sobre el movimiento del aire alrededor de las personas que pueden fundamentar las suposiciones para los cálculos y la modelización. ASHRAE RP 1833 es una excelente fuente de información sobre ecuaciones de ventilación y aplicaciones específicas en laboratorios, salas blancas e instalaciones sanitarias. Para el desplazamiento, se debe determinar la ubicación de las fuentes de emisiones y la efectividad de la columna térmica. Existen múl-

FIGURA 1. Sistema típico de distribución de aire según la Norma 62-1989.

Voz = Vbz / E z (6-2)

ECD

tiples fuentes de información en la literatura sobre la efectividad de la ventilación personal.

La investigación posterior a la COVID-19 se ha centrado en la transmisión de una persona infectada y en el rendimiento de la venti

Compuertas

Extracción Ve Vo RVf

Ventilador de suministro

In ltración

pante infectado que si la habitación estuviera perfectamente mezclada (E z = 1).

Ventilador de retorno Vs SVs (1 – S ) Vs Vr Vr

los ocupantes y de 0,2 en un área. Esto significa que las personas en esos lugares estuvieron más expuestas a las emisiones del ocu-

Difusor de suministro

Difusor de suministro

Offi ces

Rejillas de transferencia

Rejillas de transferencia

Difusores de ranura lineal S4

Difusores de ranura lineal

de extracción

m Campana de extracción Campana de extracción

La modificación de la distribución del aire en una sala de conferencias de los Laboratorios Nacionales Sandia resultó en una reducción de la exposición teórica de los ocupantes. El sistema superior se convirtió de una configuración de mezcla completa a un retorno en el centro de la sala con difusores de suministro modificados para limpiar el aire por las paredes. El efecto creó un flujo de aire similar al desplazamiento.

Ex ltración

Johnson y Burroughs informaron una reducción en la exposición a partículas utilizando la ventilación por desplazamiento en comparación con la ventilación con aire mixto. En consonancia con otros estudios de ubicaciones individuales dentro de un espacio, el E z informado varió, pero en todos los casos fue mayor en la zona de respiración con ventilación por desplazamiento en comparación con la ventilación con aire mixto. También correlacionaron un gas trazador de CO2 con el recuento de partículas, con resultados dispares.

FIGURA 2. Diagrama del laboratorio que muestra la ubicación de los dispositivos de suministro y extracción, junto con la generación de trazadores de aire de prueba (G) y las ubica-

Flujo de escape general

Max = Qgexmax

Min = Qgexmin

Flujo de suministro de aire de laboratorio

Max = Qlasmax

Occ. Min = Qlasomin

UnOcc. Min = Qlasuomin

Flujo de suministro de aire de o cina

Max = Qoamax

Min = Qoamin

Estudio de campo reciente

Se realizaron una serie de pruebas de eficacia de la ventilación en un laboratorio de un centro de investigación gubernamental ubicado en Research Triangle Park, Carolina del Norte. Se configuró un laboratorio de varios módulos como se muestra en las Figuras 2 y 3. Se evaporó una masa medi-

da de alcohol isopropílico a una velocidad constante durante aproximadamente 5 minutos. Esto proporcionó un gas trazador liberado en una fuente central. Las pruebas se realizaron con un rango de flujo de aire que proporcionó 2 ach, 6 ach y 8 ach según el flujo de extracción total. El laboratorio funcionó a presión negativa, donde el aire de transferencia (escape total menos suministro total) se extrae de las oficinas adyacentes al laboratorio a través de rejillas de transferencia pasivas. El aire al laboratorio se suministró a través de difusores lineales de ranura de 1,2 m (4 pies) ubicados aproximadamente en el centro del laboratorio. Dos campanas extractoras y dos rejillas de extracción general fueron los principales medios de extracción del espacio del laboratorio. Contrariamente a las expectativas preliminares, los resultados de las pruebas de eficacia de la ventilación indicaron que el laboratorio que operaba a 2 ach (Figura 4) proporcionó una dilución y elimi -

In ltración

Flujo de campana extractora ECD

Max = Qfhmax

Occ. Min = Qfhomin

UnOcc. Min = Qfhuomin

Ex ltración

nación de contaminantes significativamente mejores que el que operaba a 8 ach (Figura 5). Las concentraciones resultantes para 8 ach fueron casi 10 veces peores que las medidas a 2 ach. Este resultado fue inesperado, ya que la dosis teórica (determinada mediante la integración del área bajo la curva) en un escenario de buena mezcla sería mayor con el flujo más bajo, equivalente a 2 ach. Sin embargo, la evaluación de los patrones de flujo de aire interno reveló que el laboratorio no estaba bien mezclado y que el aire que barría el laboratorio era más importante para reducir las concentraciones que el ach. En los siguientes ejemplos, la relación entre el área bajo la curva para la acumulación y la disminución teóricas de las concentraciones y las concentraciones reales de trazadores en el aire proporciona un factor de eficacia de la ventilación. Los diagramas que representan los patrones de flujo de aire, junto con la tabla de datos de prueba y los gráficos de FIGURA 3. Vista lateral del laboratorio que muestra la configuración y ubicación de los dispositivos de extracción y suministro

Difusor de suministro

Difusor de suministro

Supply Di user

Offi ces

Rejillas de transferencia

Difusores de ranura lineal

Campana de extracción

Flujo de escape general

Max = Qgexmax

Min = Qgexmin

General

Supply Di user

Difusor de suministro

Supply Di user Supply Di user

Difusor de suministro

Rejillas de transferencia

Difusores de ranura lineal

7,01 m

Rejillas de extracción

Campana de extracción

Flujo de suministro de aire de laboratorio

Max = Qlasmax

Occ. Min = Qlasomin

UnOcc. Min = Qlasuomin

Flujo de suministro de aire de o cina

Max = Qoamax Min = Qoamin

Flujo de transferencia

Qt = ( Qfh + Qgex ) – Qlas

trazadores de prueba para cada condición de prueba, se muestran en las Figuras 4 y 5. Durante las pruebas de visualización del flujo de aire, el suministro de aire desde los difu -

Laboratorio operando a 2 ach

Concentraciones en la sala: teóricas vs. concentración agregada de la muestra en un laboratorio desocupado y una oficina ocupada con aire de transferencia únicamente a 2 h/h

sores a 6 y 8 de cada uno alejaba el humo del escape, lo que permitía una mayor acumulación y tiempo de residencia en el laboratorio. A 2 de cada uno, el movimiento principal del flujo de aire se producía a través de la sala, desde la rejilla de transferencia hasta las rejillas de escape y las campanas extractoras. Se observó que el movimiento del aire a través de la sala a 2 de cada uno ayudaba a barrer el humo del laboratorio. Estas observaciones se confirmaron mediante las pruebas de trazadores de aire en comparación con la dilución teórica y la eliminación de contaminantes que se anticiparían en una condición de mezcla perfecta. Las áreas bajo la curva permiten comparar los datos medidos del trazador de aire con el gráfico teórico de concentraciones para cada escenario de prueba. Los resultados indican que la dosis teórica (área bajo la curva) dividida entre la dosis real sería máxima a 2 ach, donde la concentración total en la sala fue 4,4 veces menor que en el caso teórico de buena mezcla. Por el contrario, las concentraciones en la sala fueron aproximadamente 2,3 veces mayores que en el caso teórico de buena mezcla cuando el laboratorio operaba a 8 ach. Los resultados de las pruebas de visualización del flujo de aire y las pruebas con trazadores de aire indican que los patrones de flujo de aire tuvieron mayor influencia en la reducción de las concentracio -

FIGURA 4. Diagrama de patrones de flujo de aire, datos de prueba y gráfico de trazadores para el laboratorio a 2 ach

nes en el aire del laboratorio que la cantidad de flujo. Los resultados para 6 ach fueron similares a los de 8 ach y no se muestran aquí. Estos resultados se han demostrado en otros estudios y serán objeto de futuros artículos.

Los resultados

La eficacia de la ventilación no puede ignorarse en futuros diseños. Al considerar fuentes puntuales de contaminación (personas infectadas, mesas de laboratorio, etc.), la mezcla de aire no es la mejor opción. Otros enfoques mejoran la eficacia de la ventilación, lo que reduce tanto la exposición de los ocupantes como el consumo de energía. Cuando no se utiliza la mezcla de aire tradicional, los diseñadores deben asegurarse de especificar los equipos y las configuraciones para garantizar que los diseños funcionen en todas las condiciones operativas previstas durante la instalación y la puesta en servicio. Según nuestra experiencia en cientos de laboratorios, el flujo de aire no necesariamente sigue la dirección de las flechas del plano. Debido al impacto en la salud de los ocupantes y el consumo energético del edificio, la eficacia de la ventilación debe considerarse en el camino hacia las cero emisiones netas y la descarbonización.

NOTA: ACH significa “Cambios de Aire por Hora” (del inglés Air Changes per Hour).

Este artículo ha sido traducido de ASHRAE JOURNAL, enero 2025.

Autores: Hoy Bohanon, P.E., Life Member ASHRAE y Thomas C. Smith, miembro ASHRAE.

Diagram of air ow patterns, test data and tracer plot for lab at 8 ach. Laboratorio operando a 8 ach

Patrones de ujo de aire observados con humo

de la concentración en la sala. Ubicación de la muestra y

Dosis agregada S1-S5 Dosis Teórica

Concentraciones en la sala: teórica vs. concentración agregada de la muestra en un laboratorio ocupado (marco abierto) y una oficina ocupada con aire de suministro a 8 h/h

Dosis agregada S1-S5 Dosis teórica

5. Diagrama de patrones de flujo de aire, datos de prueba y gráfico de trazadores para el laboratorio a 8 ach.

FIGURA
Distribución

SOLUCIONES CONFIABLES

Instalaciones Termomecánicas

Refrigeración Industrial

Obras Civiles

Arquitectura Llave en Mano

Instalaciones Eléctricas y Controles

Mantenimiento y Servicio Técnico

Alquiler de Equipos

Repuestos

Oil & Gas

ca group

Acompañamos a nuestros clientes brindándoles soluciones integrales para todos sus proyectos, ofreciendo el más alto nivel de excelencia en productos y servicios, con el respaldo de nuestro equipo humano, para lograr una mejora continua.

EDICIÓN DIGITAL

Bombas de calor híbridas: Una solución óptima para la descarbonización de los edificios

Los edificios están en el centro de la transición energética en Europa, cuyo objetivo es lograr la neutralidad climática para 2050. Dado que la calefacción es una parte muy importante del consumo de energía en un edificio, la industria europea ha desarrollado una gama de tecnologías de calefacción eficientes, listas para funcionar, con una variedad de fuentes de energía renovables (electricidad verde, combustibles verdes, etc.) para permitir la transición a edificios climáticamente neutros.

Este enfoque de múltiples tecnologías y múltiples vectores energéticos garantizará la disponibilidad de soluciones adecuadas para el parque de edificios y las necesidades de calefacción extremadamente heterogéneos en Europa y será esencial para garantizar una transición fluida y asequible.

¿Qué son los híbridos?

En un sentido amplio, el término “híbrido” o

“generador híbrido” se refiere a un aparato o un sistema de aparatos que combina al menos dos fuentes de energía diferentes para proporcionar calefacción y/o agua caliente sanitaria a un edificio, y cuyo funcionamiento está gestionado por un control. Tradicionalmente, el tipo híbrido más conocido ha sido probablemente la combinación de una caldera y un sistema solar térmico para producir calefacción de espacios y agua caliente sanita -

ria. Una bomba de calor híbrida, en cambio, es una combinación de una bomba de calor eléctrica, una caldera y un control inteligente que puede proporcionar calefacción, refrigeración, y normalmente, también agua caliente sanitaria. Es el tipo híbrido más prometedor y de más rápido crecimiento. En el proyecto de revisión del reglamento sobre diseño ecológico para calentadores de espacio y de agua caliente sanitaria, se reconoce como una categoría de producto independiente con su propio conjunto de requisitos mínimos de rendimiento y la siguiente definición: “‘generador híbrido’ es un conjunto o conjuntos diseñados como una unidad que consta de una bomba de calor eléctrica y una caldera de combustible como generadores de calor, así como un controlador maestro híbrido que proporciona un funcionamiento optimizado de los generadores de calor para calefacción y refrigeración de espacios y/o calentamiento de agua”. El control de la bomba de calor híbrida permite seleccionar el modo de funcionamiento más adecuado (es decir, la demanda de calor cubierta por la bomba de calor, la caldera o ambas en paralelo), para un determinado edificio y clima para priorizar la minimización de los costos de funcionamiento o las emisiones de carbono. Dependiendo de las propiedades del edificio, según el clima local y los ajustes de control elegidos, la participación de la bomba de calor en la calefacción de espacios puede variar en gran medida.

Las bombas de calor híbridas se configuran para optimizar la participación de la bomba de calor, minimizar las emisiones de CO2 a la vez que se reducen los costes de funcionamiento. Además, es fundamental distinguir entre diferentes situaciones, dependiendo de si los elementos de la bomba de calor híbrida son de la misma marca o no, se instalaron juntos o por separado. De hecho, estos factores tendrán un impacto en el dimensionamiento, la

eficiencia, las emisiones de carbono y el confort térmico proporcionado por la bomba de calor híbrida.

Hay dos configuraciones que se incluyen en la definición de bomba de calor híbrida:

• El “fabricado en fábrica” o “sistema híbrido”, es una bomba de calor híbrida en la que todos los elementos proceden del mismo fabricante, se venden juntos y se instalan al mismo tiempo en el edificio. Este es el mejor de los casos en términos de eficiencia, porque todos los elementos son desarrollados, dimensionados y diseñados de manera óptima por el propio fabricante para que funcionen juntos;

• La “fabricada en fábrica en dos equipos” es una bomba de calor híbrida en la que todos los elementos provienen del mismo fabricante, sin embargo primero se instala la caldera que ha sido diseñada y homologada para ser híbrida, luego la bomba de calor y el control se instalan más adelante. Las bombas de calor híbridas siguen las normas de la legislación de productos, su rendi-

propio conjunto de requisitos mínimos de rendimiento y la siguiente definición: “‘generador híbrido’ es un conjunto o conjuntos diseñados como una unidad que consta de una bomba de calor eléctrica y una caldera de combustible como generadores de calor, así como un controlador maestro híbrido que proporciona un funcionamiento optimizado de los generadores de calor para calefacción y refrigeración de espacios y/o calentamiento de agua”. Esta es la definición que utilizaremos al referirnos a las bombas de calor híbridas en este documento. El control de la bomba de calor híbrida permite seleccionar el modo de funcionamiento más adecuado (es decir, la demanda de calor cubierta por la bomba de calor, la caldera o ambas en paralelo), para un determinado edificio y clima para priorizar la minimización de los costes de funcionamiento o las emisiones de carbono. Dependiendo de las propiedades del edificio, según el clima local y los ajustes de control elegidos, la participación de la bomba de calor en la calefacción de espacios puede variar en gran medida.

La bomba de calor extrae calor del aire o del suelo y lo transforma en calefacción interior.

unidad exterior

Figura 1: Principio de una bomba de calor híbrida agua caliente sanitaria calefacción caldera unidad interior

El sistema de calefacción híbrido combina una bomba de calor con una caldera normal.*

FIGURA 1. Principio de una bomba de calor híbrida

(es decir, la demanda de

utilizaremos al referirnos a las bombas de calor híbridas en este documento.

utilizaremos al referirnos a las bombas de calor híbridas en este documento.

miento y seguridad son responsabilidad del fabricante. Existen algunas otras configuraciones, incluidas combinaciones de aparatos de diferentes fabricantes:

lo transforma en calefacción interior.

por bomba de calor, la caldera o ambas en paralelo), un determinado edificio y clima para prioriminimización de los costes de funcionamienlas emisiones de carbono. Dependiendo de las propiedades del edificio, según el clima local y ajustes de control elegidos, la participación de la bomba de calor en la calefacción de espacios variar en gran medida.

caldera unidad interior

Figura 1: Principio de una bomba de calor híbrida

El control de la bomba de calor híbrida permite seleccionar el modo de funcionamiento más adecuado (es decir, la demanda de calor cubierta por la bomba de calor, la caldera o ambas en paralelo), para un determinado edificio y clima para priorizar la minimización de los costes de funcionamiento o las emisiones de carbono. Dependiendo de las propiedades del edificio, según el clima local y los ajustes de control elegidos, la participación de la bomba de calor en la calefacción de espacios puede variar en gran medida.

• Un conjunto de sistemas, es un sistema en el que la bomba de calor y la caldera son de dos marcas diferentes pero se instalan juntas;

Figura 1:

El sistema de calefacción híbrido combina una bomba de calor con una caldera normal.* unidad exterior

calefacción

El control de la bomba de calor híbrida permite seleccionar el modo de funcionamiento más adecuado (es decir, la demanda de calor cubierta por la bomba de calor, la caldera o ambas en paralelo), para un determinado edificio y clima para priorizar la minimización de los costes de funcionamiento o las emisiones de carbono. Dependiendo de las propiedades del edificio, según el clima local y los ajustes de control elegidos, la participación de la bomba de calor en la calefacción de espacios puede variar en gran medida.

da de la misma marca y los dos elementos pueden comunicarse de forma inteligente.

El control de la bomba de calor híbrida permite seleccionar el modo de funcionamiento más adecuado (es decir, la demanda de calor cubierta por la bomba de calor, la caldera o ambas en paralelo), para un determinado edificio y clima para priorizar la minimización de los costes de funcionamiento o las emisiones de carbono. Dependiendo de las propiedades del edificio, según el clima local y los ajustes de control elegidos, la participación de la bomba de calor en la calefacción de espacios puede variar en gran medida.

Beneficios de las bombas de calor híbridas: una solución sin vuelta atrás

bombas de calor híbridas se configuran para optimizar la participación de la bomba de calor, minimizar las emisiones de CO2 a la vez que se reducen los costes de funcionamiento.

Las bombas de calor híbridas se configuran para optimizar la participación de la bomba de calor, minimizar las emisiones de CO2 a la vez que se reducen los costes de funcionamiento.

• Bombas de calor como complemento, es un sistema en el que se instala una bomba de calor como complemento a una caldera existente, ya instalada, de una marca diferente;

Las bombas de calor híbridas se configuran para optimizar la participación de la bomba de calor, minimizar las emisiones de CO2 a la vez que se reducen los costes de funcionamiento.

Las bombas de calor híbridas ofrecen muchas ventajas distintivas, relacionadas con el impacto ambiental y la eficiencia energética, pero también aspectos específicos del consumidor y del sistema energético completo.

Las bombas de calor híbridas se configuran para optimizar la participación de la bomba de calor, minimizar las emisiones de CO2 a la vez que se reducen los costes de funcionamiento.

Entre julio de 2018 y junio de 2019, Fraunhofer-ISE investigó la participación de las bombas de calor diez sistemas híbridos instalados en diferentes edificios de Alemania. La bomba de calor cubrió entre el 48% y el 100% de las necesidades de calefacción central (barras rojas en el gráfico), y entre 39% y el 100% de la producción de agua caliente sanitaria (barras azules)5. Esta variabilidad se debe a diferencias en el tipo de edificio e instalación, así como al modo de control elegido.

Entre julio de 2018 y junio de 2019, Fraunhofer-ISE investigó la participación de las bombas de calor en diez sistemas híbridos instalados en diferentes edificios de Alemania. La bomba de calor cubrió entre el 48% y el 100% de las necesidades de calefacción central (barras rojas en el gráfico), y entre el 39% y el 100% de la producción de agua caliente sanitaria (barras azules)5. Esta variabilidad se debe a diferencias en el tipo de edificio e instalación, así como al modo de control elegido.

Entre julio de 2018 y junio de 2019, Fraunhofer-ISE investigó la participación de las bombas de calor en diez sistemas híbridos instalados en diferentes edificios de Alemania. La bomba de calor cubrió entre el 48% y el 100% de las necesidades de calefacción central (barras rojas en el gráfico), y entre el 39% y el 100% de la producción de agua caliente sanitaria (barras azules)5. Esta variabilidad se debe a diferencias en el tipo de edificio e instalación, así como al modo de control elegido.

Entre julio de 2018 y junio de 2019, Fraunhofer-ISE investigó la participación de las bombas de calor en diez sistemas híbridos instalados en diferentes edificios de Alemania. La bomba de calor cubrió entre el 48% y el 100% de las necesidades de calefacción central (barras rojas en el gráfico), y entre el 39% y el 100% de la producción de agua caliente sanitaria (barras azules)5. Esta variabilidad se

cobertura de la producción de agua caliente sanitaria mediante la bomba de calor cobertura de la producción de agua caliente sanitaria mediante el emisor de calor adicional (por ejemplo, caldera) * no es posible distinguir entre cobertura a través de la bomba de calor y a través del emisor de calor adicional

Figura 2: Dependiendo de las propiedades del edificio, el clima local y el modo de control elegido, la participación de la bomba de calor en la calefacción de espacios y la producción de agua caliente sanitaria puede variar en gran medida.

cobertura de las necesidades de calefacción central mediante la bomba de calor cobertura de las necesidades de calefacción central mediante el emisor de calor adicional (por ejemplo, caldera) cobertura de la producción de agua caliente sanitaria mediante la bomba de calor cobertura de la producción de agua caliente sanitaria mediante el emisor de calor adicional (por ejemplo, caldera) * no es posible distinguir entre cobertura a través de la bomba de calor y a través del emisor de calor adicional

cobertura de las necesidades de calefacción central mediante la bomba de calor cobertura de las necesidades de calefacción central mediante el emisor de calor adicional (por ejemplo, caldera) cobertura de la producción de agua caliente sanitaria mediante la bomba de calor cobertura de la producción de agua caliente sanitaria mediante el emisor de calor adicional (por ejemplo, caldera) * no es posible distinguir entre cobertura a través de la bomba de calor y a través del emisor de calor adicional

cobertura de las necesidades de calefacción central mediante la bomba de calor cobertura de las necesidades de calefacción central mediante el emisor de calor adicional (por ejemplo, caldera) cobertura de la producción de agua caliente sanitaria mediante la bomba de calor cobertura de la producción de agua caliente sanitaria mediante el emisor de calor adicional (por ejemplo, caldera) * no es posible distinguir entre cobertura a través de la bomba de calor y a través del emisor de calor adicional

Figura 2: Dependiendo de las propiedades del edificio, el clima local y el modo de control elegido, la participación de la bomba de calor en la calefacción de espacios y la producción de agua caliente sanitaria puede variar en gran medida.

Figura 2: Dependiendo de las propiedades del edificio, el clima local y el modo de control elegido, la participación de la bomba de calor en la calefacción de espacios y la producción de agua caliente sanitaria puede variar en gran medida.

5 https://www.ise.fraunhofer.de/content/dam/ise/de/downloads/pdf/Forschungsprojekte/BMWi-03ET1272A-WPsmart_im_Bestand-Schlussbericht.pdf, p.92

Figura 2: Dependiendo de las propiedades del edificio, el clima local y el modo de control elegido, la participación de la bomde calor en la calefacción de espacios y la producción de agua caliente sanitaria puede variar en gran medida.

https://www.ise.fraunhofer.de/content/dam/ise/de/downloads/pdf/Forschungsprojekte/BMWi-03ET1272A-WPsmart_im_Bestand-Schlussbericht.pdf, p.92

5 https://www.ise.fraunhofer.de/content/dam/ise/de/downloads/pdf/Forschungsprojekte/BMWi-03ET1272A-WPsmart_im_Bestand-Schlussbericht.pdf, p.92 eléctrica y una caldera de combustible como generadores de calor, así como un controlador maestro híbrido que proporciona un funcionamiento optimizado de los generadores de calor para calefacción y refrigeración de espacios y/o calentamiento de agua”. Esta es la definición que utilizaremos al referirnos a las bombas de calor híbridas en este documento.

FIGURA 2. Dependiendo de las propiedades del edificio, el clima local y el modo de control elegido, la participación de la bomba de calor en la calefacción de espacios y la producción de agua caliente sanitaria puede variar en gran medida.

https://www.ise.fraunhofer.de/content/dam/ise/de/downloads/pdf/Forschungsprojekte/BMWi-03ET1272A-WPsmart_im_Bestand-Schlussbericht.pdf, p.92

Figura 1: Principio de una bomba de calor híbrida

Impacto medioambiental: una tecnología preparada para el futuro

Las bombas de calor híbridas traen consigo grandes beneficios en términos de reducción del consumo de energía y de emisiones gracias a la integración de la bomba de calor con una caldera de apoyo: dependiendo del diseño y funcionamiento, pueden reducir el consumo de gas entre un 60 y un 90% en comparación a una caldera sola. Esto los convierte en una solución de calefacción de alta eficiencia energética y reduce su impacto medioambiental. Además, son compatibles con fuentes de energía renovables y gases descarbonizados. De hecho, la parte de la bomba de calor de un

sistema híbrido funciona en parte con electricidad, que en Europa se espera que en 2030 provenga en un 45 % de fuentes de energía renovables, por ejemplo, eólica o fotovoltaica. Del mismo modo, las calderas actualmente en el mercado ya son capaces de funcionar con hasta un 100% de biometano y e-metano, y las nuevas calderas de condensación pueden utilizar una proporción variable de hidrógeno de hasta un 20%. Se están realizando avances para que todos los nuevos generadores de gas sean compatibles para funcionar con hidrógeno 100% verde. Estos desarrollos reducen aún más el impacto ambiental de las bombas de calor híbridas reduciendo adicionalmente las emisiones de carbono.

FIGURA 3. Ejemplo de una bomba de calor híbrida combinada. Como las bombas de calor híbridas suelen ser más compactas que las bombas de calor eléctricas independientes, son una buena solución en espacios limitados, como apartamentosen edificios multifamiliares.

Figura 3: Ejemplo de una bomba de calor híbrida combinada. Como las bombas de calor híbridas suelen ser más compactas que las bombas de calor eléctricas independientes, son una buena solución en espacios limitados, como apartamentos en edificios multifamiliares.

Comfort Group, una pequeña bomba de calor dimensionada en el para aproximadamente el 25% de la demanda de calor del edificio

nitaria, porque lo proporciona la caldera; al mismo tiempo, la con-

tribución de la bomba de calor a la calefacción de espacios puede seguir siendo superior al 70%. Esto hace que las bombas de calor híbridas sean especialmente interesantes para los consumidores que viven en apartamentos, donde el espacio suele ser más limitado que en las casas unifamiliares.

Beneficios para el consumidor: adecuado para muchos tipos de edificios

Las bombas de calor híbridas son una solu ción atractiva para los consumidores porque son adecuadas para diferentes tipos de edificios. Son particularmente interesantes para la envolvente del edificio ni sustitución del sistema de distribución de calor. Esto se debe

Figura 3: Ejemplo de una bomba de calor híbrida combinada. Como las bombas de calor híbridas suelen ser más compactas que las bombas de calor eléctricas independientes, son una buena solución en espacios limitados, como apartamentos en edificios multifamiliares.

Como muestra Bosch Home Comfort Group, una pequeña bomba de calor dimensionada en el punto de funcionamiento -10°C para aproximadamente el 25% de la demanda de calor del edificio ya cubre aproximadamente del 60 al 80% de la energía de calefacción necesaria anualmente.

Números de horas

Demanda de calor

Números de horas

Demanda de calor [kW]

Temperatura exterior [ºC]

Demanda de calor del edificio [kW] Cubierto por caldera Cubierto por bomba de calor

Figura 4: Ejemplo de un edificio con una demanda máxima de calor de 10 kW y equipado con una bomba de calor híbrida: cuando la temperatura exterior es superior a 2 °C, el 100 % de la demanda de calor se cubre con la parte de bomba de calor del híbrido ( Area verde). Cuando la temperatura exterior es inferior a 2 °C (área amarilla/verde), la caldera actúa como respaldo de la bomba de calor y proporciona las temperaturas de flujo más altas necesarias. A -10°C, la bomba de calor cubrirá el 25% de la demanda de calor del edificio. Las barras azules muestran las horas de funcionamiento al año con dichas temperaturas ambiente.

FIGURA 4. Ejemplo de un edificio con una demanda máxima de calor de 10 kW y equipado con una bomba de calor híbrida: cuando la temperatura exterior es superior a 2 °C, el 100 % de la demanda de calor se cubre con la parte de bomba de calor del híbrido (Área verde). Cuando la temperatura exterior es inferior a 2 °C (área amarilla/verde), la caldera actúa como respaldo de la bomba de calor y proporciona las temperaturas de flujo más altas necesarias. A -10°C, la bomba de calor cubrirá el 25% de la demanda de calor del edificio. Las barras azules muestran las horas de funcionamiento al año con dichas temperaturas ambiente

En zonas que no están conectadas a la red de gas, las bombas de calor híbridas tienen un gran potencial. Los edificios residenciales en estas áreas a menudo dependen de combustibles gaseosos o líquidos, que se almacenan en un gran tanque en el lugar o se suministran en bombonas. Para los hogares que dependen en particular de combustibles líquidos, una bomba de calor como complemento a la caldera de gasóleo existente puede ser la única solución a corto plazo para reducir las emisiones de CO2 y maximizar la eficiencia energética de su sistema de calefacción.

a que las bombas de calor híbridas pueden producir las altas temperaturas de flujo que necesita el sistema de distribución de calor existente (es decir, radiadores) para funcionar de manera eficiente y cubrir las necesidades de calefacción de un edificio mal aislado. Esta es una gran ventaja para los consumidores, ya que les permite planificar y costear la renovación de su edificio por etapas, o en pasos incrementales, por ejemplo añadiendo progresivamente aislamiento. Las bombas de calor híbridas son una buena solución en edificios donde falta espacio para instalar una bomba de calor eléctrica independiente, porque las bombas de calor híbridas suelen ser más compactas, y al mismo tiempo cubren la mayoría de las necesidades de calefacción. Además, las que proporcionan calefacción, refrigeración y agua caliente sanitaria en combinación con calderas mixtas, no requieren un tanque de almacenamiento para agua caliente sanitaria, porque lo proporciona la caldera; al mismo tiempo, la contribución de la bomba de calor a la calefacción de espacios puede seguir siendo superior al 70%. Esto hace que sean especialmente interesantes para los consumidores que viven en apartamentos, donde el espacio suele ser más limitado que en las casas unifamiliares. En zonas que no están conectadas a la red de gas, las bombas de calor híbridas tienen un gran potencial. Los edificios residenciales en estas áreas a menudo dependen de combustibles gaseosos o líquidos, que se almacenan en un gran tanque en el lugar o se suministran en bombonas. Para los hogares que dependen en particular de combustibles líquidos, una bomba de calor como complemento a la caldera de gasóleo existente puede ser la única solución a corto plazo para reducir las emisiones de CO2 y maximizar la eficiencia energética de su sistema de calefacción. Además, para los instaladores, las bombas

de calor híbridas son una tecnología relativamente familiar, porque su instalación, puesta en marcha y servicio son similares a las de las calderas tradicionales de gas y gasóleo. El menú de funcionamiento y el termostato funcionan de forma similar a los sistemas tradicionales, lo que facilita su configuración.

Beneficios para el consumidor: accesibilidad

Las bombas de calor híbridas conllevan costes de compra moderados y pueden reducir las facturas de energía de los consumidores. Si bien son más caras que las calderas de condensación en términos de costes iniciales, las bombas de calor híbridas son menos costosas que las bombas de calor independientes. Además, en muchos Estados miembros de la UE existen ayudas y otros planes financieros para reducir el costo de invertir en una bomba de calor híbrida. Además, el costo inicial de instalación de una bomba de calor híbrida es menor que el de una bomba de calor independiente, ya que la híbrida no requiere una adaptación completa previa de la envolvente del edificio ni del sistema de distribución de calor. Se pueden emprender medidas de renovación incrementales de forma gradual, para distribuir los costes de acuerdo con los ciclos de renovación regulares (la llamada renovación por etapas) y con las posibilidades financieras de los clientes. Las bombas de calor híbridas también contribuyen a reducir la factura energética en comparación con una caldera independiente, lo que puede suponer un beneficio significativo para los consumidores. Sin embargo, esto depende en gran medida del precio relativo de las fuentes de energía utilizadas y de la proporción de la carga térmica correspondiente a la bomba de calor eléctrica. Configurar los controles para minimizar los costes de funcionamiento al cambiar de la caldera a la

bomba de calor eléctrica y viceversa cuando los costes de funcionamiento son más bajos permite a los consumidores reducir su factura de energía. Con la introducción de tarifas eléctricas13 variables, el coste de funcionamiento de las bombas de calor híbridas puede reducirse aún más.

Beneficios para el consumidor: conveniencia

Las bombas de calor híbridas son fáciles de usar y están diseñadas para funcionar como sistemas de calderas convencionales:

• Gracias a los controles y ajustes automáticos, las bombas de calor híbridas son fáciles de usar para los consumidores.

• Alcanzan el mismo nivel de confort que con una caldera de condensación y dependen en parte de energía renovable. Además, en el futuro según se vayan incorporando gases renovables, la participación del uso de energía renovable se irá incrementando progresivamente.

• Pueden producir agua caliente sanitaria sin usar depósito de acumulación, con lo que se ahorra en espacio y reducen costes de instalación.

Ahorro

Todos (120) Casas Independientes (que no comparten ninguna pared con las casas adyacentes) (69)

Casa adosada (comparte una pared común con la casa de al lado) (34)

Casa adosada (compartiendo ambas paredes laterales con las casas adyacentes) (17)

FIGURA 6. Para cada tipo de residencia, la línea naranja indica el valor medio del ahorro en el uso de gas después de instalar una bomba de calor híbrida. Por ejemplo, para las casas adosadas, el valor medio es 82, lo que significa que para el 50% de las casas adosadas observadas, la instalación de bombas de calor híbridas permitió reducir el consumo de gas en un 82% o más.

Beneficios para el sistema energético

Las bombas de calor híbridas ejercen menos presión sobre la red eléctrica que las bombas de calor18 eléctricas autónomas; gracias a un uso más inteligente de la electricidad, pueden cambiar al gas cuando la demanda de electricidad es mayor que la producción de electricidad renovable. Esto disminuye la necesidad de inversiones en el refuerzo de la red de distribución y, por tanto, implica menos costes19,20 en el camino hacia la descarbonización.

Además, debido a que el sistema cuenta con una fuente de calor de respaldo, en caso de avería de la caldera o de la bomba de calor, la producción de calor y agua caliente sanitaria no se interrumpe, lo que genera menos estrés tanto para el cliente como para el instalador. Estos factores, la comodidad y la facilidad de uso, son una ventaja valiosa para los clientes y desem-peñarán un papel clave a la hora de apoyar el aumento de los sistemas de calefacción híbridos en los hogares europeos.

Beneficios para el sistema energético

Las bombas de calor híbridas ejercen menos presión sobre la red eléctrica que las bombas de calor18 eléctricas autónomas; gracias a un uso más inteligente de la electricidad, pueden cambiar al gas cuando la demanda de electricidad es mayor que la producción de electricidad renovable. Esto disminuye la necesidad de inversiones en el refuerzo de la red de distribución y, por tanto, implica menos costes19,20 en el camino hacia la descarbonización.

Además, las bombas de calor híbridas aumentan la seguridad del suministro. Durante los picos invernales fríos y sin viento en Europa, cuando la demanda de calor es máxima mientras que el suministro de electricidad procedente de fuentes renovables es mínimo, los sistemas híbridos pueden cambiar al gas (renovable), facilitando la estabilidad del sistema y reduciendo el riesgo de corte de energía. Como tal, los sistemas de calefacción híbridos son beneficiosos para todo el sistema energético, ya que permiten la integración del sistema energético y una transición más suave de los combustibles fósiles hacia un sistema energético descarbonizado.

Participación de las energías renovables en la producción diaria de electricidad en Alemania en 2022 (%)

Solar Eólica costa afuera

Eólica costa adentro

Otros EE

Figura 7: Este gráfico muestra la producción de electricidad renovable en Alemania en 2022. Aunque la proporción de energías renovables es alta en promedio (casi el 50%), podría haber días prolongados de condiciones oscuras y sin viento (las llamadas “Dunkelflaute”) (aprox. 2 semanas en diciembre). La situación podría empeorar aún más si estas condiciones oscuras y sin viento fueran acompañadas de temperaturas muy frías (las llamadas “flautas frías de Dunkel”), lo que además supondría una pesada carga para la red eléctrica. En ese período, los híbridos podrían pasar al modo “solo gas”, evitando poner en marcha plantas de energía fósiles y suponiendo una pesada carga para la red eléctrica.

FIGURA 7. Este gráfico muestra la producción de electricidad renovable en Alemania en 2022. Aunque la proporción de energías renovables es alta en promedio (casi el 50%), podría haber días prolongados de condiciones oscuras y sin viento (las llamadas “Dunkelflaute”) (aprox. 2 semanas en diciembre). La situación podría empeorar aún más si estas condiciones oscuras y sin viento fueran acompañadas de temperaturas muy frías (las llamadas “flautas frías de Dunkel”), lo que además supondría una pesada carga para la red eléctrica. En ese período, los híbridos podrían pasar al modo “solo gas”, evitando poner en marcha plantas de energía fósiles y suponiendo una pesada carga para la red eléctrica.

Además, las bombas de calor híbridas aumentan la seguridad del suministro. Durante los picos inverna- les fríos y sin viento en Europa, cuando la demanda de calor es máxima mientras que el suministro de electricidad procedente de fuentes renovables es mínimo, los sistemas híbridos pueden cambiar al gas (renovable), facilitando la estabilidad del sistema y reduciendo el riesgo de corte de energía. Como tal, los sistemas de calefacción híbridos son beneficiosos para todo el sistema ener-

gético, ya que permiten la integración del sistema energético y una transición más suave de los combustibles fósiles hacia un sistema energético descarbonizado.

Este artículo sobre “Bombas de calor híbridas” ha sido editado a partir de un informe realizado por FEGECA (Fabricantes de generadores y emisores de calor, España).

Vía A

Vía B

Figura 8: Este gráfico proviene del estudio de 2022 de Guidehouse “Vías de descarbonización para el sector de la construcción europeo”, que investiga dos escenarios diferentes para lograr los objetivos de descarbonización de REPowerEU. Muestra que una combinación equilibrada de fuentes y tecnologías de energía renovables (vía B), incluidas las bombas de calor híbridas, reduce la carga máxima adicional de la electrificación de la calefacción en un 54 % en 2050 en comparación con un escenario con una mayor electrificación de la calefacción (vía A).

FIGURA 8. Este gráfico proviene del estudio de 2022 de Guidehouse “Vías de descarbonización para el sector de la construcción europeo”, que investiga dos escenarios diferentes para lograr los objetivos de descarbonización de REPowerEU. Muestra que una combinación equilibrada de fuentes y tecnologías de energía renovables (vía B), incluidas las bombas de calor híbridas, reduce la carga máxima adicional de la electrificación de la calefacción en un 54 % en 2050 en comparación con un escenario con una mayor electrificación de la calefacción (vía A).

Apoyo político a las bombas de calor híbridas en los Estados miembros

Las bombas de calor híbridas son una solución de calefacción segura y beneficiosa para el clima, los consumidores y el sistema energético. Para apoyar su implementación en los hogares europeos, los Estados miembros de la UE están implementando varias políticas.

Carga pico de electricidad

Bombas de calor híbridas: seguimiento del ahorro de energía en la vida real en los Países Bajos

Un proyecto reciente llevado a cabo en los Países Bajos se propuso demostrar las mejoras en eficiencia energética en la vida real de las instalaciones de bombas de calor híbridas en edificios no renovados. Iniciado en 2021 por iniciativa de la industria holandesa de la calefacción (Nederlandse Verduurzamings Industrie, NVI), el proyecto reunió a un consorcio de socios institucionales y económicos, a saber, el Ministerio del Interior holandés (BZK), el Ministerio de Asuntos Económicos y Política Climática, la Agencia Holandesa de Empresas (RVO) y la asociación holandesa de instaladores de sistemas de calefacción.

El proyecto consistió en equipar 200 casas con una bomba de calor híbrida, dejando para una etapa posterior cualquier intervención adicional en la envolvente del edificio (en algunos casos, solo se renovó el sistema de suministro de calor). Para tener en cuenta la variedad del parque de edificios existente, la experiencia se llevó a cabo en varios tipos de edificios residenciales, construidos entre 1930 y 2018. Todos los sistemas de calefacción híbridos instalados fueron monitoreados periódicamente para identificar en qué medida la nueva instalación híbrida generaba ahorros de energía. y por tanto recortes de emisiones de CO2

Además, para los instaladores, las bombas de calor híbridas son una tecnología relativamente familiar, porque su instalación, puesta en marcha y servicio son similares a las de las calderas tradicionales gas y gasóleo. El menú de funcionamiento y el termostato funcionan de forma similar a los sistemas tradicionales, lo que facilita su configuración.

Bombas de calor híbridas: seguimiento del ahorro de energía en la vida real en los Países Bajos

Un proyecto reciente llevado a cabo en los Países Bajos se propuso demostrar las mejoras en eficiencia energética en la vida real de las instalaciones de bombas de calor híbridas en edificios no renovados.

Iniciado en 2021 por iniciativa de la industria holandesa de la calefacción (Nederlandse Verduurzamings Industrie, NVI), el proyecto reunió a un consorcio de socios institucionales y económicos, a saber, el Ministerio del Interior holandés (BZK), el Ministerio de Asuntos Económicos y Política Climática, la Agencia Holandesa de Empresas (RVO) y la asociación holandesa de instaladores de sistemas de calefacción.

Los resultados de las primeras 120 viviendas fueron analizados en junio de 2023, mostrando ahorros energéticos consistentes y significativos: con la instalación del sistema híbrido, el consumo medio de gas se redujo en promedio un 75%. Para lograr estos ahorros, las viviendas utilizaron una media de 2.360 kWh de electricidad adicional cada una. En total, esto supone un ahorro medio de 1.811 kg de CO2 por hogar, lo que supone un ahorro anual de casi 1.000-1.250 euros por hogar. Por lo tanto, esta demostración de la vida real muestra en gran medida a las bombas de calor híbridas como una solución

ventajosa para la descarbonización de edificios en una variedad de tipos de edificios, lo que genera importantes ahorros energéticos y financieros De acuerdo con los resultados preliminares del proyecto de demostración, el gobierno Holandés ha dado una clara señal política para el despliegue de bombas de calor híbridas al anunciar que las bombas de calor híbridas tendrían que ser el requisito mínimo para la sustitución de las instalaciones de calefacción en las casas holandesas existentes, a partir de 2026. Esta decisión es parte de una estrategia más amplia para alcanzar 1 millón de bombas de calor híbridas instaladas en hogares existentes en el país para 2030, un objetivo establecido por el gobierno en junio de 2022. Para lograr este ambicioso objetivo, el Ministerio holandés de Asuntos Económicos y Política Climática está colaborando con la industria para identificar y eliminar barreras al despliegue de bombas de calor híbridas. Esto incluye medidas para capacitar a instaladores más cualificados, reducir los costos de producción e instalación de bombas de calor híbridas (por ejemplo, mediante el aumento de la producción) monitorear su impacto en la red de distribución de electricidad, así como una campaña de información pública dirigida a los consumidores y una subvención para la instalación de bombas de calor.

El proyecto consistió en equipar 200 casas con una bomba de calor híbrida, dejando para una etapa posterior cualquier intervención adicional en la envolvente del edificio (en algunos casos, solo se renovó el sistema de suministro de calor). Para tener en cuenta la variedad del parque de edificios existente, la experiencia se llevó a cabo en varios tipos de edificios residenciales, construidos entre 1930 y 2018. Todos los sistemas de calefacción híbridos instalados fueron monitoreados periódicamente para identificar en qué medida la nueva instalación híbrida generaba ahorros de energía. y por tanto recortes de emisiones de CO2

Figura 5: Es una muestra de los tipos de edificios en los que se llevó a cabo el proyecto de análisis

Medir el movimiento crea una nueva forma de mapear la contaminación del aire en interiores

Científicos de la Universidad de Birmingham han desarrollado una nueva forma de medir y analizar la contaminación del aire en interiores que, en pruebas iniciales, ha establecido un vínculo claro entre la ocupación de oficinas, la actividad física y la calidad del aire.

La calidad del aire interior (CAI) se reconoce cada vez más como uno de los aspectos más importantes para la salud pública, la seguridad en el lugar de trabajo y la productividad. Si bien tanto los factores interiores como los exteriores influyen en los

niveles de contaminantes interiores, la presencia y la actividad humana son impulsores clave de la emisión de contaminantes específicos, incluyendo materia particulada (PM), compuestos orgánicos volátiles totales (COVT) y dióxido de carbono (CO2).

Si bien la CA ambiental se ha monitoreado y estudiado ampliamente, la calidad del aire interior (CAI) no ha recibido históricamente el mismo nivel de interés. Sin embargo, la CAI es de creciente interés, especialmente porque las personas tienden a pasar hasta el 90% de su tiempo en interiores; ya sean sus hogares, lugares de trabajo, espacios sociales y comunitarios, o incluso dentro del transporte que los lleva entre los diversos edificios. La CAI deficiente tiene efectos negativos similares en la salud humana que la CAI ambiental deficiente. La Organización Mundial de la Salud (OMS) estima que de los 9 millones de muertes atribuidas a los efectos directos e indirectos de la contaminación del aire, 3,2 millones de ellas están asociadas específicamente con el deterioro de la CAI. Este valor de contaminación interior solo considera el deterioro de la calidad del aire interior debido a sustancias asociadas con la combustión incompleta del combustible utilizado para cocinar. Por lo tanto, la incidencia total de mortalidad prematura, asociada con la contaminación del aire interior proveniente de todas las fuentes, es casi con certeza mayor.

Las fuentes de contaminación que afectan la calidad del aire interior pueden ser más complejas y difíciles de descifrar que las del exterior. Además de los contaminantes generados en el ambiente interior, la contaminación exterior también se introduce por infiltración a través de puertas y ventanas, sistemas de ventilación o incluso grietas en la fachada del edificio. Esto dificulta la comprensión del papel de las fuentes interiores y el alcance de sus efectos. La investigación asociada con la contaminación del aire interior es aún más limitada. Hasta hace poco, la mayoría de las campañas relacionadas con la CAI se realizaban utilizando instrumentos de grado de investigación. Además del costo financiero que conlleva el uso de instrumentos de investigación, los equipos, típicamente grandes y ruidosos, pueden causar una gran molestia en el estilo de vida y las actividades diarias de los participantes. Las altas tasas de

bombeo de los equipos de investigación pueden provocar altas tasas de renovación de aire en los ambientes interiores, lo que provoca una mayor infiltración de aire exterior. Estas desventajas de los equipos de investigación pueden llevar a que las campañas en interiores se realicen en configuraciones altamente controladas y, en muchos casos, poco realistas. Además, la gran variabilidad encontrada entre los diferentes ambientes interiores, debido a sus especificaciones, condiciones y uso, generó resultados difíciles de explicar y a veces contradictorios. Sin embargo, la aparición de sensores de bajo costo (LCS) en la última década puede ser una posible solución a ambos problemas. Debido a su pequeño tamaño, bajo ruido y facilidad de configuración, se pueden usar sin causar muchas molestias al hogar, mientras que su bajo costo tanto en su precio como en su operación, permite aplicaciones en grandes cantidades, a veces cubriendo decenas o incluso cientos de hogares monitoreados simultáneamente. Sin embargo, los LCS no están exentos de limitaciones, principalmente asociadas con que su rendimiento se ve afectado por las condiciones meteorológicas, mientras que carecen de la precisión y consistencia de los instrumentos de grado de investigación más caros. Sin embargo, esta limitación no se aplica a los estudios en interiores, donde el entorno suele ser propicio para su rendimiento, ya que la humedad relativa, principal variable que afecta al rendimiento del LCS, se encuentra en la mayoría de los casos dentro del rango óptimo de rendimiento del LCS, lo que facilita la calibración. Numerosos estudios en interiores han demostrado la mayor precisión del LCS en interiores en comparación con exteriores, lo que lo convierte en una opción ideal para campañas multipunto en interiores. Todos estos estudios identificaron la actividad de los ocupantes como una fuente potencial de PM en condiciones experimentales. Sin embargo, no se ha probado una conexión directa entre ellos en entornos del mundo real. El presente estudio pro -

porciona una metodología para conectar la actividad humana con la generación de contaminación del aire en ambientes interiores. Este enfoque combina sensores de calidad del aire y de movimiento para vincular la actividad y la calidad del aire interior. En particular, el estudio descubre las relaciones entre el número de ocupantes y el nivel de su actividad individual, medido por su energía cinética (EC), en la variación de las concentraciones de PM, CO2 y COV totales (TVOC), sin la necesidad de considerar las características específicas de cada ambiente interior. Además, también se considera la infiltración de PM exterior, que afecta principalmente a las más pequeñas PM1 y PM2,5 Al combinar la información de los efectos tanto de los contaminantes exteriores infiltrados como de los generados en interiores, los resultados proporcionan una imagen más completa de los factores que afectan la calidad del aire interior, que puede utilizarse para su modelado preciso.

Materia particulada

Las concentraciones promedio de todas las PM medidas del sensor exterior fueron más altas que las encontradas dentro de las dos ubicaciones de

oficinas (Tabla 1). Esto es como se esperaba, ya que la oficina está en el centro de Birmingham, Reino Unido, la segunda ciudad más grande del Reino Unido, y tiene aire acondicionado. Las relaciones interiores a exteriores (I/O) medidas, promediadas en todos los períodos de tiempo, para las diferentes fracciones de tamaño de PM variaron de 0,24 a 0,67, y el valor disminuyó a medida que aumentaba el tamaño de las partículas (Tabla S1). La relación I/O para PM2,5 y PM10 en ambas salas fue significativamente menor que las encontradas en la literatura para entornos de oficina. Las bajas relaciones I/O probablemente resulten de las altas concentraciones encontradas en el entorno exterior urbano, así como de la presencia de un sistema de ventilación que reduce las concentraciones de PM dentro de las áreas de oficinas. El área de oficina abierta estudiada y la sala de reuniones presentaron concentraciones de PM similares durante los períodos de ausencia (no ocupados), lo que muestra los efectos casi uniformes del sistema de ventilación mecánica en todo el espacio del edificio.

Al observar la variación semanal de las concentraciones de PM10 en exteriores, se observó que, en

‘‘Ausente" se refiere a las horas en las que no se registró ocupación dentro del rango de detección de los sensores de movimiento

TABLA 1. Desviación promedio y estándar de las concentraciones horarias de contaminantes en los sitios exteriores e interiores.

promedio, las concentraciones de PM10 y PM 2,5 fueron similares, con un aumento insignificante durante el fin de semana en comparación con los días laborables. Específicamente, para PM10 y PM 2,5, las concentraciones promedio más altas se observaron durante las tardes de los viernes y sábados, posiblemente asociadas con el aumento de actividades de ocio (restaurantes, pubs, etc.) en el centro de la ciudad al final de la semana laboral. Por el contrario, las concentraciones de PM10 en exteriores fueron menores durante los fines de semana.

En el lugar de trabajo estudiado, PM1 y PM2,5 presentaron un pequeño aumento el viernes y el sábado en ambas salas, similar a la tendencia exterior. Estudios previos han demostrado la importancia de la infiltración de PM exterior y la configuración de las condiciones de los ambientes interiores, especialmente para partículas más pequeñas. Tenga en cuenta que, como se mencionó anteriormente, si bien las relaciones I/O son relativamente bajas en este entorno específico, las tendencias para estos contaminantes en ambas salas siguen las del exterior (Fig. S1) con correlaciones muy altas entre las concentraciones de PM1 y PM2,5 interiores y exteriores (Tabla S2). Por el contrario, la evaluación de las tendencias de PM10 en interiores destaca diferencias significativas entre los días laborables y los fines de semana (Fig. 1), con concentraciones en los días laborables de hasta el triple que las de los fines de semana. La presencia y actividad de personas, que se considera una de las fuentes más importantes de PM en los ambientes interiores, parece ser un factor significativo en las concentraciones de PM en el área interior estudiada, especialmente dentro de la fracción de tamaño de PM10. Esto se ilustra además por las diferencias entre los períodos en los que los ocupantes están presentes o ausentes en las habitaciones estudiadas. Durante los períodos actuales, se encontraron concentraciones elevadas de PM10 en comparación con los períodos en los que las habitaciones estaban vacías. Típicamente, se encontró que las

concentraciones de PM10 eran hasta casi cuatro veces más altas al comparar los períodos ocupados con los períodos desocupados. Esto da como resultado un aumento sustancial en la relación E/S de hasta 3,8 veces, lo que se alinea con la evidencia del efecto de las fuentes interiores en las concentraciones de PM10 observadas en estudios anteriores. Los otros contaminantes estudiados, incluidos el CO2 y los TVOC, también demostraron concentraciones elevadas durante los días laborables en comparación con los fines de semana (aumento del 22% y el 140%, respectivamente), específicamente durante los períodos en los que había personas presentes (Fig. S2). Curiosamente, las concentraciones de PM1 parecen ser ligeramente inferiores durante los períodos en los que las habitaciones estaban ocupadas. Debido a

Table S1: Indoor to Outdoor (I/O) ratio of PM₁, PM₂.₅, and PM₁₀ in each room, subset present (occupied) and absent (non-occupied) periods.

Table S1: Indoor to Outdoor (I/O) ratio of PM₁, PM₂.₅, and PM₁₀ in each room, subset present (occupied) and absent (non-occupied) periods.

Contaminante Subconjunto

Contaminante Subconjunto

TABLA S1: Relación interior a exterior (I/O) de PM₁, PM₂.₅ y PM₁₀ en cada habitación, subconjunto por períodos presente (ocupado) y ausente (no ocupado).

Table S2: Pearson correlations between indoor and outdoor PM₁, PM₂.₅ , and PM₁₀.

Table S2: Pearson correlations between indoor and outdoor PM₁, PM₂.₅ , and PM₁₀.

Contaminante

Contaminante

abierta/ Afuera Sala de reuniones / Afuera

TABLA S2: Correlaciones de Pearson entre PM₁, PM₂.₅ y PM10 en interiores y exteriores.

la falta de fuentes interiores significativas de PM1, como cocinar o calentar, esto probablemente esté asociado únicamente con la variación semanal de las concentraciones exteriores de PM1, en la que las concentraciones más altas de PM1 coinciden con los horarios en que el personal de la oficina estudiada no trabaja. Del análisis anterior, es evidente que el ambiente interior se ve afectado tanto por fuentes interiores como exteriores de contaminación del aire. Contaminantes específicos como PM10, CO 2 y TVOC presentan concentraciones significativamente más altas durante los momentos en que

las personas están presentes. Para comprender mejor las relaciones directas de las concentraciones de los contaminantes con el número de ocupantes y la KE que producen mientras se mueven dentro de los ambientes interiores, realizamos una regresión lineal de estos contaminantes (los resultados para PM1 y PM2.5 no se presentan debido a las bajas correlaciones) con las variables mencionadas anteriormente. Es interesante notar que en la Figura 1, que mientras que la sala de reuniones tuvo una mayor ocupación máxima, la pasarela (el área directamente frente al sensor que monitorea la oficina abierta) tuvo una KE máxima mayor. Esto

S1: Variación diurna promedio por hora de las PM1 y PM2.5 entre semana y fines de semana en la sala de reuniones, open-office y exterior.

S1: Hourly averaged diurnal variation of weekday and weekend PM1 and PM2.5 in the meeting room, open-office, and outside.

FIGURA
Figure

se debe a los diferentes niveles de energía utilizados en los dos entornos diferentes. La Figura 2 presenta la relación de PM10 con la ocupación y la KE medida por el sensor de movimiento en las salas. Se encontró una correlación relativamente alta (r = 0,65) entre el número de ocupantes y las concentraciones de PM14 en el área de oficinas abiertas, relación que no se encontró para

los otros dos rangos de tamaño (PM14 y PM14 ) .

Se encontró una correlación aún más fuerte entre las concentraciones de PM14 y la EC ( r = 0,74), lo que confirma aún más el efecto directo del movimiento de personas en las emisiones de PM14

El análisis en la sala de reuniones no proporcionó el mismo nivel de correlación con el área de oficina abierta (Fig. 2). Las regresiones entre la ocu -

FIGURA 1. Variación diurna de PM10, ocupación y KE para el área de oficinas abiertas y sala de reuniones.

pación o KE con el PM10 arrojaron correlaciones más bajas, de 0,41 y 0,47 para la ocupación y KE, respectivamente. Esto probablemente se deba al diferente uso de la sala específica, ya que al ser una sala de reuniones en la mayoría de los casos, acomoda a personas que se sientan alrededor de una mesa y no experimentan un movimiento significativo, lo que reduce su efecto de resuspensión en comparación con el área de oficina abierta, donde las personas se mueven para hablar con colegas y entrar y salir de otras salas. Además, las venta-

nas de la sala de reuniones a veces se abrían, lo que aumentaba el efecto de la infiltración de aire ambiente. Sin embargo, como lo indica el análisis anterior, la presencia de personas dentro de esta sala sigue siendo la fuente más significativa de PM10, como lo indica la comparación entre los períodos ocupados y desocupados. Utilizando la regresión lineal entre el número de ocupantes y el PM10, podemos obtener una estimación del efecto de cada persona adicional en las concentraciones del contaminante. En el área de oficina abierta, donde las correlaciones fueron más fuertes, la presencia adicional de un ocupante en promedio agregó alrededor de 8,4 μg/m3 de PM10 a las concentraciones de fondo, que se estimaron en alrededor de 4,9 μg/m3 Esto sugiere que solo se necesita, en promedio, que dos o cinco personas estén en el pasillo de la oficina para que se superen las recomendaciones de límite de PM10 promedio anual o de 24 h de la OMS (5 μg/ m3 o 15 μg/m3 , respectivamente). Si bien los trabajadores no residen en el pasillo durante todo el año ni todo el día, esto ejemplifica la importancia de los microambientes dentro de los lugares de trabajo donde la población en edad laboral pasa cantidades significativas de sus vidas. La correlación entre la ocupación y PM10 fue menor en la sala de reuniones, se encontró un efecto menor por ocupante en promedio (~1,4 μg/m3) en la sala de reuniones debido a una menor actividad por ocupante en este microambiente.

S2: Hourly averaged diurnal variation of CO2 (top) and TVOCs (bottom) in the openfor the weekday and weekend.

FIGURA S2. Variación diurna promediada por hora de CO2 (arriba) y TVOC (abajo) en la oficina abierta durante los días laborables y el fin de semana.

De manera similar, se calculó el efecto por unidad de energía eólica (KE) (julio) para las dos salas. Por lo tanto, se introdujeron o resuspendieron aproximadamente 0,01 μg/m³ de PM10 por julio de KE producido por los ocupantes de la sala en el área de oficina abierta, además del fondo estimado de 4,6 μg/m³. La similitud de la estimación del fondo entre los parámetros de ocupación y KE, así como la similitud con el fondo anticipado (que se espera que sea mayor durante los períodos actuales en comparación con los períodos ausentes, ya que la resuspensión continua impide que el PM se

asiente por completo), aumenta la confianza en el resultado del análisis. Curiosamente, se encontró un efecto anticipado por julio de KE casi idéntico para la sala de reuniones en comparación con el área de oficina abierta.

Se utilizó un conjunto de datos combinado de las dos salas para estimar la consistencia de la ocupación y la energía térmica (EC) como indicadores indirectos de las concentraciones previstas de PM14 entre las diferentes salas. La Figura S3 muestra la regresión lineal de la ocupación y la EC con las concentraciones de PM14 en el conjunto de datos combinado. La correlación entre la EC y las PM14 fue mayor ( r = 0,71) que en las dos salas individuales, lo que indica que, para este entorno específico, el movimiento de los ocupantes tuvo un efecto similar independientemente de la sala estudiada.

A diferencia de PM10, no se encontró una correlación clara con la ocupación ni la eficiencia ener-

gética para PM1 y PM2,5. Esta falta de correlación se debe al efecto dominante de las fuentes exteriores en las concentraciones de PM1 y PM2,5 en interiores. Al aplicar una metodología de asignación de fuentes similar a la de Bousiotis et al. y aislar las contribuciones de las fuentes interiores, se observó que las fuentes interiores representaron <1 % y 6 % de PM1 y PM2,5, respectivamente. Mientras que las fuentes interiores representaron aproximadamente el 40 % del PM10 observado.

CO2 y TVOC

Entre los contaminantes adicionales medidos en el área de oficina abierta, se encontró que dos más se correlacionaban fuertemente con la ocupación y la KE producida por los ocupantes. Se encontró que el CO2, un contaminante que se emite por la respiración humana, tenía correlaciones incluso más fuertes que las observadas para PM10. Esto es esperado ya que, en comparación con PM10, se

FIGURA 2. Relación de ocupación (izquierda) y KE (derecha) con PM promedio por hora en cada sala del estudio.

espera que las concentraciones de CO2 aumenten proporcionalmente con el número de ocupantes en una habitación, ya que el CO2 está directamente asociado con la presencia de personas y no solo con su actividad. Por lo tanto, se encontró una correlación de Pearson de 0,67 entre las concentraciones de CO2 en la habitación y el número de ocupantes (Fig. 3). Una vez más, se encontró una correlación aún más fuerte con la energía KE (r = 0,83), lo que resalta que no solo el número de ocupantes afecta las concentraciones de CO2, sino que con un mayor movimiento, se esperan mayores emisiones por persona ya que se requiere más energía con la respiración acompañante. Utilizando la regresión lineal, se encontró que a

partir de la concentración de fondo de aproximadamente 470 ppm (en ambas regresiones), cada ocupante agregó alrededor de 100 ppm de CO2 para la habitación específica, mientras que para la KE, se estimó que cada Joule de KE producido por los ocupantes estaba asociado con un aumento de alrededor de 0,13 ppm de CO2

De manera similar, la variación de los TVOC medidos en la misma habitación presentó correlaciones relativamente altas tanto con el número de ocupantes como con la EC producida por ellos (Fig. 3). Como puede haber múltiples fuentes de TVOC en el ambiente interior, algunas de ellas no asociadas con la presencia de personas, estas correlaciones fueron menores que las observadas

FIGURA 3. Relación de ocupación y KE con CO2 y TVOC en la sala de oficinas abiertas.

para el CO2. Sin embargo, se encontraron correlaciones de 0,56 y 0,73 entre la variación de los TVOC con la ocupación y la EC, respectivamente, estimándose que el fondo promedio es hasta un 30 % mayor que el promedio medido durante el período de ausencia, lo que demuestra que existen fuentes más diversas asociadas con este contaminante. En cualquier caso, el efecto añadido estimado de cada ocupante se calculó en unos 220 μg m −3, lo que significa que, en promedio, para las condiciones específicas del estudio, solo se necesita la presencia de una persona durante 1 h para más del doble de las concentraciones de fondo. Esto explica tanto la gran diferencia observada entre el horario laboral y el no laboral, como la gran desviación estándar de las concentraciones medias a lo largo del período de medición. En cuanto a la relación con la EC, la estimación del fondo se aproximó más a las concentraciones durante el horario no laboral, lo que podría deberse a las mayores correlaciones obte -

nidas. Finalmente, las concentraciones previstas de COVT añadidos por julio de EC se estimaron en aproximadamente 0,3 μg m −3 .

Discusión

Aunque el efecto de la actividad humana en el ambiente interior sobre las concentraciones de contaminantes específicos está bien establecido en la literatura, no existen estimaciones claras del efecto de cada ocupante o su actividad sobre ellos. Esta es una información crucial al diseñar las especificaciones y soluciones de ventilación para edificios saludables, así como para el bienestar de los trabajadores. La evaluación de la calidad del aire de los ambientes interiores es un desafío debido a las diferencias en las especificaciones, los materiales y las actividades que tienen lugar dentro de ellos. Si bien el efecto anticipado de la presencia de ocupantes dentro de ellos se consideró en estudios anteriores, su nivel de actividad, que juega un papel crucial en su contribu -

S3: Relationship of occupancy and KE with PM10 on the combined hourly averaged dataset, for both rooms

FIGURA S3: Relación de ocupación y KE con PM10 en el promedio horario combinado conjunto de datos, para ambas salas.

Figure

FIGURA S4: Ubicación del sensor en (A) la oficina, (B) la sala de reuniones y (C) el exterior.

ción a la contaminación del aire interior, no lo fue. En este estudio realizado por primera vez, a través del novedoso uso de sensores de calidad del aire y de radar, los resultados demuestran claramente que las concentraciones interiores de PM10, CO2 y TVOC se ven afectadas principalmente por la presencia y el movimiento de los ocupantes en las habitaciones estudiadas. Si bien el PM se ve afectado significativamente por la ocupación y el movimiento, no todos los rangos de tamaño se ven igualmente impactados. El PM de menor tamaño (PM1 y PM2,5) sigue las tendencias exteriores con poca influencia de las actividades interiores en las concentraciones generales.

En vistas a esto, un enfoque que utiliza únicamente el número de ocupantes para estimar la calidad del aire interior no es tan eficaz como considerar la energía cinética producida por el movimiento de los ocupantes. La mayor precisión de las estimaciones obtenidas mediante el uso de la energía cinética como indicador indirecto de los contaminantes emitidos en interiores mejora nuestra comprensión de los factores que afectan la calidad del aire interior. En el futuro, este nuevo conocimiento debe complementarse con una mejor comprensión de cómo el tamaño, el diseño y el uso de los diferentes entornos interiores generan contaminación del aire interior cuando los trabajadores se ubican en ellos.

Este estudio abre oportunidades futuras para estimar la calidad del aire en diferentes ambientes interiores según la presencia y actividad de las personas. Al combinarse con las estimaciones de la infiltración de la contaminación atmosférica, que es particularmente importante para PM1 y PM2.5, la estimación del efecto de los ocupantes de un ambiente interior proporcionará una evaluación más completa de las condiciones previstas de calidad del aire interior, lo que permitirá mejores estrategias para el diseño y la ventilación de los edificios que se diseñarán e implementarán. Además de los contaminantes considerados aquí, existen varios otros que están directamente asociados

con la actividad de los ocupantes de un ambiente interior. El enfoque presentado aquí proporciona una metodología asequible y fácil de aplicar para estimar los factores que influyen en las concentraciones de contaminantes en ambientes interiores, combinando la información de las dos fuentes que afectan la calidad del aire interior: los contaminantes que se infiltran desde el exterior y los generados en el interior. Al comprender cómo la ocupación y la energía derivada de los ocupantes pueden afectar la calidad del aire interior y considerar el factor de infiltración, podemos diseñar

mejor ambientes interiores más limpios y saludables. Esto mejorará la calidad de vida de todos, así como la seguridad laboral y la productividad de los trabajadores en oficinas y otros espacios de trabajo interiores.

Para más detalles sobre esta investigación: Bousiotis, D., Sanghera, DS, Carrington, J. et al. Parametrización del efecto de la ocupación humana y la energía cinética en la contaminación del aire interior. npj Clim Atmos Sci 9 , 4 (2026). https://doi.org/10.1038/s41612-025-01281-9

FIGURA S5: Plano del piso de la oficina. Están señalizadas las áreas Open Office, Walkway y Sala de Reuniones así como la ubicación de los sensores.

Figure S5: Blueprint of the office floor. Marked are the Open Office, Walkway and Meeting Room areas as well as the location of the sensors.

El patrimonio se adapta al futuro: el desafío de modernizar edificios históricos en Argentina

La renovación del sistema HVAC del edificio sede del Banco Hipotecario, ubicado en el histórico inmueble del ex Banco de Londres en la Ciudad Autónoma de Buenos Aires, representa un caso relevante de actualización tecnológica con criterios de eficiencia energética, confiabilidad operativa y preservación arquitectónica.

La modernización de sistemas de climatización en edificios corporativos de valor patrimonial constituye uno de los principales desafíos actuales de la ingeniería termomecánica. En este marco, el proyecto de renovación del sistema HVAC del edificio sede del Banco Hipotecario, ubicado en el histórico inmueble del ex Banco de Londres, representa un caso relevante de actualización tecnológica con criterios de eficiencia energética, confiabilidad operativa y preservación arquitectónica. Se trata de una obra emblemática de la arquitectura moderna argentina reconocida por su fachada y su integración con el espacio urbano. Diseñado en la década del 60 por Clorindo Testa, rompe con la rigidez del diseño bancario tradicional: sus voladizos, los niveles suspendidos y las perforaciones geométricas en hormigón permiten la entrada de luz natural y conectan el interior con la ciudad. Reacondicionar un lugar así no significa borrar el pasado, sino permitirle respirar hacia el futuro. En este proyecto, Daikin participó en la implementación

de climatización y ventilación de alta eficiencia adaptada a sus particularidades, demostrando que es posible aportar comodidad, respetando la riqueza estética y la audacia que lo hacen icónico.

La intervención contempló el recambio de sistemas VRV existentes por equipos Daikin de última generación, integrados a la infraestructura del edificio mediante una solución de baja invasividad y alto rendimiento.

La decisión de renovar la instalación termomecánica respondió a una evaluación integral de las condiciones técnicas, energéticas y operativas del sistema existente, así como a las exigencias actuales de funcionamiento de un edificio corporativo de alta ocupación y operación continua.

La obra

El sistema instalado, basado en equipos VRV de generaciones anteriores, presentaba un grado avanzado de obsolescencia tecnológica, evidenciado en un menor

rendimiento energético, limitaciones en la capacidad de modulación y una creciente dificultad para el acceso a repuestos y soporte técnico especializado. Estas condiciones incrementaban el riesgo operativo y los costos de mantenimiento correctivo, factores críticos en una institución financiera.

Por otra parte, en consonancia con los estándares actuales de sostenibilidad, reducción de costos operativos y gestión responsable de los recursos energéticos se hacía necesario optimizar la eficiencia energética global del edificio, el consumo eléctrico y el desempeño a cargas parciales, que representan la condición real de funcionamiento durante la mayor parte del tiempo. Otra necesidad, en vistas de la diversidad funcional del edificio, que combina áreas administrativas, sectores de atención al público y espacios técnicos, fue buscar la mejora del confort térmico y establecer el control ambiental por zonas. La incorporación de sistemas Daikin VRV posibilitó una regulación más precisa de temperatura y condiciones interiores, mejorando tanto la experiencia de los usuarios como las condiciones de trabajo del personal.

La intervención se desarrolló respetando las restricciones propias de un edificio de alto valor patrimonial, priorizando soluciones técnicas de baja invasividad, reutilización de trazas existentes y mínima afectación de la estructura y la imagen arquitectónica original. En este sentido, la tecnología VRV resultó especialmente adecuada por su flexibilidad de instalación y su reducido impacto visual y constructivo. Finalmente, la renovación fortaleció la confiabilidad y continuidad operativa del sistema de climatización, reduciendo la probabilidad de fallas críticas y permitiendo una gestión más eficiente del mantenimiento. De este modo, el Banco Hipotecario logró adecuar su infraestructura termomecánica a los estándares actuales de edificios corporativos, garantizando eficiencia, confort y seguridad operativa a largo plazo.

El sistema implementado

La solución adoptada consistió en la instalación de sistemas Daikin VRV (Variable Refrigerant Volume) de última generación, capaces de modular el caudal de refrigerante en función de la demanda térmica real de cada sector del edificio. La empresa que fue responsable de

la instalación de los equipos fue la firma instaladora y distribuidora Centro Aire.

El alcance de la obra incluyó el recambio de unidades exteriores e interiores VRV, adecuación de las instalaciones existentes, puesta en marcha y verificación del correcto funcionamiento del sistema.

La intervención se realizó de manera planificada para minimizar el impacto sobre la operatoria diaria del banco, garantizando la continuidad de las actividades durante el proceso de renovación.

El proyecto se desarrolló en las siguientes etapas técnicas:

• relevamiento del estado de la instalación existente y cálculo de cargas térmicas,

• desmontaje de equipos obsoletos,

• instalación de nuevas unidades exteriores e interiores VRV,

• adecuación de trazas de refrigerante y sistemas eléctricos,

• pruebas de estanqueidad y carga de refrigerante,

• puesta en marcha, calibración y pruebas de funcionamiento en condiciones reales de operación.

Estas tareas se realizaron conforme a los procedimientos técnicos y normativas del fabricante, asegurando la confiabilidad y eficiencia del sistema.

Entre las principales características técnicas del sistema instalado se destacan:

• control independiente por zonas,

• elevada eficiencia energética estacional,

• operación silenciosa,

• compatibilidad con sistemas de control centralizado y BMS,

• flexibilidad de instalación en edificios existentes.

Este tipo de tecnología resulta especialmente apropiada para edificios con usos mixtos y restricciones constructivas, como es el caso del Banco Hipotecario.

La renovación de la instalación termomecánica del Banco Hipotecario mediante sistemas VRV constituye un ejemplo de actualización tecnológica exitosa en un edificio patrimonial, combinando eficiencia energética, confiabilidad operativa y respeto por la arquitectura original. El proyecto evidencia la importancia de abordar la climatización como un sistema estratégico dentro de la infraestructura edilicia, especialmente en instituciones de alta exigencia funcional como el sector bancario.

El cáñamo: un cambio radical para la industria de la construcción

El cannabis se ha utilizado ampliamente a lo largo de la historia de la humanidad para diversos fines: textiles, papel, alimentos, medicinas, biocombustibles e incluso las estigmatizadas drogas recreativas. Considerada una de las primeras plantas cultivadas por la humanidad, su historia se remonta

a milenios y a menudo se entrelaza con el mundo de la construcción. El cáñamo, una de las variedades de cannabis, fue un material esencial en la historia de la construcción, venerado por su excepcional resistencia y versatilidad. Hoy en día se está redescubriendo el potencial del

cáñamo como recurso sostenible en la industria de la construcción y se espera un futuro emocionante para el material, con innovaciones como el hempcrete, los bioladrillos y los paneles de fibra de cáñamo que allanan el camino hacia un futuro más verde. El material está experimentando un renacimiento, no como una reliquia del pasado, sino como un hito de la innovación sostenible en la construcción contemporánea. Esto es especialmente valorado en un momento en el que el planeta se enfrenta a un cambio climático y una degradación ambiental evidentes. Este resurgimiento no se limita a proyectos aislados, sino que puede convertirse en un material de masas.

La producción de cáñamo es excepcionalmente alta en comparación con otros cultivos agríco -

las. Según una investigación del Departamento de Agricultura de EE. UU., la producción mundial de paja seca por acre osciló entre 2,5 y 8,7 toneladas . Esta es una comparación ventajosa con la producción de paja de trigo, que oscila entre 1,25 y 2,5 toneladas por acre. Ninguna otra planta ofrece tanta biomasa como el cáñamo en términos del volumen que se puede aprovechar de una sola cosecha.

La Universidad de Pisa,

un modelo de construcción sostenible

La nueva sede del Departamento de Ciencias Veterinarias, adscrito a la Universidad de Pisa, ha sido concebida bajo un modelo de construcción intrínsecamente sostenible, se edificó con cáñamo.

El emergente campus está siendo levantado en el corazón del Parque de Migliarino San Rossore Massaciuccoli, fusionando la sostenibilidad, la innovación, la modernidad y un profundo respeto por el entorno natural.

La estructura se está erigiendo con bloques (ladrillos) fabricados con cáñamo y cal, un compuesto de origen natural que tiene la capacidad de capturar dióxido de carbono (CO2) y de asegurar un elevado nivel de confort y bienestar en los espacios interiores. Con una capacidad de más de 30 toneladas de CO2 extraídas y almacenadas de forma permanente dentro de la envolvente del edificio, la construcción es de energía casi nula.

Su alimentación energética se logra mediante la combinación de sondas geotérmicas y una central fotovoltaica completamente integrada, complementada con sistemas eficientes de recuperación de agua de lluvia y dispositivos de protección solar natural. En este nuevo complejo que se edificó con cáñamo, que abarca una extensión de 13.000 metros cuadrados y representa una inversión superior a los $53 millones de euros, se ubicarán aulas, laboratorios, bibliotecas y amplias zonas verdes, todo diseñado bajo los principios de la inclusión y la máxima calidad ambiental.

Construcción con cáñamo

El bioladrillo (biomatone en italiano) de cáñamo y cal amalgama la naturaleza, la investigación y la industria en una respuesta concreta para disminuir las emisiones y optimizar el rendimiento de los entornos destinados al estudio y al trabajo. Las colaboraciones como esta, entre el ámbito universitario y el empresarial, actúan como catalizadores de la transición ecológica en el sector de la construcción, aportando beneficios medibles tanto para las personas como para los territorios». El biomatone de cáñamo y cal se erige como una solución marcadamente innovadora dentro del ámbito de la construcción ecológica. Se distingue por una composición natural que armoniza el cáñamo, una planta caracterizada por su versatilidad y sostenibilidad, con la cal, un material de construcción de uso tradicional. Esta sinergia no solo proporciona un rendimiento térmico óptimo, sino que también promueve activamente una filosofía ecológica en la edificación, al minimizar el impacto ambiental que es habitual en los materiales de construcción convencionales. Edificar con cáñamo es apreciado por sus propiedades de resistencia y aislamiento, mientras que

la cal confiere estabilidad estructural y una excelente transpirabilidad a los muros, lo que resulta en un ambiente interior que es saludable y confortable.

En el transcurso de los últimos años, se ha evidenciado un interés creciente por la incorporación de materiales sostenibles en la arquitectura y la ingeniería civil, como una respuesta directa a los desafíos impuestos por el cambio climático y a los problemas de contaminación ambiental. El biomatone de cáñamo y cal se integra perfectamente en este panorama, no solo por sus virtudes físicas inherentes, sino también porque disminuye de manera significativa la emisión de CO 2 a lo largo de todo el ciclo de vida útil de la construcción.

La manufactura de este material se lleva a cabo mediante procesos ecológicamente responsables, que buscan minimizar el consumo de recursos fósiles y maximizar la eficiencia energética. La biomasa derivada del cáñamo es ampliamente reconocida por sus sobresalientes propiedades aislantes, las cuales contribuyen a que los edificios construidos con este material requieran una menor demanda de energía para la climati -

zación (tanto para la calefacción como para el aire acondicionado).

Esto se traduce directamente en una notable disminución de los costes energéticos a largo plazo. Adicionalmente, posee una excelente capacidad de aislamiento acústico, lo que facilita la creación de un entorno de aprendizaje y trabajo más apacible y cómodo tanto para el alumnado como para el personal docente.

El biomatone representa una alternativa innovadora y sostenible para las construcciones modernas. Más allá de su rendimiento energético y su valiosa capacidad de almacenamiento de CO 2, la característica de reciclabilidad de la biomasa promueve activamente un ciclo de vida amigable con el medio ambiente.

Una vez que el material concluye su vida útil, puede ser reciclado con facilidad, lo que reduce su impacto ambiental final y fomenta un aprovechamiento responsable de los recursos.

En una era donde la sostenibilidad se ha convertido en una prioridad esencial, la construcción basada en el cáñamo se perfila como una solución altamente beneficiosa, no solo para las edificaciones contemporáneas, sino también para la

protección de las generaciones futuras, al asegurar que las prácticas constructivas no comprometan la salud de nuestro planeta.

El cáñamo tiene el potencial de revolucionar la industria de la construcción a través de prácticas e innovaciones sostenibles.

Con los avances en las técnicas de cultivo y procesamiento, el futuro del cáñamo en la industria es extremadamente prometedor. Ya se están desarrollando soluciones innovadoras como bloques de cáñamo prefabricados, estructuras impresas en 3D y casas modulares, lo que demuestra la versatilidad y el potencial del material para satisfacer las demandas de la construcción moderna. Además, a medida que las regulaciones evolucionen y las cadenas de suministro se fortalezcan, es probable que el material pase de ser una solución de nicho a ser ampliamente adoptado, especialmente en regiones que priorizan la sostenibilidad y la construcción de bajo impacto ambiental. Con el avance continuo en investigación y desarrollo, se espera que la versatilidad del cáñamo permita aplicaciones nuevas e innovadoras en diversos sectores, consolidándolo como un recurso esencial para un futuro más sostenible.

La innovación, la comunidad y el futuro de HVACR dominan Las Vegas

Del 2 al 4 de febrero, la AHR Expo (Exposición Internacional de Aire Acondiciona -

do, Calefacción y Refrigeración) brindó a sus visitantes una semana monumental en los pabellones central y sur del Centro de Convenciones de Las Vegas.

53.315 profesionales, incluidos ingenieros, socios de canales de ventas, propietarios, contratistas, instaladores y más, se reunieron para experimentar las últimas ofertas de 1.956 expositores en más de 578.980 pies cuadrados de sala de exposición de AHR EXPO 2026.

La exposición no solo es una ocasión para las

empresas para exponer sus productos e innovaciones, también es una punto fundamental de encuentro para todos los que directa o indirectamente se relacionan con esta industria. Esta industria es cada vez más emocionante”, afirmó Jeff Stevens, director de la feria. “Nos enorgullece ser el punto de encuentro de los profesiona-

les de HVACR para afrontar los retos emergentes y descubrir nuevas oportunidades. A medida que el ritmo del cambio se acelera, nuestra colaboración es más importante que nunca para crear un entorno construido cómodo, seguro y eficiente”. La industria de HVACR continúa incursionando en formas más inteligentes de proporcionar calefacción, refrigeración y aire acondicionado a los entornos construidos. La aplicación constante de tecnologías tradicionales, hasta la introducción de nuevos productos y prácticas, permite a los profesionales converger y actualizar sus conocimientos, descubrir nuevos caminos y ampliar su red de contactos para alinear y alcanzar sus objetivos.

Los expertos brindan acceso a educación y capacitación

Con su área de exhibición, AHR Expo incluye numerosas sesiones sobre todos los temas de interés. Los asistentes escucharon sobre centros de datos, métodos para fortalecer las iniciativas de desarrollo de la fuerza laboral, discusiones sobre cómo estabilizar la escasez de refrigerantes junto con un impulso hacia nuevos refrigerantes, regulaciones actualizadas y más.

Además del programa gratuito de la industria, ya repleto de sesiones sobre todos los temas de interés, el Programa Educativo incluyó la Serie de Paneles 2026. Entre los aspectos más destacados se incluyen:

• Estado actual de la política sobre refrigerantes en EE. UU.

• Bombas de calor: escalabilidad para los mercados comercial y residencial.

• La evolución de la ventilación y la recuperación de energía: el papel creciente de los ERV en HVAC.

• HVACR de última generación: desarrollo de habilidades, oportunidades, innovación y colaboración para un crecimiento sostenible.

• Estado de la industria 2026: mercado actual, desafíos, oportunidades y futuro.

• Demandas del centro de datos: Soluciones

de refrigeración, avances en BMS y la próxima generación de HVAC.

• La gran desconexión: ¿estamos preparados para edificios que piensan por sí mismos?

• Mitigación de la desinformación: comunicación con el cliente escalable.

• Guía del instalador para navegar por la montaña rusa del refrigerante.

“La AHR Expo consiste en tres días de interacción productiva con valiosos clientes, proveedores y socios”, afirmó Steve Ribaudo, vicepresidente y gerente general de Commercial HVAC Americas en Carrier. “Cerramos una semana realmente estimulante en Las Vegas, donde el equipo de la AHR Expo y nuestro increíble equipo ofrecieron un espectáculo y una recepción a los clientes increíbles”.

Premios a la innovación

Durante una ceremonia a puerta cerrada, se entregaron los Premios a la Innovación de la AHR Expo 2026 por su contribución a la climatización y su futuro. Los ganadores, en diez categorías de la industria, se eligen anualmente para representar los productos y tecnologías más innovadores del mercado actual.

“Recibir un Premio a la Innovación es una distinción significativa en HVACR”, declaró Mark Stevens, director de la feria. “Nos enorgullece mostrar el compromiso y reconocer el arduo trabajo de estos fabricantes y sus equipos, quienes se esfuerzan por llevar al mercado soluciones nuevas e innovadoras. Los Premios a la Innovación no solo destacan estos logros, sino que también sirven como referente de excelencia, honrando la creatividad y la dedicación que definen el futuro de nuestra industria”.

Cada año, los Premios a la Innovación reciben cientos de candidaturas de fabricantes que presentan diseños innovadores para soluciones o mejoras nuevas e inéditas de productos y tecnologías

Ganadores de los Premios a la Innovación de la AHR Expo 2026.

existentes. Las candidaturas son revisadas minuciosamente por un panel de jueces externos, compuesto por distinguidos miembros de ASHRAE. Las evaluaciones se basan en el diseño innovador general, la creatividad del producto o servicio ofrecido, el producto o la tecnología en su aplicación práctica, así como el impacto potencial general en el mercado.

“Es un indicador positivo que cada año veamos a más fabricantes afrontar los retos de la industria con creatividad e innovación”, continuó Stevens. “Los productos ganadores, junto con todos los finalistas, demuestran la preparación de HVACR para responder a las demandas y desafíos críticos con soluciones innovadoras que fomentan la eficiencia energética, el cumplimiento normativo, la

rentabilidad y una mejora general del rendimiento de los equipos”.

Un atractivo beneficio adicional de la creciente innovación que impulsa las candidaturas a los Premios a la Innovación es la capacidad de fortalecer la industria mediante la financiación del programa de Desarrollo de la Fuerza Laboral de la AHR Expo. El programa, que celebra su cuarto año en Las Vegas, tiene como objetivo impulsar el crecimiento de la industria a través de experiencias diseñadas para inspirar a los futuros miembros de la comunidad HVACR. Los fondos recaudados con las cuotas de inscripción se destinan a programas para estudiantes, incluyendo visitas a la feria, presentaciones personalizadas a profesionales y fabricantes, equipos para aprendizaje práctico en laboratorios

escolares y donaciones monetarias a programas estudiantiles en la ciudad anfitriona. Los invitamos a conocer más sobre el desarrollo de la fuerza laboral en ahrexpo.com y los animamos a participar. Los ganadores de los Premios a la Innovación de la AHR Expo 2026 incluyen:

AUTOMATIZACIÓN DE EDIFICIOS

• Ganador: Honeywell

• Innovación: Soluciones Conectadas de Honeywell

La suite Soluciones Conectadas de Honeywell ofrece a propietarios de edificios y proveedores de servicios herramientas basadas en la nube para la monitorización remota, el mantenimiento predictivo, la optimización energética y la gestión del ciclo de vida de los activos. Estas aplicaciones optimizan las operaciones, reducen costos y mejoran la sostenibilidad, todo a través de una plataforma unificada e intuitiva que transforma la gestión tradicional de edificios en una experiencia conectada y basada en datos.

• Finalistas: Boldr, Boldr Mini Split Controller Pro Pack; y eDelta Inc./ eTrapp, eTrapp

REFRIGERACIÓN

• Ganador: Daikin Applied Americas Inc.

• Innovación: Magnitude® WME-C Quad Magnitude® WME-C Quad es la primera enfriado -

ra de contraflujo de circuito doble que ofrece hasta 3000 toneladas de capacidad gracias a la tecnología de compresores de cojinetes magnéticos de Daikin. Con cuatro compresores, la probada tecnología de cojinetes magnéticos sin aceite WME de Daikin y funciones esenciales como RideThrough® y RapidRestore®, que ofrecen una eficiencia, fiabilidad y tiempo de funcionamiento inigualables a carga parcial.

• Finalistas: BAC (Baltimore Aircoil Company), Tanque de Enfriamiento por Inmersión con Tecnología Cortex™; y Gree Electric Appliances, Inc. de Zhuhai, compresor G-Storm (G-Storm 200 Hz, compresor de ultraalta velocidad)

CALEFACCIÓN

• Ganador: Copeland

• Innovación: Gama de productos Copeland de inyección de vapor modulada optimizada para calefacción

La gama de sistemas de inyección de vapor modulante optimizados para calefacción de Copeland combina innovadoras plataformas de compresión de dos etapas, en tándem y de velocidad variable con tecnologías de inyección de vapor mejorada (EVI) para ofrecer la máxima flexibilidad, escalabilidad y rendimiento, cumpliendo así con los requisitos de capacidad y eficiencia de las bombas de calor comerciales de última generación para apli-

caciones de aire caliente y agua.

• Entre los finalistas se encuentran: Danfoss, PSG Heating Scroll Compressor; y Trane® 17, bomba de calor multivelocidad con WeatherGuard™.

CALIDAD DEL AIRE INTERIOR

• Ganador: Sharp Corporation

• Innovación: Airest

Airest es la primera bomba de calor minisplit del mundo con filtros integrados con certificación MERV 14. Captura más del 99,9 % del polvo antes de que entre en la unidad. Con un alcance de flujo de aire de 13 metros, Airest enfría, calienta y purifica el aire simultáneamente, todo ello gracias a su estructura interna de diseño único. Finalistas: CASPR Technologies, CASPR Medik; y Friedrich Air Conditioning, FreshAire®

PLUMBING

• Ganador: IDC Fluid Control

• Innovación: LeakStop III

LeakStop III es un sistema de detección de fugas de agua totalmente automatizado para viviendas y pequeños edificios comerciales. El sistema está diseñado para activar una alarma en caso de detectar una fuga. Cuando el flujo de agua es continuo y supera un valor máximo preestablecido y programable, el sistema se apaga automáticamente.

• Finalistas: GE Appliances Air & Water Solutions, Sistema de detección de fugas inalámbrico Smart HQ; y Milwaukee Tool, Ranuradora de Rodillos (2927)

REFRIGERACIÓN

• Ganador: Copeland

• Innovación: Compresor scroll de CO2 transcrítico Copeland con tecnología de inyección dinámica de vapor

El compresor scroll de CO2 transcrítico Copeland marca una nueva era de simplicidad, escalabilidad y sostenibilidad para la refrigeración distribuida con CO2 en espacios reducidos. Con tecnología de inyección dinámica de vapor (DVI), que mejora la eficiencia y simplifica el diseño, este compresor transcrítico revoluciona el diseño y las aplicaciones de sistemas de refrigeración con CO 2 en Norteamérica.

• Entre los finalistas se encuentran: DORIN USA, Gama CD700 - Compresores transcríticos de CO2; y Quest Climate, M-CoRR (Recuperación de Refrigeración Multi-Serpentín).

SOFTWARE

• Ganador: Rebar

• Innovación: Rebar

Rebar es la primera plataforma de cálculo basada

en IA diseñada para HVAC. Lee planos de construcción, identifica páginas mecánicas, marca equipos y genera cálculos precisos en minutos, lo que reduce horas de trabajo manual. Diseñado específicamente por expertos de la industria, Rebar ayuda a los representantes a trabajar más rápido, conseguir más trabajos y agilizar todo el proceso de ventas.

• Entre los finalistas se encuentran: HVAC Solutions, Inc., AGILE-MEP; y PhaseAlpa, LLC, AlphaTakeoff.

SOLUCIONES SOSTENIBLES

• Ganador: Blue Frontier

• Innovación: BF-DOAS

La tecnología de Blue Frontier para enfriar y deshumidificar es una evolución que se aleja de los refrigerantes y del ciclo de compresión de vapor. Es un 300 % más eficiente que las tecnologías actuales, contiene una batería de almacenamiento térmico despachable y puede controlar de forma independiente la presión diferencial y la presión diferencial, lo que proporciona un confort superior. Cuanto más calor hace, más eficientes somos.

• Finalistas: Conifer, Cypress: Motor EC IE5+ sin tierras raras para marcos NEMA; y SHARC Energy, Serie SHARC (660, 880, 1212 (próximamente).

HERRAMIENTAS E INSTRUMENTOS

• Ganador: CSG Compressors (Houston y American Hermetics).

• Innovación: SAMMi. SAMMi es un sistema de monitoreo y despacho de HVAC impulsado por IA que detecta problemas antes de que provoquen averías. Alerta y envía técnicos de forma autónoma, ahorrando tiempo, dinero y pérdidas de producto. Fácil de instalar y escalable, SAMMi convierte el mantenimiento reactivo en una prevención inteligente y eficiente.

• Finalistas: NAVAC Inc., Flex-X Manifold Gauge. y Uniweld Products, Inc., Uniweld

• Kit SmarTech® FUSION Pro

VENTILACIÓN

• Ganador: ABB Motors and Drives

• Innovación: Variadores de frecuencia ACH580. El variador ACH580 permite un control continuo de hasta seis motores EC Titanium, optimizando la eficiencia energética, reduciendo la complejidad de la instalación y el coste total de propiedad. Esta solución inteligente de matriz de ventiladores ofrece alto rendimiento y una gestión simplificada de motores de imanes permanentes para aplicaciones avanzadas de climatización (HVAC).

• Finalistas: Honeywell, Critical Spaces Control Drives; y Senva Inc., ECMSet Pro.

Los pilares de un Data Center eficiente y confiable: climatización y control inteligente

Los centros de datos (Data Centers) se han consolidado como infraestructuras críticas para la vida digital moderna y la operación de empresas de todos los tamaños. El crecimiento exponencial de aplicaciones empresariales, servicios en la nube, inteligencia artificial y sistemas de comunicación exige procesamien-

to y almacenamiento continuo, operando 24/7 con los más altos niveles de confiabilidad. En este contexto, la climatización eficiente y el control térmico inteligente se convierten en pilares fundamentales para garantizar la continuidad operativa, proteger los equipos y optimizar el uso de los recursos energéticos.

Climatización y carga térmica en Data Centers

En un Data Center típico, la infraestructura de TI puede representar entre el 40 % y el 60 % del consumo energético total, mientras que los sistemas de climatización pueden sumar entre un 30 % y un 40 % adicional, dependiendo del diseño y la eficiencia de la instalación. A medida que aumenta la densidad de potencia —con racks que pueden superar los 10 a 20 kW por rack en entornos de media y alta densidad—, resulta imprescindible contar con soluciones de enfriamiento:

• Precisas

• Escalables

• Capaces de adaptarse dinámicamente a la carga térmica real

• Todo esto sin incrementar innecesariamente el consumo eléctrico.

Consumo energético y optimización de recursos

El consumo energético de los Data Centers representa una parte significativa del consumo global. Por ello, la eficiencia energética no solo impacta en los costos operativos, sino también en los objetivos de sostenibilidad.

Indicadores como:

• PUE (Power Usage Effectiveness)

• WUE (Water Usage Effectiveness) se han convertido en referencias clave dentro de auditorías energéticas y evaluaciones de desempeño. La optimización del sistema de climatización es uno de los factores con mayor impacto directo sobre estos indicadores.

Arquitecturas térmicas modernas y estrategias de control

El mercado ha evolucionado desde esquemas tradicionales hacia arquitecturas térmicas avanzadas, que permiten un mejor aprovechamiento del flujo de aire y de los recursos disponibles. Entre las estrategias más efectivas se destacan:

• Pasillos fríos y calientes con compartimentación, separando los flujos de aire para maximizar la eficiencia.

• Free-cooling y economización, aprovechando condiciones ambientales favorables.

• Control adaptativo de setpoints, que ajusta dinámicamente los parámetros según la carga térmica real del Data Center.

Estas estrategias requieren sistemas de control confiables, flexibles y con alta capacidad de integración.

La climatización y el control inteligente son pilares fundamentales para garantizar la continuidad operativa, confiabilidad y eficiencia energética de los Data Centers actuales y futuros.

Con décadas de experiencia en soluciones de control y eficiencia energética, CAREL ofrece un portafolio integral diseñado para optimizar la climatización, el monitoreo y el control de centros de datos.

Informe provisto por SuperControls. En nuestro Clima de noticias encontrará más información sobre la línea Carel.

El mercado solar entra en una nueva etapa

Lejos de ser una señal de alarma, el sinceramiento de los precios internacionales marca la madurez del sector fotovoltaico.

El mercado solar global ha llegado a un punto de inflexión. Lo que se anticipaba a finales del año pasado es hoy una realidad: la era de los paneles solares a precios artificialmente bajos ha terminado. La decisión del gobierno de China de eliminar los reembolsos del IVA a las exportaciones y reducir la capacidad de producción excedente ya impacta en las listas de precios internacionales. Sin embargo, para el mercado argentino, este escenario presenta una paradoja positiva: nunca fue tan estratégico invertir en generación distribuida como en este Q1. En un contexto donde la seguridad energética y el ahorro a largo plazo son prioridades, la volatilidad coyuntural del equipamien -

to específico pasa a un segundo plano frente a la escalada de las tarifas locales.

Hacia un mercado de valores reales

La corrección de precios, que ronda el 20% en este primer trimestre, responde a una necesaria estabilización de la industria global. Durante años, la sobreoferta y los subsidios cruzados mantuvieron los costos por debajo de niveles sostenibles, provocando cierres de fábricas y una competencia desleal que afectaba la cadena de suministro. “Lo que estamos viendo no es una crisis, sino un retorno a la racionalidad de los costos. Estamos saliendo de una etapa de precios subsidiados para

entrar en un mercado de valores reales, donde lo que prima es la calidad tecnológica y la sostenibilidad de los fabricantes a largo plazo”, explica Diego Simondi, Director Ejecutivo de BGH Eco Smart.

La oportunidad argentina: Tarifas energéticas vs. Inversión solar

Si bien el CAPEX de los proyectos solares ha experimentado un ajuste al alza debido a los costos internacionales del silicio y la plata, la ecuación en Argentina sigue siendo sumamente favorable. Este aumento ubica los niveles de Capex a niveles de 2024/2023. La normalización en las tarifas de energía eléctrica y la quita de subsidios locales han encarecido el costo operativo de las industrias a un ritmo mayor que el de la tecnología fotovoltaica.

“Hoy la energía representa el 30% o más de los costos operativos en muchas industrias locales. Aunque el panel solar suba un porcentaje por cuestiones exógenas como la política fiscal china, el repago de la inversión sigue siendo atractivo porque el costo de no generar tu propia energía es mucho más alto”, señala Diego Simondi. Es importante destacar que este aumento del 20% en los módulos no se traslada linealmente al costo total de la obra. Su incidencia varía según la escala del proyecto:

• Residencial: El panel representa entre un 25% y 30% del costo total. Por ello, el impacto en el presupuesto final es apenas del 5% al 6%, dado que otros componentes como inversores y mano de obra tienen mayor peso relativo.

• Comercial: Con una incidencia de los módulos situada entre el 35% y 45%, el ajuste en el precio final de la instalación ronda el 8%.

• Industrial: En grandes obras, donde el panel es el componente dominante representando entre el 50% y 60% del presupuesto, el impacto del aumento puede alcanzar el 11%.

Calidad y almacenamiento:

El nuevo estándar

El ajuste global también actúa como un filtro de calidad. El fin de los subsidios en origen desplaza

a los fabricantes ineficientes, dejando en el mercado a los líderes tecnológicos que garantizan que las inversiones realizadas durante este año tengan un respaldo técnico superior.

A esto se suma el rol estratégico del almacenamiento. Con la reducción de incentivos a la exportación de baterías de litio programada para comenzar en abril y avanzar escalonadamente hasta 2027, este primer trimestre de 2026 se presenta como una “ventana de oportunidad” para integrar sistemas BESS (Battery Energy Storage System) antes de nuevos reajustes en la cadena de suministros. “Estamos viendo un interés creciente en soluciones híbridas. Ya no se trata solo de bajar la factura, sino de garantizar calidad de red y potencia firme ante las inestabilidades del sistema. Las empresas que deciden hoy, se aseguran tecnología de punta antes de que la curva de precios de almacenamiento acompañe la tendencia de los paneles”, agrega Simondi.

Planificación: La herramienta contra la especulación

A pesar de los titulares, el mercado de generación distribuida en Argentina no se detiene. Sectores clave como el agro y la industria manufacturera en Córdoba, Santa Fe y Buenos Aires continúan liderando la demanda.

La recomendación para el sector corporativo es clara: la planificación es la mejor defensa. Con la eliminación total de los reintegros chinos prevista para el cierre de este trimestre, las decisiones tomadas ahora permiten mitigar impactos, asegurar stock y fijar costos antes del próximo salto de precios. La tecnología solar ha alcanzado una madurez tal que, incluso con estos ajustes, sigue siendo la fuente de energía más competitiva y rápida de desplegar. En BGH Eco Smart, el enfoque permanece en modelos flexibles que permitan a las empresas transformar este desafío global en una ventaja competitiva local.

Este informe ha sido realizado por Diego Simondi, director ejecutivo BGH Eco Smart.

Cámara Argentina de Calefacción, Aire Acondicionado y Ventilación

CIAR 2026 - XVIII Congreso Iberoamericano de Aire Acondicionado y Refrigeración

El CIAR es el congreso bienal más importante de Iberoamérica en climatización, refrigeración y ventilación. Reúne a líderes, empresas y especialistas para compartir innovación, eficiencia energética y soluciones sostenibles. Este año, entre el 5 y el 7 de mayo se realizará nuevamente en Asunción, Paraguay, organizado por la Federación de Asociaciones Iberoamericanas de Aire Acondicionado y Refrigeración (FAIAR), entidad que reúne a asociaciones de Iberoamérica y a más de 100.000 profesionales del sector, para promover espacios de intercambio y generación de conocimiento para fortalecer el crecimiento y desarrollo de la región, y La Cámara Paraguaya de Aire Acondicionado, Refrigeración y Ventilación Mecánica (CAPAREV), con más de 20 años de trayectoria promoviendo la actualización tecnológica y la excelencia profesional en Paraguay e impulsando estándares internacionales y prácticas sostenibles. Según informaron los organizadores, el congreso busca elevar el estándar de la industria mediante la promoción de la innovación tecnológica y la sostenibilidad. En ese sentido, el CIAR se consolida como un espacio técnico de referencia

que impulsa la actualización profesional y el intercambio de conocimientos en refrigeración y climatización.

Paralelamente al Congreso, se llevará a cabo una exposición técnica especializada , en la que se espera la presencia de marcas y proveedores líderes del sector HVAC&R, brindando una excelente oportunidad para construir y fortalecer contactos para el intercambio de información, experiencias y oportunidades de negocios .

Además, la agenda contempla conferencias, presentaciones técnicas y espacios de networking de alto nivel, orientados a fortalecer la colaboración regional. El evento cuenta con aliados estratégicos como Trane, Full Gauge Controls, Sicflux, Multiclima Refrigeración y Friopar, entre otros actores del sector, que respaldan el desarrollo técnico del congreso. Con sede en el moderno Paseo La Galería, ubicado en el corazón de Asunción, el CIAR 2026 proyecta tres días intensos enfocados en el futuro del sector HVAC-R. Así, el congreso reafirma su papel como plataforma para debatir tendencias, eficiencia energética y sostenibilidad en un contexto de creciente transformación tecnológica.

REFRIGERACIÓN

Investigadores diseñan un ladrillo capaz de enfriar ciudades.

Dos diseñadores industriales de la Universidad de las Artes de Zúrich han construido un sistema apilable de ladrillo que puede enfriar el aire en paradas de autobús, patios escolares y plazas sin necesidad de usar electricidad de la red. Buscando resolver el problema de las islas de calor urbanas, los investigadores crearon el bloque. Su diseño utiliza terracota impresa en 3D, una arcilla porosa cocida que absorbe agua de forma natural, para formar la capa exterior de cada unidad de refrigeración.

ENERGÍA

Los vehículos eléctricos podrían ayudar a ahorrar dinero y reducir emisiones al proporcionar energía a los hogares . Utilizar baterías de vehículos eléctricos (VE) para alimentar hogares podría ahorrar a sus propietarios miles de dólares en facturas mientras reduce las emisiones de la red eléctrica, según una nueva investigación de la Universidad de Michigan y Ford Motor Company. El equipo investigó escenarios relacionados con la carga de vehículo a casa, o V2H. Esta tecnología emergente es similar a usar vehículos eléctricos que están aparcados en garajes como generadores, pero en lugar de quemar gasolina, suministran electricidad a partir de sus baterías que han sido cargadas por la red.

CALIDAD DEL AIRE INTERIOR

Stanford: Cambiar a cocinas eléctricas puede reducir drásticamente la contaminación del aire interior. Para millones de estadounidenses, permanecer en interiores ofrece poca protección frente a la peligrosa contaminación del aire, según un nuevo estudio liderado por la Universidad de Stanford. El artículo revela que las estufas de gas y propano exponen a las personas a cantidades sustanciales de dióxido de nitrógeno, pero sustituir las estufas de gas por eléctricas reduce la exposición al dióxido de nitrógeno en más de una cuarta parte de media en Estados Unidos y en la mitad para los usuarios más pesados de estufas.

IA Y CENTROS DE DATOS

Nuevo informe revela un sorprendente descubrimiento sobre la mayoría de los centros de datos del mundo. Unos 600 centros de datos en todo el mundo se encuentran en regiones donde las temperaturas anuales superan lo que las instalaciones pueden soportar, según Rest of World. Un nuevo análisis analizó casi 8.800 centros de datos activos en todo el mundo y encontró unos 600 en zonas que simplemente son demasiado cálidas. Cada uno de estos centros de datos, en 21 países, se encuentra en una zona sobrecalentada, desde Singapur y Tailandia hasta Nigeria y los Emiratos Árabes Unidos.

INNOVACIÓN EN REFRIGERACIÓN

Radiador de la época victoriana convertido en sistema de refrigeración para PC. Un radiador de hierro fundido centenario ha sido reutilizado como sistema de refrigeración principal para un PC gaming moderno en una nueva versión experimental que Billet Labs ha anunciado en Instagram. Los especialistas en refrigeración de PC, con sede en Londres, han tomado un radiador de 110 lb (50 kg), probablemente recuperado de una casa de la época victoriana, y han montado los componentes internos del ordenador debajo, convirtiendo al radiador en la característica definitoria del sistema.

BOMBAS DE CALOR

Las bombas de calor de CO₂ podrían sustituir a las calderas de gas y carbón en aplicaciones industriales. Científicos de la Universidad de Waikato en Nueva Zelanda, la Universidad Paderborn de Alemania y el Centro Aeroespacial Alemán han realizado un estudio a gran escala para evaluar el potencial del dióxido de carbono como refrigerante para bombas de calor de alta temperatura. Estas unidades se están considerando como una alternativa a las calderas de gas y carbón en procesos como el secado de alimentos, la producción de papel y la pintura de coches.

ENERGÍA SOLAR

4.600 millones de años después, el sol está teniendo un momento. La gente ha estado contando historias sobre energías renovables desde que se inauguró la primera casa totalmente alimentada por energía solar en el campus de la Universidad de Delaware en 1973, pero, aunque nos hemos acostumbrado a ver paneles solares y aerogeneradores por todo el paisaje en los 50 años transcurridos, seguimos pensando en lo que producen como “energía alternativa, “un complemento al poder de combustibles fósiles que ha impulsado las economías occidentales durante más de dos siglos. Sin embargo, en los últimos dos años, con sorprendentemente poco aviso, las energías renovables se han convertido de repente en la opción obvia, convencional y rentable en todo el mundo.

ASHRAE en Argentina

Inscripciones abiertas al III Congreso Internacional de Tecnología en Data Center

El crecimiento de los data centers a nivel global ha traído consigo un desafío clave: la gestión eficiente de la refrigeración en un contexto cambiante, impulsado por la inteligencia artificial, que eleva exponencialmente los requerimientos de procesamiento y, con ello, la demanda energética y térmica.

La transformación de los Data Centers no se detiene. La tecnología avanza, los desafíos crecen y las decisiones que tomamos hoy definen

el futuro de la infraestructura digital. La industria está explorando soluciones innovadoras que van desde el uso de sistemas de refrigeración líquida hasta el aprovechamiento de IA para optimizar la distribución del flujo de aire y la gestión de cargas térmicas. Además, enfoques como el free cooling y la reutilización del calor residual están cobrando relevancia como estrategias para reducir el impacto ambiental y mejorar la eficiencia energética de estas infraestructuras.

Con el objetivo de abordar estos retos, ASHRAE Argentina organiza el III Congreso Internacional de Tecnología en Data Center vuelve a Buenos Aires para reunir a referentes y profesionales del sector, en una jornada 100% enfocada en tecnología, eficiencia y el futuro de los centros de datos. También estarán presentes durante toda la jornada los sponsors exclusivos del congreso con un stand para mostrar sus últimas soluciones y productos del mercado.

El programa completo del congreso y los oradores se anunciarán próximamente, pero los cupos son limitados y ya podés asegurar tu lugar. Si trabajás en Data Centers, infraestructuras críticas o entornos de alta disponibilidad, este es el evento que no podés dejar pasar.

✔¿Cuándo? 9 de Abril del 2026

✔¿Dónde? Campus Tecnológico Kyndryl Argentina

La experiencia de un estudiante argentino ASHRAE becado para participar en Winter Conference 2026

Lisandro Vassia, estudiante de Ingeniería Mecánica UNR y de ASHRAE Argentina viajó becado para participar en Winter Conference 2026, una experiencia -según él mismo expresa- “transformadora tanto desde lo técnico como desde lo humano. Me permitió ver la ingeniería HVAC&R en su máxima expresión global y volver con una visión más amplia, más exigente y más ambiciosa para nuestro desarrollo local. No fue solo un evento técnico, lo viví como un punto de encuentro entre estudiantes, jóvenes profesionales y referentes de la industria a escala global. Desde el Student Program hasta las reuniones de comités técnicos y la AHR Expo, cada espacio está diseñado para conectar formación académica y práctica profesional. Uno llega pensando que va a “asistir a charlas”, y en realidad participa del ecosistema donde se define hacia dónde va la ingeniería HVAC&R en el mundo”. En una de las instancias institucionales del evento tuvo hasta la oportunidad de conversar y tomarme una foto con Bill McQuade, actual Presidente de ASHRAE.

Student Program

De su participación en el Student Program Lisandro rescata sobre todos algunos puntos: • It’s Not About GPA: How Engineers Really Succeed. La key note de Karine Leblanc. La disertante se centró en inteligencia emocional, comunicación, autoliderazgo y capacidad de adaptación como verdaderos diferenciadores en la industria, más allá del

promedio académico y dominio técnico. “Fue para mí uno de los puntos más fuertes del programa, su mensaje fue claro. En un entorno como el HVAC&R, donde solemos enfocarnos intensamente en cálculo, normas y eficiencia, escuchar a una ingeniera con trayectoria global remarcar el peso de

Vassia - Plenary Sesson

las habilidades blandas lo ví como un recordatorio muy fuerte (…) el futuro de la ingeniería no es solo técnico, es técnico + humano, y más humano que técnico diría”, asevera.

• Tim Wentz- Back to the Future: Our Industry in 2030. Esta exposición se centró en proyectar la industria hacia el 2030, analizando tendencias tecnológicas y cambios estructurales. “La conclusión implícita fue clara: quien no entienda hacia dónde evoluciona el sector, quedará rezagado. Fue un gran aporte de cara a lo que se viene, como por ejemplo el III Congreso internacional de Data Center a realizarse este año en abril en Argentina”, aclara Vassia.

• Tracey Jumper - Decarbonization: Lessons from the Amazon Rainforest. Esta charla giró en torno a una pregunta central: ¿podemos los ingenieros HVAC&R generar un impacto significativo en la lucha contra el cambio climático? A partir de una metáfora ins -

pirada en una travesía de la disertante por los Andes y la selva amazónica, la exposición puso en perspectiva el rol que tenemos como profesionales en la protección de sistemas ambientales críticos. “Más allá de que nuestra disciplina promueve naturalmente la eficiencia, la optimización y la reducción de desperdicios, siento que el mensaje fue un ´siempre podemos hacer más´”, puntualizó el estudiante.

Epicentro mundial de la innovación en HVAC&R: la expo

Las exposiciones internacionales suelen ser un espectáculo impresionante y sorprendente. En las propias palabras Lisandro Vassia: “La AHR Expo fue personalmente uno de los momentos más impactantes del viaje, ví en tiempo real hacia dónde está evolucionando la industria, tecnologías que en Argentina todavía no son habituales —o directamente no están disponibles— se presentan como soluciones maduras y comercialmente consolidadas. En refrigeración comercial se observan sistemas cada vez más integrados, con control inteligente centralizado, monitoreo remoto en tiempo real y estrategias de optimización energética basadas en datos. También es notable el avance en descarbonización: refrigerantes poco usuales en Argentina, soluciones híbridas, recuperación de calor, entre otras, percibí como un cambio de paradigma en el que eficiencia energética, sostenibilidad y resiliencia operativa dejan de ser objetivos aislados para transformarse en criterios de diseño simultáneos. Otro punto fuerte fueron las herramientas, plataformas de gestión energética e inteligencia artificial aplicada al control de sistemas HVAC Caminar la AHR no fué simplemente recorrer stands, fue tener una radiografía del estado del arte del sector. Me permitió comparar enfoques, dialogar con fabricantes globales y dimensionar el nivel de Junto con estudiantes también ganadores de la beca estudiantil ortorgada por ASHRAE.

inversión en innovación que impulsa la industria en mercados más desarrollados (hablo también de la inversión realizada para tener un stand en la expo, dato no menor). Para quienes trabajamos o estudiamos refrigeración, la expo es realmente un lugar soñado”.

Si quieren saber más sobre esta experiencia de Lisandro, no dejen de leer el Newsletter Edición especial de ASHRAE Argentina.

Para cerrar, de parte del Capítulo Argentino, solo queda agradecer especialmente a los sponsors, cuyo apoyo es clave para que el Capítulo pueda otorgar becas a estudiantes. Gracias a su compromiso, futuros profesionales acceden a instancias de formación, congresos y experiencias técnicas que amplían su visión y fortalecen su desarrollo dentro de la industria HVAC&R. Su acompañamiento no solo impulsa actividades institucionales, sino que genera un impacto directo y concreto en la formación de la próxima generación del sector.

Junto con Bill McQuade, presidente de ASHRAE, durante el Winter Conference 2026. Un encuentro alineado con su lema “Healthy Buildings: Designing for Life”, que impulsa una ingeniería enfocada en salud, eficiencia y bienestar.

CLIMA DE NOTICIAS / 315

Bombas de calor con producción de agua caliente a 90°C

La línea bombas de calor UHAS de DAIKIN aparece para revolucionar el mercado de la aerotermia y las bombas de calor de aplicación comercial e industrial.

En sus dos modelos (UHAS100CME y UHAS200CME), Daikin continúa desarrollando su portfolio, incorporando dentro de sus soluciones de climatización residencial, el nuevo MULTISPLIT MULTI LITE SERIES R-32, que ofrece al usuario la posibilidad de conectar hasta 2 unidades interiores a una única unidad exterior.

Esta solución resulta ideal para proyectos residenciales de 2 ambientes y pequeños espacios, ya que resuelve la climatización para todo el año con un único sistema, a la vez que mantiene las fachadas y balcones libres, y ahorra en consumo.

Además, este sistema mantiene los principales beneficios a nivel energético, de eficiencia y de operación, que su actual línea de Sistemas Multisplit Inverter Advanced R-32, dado que cuenta con tecnología Full Inverter y utiliza gas refrigerante R-32, el gas más ecológico del mercado actual. Esto lógicamente se traduce en una operación ultra eficiente que regula el consumo y reduce el impacto de la huella de carbono.

Con un diseño minimalista

y moderno para sus unidades interiores de tipo mural, este equipo se adapta a todos los espacios, brindando confort y elegancia al mismo tiempo.

Entre sus principales ventajas podemos mencionar:

• Función ECONO: Limita el consumo máximo de energía. Es útil cuando se usa el aire acondicionado y otros dispositivos al mismo tiempo dentro de un circuito eléctrico compartido.

• Función SÚPER POTENCIA: Maximiza rápidamente el efecto de enfriamiento o calefacción cuando se requiere una climatización más rápida del ambiente.

• Flujo de aire cómodo: La dirección del flujo

del aire es hacia arriba durante la operación de FRÍO y SECO, y hacia abajo durante la operación de CALOR. Esto previene que el aire frío o cálido sople directamente sobre el cuerpo de las personas.

• Función de AUMENTO DE CAPACIDAD: Si sólo hay una unidad interior en funcionamiento, se concentrará automáticamente un aumento de capacidad (hasta un 7%) en la unidad en marcha, lo que permitirá un enfriamiento o calentamiento más rápido del ambiente.

Tecnología FULL INVERTER y refrigerante R-32: Máxima eficiencia y ahorro de energía garantizados gracias a su tecnología con compresor y ventilador INVERTER, lo que además asegura un confort térmico óptimo.

Asimismo, su refrigerante ecológico R-32, genera menos emisiones de gases de efec-

to invernadero, protegiendo la capa de ozono y reduciendo la huella de carbono.

Con tecnología japonesa de punta, este modelo ofrece al usuario 3 capacidades de unidad interior: 2.500, 3.500 y 5.000W y una capacidad de 7.000W en su unidad exterior, brindando versatilidad y confianza.

El nuevo MULTI SPLIT MULTI LITE R-32 de DAIKIN se convierte así en la opción ideal para proyectos residenciales compactos como viviendas de 2 ambientes o pequeños departamentos, ofreciendo una climatización eficiente, confiable y adaptable a cada necesidad.

Para más información visitá la web: https://daikin-argentina.com/equipos-residenciales/multisplit-multi-lite-series-r-32/

CLIMA DE NOTICIAS / 315

Tecnología por rotor desecante: eficiente y segura

Los nuevos deshumidificadores Rosgrand llegan para simplificar el control de humedad en hogares, oficinas y áreas sensibles. Con un diseño ultracompacto, funcionamiento silencioso y tecnología por rotor desecante, ofrecen un rendimiento confiable incluso a bajas temperaturas, donde otros equipos dejan de funcionar.

Disponibles en dos capacidades —3,2 L/ día (RGC-032F) y 6 L/día (RGC-060FW)— estos modelos combinan eficiencia, seguridad y facilidad de uso para lograr ambientes más saludables y confortables todos los días.

Tecnología por rotor desecante: eficiente y segura

A diferencia de los deshumidificadores tradicionales, el rotor desecante de los deshumidificadores Risgrand trabaja sin compresor, permitiendo operar desde 1°C hasta 40°C. Además, durante el proceso de regeneración el rotor alcanza altas temperaturas que eliminan bacterias y gérmenes, aportando purificación natural del aire.

Compactos, livianos y fáciles de instalar

Con apenas 414 mm de alto en el modelo 032F y 5,1 kg de peso en el 060FW, son ideales para espacios reducidos. Ambos permiten drenaje continuo, poseen fil -

tros desmontables y pueden ubicarse en pasillos, lavaderos, depósitos o incluso montarse en pared (modelo RGC-032F). Control inteligente y modos de operación

• Modos High / Low para ajustar rendimiento y consumo.

• Laundry Mode (RGC-060FW): seca ropa en 2–8 horas sin dañar prendas.

• Economy Mode: mantiene humedad en torno al 55% HR, nivel donde no proliferan hongos ni moho.

• Auto Mode (RGC-060FW): regula automáticamente el equilibrio entre eficiencia y secado rápido.

Mantenimiento simple y rápido

El acceso frontal al tanque y los filtros removibles facilitan la limpieza. Ambos modelos advierten al usuario cuando es necesario vaciar el depósito o higienizar el filtro.

Aplicaciones recomendadas

• Depósitos y archivos

• Farmacias y laboratorios

• Lavaderos y baños

• Habitaciones, oficinas y playrooms

• Quirófanos, áreas limpias y salas técnicas

• Casas de fin de semana o ambientes fríos donde otros equipos no funcionan

La correcta humedad no solo mejora el confort: también protege materiales, reduce olores, evita el deterioro por condensación y contribuye a la salud respiratoria.

Modelos disponibles

RGC-032F – 3,2 L/día

• Consumo: 320 W

• Tanque: 1,5 L

• Montaje en pared opcional

• Ideal para baños, lavaderos, habitaciones y pequeños depósitos

RGC-060FW – 6 L/día

• Consumo: 280/460 W (Eco/High)

RGC-060FW

Deshumidificador 6lts / día

• Tanque: 1,8 L

• Incluye múltiples modos (Auto, Economy, High, Laundry)

• Recomendado para espacios medianos, áreas limpias y tareas más exigentes

Ambientes más sanos, simples y seguros

Los deshumidificadores Rosgrand aportan una solución moderna, eficiente y accesible para mantener la humedad bajo control durante todo el año. Compactos, silenciosos y fáciles de usar, combinan tecnología confiable con una experiencia amigable para el usuario.

RGC-032F

Deshumidificador 3.2 lts / día

CLIMA DE NOTICIAS

Los pilares de un Data Center eficiente y confiable: climatización y control inteligente

La climatización y el control inteligente son pilares fundamentales para garantizar la continuidad operativa, confiabilidad y eficiencia energética de los Data Centers actuales y futuros. Con décadas de experiencia en soluciones de control y eficiencia energética, CAREL ofrece un portafolio integral diseñado para optimizar la climatización, el monitoreo y el control de centros de datos.

Soluciones CAREL para Data Centers

• Controladores programables pCO5 y c.pCO

• La plataforma pCO5 / pCO5+ permite gestionar de manera flexible y escalable:

• CRAC, CRAH, chillers y sistemas de free-cooling

• Control de ventiladores y compresores mediante variadores de velocidad

• Secuenciamiento de equipos y estrategias de redundancia (N, N+1, 2N)

• Integración con sistemas BMS y DCIM

• Gestión de punto de rocío y prevención de condensación

• Alarmas avanzadas y soporte para mantenimiento predictivo

Estas capacidades permiten mantener condiciones ambientales estables y responder rápidamente a variaciones en la carga térmica.

Sensores y monitoreo: visibilidad en tiempo real

La supervisión permanente es clave para la confiabilidad operativa. CAREL ofrece una amplia gama de sensores que permiten:

• Medición precisa de temperatura y humedad, incluso a nivel de entrada de aire en los racks

• Detección temprana de puntos calientes y desequilibrios térmicos

• Monitoreo de consumos energéticos y parámetros eléctricos

• Registro histórico y generación de alarmas para análisis de tendencias

• La compatibilidad con protocolos abiertos (Modbus, BACnet) facilita la integración con otros sistemas de la infraestructura crítica.

Gestión del aire y soluciones complementarias

Además de los sistemas tradicionales de aire acondicionado, CAREL incorpora soluciones que mejoran el desempeño global del Data Center:

• Enfriamiento evaporativo indirecto, reduciendo el consumo energético sin introducir humedad.

• Humidificación y control de humedad, esenciales para proteger los equipos electrónicos y prevenir riesgos por electricidad estática.

• Plataformas de supervisión, que centralizan información y optimizan las estrategias de control basadas en datos históricos.

SuperControls en Argentina: integración y soporte especializado

Como representante de CAREL en Argentina, SuperControls S.A. aporta experiencia local en el diseño e implementación de soluciones para Data Centers, ofreciendo:

• Asesoramiento técnico en etapas de diseño, ampliación y modernización

• Integración de controladores, senso-

res y sistemas de supervisión

• Soporte en puesta en marcha, operación y mantenimiento

Todo esto alineado con las recomendaciones y estándares de ASHRAE, referencia internacional en diseño, eficiencia energética y seguridad operativa para sistemas HVAC y Data Centers.

Con las soluciones de CAREL y el acompañamiento técnico de SuperControls, es posible implementar sistemas preparados para crecer junto con las demandas de la infraestructura digital.

Aire más seco, más sano y más seguro para tus espacios.

CLIMA DE NOTICIAS

Ingeniería aplicada a medida: Cuando la climatización se desarrolla

En climatización profesional, no todos los proyectos pueden resolverse con soluciones estandarizadas. Existen aplicaciones donde las variables térmicas, higrométricas y operativas exigen un abordaje específico desde la etapa de diseño.

Cuando el control de temperatura debe convivir con regulación precisa de humedad, secuenciación de equipos, restricciones espaciales o requerimientos energéticos particulares, la respuesta no está en un producto de catálogo: está en la ingeniería.

Diseñar antes de fabricar

El diferencial técnico comienza en el análisis. Cada proyecto implica evaluar condiciones ambientales, cargas térmicas, comportamiento del aire, interacción con otros sistemas y proyección de consumo energético. A partir de ese diagnóstico se desarrolla una solución específica dimensionada según las necesidades reales del entorno.

Este enfoque evita dos problemas frecuentes en el mercado: el sobredimensionamiento innecesario y la subestimación de variables críticas como la humedad relativa o la estabilidad operativa en régimen continuo. La climatización eficiente no se define por la potencia instalada, sino por la precisión del sistema.

Simulación y validación: el respaldo de la ingeniería

En CIATEMA, el desarrollo se apoya en procesos propios de investigación y desarrollo. Antes de fabricarse, cada sistema es modelado y simulado bajo condiciones de operación previstas. Se integran variables de hardware y software para validar rendimiento, estabilidad y comportamiento energético.

Posteriormente, las unidades atraviesan un banco de pruebas donde se verifican parámetros técnicos y funcionamiento integral. Esta instancia permite comprobar que lo proyectado en etapa de cálculo se traduzca en desempeño real.

La información obtenida en campo se incorpora al ciclo de mejora continua, optimizando versiones futuras y ajustando variables constructivas. El desarrollo no se detiene en la primera fabricación: evoluciona en función de la experiencia operativa.

Fabricación nacional con enfoque técnico

El modelo de trabajo prioriza la fabricación nacional con control directo sobre componentes críticos, programación y arquitectura de los equipos. Este esquema permite adaptar configuraciones, integrar siste-

mas específicos y desarrollar soluciones compactas que faciliten su implementación en obra, sin depender de estructuras rígidas predeterminadas. La flexibilidad no es un agregado: es parte del diseño. CIATEMA diseña y fabrica sistemas de climatización, y esta definición estratégica permite concentrar recursos en el desarrollo técnico y la calidad del producto, acompañando a instaladores y responsables de obra con documentación precisa, especificaciones claras y soporte desde ingeniería.

El objetivo es que el rendimiento calculado se mantenga en operación real, independientemente de quién ejecute la instalación. Porque en aplicaciones críticas, la precisión del diseño es la base del resultado final.

Una solución desarrollada, no improvisada

Cuando las condiciones del proyecto exigen estabilidad térmica, control de humedad, eficiencia energética y confiabilidad operativa, la única respuesta posible es el desarrollo a medida.

La climatización eficiente comienza en la ingeniería y se consolida en cada etapa del proceso: cálculo, simulación, prueba y mejora continua. Ese enfoque

es el que permite que el rendimiento proyectado se traduzca en desempeño real.

En ese esquema de trabajo, CIATEMA se posiciona como socio técnico de instaladores, asesores termomecánicos y empresas de ingeniería que requieren equipamiento específico para sus proyectos. Diseñamos y fabricamos los sistemas que cada aplicación demanda, brindando el soporte técnico necesario para su correcta implementación en obra. Porque en aplicaciones críticas, el resultado no depende solo de instalar un equipo: depende de haberlo desarrollado correctamente desde el inicio.

Mitos y verdades a la hora de climatizar nuestros ambientes y cuidarnos de las alergias

Con la llegada de las altas temperaturas, el aire acondicionado se vuelve esencial. Sin embargo, para muchas personas, su uso es sinónimo de resfríos, alergias y malestar general. Pero, ¿Es realmente el aire frío el que nos enferma? Especialistas en calidad de aire interior señalan que la causa no es el equipo en sí, sino lo que puede acumularse dentro de él: un universo microscópico de alérgenos y partículas.

Un equipo de aire acondicionado sin el mantenimiento adecuado puede convertirse en un caldo de cultivo para ácaros, bacterias, esporas de moho y polvo. Cuando el sistema se enciende, estas partículas se recirculan por toda la habitación, y al ser inhaladas, pueden irritar las vías respiratorias y desencadenar síntomas alérgicos.

“El verdadero debate no debe girar en torno al frío, sino a la calidad del aire que los equipos ponen en circulación en un ambiente cerrado”, explica Carlos Sorrenti, Commercial Manager en Daikin Argentina “La solución ha evolucionado más allá de los filtros pasivos que simplemente atrapan polvo. Hoy, la tecnología de punta en climatización se enfoca en la purificación activa del aire”.

Estos sistemas avanzados no solo capturan, sino que descomponen y neutralizan activamente los contaminantes a nivel molecular. Tecnologías como la descarga de plasma pueden eliminar hasta el 99.9% de virus, bacterias y alérgenos, transformando al aire acondicionado de un posible problema a una solución para la salud respiratoria.

“Existe la creencia errónea de que el aire acondicionado ‘reseca’ la garganta o ‘resfría’, cuando en realidad, un equipo moderno con un sistema de purificación activa hace exactamente lo contrario: limpia el aire mientras lo climatiza”, comenta Carlos Sorrenti, Commercial Manager en Daikin Argentina. “La tecnología Streamer que integramos en nuestros equipos, por ejemplo, está diseñada para descomponer estas partículas nocivas, garantizando que el confort no sacrifique la calidad del aire que se respira en el hogar o la oficina”.

Para asegurar un ambiente saludable este verano, los expertos recomiendan:

• Limpiar los filtros: revisar y limpiar los filtros del aire acondicionado al menos una vez al mes durante la temporada de uso. Un filtro limpio mejora la eficiencia y la calidad del aire.

• Mantenimiento profesional: realizar una revisión técnica completa del equipo al menos una vez al año para limpiar componentes internos y verificar su correcto funcionamiento.

• Ventilación cruzada: ventilar los ambientes diariamente durante unos minutos para renovar el aire interior, incluso en días de mucho calor.

• Temperatura justa: mantener la temperatura entre 24°C y 26°C. Un frío excesivo no es más confortable y puede generar un choque térmico al salir al exterior.

Contar con un equipo eficiente y mantenerlo adecuadamente no es solo una cuestión de confort, sino una decisión fundamental para cuidar la salud respiratoria durante todo el año.

Soluciones que mejoran la eficiencia energética en los edificios: sistemas de ventilación con compuertas motorizadas

El sistema HATCH de SODECA consta de soluciones de ventilación con compuertas para la extracción de aire viciado en edificios y para la evacuación de humo en caso de incendio: ROOF System, para cubierta, y WALL System, para fachada.

Las soluciones HATCH con compuerta motorizada de SODECA han sido sometidas a diferentes pruebas de robustez en condiciones límite, incluyendo cargas de nieve y de viento. Asimismo, también se han sometido a pruebas de certificación de resistencia al fuego, de acuerdo con la norma EN 12101-3, en laboratorios acreditados.

Todas las soluciones de ventilación con compuerta motorizada presentan certificaciones F400 y F300 para la evacuación de humo en caso de incendio.

Los sistemas de ventilación con compuertas motorizadas de SODECA favorecen el ahorro energético y optimizan la eficiencia energética, gracias al cierre automático de sus extractores cuando estos no están en uso. Además, ofrecen la posibilidad de personalizar los acabados y adaptarlos a las características

del edificio, logrando que los sistemas de ventilación se integren en el edificio sin comprometer la funcionalidad.

Los sistemas de ventilación con compuertas motorizadas de SODECA garantizan la integración estética, la eficiencia energética y la seguridad de evacuación de humos en caso de incendio en un solo sistema de ventilación.

CLIMA DE NOTICIAS

IFAT 2026: Tour de innovación y tecnología ambiental

IFAT Múnich es el punto de encuentro más importante de la industria y el corazón de la mayor plataforma internacional de tecnologías medioambientales. En del 3 al 9 mayo de 2026, más de 3000 expositores de más de 60 países presentarán sus estrategias e innovaciones. Descubra soluciones pioneras para el agua, el reciclaje y la circularidad.

AHK es encuentra organizando una delegación desde Argentina para la participación en este hito de innovación y tecnología ambiental en Múnich, Alemania. Esta delegación combina reuniones con empresas líderes e institutos de investigación en IFAT 2026, y visitas técnicas de proyectos de referencia en la región.

Beneficios de participar

• Acceso a las últimas tendencias y soluciones tecnológicas.

ASOCIACIÓN ARGENTINA

DEL FRIO

Programa Federal de Capacitación 2026

La Asociación Argentina del Frio está organizando el Programa Federal de Capacitación 2026 e invita a las empresas del sector a sumarse a esta iniciativa como Sponsor en alguna de las categorías que se establecieron para este año.

El CATAAR Fed comenzará en Rosario del 26 al 28 de marzo y este año se realizará el CATAAR NACIONAL junto con la EXPO FRIO CALOR del 9 al 11 de septiembre. Informes: aafrio@aafrio.org.ar WhatsApp: 1130630011

• Networking con empresas, instituciones y líderes internacionales.

• Visitas técnicas y actividades exclusivas para la delegación.

• Oportunidad de posicionar tu empresa en el mercado global.

¿Qué incluye el programa?

• 6 noches de alojamiento en Hotel 4* en Múnich

• Visitas técnicas y encuentros B2B

• Traslados durante los días del programa

• Entrada a IFAT 2026

• Acompañamiento bilingüe de la AHK Argentina

INFORMES: Beatriz Woerner Recasens- Ferias y Exposiciones +54 911 5043 0160 bwoerner@ahkargentina.com.ar

Compresores de tornillo para bombas de calor de alta temperatura

En el sector de la calefacción de los procesos industriales, durante años las calderas han representado la única solución para garantizar altas temperaturas y continuidad operativa. Hoy, sin embargo, la evolución del marco energético y normativo está poniendo en tela de juicio la sostenibilidad de los sistemas basados exclusivamente en el gas. Por un lado, la creciente volatilidad de los costos de los combustibles, por otro, la aceleración hacia la neutralidad climática, están incentivando a la industria a repensar la generación de calor. Para las aplicaciones de alta intensidad térmica, la adopción de bombas de calor industriales aire-agua y aguaagua representa una alternativa viable. En este sentido, el verdadero desafío es garantizar la estabilidad y la fiabilidad de las prestaciones: una exigencia plenamente satisfecha por los compresores semiherméticos de alta temperatura Frascold, como elemento habilitador para bombas de calor industriales capaces de sustituir con éxito las calderas tradicionales, incluso en las aplicaciones más exigentes.

La nueva generación de compresores de tornillo Frascold NEXUS es el resultado de una cuidadosa actividad de reingeniería destinada a mejorar la fiabilidad, incluso en condiciones operativas difíciles, el rendimiento y la flexibilidad de la aplicación, con el fin de satisfacer las diferentes necesidades del mercado. Entre las intervenciones más relevantes figura la integración de motores de alta eficiencia, dimensionados para operar en regímenes térmicos extremos. Además, la ampliación de los límites de temperatura permite gestionar un fluido más caliente en la aspiración, hasta 100 °C, garantizando estabilidad operativa incluso en caso de elevada absorción eléctrica. Paralelamente, se ha rediseñado la placa eléctrica, que se caracteriza por un diseño optimizado y diseñado para soportar las temperaturas más altas en juego. Otra intervención ha implicado tanto los cojinetes, realizados con materiales de nueva generación, como las tolerancias, estudiadas para compensar las dilataciones térmicas tanto en aspiración, hasta 100 °C, como en

impulsión, hasta 150 °C. Frascold también ha intervenido en el circuito de lubricación, introduciendo un aceite específico, que reduce la solubilidad del refrigerante en el aceite, garantizando una viscosidad óptima en todas las condiciones de funcionamiento. Además, las resistencias del cárter se han mejorado con la adopción de hasta cuatro resistencias eléctricas, a fin de garantizar al aceite la temperatura y la viscosidad óptimas antes de la puesta en marcha de los compresores. Por último, la pintura exterior especial es capaz de tolerar temperaturas de hasta 200 °C, lo que garantiza la protección de la superficie y la durabilidad.

Desde el punto de vista de los refrigerantes, la gama está diseñada para funcionar con dos tipos de refrigerantes: HFO, en particular elR1233zd o los hidrocarburos como el butano y el isopentano en configuración agua-agua, garantizando la máxima versatilidad en el diseño de los sistemas, con una temperatura máxima de funcionamiento de 140 °C y una capacidad de calentamiento de más de 1MW.

En términos de rendimiento, la serie admite inversores externos en el rango de 30–60 Hz para una modulación precisa de la capacidad frigorífica y térmica, a favor de una mayor estabilidad de funcionamiento. Los compresores integran motores adecuados para las temperaturas más altas y un circuito de lubricación diseñado para garantizar una lubricación adecuada incluso a altas revoluciones, reduciendo la tensión mecánica y optimizando la fiabilidad a largo plazo. En términos de capacidad operativa, NEXUS es ideal para bombas de calor de gran capacidad, con desplazamientos volumétricos de 316 a 912 m³/h a 50 Hz y motores de hasta 300 HP.

CON AIRES DE ACTUALIDAD / 315

Este año parece que será especialmente nutrido en eso de llevar a la pantalla la Literatura. Leer e ir al cine nunca han sido actividades intercambiables para mí. Nadie puede decir que conoce un libro si solo ha visto la película. Tampoco conocemos realmente la película si solo hemos leído el libro.

Cuando los hermanos Louis y Auguste Lumière realizaron la primera proyección comercial pública de su cinematógrafo en el Grand Café el 28 de diciembre de 1895 en París, estaban firmando la partida de nacimiento de un arte nuevo y revolucionario cuyos fundamentos, tecnológicos y científicos, además de estéticos, vendrían a trastocar los pilares de las otras artes, las artes tradicionales, y, en cierto modo, a conmover la médula espinal del sentido estético. En ese inicio, los hermanos (me parece genial que el apellido signifique precisamente luz) se contentaron con cinematografiar como antes se había fotografiado, con una ciencia discreta de la composición filmaron la salida de las fábricas, la entrada del tren en una estación, Venecia, la coronación del zar Nicolás ll. El cine permitía registrar acontecimientos. La ficción vino después. Entre 1896 y 1914 Georges Mélies decidió filmar breves representaciones de carácter teatral, en las que incorporaba actores, vestuarios y decorados. Así comenzó a acercarse el cine a los ámbitos del teatro y la literatura, que eran los dos grandes discursos artísticos fundados en la fabulación y la trama, tal y como las entendíamos a finales del siglo XIX e inicios del XX. Lo que pasa es que el cine, como la literatura, narra; ella simplemente lo ha precedido históricamente. Por eso, la literatura constituye para el cine una auténtica enciclopedia; ávidos de historias que contar, los directores, guionistas y empresarios acuden a sus páginas en busca de figuras, tópicos e incluso argumentos; el fenómeno es tan antiguo como el cine mismo. El mismo Mélies, por ejemplo, se apoyó en algunas obras de H. G. Wells y Julio Veme para crear sus películas, es decir, las primeras adaptaciones.

Obviamente la literatura no salió indemne de esto, el cine, al apoderarse del acto de narrar, la obligó a replantearse, a redefinirse. Hoy ya no necesita contar, describir, eso se lo deja al cine. De ahí esas novelas casi sin argumento, que en lugar de contar una historia tratan de narrar al ser humano, sus vericuetos psicológicos, sus contradictorios modo de estar en el mundo. Pero seguir este razonamiento me llevaría a otras cuestiones. Prefiero seguir con esto de las adaptaciones, del cine que toma una obra literaria, la convierte en imagen y desata tempestades como la que estamos viviendo con las borrascosas cumbres que alguna vez habitó Heathcliff. Obviamente hablo de la nueva adaptación de “Cumbres Borrascosas”..

Y coloco el título así, en mayúscula, porque es el nombre de un lugar y entre comillas, porque de ese modo lo ha escrito Emerald Fennell, responsable de la adaptación que hoy está en las pantallas. Y para no perdernos en discusiones anodinas, son las comillas y la palabra “adaptación” las que tenemos que tener en mente. Yo he leído el libro más de una vez y permanecí pacientemente en el cine viendo esta versión. Digo esta, pero en realidad he visto varias de las que han intentado capturar el hechizo de la novela de Emily Brontë. Leí por ahí que hay más de 30. Siempre leo primero y después voy al cine, inclusive a veces me resisto a ir. Es que la literatura es mía, es personal. Soy yo la que actualizo ese mundo cada vez que leo. Y seguramente en cada relectura cambia, porque el libro es el mismo pero yo soy otra, sea por mi edad, momento, lugar, experiencia y expectativas al momento de leerlo. Cada lectura es única porque cada lector también lo es, y porque cada vida lee desde su propia herida y su propio deseo. Ir al cine y vivir la historia en la pantalla pertenece a otro universo y responde a códigos narrativos distintos. Las adaptaciones no tienen que ser fieles al texto y, tampoco, pueden reproducir lo que nosotros soñamos en nuestra imaginación al habitar el libro. Al leer, nuestra imaginación es la que “adapta” la novela, en el cine es el ojo detrás de la cámara el que construye la versión que vemos.

“Cumbres Borrascosas” de Fennell no es Cumbres Borrascosas de Brontë. Ni siquiera es toda la novela, solo la primera parte de la historia que creó Emily en 1947.

Es que cada persona es hija de su tiempo. Y Emerald Fennell se obsesionó con ella al leerla por primera vez en su adolescencia. Piensen que esta chica nació en 1985 y creció en los años noventa. Vivió la hibridación de todos los estilos, donde se difuminaron las fronteras y los sentimientos se liberaron de los prejuicios. Eran los tiempos en que empezó internet, que se bailaba música pop, que Madonna casi se desnudaba sobre los escenarios. Los espectadores sufrían con El chico manos de tijera y sentían la tensión sexual del Drácula soñado por Francis Coppola. Era un mundo visual, de emociones liberadas y expuestas. “Me di la libertad de interpretar la historia desde mi lugar como lectora en lugar de hacer una traducción literal”, dice en una de las entrevistas Fennell. Y yo, previendo eso de la adaptación pero ignorando el punto de vista, me metí en el cine justo después de mi relectura actual de la novela de Brontë. Yo, señora de más de seis décadas, me senté en la sala dispuesta a ser casi aterrorizada por un amor tóxico y violento donde dos jóvenes se debaten más allá de la muerte. En cambio me encontré en Bridgerton (no me digan que la Casa de los Tordos donde viven Catherine y sus vestidos no le recordaron a la serie de Netflix); alguno podrá decirme que no entiendo nada, que la cuestión es que Fennell se inspiró en “María Antonieta” de Sofía Coppola. Si es así, me parece que no dio la talla. La película se materializa en un universo ecléctico que funde tiempos y estilos, de lo clásico a lo kitsch y lo pop, como si la memoria y el presente coexistieran en un mismo plano. Suena bien dicho así, pero a mí me distrajo, me llevó lejos de la historia de Catherine y Heathcliff y me quedé pensando en las cortinas de plásticos transparente que pendían del baldaquino de la cama o tratando de entender esas manos talladas en torno a la chimenea como si fueran las de los condenados al fuego eterno. Ahora que lo escribo,

tal vez quieran decir eso, pero yo la hubiera puesto en la sala de la otra casa, de Cumbres Borrascosas. Hay algo de videoclip de MTV en la película que destruye la oscura atmósfera de estos amantes separados por cuestiones de clase.

La Catherine de Margot Robbie es demasiado Barbie y al Heathcliff de Jacob Elordi (aunque vale la pena ir al cine para “saborear” lo bonito que es ese hombre), se le resbala una gota de miel en la mirada que borra toda la maldad que aparenta. Fennell se permite licencias, elimina personajes y altera aspectos de la trama para concentrarse en el descubrimiento del deseo, la atracción y la exploración sexual de los protagonistas. Los abismos clase o de raza o de relaciones están como diluidos, nombrados solo al pasar. Entonces la adaptación se aleja aun más de Emily y algún espectador recuerda las 50 sombras de Grey (yo más bien pensé en la saga Crepúsculo). Nadie piensa en la novela escrita hace 180 años o, por lo menos, a mí me cuesta. Será que yo la leí a los 12 años pero en la década del 70, sin internet, sin tele color, con el teléfono medido y las películas prohibidas para menores de 18, una época en que devoré novela decimonónica y a escondidas fui Catherine, Jane Eyre, Scarlett… Dicho esto me reconozco vieja, indudablemente no soy la espectadora que Fennell tenía en la cabeza al filmar. Me queda un consuelo, hacerme mi propia película y volver a leer a Emily Brontë. Es en esas páginas donde viven Catherine y Heathcliff tal como me gusta imaginarlos.

Gabriela M. Fernández

AIRE ACONDICIONADO MONTADO EN CONSOLA DE PISO. Consolas AboveAir FC™. Solución compacta para el control de enfriamiento de precisión para salas de computadoras pequeñas, armarios de red, salas IDF/MDF y salas de control de equipos. Disponible en una amplia variedad de métodos de enfriamiento y configuraciones de gabinetes y rechazo de calor. 1 a 5 toneladas. DX: sistemas de agua enfriada y enfriados por aire, agua, glicol. Sistemas empaquetados y divididos. Patrones de aire de flujo ascendente y descendente. Humidificadores de recipiente a vapor (Nortec/Condair). Recalentamiento / Calefacción eléctrica, gas caliente, agua caliente o vapor. Compresores Scroll (R410a): velocidad fija con derivación de gas caliente, opciones de desplazamiento digital modulante y de 2 velocidades. www.aboveair.com

CALDERA PRESURIZADA DE CONDENSACIÓN.

Con quemador de gas o gasoil. Para grandes potencias. 530 a 3.000 kW. Robustez y durabilidad. Fabricada en acero y recuperador en inoxidable. Gran volumen de agua. Simplicidad de instalación hidráulica. Trabaja directamente con bombas de la instalación sin desacoplamiento hidráulico y bomba de recirculación. 4 tomas favorecen la condensación en cualquier tipo de instalación. Cuerpo de caldera de acero monobloque aislado (100 mm). Condensador acero inoxidable integrado desmontable. Carenado superior reforzado y transitable. Puerta estanca, apertura de izquierda a derecha (al revés por pedido). Visor de la cámara de combustión integrado en la puerta. Puerta con carcasa de aislamiento y refractario interior. Conexiones de impulsión y retorno con bridas, contra-bridas, juntas y tornillos. Conexión de drenaje en la caldera y en el condensador. Sifón de evacuación de condensados. Conexión de alimentación y vaciado con válvula. Fibra refractaria bio para forrar y proteger la cabeza del quemador. Anillas de elevación. Cepillo de limpieza. Caja de humos aislada. Placa soporte del quemador. Presión de servicio 8/10 bar. Neutralizador de condensados. Filtro magnético de lodos. Cuadro de mandos mecánico (Navistem B1000). Cuadro de mandos electrónico (Navistem B2000 para gestión de circuitos, comunicación MODBUS, telegestión. www.acv-ygnis.com

UNIDAD DE TRATAMIENTO DE AIRE. Unidades SBF Smardt AIR™. Flujo de aire limpio y eficiente. Para instalaciones interiores, exteriores, azoteas. La plataforma está diseñada para integrarse a los sistemas de construcción modernos. Alto rendimiento del flujo de aire y acceso al servicio. Perfectos para el tratamiento del aire en: oficinas, comercios, hospitales, farmacias, hoteles, escuelas y universidades, etc. La construcción modular permite que las unidades se adapten a diferentes diseños, tamaños y requisitos del proyecto. Las rutas de flujo de aire optimizadas y los componentes de alta eficiencia ayudan a reducir el uso de energía y los costos operativos. Superficies interiores lisas y un diseño de drenaje eficiente favorecen la operación limpia y un mantenimiento sencillo. Construcción robusta de carcasas y paneles con resistencia y durabilidad para entornos exigentes. Diseñado, probado, perfeccionado y validado para funcionar en condiciones operativas del mundo real. https://smardt.com

VENTILADOR DE GRAVEDAD ESCALONADO.

Modelo TRE. Unidad de ventilación por gravedad. Diseño escalonado con rejilla, estético y arquitectónico para el techo. Para aplicaciones de escape o suministro. Tamaños personalizados adaptados a las necesidades. Disponible en filtrado y no filtrado. Unidad fabricada con aluminio extruido calibre 0,081 soldado a una estructura de soporte de aluminio calibre 8 mínimo. La campana de aluminio será construida con mínimo 0.063 de aluminio y provisto de una capa de revestimiento anticondensado. La base de aluminio tendrá un bordillo soldado continuamente. Esquinas de tapa de bordillo soldadas, máxima protección contra fugas. Niveles de ingletes soldados. Ventilador fabricado según certificación ISO 9001. Pantalla para pájaros construida de 1/2”. Malla galvanizada a lo largo de la abertura de alivio. Placa de aluminio grabada de identificación indicará CFM de diseño y la estática. 5 años de garantía. www.lorencook.com

LA PUBLICACIÓN AQUÍ ES GRATUITA. Si tiene un producto innovador, envíe una descripción (máximo: mil docientos caracteres), su dirección web y una fotografía a: carlosalejandro@revistaclima.com.ar y lo incluiremos en próximas ediciones. ¡No se pierda la oportunidad de llegar a sus clientes!

CONSULTORES / 315

ECHEVARRIA-ROMANO ESTUDIO

Asesores en instalaciones de aire acondicionado, calefacción, ventilación y controles. Miembros de la Asociación Argentina del Frío y de la American Society of Heating, Refrigerating and Air-Conditioning Engineers (ASHRAE). www.aiset.com

estudio@echevarriaromano.com.ar Arenales 3069 4º Piso Dpto. “B” C1425BEK, CABA, Argentina.

Tel: (54 11) 4824-4222 / 4827-2638

ASESORAMIENTO, PROYECTOS, DIRECCIÓN,

AUDITORÍAS DE INSTALACIONES TERMOMECÁNICAS

Aire Acondicionado Central, Calefacción Central, Sistemas de Ventilación, Sistema de Filtrado de Aire, Building Management System.

www.gnba.com.ar info@gnba.com.ar

San Martín 1009 Piso 5º A C1004AAU, CABA, Argentina

Tel: (54 11) 5238-1072

ING. RICARDO BEZPROZVANOY

Past Presidente del Capítulo Argentino de Ashrae. Asesor en equipamiento de instalaciones de HVAC, eficiencia energética y ejecución de proyectos.

rbezpro@gmail.com

Piñeiro 358 (B1824NTC)

Lanús, Provincia de Buenos Aires, argentina Tels: (011) 4241-1095 / (54911) 4491 3232

ARMANDO CHAMORRO INGENIERO INDUSTRIAL

Especialista en sustentabilidad edilicia, laboratorio para análisis de calidad de aire interior y validaciones, estudios de eficiencia energética, Certificación LEED AP, auditorias de Commissioning. Ejecución de proyectos. Miembro del Capítulo de ASHRAE Argentina

www.cihsoluciones.com achamorro@cihenvironmental.com

Juramento 4137

C1430BSQ - CABA, Argentina

Tel: (54-11) 4542-3343

Ingeniero

Invitamos a las empresas y profesionales a ser incluidos en esta sección gratuita. Solicite información a: aguerisoli@revistaclima.com.ar

MPH & H INGENIEROS CONSULTORES

Asesores en instalaciones de acondicionamiento de aire, calefacción y ventilación mecánica. Asesores en eficiencia energética y calidad del aire interior en proyectos para certificación LEED. Miembros de la Asociación Argentina del Frío - AAF y de la American Society of Heating, Refrigerating and Air Conditioning Engineers - ASHRAE. Asociada Paula Andrea Hernández LEED AP BD+C. mphingenieria@fibertel.com.ar Av. Montes de Oca 1103 - 5º Piso - Dpto D (1270) CABA Argentina. Tels (54-11) 4302-9561 / (54 11) 4303-3481

ING. RAFAEL SÁNCHEZ QUINTANA PROYECTOS ACÚSTICOS

Dirección de Obra. Especialista en Acústica en salas, teatros, hoteles, edificios. Medición de nivel sonoro. Verificación acústica del sistema HVAC. Tratamiento acústico para reducción del ruido de generadores de potencia. Responsable Comisión de Acústica del IRAM. rsqacustica@gmail.com Tucumán 1687 3° Piso Dpto. “D” (C1005AAG), CABA-R, Argentina Tel. (54-11) 4371-3354

ASESORES Y DISEÑADORES DE INSTALACIONES

HVAC Y SERVICIOS MEP PARA LA INDUSTRIA

Intervenimos en todo el ciclo de vida del proyecto, desde el diseño conceptual, la ingeniería, la adquisición, hasta la construcción.

www.azzamura.com info@azzamura.com

Moreno 330. (B1642BOL) San Isidro Buenos Aires - Argentina

Tel. +54 11 4743 1479

GF / ESTUDIO GRINBERG INGENIEROS CONSULTORES

Asesoramiento en instalaciones termomecánicas. Ejecución de proyectos. Dirección de obras. Auditorias técnicas y sistemas de controles. Green buildings.

www.estudio-grinberg.com.ar estudio@estudio-grinberg.com.ar Tte. Gral. J. D. Perón 1730, P12, Of.31 (C1037ACH), Buenos Aires, Argentina

Tel: (54 11) 4374-8385 / 4373-3486

CONSULTORES / 315

Invitamos a las empresas y profesionales a ser incluidos en esta sección gratuita. Solicite información a: aguerisoli@revistaclima.com.ar

ING. JOSÉ MARÍA ALFONSÍN

Proyecto y dirección técnica de instalaciones termomecánicas. Locales gastronómicos. Asesoramiento en eficiencia energética. Miembro de ASHRAE y AGBC. www.ing-alfonsin.com.ar jmalfonsin66@gmail.com

Uribelarrea 442 P1 Olivos (1636) (+54 911) 6094 0577

LEEB INGENIERÍA DE MÉTODOS

Proyectos termomecánicos a medida. Pequeña y mediana empresa. Climatización VRV. Ampliaciones. Mejoras. Ventilaciones industriales. Presurización de escaleras. Normas de edificación.

JAVIER F. LEEB

Maipú 827, PB, CABA Cel / WhatsApp: 11-5514-0074

Linkedín: /javier-francisco-leeb Mail: jfleeb_2000@yahoo.com.ar

INGENIERO JULIO BLASCO DIEZ

Consultoría en Instalaciones Termomecánicas. Proyectos y Dirección de Obra. Blasco10@gmail.com

Calle 53 Nº 411 esq 5

Villa Elisa - La Plata

Tel. Cel. (54 9 221) 655 7724 (54 9 221) 655 7923

ARQUITECTO GUSTAVO ANÍBAL BATTAGLIA

Estudio, diseño y dirección de obras en Instalaciones termomecánicas adaptadas a las necesidades estéticas y funcionales del proyecto de arquitectura y la obra civil. Asesoramiento en optimización energética del edificio y en sistemas de climatización. Miembro de la American Society of Heating, Refrigerating and Air-Conditioning Engineers (ASHRAE). arq.battaglia@gmail.com

Acoyte 790 5º piso

C1405BGS - CABA, Argentina

Tel: (54-11) 4982-2104 Cel: 54 9 11 5060 4150

ARQUITECTO GUSTAVO ANIBAL BATTAGLIA

INTER - ARQ. CONSULTORES EN HVAC CONSULTOR EN INSTALACIONES DE TERMOMECANICA. DESARROLLO DE INGENIERÍAS PARA LA ARQUITECTURA.

INGENIERO JULIO BLASCO DIEZ

STAFF

DIRECCIÓN

Juan J. Riera juanriera@revistaclima.com.ar

DIRECCIÓN

Gabriela M. Fernández admin@revistaclima.com.ar

PUBLICIDAD

aguerisoli@revistaclima.com.ar aguerisoli1950@gmail.com Cel/Wsp +54 9 11 4143 7743 carlosalejandro@revistaclima.com.ar Cel/Wsp +54 9 11 3598-3254 www.revistaclima.com.ar facebook.com/revista.clima.digital linkedin.com/in/revistaclimadigital

Registro de la Propiedad Intelectual Nº 124.121 Premio “A.P.T.A. - F. Antonio Rizzutto” en categoría “Revistas Técnicas”, 1985.

Publicación especializada en aire acondicionado, calefacción, refrigeración y ventilación. Preservación del medio ambiente. Sustentabilidad en la Arquitectura y en los sistemas de confort e industriales. Promoción de las energías alternativas.

Auspiciada por el Capítulo ASHRAE de Argentina y la Cámara Argentina de Calefacción, Aire Acondicionado y Ventilación y la adhesión de la Asociación Argentina del Frío y la Cámara Argentina de Industrias de Refrigeración y Aire Acondicionado (CAIRAA)

SUSCRIPCIONES: 6 Ediciones digitales anuales: $43.100.- Pesos argentinos (IVA 10.5% incluido).

Revista Clima no se hace responsable de las opiniones vertidas en los artículos firmados, que expresan exclusivamente el criterio de los autores, ni de los contenidos de los avisos publicitarios que se incluyen en la presente edición.

䄀 椀 爀 攀 愀 挀 漀 渀 搀 椀 挀 椀 漀 渀 愀 搀 漀 ⸀ 刀 攀 昀 爀 椀 最 攀 爀 愀 挀 椀  渀 ⸀ 䌀 愀 氀 攀 昀 愀 挀 挀 椀  渀 ⸀ 嘀攀 渀 琀 椀 氀 愀 挀 椀  渀 礀 洀 愀 渀 攀 樀 漀 搀 攀 愀 椀 爀 攀 ⸀ 䴀 攀 搀 椀 漀 愀 洀 戀 椀 攀 渀 琀 攀 ⸀ 䔀 渀 攀 爀 最  愀 猀 猀 甀 猀 琀 攀 渀 琀 愀 戀 氀 攀 猀 ⸀ 䌀 愀 氀 攀 渀 琀 愀 洀 椀 攀 渀 琀 漀 最 氀 漀 戀 愀 氀 ⸀ 䔀 挀 漀 氀 漀 最  愀 ⸀ 䄀 爀 焀 甀 椀 琀 攀 挀 琀 甀 爀 愀 ⸀ 吀攀 爀 洀 漀 愀 挀 切 猀 琀 椀 挀 愀 ⸀ 䌀 愀 瀀  琀 甀 氀 漀 䄀 猀 栀 爀 愀 攀 ⸀ 䌀 漀 洀 攀 爀 挀 椀 漀 攀 砀 琀 攀 爀 椀 漀 爀⸀ 䔀 洀 瀀 爀

渀 ⸀ 倀 爀 漀 搀 甀 挀 琀 漀 猀 ⸀ 伀 瀀 椀 渀 椀  渀 ⸀ 吀攀

Turn static files into dynamic content formats.

Create a flipbook