Portfolio 2024 test

Page 1


Bonjour, moi c’est Rémi,

double diplômé en ingénierie du bâtiment et en architecture. J’ai sélectionné dans ce portfolio des projets d’échelles et enjeux variés qui reflètent au mieux ma formation, alliant créativité et rigueur technique.

Je suis aujourd’hui motivé à mettre mes compétences au service d’une agence valorisant une approche esthétique, fonctionnelle et technique de l’architecture.

Formation

2019 - 2024 ESTP Paris & ENSA Paris-La Villette

Double diplôme Ingénieur Architecte | PFE avec les félicitations du jury

2022 - 2023 Erasmus | IUAV de Venise

Parcours d’architecture d’un an, dispensé entièrement en anglais

2017 - 2019 CPGE | Lycée Henri Wallon Valenciennes

Classes préparatoires scientifiques en MPSI puis MP

2014 - 2017 Lycée Albert Châtelet Douai

Baccalauréat Scientifique mention Très Bien

Experience

8 semaines en 2024 Stage de master en architecture | agence RTLR à Paris Réalisation de plans 2D et 3D à partir de relevés – aide à la conception et à la représentation de projets

9 semaines en 2022 Stage en conduite de travaux | entreprise Terideal

Gestion d’un chantier de construction de logements à Boulogne-Billancourt

5 semaines en 2020 Stage ouvrier | entreprise C.M.P. Ă  Mitry-Mory

Travail sur chantier et en atelier principalement autour des menuiseries aluminium, leur fabrication et leur pose

Réalisations

2024

Concours Etudiants | [Ré]inventer l’existant

Mon projet de PFE a été l’un des 3 projets sélectionnés dans la classe pour participer au concours organisé par la DRIEAT Île-de-France

Compétences

Logiciels Pack Office, AutoCAD, SketchUp, Podium, Photoshop, InDesign

Langues Anglais Niveau C2 (950 au TOEIC)

Italien Niveau A2

Loisirs

Musculation | Manga

LA NOUVELLE ENSAPLV

équipement d’enseignement, réhabilitation, surélévation

JASANGRIA

logements, commerce, crèche

VENYCE

urbanisme, paysagisme

IMMERSIONS NUMÉRIQUES

logement individuel, mobilier intérieur

THE CRACK

pavillon d’exposition

LA NOUVELLE ENSAPLV

Localisation : Saint-Denis, France

Année : 2024

Co-autrice : Elisa Romero-Romero

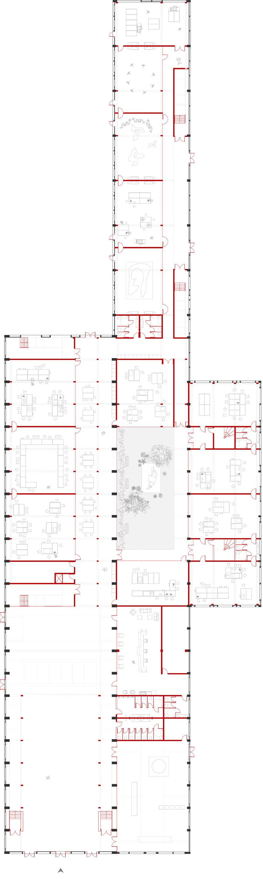
L’ENSAPLV, première école d’architecture de France par son nombre d’étudiants, occupe des locaux de 8 400 m², soit seulement 3,6 m² par étudiant, loin des 10 m² de moyenne nationale. C’est pourquoi, dès les années 90, la question de sa relocalisation se pose, notamment dans les cathédrales du rail de Saint-Denis, ancien atelier ferroviaire abandonné depuis 1998. Le site hébergera finalement, dès 2028, un musée du hip-hop et du street art, ainsi que 650 logements et des commerces.

Nous avons cependant imaginé une nouvelle relocalisation de l’ENSAPLV dans ce lieu en nous efforçant d’exploiter pleinement le potentiel des cathédrales dont l’enjeu se trouve, selon nous, dans la recherche d’un équilibre entre conserver et investir l’existant : entre densité et monumentalité.

Notre projet organise l’école en quatre pavillons : étudiants, expression et création, ressources et recherche, et enseignement et gestion. Chaque pavillon fait l’objet d’une intervention particulière, qu’il s’agisse d’une réhabilitation, d’une surélévation ou d’une construction neuve, tenant compte à la fois de l’existant et du programme alloué.

Les 4 pavillons et le parc de l’école

1 pavillon des étudiants

cafétéria, locaux assos, atelier numérique, salle d’experimentation, atelier maquette, labo photo, espaces de travail

2 pavillon expression et création accueil, salle d’exposition, amphithéâtre 350 places, salles de projet, salles d’arts plastiques, espace enseignants

3 pavillon enseignement et gestion amphithéâtres, salles de cours et d’informatique, administration, Editions La Villette

4 pavillon ressources et recherche recherche, bibliothèque

Les espaces majeurs du pavillon des étudiants s’organisent en suivant la logique spatiale suggérée par les 5 voûtes de la petite cathédrale et sont tous orientés vers le parc. Les trois voûtes centrales accueillent deux niveaux de plancher, tandis que les deux voûtes latérales restent libres sur toute leur hauteur.

La nouvelle structure en acier, conçue en système poteaux-poutres, évoque le passé du lieu tout en s’affranchissant de la structure en béton armé d’origine, inadaptée aux nouvelles charges.

L’isolation, intérieure en façade et extérieure en toiture, permet d’admirer les voûtes marquées par les coffrages bois d’époque.

Création d’une loggia en reculant la façade

dans un espace exterieur couvert face au parc

Travailler
Façade Nord
Façade Sud-Ouest

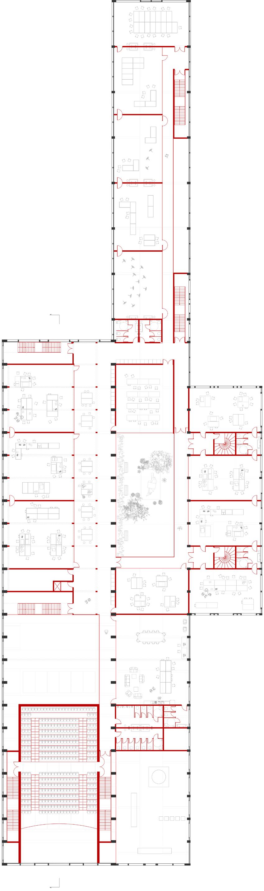
1 2 3 4

R+2 1 2 3 4 5 6 7 8

salles de projet espace détente stockage maquettes sanitaires

R+1 1 2 3 4 5 6 7 8 9

salles d’arts plastiques salles de projet espace libre appropriable passerelle exterieure salle des enseignants stockage maquettes sanitaires aphithéâtre 350 places

Rez-de-chaussée

salles d’arts plastiques salles de projet espace libre appropriable patio accueil stockage sanitaires salle d’exposition hall

Le pavillon expression et création prenant place dans la grande cathédrale constitue le noyau de cette école puisqu’il contient les salles de projet et salles d’arts plastiques : disciplines historiquement identitaires de l’ENSAPLV.

Ce bâtiment contient également une salle d’exposition associée à l’amphithéâtre principal de l’école afin de pouvoir organiser des conférences en lien avec les expositions en cours.

A l’intérieur du pavillon, pour limiter les dépenses énergétiques, seuls les espaces du programme sont chauffés.

Les salles de projet s’organisent autour d’un patio créé en évidant la toiture. Elles bénéficient ainsi d’un espace, lumineux et appropriable où les élèves peuvent travailler, devant leur salle de classe.

L’entrée du pavillon rappelle celle d’une cathédrale, avec un vestibule resserré sous l’amphithéâtre, coupant avec l’agitation extérieure et invitant à la contemplation. En progressant, l’espace se déploie jusqu’au hall, révélant la hauteur d’origine de l’ancien atelier.

JASANGRIA

Localisation : Bayonne, France

Année : 2024

Co-autrice : Elisa Romero-Romero

Ce projet alliant logements, commerce et crèche vise à revaloriser la ZAC du Séqué, un écoquartier en périphérie de Bayonne majoritairement habité par des familles primo-accédantes, en répondant aux enjeux environnementaux et sociaux d’un écoquartier.

Cela se concrétise dans le projet notamment par la limitation de l’imperméabilisation des sols, la récupération des eaux de pluie, la réduction de l’empreinte carbone, la préservation de la biodiversité et enfin la durabilité.

C’est ce dernier critère qui a donné son nom au projet puisque jasangria signifie durable en basque.

1 2 3 zone de dépôt de remblai zone à enjeu écologique nul zone à enjeu écologique élevé Plan de l’existant : enjeux environnementaux

logements BRS sur pilotis maisons idividuelles privées supérette crèche jardin libre d’accès

pavés de béton lit de pose : substrat mousses géotextile fondations : graves 20/40 sous-fondations : graves 40/60 géotextile ainticontaminant drain de sécurité fond de forme 1 2

carré potager en acier corten

plantations substrat sec substrat plus humide ancrage du substrat gestion des eaux excédentaires protection étanchéité isolation support d’étanchéité 3 4

gravier géotextile concassé 0/31.5 ou sol dur géotextile

Appartment étage courant BRS

séjour

Coupe détail loggia

1 2 3 4 5 parquet chape isolant rupteur de pont thermique attache métallique 6 7 8 9 10 planches bois bastaings bois plots supports dalle béton armé bavette aluminium

16 17 18 19

entrevous Béton poutrelle précontrainte volet roulant précadre menuiseries

VENYCE

Localisation : Brooklyn, New York

Année : 2022

Co-auteur : Paul Regnier

La montée des eaux est un sujet alarmant pour les villes situés sur les littoraux. C’est le cas notamment de New York et plus particulièrement du quartier de Brooklyn. En effet, sans intervention, nombre des bâtiments industriels qui font face à la baie seront complètement inondées d’ici 2050.

C’est pourquoi nous avons imaginé un projet urbain et paysager qui va chercher à accueillir l’eau au sein de la ville et des bâtiments plutôt que d’essayer de s’en protéger.

Nous avons alors redessiné toute la côte en mettant en place un système de blocs en matériaux recyclés issus des bâtiments bientôt condamnés par les inondations. Ces blocs, installés en plusieurs phases, peuvent être assemblés de différentes manières afin de créer des paysages et des usages variables en fonction des marées et des années.

2025 - Mise en place du tramway, du pont flottant et des premiers blocs

2040 - Construction des futurs accès au bâtiment

2030 - Transformation du bâtiment pour accueillir l’eau

2050 - achèvement du projet

vestiges

passerelle surélevée, point de vue sur la baie points d’embarquement privés terminus tramway arrêt

Marée haute
Marée basse
Niveau intermédiaire

IMMERSIONS

NUMÉRIQUES :

Rendus 3D de Stage

Localisation : Beaumont-Sur-Oise et Paris

Année : 2024

Logiciels : Sketchup, Podium, Photoshop

Mon dernier stage m’a permis d’apprendre à réaliser des rendus 3D réalistes au travers de deux projets.

Maison individuelle (Beaumont-Sur-Oise) : Dans le cadre d’une demande de permis de construire, j’ai produit deux vues extérieures intégrant la maison dans son contexte.

Bar de La Chaufferie (La Machine du Moulin Rouge, Paris) : Le projet consistait à agrandir le comptoir du bar pour augmenter le nombre de postes de vente. Il fallait alors présenter au client une vue réaliste du futur espace. Situé en sous-sol, ce projet m’a permis de travailler avec des lumières artificielles pour reproduire l’ambiance festive et immersive du lieu.

Turn static files into dynamic content formats.

Create a flipbook
Issuu converts static files into: digital portfolios, online yearbooks, online catalogs, digital photo albums and more. Sign up and create your flipbook.